Next Issue
Volume 16, February-1
Previous Issue
Volume 16, January-1
 
 

Buildings, Volume 16, Issue 2 (January-2 2026) – 222 articles

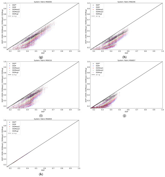
Cover Story (view full-size image): Daylight glare in buildings is often assessed based on the Daylight Glare Probability (DGP), which can overestimate discomfort from small bright glare sources like the sun, especially in the peripheral visual field. The modified version Daylight Glare Metric (DGM) accounts for this issue. This article evaluates the performance of the DGM with the help of a two-part study—a lab study with 35 participants under an artificial sky with an LED sun and a comprehensive simulation study in a reference office across three locations, view directions, and 17 window systems. Results show that the DGM aligns more closely with subjective glare and lowers predicted exceedances of annual glare limits, indicating high practical relevance and the need to refine current thresholds in standards. View this paper
  • Issues are regarded as officially published after their release is announced to the table of contents alert mailing list.
  • You may sign up for e-mail alerts to receive table of contents of newly released issues.
  • PDF is the official format for papers published in both, html and pdf forms. To view the papers in pdf format, click on the "PDF Full-text" link, and use the free Adobe Reader to open them.
Order results
Result details
Section
Select all
Export citation of selected articles as:
28 pages, 3362 KB  
Article
Application of Multi-Ribbed Composite Wall Structure in Rural Housing: Seismic, Carbon Emissions, and Cost Analyses
by Yanhua Wu, Yue Wang, Haining Wang, Meng Cong, Hong Zhang, Francis Deng Clement, Yiming Xiang and Chun Liu
Buildings 2026, 16(2), 465; https://doi.org/10.3390/buildings16020465 - 22 Jan 2026
Viewed by 180
Abstract
Sustainable development is crucial worldwide. Under the Paris Agreement, countries commit to Nationally Determined Contributions (NDCs) assessed every five years. China, a major contributor to global warming, has made significant efforts to reduce carbon emissions and achieve carbon neutrality, a key strategy for [...] Read more.
Sustainable development is crucial worldwide. Under the Paris Agreement, countries commit to Nationally Determined Contributions (NDCs) assessed every five years. China, a major contributor to global warming, has made significant efforts to reduce carbon emissions and achieve carbon neutrality, a key strategy for sustainable development. However, there is a lack of adequate attention to embodied emission reduction in rural residential construction, despite a surge in building to improve living standards. This paper evaluated the feasibility of applying a multi-ribbed composite wall structure (MRCWS) in rural China through a village service project. A full-scale shaking table test was conducted to study its seismic performance. Carbon emissions were analyzed using process-based life cycle assessment (P-LCA) and the emission-factor approach (EFA), while costs were estimated using life cycle costing (LCC) and the direct cost method (DCM). These analyses focused on sub-projects and specific structural members to validate the superiority of this prefabricated structure over common brick masonry. MRCWS blocks were prefabricated by mixing wheat straw with aerocrete, utilizing agricultural by-products from local farmlands, thus reducing both construction-related carbon emissions and agricultural waste treatment costs. Results show that this novel precast masonry structure exhibits strong seismic resistance, complying with fortification limitations. Its application can reduce embodied carbon emissions and costs by approximately 6% and 10%, respectively, during materialization phases compared to common brick masonry. This new prefabricated building product has significant potential for reducing carbon emissions and costs in rural housing construction while meeting seismic requirements. The recycling of agricultural waste highlights its adaptability, especially in rural areas. Full article
Show Figures

Figure 1

20 pages, 4232 KB  
Article
Bandgap Properties of Periodically Supported Beam with Inertial Amplification Mechanism
by Qiang Yi, Pu Wang, Zelin Chen, Yuan Gao and Shuguo Wang
Buildings 2026, 16(2), 464; https://doi.org/10.3390/buildings16020464 - 22 Jan 2026
Viewed by 135
Abstract
Periodically supported beams are widely employed in engineering structures, where effective control of low-frequency vibration and noise is often required. To achieve broadband elastic wave manipulation, an inertial amplification (IA) mechanism was introduced to generate low-frequency and ultra-wide bandgaps. Based on the Timoshenko [...] Read more.
Periodically supported beams are widely employed in engineering structures, where effective control of low-frequency vibration and noise is often required. To achieve broadband elastic wave manipulation, an inertial amplification (IA) mechanism was introduced to generate low-frequency and ultra-wide bandgaps. Based on the Timoshenko beam theory, analytical models for flexural wave propagation in periodically supported beams with IA structures were established using the generalized state transfer matrix method and the Floquet transform method, respectively. The validity of the analytical models was verified by vibration transmission analysis using a finite element model. The results demonstrate that the Floquet transform method enables rapid and accurate solution of the wave model. The introduction of the IA mechanism can generate low-frequency bandgaps, which are most sensitive to the amplification angle and amplification mass. The bandgap formation mechanism arises from the modulation of Bragg scattering in the periodically supported beam by the IA structure. This modulation causes the standing wave mode frequencies to shift to lower frequencies, thereby widening the bandgaps. Furthermore, hybrid IA structure configuration can achieve broader bandgaps, facilitating elastic wave control in the ultra-wide low-frequency range. These findings provide valuable insights for low-frequency vibration and noise attenuation in engineering structures. Full article
Show Figures

Figure 1

18 pages, 3439 KB  
Article
The Effect of Air Supply on Kitchen Range Hood Performance and Unintended Infiltration
by Jae-Woo Lee, Seon-Hye Eom, Yong-Joon Jun and Kyung-Soon Park
Buildings 2026, 16(2), 463; https://doi.org/10.3390/buildings16020463 - 22 Jan 2026
Viewed by 152
Abstract
With the increasing number of highly airtight residences, concerns have risen that the negative pressure formed indoors during kitchen hood operation can reduce capture performance and cause unintended infiltration. This study experimentally and numerically (via CFD simulations) examined whether installing an air supply [...] Read more.
With the increasing number of highly airtight residences, concerns have risen that the negative pressure formed indoors during kitchen hood operation can reduce capture performance and cause unintended infiltration. This study experimentally and numerically (via CFD simulations) examined whether installing an air supply unit on the cooktop beneath a hood can stabilize hood performance and suppress infiltration in small residential spaces. Two cases were established depending on whether air was supplied: Case 1 (hood operation only) and Case 2 (simultaneous operation of the hood and the air supply unit). In the experimental setup, the hood exhaust flow rate, supply airflow rate, sink-drain infiltration rate, and temperature/humidity were measured. The period during which variations in measured values remained within 10% was defined as the steady state. In the CFD analysis, winter conditions were assumed, and the measured values were applied to the wall boundary, after which the temperature and velocity field were analyzed. In Case 2, by supplying 24.11 CMH of air, the hood flow rate remained stable at 75.72 CMH (98.8% of the initial level) throughout the test, and no infiltration was detected. The CFD analysis revealed that the air supply unit generated an “air curtain” effect, enabling rapid capture of hot airflow and reducing the high-temperature region. In conclusion, the interconnected operation of supply and exhaust systems was shown to be effective in enhancing hood exhaust stability, suppressing unintended infiltration, and improving capture reliability in highly airtight small residential buildings. Future studies should include further analyses, such as the effects of actual cooking behaviors and leakage path distributions. Full article
(This article belongs to the Section Building Energy, Physics, Environment, and Systems)
Show Figures

Figure 1

17 pages, 2520 KB  
Article
Towards Carbon-Negative Concrete Using Low-Carbon Binders and Carbonated Recycled Aggregates: MAA-Based Mix Design Optimization, Carbon Emission and Cost Assessment
by Wen Lin, Gaoyu Liao, Lixiang Xu, Guanghui Wang, Chucai Peng, Yueran Zhang and Dianchao Wang
Buildings 2026, 16(2), 462; https://doi.org/10.3390/buildings16020462 - 22 Jan 2026
Viewed by 169
Abstract
Developing low-carbon building materials is essential for achieving sustainability in the construction sector. This study proposes a carbon-negative concrete (CNC) system that combines low-carbon binders derived from industrial by-products with carbonated recycled aggregates capable of CO2 absorption. To enhance particle packing and [...] Read more.
Developing low-carbon building materials is essential for achieving sustainability in the construction sector. This study proposes a carbon-negative concrete (CNC) system that combines low-carbon binders derived from industrial by-products with carbonated recycled aggregates capable of CO2 absorption. To enhance particle packing and mechanical performance, the Modified Andreasen–Andersen (MAA) model was adopted for mix design optimization and experimentally validated. The optimized CNC mixture containing 22% coarse aggregate achieved the minimum residual sum of squares between the graded particle distribution and the theoretical MAA curve, as well as the highest strength performance. Compared with a 14% coarse aggregate mixture, the 22% mix exhibited 13.5% and 19.8% increases in compressive strength at 7 and 28 days, confirming the applicability of the MAA model for CNC proportioning. Carbon emission assessment, limited to raw material production, demonstrated significant environmental benefits. CNC incorporating both low-carbon binders and carbonated recycled aggregates reduced total emissions and CO2 intensity by 87.1% and 86.2%, respectively, compared with ordinary concrete of the same strength grade. Economic evaluation further showed that CNC reduced material cost by 48.1% relative to ordinary concrete. It should be emphasized that the reported CO2 reduction and negative emission effects are limited to the defined raw material production boundary and do not represent a fully net-negative life cycle. Overall, these results confirm the technical, environmental, and economic feasibility of CNC as a sustainable alternative to traditional concrete. Full article
(This article belongs to the Special Issue Low-Carbon and Sustainable Building Structures)
Show Figures

Figure 1

26 pages, 3094 KB  
Article
Improved Dual-Module YOLOv8 Algorithm for Building Crack Detection
by Xinyu Zuo, Ahmed D. Almutairi, Muneer K. Saeed and Yiqing Dai
Buildings 2026, 16(2), 461; https://doi.org/10.3390/buildings16020461 - 22 Jan 2026
Viewed by 210
Abstract
Building cracks are significant indicators of structural integrity. Conventional fracture detection methodologies, however, are characterized by extended durations, significant labor requirements, and limitations in both precision and operational effectiveness. Findings are also subject to subjective and technical constraints inherent in manual assessments. To [...] Read more.
Building cracks are significant indicators of structural integrity. Conventional fracture detection methodologies, however, are characterized by extended durations, significant labor requirements, and limitations in both precision and operational effectiveness. Findings are also subject to subjective and technical constraints inherent in manual assessments. To overcome these challenges, this paper introduces an enhanced YOLOv8-based methodology for developing a building crack detection system, thereby achieving high precision, operational efficiency, and cost-effectiveness. Initially, classified and segmented datasets of building fractures were obtained from field photography, online image aggregation, and open-source databases, thereby providing the basis for training the experimental model. Subsequently, the Swin Transformer window multi-head self-attention mechanism was implemented to augment small-object recognition capabilities and reduce computational demands, thereby enabling the development of an enhanced image segmentation module. Utilizing the U-Net’s segmentation capabilities, a rotated split method was implemented to quantify fracture width and derive geometric parameters from the segmented crack regions. In order to evaluate the effectiveness of the model, two experiments were conducted: one to demonstrate the performance of the classification category and the other to show the capabilities of the segmentation category. The result is that the proposed model has high accuracy and efficiency in the frac detection task. This approach effectively enhances fracture detection in structural safety evaluations of these buildings, providing technical support for relevant management decisions. Full article
(This article belongs to the Special Issue Automation and Intelligence in the Construction Industry)
Show Figures

Figure 1

20 pages, 4862 KB  
Article
An Investigation of Cracks in PK-Section Concrete Beams at Early Ages
by Zepeng Zhang, Jia Wang, Hongsheng Li, Xuefei Shi and Bin Huang
Buildings 2026, 16(2), 460; https://doi.org/10.3390/buildings16020460 - 22 Jan 2026
Viewed by 83
Abstract
Early age cracking induced by cement hydration heat in a 37.6 m-wide PK-section concrete box girder was investigated through full-scale field testing and numerical simulation. Material properties, temperature, and strain were measured, and the obtained thermal and mechanical parameters were used to simulate [...] Read more.
Early age cracking induced by cement hydration heat in a 37.6 m-wide PK-section concrete box girder was investigated through full-scale field testing and numerical simulation. Material properties, temperature, and strain were measured, and the obtained thermal and mechanical parameters were used to simulate temperature and stress distributions during cantilever casting. Results show that direct casting on the foundation cap led to extensive vertical cracking in diaphragms, where tensile stresses exceeded concrete strength, corresponding to a cracking index of approximately 1.8, with thermal-to-shrinkage stress ratios up to 3:1 in critical regions. Under cantilever construction conditions, significant transverse stress occurred only at the diaphragm bottom, reaching a cracking index of about 1.6, with a thermal-to-shrinkage ratio of 2:1. Reducing casting temperature lowered thermal stress by 0.1 MPa/°C, while adding 0.9 kg/m3 polypropylene fibers increased early-age tensile strength by 15%. Optimized mix design or the inclusion of mineral admixtures such as silica fume further reduced shrinkage. The combined application of these measures effectively mitigated early-age cracking risk, providing practical guidance for the construction of wide-box girders in subtropical climates. Full article
Show Figures

Figure 1

22 pages, 3594 KB  
Article
Seismic Dynamic Response of Adjacent Oil Well Casings: Effect of Inter-Well Spacing
by Minjing Chen, Wei Lu, Yanjun He, Keyu Duan, Zilong Li, Yang Liu and Zhan Qu
Buildings 2026, 16(2), 459; https://doi.org/10.3390/buildings16020459 - 22 Jan 2026
Viewed by 101
Abstract
With the intensive development of oil and gas fields, multi-well layouts with reduced inter-well spacing are increasingly adopted to improve production efficiency. Such configurations, however, may significantly enhance seismic interaction among adjacent wells. In this study, a nonlinear three-dimensional finite element model incorporating [...] Read more.
With the intensive development of oil and gas fields, multi-well layouts with reduced inter-well spacing are increasingly adopted to improve production efficiency. Such configurations, however, may significantly enhance seismic interaction among adjacent wells. In this study, a nonlinear three-dimensional finite element model incorporating soil–structure interaction is developed using GTS NX to investigate the seismic dynamic response of closely spaced oil well casings. A representative dual-well system is analyzed under horizontal earthquake ground motion. The influence of inter-well spacing on displacement response characteristics is systematically examined. Numerical simulations are conducted for three center-to-center spacing distances (5 m, 7.5 m, and 10 m). The spatial distribution of displacement responses in both the casings and the surrounding soil is analyzed at different depths and monitoring sections. The results indicate that reduced well spacing significantly amplifies dynamic coupling effects, leading to increased displacement responses in the casing–soil system. These findings provide quantitative insight into spacing-dependent seismic interaction mechanisms and offer theoretical support for seismic design and spatial optimization of multi-well systems. Full article
Show Figures

Figure 1

28 pages, 5603 KB  
Article
Development and Optimisation of a Standardised Rheological Method for 3D Printing Cementitious Mixtures Using Rotational Rheometry: An Experimental and Statistical Approach
by Miguel A. Muñoz-Benavides, Rafael Robayo-Salazar, Marisol Gordillo-Suárez and Ruby Mejía de Gutiérrez
Buildings 2026, 16(2), 458; https://doi.org/10.3390/buildings16020458 - 22 Jan 2026
Viewed by 140
Abstract
This study presents the development and optimisation of a standardised rheological test method based on rotational rheometry for the characterisation of cementitious mixtures designed for 3D printing. Tests were performed using a Discovery HR-20 rotational rheometer (TA Instruments, New Castle, DE, USA) equipped [...] Read more.
This study presents the development and optimisation of a standardised rheological test method based on rotational rheometry for the characterisation of cementitious mixtures designed for 3D printing. Tests were performed using a Discovery HR-20 rotational rheometer (TA Instruments, New Castle, DE, USA) equipped with a concentric-cylinder cup-and-paddle geometry. A high-early-strength Portland cement (ASTM C1157 Type HE) with a constant water-to-cement ratio (w/c) of 0.35 was employed. The methodological framework comprised five sequential stages: (i) assessment of the pre-conditioning effect; (ii) standardisation of the static shear test; (iii) optimisation of pre-conditioning parameters; (iv) standardisation of the dynamic shear test; and (v) evaluation of the influence of sample volume. Optimal conditions were determined as follows: for pre-conditioning, a shear rate of 50 s−1, holding time (Ht) of 30 s, and rest period of 180 s; for the static shear test, a shear rate range of 0.05–0.10 s−1 with a Ht of 60 s; for the dynamic shear test, a 30 s ramp up/down, maximum shear rate of 100 s−1, and Ht of 90 s. An optimal sample volume ranging between 150 and 175 mL was established. The proposed method represents a robust and reproducible experimental protocol for evaluating, comparing, and optimising the rheological behaviour of cementitious mixtures using rotational rheometry, providing a reliable tool for the formulation of mixtures tailored to additive manufacturing or 3D printing processes. Full article
(This article belongs to the Section Building Materials, and Repair & Renovation)
Show Figures

Figure 1

19 pages, 7907 KB  
Article
Experimental Study on Axial Compressive Behavior of the BFRP-Confined Timber Columns with and Without Knots
by Ya Ou, Chenghu Tang, Le Yan, Yunlei Fan and Hao Zhou
Buildings 2026, 16(2), 457; https://doi.org/10.3390/buildings16020457 - 22 Jan 2026
Viewed by 111
Abstract
Timber has gained popularity in the construction industry in recent years due to its low carbon footprint, favorable seismic performance, and esthetic appeal. However, due to the size limit and inevitable natural defects such as knots in the lumber, the axial capacity of [...] Read more.
Timber has gained popularity in the construction industry in recent years due to its low carbon footprint, favorable seismic performance, and esthetic appeal. However, due to the size limit and inevitable natural defects such as knots in the lumber, the axial capacity of timber columns might be insufficient. Therefore, wrapping the timber column with basalt fiber-reinforced polymers (BFRPs), which is an environmentally sustainable material, to improve the load-carrying capacity has been a promising technology. While existing research mostly focuses on defect-free specimens, this study investigates the effects of knots on the structural performance of timber columns wrapped by BFRP. Axial compressive tests were carried out on timber columns, i.e., Douglas fir (knot-free) and camphor pine (with knots), wrapped by BFRP. The results showed that the load-carrying capacity, stiffness, and ductility can be significantly enhanced by the BFRP wrapping. The failure mode of the Douglas fir specimens transitioned from timber crushing failure to shear failure, while the camphor pine specimens failed around the knot area, and the failure mode changed from overall bending to BFRP rupture when the three layers of BFRP were employed. Furthermore, compared to knot-free columns, those specimens containing knots exhibited greater variability in load capacity and recorded a higher percentage increase in strength after reinforcement by BFRP. Based on the test results, three prediction models of the compressive strength of the BFRP-wrapped Douglas fir and camphor pine columns are presented. Full article
(This article belongs to the Special Issue Seismic Performance of Seismic-Resilient Structures)
Show Figures

Figure 1

15 pages, 5081 KB  
Article
A Study on Super-Low-Energy Building Design Strategies Based on the Quantification of Passive Climate Adaptation Mechanisms
by Jiaohua Cheng, Yuanyi Zhang, Xiaohuan Liu and Rui Ding
Buildings 2026, 16(2), 456; https://doi.org/10.3390/buildings16020456 - 22 Jan 2026
Viewed by 107
Abstract
In response to the urgent need for developing super-low-energy buildings (SLEBs) under extreme climatic conditions, a critical research gap lies in scientifically quantifying the passive climate adaptation mechanisms of vernacular architecture and translating them into modern design strategies. To this end, this study [...] Read more.
In response to the urgent need for developing super-low-energy buildings (SLEBs) under extreme climatic conditions, a critical research gap lies in scientifically quantifying the passive climate adaptation mechanisms of vernacular architecture and translating them into modern design strategies. To this end, this study proposes a multidimensional “Monitoring–Visualization–Quantification” analytical method. Using the Aijing Zhuang building in central Fujian, China, as a case study, this method systematically analyzed its passive regulatory performance through high-frequency monitoring and spatial-interpolation techniques. This research revealed a distinct “Gradient-Buffering-and-Dynamic-Adjustment” mechanism: a maximum indoor–outdoor temperature difference of 5.7 °C was achieved, with indoor temperature variability reduced by 62%. The courtyard, functioning as a “Thermal Buffer” and “Ventilation Hub”, orchestrated the internal climatic gradients. This study provides systematic quantitative evidence for the modern translation of traditional wisdom, and the revealed mechanism can be directly transformed into design strategies for SLEBs adapted to extreme climates. Full article
Show Figures

Figure 1

22 pages, 14490 KB  
Article
Mechanical Behavior and Pollutant Stabilization of Modified Basalt Fiber-Reinforced Bio-Cemented Phosphogypsum
by Gan Nan, Jiaming Zhang and Kai Liu
Buildings 2026, 16(2), 455; https://doi.org/10.3390/buildings16020455 - 22 Jan 2026
Viewed by 90
Abstract
To facilitate the large-scale recycling of phosphogypsum (PG) as a construction material and mitigate the environmental safety concerns associated with its stockpiling or discharge, this study proposes an innovative approach. The method employs modified (acid-treated) basalt fibers (MBF) synergistically combined with microbially induced [...] Read more.
To facilitate the large-scale recycling of phosphogypsum (PG) as a construction material and mitigate the environmental safety concerns associated with its stockpiling or discharge, this study proposes an innovative approach. The method employs modified (acid-treated) basalt fibers (MBF) synergistically combined with microbially induced carbonate precipitation (MICP) technology for PG solidification. This synergistic MBF–MICP treatment not only enhances the strength and further improves the toughness of the solidified PG but also effectively immobilizes heavy metals within the PG matrix. Bacterial attachment tests conducted on fibers subjected to various pretreatment conditions revealed that the maximum bacterial adhesion occurred on fibers treated with a 1 mol/L acid concentration for 2 h at 40 °C. However, MICP mineralization experiments performed on these pretreated fibers determined the optimal pretreatment conditions for mineralization efficiency to be an acid concentration of 0.93 mol/L, a treatment duration of 0.96 h, and a temperature of 30 °C. Unconfined compressive strength (UCS) tests and calcium carbonate content measurements identified the optimal reinforcement parameters for MBF–MICP-solidified PG as a fiber length of 9 mm and a fiber dosage of 0.4%. Furthermore, comparative analysis demonstrated that the UCS and toughness of MBF–MICP-solidified PG were superior to those of bio-cemented PG specimens treated with unmodified fibers or without any fiber reinforcement. It was found by scanning electron microscopy that there was an obvious phosphogypsum particle-fiber-calcium carbonate precipitation interface in the sample, and the fiber had a bridging effect. Finally, heavy metal leaching tests conducted on the solidified PG confirmed that the leached heavy metal concentrations were below the detection limit, complying with national discharge standards. Full article
(This article belongs to the Section Building Materials, and Repair & Renovation)
Show Figures

Figure 1

30 pages, 6495 KB  
Article
Wind and Snow Protection Design and Optimization for Tunnel Portals in Central Asian Alpine Mountains
by Bin Zhi, Changwei Li, Xiaojing Xu, Zhanping Song and Ang Jiao
Buildings 2026, 16(2), 454; https://doi.org/10.3390/buildings16020454 - 21 Jan 2026
Viewed by 167
Abstract
Aiming at the wind-blown snow disasters plaguing tunnel portals along the China-Tajikistan Highway Phase II Project, this study optimizes the protective parameters of wind deflectors through numerical simulation to improve the disaster prevention efficiency of tunnel portals in alpine mountainous areas. Three core [...] Read more.
Aiming at the wind-blown snow disasters plaguing tunnel portals along the China-Tajikistan Highway Phase II Project, this study optimizes the protective parameters of wind deflectors through numerical simulation to improve the disaster prevention efficiency of tunnel portals in alpine mountainous areas. Three core control parameters of wind deflectors, namely horizontal distance from the tunnel portal (L), plate inclination angle (β), and top installation height (h), were selected as the research objects. Single-factor numerical simulation scenarios were designed for each parameter, and an L9(33) orthogonal test was further adopted to formulate 9 groups of multi-parameter combination scenarios, with the snow phase volume fraction at 35 m on the leeward side of the tunnel portal set as the core evaluation index. A computational fluid dynamics (CFD) model was established to systematically investigate the influence laws of each parameter on the wind field structure and snow drift deposition characteristics at tunnel portals and clarify the flow field response rules under different parameter configurations. Single-factor simulation results show that the wind deflector exerts distinct regulatory effects on the wind-snow flow field with different parameter settings: when L = 6 m, the disturbance zone of the wind deflector precisely covers the main wind flow development area in front of the tunnel portal, which effectively lifts the main incoming flow path, compresses the recirculation zone (length reduced from 45.8 m to 22.3 m), and reduces the settlement of snow particles, achieving the optimal comprehensive prevention effect; when β = 60°, the leeward wind speed at the tunnel portal is significantly increased to 10–12 m/s (from below 10 m/s), which effectively promotes the transport of snow particles and mitigates the accumulation risk, being the optimal inclination angle; when h = 2 m, the wind speed on both the windward and leeward sides of the tunnel portal is significantly improved, and the snow accumulation risk at the portal reaches the minimum. Orthogonal test results further quantify the influence degree of each parameter on the snow prevention effect, revealing that the horizontal distance from the tunnel portal is the most significant influencing factor. The optimal parameter combination of the wind deflector is determined as L = 6 m, β = 60°, and h = 2 m. Under this optimal combination, the snow phase volume fraction at 35 m on the leeward side of the tunnel portal is 0.0505, a 12.3% reduction compared with the non-deflector condition; the high-concentration snow accumulation zone is shifted 25 m leeward, and the high-value snow phase volume fraction area (>0.06) disappears completely, which can effectively alleviate the adverse impact of wind-blown snow disasters on the normal operation of tunnel portals. The research results reveal the regulation mechanism of wind deflector parameters on the wind-snow flow field at alpine tunnel portals and determine the optimal protective parameter combination, which can provide important theoretical reference and technical support for the prevention and control of wind-blown snow disasters at tunnel portals in similar alpine mountainous areas. Full article
(This article belongs to the Section Building Energy, Physics, Environment, and Systems)
Show Figures

Figure 1

17 pages, 2501 KB  
Article
Mechanical and Carbonation Performance of Alkali-Activated Mortars Incorporating GGBS and Recycled Construction Spoil
by Kai Wang, Yu Lei and Xiaoxiong Zha
Buildings 2026, 16(2), 453; https://doi.org/10.3390/buildings16020453 - 21 Jan 2026
Viewed by 176
Abstract
This study evaluates the mechanical properties and carbonation resistance of alkali-activated mortars (AAMs) formulated with ground granulated blast-furnace slag (GGBS) and recycled construction spoil (CS). The experimental variables included the water-to-solid ratio, alkali content, activator type (NaOH vs. Na2SiO3), [...] Read more.
This study evaluates the mechanical properties and carbonation resistance of alkali-activated mortars (AAMs) formulated with ground granulated blast-furnace slag (GGBS) and recycled construction spoil (CS). The experimental variables included the water-to-solid ratio, alkali content, activator type (NaOH vs. Na2SiO3), and GGBS/CS mass ratio. The effects of these parameters on workability, flexural strength, and compressive strength were analyzed, along with the influence of accelerated carbonation curing. Results indicate that CS incorporation reduces flowability, with NaOH-activated mortars displaying marginally better workability than the Na2SiO3-activated counterparts. At an alkali content of 6.5% and a water-to-solid ratio of 0.45–0.5, a 30% CS replacement significantly improved the 7-day flexural strength in Na2SiO3-activated systems. Compressive strength generally increased with higher alkali content, though this effect diminished at elevated CS substitution levels. Under supercritical carbonation, NaOH-activated GGBS exhibited a ~20% strength increase, whereas Na2SiO3-activated GGBS showed negligible change or a slight reduction. Blends containing 50% CS demonstrated minimal carbonation-induced alterations. These findings provide insights into optimizing industrial byproduct utilization in AAMs while improving their carbonation durability, supporting sustainable construction material development. Full article
(This article belongs to the Special Issue The Greening of the Reinforced Concrete Industry)
Show Figures

Figure 1

45 pages, 13307 KB  
Article
Evaluating the Resilience of Ventilation Strategies in Low-Energy Irish Schools
by Elahe Tavakoli, Adam O’Donovan and Paul D. O’Sullivan
Buildings 2026, 16(2), 452; https://doi.org/10.3390/buildings16020452 - 21 Jan 2026
Viewed by 246
Abstract
In the face of increasing global temperatures, this study aims to explore ventilation strategies that could provide passive cooling to mitigate overheating in studied low-energy school buildings, in particular those that use ventilative cooling. This study utilises building modelling calibrated with field data [...] Read more.
In the face of increasing global temperatures, this study aims to explore ventilation strategies that could provide passive cooling to mitigate overheating in studied low-energy school buildings, in particular those that use ventilative cooling. This study utilises building modelling calibrated with field data to tackle the challenge of maintaining indoor thermal comfort and cognitive performance levels during increasingly warm seasons. The calibrated building model is used to evaluate the vulnerability of classrooms, identifying and addressing risks based on standardised overheating and resilience criteria. Two primary school classrooms were simulated in three main cities across Ireland to assess the possibility of natural ventilative cooling for maintaining indoor thermal conditions without sacrificing energy efficiency. The study highlights the critical need to enhance natural ventilation strategies to protect against projected future overheating, with peak indoor temperatures reaching 29 °C to 31 °C during May, June, and September. Implementing a maximum natural ventilation strategy during occupied times, with a 9.6% opening-to-floor area ratio, can reduce peak indoor temperatures by up to 2.5 °C. Findings show Irish classrooms in low-energy buildings equipped with hybrid ventilative cooling can act as potential climate shelters during July and August under extreme weather conditions, underlining their capacity to provide a comfortable environment for vulnerable people during heatwaves and reduce overheating risk by 42–48% compared to natural ventilation. Additionally, projections show that cognitive performance loss in students may rise to 23% by 2071 due to raised indoor temperatures; however, this can be reduced to below 10% in 2021 and 2041 with maximum natural ventilation. The novelty of this work lies in its systematic evaluation of ventilative cooling resilience under future climate scenarios across multiple Irish city contexts, providing a robust evidence base for designing climate-resilient, energy-efficient learning environments. Full article
(This article belongs to the Section Building Energy, Physics, Environment, and Systems)
Show Figures

Figure 1

28 pages, 10869 KB  
Article
Fatigue Life Assessment of Tower Crane Jibs in Construction Sites: A Framework Coupling Wear Geometry Evolution and Hybrid Load Spectra
by Yidong Xie, Zhongyuan Wang, Muhetaer Maimaiti, Xiaoyu Han and Bin Chen
Buildings 2026, 16(2), 451; https://doi.org/10.3390/buildings16020451 - 21 Jan 2026
Viewed by 179
Abstract
Ensuring the structural integrity of tower cranes is paramount for construction safety, yet jib lower chords—serving as trolley tracks—often undergo coupled wear–fatigue degradation that is rarely quantified in conventional service-life assessments. This study proposes a quantitative, maintenance-focused framework for integrity evaluation and life [...] Read more.
Ensuring the structural integrity of tower cranes is paramount for construction safety, yet jib lower chords—serving as trolley tracks—often undergo coupled wear–fatigue degradation that is rarely quantified in conventional service-life assessments. This study proposes a quantitative, maintenance-focused framework for integrity evaluation and life prediction of in-service tower cranes, validated through a decommissioned unit with 26 years of service in high-rise building construction. Through the integration of on-site construction operational statistics, ANSYS (Version 2022 R1, ANSYS, Inc., Canonsburg, PA, USA)—driven stress simulations, and rainflow counting, a multi-condition load spectrum was developed to quantify cumulative damage. Field measurements pinpointed Segment b03 as the critical damage zone, showcasing a maximum wear depth of 2.3 mm and roughly 30% thickness loss in the 20–30 m range, driven by stress concentration and high-frequency trolley movements during material handling. Theoretical fatigue life estimates of 42.1 years were revised to 24.1 years by incorporating wear geometry evolution and other degradation factors, resulting in a prediction error of approximately 7–8% relative to the actual service life. The proposed approach effectively bridges the gap between mechanical-based calculations and construction engineering practice, providing robust support for inspection scheduling, maintenance prioritization, and lifecycle management of aging tower cranes. Full article
(This article belongs to the Section Building Structures)
Show Figures

Figure 1

21 pages, 785 KB  
Article
A Study on the Fixed-Point Adjustment Factor of Opposing Horizontal Strutsin Strutted Retaining Structures
by Bo Feng, Jianghong Zhu, Jianping Cai, Yue Cai and Liang Qiu
Buildings 2026, 16(2), 450; https://doi.org/10.3390/buildings16020450 - 21 Jan 2026
Viewed by 136
Abstract
The elastic support stiffness coefficient kR of opposing horizontal struts constitutes a critical parameter in the design of strutted retaining structures for deep excavations. The determination of the fixed-point adjustment coefficient λ serves as a fundamental prerequisite for the quantitative assessment of [...] Read more.
The elastic support stiffness coefficient kR of opposing horizontal struts constitutes a critical parameter in the design of strutted retaining structures for deep excavations. The determination of the fixed-point adjustment coefficient λ serves as a fundamental prerequisite for the quantitative assessment of this stiffness coefficient. To identify the fixed-point location and establish a computational approach for λ, the endpoint displacements of opposing horizontal struts are classified into four distinct scenarios. For each scenario, the relationship between the lateral earth pressures on both sides of the excavation is derived, the support mechanism of the internal strut is elucidated, and the corresponding fixed-point locations of the struts are determined. Utilizing the response curve between the support-point displacement of the retaining structure and the lateral earth pressure, and adhering to the principle of linearization, analytical formulas for λ under the four scenarios are formulated. The proposed method is employed to compute and evaluate the fixed-point adjustment coefficient of the opposing horizontal struts in a case study drawn from the literature, with the results rigorously compared against the existing published data. Furthermore, the λ values for opposing horizontal struts in a metro station excavation project are computed and contrasted with values back-calculated from monitored horizontal displacements of the retaining structure. The findings demonstrate that the proposed method for determining λ is both computationally efficient and practically applicable. The derived λ values can be effectively used to predict internal forces and deformations in retaining structures for asymmetrically loaded deep excavations. This research offers substantial theoretical insights and practical implications for the scientifically informed design and construction of deep excavation support systems. Full article
(This article belongs to the Section Building Structures)
Show Figures

Figure 1

20 pages, 2738 KB  
Article
Study of the Thermal Delay and Thermal Attenuation Characteristics of a Centralized Air-Conditioning Water System Based on a Multi-Domain Physical Modeling Environment
by Xuan Zhou, Xingyu Shu, Junlong Xie, Xinhua Xu, Qiuyuan Zhu and Jiewen Deng
Buildings 2026, 16(2), 449; https://doi.org/10.3390/buildings16020449 - 21 Jan 2026
Viewed by 201
Abstract
To achieve energy savings, reduce consumption, and support the “dual-carbon” strategy in China, this study applies digital twin technology to investigate the centralized air-conditioning water system of a metro-station HVAC installation and develops a high-fidelity digital twin model to reveal the thermal delay [...] Read more.
To achieve energy savings, reduce consumption, and support the “dual-carbon” strategy in China, this study applies digital twin technology to investigate the centralized air-conditioning water system of a metro-station HVAC installation and develops a high-fidelity digital twin model to reveal the thermal delay and thermal attenuation characteristics of the pipeline network. Using the noncausal modeling approach of the Modelica language, a full digital twin representation of the centralized air-conditioning water network is constructed by covering chillers, cooling towers, pumps, terminal units, the pipeline network, etc. The model is validated against real operation data to ensure high fidelity. Validation shows the predicted chilled water flow rate of the digital twin model agrees well with the measured chilled water flow rate with an RMSE of 0.27 kg/s. Validation also shows the difference is about 0.3 °C between the digital twin prediction and the measurement in the main pipe. Based on the validation digital twin model, the thermal delay and thermal attenuation characteristics of the centralized air-conditioning water system are seriously evaluated. The results indicate that branch K3, due to its longest transport distance, exhibits a delay of 227 s. The overall thermal delay of the system reaches 7.5 min. The temperature attenuation of this water system is about 0.2 °C due to heat loss through pipe walls. The findings may offer theoretical support for the optimal regulation and control, fault detection, and anomaly identification of this centralized air-conditioning water system. Full article
(This article belongs to the Section Building Energy, Physics, Environment, and Systems)
Show Figures

Figure 1

22 pages, 6554 KB  
Article
Numerical Evaluation of Interlayer Gaps on Dynamic Response of Precast Concrete Slab Track Systems with Maintenance Thresholds
by Seong-Min Kim, Young Kyo Cho and Byoung Hooi Cho
Buildings 2026, 16(2), 448; https://doi.org/10.3390/buildings16020448 - 21 Jan 2026
Viewed by 134
Abstract
This study presents a comprehensive numerical investigation into the dynamic response of railway precast concrete slab track (PST) systems subjected to various interlayer gap conditions. Key parameters including gap width, depth, and location were examined, along with the geometric configuration of the grouting [...] Read more.
This study presents a comprehensive numerical investigation into the dynamic response of railway precast concrete slab track (PST) systems subjected to various interlayer gap conditions. Key parameters including gap width, depth, and location were examined, along with the geometric configuration of the grouting layer, comparing current (as-is) and earlier (as-was) models. A conservative modeling approach was adopted, assuming fully unbonded interfaces and delamination gap depths extending to the shear key, with dynamic loading applied. Results showed that the maximum principal stress in both the slab and grouting layer increased with larger gap widths but stabilize beyond specific thresholds. In the as-is model, stress levels remained below reference flexural tensile strength, indicating a low risk of cracking. However, the as-was model exhibited grouting layer stresses exceeding the allowable limit at the gap widths near 4 mm and approaching critical levels even at 1.5 mm. Stress responses also varied depending on whether gaps were located at the slab–grouting layer or grouting layer–hydraulic stabilized basecourse (HSB) interfaces. Based on the examinations, allowable interlayer gap width criteria were proposed to support maintenance decisions. The study provides a rational framework for monitoring and managing interlayer gaps, enhancing resistance to early fatigue cracking and structural integrity of PST systems under dynamic railway loads. Full article
(This article belongs to the Section Building Structures)
Show Figures

Figure 1

26 pages, 7823 KB  
Article
Impacts of Tree Morphology on Shortwave Radiation Disturbance of South-Facing Façades in East–West Street Canyons
by Yihao Zhang, Qianli Ma, Feng Qi and Xuwen Zhou
Buildings 2026, 16(2), 447; https://doi.org/10.3390/buildings16020447 - 21 Jan 2026
Viewed by 227
Abstract
Trees are known to modify radiation on building façades via shading effects. However, the combined influence of tree morphological traits and street canyon geometry on façade solar exposure remains inadequately quantified. This paper will fill this gap by using an integrated field measurement, [...] Read more.
Trees are known to modify radiation on building façades via shading effects. However, the combined influence of tree morphological traits and street canyon geometry on façade solar exposure remains inadequately quantified. This paper will fill this gap by using an integrated field measurement, ENVI-met simulations and theoretical analysis of an east–west street canyon in Hangzhou, China. We present the stratified cumulative shortwave radiation disturbance (SRD) and the mean value (MSRD) of R as indices for assessing the influence of the tree height (TH), canopy diameter (DC), leaf area density (LAD), and under-canopy height (UH) on the shortwave radiation profile of the south façade. Using 54 parametrized simulation scenarios, it was found that tree height is the most sensitive parameter to affect MSRD in the 1114 m range, with under-canopy height defining the building layers below. An LAD of 2 m2/m3 will be an optimal shading and daylighting. When discussed in terms of space, a canopy diameter of 5 m and a wall-to-canopy distance of 1 m (DW-T) provides better shading in asymmetric canyons where the buildings in the south are lower. Further, canyon building height on either side of the canyon is found to be a decisive factor that mediates tree impacts on radiation, which allows specific approaches to greening canyons of diverse kinds. Through this work, there is a theoretical basis for understanding how trees and canyons interact, and this work gives scientific principles for a tree-planting initiative to reduce urban heat islands. Full article
(This article belongs to the Special Issue Advanced Research on the Urban Heat Island Effect and Climate)
Show Figures

Figure 1

29 pages, 24827 KB  
Article
Typological Identification and Revitalisation Strategies for Third Front Industrial Heritage: A Case Study of Guangyuan
by Hongcheng Yu, Mingming Xiang, Qianru Yang, Yicong Qi, Jianwu Xiong, Yao Tang, Xinyi Huang, Jiefeng Yang and Xinyi Dong
Buildings 2026, 16(2), 446; https://doi.org/10.3390/buildings16020446 - 21 Jan 2026
Viewed by 183
Abstract
The industrial heritage of the Third Front construction (hereafter referred to as Third Front industrial heritage) serves as a significant physical manifestation of China’s urban society, economy, and culture during a unique historical period. Its widespread abandonment not only constitutes a waste of [...] Read more.
The industrial heritage of the Third Front construction (hereafter referred to as Third Front industrial heritage) serves as a significant physical manifestation of China’s urban society, economy, and culture during a unique historical period. Its widespread abandonment not only constitutes a waste of social resources but also accelerates the erosion of collective memory surrounding the Third Front initiative. As one of Sichuan Province’s (including present-day Chongqing) key Third Front construction regions during that era, Guangyuan City possesses a substantial legacy of Third Front industrial heritage sites. These sites are predominantly idle and face ongoing risks of deterioration, necessitating comprehensive and systematic research into their classification, protection, and regeneration. This paper focuses on 39 Third Front industrial heritage sites in Guangyuan City, employing architectural typology to construct a ‘type-medium-value’ research framework integrating field research with strategic distribution analysis at the urban level, spatial form analysis at the settlement level, and spatial combination analysis at the building level to quantitatively identify and qualitatively deconstruct the spatial logic of these sites. This enables the analysis of the functional characteristics, structural logic, and spatial intent embodied by different types, thereby exploring the multidimensional value implications of Third Front industrial heritage through this value medium. Ultimately, this research proposes targeted adaptive mechanisms and revitalisation pathways for Third Front industrial heritage. It aims to promote the cultural legacy of this heritage and perpetuate the Third Front spirit within the context of strengthening the Chinese national community consciousness in the new era, while aligning with the Party and state’s development strategies. This approach aims to provide a reference for revitalising and utilising Third Front industrial heritage in other underdeveloped regions. Full article
Show Figures

Figure 1

26 pages, 11604 KB  
Article
Experimental Study on the Sustainability of Harnessing the Thermal Potential of Surface Waters for Building Decarbonization
by Adriana Tokar, Daniel Muntean, Danut Tokar and Daniel Bisorca
Buildings 2026, 16(2), 445; https://doi.org/10.3390/buildings16020445 - 21 Jan 2026
Viewed by 168
Abstract
One of the important stages of energy efficiency measures for buildings is the optimal choice of heating and cooling systems, as well as that of heat/cold production sources, so as to minimize dependence on conventional fuels and the national energy system. Currently, the [...] Read more.
One of the important stages of energy efficiency measures for buildings is the optimal choice of heating and cooling systems, as well as that of heat/cold production sources, so as to minimize dependence on conventional fuels and the national energy system. Currently, the option for integrating renewable energy sources addressed in the building efficiency stage is the installation of solar systems. In the context of the need to reduce energy consumption and reduce pollutant emissions, and the need to integrate renewable energy sources, the article addresses the implementation of a hybrid system with a water-to-water heat pump and photovoltaic panels, capable of achieving the decarbonization of the heating/cooling of a University Politehnica Timisoara teaching/research laboratory. The analyzed hybrid system uses the thermal potential of the Bega channel as a heat/cold source, and as a source for electricity production, a PV system, supported by the national energy system. Following the analysis of the operation of the building’s hybrid system for heating and cooling, during 4 November 2024–12 September 2025, an energy independence of approximately 90.7% and a reduction in CO2 emissions of 4.17 t/year was found. Full article
(This article belongs to the Special Issue Advanced Energy Storage Technologies for Low-Carbon Buildings)
Show Figures

Figure 1

22 pages, 4924 KB  
Article
Experimental Evaluation of the Impacts of Suspended Particle Device Smart Windows with Glare Control on Occupant Thermal and Visual Comfort Levels in Winter
by Sue-Young Choi, Soo-Jin Lee and Seung-Yeong Song
Buildings 2026, 16(2), 444; https://doi.org/10.3390/buildings16020444 - 21 Jan 2026
Viewed by 117
Abstract
The building sector accounts for approximately 30% of global energy use. The demand for energy-efficient, high-performance buildings is increasing given the increasing awareness of the climate crisis. The building envelope greatly influences overall building energy performance. Considering the broad shift from passive to [...] Read more.
The building sector accounts for approximately 30% of global energy use. The demand for energy-efficient, high-performance buildings is increasing given the increasing awareness of the climate crisis. The building envelope greatly influences overall building energy performance. Considering the broad shift from passive to adaptive systems, smart window technologies are attracting attention. Despite their potential, few scholars have examined occupant comfort in spaces with smart windows. This gap is addressed herein by comparatively analyzing occupants’ responses to thermal and visual environments in a room with a smart window (RoomSW) and a room with a conventional window (RoomCW) in a residential building in winter. The smart window is operated via a glare-prevention tint control strategy. The results reveal that under thermal conditions comparable to those in an actual dwelling, wintertime smart window tinting for glare prevention does not decrease occupants’ thermal sensation or satisfaction. Regarding visual comfort, conditions in RoomSW and RoomCW satisfy the minimum illuminance requirement of 200 lx, but glare occurs in RoomCW with a mean New Daylight Glare Index (DGIN) of 24.1, compared to 9.6 in RoomSW. Questionnaire results indicate greater satisfaction with the luminous environment in RoomSW relative to RoomCW, with scores of +1.4 and +0.2, respectively. Full article
Show Figures

Figure 1

14 pages, 2991 KB  
Article
Effect of Trans-Cinnamaldehyde on Moisture-Related Properties of Lime–Cement Plaster
by Adam Fišer, Miloš Jerman, Martin Böhm, Vojtěch Pommer, Jakub Vrzáň and Klára Kobetičová
Buildings 2026, 16(2), 443; https://doi.org/10.3390/buildings16020443 - 21 Jan 2026
Viewed by 208
Abstract
In the present study, the effects of trans-cinnamaldehyde (TCA) addition on selected properties of lime–cement plaster were investigated. The algicidal effect of TCA on natural biofilm isolated from lime–cement plaster was investigated in the first experiment. Concentrations of 200 mg/L or higher caused [...] Read more.
In the present study, the effects of trans-cinnamaldehyde (TCA) addition on selected properties of lime–cement plaster were investigated. The algicidal effect of TCA on natural biofilm isolated from lime–cement plaster was investigated in the first experiment. Concentrations of 200 mg/L or higher caused complete inhibition of algal growth. Two TCA solutions (0.02% and 1.5% w/w relative to binders) were then used for the preparation of plaster according to the results of biological testing and previous research. The results did not indicate any practically relevant statistically significant effect of TCA on compressive and bending strength, while the total porosity increased with higher aldehyde concentration in the matrix and the matrix and bulk density decreased. Samples with 1.5% TCA showed reduced moisture uptake, indicating improved moisture-related behavior under high-humidity conditions. The occurrence of micropores in the structure compared to the reference was revealed by scanning electron microscopy. The main conclusions of the study are that TCA can be considered for the improvement of algicidal formulations in the form of protective coatings and as an additive influencing the moisture-related behavior of plaster, with beneficial effects observed at a TCA content of 1.5% w/w. Full article
Show Figures

Figure 1

27 pages, 6287 KB  
Article
Fatigue Life of Long-Distance Natural Gas Pipelines with Internal Corrosion Defects Under Random Pressure Fluctuations
by Zilong Nan, Liqiong Chen, Xingyu Zhou and Chuan Cheng
Buildings 2026, 16(2), 442; https://doi.org/10.3390/buildings16020442 - 21 Jan 2026
Viewed by 203
Abstract
Long-distance natural gas pipelines with internal corrosion defects are susceptible to fatigue failure under operational pressure fluctuations, posing significant risks to infrastructure integrity and safety. To address this, the present study employs a finite element methodology, utilizing Ansys Workbench to model pipelines of [...] Read more.
Long-distance natural gas pipelines with internal corrosion defects are susceptible to fatigue failure under operational pressure fluctuations, posing significant risks to infrastructure integrity and safety. To address this, the present study employs a finite element methodology, utilizing Ansys Workbench to model pipelines of various specifications with parametrically defined corrosion defects, and nCode DesignLife to predict fatigue life based on Miner’s linear cumulative damage theory. The S-N curve for X70 steel was directly adopted, while a power-function model was fitted for X80 steel based on standards. A cleaned real-world pressure-time history was used as the load spectrum. Parametric analysis reveals that defect depth is the most influential factor, with a depth coefficient increase from 0.05 to 0.25, reducing fatigue life by up to 67.5%, while the influence of defect width is minimal. An empirical formula for fatigue life prediction was subsequently developed via multiple linear regression, demonstrating good agreement with simulation results and providing a practical tool for the residual life assessment and maintenance planning of in-service pipelines. Full article
Show Figures

Figure 1

23 pages, 3477 KB  
Article
Accelerated Emissions Reductions and Carbon Risk Management in Australian Commercial Buildings: Policy and Technology Perspectives
by Bishal Baniya
Buildings 2026, 16(2), 441; https://doi.org/10.3390/buildings16020441 - 21 Jan 2026
Viewed by 208
Abstract
Counterintuitively, carbon risks—including investments in net-zero emissions-enabling technologies, legacy assets, insurance costs, and regulatory and compliance expenses—can be managed through rapid decarbonisation, as the built environment sector prepares for a transition to a low-carbon economy. This paper uses a bottom-up approach to net-zero [...] Read more.
Counterintuitively, carbon risks—including investments in net-zero emissions-enabling technologies, legacy assets, insurance costs, and regulatory and compliance expenses—can be managed through rapid decarbonisation, as the built environment sector prepares for a transition to a low-carbon economy. This paper uses a bottom-up approach to net-zero emissions modelling to discuss an accelerated emissions reduction pathway while targeting both net-zero operational and embodied carbon emissions for commercial buildings. It also explores the link between built environment-related policy frameworks and technological advancements aimed at decarbonising commercial buildings, along with an initial effort to improve their energy resilience. For the commercial building archetype, achieving the net-zero operational emissions goal by 2035 appears practical, as energy intensity can be reduced sharply from around 120 kWh/m2 to nearly 75 kWh/m2 between 2025 and 2035. However, achieving net-zero embodied emissions appears practically challenging, as concurrent policies are at early stages, navigating the embodied carbon emissions data, reporting, and disclosure aspects. Regulatory mechanisms that require the disclosure of both embodied emissions data and actions and progress aligned with the dedicated targets and caps allocated to the real estate sector can assist commercial buildings in delivering on the whole-of-life net-zero emissions targets and commitments. Full article
(This article belongs to the Section Building Energy, Physics, Environment, and Systems)
Show Figures

Figure 1

27 pages, 5637 KB  
Article
The Failure Process and Stability Analysis of Earthen Dam Under the Coupling Effect of Seepage–Suffusion–Stress
by Yanzhen Zhu, Honglei Sun and Shanlin Xu
Buildings 2026, 16(2), 440; https://doi.org/10.3390/buildings16020440 - 21 Jan 2026
Cited by 1 | Viewed by 232
Abstract
Suffusion is a primary cause of failure in hydraulic structures, including earth dams; however, the mechanisms underlying suffusion-induced failure and the stability changes remain poorly understood. This study derives and implements a sequentially coupled computational model that considers the effect of seepage–suffusion–stress, aimed [...] Read more.
Suffusion is a primary cause of failure in hydraulic structures, including earth dams; however, the mechanisms underlying suffusion-induced failure and the stability changes remain poorly understood. This study derives and implements a sequentially coupled computational model that considers the effect of seepage–suffusion–stress, aimed at simulating the entire process of suffusion-induced failure in earth dams and evaluating their stability. The accuracy of the proposed approach is validated through comparisons with one-dimensional consolidation theory, suffusion experiments, and triaxial tests on eroded soil. A model of the earth dam at high water levels is developed to simulate the full process of suffusion-induced failure and assess its stability. The results indicate that, under the influence of suffusion, fines are lost most rapidly at the dam toe, followed by the region near the upstream water level. In the later stages of suffusion, the soil near the slip surface undergoes excessive compression, leading to an increase in fine content rather than a decrease. The mechanism of suffusion-induced failure in earth dams involves severe fines loss at the dam toe and near the upstream water level, which leads to significant soil weakening and the formation of a continuous plastic zone extending from the dam toe to the upstream water level. The safety factor of the earth dam, when suffusion effects are not considered, remains nearly constant, making it challenging to accurately assess its stability. The safety factor of the earth dam remains nearly constant when suffusion is neglected, indicating that overlooking suffusion presents substantial safety risks. Furthermore, reducing the permeability coefficient of the earth dam can effectively mitigate suffusion. Full article
(This article belongs to the Section Building Structures)
Show Figures

Figure 1

31 pages, 8292 KB  
Article
Flexural Performance of Geopolymer-Based Composite Beams Under Different Curing Regimes
by Feyyaz Unver, Mucteba Uysal, Beyza Aygun, Turhan Bilir, Turgay Cosgun, Mehmet Safa Aydogan and Guray Arslan
Buildings 2026, 16(2), 439; https://doi.org/10.3390/buildings16020439 - 21 Jan 2026
Viewed by 200
Abstract
Electrical curing is a viable alternative to traditional thermal curing for geopolymer materials due to its capability for rapid and internal geopolymerization. In this research, reinforced geopolymer-based composite beams were successfully fabricated at a macroscale using a binary system of fly ash (FA) [...] Read more.
Electrical curing is a viable alternative to traditional thermal curing for geopolymer materials due to its capability for rapid and internal geopolymerization. In this research, reinforced geopolymer-based composite beams were successfully fabricated at a macroscale using a binary system of fly ash (FA) and granulated blast furnace slag (GBFS). The mixture was activated with a solution of sodium silicate (Na2SiO3) and sodium hydroxide (NaOH) with a fixed molar ratio of 2:1 for both, and aggregate-to-binder and activator-to-binder (A/B) ratios of 2.5 and 0.7, respectively. To ensure electrical conductivity, individual fiber systems were employed, including carbon fiber (CF), steel fiber (SF), and waste wire erosion (WWE), each incorporated at a dosage of 0.5 vol.% of the total mix volume. In addition, carbon black (CB) was introduced as a conductive filler at a constant dosage of 2.0 vol.% of the binder content in selected specimens. Each beam specimen contained only one type of conductive reinforcement or filler. A total of twelve reinforced geopolymer-based composite beams with a 150 mm square section and a span of 1300 mm, with a clear span of 1200 mm, were successfully cast and reinforced based on reinforced concrete beam designs and standards, with a dominant goal of enhancing beam behavior under flexure. The beams were cured in ambient curing conditions, or using thermal curing at 80 °C for 24 h, and using electrical curing from the fresh states with a fixed voltage of 25 V. Notwithstanding a common beam size and reinforcement pattern, distinct curing methods significantly influenced beam structure properties. Peak loads were between 20.8 and 31.5 kN, initial stiffness between 1.75 and 6.09 kN/mm, and total energy absorption between 690 and 1550 kN/mm, with a post-peak energy component of between 0.12 and 0.55. Displacement-based ductility measures spanned from 3.2 to 8.1 units with a distinct improvement in electrical curing regimes, especially in the SF-reinforced specimens; this indicates that electrical curing in reinforced geopolymer composite materials works as a governing mechanism in performance rather than simply a method for enhancing the strength of materials. Full article
Show Figures

Figure 1

27 pages, 8512 KB  
Article
Freeze–Thaw Damage Model and Mechanism of Rubber Concrete with Recycled Brick–Concrete Aggregate
by Jiayu Zeng, Jiangfeng Dong, Siwei Du, Shucheng Yuan, Kunpeng Li, Xinyue Zhang and Xinyu Chen
Buildings 2026, 16(2), 438; https://doi.org/10.3390/buildings16020438 - 21 Jan 2026
Viewed by 215
Abstract
This study investigated the effects of rubber substitution ratios (0%, 5%, 10%, 15%) on the frost resistance of rubber concrete with recycled brick–concrete aggregate (BRC). The freeze–thaw (F–T) damage model was established and improved, and the damage mechanism was revealed. The results showed [...] Read more.
This study investigated the effects of rubber substitution ratios (0%, 5%, 10%, 15%) on the frost resistance of rubber concrete with recycled brick–concrete aggregate (BRC). The freeze–thaw (F–T) damage model was established and improved, and the damage mechanism was revealed. The results showed that with the increase in rubber substitution ratio, the frost resistance indices of BRC did not improve or decline synchronously. An increase in rubber content could enhance one index, such as the relative compressive strength, but was often achieved at the expense of reductions in other indices, such as the relative dynamic elastic modulus (RDEM) and relative quality. Consequently, a single indicator was insufficient for evaluating the overall frost resistance. To address this limitation, an entropy weight-based evaluation system was developed. This system integrated the multiple indices into a unified damage score. When combined with defined damage grades, it enabled a holistic assessment of the damage state. For the nonlinear accelerated damage stage during freeze–thaw cycles, the Weibull distribution-based freeze–thaw damage model demonstrated higher prediction accuracy (R2 > 0.85) compared to the conventional freeze–thaw fatigue model. The freeze–thaw damage in BRC originated from the competition between “pore deterioration and crack propagation at weak interfaces” and “the elastic buffering effect of rubber.” This study provided a reference for the frost-resistance design and freeze–thaw life prediction of BRC in cold regions. Full article
(This article belongs to the Special Issue The Greening of the Reinforced Concrete Industry)
Show Figures

Figure 1

17 pages, 4692 KB  
Article
AI-Driven Exploration of Public Perception in Historic Districts Through Deep Learning and Large Language Models
by Xiaoling Dai, Xinyu Zhou, Qi Dong and Kai Zhou
Buildings 2026, 16(2), 437; https://doi.org/10.3390/buildings16020437 - 21 Jan 2026
Viewed by 225
Abstract
Artificial intelligence is reshaping approaches to architectural heritage conservation by enabling a deeper understanding of how people perceive and experience historic built environments. This study employs deep learning and large language models (LLMs) to explore public perceptions of the Qinghefang Historical and Cultural [...] Read more.
Artificial intelligence is reshaping approaches to architectural heritage conservation by enabling a deeper understanding of how people perceive and experience historic built environments. This study employs deep learning and large language models (LLMs) to explore public perceptions of the Qinghefang Historical and Cultural District in Hangzhou, illustrating how AI-driven analytics can inform intelligent heritage management and architectural revitalization. Large-scale public online reviews were processed through BERTopic-based clustering to extract thematic structures of experience, while interpretive synthesis was refined using an LLM to identify core perceptual dimensions including Hangzhou Housing & Residential Choice, Hangzhou Urban Tourism & Culture, Hangzhou Food & Dining, and Qinghefang Culture & Creative. Sentiment polarity and emotional intensity were quantified using a fine-tuned BERT model, revealing distinct affective and perceptual patterns across the district’s architectural and cultural spaces. The results demonstrate that AI-based textual analytics can effectively decode human–heritage interactions, offering actionable insights for data-informed conservation, visitors’ experience optimization, and sustainable management of historic districts. This research contributes to the emerging field of AI-driven innovation in architectural heritage by bridging computational intelligence and heritage conservation practice. Full article
Show Figures

Figure 1

29 pages, 2867 KB  
Article
Experimental Assessment of Peak Daylight Exposure Under Clear-Sky Conditions in Zenithally Lit Museum Rooms at 51° Latitude
by Marcin Brzezicki
Buildings 2026, 16(2), 436; https://doi.org/10.3390/buildings16020436 - 21 Jan 2026
Viewed by 319
Abstract
This study investigates peak daylight exposure in zenithally lit museum rooms at 51° latitude through an experimental campaign using a 1:20 physical mock-up of a 12 × 12 × 6 m exhibition gallery space. Nine configurations of shading and light-transmitting elements (CSaLTE) were [...] Read more.
This study investigates peak daylight exposure in zenithally lit museum rooms at 51° latitude through an experimental campaign using a 1:20 physical mock-up of a 12 × 12 × 6 m exhibition gallery space. Nine configurations of shading and light-transmitting elements (CSaLTE) were tested under real clear-sky conditions between June and October. To ensure a valid comparative analysis, indoor vertical illuminance (Ev) was measured at 15 min intervals and subsequently interpolated and normalised to a unified equinox-day solar geometry (06:00–18:00). This hybrid empirical-computational methodology allows for a direct performance comparison across different geometric arrangements regardless of their specific measurement dates. The results demonstrate that while traditional annual metrics are the standard, short-term illuminance peaks pose a severe and underexplored threat to conservation safety. Even the most light-attenuating diffusing-roof configurations produced short-term illuminance peaks and cumulative clear-sky exposures that are comparable in magnitude to commonly cited annual limits for highly light-sensitive materials, with several configurations recording extreme spikes surpassing the sensor’s 20,000 lx saturation limit. Stable, low-illuminance distributions were observed only in selected diffusing-roof arrangements (M05–M07), whereas direct-glazing systems (M01–M04) produced unsafe exposure patterns with high temporal variability and poor visual adaptation conditions. The study concludes that passive roof geometries alone are insufficient to ensure conservation-level safety without additional active filtering or adaptive control strategies, providing an experimentally grounded framework for designing zenithal daylighting systems in museum environments. The results are intended for relative peak-risk comparison under controlled clear-sky conditions rather than direct generalisation to whole-room annual conservation safety. Full article
(This article belongs to the Special Issue Daylighting and Environmental Interactions in Building Design)
Show Figures

Figure 1

Previous Issue
Back to TopTop