-
The Complex Life of Stone Heritage: Diagnostics and Metabarcoding on Mosaics from the Archaeological Park of Baia (Bacoli, Italy) -
Interdisciplinary Approaches to the Knowledge of Ancient Monuments: Integrating Archaeological, Archaeometric, and Historical Data to Reconstruct the Building History of the Benedictine Monastery of Catania -
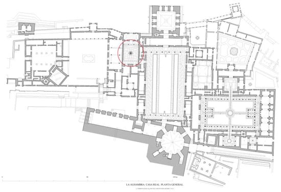
The Lost Golden Room Courtyard Gallery in the Alhambra: Sources, Graphic Analysis and Digital Reconstruction
Journal Description
Heritage
- Open Access— free for readers, with article processing charges (APC) paid by authors or their institutions.
- High Visibility: indexed within Scopus, ESCI (Web of Science), CAPlus / SciFinder, and other databases.
- Journal Rank: JCR - Q2 (Multidisciplinary Sciences) / CiteScore - Q1 (Archeology (Arts and Humanities))
- Rapid Publication: manuscripts are peer-reviewed and a first decision is provided to authors approximately 18.6 days after submission; acceptance to publication is undertaken in 3.6 days (median values for papers published in this journal in the first half of 2025).
- Recognition of Reviewers: reviewers who provide timely, thorough peer-review reports receive vouchers entitling them to a discount on the APC of their next publication in any MDPI journal, in appreciation of the work done.
Latest Articles
E-Mail Alert
News
Topics
Deadline: 31 December 2025
Deadline: 28 February 2026
Deadline: 31 March 2026
Deadline: 20 May 2026
Conferences
Special Issues
Deadline: 20 December 2025
Deadline: 31 December 2025
Deadline: 31 December 2025
Deadline: 31 December 2025





















