Impact of Japanese Post-Disaster Temporary Housing Areas’ (THAs) Design on Mental and Social Health
Abstract
1. Introduction
1.1. Importance of Shelter and Housing after a Disaster
1.2. Introduction to Temporary Housing (TH)
1.3. Industrialized Temporary Housing
1.4. Temporary Housing in Japan
1.5. Temporary Housing and THA Management in Japan
1.6. Kodokushi or Lonely Death
1.7. Goal of This Paper and Main Conclusions
2. Materials and Methods
3. Case Studies
3.1. Kobe 1995
3.1.1. Management and Organization
3.1.2. Design
3.1.3. Kodokushi
3.2. Chūetsu 2004
3.2.1. Management and Organization
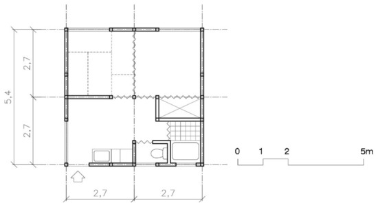
3.2.2. Design
3.2.3. Kodokushi
3.3. Tōhoku 2011
3.3.1. Management and Organization
3.3.2. Design
3.3.3. Kodokushi
3.4. Kumamoto 2016
3.4.1. Management and Organization
3.4.2. Design
3.4.3. Kodokushi
4. Results
5. Discussion
6. Future Lines of Work and Recommendations
6.1. From a Technocratic Approach to a Human-Centered Approach
6.2. From Global to Local
6.3. From Product, TH Module, to Process, THA
6.4. From a Top-Down to Bottom-up Approach: Community Participation
7. Conclusions
Author Contributions
Funding
Conflicts of Interest
References
- Government of Japan. Disaster Management in Japan. Cabinet Office; 2015. Available online: http://www.bousai.go.jp/1info/pdf/saigaipamphlet_je.pdf (accessed on 11 August 2019).
- Cyranoski, D. Japan Faces Up to Failure of its Earthquake Preparations. Nature 2011, 471, 556–557. [Google Scholar] [CrossRef]
- Ashdown, P. Humanitarian Emergency Response Review; Department for Overseas Development: London, UK, 2011; p. 25.
- UNDRO. Shelter after Disaster: Guidelines for Assistance; Office of the United Nations Disaster Relief Coordinator: Geneva, Switzerland, 1982. [Google Scholar]
- Quarantelli, E.L. Patterns of Sheltering and Housing in US Disasters. Disaster Prev. Manag. 1995, 4, 43–53. [Google Scholar] [CrossRef]
- Barakat, S. Housing Reconstruction after Conflict and Disaster; Humanitarian Practice Network (HPN); Overseas Development Institute: London, UK, 2003; Available online: http://www.ifrc.org/PageFiles/95751/B.d.01.Housing%20Reconstruction%20After%20Conflict%20And%20Disaste_HPN.pdf (accessed on 10 August 2019).
- OXFAM. Guidelines for Post Disaster Housing, Version 1. Doc; OXFAM GB: Humanitarian Library, Global; OXFAM: Oxford, UK, 2004; p. 52. Available online: https://www.ifrc.org/PageFiles/95751/B.d.03.%20Guidelines%20for%20Post%20Disaster%20Housing%20%20version%201_OXFAM%20GB.pdf (accessed on 1 August 2019).
- Batchelor, V. Tarpaulins, Transitional Shelters or Permanent Houses: How does the Shelter Assistance Provided Affect the Recovery of Communities after Disaster? Master of Arts Degree in Development and Emergency Practice; Oxford Brooks University, CENDEP: Oxford, UK, 2011; p. 85. Available online: http://buildingtrustinternational.org/VictoriaBatchelor2011.pdf (accessed on 1 August 2019).
- IFCR. Introduction to the Guidelines for the Domestic Facilitation and Regulation of International Disaster Relief and Initial Recovery Assistance.International Federation of Red Cross and Red Crescent Societies. 2011. Available online: https://www.ifrc.org/PageFiles/41203/1205600-IDRL%20Guidelines-EN-LR%20(2).pdf (accessed on 12 August 2019).
- IRP. Guidance Note on Recovery—Shelter; International Recovery Platform Secretariat: Kobe, Japan, 2010; p. 131. Available online: https://www.recoveryplatform.org/assets/Guidance_Notes/Guidance%20Note%20on%20Recovery-Shelter.pdf (accessed on 12 August 2019).
- Kronenburg, R.H. Mobile and Flexible Architecture: Solutions for Shelter and Rebuilding in Post-Flood Disaster Situations. 2011. In Blue in Architecture 09; UniversitàIuav di Venezia: Venezia, Italy, 2011; Available online: http://rice.iuav.it/351/1/KRONENBURG.pdf (accessed on 22 August 2019).
- Davidson, C.; Lizarralde, G.; Johnson, C. Myths and Realities of Prefabrication for Postdisaster Reconstruction. In Proceedings of the 4th International i-Rec Conference 2008 Building Resilience: Achieving Effective Post-Disaster Reconstruction, Christchurch, New Zealand, 30 April–2 May 2008; p. 14. Available online: http://www.irbnet.de/daten/iconda/CIB11508.pdf (accessed on 20 August 2019).
- Oliver, P. The Cultural Context of Shelter Provision. Disasters 1978, 2, 125–128. [Google Scholar] [CrossRef]
- Cuny, F.C. Disasters and the Small Dwelling: The State of the Art. Disasters 1978, 2, 118–124. [Google Scholar] [CrossRef]
- Davis, I. Shelter after Disaster; Oxford Polytechnic Press: Oxford, UK, 1978; p. 127. [Google Scholar]
- Zetter, R. Shelter Provision and Settlement Policies for Refugees; A State of the Art Review; Studies on Emergencies and Disaster Relief; Report Uppsala; NordiskaAfrikainstitutet, Reprocentralen: Upssala, Sweden, 1995; p. 106. Available online: http://nai.diva-portal.org/smash/get/diva2:272932/FULLTEXT01.pdf (accessed on 20 August 2019).
- Félix, D.; Branco, J.M.; Feio, A. Temporary Housing after Disasters: A State of the Art Survey. Habitat Int. 2013, 40, 136–141. Available online: http://www.inteligentarium.com/Inteligentarium_SA/Reconstruccion_Nacional_files/Temporary%20housing%20after%20disasters%20-%20A%20state%20of%20the%20art%20survey.pdf (accessed on 3 September 2019). [CrossRef]
- Ranghieri, F.; Ishiwatari, M. (Eds.) Learning from Megadisasters. Lessons from the Great East Japan Earthquake; The World Bank: Washington, DC, USA, 2014; Available online: https://www.gfdrr.org/sites/default/files/publication/Learning%20from%20Megadisasters%20%20Lessons%20from%20the%20Great%20East%20Japan%20Earthquake.pdf (accessed on 12 August 2019).
- Flüchter, W. Tokyo before the Next Earthquake: Agglomeration-Related Risks, Town Planning and Disaster Prevention. Town Plan. Rev. 2003, 74, 213–238. [Google Scholar] [CrossRef]
- JICA (Japan International Cooperation Agency). The Study of Reconstruction Processes from Large-Scale Disasters; JICA’s Support for Reconstruction; Final Report; Capital Region Comprehensive Planning Institute Co. Ltd.: Tokyo, Japan; Regional Planning International Co. Ltd: Tokyo, Japan, 2013. Available online: https://www.jica.go.jp/activities/issues/urban/ku57pq000019fbsv-att/reconstruction_report_en.pdf (accessed on 11 August 2019).
- French, E.L. Designing Public Open Space to Support Seismic Resilience: A Systematic Review; The University of Guelph: Guelph, ON, Canada, 2017; Available online: https://atrium.lib.uoguelph.ca/xmlui/bitstream/handle/10214/12121/french_emily_201712_MLA.pdf?sequence=5&isAllowed=y (accessed on 11 August 2019).
- Murakami, K.; Murakami, D. Planning Innovation and Post-Disaster Reconstruction: The Case of Tōhoku. Plan. Theory Pract. 2014, 15, 237–265. Available online: https://www.tandfonline.com/doi/full/10.1080/14649357.2014.902909 (accessed on 11 August 2019). [CrossRef]
- Saito, Y. Temporary Housing and Community Organization during a Disaster: Experiences before and after the Great East Japan Earthquake. 2016. Available online: http://jarcs.sakura.ne.jp/jarcs_en/papers_files/saito.pdf (accessed on 12 August 2019).
- Tamaki, T. Live and Die in Solitude Away from the Family: Issues Relating to Unattended Death Kodokushi in Japan. Housei Riron 2014, 46, 4. Available online: http://dspace.lib.niigata-u.ac.jp/dspace/bitstream/10191/29371/1/46 (accessed on 22 November 2019).
- Danely, J. The limits of dwelling and the unwitnessed death. Cult. Anthropol. 2019, 34, 213–239. Available online: https://anthrosource.onlinelibrary.wiley.com/doi/abs/10.14506/ca34.2.03 (accessed on 22 November 2019). [CrossRef]
- Shiozaki, Y.; Nishikawa, E.; Deguchi, T. Lessons from the Great Hanshin Earthquake; Creates-Kamagawa Publishers: Tokyo, Japan, 2005; Available online: http://www.shinsaiken.jp/oldweb/hrc-e/publish/lessons_ghe/index.html (accessed on 10 August 2019).
- WHO (World Health Organization). Preamble of the Constitution of the World Health Organization as Adopted by the International Health Conference; Official Records of the World Health Organization; WHO (World Health Organization): New York, NY, USA, 1946; p. 100. [Google Scholar]
- Chan, E.Y.Y.; Lee, P.P.Y.; Hung, K.K.C. A Public Health Evaluation of 2008 Sichuan Earthquake in China. 2016. Available online: http://ccouc.org/_asset/file/1sichuan.pdf (accessed on 12 August 2019).
- Maly, E.; Shiozaki, Y. Towards a Policy that Supports People-Centered Housing Recovery. Learning from Housing Reconstruction after the Hanshin-Awaji Earthquake in Kobe, Japan. Int. J. Disaster Risk Sci. 2012, 3, 56–65. [Google Scholar] [CrossRef]
- Iwasa, A.; Hasegawa, T.; Shinkau, S.; Shinozaki, M.; Yasutake, A.; Kobayashi, K. A Practical Approach to Temporary Housing for Disaster Victims. J. Asian Archit. Build. Eng. 2012, 11, 33–38. Available online: https://www.tandfonline.com/doi/abs/10.3130/jaabe.11.33 (accessed on 10 August 2019). [CrossRef][Green Version]
- Mainichi Japan, 11 March 2017. Available online: https://mainichi.jp/english/articles/20170311/p2a/00m/0na/025000c (accessed on 1 August 2019).
- Smith, M. A Comparative Study of China and Japan’s Post-Disaster Temporary Housing Areas: Sichuan and Tohoku. Soc. Political Leg. Econ. Stud. 2016, 19, 161–175. [Google Scholar]
- Garson, G.D. Case Study Research in Public Administration and Public Policy: Standards and Strategies. J. Public Aff. Educ. 2002, 8, 209–216. [Google Scholar] [CrossRef]
- Yin, R.K. Case Study Research—Design and Methods, Applied Social Research Methods, 2nd ed.; Sage: Newbury, CA, USA, 1994. [Google Scholar]
- Edgington, D.W. Reconstructing Kobe: The Geography of Crisis and Opportunity; University of British Columbia Press: Vancouver, BC, Canada, 2010. [Google Scholar]
- DRA (Disaster Relief Act). 1947. Available online: https://www.ifrc.org/docs/idrl/502EN.pdf (accessed on 6 September 2019).
- Koshiyama, K. Comparison of International and Domestic Methods of Providing Housing after Disasters. J. Disaster Res. 2011, 6, 230–235. [Google Scholar] [CrossRef]
- 04 Shiozaki Sensei Rejime. Available online: http://oskougai.com/common/fckeditor/editor/filemanager/connectors/php/transfer.php?file=/kougaiday40th/uid000001_3034E5A1A9E5B48EE58588E7949FE383ACE382B8E383A12E706466 (accessed on 26 November 2019).
- Exploring Temporary Urban Areas in History. Available online: http://gwork.tank.jp/higasi/kasetu/kasetsu02.pdf (accessed on 26 November 2019).
- Iuchi, K. Redefining a Place to Live: Decisions, Planning, Processes, and Outcomes of Resettlement after Disasters; University of Illinois at Urban-Champaign: Urbana, IL, USA, 2010; Available online: https://core.ac.uk/download/pdf/4826903.pdf (accessed on 6 August 2019).
- Temporary Housing, Easy to Live even a Little. Available online: http://www.asahi.com/special/saigaishi/kasetsu/ (accessed on 26 November 2019).
- Kuroishi, I. Sense of Dwelling in Disaster Relocation: Temporary and Public Recovery Housings after the 2011 Earthquake in Japan. Int. Plan. History Soc. Proc. 2018, 18, 1. Available online: https://www.google.com/url?sa=t&rct=j&q=&esrc=s&source=web&cd=1&ved=2ahUKEwi70LuBsfXjAhUSDxQKHcljBN0QFjAAegQIAxAC&url=https%3A%2F%2Fjournals.open.tudelft.nl%2Findex.php%2Fiphs%2Farticle%2Fdownload%2F2669%2F2878%2F&usg=AOvVaw00irEioqoDyMrJe92C7Jug (accessed on 9 August 2019).
- Mainichi Japan, 11 September 2018. Available online: https://mainichi.jp/english/articles/20180911/p2a/00m/0na/004000c (accessed on 6 August 2019).
- Daiwa House Group. Great East Japan Earthquake Area Support Activities. Available online: https://www.daiwahouse.com/sustainable/csr/disaster/index.html (accessed on 25 August 2019).
- Kumamoto Art Police. “House for All” Project. Available online: http://www.pref.kumamoto.jp.e.qp.hp.transer.com/kiji_1634.html (accessed on 25 August 2019).
- Haganuma, S.; Urabe, T.; Ishisaka, K. A Study on the Reuse Characteristic of Wooden Temporary Housing —A Study on Wooden Temporary Housing in Fukushima Prefecture after the Tohoku earthquake. J. Archit. Plan. 2015, 80, 813–822. Available online: https://www.jstage.jst.go.jp/article/aija/80/710/80_813/_pdf/-char/en (accessed on 25 August 2019). [CrossRef]
- K&K/morikazuya. Available online: https://morikazuya.exblog.jp/16297560/ (accessed on 26 November 2019).
- Tohoku Reconstruction Blog. Available online: https://ameblo.jp/no-arai/entry-11391822729.html (accessed on 26 November 2019).
- Morita, K.; Takayama, M. Lessonas Learned from the 2016 Kumamoto Earthquake: Building Damages and Behavior of Seismically Isolated Buildings. In AIP Conference Proceedings; AIP Publishing: Melville, NY, USA, 2017; Volume 1892. [Google Scholar]
- White Paper on Land Infrastructure, Transport and Tourism in Japan; Supplemental Section; Response to the 2016 Kumamoto Earthquake; Ministry of Land, Infrastructure, Transport and Tourism: Tokyo, Japan, 2016. Available online: https://www.mlit.go.jp/common/001157851.pdf (accessed on 26 November 2019).
- Cabinet Office Japan. White Paper Disaster Management in Japan 2017. Available online: http://www.bousai.go.jp/kyoiku/panf/pdf/WP2017_DM_Full_Version.pdf (accessed on 24 August 2019).
- The Japan Times. Quake-hit Town in Kumamoto Opens First Batch of Temp Housing Units. Available online: https://www.japantimes.co.jp/news/2016/06/14/national/temporary-housing-units-opening-mashikis-quake-displaced-residents/#.XWJZUugzZEZ (accessed on 24 August 2019).
- Tada, S. Temporary Housing with Warmth, Clear and Contact. Efforts for Maintenance of Temporary Housing for the Kumamoto Earthquake. Kyushu Regional Planning Association. 2017. Available online: https://k-keikaku.or.jp/xc/modules/pc_ktech/index.php?content_id=2425&page=print (accessed on 25 August 2019).
- Mainichi Japan, 8 March 2019. 70% of Temporary Disaster Housing Used Longer than 2-Year Legal Limit Mainichi Survey. 2019. Available online: https://mainichi.jp/english/articles/20190308/p2a/00m/0na/010000c (accessed on 24 August 2019).
- The Nippon Foundation. Response to the 2016 Kumamoto Earthquake. Available online: https://www.nippon-foundation.or.jp/en/what/projects/kumamoto (accessed on 24 August 2019).
- Peace Winds America. Supporting Temporary Housing Communities almost Two Years after Kumamoto Earthquakes. Available online: http://peacewindsamerica.org/supporting-temporary-housing-kumamoto/ (accessed on 24 August 2019).
- Livlan. Kumamoto Earthquake Disaster Area Support “Temporary Housing x Green Curtain”. Available online: http://www.livlan.com/blog/2017/11/14/3242/ (accessed on 24 August 2019).
- Rethink Tokyo. Disaster and Design: Temporary Housing in Japan. 2018. Available online: https://www.rethinktokyo.com/2018/05/02/disaster-and-design-temporary-housing-japan/1524166638 (accessed on 26 August 2019).
- Good Design Award 2017. Good Design Special Award (Disaster Recovery Design). Temporary Housing (Mifune Town Temporary Housing in Kumamoto). Available online: https://www.g-mark.org/award/describe/45741?locale=en (accessed on 26 August 2019).
- Government of Japan. Public Relations Office.A Small Model for Future. Available online: https://www.gov-online.go.jp/eng/publicity/book/hlj/html/201711/201711_03_en.html (accessed on 26 August 2019).
- Mainichi Japan, 16 April 2019. Editorial: More Efforts Needed to Prevent Solitary Deaths in Disaster-Prone Areas. Available online: https://mainichi.jp/english/articles/20190416/p2a/00m/0na/016000c (accessed on 26 August 2019).
- Kumamoto Type Default for Emergency Temporary Housing. Available online: http://touron.aij.or.jp/2016/08/2438 (accessed on 26 November 2019).
- Cabinet Office Japan. White Paper Disaster Management in Japan 2016. Available online: http://www.bousai.go.jp/kyoiku/panf/pdf/WP2016_DM_Full_Version.pdf (accessed on 24 August 2019).
- Cabinet Office Japan. White Paper Disaster Management in Japan 2018. Available online: http://www.bousai.go.jp/kaigirep/hakusho/pdf/H30_hakusho_english.pdf (accessed on 24 August 2019).
- Vale, L.J.; Campanella, T.J. Conclusion: Axioms of Resilience. In The Resilient City: How Modern Cities Recover from Disaster; Vale, L.J., Campanella, T.J., Eds.; Oxford University Press: Oxford, UK, 2005. [Google Scholar]
- Fois, F.; Forino, G. The Self-Built Ecovillage in L’Aquila, Italy: Community Resilience as a Grassroots Response to Environmental Shock. Disasters 2014, 38, 719–739. [Google Scholar] [CrossRef]
- Davis, I.; Alexander, D. Recovery from Disaster; Routledge: London, UK; New York, NY, USA, 2016. [Google Scholar]
- Kenji, F.A. The Standard Prefabricated Temporary House and its Timber Alternatives. A Comparison of Emergency Temporary Housing Strategies in Japan. Available online: http://www.hues.kyushu-u.ac.jp/education/student/pdf/2012/2HE11101P.pdf (accessed on 29 August 2019).
- Urabe, T. Wooden Temporary Housing in Fukushima Prefecture: Focusing on Log Construction. In The Great East Japan Earthquake 2011; Case Studies; Recovery Status Report; International Recovery Platform: Kobe, Japan, 2013; pp. 75–79. Available online: https://www.recoveryplatform.org/assets/irp_case_studies/ENGLISH_RECOVERY%20STATUS%20REPORT%20JAPAN_revised%202014.3.27.pdf (accessed on 29 August 2019).
- X-Tech. Automatically Create a Temporary Housing Arrangement Plan in One Hour. Available online: https://tech.nikkeibp.co.jp/atcl/nxt/column/18/00154/00496/?i_cid=nbpnxt_reco (accessed on 29 August 2019).
- Wochi Kochi Magazine. Inspirations from the Exhibition “How Did Architects Respond Immediately after 3/11. The Great East Japan Earthquake”. Available online: https://www.wochikochi.jp/english/special/2012/07/architect311.php (accessed on 22 November 2019).
- Nakabayashi, I.; Aiba, S.; Ichiko, T. Pre-Disaster Restoration Measure of Preparedness for Post-Disaster Restoration in Tokyo. J. Disaster Res. 2008, 3, 407–421. [Google Scholar] [CrossRef]
- The University of Tokyo, Department of Architecture, Graduate School of Engineering. Completion of Community Care Type Temporary Housing Complex in Hirata Area, Kamaishi. Available online: https://arch.t.u-tokyo.ac.jp/activity/post/ (accessed on 21 August 2019).
- Japan Academic Network for Disaster Reduction. Available online: https://janet-dr.com/020_abouteng/021_abouteng.html (accessed on 22 November 2019).
- Academic Society Liaison Association Corresponding to the Great East Japan Earthquake. Joint Statement of 30 Disaster-Related Academic Societies of Japan. 2014. Available online: https://janet-dr.com/020_abouteng/021_intro/20141129_30seimei_eng.pdf (accessed on 22 November 2019).
- Kusama, A.; Sugiyama, K.; Matsuyama, Y.; Koyama, S.; Yamamoto, T.; Igarashi, A.; Tsuboya, T.; Osaka, K. Does the Type of Temporary Housing Make a Difference in Social Participation and Health for Evacuees of the Great East Japan Earthquake and Tsunami? A Cross-Sectional Study. J. Epidemiol. 2019, 29, 391–398. Available online: https://www.ncbi.nlm.nih.gov/pmc/articles/PMC6737186/ (accessed on 19 November 2019). [CrossRef]
- Nelson, H.; Stolterman, E. The Design Way. In Intentional Change in an Unpredictable World; MIT Press: Cambridge, MA, USA, 2014. [Google Scholar]
- Pallasmaa, J. Identity, Intimacy and Domicile. Notes on the Phenomenology of Home. An Interdisciplinary View—Symposium at the University of Trondheim. 1992. Available online: http://www.uiah.fi/studies/history2/e_ident.htm (accessed on 10 September 2019).
- Sixsmith, J. The Meaning of Home: An Exploratory Study of Environmental Experience. J. Environ. Psychol. 1986, 6, 281–298. [Google Scholar] [CrossRef]
- Smith, S.G. The Essential Qualities of a Home. J. Environ. Psychol. 1994, 14, 31–46. [Google Scholar] [CrossRef]
- Stoneham, B.; Smith, D. The House and the Home: The Balance of Architecture and Psychology within the Residential Home. Available online: https://www.researchgate.net/publication/282854099_The_house_and_the_home_The_balance_of_architecture_and_psychology_within_the_residential_home (accessed on 2 August 2019).
- Gibb, A. Off-Site Fabrication: Prefabrication, Pre-Assembly and Modularisation; Wiley: New York, NY, USA, 1999; p. 288. [Google Scholar]
- Stohr, K. 100 Years of Humanitarian Design. In Design Like You Give a Damn_ Architectural Responses to Humanitarian Crises; Architecture for Humanity, Ed.; Metropolis Books: New York, NY, USA, 2006; pp. 33–47. [Google Scholar]
- Bris, P.; Bendito, F. Lessons Learned from the Failed Spanish Refugee System: For the Recovery of Sustainable Public Policies. Sustainability 2017, 9, 1446. Available online: https://www.mdpi.com/2071-1050/9/8/1446 (accessed on 26 November 2019). [CrossRef]
- Allan, P.; Bryant, M. Resilience as a Framework for Urbanism and Recovery. J. Landsc. Archit. 2011, 6, 34–45. [Google Scholar] [CrossRef]
- Davidson, C.H.; Johnson, C.; Lizarralde, G.; Dikmena, N.; Sliwinski, A. Truths and Myths about Community Participation in Post-Disaster Housing Projects. Habitat Int. 2006, 31, 100–115. Available online: https://www.humanitarianlibrary.org/sites/default/files/2014/02/davidsonetal2006.pdf (accessed on 12 September 2019). [CrossRef]
- Puliafito, A. Protezione Civile; Compagnia Editoriale Aliberti: Correggio, Italy, 2010. [Google Scholar]









© 2019 by the authors. Licensee MDPI, Basel, Switzerland. This article is an open access article distributed under the terms and conditions of the Creative Commons Attribution (CC BY) license (http://creativecommons.org/licenses/by/4.0/).
Share and Cite
Bris, P.; Bendito, F. Impact of Japanese Post-Disaster Temporary Housing Areas’ (THAs) Design on Mental and Social Health. Int. J. Environ. Res. Public Health 2019, 16, 4757. https://doi.org/10.3390/ijerph16234757
Bris P, Bendito F. Impact of Japanese Post-Disaster Temporary Housing Areas’ (THAs) Design on Mental and Social Health. International Journal of Environmental Research and Public Health. 2019; 16(23):4757. https://doi.org/10.3390/ijerph16234757
Chicago/Turabian StyleBris, Pablo, and Félix Bendito. 2019. "Impact of Japanese Post-Disaster Temporary Housing Areas’ (THAs) Design on Mental and Social Health" International Journal of Environmental Research and Public Health 16, no. 23: 4757. https://doi.org/10.3390/ijerph16234757
APA StyleBris, P., & Bendito, F. (2019). Impact of Japanese Post-Disaster Temporary Housing Areas’ (THAs) Design on Mental and Social Health. International Journal of Environmental Research and Public Health, 16(23), 4757. https://doi.org/10.3390/ijerph16234757
 
        

