The Numerical Simulation Study of Pumping Airflow Driven by Wind Pressure for Single- and Multi-Room Buildings
Abstract
:1. Introduction
2. Numerical Simulation Method
2.1. Model Simplification and Simulation Settings
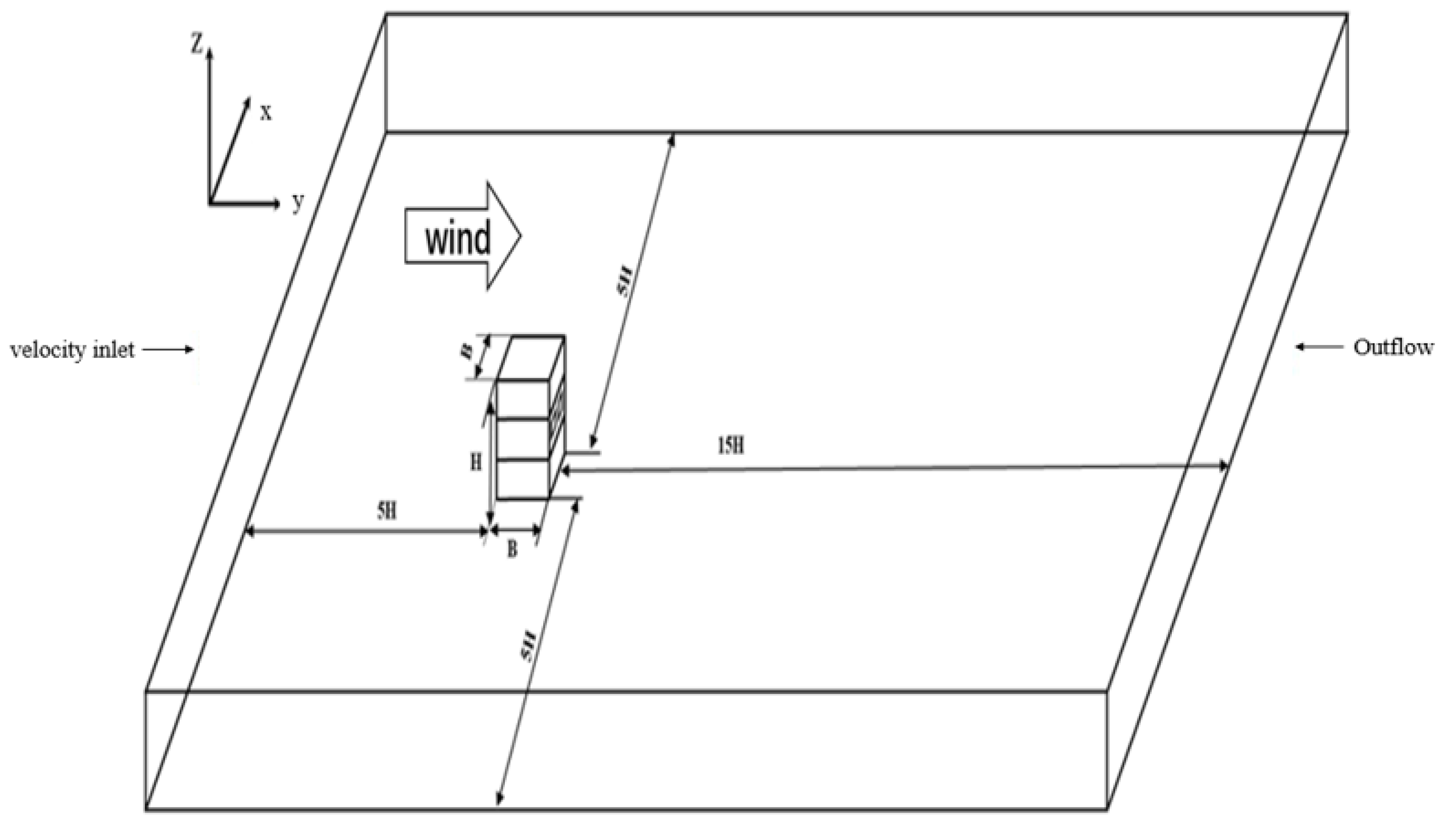
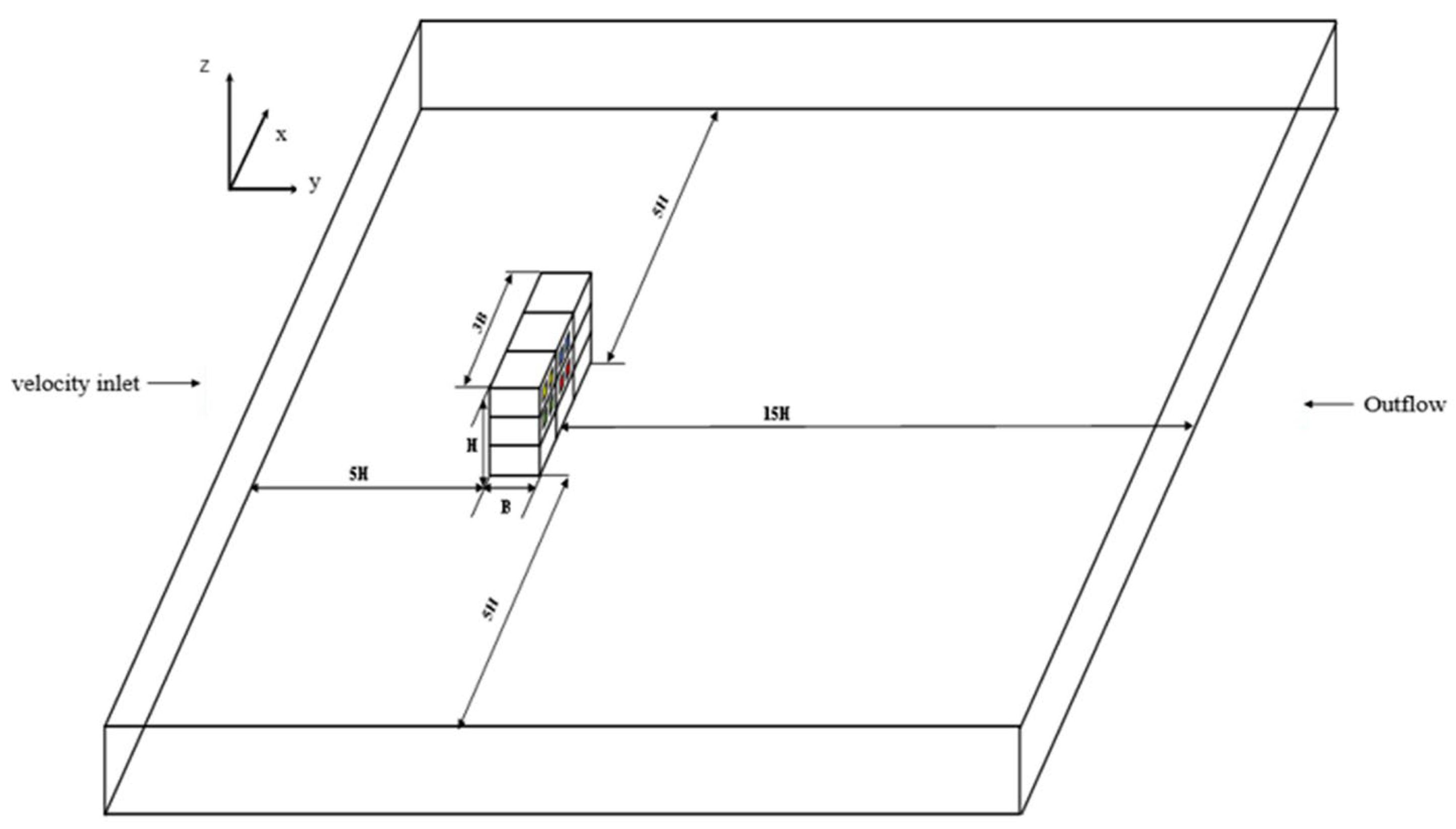
2.1.1. Computational Geometry and Domain
2.1.2. Numerical Simulation Settings
Solution Settings
Boundary Conditions
Grid Division and Independence Verification
2.1.3. Validation of CFD Methodology
2.2. Comparison of Steady-State and Transient Simulation
2.2.1. The Flow Field
2.2.2. The Ventilation Flow Rates
2.2.3. Periodic Characteristics of Pumping Airflow
3. Result and Discussion
3.1. Pumping Airflow in a Single-Room Building
3.1.1. Fluctuating Frequency
Vortex-Shedding Frequency
Indoor Airflow Oscillation Frequency
3.1.2. Ventilation Flow Rates
The Influence of Different Wind Speeds
The Influence of Different Opening Spacings
3.2. Pumping Airflow in Multi-Room Buildings
3.2.1. The Flow Characteristics
3.2.2. Ventilation Flow Rates
4. Conclusions
- (1)
- For the pumping ventilation of the single-room buildings, the airflow direction at the leeward openings will change periodically. The ventilation flow rates also display the features of a regular fluctuation in a sine wave. Only the transient simulation can describe those flow characteristics. The vortex-shedding frequency is constant, which can be described in terms of the Ro number. For the case of this study, ().
- (2)
- The airflow oscillation frequency is basically the same as the vortex-shedding frequency around the building; all of them vary monotonically with wind speed. As the wind speed increases, the frequency of the oscillations inside the building rise. The variation in the dimensionless opening spacing has an insignificant impact on the room’s airflow oscillation frequency.
- (3)
- The ventilation flow rates of the Warren model are not suitable for the pumping ventilation. However, the ventilation flow rates are also proportional to the wind speed and the opening areas. By fitting the simulation data, the formula for calculating the amount of pumped ventilation in a single-room building was derived as . Additionally, a linear relationship was found between the dimensionless opening distance and the dimensionless ventilation flow rate as .
- (4)
- For multi-room buildings, the ventilation effects of various rooms are different. The room in the center of the building had a larger air change rate than the rooms on the sides of the structure. Moreover, the ventilation performance of any space in multi-room buildings is better than that in single-room buildings under the conditions of the same wind speed and the same building height.
Author Contributions
Funding
Data Availability Statement
Conflicts of Interest
References
- Visagavel, K.; Srinivasan, P. Analysis of single side ventilated and cross ventilated rooms by varying the width of the window opening using CFD. Sol. Energy 2009, 83, 2–5. [Google Scholar] [CrossRef]
- Van Hooff, T.; Blocken, B.; Tominaga, Y. On the accuracy of CFD simulations of cross-ventilation flows for a generic isolated building: Comparison of RANS, LES and experiments. Build. Environ. 2017, 114, 148–165. [Google Scholar] [CrossRef]
- Tao, T. Research on Airflow Characteristics and Thermal Comfort of Thermopressurised Naturally Ventilated Rooms. Ph.D. Thesis, Yangzhou University, Jiangsu, China, 2015. (In Chinese). [Google Scholar]
- Chu, C.R.; Chiu, Y.H.; Tsai, Y.T.; Wu, S.L. Wind-driven natural ventilation for buildings with two openings on the same external wall. Energy Build. 2015, 108, 365–372. [Google Scholar] [CrossRef]
- Warren, P. The analysis of single sided ventilation measurements. Air Infiltration Rev. 1986, 7, 3–5. [Google Scholar]
- Straw, M.P. Computation and Measurement of Wind Induced Ventilation. Ph.D. Thesis, University of Nottingham, Nottingham, UK, 2000. [Google Scholar]
- Daish, N.C.; da Graça, G.C.; Linden, P.F.; Banks, D. Impact of aperture separation on wind-driven single-sided natural ventilation. Build. Environ. 2016, 108, 122–134. [Google Scholar] [CrossRef]
- Zhong, H.Y.; Zhang, D.D.; Liu, D.; Zhao, F.Y.; Li, Y.; Wang, H.Q. Two-dimensional numerical simulation of wind driven ventilation across a building enclosure with two free apertures on the rear side: Vortex shedding and “pumping flow mechanism”. J. Wind. Eng. Ind. Aerodyn. 2018, 179, 449–462. [Google Scholar] [CrossRef]
- Zhong, H.Y.; Zhang, D.D.; Liu, Y.; Liu, D.; Zhao, F.Y.; Li, Y.; Wang, H.Q. Wind driven “pumping” fluid flow and turbulent mean oscillation across high-rise building enclosures with multiple naturally ventilated apertures. Sustain. Cities Soc. 2019, 50, 101619. [Google Scholar] [CrossRef]
- Albuquerque, D.P.; Sandberg, M.; Linden, P.F.; da Graça, G.C. Experimental and numerical investigation of pumping ventilation on the leeward side of a cubic building. Build. Environ. 2020, 179, 106897. [Google Scholar] [CrossRef]
- Zhong, H.Y.; Jing, Y.; Liu, Y.; Zhao, F.Y.; Liu, D.; Li, Y. CFD simulation of “pumping” flow mechanism of an urban building affected by an upstream building in high Reynolds flows. Energy Build. 2019, 202, 109330. [Google Scholar] [CrossRef]
- Zhong, H.Y.; Jing, Y.; Sun, Y.; Kikumoto, H.; Zhao, F.Y.; Li, Y. Wind-driven pumping flow ventilation of highrise buildings: Effects of upstream building arrangements and opening area ratios. Sci. Total Environ. 2020, 722, 137924. [Google Scholar] [CrossRef]
- Zhong, H.Y.; Lin, C.; Sun, Y.; Kikumoto, H.; Ooka, R.; Zhang, H.L.; Hu, H.; Zhao, F.Y.; Jimenez-Bescos, C. Boundary layer wind tunnel modeling experiments on pumping ventilation through a three-story reduce-scaled building with two openings. Build. Environ. 2021, 202, 108043. [Google Scholar] [CrossRef]
- da Graca, G.C.; Albuquerque, D.P.; Sandberg, M.; Linden, P.F. Pumping ventilation of corner and single sided rooms with two openings. Build. Environ. 2021, 205, 108171. [Google Scholar] [CrossRef]
- Kobayashi, T.; Sandberg, M.; Fujita, T.; Lim, E.; Umemiya, N. Simplified estimation of wind induced natural ventilation rate caused by turbulence for a room with minute wind pressure. Proc.-Roomvent Vent. 2018, 2018, 613–618. [Google Scholar]
- Tominaga, Y.; Mochida, A.; Yoshie, R.; Kataoka, H.; Nozu, T.; Yoshikawa, M.; Shirasawa, T. AIJ guidelines for practical applications of CFD to pedestrian wind environment around buildings. J. Wind. Eng. Ind. Aerodyn. 2008, 96, 1749–1761. [Google Scholar] [CrossRef]
- Yoshie, R.; Jiang, G.; Shirasawa, T.; Chung, J. CFD simulations of gas dispersion around high-rise building in non-isothermal boundary layer. J. Wind. Eng. Ind. Aerodyn. 2011, 99, 279–288. [Google Scholar] [CrossRef]
- Liu, J.; Niu, J. CFD simulation of the wind environment around an isolated high-rise building: An evaluation of SRANS, LES and DES models. Build. Environ. 2016, 96, 91–106. [Google Scholar] [CrossRef]
- Mou, B.; He, B.J.; Zhao, D.X.; Chau, K.W. Numerical simulation of the effects of building dimensional variation on wind pressure distribution. Eng. Appl. Comput. Fluid Mech. 2017, 11, 293–309. [Google Scholar] [CrossRef]
- Jiang, Y.; Alexander, D.; Jenkins, H.; Arthur, R.; Chen, Q. Natural ventilation in buildings: Measurement in a wind tunnel and numerical simulation with large-eddy simulation. J. Wind. Eng. Ind. Aerodyn. 2003, 91, 331–353. [Google Scholar] [CrossRef]
- Roshko, A. Experiments on the flow past a circular cylinder at very high Reynolds number. J. Fluid Mech. 1961, 10, 345–356. [Google Scholar] [CrossRef]
- Monai, R. Wind tunnel experiments on vortex shedding frequency and end effects of square columns. Exp. Mech. 1994, 9, 6. (In Chinese) [Google Scholar]
- Caciolo, M.; Stabat, P.; Marchio, D. Full scale experimental study of single-sided ventilation: Analysis of stack and wind effects. Energy Build. 2011, 43, 1765–1773. [Google Scholar] [CrossRef]
- Ziarani, N.N.; Cook, M.J.; Freidooni, F.; O’Sullivan, P.D. The role of near-façade flow in wind-dominant single-sided natural ventilation for an isolated three-storey building: An LES study. Build. Environ. 2023, 235, 110210. [Google Scholar] [CrossRef]























| U (m/s) | (s) | |
|---|---|---|
| 1 | 410,752 | 0.100 |
| 2 | 821,504 | 0.050 |
| 3 | 1,232,256 | 0.033 |
| 4 | 1,643,008 | 0.025 |
| 5 | 2,053,761 | 0.020 |
| Wind Speed (m/s) | Q_(Steady State) (m3/s) | Q_(Unsteady State) (m3/s) |
|---|---|---|
| 1 | 0.0778 | 0.1356 |
| 2 | 0.3018 | 0.3389 |
| 3 | 0.4207 | 0.5120 |
| Position Frequency (Hz) Velocity (m/s) | a | b | c | d |
|---|---|---|---|---|
| 1 | 0.0224 | 0.0224 | 0.0224 | 0.0224 |
| 2 | 0.0400 | 0.0400 | 0.0400 | 0.0400 |
| 3 | 0.0619 | 0.0619 | 0.0619 | 0.0619 |
| 4 | 0.0825 | 0.0825 | 0.0825 | 0.0825 |
| 5 | 0.1000 | 0.1125 | 0.1000 | 0.1000 |
| Parametric Velocity (m/s) | (Hz) | |||
|---|---|---|---|---|
| 1 | 0.0224 | 0.1346 | 410,752 | 55,205 |
| 2 | 0.0400 | 0.1200 | 821,504 | 97,758 |
| 3 | 0.0619 | 0.1237 | 1,232,256 | 152,553 |
| 4 | 0.0825 | 0.1237 | 1,643,008 | 203,240 |
| 5 | 0.1000 | 0.1200 | 2,053,761 | 246,451 |
| Velocity (m/s) | 1 | 2 | 3 | 4 | 5 |
|---|---|---|---|---|---|
| 0.1917 | 0.2397 | 0.2414 | 0.2420 | 0.2534 | |
| 0.1350 | 0.1320 | 0.1333 | 0.1335 | 0.1345 | |
| (m3/s) | 0.1356 | 0.3389 | 0.5120 | 0.6840 | 0.8960 |
| Wind Speed (m/s) | (m3/s) | Daish (m3/s) | Daish (%) | Warren (m3/s) | Warren (%) |
|---|---|---|---|---|---|
| 1 | 0.1356 | 0.1928 | 42.19 | 0.0500 | 63.13 |
| 2 | 0.3389 | 0.3856 | 13.79 | 0.1000 | 70.49 |
| 3 | 0.5120 | 0.5784 | 12.98 | 0.1500 | 70.70 |
| 4 | 0.6840 | 0.7712 | 12.76 | 0.2000 | 70.76 |
| 5 | 0.8960 | 0.9640 | 7.600 | 0.2500 | 72.10 |
| Velocity (m/s) | (m3/s) | (m3/s) | ε (%) |
|---|---|---|---|
| 1 | 0.1739 | 0.1928 | 9.80 |
| 2 | 0.3479 | 0.3856 | 9.78 |
| 3 | 0.5218 | 0.5784 | 9.79 |
| 4 | 0.6958 | 0.7712 | 9.78 |
| 5 | 0.8697 | 0.9640 | 9.78 |
| Method | Dimensionless Open Spacing () | Dimensionless Ventilation Flow Rates () | R2 | |
|---|---|---|---|---|
| 1 | 2D simulation | 0.12 | 0.1521 | 0.84 |
| 0.36 | 0.3596 | |||
| 0.6 | 0.4492 | |||
| 0.84 | 0.4900 | |||
| 2 | wind tunnel test | 0.25 | 0.067 | 0.99 |
| 0.5 | 0.081 | |||
| 0.75 | 0.095 | |||
| 3 | quasi-3D simulation | 0.25 | 0.1060 | 0.99 |
| 0.5 | 0.2460 | |||
| 0.75 | 0.3691 |
| Ventilation | Room 1 | Room 2 | Room 3 | Room 4 |
|---|---|---|---|---|
| ) | 0.2396 | 0.2479 | 0.3265 | 0.1917 |
| ) | 0.1756 | 0.1946 | 0.3035 | 0.1350 |
| Ventilation (m3/s) | 0.1695 | 0.1753 | 0.2308 | 0.1356 |
Disclaimer/Publisher’s Note: The statements, opinions and data contained in all publications are solely those of the individual author(s) and contributor(s) and not of MDPI and/or the editor(s). MDPI and/or the editor(s) disclaim responsibility for any injury to people or property resulting from any ideas, methods, instructions or products referred to in the content. |
© 2023 by the authors. Licensee MDPI, Basel, Switzerland. This article is an open access article distributed under the terms and conditions of the Creative Commons Attribution (CC BY) license (https://creativecommons.org/licenses/by/4.0/).
Share and Cite
Qiu, X.; Zhou, J.; Xiao, X.; Zhu, W.; Zhang, J.; Gui, S.; Peng, Y. The Numerical Simulation Study of Pumping Airflow Driven by Wind Pressure for Single- and Multi-Room Buildings. Buildings 2023, 13, 3066. https://doi.org/10.3390/buildings13123066
Qiu X, Zhou J, Xiao X, Zhu W, Zhang J, Gui S, Peng Y. The Numerical Simulation Study of Pumping Airflow Driven by Wind Pressure for Single- and Multi-Room Buildings. Buildings. 2023; 13(12):3066. https://doi.org/10.3390/buildings13123066
Chicago/Turabian StyleQiu, Xinpeng, Junli Zhou, Xue Xiao, Wenjun Zhu, Jiaji Zhang, Shuqiang Gui, and Yangdong Peng. 2023. "The Numerical Simulation Study of Pumping Airflow Driven by Wind Pressure for Single- and Multi-Room Buildings" Buildings 13, no. 12: 3066. https://doi.org/10.3390/buildings13123066
APA StyleQiu, X., Zhou, J., Xiao, X., Zhu, W., Zhang, J., Gui, S., & Peng, Y. (2023). The Numerical Simulation Study of Pumping Airflow Driven by Wind Pressure for Single- and Multi-Room Buildings. Buildings, 13(12), 3066. https://doi.org/10.3390/buildings13123066
