Next Article in Journal
Preliminary Analysis of the Use of Construction Waste to Replace Conventional Aggregates in Concrete
Next Article in Special Issue
Influence of the Widespread Use of Corten Plate on the Acoustics of the European Solidarity Centre Building in Gdańsk
Previous Article in Journal
The Disruptive Adaptations of Construction 4.0 and Industry 4.0 as a Pathway to a Sustainable Innovation and Inclusive Industrial Technological Development
Previous Article in Special Issue
A Simple Framework for the Cost–Benefit Analysis of Single-Task Construction Robots Based on a Case Study of a Cable-Driven Facade Installation Robot
 
 
Font Type:
Arial Georgia Verdana
Font Size:
Aa Aa Aa
Line Spacing:
Column Width:
Background:
Article

Medieval Bourgeois Tenement Houses as an Archetype for Contemporary Architectural and Construction Solutions: The Example of Historic Downtown Gdańsk

by
Antoni Taraszkiewicz
,
Karol Grębowski
*,
Karolina Taraszkiewicz
and
Jarosław Przewłócki
Faculty of Architecture, Technical University of Gdańsk, 80-233 Gdańsk, Poland
*
Author to whom correspondence should be addressed.
Buildings 2021, 11(3), 80; https://doi.org/10.3390/buildings11030080
Submission received: 6 February 2021 / Revised: 22 February 2021 / Accepted: 22 February 2021 / Published: 25 February 2021
(This article belongs to the Special Issue Architecture: Integration of Art and Engineering)

Abstract

The basic urban tissue of medieval European cities consisted of brick townhouses. In the cities of northern Europe, these tenements were characterised by a block based on an elongated rectangular plan, covered with a gable roof with a ridge oriented perpendicularly to the street. The side walls of the tenement house were common for both neighbours and constituted a basic structural element. The gable façades were not loaded with ceilings, providing freedom in shaping them. The aim of this work is to determine the reasons why this method of shaping tenement houses in historical city centres has survived to the present day, becoming an archetype for contemporary architectural and construction solutions, despite the passage of time, numerous historical events, war damage, changing architectural styles, fashions and building techniques and technologies. The historical centre of Gdańsk has become the research material in this paper, where by means of such methods as historical source material analysis (iconographic), observation (operationalisation of preserved historical objects), comparative analysis of completed contemporary investments, and 3D modelling of structural systems, an attempt has been made to determine the main factors determining contemporary architectural and structural solutions. The reason for the extraordinary durability of this type of construction model can be found in the enormous rationality and efficiency of this solution. It allows for very intensive use of land, easy access of all front elevations to the main communication routes, cheapness of construction resulting from small spans and use of common structural walls for the neighbouring buildings, ease of shaping gable elevations, and fire safety. Aesthetic considerations are probably also important here, although it should be assumed that their significance began to grow only in the second half of the 19th century. However, it seems that the most important factor which made the model of the mediaeval bourgeois tenement house become an archetype for contemporary architectural and construction solutions is the timeless message contained in this model, a specific code allowing it to be unambiguously identified as a form of urban house—a place of safe living and at the same time a visible sign of the rich history of European cities, an element creating their cultural and spatial identity, a component of the living, constantly transforming urban fabric.

1. Introduction

Medieval towns in northern Europe were usually compact urban complexes surrounded by fortifications, whose basic tissue consisted of burgher houses. The term tenement house is defined in the paper as a brick, one-storey urban house, in a compact development, separated in terms of space and ownership, and co-creating with the plot a layout of a traditional urban block and a street [1]. The compact dense housing of many European cities evolved from detached houses due to the legal and spatial reorganisation of these cities as described in [2]. Such buildings did not aspire to the role of spatial dominance, leaving this role to the monumental edifices of cathedrals, churches or town halls, however, thanks to their huge mass, they determined the spatial expression of individual streets and squares, and sometimes districts and entire cities. The history of building plots in early and late medieval towns in the Baltic Sea basin is described in [3]. Studies on the house in the medieval and modern city in Europe are presented in [4]. The origins of the tenement house, its function and form in Central Europe, are presented, among others, in [5] while for Northern Europe, various aspects of the tenement are included in [6]. The breakthrough stage of the building’s construction was replacing the walls of the timber-framed hallway house with a building with load-bearing brick walls. With time, the construction of the buildings changed from single residential buildings into compact buildings.
In the Northern European countries, from The Netherlands through southern Scandinavia to Latvia, Lithuania, and Estonia, the dominant type was that of the tenement house with its gable to the street, in which the side walls played an essential role and the façade was only a screen [7]. As a rule, the building block was based on an elongated rectangular plan, covered with a gable roof of a wooden construction. The construction of wooden roof trusses of tenements, their typology and development in the region of Central and Northern Europe, are described in [8,9]. The individual buildings differed primarily in the architecture of their façades [10,11]. The masonry side walls of the tenement house were common to both neighbours, constituting the basic structural element and, at the same time, the fire separation wall. The gable façades were not loaded with ceilings, providing freedom in shaping them. An important feature of bourgeois tenements was the fact that they were built as compact buildings, forming a clear element of the street or square frontage [12]. The bourgeois houses in the medieval cities of southern Europe looked different. These were usually buildings with a near-square ground plan, with low-pitched roofs and ridges parallel to the street. And although this model has survived in south Europe to the present day, it is not as expressive as the model of the bourgeois house in northern European countries.
The North European tenement form can be found in such cities as: Amsterdam (The Netherlands), Antwerp (Belgium), Copenhagen (Denmark), Lubeca, Frankfurt am Main, Bremen (Germany), Gdańsk, Toruń (Poland), and Tallinn (Estonia). For centuries, in those cities, next to Gothic tenements, Renaissance, and later Baroque, Classicist, or Eclectic buildings appeared, while the identical form of the structure and structural system described above remained unchanged [2,13]. An interesting study of tenement houses in modern times on the example of Gdańsk was conducted in [14]. The tenements were built on plots of similar widths and were of similar heights. The width of the plots ranged from several to a dozen or so metres, and their length reached even 100 m. They usually had from two to 4–5 levels and an attic. If someone wanted to enlarge the width of the tenement house, he had to buy the neighbours’ plot. In this way, the bordering buildings were combined into one larger one.
Many publications have been devoted to the description of tenements in particular regions and cities of Northern Europe. For example, an analysis of housing estates in several European cities including Amsterdam can be found in [15]. The townhouses of the Klaipeda region (Lithuania) are described in [16], the architecture and reconstruction of the townhouses of Elbląg (Poland) is presented in [11], while various aspects of the townhouses of Gdańsk are given in [13,17,18,19], etc.
It is extremely interesting that this particular model of housing development managed to be maintained for six centuries (from the second half of the 13th century until the mid-19th century) in the cities of Northern Europe, in an almost unchanged form, despite the passage of time, changing architectural styles, and the admittedly slow, but progressive development of construction techniques.
In the 19th century, together with a rapid increase in the number of inhabitants of European cities and changing needs in relation to buildings situated along main streets, numerous attempts were made to replace the model developed in the Middle Ages with new, seemingly more adequate to the spirit of the introduced changes, forms of development. These attempts, however, ended in failure and the model of the medieval bourgeois tenement house, only functionally transformed into a tenement house, emerged from these attempts “victorious”, remaining as the dominant one in the urban tissue.
A similar situation occurred after World War II [20]. The best example of this is Gdańsk, where after the destruction wrought by the war, despite many attempts to implement a completely new way of building, it was finally decided to shape the residential development on the basis of a modernised model, which, however, was still preserved from the Middle Ages.
All this brings us finally to modern times. The housing investments currently undertaken in Gdańsk, but also in many other European cities, located in the zone of historic city centres, are a modernised (however to a very small extent) model of a medieval bourgeois tenement house. The departure from the original is of course visible in the contemporary functional layout, execution technology and materials used, but it does not concern the most important, decisive elements of the building’s spatial expression, such as its scale and the overground shape of its mass.
Historically, townhouses by their very nature had the simplest and most optimal structural system possible: wooden roof trusses and wooden ceilings supported on masonry walls placed directly on stone or brick foundations, or on wooden piles. In general, safety evaluation for historical constructions is recommended by ISO [21] and ICOMOS [22]. Principles for the analysis or evaluation of historic wooden structures are given in ICOMOS [23,24]. An interesting review of existing standards, guidelines and procedures available for the assessment of historic woodwork is presented in [25,26]. The most recent research on using advanced digital technologies (such as building information modeling–BIM, finite element method–FEM) in heritage preservation focuses on the analysing the current state of particular structures. This approach to the structural analysis of the tenement was used in [27]. BIM allows for excellent environmental sustainability results while helping to reduce design time and eliminate design errors. “To ensure that a project meets sustainability requirements, different software are used to verify energy consumption. These software take into account several factors such as thermal insulation, climate response, solar penetration, natural ventilation, mechanical ventilation HVAC systems, building dynamics and thermal mass” [28]. A complex assessment methodology and procedure for historic roof structures is proposed in [29]. Masonry structures are also most commonly analysed based on finite element methods. Reviews of methods applicable to the study of such structures have been presented in [30,31]. Unfortunately, there are few comprehensive studies devoted to the foundations of historical buildings [32,33]. Several examples of historical foundations, as well as past and contemporary preservation techniques, are also presented in the latter. Numerical analysis of stone foundations by the finite element method is given in [34]. A comprehensive structural analysis of the transformation of the tenement for the different building phases from the 13th to the mid-16th century was carried out in [35]. It considered a complex of three buildings on Mostowa Street in Toruń, which is one of the most interesting examples of bourgeois architecture, inscribed on the UNESCO World Heritage List. On the other hand, several cases of almost complete reconstruction of historical urban complexes are analysed in [36].
The model of the medieval bourgeois tenement has survived to the present day despite numerous historical events, war destruction, changing architectural styles, fashions, construction techniques and technologies [36], despite pro-environmental trends, the pursuit of sustainable development [37] and universal accessibility [38], and despite the progressive development of civilization and globalisation. The aim of the article is to determine the reasons for the great durability of this model, which has become an archetype for contemporary urban-architectural and structural solutions located in historical urban centres. The search for these causes was also based on the numerical structural analysis (FEM) of a medieval tenement house.

2. Materials and Methods

Among many elements of the current discourse on the protection of cultural heritage, one of the most important seems to be the problem of coexistence or dialogue between contemporary architecture and the existing valuable historical buildings. This problem is not new and seems to have accompanied architects and builders for centuries, during which they had to decide on the shape of new buildings adjacent to the existing ones. Nowadays, however, more than in the past, this problem has taken on a new, more pronounced meaning.
It seems that an excellent research material for this type of considerations is a model of a medieval bourgeois tenement house, which was and still is an archetype for many investment activities carried out in historical urban centres. In this paper, the historical centre of Gdańsk was examined. Using such research methods as analysis of historical source material (iconography), observation (operationalisation of preserved historical objects), comparative analysis of contemporary investments, and 3D modelling of structural systems, an attempt was made to determine the main factors determining the architectural and structural solutions of contemporary buildings.

3. Medieval Bourgeois Tenement House in Gdańsk

The type of bourgeois tenement house in Gdańsk was formed a bit later than in other northern European countries—only at the beginning of the 15th century—however it did not differ in any way from the Dutch or German model. This was because these buildings were constructed mainly by builders who came from other countries or by Gdańsk citizens who acquired their skills in constructing this type of buildings abroad. Thus, the burgher house in Gdańsk (like its foreign prototypes) was characterised by the body of the building based on a rectangular plan with a width of approx. 5 to ca. 7 m and a length of several to several dozen metres, adjoining the street along its shorter side (Figure 1).
The block was covered with a gable roof with an inclination of approx. 60° with a wooden structure usually covered with ceramic tiles and a ridge situated perpendicularly to the street. The side walls of the tenement were made of brick or earlier stone and common to both neighbours, providing the basic structural element on which the ceilings rested. These walls were also elements of fire separation for individual buildings. Gable elevations were not loaded with ceilings, providng freedom in their shaping. Due to the high level of groundwater in Gdańsk, the basements were shallow and the ground floor was elevated above the ground level.
In order to determine the load transfer in the medieval roof structure and to determine stresses in the brick walls, a numerical model was made in the ABAQUS software version 6.13, 2013 (Figure 2a). The analysis was performed on a 3D model of a medieval townhouse with dimensions of 700 × 800 cm and a wall thickness of 100 cm. The model was partitioned into 657,654 eight-node cubic reduced integration solid elements of linear shape function type C3D8R with a total number of nodes of 1,113,556. Calculations were performed for several finite element mesh sizes. The highest convergence was obtained for a grid with a side size of 10 mm. The load was modelled cinematically as an equal vertical displacement of the nodes of the upper surface of the elements forming the triple rafter roof framing. The load was collected from the entire roof area taking into account the dead weight of the elements and climatic loads.
The numerical analysis carried out is intended to compare in a simplified way the static schemes and load transfer between medieval and modern roof trusses. The studies described in [40,41] were used to implement the wood input parameters. The following wood parameters were included in the model: longitudinal compressive strength XC = 62.2 MPa, longitudinal tensile strength XT = 140.0 MPa, transverse tensile strength YT = 8.5 MPa, transverse compressive strength YC = 10.9 MPa, shear strength S = 35.0 MPa, Young’s modulus—length direction E1 = 9715.0 MPa, Young’s modulus—horizontal direction E2 = 400 MPa, shear modulus G = 600 MPa, density ρ = 650 kg/m3, Poisson’s ratio v12 = 0.316, v23 = 0.469, v31 = 0.023, initial yield limit σ0k = 26 MPa.
The research described in [42] was used to implement the input parameters of a historical masonry wall. The elastic modulus of the masonry wall material was calculated using the homogenization algorithm described in papers [43,44]. In order to determine the stresses in the brick masonry, a plastic-degradation material with the following parameters was included in the model: Young’s modulus E = 2600 MPa, Poisson’s ratio v = 0.167, density ρ = 2000 kg/m3, dilatation angle = 16°, eccentricity e = 0.07, biaxial/uniaxial compression plastic strain ratio 1.16, parameter κc = 0.667, viscosity 0.001, stress σc = 8.42 MPa inelastic strain ε = 0.009931, compressive degradation dc = 0.99 in elastic strain ε = 0.00931, stress σt = 0.848 MPa in crushing strain εc = 0.00527, tensile degradation dt = 0.97 in crushing strain εc = 0.00527 [45]. The current condition of the elements was also taken into account by lowering the value of the longitudinal modulus of elasticity. The results obtained during the numerical analysis in the form of stress maps are presented in Figure 2b.
On the basis of the obtained results, it was proven that the medieval triple rafter roof framing and brick wall would satisfy the ultimate limit state and serviceability conditions. Compressive stresses of 2 MPa did not lead to cracks in the structure of the elements, which would cause failure of the entire structure.
The elevation of the ground floor above the ground level meant that the ground floor was accessed by stairs through porches, which have become a characteristic element of this architecture. The height of buildings and the number of decorative elements applied on their façades depended on the social and, above all, material status of their owners. It should be noted here that the decorations were applied mainly to gable façades located on the street side. Gable façades located from the side of quarter interiors were not subject to decoration, and side façades were decorated only when they had no “neighbour” and were located along side streets. Very characteristic elements of the gable facades were (situated “at the meeting point” of the neighbouring buildings) often richly decorated containers for rainwater, connected with drain pipes running along the facades.
In spite of changing architectural styles and the development of building technologies, this method of building tenements was preserved in Gdańsk from the 15th to the middle of the 19th c. (Figure 3).

4. Gdańsk Tenements from the Mid-19th to the Mid-20th Century

The 19th century in Gdansk was initially a period of economic and construction stagnation caused by warfare. Later, mainly due to the industrial revolution, came a time of prosperity and thus a period of population growth and a boom in construction, including housing. However, this did not change the way buildings were constructed. The architecture of this period was full of historical borrowings and quotations, often based on very fashionable catalogues or architectural patterns. The style of the façades of the buildings was eclectic and the shape of the mass clearly continued the medieval traditions.
The end of the 19th century and the beginning of the 20th century in Gdańsk brought new challenges to the then urban development and a new look at the urban planning and aesthetics of the city. This prompted the citizens and authorities of Gdańsk to apply measures to modernise its appearance. Encouraged by the examples of other European cities, the citizens of Gdańsk began to undertake a number of actions aimed at “clearing” the urban tissue of buildings that did not meet the new challenges. A number of demolitions were carried out, unfortunately irrevocably destroying a significant number of valuable historical buildings. The demolished historical buildings were replaced with new ones, larger in scale and of a different, modern style, often characterised by flat roofs which were “alien here”. The city authorities tried to control the emerging spatial chaos by organising architectural competitions for the “façades of Gdańsk buildings”. These competitions were aimed at finding a solution or a model of a Gdańsk building realised in the historical area.
The most widespread competition among architects was organised in 1902. This competition attracted 110 entries from all over Germany and produced totally surprising results [47]. Despite enormous pressure from the proponents of modernity, the works submitted for the competition and awarded were solutions that very directly referred to the historical legacy, using neo-stylistics, mainly the Dutch Neo-Renaissance. The residential buildings presented in the competition were again traditional, medieval townhouses clad in neo-decoration (Figure 4).
In the third decade of the twentieth century, the so-called “Project of Great Gdańsk” was being prepared. It was the first comprehensive zoning plan covering not only the historic downtown, but also its wide surroundings. Although this project generally assumed the preservation of the old buildings in the city centre, it allowed for the reconstruction of many historical parts of the city. The ideas of the modern movement in architecture and modernist design with flat roofs, columns, and strip windows began to “invade” the historic centre (Figure 5).
Historic conservation officers, architects and urban planners of the time were engaged in fierce disputes over the transformation of the face of the city. One of the proponents of introducing changes in the way of building was an architect and respected builder, Martin Kiessling [49], whereas his opponent and defender of historical building principles was professor and rector of Technische Hochschule Danzig (now Gdańsk University of Technology), architect Otto Kloeppel, who wrote in 1928: “For each city, there was a time when its proper style was constructed; this was the historical time when the most was built in a given city, thus creating its character. It was good if the newly constructed buildings were built in the same form language. Nevertheless, it is a fact that just as the various historical styles perfectly complement each other in our old cities, so there is also room for modern forms, provided that the essence of the spatial art of the old urban foundation is not violated” [48]. In the end, the traditional medieval townhouse won again. The space of the historic downtown of Gdańsk remained quite uniform in its historic style and the modernist visions of Kiessling and his ilk were not realised. Until the outbreak of World War II, the bourgeois houses located in the historic downtown of Gdańsk remained faithful to their medieval original (Figure 6).

5. War Destruction in 1945 and the Reconstruction of the City

Gdańsk is one of the European cities that suffered the most damage as a result of warfare during World War II. It is estimated that the degree of destruction reached as much as 90% of the buildings existing before the outbreak of war (Figure 7) [50].
The reconstruction of such a badly damaged city was not an easy task, especially as it was carried out in the atmosphere of many discussions and disputes concerning the way it should be done. There were also opinions that Gdańsk should not be rebuilt at all, but only turned into a huge park with only “islands” of the most important monumental buildings. In turn, modernist visions of rebuilding Gdańsk envisaged building in its place a modern residential district with wide, sunny streets, green areas and gardens. Towards the end of 1946, however, the vision of a historic reconstruction of the city began to prevail and its supporters began to draw up increasingly clear plans for its implementation. A great propagator of this idea was an architect, town-planner, and scientist, Władysław Czerny, the author of the first serious plan of rebuilding Gdańsk. He claimed that all reconstructions must be carried out on the basis of strict historical documentation, not allowing the creation of historical architectural fantasies. However, he allowed for the construction of tenement houses in contemporary forms provided that they could respect the “artistic custom and the custom of scale” [51].
Thus, the historic centre of Gdańsk was rebuilt, but this reconstruction was not a faithful and literal reconstruction of all of the pre-war elements. The most significant monuments were rebuilt, the main street lines were rebuilt, the city skyline was reconstructed, but at the same time, the urban tissue was radically changed, adapting it to the requirements of modern urban planning. A housing development has been built in the historic city centre. Therefore, during the reconstruction, the main emphasis was put on housing, i.e., again on tenement houses, which are the face of the city. These tenements, often built on historical foundations, in their general structure did not deviate in any way from the archetype of the medieval burgher house. They often had historical façades reconstructed on the basis of iconographic material, but even more often, they were buildings with a fascinating combination of historical structure and modernist and, in later years, socialist realist style [51].
Of course, it should be emphasised once again that it is the external spatial expression of these buildings and the basic layout of their structure that is at issue here, not the functional layout, which was completely transformed when adapted to the new requirements. It is extremely interesting that the “struggle” between the traditional form of the bourgeois tenement house and the new solutions lasted throughout the reconstruction of the city, i.e., until around 1960. However, the archetypical idea of a bourgeois tenement house was victorious in this struggle each time (Figure 8).

6. Second Stage of Reconstruction—An Archetype Still Relevant

Despite the successful reconstruction of the city in 1945–1960, today’s historic downtown of Gdańsk still requires new buildings to fill in the vacant spaces and complete the quarters and street frontages destroyed during World War II. However, contemporary architects and urban planners operate in a very different reality than their post-war predecessors. The Venice Charter, adopted in 1964 by the Second International Congress of Architects and Technicians for the Construction of Monuments in Italy, changed the rules for the “handling” of monuments, and in particular drastically limited the possibilities for their restoration and reconstruction. The Charter calls for the protection and preservation of the original substance, structure and materials of historic buildings and for a clear distinction between all newly added elements and the original elements. Most relevant here is Article 9 of the Charter, which states: “The process of restoration is a highly specialized operation. Its aim is to preserve and reveal the aesthetic and historic value of the monument and is based on respect for original material and authentic documents. It must stop at the point where conjecture begins, and in this case moreover any extra work which is indispensable must be distinct from the architectural composition and must bear a contemporary stamp. The restoration in any case must be preceded and followed by an archaeological and historical study of the monument”, and Article 10, which states: “Where traditional techniques prove inadequate, the consolidation of a monument can be achieved by the use of any modern technique for conservation and construction, the efficacy of which has been shown by scientific data and proved by experience” [52]. The provisions of the Venice Charter significantly restrict the possibility of faithful reconstruction of historical buildings, especially the creation of stylised forms. In spite of this, between 1960 and 2000, many new tenement houses were erected in Gdańsk that deceptively resembled historical buildings. These buildings, although constructed with modern technologies and materials, are architectural fantasies on the theme of Gothic, Renaissance, Baroque, or Classicist bourgeois houses in Gdańsk (Figure 9).
This situation, on the one hand, arouses objections of architects and conservators, who understand the incompatibility of these actions with the provisions of the Venice Charter and who are reluctant to create so-called “historic buildings”. On the other hand, it is received with great satisfaction by the community of contemporary Gdańsk and the wider public, who perceive this type of development as fitting in perfectly with the historic landscape of downtown Gdańsk. As a result of the ongoing disputes, in 2004, on the almost 100-year anniversary of the 1902 competition described above, the city authorities organised an international architectural competition for the 21st century tenement house in Gdańsk. This competition was intended to provide specific guidelines for the implementation of contemporary housing located in the historic downtown. The competition was very popular. 94 applications were received from all over the world and 58 entries were finally submitted [46]. The jury awarded 3 prizes (two for projects from Poland and one for a work from Germany) and several distinctions. Surprisingly, all of the awarded and commended works are solutions presenting a “typical” Gdańsk bourgeois tenement house with its elongated, rectangular ground plan, body covered by a gable roof with its ridge situated perpendicularly to the street and a slender main façade situated along the street. The only difference from the historical original was the very contemporary, clearly international style solution of the front façade (Figure 10). It has to be clearly stated here that the architects taking part in the competition for the 21st century tenement house in Gdańsk decided that its basic spatial structure must derive from the historical pattern and, as it was done by artists of past epochs, only its front façade should testify to the time in which it was built.
Contrary to the expectations of its organisers, the 2004 competition did not provide clear guidelines for spatial activities related to the development of residential buildings located in the historic centre of Gdańsk. These activities are still carried out quite freely, creating solutions directly related to history (Figure 11) as well as referring to contemporary achievements, reflecting the spirit of the times in which they were created (Figure 12).
Structural solutions also vary, especially for elements such as roofs and basements. Roof slopes are still constructed as traditional, wooden rafter framing with the difference in relation to historical solutions that they are only one-tie structures. There are also lightweight steel rafters protected against fire with intumescent paint and even monolithic or prefabricated reinforced concrete slabs, laid with a slope of approx. 60° (Figure 13).
For particular roof construction solutions, i.e., wooden, steel and reinforced concrete rafter framing (all single-unit), as before, numerical models were made (Figure 13). The parameters and material properties of the different models were adopted analogously as in Chapter 3. An elastic-plastic model was considered for the steel truss model, while a plastic-degradation model of concrete was used to model the reinforced concrete slab roof. In contrast to the parameters of the medieval tenement house, the value of the longitudinal modulus of elasticity of the individual materials was not reduced. The results of the analyses are presented below in Figure 13.
On the basis of the obtained results, it was stated that modern roof constructions fulfill the conditions of ultimate limit state and serviceability. The compressive stresses of 2 MPa are analogous to the results obtained from the analysis of the medieval roof. This allows us to conclude that for small spans, typically 5 to 7 m, the construction of roofs of tenement buildings carried out in the past (as well as at present) was economically justified and optimal for the safe transfer of loads.
Underground parts of contemporary Gdańsk tenements are also elements of very diverse construction solutions. Because modern engineers have acquired the ability to base buildings below the level of groundwater, the modern tenement house in Gdańsk no longer needs (which was characteristic for centuries past) to have the ground floor elevated above the level of the ground or to have shallow cellars. Today’s engineers can deal with difficult ground and water conditions, which is why the basements of tenement buildings are usually realised as so-called “white bathtubs”, made of waterproof concrete, realised with the use of cavity walls or sheet pile walls. A “white bathtub” is the general name for a reinforced concrete structure consisting of a foundation slab and walls made of waterproof concrete. It combines the supporting and sealing function and is one of the solutions to the problem of foundations in unfavourable ground and water conditions. A characteristic feature of such a structure is that, in part or in whole, it is externally loaded by ground water. The “white bathtub” as a description and solution has been refined for several decades, mainly in Germany and Central Europe [55]. This technology is used in both single and multi-storey buildings. It is supposed to protect the object from moisture without an additional sealing layer. Basements constructed in this way are often two or three storeys high and serve modern commercial functions such as fitness centres or clubs for the inhabitants, but they are also sometimes the space of underground car parks and the location of numerous technical rooms (Figure 14).
One thing, however, remains unchanged—the architectural expression of the above-ground part of the building, designed and executed on the basis of a pattern developed in the Middle Ages. The power of this archetype is so great that so far it has not been broken by the changing styles, fashions and technical and technological progress over the centuries (Figure 15) [56].
The medieval bourgeois tenement house located in the downtown of Gdańsk, transformed in the 19th century into a tenement house and finally in the 20th and 21st century into a multi-family or even multifunctional building, as was mentioned earlier, has been and still is nowadays a background for monumental, historic religious buildings or centres of secular power as well as contemporary public utility buildings or collective housing.
However, the phenomenon of the tenement house archetype also manifests its power here, imposing its stylistics on larger objects containing a different function. Narrow, high and flat façades of medieval tenement houses in Gdańsk have become so strongly inscribed in the landscape of the historic city centre that none of the contemporary designers working in this area dare to disturb the existing order. And it doesn’t just apply to residential development.
Completed in 2012 and awarded with numerous architectural prizes, the building containing the museum function of the Maritime Culture Centre in Gdańsk is one of many examples of contemporary implementation of the gable form of a tenement house in a building with a completely different function (Figure 16). However, this does not give the impression of artificiality or alienation in this so clearly defined space. On the contrary, by fragmenting the elevation and referring to the medieval way of shaping high and narrow façade divisions topped with pitched roofs, the building perfectly fits into the historical urban landscape. It creates a harmonious whole with it, and at the same time clearly emphasises its own modern distinctiveness through the use of contemporary materials and technologies and the application of minimalist architectural details (Figure 16).

7. Conclusions

The spatial image of the European city is inextricably associated with a specific form of the urban house—the tenement house [6], the model of which originates from the Middle Ages, and despite enormous cultural, civilizational, and socio-economic changes, has survived until today. The reason for the extraordinary durability of this type of construction can be found in the enormous rationality and economic efficiency of this solution. Due to the continuity of the frontage, it allowed for very intensive use of the land. Thanks to the use of small construction spans and common for neighbouring buildings (up to today) construction walls (fire separation walls), it allows cheap and fast construction and fire safety.
Thanks to unburdening of the gable elevations, this building model also allows the gable façades to be shaped very freely, which is very important especially nowadays when the tenement house often gains additional, not only residential, functions.
The model of a bourgeois tenement house, thanks to a narrow street, paradoxically also allows for free shaping of the functional layout of the building. Inside the tract, limited by external walls, we are dealing with a “free plan”, using modernist nomenclature, which we can freely shape. Even at the present time, when two or three tracts of tenement houses are functionally connected, the structural elements located at the border of the modules (again thanks to small spans) are very small in size, not interfering with the functional solutions. The possibility of easy access of each building to the main communication routes in the tenement model is also functionally very beneficial.
Also on the basis of numerical analyses, it was shown that the construction of roofs of tenement houses performed in the past, as well as in modern times, was and still is economically justified and optimal for the safe transfer of loads at small spans of 5 to 7 m.
Aesthetic considerations, i.e., the possibility of shaping the face of the city according to the patterns accepted in a given epoch and the ease of implementing elements testifying to the aesthetic views and the social and financial status of particular investors in the front elevation, are probably also important in the consolidation of the model of the bourgeois tenement house. It seems, however, that the most important factor which made the model of the mediaeval bourgeois tenement house become an archetype for contemporary architectural and construction solutions is a timeless message contained in this model, a specific code allowing it to be unambiguously identified as a form of urban house—a place of safe living and at the same time a visible sign of the rich history of European cities, an element creating their cultural and spatial identity, a component of the living, constantly transforming urban tissue.
The tenement seems to be a proven, flexible model of an urban building, perfectly fitting into the complexity of the downtown environment and possessing the features of a basic element of the urban-architectural composition of this environment. The building, both historical and contemporary, through its scale and archetypical form, fully respects the spatial context of its neighbourhood, forcing the designers to constantly reinterpret the legacy of past generations. The tenement house appears not only as a testimony to the magnificence of European culture, but through its contemporary architectural interpretations, it gives the inhabitants of European cities an opportunity to preserve their identity, cultural continuity and specific local character. Especially in cities such as Gdańsk, where cultural continuity was broken [58] not only by the destruction of the material substance but also by the exchange of society, where customs could not be passed from generation to generation and there was no natural inheritance of tradition, signs such as the urban tenement, inscribed in the city landscape, have become carriers of local tradition, bridging the gap between generations of old and new inhabitants [59].

Author Contributions

Conceptualisation, A.T. and K.T.; methodology, A.T., J.P.; software, K.G., J.P.; validation, K.G., J.P.; formal analysis, K.G., J.P.; investigation, A.T., K.T.; resources, A.T., J.P.; data curation, A.T.; writing—original draft preparation, A.T.; writing—review and editing, J.P.; visualisation, A.T., J.P., K.G., K.T.; supervision, A.T., J.P.; project administration, A.T., J.P.; funding acquisition, A.T., J.P. All authors have read and agreed to the published version of the manuscript.

Funding

This research received no external funding.

Institutional Review Board Statement

Not applicable.

Informed Consent Statement

Not applicable.

Data Availability Statement

The data presented in this study are available on request from the corresponding author.

Conflicts of Interest

The authors declare no conflict of interest.

References

  1. Sołtysik, J.M. Termin i pojęcie kamienicy. In Kamienica w Krajach Europy Północnej; Sołtysik, J.M., Ed.; Nadbałtyckie Centrum Kultury, Wydział Architektury Plitechniki Gdańskiej: Gdańsk, Poland, 2004; pp. 17–26. [Google Scholar]
  2. Chorowska, M. Średniowieczna Kamienica Mieszczańska We Wrocławiu; Oficyna Wydawnicza Politechniki Wrocławskiej: Wrocław, Poland, 1994. [Google Scholar]
  3. Gupieniec, R.Z. Dziejów Miast Średniowiecznych. Próba Odtworzenia Stanu Zabudowy Działek Budowlanych o Miastach Wczesno- i Późnośredniowiecznych o Basenie Morza Bałtyckiego. Artyk. Stud. Maz. Stud. Humanist. 1997, 2, 5–36. [Google Scholar]
  4. Gedigi, B. (Ed.) Dom w Mieście Średniowiecznym i Nowożytnym; Wydawnictwo Uniwersytetu Wrocławskiego: Wrocław, Poland, 2004. [Google Scholar]
  5. Piekalski, J. Wczesne Domy Mieszczan w Europie Środkowej. In Geneza-Funkcja-Forma; Wydawnictwo Uniwersytetu Wrocławskiego: Wrocław, Poland, 2004. [Google Scholar]
  6. Sołtysik, J.M. (Ed.) Kamienica w Krajach Europy Północnej; Nadbałtyckie Centrum Kultury, Wydział Architektury Plitechniki Gdańskiej: Gdańsk, Poland, 2004. [Google Scholar]
  7. Szczepański, J. O zastosowaniu formy kamienicy w Gdańsku. In Kamienica w krajach Europy Północnej; Sołtysik, J.M., Ed.; Nadbałtyckie Centrum Kultury, Wydział Architektury Plitechniki Gdańskiej: Gdańsk, Poland, 2004; pp. 51–71. [Google Scholar]
  8. Tajchman, J. Propozycja Systematyki i Uporządkowania Terminologii Ciesielskich Konstrukcji Dachowych Występujących Na Terenie Polski Od XIV Do XX W; Monument: Warszawa, Poland, 2005. [Google Scholar]
  9. Caston, P. Historic Roof Trusses between 1500 and 1700 in German-Speaking Central Europe: Documentation, Analysis and Development. In Proceedings of the Second International Congress on Construction History, Exeter, Cambridge, UK, 29 March–2 April 2006; Volume 31, pp. 579–597. [Google Scholar]
  10. Lipska, D. Dekoracje fasad gdańskich kamienic przypisywane Andrzejowi Schlüterowi Młodszemu. Acta Univ. Nicolai Copernic. Zabyt. Konserw. 2011, 397, 95. [Google Scholar] [CrossRef]
  11. Urban, F. Postmodern Reconciliation: Reinventing the Old Town of Elbląg. Arch. Hist. 2020, 8, 1–25. [Google Scholar] [CrossRef]
  12. Macikowski, B. Kamienica—Podstawowy Element Formy Miasta a Skale Architektoniczne; Sołtysik, J.M., Ed.; Nadbałtyckie Centrum Kultury, Wydział Architektury Plitechniki Gdańskiej: Gdańsk, Poland, 2004; pp. 35–50. [Google Scholar]
  13. Zarębska, T. Przebudowa Gdańska w Jego Złotym Wieku; Oficyna Wydawnicza Politechniki Warszawskiej: Warszawa, Poland, 1998. [Google Scholar]
  14. Korduba, P. Z Badań Nad Dawnym Domem i Zamieszkiwaniem Mieszczańskim w Polsce. Artium Quaest. 2006, XVII, 39–73. [Google Scholar]
  15. Davidovici, I. Housing Estates in the European City, 1865–1934. 2019. Available online: https://doi.org/10.3929/ethz-b-000344279 (accessed on 25 February 2021).
  16. Purvinas, M.; Purviniene, M. Zabytkowe kamienice w miastach i miasteczkach regionu Kłajpedy (okolice nad Niemnem w Prusach Wschodnich). In Kamienica w krajach Europy Północnej; Sołtysik, J.M., Ed.; Nadbałtyckie Centrum Kultury, Wydział Architektury Plitechniki Gdańskiej: Gdańsk, Poland, 2004; pp. 136–148. [Google Scholar]
  17. Rollenhagen, O. Analiza i Opis Gdańskich Kamienic Mieszczańskich; Edycja Nieopublikowanej Dysertacji (1910–1915): Marburg-Gdańsk, Poland, 2008. [Google Scholar]
  18. Kizik, E. (Ed.) Studia i Materiały Do Dziejów Domu Gdańskiego Część 1, 2; Wydawnictwo Uniwersytetu Gdańskiego: Gdańsk, Poland, 2009. [Google Scholar]
  19. Bukal, G.; Samól, P. Authenticity of Architectural Heritage in a Rebuilt City. Comments to Vaclav Havel’s Impression after His Visit in Gdansk in 2005. In Proceedings of the IOP Conference Series: Materials Science and Engineering; (Institute of Physics) IOP Publishing: Praga, Czech Republic, 2017. [Google Scholar]
  20. Węcławowicz-Gyurkovich, E. Image of a hanseatic city in the latest polish architectural. Elbląg. In Proceedings of the International Conference Virtual City and Territory. “Back to the Sense of the City: International Monograph Book”, Krakow, Poland, 6–8 July 2016; Barcelona Centre de Política de Sòl i Valoracions: Barcelona, Spain, 2016; pp. 723–735. [Google Scholar]
  21. 13822, ISO. Basis for Design of Structures—Assessment of Existing Structures; Technical Committee: Geneva, Switzerland, 2010.
  22. ICOMOS/ISCARSAH Recommendations for the Analysis, Structural Restoration of Architectural Heritage; International Council on Monuments and Sites/International Scientific Committee on the Analysis and Restoration of Structures of Architectural Heritage: Paris, France, 2005.
  23. ICOMOS; ISCARSAH International Scientific Committee on the Analysis and Restoration of Structures of Architectural Heritage. Principles for the Analysis, Conservation and Structural Restoration of Architectural Heritag; International Council on Monuments and Sites/International Scientific Committee on the Analysis and Restoration of Structures of Architectural Heritage: Paris, France, 2003. [Google Scholar]
  24. ICOMOS. ISCARSAH Recommendations for the Analysis, Conservation and Structural Restoration of Architectural Heritage. 2014. Available online: https://ancientgeorgia.files.wordpress.com/2012/04/recommendations_icomos-principles-and-guidelines.pdf (accessed on 29 April 2019).
  25. Riggio, M.; D’Ayala, D.; Parisi, M.A.; Tardini, C. Assessment of heritage timber structures: Review of standards, guidelines and procedures. J. Cult. Herit. 2018, 31, 220–235. [Google Scholar] [CrossRef]
  26. Perria, E.; Sieder, M. Six-Steps Process of Structural Assessment of Heritage Timber Structures: Definition Based on the State of the Art. Buildings 2020, 10, 109. [Google Scholar] [CrossRef]
  27. Bassier, M.; Hadjidemetriou, G.; Vergauwen, M.; Van Roy, N.; Verstrynge, E. Implementation of Scan-to-BIM and FEM for the Documentation and Analysis of Heritage Timber Roof Structures. In Digital Heritage. Progress in Cultural Heritage: Documentation, Preservation, and Protection, Proceedings of the 6th International Conference, EuroMed 2016, Nicosia, Cyprus, 31 October–5 November 2016; Lecture Notes in Computer Science; Springer: Cham, Switzerland, 2016; Volume 10058, pp. 79–90. [Google Scholar] [CrossRef]
  28. Acampa, G.; García, J.O.; Grasso, M.; Díaz-López, C. Project Sustainability: Criteria to be introduced in BIM. MDPI Special Issue Buildings and Infrastructures Management: Models Strategies and Evaluation Tools. Valori Valutazioni 2019, 23, 119–128. [Google Scholar]
  29. Mosoarca, M.; Keller, A.I. A complex assessment methodology and procedure for historic roof structures. Int. J. Arch. Herit. 2018, 12, 578–598. [Google Scholar] [CrossRef]
  30. Lourenço, P.B. Analysis of Historical Constructions: From Thrust-Lines to Advanced Simulations. Hist. Constr. 2001, 91–116. Available online: https://citeseerx.ist.psu.edu/viewdoc/download?doi=10.1.1.123.4648&rep=rep1&type=pdf (accessed on 25 February 2021).
  31. Roca, P.; Cervera, M.; Gariup, G.; Pela’, L. Structural Analysis of Masonry Historical Constructions. Classical and Advanced Approaches. Arch. Comput. Methods Eng. 2010, 17, 299–325. [Google Scholar] [CrossRef]
  32. Kerisel, J. Old structures in relation to soil conditions. Géotechnique 1975, 25, 433–483. [Google Scholar] [CrossRef]
  33. Przewłócki, J.; Dardzińska, I.; Świniański, J.; Przewłócki, I. Review of historical buildings’ foundations. Géotechnique 2005, 55, 363–372. [Google Scholar] [CrossRef]
  34. Przewlocki, J.; Zielinska, M. Analysis of the Behavior of Foundations of Historical Buildings. Procedia Eng. 2016, 161, 362–367. [Google Scholar] [CrossRef]
  35. Prarat, M. Średniowieczne Przekształcenia Zespołu Trzech Budynków Przy Ul. Mostowej 6 w Toruniu Medieval Transfor-mations of a Complex of Three Buildings at 6 Mostowa Street in Toruń, Poland. Ochr. Zabyt. Herit. Prot. 2015, 2, 9–32. [Google Scholar]
  36. Dzieciuchowicz, J. Idea domu mieszkalnego—Wymiar przestrzenny i czasowy. Space Soc. Econ. 2018, 37–64. [Google Scholar] [CrossRef]
  37. Bartuska, T. The evolution of the townhouse and its role in creating sustainable communities. Int. J. Des. Nat. Ecodynamics 2013, 8, 300–310. [Google Scholar] [CrossRef]
  38. Tymkiewicz, J. The role of an Architect in Creating the Image of an Elderly-Friendly Sustainable Smart City. Buildings 2019, 9, 223. [Google Scholar] [CrossRef]
  39. Adamczyk, T. Kamienice mieszczańskie, dawniej i po odbudowie ze zniszczeń wojennych-wybrane zagadnienia burgher’s houses in the past and restored from the ruins after the war-selected problems. Zesz. Nauk. Politech. Śląskiej 1997, 36, 95–119. [Google Scholar]
  40. Kujawa, M.; Lubowiecka, I.; Szymczak, C. Finite element modelling of a historic church structure in the context of a masonry damage analysis. Eng. Fail. Anal. 2020, 107, 104233. [Google Scholar] [CrossRef]
  41. Kawecki, B.; Podgórski, J. 3D Abaqus simulation of bent softwood elements. Arch. Civ. Eng. 2020, 3, 1–16. [Google Scholar]
  42. Mirianon, F.; Fortino, S.; Torrati, T. A method to model wood by using ABAQUS finite element software. VTT Tech. Res. Cent. Finl. 2008, 1, 1–58. [Google Scholar]
  43. Lopez, J.; Oller, S.; Onate, E.; Lubliner, J. A homogeneous constitutive model for masonry. Int. J. Numer. Methods Eng. 1999, 46, 1651–1671. [Google Scholar] [CrossRef]
  44. Quinteros, R.D.; Oller, S.; Nallim, L.G. Nonlinear homogenization techniques to solve masonry structures problems. Compos. Struct. 2012, 94, 724–730. [Google Scholar] [CrossRef]
  45. Grębowski, K.; Rucka, M.; Wilde, K. Non-Destructive Testing of a Sport Tribune under Synchronized Crowd-Induced Exci-tation Using Vibration Analysis. Materials (Basel) 2019, 12, 2148. [Google Scholar] [CrossRef] [PubMed]
  46. Zbiorowa, P. Kamienica Gdańska XXI Wieku; Urząd Miejski w Gdańsku: Gdańsk, Poland, 2005. [Google Scholar]
  47. Maciakowska, Z. Kamienica—podstawowy element formy miasta a skale architektoniczne. In Gdański Konkurs Architektoniczny 1902 r. In Kamienica w Krajach Europy Północnej; Sołtysik, J.M., Ed.; Nadbałtyckie Centrum Kultury, Wydział Architektury Politechniki Gdańskiej: Gdańsk, Poland, 2004; pp. 327–337. [Google Scholar]
  48. Kloeppel, O. Danzig Am Scheidewege; Stilke, G., Ed.; Verlag Georg Stilke: Berlin, Gdańsk, 1928. [Google Scholar]
  49. Horst, V. O życiu Hannsa Martina Kießlinga i jego zabudowaniach we Frankfurcie nad Odrą. In Frankfurter Jahrbuch; Museum Viadrina: Frankfurt, Germany, 2012. [Google Scholar]
  50. Cieślak, E.; Biernat, C. Dzieje Gdańska; Gdańska, F.R.Z., Ed.; Wydawnictwo Morske: Gdańsk, Poland, 1994. [Google Scholar]
  51. Friedrich, J. Odbudowa Głównego Miasta w Gdańsku w Latach 1945–1960; Słowo/Obraz Terytoria: Gdańsk, Poland, 2015. [Google Scholar]
  52. ICOMOS. Available online: https://www.icomos.org/en/participer/179-articles-en-francais/ressources/charters-and-standards/157-the-venice-charter) (accessed on 14 January 2021).
  53. Available online: https://Dom.Trojmiasto.Pl/Kamienice-Przy-Sw-Ducha-I600.Html (accessed on 14 January 2021).
  54. Kuryłowicz&Associates, K. Available online: Apaka.com.pl (accessed on 14 January 2021).
  55. Świerczyński, W. KONCEPCJA, BIAŁEJ WANNY—SIKA®WHITE BOX CONCEPT Szczegółowe Opracowanie Dla Biur Projektowych. Biuro Inżynierskie Konsultant Sika Poland Sp. z o.o. 2014. Available online: https://pol.sika.com/dms/getdocument.get/ca6ef5d7-7327-360a-8831-1cf15840f0f3/Bia%C5%82a%20Wanna%20-%20Sika%20White%20Box%20Concept.pdf (accessed on 25 February 2021).
  56. Taraszkiewicz, A. Research by Design w Architekturze; Wydawnictwo Politechniki Gdańskiej: Gdańsk, Poland, 2013. [Google Scholar]
  57. InfoGdańsk. Available online: https://infogdansk.pl/osrodek-kultury-morskiej/ (accessed on 25 February 2021).
  58. Bossak-Herbst, B. The changing image of Gdansk: From regained homeland to multicultural city. In City Full of Symbols: Urban Space and Culture; Nas, P.J.M., Ed.; Leiden University Press: Leiden, The Netherlands, 2011. [Google Scholar]
  59. Jeleński, T. Practices of Built Heritage Post-Disaster Reconstruction for Resilient Cities. Buildings 2018, 8, 53. [Google Scholar] [CrossRef]
Figure 1. Uphagen House, Gdańsk, 12 Długa Street, ground floor plans, mezzanine, first and second floors [39].
Figure 1. Uphagen House, Gdańsk, 12 Długa Street, ground floor plans, mezzanine, first and second floors [39].
Buildings 11 00080 g001
Figure 2. Medieval tenement house in Gdansk: (a) numerical model and description of the structural members, (b) results of maximum stress maps in (kPa).
Figure 2. Medieval tenement house in Gdansk: (a) numerical model and description of the structural members, (b) results of maximum stress maps in (kPa).
Buildings 11 00080 g002
Figure 3. Elevations of Gdańsk tenement houses: (a) Gothic, (b) Renaissance, (c) Baroque, (d) Classicist, (e) Eclectic [46].
Figure 3. Elevations of Gdańsk tenement houses: (a) Gothic, (b) Renaissance, (c) Baroque, (d) Classicist, (e) Eclectic [46].
Buildings 11 00080 g003
Figure 4. Tenement houses awarded in a competition for the facdes of buildings in Gdańsk, 1902 [46].
Figure 4. Tenement houses awarded in a competition for the facdes of buildings in Gdańsk, 1902 [46].
Buildings 11 00080 g004
Figure 5. Frontage of Długa Street in Gdańsk designed by Martin Kiessling [48].
Figure 5. Frontage of Długa Street in Gdańsk designed by Martin Kiessling [48].
Buildings 11 00080 g005
Figure 6. Długa Street in Gdańsk, 1935. Source: Historical Museum of the City of Gdańsk.
Figure 6. Długa Street in Gdańsk, 1935. Source: Historical Museum of the City of Gdańsk.
Buildings 11 00080 g006
Figure 7. Photograph of damage in Gdańsk after the Second World War [50].
Figure 7. Photograph of damage in Gdańsk after the Second World War [50].
Buildings 11 00080 g007
Figure 8. Eastern frontage of Grobla I Street in Gdańsk: (a) modernist design from 1957 [51], (b) realisation in the form of tenement houses 1958. Source: compiled by A. Taraszkiewicz.
Figure 8. Eastern frontage of Grobla I Street in Gdańsk: (a) modernist design from 1957 [51], (b) realisation in the form of tenement houses 1958. Source: compiled by A. Taraszkiewicz.
Buildings 11 00080 g008
Figure 9. Tenement houses on Stągiewna Street in Gdańsk. Source: A. Taraszkiewicz.
Figure 9. Tenement houses on Stągiewna Street in Gdańsk. Source: A. Taraszkiewicz.
Buildings 11 00080 g009
Figure 10. Awarded project of a tenement house in Gdańsk of the 21st century. Authors: B. Domsta, J. Raniszewski, K. Lipińska, M. Jaśkowiec [46].
Figure 10. Awarded project of a tenement house in Gdańsk of the 21st century. Authors: B. Domsta, J. Raniszewski, K. Lipińska, M. Jaśkowiec [46].
Buildings 11 00080 g010
Figure 11. Tenement houses in Św. The Church of the Holy Spirit in Gdańsk; designed by P. W. Kowalski [53].
Figure 11. Tenement houses in Św. The Church of the Holy Spirit in Gdańsk; designed by P. W. Kowalski [53].
Buildings 11 00080 g011
Figure 12. Tenement houses at Targ Rybny in Gdańsk; designed by Kurylowicz &Associates [54].
Figure 12. Tenement houses at Targ Rybny in Gdańsk; designed by Kurylowicz &Associates [54].
Buildings 11 00080 g012
Figure 13. Numerical model of roof structures of modern tenement houses in Gdansk: (a) wooden rafter framing of one piece, (b) steel rafter framing, (c) roof made of reinforced concrete slabs; stresses in (kPa).
Figure 13. Numerical model of roof structures of modern tenement houses in Gdansk: (a) wooden rafter framing of one piece, (b) steel rafter framing, (c) roof made of reinforced concrete slabs; stresses in (kPa).
Buildings 11 00080 g013
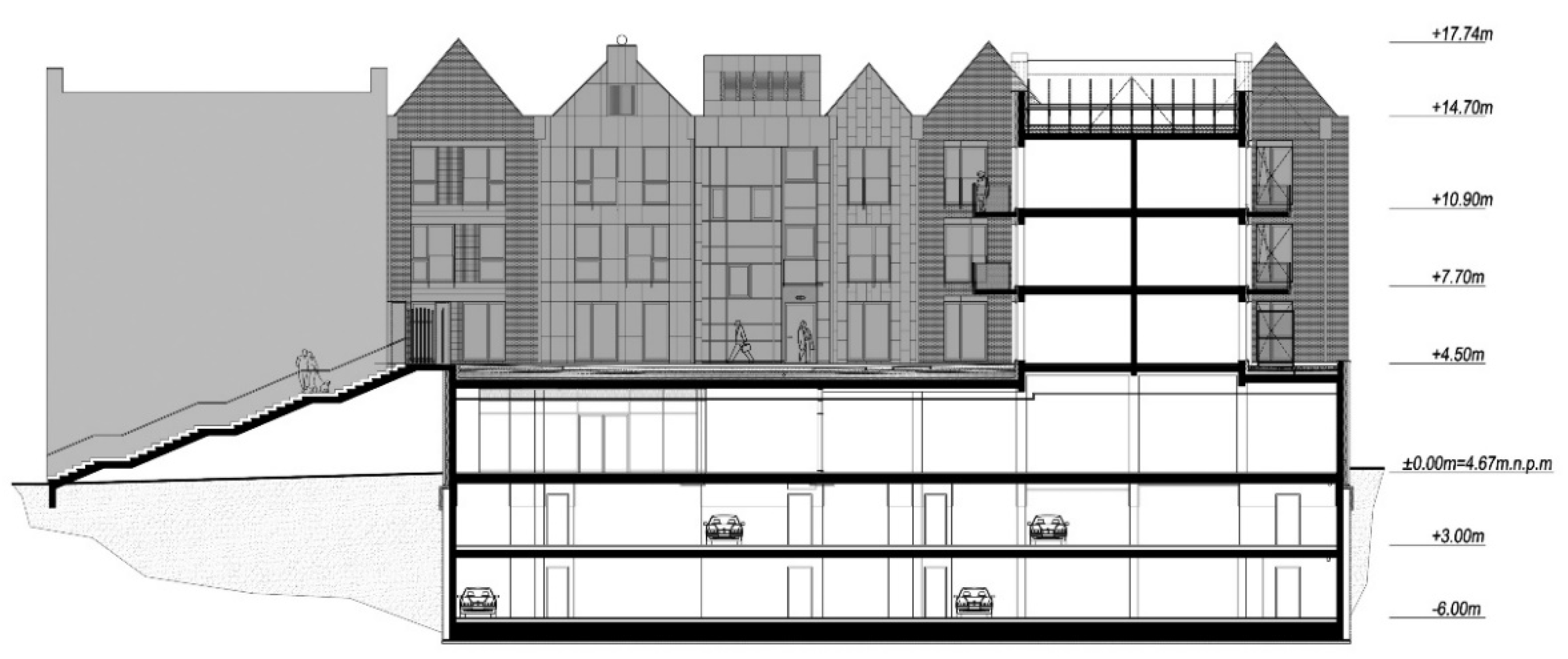
Figure 14. Cross-section through the quarter of buildings on Szeroka Street in Gdańsk; designed by A. Taraszkiewicz. Source: A. Taraszkiewicz.
Figure 14. Cross-section through the quarter of buildings on Szeroka Street in Gdańsk; designed by A. Taraszkiewicz. Source: A. Taraszkiewicz.
Buildings 11 00080 g014
Figure 15. Tenement houses on Szeroka Street in Gdańsk; designed by A. Taraszkiewicz. Source: A. Taraszkiewicz.
Figure 15. Tenement houses on Szeroka Street in Gdańsk; designed by A. Taraszkiewicz. Source: A. Taraszkiewicz.
Buildings 11 00080 g015
Figure 16. Maritime Culture Centre in Gdańsk; designed by Mirosław Frąszczak. Source: InfoGdańsk [57].
Figure 16. Maritime Culture Centre in Gdańsk; designed by Mirosław Frąszczak. Source: InfoGdańsk [57].
Buildings 11 00080 g016
Publisher’s Note: MDPI stays neutral with regard to jurisdictional claims in published maps and institutional affiliations.

Share and Cite

MDPI and ACS Style

Taraszkiewicz, A.; Grębowski, K.; Taraszkiewicz, K.; Przewłócki, J. Medieval Bourgeois Tenement Houses as an Archetype for Contemporary Architectural and Construction Solutions: The Example of Historic Downtown Gdańsk. Buildings 2021, 11, 80. https://doi.org/10.3390/buildings11030080

AMA Style

Taraszkiewicz A, Grębowski K, Taraszkiewicz K, Przewłócki J. Medieval Bourgeois Tenement Houses as an Archetype for Contemporary Architectural and Construction Solutions: The Example of Historic Downtown Gdańsk. Buildings. 2021; 11(3):80. https://doi.org/10.3390/buildings11030080

Chicago/Turabian Style

Taraszkiewicz, Antoni, Karol Grębowski, Karolina Taraszkiewicz, and Jarosław Przewłócki. 2021. "Medieval Bourgeois Tenement Houses as an Archetype for Contemporary Architectural and Construction Solutions: The Example of Historic Downtown Gdańsk" Buildings 11, no. 3: 80. https://doi.org/10.3390/buildings11030080

APA Style

Taraszkiewicz, A., Grębowski, K., Taraszkiewicz, K., & Przewłócki, J. (2021). Medieval Bourgeois Tenement Houses as an Archetype for Contemporary Architectural and Construction Solutions: The Example of Historic Downtown Gdańsk. Buildings, 11(3), 80. https://doi.org/10.3390/buildings11030080

Note that from the first issue of 2016, this journal uses article numbers instead of page numbers. See further details here.

Article Metrics

Back to TopTop