The Possibility of Providing Acoustic Comfort in Hotel Rooms as an Element of Sustainable Development
Abstract
1. Introduction
- (a)
- Low-frequency fan noise—fans generally produce sound in the 16 Hz to 250 Hz octave band range.
- (b)
- Low to mid-frequency variable-air-volume (VAV) box noise—usually in the 125 Hz to 500 Hz octave band range.
- (c)
- Mid-frequency airflow or turbulence-generated noise—velocity noise from airflow and turbulence in a duct ranges from 31.5 Hz to 1 kHz.
- (d)
- High-frequency damper and diffuser noises—usually in the 1 kHz to 4 kHz band range.
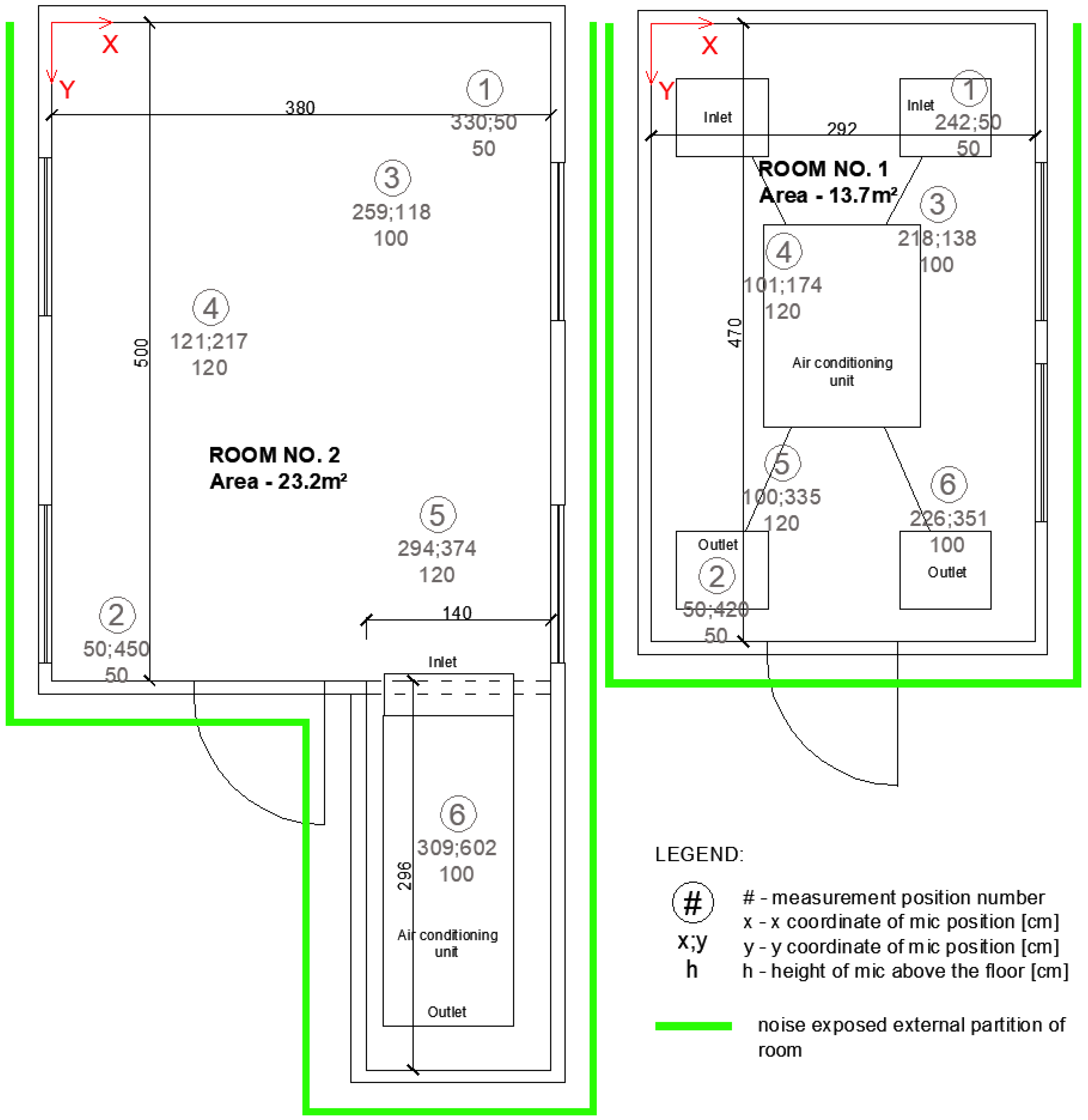
2. Measurement Site and Methodology
- -
- The first two positions were chosen in the corner of the room at 0.5 m above the floor and 0.5 m from the nearest wall. The corner with the highest noise level C was selected;
- -
- The other four measurement positions were selected in the scattered field. The distance between the measuring points was at least 1.5 m for large room 2. Due to the small size of room 1, this distance was reduced to 0.75 m. Each of these measuring points was located at least 0.75 m from any wall and at least 0.5 m above the floor, but not higher than 1.5 m.
- -
- The first two positions were chosen in the corner of the room at 0.5 m above the floor and 0.5 m from the nearest wall. The corner with the highest noise level C was selected;
- -
- The other four measurement positions were selected in the scattered field. The distance between the measuring points must be at least 1.5 m. Each of these measuring points was located at least 0.75 m from the walls and at least 0.5 m above the floor, but not higher than 1.5 m.
3. Measurement Results
3.1. Evaluation of Average Levels
3.2. Evaluation Level Difference Using Statistical Levels with 5% and 95% Probability of Exceedance
4. Analysis of the Possibilities of Noise Protection in the Mock-Up Room
4.1. Reliability of Measured Levels from HVAC Equipment
4.2. Noise Level Measurements in Mock-Ups from HVAC and Laboratory Measurements of Equipment Sound Power Level
4.3. Mock-Up Partition Preliminary Analysis
- (GP3) triple-layer 12.5 mm board with steel studs (CW50 0.55 mm, 600 mm spacing), 60 kg/m3 Rockwool;
- (GP5) double-layer 12.5 mm board with steel studs (CW100 0.55 mm, 600 mm spacing), 60 kg/m3 Rockwool;
- (GP6) triple-layer 12.5 mm board with steel studs (CW100 0.55 mm, 600 mm spacing), 60 kg/m3 Rockwool.
- (W1) 4/16/4;
- (D10) solid MDF, 42 mm;
- (GP2) double-layer 12.5 mm board with steel studs (CW50 0.55 mm, 600 mm spacing), 60 kg/m3 Rockwool.
5. Result Discussion
6. Conclusions
6.1. General Conclusions
- The measured noise levels prevent the reliable measurement of the noise level from HVAC equipment.
- Due to strict requirements regarding the permissible noise level from technical devices in the building, these devices should be taken to be relatively quiet (a level below 25 dBA). This means that in a hotel mock-up room located in an industrial hall, a relatively low noise level should be ensured.
- To reliably carry out such measurements, they must be performed outside the working hours, without the presence of industrial equipment and site employees.
- Evaluation of level difference can be carried out using the statistical level difference of L5% or an equivalent sound level. The reliability of the level difference estimation may be limited only in lower frequencies below the 125 Hz band.
- Prediction of the internal noise level with known external noise helps to decide the external partitions to be used to provide the desired level of background noise.
- The method is found to be on the safe side of estimation (overestimation) of the internal noise level considering high noise levels in the industrial hall, which are most harmful to measurement results.
- There is a noticeable underestimation of the internal noise level considering lower levels of external noise. Using this method in a quieter environment, it is advised to apply 3 dB safety margins.
- Without using the laboratory data of partition elements, it is possible to estimate the noise penetrating the mock-up room from its surroundings.
6.2. Limitations
- The noise outside the mock-up room must be low enough to provide reliable measurements inside the mock-up room. This limitation can be mitigated by providing massive and well sound-isolating partitions such as concrete, but this will increase the cost excessively compared with simple double-leaf room partitions.
- The measurements can be made generally only for HVAC devices inside the room. It must be emphasized that not only noise from the “final” room HVAC device may be present inside the room, but also noise from other HVAC devices such as roof ventilation units located outside; this must be considered during the mock-up test. Noise from these units can propagate through ducts and end up inside the “final” hotel room.
- The availability of space for building a mock-up room: depending on the size of the mock-up room, it might not be possible to find a valid location for such measurements.
- The assumed noise spectrum inside the mock-up room is dictated by A-weighting. If any other weighting is needed (e.g., C or Z (linear)), the analysis must take it into account.
- The theoretical approach to the calculation sound reduction index is valid for perfect conditions. This is the cause of errors in the presented method. Providing perfect tight mounting of doors or windows is impossible, and thus, safety margins are proposed to be used.
- The reverberation time is crucial for the estimation of the internal sound level. This value takes into account any possible wanted or unwanted sound wave reflections inside the room. Without this value known, it can be assumed, but will result in a higher error in the presented method.
6.3. Further Studies
Author Contributions
Funding
Institutional Review Board Statement
Informed Consent Statement
Data Availability Statement
Conflicts of Interest
Appendix A
| Partition Element | Sound Reduction Index R (dB) | |||||||||||||||||||||
|---|---|---|---|---|---|---|---|---|---|---|---|---|---|---|---|---|---|---|---|---|---|---|
| 1/3 Octave Frequency Band (Hz) | Weighted Sound Reduction Index Rw | |||||||||||||||||||||
| 50 | 63 | 80 | 100 | 125 | 160 | 200 | 250 | 315 | 400 | 500 | 630 | 800 | 1k | 1.25k | 1.6k | 2k | 2.5k | 3.15k | 4k | 5k | ||
| (W1) | 22 | 22 | 23 | 23 | 23 | 22 | 19 | 19 | 25 | 30 | 33 | 37 | 39 | 41 | 43 | 45 | 46 | 46 | 41 | 36 | 40 | 35 |
| (W2) | 23 | 24 | 25 | 26 | 26 | 24 | 19 | 22 | 28 | 32 | 36 | 38 | 40 | 42 | 43 | 43 | 41 | 34 | 36 | 40 | 44 | 36 |
| (W3) | 27 | 27 | 27 | 27 | 27 | 24 | 25 | 29 | 33 | 37 | 40 | 42 | 44 | 46 | 47 | 46 | 50 | 45 | 48 | 52 | 56 | 42 |
| (W4) | 30 | 30 | 30 | 29 | 25 | 27 | 31 | 35 | 38 | 41 | 43 | 44 | 45 | 45 | 46 | 41 | 45 | 49 | 53 | 57 | 61 | 44 |
| (W5) | 30 | 28 | 27 | 26 | 25 | 22 | 14 | 18 | 24 | 26 | 32 | 38 | 42 | 45 | 46 | 47 | 45 | 45 | 40 | 53 | 55 | 33 |
| (W6) | 32 | 29 | 28 | 27 | 26 | 23 | 22 | 27 | 32 | 30 | 35 | 41 | 45 | 47 | 48 | 49 | 47 | 50 | 49 | 56 | 58 | 39 |
| (W7) | 38 | 34 | 31 | 29 | 31 | 34 | 37 | 39 | 40 | 42 | 44 | 44 | 43 | 45 | 53 | 55 | 56 | 58 | 60 | 61 | 63 | 47 |
| (D1) | 18 | 17 | 17 | 17 | 17 | 17 | 18 | 16 | 17 | 21 | 25 | 29 | 32 | 35 | 38 | 40 | 47 | 48 | 48 | 45 | 40 | 29 |
| (D2) | 18 | 17 | 17 | 17 | 17 | 18 | 17 | 17 | 21 | 25 | 29 | 33 | 37 | 41 | 44 | 47 | 51 | 52 | 52 | 51 | 49 | 32 |
| (D3) | 17 | 16 | 17 | 17 | 17 | 18 | 18 | 14 | 16 | 19 | 24 | 27 | 31 | 34 | 37 | 39 | 44 | 46 | 46 | 44 | 40 | 28 |
| (D4) | 17 | 16 | 16 | 17 | 17 | 18 | 16 | 16 | 19 | 24 | 28 | 32 | 35 | 39 | 41 | 44 | 46 | 47 | 48 | 47 | 45 | 31 |
| (D5) | 7 | 8 | 9 | 10 | 10 | 11 | 12 | 12 | 13 | 15 | 16 | 17 | 18 | 19 | 19 | 19 | 18 | 15 | 10 | 10 | 15 | 17 |
| (D6) | 7 | 8 | 9 | 10 | 10 | 11 | 12 | 12 | 14 | 15 | 17 | 17 | 18 | 19 | 19 | 19 | 18 | 15 | 10 | 10 | 15 | 17 |
| (D7) | 7 | 8 | 9 | 10 | 11 | 11 | 12 | 11 | 12 | 14 | 16 | 17 | 18 | 19 | 19 | 19 | 18 | 15 | 10 | 10 | 15 | 17 |
| (D8) | 7 | 8 | 9 | 10 | 11 | 11 | 11 | 12 | 14 | 15 | 16 | 17 | 18 | 19 | 19 | 19 | 18 | 15 | 10 | 10 | 15 | 17 |
| (D9) | 25 | 23 | 23 | 24 | 25 | 26 | 27 | 28 | 29 | 30 | 31 | 31 | 30 | 27 | 30 | 33 | 36 | 39 | 42 | 45 | 48 | 32 |
| (D10) | 28 | 26 | 26 | 27 | 27 | 29 | 30 | 31 | 32 | 32 | 32 | 29 | 28 | 31 | 34 | 37 | 40 | 43 | 46 | 49 | 51 | 34 |
| (D11) | 8 | 9 | 9 | 10 | 11 | 12 | 13 | 14 | 15 | 16 | 17 | 17 | 18 | 18 | 19 | 19 | 18 | 15 | 10 | 10 | 15 | 17 |
| (D12) | 8 | 9 | 10 | 10 | 11 | 12 | 13 | 14 | 15 | 16 | 17 | 17 | 18 | 18 | 19 | 19 | 18 | 15 | 10 | 10 | 15 | 17 |
| (D13) | 21 | 20 | 19 | 19 | 19 | 20 | 18 | 22 | 26 | 31 | 35 | 40 | 44 | 48 | 52 | 56 | 64 | 65 | 66 | 66 | 62 | 36 |
| (D14) | 21 | 19 | 19 | 19 | 19 | 17 | 19 | 24 | 29 | 34 | 38 | 43 | 47 | 51 | 55 | 62 | 64 | 65 | 66 | 66 | 63 | 37 |
| (GP1) | 16 | 16 | 16 | 17 | 14 | 19 | 25 | 30 | 35 | 40 | 44 | 48 | 52 | 55 | 58 | 60 | 60 | 59 | 48 | 50 | 54 | 40 |
| (GP2) | 20 | 19 | 16 | 18 | 25 | 32 | 38 | 43 | 47 | 51 | 55 | 58 | 61 | 63 | 65 | 66 | 66 | 65 | 55 | 56 | 60 | 50 |
| (GP3) | 22 | 19 | 19 | 26 | 34 | 40 | 45 | 50 | 54 | 57 | 60 | 62 | 65 | 66 | 68 | 69 | 70 | 69 | 59 | 59 | 63 | 57 |
| (GP4) | 14 | 14 | 12 | 14 | 20 | 27 | 33 | 38 | 43 | 47 | 50 | 53 | 55 | 57 | 59 | 60 | 60 | 59 | 50 | 50 | 54 | 45 |
| (GP5) | 17 | 13 | 19 | 27 | 34 | 40 | 45 | 49 | 52 | 55 | 57 | 60 | 61 | 63 | 65 | 66 | 66 | 65 | 56 | 56 | 60 | 57 |
| (GP6) | 14 | 19 | 28 | 36 | 42 | 47 | 51 | 54 | 57 | 59 | 61 | 63 | 65 | 67 | 68 | 69 | 70 | 69 | 60 | 59 | 63 | 62 |
References
- Wang, R.; Lu, S.; Feng, W.; Zhai, X.; Li, X. Sustainable framework for buildings in cold regions of China considering life cycle cost and environmental impact as well as thermal comfort. Energy Rep. 2020, 6, 3036–3050. [Google Scholar] [CrossRef]
- Liu, P.; Zhang, Q.; Zhong, K.; Wei, Y.; Wang, Q. Climate Adaptation and Indoor Comfort Improvement Strategies for Buildings in High-Cold Regions: Empirical Study from Ganzi Region, China. Sustainability 2022, 14, 576. [Google Scholar] [CrossRef]
- Pirouz, B.; Palermo, S.; Naghib, S.; Mazzeo, D.; Turco, M.; Piro, P. The Role of HVAC Design and Windows on the Indoor Airflow Pattern and ach. Sustainability 2021, 13, 7931. [Google Scholar] [CrossRef]
- Nering, K.; Kowalska-Koczwara, A.; Stypuła, K. Annoyance Based Vibro-Acoustic Comfort Evaluation of as Summation of Stimuli Annoyance in the Context of Human Exposure to Noise and Vibration in Buildings. Sustainability 2020, 12, 9876. [Google Scholar] [CrossRef]
- Wang, N.; Wang, J. A spectrally-resolved method for evaluating the solar effect on user thermal comfort in the near-window zone. Build. Environ. 2021, 202, 108044. [Google Scholar] [CrossRef]
- AlQahtani, A.S.; Alshammari, A.N.; Khalifah, E.M.; Alnabri, A.A.; Aldarwish, H.A.; Alshammari, K.F.; Alshammari, H.F.; Almudayni, A.M. Awareness about the relation of noise induced hearing loss and use of headphones at Hail region. Ann. Med. Surg. 2021, 73, 103113. [Google Scholar] [CrossRef]
- Alkhalawi, E.; Orban, E.; Schramm, S.; Katsarava, Z.; Hoffmann, B.; Moebus, S. Residential Traffic Noise Exposure and Headaches: Results from the Population-based Heinz Nixdorf Recall Study. Noise Health 2021, 23, 1–10. [Google Scholar] [CrossRef]
- Vienneau, D.; Schindler, C.; Perez, L.; Probst-Hensch, N.; Röösli, M. The relationship between transportation noise exposure and ischemic heart disease: A meta-analysis. Environ. Res. 2015, 138, 372–380. [Google Scholar] [CrossRef]
- Stansfeld, S.; Clark, C. Health Effects of Noise Exposure in Children. Curr. Environ. Health Rep. 2015, 2, 171–178. [Google Scholar] [CrossRef]
- Esmaielpour, M.R.M.; Zakerian, A.S.; Abbasi, M.; Balochkhaneh, F.; Kordmiri, S.H.M. Investigating the effect of noise exposure on mental disorders and the work ability index among industrial workers. Noise Vib. Worldw. 2022, 53, 3–11. [Google Scholar] [CrossRef]
- Sygna, K.; Aasvang, G.M.; Aamodt, G.; Oftedal, B.; Krog, N.H. Road traffic noise, sleep and mental health. Environ. Res. 2014, 131, 17–24. [Google Scholar] [CrossRef]
- Tong, H.; Kang, J. Relationships between noise complaints and socio-economic factors in England. Sustain. Cities Soc. 2020, 65, 102573. [Google Scholar] [CrossRef]
- Bass, H.E.; Sutherland, L.C. Predicting outdoor noise propagation. J. Acoust. Soc. Am. 1992, 92, 2452. [Google Scholar] [CrossRef]
- Segal, A. Outdoor-indoor noise reduction and outdoor noise. J. Acoust. Soc. Am. 1990, 88, S159. [Google Scholar] [CrossRef]
- Oliver, P. Noise—A health problem. R. Inst. Public Health Hyg. J. 1961, 24, 154–161. [Google Scholar]
- Stansfeld, S. Noise as a public health problem. Health Environ. Dig. 1994, 8, 25–27. [Google Scholar]
- Talbott, E.; Thompson, S. Health effects from environmental noise exposure. In Introduction to Environmental Epidemiology; Lewis Publishers: New York, NY, USA, 1995; pp. 209–219. [Google Scholar]
- Scrosati, C.; Scamoni, F.; Depalma, M.; Ghellere, M. Facade sound insulation as protection to outdoor noise. Proc. Int. Congr. Acoust. 2019, 2019, 3490–3497. [Google Scholar] [CrossRef]
- Torres, Y.D.; Herrera, H.H.; Plasencia, M.A.A.G.; Novo, E.P.; Cabrera, L.P.; Haeseldonckx, D.; Silva-Ortega, J.I. Heating ventilation and air-conditioned configurations for hotelsan approach review for the design and exploitation. Energy Rep. 2020, 6 (Suppl. S6), 487–497. [Google Scholar] [CrossRef]
- Almeneessier, A.S.; BaHammam, A.S.; Alkahtani, M.N.; Alshathri, A.N.; A Aldraiweesh, N.; Aljurf, L.M.; Aldaej, L.; Olaish, A.H.; Nashwan, S.Z. The effect of air conditioner sound on sleep latency, duration, and efficiency in young adults. Ann. Thorac. Med. 2019, 14, 69–74. [Google Scholar] [CrossRef]
- IEC 61672-1; Electroacoustics—Sound Level Meters—Part 1: Specifications. International Electrotechnical Commission: Geneva, Switzerland, 2013.
- Brocolini, L.; Parizet, E.; Chevret, P. Effect of masking noise on cognitive performance and annoyance in open plan offices. Appl. Acoust. 2016, 114, 44–55. [Google Scholar] [CrossRef]
- Nering, K.; Ziarko, B.; Stypuła, K. Analysis of acoustic insulation in traditional wooden architecture hotel building. J. Meas. Eng. 2019, 7, 34–39. [Google Scholar] [CrossRef]
- ISO 16032; Acoustics—Measurement of Sound Pressure Level from Service Equipment in Buildings—Engineering Method. International Organization for Standardization: Geneva, Switzerland, 2004.
- IEC 60942; Electroacoustics—Sound Calibrators. International Electrotechnical Commission: Geneva, Switzerland, 2017.
- Ren, L.; Yang, H.; Liu, L.; Zhai, C.; Song, Y. Sound Insulation of Corrugated-Core Sandwich Panels: Modeling, Optimization and Experiment. Materials 2021, 14, 7785. [Google Scholar] [CrossRef] [PubMed]
- PN-B-02151-2:2018-01; Building Acoustics—Protection Against Noise in Buildings—Part 2: Requirements for Acceptable Indoor Sound Levels. Polish Committee for Standardization: Warsaw, Poland, 2018.
- ISO 3745; Acoustics—Determination of Sound Power Levels and Sound Energy Levels of Noise Sources Using Sound Pressure—Precision Methods for Anechoic Rooms and Hemi-Anechoic Rooms. International Organization for Standardization: Geneva, Switzerland, 2012.
- Tageman, K. Modelling of Sound Transmission through Multilayered Elements Using the Transfer Matrix Method. Master’s Thesis, Chalmers University of Technology, Gothenburg, Sweden, 2013. [Google Scholar]
- Vigran, T. Predicting the sound reduction index of finite size specimen by a simplified spatial windowing technique. J. Sound Vib. 2009, 325, 507–512. [Google Scholar] [CrossRef]
- Kang, H.-J.; Ih, J.-G.; Kim, J.-S.; Kim, H.-S. Prediction of sound transmission loss through multilayered panels by using Gaussian distribution of directional incident energy. J. Acoust. Soc. Am. 2000, 107, 1413–1420. [Google Scholar] [CrossRef]
- Mechel, F. The acoustic sealing of holes and slits in walls. J. Sound Vib. 1986, 111, 297–336. [Google Scholar] [CrossRef]
- Canadian Building Digest. NRC Publications Archive Archives des Publications du CNRC. In CBD-240. Sound Transmission through Windows; Division of Building Research, National Research Council Canada: Ottawa, ON, Canada, 1988. [Google Scholar]
- PN-B-02151-3:2015-10; Building Acoustics—Protection Against Noise in Buildings—Part 3: Requirements for Sound Insulation of Partitions in Buildings and Building Elements. Polish Committee for Standardization: Warsaw, Poland, 2015.
- ISO 3382-2:2008; Acoustics—Measurement of Room Acoustic Parameters—Part 2: Reverberation Time in Ordinary Rooms. International Organization for Standardization: Geneva, Switzerland, 2008.
- Locher, B.; Piquerez, A.; Habermacher, M.; Ragettli, M.; Röösli, M.; Brink, M.; Cajochen, C.; Vienneau, D.; Foraster, M.; Müller, U.; et al. Differences between Outdoor and Indoor Sound Levels for Open, Tilted, and Closed Windows. Int. J. Environ. Res. Public Health 2018, 15, 149. [Google Scholar] [CrossRef]
- Ismail, M.R. Acoustics Hotel Design criteria and challenges in EGYPT. In Proceedings of the FISC, Cairo, Egypt, 23–25 November 2010. [Google Scholar]



















| Windows (120 × 140 cm) | Doors (200 × 90 cm) | Walls—Gypsum Plasterboard |
|---|---|---|
| (W1) 4/16/4 | (D1) frame with an air gap (30 mm) and MDF paneling on both sides (6 mm) | (GP1) single-layer 12.5 mm board with steel studs (CW50 0.55 mm, 600 mm spacing), 60 kg/m3 Rockwool |
| (W2) 6/12/6 | (D2) frame with 60 kg/m3 Rockwool (30 mm) and MDF paneling on both sides (6 mm) | (GP2) double-layer 12.5 mm board with steel studs (CW50 0.55 mm, 600 mm spacing), 60 kg/m3 Rockwool |
| (W3) 44.1/16/6 | (D3) frame with an air gap (30 mm), timber studs (300 mm spacing, 45 mm width), and MDF paneling on both sides (6 mm) | (GP3) triple-layer 12.5 mm board with steel studs (CW50 0.55 mm, 600 mm spacing), 60 kg/m3 Rockwool |
| (W4) 10/16/66.2 | (D4) frame with 60 kg/m3 Rockwool (30 mm), timber studs (300 mm spacing, 45 mm width), and MDF paneling on both sides (6 mm) | (GP4) single-layer 12.5 mm board with steel studs (CW100 0.55 mm, 600 mm spacing), 60 kg/m3 Rockwool |
| (W5) 4/12/4/12/4 | (D5) D1 with air leakage | (GP5) double-layer 12.5 mm board with steel studs (CW100 0.55 mm, 600 mm spacing), 60 kg/m3 Rockwool |
| (W6) 4/12/4/12/33.1 | (D6) D2 with air leakage | (GP6) triple-layer 12.5 mm board with steel studs (CW100 0.55 mm, 600 mm spacing), 60 kg/m3 Rockwool |
| (W7) 68.4/15/4/12/88.2 | (D7) D3 with air leakage | |
| (D8) D4 with air leakage | ||
| (D9) solid MDF (30 mm) | ||
| (D10) solid MDF (42 mm) | ||
| (D11) D9 with air leakage | ||
| (D12) D10 with air leakage | ||
| (D13) aluminum frame with 60 kg/m3 Rockwool (30 mm) and aluminum paneling on both sides (2 mm) | ||
| (D14) aluminum frame with 60 kg/m3 Rockwool (40 mm) and aluminum paneling on both sides (2 mm) |
| ID Wall | ID Window | ID Door |
|---|---|---|
| GP3 | W7 | D14 |
| GP5 | ||
| GP6 |
| Location and Type of Level | Corresponding Level for Best Combination (dBA) | Corresponding Level for Economic Combination (dBA) | Measured Levels in Mock-Ups (dBA) | Calculated Level for Combination Corresponding to Existing State (W1, D10, GP2) (dBA) | Method Error (dB) |
|---|---|---|---|---|---|
| Large room HL5% (67.7 dBA) | 39 | 56 | 41.7 | 48 | 6.3 |
| Small room HL5% (67.7 dBA) | 38 | 54 | 41.7 | 43 | 1.3 |
| Large room HL95% (56.6 dBA) | 24 | 42 | 30.1 | 32 | 1.9 |
| Small room HL95% (56.6 dBA) | 23 | 43 | 30.4 | 28 | −2.4 |
| Large room HLAVG (62.3 dBA) | 35 | 50 | 37.3 | 42 | 4.7 |
| Small room HLAVG (62.3 dBA) | 32 | 49 | 35.7 | 37 | 1.3 |
| Large room LL5% (52.8 dBA) | 25 | 46 | 31.5 | 33 | 1.5 |
| Small room LL5% (52.8 dBA) | 23 | 47 | 33.1 | 30 | −3.1 |
| Large room LL95% (40.3 dBA) | <14 | 26 | 21.5 | 21 | −0.5 |
| Small room LL95% (40.3 dBA) | <14 | 24 | 20.7 | 18 | −2.7 |
| Large room LLAVG (46.5 dBA) | 20 | 37 | 26.8 | 28 | 1.2 |
| Small room LLAVG (46.5 dBA) | 19 | 38 | 27.4 | 25 | −2.4 |
Publisher’s Note: MDPI stays neutral with regard to jurisdictional claims in published maps and institutional affiliations. |
© 2022 by the authors. Licensee MDPI, Basel, Switzerland. This article is an open access article distributed under the terms and conditions of the Creative Commons Attribution (CC BY) license (https://creativecommons.org/licenses/by/4.0/).
Share and Cite
Nering, K.; Kowalska-Koczwara, A.; Shymanska, A.; Pawluś, M. The Possibility of Providing Acoustic Comfort in Hotel Rooms as an Element of Sustainable Development. Sustainability 2022, 14, 13692. https://doi.org/10.3390/su142013692
Nering K, Kowalska-Koczwara A, Shymanska A, Pawluś M. The Possibility of Providing Acoustic Comfort in Hotel Rooms as an Element of Sustainable Development. Sustainability. 2022; 14(20):13692. https://doi.org/10.3390/su142013692
Chicago/Turabian StyleNering, Krzysztof, Alicja Kowalska-Koczwara, Anna Shymanska, and Michał Pawluś. 2022. "The Possibility of Providing Acoustic Comfort in Hotel Rooms as an Element of Sustainable Development" Sustainability 14, no. 20: 13692. https://doi.org/10.3390/su142013692
APA StyleNering, K., Kowalska-Koczwara, A., Shymanska, A., & Pawluś, M. (2022). The Possibility of Providing Acoustic Comfort in Hotel Rooms as an Element of Sustainable Development. Sustainability, 14(20), 13692. https://doi.org/10.3390/su142013692

