Investigating the Influence of Holes as Crack Arrestors in Simulating Crack Growth Behavior Using Finite Element Method
Abstract
1. Introduction
2. Materials and Methods
- Separating which has the capability ensures that the mesh accurately captures the behavior of cracks and contact interfaces. It allows for the representation of gaps and separation occurring at crack interfaces or contact regions. This enables the more realistic modeling of crack propagation and contact behavior.
- Morphing which is a key aspect of SMART technology that enables the mesh to adapt and deform to changes in crack geometry. As cracks propagate or deformations occur, the mesh is dynamically adjusted to maintain accurate representation. This ensures that the mesh aligns with the evolving crack shape throughout the simulation.
- Adaptive: The adaptive component of SMART technology focuses on refining the mesh in areas of interest, such as near crack tips or regions experiencing high stress gradients. By adapting the mesh locally, it ensures that the critical details of crack growth are accurately captured while optimizing computational efficiency. Adaptive meshing helps to maintain an optimal balance between accuracy and computational cost.
- Remeshing, which is the process of regenerating the mesh based on predefined criteria or significant changes in crack geometry or deformation. When cracks propagate, large deformations occur, or other significant changes take place, and the mesh is updated to accurately represent the evolving crack geometry. Remeshing ensures that the simulation continues with an appropriate mesh that captures the changing crack behavior.
3. Results and Discussions
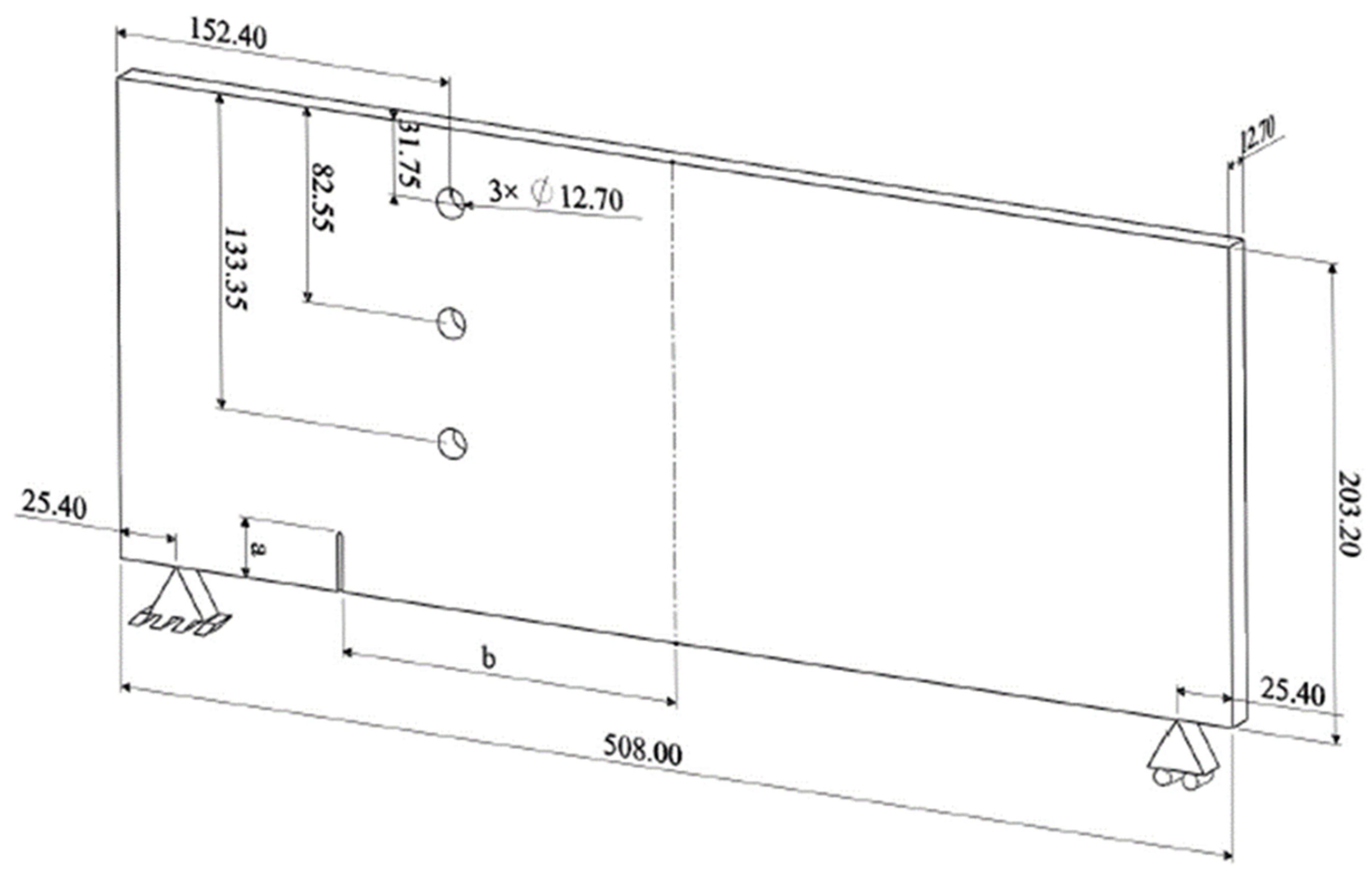
3.1. Three-Point Bending of a Beam with Three Circular Holes
3.1.1. Case I
3.1.2. Case II
3.1.3. Case III
3.1.4. Case IV
4. Conclusions
Author Contributions
Funding
Institutional Review Board Statement
Informed Consent Statement
Data Availability Statement
Conflicts of Interest
References
- Grandt, A.F., Jr. Fundamentals of Structural Integrity: Damage Tolerant Design and Nondestructive Evaluation; John Wiley & Sons: Hoboken, NJ, USA, 2003. [Google Scholar]
- Ellyin, F. Fatigue Damage, Crack Growth and Life Prediction; Springer Science & Business Media: Berlin/Heidelberg, Germany, 2012. [Google Scholar]
- Wang, Q.; Zhou, W.; Wang, Z.; Xiang, S.; Yao, G.; Huang, Q.; Liu, Y. Numerical Analysis of Fracture Behaviour for Cracked Joints in Corrugated Plate Girders Repaired by Stop-Holes. Materials 2023, 16, 3606. [Google Scholar] [CrossRef]
- Qiang, X.; Wu, Y.; Wang, Y.; Jiang, X. Novel crack repair method of steel bridge diaphragm employing Fe-SMA. Eng. Struct. 2023, 292, 116548. [Google Scholar] [CrossRef]
- Tada, H.; Paris, P.C.; Irwin, G.R.; Tada, H. The Stress Analysis of Cracks Handbook; ASME Press: New York, NY, USA, 2000; Volume 130. [Google Scholar]
- Al Laham, S.; Branch, S.I. Stress Intensity Factor and Limit Load Handbook; British Energy Generation Limited: London, UK, 1998; 3.
- Alshoaibi, A.M.; Fageehi, Y.A. 2D finite element simulation of mixed mode fatigue crack propagation for CTS specimen. J. Mater. Res. Technol. 2020, 9, 7850–7861. [Google Scholar] [CrossRef]
- Alshoaibi, A.M.; Fageehi, Y.A. A Computational Framework for 2D Crack Growth Based on the Adaptive Finite Element Method. Appl. Sci. 2022, 13, 284. [Google Scholar] [CrossRef]
- Alshoaibi, A.M.; Fageehi, Y.A. Adaptive Finite Element Model for Simulating Crack Growth in the Presence of Holes. Materials 2021, 14, 5224. [Google Scholar] [CrossRef] [PubMed]
- Bashiri, A.H. 2D and 3D numerical simulation of fatigue crack growth path and life predictions of a linear elastic. Mater. Sci.-Pol. 2021, 39, 285–297. [Google Scholar] [CrossRef]
- Mousa, S.; Mutnbak, M.; Saba, A.-A.M.; Abd-Elhady, A.A.; Sallam, H.E.-D.M. Numerical study and experimental validation of the size effect of smooth and mode I cracked semi-circular bend specimens. Sci. Rep. 2023, 13, 7570. [Google Scholar] [CrossRef]
- Mousa, S.; Mutnbak, M.; Abd-Elhady, A.A.; Sallam, H.E.-D.M.; Reda, R.M. The efficiency of advanced polymeric composite sleeves in the rehabilitation of cracked pipelines under combined loadings. J. Mater. Res. Technol. 2023, 25, 6395–6406. [Google Scholar] [CrossRef]
- Ammendolea, D.; Greco, F.; Leonetti, L.; Lonetti, P.; Pascuzzo, A. Fatigue crack growth simulation using the moving mesh technique. Fatigue Fract. Eng. Mater. Struct. 2023, 46, 4606–4627. [Google Scholar] [CrossRef]
- Zhou, S.; Rabczuk, T.; Zhuang, X. Phase field modeling of quasi-static and dynamic crack propagation: COMSOL implementation and case studies. Adv. Eng. Softw. 2018, 122, 31–49. [Google Scholar] [CrossRef]
- Zhang, X.; Li, L.; Qi, X.; Zheng, J.; Zhang, X.; Chen, B.; Feng, J.; Duan, S. Experimental and numerical investigation of fatigue crack growth in the cracked gear tooth. Fatigue Fract. Eng. Mater. Struct. 2017, 40, 1037–1047. [Google Scholar] [CrossRef]
- Wang, W.; Ni, K.; Ma, H.; Xiong, Q.; Wu, Z.; Wang, H.; Fan, C. Fatigue crack propagation simulation of airfoil section blade under aerodynamic and centrifugal loads. Eng. Fract. Mech. 2023, 293, 109702. [Google Scholar] [CrossRef]
- Poursaeidi, E.; Kavandi, A.; Vaezi, K.; Kalbasi, M.; Arhani, M.M. Fatigue crack growth prediction in a gas turbine casing. Eng. Fail. Anal. 2014, 44, 371–381. [Google Scholar] [CrossRef]
- Main, B.; Jones, M.; Barter, S. The practical need for short fatigue crack growth rate models. Int. J. Fatigue 2021, 142, 105980. [Google Scholar] [CrossRef]
- Skorupa, M.; Machniewicz, T.; Schijve, J.; Skorupa, A. Application of the strip-yield model from the NASGRO software to predict fatigue crack growth in aluminium alloys under constant and variable amplitude loading. Eng. Fract. Mech. 2007, 74, 291–313. [Google Scholar] [CrossRef]
- Lee, G.-B.; Park, S.-H.; Jang, Y.-Y.; Huh, N.-S.; Park, S.-H.; Park, N.-H.; Park, J. Development of automatic crack growth simulation program based on finite element analysis. Appl. Sci. 2022, 12, 3075. [Google Scholar] [CrossRef]
- Nakamura, H.; Matsushima, E.; Okamoto, A.; Umemoto, T. Fatigue crack growth under residual stress field in low-carbon steel. Nucl. Eng. Des. 1986, 94, 241–247. [Google Scholar] [CrossRef]
- Li, X.; Li, H.; Liu, L.; Liu, Y.; Ju, M.; Zhao, J. Investigating the crack initiation and propagation mechanism in brittle rocks using grain-based finite-discrete element method. Int. J. Rock Mech. Min. Sci. 2020, 127, 104219. [Google Scholar] [CrossRef]
- Leclerc, W.; Haddad, H.; Guessasma, M. On the suitability of a Discrete Element Method to simulate cracks initiation and propagation in heterogeneous media. Int. J. Solids Struct. 2017, 108, 98–114. [Google Scholar] [CrossRef]
- Shao, Y.; Duan, Q.; Qiu, S. Adaptive consistent element-free Galerkin method for phase-field model of brittle fracture. Comput. Mech. 2019, 64, 741–767. [Google Scholar] [CrossRef]
- Kanth, S.A.; Harmain, G.; Jameel, A. Modeling of Nonlinear Crack Growth in Steel and Aluminum Alloys by the Element Free Galerkin Method. Mater. Today Proc. 2018, 5, 18805–18814. [Google Scholar] [CrossRef]
- Surendran, M.; Natarajan, S.; Palani, G.; Bordas, S.P. Linear smoothed extended finite element method for fatigue crack growth simulations. Eng. Fract. Mech. 2019, 206, 551–564. [Google Scholar] [CrossRef]
- Rozumek, D.; Marciniak, Z.; Lesiuk, G.; Correia, J. Mixed mode I/II/III fatigue crack growth in S355 steel. Procedia Struct. Integr. 2017, 5, 896–903. [Google Scholar] [CrossRef]
- Dekker, R.; van der Meer, F.; Maljaars, J.; Sluys, L. A cohesive XFEM model for simulating fatigue crack growth under mixed-mode loading and overloading. Int. J. Numer. Methods Eng. 2019, 118, 561–577. [Google Scholar] [CrossRef]
- Rezaei, S.; Wulfinghoff, S.; Reese, S. Prediction of fracture and damage in micro/nano coating systems using cohesive zone elements. Int. J. Solids Struct. 2017, 121, 62–74. [Google Scholar] [CrossRef]
- Peng, X.; Atroshchenko, E.; Kerfriden, P.; Bordas, S.P.A. Isogeometric boundary element methods for three dimensional static fracture and fatigue crack growth. Comput. Methods Appl. Mech. Eng. 2017, 316, 151–185. [Google Scholar] [CrossRef]
- Leonel, E.D.; Chateauneuf, A.; Venturini, W.S. Probabilistic crack growth analyses using a boundary element model: Applications in linear elastic fracture and fatigue problems. Eng. Anal. Bound. Elem. 2012, 36, 944–959. [Google Scholar] [CrossRef]
- Citarella, R.; Giannella, V.; Lepore, M.; Dhondt, G. Dual boundary element method and finite element method for mixed-mode crack propagation simulations in a cracked hollow shaft. Fatigue Fract. Eng. Mater. Struct. 2018, 41, 84–98. [Google Scholar] [CrossRef]
- Zhang, W.; Tabiei, A. An Efficient Implementation of Phase Field Method with Explicit Time Integration. J. Appl. Comput. Mech. 2020, 6, 373–382. [Google Scholar]
- Jorge Guillermo, G.L.G.G.; Ortiz González, J.A.; Freire, J. Analysis of Mixed-mode Stress Intensity Factors using Digital Image Correlation Displacement Fields. In Proceedings of the 24th ABCM International Congress of Mechanical Engineering, Curitiba, Brazil, 3–8 December 2017; ABCM: Curitiba, Brazil, 2017. [Google Scholar]
- Chatzigeorgiou, A.; Theotokoglou, E.; Tsamasphyros, G.I. Code development for the computational analysis of crack propagation in structures. Frat. Ed Integrità Strutt. 2020, 14, 306–324. [Google Scholar] [CrossRef]
- Alshoaibi, A.M.; Bashiri, A.H. Fatigue Crack Growth Studies under Mixed-Mode Loading in AISI 316 Stainless Steel. Appl. Sci. 2023, 13, 9446. [Google Scholar] [CrossRef]
- Alshoaibi, A.M.; Fageehi, Y.A. 3D modelling of fatigue crack growth and life predictions using ANSYS. Ain Shams Eng. J. 2022, 13, 101636. [Google Scholar] [CrossRef]
- Alshoaibi, A.M.; Fageehi, Y.A. Finite Element Simulation of a Crack Growth in the Presence of a Hole in the Vicinity of the Crack Trajectory. Materials 2022, 15, 363. [Google Scholar] [CrossRef] [PubMed]
- Alshoaibi, A.M.; Fageehi, Y.A. Numerical Analysis of Fatigue Crack Growth Path and Life Predictions for Linear Elastic Material. Materials 2020, 13, 3380. [Google Scholar] [CrossRef]
- Bjørheim, F. Practical Comparison of Crack Meshing in ANSYS Mechanical APDL 19.2; University of Stavanger: Stavanger, Norway, 2019. [Google Scholar]
- ANSYS. Academic Research Mechanical, Release 19.2, Help System; Coupled Field Analysis Guide; ANSYS, Inc.: Canonsburg, PA, USA, 2020. [Google Scholar]
- Azócar, D.; Elgueta, M.; Rivara, M.C. Automatic LEFM crack propagation method based on local Lepp–Delaunay mesh refinement. Adv. Eng. Softw. 2010, 41, 111–119. [Google Scholar] [CrossRef]
- Dirik, H.; Yalçinkaya, T. Crack path and life prediction under mixed mode cyclic variable amplitude loading through XFEM. Int. J. Fatigue 2018, 114, 34–50. [Google Scholar] [CrossRef]
- Mohmadsalehi, M.; Soghrati, S. An automated mesh generation algorithm for simulating complex crack growth problems. Comput. Methods Appl. Mech. Eng. 2022, 398, 115015. [Google Scholar] [CrossRef]
- Bittencourt, T.; Wawrzynek, P.; Ingraffea, A.; Sousa, J. Quasi-automatic simulation of crack propagation for 2D LEFM problems. Eng. Fract. Mech. 1996, 55, 321–334. [Google Scholar] [CrossRef]
- Andrade, H.; Leonel, E. An enriched dual boundary element method formulation for linear elastic crack propagation. Eng. Anal. Bound. Elem. 2020, 121, 158–179. [Google Scholar] [CrossRef]
- Fu, Q.; Yi, S.; Chen, B.; Bui, T.Q.; Hu, X.; Yao, W. A crack-tip element for modelling arbitrary crack propagations. Theor. Appl. Fract. Mech. 2020, 105, 102422. [Google Scholar] [CrossRef]
- Huynh, H.D.; Nguyen, M.N.; Cusatis, G.; Tanaka, S.; Bui, T.Q. A polygonal XFEM with new numerical integration for linear elastic fracture mechanics. Eng. Fract. Mech. 2019, 213, 241–263. [Google Scholar] [CrossRef]
- Ma, W.; Liu, G.; Wang, W. A coupled extended meshfree–smoothed meshfree method for crack growth simulation. Theor. Appl. Fract. Mech. 2020, 107, 102572. [Google Scholar] [CrossRef]
- Peng, X.; Kulasegaram, S.; Wu, S.; Bordas, S.P.A. An extended finite element method (XFEM) for linear elastic fracture with smooth nodal stress. Comput. Struct. 2017, 179, 48–63. [Google Scholar] [CrossRef]
















| Property | Value in Metric Unit |
|---|---|
| Modulus of elasticity, E | 205 GPa |
| Poisson’s ratio, υ | 0.3 |
| Yield strength, σy | 285 MPa |
| Fracture toughness, KIC | 730 MPa mm0.5 |
| Case No. | Crack Length, a (mm) | Crack Location, b (mm) | Hole Configuration |
|---|---|---|---|
| I | 38.1 | 127 | With hole |
| II | 38.1 | 127 | Without hole |
| III | 63.5 | 152.4 | With hole |
| IV | 63.5 | 152.4 | Without hole |
Disclaimer/Publisher’s Note: The statements, opinions and data contained in all publications are solely those of the individual author(s) and contributor(s) and not of MDPI and/or the editor(s). MDPI and/or the editor(s) disclaim responsibility for any injury to people or property resulting from any ideas, methods, instructions or products referred to in the content. |
© 2024 by the authors. Licensee MDPI, Basel, Switzerland. This article is an open access article distributed under the terms and conditions of the Creative Commons Attribution (CC BY) license (https://creativecommons.org/licenses/by/4.0/).
Share and Cite
Fageehi, Y.A.; Alshoaibi, A.M. Investigating the Influence of Holes as Crack Arrestors in Simulating Crack Growth Behavior Using Finite Element Method. Appl. Sci. 2024, 14, 897. https://doi.org/10.3390/app14020897
Fageehi YA, Alshoaibi AM. Investigating the Influence of Holes as Crack Arrestors in Simulating Crack Growth Behavior Using Finite Element Method. Applied Sciences. 2024; 14(2):897. https://doi.org/10.3390/app14020897
Chicago/Turabian StyleFageehi, Yahya Ali, and Abdulnaser M. Alshoaibi. 2024. "Investigating the Influence of Holes as Crack Arrestors in Simulating Crack Growth Behavior Using Finite Element Method" Applied Sciences 14, no. 2: 897. https://doi.org/10.3390/app14020897
APA StyleFageehi, Y. A., & Alshoaibi, A. M. (2024). Investigating the Influence of Holes as Crack Arrestors in Simulating Crack Growth Behavior Using Finite Element Method. Applied Sciences, 14(2), 897. https://doi.org/10.3390/app14020897

