Next Article in Journal
New Insights into Traditional Construction Behind Sibe Dwellings with Swastika Kang for Space Heating in North China
Previous Article in Journal
Resilient House Evaluation Matrix: Attributes and Quality Indicators for Social Housing
 
 
Font Type:
Arial Georgia Verdana
Font Size:
Aa Aa Aa
Line Spacing:
Column Width:
Background:
Article

Fire Evacuation Influence Factor Analysis and Optimization Research for Comprehensive Teaching Buildings

1
School of Urban Construction, Wuhan University of Science and Technology, Wuhan 430065, China
2
School of Computer Science and Technology, Wuhan University of Science and Technology, Wuhan 430065, China
*
Author to whom correspondence should be addressed.
Buildings 2025, 15(5), 796; https://doi.org/10.3390/buildings15050796
Submission received: 28 January 2025 / Revised: 18 February 2025 / Accepted: 26 February 2025 / Published: 28 February 2025
(This article belongs to the Section Architectural Design, Urban Science, and Real Estate)

Abstract

Due to the complexity of the architectural structure within comprehensive teaching buildings and the diversity of the student population, these buildings face more intricate fire safety challenges than ordinary teaching buildings. Current research primarily focuses on the analysis of single-building structures or individual factors, lacking an examination of the mechanism of multiple factors on emergency evacuation. Therefore, this study takes a comprehensive teaching building with a complex structure as a case study and, considering the behavioral characteristics of university personnel, conducts simulations using Pathfinder software. The model evaluates the effectiveness of pedestrian flow, vertical personnel distribution, horizontal functional zoning, priority ranking adjustments, and combination strategies on evacuation, as well as the impact of psychological factors on evacuation efficiency, providing a comparative analysis of the influence of each factor on evacuation. The results indicate that controlling the number of people in classrooms at the same time to reduce pedestrian flow can effectively shorten evacuation time, improving evacuation efficiency by 17.63%. The reasonable optimization of functional zoning and priority ranking can also effectively reduce evacuation time. In cases where there is high personnel density on upper floors and the teaching building’s functional zoning is unreasonable, the optimization effect of combination strategies is particularly significant, improving evacuation efficiency by 23.94%. Under panic conditions, leaders can effectively improve evacuation efficiency, and their role becomes increasingly significant as the level of panic rises. By considering the impact of various factors on evacuation, this research aims to enhance the evacuation efficiency of teaching buildings. The findings provide a scientific basis for emergency evacuation in complex buildings like teaching facilities.

1. Introduction

With the vigorous development of higher education in China, the scale of university buildings continues to expand, and the complexity and scale of teaching buildings are increasing, which brings new challenges to fire safety. As the core facility of higher education, comprehensive teaching buildings are characterized by their large scale and high population density. The diverse vertical and horizontal spatial layout and complex evacuation routes increase the difficulty of evacuation in the event of fire. Therefore, conducting an in-depth analysis of the factors influencing evacuation in comprehensive teaching buildings and proposing targeted optimization suggestions are of vital importance for ensuring the safety of staff and students and improving evacuation efficiency.
Currently, scholars both domestically and internationally have conducted extensive research on the risks associated with building evacuation. During the process of safe evacuation, various parameters exert corresponding influences on the simulation. The current simulation of these parameters primarily focuses on the following aspects:
(1)
Evacuation pathway factors (stair width and type, width and number of exits, number of fire-resistant elevators). Li et al. [1] have concluded that widening the staircase can effectively enhance evacuation efficiency. Li et al. [2] investigated the impact of three types of escape stairs on the evacuation rate, ranking their efficiency as follows: crisscross stairs > straight stairs > parallel double stairs. Wu et al. [3], using the subway station as a case study, proposed that when there are multiple evacuation exits, employing a zoning strategy can effectively improve exit utilization and reduce wayward behavior caused by the presence of numerous exits. Ivanov et al. [4] suggest that converting passenger elevators to fire elevators can significantly reduce the total evacuation time.
(2)
Spatial obstacle factors. Zhu et al. [5] and Liu et al. [6] employed a cellular automaton model to simulate the evacuation process in classrooms with multiple obstacles. Delcea et al. [7] suggest that overturned tables and chairs during the evacuation process act as obstacles to classroom evacuation. Zang et al. [8] show that obstacles within classrooms can physically isolate individuals and serve to channel the flow of evacuees; thereby, these authors effectively planned evacuation routes and enhanced evacuation efficiency.
(3)
Age composition factors. Ren et al. [9] employed Pathfinder and the GCFM (Generalized Centrifugal Force Model) to study the effects of the proportion of elderly individuals and obstacle placement on evacuation. The results show that the impact of obstacles on evacuation intensifies with an increasing proportion of elderly individuals. Yao et al. [10,11] investigated the vertical evacuation speeds of children in different age groups during evacuation, focusing on kindergartens. The findings indicate that older children exhibit higher evacuation efficiency. Li et al. [12] developed a fire evacuation model for pediatric hospitals based on a cellular automata model. The research results suggest that holding children during evacuation can significantly reduce evacuation time.
(4)
Crowding density factors. Wang et al. [13] and Li et al. [14] have proposed that the influence of personnel density within buildings on evacuation risk is most prominent. Zuo et al. [15] utilized Anylogic simulation software and GIS-based facility location tools to optimize pedestrian evacuation systems in high-density urban areas, reducing overall evacuation time and alleviating congestion. Additionally, other scholars have conducted related research on the impact of various other factors on evacuation. For instance, Mao et al. [16] employed virtual reality to simulate a shopping mall environment and concluded that navigation and leader intervention can significantly enhance evacuation efficiency. Tong et al. [17] developed a social force model using MATLAB and proposed three evacuation strategies that can improve the efficiency of vulnerable pedestrians under specific conditions. Ren et al. [18] constructed a panic emotion contagion model based on personality heterogeneity and improved the social force model by incorporating panic factors, with a focus on the impact of panic spread on evacuation.
In the above studies, the focus is primarily on the analysis of individual factors, such as personnel density, exit design, and obstacles (refer to relevant references), lacking analyses of multiple factors and their interactions. For example, Zhou et al. [19] investigated the impact of evacuation staircases on the evacuation efficiency of kindergarten buildings. Wei et al. [20] explored the effects of different exit structures (such as door direction and number) on evacuation efficiency. Yue et al. [21] mainly analyzed the impact of obstacles and designs within buildings on evacuation efficiency.
Although many scholars have conducted in-depth analyses of building evacuation, these studies primarily focus on types of buildings such as subways, hospitals, and super-high-rise buildings. However, these buildings differ significantly from comprehensive teaching buildings in terms of layout, occupant composition, and mobility, making their evacuation strategies not directly applicable to educational buildings. For example, Wu et al. [3] proposed a zoning strategy to improve evacuation efficiency in subway stations, which typically have high occupancy density and simple structural layouts, while teaching buildings involve complex vertical distributions and functional zoning, with more diverse occupant movement patterns and density distributions. Similarly, Li et al. [12] focused on the evacuation needs of special groups (such as children and the elderly) in pediatric hospitals, whereas the occupant population in comprehensive teaching buildings is relatively homogeneous, requiring evacuation strategies that focus more on the behavior patterns and path choices of ordinary individuals. Furthermore, Zheng et al.’s [22] research on fire evacuation in super-high-rise buildings has significant limitations when applied to educational buildings due to differences in building structure and occupant composition.
Currently, there has been extensive research on evacuation in educational buildings. For example, Gao et al. [23] proposed an evacuation optimization study for university building complexes, focusing on evacuation issues within campus buildings, but did not explore the multi-level, functionally diverse structures and evacuation strategies of complex buildings such as comprehensive teaching buildings. Cui et al. [24] conducted a simulation study on fire evacuation in high-rise teaching buildings, primarily focusing on fire simulations in high-rise buildings, without considering the diversity of internal occupant movement and spatial layouts in complex teaching buildings. Safari et al. [25] studied fire evacuation in primary schools, investigating the impact of certain internal structural factors on evacuation time. However, there are significant structural and behavioral differences between primary schools and university buildings, and the study did not explore the complex vertical distribution and evacuation needs of different functional areas in teaching buildings.
Therefore, based on existing research, this study innovatively combines multi-factor analysis with simulation software. It proposes evacuation optimization strategies for teaching buildings, focusing on the evacuation of complex, multifunctional comprehensive teaching buildings. Using BIM (Revit 2018) technology and Pathfinder 2019 simulation software, this study analyzes the interactions between factors such as personnel density, priority ranking, and obstacles, while also examining the impact of panic and leadership from a psychological perspective. This research addresses the gaps in existing studies on evacuation simulations for educational buildings and provides important references for related evacuation design and optimization.

2. Materials and Methods

In the study of building emergency evacuations, emergencies such as fires, earthquakes, and security threats have a crucial impact on occupant safety during evacuation. Especially in the face of these incidents, rational and effective evacuation strategies can significantly ensure safety. This study was located in Wuhan, Hubei Province—Wuhan is not in an earthquake zone and does not face security threats such as campus shootings. Therefore, considering this context, the focus of this study is on the analysis and optimization of fire evacuation simulations, aiming to provide scientific evidence for occupant evacuation during a fire.

2.1. Emergency Evacuation Analysis of Fire

The safety of an evacuation is determined by two critical time intervals [26,27]: the available safe evacuation time (ASET) and the required safe evacuation time (RSET).

2.1.1. Available Safe Evacuation Time (ASET)

The ASET refers to the time available for people to escape to a safe area before a fire develops into a hazardous condition. It is the fastest time for each parameter to reach a hazardous condition, and it depends mainly on the human body’s tolerance values for fire products.

2.1.2. Required Safe Evacuation Time (RSET)

The duration between the onset of a fire incident and the successful evacuation of individuals to a secure location is a critical parameter in emergency response planning. The required time for a safe evacuation can be deconstructed into three principal components, namely
REST = t1 + t2 + t3,
where t1 indicates the alarm time when the alarm system detects a disaster and sends out an alarm; t2 indicates the response time from the time the alarm notification is received to the time when people are ready to evacuate; and t3 indicates the evacuation time from the time the evacuation begins to the time when people leave the hazardous area.
In order to ensure the safe evacuation of people, it is necessary to make the available safe evacuation time longer than the necessary safe evacuation time, i.e., to satisfy the following formula, the relationship is shown in Figure 1.
ASET > REST,

2.2. Simulation Methods

2.2.1. Software

Currently, a variety of simulation software is used to simulate the evacuation process of people in various situations, such as Simulex, Cellular Automata (CA), Building-EXODUS, Pathfinder [21,28,29,30] etc. Pathfinder, developed by Thunderhead engineering, delivers agent-based simulation through an intuitive interface to output clear and detailed results. Each occupant in a Pathfinder model is aware of their surroundings and constantly recalculates their next step based on present information. These decisions are informed by academic research and validation testing. This process allows the Pathfinder simulation engine to model realistic human behavior. Pathfinder software is widely used in the field of emergency evacuation simulation.
Pathfinder uses a 3D triangulated mesh to represent the model geometry. As a result, Pathfinder can accurately represent geometric details and curves. Triangulation also facilitates the continuous movement of persons throughout the model, compared to other simulators that subdivide the space into cells that can artificially constrain the movement of occupants.
Pathfinder supports two simulation modes. In steering mode, agents proceed independently to their goal, while avoiding other occupants and obstacles. Door flow rates are not specified but result from the interaction of occupants with each other and with boundaries. In SFPE mode, agents use behaviors that follow SFPE guidelines, with density-dependent walking speeds and flow limits to doors. SFPE results provide a useful baseline for comparison with other results, but SFPE calculations do not prevent multiple persons occupying the same space. Optionally, Pathfinder allows you to specify door flow rates in steering mode to obtain a superior visualization in a constrained model. You can freely switch between modes in the Pathfinder user interface.

2.2.2. The Validity and Reliability of the Simulation Software

Actual building fire evacuation drills have many limitations. First, drills require significant personnel and venue support, making them costly and difficult to implement, especially in high-density crowds and complex buildings. Second, the number of drills is limited, and the conditions of each scenario are difficult to standardize, restricting the repeatability and comparability of the results. Furthermore, drills cannot precisely control details such as individual behavior and evacuation route choices, which may lead to discrepancies and affect the evaluation. To overcome these limitations, this study uses Pathfinder simulation software for evacuation modeling. Pathfinder can simulate individual behaviors during a fire, considering various factors (e.g., passage width, walking speed, density), ensuring consistency in results within a virtual environment, and exploring the impact of different factors on evacuation efficiency, thus avoiding biases in real-world drills.
Pathfinder, as a mature simulation tool, has been widely used in various fields, particularly in fire and emergency evacuations. Several studies have shown that Pathfinder can effectively simulate factors such as individual behavior, obstacle avoidance, and path selection, and its reliability has been validated through experimental data. Especially in complex environments such as low visibility, smoke, and fire, the numerical simulation results show a high degree of consistency with experimental data. Research has demonstrated that under low visibility and smoke conditions, Pathfinder can accurately predict evacuation speed and behavior. For example, Cao et al. [31] and Jeon et al. [32] validated Pathfinder’s effectiveness through simulations and experimental studies, finding that it accurately reflects evacuation behavior under different environmental conditions. Additionally, Chen et al. [33] and Cao et al. [34] validated Pathfinder’s reliability in simulating evacuation speed, individual behavior, and the effects of smoke through experimental and modeling studies. Ivanov et al. [4] further demonstrated Pathfinder’s application in fire evacuations in complex buildings, with simulation results aligning with experimental data, confirming its reliability in high-rise buildings. Cuesta et al. [35] also validated the effectiveness of the Pathfinder model in school evacuation scenarios, with simulation results closely matching actual evacuation data, with errors typically around 5%, further confirming its accuracy and reliability in complex environments. These studies indicate that Pathfinder’s application results in various complex environments are highly consistent with actual experimental data, validating its reliability and accuracy in emergency evacuations.

2.3. Construction of Simulation Model Based on BIM

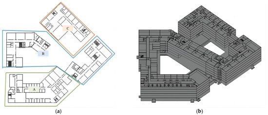
Based on public information, the teaching building consists of six floors, with a floor height of 5.1 m for the first floor and 3.6 m for the second to sixth floors. The gross floor area of the first floor is 9813.53 m2, the second floor is 7141.61 m2, the elevated platform area is 1049 m2, the third floor is 6160.43 m2, the fourth floor is 7295.30 m2, the fifth floor is 7215.55 m2, and the sixth floor is 7140.42 m2. The 3D model of the teaching building and the local view are shown in Figure 2.
This study utilized Revit 2018 software to establish a three-dimensional model of the teaching building. The floor plan and division of the first floor are shown in Figure 3a, which is divided into three zones: A, B, and C, each serving a specific teaching function. Figure 3b shows the three-dimensional model. Based on the floor plan and BIM model, the building is divided into three overall areas. To ensure that the simulation results are not affected and to achieve rapid modeling and reduced computation time, the model only includes basic building structures such as slabs, walls, door openings, and stairs. In the event of a fire, the safety of elevators cannot be guaranteed; therefore, the simulation employs an all-stair evacuation mode. The specific steps are as follows: ① the floor settings are specified, and in this case, the first floor has a height of 5.1 m, and the second to sixth floors have a height of 3.6 m; ② the grid is drawn and components such as walls, doors, and slabs are sequentially created according to the floor levels to form a complete floor structure; and ③ a 3D view is generated to display the overall effect.

2.4. Occupant Parameter Setting

To simulate the behavior of evacuees in specific locations and environments, a safety evacuation simulation system has been established. Evacuees, evacuation locations, and evacuation environmental conditions constitute the fundamental structure of the safety evacuation simulation system. The basic parameters of individuals in Pathfinder software primarily include shoulder width, height, evacuation speed, and the setting of population density. The accurate setting of shoulder width, in particular, enables the evacuation results to more closely resemble actual escape conditions during a fire.
The main evacuation groups in the teaching building are students and teachers, with the teacher group primarily consisting of middle-aged teachers, including a few elderly teachers. To assess the impact of the proportion of elderly teachers on the evacuation effectiveness, we set different ratios of elderly to middle-aged teachers: 0:10, 1:9, 2:8, 3:7, and 4:6. Based on age and response time, different priority levels were assigned: elderly teachers > middle-aged women > middle-aged men > young women > young men, with corresponding priority values of 4, 3, 2, 1, and 0. The total evacuation times for each ratio were 336.3 s, 333.3 s, 341.8 s, 337 s, and 337.8 s, respectively. The results indicate that as the proportion of elderly teachers changes, the evacuation time fluctuates slightly, suggesting that the proportion of elderly teachers has a limited effect on the total evacuation time.
Based on the above analysis, the evacuation groups are categorized as middle-aged women, middle-aged men, young women, and young men, with priority levels set as 3, 2, 1, and 0, respectively. The body parameters are based on the mean values from “Human dimensions of Chinese adults” [36] and the SFPE Fire Protection Handbook [37]. The behavior mode for all individuals is set to “Goto Any Exit”, directing them to move towards any evacuation exit along the shortest available path. However, although the default behavior model is to evacuate along the shortest path, pedestrians in real situations may be influenced by various factors, such as visibility, group behavior, and evacuation pressure. These factors may lead them to choose non-optimal paths to avoid congestion or potentially hazardous areas. According to Zhang et al. [38], pedestrians in high-risk environments may opt for detours rather than the shortest path. Additionally, Cao et al. [31] found that under low visibility conditions, pedestrians not only evacuate along the shortest path but may also be influenced by group behavior, exhibiting dynamic path choices such as following others. The gender ratio is set according to Wuhan University of Science and Technology, a university specializing in science and engineering, with a male-to-female ratio of 6:4. The parameter settings are detailed in Table 1.
Based on preliminary research into the functions of the teaching building’s zones, Zone B is the main teaching area, consisting of 87 classrooms, including 29 large classrooms (60 students per classroom) and 58 small classrooms (30 students per classroom), characterized by high foot traffic, relatively concentrated personnel distribution, and high density. Zones A and C primarily consist of student offices, research rooms, activity rooms, consultation rooms, etc., with relatively low foot traffic and more dispersed personnel distribution. Considering the seating capacity of each classroom and the teaching activities, we estimated the population distribution on each floor based on the class schedule and an actual survey. Specifically, since not all classrooms are fully occupied, we selected peak time slots as the initial population setting by analyzing the student scheduling data for different weekdays over the course of a week. This approach ensures that the estimates are more aligned with actual conditions and have greater research significance. The classroom occupancy for floors 1 to 6 is as follows: 5, 8, 9, 12, 12, and 12 classrooms, respectively. For research rooms, activity rooms, offices, etc., the population was distributed randomly based on actual conditions, and the total population for each floor and the entire building was estimated (Table 2). The initial personnel distribution on the fourth floor and the stairway numbering (S1, S2, S3, …, S10) are shown in Figure 4a, while the local personnel distribution in Zone B is presented in Figure 4b, providing a clear visualization of the initial distribution across different areas.

2.5. Simulation and Optimization for Evacuation

Assuming that all safety exits and the passages between areas A, B, and C of the teaching building are open, adjustments were made to the number and distribution of the occupants within the building. Based on the initial personnel numbers and parameter settings, the changes in evacuation and congestion are shown in Figure 5a. The results indicate that the total evacuation time is 336.3 s. The figure reflects the trend of the number of evacuees and remaining individuals over time. The curve shows the congestion and evacuation efficiency at different time points, revealing potential bottlenecks at key evacuation points. By observing the dynamic process of the evacuation simulation, significant personnel congestion was observed near the evacuation staircases in Zone B, with varying degrees of blockage in the staircase areas during the evacuation, especially on the fourth floor and above, where personnel experienced delays. Due to the large number of classrooms in Zone B, personnel movement was restricted during evacuation, leading to severe congestion, which significantly impacted the overall evacuation time. Figure 5b presents the four-floor evacuation route diagram at 100 s generated by Pathfinder software, visually illustrating the movement of people on the fourth floor. It is evident that congestion occurred in specific areas (e.g., stairwells) due to high density, resulting in evacuation delays. These congested areas are critical bottlenecks in the evacuation process, and optimizing the evacuation strategy in these areas can significantly improve overall evacuation efficiency. To further investigate the key factors affecting the safe evacuation of the teaching building, the above simulation results were used as the baseline model condition (M). All subsequent adjustments and optimizations were based on this model, with in-depth analysis and improvements through modification of related parameters or conditions.

2.5.1. Pedestrian Flow

According to on-site surveys, some classrooms in the teaching building have low utilization rates. The number of students varies greatly on different workdays, with higher foot traffic during certain periods and more vacant classrooms at other times, leading to the uneven distribution of personnel in the building. In the event of an emergency, the uneven distribution of foot traffic across different workdays may significantly affect evacuation efficiency. To study the impact of different pedestrian distributions on evacuation efficiency, a key area reduction method was used, reducing the number of students on the 4th to 6th floors of the main teaching area (Zone B), and adjusting the distribution of one classroom also requires adjusting one teacher. Six scenarios (PF1 to PF6) are set, with specific adjustments shown in Table 3. In this study, the adjustment of occupants within the teaching building was made in accordance with the “Building Fire Protection Design Code [39]”, ensuring that the occupant density met the regulatory requirements. Specifically, the occupant density in classroom areas was controlled at 0.5 persons/m2, in office areas at 0.6 persons/m2, and in laboratory areas at 0.4 persons/m2. Based on these standards, subsequent adjustments to occupant distribution (including vertical distribution and optimization of horizontal functional zoning) adhered to the corresponding density limits to ensure safety and efficiency during the evacuation process.

2.5.2. Vertical Distribution of Personnel

In the lower floors of Zone B, some classrooms are vacant, while classrooms on the 4th to 6th floors face evacuation pressure due to their distance from the emergency exits under high foot traffic. To address this, it is necessary to optimize the vertical zoning of Zone B by relocating some teaching functions from the 4th to 6th floors to the lower floors, improving the utilization of vacant classrooms and optimizing evacuation routes to enhance safety. Six scenarios (VD1 to VD6) are set, and the number of people on each floor of Zone B for each scenario is shown in Table 4.

2.5.3. Horizontal Functional Zoning

The main functions of Zones A, B, and C in the teaching building are different. Zone A and Zone C primarily contain consultation rooms, material rooms, equipment rooms, research rooms, and student offices, with relatively low foot traffic. Zone B, as the main teaching area, houses a large number of classrooms, and teaching activities are highly concentrated, resulting in significantly higher foot traffic than other areas, leading to uneven resource utilization and safety risks. Therefore, adjustments to the functional zoning of the teaching building are necessary. The adjustment plan involves a gradual horizontal shift, starting from the 6th floor, where large and small classrooms in Zone B are gradually swapped with the functional areas in Zones A and C, proceeding down to the 3rd floor, optimizing the functional distribution in each zone. Four scenarios (HF1 to HF4) are set, and the total number of people in each zone after the functional zoning adjustments is shown in Table 5.

2.5.4. Evacuation Personnel Priority Ranking

In Pathfinder, personnel behavior is defined by two states: Seeking and Idling. In the Seeking model, higher-priority individuals prioritize obtaining the optimal path and are granted priority access at the exits during evacuation. Lower-priority individuals must avoid or re-plan their paths. In the Idling model, lower-priority individuals may experience a delay at the start of evacuation, simulating scenarios where evacuation occurs in batches or there is a delay in personnel response. When an individual encounters someone with the same priority, their status remains unchanged. When encountering a higher-priority individual, their status changes to Idling, allowing the higher-priority individual to pass first. During the teaching building evacuation, different groups may significantly affect overall evacuation efficiency due to differences in shoulder width, speed, and reaction time. To further study the impact of priority settings on evacuation time, six different priority scenarios (EP1 to EP6) are set. The specific settings are shown in Table 6.

2.5.5. Combination Strategies

By combining the above strategies, a random combination approach was used to investigate whether the optimized combination strategies have better evacuation efficiency than a single strategy. The effects of these combination strategies were simulated and evaluated. Five scenarios (CS1 to CS5) are set, with each combination strategy shown in Table 7.

2.5.6. Psychological Factors of Individuals

In the above scenario, we focused on the influence of physical and architectural factors, but panic and leadership also played significant roles in the evacuation process. To analyze the impact of psychological factors on evacuation efficiency, this study simulated the evacuation process under different panic situations. Considering potential panic reactions during emergencies such as fires, we adjusted individual behavior parameters, including reaction time and walking speed, in Pathfinder software. In panic states, the reaction time was extended, and the walking speed was reduced. Based on these settings, the panic levels were categorized as mild, moderate, and severe to simulate the impact of panic on evacuation efficiency. Three scenarios (P1 to P3) were set. To further investigate the role of leaders in such situations, a “leader” role (e.g., teacher, class monitor) was introduced in the simulation to study its effect on improving evacuation efficiency under different panic levels. The leader’s reaction time was shortened, walking speed was faster than that of ordinary people, and their behavior was set to group guidance. The leader was given higher priority and a specific target path, ensuring they were the first to begin the evacuation. The remaining individuals were assigned lower priority, exhibiting group-following behavior rather than randomly or independently choosing paths. Three scenarios (P4 to P6) were set. The setup for each scenario is shown in Table 8.

3. Results

3.1. Pedestrian Flow

Figure 6 demonstrates the impact of adjusting the pedestrian flow on evacuation time. The simulation results indicate that as the number of people on higher floors decreases, the total evacuation time shows a decreasing trend. In the PF1 to PF6 scenarios, the evacuation time decreased by 17.3 s, 20.8 s, 39 s, 38.5 s, 57.3 s, and 59.3 s, with evacuation efficiency increasing by 5.14%, 6.18%, 11.60%, 11.45%, 17.04%, and 17.63%, respectively. This indicates a significant improvement in evacuation efficiency after reducing the number of people on higher floors. For example, in scenario PF6, by reducing 276 people based on scenario M, the evacuation efficiency improved by 17.63%.

3.2. Vertical Distribution of Personnel

Figure 7 shows the impact of optimizing the personnel vertical distribution to fully utilize vacant classrooms on lower floors on evacuation time. The simulation results indicate that during the vertical zoning optimization process, the total evacuation time generally decreased. In the VD1 to VD6 scenarios, the evacuation time decreased by 22.3 s, 26.3 s, 43.8 s, 42.5 s, 52.1 s, and 40.7 s, with evacuation efficiency increasing by 6.63%, 7.82%, 13.02%, 12.63%, 15.49%, and 12.10%, respectively. Utilizing vertical functional zoning helps improve evacuation efficiency. However, in scenario VD6, the total evacuation time showed an upward trend, and compared to scenario VD5, the total evacuation time increased by 11.4 s after further vertical zoning adjustments. This indicates that an excessive adjustment in the vertical distribution of occupants may increase evacuation pressure on lower floors, negatively affecting overall evacuation efficiency.

3.3. Horizontal Functional Zoning

Figure 8 shows the results of the step-by-step adjustment of the functional zoning in each area of the teaching building. The simulation results indicate that with the optimization of horizontal zoning, evacuation time was significantly improved. In the HF1 to HF4 scenarios, the evacuation time decreased by 18.8 s, 41.5 s, 50.8 s, and 25 s, with evacuation efficiency increasing by 5.60%, 12.34%, 15.11%, and 7.43%, respectively. However, in scenario HF4, compared to HF3, the evacuation time increased from 285.5 s to 311.3 s. This reflects that, in some cases, excessive functional zoning adjustments may create new bottlenecks, thereby affecting overall evacuation efficiency.

3.4. Evacuation Personnel Priority Ranking

Figure 9 shows the results of setting different priorities. The simulation results indicate that different priority strategies have a minor impact on total evacuation time, but in specific congested areas, priority ranking significantly improves evacuation efficiency. Compared to the initial scenario (M), evacuation efficiency improved by approximately 11% in scenario EP6, where no priority was set, or in scenario EP5, where priority was given only to middle-aged women with the fewest number of people and the slowest evacuation speed. However, in other scenarios with priority settings, the variation in evacuation time was relatively small.

3.5. Combination Strategies

Figure 10 shows the results of different combination strategies. The simulation results indicate that combining multiple evacuation optimization measures results in better evacuation efficiency than a single strategy. In the CS1 to CS5 scenarios, the evacuation time decreased by 40 s, 54.3 s, 74.3 s, 74.8 s, and 80.5 s, with evacuation efficiency increasing by 11.89%, 16.15%, 22.09%, 22.24%, and 23.94%, respectively. The implementation of each combination strategy gradually reduced the evacuation time, optimized personnel flow, and minimized congestion points during evacuation. For example, combination strategy CS5, by integrating reduced high-floor occupancy, horizontal functional zoning adjustments, and priority settings, successfully achieved the maximum reduction in evacuation time, ultimately controlling evacuation time at 255.8 s and improving evacuation efficiency by 23.94%.

3.6. Psychological Factors of Individuals

Figure 11 shows the impact of different panic levels and the presence of a leader on evacuation time. Scenarios P1 to P3 represent evacuation times with mild, moderate, and severe panic levels, respectively. The results indicate that panic significantly increased evacuation time. Compared to the initial scenario (M), evacuation time increased by 25.6 s, 39.4 s, and 55.2 s, with evacuation efficiency decreasing by 7.61%, 11.72%, and 16.41%, respectively. As the panic level increased, the impact on overall evacuation efficiency also increased. Scenarios P4 to P6 show the impact of a leader on evacuation time at different panic levels. The results demonstrate that the presence of a leader significantly improved evacuation efficiency, with the total evacuation time reduced by 26 s, 31.4 s, and 38.4 s, and evacuation efficiency increased by 7.03%, 8.36%, and 9.81%, respectively, highlighting the key role of the leader in the evacuation process.

3.7. Summary

In the preceding sections, we analyzed the key factors affecting the safe evacuation of personnel in university teaching buildings, including pedestrian flow, dynamic distribution, functional area configuration, prioritization, and combined strategies, as well as psychological factors such as panic and leadership. Although this study did not consider the variations in fire smoke and temperature in the simulation, the existing literature indicates that fire temperature and smoke density significantly affect the choice of evacuation paths. For instance, high-density smoke and extreme temperature conditions may prolong the time taken by individuals to choose an exit. [40] To ensure a smooth evacuation process, the design of evacuation routes and exits is based on the relevant requirements in the “Coad for Fire Protection of Buildings [39]”. According to the code, when the number of occupants ranges from 1000 to 5000, the minimum width of evacuation routes should be 0.6 m per person, and an appropriate number of exits should be provided based on the number of occupants. Specifically, the building should have at least two exits, with each exit having a width of no less than 1.2 m.
This study provides an in-depth analysis of various factors influencing the safe evacuation of university teaching buildings, with a particular focus on optimizing aspects such as population distribution, functional area configuration, prioritization, and the effects of combined factors. Additionally, the impact of panic and evacuation guidance on evacuation efficiency is thoroughly investigated. The results demonstrate that reasonable adjustments to these factors can effectively improve evacuation efficiency. Under the existing conditions of evacuation pathways and exits, these optimization measures successfully alleviate evacuation pressure in high-density areas, reduce evacuation bottlenecks, shorten overall evacuation time, and enhance both the safety and efficiency of personnel evacuation.

4. Discussion

4.1. Pedestrian Flow

The research results show that adjusting pedestrian flow plays a crucial role in improving evacuation efficiency. By reducing the population density on higher floors, it not only effectively alleviates evacuation pressure in the teaching area but also improves the smoothness of evacuation routes, thereby shortening the overall evacuation time. To analyze the evacuation completion times of stairways in each scenario, two evacuation stairways, S4 and S6 (shown in Figure 4a), were selected for analysis. Figure 12 presents the evacuation completion times for these two stairways in each scenario. It can be observed that the evacuation completion time for the S4 stairway aligns with the total evacuation time of each scenario, indicating that the S4 stairway plays a key role in determining the overall evacuation time. As the number of people decreases layer by layer, the evacuation completion time for both S4 and S6 stairways decreases. A further analysis of the variation in evacuation time across different scenarios reveals that reducing the number of people in the large classrooms near S4 has the most significant impact on the total evacuation time. This indicates that the safety performance of this stairway is particularly crucial. Thus, it is important to properly control the number of people near the S4 stairway and adjust the pedestrian density in this area to avoid excessive concentration, thus reducing the emergence of evacuation bottlenecks.
Regarding pedestrian flow adjustment in the teaching building, first, class schedules should be reasonably arranged to avoid the concentration of too many classrooms on higher floors at the same time, thereby alleviating evacuation pressure on higher floors. Additionally, classrooms on lower floors should be used optimally to balance the overall distribution of people. Second, dynamic pedestrian flow adjustments should be implemented based on the actual usage of the teaching building, especially during high foot traffic periods. Real-time adjustments to personnel distribution should be made to avoid overcrowding in specific areas, reducing congestion during the evacuation process.

4.2. Vertical Distribution of Personnel

The research shows that using a key area personnel reduction strategy, adjusting for the high-density population in Zone B, and effectively utilizing vacant classrooms on lower floors can significantly improve evacuation efficiency. However, excessive adjustments may increase evacuation pressure on the lower floors. This phenomenon reveals potential challenges in vertical zoning adjustments: although reducing the number of people on higher floors helps alleviate evacuation pressure, the increase in personnel density on lower floors may create new evacuation bottlenecks. Especially on lower floors, congestion in evacuation routes can worsen, potentially affecting the overall evacuation flow and leading to increased evacuation time. Figure 13 shows the evacuation completion times for the S4 and S6 stairways in different scenarios. It can be observed that with the implementation of horizontal functional zoning adjustments across different areas of the teaching building, the evacuation completion time gradually decreases. However, in scenario VD6, the increased occupant density on lower floors led to congestion at the stairways, resulting in longer evacuation times. A further analysis of this phenomenon showed that when the occupant density on lower floors is too high, the limited capacity of the stairways becomes a bottleneck, affecting the overall evacuation efficiency of the building. Even if evacuation on higher floors is optimized, the bottleneck on the lower floors still negatively impacts the overall evacuation. The bottleneck arises because the stairways, as the main evacuation routes, cannot accommodate excessive numbers of people, leading to significant delays and postponing the entire evacuation process. This indicates that the excessive concentration of occupants on lower floors can indeed become an evacuation bottleneck under certain conditions, affecting overall evacuation efficiency.
When implementing vertical functional zoning for personnel, a moderate personnel distribution strategy should be adopted. In addition to reducing the number of people on higher floors, it is essential to ensure a reasonable distribution of personnel on lower floors to avoid excessive concentration. Additionally, vertical zoning adjustments should be implemented in stages, with evacuation time evaluations conducted after each adjustment to ensure that the new personnel distribution does not create new evacuation bottlenecks. Before large-scale adjustments, small-scale pilot programs can be used to verify the effectiveness of the adjustments, thus avoiding a decrease in evacuation efficiency due to excessive adjustments.

4.3. Horizontal Functional Zoning

The research results show that after implementing horizontal functional zoning adjustments in different areas of the teaching building, personnel were distributed more evenly, significantly improving evacuation efficiency. However, after implementing vertical zoning in scenario HF4, there was a trend of increased evacuation time, suggesting that the effectiveness of horizontal zoning may have certain limitations in certain cases. Horizontal zoning adjustments should be based on the actual evacuation capacity of each area. Specifically, considering that Zones A and C have fewer evacuation staircases than Zone B, it is crucial to ensure evacuation smoothness during horizontal zoning adjustments. Over-adjustment must be avoided to prevent excessive personnel concentration in certain areas, which could create new evacuation bottlenecks. Figure 14 shows the evacuation completion times for the S4 and S6 stairways in different scenarios. As horizontal zoning adjustments were applied layer by layer in the teaching building, the evacuation pressure on the stairways was effectively alleviated, and the evacuation completion times showed a decreasing trend. Specifically, the evacuation time for the S2 stairway decreased from being consistent with the total evacuation time at the beginning to being progressively smaller than the total evacuation time, indicating that after horizontal zoning, Zones A and C shared part of the evacuation pressure, effectively reducing the burden on the stairways in Zone B.
Therefore, when implementing horizontal functional zoning adjustments in the teaching building, the distribution of each functional area should be adjusted moderately, avoiding large-scale functional zoning changes. Classrooms and functional areas should be reasonably allocated to ensure that personnel flow is not overly restricted. At the same time, excessive area swaps should be avoided. Horizontal zoning adjustments should be based on actual needs, ensuring smooth and unobstructed personnel flow within each area, and preventing new evacuation obstacles caused by excessive adjustments.

4.4. Evacuation Personnel Priority Ranking

The research shows that the impact of priority ranking on the entire evacuation process is relatively limited. By reducing excessive priority settings, evacuation efficiency can be effectively improved. Overly complex priority settings can actually hinder the evacuation process. The reason for this difference is that personnel priority settings are mainly intended to optimize horizontal evacuation for different groups, but an excessive number of priority rankings can lead to reduced efficiency. Figure 15 shows the evacuation completion times for the S4 and S6 stairways in different scenarios. The data analysis reveals that the evacuation time for the S4 stairway varies significantly, particularly because the S4 stairway bears a large evacuation load. Therefore, the impact of different priority settings on the evacuation time shows considerable fluctuations. This indicates that as a key evacuation route, the reduction in the evacuation completion time for the S4 stairway is closely related to the improvement in evacuation efficiency.
To further analyze the impact of occupant priority settings on evacuation time, we examined the evacuation completion times for different floors of the S4 and S6 staircases under various scenarios. The evacuation times for each floor exhibited different fluctuations.
Figure 16a shows the variation in evacuation completion times for each floor of the S4 staircase under different priority settings. The data indicate that when more priority levels are set, the fluctuation in evacuation times is smaller. However, when priority levels are reduced, evacuation times decrease significantly, especially in the 1st to 3rd floors, with this trend being particularly evident in the later stages of the evacuation. At this point, the occupant density in the stairwell is high, and reducing priority levels helps minimize crowd avoidance, thereby reducing overall evacuation time. By comparing the evacuation times across different scenarios, it can be observed that as priority levels decrease, the overall evacuation time tends to decrease, particularly when congestion occurs. This result further confirms the role of reducing priority settings in improving evacuation efficiency.
Figure 16b shows the evacuation completion times for each floor of the S6 staircase under different scenarios. Compared to the S4 staircase, the evacuation times for each floor of the S6 staircase show smaller variations and relatively stable fluctuations. Although the evacuation times for different floors slightly decreased, the overall changes were minimal. This is because the occupant density in the S6 staircase is relatively low, leading to less evacuation pressure. By comparing the evacuation completion times of the S4 and S6 staircases, it is evident that the evacuation times for the S4 staircase fluctuate more under higher evacuation pressure, while the S6 staircase remains relatively stable, indicating that priority adjustments in the S6 staircase have a smaller impact on evacuation time under different scenarios. Therefore, the study results suggest that when occupant density is high, priority settings should be appropriately reduced to avoid bottlenecks in the evacuation process caused by excessive avoidance behavior.
When setting personnel priorities, excessive priority levels should be avoided, and unnecessary layers of priority should be minimized. The aim is to optimize the flow of personnel without increasing evacuation pressure, and to prevent delays caused by personnel avoidance and adjustment. Additionally, optimizing priority settings and only granting necessary priorities in special cases (such as for the elderly, disabled, or ill) ensures that regular personnel’s evacuation efficiency is not affected and that evacuation passages remain unobstructed.

4.5. Combination Strategies

The research results show that the combination optimization of different evacuation strategies can significantly improve evacuation efficiency. This effect is particularly notable when there is a high population density on the upper floors and uneven personnel distribution due to the functional zoning of the teaching building. Overall, the combined strategy CS5, with its comprehensive optimization approach, demonstrates the best evacuation performance, while other combined strategies can also effectively improve evacuation efficiency under specific conditions. Compared to single strategies, combination strategies are more effective in alleviating congestion in personnel-dense areas of the teaching building, reducing congestion and significantly improving overall evacuation efficiency. This result emphasizes the importance of adopting integrated evacuation strategies.
Therefore, when considering pedestrian flow, personnel distribution, and priority ranking within the teaching building, it is essential to comprehensively assess the impact of each factor on evacuation efficiency and adopt a combination strategy to maximize evacuation efficiency. By combining various optimization measures, different evacuation challenges can be better addressed, improving the efficiency and safety of the entire evacuation process.

4.6. Psychological Factors of Individuals

The results indicate that panic significantly affects the evacuation path choice and time of individuals within buildings. Specifically, during evacuation, changes in pedestrians’ reaction time and walking speed cause a significant delay in movement, leading to reduced evacuation efficiency. By comparing evacuation data under different panic scenarios, we found that panic situations increase the likelihood of congestion, which not only obstructs evacuation paths but also significantly increases the evacuation time. In contrast, the role of a leader in the evacuation process proved to be beneficial. After introducing a leader, the evacuation time was significantly reduced. The leader’s group guidance behavior led others to evacuate in an orderly manner. Compared to scenarios without a leader, evacuations were more efficient with a leader, reducing congestion and optimizing the evacuation path. This demonstrates that leaders play a crucial role in alleviating panic and improving overall evacuation efficiency, as well as reducing evacuation time.
Therefore, to mitigate the negative impact of panic on the evacuation process, it is recommended to conduct regular fire safety training and emergency evacuation drills to help individuals familiarize themselves with the evacuation process and reduce confusion caused by panic. Ensuring the presence of experienced leaders during evacuation will effectively improve evacuation efficiency and ensure the smooth progress of the evacuation.

5. Conclusions

This study addresses the fire safety issues arising from the complexity of the building structure and the diversity of the student population in comprehensive teaching buildings. By utilizing BIM technology to visualize the 3D model of the teaching building and using Pathfinder software for emergency evacuation simulations, the study evaluates physical and architectural factors, including pedestrian flow, vertical distribution of personnel, functional zoning, personnel priority ranking, and the interaction of multiple strategies, as well as psychological factors such as panic and leadership. The analysis explores the impact of different factors on the emergency evacuation of comprehensive teaching buildings. The following conclusions were drawn:
  • Physical and architectural factors: The pedestrian flow strategy consistently has a significant impact on evacuation efficiency throughout the evacuation process. As the number of people decreases, evacuation time also decreases. The vertical distribution of personnel and horizontal functional zoning of the teaching building can both reduce the evacuation time. Scenario PF6, by reducing pedestrian flow, improved evacuation efficiency by 17.63%; scenario VD5, through the vertical distribution of personnel, improved evacuation efficiency by 15.49%; and scenario HF3, through functional adjustments across different areas, improved evacuation efficiency by 15.11%; scenario EP6 achieved an 11% improvement in evacuation efficiency by reducing the priority settings.
  • Optimization strategy and building structure adaptation: The optimization strategies for the vertical distribution of personnel, horizontal functional zoning of the teaching building, and priority settings should be tailored to the specific structure of the building and the characteristics of personnel distribution. When adjusting the vertical distribution of personnel, it is important to avoid excessive density on lower floors, which could create new evacuation bottlenecks. When adjusting horizontal functional zoning, large-scale changes should be avoided to prevent new congestion points in other areas. When adjusting personnel priority rankings, excessive priority settings should be minimized to prevent collisions between people during evacuation, which could lead to congestion. A reasonable vertical distribution of personnel and effective horizontal functional zoning in the teaching building can significantly improve evacuation efficiency.
  • Advantages of combining multiple strategies: By combining multiple optimization strategies, evacuation efficiency can be significantly improved. Especially in cases where there is high personnel density on higher floors and unreasonable functional zoning, the combination strategy can greatly reduce the evacuation time, resulting in a 23.94% improvement in evacuation efficiency.
  • Psychological factors: Panic significantly affects evacuation paths and times, with evacuation time increasing and efficiency decreasing as panic levels rise. In severe panic scenarios, evacuation efficiency decreased by 16.41%. The introduction of a leader significantly improved evacuation efficiency. Particularly at higher panic levels, this ensured a smoother and more efficient evacuation process. This further confirms the critical role of leaders in emergencies, with evacuation efficiency increasing by 9.81%.
  • Research contributions and practical applications: This study, through multi-factor coupling analysis, not only highlights the limitations of single strategies but also systematically validates the advantages of comprehensive optimization strategies in the evacuation of complex buildings: Evacuation Planning for Complex Buildings. The findings provide systematic references for architects and evacuation safety planners, particularly for the safety design of multifunctional complex buildings such as university teaching buildings, office buildings, and commercial complexes. Fire Emergency Management Optimization. This study emphasizes the importance of psychological and behavioral interventions, including enhancing routine fire drills and public education, as well as training professional evacuation leaders. These measures effectively mitigate panic during emergencies, improving evacuation efficiency and safety. Data-Driven Precision Layout Design. By leveraging BIM technology and simulation tools, the study offers data support for refined layout optimization and dynamic evacuation strategy design, significantly enhancing evacuation performance. This research provides valuable practical references for architects and safety planners, aiding in the optimization of building layouts and evacuation strategies, and improving the safety and efficiency of fire emergency evacuations.
Additionally, this study has certain limitations. For instance, while various factors were analyzed, the examination was not exhaustive. Future research should incorporate interdisciplinary methods from engineering, psychology, and sociology to study crowd behavior, psychological factors, and social dynamics.

Author Contributions

Writing—review and editing, J.W.; supervision, J.W.; funding acquisition, J.W.; conceptualization, J.W.; formal analysis, X.K.; writing—original draft, X.K.; data curation, Y.C.; investigation, M.Z.; software, J.S. All authors have read and agreed to the published version of the manuscript.

Funding

This research received no external funding.

Data Availability Statement

All data related to this study are presented in a tabular or graphic format within this document. Further clarifications are welcomed by the corresponding author.

Conflicts of Interest

The authors declare that they have no conflicts of interest.

References

  1. Li, Z.-Y.; Tang, M.; Liang, D.; Zhao, Z. Numerical Simulation of Evacuation in a Subway Station. Procedia Eng. 2016, 135, 616–621. [Google Scholar] [CrossRef]
  2. Li, X.; Chen, R.; Zhu, Y.; Jim, C.Y. Emergency fire evacuation simulation of underground commercial street. Simul. Model. Pract. Theory 2024, 134, 102929. [Google Scholar] [CrossRef]
  3. Wu, P.; Wang, Y.; Jiang, J.; Wang, J.; Zhou, R. Evacuation Optimization of a Typical Multi-exit Subway Station: Overall partition and local railing. Simul. Model. Pract. Theory 2022, 115, 102425. [Google Scholar] [CrossRef]
  4. Ivanov, M.L.; Chow, W.-K. Experimental and numerical evacuation study in tall office building. J. Build. Eng. 2023, 76, 107103. [Google Scholar] [CrossRef]
  5. Zhu, K.; Yang, Y.; Shi, Q. Study on evacuation of pedestrians from a room with multi-obstacles considering the effect of aisles. Simul. Model. Pract. Theory 2016, 69, 31–42. [Google Scholar] [CrossRef]
  6. Liu, S.; Yang, L.; Fang, T.; Li, J. Evacuation from a classroom considering the occupant density around exits. Phys. A 2009, 388, 1921–1928. [Google Scholar] [CrossRef]
  7. Delcea, C.; Cotfas, L.-A.; Craciun, L.; Molanescu, A.G. An agent-based modeling approach to collaborative classrooms evacuation process. Saf. Sci. 2020, 121, 414–429. [Google Scholar] [CrossRef]
  8. Zang, Y.; Mei, Q.; Liu, S. Evacuation simulation of a high-rise teaching building considering the influence of obstacles. Simul. Model. Pract. Theory 2021, 112, 102354. [Google Scholar] [CrossRef]
  9. Ren, X.; Hu, Y.; Li, H.; Zhang, J.; Song, W.; Xu, H. Simulation of building evacuation with different ratios of the elderly considering the influence of obstacle position. Phys. A 2022, 604, 127833. [Google Scholar] [CrossRef]
  10. Yao, Y.; Lu, W. Research on kindergarten children evacuation: Analysis of characteristics of the movement behaviours on stairway. Int. J. Disaster Risk Reduct. 2020, 50, 101718. [Google Scholar] [CrossRef]
  11. Yao, Y.; Lu, W. Children’s evacuation behavioural data of drills and simulation of the horizontal plane in kindergarten. Saf. Sci. 2021, 133, 105037. [Google Scholar] [CrossRef]
  12. Li, Y.; Lu, C.; Jin, J. Simulation of a pediatric hospital in evacuation considering groups. Simul. Model. Pract. Theory 2021, 107, 102150. [Google Scholar] [CrossRef]
  13. Wang, N.; Gao, Y.; Li, C.-Y.; Gai, W.-M. Integrated agent-based simulation and evacuation risk-assessment model for underground building fire: A case study. J. Build. Eng. 2021, 40, 102609. [Google Scholar] [CrossRef]
  14. Li, M.-X.; Zhu, S.-B.; Wang, J.-H.; Zhou, Z. Research on Fire Safety Evacuation in a University Library in Nanjing. Procedia Eng. 2018, 211, 372–378. [Google Scholar] [CrossRef]
  15. Zuo, J.; Shi, J.; Li, C.; Mu, T.; Zeng, Y.; Dong, J. Simulation and optimization of pedestrian evacuation in high-density urban areas for effectiveness improvement. Environ. Impact Assess. Rev. 2021, 87, 106521. [Google Scholar] [CrossRef]
  16. Mao, Y.; Wang, X.; Bai, Q.; He, W.; Pan, G. Simulated interventions based on virtual reality to improve emergency evacuation under different spatial perception models. Int. J. Ind. Ergon. 2024, 99, 103545. [Google Scholar] [CrossRef]
  17. Tong, Y.; Bode, N.W.F. Simulation investigation on crowd evacuation strategies for helping vulnerable pedestrians at different stages of egress. Int. J. Disaster Risk Reduct. 2023, 84, 103479. [Google Scholar] [CrossRef]
  18. Ren, J.; Mao, Z.; Gong, M.; Zuo, S. Modified social force model considering emotional contagion for crowd evacuation simulation. Int. J. Disaster Risk Reduct. 2023, 96, 103902. [Google Scholar] [CrossRef]
  19. Zhou, J.; Jia, X.; Jia, J. Effects of Different Staircase Design Factors on Evacuation of Children from Kindergarten Buildings Analyzed via Agent-Based Simulation. Healthcare 2020, 8, 56. [Google Scholar] [CrossRef]
  20. Wei, X.; Lou, Z.; Song, H.; Qin, H.; Yao, H. Exploring the Impacts of Exit Structures on Evacuation Efficiency. Fire 2023, 6, 462. [Google Scholar] [CrossRef]
  21. Yue, H.; Zhang, J.; Chen, W.; Wu, X.; Zhang, X.; Shao, C. Simulation of the influence of spatial obstacles on evacuation pedestrian flow in walking facilities. Phys. A 2021, 571, 125844. [Google Scholar] [CrossRef]
  22. Yan, Z.; Wang, Y.; Chao, L.; Guo, J. Study on Evacuation Strategy of Commercial High-Rise Building under Fire Based on FDS and Pathfinder. CMES-Comp. Model. Eng. 2023, 138, 1077–1102. [Google Scholar] [CrossRef]
  23. Shan, G.; Chen, C.; Qiang, L.; Mingming, Z.; Fei, Y. Study on the optimization for emergency evacuation scheme under fire in university building complex. Heliyon 2023, 9, e14277. [Google Scholar]
  24. Cui, Y.; Wang, H.; You, B.; Cheng, C.; Li, M. Simulation Study on Fire Product Movement Law and Evacuation in a University High-Rise Teaching Building. Appl. Sci. 2023, 13, 10532. [Google Scholar] [CrossRef]
  25. Safari, M.; Afkhami, R.; Amerzadeh, M.; Zaroushani, V. Simulation of Fire Emergency Evacuation in a Primary School Based on Pathfinder Software. Buildings 2025, 15, 90. [Google Scholar] [CrossRef]
  26. Xiao, M.; Zhou, X.; Pan, X.; Wang, Y.; Wang, J.; Li, X.; Sun, Y.; Wang, Y. Simulation of emergency evacuation from construction site of prefabricated buildings. Sci. Rep. 2022, 12, 2732. [Google Scholar] [CrossRef] [PubMed]
  27. Schröder, B.; Arnold, L.; Seyfried, A. A map representation of the ASET-RSET concept. Fire Saf. J. 2020, 115, 103154. [Google Scholar] [CrossRef]
  28. Chen, L.; Tang, T.-Q.; Huang, H.-J.; Wu, J.-J.; Song, Z. Modeling pedestrian flow accounting for collision avoidance during evacuation. Simul. Model. Pract. Theory 2018, 82, 1–11. [Google Scholar] [CrossRef]
  29. Chow, W.K.; Ng, C.M.Y. Waiting time in emergency evacuation of crowded public transport terminals. Saf. Sci. 2008, 46, 844–857. [Google Scholar] [CrossRef]
  30. Li, Y.-F.; Chen, J.-M.; Ji, J.; Zhang, Y.; Sun, J.-H. Analysis of Crowded Degree of Emergency Evacuation at “Bottleneck” Position in Subway Station Based on Stairway Level of Service. Procedia Eng. 2011, 11, 242–251. [Google Scholar] [CrossRef]
  31. Cao, S.; Fu, L.; Wang, P.; Zeng, G.; Song, W. Experimental and modeling study on evacuation under good and limited visibility in a supermarket. Fire Saf. J. 2018, 102, 27–36. [Google Scholar] [CrossRef]
  32. Jeon, G.-Y.; Kim, J.-Y.; Hong, W.-H.; Augenbroe, G. Evacuation performance of individuals in different visibility conditions. Build. Environ. 2011, 46, 1094–1103. [Google Scholar] [CrossRef]
  33. Chen, J.; Wang, J.; Wang, B.; Liu, R.; Wang, Q. An experimental study of visibility effect on evacuation speed on stairs. Fire Saf. J. 2018, 96, 189–202. [Google Scholar] [CrossRef]
  34. Cao, S.; Song, W.; Lv, W.; Fang, Z. A multi-grid model for pedestrian evacuation in a room without visibility. Phys. A 2015, 436, 45–61. [Google Scholar] [CrossRef]
  35. Cuesta, A.; Ronchi, E.; Gwynne, S.M.V.; Kinsey, M.J.; Hunt, A.L.E.; Alvear, D. School egress data: Comparing the configuration and validation of five egress modelling tools. Fire Mater. 2017, 41, 535–554. [Google Scholar] [CrossRef]
  36. GB/T 10000-2023; Human Dimensions of Chinese Adults. State Administration for Market Regulation: Beijing, China; National Standardization Administration: Beijing, China, 2023.
  37. Yang, M. Research on Fire Evacuation Simulation and Design Optimization of College Experimental Building Based on BIM. Master’s Thesis, Yangtze University, Jingzhou, China, 2023. [Google Scholar]
  38. Zhang, W.; Zhang, Z.; Wang, T.; Nong, T.; Ma, Y.; Lee, E.W.M.; Shi, M. Effects of risk information on pedestrian evacuation during fire emergencies: Virtual experiments and survey. Phys. A 2024, 656, 130232. [Google Scholar] [CrossRef]
  39. Ministry of Public Security Tianjin Fire Research Institute. Code for Fire Protection Design of Buildings (2018); Ministry of Housing and Urban-Rural Development of the People’s Republic of China; General Administration of Quality Supervision, Inspection and Quarantine of the People’s Republic of China: Beijing, China, 2014; p. 468.
  40. Bolina, F.L.; Fachinelli, E.G.; Pachla, E.C.; Centeno, F.R. A critical analysis of the influence of architecture on the temperature field of RC structures subjected to fire using CFD and FEA models. Appl. Therm. Eng. 2024, 247, 123086. [Google Scholar] [CrossRef]
Figure 1. Time line of evacuation and fire development.
Figure 1. Time line of evacuation and fire development.
Buildings 15 00796 g001
Figure 2. Diagram of teaching building.
Figure 2. Diagram of teaching building.
Buildings 15 00796 g002
Figure 3. (a) Architectural plan of the ground floor of the teaching building. (b) BIM model of the teaching building.
Figure 3. (a) Architectural plan of the ground floor of the teaching building. (b) BIM model of the teaching building.
Buildings 15 00796 g003
Figure 4. (a) Initial personnel distribution map. (b) Local personnel distribution map.
Figure 4. (a) Initial personnel distribution map. (b) Local personnel distribution map.
Buildings 15 00796 g004
Figure 5. (a) Evacuation and stranding volume change curves. (b) Route map of the escape flow at 100 s.
Figure 5. (a) Evacuation and stranding volume change curves. (b) Route map of the escape flow at 100 s.
Buildings 15 00796 g005
Figure 6. Pedestrian flow simulation results.
Figure 6. Pedestrian flow simulation results.
Buildings 15 00796 g006
Figure 7. Vertical distribution results.
Figure 7. Vertical distribution results.
Buildings 15 00796 g007
Figure 8. Horizontal zoning simulation results.
Figure 8. Horizontal zoning simulation results.
Buildings 15 00796 g008
Figure 9. Personnel priority ranking simulation results.
Figure 9. Personnel priority ranking simulation results.
Buildings 15 00796 g009
Figure 10. Combination strategy simulation results.
Figure 10. Combination strategy simulation results.
Buildings 15 00796 g010
Figure 11. Psychological factor impact results.
Figure 11. Psychological factor impact results.
Buildings 15 00796 g011
Figure 12. Evacuation completion time of stairs under different pedestrian flow scenarios.
Figure 12. Evacuation completion time of stairs under different pedestrian flow scenarios.
Buildings 15 00796 g012
Figure 13. Evacuation completion time of stairs under different vertical distribution of personnel scenarios.
Figure 13. Evacuation completion time of stairs under different vertical distribution of personnel scenarios.
Buildings 15 00796 g013
Figure 14. Evacuation completion time of stairs under different horizontal functional zoning scenarios.
Figure 14. Evacuation completion time of stairs under different horizontal functional zoning scenarios.
Buildings 15 00796 g014
Figure 15. Evacuation completion time of stairs under different evacuation personnel priority ranking scenarios.
Figure 15. Evacuation completion time of stairs under different evacuation personnel priority ranking scenarios.
Buildings 15 00796 g015
Figure 16. (a) Evacuation completion times for each floor of the S4 staircase. (b) Evacuation completion times for each floor of the S6 staircase.
Figure 16. (a) Evacuation completion times for each floor of the S4 staircase. (b) Evacuation completion times for each floor of the S6 staircase.
Buildings 15 00796 g016
Table 1. Chinese adult human body size.
Table 1. Chinese adult human body size.
ItemDescription
Allocation of PersonnelRandomly assigned
Shoulder Width of Characters—Middle-aged women40.5 cm
Shoulder Width of Characters—Middle-aged men43.3 cm
Shoulder Width of Characters—Young women39.1 cm
Shoulder Width of Characters—Young men42.7 cm
Average Walking Speed—Middle-aged women1.10 m/s
Average Walking Speed—Middle-aged man1.22 m/s
Average Walking Speed—Young women1.21 m/s
Average Walking Speed—Young men1.30 m/s
Human Behavior PatternsGo to Any Exit
Behavioral ModelSteering Mode
Table 2. Estimated number of persons/persons on each floor of the academic building.
Table 2. Estimated number of persons/persons on each floor of the academic building.
1F2F3F4F5F6FTotal
Number of persons/person4995076277576817203791
Table 3. Pedestrian flow adjustment plans and total number of people reduced.
Table 3. Pedestrian flow adjustment plans and total number of people reduced.
Description of Simulation ScenarioReduced Number of People Distribution (4F/5F/6F)Total Number of People Reduced
Scenario numberMInitial adjustment in progress——
PF1Reduced 61 people from large classroom on 6F0/0/−6161
PF2Reduced 61 people from large classroom on 6F, and 31 people from small classroom0/0/−9292
PF3Reduced 61 people from large classroom on 6F, and 31 people from small classroom, and 61 people from large classroom on 5F0/−61/−92153
PF4Reduced 61 people from large classroom on 5F and 6F, and 31 people from small classroom0/−92/−92184
PF5Reduced 61 people from large classroom on 5F and 6F, 31 people from small classroom, and 31 people from small classroom on 4F−61/−92/−92245
PF6Reduced 61 people from large classroom on 4F, 5F, and 6F, and 31 people from small classroom−92/−92/−92276
Table 4. Vertical adjustment scenarios for population distribution.
Table 4. Vertical adjustment scenarios for population distribution.
1F2F3F4F5F6FTotal
Scenario numberM2904094225125035022638
VD13214404534814724712638
VD23825005134204114102638
VD33824704225124424102638
VD43825014225124114102638
VD53825014834514114102638
VD63825015144204114102638
Table 5. Horizontal functional redistribution across zones (A, B, C).
Table 5. Horizontal functional redistribution across zones (A, B, C).
A BCTotal
Scenario numberM56326395893791
HF168624856203791
HF277523686483791
HF380122587323791
HF482522347323791
Table 6. Evacuation personnel priority settings.
Table 6. Evacuation personnel priority settings.
Crowd CategoriesMiddle-Aged WomenMiddle-Aged MenYoung WomenYoung Men
Scenario numberM3210
EP13120
EP20213
EP31010
EP41000
EP50100
EP60000
Table 7. Optimization strategies for combined scenarios and their effects on evacuation.
Table 7. Optimization strategies for combined scenarios and their effects on evacuation.
Combination StrategiesCombination Strategy Description
Scenario numberM
CS1PF2 + VD2Pedestrian flow + Vertical Distribution of Personnel
CS2VD5 + HF3Vertical Distribution of Personnel + Horizontal Functional Zoning
CS3PF6 + VD1Pedestrian flow + Vertical Distribution of Personnel
CS4PF6 + HF3Pedestrian flow + Horizontal Functional Zoning
CS5PF6 + HF3+ EP1Pedestrian flow + Horizontal Functional Zoning+ Evacuation Personnel Priority Ranking
Table 8. Personality factors and panic level scenario settings.
Table 8. Personality factors and panic level scenario settings.
Panic LevelLeader Present
Scenario numberM
P1MildNo
P2ModerateNo
P3SevereNo
P4MildYes
P5ModerateYes
P6SevereYes
Disclaimer/Publisher’s Note: The statements, opinions and data contained in all publications are solely those of the individual author(s) and contributor(s) and not of MDPI and/or the editor(s). MDPI and/or the editor(s) disclaim responsibility for any injury to people or property resulting from any ideas, methods, instructions or products referred to in the content.

Share and Cite

MDPI and ACS Style

Wang, J.; Ke, X.; Chen, Y.; Zhu, M.; Sun, J. Fire Evacuation Influence Factor Analysis and Optimization Research for Comprehensive Teaching Buildings. Buildings 2025, 15, 796. https://doi.org/10.3390/buildings15050796

AMA Style

Wang J, Ke X, Chen Y, Zhu M, Sun J. Fire Evacuation Influence Factor Analysis and Optimization Research for Comprehensive Teaching Buildings. Buildings. 2025; 15(5):796. https://doi.org/10.3390/buildings15050796

Chicago/Turabian Style

Wang, Jian, Xiaoqian Ke, Yuyan Chen, Mingzhan Zhu, and Jingfeng Sun. 2025. "Fire Evacuation Influence Factor Analysis and Optimization Research for Comprehensive Teaching Buildings" Buildings 15, no. 5: 796. https://doi.org/10.3390/buildings15050796

APA Style

Wang, J., Ke, X., Chen, Y., Zhu, M., & Sun, J. (2025). Fire Evacuation Influence Factor Analysis and Optimization Research for Comprehensive Teaching Buildings. Buildings, 15(5), 796. https://doi.org/10.3390/buildings15050796

Note that from the first issue of 2016, this journal uses article numbers instead of page numbers. See further details here.

Article Metrics

Back to TopTop