Acoustic Analysis of the Masjid at Necmettin Erbakan University Köyceğiz Campus in Konya
Abstract
1. Introduction
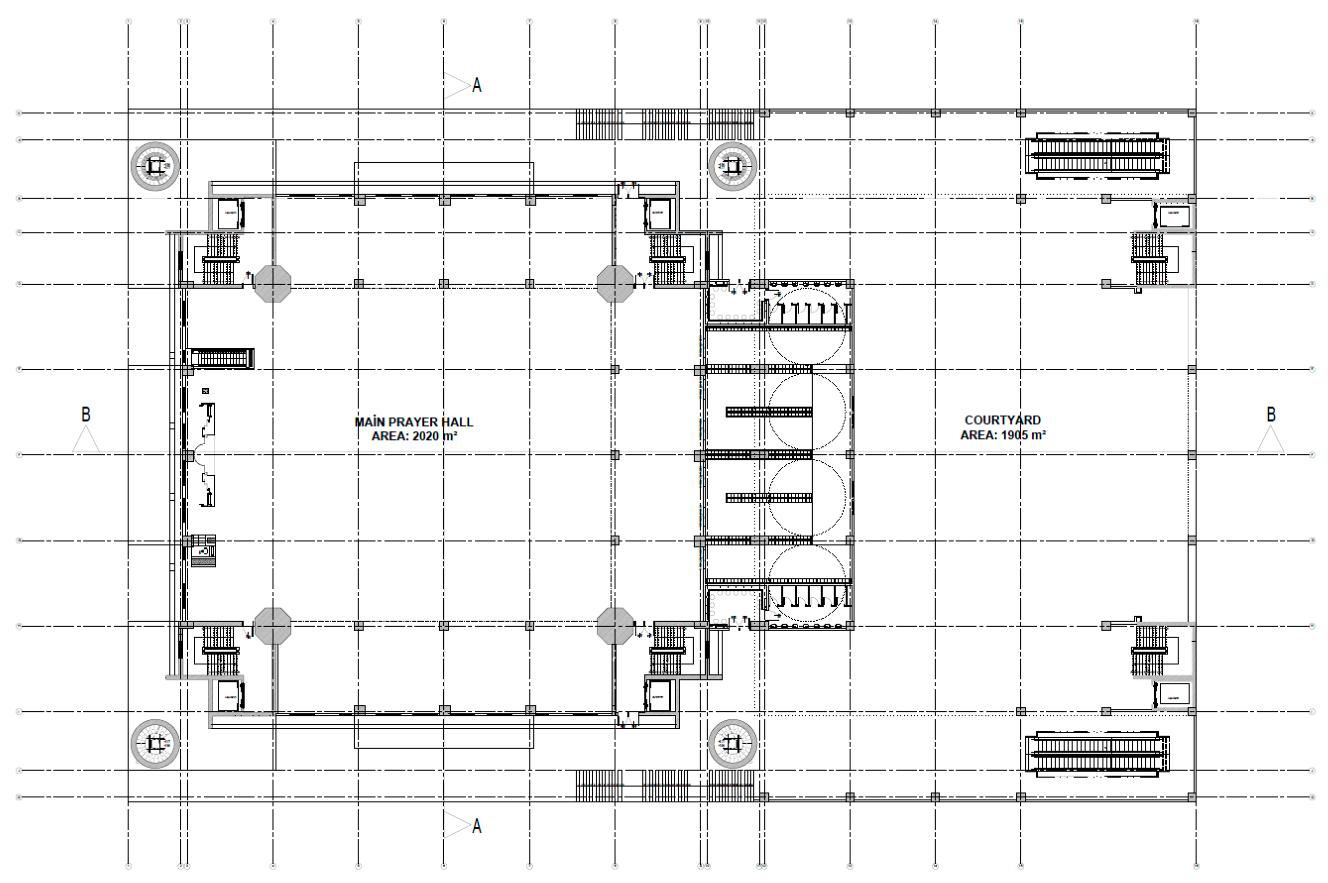
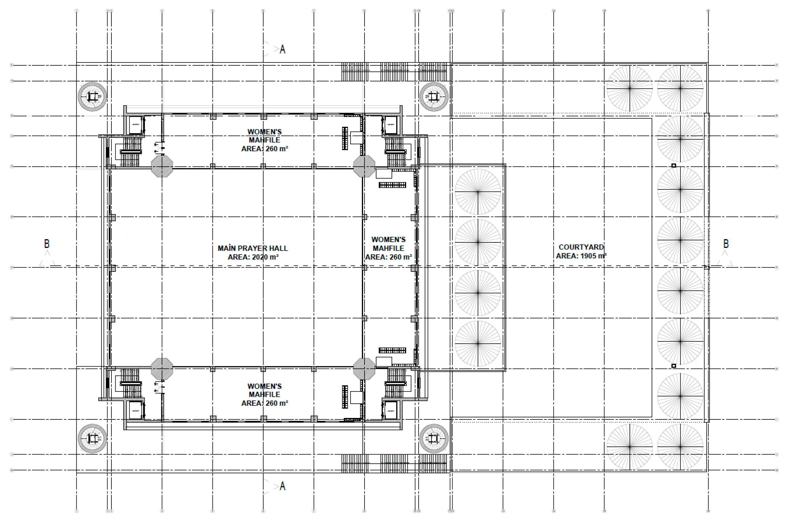
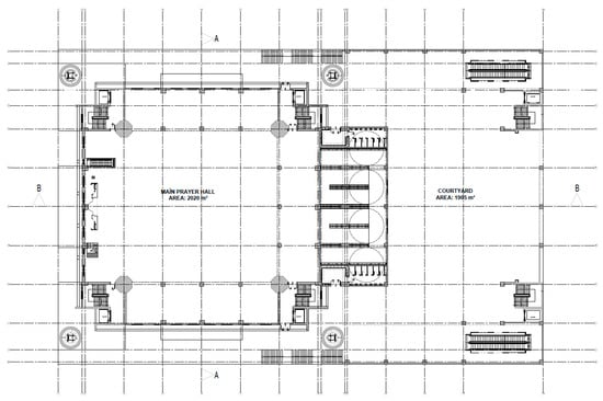
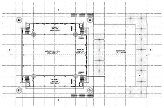
Architectural Features of the Necmettin Erbakan University Köyceğiz Campus Masjid
2. Methods
2.1. Activities Taking Place in the Masjid and Assumptions About Source and Receiver Locations
- Friday Prayer Activity: The imam is in front of the mihrab, facing the qibla and his height from the ground is 1.55 m. The receivers are assumed to be at 1.65 m height, which is the average ear level of a standing person. It is also assumed that the entire masjid is full of listeners.
- Friday Khutba Activity: The imam is on the minbar, facing towards the centre of the congregation, and his height from the floor of the masjid is 3.50 m. The receiver height is 0.85 m, which is the ear level of a person sitting on the floor. In the Friday khutba activity, it was assumed that the entire masjid was full, as in the Friday prayer activity.
- Daily Prayer Activity: As in the Friday Prayer activity, the source is in front of the mihrab, the imam is facing the qibla, and the height of the source from the ground is 1.55 m. The receiver height is 1.65 m, which is the ear level of a standing person. It was assumed that one-third of the masjid was full during the daily prayer.
- Sermon Activity: The imam is standing on the pulpit, facing the congregation, and his height is 1.75 m. above the floor of the masjid. In masjids in Turkey, sermons are given before the noon and at prayers. Since the majority of the congregation gathered in the masjid when there was a very short time left before the prayer time, the most unfavourable acoustic condition of the masjid, which is when it is empty, was accepted in this activity [10,20].
2.2. Acceptances Related to Acoustic Simulation Software (ODEON V.14.04)
2.3. Acceptances Related to Materials Used
2.4. Acceptances Related to Room Acoustic Parameters
3. Acoustic Analyses
3.1. Friday Prayer Activity
3.2. Friday Khutba Activity
3.3. Daily Prayer Activity
3.4. Sermon Activity
3.5. Comparison of Results from Different Activities
4. Discussion and Comparison with Other Mosques/Masjids
5. Conclusions
Author Contributions
Funding
Data Availability Statement
Conflicts of Interest
References
- Orfali, W. Room Acoustic and Modern Electro-Acoustic Sound System Design during Constructing and Reconstructing Mosques. Ph.D. Thesis, Technischen Universität Berlin, Berlin, Germany, 2007. [Google Scholar]
- Su, Z.; Yılmazer, S. The Acoustical Characteristics of the Kocatepe Mosque in Ankara, Turkey. Archit. Sci. Rev. 2008, 51, 21–30. [Google Scholar] [CrossRef]
- Ismail, M.R. A Parametric Investigation of the Acoustical Performance of Contemporary Mosques. Front. Archit. Res. 2013, 2, 30–41. [Google Scholar] [CrossRef]
- Mohammad Zaki, M. Acoustics in Religious Buildings. Available online: https://www.academia.edu/8617155/Mosque_Acoustics (accessed on 20 March 2017).
- Gül, Z.; Çalışkan, M. Impact of Design Decisions on Acoustical Comfort Parameters: Case Study of Doğramacızade Ali Paşa Mosque. Appl. Acoust. 2013, 74, 834–844. [Google Scholar] [CrossRef]
- Masih, D.A.A.; Jalal, N.K.; Mohammed, M.N.A.; Mustafa, S.A. The Assessment of Acoustical Characteristics for Recent Mosque Buildings in Erbil City of Iraq. ARO Sci. J. Koya Univ. 2021, 9, 51–66. [Google Scholar] [CrossRef]
- Weitze, C.; Rindel, J.; Christensen, C.; Andreas, C.; Holger, J.; Lynge, C.; Christian, A. The Acoustical History of Hagia Sophia revived through Computer Simulation. In Proceedings of the 3rd European Congress on Acoustics, Sevilla, Spain, 16–20 September 2002; Volume 2. [Google Scholar]
- El-Khateeb, A.; Refat Ismail, M. Sounds from the past the acoustics of Sultan Hassan Mosque and Madrasa. Build. Acoust. 2007, 14, 109–132. [Google Scholar] [CrossRef]
- Kassım, H.; Putra, A.; Nor, M. The Acoustical Characteristics of The Sayyidina Abu Bakar Mosque, UTeM. J. Eng. Sci. Technol. 2015, 10, 97–110. [Google Scholar]
- Abdou, A. Measurement of acoustical characteristics of mosques in Saudi Arabia. J. Acoust. Soc. Am. 2003, 113, 1505–1517. [Google Scholar] [CrossRef]
- Elkhateeb, A.; Adas, A.; Attia, M.; Balila, Y. The acoustics of Masjids, why they differ from the classical speech rooms. In Proceedings of the 22nd International Congress on Sound and Vibration, ICSV 2015, Florence, Italy, 12–16 July 2015. [Google Scholar]
- Kayılı, M. Acoustic Solutions in Classic Ottoman Architecture; FSTC Limited: Manchester, UK, 2005. [Google Scholar]
- Eldien, H.H.; Al-Qahtani, H. The Acostical Performance of Mosques Main Prayer Hall Geometry in the Eastern Province, Saudi Arabia. In Proceedings of the Acoustics 2012 Nantes Conference, Nantes, France, 23–27 April 2012. [Google Scholar]
- Alomari, O.M.; Gandah, F.; Khraisat, D. The Impact of Geometrical Structure of Domes on the Acoustic Performance within Mosques. J. Civ. Eng. Archit. 2019, 13, 244–250. [Google Scholar] [CrossRef]
- Eldien, H.H. Evaluation of the influence of Mihrab shape on sound quality in Mosques. J. Eng. Res. 2024, in press. [Google Scholar] [CrossRef]
- Sü Gül, Z.; Çalışkan, M.; Tavukçuoğlu, A. On The Acoustics of Süleymaniye Mosque: From Past to Present. MEGARON/Yıldız Tech. Univ. Fac. Archit. E-J. 2014, 9, 201–216. [Google Scholar] [CrossRef]
- Aleshkin, V.M.; Bouttout, A.; Subbotkin, A.O.; Benferhat, M.L.; Amara, M. Acoustics of the Ketchaoua Mosque in Algeria. Acoust. Phys. 2021, 67, 302–311. [Google Scholar] [CrossRef]
- Pratiwi, R.U.; Sudarsono, A.S.; Muttaqin, Z.; Supriyanto, S. OPTIMIZING THE ACOUSTIC CONDITION OF A PYRAMIDAL-CEILING MOSQUE BASED ON SIMULATION. J. Islam. Archit. 2023, 7, 713. [Google Scholar] [CrossRef]
- Sukaj, S.; Bevilacqua, A.; Iannace, G.; Saidane, F. Acoustics and prayers: Investigations on the Great Mosque of Tirana, Albania. In Proceedings of the 2023 Immersive and 3D Audio: From Architecture to Automotive, I3DA 2023, Bologna, Italy, 5–7 September 2023. [Google Scholar] [CrossRef]
- Kaygısız, A. Mimar Sinan Camilerinden Şemsi Ahmet Paşa Camii (Üsküdar) ile T.C. Diyanet İşleri Başkanlığı Tip 3 Camii’nin Akustik Açıdan Karşılaştırılması. Master’s Thesis, İstanbul Teknik Üniversitesi Fen Bilimleri Enstitüsü, Istanbul, Turkey, 2019. [Google Scholar]
- Tuna, R.; Semerci, F.; Başar, M.E.; Kaygısız, A. Mahalle Mescitlerinin Akustik Konfor Analizi: Konya’dan İki Örnek. Süleyman Demirel Üniversitesi Fen Bilim. Enstitüsü Derg. 2021, 25, 594–609. [Google Scholar] [CrossRef]
- Sert, F.Y.; Karaman, Ö.Y. An Investigation on the Effects of Architectural Features on Acoustical Environment of Historical Mosques. Acoustics 2021, 3, 36. [Google Scholar] [CrossRef]
- Sukaj, S.; Bevilacqua, A.; Ciaburro, G.; Iannace, G.; Trematerra, A. Ottoman mosques in albania: Building acoustic exploration inside five case studies. Buildings 2021, 11, 430. [Google Scholar] [CrossRef]
- Benferhat, M.L.; Debache Benzagouta, S.; Bouttout, A.; Martellotta, F. Acoustical characterization of three Ottoman masjids built in Algeria. Build. Acoust. 2022, 29, 481–501. [Google Scholar] [CrossRef]
- Semerci, F.; Kaygısız, A. Acoustical Performance of Necmettin Erbakan University Köyceğiz Campus Mosque Research Project Report; Scientific Research Projects Coordination Unit of Necmettin Erbakan University: Konya, Türkiye, 2017. [Google Scholar]
- ODEON A/S. ODEON Room Acoustics Software Version 14 Manual; Odeon A/S: Lyngby, Denmark, 2016. [Google Scholar]
- Dimon, M.N.; Adzim, S.D.; Hassan, H.; Azliza, N.; Jusoh, M.Z. Good Speech İntelligibility through Novel Acoustics Material of Geometric Perforated Panel in Mosques. In Proceedings of the ISRA 2010, Melbourne, Australia, 29–31 August 2010. [Google Scholar]
- Kinsler, L.E.; Frey, A.R.; Coppens, A.B.; Sanders, J.V. Fundamentals of Acoustics; John Wiley & Sons, Inc.: New York, NY, USA, 2000. [Google Scholar]
- Mehta, M.; Johnson, J.; Rocafort, J. Architectural Acoustic: Princibles and Design; Prentice-Hall: Upper Saddle River, NJ, USA, 1999. [Google Scholar]
- TS EN ISO 3382-1; Akustik—Odaların Akustik Parametrelerinin Ölçülmesi—Bölüm 1: Gösteri Mekanları. ISO: Geneva, Switzerland, 2010.
- Barron, M. Auditorium Acoustics and Architectural Design, 2nd ed.; Spon Press: London, UK; New York, NY, USA, 2009. [Google Scholar]
- Kassim, H.; Putra, A.; Nor, M.; Muhammed, N. Effect of Pyramidal Dome Geometry on the Acoustical Charecteristics in a Mosque. J. Mech. Eng. Sci. 2014, 7, 1127–1133. [Google Scholar] [CrossRef]
- Long, M. Architectural Acoustic; Elsevier Academic Press: Berkeley, CA, USA, 2006. [Google Scholar]
- Sü Gül, Z.; Çalışkan, M. Acoustical design of Turkish Religious Affairs Mosque. J. Acoust. Soc. Am. 2013, 133 (Suppl. S5), 3404. [Google Scholar] [CrossRef]
- Zerhan, K.; Sevda, E. Comparison of the Acoustical Properties of an Ancient and a Recent Mosque. Forum Acusticum 2002, 30, 43–55. [Google Scholar]
- Elkhateeb, A.A. Acoustic environment assessment in the contemporary masjids with special reference to non-traditional forms—Case study. In Proceedings of the 19th International Congress on Sound and Vibration 2012, ICSV 2012, Vilnius, Lithuania, 8–12 July 2012; Volume 4. [Google Scholar]
- Din, N.C.; Adzahan, Z.; Razak, A.S.; Abdullah, Z.; Jusoh, M.Z.; Dimon, M.N. Comparison of the acoustical performance of mihrab design in mosques using computer simulation studies. In Proceedings of the INTER-NOISE 2015—44th International Congress and Exposition on Noise Control Engineering, San Francisco, CA, USA, 9–12 August 2015. [Google Scholar]
- Othman, A.R.; Mohamed, M.R. Influence of Proportion towards Speech Intelligibility in Mosque’s Praying Hall. Procedia Soc. Behav. Sci. 2012, 35, 321–329. [Google Scholar] [CrossRef][Green Version]
- Carvalho, A.P.O.; Freitas, C.P.T. Acoustical characterization of the central mosque of Lisbon. In Proceedings of the Forum Acusticum 2011, Aalborg, Denmark, 27 June–1 July 2011. [Google Scholar]
- Hammou Zohra, B. The Numerical Simulation Support Tool for the Assessment of the Acoustic Quality of Worship Spaces. Int. J. Comput. Sci. Eng. Inf. Technol. 2016, 6, 1–20. [Google Scholar] [CrossRef]
































| Masjid Dimensions | Facade Ratio | Floor Area (A1) | Mahfil Area (A2) | Total Area (A) | ||
|---|---|---|---|---|---|---|
| Width (W) | Length (L) | Height (H) | ||||
| m | m | m | L/W | m2 | m2 | A1 + A2 |
| 48.40 | 48.40 | 32.60 | 1 | 1975 | 810 | 2785 |
| Ground Floor Capacity (C1) | Mahfil Floor Capacity (C2) | Total Capacity (C) | Volume | Volume Per Capita | Total Surface Area | |
| Person | Person | C1 + C2 | m3 | V/C | m2 | |
| 2060 | 840 | 2900 | 43,300 | 15 | 13,265 | |
| Material Name | 125 Hz | 250 Hz | 500 Hz | 1000 Hz | 2000 Hz | 4000 Hz |
|---|---|---|---|---|---|---|
| Marble Cladding [26] | 0.01 | 0.01 | 0.01 | 0.01 | 0.02 | 0.02 |
| 16–22 mm Wood Veneer (Interlocking) [26] | 0.25 | 0.15 | 0.10 | 0.09 | 0.08 | 0.07 |
| Smooth Plaster or Lime Render [26] | 0.14 | 0.10 | 0.06 | 0.04 | 0.04 | 0.03 |
| Heavy Carpeting Over Concrete [26] | 0.02 | 0.06 | 0.14 | 0.37 | 0.60 | 0.65 |
| Double Glazing (2–3 mm Glass-10 mm Gap) [26] | 0.10 | 0.07 | 0.05 | 0.03 | 0.02 | 0.02 |
| Solid Wood Door [26] | 0.14 | 0.10 | 0.06 | 0.08 | 0.10 | 0.10 |
| Congregation in the Masjid (During Prayer) [9] | 0.26 | 0.46 | 0.87 | 0.99 | 0.99 | 0.99 |
| Congregation in the Masjid (Listening to the Sermon) [9] | 0.22 | 0.38 | 0.71 | 0.95 | 0.99 | 0.99 |
| Marble Panel with 40% Open Area (70 mm) [27] | 0.90 | 0.90 | 0.70 | 0.65 | 0.50 | 0.40 |
| Reverberation Time (RT) | Frequencies | |||||
|---|---|---|---|---|---|---|
| 125 Hz | 250 Hz | 500 Hz | 1000 Hz | 2000 Hz | 4000 Hz | |
| Optimum | 3.75 | 3.12 | 2.60 | 2.60 | 2.17 | 1.81 |
| Higher Limit | 4.12 | 3.44 | 2.86 | 2.86 | 2.39 | 1.99 |
| Lower Limit | 3.41 | 2.84 | 2.37 | 2.37 | 1.97 | 1.64 |
| Sound Energy Parameters | Source | |
|---|---|---|
| RT | RTopt = 0.822 × V0.1080 s (500 Hz) | [8] |
| EDT | EDT = ±10%×RT | [29] |
| C80 (Music) | −5 dB < C80 < +5 dB | [30] |
| C50 (Speech) | C50 > 0 dB | [31] |
| LF80 (Music) | 0.10 < LF80 < 0.35 | [31] |
| LF80 (Speech) | LF80 > 0.35 | [32] |
| Speech Intelligibility Parameters | Source | |||||
|---|---|---|---|---|---|---|
| D50 | 0.30 < D50 < 0.70 | [30] | ||||
| Bad | Poor | Satisfactory | Good | Excellent | ||
| STI (Male) | <0.30 | 0.30–0.45 | 0.45–0.60 | 0.60–0.75 | >0.75 | [33] |
| Sound Strength Parameters | Source | |
|---|---|---|
| G (Speech) | 0 dB < G | [31] |
| G (Music) | 0 dB < G < +10 dB | [31] |
| V | RT | STI | ||||
|---|---|---|---|---|---|---|
| V (m3) | RT (s) | |||||
| Türkiye | Kocatepe Mosque, Ankara | Empty | 1 | 68,696 | 5.54 | |
| Kocatepe Mosque, Ankara | Fully Occupied | 1’ | 68,696 | 3.04 | 0.60 | |
| Süleymaniye Mosque, İstanbul (after restoration) | Empty | 2 | 120,000 | 6.02 | ||
| Süleymaniye Mosque, İstanbul (after restoration) | Fully Occupied | 2’ | 120,000 | 4.78 | ||
| Süleymaniye Mosque, İstanbul (before restoration) | Empty | 3 | 120,000 | 3.24 | ||
| Süleymaniye Mosque, İstanbul (before restoration) | Fully Occupied | 3’ | 120,000 | 2.85 | ||
| Turkish Religious Affairs (DIB) Mosque, Ankara | Fully Occupied | 4 | 92,987 | 1.93 | 0.42–0.70 | |
| Hagia Sophia as a mosque, İstanbul | Empty | 5 | 255,800 | 6.10 | ||
| Hagia Sophia as a mosque, İstanbul | Fully Occupied | 5’ | 255,800 | 3.90 | ||
| Doğramacızade Ali Paşa Mosque, Ankara | Empty | 6 | 6840 | 2.12 | 0.54 | |
| Doğramacızade Ali Paşa Mosque, Ankara | Fully Occupied | 6’ | 6840 | 1.19 | 0.60 | |
| Sokullu Mosque, İstanbul | 7 | 5700 | 2.73 | 0.51 | ||
| Şişli Mosque, İstanbul | 8 | 4750 | 3.05 | 0.50 | ||
| Egypt | Al-Rahma Masjid, Cairo | Empty | 9 | 12,760 | 2.50 | 0.59 |
| Al-Rahma Masjid, Cairo | Fully Occupied | 9’ | 12,760 | 1.80 | ||
| Sultan Hasan Mosque, Cairo | Empty | 10 | 12,825 | 3.20 | ||
| Sultan Hasan Mosque, Cairo | Fully Occupied | 10’ | 12,825 | 2.20 | ||
| Malaysia | Masjid Kg Bukit Belimbing | 11 | 617 | 1.30 | 0.38–0.70 | |
| Masjid Jamek Kg Sungai Gulang-Gulang | 12 | 1109 | 1.80 | 0.25–0.63 | ||
| Masjid Dato Dagang | 13 | 777 | 3.30 | 0.30–0.55 | ||
| Masjid Sultan Suleiman | 14 | 1844 | 2.00 | 0.20–0.60 | ||
| Masjid Jamek Kuala Lumpur | 15 | 2971 | 2.30 | 0.18–0.62 | ||
| Masjid Sultan Alaeddin | 16 | 1030 | 1.30 | 0.18–0.70 | ||
| Masjid Jamek Sungai Besi, Kuala Lumpur | 17 | 539 | 1.30 | |||
| Masjid Jamek Selayang Lama, Kuala Lumpur | 18 | 710 | 1.20 | |||
| Masjid Jamek Jalan Haji Salleh, Kuala Lumpur | 19 | 809 | 0.98 | |||
| Masjid Jamek Tengku Abdul Aziz Shah, Kuala Lumpur | 20 | 1687 | 1.44 | |||
| Masjid Jamek Sungai Mulia, Kuala Lumpur | 21 | 4219 | 2.41 | |||
| Masjid Jamek Bandar Manjalara, Kuala Lumpur | 22 | 12,200 | 3.32 | |||
| The Seyyidina Abu Bakar Mosque | Empty | 23 | 19,500 | 3.40 | ||
| The Seyyidina Abu Bakar Mosque | Fully Occupied | 23’ | 19,500 | 2.00 | ||
| Kuwait | Dewela Mosque Main Prayer Hall | 24 | 186,369 | 5.80 | ||
| Dewela Mosque Daily Prayer Hall | 25 | 20,689 | 2.90 | |||
| Syria | Damascus City Centre Mosque, Mudun | 26 | 1.10 | |||
| Portugal | Main Prayer Hall, Central Mosque of Lisbon | 27 | 3440 | 2.70 | ||
| Women Prayer Hall, Central Mosque of Lisbon | 28 | 2600 | 2.50 | |||
| Algeria | Ennour Mosque, Constantine | 29 | 5382 | 1.55 | ||
| Ibn el Arabi Mosque, Constantine | 30 | 9486 | 1.68 | |||
| Konya | The Masjid at Necmettin Erbakan University Köyceğiz Campus, Konya | NEU | 43,300 | 4.60 | 0.27 | |
| The Masjid at Necmettin Erbakan University Köyceğiz Campus, Konya | NEU’ | 43,300 | 2.08 | 0.37 |
Disclaimer/Publisher’s Note: The statements, opinions and data contained in all publications are solely those of the individual author(s) and contributor(s) and not of MDPI and/or the editor(s). MDPI and/or the editor(s) disclaim responsibility for any injury to people or property resulting from any ideas, methods, instructions or products referred to in the content. |
© 2024 by the authors. Licensee MDPI, Basel, Switzerland. This article is an open access article distributed under the terms and conditions of the Creative Commons Attribution (CC BY) license (https://creativecommons.org/licenses/by/4.0/).
Share and Cite
Kaygısız, A.; Semerci, F.; Tuna Sayın, R. Acoustic Analysis of the Masjid at Necmettin Erbakan University Köyceğiz Campus in Konya. Buildings 2024, 14, 3330. https://doi.org/10.3390/buildings14103330
Kaygısız A, Semerci F, Tuna Sayın R. Acoustic Analysis of the Masjid at Necmettin Erbakan University Köyceğiz Campus in Konya. Buildings. 2024; 14(10):3330. https://doi.org/10.3390/buildings14103330
Chicago/Turabian StyleKaygısız, Ali, Fatih Semerci, and Rumeysa Tuna Sayın. 2024. "Acoustic Analysis of the Masjid at Necmettin Erbakan University Köyceğiz Campus in Konya" Buildings 14, no. 10: 3330. https://doi.org/10.3390/buildings14103330
APA StyleKaygısız, A., Semerci, F., & Tuna Sayın, R. (2024). Acoustic Analysis of the Masjid at Necmettin Erbakan University Köyceğiz Campus in Konya. Buildings, 14(10), 3330. https://doi.org/10.3390/buildings14103330

