Abstract
Elderly nursing homes in South Korea are vulnerable to evacuation in emergency situations such as fires. There are many elderly residents with reduced self-walking ability, so if a disaster such as a fire occurs, it is very likely to lead to a large number of human injuries. In elderly nursing homes, it is impossible for many elderly people to evacuate voluntarily without the help of staff. Therefore, it is very important to guide the behavior of staff when evacuating. The purpose of this study is to evaluate the effect of evacuation behavior of staff on evacuation time in a fire emergency in an elderly nursing home by adopting an agent-based simulation approach. The effect of staff evacuation behavior on the evacuation time was investigated based on the results of a new agent-based evacuation simulation model. In the simulation model, there are conditions for caregivers to designate and evacuate the elderly, as well as to set the evacuation priority for the elderly. The results of this study show that having the elderly occupants designated by the staff according to their zones and evacuating them together was the most important in reducing the evacuation time. This study contributes to a new agent-based evacuation simulation model by confirming whether the evacuation behavior of employees affects the evacuation time.
1. Introduction
Human behavior is crucial for survival in the initial stages of a fire [1,2]. Interactions between evacuees along with the group formation process have a significant impact on evacuation behavior [3]. Human behavior can be analyzed by performing experiments for evacuation planning or evacuation training [4]. However, such analysis is practically impossible for elderly care facilities in which elderly occupants, mostly with dementia, geriatric diseases, or physical and mental disorders, remain due to occupant characteristics. In addition, evacuation training is more difficult in elderly care facilities than in typical buildings, because occupants reside in care facilities for 24 h a day. In evacuation drills, occupants may require up to nine more minutes to respond to an evacuation alert in residential training than in office training. This is because office training is more advantageous with audible alarms, resident education, and the presence of firefighters [5]. Considering these limitations, human behavior in response to evacuation situations can be analyzed using computer simulations.
In the elderly nursing home fires that have occurred in Korea, many casualties were caused by the negligence of night shift workers. This was because the dispatch was delayed due to a delay in reporting to the fire station. Furthermore, the extent of damage was more severe because the facilities were understaffed, and the workers could not help or induce the evacuation of occupants who could not evacuate by themselves [6]. In previous studies, the risk of the elderly being caught in a fire in a nursing facility for the elderly was analyzed using simulated evacuation drills or evacuation simulations. First, most of the elderly living in the facility did not respond to the fire alarm sound and did not know what to do even after recognizing it. Second, some of the elderly residents were very attached to their belongings and had difficulty in evacuating quickly. Third, there was a problem of wasting a lot of time in evacuating the elderly due to the lack of evacuation guidelines and training for workers [7,8]. For fire safety, it is more essential to consider occupant evacuation methods in terms of evacuation planning and operational management than it is to improve building performance problems [9]. In other words, it is important to plan to situate vulnerable occupants, such as bed or wheelchair patients, to rooms close to exits. Staff judgment on the situation and evacuation capabilities to evacuate elderly occupants is also crucial.
This study used the results obtained using a new agent-based evacuation simulation model to analyze how evacuees interact with each other and the impact of their behavior on evacuation time. As for the research flow, the agent-based evacuation simulation [10] was first applied to derive problems with the agent’s evacuation behavior and set an improved scenario. Second, the elderly subjects were designated by zone, and the evacuation time was compared and analyzed under different scenarios: (1) evacuated with staff and (2) priorities given for evacuation according to the walking status of the elderly subjects. Third, the effects of the scenarios based on the two variables on the evacuation time were investigated using multiple regression analysis.
To provide strong evidence in terms of the evacuation planning and operational management of facilities with respect to the location of bed or wheelchair patients in elderly nursing homes, an agent-based simulation approach was adopted. This study contributes to the field of agent-based evacuation simulation by evaluating the impact of staff evacuation behavior on evacuation time in the event of a fire emergency at an elderly care facility.
2. Literature Review
2.1. Modeling Human Behavior during Evacuation
During evacuation in emergency situations, human behavior is usually unreasonable; people follow uncontrolled evacuation procedures as they panic and lose their capacity for judgment [11]. When many of the occupants are unable to evacuate by themselves, such as in elderly care facilities, more serious situations and confusion may occur. Pedestrian flow, gait behavior, and route selection at bottlenecks continue to be the most important topics in evacuation training studies. These include evacuation of vulnerable populations (e.g., elderly, children, and mobility impaired); vertical evacuation; evacuation with limited view; social groups; and evacuation training/education gaining notable momentum [12]. Therefore, a differentiated evacuation simulation model that considers the behavior of vulnerable evacuees and human evacuation instincts is required.
Behavioral factors need to be considered to create more realistic simulations. This is because behavioral factors highly impact the evacuation process [3]. In order to apply specific behavioral factors, it is advantageous to model the evacuating crowd as a heterogeneous individual rather than a homogeneous individual [13]. Many studies modeled heterogeneous agents by assigning different characteristics to each group of agents, such as age, gender, knowledge, shoulder width, average speed, and psychology [14,15,16,17]. These characteristics influence an agent’s decision making and mobility during an evacuation.
Modeling human behavior during an evacuation requires the integration of various variables [11,13]. Human factors include a variety of physical, cognitive, motivational, and social variables. When considering psychosocial factors at the individual level, physical characteristics, mental state, knowledge and experience, and motivation are all considered factors related to evacuation [11]. Evacuation simulation models based on human behavior modeling methods can be classified into behavioral models, movement models, and partial behavioral models [18]. The behavioral model represents the individual decision-making process of the agent and incorporates the pedestrian performing the action and the movement towards the exit. Motion models move pedestrians from a point in a building to an exit or a safe location without considering human behavior. These models are useful for showing congested areas and bottlenecks in buildings. Finally, partial behavioral models incorporate the distribution of evacuation times among individuals, occupier movement, in addition to implicitly expressed behaviors for intrinsic individual characteristics.
For elderly nursing homes, prompt fire alarm issuance and aggressive staff actions are essential in emergencies and differentiated evacuation manuals and training in consideration of elderly behavior are required. Therefore, this study used an evacuation simulation model that accounts for evacuation behavior with the help of staff, even for elderly occupants who could walk on their own.
2.2. Fire Evacuation Model and Agent-Based Model
The evacuation model is a tool for simulating human behavior, and it starts with two assumptions [19]: (1) human behavior during evacuation is rational, and (2) human behavior during evacuation can be predicted.
Pedestrian and evacuation dynamics is a fast-growing research field. It is evident that the literature is making a noticeable transition towards the data-driven approaches and that experimental and data collection methods are becoming increasingly sophisticated [20]. Recently, the evacuation model has evolved toward the gradual implementation of behavioral factors within models [18,21]. This is reflected in the gradual transition between pure equation-based models (i.e., hand calculations) and agent-based models (i.e., models based on a set of rules, such as behavioral rules, agent-to-agent, and agent-to-environment interactions). This is because equation-based models cannot explain specific anomalous behaviors, such as congestion, in narrow passages, even though they are suitable for expressing typical evacuation flows through macroscopic simulations that rely on mathematical analyses [17,22,23]. Agent-based models use microscopic simulations to provide a function for considering and analyzing the behavior of individual pedestrians, the movement of evacuees, and interactions among individuals. In addition, pedestrians are modeled as entities with individual characteristics such as age, gender, physical ability, body size, and walking speed [24,25].
The agent-based model is a complex system research methodology and a computational model that implements a small complex system with a focus on the agent level and microscopic mechanisms. The model is largely composed of three elements: (1) the agent, (2) the system space in which the agent acts and interacts, and (3) the external environment affecting the system. For this reason, the method of exploring complex systems with an agent-based model is called the generative approach or the constructive approach [26,27]. Figure 1 illustrates how the agent can act either towards the environment or towards other agents [28]. The agents communicate with other agents, draw percepts from the environment, and influence and can be influenced by actions of the environment and other agents.
Figure 1.
Agent interaction model.
When these elements were applied to this study, the agent was an employee and an elderly person, and the system space was the floor where the nursing room of the elderly care facility was located. In addition, the external environment that affects the system becomes an event such as a fire. The agent-based simulation model (ABSM) for evacuation applied in this study is based on the framework [10] shown in Figure 2.
Figure 2.
The framework of ABSM.
Figure 2 shows the interactions and behaviors that occur between agents after a fire in an elderly nursing home and shows the evacuation process. In the event of a fire, a fire alarm sounds, and staff agent acknowledges the fire. Then, the staff agent searches for elderly agents, alerts them to the fire, and encourage them to evacuate. A group is formed with elderly agents who cannot evacuate, and the nearest exit from the current location is selected for evacuation. During this time, the pace of walking changes, and once one group is safely evacuated, the staff agent leaves to find other elderly agents. These evacuation behaviors were repeated.
2.3. Spatial Features and User Behavior of Elderly Nursing Home
The roles and behaviors of individual agents are important factors for the agent-based model. For interactions among agents, it is necessary to set the space composition of the system, as well as the specific roles and behaviors of agents.
The space composition of elderly nursing homes is divided into the living space, nursing space, management space, and public space. This is the representative space composition of facilities as detailed under Article 22 of the Enforcement Rule of the Elderly Welfare Act of the National Legal Information Center. In previous research, the space of the elderly care facility was divided into four zones [29]. (1) The private zone is the part (personal activity space) controlled by each resident; (2) the semi-private zone is the space shared by each resident; (3) the semi-public zone is where the social activity of the uncontrolled resident takes place; and (4) the public zone is the part shared by residents, visitors, and staff. Therefore, the space composition of the elderly nursing homes applied in this study was divided into private, semi-public, and public spaces. In this study, programs provided by facilities were investigated to understand the space used by the elderly in the elderly nursing homes. The programs offered by most facilities are daily life support, nursing and rehabilitation services, and cultural and leisure programs. According to these programs, it is possible to infer the behaviors and spaces used by the elderly and can be analyzed in detail through the daily routine of the elderly. According to the results of the previous study [10], the average time spent in the private zone (corresponding to rooms 01, 02, 03, etc.) was 960 min, 67%, and the time spent in the semi-private zones such as corridors and lounges was 10% at 143 min and 23% at 337 min in the semi-public zone (staff lounge, nurse office, bath room, etc.).
Users of elderly nursing homes can be divided into staff, elderly patients, and visitors. Staff can be subdivided into caregivers, nurses, social workers, and physical therapists. According to a previous study [10], staff behavior is determined by the daily program of elderly patients and generally varies depending on the intention of the elderly. For nurses, health checks and administration behaviors occur at set times when they visit each room, and behaviors such as simple treatment and transfer to medical institutions occur frequently. Social workers checked up on elderly patients by visiting each room at a set time. They also plan and manage various other programs. Physical therapists perform occupational/rehabilitation therapy in a physical therapy room twice a day. Caregivers support the everyday life of elderly patients, including the cleaning/arranging of the residential space, helping with oral and personal hygiene, assisting in the transfer to other rooms, and providing accompaniment on walks. It was found that caregivers take turns and manage all elderly patients on one floor, rather than protecting a few designated patients. This behavior makes it difficult for the elderly to evacuate in an emergency.
3. Methods
A new agent-based evacuation simulation model was implemented to identify the staff evacuation behavior that affects the evacuation time. The applied simulation model was built using the AnyLogc 8.5.2 software package, which provides a pedestrian library that can be used to model crowd flows in a physical environment while incorporating a psychological model of the pedestrian [30]. This article presents the partial findings of a doctoral dissertation [10,31] that applied mixed methods of data collection: literature reviews, case studies, and simulations [31].
3.1. Multi-Agent Simulation for Evacuation
Agent-based evacuation models typically consist of individual agents performing evacuation behaviors according to defined roles within a virtual space (building environment) [32,33,34,35]. Each agent chooses its own escape route by recognizing its position in the assumed space and identifying the exit. When congestion occurs or routes are blocked, agents update their knowledge and adjust escape routes if there are alternative routes available.
The multi-agent simulation applied in this study should clarify the relationship between the caregiver agent and elderly agent participating in the evacuation process. Figure 3 shows an activity cycle diagram for the evacuation behavior that caregivers must perform and their interactions with the elderly agents. The behavior of caregivers in avoiding danger in a fire alarm environment is central to the model applied in this study.
Figure 3.
An activity cycle of the caregiver agents in the event of a fire.
In the activity cycle diagram, the behavioral stages of the caregiver agent are as follows. When the fire alarm sounds, the caregiver agent recognizes it and looks for an elderly agent. The caregiver agent allows the elderly agents who can walk on their own to become aware of the fire and evacuate accordingly. Elderly agents who cannot walk on their own are evacuated by the caregiver agents. The caregiver agent searches for the exit closest to the current location and updates the location to evacuate. During this process, the walking speed changes from the initial walking speed to the evacuation speed. Finally, the caregiver leaves the building with the elderly agent, gets the elderly agent out of danger, and heads back to find another elderly agent.
3.2. Behavior Rules of Each Agent
The behavior of an agent is expressed by their ability to respond to changes in the system environment. The roles and behavior of agents are determined here because the evacuation simulation applied in this study is focused on user behavior in an elderly care facility. They include the daily activities of elderly patients who spend 24 h a day in the system environment, i.e., the elderly care facility, and the behavior of staff and facility users. In other words, the agent behavior applied to the simulation model is mainly divided into the behaviors of the elderly patients and the staff (caregivers). Since the 24 h simulation model is implemented, the time-dependent behaviors of agents such as nurses, social workers, physical therapists, and visitors are also added.
Six types of agents—elderly, caregivers, nurses, physical therapists, social workers, and visitors—were distinguished. The agents’ behaviors and decision-making processes in the model [8] are shown in Figure 4.
Figure 4.
Behavioral logic by agent type.
A detailed description of each agent’s behavior (pedestrian modeling) follows. There are two types of behavior: (1) daily behavior and (2) evacuation behavior following fire alarm sounds.
- (1)
- Caregiver: working in two shifts, repeating visits to each room of the elderly occupants for certain periods of time → using other spaces such as physical therapy rooms, bathrooms, lounges, etc. → during evacuation, finding elderly occupants, reporting fire situations, and helping elderly occupants evacuate.
- (2)
- Physical therapist: commuting time is fixed, repeating the act of treating inmates while staying in a physical therapy room → during evacuation, the behavior is the same as that of a caregiver.
- (3)
- Social worker: commuting time is fixed, repeating the act of staying for a certain period while working on a different floor and then visiting each room of the elderly occupants in turn → when evacuating, the behavior is the same as that of a caregiver.
- (4)
- Nurse: commuting time is designated, repetition of staying in the nurse’s office for certain periods of time and then visiting each room of the elderly occupants in turn → when evacuating, the behavior is the same as a caregiver.
- (5)
- Elderly: stay in each designated room for certain periods of time → roam the lounge, corridor, etc. → use other spaces such as physical therapy rooms and bathrooms → when evacuating, each elderly person waits at the current location and evacuates either alone (30%) or with employees (70%).
- (6)
- Visitors: the system was set to assume four people per day → wait for a while in the lounge, visit each room of the elderly randomly → stay for a certain period of time and then exit.
Figure 5 shows the simulation execution screen of the model implemented by reflecting the behavior and decision making of agents according to the behavioral logic by agent type.
Figure 5.
Model execution screen.
3.3. Case Description
3.3.1. Case Overview
Facility E currently has a total of 287 elderly occupants, including 40 occupants with dementia. It has 168 employees, including 118 caregivers. It is a large-scale facility covering 3113 m2 of land and 8436 m2 of floor space over seven stories: three stories underground and four stories aboveground. In 2018, remodeling was carried out to secure two evacuation routes (Figure 6), both internal and external. An evacuation plan in the case of a fire/disaster and evacuation drills were conducted in cooperation with the local and regional fire departments. When an actual fire alarm was issued and evacuation drills were conducted, evacuation to the outside was attempted based on two ramps, and the time required for all facility occupants to evacuate was approximately 1 h. Owing to recent remodeling, evacuation plans such as evacuation routes, fire zones, and smoke windows have been reestablished to improve the physical environment, but despite the evacuation of many elderly occupants, evacuation manuals and evacuation guidelines for employees have been insufficient.
Figure 6.
Evacuation routes inside and outside.
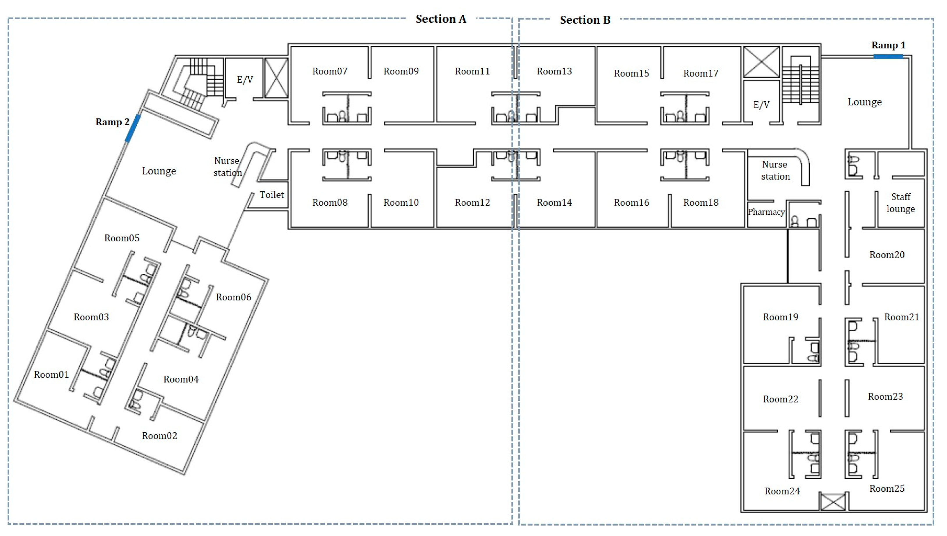
As shown in Figure 7, the 2nd floor plan of the elderly nursing home was applied. The space has 89 elderly and 41 employees. Fire extinguishing facilities installed in this building basically include fire extinguishers, indoor fire hydrant facilities, and sprinklers. In addition, visual alarms, evacuation devices, guidance lights, smoke control facilities, and automatic fire detection facilities were installed. These facility standards are firefighting facilities that must be installed in facilities for the elderly according to the Elderly Welfare Act.
Figure 7.
Drawing on the second floor of the E elderly nursing home divided into two areas (Section A, B).
3.3.2. Simulation Parameters and Scenario
The parameters set in the evacuation simulation model are the evacuation time and space occupancy density related to the characteristics and evacuation behavior of each occupant. For the variable values applied in this simulation, the walking speed and occupied area of inpatients in hospitals and nursing facilities were set as actual measured values, and the measured values in the situation where help was received from staff were also applied [36]. In addition, the shoulder width and walking speed of the elderly using assistive devices and wheelchairs were used as specific variable values [37]. The most important aspect when performing evacuation simulations is the physical characteristics of occupants. These characteristics are the age, sex, shoulder width, and walking speed. Table 1 summarizes the types and characteristics of the occupants in the elderly nursing homes used in this research.
Table 1.
Agent types and characteristics.
The elderly occupants residing on the second floor of the building that was applied to the study model were males, and most of the elderly occupants used wheelchairs. The caregivers and nurses who spent the most time with the elderly were in their 50s and 60s.
Table 2 shows the characteristics of the various occupants of elderly nursing homes. Elderly occupants are classified as self-walking, using mobility aids, using a wheelchair, or bedridden. Different walking speeds were applied to elderly groups A, B, C, and D (Table 2) for the evacuation speed of each agent that affected the evacuation time as a simulation variable value. The evacuation speed was set to 2.0 m/s for both the staff and visitors.
Table 2.
Simulation parameters for evacuation behaviors.
3.3.3. Scenario
The scenario was set as shown in Table 3, considering the agent’s evacuation behavior problem, which was found by running the simulation model introduced in Section 3.1. The simulation model was executed hundreds of times. When the model was run 30 times, the evacuation success rate was reported as approximately 80% during the day and 67% during the night.
Table 3.
Setting the scenario conditions.
The observed problems with agent evacuation behavior are as follows. (1) The simulation results showed that when an agent evacuated using a bed, there was a significant time delay, because the agent could not escape rapidly and easily, and the bed blocked other agents. (2) It was observed that the staff agent repeatedly visited a location, because the staff agent moved randomly to search for an elderly agent. This randomness was caused by the lack of specific designation. (3) The staff agent could not find an elderly agent when the agent was in the restroom, next to the opening, and in the corner of the room. Therefore, it took longer to evacuate the elderly agent.
Four scenarios were set by supplementing these problems with agent evacuation behavior. As shown in Figure 7, the area where the caregiver agent works is divided into two areas, and when evacuating, the elderly agent in the area is searched out. This is because it is possible to search by arranging regions and agent’s locations and reduce the time by excluding the searched regions.
There were two main scenarios for the simulation model (Table 3): (1) designated elderly and (2) priority.
There are conditions for caregivers to designate and evacuate the elderly, as well as to set the evacuation priority for the elderly. Occupants who can walk on their own will evacuate first, followed by the elderly occupants using wheelchairs and beds and the elderly occupants using mobility aids.
4. Results
4.1. Evacuation Time
The evacuation times derived from evacuation simulations are mostly deterministic approaches. However, a probabilistic approach is required to apply the behavioral characteristics of occupants with various evacuation rates and to selectively accept the environmental factors of geometry. AnyLogic outputs the total evacuation time of the agents as normally distributed data. In other words, it calculates the evacuation time for each agent and displays the evacuation rate according to a specific time.
Table 4 shows the moving time of each agent for each scenario. In scenarios 1 to 4, the fastest moving agent for evacuation was 29 s, and the slowest moving agent was 571 s.
Table 4.
Evacuation times of each agent.
Figure 8 shows the simulation results under the scenario conditions. That is, the evacuation time for each agent is displayed to indicate the evacuation rate according to a specific time. There was no clear difference in total evacuation time in each scenario, and a slight difference in the evacuation rate according to a specific time could be found through comparisons according to the scenario conditions.
Figure 8.
Evacuation time according to the scenario conditions; (1) Comparison of scenarios 1 and 2, (2) Comparison of scenarios 3 and 4, (3) Comparison of scenarios 1 and 3, (4) Comparison of scenarios 2 and 4.
(1) The upper left graph is a case of evacuation without the designated elderly in the staff’s evacuation logic, and it compares Scenarios 1 and 2, in which priority is set conditionally according to the walking state of the elderly. (2) The upper right graph shows when the staff is assigned to evacuate the elderly and is evacuated together and is a conditional setting on whether to apply the priority according to the walking conditions of the elderly (Scenarios 3 and 4). (3) The lower left graph compares Scenarios 1 and 3, in which priorities are not set according to the walking status of the elderly and conditionally set to whether or not the employee is assigned the elderly. (4) The lower right graph compares Scenarios 2 and 4 according to whether or not the elderly are designated to evacuate with the staff, prioritized according to the walking conditions of the elderly.
In both cases (graph 1 and 2), there was no significant difference in evacuation time, and it is judged that the evacuation time was partially shortened when the staff assigned elderly occupants.
4.2. Multiple Regression Analysis
The decision-making and evacuation behavior of the staff can affect the evacuation time and lead to successful evacuation through rapid movement to exits and safe areas. In this section, a multiple regression analysis was conducted to analyze the impact of the staff evacuation behavior on the evacuation time in the event of fire emergencies in elderly care facilities.
Hypothesis 1 (H1).
Staff evacuation behavior affects evacuation time when the elderly occupants are designated according to the zone and evacuated together.
Hypothesis 2 (H2).
Staff evacuation behavior affects evacuation time when elderly patients are given priority according to their walking status.
In the regression analysis, one variable was set as a dependent variable, the other variables were set as independent variables, and the relationship between them was analyzed. In this study, a multiple regression analysis was conducted by setting the role and walking status of agents as dependent variables and the evacuation time by scenario (S1~S4) as independent variables. The results are as follows (Table 5 and Table 6).
Table 5.
Multiple regression analysis results according to agent role.
Table 6.
Multiple regression analysis results according to agent walking status.
The results of analyzing the factors (scenarios) that affect the agent’s role are as follows. The designated elderly scenario had a statistically significant positive impact. Designating the elderly occupants according to zone was found to reduce the evacuation time. This means that the behavior of determining priorities according to the walking status of the elderly may further increase the evacuation time owing to the nature of the facilities where staff must evacuate with elderly patients. The adjusted R-squared value was 0.704, and the F-value (76.403) was statistically significant.
The results of analyzing the factors (scenarios) that affect the agents’ walking status are as follows. The random (positive) and designated elderly plus priority (negative) scenarios were found to be statistically significant. There is a difference in walking speed between the agents during evacuation, so whether the staff (1) randomly evacuates the elderly occupants or (2) the elderly occupants are designated by the staff and given priorities according to the walking status have an effect on the evacuation time. In other words, the designated elderly + priority scenario can reduce the evacuation time. This means that a random evacuation scenario can increase evacuation time. The adjusted R value was 0.748, and the F-value (95.182) was statistically significant.
5. Conclusions
The evacuation behavior of the staff is important in fire emergencies, because elderly nursing homes have extremely high fire risks owing to the characteristics of occupants who have difficulty evacuating by themselves. Specific and systematic evacuation manuals and action guidelines are required, due to theory-oriented fire safety education and the impeded response ability caused by insufficient staff. It is possible to establish an evacuation plan that considers these factors and determines priorities for elderly occupants to be evacuated first during evacuation or assign wheelchair- and bed-bound patients to rooms close to exits. It is also possible to provide action guidelines in which the elderly occupants are divided into groups according to their zones and evacuated together during fire emergencies. The effect of staff evacuation behavior on the evacuation time was investigated based on the results of a new agent-based evacuation simulation model. It appears that this is applicable to evacuation safety evaluations in elderly nursing homes and can present efficient evacuation action guidelines.
The multiple regression analysis results show that having the elderly occupants designated by the staff according to their zones and evacuating them together was the most important in reducing the evacuation time. This means that the designated elderly variable is a very important factor influencing evacuation time, and the behavior of evacuating with the designated elderly occupants can reduce the evacuation time and increase the evacuation success rate. In addition, having the elderly occupants designated by the staff and prioritized according to their walking status for evacuation was found to have a positive impact on evacuation time. The results of this study indicate that the evacuation behavior of the staff that involves designating elderly occupants to be evacuated according to their zones is the most critical action that should be taken in elderly nursing home fire emergencies.
In this study, cases of elderly nursing homes were selected, and the specific characteristics and behavior of occupants were applied to an agent-based evacuation simulation for analysis. The accuracy of the data is very important because it shows the degree of reproduction of the actual situation using the simulation model. In this regard, this study is significant in that its results enable realistic predictions that can be usefully applied to simulation models. It could also help create guidelines for successful evacuation planning. However, the study has a limitation in that many cases were not applied to the analysis. In future research, various spatial layouts in elderly nursing homes, as well as the occupant characteristics and behavior, will be applied to the simulation model, and evacuation safety will be evaluated based on the analysis results. In addition, since this study focused on identifying the factors influencing evacuation time by evacuation behavior of staff, there is a limitation that it could not investigate the space occupancy density of agents in terms of bottlenecks in pedestrian flow. It is believed that this can be improved with more specific and expansive applications through future research.
Author Contributions
Conceptualization and methodology, H.L. (Haewon Lim); validation, H.L. (Hyunsoo Lee), J.-H.H. and H.L. (Haewon Lim); investigation, H.L. (Haewon Lim); re-sources, H.L. (Haewon Lim); data curation, H.L. (Haewon Lim); writing—original draft preparation, H.L. (Haewon Lim); writing—review and editing, J.-H.H.; visualization, H.L. (Haewon Lim); supervision and project administration, H.L. (Hyunsoo Lee); funding acquisition, J.-H.H. All authors have read and agreed to the published version of the manuscript.
Funding
This research was funded by [National Research Foundation of Korea] grant number [2021R1A6A3A01088440, 2022R1G1A1010844].
Informed Consent Statement
Informed consent was obtained from all subjects involved in the study.
Data Availability Statement
No new data were created or analyzed in this study. Data sharing is not applicable to this article.
Conflicts of Interest
The authors declare no conflict of interest.
References
- Purser, D.A.; Bensilum, M. Quantification of behavior for engineering design standards and escape time calculations. Saf. Sci. 2001, 38, 157–182. [Google Scholar] [CrossRef]
- Pires, T.T. An approach for modelling human cognitive behavior in evacuation models. Fire Saf. J. 2005, 40, 177–189. [Google Scholar] [CrossRef]
- Chu, M.L.; Pan, X.; Law, K. Incorporating social behaviours in egress simulation. J. Comput. Civ. Eng. 2011, 650, 544–551. [Google Scholar]
- Choi, M.J.; Park, M.S.; Lee, H.S.; Hwang, S.J. Analysis of building emergency evacuation process with interactions in human behaviors. Korean J. Constr. Eng. Manag. 2013, 4, 49–60. [Google Scholar] [CrossRef]
- Proulx, G.; Fahy, R.F. The time delay to start evacuation: Review of five case studies. Fire Saf. Sci. Proc. Fifth Int. Symp. 1997, 5, 783–794. [Google Scholar] [CrossRef]
- Hong, H.R.; Kim, B.C.; Hasemi, Y.; Kwon, Y.G. An investigation on the fire case analysis and fire safety management of administrators in elderly care facility for evacuation safety design. J. Korean Soc. Hazard Mitig. 2016, 16, 35–42. [Google Scholar] [CrossRef]
- Kim, J.C. A Study of Fire Safety Vulnerability and Enhancement through the Evacuation Experimental in Recuperation Facility Aged. Master’s Thesis, Pukyong National University, Busan, Republic of Korea, 2016. [Google Scholar]
- Lee, J.S.; Kim, E.S. A Study on the Architectural Design and Management Guidelines of Elderly Facility through Reviewing of Evacuation Behavior. J. Archit. Inst. Korea 2004, 20, 143–152. [Google Scholar]
- Hong, H.R.; Tsuchiya, S.; Hasemi, Y. Evacuation ability of residents and general capability of disaster response system at care facilities for elderly people. J. Korean Soc. Hazard Mitig. 2019, 19, 13–24. [Google Scholar] [CrossRef]
- Lim, H.W.; Lee, H.Y. A study on the development of evacuation simulation for elderly nursing homes using agent-based model. J. Korean Inst. Inter. Des. 2021, 30, 3–13. [Google Scholar]
- Pan, X.; Han, C.S.; Dauber, K.; Law, K.H. Human and social behavior in computational modeling and analysis of egress. J. Autom. Constr. 2006, 15, 448–461. [Google Scholar] [CrossRef]
- Haghani, M. Empirical methods in pedestrian, crowd and evacuation dynamics: Part I. Experimental methods and emerging topics. Saf. Sci. 2020, 129, 104743. [Google Scholar] [CrossRef]
- Zheng, X.; Zhong, T.; Liu, M. Modeling crowd evacuation of a building based on seven methodological approaches. Build. Environ. 2009, 44, 437–445. [Google Scholar] [CrossRef]
- Arturo, C.; Orlando, A.; Daniel, A. Evacuation Modeling Trends; Springer: Berlin/Heidelberg, Germany, 2016. [Google Scholar]
- Bonabeau, E. Agent-based modeling: Methods and techniques for simulating human systems. Proc. Natl. Acad. Sci. USA 2002, 99, 7280–7287. [Google Scholar] [CrossRef] [PubMed]
- Pan, X. Computational Modeling of Human Behavior for Emergency Egress Analysis: A Multi Agent-Based Simulation Approach; Lambert Academic Publishing: Saarbrücken, Germany, 2009. [Google Scholar]
- Manley, M.; Kim, Y.S. Modeling emergency evacuation of individuals with disabilities (exitus): An agent-based public decision support system. Expert. Syst. Appl. 2012, 39, 8300–8311. [Google Scholar] [CrossRef]
- Kuligowski, E.D.; Peacock, R.D.; Hoskins, B.L. A Review of Building Evacuation Models, 2nd ed.; (Tech. Note 1680); NIST: Washington, DC, USA, 2010.
- Ronchi, E.; Nilsson, D. Basic Concepts and Modelling Methods; Springer: New York, NY, USA, 2016. [Google Scholar]
- Haghani, M. Empirical methods in pedestrian, crowd and evacuation dynamics: Part II. Field methods and controversial topics. Saf. Sci. 2020, 129, 104760. [Google Scholar] [CrossRef]
- Ha, L. Agent-based modeling of a multi-room multi-floor building emergency evacuation. Physica A 2012, 391, 2740–2751. [Google Scholar] [CrossRef]
- Anh, N.T.N.; Daniel, Z.J.; Du, N.H.; Drogoul, A.; An, V.D. A hybrid macro-micro pedestrians evacuation model to speed up simulation in road networks. Lect. Notes Comput. Sci. Subser. Lect. Notes Artif. Intell. Lect. Notes Bioinforma 2012, 7068, 371–383. [Google Scholar]
- Cimellaro, G.P.; Ozzello, F.; Vallero, A.; Mahin, S.; Shao, B. Simulating earthquake evacuation using human behavior models: Simulating earthquake evacuation using human behavior models. Earthq. Eng. Struct. Dyn. 2017, 46, 985–1002. [Google Scholar] [CrossRef]
- Yuksel, M.E. Agent-based evacuation modeling with multiple exits using NeuroEvolution of Augmenting Topologies. Adv. Eng. Inform. 2018, 35, 30–55. [Google Scholar] [CrossRef]
- Ronchi, E.; Kinsey, M. Evacuation models of the future: Insights from an online survey on user’s experiences and needs. In Advanced Research Workshop Evacuation and Human Behaviour in Emergency Situations EVAC11; Capote, J., Ed.; University of Cantabria: Cantabria, Spain, 2011; pp. 145–155. [Google Scholar]
- Yoon, Y.S.; Chae, S.-B. Introducing Complex System; Samsung Economic Research Institute: Seoul, Republic of Korea, 2005. [Google Scholar]
- Nilsson, D.; Uhr, C. Complex systems—A holistic approach for understanding and modelling fire evacuation behaviour. In Proceedings of the International Symposium on Human Behaviour in Fire, Cambridge, UK, 13–15 July 2009; pp. 525–530. [Google Scholar]
- Salamon, T. Design of Agent-Based Models: Developing Computer Simulations for a Better Understanding of Social Processes; Tomas Bruckner: Haskova, Czech Republic, 2011; p. 25. [Google Scholar]
- Howell, S.C. Designing for Aging: Patterns of Use; MA The MIT Press: Cambridge, MA, USA, 1980. [Google Scholar]
- Grigoryev, I. AnyLogic 8 in Three Days: A Quick Course in Simulation Modeling; The Anylogic Company: Chicago, IL, USA, 2018. [Google Scholar]
- Lim, H.W. Agent-Based Simulation Model for Evacuation Using the Behavioral Analysis of the Occupants in Elderly Nursing Homes. Ph.D. Thesis, Yonsei University, Seoul, Republic of Korea, 2020. [Google Scholar]
- Dijkstra, J.; Timmermans, H.J.; Jessurun, A. A Multi-agent Cellular Automata System for Visualising Simulated Pedestrian Activity. In Proceedings of the 4th International Conference on Cellular Automata for Research and Industry, Karlsruhe, Germany, 4–6 October 2000; Springer: London, UK, 2001; pp. 29–36. [Google Scholar]
- Fukui, M.; Ishibashi, Y. Self-organized Phase Transitions in Cellular Automaton Models for Pedestrians. J. Phys. Soc. Japan 1999, 68, 2861–2863. [Google Scholar] [CrossRef]
- Helbing, D.; Molnar, P. Social Force Model for Pedestrian Dynamics. Phys. Rev. E 1995, 51, 4282. [Google Scholar] [CrossRef] [PubMed]
- Helbing, D.; Farkas, I.; Vicsek, T. Simulating Dynamical Features of Escape Panic. Nature 2000, 407, 487–490. [Google Scholar] [CrossRef] [PubMed]
- Tokyo Fire Department. Report on the Appropriate Fire Safety Measures in Facilities for the Disabled; Fire Prevention Conference hosted by the Tokyo Fire Department: Tokyo, Japan, 1993. (In Japanese) [Google Scholar]
- Kim, J.S.; Hwang, E.K.; Youn, H.J. The Impact Analysis of Including a Weak Person of Disaster Factor for Safety Assessment of Evacuation Simulation. J. Archit. Inst. Korea 2011, 27, 37–44. [Google Scholar] [CrossRef]
Disclaimer/Publisher’s Note: The statements, opinions and data contained in all publications are solely those of the individual author(s) and contributor(s) and not of MDPI and/or the editor(s). MDPI and/or the editor(s) disclaim responsibility for any injury to people or property resulting from any ideas, methods, instructions or products referred to in the content. |
© 2023 by the authors. Licensee MDPI, Basel, Switzerland. This article is an open access article distributed under the terms and conditions of the Creative Commons Attribution (CC BY) license (https://creativecommons.org/licenses/by/4.0/).







