Abstract
This study analyzes the implementation of firefighting procedures and evacuation methods in a hospital environment, with a focus on ensuring rapid rescue operations and evacuation methods in a real fire in 2024. This research emphasizes the integration of firefighting technologies, including fire detection systems, real-time communication networks, and specialized evacuation strategies for immobile patients. This work further examines the optimization of the emergency response through the coordinated efforts of an integrated rescue system, emphasizing tactical decision making and resource allocation. The findings demonstrate the effectiveness of evacuation methods in the event of needing to evacuate a larger number of people, as well as meeting the need to ensure that active fire protection systems are in an operational state. This research provides key recommendations for improving fire protection measures in healthcare facilities, ensuring faster response times and increased patient protection. Subsequently, after evaluating and reviewing all the options, conclusions were drawn from the on-site results, and recommendations were defined for future fires in similar facilities.
1. Introduction
Firefighters’ interventions in a healthcare facility can be complicated in various ways. In many cases, the conditions for intervention involve, among other things, many immobile people. Most hospitals were also built in the last few decades and often built and put into use according to the fire protection regulations at that time [1,2,3].
Fires in healthcare buildings are characterized by the presence of a large number of patients with limited mobility or a total inability to move. Another possible characteristic is a limited number of medical personnel available to evacuate patients, and an inability to transport patients on or with a bed represents another complication. Also, the dependence of some patients on various devices (requiring electricity and oxygen) can worsen their conditions in emergency scenarios [4,5].
In addition, as Dhaliwal points out, in fires in hospital facilities, there is a reduced ability to react and maintain self-control in some patients, as there is a possibility of panic. Among other things, the development of fire can occur through air conditioning distribution, which results in the hidden spread of smoke and combustion products [6].
Among similar fires, the complexity of the layout of hospital buildings is noted as a specific feature, as stated by Güdük in his research, where he also points out the existence of underground spaces and the vastness of underground corridors, which result in loss of orientation. This is similar to that noted in the presented research, which characterizes a fire in a university hospital [7].
In large university hospitals, there are also the dangers of ionizing radiation, intoxication, and disease transmission. From a safety perspective, it is necessary to mention the mechanical security of windows and doors on the ground floor and in special departments (such as the psychiatric department and department for the mentally disabled), and this is addressed in the present article [8,9,10,11].
The actual extinguishing of fires in healthcare facilities is complicated in various ways, which include the structure of the buildings. These are mostly multi-story buildings that require a lot of firefighting equipment. Similarly, the fires we characterized, which broke out in 2015 and 2021, were also accompanied by the need to provide a lot of firefighting equipment. This was mainly due to the great need for forces and resources to eliminate the fires. It is common practice for a larger number of personnel to be present in these buildings, which also causes complications during evacuation. In the event of a successful evacuation, it is necessary to provide additional subsequent spaces for the placement of evacuated persons as well as transport to these buildings. These complications concern the personnel themselves, while it is also necessary to take into account persons who are hospitalized, for whom it is necessary to provide mobile beds, wheelchairs, ambulances, and, of course, medical care [12,13,14,15,16].
As shown in Figure 1, most of the regional hospitals in Slovakia were built in the 1970s and 1980s, and their layout and design are similar to those of those in the present study. Thus, in the event of a fire, it is possible to proceed in a similar way as in the present study. In Figure 1, the top row from left to right shows hospitals in Banská Bystrica, Prešov, and Žilina. The bottom row from left to right shows one of the hospitals in Bratislava, followed by a hospital in Nitra. The last one shows a second hospital in Bratislava.
Figure 1.
Hospitals in the Slovak Republic (source: elaborated by authors).
The success of fire suppression and the evacuation of a healthcare facility depends on communication and decision making at all levels of the organization, from the operations officers in the operations center to the firefighters performing the evacuation. One of the key decisions is the order in which each patient is selected for the actual evacuation. The evacuation of a healthcare facility is largely dependent on the availability of transportation resources, such as personnel and technical equipment, as well as reception facilities. A typical planning assumption is that all patients and personnel must be moved from the fire-stricken facility. However, the availability of these resources may not allow for the successful evacuation of all patients [17,18,19,20,21,22].
Given that fires unfortunately also occur in these facilities, from all the events that have occurred, it is possible to define the following shortcomings, which were also detected and proven in the fire at the Louis Pasteur University Hospital in Košice, where there were also fires in 2015 and 2021. These shortcomings in compliance with applicable legal regulations in the field of fire protection can be summarized as follows:
- The absence of stable fire extinguishing equipment;
- Flammable materials being stored in the premises of medical facilities;
- Insufficient or incomplete mechanical aids for patients during evacuation;
- The incompetence of hospital staff regarding safety issues;
- Insufficient crisis management methodology;
- The inability of the patients to evacuate the facility;
- The inoperability of emergency lighting, evacuation radios, and other fire-technical equipment due to the interruption of the electricity supply and the inoperability of backup sources;
- The insufficient capacity of evacuation elevators and various barriers on escape routes;
- A lack of special fire-extinguishing agents due to equipment;
- Insufficient access areas for firefighting equipment;
- A failure to meet current fire safety requirements for buildings;
- High interest from the public and family members of patients [23,24,25,26,27,28,29,30,31].
2. Materials and Methods
The research in the submitted contribution is based on a fire in a hospital facility. The article itself characterizes the intervention in the Louis Pasteur University Hospital in Košice, which occurred in March 2024; the activities of individual components of the integrated rescue system; and the methods of liquidation and the evacuation of persons from the aforementioned hospital.
The hospital facility was selected due to recurring fires, constant violations of fire protection regulations, and the extent and consequences of the fire.
2.1. The Current State of the Issue
The healthcare system in the Slovak Republic is based on healthcare providers, who, based on a license/permission, provide a set amount of healthcare services in healthcare facilities. The basic division of healthcare facilities defined according to Regulation No. 770/2004 Coll. on Determining Signs of Individual Healthcare Facilities is the following: inpatient healthcare facilities and outpatient healthcare facilities [32].
Inpatient healthcare is aimed at providing healthcare to people whose health conditions need constant healthcare connected with a presumed placement in a healthcare facility exceeding 24 h [33].
According to the Regulation of the Ministry of Health of the Slovak Republic No. 770/2004 Coll., the inpatient healthcare facilities are divided into the following:
- General hospitals;
- Specialized hospitals;
- Natural treatment spas and healing spas;
- Medical institutions;
- Hospice centers;
- Nursing care homes;
- Biomedical research facilities [34].
Based on the current material “Report on programme rationalisation in the healthcare system of the SR” approved by the Resolution of the Slovak Government No. 462/2007 on 23 May 2007, the total number of inpatient healthcare facilities in the Slovak Republic is 172, which includes the following:
- A total of 73 hospitals are general hospitals (GHs), including general hospitals with polyclinics, university faculty hospitals (UFHs), and university faculty hospitals with polyclinics;
- A total of 52 hospitals are specialized hospitals;
- A total of 47 inpatient healthcare facilities comprise the rest of these facilities (Table 1) [35].
Table 1. Numbers of inpatient healthcare facilities in the Slovak Republic [36].
Table 1 legend: WS—Western Slovakia; CS—Center Slovakia; ES—Eastern Slovakia; TT—The Self-Governing Region of Trnava; TN—The Self-Governing Region of Trenčín; NR—The Self-Governing region of Nitra; ZA—The Self-Governing Region of Žilina; BB—The Self-Governing Region of Banská Bystrica; PO—The Self-Governing Region of Prešov; KE—The Self-Governing Region of Košice; Objective—regions under the “Convergence” objective; SR—The Slovak Republic.
Figure 2 shows a map of the locations of hospitals in the Slovak Republic, with general teaching hospitals highlighted. Red indicates the locations of hospitals with 400 beds or more, green indicates those with 200 to 400 beds, blue indicates those with up to 200 beds, and yellow indicates polyclinics.
Figure 2.
Locations of hospitals in the Slovak Republic [36].
As shown in Table 2, the majority of the healthcare facilities have the legal status of a business company or legal entity (Inc., Ltd., a non-profit organization), but the owner or cofounder can also be a state authority or self-administration body [36].
Table 2.
Numbers of inpatient healthcare facilities according to healthcare provider/owner in the regions [36].
Regarding firefighting in non-hospital facilities, Table 3 contains an overview of fires in the mentioned facilities for individual years, along with the estimated material damage and the numbers of injured and killed persons [37].
Table 3.
Statistical overview of fires in hospital facilities from 2016 to 2023 [38].
2.2. Methodology
On 7 March 2024 at 1:27 a.m., a fire broke out at the Louis Pasteur University Hospital in Košice. The fire was reported to the emergency line 150 at the specified time in the building of the Faculty Hospital on March 4, where the psychiatric department is located. Subsequently, the operations officer declared an alarm and sent units from the fire station in Košice on Požiarnická Street. Subsequently, due to the extensiveness and the need to carry out an evacuation, additional units were sent from Teplárenská Street, Šaca, and Bidovce.
Figure 3 shows the hospital building where the fire broke out.
Figure 3.
Louis Pasteur University Hospital in Košice (source: elaborated by authors).
2.2.1. Operational–Tactical Characteristics and Location of the Object
Louis Pasteur University Hospital in Košice is the second largest hospital in Slovakia, providing highly qualified healthcare not only for patients from the Košice region, but also in special fields for the entire eastern Slovak region. It is also the terminal hospital for the entire region of eastern Slovakia. The hospital currently has more than 1356 beds and 3530 employees. In two areas (the historical area of the so-called “old hospital” at Rastislavová 43 and the so-called “new hospital” at Tr. SNP 1), there are 46 clinical departments, including 25 clinics, 11 departments, 9 specialized centers, and 3 institutes. It is the teaching base of the Faculty of Medicine of the University of Prešov in Košice, the Faculty of Health Care of the University of Prešov, and several secondary medical schools [38].
As shown in Figure 4, the hospital is located in eastern Slovakia, specifically in the large city of Košice with a population of 230,000.
Figure 4.
Location of the hospital in Košice on the maps: (a) red circle on the scale 1:100,000; (b) on the scale 1:5000 (source: elaborated by authors).
This is a high-rise building, located 208 m above sea level (the coordinates are 48,722,584; 21,238,962), and the height of the building is 62.5 m from the prepared terrain to the floor of the highest usable floor. The area of the common floor of the upper part is 3036 square meters. The building has 19 above-ground floors and 3 underground floors (basements):
- The third basement is designed as an installation floor, which houses a horizontal distribution of all the installations, the electrical distribution, machine rooms, assembly areas, and a parking lot for trucks.
- Most of the second basement’s floor consists of a high-voltage and low-voltage electrical switchboard, transformer rooms, a cooling machine room, and an exchanger station. Furthermore, there is an electrical switchboard for technical operations, a vacuum machine room, a truck parking lot, and warehouses.
- The first basement is the first underground floor, which houses the visitors’ hall, cloakrooms, sales rooms, and services.
The ground floors consist of bed rooms, doctors’ offices, laboratories, storage rooms, nurses’ rooms, and hygiene rooms. The ground floor and the other floors above ground have similar layouts [39].
Figure 5 shows the entire building of the Louis Pasteur University Hospital in Košice, and Table 4 characterizes the individual buildings.
Figure 5.
Louis Pasteur University Hospital Building (source: elaborated by authors).
Table 4.
Description of individual hospital facilities [40].
2.2.2. Characteristics of Building Structures of the Louis Pasteur University Hospital in Košice
Horizontal structures are made of reinforced concrete panels in steel frames, which are welded to steel columns. The panels have a bathtub shape and are filled with perlite concrete. The fire resistance of the ceilings is more than 90 min. The penetrations for installations are concreted. The walls and partitions are made of hollow and solid bricks with plaster. The walls of the staircase to the fourth floor are lined with reinforced concrete, and those from the fifth floor are lined with hollow bricks, with a fire resistance more than 180 min. The walls of the elevator shafts are made of solid bricks, with a fire resistance more than 30 min. The perimeter cladding is made of suspended aluminum panels, with a fire resistance more than 30 min. The fronts of the side facades are bricked. There are no firewalls within technical standard 92 0201-2. The fire-resistant dividing structures in the horizontal direction have a fire resistance of more than 90 min. The vertical fire-resistant dividing structures (according to technical standard 92 0201-2—fire partitions and technical standard 1991-1-2—fire walls) have a fire resistance of more than 180 min and the closures of the openings in them are non-combustible. In the third basement, object 45 (a monoblock that connects to objects 06 and 07/III in places without firewalls) and water curtains are used as a fire barrier. The vertical structures consist of a steel skeleton. The fire protection of steel structures is partially achieved by spraying LIMPET, and parts of the columns are concreted. In the building (a monoblock from the 2nd basement to the 19th floor), there are two staircases (evacuation routes). The width of the staircases is 160 cm. The escape routes are permanently lit and connected to a backup source of electricity. This building does not have an evacuation elevator. If the elevator center is not smoky, four service elevators—O, P, R, and S—connected to a backup source of electricity can be used for evacuation. Elevators A, B, C, D, E, F, G, H, J, and K are used to evacuate immobile patients and those partially able to move independently. These elevators are also connected to a backup source of electricity. Patients are evacuated to the assembly point using these elevators [41,42].
2.2.3. Firefighting Equipment at Louis Pasteur University Hospital
An electric fire alarm system is installed in the building. This system consists of one main panel and sub-panels. The main fire alarm system panel is located in the dispatching room in the second basement of the monoblock, and all the sub-panels are connected to it. Each individual sub-panel is marked with a number in the main panel and determines the building from which the report came. The fire is reported using optical and acoustic signaling.
After receiving information about the occurrence of a fire reported on the electric fire alarm information board, the dispatcher locates the fire on the electric fire alarm information board and contacts the relevant workplace by telephone according to the list of workplaces in order to verify the veracity of the fire report or whether it is a false alarm. If the dispatcher on duty is not allowed to enter the workplace, they shall notify the informant on duty at the main gatehouse by telephone of the reported fire and request that they immediately verify the actual situation at the designated location. They shall inform them of the building, floor and departments, clinics, or workplace from which the report was made. After verification, the gatekeeper shall immediately notify the dispatcher of the fact and precede in accordance with the fire alarm guidelines for the building.
If the information about the occurrence of a fire is confirmed either directly by the building where the fire occurred or after verification by the gatekeeper, the dispatcher shall immediately call the fire brigade and arrange for a worker to wait at the entrance to the building and direct the fire department to the fire scene. The informant on duty at the main gatehouse shall provide the necessary cooperation to the fire department, to which they shall provide the required information about the situation and, at the same time, ensure the opening of all escape exits from the building (monoblock).
2.2.4. Fire Water Sources
The building has an internal hydrant network, including C52 wall hydrants with complete equipment, where C52 means a hose thickness of 52 mm and a flow rate of 200 L per minute. There are four of them installed on each floor. The fire water supply is divided into two pressure zones. The water pressure in the external water supply is sufficient for supplying the lower floors to the fifth floor above ground. Hydrophore stations are installed from the third floor above ground. The pumps are switched on manually in the hydrophore station premises. The vertical distribution is built with a Js 100 pipe, and the connection to the building is built from two sides with a Js 200 pipe. The building also has a dry pipe, a Js 125 riser pipe, and a C52 socket; hydrants with equipment are located on each floor in the hallway on the staircase. The dry pipe is equipped with its own pumping station in section II. basement and consists of two pumps, one of which is an emergency pump, and the other is a reserve pump. The pumps are designed for a water supply of 20 l/s. The pumps are switched on manually in the pump station rooms.
In the corridors on each floor, instead of fire doors, water curtains are installed, which consist of a perforated pipe placed between the ceiling slats. This water curtain must be lowered manually by lifting the glass and opening the valve. Each water curtain is marked.
3. Results
On 7 March 2024, a fire broke out in the patient dining room and hallway on the fourth floor of the 1st Psychiatric Clinic of the monoblock—the inpatient part of the Louis Pasteur University Hospital in Košice, at Trieda SNP No. 1, Košice, and cadastral area Terasa, Košice district. The owner of the building is the Slovak Republic. The user and administrator of the building is the Louis Pasteur University Hospital, based on the contract regarding the transfer of the management of the state’s immovable property.
Hospital staff noticed and reported the fire at 01:27 on 7 March 2024.
At the same time, smoke was registered by the electric fire alarm detectors of the Louis Pasteur University Hospital monoblock on 7 March 2024:
- 01:20:40 a.m., zone 4, address 2/87, 4th floor, corridor A (from the department);
- 01:21:19 a.m., zone 4, address 2/86, 4th floor, corridor A (from the department);
- 01:24:07 a.m., zone 4, address 2/90, 4th floor, warehouse A (door number 4A1);
- 01:24:55 a.m., zone 6, address 2/34, 4th floor, corridor A (from the department);
- 01:25:04 a.m., zone 15, address 4/41, 15th floor, corridor A (from the department);
- 01:25:34, zone 5, address 2/109, 5th floor, corridor A (from the department);
- 01:26:31, zone 4, address 2/89, 4th floor, warehouse C (door number 4C16);
- 01:26:44, zone 6, address 2/33, 6th floor, corridor A (from the department);
- 01:27:28, zone 7, address 2/55, 7th floor, corridor A (from the department);
- 01:27:38 11:27:44 a.m., zone 13, address 3/118, 13th floor, corridor A (from the department);
- 01:27:44, zone 4, address 2/93, 4th floor, corridor B (from the department);
- 01:27:52, zone 5, address 2/115, 5th floor, corridor B (from the department);
- 01:28:44, zone 4, address 2/88, 4th floor, electrical substation (door no. Ra-4).
After reporting the alarm at the dispatcher’s workplace through the electric fire alarm system, the dispatcher on duty notified the parking and information service employee by phone and requested an inspection of the fourth floor of the monoblock, where the alarm was subsequently confirmed to be true based on extensive smoke and fire. The fire was subsequently reported to the emergency line 112 at 01:28.
During the fire, nine people were injured through inhalation intoxication by combustion products, of which five were employees and four patients.
According to estimates, the users incurred direct damage to the value of EUR 100.000. The fire damaged the equipment of the dining room and relaxation room (rooms A-2 and A-3), tables, chairs, a couch, armchairs, a TV set, lamps, electrical installations, building elements, the plastering of walls and ceilings, and technical equipment of the building (heating and air conditioning) (Figure 6). Ceilings in the corridor were damaged (room A-26a), as were firefighting equipment and medical equipment. There was smoke in the fourth floor (rooms of section A, in particular, corridor A-28a as well as rooms A-4a, A-5a, A-8a, A-8, A-10a, and A-11a and, subsequently, all areas of the 4th floor, and staircases of sections A and B) and in the departments from the 5th floor to the 18th floor. The user estimated that EUR 500.000 worth of damage was prevented by the firefighting efforts.
Figure 6.
Photos after the fire (a) relaxation room; (b) dining room (source: elaborated by authors).
Firefighters from the fire stations in Košice–Požiarnická intervened using firefighting equipment: a tanker truck fire engine, CAS 30 Tatra 815 4 × 4; a Bronto Man 44 truck platform; a tank truck fire engine, CAS 30–7 6 × 4; a combined fire engine, AROCS 5/90; a command vehicle, Nissan X-trail; and a Setra evacuation bus. Further, the Košice–Šaca fire station intervened using MB Vario firefighting equipment and an MB Atego 30 car ladder. The Košice–Teplárenská fire station intervened using Iveco Daily CAS 10 and MB Vario firefighting equipment. The fire station in Bidovce intervened using a tank truck fire engine, CAS 30 T 815–7 6 × 4; MB Vario equipment; and a command vehicle, Hyundai. The alarm was declared at 01:30. The first units arrived at the scene at 01.36 a.m. The fire was localized on 07.03.2027 at 02:40 a.m. The fire was extinguished on 07.03.2024 at 04.49 a.m. The extinguishing agent used to extinguish the fire was water with a volume of 3000 L. A total of 33 firefighters intervened.
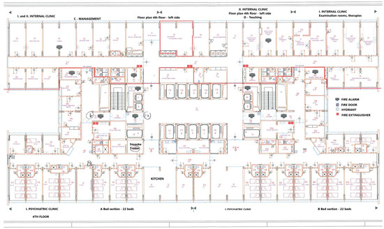
Figure 7 shows the sixth floor of the 1st Psychiatric Clinic with a representation of detectors 1, 2, 3, and 4, which responded in the indicated order.
Figure 7.
Floor plan of the 1st Psychiatric Clinic (source: elaborated by authors).
3.1. Description of the Situation Before the Fire Broke out and at the Time It Was Observed
Figure 8 shows the location of the fire.
Figure 8.
View of the Louis Pasteur University Hospital in Košice: (a) the morning after the fire; (b) the evening after the fire (source: elaborated by authors).
The first floor contains the entrance hall, sales areas, warehouses, nurses’ rooms, and beds. Floors 1 to 16 have similar layouts. Between the second and third floors, there is an assembly mezzanine, which houses cleaning rooms with cleaning equipment, employee changing rooms, spare parts warehouses, and an office, and the mezzanine contains air conditioning, heating, electrical installations, and an air conditioning machine room. The elevator machine room and air conditioning machine room are located on the 18th floor.
The separation distances are sufficient in accordance with the standard. The access roads to the building are part of the internal roads of the hospital premises, and their width is 3.5 m, with a turning radius of 15 m. The boarding area for fire trucks is designed on the west side of the building. Two staircases pass through the building from the basement to the 18th floor, which are considered escape routes and are designed as type “D” according to the standard. Each staircase has a vestibule, and in the stairwell, there is a designed air pressure created by the air conditioning in the event of a fire. The width of the staircase is 160 cm, with a designed capacity for 256 people. Escape routes are intended for evacuation, which are not longer than 30 m according to the standard. The doors on the escape routes open in the direction of escape. The building has four hydrants on each floor, which were not used during the fire. In the corridors on individual floors, instead of fire doors, water curtains are installed, which were not functional.
The air conditioning machine room together with the shaft forms a separate fire section. Fire dampers are designed for both air supply and exhaust at the outlet of the air conditioning duct. The fans for creating positive pressure in the staircase must provide air supply for the staircase only; the air conditioning for creating positive pressure was not started at the time of the fire because it is inoperative. The building’s electricity distribution is powered from the circular electricity network on the hospital premises; the hospital premises are connected to two independent sources of electricity. In the event of a failure of both sources, the hospital is connected to a third, backup source using a diesel generator. The electrical power distribution is routed in two independent catwalks, one for normal operation and the other for permanent operation. The main floor switchboards are connected to the ascending electrical lines on each floor, and the secondary switchboards are connected to the main floor switchboards. The horizontal cable catwalks in the inter-ceiling space are welded to the cable catwalks of the vertical line and together form the grounding system of the electrical installation. The main switches are located in the main floor switchboards. The permanent supply of electrical power is connected to water pumps for supplying water to hydrants, air conditioning for creating excess pressure in the stairwell, staircase lighting, elevators, an electro-valve for lowering the water curtain, the lighting of handling corridors, and other mechanical and technological equipment. An electronic fire alarm is installed in the building and has its own power source. At the time of the fire, the electronic fire alarm responded and signaled the presence of smoke.
Gas pipeline: according to the project documentation, a gas distribution system is installed in the building for laboratory purposes.
Portable CO2 5 g fire extinguishers are installed in the building, with 4 pieces per floor. An electric fire alarm is installed in the building with an output to the control panel on the first floor above ground. The building also has push-button fire detectors located on the walls along communication routes. No fixed fire-extinguishing equipment is connected to the fire alarm system.
3.2. Situation Before the Fire
In the evening hours of 6 March 2024, normal operations were underway in the department of the 1st Psychiatric Clinic of the Louis Pasteur University Hospital. The department was staffed by two nurses and one orderly and contained hospitalized patients. On 6 March 2024 at 21:30, a patient with self-harming tendencies was brought to the psychiatry department of the Louis Pasteur University Hospital by a police patrol and subsequently admitted for hospitalization. The patient was admitted for hospitalization with symptoms of intoxication with a narcotic substance. After admission to the department of the 1st Psychiatric Clinic, fourth floor, tract A, he was left without further supervision by the guards. Psychiatric patients are not in a closed regime; they have free movement in the department and are allowed to smoke in the smoking room, so they can have a lighter or matches with them.
At the time of the fire, a nurse in the ambulance went out into the hallway at approximately 01:25 due to suspicious sounds and cracking. She then noticed heavy smoke in the hallway and dining room area (Figure 9).
Figure 9.
View of the hallway of the 4th floor; section A. Direction of the fire source—dining room. (source: elaborated by authors).
The staff on duty at the 1st Psychiatric Clinic raised the fire alarm and triggered procedures for evacuating persons from the fire-affected ward(s).
After the evacuation of the ward patients from the hospital, the suspect fled.
3.3. Calculation of Forces and Means
The calculation of the free fire development time (tvr) is defined in Equation (1) according to [43] and the consequences of the event (Figure 10) [44]:
where
tvr = tsp + toh + tdo + tbr [min]
Figure 10.
The free fire development time [43].
tsp is the time from the expected occurrence of the fire to the observation of the fire = 2 min;
toh is the time from the observation to notification of the fire = 1 min;
tdo is the time from the alarm alert to the arrival of the fire brigade = 5 min;
tbr is the development time = 3 min.
tvr = 2 + 1 + 5 + 3 = 11 min.
The arrival time of the Košice–Požiarnická fire brigade:
tdo = tv + tj [min]
tv—the dispatch time = 1 min;
tj = (60 × L)/vj
tj—the time taken for the unit to drive to the fire;
L—the distance in km;
vj—the average vehicle speed in kmh−1 (45 kmh−1);
tj = (60 × 3)/45 = 4 min
tdo = 1 + 4 = 5 min.
The arrival time of the Košice–Teplárenská fire brigade:
tdo = tv + tj [min]
tv—the dispatch time = 1 min;
tj = (60 × L)/vj
tj—the time taken for the unit to drive to the fire;
L—the distance in km;
vj—the average vehicle speed in kmh−1 (45 km.h−1);
tj = (60 × 6.2)/45 = 8.3 min;
tdo = 1 + 8.3 = 9.3 min.
The arrival time of the Košice Šaca fire brigade:
tdo = tv + tj [min]
tv—the dispatch time = 1 min;
tj = (60 × L)/vj
tj—the time taken for the unit to drive to the fire;
L—the distance in km;
vj—the average vehicle speed in kmh−1 (45 kmh−1);
tj = (60 × 14.7)/45 = 19.6 min
tdo = 1 + 14.7 = 20.6 min
The arrival time of the Bidovce fire brigade:
tdo = tv + tj [min]
tv—the dispatch time = 1 min;
tj = (60 × L)/vj
tj—the time taken for the unit to drive to the fire;
L—the distance in km;
vj—the average vehicle speed in kmh−1 (45 kmh−1);
tj = (60 × 17.7)/45 = 23.6 min
tdo = 1 + 14.7 = 24.6 min
The fire area is determined in terms of [43,45], as shown in Equation (6); however, no calculations were necessary for this purpose, as the fire area was determined as shown in Figure 11.
Figure 11.
General view of the dining room area with a view to the right (from the hallway) and the fire pit (source: elaborated by authors).
The fire area in the room:
where
Sp = π × r2 [m2]
r is the fire radius.
Sp was 70 m2 in the above case.
In the above case, the fire spread was circular, as shown in Figure 12. When the fire-separating structures were extinguished, the above form changed characteristics until the units arrived.
Figure 12.
Circular form of fire spread (source: elaborated by authors).
Subsequently, to calculate the extinguishing area Sh, Equation (7) was used:
where h is the extinguishing depth.
Sh = π [r2 − (r − h)2] [m2]
3.3.1. Determination of Forces and Means
To correctly determine the forces and resources needed to fight a fire in a particular building, basic data are required, which are divided into four groups:
- (a)
- The first group includes data on the building and the expected fire, particularly the characteristics of the building parts, production technology, and water supply. In the above case, it is solely up to the operations officer who sends the equipment to eliminate the fire.
- (b)
- The second group includes data on the arrival of fire brigades and the parameters of fire development:
- The form of the fire spread (circular, rectangular, or rectangular);
- The linear speed of the fire spread in a specified direction (v1 in m.min−1);
- The free fire spread time (tvr in min);
- The area of fire before the arrival of the first fire brigades;
- The dimensions of the smoke zone and concentration of combustion products in specific places;
- The time of arrival of the fire brigade;
- The main direction of attack;
- The localization and liquidation of the fire.
- (c)
- The third group includes data on the parameters of fire suppression:
- The intensity of the supply of the extinguishing agent per unit of perimeter (Io in L.min−1.m−1);
- The intensity of the supply of the extinguishing agent per unit of fire volume (Ip in kg.min−1.m−3) (alternatively to 1);
- The required consumption of the extinguishing agent (Qps in L.min−1);
- The actual consumption of the extinguishing agent (Qsk in L.min−1);
- The intensity of the extinguishing agent supply per unit area (Ip in L.min−1.m−2).
- (d)
- The fourth group includes data on the expected methods of fire brigade activity in fighting the fire and recommendations for the intervention commander [43,45,46,47,48,49].
The above requirements are processed based on optimal conditions at the scene of the intervention, while the mentioned fire was specific in terms of forces and resources, as it was a case of arson and non-compliance with legislation in the field of fire protection.
3.3.2. Determining the Required Supply of Extinguishing Agent
The required supply of extinguishing agent for the specified type of fire and the specified type of object are determined according to Equation (8).
where
is the supply of the extinguishing agent required for extinguishing [L.min−1];
Sh is the extinguishing area [m2];
Ip is the required intensity of the extinguishing agent supply per area [L.m−2.min−1];
Ip is the required intensity of the supply of the extinguishing agent for the specified type of object, determined according to [46], and is 7.8 [L.m−2min−1].
For the specified type of fire in a given building, it is necessary to provide 543 L.min−1 of the extinguishing agent water to extinguish the fire.
3.3.3. Determining the Required Number of Extinguishing Streams for Extinguishing
The number of streams required to fight a fire is determined by Equation (9).
where
is the number of streams for extinguishing the fire [pcs];
is the required supply of the extinguishing agent for extinguishing [L.min−1];
is the flow rate of jets [L.min−1], and C52 extinguishing streams have a flow rate of [L.min−1].
According to the calculations, there are three extinguishing streams with a flow rate of 200 L.min−1.
3.3.4. Determining the Number of Firefighters Required to Extinguish a Fire
The number of firefighters required for work with extinguishing jets and other necessary work is determined by calculation and according to the expected situation at the scene of the intervention. The total number of firefighters is supplemented by the necessary reserve (for example, work with breathing equipment) and is compared according to the individual alarm levels of the alarm plan. The number of personnel for work with jets is determined according to Equation (10).
where
is the number of extinguishing streams of type C, where the flow rate of the specified hose is 200 [L.min−1];
is the number of extinguishing streams of type C, where the flow rate of the specified hose is 400 [L.min−1].
For the specified type of fire with the specified input values, it is necessary to use only firefighting operations with eight firefighters.
3.3.5. Determining the Number of Tanker Truck Sprayers for Water Supply
The number of fire brigades and the number of fire engines are determined by the tactical capabilities of the fire brigade. This means that the number of engines is determined not only by the possible pump performance, but also by the number of firefighters who must be transported to the scene.
The number of fire engines is determined according to Equation (11).
where
NA is the number of fire trucks [psc.];
Qp is the amount of the extinguishing agent needed to extinguish the fire [L.min−1];
qA is the supply of the extinguishing agent, which can be provided by the fire brigade from its car [L.min−1].
The number of firefighters and number of fire engines and special vehicles are determined according to fire alarm plans, which are processed in accordance with the firefighting documentation. The stated numbers are subject to compliance with all fire protection instructions. For this reason, it is up to the operations officer, who must ascertain the facts on the emergency line and subsequently determine the stated numbers based on information from the fire scene and subsequently based on initial information and the commander’s requirements upon arrival at the scene.
As mentioned, the performance of individual fire truck pumps is as follows:
MB Vario: 1200 L.min−1;
MB Atego: 2500 L.min−1;
CAS 30 Tatra 815 4 × 4: 3000 L.min−1;
AROCS 5/90: 3500 L.min−1;
CAS 30–76 × 4: 3000 L.min−1;
Iveco Daily CAS 10: 1000 L.min−1.
The most common way to deliver the extinguishing agent is CAS 30–7 6 × 4: 3000 L.min−1.
Based on the decision, the number of fire trucks was sufficient for extinguishing the fire, such that they could also focus on evacuating individual floors.
3.4. Analysis of Results
In Table 5, we can see the equipment involved in the intervention, the number of intervention members, and the timetable for the arrival of the fire brigades.
Table 5.
Information about intervening fire squads (nearest fire stations) (source: elaborated by authors).
In Table 6, we can see the schedule of the activities of the firefighting units.
Table 6.
Schedule of activities (source: elaborated by authors).
3.5. Evacuation
The fire brigade was waiting at the scene for the security service of the university hospital, which explained to the commander of the intervention what kind of fire it was, where the fire was located, how to access the fire site, and where the patients were located and in what numbers.
The commander of the intervention at the scene divided the vehicle crews into intervention sections, and an attack line was created to the fourth floor in the “A” section.
Intervention section No. 1. was in charge of surveying and extinguishing the fire using an attack jet with a thermal camera. At the same time, intervention section No. 1. evacuated the lying patients and staff using evacuation elevators and elevators for personnel to the central reception, where evacuation rooms were located. There, a census was taken according to the documentation on hospitalized persons and also staff.
Intervention section No. 2. conducted a survey of the inpatient section and evacuated patients and hospital staff, which proceeded in the same way as that by intervention section No. 1.
The intervention commander also established intervention section No. 3, which carried out the intervention using high-altitude equipment from the outside of the building, while it was not possible to reach the intervention site with an evacuation basket in the university hospital building due to the external staircase, which measured the distance of the equipment from the object.
The intervention commander called in additional units with high-altitude equipment; upon arrival, they reported to the intervention commander, who divided them into individual sections.
In total, there were 766 people in the building, 404 of whom were evacuated. For each intervention section, additional commanders were assigned to the intervention section, who were present at the intervention and thus facilitated the work of evacuation, liquidation, and communication between the intervention sections.
During the entire intervention, it was necessary to use self-contained breathing apparatus due to heavy smoke, and the fire was extinguished using impulse extinguishing.
Each intervention section was double checked; the commanders of individual sections checked the previous group to ensure that individual rooms were not overlooked and, at the same time, they ventilated the individual rooms.
The evacuated persons were concentrated in the central reception, where the attending doctors and nurses checked their health statuses, and a record was written based on the examination, which was the output; at the same time, whether the conditions of the evacuees corresponded to the conditions of the examined persons was checked.
On the 16th floor in section B, where the gynecological and obstetric clinic with newborns in incubators was located, the attending doctor was consulted about the evacuation of newborns. He explained to us that the newborns were in a hermetically sealed incubator, which was connected to external oxygen; therefore, there was no threat to the health and life of the newborns.
During the subsequent check of the evacuees, it was discovered that one person was missing and, according to individual documents, it was determined that this was a person from the psychiatric ward who had escaped from the hospital.
The above method of evacuation was the only possible one for the above reasons because, as already mentioned, high-altitude firefighting equipment could not be deployed and thus the above form of evacuation had to be chosen.
3.6. Organization of Connection and Determination of Radio Networks
The radio connection was made on the default frequency through the Regional Directorate of the Fire and Rescue Service operations center in Košice (OC RD FRS in Košice) (Figure 13).
Figure 13.
Radio connection scheme (source: elaborated by authors).
The connections during the intervention between OC RD FRS Košice and the intervention commander were as follows:
- Base radio station Matra OC RD FRS Košice–channel 606–PKO–1;
- Matra handheld radio station–channel 606–PKO–500.
The connection between the intervention commander, the chief of staff, and the intervention section commanders was ensured using the SITNO digital network–channel 606 (backup talk group). The talk group mentioned is used during long-term or large interventions, when establishing control staff.
The connection between the management staff and OC RD FRS Košice was ensured using the SITNO digital network–channels 600 and 606.
The connections between fire stations were as follows:
- Base radio station Matra Fire station Košice–Požiarnická–channel 600–PKE–1;
- Base radio station Matra Fire station Košice–Teplárenská–channel 600–PKE–2;
- Base radio station Matra Fire station Košice–Šaca–channel 600–PKE–3;
- Base radio station Matra Fire station Bidovce–channel 601–PKS–2;
The connections at the point of intervention were made at analog network channel no. 5, channel no. 7, channel no. 9, and channel no. 11 (vehicles according to individual intervention sections).
Fire station Košice–Požiarnická:
- KHA AROCS 5/60–PKE 150;
- CAS 30 T 815 4 × 4–PKE 106;
- CAS 30 T 815–7 6 × 4–PKE 110;
- Bronto 44–PKE 137;
- Evacuation Bus–PKE 180;
- Nissan X-trail–PKE 159.
Fire station Košice–Teplárenská:
- MB Vario–PKE 354;
- CAS 30 T 815–7 6 × 4–PKE 306;
- Iveco Daily 10–PKE 302.
Fire station Košice–Šaca:
- MB Vario–PKE 254;
- MB Atego 30–PKE 232;
- Hyundai i30–PKE 282.
Fire station Bidovce:
- MB Vario–PKS 254;
- CAS 30 T 815–7 6 × 4–PKS 206.
4. Discussion
4.1. Fire Spread Process Analysis
The spread of the fire was influenced by a number of factors that influenced each other, which is also stated in the fire protection shortcomings for the building in question. The fire itself spread in a circular manner, as evidenced by the expertise from the scene of the incident, and the linear speed of fire spread for the aforementioned object, according to the fire suppression documentation, should have been 0.2 m.min−1.
When the first fire brigade arrived, which was after 5 min, the area of the fire would have been significantly smaller, but the existence of an ignition source, which was a class I flammable substance, increased this speed to up to 2.5 m.min−1.
The stated speed of fire spread from a circular form subsequently grew to a rectangular one, when the room was already engulfed by fire, and the fire subsequently spread through fire-resistant structures.
Based on the fire suppression documentation, 7.8 L.m−2.min−1 fire areas were calculated, and for the perimeter of the fire, it was 38.8 L.m−1.min−1.
If the fire protection legislation had been observed, the fire would not have grown from linear to nonlinear, fewer firefighters would have been provided, and the amount of extinguishing agent required would not have even reached 100 L at the stated linear speed of fire spread.
In the stated fire, the fire was extinguished with around 4000 L of the extinguishing agent water.
In addition to the failure to comply with basic requirements, the speed of fire spread was also impacted by the amount of flammable material on the escape routes, which should have been free of fire load, and the placement of liquid substances in a space that met other requirements, which subsequently accelerated the spread of flames through individual materials. To prevent the spread of fire, it is necessary to ensure stable fire extinguishing equipment in individual buildings, taking into account the type of room in combination with the extinguishing agent on a progressive basis.
4.2. Static Inspection on the Fire Scene
Static inspection revealed that the dining room, the restroom, and part of the adjacent corridor were completely damaged by fire (Figure 14).
Figure 14.
Photo documentation of the fire (source: elaborated by authors).
Over the entire floor area, there were burnt parts of linoleum and fire residues from the dining room and restroom furniture. Plaster on the walls and ceiling was damaged by heat and fell off. The corridor area in the direction of the dining room and restroom of section A of the fourth floor experienced heavy smoke. All the areas of tract A were also smoky, and the patient rooms, examination rooms, cleaning room, and smoking room were smoky. An inspection of other areas of the fourth floor revealed smoke in tract B. At the time of the inspection, evacuation was no longer underway; ventilation of the inpatient and outpatient areas of the floor and other areas of the monoblock was underway. The windows in the individual departments were gradually opened. Some windows could not be opened because they were screwed shut. The doors between the central hall and the escape stairs of tracts A and B were closed. The doors between the escape stairs of tracts A and B on the fourth floor and the intervention of the fire brigade were open. Due to the non-functional overpressure ventilation of the escape stairs of tracts A and B, combustion products spread through the escape stairs to the higher floors of the monoblock. The individual departments on the higher floors were smoky from the 5th floor to the 18th floor. There was a fire evacuation plan, fire extinguisher, and hydrant in each department. Between the staircase and the central hall, there was a vestibule where the air conditioning was installed; at that time it was not functional, and it was not possible to create excess air pressure in the vestibule or on the evacuation staircases.
4.3. Dynamic Inspection of the Fire Scene
The inspection of the fire scene consisted of removing the equipment and the remains of the metal structures of chairs and tables from the dining room area, followed by an evaluation of the traces of fire spread, heat flow, and spread of combustion products on the horizontal and vertical structures of the room. After removing individual parts, the location of the fire, the direction of fire spread, and the speed of fire spread, which did not correspond to the linear speed of fire spread for objects with the specified calculated fire load, were also determined. The initiator was determined based on the remains from the fire site.
4.4. Fire Source
The witness focus of the fire is the entire area of the dining room and the patients’ restroom and part of the corridor under the ceiling, which was observed by the nurse. Initially, she heard suspicious sounds and cracking; when she went out into the corridor, she noticed heat and flames from the dining room and corridor area.
The focus of the fire was the entire area of the dining room and restroom floor plan, with a total area of 36 m2.
The forensic focus of the fire was the entire area of the dining room and restroom floor plan, with a total area of 36 m2. The floor surface showed signs of surface burning. There were visible traces of thermal stress on the floor and walls and surface damage to the ceiling. According to the traces of the spread of the fire, the burning of flammable substances, and the traces of the spread of combustion products, the focus of the fire was the floor plan area of the dining room.
Due to the storage of flammable liquids in an unsecured location, the fire could have started in any room and at any location, simply because it was a psychiatric ward.
4.5. Cause of Fire
Verified explanations for the fire:
- The ignition of flammable substances by an unknown person: based on the inspection, the evaluation of traces of the spread of the fire, facts before the fire and at the time of the fire, and the speed of the development and spread of the fire, as well as the evaluation of video recordings, this was probably the cause of the fire.
- Other: given the facts established, no other explanation for the fire was verified.
By evaluating the verified explanations, the established facts, the evaluation of the state and degree of the combustion of flammable substances, and the traces of the spread of the fire, the cause of the fire in the dining room and restroom of the 1st Psychiatric Clinic of the Louis Pasteur University Hospital was found to be the ignition of flammable substances by an unknown person. The patient is suspected of setting the premises on fire with the help of an unknown flammable liquid.
The spread of the fire was probably influenced by an unknown flammable liquid, which was poured over the dining room of the 1st Psychiatric Clinic of the monoblock–inpatient part of the Louis Pasteur University Hospital in Košice.
At the time of the arrival of the first fire department, the evacuation of patients and staff from four floors was underway. After the arrival of the fire units after conducting a survey, the fire departments, police, city police, and hospital staff carried out another evacuation of patients from the 4th floor and from the 5th floor to the 17th floor.
The most significant negative factor was the fact that, during the evacuation, the individual departments from the fourth floor up were already smoky. The escape route was smoky as a result of the door of the vestibule between the area of the A and B tracts of the fourth floor and the route for emergency escape (the staircases) being open. The ventilation system designed for the escape route with excess air pressure was not functional, and the combustion products (smoke) spread through the escape staircase and the escape route to individual departments on the higher floors of the monoblock of the Louis Pasteur University Hospital.
4.6. Communication Related Issues
Many unique communication challenges face healthcare facilities during a disaster/crisis. The following categories/types of extraordinary “critical events” interrupting the healthcare system/activities could be defined: staff or patient behavior, structural failures, extraordinary events (meteorological events, climate-prone events, terrorist attacks, pandemics, etc.), cybersecurity or technical failures, or misconduct. In the event of emergencies, such as a fire in part of the hospital, the crisis management team is responsible for minimizing the damages and injuries and communicating the rescue and frontline activities to ensure quality healthcare and lifesaving for patients affected by the fire and maintains quality services in the departments out of any danger. This may involve transferring patients to other compartments or external facilities. Also, a healthcare facility can be considered a stationary hazard, subject to fires extended due to the flammable materials and human factor (patients and employees under stress), lack of autonomous monitoring/protecting/sensing equipment for the early communication of any fire/structural failure, etc. However, a hospital is also a frontline response service provider, as described by van der Meer et al., because it receives and treats persons in an emergency and becomes a place for evacuating persons in danger. In the above-described cases, fire victims were evacuated from one healthcare facility to another [50].
Communication can be thus considered in multiple layers and patterns. Compared with people in other places, patients in hospitals are a very special vulnerable group. The coordination and information support services are focused on providing trustworthy and reliable information to disabled patients, providing precise and timely information and data to the fire brigade and other chemical-related rescue squads, and communicating the urgent transfers of vulnerable patients/injured persons and others most at risk. Last but not least, they need to provide information to the public (family relatives) and media to avoid the residual risks of hoaxes and distracting crisis managers from their main role: to secure human lives and arrange temporary care for people at risk. The proper delivery of situational awareness for the affected patients should restrain any residual risk of non-adaptive behavior, panic, backtracking and passing through the smoke, information transmission, and gender difference [51].
Healthcare services prepare for various aspects of crisis communication by developing contingency plans. These plans include a crisis response plan, which outlines the sources, staff, and procedures for reacting to and minimizing the impact of a crisis on the facilities and its routine healthcare services. As part of those plans, exercising and coordinating with fire squads is essential to both ensure the rescuing of the victims and provide adequate response services to a specific group of disabled persons. Another important plan is the business continuity plan, which ensures that basic activities and lifesaving services are maintained at an adequate level of quality, even during a crisis.
4.7. Comparison and Evaluation
Based on the aforementioned fire and the evaluation of individual activities, it is necessary to note that, despite the shortcomings reported by the hospital, the fire brigade’s intervention was quick. They arrived at the scene of the fire within 5 min, preventing the fire from spreading to other floors.
If we compare hospital fires and their consequences, for example, in 2011, 95 people died as a result of a fire at AMRI Hospital Kolkata; in 2012, 4 people died as a result of a fire at State-Run Hospital, Lahore. Subsequently, 13 people died at Bei-Men, Sinying Hospital, Taiwan, in 2012; 36 people died at Moscow Psychiatric Hospital in 2013; 37 people died at Psychiatric Hospital, Luka, Russia, in 2013; 13 people died at Orthopaedics Hospital, Southern Japan, in 2013; and 22 people died at SUM Hospital, Bhubaneswar, in 2016. This is just a brief overview of catastrophic events in hospitals where people died. In three fires in Košice in the mentioned hospital over the past 10 years, no one died, despite the operator’s neglection of duties. From 2016 to 2023, there were three deaths due to fires in hospitals, which indicate the professional intervention of fire departments, which prevented escalation to catastrophic proportions as in the above cases [52].
Premises in which healthcare provided are usually multi-story buildings made mainly of non-combustible building materials. If they were designed or built before 1975, they are not divided into fire sections. The design of escape routes and the installation of firefighting equipment also depend on the year of construction. Firefighting equipment is installed in most healthcare facilities, but as mentioned in this paper, it cannot be relied upon.
For this reason, it would be necessary to implement so-called intelligent firefighting, first mentioned in 2005 at the Wilson, North Carolina, fire department. The goal is to provide information to first responders on the way to a simulated incident, thereby improving decision making. Some of this information came from three sensors in the target building: smoke sensors, heat sensors, and CO detectors. The data from these sensors were used by a zone fire model to infer likely future conditions. Additional information transmitted to rescuers via a laptop on the road included important information such as the following:
- The locations of fire hydrants, building entrances, internal staircases, elevators, and hazardous materials;
- The building construction and occupancy;
- The simulated real-time fire size and location;
- The locations or absence of sprinklers;
- The locations of internal risers, the fire wall ratings, and the locations of fire and emergency medical services equipment;
- Floor plans with fire [53,54].
5. Conclusions
The presented article summarizes the actual interventions of fire protection units; the intervention, the activities of the units, and the time sequences defined based on individual activities are described in detail. The aim was to introduce the general and scientific public to the methods of intervening in the event of a fire in hospital facilities. As a conclusion and a lesson from the above facts, the importance of complying with the above requirements should be stressed; these were not observed in this case according to subsequent research and evidence, which led to the occurrence and subsequent spread of the fire and material damage.
A check in accordance with applicable legal legislation and subsequent research revealed that the entity failed to meet its obligations as follows:
- The fire alarm guidelines did not specify an effective way to declare a fire alarm. The multi-story nature of the building and the difficult conditions for evacuating people from the monoblock building at Tr. SNP 1 in Košice were also not acceptable.
- The documentation did not specify the obligations of employees and authorized persons upon the detection of an alarm to launch a stable fire-extinguishing system in the form of a water curtain.
- The fire alarm guidelines did not provide instructions on when employees and bystanders should remain at their workplaces.
- The documentation did not elaborate on the needs for quick and effective evacuation, and the transmission of the signal from the electric fire alarm system and subsequent verification was very lengthy.
- The evacuation of persons was not carried out and managed by authorized persons.
- The evacuation plan was not prepared in accordance with the actual situation.
- The entity did not maintain in an operational state the fire equipment used for the evacuation of persons: the air conditioning equipment that would ensure the positive pressure ventilation of vertical escape routes.
- The entity did not maintain in an operational state the fire equipment used for the evacuation of persons: the radio equipment installed in the building.
- The entity did not ensure the implementation of training for certain employees.
- Documentation on electrical fire alarm systems was not maintained.
- The inspected entity did not ensure the implementation of the inspection of the electrical fire alarm system installed for the facility.
- The inspected entity did not ensure the proper maintenance of the operating book of the electrical fire alarm system installed in the facility.
- The inspected entity did not maintain the fire equipment—the water curtain—installed in accordance with the project documentation in an operational state.
- The inspected entity did not maintain the fire equipment—the water supply equipment for fire extinguishing, i.e., a non-flooded riser pipe in the facility—in an operational state.
- The inspected entity did not ensure the implementation of a regular inspection of the fire water supply equipment.
- The inspected entity did not maintain the fire equipment—the internal fire water supply with wall hydrants installed in the facility—in an operational state.
- The inspected entity did not maintain the fire equipment—the external fire water supply—in an operational state.
Despite the above-mentioned shortcomings that were identified during the research, the intervention of the fire units was prompt, fast, and effective. During the intervention, 404 people were evacuated and 9 people were injured, which, from the perspective of the above-mentioned shortcomings, demonstrates a high-quality firefighting intervention.
In the present study, we have identified fire risks and consequences of non-compliance with individual legal acts and documentation in the field of fire protection. Complex building structures, diverse flammable substances, and a large number of people in hospitals bring huge property losses and loss of life. Compared to ordinary residential buildings, hospitals contain patients who, for the most part, have limited mobility. When ensuring evacuation, it is necessary to particularly consider the following:
- -
- Personnel procedures when carrying out evacuation;
- -
- The need to comply with fire protection documentation;
- -
- Ensuring the temporary accommodation of evacuees;
- -
- Ensuring high-quality technical solutions for firefighting equipment and its functionality.
The results of the static and dynamic investigation draw particular attention to the speed of fire spread during arson, where a set of individual errors, starting with an increase in the fire load, meant that the speed of fire spread for the listed objects increased from 0.2 m.min−1 to 2.5 m.min−1, which can result in catastrophic consequences if the fire spreads freely.
Last but not least, it is important to conduct evacuation drills and train medical personnel in the use of firefighting equipment, as well as assist patients in evacuation using wheelchairs and medical beds, which could improve the speed of the response of medical personnel in emergency situations, to increase the efficiency of evacuation. In addition to the above recommendations, there is a need to work on research into innovative fire extinguishing methods, which will be a continuation of the research from the aforementioned article, and the design of active and passive fire-extinguishing systems that can operate before the arrival of fire brigades is also needed.
Author Contributions
Each author (M.B., A.S., A.B., I.B. and G.T.T.) equally contributed to this publication. Conceptualization, M.B. and A.S.; methodology, M.B.; software, A.S.; validation, A.B., I.B. and G.T.T.; formal analysis, G.T.T.; investigation, A.B. and I.B.; resources, M.B.; data curation, A.S. and A.B.; writing—original draft preparation, I.B. and G.T.T.; writing—review and editing, M.B. and A.B.; visualization, A.S.; supervision, M.B.; project administration, A.S. and A.B.; funding acquisition, A.S. All authors have read and agreed to the published version of the manuscript.
Funding
This project was funded by the Cultural and Educational Grant Agency of the Ministry of Education, Research, Development and Youth of the Slovak Republic (KEGA), grant No. 075TUKE-4/2024: “Customization of Higher Education through the Implementation of Industry 4.0 Tools–Visualization of Mining Processes for Practical Education of the Study Program Earth Resources Management”.
Institutional Review Board Statement
Not applicable.
Informed Consent Statement
Not applicable.
Data Availability Statement
The data presented in this article are available on request from the corresponding author.
Acknowledgments
The authors would like to thank the anonymous referees for their valuable comments that improved the quality of the manuscript.
Conflicts of Interest
The authors declare no conflicts of interest.
References
- Mufti, S.; Khalil, I.; Rashid, H.; Hamid, S.; Mufti, H.; Jan, F.A. Critical analysis of fire incidents and self-assessment of fire safety program in_a tertiary care hospital of India an observational study. Int. J. Community Med. Public Health 2024, 11, 140–150. [Google Scholar] [CrossRef]
- Wood, M.H.; Hailwood, M.; Kuetelos, K. Reducing the risk of oxygen-related fires and explosions in hospitals treating Covid-19 patients. Process Saf. Environ. Prot. 2021, 153, 278–288. [Google Scholar] [CrossRef] [PubMed]
- Apfelbaum, J.L.; Caplan, R.A.; Barker, S.J.; Connis, R.T.; Cowles, C.; Ehrenwerth, J.; Nickinovich, D.G.; Pritchard, D.; Roberson, D.W. Practice advisory for the prevention and management of operating room fires: An updated report by the American Society of Anesthesiologists Task Force on Operating Room Fires. Anesthesiology 2013, 118, 271–290. [Google Scholar] [CrossRef] [PubMed]
- Chowdhury, K. Fires in Indian hospitals: Root cause analysis andrecommendations for their prevention. J. Clin. Anesth. 2013, 26, 414–424. [Google Scholar] [CrossRef] [PubMed]
- Tomasková, M.; Baláziková, M.; Krajnák, J. Hazards Related to Activities of Fire-Rescue Department Members during the Covid-19 Pandemic. Sci. J. Silesian Univ. Technol. Ser. Transp. 2022, 117, 247–260. [Google Scholar] [CrossRef]
- Dhaliwal, N.; Bhogal, R.S.; Kumar, A.; Gupta, A.K. Responding to fire in an intensive care unit: Management and lessons learned. World J. Emerg. Med. 2018, 9, 154–156. [Google Scholar] [CrossRef]
- Güdük, Ö. Investigation of Fires Occuring in Hospitals Between 2019-2023 in Türkiye: A Content Analysis. J. Disaster Risk 2024, 7, 743–757. [Google Scholar] [CrossRef]
- Murphy, G.R.F.; Foot, C. ICU fire evacuation preparedness in London: A cross-sectional study. Br. J. Anaesth 2011, 106, 695–698. [Google Scholar] [CrossRef]
- Jones, T.S.; Black, I.H.; Robinson, T.N.; Jones, E.L. Operating Room Fires. Anesthesiology 2019, 130, 492–501. [Google Scholar] [CrossRef] [PubMed]
- Watson, D.S. New recommendations for prevention of surgical fires. AORN J. 2010, 91, 463–469. [Google Scholar] [CrossRef] [PubMed]
- Rinder, C.S. Fire safety in the operating room. Curr. Opin. Anaesthesiol. 2008, 21, 790–795. [Google Scholar] [CrossRef] [PubMed]
- Siddharth, S.R.; Pyreddy, S.R.; Panthagani, S.N. A study on reported fire incidents in major hospitals of India. Int. J. Community Med. Public Health 2020, 7, 3896–3906. [Google Scholar] [CrossRef]
- Sharma, R.; Ashok, K.; Vipin, K. Fire Incidents InHealthcare Organizations: Readiness, Response AndPreparedness. Int. J. Sci. Res. 2019, 8, 2277–2817. [Google Scholar] [CrossRef]
- Sharma, R.; Bakshi, H.; Banerjee, A. Fire Safety Hazards: How Safe Are Our Hospitals? Indian J. Community Med. 2020, 45, 104–105. [Google Scholar] [CrossRef] [PubMed]
- Salleh, N.; Aras, A.S.N.; Norazman, N.; Kamaruzzaman, S.N. Fire risk assessment of Malaysia public hospital buildings. J. Facil. Manag. 2023, 21, 635–650. [Google Scholar] [CrossRef]
- Tomaskova, M.; Pokorny, J.; Kucera, P.; Balazikova, M.; Marasova, D. Fire Models as a Tool for Evaluation of Energy Balance in Burning Space Relating to Building Structures. Appl. Sci 2022, 12, 2505. [Google Scholar] [CrossRef]
- Pokorny, J.; Tomaskova, M.; Balazikova, M. Study of changes for selected fire parameters at activation of devices for smoke and heat removal and at activation of fixed extinguishing device. MM Sci. J. 2015, 4, 764–767. [Google Scholar] [CrossRef]
- Altaie, M.R.; Muhsin, I.F.; Dishar, M.M. Managing the Utilization of Preventive Measures for Fire Resistance in the Hospitals. Civ. Environ. Eng. 2023, 19, 520–531. [Google Scholar] [CrossRef]
- Boyd, A.; Chambers, N.; French, S.; King, R.; Whitehead, K. Emergencyplanning, management in health care: Priority research topics. Health Syst. 2013, 3, 83–92. [Google Scholar] [CrossRef] [PubMed]
- Brzezińska, D.; Bryant, P. Risk Index Method-A Tool for Building Fire Safety Assessments. Appl. Sci. 2021, 11, 3566. [Google Scholar] [CrossRef]
- Osvaldova Makovicka, L.; Gaspercova, S. The Evaluation of Flammability PropertiesRegarding Testing Methods. Civ. Environ. Eng. 2015, 11, 142–146. [Google Scholar] [CrossRef][Green Version]
- Park, H.; Meacham, B.J.; Dembsey, N.A.; Goulthrope, M. Conceptual Model Development for Holistic Building Fire Safety Performance Analysis. Fire Technol. 2013, 51, 173–193. [Google Scholar] [CrossRef]
- Kadhim, E.M.; Altaie, M.R. Factors Affecting Building Maintenance Practices:Review. J. Eng. 2023, 29, 153–172. [Google Scholar] [CrossRef]
- Kadhim, E.M.; Altaie, M.R. Factors Affecting Maintenance Practises in Iraq’s Hospital Buildings. Jordan J. Civ. Eng. 2023, 17, 408–418. [Google Scholar] [CrossRef]
- Yilmaz, D. Fire Safety and Prevention Issues in Design of Tall Buildings. Int. J. Archit. Eng. Technol. 2022, 9, 138–150. [Google Scholar] [CrossRef]
- Altaia, M.R.; Dishar, M.M.; Muhsin, F.I. Fundamental Challenges and Management Opportunities in Post Disaster Reconstruction Project. Civ. Eng. J. 2023, 9, 2161–2174. [Google Scholar] [CrossRef]
- Hicks, J.; Glick, R. A meta-analysis of hospital evacuations: Overcoming barriers to effective planning. J Health Risk Manag 2015, 34, 26–36. [Google Scholar] [CrossRef] [PubMed]
- Kaye, A.D.; Kolinsky, D.; Urman, R.D. Management of a fire in the operating room. J. Anesth. 2014, 28, 279–287. [Google Scholar] [CrossRef]
- Huang, D.C.; Chien, S.W.; Lin, C.H.; Huang, P.T.; Song, Y.T.; Sie, H.R. A study for the evacuation of hospital on fire during construction. Procedia Eng. 2011, 11, 139–146. [Google Scholar] [CrossRef]
- Childers, A.; Visagamurthy, G.; Taaffe, K. Prioritizing Patients for Evacuation from a Health-Care Facility. Transp. Res. Rec. J. Transp. Res. Board. 2009, 2137, 38–45. [Google Scholar] [CrossRef]
- Wabo, C.; Örtenwall, P.; Khorram-Manesch, A. Hospital evacuation; planning, assessment, performance and evaluation. J. Acute Dis. 2012, 1, 56–58. [Google Scholar] [CrossRef]
- The Decree of the Ministry of Health of the Slovak Republic No. 770/2004 Coll. on Determining the Characteristics of Individual Healthcare Facilities Is as Follows: Institutional Healthcare Facilities and Outpatient Healthcare Facilities. Available online: https://www.slov-lex.sk/ezbierky/pravne-predpisy/SK/ZZ/2004/770/20051015.html (accessed on 9 September 2023).
- Gavurová, B.; Kubak, M. Satisfaction of inpatients with health care facilities and medical services in Slovak Republic. Econ. Res. Ekon. Istraživanja 2022, 35, 1–19. [Google Scholar] [CrossRef]
- Kapalla, M.; Kapallová, D.; Turecký, L. An overview of the healthcare system in the Slovak Republic. EPMA J. 2010, 1, 549–561. [Google Scholar] [CrossRef] [PubMed]
- Smatana, M.; Pažitný, P.; Kandilaki, D.; Laktišová, M.; Sedláková, D.; Palušková, M.; van Ginneken, E.; Spranger, A.; World Health Organization. Slovakia: Health system review. Health Syst. Transit. 2016, 18, 1–210. [Google Scholar] [PubMed]
- Informative Location of Hospitals in the Slovak Republic. Available online: https://www.rra-nitra.sk/wp-content/uploads/2009/07/oph-en-upozornenie-mz-sr-anglicky-preklad-nemozno-povazovat-za-oficialny-dokument.pdf (accessed on 10 September 2023).
- Kľučka, J.; Mózer, V.; Dvorskí, J. Fire Losses in the Slovak Republic-Their Classification and Quantification. Commun.—Sci. Lett. Univ. Zilina 2015, 17, 1. [Google Scholar] [CrossRef]
- Gavurová, B.; Kováč, V.; Fedačko, J. Regional disparities in medical equipment distribution in the Slovak Republic–a platform for a health policy regulatory mechanism. Health Econ. Rev. 2017, 7, 39. [Google Scholar] [CrossRef] [PubMed]
- Gavurova, B.; Kocisova, K. The Efficiency of Hospitals: Platform for Sustainable Health Care System. Entrep. Sustain. Issues 2020, 8, 133–146. [Google Scholar] [CrossRef]
- Pavol Jozef Šafárik University, Faculty of Medicine (UPJS FM), Louis Pasteur University Hospital (LPUH) and Child Teaching Hospital (ChTH), Trieda SNP 1. Available online: https://www.upjs.sk/lekarska-fakulta/en/address-and-contacts/orientation-map/trieda-snp-street/ (accessed on 9 January 2024).
- STN 92 0201-2; Fire Safety of Buildings. Common Provisions. Part 2: Building Structures. Available online: https://www.normoff.gov.sk/stranka/541/stn-online/ (accessed on 1 February 2025).
- STN EN 1991-1-2; Eurocode 1. Actions on Structures. Part 1–2: General actions. Actions on Structures Exposed to Fire. Available online: https://www.normoff.gov.sk/stranka/541/stn-online/ (accessed on 1 February 2025).
- Ministry of the Interior of The Slovak Republic Home Page. Presidium of the Fire and Rescue Service. Collection of Instructions of the President of the Fire and Rescue Service. About the Content and Procedure for Processing Documentation on Fighting Fires. Available online: https://www.minv.sk/?interne-predpisy-1 (accessed on 2 February 2025).
- Ministry of the Interior of The Slovak Republic Home Page. Presidium of the Fire and Rescue Service. Collection of Instructions of the President of the Fire and Rescue Service. About the Methods of Calculating Forces and Resources. Available online: https://www.minv.sk/?interne-predpisy-1 (accessed on 2 February 2025).
- Presidium of the Fire and Rescue Service Home Page. Order of the President of the Fire and Rescue Service. Tactical-Methodical Procedure for Carrying Out Interventions No. 22. Extinguishing Fires in Heavy Smoke. Available online: https://elearnhazz-sk.webnode.sk/subory-na-stiahnutie/metodicke-listy/ (accessed on 2 February 2025).
- Betuš, M.; Konček, M.; Šofranko, M.; Čambal, J.; Ondov, M. Methods of Extinguishing Fires in Objects with High Voltage. Fire 2023, 6, 442. [Google Scholar] [CrossRef]
- Presidium of the Fire and Rescue Service Home Page. Tactical-Methodical Procedure for Carrying Out Interventions No. 23. Overpressure Ventilation in Fire Fighting. Available online: https://elearnhazz-sk.webnode.sk/subory-na-stiahnutie/metodicke-listy/ (accessed on 2 February 2025).
- Presidium of the Fire and Rescue Service Home Page. Order of the President of the Fire and Rescue Service. Tactical-Methodical Procedure for Carrying Out Interventions No. 7. Rescue of Persons. Available online: https://elearnhazz-sk.webnode.sk/subory-na-stiahnutie/metodicke-listy/ (accessed on 2 February 2025).
- Presidium of the Fire and Rescue Service Home Page. Order of the President of the Fire and Rescue Service. Tactical-Methodical Procedure for Carrying Out Interventions No. 75. In Healthcare Facilities, Social Facilities and Educational Facilities. Available online: https://elearnhazz-sk.webnode.sk/subory-na-stiahnutie/metodicke-listy/ (accessed on 2 February 2025).
- Van der Meer, T.L.A.; Verhoeven, P.; Beentjes, H.W.J.; Vliengenthert, R. Communication in tumes of crisis: The stakeholder relationship under pressure. Public Relat. Rev. 2017, 43, 426–440. [Google Scholar] [CrossRef]
- Huang, Y.; Lo, S.M.; Yang, L.; Gao, L.; Lo, J. Hospital Evacuation under Fire: Risk Identification and Future Prospect. In Proceedings of the 2019 9th International Conference on Fire Science and Fire Protection Engineering (ICFSFPE), Chengdu, China, 18–20 October 2019. [Google Scholar] [CrossRef]
- Choudhari, A.H.; Kausar, M.; Satpathy, S.; Sarma, D.K. Fire Safety Related Challenges Faced by Existing Hospitals: A Review. Med. Leg. Update 2020, 20, 440–446. [Google Scholar] [CrossRef]
- Grant, C. Research Roadmap for Smart Fire Fighting. Fire Protection Research Foundation: NIST Special Publication 1191; National Institute of Standards and Technology: Gaithersburg, MD, USA, 2015. [Google Scholar] [CrossRef]
- The National Fire Protection Association. NFPA 99 Health Care Facilities Code. Int. Codes Stand. Organ. 2024, 272. Available online: https://fire-gas.com/wp-content/uploads/2024/06/NFPA-99-2024-Health-Care-Facilities-Code.pdf (accessed on 2 February 2025).
Disclaimer/Publisher’s Note: The statements, opinions and data contained in all publications are solely those of the individual author(s) and contributor(s) and not of MDPI and/or the editor(s). MDPI and/or the editor(s) disclaim responsibility for any injury to people or property resulting from any ideas, methods, instructions or products referred to in the content. |
© 2025 by the authors. Licensee MDPI, Basel, Switzerland. This article is an open access article distributed under the terms and conditions of the Creative Commons Attribution (CC BY) license (https://creativecommons.org/licenses/by/4.0/).













