Three-Dimensional Digital Reconstruction and Archaeometric Approaches for Hydroxyapatite-Based Restoration of Sacidava Roman Fortress
Abstract
1. Introduction
2. Methods and Materials
2.1. Methods
- Point semi-quantitative analyses located at certain intervals in the same micro-area, for the distribution of compositional elements on the material surface, as well as the variational verification of the composition of the investigated micro-area with the points from which the respective spectra were acquired.
- Elemental mapping analyses, namely obtaining spectral images—where the distribution of the elements on the surface swept by the electron beam are superimposed and possible compositional differences have been highlighted—the increase in the area of the element present or the appearance/disappearance of an analyzed and identified element.
2.2. Materials
2.3. Sample Selection, Replication, and Statistics
3. Results and Discussion
3.1. Three-Dimensional Digital Reconstruction Material Characterization
3.1.1. SEM-EDS
3.1.2. AFM Studies
3.1.3. Simulated Computed Tomography (Pseudo-CT)
3.2. Environmental Correlation
- Lightness (L*) decreases, meaning that the surface appears darker and more matte.
- Decrease in L* (darkening) means that the surface has an increased soiling or biological growth.
- Higher L* means that the surface becomes brighter from sunlight exposure.
- The color measurements show a slight shift toward green (lower a values) or a faint red tint, typical of natural stone (slightly higher a values), suggesting minor oxidation or mineral changes. The b values shift moderately toward yellow, which is likely influenced by a yellow-green lichen layer or the stone’s natural yellowish tones. Overall, these color changes appear to be closely linked to surface roughness and chemical weathering.
- PC1 (53.3%) separates towers by humidity and salt stress: A and F sit on the negative side, confirming their exposure.
- PC2 (21.7%) reflects treatment success and microstructural stability: C, D, and E1 group near the center, showing balanced conditions, while E2 stands apart as the best preserved.
3.3. Conservation Assessment (HAp Activity)
- Reduction in open porosity: Profilometry confirms the “leveling” of microcavities, leading to a better protection against water and salts (Figure 18).
- Layer compatibility: A thin, uniform HAp layer does not block vapor diffusion, preserving the “breathability” of antique mortar (Figure 19).
- Mechanical stability: The relief analysis highlights possible areas with low adhesion, where the layer is at risk of exfoliating.
3.4. Three-Dimensional Digital Reconstruction
4. Conclusions
- ○
- 3D digital reconstruction of Sacidava (the first complete model of the site) enabled precise architectural documentation and visualization of structural and environmental risks.
- ○
- Archaeometric analyses (SEM-EDS, AFM, CLSM, and pseudo-CT) identified a heterogeneous microstructure, composed of phyllosilicates, ash residues, and secondary reaction products such as carbonates and silica gels, with a high degree of destruction.
- ○
- Hydroxyapatite (HAp) treatment demonstrated high compatibility with lime-based substrates, improving cohesion and maintaining the historical materials’ visual and chemical authenticity.
- ○
- Surface roughness parameters (Ra, Rq, Rz) decreased significantly after HAp application, confirming smoother topographies and reduced micro-defects in treated areas.
- ○
- Pore sealing and densification were observed through pseudo-CT and CLSM imaging, indicating enhanced compactness and reduced capillary water uptake. The breathability completed these data.
- ○
- Multivariate analyses (PCA and dendrogram) revealed correlations between degradation intensity and environmental parameters (humidity, pH, and salt content), distinguishing exposed towers (E2–F–G) from more stable zones (A–B-C–D–E1).
- ○
- Colorimetric data (CIELab) provided a non-destructive diagnostic tool, linking chromatic changes with microstructural and environmental factors.
Author Contributions
Funding
Institutional Review Board Statement
Informed Consent Statement
Data Availability Statement
Acknowledgments
Conflicts of Interest
References
- Moropoulou, A.; Bakolas, A.; Anagnostopoulou, S. Composite materials in ancient structures. Cem. Concr. Compos. 2005, 27, 295–300. [Google Scholar] [CrossRef]
- Medeghini, L.; Calzolari, L.; Botticelli, M.; Di Fazio, M.; De Vito, C.; Pettiti, I.; Bardelli, F.; Mignardi, S. The secret of ancient Roman hydraulic mortar: The lesson learnt from the past for future cements. Cem. Concr. Compos. 2024, 148, 105484. [Google Scholar] [CrossRef]
- Rhodes, C. Roman Concrete for Durable, Eco-Friendly Construction—Applications for Tidal Power Generation, and Protection against Sea Level Rise. Sci. Prog. 2018, 101, 83–91. [Google Scholar] [CrossRef]
- Quagliarini, E.; Sparvoli, G.; Ferreira, T.M.; Bernardini, G. Integrating Physical Vulnerability and Exposure with User Factors in Flood Risk Assessment and Mitigation for Historic Built Environments. In Envisioning the Futures—Designing and Building for People and the Environment. Colloqui.AT.e 2025; Lecture Notes in Civil Engineering; Albatici, R., Dalprà, M., Gatti, M.P., Maracchini, G., Torresin, S., Eds.; Springer: Cham, Switzerland, 2025; Volume 765. [Google Scholar] [CrossRef]
- Scorpan, C. Results of the archaeological excavations at Sacidava. Pontica 1977, 10, 229–251. [Google Scholar]
- Ion, R.-M.; Iancu, L.; Grigorescu, R.M.; Colesniuc, S.M.; Schroder, V.; Trandafir, R.A.; Ionita, S.; Gheboianu, A.I.; Slamnoiu-Teodorescu, S. Diagnosis, Photogrammetry and Conservation Treatment with Nanomaterials of Sacidava Fortress. Chem. Proc. 2023, 13, 25. [Google Scholar] [CrossRef]
- Hermon, S.; Kalisperis, L. Between the Real and the Virtual: 3D visualization in the Cultural Heritage domain—Expectations and prospects. Virtual Archaeol. Rev. 2011, 2, 59. [Google Scholar] [CrossRef]
- Pieraccini, M.; Guidi, G.; Atzeni, C. 3D Digitizing of Cultural Heritage. J. Cult. Herit. 2001, 2, 63–70. [Google Scholar] [CrossRef]
- Maté-González, M.Á.; Di Pietra, V.; Piras, M. Evaluation of Different LiDAR Technologies for the Documentation of Forgotten Cultural Heritage under Forest Environments. Sensors 2022, 22, 6314. [Google Scholar] [CrossRef]
- Ion, R.M.; Gurgu, V.; Bucurica, A.I.; Teodorescu, S.; Dulama, I.D.; Stirbescu, R.M.; Gheboianu, A.I. Digital Scanning and Non-destructive Techniques for Size Recovering and Rehabilitating the Structural Performance of Traditional Stuccoes. In VR Technologies in Cultural Heritage. VRTCH 2018; Communications in Computer and Information Science; Duguleană, M., Carrozzino, M., Gams, M., Tanea, I., Eds.; Springer: Cham, Switzerland, 2019; Volume 904. [Google Scholar] [CrossRef]
- Guidi, G.; Remondino, F.; Russo, M.; Menna, F.; Rizzi, A.; Ercoli, S. A Multi-Resolution methodology for the 3D modeling of large and complex archaeological areas. Int. J. Archit. Comput. 2009, 7, 39–55. [Google Scholar]
- El-Hakim, S.F.; Beraldin, J.A.; Picard, M.; Godin, G. Detailed 3D reconstruction of large-scale heritage sites with integrated techniques. IEEE Comput. Graph. Appl. 2004, 23, 21–29. [Google Scholar] [CrossRef]
- Columbu, S.; Palomba, M.; Sitzia, F.; Murgia, M.R. Geochemical, mineral-petrographic and physical-mechanical characterization of stones and mortars from the Romanesque Saccargia Basilica (Sardinia, Italy) to define their origin and alteration. Ital. J. Geosci. 2018, 137, 369–695. [Google Scholar] [CrossRef]
- Puertas, F.; Blanco-Varela, M.T.; Palomo, A.; Ortega-Calvo, J.J.; Ariño, X.; Saiz-Jimenez, C. Decay of Roman and repair mortars in mosaics from Italica, Spain. Sci. Total Environ. 1994, 153, 123–131. [Google Scholar] [CrossRef]
- Rosvall, J. (Ed.) Air Pollution and Conservation: Safeguarding Our Architectural Heritage; Elsevier Technical Press: New York, NY, USA, 1988. [Google Scholar]
- Laurie, A.P.; Milne, J. The Evaporation of Water and Salt Solutions from Surfaces of Stone, Brick and Mortar. Proc. R. Soc. Edinb. 1926, 47, 52–69. [Google Scholar] [CrossRef]
- Morton, J.; Richardson, B.; de Vekey, R.C. Deterioration of materials. In The Maintenance of Brick and Stone Masonry Structures; Sowden, A.M., Ed.; E & F SPON: New York, NY, USA, 1990; pp. 117–139. [Google Scholar]
- Collepardi, M. Degradation and Restoration of Masonry Walls of Historic Buildings. Mater. Struct. 1990, 23, 81–102. [Google Scholar] [CrossRef]
- De Laine, J. Production, Transport and On-Site Organisation of Roman Mortars and Plasters. Archaeol. Anthropol. Sci. 2021, 13, 195. [Google Scholar] [CrossRef]
- Coutelas, A. The Selection and Use of Lime Mortars on the Building Sites of Roman Gaul. Comm. Hum. Litt. 2011, 128, 139–151. [Google Scholar]
- Brandon, C.J.; Hohlfelder, R.L.; Jackson, M.D.; Oleson, J.P. Building for Eternity. In The History and Technology of Roman Concrete Engineering in the Sea; Oxbow Press: Oxford, UK, 2015. [Google Scholar]
- Secco, M.; Asscher, Y.; Ricci, G.; Tamburini, S.; Preto, N.; Sharvit, J.; Artioli, G. Cementation Processes of Roman Pozzolanic Binders from Caesarea Maritima (Israel). Const. Build. Mat. 2022, 355, 129128. [Google Scholar] [CrossRef]
- Alexandrescu, C.G. Roman funerary stelai from Moesia inferior and their reuse as building material: The Sacidava case. Pontica 2022, 55, 433–449. [Google Scholar]
- Aricescu, A. Quelques precisions sur la carte. Scinthia Minor. Dacia N.S. XlV 1970, 292, 298–309. [Google Scholar]
- Popescu, F.M. The Roman Army in Moesia Inferior; Conphys Publishing House: Râmnicu Vâlcea, Romania, 2010. [Google Scholar]
- Buchsenschultz, O. L’histoire vue du ciel: Archéologie aérienne en Roumanie. Nouv. L’archéologie 1987, 26, 102–104. [Google Scholar]
- Colesniuc, S.M.; Cliante, T.; Potârniche, T.; Mototolea, A.; Stanc, S.M. Cercetări Arheologice Sistematice în Așezarea Romană Fortificată Sacidava, punct Dealul Muzait, loc. Dunăreni, com. Aliman, jud. Constanța, în Cronica Cercetărilor Arheo-logice din România. Campania 2020, București, 2021; p. 84. Available online: https://biblioteca-digitala.ro/reviste/carte/cronica-cercetarilor-arheologice-campania_2020.pdf (accessed on 7 October 2025).
- Ion, R.-M.; Gurgu, V.; Alin Bucurica, I.; Teodorescu, S.; Ion, M.-L.; Postolache, D.; Darida, I. 3D-Reconstruction of the Complex Stuccoes from Patrimony Buildings. Digit. Present. Preserv. Cult. Sci. Herit. 2017, 7, 107–112. [Google Scholar] [CrossRef]
- Remondino, F. Heritage Recording and 3D Modeling with Photogrammetry and 3D Scanning. Remote Sens. 2011, 3, 1104–1138. [Google Scholar] [CrossRef]
- Binda, L.; Saisi, A.; Tiraboschi, C. Investigation procedures for the diagnosis of historic masonries. Constr. Build. Mater. 2000, 14, 199–233. [Google Scholar] [CrossRef]
- Middendorf, B.; Hughes, J.J.; Callebaut, K.; Baronio, G.; Papayianni, I. Investigative methods for the characterisation of historic mortars—Part 1: Mineralogical characterisation. Mater. Struct. Constr. 2005, 38, 761–769. [Google Scholar] [CrossRef]
- Rispoli, C. Ancient roman mortars: Mix design, mineralogical composition and minerogenetic secondary processes. PLINIUS 2017, 43, 93–100. [Google Scholar] [CrossRef]
- Divya Rani, S.; Rahul, A.V.; Santhanam, M. A multi-analytical approach for pore structure assessment in historic lime mortars. Constr. Build. Mater. 2021, 272, 121905. [Google Scholar] [CrossRef]
- Cardell, C.; Yebra, A.; Van Grieken, R.E. Applying digital image processing to SEM-EDX and BSE images to determine and quantify porosity and salts with depth in porous media. Microchim. Acta 2002, 140, 9–14. [Google Scholar] [CrossRef]
- Pawley, J.B. (Ed.) Handbook of Biological Confocal Microscopy, 3rd ed.; Springer: Berlin/Heidelberg, Germany, 2006; ISBN 0-387-25921-X. [Google Scholar]
- Peterson, D.A. Confocal Microscopy. In Encyclopedia of Movement Disorders; Kompoliti, K., Metman, L.V., Eds.; Academic Press: Cambridge, MA, USA, 2010; pp. 250–252. [Google Scholar] [CrossRef]
- Mironova, A.; Robache, F.; Deltombe, R.; Guibert, R.; Nys, L.; Bigerelle, M. Digital Cultural Heritage Preservation in Art Painting: A Surface Roughness Approach to the Brush Strokes. Sensors 2020, 20, 6269. [Google Scholar] [CrossRef]
- Gomez-Villalba, L.S.; Salcines, C.; Fort, R. Application of Inorganic Nanomaterials in Cultural Heritage Conservation, Risk of Toxicity, and Preventive Measures. Nanomaterials 2023, 13, 1454. [Google Scholar] [CrossRef]
- Sassoni, E. Hydroxyapatite and Other Calcium Phosphates for the Conservation of Cultural Heritage: A Review. Materials 2018, 11, 557. [Google Scholar] [CrossRef]
- David, M.E.; Ion, R.-M.; Grigorescu, R.M.; Iancu, L.; Andrei, E.R. Nanomaterials Used in Conservation and Restoration of Cultural Heritage: An Up-to-Date Overview. Materials 2020, 13, 2064. [Google Scholar] [CrossRef]
- Götz, P.; Melamed, D.; Bohling, H.; Brovkina, C.; Hussain, I.; Reims, N.; Junge, L.; Hoffmann, D.; Wiskandt, C.; Schilling, R.; et al. Embedding of X-ray computed tomography data of cultural heritage objects in interactive web applications—Old technical instruments brought back to novel virtual life. J. Cult. Herit. 2025, 76, 100–110. [Google Scholar] [CrossRef]
- Vera-Olmos, J.; Torrado-Carvajal, A.; Prieto-de-la-Lastra, C.; Catalano, O.A.; Rozenholc, Y.; Mazzeo, F.; Soricelli, A.; Salvatore, M.; Izquierdo-Garcia, D.; Malpica, N. How to Pseudo-CT: A Comparative Review of Deep Convolutional Neural Network Architectures for CT Synthesis. Appl. Sci. 2022, 12, 11600. [Google Scholar] [CrossRef]
- Kak, C.; Slaney, M. Principles of Computerized Tomographic Imaging; The Institute of Electrical and Electronics Engineers, Inc.: New York, NY, USA, 1999; p. 119. [Google Scholar]
- Seletchi, E.D.; Duliu, O.G. Image processing and data analysis in computed tomography. Rom. J. Phys. 2007, 52, 667–675. [Google Scholar]
- Abramoff, M.D.; Magalhaes, P.J.; Ram, S.J. Image processing with ImageJ. Biophotonics Int. 2004, 11, 36–42. [Google Scholar]
- ISO/CIE 11664-2:2022; Colorimetry—Part 2: CIE Standard Illuminants. ISO: Geneva, Switzerland, 2006.
- Available online: https://www.geeksforgeeks.org/data-analysis/principal-component-analysis-pca/ (accessed on 1 September 2025).
- Ruffolo, S.A.; Comite, V.; La Russa, M.F.; Belfiore, C.M.; Barca, D.; Bonazza, A.; Crisci, G.M.; Pezzino, A.; Sabbioni, C. An analysis of the black crusts from the Seville Cathedral: A challenge to deepen the understanding of the relationships among microstructure, microchemical features and pollution sources. Sci. Total Environ. 2015, 502, 157–166. [Google Scholar] [CrossRef]
- CEN EN 1015-18:2002(MAIN); Methods of Test for Mortar for Masonry—Part 18: Determination of Water Absorption Coefficient due to Capillary Action of Hardened Mortar. iTeh, Inc.: Newark, DE, USA, 2002.
- Scorpan, C. Limes Scythiae: Topographical and Stratigraphical Research on the Late Roman Fortifications on the Lower Danube; Biblioteca Academiei: Bucharest, Romania, 1980; Volume 88, 219p. [Google Scholar]
- Ion, R.-M.; Doncea, S.-M.; Ţurcanu-Caruțiu, D. Nanotechnologies in Cultural Heritage—Materials and Instruments for Diagnosis and Treatment; InTech: Vienna, Austria, 2018. [Google Scholar] [CrossRef]
- Colesniuc, S.M.; Potârniche, T.; Mototolea, A.; Cliante, T.; Stanc, S.M. Intramuros Archaeological Research at Sacidava. Preliminary Information. In ArheoVest. Interdisciplinaritate în Arheologie, nr. VIII; JATEPress Kiadó: Szeged, Hungary, 2020. [Google Scholar]
- Ion, R.M.; Colesniuc, S.M.; Schröder, V.; Ioniţă, S.; Trandafir, R.A. Structural/Compositional Identification of Materials from Sacidava Fortress. Învăţământ Cercetare Creaţie 2024, X, 171–182. [Google Scholar]
- Casadio, F.; Chiari, G.; Simon, S. Evaluation of binder/aggregate ratios in archaeological lime mortars with carbonate aggregate: A comparative assessment of chemical, mechanical and microscopic approaches. Archaeometry 2005, 47, 671–689. [Google Scholar] [CrossRef]
- Kirk, R.E. Experimental Design: Procedures for The Behavioral Sciences, 3rd ed.; Brooks/Cole: Pacific Grove, CA, USA, 1995. [Google Scholar]
- Lascu, M.F. Scythia Minor and consequences of the breakup of the danubian limes. Rev. Română De Stud. Eurasiatice 2016, 12, 15–30. [Google Scholar]
- Pozo-Antonio, J.S.; Pereira, M.F.C.; Rocha, C.S.A. Microscopic characterisation of black crusts on different substrates. Sci. Total Environ. 2017, 584, 291–306. [Google Scholar] [CrossRef]
- Elsen, J. Microscopy of historic mortars—A review. Cem. Concr. Res. 2006, 36, 1416–1424. [Google Scholar] [CrossRef]
- Portilla Mendoza, K.; Pinzón-Núñez, D.; Moreno-González, L.; Mier-Umaña, R.; Rios, C.; Henao Martínez, J. Archaeometry study of the mineral and chemical composition of pre-Hispanic pottery from “Los Teres”, Mesa de Los Santos (Colombia). Memorias 2020, 42, 7–43. [Google Scholar] [CrossRef]
- Huseien, G.F.; Joudah, Z.H.; Baghban, M.H.; A. Khalid, N.H.; Faridmehr, I.; Dong, K.; Li, Y.; Gu, X. Sustainability of Recycling Waste Ceramic Tiles in the Green Concrete Industry: A Comprehensive Review. Buildings 2025, 15, 2406. [Google Scholar] [CrossRef]
- Moropoulou, A.; Bakolas, A.; Bisbikou, K. Physico-chemical adhesion and cohesion bonds in joint mortars imparting durability to the historic structures. Constr. Build. Mater. 2000, 14, 35–46. [Google Scholar] [CrossRef]
- Ontiveros-Ortega, E.; Rodríguez-Gutierrez, O.; Navarro, A.D. Mineralogical and physical-chemical characterisation of Roman mortars used for monumental substructures on the Hill of San Antonio, in the Roman city of Italica (prov. Baetica, Santiponce, Seville, Spain). J. Archaeol. Sci. Rep. 2016, 7, 205–223. [Google Scholar] [CrossRef]
- Almaviva, S.; Lecci, S.; Puiu, A.; Spizzichino, V.; Fantoni, R.; Falconieri, M.; Gagliardi, S.; Chiari, M.; Mazzinghi, A.; Ruberto, C.; et al. Raman/XRF/EDX microanalysis of 2nd-century stuccoes from domus valeriorum in Rome. J. Cult. Herit. 2019, 37, 225–232. [Google Scholar] [CrossRef]
- Genestar, C.; Pons, C.; Mas, A. Analytical characterisation of ancient mortars from the archaeological Roman city of Pollentia (Balearic Islands, Spain). Anal. Chim. Acta 2006, 557, 373–379. [Google Scholar] [CrossRef]
- Dorscheid, J.; Bossema, F.; van duin, P.; van Liere, R.; Di Stefano, G.P. Looking under the skin: Multi-scale CT scanning of a peculiarly constructed cornett in the Rijksmuseum. Herit. Sci. 2022, 10, 161. [Google Scholar] [CrossRef]
- Dambrogio, J.; Ghassaei, A.; Smith, D.S.; Jackson, H.; Demaine, M.L.; Davis, G.; Mills, D.; Ahrendt, R.; Akkerman, N.; van der Linden, D.; et al. Unlocking history through automated virtual unfolding of sealed documents imaged by X-ray microtomography. Nat. Commun. 2021, 12, 1184. [Google Scholar] [CrossRef] [PubMed]
- Schneider, C.A.; Rasband, W.S.; Eliceiri, K.W. NIH Image to ImageJ: 25 years of image analysis. Nat. Methods 2012, 9, 671–675. [Google Scholar] [CrossRef] [PubMed]
- Freeman, A.; Doutre, M.; Bevan, G.; Murray, A. Craquelure Documentation and Analysis: A Preliminary Process Using Reflectance Transformation Imaging and ImageJ. In Proceedings of the ANAGPIC 2013, Los Angeles, CA, USA, 26 April 2013; 13p. [Google Scholar]
- Artioli, G.; Secco, M.; Addi, A. The Vitruvian legacy: Mortars and binders before and after the Roman world. EMU Notes Mineral. 2019, 20, 151–202. [Google Scholar]
- Ortiz, R.; Ortiz, P.; Vázquez, M.A.; Martín, J.M. Integration of georeferenced informed system and digital image analysis to assess the effect of cars pollution on historical buildings. Constr. Build. Mater. 2017, 139, 320–333. [Google Scholar] [CrossRef]
- Fried, P.; Woodward, J.; Brown, D.; Harvell, D.; Hanken, J. 3D scanning of antique glass by combining photography and computed tomography. Digit. Appl. Archaeol. Cult. Herit. 2020, 18, e00147. [Google Scholar] [CrossRef]
- Figueiredo, E.; Silva, R.; Araujo, F.; Fernandes, F. Multifocus Optical Microscopy Applied to the Study of Archaeological Metals. Microsc. Anal. 2013, 19, 1248–1254. [Google Scholar] [CrossRef] [PubMed]
- Brocken, H.J.P.; Adant, O.C.G.; Pel, L. Moisture transport properties of mortar and mortar joint: A NMR study. Heron 1997, 42, 55–69. [Google Scholar]
- Schild, L.; Weiser, L.; Höger, K.; Lanza, G. Analyzing the error of Computed Tomography-based pore detection by using microscope images of matched cross-sections. Precis. Eng. 2023, 81, 192–206. [Google Scholar] [CrossRef]
- Skoulikidis, T.; Papakonstantinou-Ziotis, P. Mechanism of sulphation by atmospheric SO2 of the limestones and marbles of the ancient monuments and statues: I. observations in situ (Acropolis) and laboratory measurements. Br. Corros. J. 1981, 16, 63–69. [Google Scholar] [CrossRef]
- Sanjurjo-Sánchez, J.; Trindade, M.J.; Blanco-Rotea, R.; Benavides Garcia, R.; Fernández Mosquera, D.; Burbidge, C.; Prudêncio, M.I.; Dias, M.I. Chemical and mineralogical characterization of historic mortars from the Santa Eulalia de Bóveda temple, NW Spain. J. Archaeol. Sci. 2010, 37, 2346–2351. [Google Scholar] [CrossRef]
- Borsoi, G.; Santos Silva, P.; Menezes, A.; Candeias, A.; Mirão, J. Analytical characterization of ancient mortars from the archaeological roman site of Pisões (Beja, Portugal). Constr. Build. Mater. 2019, 204, 597–608. [Google Scholar] [CrossRef]
- Malaga-Starzec, K.; Panas, I.; Lindqvist, J.E.; Lindqvist, O. Efflorescence on thin sections of calcareous stones. J. Cult. Herit. 2003, 4, 313–318. [Google Scholar] [CrossRef]
- Iticescu, C.; Georgescu, L.P.; Topa, C.M. Assessing the Danube water quality index in the city of Galati, Romania. Carpath. J. Earth Environ. Sci. 2013, 8, 155–164. [Google Scholar]
- Available online: https://www.accuweather.com/en/ro/rasova/283386/hourly-weather-forecast/283386 (accessed on 25 September 2025).
- Maravelaki-Kalaitzaki, P. Black crusts and patinas on Pentelic marble from the Parthenon and Erechtheum (Acropolis, Athens): Characterization and origin. Anal. Chim. Acta 2005, 532, 187–198. [Google Scholar] [CrossRef]
- Mengis, N.; Keller, D.P.; Oschlies, A. Systematic Correlation Matrix Evaluation (SCoMaE)—A bottom–up, science-led approach to identifying indicators. Earth Syst. Dyn. 2018, 9, 15–31. [Google Scholar] [CrossRef]
- Sonar, C.; Al-Hammadi, A.; Padme, Y. Water Quality Assessment Using Principal Component Analysis. In Intelligent Computing and Big Data Analytics; Springer Nature: Cham, Switzerland, 2024. [Google Scholar] [CrossRef]
- Fraino, P.E. Using principal component analysis to explore multi-variable relationships. Nat. Rev. Earth Environ. 2023, 4, 294. [Google Scholar] [CrossRef]
- Amao, A.O.; Al-Ramadan, K.; Kaminski, M.; Frontalini, F. Benthic foraminiferal diversity in the Arabian Gulf: Spatial patterns in a basin-wide assessment. PLoS ONE 2025, 20, e0327033. [Google Scholar] [CrossRef]
- Marchenko, E.S.; Dubovikov, K.M.; Baigonakova, G.A.; Gordienko, I.I.; Volinsky, A.A. Surface Structure and Properties of Hydroxyapatite Coatings on NiTi Substrates. Coatings 2023, 13, 722. [Google Scholar] [CrossRef]
- Carcagnì, P.; Daffara, C.; Gambino, M.; Mastroianni, M.; Mazzotta, C.; Pampaloni, E.; Pezzati, L. Optical micro-profilometry for archaeology. Proc. SPIE 2005, 5857, 58570F. [Google Scholar] [CrossRef]
- Le Quellec, J.-L.; Duquesnoy, F.; Defrasne, C. Digital Image Enhancement with D-Stretch®; Is Complexity Always Necessary for Efficiency? Digit. Appl. Archaeol. Cult. Herit. 2015, 2, 55–67. [Google Scholar]
- Akçam Ergin, İ.D. Digital approach in conservation of heritage: 3D virtual reconstruction applications in ancient cities. J. Archit. Sci. Appl. 2023, 8, 969–987. [Google Scholar] [CrossRef]
- Bianconi, F.; Filippucci, M.; Cornacchini, F.; Meschini, M.; Mommi, C. Cultural Heritage and Virtual Reality: Application for Visualization of Historical 3D Reproduction. The International Archives of the Photogrammetry. Remote Sens. Spat. Inf. Sci. 2023, 48, 203–210. [Google Scholar]
- Butnariu, S.; Gîrbacia, F.; Orman, A. Methodology for 3D reconstruction of objects for teaching virtual restoration. Virtual Learn. 2012, 46, 16–21. [Google Scholar]
- Guidi, G.; Russo, M.; Angheleddu, D. 3D survey and virtual reconstruction of archeological sites. Digit. Appl. Archaeol. Cult. Herit. 2014, 1, 55–69. [Google Scholar] [CrossRef]
- Pietroni, E.; Ferdani, D. Virtual restoration and virtual reconstruction in cultural heritage: Terminology, methodologies, visual representation techniques and cognitive models. Information 2021, 12, 167. [Google Scholar] [CrossRef]
- Portalés, C.; Alonso-Monasterio, P.; Viñals, M.J. 3D virtual reconstruction and visualisation of the archaeological site Castellet de Bernabé (Llíria, Spain). Virtual Archaeol. Rev. 2017, 8, 72–85. [Google Scholar]
- Quattrini, R.; Pierdicca, R.; Frontoni, E.; Barcaglioni, R. Virtual reconstruction of lost architectures: From the TLS survey to AR visualization. Int. Arch. Photogramm. Remote Sens. Spat. Inf. Sci. 2016, 41, 383–390. [Google Scholar] [CrossRef]
- Reilly, P. Towards a virtual archaeology. In Computer Applications in Archaeology; British Archaeological Reports: Oxford, UK, 1990; pp. 133–139. [Google Scholar]
- Remondino, F.; El-Hakim, S. Image-based 3D modeling: A review. Photogramm. Rec. 2006, 21, 269–291. [Google Scholar] [CrossRef]
- Chellini, G.; Baiocchi, E.; Malatesta, S.G.; Caruso, M.; La Torre, P.; Rosati, P.; Lucatelli, S.; Leopardi, L.; Manzollino, R. The virtual reconstruction of Cervara di Roma fortress: Methods and tools for the dissemination of the past. Acta IMEKO 2024, 13, 1–6. [Google Scholar] [CrossRef]
- Di Mascio, D.; Chiuini, M.; Fillwalk, J.; Pauwels, P. 3D Digital Reconstructions of Lost Buildings, A first critical framing. In Proceedings of the 34th International Conference on Education and Research in Computer Aided Architectural Design in Europe (eCAADe 2016), Oulu, Finland, 20–26 August 2016; Volume 2, pp. 511–520. [Google Scholar]



























| Tower | L* | a* | b* | pH | Humidity, % | Salt Concentration, mg/L | Breathability [Capillary Water-Absorption Coefficient (C) (kg m−2 s−0.5)] | Weathering State |
|---|---|---|---|---|---|---|---|---|
| A | 37.11 | −5.12 | 25.28 | 7.7 | 20 | 0.08 | 1.3 | Light-brown limestone, weathered |
| B | 31.37 | −7.43 | 23.61 | 7.6 | 19 | 0.14 | 0.07 | Sandy patina, minor vegetation |
| C | 37.22 | −4.40 | 18.77 | 7.9 | 21 | 0.09 | 1.15 | Darker tone, moist or shadowed |
| D | 35.91 | 3.05 | 21.96 | 7.5 | 20 | 0.14 | 0.7 | Limestone with soil overlay |
| E1 | 39.68 | 0.17 | 24.9 | 7.2 | 22 | 0.15 | 0.04 | Lighter, more exposed block |
| E2 | 41.7 | −1.91 | 26.6 | 8 | 33 | 0.26 | 1.5 | Strongly destroyed |
| F | 59.89 | −3.30 | 17.18 | 7.8 | 31 | 0.21 | 1 | Moderate color variation |
| G | 55.32 | −4.64 | 17.56 | 7.9 | 32 | 0.23 | 1.1 | Covered by soil/vegetation |
| Pair | Correlation | Meaning at Sacidava |
|---|---|---|
| Humidity (%) Salt concentration | +0.91 (very strong) | Where walls retain more moisture, salts are actively dissolving and moving inside the stone/mortar. When surfaces dry, salts recrystallize, causing micro-cracking and powdering. Main driver of decay. |
| Humidity (%) Lightness L | +0.81 (strong) | Higher humidity areas appear visually brighter or whiter, because salt efflorescence forms pale crusts and removes darker surface materials. |
| Salt concentration Lightness L | +0.63 (moderate-to-strong) | More salt = more whitish, chalky, weathered surfaces. The stone looks bleached. |
| Humidity pH | +0.60 | More humid surfaces tend to have slightly more neutral/alkaline films, often due to salt dissolution and lime leaching. |
| pH vs. b* pH vs. L* | Weak-to-moderate | pH is influencing surface chemistry, but humidity and salt are the true dominant factors. |
| Tower | Ra After | Rq After | Rz After |
|---|---|---|---|
| A | 6.5 | 7.5 | 35 |
| B | 3.9 | 5.0 | 24 |
| C | 4.2 | 5.1 | 28 |
| D | 3.0 | 3.8 | 24 |
| E | 5.8 | 6.9 | 32 |
| F | 6.1 | 7.4 | 39 |
| G | 4.2 | 5.1 | 27 |
| E2 | 0.09 | 0.1 | 0.5 |
| Tower | Ra Before | Rq Before | Rz Before |
|---|---|---|---|
| A | 14.8 | 16.3 | 78 |
| B | 7.4 | 9.2 | 37 |
| C | 9.0 | 9.8 | 52 |
| D | 10.2 | 11.2 | 58.5 |
| E | 12.2 | 13.0 | 67 |
| F | 15.5 | 17.2 | 83 |
| G | 8.5 | 9.3 | 48 |
| E2 | 0.11 | 0.154 | 0.977 |
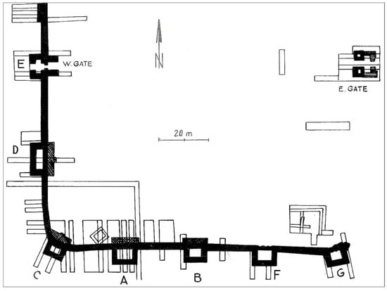
| Tower | Location | Presumed Shape | Construction Material | Architectural Notes | Condition | Comments | Sizes |
|---|---|---|---|---|---|---|---|
| A | Southern wall, center | Rectangular | Limestone ashlar with lime mortar | Guard tower built into curtain wall; interior access via ramp or stair. | Foundation visible | Main defensive interval tower | Front side of 10.21 m, an east side of 6.85 m, and a west side of 5.51 m. |
| B | Southern wall, center | Rectangular | Limestone block with rubble fill | Projecting outward from wall, standard design for lateral defense. | Partial remains | Flanks nearby curtain wall | Its front measures 9.13 m, with the east side at 4.65 m and the west at 5.32 m. |
| C | Southern wall, center | Rectangular/corner | Massive stone blocks, double wall | Larger base for angular defense; may have had upper gallery. | Heavily ruined | Likely anchoring SW wall | Its front measures 8.60 m, with the east side at 4.80 m and the west side at 5.35 m. |
| D | Western, center | Rectangular | Limestone + wooden flooring | Similar to C; could accommodate catapult or archers. | Fragmentary | Near inner buildings | A front measuring 14 m and sides of 5 m each. The outer wall still rises to about 5 m, and with the core masonry included, it reaches an impressive height of 6.5 m. |
| E1 | Mid-west wall | Rectangular or U-shaped | Stone masonry with lime binder | May have flanked a postern or inner building; limited access. | Substantial base visible | Possibly part of gate or stronghold | Front measuring 10.26 m. The gate was 2.90 m wide. |
| F | Southern wall | Rectangular | Rubble masonry, lime mortar | Likely simpler, less defensive prominence. | Minimal remains | Near gate complex | Front side measuring about 10 m. |
| G | Southern wall, corner | Possibly circular or U-shaped | Stone core with exterior dressing | Roman–Dacian hybrid influence; less standardized. | Poorly preserved | Near eastern limit of site | 8.65 m across the front, 5.40 m on the east side, and 5 m on the southeast side. |
| E2 (E gate) | Eastern central wall | Twin tower + gatehouse | Stone with vaulting | Main gate; likely included guard chambers and archway. | Heavily ruined and fragmentary | Primary entrance to castrum | Completely destroyed and covered by vegetation. |
Disclaimer/Publisher’s Note: The statements, opinions and data contained in all publications are solely those of the individual author(s) and contributor(s) and not of MDPI and/or the editor(s). MDPI and/or the editor(s) disclaim responsibility for any injury to people or property resulting from any ideas, methods, instructions or products referred to in the content. |
© 2025 by the authors. Licensee MDPI, Basel, Switzerland. This article is an open access article distributed under the terms and conditions of the Creative Commons Attribution (CC BY) license (https://creativecommons.org/licenses/by/4.0/).
Share and Cite
Ion, R.-M.; Buică, E.-V.; Militaru, A.; Colesniuc, S.M. Three-Dimensional Digital Reconstruction and Archaeometric Approaches for Hydroxyapatite-Based Restoration of Sacidava Roman Fortress. Coatings 2025, 15, 1374. https://doi.org/10.3390/coatings15121374
Ion R-M, Buică E-V, Militaru A, Colesniuc SM. Three-Dimensional Digital Reconstruction and Archaeometric Approaches for Hydroxyapatite-Based Restoration of Sacidava Roman Fortress. Coatings. 2025; 15(12):1374. https://doi.org/10.3390/coatings15121374
Chicago/Turabian StyleIon, Rodica-Mariana, Emanuel-Valentin Buică, Andrei Militaru, and Sorin Marcel Colesniuc. 2025. "Three-Dimensional Digital Reconstruction and Archaeometric Approaches for Hydroxyapatite-Based Restoration of Sacidava Roman Fortress" Coatings 15, no. 12: 1374. https://doi.org/10.3390/coatings15121374
APA StyleIon, R.-M., Buică, E.-V., Militaru, A., & Colesniuc, S. M. (2025). Three-Dimensional Digital Reconstruction and Archaeometric Approaches for Hydroxyapatite-Based Restoration of Sacidava Roman Fortress. Coatings, 15(12), 1374. https://doi.org/10.3390/coatings15121374

