Numerical Analysis of the Influence of Block-Stone Embankment Filling Height on the Water, Temperature, and Deformation Distributions of Subgrade in Permafrost Regions
Abstract
:1. Introduction
2. Study Area
3. Model Description
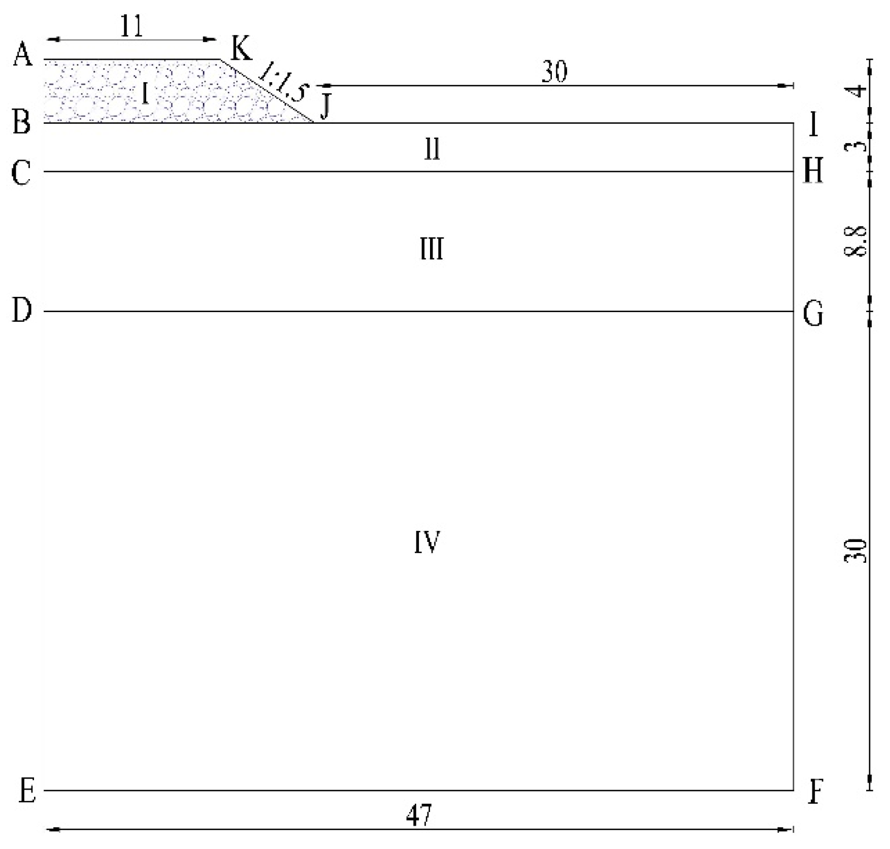
3.1. Geometric Model
3.2. Mathematical Model
3.3. Parameters of the Soil Layers
3.4. Boundary Conditions
3.5. Initial Conditions and Model Verification
4. Results
4.1. Laboratory Test Verification
4.2. Ground Temperature Variation
4.3. Change in the Vertical Distribution of Unfrozen Water Content under the Road Centerline
4.4. Deformation Distributions
5. Discussion
5.1. Influence of the Change in Permafrost Table on the Thermal Stability of the Subgrade
5.2. Influence of Unfrozen Water Content Variation on Subgrade Deformation
5.3. Deformation Characteristics of the Road Centerline and Shoulder and Stability Evaluation of the Subgrade
6. Conclusions
- (a)
- The increase in the block-stone layer thickness can raise the permafrost table and thus improve the thermal stability of the subgrade. The permafrost tables under the road centerlines of the five structures with block-stone layer thicknesses of 5 m, 4 m, 3.5 m, 3 m, and 2 m are 0.226 m, 0.109 m, 0.106 m, −6.064 m, and −8.461 m, respectively. When the thickness of the block-stone layer is at least 3.5 m, the permafrost table under the road centerline of the corresponding structure is higher than the natural surface. However, a slowdown in the rising rate of permafrost tables leads to a reduction in its contribution to the thermal stability of the subgrade with the increase in block-stone layer thickness. When the thickness of the block-stone layer is less than 3.5 m, the permafrost table of the corresponding structure is lower than the natural surface, resulting in a large range of the thawing interlayer in the foundation, which greatly reduces the thermal stability of the subgrade.
- (b)
- The increase in the block-stone layer thickness can reduce the content of unfrozen water migrating from the deep foundation to the active layer, thus reducing the foundation settlement caused by permafrost thawing, which is beneficial to improving the mechanical stability of the subgrade.
- (c)
- When the thickness of the block-stone layer is 4 m, the mechanical stability of the corresponding structure is the best among those tested. At this time, the maximum uneven settlement and the maximum transverse deformation difference between the shoulder and the road centerline are +0.521 cm and +0.462 cm, respectively. When the thickness of the block-stone layer is greater than or less than 4 m, the mechanical stability will be less optimal.
- (d)
- Only from the perspective of thermal stability, the thicker the block-stone layer is, the more beneficial it is to the subgrade stability. From the perspective of the interaction of water, temperature, and deformation, the subgrade stability is the best when the thickness of the block-stone layer is 4 m. This shows that studying the subgrade stability from only the thermal perspective is disadvantageous. It is also the main reason for the poor general applicability of many engineering measures at present.
Author Contributions
Funding
Institutional Review Board Statement
Informed Consent Statement
Data Availability Statement
Acknowledgments
Conflicts of Interest
References
- Qi, J.; Shen, Y.; Zhang, J.; Wen, Z. Settlement of embankments in permafrost regions in the Qinghai-Tibet Plateau. Nor. Geogr. Tidsskr.-Nor. J. Geogr. 2007, 61, 49–55. [Google Scholar] [CrossRef]
- Lu, Y.; Yang, S.; Wang, J. Research on pavement longitudinal crack propagation under non-uniform vehicle loading. Eng. Fail. Anal. 2014, 42, 22–31. [Google Scholar] [CrossRef]
- Pei, W.; Zhang, M.; Li, S.; Lai, Y.; Jin, L. Thermo-mechanical stability analysis of cooling embankment with crushed-rock interlayer on a sloping ground in permafrost regions. Appl. Therm. Eng. 2017, 125, 1200–1208. [Google Scholar] [CrossRef]
- Hotovitch, H.A.; Zhang, C. Frozen Soil Mechanics; Science Press: Beijing, China, 1985. [Google Scholar]
- Lai, Y.M.; Zhang, M.Y.; Li, S.Y. Theory and Application of Cold Regions Engineering; Science Press: Beijing, China, 2009. [Google Scholar]
- Isaev, V.; Kioka, A.; Kotov, P.; Sergeev, D.O.; Uvarova, A.; Koshurnikov, A.; Komarov, O. Multi-Parameter Protocol for Geocryological Test Site: A Case Study Applied for the European North of Russia. Energies 2022, 15, 2076. [Google Scholar] [CrossRef]
- Isaev, V.S.; Koshurnikov, A.V.; Pogorelov, A.; Amangurov, R.M.; Podchasov, O.; Sergeev, D.O.; Buldovich, S.N.; Aleksyutina, D.M.; Grishakina, E.A.; Kioka, A. Cliff retreat of permafrost coast in south-west Baydaratskaya Bay, Kara Sea, during 2005–2016. Permafr. Periglac. Process. 2019, 30, 35–47. [Google Scholar] [CrossRef]
- Shan, W.; Xu, Z.; Guo, Y.; Zhang, C.; Hu, Z.; Wang, Y. Geological methane emissions and wildfire risk in the degraded permafrost area of the Xiao Xing’jan Mountains, China. Sci. Rep. 2020, 10, 21297. [Google Scholar] [CrossRef]
- Guo, Y.; Shan, W.; Zhang, C.; Hu, Z.; Wang, S.; Gao, J. Monitoring of permafrost degradation along the Bei’an-Heihe Expressway in China. Bull. Eng. Geol. Environ. 2021, 80, 1–10. [Google Scholar] [CrossRef]
- Jin, H.; Yu, Q.; Lü, L.; Guo, D.; He, R.; Yu, S.; Sun, G.; Li, Y. Degradation of permafrost in the Xing’anling Mountains, northeastern China. Permafr. Periglac. Process. 2007, 18, 245–258. [Google Scholar] [CrossRef]
- Wu, Q.; Zhang, T. Changes in active layer thickness over the Qinghai-Tibetan Plateau from 1995 to 2007. J. Geophys. Res. 2010, 115, D09107. [Google Scholar] [CrossRef]
- Kondratiev, V.G. Geocryological problems of railroads on permafrost. In Proceedings of the 10th International Symposium on Cold Regions Development (ISCORD 2013), Anchorage, AK, USA, 2–5 June 2013; pp. 191–203. [Google Scholar] [CrossRef]
- Cheng, G. A roadbed cooling approach for the construction of Qinghai–Tibet Railway. Cold Reg. Sci. Technol. 2005, 42, 169–176. [Google Scholar] [CrossRef]
- Li, S.; Zhang, M.; Tian, Y.; Pei, W.; Zhong, H. Experimental and numerical investigations on frost damage mechanism of a canal in cold regions. Cold Reg. Sci. Technol. 2015, 116, 1–11. [Google Scholar] [CrossRef]
- Li, S.; Zhan, H.; Lai, Y.; Sun, Z.; Pei, W. The coupled moisture-heat process of permafrost around a thermokarst pond in Qinghai-Tibet Plateau under global warming. J. Geophys. Res. Earth Surf. 2010, 119, 836–853. [Google Scholar] [CrossRef]
- Lai, Y.; Pei, W.; Zhang, M.; Zhou, J. Study on theory model of hydro-thermal-mechanical interaction process in saturated freezing silty soil. Int. J. Heat Mass Transf. 2014, 78, 805–819. [Google Scholar] [CrossRef]
- Zhou, J.; Li, D. Numerical analysis of coupled water, heat and stress in saturated freezing soil. Cold Reg. Sci. Technol. 2012, 72, 43–49. [Google Scholar] [CrossRef]
- Chang, Y.; Yu, Q.; You, Y.; Guo, L. Formation mechanism of longitudinal cracks in expressway embankments with inclined thermosyphons in warm and ice-rich permafrost regions. Appl. Therm. Eng. 2018, 133, 21–32. [Google Scholar] [CrossRef]
- Yan, Z.; Zhang, M.; Lai, Y.; Pei, W.; Luo, T.; Yu, F.; Yang, S. Countermeasures combined with thermosyphons against the thermal instability of high-grade highways in permafrost regions. Int. J. Heat Mass Transf. 2020, 153, 119047. [Google Scholar] [CrossRef]
- Goering, D.J. Experimental investigation of air convection embankments for permafrost-resistant road design. Proc. Seventh Int. Conf. Permafr. 1998, 55, 319–326. [Google Scholar]
- Wu, Q.; Zhang, Z.; Liu, Y. Long-term thermal effect of asphalt pavement on permafrost under an embankment. Cold Reg. Sci. Technol. 2010, 60, 221–229. [Google Scholar] [CrossRef]
- Liu, M.; Niu, F.; Ma, W.; Fang, J.; Lin, Z.; Luo, J. Experimental investigation on the enhanced cooling performance of a new crushed-rock revetment embankment in warm permafrost regions. Appl. Therm. Eng. 2017, 120, 121–129. [Google Scholar] [CrossRef]
- Yu, W.; Liu, W.; Chen, L.; Yi, X.; Han, F.; Hu, D. Evaluation of cooling effects of crushed rock under sand-filling and climate warming scenarios on the Tibet Plateau. Appl. Therm. Eng. 2016, 92, 130–136. [Google Scholar] [CrossRef]
- Mu, Y.; Ma, W.; Liu, Y.; Sun, Z. Monitoring investigation on thermal stability of air-convection crushed-rock embankment. Cold Reg. Sci. Technol. 2010, 62, 160–172. [Google Scholar] [CrossRef]
- Goering, D.J. Passively Cooled Railway Embankments for Use in Permafrost Areas. J. Cold Reg. Eng. 2003, 17, 119–133. [Google Scholar] [CrossRef]
- Mu, Y.; Ma, W.; Wu, Q.; Sun, Z.; Liu, Y. Cooling processes and effects of crushed rock embankment along the Qinghai-Tibet Railway in permafrost regions. Cold Reg. Sci. Technol. 2012, 78, 107–114. [Google Scholar] [CrossRef]
- Xu, X.Z.; Wang, J.C.; Zhang, L. Frozen Soil Physics; Science Press: Beijing, China, 2009. [Google Scholar]
- Watanabe, K.; Wake, T. Measurement of unfrozen water content and relative permittivity of frozen unsaturated soil using NMR and TDR. Cold Reg. Sci. Technol. 2009, 59, 34–41. [Google Scholar] [CrossRef]
- Hu, G.; Zhao, L.; Zhu, X.; Wu, X.; Wu, T.; Li, R.; Xie, C.; Hao, J. Review of algorithms and parameterizations to determine unfrozen water content in frozen soil. Geoderma 2020, 368, 114277. [Google Scholar] [CrossRef]
- Lu, J.; Pei, W.; Zhang, X.; Bi, J.; Zhao, T. Evaluation of calculation models for the unfrozen water content of freezing soils. J. Hydrol. 2019, 575, 976–985. [Google Scholar] [CrossRef]
- Hartikainen, J.; Mikkola, M. General thermodynamical model of freezing soil with numercal application. In Proceedings of the International Symposium on Ground Freezing and Frost Action in Soils, Lulea, Sweden, 16–18 February; Knutsson, S., Ed.; BALKEMA: Rotterdam, The Netherlands, 1997; pp. 101–105. [Google Scholar]
- Li, N.; Chen, B.; Chen, F.; Xu, X. The coupled heat-moisture-mechanic model of the frozen soil. Cold Reg. Sci. Technol. 2000, 31, 199–205. [Google Scholar] [CrossRef]
- Zhang, M.; Zhang, J.; Lai, Y. Numerical analysis for critical height of railway embankment in permafrost regions of Qinghai-Tibetan plateau. Cold Reg. Sci. Technol. 2005, 41, 111–120. [Google Scholar] [CrossRef]
- Chou, Y.; Sheng, Y.; Zhu, Y. Thermo-mechanical coupled analysis on embankment longitudinal cracks in warm permafrost regions. J. Lanzhou Univ. Technol. 2014, 40, 123–129. [Google Scholar]
- Chen, L.; Yu, W.; Lu, Y.; Liu, W. Numerical simulation on the performance of thermosyphon adopted to mitigate thaw settlement of embankment in sandy permafrost zone. Appl. Therm. Eng. 2018, 128, 1624–1633. [Google Scholar] [CrossRef]
- Zhang, M.; Pei, W.; Li, S.; Lu, J.; Jin, L. Experimental and numerical analyses of the thermo-mechanical stability of an embankment with shady and sunny slopes in permafrost regions. Appl. Therm. Eng. 2017, 127, 1478–1487. [Google Scholar] [CrossRef]
- Gao, Y.; Zhao, H.; Gao, F.; Zhu, H.; Huihui, Q.U.; Zhao, F. Climate change trend in future and its influence on wetlands in the Greater Khingan Mountains. J. Glaciol. Geocryol. 2016, 38, 47–56. [Google Scholar] [CrossRef]
- Dai, H.; Chen, S.; Wu, Y.; Li, D.; Chao, L. Analysis of the warm and cool season’s climate variations in the ecological function sites in the Great Khingan, Inner Mongolia. J. Glaciol. Geocryol. 2016, 38, 645–652. [Google Scholar]
- Zhang, T.; Zhou, Y.; Guo, D.; Qiu, G.; Cheng, G.; Li, S. Geocryology in China, Arctic, Antarct. Alp. Res. 2001, 33, 245. [Google Scholar] [CrossRef]
- Obu, J.; Westermann, S.; Bartsch, A.; Berdnikov, N.; Christiansen, H.H.; Dashtseren, A.; Delaloye, R.; Elberling, B.; Etzelmüller, B.; Kholodov, A.; et al. Northern Hemisphere permafrost map based on TTOP modelling for 2000–2016 at 1 km2 scale. Earth-Sci. Rev. 2019, 193, 299–316. [Google Scholar] [CrossRef]
- Saito, H.; Šimůnek, J.; Mohanty, B.P. Numerical Analysis of Coupled Water, Vapor, and Heat Transport in the Vadose Zone. Vadose Zone J. 2006, 5, 784–800. [Google Scholar] [CrossRef] [Green Version]
- van Genuchten, M.T. A closed-form equation for predicting the hydraulic conductivity of unsaturated soils. Soil Sci. Soc. Am. J. 1980, 44, 892–898. [Google Scholar] [CrossRef] [Green Version]
- Mualem, Y. A new model for predicting the hydraulic conductivity of unsaturated porous media. Water Resour. Res. 1976, 12, 513–522. [Google Scholar] [CrossRef] [Green Version]
- Teng, J.D.; He, Z.Y.; Zhang, S.; Sheng, D.C. Moisture transfer and phase change in unsaturated soils: Physical mechanism and numerical model for two types of “canopy effect”. Sci. Cold Arid Reg. 2018, 9, 243–249. [Google Scholar] [CrossRef]
- Li, S.; Lai, Y.; Zhang, M.; Yu, W. Seasonal differences in seismic responses of embankment on a sloping ground in permafrost regions. Soil Dyn. Earthq. Eng. 2015, 76, 122–135. [Google Scholar] [CrossRef]
- Liu, M.; Ma, W.; Niu, F.; Luo, J.; Yin, G. Thermal performance of a novel crushed-rock embankment structure for expressway in permafrost regions. Int. J. Heat Mass Transf. 2018, 127, 1178–1188. [Google Scholar] [CrossRef]
- Bing, H.; Ma, W. Laboratory investigation of the freezing point of saline soil. Cold Reg. Sci. Technol. 2011, 67, 79–88. [Google Scholar] [CrossRef]
- Zhang, H.; Zhang, J.; Zhang, Z.; Chen, J.; You, Y. A consolidation model for estimating the settlement of warm permafrost. Comput. Geotech. 2016, 76, 43–50. [Google Scholar] [CrossRef]
- Li, X.; Ma, W.; Mu, Y.; Dong, J.; Chen, L. Wind field and thermal performances of an expressway constructed with two separated crushed-rock embankments in high-altitude permafrost zones. Transp. Geotech. 2021, 27. [Google Scholar] [CrossRef]
- Li, S.; Lai, Y.; Zhang, M.; Dong, Y. Study on long-term stability of Qinghai-Tibet Railway embankment. Cold Reg. Sci. Technol. 2009, 57, 139–147. [Google Scholar] [CrossRef]
- Guo, Y.; Xu, S.; Shan, W. Development of a frozen soil dielectric constant model and determination of dielectric constant variation during the soil freezing process. Cold Reg. Sci. Technol. 2018, 151, 28–33. [Google Scholar] [CrossRef]
- Liu, H.B.; Zhang, H.Z.; Wang, J. Effect of freeze-thaw and water content on mechanical properties of compacted clayey soil. Rock Soil Mech. 2018, 39, 158–164. [Google Scholar] [CrossRef]
- Sun, B.; Xu, X.; Lai, Y.; Li, D. Determination of thermal diffusivity and conductivity on ballast. J. Glaciolgy Geocryol. 2002, 24, 790–795. [Google Scholar] [CrossRef]
- Wu, Z.W.; Ma, W. Strength and Creep of Frozen Soil; Lanzhou University Press: Lanzhou, China, 1994. [Google Scholar]
- Zhang, S.; Teng, J.; He, Z.; Liu, Y.; Liang, S.; Yao, Y.; Sheng, D. Canopy effect caused by vapour transfer in covered freezing soils. Geotechnique 2016, 66, 927–940. [Google Scholar] [CrossRef]
- He, Z.Y.; Zhang, S.; Teng, J.D.; Yao, Y.P.; Sheng, D.C. Vapour transfer and its effects on water content in freezing soils. Chin. J. Geotech. Eng. 2018, 40, 1190–1197. [Google Scholar] [CrossRef]
- Tian, Y.H.; Fang, J.H.; Shen, Y.P. Simulation on stability of large-width highway embankment in permafrost regions. China J. Highw. Transp. 2015, 28, 17–23. [Google Scholar] [CrossRef]
- Wu, Q.; Zhao, H.; Zhang, Z.; Chen, J.; Liu, Y. Long-term role of cooling the underlying permafrost of the crushed rock structure embankment along the Qinghai–Xizang railway. Permafr. Periglac. Process. 2020, 31, 172–183. [Google Scholar] [CrossRef]













| Parameter | Expression |
|---|---|
| Surface tension | |
| Saturated vapor density | |
| Water vapor diffusion enhancement factor | |
| Relative humidity | |
| Water head | |
| Equivalent specific heat of the soil | |
| Latent heat of vapor evaporation | |
| Equivalent thermal conductivity |
| Soil Layer | λs (W/m·K) | Cs (J/kg·K) | Ks (m/s) | ρ (kg/m3) | θ0 (%) | n0 | a | b | α(m−1) | n |
|---|---|---|---|---|---|---|---|---|---|---|
| I | 2.642 | 923.0 | 8.404 × 10−4 | 2700 | 10.2 | 0.350 | 0.067 | −0.21 | 2.85 | 2.42 |
| II | 1.363 | 1125.4 | 2.617 × 10−6 | 1870 | 29.1 | 0.486 | 0.142 | −0.23 | 0.80 | 1.09 |
| III | 1.917 | 1013.2 | 8.844 × 10−6 | 2048 | 31.5 | 0.511 | 0.174 | −0.27 | 0.54 | 1.36 |
| IV | 2.055 | 982.7 | 7.7648 × 10−6 | 2156 | 19.8 | 0.502 | 0.091 | −0.13 | 0.56 | 1.41 |
| Soil layer | a1 (MPa) | b1 | a2 | b2 | a3 (o) | b3 | a4 (MPa) | b4 | c1 (MPa) | d1 (MPa) | e1 (MPa) | c2 | c3 (o) | d2 (o) | e2 (o) | c4 | c5 (MPa) | d3 (MPa) | e3 (MPa) |
|---|---|---|---|---|---|---|---|---|---|---|---|---|---|---|---|---|---|---|---|
| I | 86 | 24 | 0.30 | −0.001 | 30 | 0.86 | 0 | 0.005 | −16 | −0.2 | 86 | 1.1 | −1 | −0.4 | 30 | 1.1 | −0.001 | −0.001 | 0 |
| II | 3.21 | 1.49 | 0.40 | −0.007 | 8.8 | 0.52 | 0.038 | 0.074 | −12 | −0.3 | 3.21 | 1.2 | −4 | −6 | 8.8 | 1.1 | −0.041 | −0.013 | 0.038 |
| III | 30.7 | 12.54 | 0.37 | −0.006 | 22 | 0.34 | 0.031 | 0.058 | −11 | −0.6 | 30.7 | 1.2 | −9 | −7 | 22 | 1.2 | −0.036 | −0.039 | 0.031 |
| IV | 64.2 | 24.71 | 0.34 | −0.004 | 26 | 0.66 | 0.084 | 0.068 | −19 | −2.6 | 64.2 | 1.2 | −6 | −3 | 26 | 1.2 | −0.072 | −0.044 | 0.084 |
| Boundary | T0 (°C) | A (°C) |
|---|---|---|
| Natural ground surface: IJ | −0.35 | 16.21 |
| Side slope surface: JK | 0.31 | 19.74 |
| The top surface of the embankment: AK | 1.10 | 20.40 |
| Variable | Embankment Height | ||||
|---|---|---|---|---|---|
| 5.0 m | 4.0 m | 3.5 m | 3.0 m | 2.0 m | |
| Maximum uneven settlement (cm) | +0.929 | +0.521 | +0.987 | +3.512 | +3.776 |
| Maximum transverse deformation difference (cm) | +1.117 | +0.462 | +0.643 | +0.765 | +1.164 |
Publisher’s Note: MDPI stays neutral with regard to jurisdictional claims in published maps and institutional affiliations. |
© 2022 by the authors. Licensee MDPI, Basel, Switzerland. This article is an open access article distributed under the terms and conditions of the Creative Commons Attribution (CC BY) license (https://creativecommons.org/licenses/by/4.0/).
Share and Cite
Shan, W.; Ma, M.; Guo, Y.; Zhang, C. Numerical Analysis of the Influence of Block-Stone Embankment Filling Height on the Water, Temperature, and Deformation Distributions of Subgrade in Permafrost Regions. Water 2022, 14, 1382. https://doi.org/10.3390/w14091382
Shan W, Ma M, Guo Y, Zhang C. Numerical Analysis of the Influence of Block-Stone Embankment Filling Height on the Water, Temperature, and Deformation Distributions of Subgrade in Permafrost Regions. Water. 2022; 14(9):1382. https://doi.org/10.3390/w14091382
Chicago/Turabian StyleShan, Wei, Min Ma, Ying Guo, and Chengcheng Zhang. 2022. "Numerical Analysis of the Influence of Block-Stone Embankment Filling Height on the Water, Temperature, and Deformation Distributions of Subgrade in Permafrost Regions" Water 14, no. 9: 1382. https://doi.org/10.3390/w14091382
APA StyleShan, W., Ma, M., Guo, Y., & Zhang, C. (2022). Numerical Analysis of the Influence of Block-Stone Embankment Filling Height on the Water, Temperature, and Deformation Distributions of Subgrade in Permafrost Regions. Water, 14(9), 1382. https://doi.org/10.3390/w14091382

