Sustainability in Construction: Geopolymerized Coating Bricks Made with Ceramic Waste
Abstract
1. Introduction
Literature Review
2. Materials and Methods
3. Results and Discussion
3.1. Experimental Process
3.2. X-Ray Fluorescence (XRF)
3.3. X-Ray Diffraction
- (a)
- When the molarity is 5, the optimization factor shows a proportional increase with a temperature up to 180 °C, reaching a peak value of 7.15 MPa/kg. Afterward, the optimization factor decreases proportionally with further increases in the curing temperature.
- (b)
- For a molarity of 7.5, a higher optimization factor magnitude of 7.32 MPa/kg and 7.34 MPa/kg can be observed at curing temperatures of 120 °C and 180 °C, respectively, compared to the other temperatures.
- (c)
- When the molarity is 10, a higher optimization factor magnitude of 9.27 MPa/kg is observed at a curing temperature of 200 °C compared to the other temperatures.
- (d)
- For a molarity of 12.5, the optimization factor increases proportionally with the temperature up to 150 °C, where it reaches a peak of 14.84 MPa/kg. Afterward, the optimization factor decreases proportionally with further increases in the curing temperature.
- (a)
- At a temperature of 90 °C with a high concentration of 12.5 M, the complete development of the hardening and geopolymerization process may not occur due to the low temperature.
- (b)
- At a temperature of 200 °C with a high concentration of 12.5 M, the mechanical properties of the material may be negatively affected due to the high temperature.
3.4. Measurement of Heat Transfer
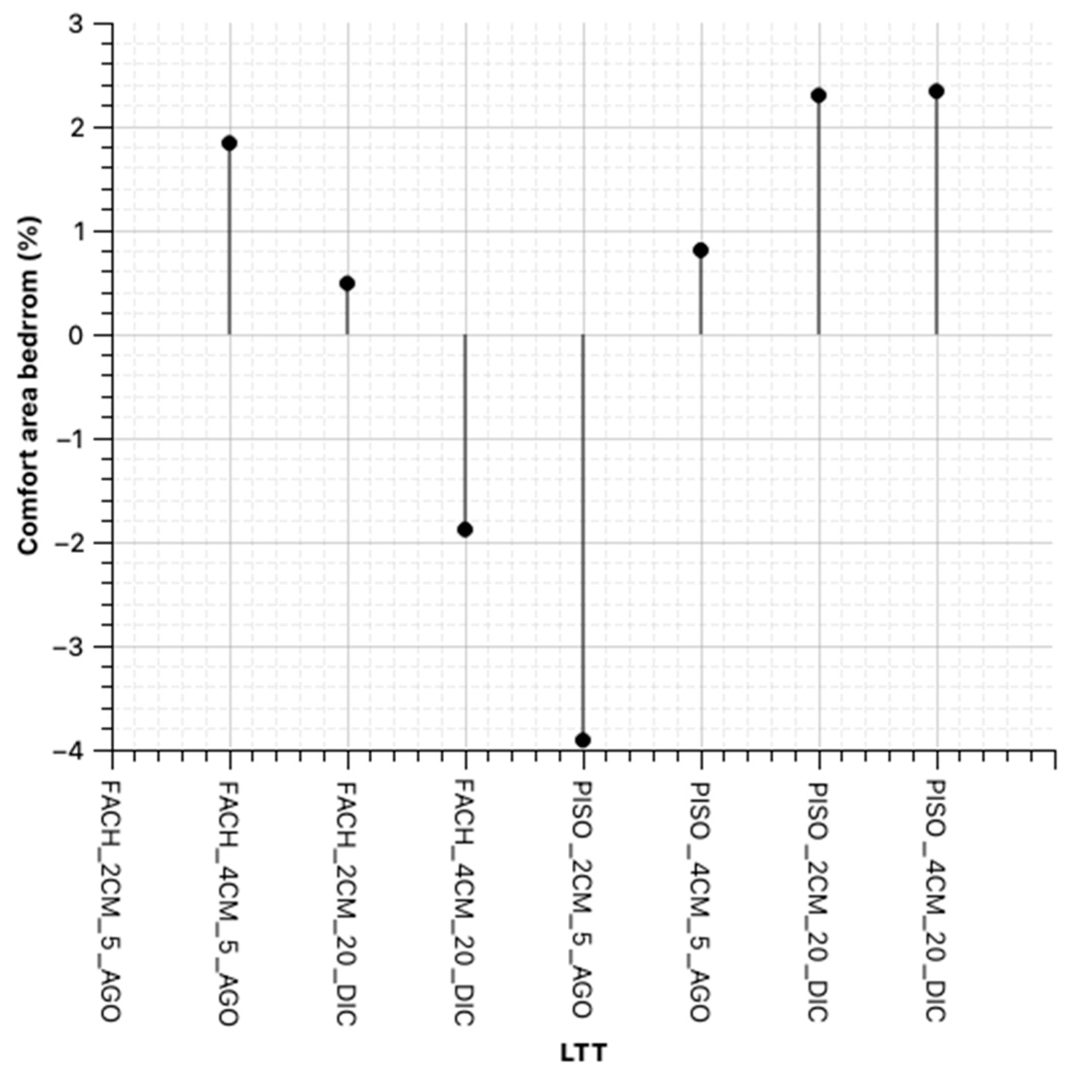
3.5. Analysis of Efflorescence in LTT
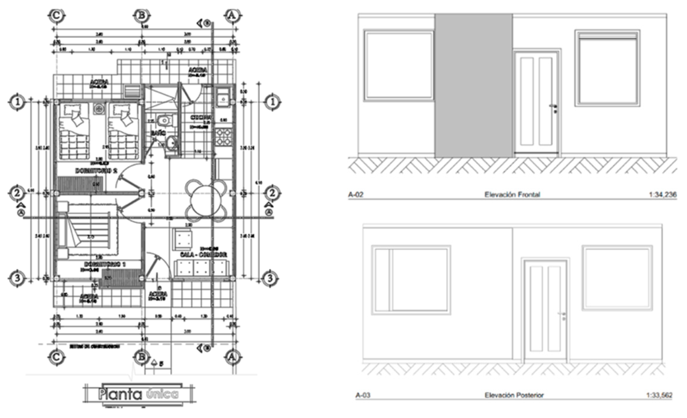
3.6. Results of the Application
4. Conclusions
Author Contributions
Funding
Institutional Review Board Statement
Informed Consent Statement
Data Availability Statement
Conflicts of Interest
References
- INEC. VII censo de población y VI de vivienda del Ecuador; INEC: Abuja, Nigeria, 2010. [Google Scholar]
- Wong, C.L.; Mo, K.H.; Yap, S.P.; Alengaram, U.J.; Ling, T.C. Potential use of brick waste as alternate concrete-making materials: A review. J. Clean. Prod. 2018, 195, 226–239. [Google Scholar] [CrossRef]
- Davidovits, J. Geopolymer Chemistry and Applications, 3rd ed.; Geopolymer Institute: Compiegne, France, 2008. [Google Scholar]
- Amin, S.K.; El-Sherbiny, S.A.; El-Magd, A.A.M.A.; Belal, A.; Abadir, M.F. Fabrication of geopolymer bricks using ceramic dust waste. Constr. Build. Mater. 2017, 157, 610–620. [Google Scholar] [CrossRef]
- Pardo, N.; Penagos, G.; Correa, M.; López, E. Desarrollo de morteros de bajo impacto ambiental a partir de residuos sílico-aluminosos activados alcalinamente del sector minero. Boletín Soc. Española Cerámica Vidr. 2021, 62, 11–25. [Google Scholar] [CrossRef]
- Lv, X.; Qin, Y.; Lin, Z.; Tian, Z.; Cui, X. Inhibition of Efflorescence in Na-Based Geopolymer Inorganic Coating. ACS Omega. 2020, 5, 14822–14830. [Google Scholar] [CrossRef] [PubMed]
- Yong, H.C.; Ming, L.Y.; Al Bakri Abdullah, M.M.; Hussin, K. Fire resistant properties of geopolymers: A review. Mater. Sci. Eng. 2015, 660. [Google Scholar] [CrossRef]
- al Bakri, A.M.M.; Tahir, M.F.M.; Hussin, K.; Zuber, S.Z.S.; Abdullah, A.; Ahmad, M.I.; Ghazali, C.M.R.; Ahmad, F.; Binhussain, M. Geopolymerization Method for Soil Stabilization Application. U.S. Patent 2015/0016895 A1, 15 January 2015. [Google Scholar]
- Faisal, N.H.; Mann, L.; Duncan, C.; Dunbar, E.; Clayton, M.; Frost, M.; McConnachie, J.; Fardan, A.; Ahmed, R. Diametral compression test method to analyse relative surface stresses in thermally sprayed coated and uncoated circular disc specimens. Surf. Coat. Technol. 2019, 357, 497–514. [Google Scholar] [CrossRef]
- Dandurand, G.; Maire, R.; Ortega, R.; Devès, G.; Lans, B.; Morel, L.; Perroux, A.S.; Vanara, N.; Bruxelles, L.; Jaillet, S.; et al. X-ray fluorescence microchemical analysis and autoradiography applied to cave deposits: Speleothems, detrital rhythmites, ice and prehistoric paintings. Géomorphologie Relief Process. Environ. 2011, 17, 407–426. [Google Scholar] [CrossRef][Green Version]
- Rodríguez, E.; Gutiérrez, R.; Bernal, S.; Gordillo, M. Efecto de los módulos SiO2/Al2O3 y Na2O/SiO2en las propiedades de sistemas geopoliméricos basados en un metacaolín. Revista Facultad de Ingeniería Universidad de Antioquia 2009, 30–41. Available online: https://www.redalyc.org/articulo.oa?id=43019324003 (accessed on 22 July 2022).
- Sore, S.O.; Messan, A.; Prud’homme, E.; Escadeillas, G.; Tsobnang, F. Synthesis and characterization of geopolymer binders based on local materials from Burkina Faso–Metakaolin and rice husk ash. Constr. Build. Mater. 2016, 124, 301–311. [Google Scholar] [CrossRef]
- García, V.J.; Márquez, C.O.; Zúñiga-Suárez, A.R.; Zuñiga-Torres, B.C.; Villalta-Granda, L.J. Brazilian Test of Concrete Specimens Subjected to Different Loading Geometries: Review and New Insights. Int. J. Concr. Struct. Mater. 2017, 11, 343–363. [Google Scholar] [CrossRef]
- Suárez, F.Z.; Olivares, F.H.; Martínez, F.F.; Torres, B.Z.; Rey, X.A. Manufacture of bricks based on sludge from mine tailings. In Proceedings of the Vitrogeowastes, Congress Center ‘Ciutat d'Elx, Elche, Spain, 14–15 September 2017. [Google Scholar]
- Guevara Urquizo, L.F.; Paredes Cortez, R.D.; Toral Valdivieso, J.A.; Martín Erquicia, J.A. Norma Ecuatoriana de la Construcción, Seguridad Estructural, Hormigón Armado. Available online: https://www.habitatyvivienda.gob.ec/wp-content/uploads/2023/03/8.-NEC-SE-HM-Hormigon-Armado.pdf (accessed on 16 July 2022).
- Ramírez-Crescencio, F.; Parra-Véjar, J.; Loera-Castañeda, V.; Aguilar-Pérez, L.A.; Villanueva-Fierro, I. Método para la estimación experimental de la conductividad térmica de algunos materiales comunes en Colombia para aplicaciones HVAC/R. Scientia Et Technica 2008, 14, 464–469. Available online: https://www.redalyc.org/articulo.oa?id=84920503085 (accessed on 22 July 2022).
- Connor, N. ¿Qué es la conductividad térmica? Definición. Khan Academy. Available online: https://www.thermal-engineering.org/es/que-es-la-ley-de-conduccion-termica-de-fourier-definicion/ (accessed on 18 October 2022).
- Climate.OneBuilding.Org, Repository of Building Simulation Climate Data From the Creators of the EPW. Available online: https://climate.onebuilding.org/WMO_Region_3_South_America/ECU_Ecuador/index.html (accessed on 22 July 2022).
- Trebilcock, M. Manual de hermeticidad al aire de edificaciones. C. U. Centro de Investigación en Tecnologías de la Construcción. Available online: https://construccionsustentable.uc.cl/images/Documentos/Manual_de_hermeticidad_al_aire_de_edificaciones.pdf (accessed on 22 July 2022).


















| Sample | AL2O3 % | SiO2 % | K2O % | CaO % | Fe2O3 % | Others % | Total % | Oxides > 70% |
|---|---|---|---|---|---|---|---|---|
| PC001 | 15.90 | 58.00 | 1.86 | 3.34 | 6.18 | 14.72 | 100.0 | 80.08 |
| PC002 | 15.10 | 53.30 | 1.53 | 3.35 | 5.90 | 20.82 | 100.0 | 74.30 |
| PM001 | 13.30 | 67.00 | 2.04 | 0.95 | 4.04 | 12.67 | 100.0 | 84.34 |
| PM002 | 17.00 | 61.30 | 2.84 | 1.39 | 5.59 | 11.88 | 100.0 | 83.89 |
| Capacity of Beaker | Molarity | Amount of NaOH in 1000 (mL) | Amount of NaOH in 100 (mL) |
|---|---|---|---|
| A(ml) | B(M) | C (g) | D (g) |
| 250 | 12.5 | 500 | 125 |
| 10 | 400 | 100 | |
| 7.5 | 300 | 75 | |
| 5 | 200 | 50 | |
| 100 | 12.5 | 500 | 50 |
| 10 | 400 | 40 | |
| 7.5 | 300 | 30 | |
| 5 | 200 | 20 |
| Solution Content | Soil Content | Soil-Solution Content |
|---|---|---|
| (%) | (%) | (%) |
| 22 | 78 | 100 |
| 24 | 76 | 100 |
| 26 | 74 | 100 |
| Sample Code | SE-T1 (°C) | SR-T2 (°C) | TE (°C) | Time t (h) | Conductivity (W/m·K) | Material Area A (m2) | Material Thickness e (m) | Heat Transfer Coefficient Q’ (kW) | Heat Transfer Q (kWh) |
|---|---|---|---|---|---|---|---|---|---|
| LGP-1 | 16.70 | 15.60 | 16.40 | 0.017 | 0.954 | 0.090 | 0.020 | 0.0047 | 0.000052 |
| LGP-1 | 19.00 | 15.50 | 15.60 | 0.500 | 0.954 | 0.090 | 0.020 | 0.0098 | 0.004883 |
| LGP-1 | 19.80 | 15.60 | 15.50 | 1.000 | 0.954 | 0.090 | 0.020 | 0.0117 | 0.011718 |
| LGP-2 | 17.40 | 15.70 | 15.80 | 0.017 | 0.954 | 0.092 | 0.021 | 0.0046 | 0.000077 |
| LGP-2 | 19.40 | 15.60 | 15.80 | 0.500 | 0.954 | 0.092 | 0.021 | 0.0102 | 0.005088 |
| LGP-2 | 19.90 | 15.60 | 15.70 | 1.000 | 0.954 | 0.092 | 0.021 | 0.0115 | 0.011515 |
| LA-1 | 19.80 | 19.40 | 19.90 | 0.017 | 0.800 | 0.058 | 0.043 | 0.0004 | 0.000007 |
| LA-1 | 25.10 | 19.00 | 19.40 | 0.500 | 0.800 | 0.058 | 0.043 | 0.0066 | 0.003291 |
| LA-1 | 26.10 | 19.00 | 19.00 | 1.000 | 0.800 | 0.058 | 0.043 | 0.0077 | 0.007661 |
| LA-2 | 20.40 | 19.40 | 19.70 | 0.017 | 0.800 | 0.058 | 0.042 | 0.0011 | 0.000019 |
| LA-2 | 23.00 | 19.30 | 19.40 | 0.500 | 0.800 | 0.058 | 0.042 | 0.0041 | 0.002044 |
| LA-2 | 24.00 | 19.50 | 19.30 | 1.000 | 0.800 | 0.058 | 0.042 | 0.0050 | 0.004971 |
| Mineral Compound | Chemical Formula | Semi-Quantification (%) |
|---|---|---|
| quartz | SiO2 | 73 |
| hematite | Fe2O3 | 1 |
| albite | NaAlSi3O8 | 1 |
| muscovite | KAl2(Si3Al)O10(OH,F)2 | 20 |
| hydrated aluminum phosphate | Al5[(PO4)2[(P,S)O3(OH,O)]2F2(OH)2(H2O)8•6.48(H2O) | 1 |
| hexahydrated magnesium potassium sulfate | K2Mg (SO4)2•6(H2O) | 4 |
| Ecuador Climate Zone | January | February | March | April | May | June | July | August | September | October | November | December | Unit |
|---|---|---|---|---|---|---|---|---|---|---|---|---|---|
| Global horizontal radiation * | 372 | 347 | 414 | 407 | 368 | 356 | 302 | 380 | 420 | 404 | 458 | 400 | Wh/m2 |
| Direct normal radiation * | 212 | 154 | 249 | 275 | 270 | 312 | 204 | 309 | 298 | 226 | 319 | 266 | Wh/m2 |
| Diffuse radiation * | 224 | 237 | 240 | 215 | 201 | 160 | 174 | 172 | 224 | 242 | 221 | 215 | Wh/m2 |
| Global horizontal radiation ** | 1049 | 1075 | 1077 | 1045 | 988 | 930 | 963 | 995 | 1055 | 1071 | 1091 | 1039 | Wh/m2 |
| Direct normal radiation ** | 1001 | 998 | 1011 | 1008 | 984 | 983 | 994 | 988 | 991 | 985 | 1053 | 1019 | Wh/m2 |
| Diffuse radiation ** | 538 | 549 | 558 | 532 | 490 | 450 | 458 | 494 | 546 | 567 | 543 | 522 | Wh/m2 |
| Global horizontal radiation *** | 4552 | 4214 | 4981 | 4850 | 4358 | 4197 | 3567 | 4511 | 5031 | 4890 | 5582 | 4898 | Wh/m2 |
| Direct normal radiation *** | 2592 | 1872 | 2995 | 3275 | 3194 | 3683 | 2412 | 3668 | 3577 | 2736 | 3899 | 3262 | Wh/m2 |
| Diffuse radiation *** | 2745 | 2881 | 2895 | 2563 | 2385 | 1885 | 2053 | 2051 | 2691 | 2927 | 2697 | 2638 | Wh/m2 |
| Horizontal global illumination * | 41,274 | 38,102 | 45,280 | 44,837 | 41,338 | 39,798 | 33,943 | 41,940 | 45,970 | 44,115 | 50,230 | 44,414 | lux |
| Direct normal illumination * | 20,143 | 14,321 | 23,495 | 25,998 | 26,437 | 31,269 | 20,209 | 30,357 | 28,057 | 21,064 | 29,851 | 25,404 | lux |
| Dry bulb temperature **** | 14 | 15 | 15 | 14 | 15 | 14 | 14 | 14 | 15 | 15 | 14 | 15 | °C |
| Dew point temperature **** | 11 | 12 | 12 | 11 | 12 | 11 | 10 | 9 | 12 | 11 | 10 | 12 | °C |
| Relative humidity **** | 84 | 86 | 83 | 85 | 85 | 81 | 79 | 70 | 80 | 77 | 81 | 82 | % |
| Wind direction ***** | 270 | 270 | 90 | 90 | 90 | 90 | 90 | 90 | 90 | 90 | 270 | 270 | degrees |
| Wind speed **** | 1 | 1 | 2 | 1 | 1 | 2 | 3 | 2 | 2 | 1 | 0 | 1 | m/s |
| Floor temperature *,*** | 14 | 14 | 14 | 15 | 15 | 15 | 15 | 15 | 15 | 14 | 14 | 14 | °C |
| Construction Package | Components | Thickness (cm) | Conductivity (W/°K) | Infiltration Level (L/sm2) | |
|---|---|---|---|---|---|
| roofing | reinforced concrete slab | reinforced concrete | 7 | 2.3 | 4.40 |
| walls | concrete block | exterior plastering | 1 | 0.5 | 4.40 |
| concrete block | 10 | 0.62 | |||
| interior plastering | 1 | 0.72 | |||
| floor | wood | hardwood | 0.7 | 0.18 | 1.10 |
| ceramic | ceramic | 0.5 | 1.75 | 1.10 | |
| doors | metal | steel | 0.03 | 50 | 4 |
| air (R 0.15 m2k/w) | 0.1 | ||||
| steel | 0.03 | ||||
| wood | painted oak | 4.2 | 0.19 | ||
| windows | single-pane glass | clear glass | 0.3 | 0.9 | 4 |
| Construction Package | Components | Thickness (cm) | Conductivity (W/m2K) | Current U-Value (W/m2K) | Reference U-Value (W/m2K) | Compliance with NEC | |
|---|---|---|---|---|---|---|---|
| unconditioned living space ceilings | e = 8.2 cm | reinforced concrete | 7.0 cm | 2.3 | 4.7 | 2.35 | Does not comply |
| plastering | 1.2 cm | 0.81 | |||||
| Walls of habitable spaces—non-conditioned—above ground level | e = 12.0 cm | plastering | 1.0 cm | 0.116 | 2.89 | 2.90 | Complies |
| concrete block | 10 cm | 0.62 | |||||
| plastering | 1.0 cm | 0.116 | |||||
| Floors of habitable spaces—non-conditioned | e = 30 cm | ceramic | 0.7 cm | 1.75 | 2.82 | 3.2 | Complies |
| subfloor | 8 cm | 2.50 |
| Elevation | Total Facade Area (m2) | Area of Glazed Surface (m2) | Percentage of Glazed Surface (%) | Compliance with NEC–HS-EE |
|---|---|---|---|---|
| Front elevation | 15.12 | 3.29 | 27.1% | Complies |
| Rear elevation | 12.12 | 3.58 | 23.6% | Complies |
| Opaque Elements | Air-Conditioned | Not Air-Conditioned | Not Habitable | |||
|---|---|---|---|---|---|---|
| Maximum Assembly | Minimum Insulation Resistance Value | Maximum Assembly | Minimum Insulation Resistance Value | Maximum Assembly | Minimum Insulation Resistance Value | |
| Roofs | U-0.273 | R-3.5 | U-2.9 | R-0.89 | U-4.7 | R-0.21 |
| Walls above ground level | U-0.592 | R-1.7 | U-2.35 | R-0.36 | U-5.46 | NA |
| Walls below ground level | C-6.473 | NA | C-6.473 | NA | C-6.473 | NA |
| Floors | U-0.496 | R-1.5 | U-3.2 | R-0.31 | U-3.4 | NA |
| Opaque doors | U-2.839 | NA | U-2.6 | |||
| Windows | Maximum transmittance | Maximum SHGC assembly | Maximum transmittance | Maximum SHGC assembly | Maximum transmittance | Maximum SHGC assembly |
| Vertical glazing ≥ 45 degrees | U-3.69 | SHGC-0.25 | U-5.78 | SHGC-0.82 | U-6.81 | NA |
| Horizontal glazing < 45 degrees | U-6.64 | SHGC-0.36 | U-6.64 | SHGC-0.36 | U-11.24 | NA |
| Building Envelope—Type I Residential Unit | ||||
|---|---|---|---|---|
| Typology | Component | Current U-Value(W/m2K) | Required U-Value (W/m2K) | Compliance |
| roofing | concrete slab 7 cm thick | 4.7 | 2.35 | Does not comply |
| walls | concrete block | 2.89 | 2.90 | Complies |
| Intermediate floor | ceramic | 2.82 | 3.20 | Complies |
| Building Envelope, Typology I Residence | ||||
|---|---|---|---|---|
| Typology | Component | Current U Value (W/m2k) | Required Value (W/m2k) | Compliance |
| roofing | concrete slab 7 cm thick | 0.643 | U-2.35 | Complies |
| walls | concrete block | 2.89 | U-2.90 | Complies |
| floor | ceramic | 2.31 | U-3.20 | Complies |
Disclaimer/Publisher’s Note: The statements, opinions and data contained in all publications are solely those of the individual author(s) and contributor(s) and not of MDPI and/or the editor(s). MDPI and/or the editor(s) disclaim responsibility for any injury to people or property resulting from any ideas, methods, instructions or products referred to in the content. |
© 2024 by the authors. Licensee MDPI, Basel, Switzerland. This article is an open access article distributed under the terms and conditions of the Creative Commons Attribution (CC BY) license (https://creativecommons.org/licenses/by/4.0/).
Share and Cite
Correa-Jaramillo, R.; Hernández-Olivares, F. Sustainability in Construction: Geopolymerized Coating Bricks Made with Ceramic Waste. Materials 2025, 18, 103. https://doi.org/10.3390/ma18010103
Correa-Jaramillo R, Hernández-Olivares F. Sustainability in Construction: Geopolymerized Coating Bricks Made with Ceramic Waste. Materials. 2025; 18(1):103. https://doi.org/10.3390/ma18010103
Chicago/Turabian StyleCorrea-Jaramillo, Ramiro, and Francisco Hernández-Olivares. 2025. "Sustainability in Construction: Geopolymerized Coating Bricks Made with Ceramic Waste" Materials 18, no. 1: 103. https://doi.org/10.3390/ma18010103
APA StyleCorrea-Jaramillo, R., & Hernández-Olivares, F. (2025). Sustainability in Construction: Geopolymerized Coating Bricks Made with Ceramic Waste. Materials, 18(1), 103. https://doi.org/10.3390/ma18010103

