Investigation of a Ventilation System for Energy Efficiency and Indoor Environmental Quality in a Renovated Historical Building: A Case Study
Abstract
1. Introduction
2. Materials and Methods
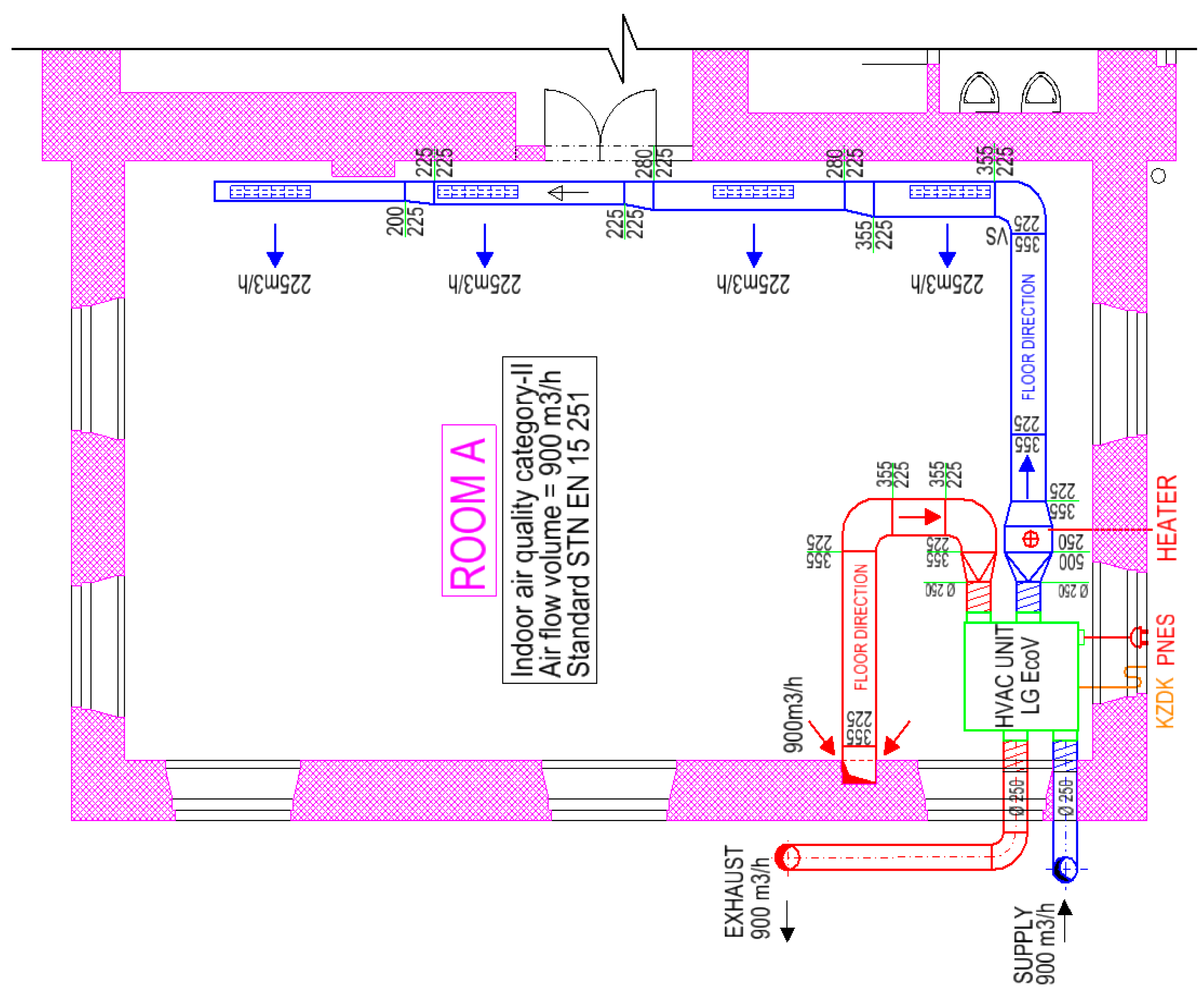
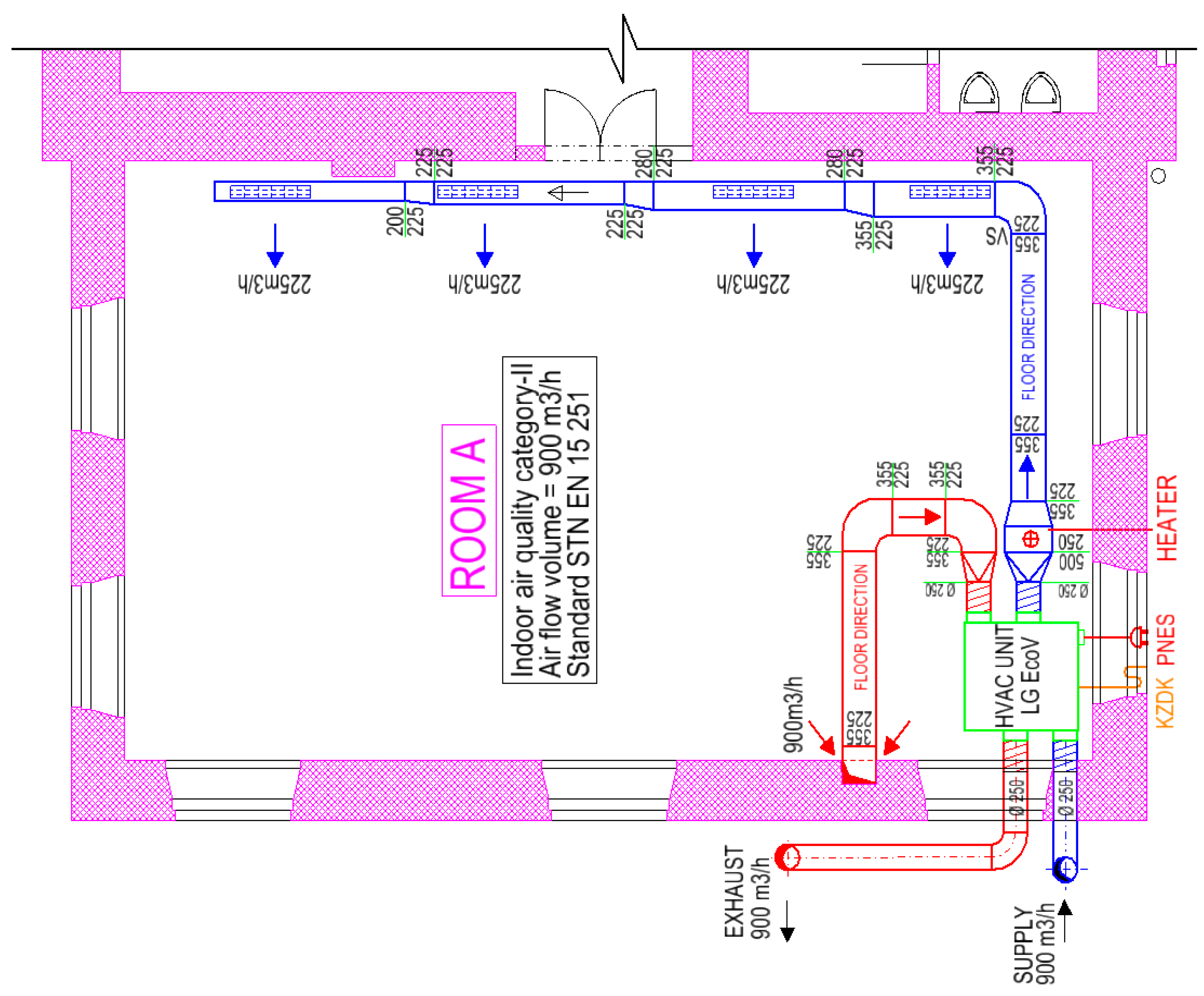
2.1. Investigated Building
HVAC System Design
2.2. Methods for Measuring the Temperature in the Ventilation Unit
2.3. Methods for Measuring the Indoor Environmental Quality Factors
3. Results and Discussion
3.1. Energy Performance of the HVAC System
- The total energy consumption for the operation of air handling units for one day;
- The energy consumption for air pre-heating. This is the energy that must be supplied to the pre-heater exchanger. The pre-heater exchanger is turned on when the exterior air temperature is below −9 °C (>−9 °C). This temperature state (exactly −10.2 °C—average exterior air temperature) occurred only on one day, the 4th of January (Monday). On the other days, the pre-heater exchanger was turned off because the exterior air temperature was above −9 °C (<−9 °C).
- An average exterior air temperature above −8.8 °C (<−8.8 °C) does not cause freezing of condensed water vapor on the inside walls of the air handling unit. In all other cases, the exterior air temperature was above −8.8 °C (<−8.8 °C), except, as already mentioned, the 4th of January.
- Energy consumption for heating—energy produced from the heat source needed for space heating, which is transferred to the heated space via a duct air heater
- Electric energy consumption—energy consumption for fans.
3.2. Indoor Environmental Quality in the Investigated Building
4. Conclusions
Author Contributions
Funding
Conflicts of Interest
Abbreviations
| IEQ | Indoor environmental quality |
| SBS | Sick building syndrome |
| CO2 | Carbon dioxide |
| PM | Particulate matter |
| HVAC | Heating, ventilation, and air conditioning |
| IAQ | Indoor air quality |
| CFD | Computational fluid dynamics |
| nZEB | Nearly zero-energy buildings |
| PVC | Polyvinylchloride |
| θae | Average outdoor temperature |
| Rhe | Average outdoor relative humidity |
| θhr | Temperature after heat recovery |
| ηr | Efficiency of heat recovery |
| Фr | Loss by heat recovery ventilation |
| Epreh | Energy consumption for preheating |
| Etot | Total energy consumption |
References
- Torras, S.; Oliet, C.; Rigola, J.; Oliva, A. Drain water heat recovery storage-type unit for residential housing. Appl. Therm. Eng. 2016, 103, 670–683. [Google Scholar] [CrossRef]
- Chenari, B.; Carrilho, J.D.; da Silva, M.G. Towards sustainable, energy-efficient and healthy ventilation strategies in buildings: A review. Renew. Sustain. Energy Rev. 2016, 59, 1426–1447. [Google Scholar] [CrossRef]
- Cuce, P.M.; Cuce, E.; Riffat, S. A novel roof type heat recovery panel for low-carbon buildings: An experimental investigation. Energy Build. 2016, 113, 133–138. [Google Scholar] [CrossRef]
- Merzkirch, A.; Mass, S.; Scholzen, F.; Waldmann, D. Field tests of centralized and decentralized ventilation units in residential buildings—Specific fan power, heat recovery efficiency, short cuts and volume flow unbalances. Energy Build. 2016, 116, 376–383. [Google Scholar] [CrossRef]
- Cuce, P.M.; Riffat, S. A comprehensive review of heat recovery systems for building applications. Renew. Sustain. Energy Rev. 2015, 47, 665–682. [Google Scholar] [CrossRef]
- Guillén-Lambea, S.; Rodríguez-Soria, B.; Marín, J.M. Review of European ventilation strategies to meet the cooling and heating demands of nearly zero energy buildings (nZEB)/Passivhaus. Comparison with the USA. Renew. Sustain. Energy Rev. 2016, 62, 561–574. [Google Scholar] [CrossRef]
- Wang, Y.; Zhao, F.Y.; Kuckelkorn, J.; Li, X.H.; Wang, H.Q. Indoor air environment and night cooling energy efficiency of a southern German passive public school building operated by the heat recovery air conditioning unit. Energy Build. 2014, 81, 9–17. [Google Scholar] [CrossRef]
- Khabbaz, M.; Benhamou, B.; Limam, K.; Hollmuller, P.; Hamd, H.; Bennouna, A. Experimental and numerical study of an earth-to-air heat exchanger for air cooling in a residential building in hot semi-arid climate. Energy Build. 2016, 125, 109–121. [Google Scholar] [CrossRef]
- Ai, S.; Wang, B.; Li, X.; Shi, W. Analysis of a heat recovery system of the spray-drying process in a soy protein powder plant. Appl. Therm. Eng. 2016, 103, 1022–1030. [Google Scholar] [CrossRef]
- Wang, Y.; Kuckelkorn, J.M.; Zho, F.Y.; Mu, M.; Li, D. Evaluation on energy performance in a low-energy building using new energy conservation index based on monitoring measurement system with sensor network. Energy Build. 2016, 123, 79–91. [Google Scholar] [CrossRef]
- Kapalo, P.; Domnita, F.; Bacotiu, C.; Podolak, M. The influence of occupants’ body mass on carbon dioxide mass flow rate inside a university classroom—Case study. Int. J. Environ. Health Res. 2018, 28, 432–447. [Google Scholar] [CrossRef] [PubMed]
- Kapalo, P.; Siroczki, P. Calculating the Intensity of Ventilation in Classrooms on the Basis of Measured Concentrations of Carbon Dioxide in Slovakia—Case Study. Int. J. Vent. 2014, 13, 247–258. [Google Scholar] [CrossRef]
- Nagy, R.; Košičanová, D. Research of minimum ventilation intensity. In Proceedings of the 13th International Multidisciplinary Scientific Geoconference, SGEM 2013, Albena, Bulgaria, 16–22 June 2013; pp. 199–210. [Google Scholar]
- Nagy, R.; Kosicanova, D. Indoor air quality related to total minimum air ventilation rate, air quality and CFD simulations of pollution distribution. In Proceedings of the 12h International Multidisciplinary Scientific Geoconference (SGEM), Albena, Bulgaria, 17–23 June 2012; pp. 529–536. [Google Scholar]
- WHO. Indoor Air Quality: Biological Contaminants: Report on a WHO Meeting, Ruatavaara, 29 August–2 September 1988; European series; No. 31; WHO Regional Publications: Copenhagen, Denmark, 1990. [Google Scholar]
- Zamani, M.E.; Jalaluding, J.; Shaharom, N. Indoor air quality and prevalence of sick building syndrome among office workers in two different offices in Selangor. Am. J. Appl. Sci. 2013, 10, 1140. [Google Scholar] [CrossRef]
- Balocco, C.; Petrone, G.; Maggi, O.; Pasquariello, G.; Albertini, R.; Pasquarella, C. Indoor microclimatic study for Cultural Heritage protection and preventive conservation in the Palatina Library. J. Cult. Herit. 2016, 22, 956–967. [Google Scholar] [CrossRef]
- D’Agostino, D.; Congedo, P.M. CFD modeling and moisture dynamics implications of ventilation scenarios in historical buildings. Build. Environ. 2014, 79, 181–193. [Google Scholar] [CrossRef]
- Balocco, C.; Grazzini, G. Numerical simulation of ancient natural ventilation systems of historical buildings. A case study in Palermo. J. Cult. Herit. 2009, 10, 313–318. [Google Scholar] [CrossRef]
- Kamaruzzanman, S.N.; Egbu, C.O.; Zawawi, E.M.A.; Ali, A.S.; Che-Ani, A.I. The effect of indoor environmental quality on occupants’ perception of performance: A case study of refurbished historic buildings in Malaysia. Energy Build. 2011, 43, 407–413. [Google Scholar] [CrossRef]
- Mora, T.D.; Cappelletti, F.; Peron, F.; Romagnoni, P.; Bauman, F. Retrofit on an historical building toward NZEB. Energy Procedia 2015, 78, 1359–1364. [Google Scholar] [CrossRef]
- Rungruengsri, C. Energy Efficiency Renovation in Historical Building. Case Study: Maha Chulalongkorn Building and Maha Vijaravudh Building, Chulalongkorn University, Thailand. Energy Procedia 2017, 138, 1110–1115. [Google Scholar] [CrossRef]
- EN 15251. Indoor Environmental Input Parameters for Design and Assessment of Energy Performance of Buildings Addressing Indoor Air Quality, Thermal Environment, Lighting and Acoustics; ANSI: Brussels, Belgium, 2012. [Google Scholar]
- Von Pettenkofer, M. Über den Luftwechsel in Wohngebäuden; Der, J.G., Ed.; Cotta’schen Buchhandlung: München, Germany, 1858. [Google Scholar]
- Gao, J.; Wargocki, P.; Wang, Y. Indoor air quality and thermal environment in classrooms with different ventilation systems. REHVA J. 2014, 51, 10–14. [Google Scholar]
- Klavina, A.; Proskurina, J.; Rodins, V.; Martinsone, I. Carbon dioxide as indoor air quality indicator in renovated schools in Latvia. In Proceedings of the Indoor Air 2016, the 14th International Conference of Indoor Air Quality and Climate, Ghent, Belgium, 3–8 July 2016; pp. 1–6. [Google Scholar]
- Batterman, S. Review and extension of CO2-based methods to determine ventilation rates with application to school classrooms. Int. J. Environ. Res. Public Health 2017, 14, 145. [Google Scholar] [CrossRef] [PubMed]
- Pinto, M.; Lanyinha, J.; Viegas, J.; Infante, C.; Freire, T. Quality of the indoor environment in elderly care centers in two cities in central Portugal: Viseu and Covilha. Int. J. Environ. Res. Public Health 2019, 16, 3801. [Google Scholar] [CrossRef] [PubMed]
- Fisher, A.; Ljungström, E.; Hägerhed Engman, L.; Langer, S. Ventilation strategies and indoor particulate matter in a classroom. Indoor Air 2015, 25, 168–175. [Google Scholar] [CrossRef] [PubMed]
- Hassanvand, M.S.; Naddafi, K.; Faridi, S.; Arhami, M.; Nabizadeh, R.; Sowlat, M.H.; Pourpak, Z.; Rastkari, N.; Momeniha, F.; Kashani, H.; et al. Indoor/outdoor relationships of PM10, PM2.5 and PM1 mass concentrations and their water-soluble ions in a retirement home and a school dormitory. Atmos. Environ. 2014, 82, 375–382. [Google Scholar] [CrossRef]
- Rufo, J.C.; Madureira, J.; Paciencia, I.; Aguiar, L.; Teixeira, J.P.; Moreira, A.; De Oliveira Fernandes, E. Indoor air quality and atopic sensitization in primary schools: A follow-up study. Porto Biomed. J. 2016, 1, 142–146. [Google Scholar] [CrossRef]
- Vilcekova, S.; Kridlova Burdova, E.; Meciarova, L.; Estokova, A. Monitoring of indoor air pollution in a classroom—Case study. In Proceedings of the Indoor Air 2016, the 14th International Conference of Indoor Air Quality and Climate, Ghent, Belgium, 3–8 July 2016; pp. 1–6. [Google Scholar]
- Decree of the Ministry of Health of the Slovak Republic No. 549/2007 Coll. Laying Down Details on Permissible Values of Noise, Infrasound and Vibration and Requirements for Objectification of Noise, Infrasound and Vibration in the Environment; The Ministry of Health of the Slovak Republic: Bratislava, Slovakia, 2007.
- Apte, M.G.; Spears, M.; Lai, C.M.; Shendell, D.G. Improving Indoor Environmental Quality and Energy Performance of Modular Classroom HVAC Systems; Lawrence Berkeley National Laboratory: Oakland, CA, USA, 2005. [Google Scholar]
- Cohen, J. Statistical Power Analysis for the Behavioral Sciences, 2nd ed.; Lawrence Erlbaum Associates: New York, NY, USA, 1988; p. 567. [Google Scholar]
- Lazović, I.; Jovašević-Stojanović, M.; Živković, M.M.; Tasic, V.; Stevanović, Ž.M. PM and CO2 variability and relationship in different school environments. Chem. Ind. Chem. Eng. Q. 2015, 21, 179–187. [Google Scholar] [CrossRef]
- Lazović, I.M.; Sevanović, Ž.M.; Jovašević-Stojanović, M.V.; Živković, M.M.; Banjac, M.J. “Impact of CO2 concentration on indoor air quality and correlation with relative humidity and indoor air temperature in school buildings, Serbia. Therm. Sci. 2016, 20, S297–S307. [Google Scholar] [CrossRef]
- Fromme, H.; Twardella, D.; Dietrich, S.; Heitmann, D.; Schierl, R.; Liebl, B.; Rüden, H. Particulate matter in the indoor air of classrooms—Exploratory results from Munich and surrounding area. Atmos. Environ. 2007, 41, 854–866. [Google Scholar] [CrossRef]
- Alshitawi, M.; Awbi, H.; Mahyuddin, N. Particulate Matter Mass Concentration (PM10) under Different Ventilation Methods in Classrooms. Int. J. Vent. 2009, 8, 93–108. [Google Scholar] [CrossRef]
- Vilčeková, S.; Apostolski, I.Z.; Mečiarová, Ľ.; Krídlová Burdová, E.; Kiselák, J. Investigation of Indoor Air Quality in Houses of Macedonia. Int. J. Environ. Res. Public Health 2017, 14, 37. [Google Scholar] [CrossRef]
- Turunen, M.; Toyinbo, O.; Putus, T.; Nevalainen, A.; Shaughnessy, R.; Haverinen-Shaughnessy, U. Indoor environmental quality in school buildings, and the health and wellbeing of students. Int. J. Hyg. Environ. Health 2014, 217, 733–739. [Google Scholar] [CrossRef] [PubMed]
- Vilcekova, S.; Meciarova, L.; Kridlova Burdova, E.; Katunska, J.; Kosicanova, D.; Doroudiani, S. Indoor environmental quality of classrooms and occupants´comfort in a special education school in Slovak Republic. Build. Environ. 2017, 120, 29–40. [Google Scholar] [CrossRef]
- Sakellaris, I.; Saraga, D.E.; Mandin, C.; Roda, C.; Fossati, S.; de Klulizenaar, Y.; Carrer, P.; Dimitroulopoulou, S.; Mihucz, V.G.; Szigeti, T.; et al. Perceived Indoor environment and occupants´comfort in European “modern” office building: The officair Study. Int. J. Environ. Res. Public Health 2016, 13, 444. [Google Scholar] [CrossRef] [PubMed]














| Perception | Sensational Evaluation | |
|---|---|---|
| Humidity | 2 humidity 1 slight humidity 0 neutral –1 slightly dry –2 dry | 0 comfort 1 slight discomfort 2 discomfort 3 strong discomfort |
| Indoor air temperature | 3 hot 2 warm 1 slightly warm 0 neutral –1 slightly cool –2 cool –3 cold | 0 comfort 1 slight discomfort 2 discomfort 3 strong discomfort |
| Air draught | 0 no air draught 1 slight air draught 2 mild air draught 3 strong air draught 4 very strong air draught 5 sublime air draught | 0 comfort 1 slight discomfort 2 discomfort 3 strong discomfort |
| Indoor air quality | 0 no odor 1 weak odor 2 moderate odor 3 strong odor 4 very strong odor 5 overpowering odor | 0 comfort 1 slight discomfort 2 discomfort 3 strong discomfort |
| Noise | 1 no noise 2 low noise 3 acceptable noise 4 strong noise 5 intolerable noise | 0 comfort 1 slight discomfort 2 discomfort 3 strong discomfort |
| Lighting | 2 very high 1 high 0 acceptable –1 low –2 very low | 0 comfort 1 slight discomfort 2 discomfort 3 strong discomfort |
| Date | θae [°C] | Rhe [%] | θhr [°C] | ηr [%] | (Φr) [W] | Epreh [kWh/day] | Etot [kWh/day] |
|---|---|---|---|---|---|---|---|
| 1.1 | −6.2 | 72 | 16.1 | 85.0 | 980.0 | 7.8 | 10.1 |
| 4.1 | −10.2 | 77 | 16.0 | 86.6 | 1009.0 | 8.1 | 10.4 |
| 5.1 | −7.1 | 83 | 16.0 | 85.4 | 984.2 | 7.9 | 10.2 |
| 6.1 | −2.9 | 84 | 16.3 | 83.8 | 923.9 | 7.4 | 9.7 |
| 7.1 | 1.6 | 74 | 16.7 | 82.3 | 811.0 | 6.5 | 8.8 |
| 8.1 | −2.3 | 90 | 16.3 | 83.6 | 912.6 | 7.3 | 9.6 |
| 11.1 | 2.0 | 99 | 16.8 | 82.2 | 799.3 | 6.4 | 8.7 |
| 12.1 | 5.0 | 86 | 17.2 | 81.4 | 696.2 | 5.6 | 7.9 |
| 13.1 | 3.3 | 82 | 17.0 | 81.9 | 751.6 | 6.0 | 8.3 |
| 14.1 | 2.5 | 81 | 16.9 | 82.1 | 779.5 | 6.2 | 8.5 |
| 15.1 | 0,2 | 94 | 16.6 | 82.7 | 853.5 | 6.8 | 9.1 |
| 18.1 | −2.6 | 63 | 16.3 | 83.7 | 918.3 | 7.3 | 9.6 |
| 19.1 | −5.1 | 71 | 16.1 | 84.6 | 963.5 | 7.7 | 10.0 |
| 20.1 | −4.9 | 79 | 16.1 | 84.5 | 961.2 | 7.7 | 10.0 |
| 21.1 | −5.1 | 72 | 16.1 | 84.6 | 963.5 | 7.7 | 10.0 |
| 22.1 | −5.1 | 71 | 16.1 | 84.6 | 961.4 | 7.7 | 10.0 |
| 25.1 | −3.6 | 94 | 16.2 | 84.0 | 941.3 | 7.5 | 9.8 |
| 26.1 | −1.6 | 96 | 16.4 | 83.3 | 899.2 | 7.2 | 9.5 |
| 27.1 | −0.2 | 99 | 16.5 | 82.8 | 864.2 | 6.9 | 9.2 |
| 28.1 | 0.0 | 98 | 16.5 | 82.7 | 862.1 | 6.9 | 9.2 |
| 29.1 | 1.7 | 95 | 16.8 | 82.3 | 805.6 | 6.4 | 8.7 |
| Parameter | Before the Beginning the Lesson | During the Lesson | Limit/Recommended Value | ||||||
|---|---|---|---|---|---|---|---|---|---|
| Mean | Min. | Max. | S.D. | Mean | Min. | Max. | S.D. | ||
| θai [°C] | 24.9 | 21.4 | 25.4 | 0.7 | 24.8 | 23.6 | 25.4 | 0.5 | - |
| RH [%] | 28.5 | 25.2 | 37.6 | 3.0 | 31.0 | 25.3 | 34 | 2.0 | 30–70 |
| CO2 [ppm] | 538.7 | 461.0 | 627 | 53.9 | 1050.5 | 463 | 1641 | 271.1 | 1000 |
| PM0.5 [µg/m3] | 9.6 | 7.8 | 11.7 | 1.4 | 11.4 | 10.4 | 12.5 | 0.6 | - |
| PM1 [µg/m3] | 13.2 | 10.6 | 16.3 | 2.0 | 17.0 | 15.0 | 20.0 | 1.8 | - |
| PM2.5 [µg/m3] | 14.3 | 11.6 | 17.7 | 2.1 | 19.3 | 16.9 | 22.7 | 1.8 | - |
| PM5 [µg/m3] | 18.3 | 14.9 | 25.7 | 2.5 | 28.9 | 24.7 | 38.7 | 2.7 | - |
| PM10 [µg/m3] | 27.0 | 20.3 | 46.4 | 5.2 | 43.5 | 32.9 | 74 | 8.1 | 50 |
| LAeq. [dB] | 59.9 | 58.1 | 62.1 | 1.7 | 61.6 | 56.0 | 68.6 | 3.7 | 40 |
| CO2 | θai | RH | PM0.5 | PM1 | PM2.5 | PM5 | PM10 | |
|---|---|---|---|---|---|---|---|---|
| CO2 | 1.00 | −0.14 | 0.86 | 0.42 | 0.51 | 0.56 | 0.72 | 0.58 |
| θai | −0.14 | 1.00 | −0.30 | −0.34 | −0.49 | −0.51 | −0.42 | −0.26 |
| RH | 0.86 | −0.30 | 1.00 | 0.09 | 0.25 | 0.33 | 0.53 | 0.46 |
| PM0.5 | 0.42 | −0.34 | 0.09 | 1.00 | 0.96 | 0.94 | 0.83 | 0.67 |
| PM1 | 0.51 | −0.49 | 0.25 | 0.96 | 1.00 | 1.00 | 0.89 | 0.72 |
| PM2.5 | 0.56 | −0.51 | 0.33 | 0.94 | 1.00 | 1.00 | 0.92 | 0.76 |
| PM5 | 0.72 | −0.42 | 0.53 | 0.83 | 0.89 | 0.92 | 1.00 | 0.91 |
| PM10 | 0.58 | −0.26 | 0.46 | 0.67 | 0.72 | 0.76 | 0.91 | 1.00 |
© 2019 by the authors. Licensee MDPI, Basel, Switzerland. This article is an open access article distributed under the terms and conditions of the Creative Commons Attribution (CC BY) license (http://creativecommons.org/licenses/by/4.0/).
Share and Cite
Nagy, R.; Mečiarová, Ľ.; Vilčeková, S.; Krídlová Burdová, E.; Košičanová, D. Investigation of a Ventilation System for Energy Efficiency and Indoor Environmental Quality in a Renovated Historical Building: A Case Study. Int. J. Environ. Res. Public Health 2019, 16, 4133. https://doi.org/10.3390/ijerph16214133
Nagy R, Mečiarová Ľ, Vilčeková S, Krídlová Burdová E, Košičanová D. Investigation of a Ventilation System for Energy Efficiency and Indoor Environmental Quality in a Renovated Historical Building: A Case Study. International Journal of Environmental Research and Public Health. 2019; 16(21):4133. https://doi.org/10.3390/ijerph16214133
Chicago/Turabian StyleNagy, Richard, Ľudmila Mečiarová, Silvia Vilčeková, Eva Krídlová Burdová, and Danica Košičanová. 2019. "Investigation of a Ventilation System for Energy Efficiency and Indoor Environmental Quality in a Renovated Historical Building: A Case Study" International Journal of Environmental Research and Public Health 16, no. 21: 4133. https://doi.org/10.3390/ijerph16214133
APA StyleNagy, R., Mečiarová, Ľ., Vilčeková, S., Krídlová Burdová, E., & Košičanová, D. (2019). Investigation of a Ventilation System for Energy Efficiency and Indoor Environmental Quality in a Renovated Historical Building: A Case Study. International Journal of Environmental Research and Public Health, 16(21), 4133. https://doi.org/10.3390/ijerph16214133

