Integrated Geoscientific Surveys at the Church of Santa Maria della Lizza (Alezio, Italy)
Abstract
1. Introduction
2. Materials and Methods
2.1. Laser Scanner Survey
2.2. GPR Data Acquisition
3. Results
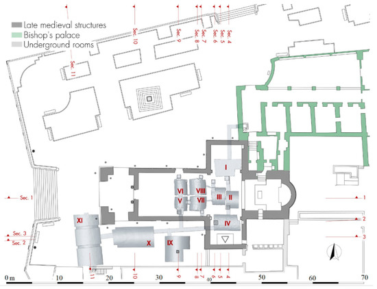
3.1. Laser Scanner
3.2. GPR
4. Discussion
5. Conclusions
Author Contributions
Funding
Institutional Review Board Statement
Informed Consent Statement
Data Availability Statement
Acknowledgments
Conflicts of Interest
References
- Ferrari, I.; Scardozzi, G. Contributo alla Carta Archeologica di Alezio; Scirocco Editore: Bari, Italy, 2016. [Google Scholar]
- Castelfranchi Falla, M. La Pittura Bizantina in Salento (Secoli X-XIV). In Ad Ovest di Bisanzio, il Salento Medioevale. Atti del Seminario Internazionale di Studio (Martano, 29–30 Aprile 1988); Vetere, B., Ed.; Mario Congedo Editore: Galatina, Italy, 1990; pp. 127–214. [Google Scholar]
- Ortese, S. Pittura Tardogotica nel Salento; Mario Congedo Editore: Galatina, Italy, 2014. [Google Scholar]
- Calò Mariani, M.S. Echi d’Oltremare in Terra d’Otranto. Imprese pittoriche e committenza feudale fra XIII e XIV secolo. In Il Cammino di Gerusalemme, Atti del II Convegno Internazionale di Studio (Bari-Brindisi-Trani, 18–22 Maggio 1999), Calò Mariano, M.S., Ed.; Adda Editore: Bari, Italy, 2002; pp. 235–274. [Google Scholar]
- Jacob, A. Gallipoli bizantina. In Paesi e Figure del Vecchio Salento (Volume 3); De Bernard, A., Ed.; Mario Congedo Editore: Galatina, Italy, 1989; pp. 298–308. [Google Scholar]
- Ferrari, I. La fiera della Lizza. In Oltre 500 Anni di Storia; Edizioni Esperidi: San Cesario di Lecce, Italy, 2010. [Google Scholar]
- Mongiello, G. Il restauro della Chiesa di Santa Maria dell’Alizza in Alezio. Arte Cris. 1974, 613, 225–263. [Google Scholar]
- Malfitana, D.; Gabellone, F.; Leucci, G.; Cacciaguerra, G.; Ferrari, I.; Giuri, F.; De Giorgi, L.; Pantellaro, C. Integrated methodologies for a new reconstructive proposal of the amphitheatre of Catania. In Proceedings of the 8th International Congress on Archaeology, Computer Graphics, Cultural Heritage and Innovation, ‘ARQUEOLOGICA 2.0’, Valencia, Spain, 5–7 September 2016; Editorial Universitat Politècnica de València: Valencia, Spain, 2016; pp. 146–154. [Google Scholar] [CrossRef]
- Gabellone, F.; Ferrari, I.; Giuri, A.; Giuri, F. Architectural survey and analysis of the coastal tower of S. Maria dellʼAlto in Nardò (Lecce, Italy). In Proceedings of the 2019 IMEKO TC-4 International Conference on Metrology for Archaeology and Cultural Heritage (MetroArchaeo 2019), Florence, Italy, 4–6 December 2019; pp. 371–373. [Google Scholar]
- Persico, R.; Leucci, G.; De Giorgi, L.; Gabellone, F.; Giuri, F.; Ferrari, I.; D’Amico, S.; Colica, E. A Multidisciplinary Study on the Roman Amphitheatre of Lecce, Southern Italy. In Proceedings of the 10th International Workshop on Advanced Ground Penetrating Radar, The Hague, Netherlands, 8–12 September 2019; pp. 1–4. [Google Scholar] [CrossRef]
- Leucci, G.; De Giorgi, L.; Ditaranto, I.; Giuri, F.; Ferrari, I.; Scardozzi, G. New Data on the Messapian Necropolis of Monte D’Elia in Alezio (Apulia, Italy) from Topographical and Geophysical Surveys. Sensor 2019, 19, 3494. [Google Scholar] [CrossRef] [PubMed]
- Leucci, G. Nondestructive Testing for Archaeology and Cultural Heritage: A Practical Guide and New Perspective; Springer: Cham, Switzerland, 2019; ISBN 978-3-030-01898-6. [Google Scholar]
- Leucci, G. Advances in Geophysical Methods Applied to Forensic Investigations: New Developments in Acquisition and Data Analysis Methodologies; Springer: Cham, Switzerland, 2020; ISBN 978-3-030-46241-3. [Google Scholar]
- Goodman, D. GPR Slice Version 7.0 Manual. Available online: http://www.gpr-survey.com (accessed on 3 June 2013).
- Conyers, L.B. Innovative Ground-Penetrating Radar Methods for Archaeological Mapping. Archaeol. Prospect. 2006, 13, 139–141. [Google Scholar] [CrossRef]
- Leckebusch, J. Problems and Solutions with GPR Data Interpretation: Depolarization and Data Continuity. Archaeol. Prospect. 2011, 18, 303–308. [Google Scholar] [CrossRef]
- Goodman, D.; Steinberg, J.; Damiata, B.; Nishimure, Y.; Schneider, K.; Hiromichi, H.; Hisashi, N. GPR overlay analysis for archaeological prospection. In Proceedings of the 11th International Conference on Ground Penetrating Radar, Columbus, OH, USA, 19–22 June 2006. [Google Scholar]
- Conyers, L.B. Ground-Penetrating Radar for Archaeology; Altamira Press: Walnut Creek, CA, USA, 2004. [Google Scholar]
- Conyers, L.B. Interpreting Ground-Penetrating Radar for Archaeology; Left Coast Press: Walnut Creek, CA, USA, 2012. [Google Scholar]
- Conyers, L.B.; Daniels, J.M.; Haws, J.; Benedetti, M. An Upper Palaeolithic Landscape Analysis of Coastal Portugal Using Ground-penetrating Radar. Archaeol. Prospect. 2013, 20, 45–51. [Google Scholar] [CrossRef]
- Goodman, D.; Nishimura, Y.; Hongo, H.; Okita, M. GPR amplitude rendering in archaeology. In Proceedings of the Seventh International Conference on Ground Penetrating Radar, Radar Systems and Remote Sensing Laboratory, University of Kansas, Lawrence, KS, USA, 27–30 May 1998; pp. 91–92. [Google Scholar]
- Goodman, D.; Piro, S.; Nishimura, Y.; Patterson, H.; Gaffney, V. Discovery of a 1st Century AD Roman Amphitheatre and Other Structures at the Forum Novum by GPR. J. Environ. Eng. Geophys. 2004, 9, 35–42. [Google Scholar] [CrossRef]
- Leckebusch, J. Ground-penetrating radar: A modern three-dimensional prospection method. Archaeol. Prospect. 2003, 10, 213–240. [Google Scholar] [CrossRef]
- Leucci, G. Geofisica Applicata all’Archeologia e ai Beni Monumentali; Dario Flaccovio Editore: Palermo, Italy, 2015. [Google Scholar]
- Masini, N.; Capozzoli, L.; Chen, P.; Chen, F.; Romano, G.; Lu, P.; Tang, P.; Sileo, M.; Ge, Q.; Lasaponara, R. Towards an operational use of geophysics for Archaeology in Henan (China): Archaeogeophysical investigations, approach and results in Kaifeng. Remote Sens. 2017, 9, 809. [Google Scholar] [CrossRef]
- Masini, N.; Leucci, G.; Vera, D.; Sileo, M.; Pecci, A.; Garcia, S.; López, R.; Holguín, H.; Lasaponara, R. Towards Urban Archaeo-Geophysics in Peru. The Case Study of Plaza de Armas in Cusco. Sensors 2020, 20, 2869. [Google Scholar] [CrossRef] [PubMed]
- Leucci, G.; Negri, S. Use of ground penetrating radar to map subsurface archaeological features in an urban area. J. Archaeol. Sci. 2006, 33, 502–512. [Google Scholar] [CrossRef]
- Zanzi, L.; Valle, S. Elaborazione di dati GPR 3D per la ricerca di mine antiuomo. In Atti del 18° Convegno Nazionale; GNGTS: Roma, Italy, 1999. [Google Scholar]





















Publisher’s Note: MDPI stays neutral with regard to jurisdictional claims in published maps and institutional affiliations. |
© 2021 by the authors. Licensee MDPI, Basel, Switzerland. This article is an open access article distributed under the terms and conditions of the Creative Commons Attribution (CC BY) license (http://creativecommons.org/licenses/by/4.0/).
Share and Cite
De Giorgi, L.; Ferrari, I.; Giuri, F.; Leucci, G.; Scardozzi, G. Integrated Geoscientific Surveys at the Church of Santa Maria della Lizza (Alezio, Italy). Sensors 2021, 21, 2205. https://doi.org/10.3390/s21062205
De Giorgi L, Ferrari I, Giuri F, Leucci G, Scardozzi G. Integrated Geoscientific Surveys at the Church of Santa Maria della Lizza (Alezio, Italy). Sensors. 2021; 21(6):2205. https://doi.org/10.3390/s21062205
Chicago/Turabian StyleDe Giorgi, Lara, Ivan Ferrari, Francesco Giuri, Giovanni Leucci, and Giuseppe Scardozzi. 2021. "Integrated Geoscientific Surveys at the Church of Santa Maria della Lizza (Alezio, Italy)" Sensors 21, no. 6: 2205. https://doi.org/10.3390/s21062205
APA StyleDe Giorgi, L., Ferrari, I., Giuri, F., Leucci, G., & Scardozzi, G. (2021). Integrated Geoscientific Surveys at the Church of Santa Maria della Lizza (Alezio, Italy). Sensors, 21(6), 2205. https://doi.org/10.3390/s21062205

