Sign in to use this feature.

Years

Between: -

Subjects

remove_circle_outline
remove_circle_outline
remove_circle_outline
remove_circle_outline
remove_circle_outline
remove_circle_outline
remove_circle_outline
remove_circle_outline
remove_circle_outline

Journals

Article Types

Countries / Regions

Search Results (70)

Search Parameters:
Keywords = enzyme-induced carbonate precipitation

Order results
Result details
Results per page
Select all
Export citation of selected articles as:
22 pages, 5117 KB  
Article
Performance and Mechanism of Enzyme-Induced Carbonate Precipitation (EICP) for Fine-Grained Saline Soil Stabilization
by Zhendong Zhang, Kuizhu Wang, Chenwei Cui and Long Yu
Appl. Sci. 2026, 16(2), 1057; https://doi.org/10.3390/app16021057 - 20 Jan 2026
Viewed by 108
Abstract
In coastal saline soil regions, foundation instability frequently arises due to salt heave, dissolution-induced weakening and corrosion-driven degradation. To enhance the engineering performance of fine-grained saline soil, this study evaluates the effectiveness of Enzyme-Induced Carbonate Precipitation (EICP) treatment under varying salinity levels and [...] Read more.
In coastal saline soil regions, foundation instability frequently arises due to salt heave, dissolution-induced weakening and corrosion-driven degradation. To enhance the engineering performance of fine-grained saline soil, this study evaluates the effectiveness of Enzyme-Induced Carbonate Precipitation (EICP) treatment under varying salinity levels and curing solution concentrations. Mechanical properties, hydraulic behavior and water stability were examined through unconfined compressive strength (UCS), disintegration and permeability tests, complemented by microstructural analyses using XRD and SEM. The results indicate that EICP notably improves mechanical strength, water stability and reduced permeability. The UCS of treated specimens increased by 37–152% relative to untreated soil, and disintegration time was prolonged by 214–563%. The permeability coefficient was reduced by 45.8–95.7%, demonstrating effective suppression of seepage channels. The optimal stabilization performance was achieved at 0.02% salinity and curing concentrations of 1.0–1.3×. Excessive salinity distorted vaterite crystal morphology and weakened cementation. XRD and SEM analyses revealed that vaterite dominated the calcium carbonate polymorphs, while ionic complexity influenced crystal structure, ACC conversion and pore-filling performance. These findings confirm the feasibility of applying EICP for improving fine-grained coastal saline soils and provide practical engineering guidance for coastal subgrades, reclamation foundations and port infrastructures. Full article
(This article belongs to the Section Civil Engineering)
Show Figures

Figure 1

21 pages, 4269 KB  
Article
Experimental Study on the Shear Mechanical Properties of Loess Modified by Rubber Particles Combined with Cementing Material
by Zongxi Xie, Xinyuan Liu, Tengfei Xiong, Yingbo Zhou and Shaobo Chai
Appl. Sci. 2026, 16(2), 697; https://doi.org/10.3390/app16020697 - 9 Jan 2026
Viewed by 189
Abstract
Rubber particles have been proven to have the advantages of improving the energy absorption effect and enhancing the friction between soil particles when used to modify the soil. The rubber-modified soil technology also provides a new solution for the pollution-free disposal of waste [...] Read more.
Rubber particles have been proven to have the advantages of improving the energy absorption effect and enhancing the friction between soil particles when used to modify the soil. The rubber-modified soil technology also provides a new solution for the pollution-free disposal of waste rubber. However, when rubber particles are used to modify collapsible loess, they cannot significantly enhance its strength. Previous studies have not systematically clarified whether combining rubber particles with different cementation mechanisms can overcome this limitation, nor compared their shear mechanical effectiveness under identical conditions. In view of this, a dual synergistic strategy is implemented by combining rubber with lime and rubber with enzyme-induced calcium carbonate precipitation (EICP). Direct shear tests and scanning electron microscopy are used to evaluate four modification approaches: rubber alone, lime alone, rubber with EICP, and rubber with lime. Accordingly, shear strength, cohesion, and internal friction angle are quantified. At a vertical normal stress of 100 kPa and above, samples modified with rubber and lime (7–9% lime and 6–8% rubber) achieve peak shear strength values of 200–203 kPa, representing an 86.4% increase compared to rubber alone. Microscopic analysis reveals that calcium silicate hydrate gel effectively anchored rubber particles, forming a composite structure with a rigid skeleton and elastic buffer. In comparison, the rubber and EICP group (10% rubber) shows a substantial increase in internal friction angle (24.25°) but only a modest improvement in cohesion (16.5%), which is due to limited continuity in the calcium carbonate bonding network. It should be noted that the performance of EICP-based modification is constrained by curing efficiency and reaction continuity, which may affect its scalability in conventional engineering applications. Overall, the combination of rubber and lime provided an optimal balance of strength, ductility, and construction efficiency. Meanwhile, the rubber and EICP method demonstrates notable advantages in environmental compatibility and long-term durability, making it suitable for ecologically sensitive applications. The results offer a framework for loess stabilization based on performance adaptation and resource recycling, supporting sustainable use of waste rubber in geotechnical engineering. Full article
Show Figures

Figure 1

14 pages, 1888 KB  
Article
Weathering and Coupled Mineralization of Serpentine by Urease Gene Overexpression Strain
by Wenjun Nie, Xuerong Liu, Kaiyan Ren, Yitao Liu and Bin Lian
Catalysts 2026, 16(1), 22; https://doi.org/10.3390/catal16010022 - 27 Dec 2025
Viewed by 362
Abstract
Urease, a metalloenzyme widely present in various organisms, catalyzes the hydrolysis of urea to ammonia and CO2 and has been extensively utilized in studies and applications of microbially induced calcium carbonate precipitation (MICP). While microbially induced calcium carbonate precipitation (MICP) and silicate [...] Read more.
Urease, a metalloenzyme widely present in various organisms, catalyzes the hydrolysis of urea to ammonia and CO2 and has been extensively utilized in studies and applications of microbially induced calcium carbonate precipitation (MICP). While microbially induced calcium carbonate precipitation (MICP) and silicate mineral bio-weathering are both important biogeochemical processes mediated by microorganisms, and their coupling has been verified in some geological environments, the potential role of urease (a key enzyme in MICP) in mineral weathering remains unreported. In this study, Bacillus velezensis LB002 served as the urease gene donor for the construction of a Bacillus subtilis strain with heterologous overexpression of urease genes. The effects of this engineered strain and the wild-type strain on serpentine weathering and secondary mineral formation were compared. The results showed that the urease activity of the overexpression strain was approximately 3.8 times higher than that of the wild-type strain, and the release of Mg2+ during serpentine weathering increased by 17 mg/L. XRD and SEM-EDS analyses revealed that the wild-type strain promoted the formation of vaterite as a secondary mineral, whereas the overexpression strain induced the precipitation of both vaterite and magnesium-containing calcite. These findings demonstrate that urease plays a synergistic role in mineral weathering and that urease overexpression significantly enhances the release of Mg2+ from serpentine and the formation of magnesium-containing calcite. Full article
(This article belongs to the Special Issue Enzyme Engineering—the Core of Biocatalysis)
Show Figures

Graphical abstract

22 pages, 7497 KB  
Article
A Study on Improving the Macro- and Micromechanical Properties of Loess Deposits from the Yili Basin: Enzyme-Induced Carbonate Precipitation (EICP) Technique
by Yuan Xue, Ai Zhang, Guangming Shi, Dejun Yang, Weiming Guan, Junhui Zhang, Xinhui Pan, Dingyu Wang and Chao Jin
Sustainability 2025, 17(22), 10247; https://doi.org/10.3390/su172210247 - 16 Nov 2025
Viewed by 666
Abstract
China’s loess deposits exhibit high vulnerability to deformation under precipitation and snowmelt, posing significant risks to infrastructure. This study utilized enzyme-induced carbonate precipitation (EICP) to enhance the mechanical properties of Yili loess. Comparative analyses of untreated and EICP-treated samples were conducted using unconfined [...] Read more.
China’s loess deposits exhibit high vulnerability to deformation under precipitation and snowmelt, posing significant risks to infrastructure. This study utilized enzyme-induced carbonate precipitation (EICP) to enhance the mechanical properties of Yili loess. Comparative analyses of untreated and EICP-treated samples were conducted using unconfined compression strength (UCS) tests, unconsolidated–undrained (UU) triaxial shear tests, and scanning electron microscopy (SEM). Results demonstrated that urease activity increased markedly between 25–65 °C, while calcium carbonate production peaked at 55 °C before declining. EICP treatment elevated UCS by 52% relative to untreated soil and altered the failure mechanisms: untreated specimens failed through penetrating shear cracks, whereas treated specimens exhibited compressive failure with vertical fissures. Triaxial tests confirmed enhanced properties in EICP-stabilized loess, showing 8.3–10.7% higher failure strength and 15.7% greater cohesion (increasing from 31.3 kPa to 36.2 kPa), while the internal friction angle remained largely unchanged. Microstructural analysis revealed that EICP generated continuous cementitious layers and crystal bridges of vaterite, transforming particle contacts from point-to-point to surface-to-surface interfaces. Simultaneously, crystal precipitation reduced pore sizes and increased tortuosity. These micro-scale modifications improved interparticle friction constraints and stress transfer efficiency, thereby enhancing the macroscopic mechanical performance. The findings validate EICP’s efficacy for stabilizing collapsible loess deposits and provide insights for geohazard mitigation in similar engineering contexts. Full article
Show Figures

Figure 1

22 pages, 4600 KB  
Review
Progress in Self-Repair Technology for Concrete Cracks via Biomineralization
by Meirong Zong, Wenhao Wang, Haozhe Ma, Nshuti Cedrick, Yuting Sun, Xiancui Yan, Hui Liu, Pinghua Zhu and Minqi Hua
Materials 2025, 18(21), 5004; https://doi.org/10.3390/ma18215004 - 1 Nov 2025
Viewed by 1450
Abstract
Biomineralized self-healing concrete is a type of concrete that, during its service life, induces the generation of calcium carbonate through the participation of microorganisms or active enzymes, thereby achieving self-repair of cracks at different times. Self-healing concrete based on biomineralization can achieve sustainable [...] Read more.
Biomineralized self-healing concrete is a type of concrete that, during its service life, induces the generation of calcium carbonate through the participation of microorganisms or active enzymes, thereby achieving self-repair of cracks at different times. Self-healing concrete based on biomineralization can achieve sustainable crack repair and could enhance the strength and extend the service life of buildings. This article comprehensively analyzes the latest progress in bio-self-healing concrete, including microbial-based self-healing, enzyme-induced calcium carbonate precipitation (EICP), microcapsule-loaded microbial in situ remediation, and bio-inorganic mineral synergist self-healing technology. The maximum repairable width of the crack is 2.0 mm, and concrete strength can be increased by 135%. These methods offer new insights and strategies for the repair of concrete cracks, providing fundamental knowledge for the later application of intelligent engineering of bio-self-healing concrete and the analysis of micro-interface mechanisms. At the same time, they clarify the practical possibility of microbial technology in building materials science and engineering and offer key theoretical support for the long-term development of China’s construction industry. Full article
(This article belongs to the Topic Advances in Biomaterials—2nd Edition)
Show Figures

Figure 1

17 pages, 3162 KB  
Article
Experimental Study on Mechanical and Structural Properties of Enzyme-Induced Carbonate Precipitation Solidified Soil Under Freeze–Thaw Cycles
by Fan Yu and Weiquan Zhao
Appl. Sci. 2025, 15(18), 10226; https://doi.org/10.3390/app151810226 - 19 Sep 2025
Cited by 1 | Viewed by 938
Abstract
Enzyme-induced carbonate precipitation (EICP), an environmentally friendly geotechnical reinforcement method, is commonly adopted in water conservancy infrastructure, like reservoir bank slopes. Currently, limited studies have been performed on the mechanical and structural properties of EICP-solidified soil (ES) under freeze–thaw (F-T) cycles. In this [...] Read more.
Enzyme-induced carbonate precipitation (EICP), an environmentally friendly geotechnical reinforcement method, is commonly adopted in water conservancy infrastructure, like reservoir bank slopes. Currently, limited studies have been performed on the mechanical and structural properties of EICP-solidified soil (ES) under freeze–thaw (F-T) cycles. In this study, a series of unconfined compressive strength (UCS) tests were performed to investigate the strength degradation characteristics and failure modes of ES and untreated soil (US) under a various number of F-T cycles. The “freeze–thaw structural parameter Mσ” and “initial freeze–thaw structural parameter Mp” were established to study the structural evolution laws of ES with strain and number of F-T cycles. Finally, the effect of F-T cycles on the microscopic pore structure of soil was investigated. The results indicated that the ES exhibited good strength retention capabilities subjected to F-T cycles. After one F-T cycle, the strength loss rate of the US was as high as 69.33%, while that of the ES was only 64.69% after 15 F-T cycles. The “freeze–thaw structural parameter Mσ” and the “initial freeze–thaw structural parameter Mp” presented the enhancement degree of structural strength and stabilization of ES under F-T cycles. The Mσ with strain could be divided into three stages. The nonlinear fitting results regarding the Mp showed a negative logarithmic relationship with the number of F-T cycles. With various F-T cycles, the pore area ratio of ES increased by an average of 0.603%, lower than that of US, 1.19%. After 10 to 15 F-T cycles, the Feret diameter reduction in ES was only 0.015 μm, which was 7% of the US, verifying the macroscopic test results. In the design of the reservoir slope, Mp and Mσ can be used to evaluate the deterioration of mechanical and structural properties after freeze–thaw disturbance, and to predict the stress and deformation response. Full article
Show Figures

Figure 1

21 pages, 14313 KB  
Article
Experimental Study and Practical Application of Existing Crack Repair in Concrete Dam Tunnels Using MICP and EICP
by Xu Zhang, Yu Zhang, Huiheng Luo, Bo Peng, Yongzhi Zhang, Jiahui Yao and Mateusz Jan Jedrzejko
Buildings 2025, 15(18), 3275; https://doi.org/10.3390/buildings15183275 - 10 Sep 2025
Viewed by 1223
Abstract
Cracks in concrete dam tunnels compromise structural safety, watertightness, and durability, while conventional repair materials such as epoxy and cement impose environmental burdens. This study investigates biomineralization methods, namely Microbially Induced Calcium Carbonate Precipitation (MICP) and Enzyme-Induced Carbonate Precipitation (EICP), for repairing fine [...] Read more.
Cracks in concrete dam tunnels compromise structural safety, watertightness, and durability, while conventional repair materials such as epoxy and cement impose environmental burdens. This study investigates biomineralization methods, namely Microbially Induced Calcium Carbonate Precipitation (MICP) and Enzyme-Induced Carbonate Precipitation (EICP), for repairing fine cracks in a large hydropower dam tunnel. Laboratory tests and field applications were conducted by injecting urea–calcium solutions with Sporosarcina pasteurii for MICP and soybean-derived urease for EICP, applied twice daily over three days. Both techniques achieved effective sealing, with precipitation efficiencies of 93.75% for MICP and 84.17% for EICP. XRD analysis revealed that MICP produced a mixture of vaterite and calcite, reflecting biologically influenced crystallization, whereas EICP yielded predominantly calcite, the thermodynamically stable phase. SEM confirmed that MICP generated irregular layered clusters shaped by microbial activity, while EICP formed smoother spherical and more uniform deposits under enzyme-driven conditions. The results demonstrate that MICP provides higher efficiency and localized nucleation control, while EICP offers faster kinetics and more uniform deposition. Both methods present eco-friendly and field-applicable alternatives to conventional repair, combining technical performance with environmental sustainability for hydraulic infrastructure maintenance. Full article
Show Figures

Figure 1

23 pages, 13382 KB  
Article
Effects of Ion-Regulated Mechanisms on Calcite Precipitation in the Enzyme-Induced Carbonate Precipitation Treatment of Loess
by Xinwen Wang, Wenle Hu, Ke Chen and Weijing Wang
Buildings 2025, 15(17), 3222; https://doi.org/10.3390/buildings15173222 - 7 Sep 2025
Viewed by 1050
Abstract
This study examines the effects and mechanisms of different Enzyme-Induced Carbonate Precipitation (EICP) treatments on loess structure improvement. The study focuses on ordinary EICP and three modified methods using MgCl2, NH4Cl, and CaCl2. A series of unconfined [...] Read more.
This study examines the effects and mechanisms of different Enzyme-Induced Carbonate Precipitation (EICP) treatments on loess structure improvement. The study focuses on ordinary EICP and three modified methods using MgCl2, NH4Cl, and CaCl2. A series of unconfined compressive strength (UCS) tests, scanning electron microscopy (SEM), energy-dispersive spectroscopy (EDS), and elemental mapping were used to assess both macroscopic performance and microscopic characteristics. The results indicate that ordinary EICP significantly enhances loess particle bonding by promoting calcite precipitation. MgCl2-modified EICP achieves the highest UCS (820 kPa) due to delayed urea hydrolysis and the formation of aragonite alongside calcite, which results in stronger and more continuous cementation. In contrast, NH4Cl reduces urease activity and reverses the reaction, which limits carbonate precipitation and weakens structural cohesion. Excessive CaCl2 leads to a “hijacking mechanism” where hydroxide ions form Ca(OH)2, restricting carbonate formation and diminishing the overall enhancement. This study highlights the mechanisms behind enhancement, degradation, and diversion in the EICP process. It also provides theoretical support for optimizing loess subgrade reinforcement. However, challenges such as uneven permeability, environmental variability, and long-term durability must be addressed before field-scale applications can be realized, necessitating further research. Full article
(This article belongs to the Section Building Materials, and Repair & Renovation)
Show Figures

Figure 1

26 pages, 5844 KB  
Article
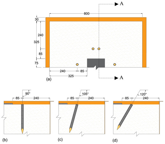
A Sustainable Hybrid Approach to Improve Footing Bearing Capacity Using EICP and Inclined Micropiles
by Abdullah Almajed, Esmatullah Kotwal, Yousef Al-Salloum and Husain Abbas
Buildings 2025, 15(16), 2915; https://doi.org/10.3390/buildings15162915 - 18 Aug 2025
Viewed by 1149
Abstract
This study investigates an innovative and sustainable hybrid approach combining enzyme-induced carbonate precipitation (EICP) with inclined micropile reinforcement systems for improving the soil bearing capacity of existing footings. The research evaluated two distinct EICP implementation methods across eleven experimental configurations, including three micropile [...] Read more.
This study investigates an innovative and sustainable hybrid approach combining enzyme-induced carbonate precipitation (EICP) with inclined micropile reinforcement systems for improving the soil bearing capacity of existing footings. The research evaluated two distinct EICP implementation methods across eleven experimental configurations, including three micropile inclination angles (90°, 105°, and 120°) for improving the bearing capacity of a square footing. The first method (method M1) involved injecting 150 mL of EICP solution through each of the eight perforated micropiles with a 21-day curing period, while the second method (method M2) employed staged injections around the footing totaling 1200 mL over two days with a 21–22-day curing period. Results demonstrated that the micropile-confined system combined with the EICP treatment significantly enhanced bearing capacity, with effectiveness increasing proportionally to pile inclination angles. While the EICP injection method M1 caused a 32% to 83% increase, method M2 exhibited 66% to 125% enhancement in bearing capacity for different micropile inclinations. Based on experimental validation, an analytical procedure was developed for predicting the bearing capacity of footings. This hybrid technique not only ensures structural effectiveness but also represents a sustainable, eco-friendly alternative to conventional ground improvement methods by reducing reliance on energy-intensive or chemically hazardous processes. Full article
(This article belongs to the Section Building Structures)
Show Figures

Figure 1

20 pages, 4701 KB  
Article
Effect of Rubber Particle Size and Content on the Mechanical Properties of Rubber–Clay Mixtures Solidified by EICP
by Qiang Ma, Meng Li, Chen Zeng, Hang Shu, Lei Xi, Yue Tao and Xuesong Lu
Materials 2025, 18(15), 3429; https://doi.org/10.3390/ma18153429 - 22 Jul 2025
Cited by 1 | Viewed by 860
Abstract
Using the enzyme-induced carbonate precipitation (EICP) technique to solidify rubber and clay mixtures as lightweight backfill is a feasible way to reduce waste tire impacts and boost rubber recycling in geotech engineering. In this study, a comprehensive laboratory investigation, including triaxial compression, oedometer, [...] Read more.
Using the enzyme-induced carbonate precipitation (EICP) technique to solidify rubber and clay mixtures as lightweight backfill is a feasible way to reduce waste tire impacts and boost rubber recycling in geotech engineering. In this study, a comprehensive laboratory investigation, including triaxial compression, oedometer, permeability, and nuclear magnetic resonance (NMR) tests, was conducted on EICP-reinforced rubber particle solidified clay (hereafter referred to as EICP-RC solidified clay) to evaluate the effects of rubber particle content and size on the mechanical behavior of the improved soil under various solidification conditions and to elucidate the solidification mechanism. The results show that although rubber particles inhibit EICP, they significantly enhance the mechanical properties of the samples. The addition of 5% rubber particles (rubber A) increased cohesion by 11% and the internal friction angle by 18% compared to EICP-treated clay without rubber. Additionally, incorporating smaller-sized tire particles facilitated pore filling, resulting in lower compression and swelling indices and reduced permeability coefficients, making these materials suitable for use behind retaining walls and in embankment construction. Full article
(This article belongs to the Section Construction and Building Materials)
Show Figures

Figure 1

24 pages, 5219 KB  
Article
Experimental Study on Mechanical Integrity of Cement and EICP-Solidified Soil for Scour Protection of Pile Foundations
by Feng Cao, Qilin Zhang, Wei Qin, Haoran Ouyang, Zhiyue Li, Yutao Peng and Guoliang Dai
J. Mar. Sci. Eng. 2025, 13(7), 1323; https://doi.org/10.3390/jmse13071323 - 10 Jul 2025
Viewed by 725
Abstract
Among the scour protection measures for pile foundations, the use of solidified mud has demonstrated effective protection against scour. However, research on the mechanical integrity of this protective measure is relatively scarce. Therefore, a series of experiments were performed on cement-solidified soil and [...] Read more.
Among the scour protection measures for pile foundations, the use of solidified mud has demonstrated effective protection against scour. However, research on the mechanical integrity of this protective measure is relatively scarce. Therefore, a series of experiments were performed on cement-solidified soil and Enzyme-Induced Carbonate Precipitation (ECIP) solidified soil to analyze fluidity, disintegration, and unconfined compressive strength, along with an analysis of influencing parameters. Test results show the following: for cement-solidified soil, fluidity decreases with higher cement content, while its disintegration rate decreases with more cement and its unconfined compressive strength increases with a longer curing time and higher cement content. For ECIP-solidified soil, fluidity decreases with higher soy powder concentration but increases with higher binder solution concentration. ECIP’s initial disintegration rate increases with binder concentration, but after 7 days curing, its disintegration rate decreases with both higher binder concentration and higher soy powder concentration. ECIP’s strength increases with higher soy powder concentration. Crucially, both types of solidified soil exhibit decreased unconfined compressive strength with higher initial water content. The research results can provide a reference for the construction of solidified soil in the field of scour protection. Full article
(This article belongs to the Section Ocean Engineering)
Show Figures

Figure 1

18 pages, 5357 KB  
Article
Bio-Gel Formation Through Enzyme-Induced Carbonate Precipitation for Dust Control in Yellow River Silt
by Jingwei Zhang, Hualing Jia, Jia Li, Xuanyu Chen, Lei Wang, Shilong Wang and Lin Liu
Gels 2025, 11(6), 452; https://doi.org/10.3390/gels11060452 - 12 Jun 2025
Viewed by 1344
Abstract
This study explored the enzymatic formation of gel-like polymeric matrices through carbonate precipitation for dust suppression in Yellow River silt. The hydrogel-modified EICP method effectively enhanced the compressive strength and resistance to wind–rain erosion by forming a reinforced bio-cemented crust. The optimal cementation [...] Read more.
This study explored the enzymatic formation of gel-like polymeric matrices through carbonate precipitation for dust suppression in Yellow River silt. The hydrogel-modified EICP method effectively enhanced the compressive strength and resistance to wind–rain erosion by forming a reinforced bio-cemented crust. The optimal cementation solution, consisting of urea and CaCl2 at equimolar concentrations of 1.25 mol/L, was applied to improve CaCO3 precipitation uniformity. A spraying volume of 4 L/m2 (first urea-CaCl2 solution, followed by urease solution) yielded a 14.9 mm thick hybrid gel-CaCO3 crust with compressive strength exceeding 752 kPa. SEM analysis confirmed the synergistic interaction between CaCO3 crystals and the gel matrix, where the hydrogel network acted as a nucleation template, enhancing crystal bridging and pore-filling efficiency. XRD analysis further supported the formation of a stable gel-CaCO3 composite structure, which exhibited superior resistance to wind–rain erosion and mechanical wear. These findings suggest that gel-enhanced EICP represents a novel bio-gel composite technology for sustainable dust mitigation in silt soils. Full article
(This article belongs to the Special Issue Synthesis, Properties, and Applications of Novel Polymer-Based Gels)
Show Figures

Figure 1

14 pages, 3282 KB  
Article
Study on the Effect of EICP Combined with Nano-SiO2 and Soil Stabilizer on Improving Loess Surface Strength
by Xueyan Wang, Bo Wang, Yili Yuan, Tao Yang, Guojie Dong and Chen Shi
Buildings 2025, 15(12), 1998; https://doi.org/10.3390/buildings15121998 - 10 Jun 2025
Cited by 6 | Viewed by 820
Abstract
Loess, predominantly distributed in arid and semi-arid regions of central and western China, exhibits low shear strength and structural instability, rendering it prone to geological hazards such as landslides and collapses, which pose significant threats to local infrastructure and safety. This study evaluated [...] Read more.
Loess, predominantly distributed in arid and semi-arid regions of central and western China, exhibits low shear strength and structural instability, rendering it prone to geological hazards such as landslides and collapses, which pose significant threats to local infrastructure and safety. This study evaluated the urease activity of soybean and sword bean at different temperatures to screen the optimal enzyme source for enzyme-induced carbonate precipitation (EICP). Methods including single EICP, EICP combined with nano-SiO2, and EICP combined with both nano-SiO2 and soil stabilizer (SS) were adopted to enhance the surface strength of loess. The results showed that the EICP technique significantly improved the surface strength of loess, especially with the addition of nano-SiO2 and soil stabilizer. This study confirmed that using sword bean urease treated at −20 °C for 24 h in combination with 1.5% nano-SiO2 was both cost-effective and efficient in reinforcement. The incorporation of 5% soil stabilizer further enhanced the surface strength, and the accuracy was further verified by combining the results of SEM and XRD. Future research will focus on optimizing the material ratio to maximize the improvement of surface strength, providing an economical and feasible solution for rapid loess solidification, and evaluating the long-term durability under cyclic wet and dry conditions. Full article
(This article belongs to the Section Building Materials, and Repair & Renovation)
Show Figures

Figure 1

17 pages, 8131 KB  
Article
Evaluating the Efficacy of Enzyme-Induced Carbonate Precipitation (EICP) for Aeolian Sand Fixation
by Lina Xiao, Jiaming Zhang, Yi Luo, Xinlong Wang, Xiaojian Qi, Zhongyi Hu, Javid Hussain and Guosheng Jiang
Buildings 2025, 15(12), 1984; https://doi.org/10.3390/buildings15121984 - 9 Jun 2025
Viewed by 2089
Abstract
Enzyme-Induced Calcium Carbonate Precipitation (EICP) shows promise for desertification control. This study investigates the effects of solid-to-liquid ratio, calcium sources, Ca2+ concentration, temperature, enzyme-to-liquid ratio (ELR), and pH on the activity of soybean crude urease (SCU). Furthermore, the impact of EICP treatment [...] Read more.
Enzyme-Induced Calcium Carbonate Precipitation (EICP) shows promise for desertification control. This study investigates the effects of solid-to-liquid ratio, calcium sources, Ca2+ concentration, temperature, enzyme-to-liquid ratio (ELR), and pH on the activity of soybean crude urease (SCU). Furthermore, the impact of EICP treatment cycles on the mechanical properties, compressive behavior, and wind erosion resistance of aeolian sand (AS) was systematically evaluated, with microstructural evolution and pore characteristics of cemented specimens analyzed through SEM and X-CT. Key findings reveal that SCU activity and the calcium carbonate precipitation rate (PR) reached optimal levels (80~99%) under conditions of a 1:10 solid-to-liquid ratio, 1.0~1.5 M CaCl2 concentration, 35~70 °C temperature range, and pH 7. After seven EICP treatments, AS specimens exhibited complete cementation with an unconfined compressive strength (UCS) of 580 kPa and a reduced wind erosion rate of 0.151 g/min, effectively mitigating desertification. SEM and X-CT analyses confirmed significant pore infilling and bridging between particles, accompanied by a reduction in pore quantity and permeability coefficient by over two orders of magnitude. EICP demonstrates notable advantages in enhancing mechanical performance, environmental compatibility, and cost efficiency, positioning cemented AS as a viable construction material while offering insights for sand stabilization engineering. These findings provide essential technical support for material innovation, wind and sand disaster prevention, and the sustainable construction of desert highway bases and subbases. Full article
(This article belongs to the Section Building Materials, and Repair & Renovation)
Show Figures

Figure 1

19 pages, 9292 KB  
Article
Research on the Anti-Erosion Capacity of Aeolian Sand Solidified with Enzyme Mineralization and Fiber Reinforcement Under Ultraviolet Erosion and Freeze–Thaw Erosion
by Jia Liu, Qinchen Zhu, Gang Li, Jing Qu and Jinli Zhang
Sustainability 2025, 17(11), 5053; https://doi.org/10.3390/su17115053 - 30 May 2025
Cited by 1 | Viewed by 1075
Abstract
Aeolian sand is susceptible to wind and water erosion, which seriously restricts the ecological restoration and sustainable development in desert areas. Traditional solidification methods have characteristics of high cost, easy pollution, and unstable solidification. Enzyme-induced calcium carbonate precipitation (EICP) is an emerging method [...] Read more.
Aeolian sand is susceptible to wind and water erosion, which seriously restricts the ecological restoration and sustainable development in desert areas. Traditional solidification methods have characteristics of high cost, easy pollution, and unstable solidification. Enzyme-induced calcium carbonate precipitation (EICP) is an emerging method that has advantages in terms of cost-effectiveness, environmental friendliness, and durability, and, especially when coupled with fiber reinforcement (FR), it can significantly prevent brittle fracture. In this paper, ultraviolet (UV) erosion and freeze–thaw (FT) erosion tests were conducted to investigate the anti-erosion capacity of aeolian sand solidified by EICP and basalt fiber reinforcement (BFR) or wool fiber reinforcement (WFR). According to the analysis of the variation laws of sample appearance, quality losses, and unconfined compressive strength (UCS) during the UV and FT erosion process, the erosion mechanism was revealed, and the UCS models considering the damage effects were established. The research results indicated that the UCS of aeolian sand solidified by MICP and FR was significantly improved under UV and FT erosion. The strength loss rates of aeolian sand solidified by EICP, EICP–BFR, and EICP–WFR reached 45.4%, 46.6%, and 51.6%, respectively, under 90 h UV erosion. When the FT cycles reached 8, the strength loss rate of aeolian sand solidified by EICP, EICP–BFR, and EICP–WFR attained 41.0%, 49.2%, and 55.8%, respectively. The determination coefficients of the UCS models were all greater than 0.876, indicating that the experimental results were in good agreement with the predicted results, verifying the reliability of the established models. The research results can offer reference values for windproof and sand fixation in desert areas. Full article
Show Figures

Figure 1

Back to TopTop