Consideration of the Door Opening Process in Pedestrian Flow: Experiments on Door Opening Direction, Door Handle Type, and Limited Visibility
Abstract
1. Introduction
2. Method and Procedure
2.1. Experimental Setup
- (1)
- Participants who agreed to participate in the experiment recorded personal information and were photographed for identification.
- (2)
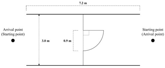
- With the door open, participants’ normal walking speed was measured and recorded. Participants measured their speed individually. In addition, participants walked from the starting point to the arrival point, and the speed was calculated on the basis of the distance moved in the experimental set (7.2 m; mean normal walking speed: 1.21 m/s, SD = 0.22 m/s). Participants’ movement time was measured from the time the front foot entered the measurement area to the moment the back foot exited the measurement area.
- (3)
- Each participant departed from the starting point, passed through the door, and walked to the arrival point, as shown in Figure 3. Staff members were stationed to ensure participant safety in cases in which non-transparent eyepatches were used (Cases 4-1 to 6).
- (4)
- Experiments were conducted for 1 participant at a time, and each case included 10 participants.
2.2. Data Analysis
3. Results
3.1. Movement Times and Walking Speeds According to the Experimental Case
3.2. Analysis of Differences in Movement Times between Cases with and without the DOP
3.3. Analysis of Differences in Movement Times According to the Presence or Absence of Limited Visibility
3.4. Analysis of Differences in Movement Times According to the Door Opening Direction
3.5. Analysis of Differences in Movement Times According to the Handle Type
4. Discussion
5. Conclusions
- (1)
- There was a statistically significant difference between movement times with and without the DOP. Based on this finding, it is appropriate to include the DOP in the calculation of pedestrians’ movement times.
- (2)
- When visibility was limited, movement times with DOP inclusion increased significantly regardless of the door opening direction and handle type.
- (3)
- When the door opening direction was ‘push’, regardless of limited visibility and door handle type, movement times with DOP inclusion were significantly lower.
- (4)
- The handle type did not show a significant difference in movement times with DOP inclusion.
- (5)
- Based on the experimental results, the DOP delay time was calculated as follows: push 1.96–2.88 s and pull 3.91–4.43 s/(visibility is limited) push 7.38–12.56 s and pull 12.88–16.35 s.
Author Contributions
Funding
Conflicts of Interest
References
- Gwynne, S.; Galea, E.R.; Owen, M.; Lawrence, P.J.; Filippidis, L. A review of the methodologies used in the computer simulation of evacuation from the built environment. Build. Environ. 1999, 34, 741–749. [Google Scholar] [CrossRef]
- Helbing, D.; Johansson, A. Pedestrian, Crowd, and Evacuation Dynamics. Encycl. Complex. Syst. Sci. 2013, 16, 6476–6495. [Google Scholar] [CrossRef]
- Nicolas, A.; Bouzat, S.; Kuperman, M.N. Pedestrian flows through a narrow doorway: Effect of individual behaviours on the global flow and microscopic dynamics. Transp. Res. Part B Methodol. 2017, 99, 30–43. [Google Scholar] [CrossRef]
- Yanagisawa, D.; Kimura, A.; Tomoeda, A.; Nishi, R.; Suma, Y.; Ohtsuka, K.; Nishinari, K. Introduction of frictional and turning function for pedestrian outflow with an obstacle. Phys. Rev. E Stat. Nonlinear Soft Matter Phys. 2009, 80, 36110. [Google Scholar] [CrossRef] [PubMed]
- Huo, F.; Song, W.; Chen, L.; Liu, C.; Liew, K.M. Experimental study on characteristics of pedestrian evacuation on stairs in a high-rise building. Saf. Sci. 2016, 86, 165–173. [Google Scholar] [CrossRef]
- Lovreglio, R.; Ronchi, E.; Nilsson, D. A model of the decision-making process during pre-evacuation. Fire Saf. J. 2015, 78, 168–179. [Google Scholar] [CrossRef]
- Wang, S.; Yue, H.; Zhang, B.; Li, J. Setting the Width of Emergency Exit in Pedestrian Walking Facilities. Procedia Soc. Behav. Sci. 2014, 138, 233–240. [Google Scholar] [CrossRef]
- Tian, W.; Song, W.; Ma, J.; Fang, Z.; Seyfried, A.; Liddle, J. Experimental study of pedestrian behaviors in a corridor based on digital image processing. Fire Saf. J. 2012, 47, 8–15. [Google Scholar] [CrossRef]
- Song, X.; Ma, L.; Ma, Y.; Yang, C.; Ji, H. Selfishness- and Selflessness-based models of pedestrian room evacuation. Phys. A Stat. Mech. Appl. 2016, 447, 455–466. [Google Scholar] [CrossRef]
- Isobe, M.; Helbing, D.; Nagatani, T. Experiment, theory, and simulation of the evacuation of a room without visibility. Phys. Rev. E Stat. Nonlinear Soft Matter Phys. 2004, 69, 1–10. [Google Scholar] [CrossRef]
- Jeon, G.Y.; Hong, W.H. An experimental study on how phosphorescent guidance equipment influences on evacuation in impaired visibility. J. Loss Prev. Process. Ind. 2009, 22, 934–942. [Google Scholar] [CrossRef]
- Kobes, M.; Helsloot, I.; de Vries, B.; Post, J.G.; Oberijé, N.; Groenewegen, K. Way finding during fire evacuation; an analysis of unannounced fire drills in a hotel at night. Build. Environ. 2010, 45, 537–548. [Google Scholar] [CrossRef]
- Fridolf, K.; Andrée, K.; Nilsson, D.; Frantzich, H. The impact of smoke on walking speed. Fire Mater. 2014, 38, 744–759. [Google Scholar] [CrossRef]
- Zhang, G.; Zhu, G.; Yuan, G.; Wang, Y. Quantitative risk assessment methods of evacuation safety for collapse of large steel structure gymnasium caused by localized fire. Saf. Sci. 2016, 87, 234–242. [Google Scholar] [CrossRef]
- Helbing, D.; Buzna, L.; Johansson, A.; Werner, T. Self-organized pedestrian crowd dynamics: Experiments, simulations, and design solutions. Transp. Sci. 2005, 39, 1–24. [Google Scholar] [CrossRef]
- Pauls, J. Calculating evacuation times for tall buildings. Fire Saf. J. 1987, 12, 213–236. [Google Scholar] [CrossRef]
- Aleksandrov, M.; Cheng, C.; Rajabifard, A.; Kalantari, M. Modelling and finding optimal evacuation strategy for tall buildings. Saf. Sci. 2019, 115, 247–255. [Google Scholar] [CrossRef]
- Ronchi, E.; Arias, S.; La Mendola, S.; Johansson, N. A fire safety assessment approach for evacuation analysis in underground physics research facilities. Fire Saf. J. 2019, 108, 102839. [Google Scholar] [CrossRef]
- Qu, Y.; Gao, Z.; Xiao, Y.; Li, X. Modeling the pedestrian’s movement and simulating evacuation dynamics on stairs. Saf. Sci. 2014, 70, 189–201. [Google Scholar] [CrossRef]
- Sano, T.; Ronchi, E.; Minegishi, Y.; Nilsson, D. A pedestrian merging flow model for stair evacuation. Fire Saf. J. 2017, 89, 77–89. [Google Scholar] [CrossRef]
- Gwynne, S.M.V.; Kuligowski, E.D.; Kratchman, J.; Milke, J.A. Questioning the linear relationship between doorway width and achievable flow rate. Fire Saf. J. 2009, 44, 80–87. [Google Scholar] [CrossRef]
- Shiwakoti, N.; Gong, Y.; Shi, X.; Ye, Z. Examining influence of merging architectural features on pedestrian crowd movement. Saf. Sci. 2015, 75, 15–22. [Google Scholar] [CrossRef]
- Chen, S.; Fu, L.; Fang, J.; Yang, P. The effect of obstacle layouts on pedestrian flow in corridors: An experimental study. Phys. A Stat. Mech. Appl. 2019, 534, 122333. [Google Scholar] [CrossRef]
- Bae, Y.-H.; Kim, Y.-C.; Oh, R.-S.; Son, J.-Y.; Hong, W.-H.; Choi, J.-H. Walking speed reduction rates at intersections while wayfinding indoors: An experimental study. Fire Mater. 2020. [Google Scholar] [CrossRef]
- Nagai, R.; Fukamachi, M.; Nagatani, T. Evacuation of crawlers and walkers from corridor through an exit. Phys. A Stat. Mech. Appl. 2006, 367, 449–460. [Google Scholar] [CrossRef]
- Daamen, W.; Hoogendoorn, S. Capacity of doors during evacuation conditions. Procedia Eng. 2010, 3, 53–66. [Google Scholar] [CrossRef]
- Liao, W.; Tordeux, A.; Seyfried, A.; Chraibi, M.; Drzycimski, K.; Zheng, X.; Zhao, Y. Measuring the steady state of pedestrian flow in bottleneck experiments. Phys. A Stat. Mech. Appl. 2016, 461, 248–261. [Google Scholar] [CrossRef]
- Tavares, R.M. Design for horizontal escape in buildings: The use of the relative distance between exits as an alternative approach to the maximum travel distance. Saf. Sci. 2010, 48, 1242–1247. [Google Scholar] [CrossRef]
- Zhao, D.L.; Li, J.; Zhu, Y.; Zou, L. The application of a two-dimensional cellular automata random model to the performance-based design of building exit. Build. Environ. 2008, 43, 518–522. [Google Scholar] [CrossRef]
- Khamis, N.; Selamat, H.; Ismail, F.S.; Lutfy, O.F.; Haniff, M.F.; Nordin, I.N.A.M. Optimized exit door locations for a safer emergency evacuation using crowd evacuation model and artificial bee colony optimization. Chaos Solitons Fractals 2020, 131, 109505. [Google Scholar] [CrossRef]
- McDermott, H.; Haslam, R.; Gibb, A. Occupant interactions with self-closing fire doors in private dwellings. Saf. Sci. 2010, 48, 1345–1350. [Google Scholar] [CrossRef][Green Version]
- Hopkin, C.; Spearpoint, M.; Wang, Y. Internal door closing habits in domestic premises: Results of a survey and the potential implications on fire safety. Saf. Sci. 2019, 120, 44–56. [Google Scholar] [CrossRef]
- Fruin, J.J. Service Pedestrian Planning and Design; Metropolitan Association of Urban Designers and Environmental Planners: New York, NY, USA, 1971. [Google Scholar]
- Paschoarelli, L.C.; Santos, R.; Bruno, P. Influence of door handles design in effort perception: Accessibility and usability. Work 2012, 41, 4825–4829. [Google Scholar] [CrossRef] [PubMed]
- Paschoarelli, L.C.; Santos, R. Usability Evaluation of Different Door Handles; CRC Press: Boca Raton, FL, USA, 2010; pp. 291–299. [Google Scholar]
- Boyce, K.; McConnell, N.; Shields, J. Evacuation response behaviour in unannounced evacuation of licensed premises. Fire Mater. 2017, 41, 454–466. [Google Scholar] [CrossRef]
- Shen, Y.; Wang, Q.S.; Yan, W.G.; Sun, J.H.; Zhu, K. Evacuation Processes of Different Genders in Different Visibility Conditions—An Experimental Study, Proceedings of the Procedia Engineering; Elsevier Ltd.: Amsterdam, The Netherlands, 2014; Volume 71, pp. 65–74. [Google Scholar]
- Seike, M.; Kawabata, N.; Hasegawa, M. Experiments of evacuation speed in smoke-filled tunnel. Tunn. Undergr. Space Technol. 2016, 53, 61–67. [Google Scholar] [CrossRef]
- Xie, W.; Lee, E.W.M.; Cheng, Y.; Shi, M.; Cao, R.; Zhang, Y. Evacuation performance of individuals and social groups under different visibility conditions: Experiments and surveys. Int. J. Disaster Risk Reduct. 2020, 47, 101527. [Google Scholar] [CrossRef]
- Helbing, D.; Farkas, I.; Vicsek, T. Simulating dynamical features of escape panic. Nature 2000, 407, 487–490. [Google Scholar] [CrossRef]
- Lee, R.S.C.; Hughes, R.L. Prediction of human crowd pressures. Accid. Anal. Prev. 2006, 38, 712–722. [Google Scholar] [CrossRef]
- Seyfried, A.; Steffen, B.; Klingsch, W.; Lippert, T.; Boltes, M. The Fundamental Diagram of Pedestrian Movement Revisited—Empirical Results and Modelling, Proceedings of the Traffic and Granular Flow’05; Schadschneider, A., Pöschel, T., Kühne, R., Schreckenberg, M., Wolf, D.E., Eds.; Springer: Berlin/Heidelberg, Germany, 2007; pp. 305–314. [Google Scholar]
- Kretz, T.; Grünebohm, A.; Schreckenberg, M. Experimental study of pedestrian flow through a bottleneck. J. Stat. Mech. Theory Exp. 2006. [Google Scholar] [CrossRef]
- Graat, E.; Midden, C.; Bockholts, P. Complex evacuation; effects of motivation level and slope of stairs on emergency egress time in a sports stadium. Saf. Sci. 1999, 31, 127–141. [Google Scholar] [CrossRef]
- Fu, L.; Cao, S.; Shi, Y.; Chen, S.; Yang, P.; Fang, J. Walking behavior of pedestrian social groups on stairs: A field study. Saf. Sci. 2019, 117, 447–457. [Google Scholar] [CrossRef]
- Haghani, M.; Sarvi, M.; Shahhoseini, Z. Evacuation behaviour of crowds under high and low levels of urgency: Experiments of reaction time, exit choice and exit-choice adaptation. Saf. Sci. 2020, 126, 104679. [Google Scholar] [CrossRef]






| Case No. | Visibility | Handle Type | Opening Direction |
|---|---|---|---|
| Case 1-1 | Normal | Knob | Push |
| Case 1-2 | Normal | Knob | Pull |
| Case 2-1 | Normal | Lever | Push |
| Case 2-2 | Normal | Lever | Pull |
| Case 3 | Normal | Panic Bar | Push |
| Case 4-1 | Limited | Knob | Push |
| Case 4-2 | Limited | Knob | Pull |
| Case 5-1 | Limited | Lever | Push |
| Case 5-2 | Limited | Lever | Pull |
| Case 6 | Limited | Panic Bar | Push |
| Case No. | Average Movement Time in DOP Section (s) | Average Movement Time in Whole Section (s) | Average Walking Speed in Whole Section (m/s) | Percentage of Increase in Movement Time with and without DOP |
|---|---|---|---|---|
| Case 1-1 | 1.70 | 9.00 | 0.80 | 47.1% |
| Case 1-2 | 2.97 | 10.55 | 0.68 | 72.4% |
| Case 2-1 | 1.35 | 8.08 | 0.89 | 32.0% |
| Case 2-2 | 2.92 | 10.03 | 0.72 | 63.9% |
| Case 3 | 1.18 | 8.68 | 0.83 | 41.8% |
| Case 4-1 | 2.53 | 16.05 | 0.45 | 162.3% |
| Case 4-2 | 5.68 | 22.47 | 0.32 | 267.2% |
| Case 5-1 | 2.13 | 13.50 | 0.53 | 120.6% |
| Case 5-2 | 5.15 | 19.00 | 0.38 | 210.5% |
| Case 6 | 2.50 | 18.68 | 0.39 | 205.1% |
| Case No | N | Range | Min. | Max. | Average Movement Time (s) | SD | Mann–Whitney U | p-Value (N = 110) |
|---|---|---|---|---|---|---|---|---|
| Normal walking | 100 | 4.00 | 4.00 | 8.00 | 6.12 | 0.10 | - | - |
| Case 1-1 | 10 | 3.75 | 6.75 | 10.50 | 9.00 | 1.27 | 30.00 | 0.000 * |
| Case 1-2 | 10 | 3.50 | 8.00 | 11.50 | 10.55 | 1.02 | 7.50 | 0.000 * |
| Case 2-1 | 10 | 3.00 | 6.50 | 9.50 | 8.08 | 1.06 | 75.00 | 0.000 * |
| Case 2-2 | 10 | 3.00 | 8.00 | 11.00 | 10.03 | 1.01 | 7.50 | 0.000 * |
| Case 3 | 10 | 4.25 | 6.50 | 10.75 | 8.68 | 1.75 | 6.00 | 0.000 * |
| Visibility | N | Range | Min. | Max. | Average Movement Time (s) | SD | Mann–Whitney U | p-Value (N = 20) |
|---|---|---|---|---|---|---|---|---|
| Case 1-1 (Normal) | 10 | 1.25 | 1.00 | 2.25 | 1.70 | 0.44 | 87.00 | 0.005 * |
| Case 4-1 (Limited) | 10 | 1.50 | 1.75 | 3.25 | 2.53 | 0.53 | ||
| Case 1-2 (Normal) | 10 | 1.50 | 2.25 | 3.75 | 2.98 | 0.61 | 99.50 | 0.000 * |
| Case 4-2 (Limited) | 10 | 3.50 | 3.75 | 7.25 | 5.68 | 1.05 | ||
| Case 2-1 (Normal) | 10 | 1.00 | 0.75 | 1.75 | 1.35 | 0.36 | 90.50 | 0.002 * |
| Case 5-1 (Limited) | 10 | 1.25 | 1.50 | 2.75 | 2.1250 | 0.44 | ||
| Case 2-2 (Normal) | 10 | 1.25 | 2.25 | 3.50 | 2.93 | 0.49 | 100.00 | 0.000 * |
| Case 5-2 (Limited) | 10 | 2.00 | 4.25 | 6.25 | 5.15 | 0.78 | ||
| Case 3 (Normal) | 10 | 2.25 | 0.25 | 2.50 | 1.18 | 0.74 | 92.50 | 0.000 * |
| Case 6 (Limited) | 10 | 2.00 | 1.75 | 3.75 | 2.50 | 0.65 |
| Opening Direction | N | Range | Min. | Max. | Average Movement Time (s) | SD | Mann–Whitney U | p-Value (N = 20) |
|---|---|---|---|---|---|---|---|---|
| Case 1-1 (Push, Knob) | 10 | 1.25 | 1.00 | 2.25 | 1.70 | 0.44 | 3.00 | 0.000 * |
| Case 1-2 (Pull, Knob) | 10 | 1.50 | 2.25 | 3.75 | 2.98 | 0.61 | ||
| Case 2-1 (Push, Lever) | 10 | 1.00 | 0.75 | 1.75 | 1.35 | 0.36 | 0.00 | 0.000 * |
| Case 2-2 (Pull, Lever) | 10 | 1.25 | 2.25 | 3.50 | 2.93 | 0.49 |
| Opening Direction | N | Range | Min. | Max. | Average Movement Time (s) | SD | Mann–Whitney U | p-Value (N = 20) |
|---|---|---|---|---|---|---|---|---|
| Case 4-1 (Push, Knob) | 10 | 1.50 | 1.75 | 3.25 | 2.53 | 0.53 | 0.00 | 0.000 * |
| Case 4-2 (Pull, Knob) | 10 | 3.50 | 3.75 | 7.25 | 5.68 | 1.05 | ||
| Case 4-1 (Push, Lever) | 10 | 1.25 | 1.50 | 2.75 | 2.13 | 0.44 | 0.00 | 0.000 * |
| Case 4-2 (Pull, Lever) | 10 | 2.00 | 4.25 | 6.25 | 5.15 | 0.78 |
| Handle Type | N | Range | Min | Max | Average Movement Time (s) | SD | Mean Rank | Chi-Square | p-Value (N = 30) |
|---|---|---|---|---|---|---|---|---|---|
| Case 1-1 (Knob, Push) | 10 | 1.25 | 1.00 | 2.25 | 1.70 | 0.44 | 20.10 | 4.446 | 0.108 |
| Case 2-1 (Lever, Push) | 10 | 1.00 | 0.75 | 1.75 | 1.35 | 0.36 | 14.15 | ||
| Case 3 (Panic Bar, Push) | 10 | 2.25 | 0.25 | 2.50 | 1.18 | 0.74 | 12.25 |
| Handle Type | N | Range | Min | Max | Average Movement Time (s) | SD | Mean Rank | Chi-Square | p-Value (N = 30) |
|---|---|---|---|---|---|---|---|---|---|
| Case 4-1 (Knob, Push) | 10 | 1.50 | 1.75 | 3.25 | 2.53 | 0.53 | 18.10 | 2.996 | 0.224 |
| Case 5-1 (Lever, Push) | 10 | 1.25 | 1.50 | 2.75 | 2.13 | 0.44 | 11.70 | ||
| Case 6 (Panic Bar, Push) | 10 | 2.00 | 1.75 | 3.75 | 2.50 | 0.65 | 16.70 |
| Handle Type | N | Range | Min. | Max. | Average Movement Time (s) | SD | Mann–Whitney U | p-Value (N = 20) |
|---|---|---|---|---|---|---|---|---|
| Case 1-2 (Knob, Pull) | 10 | 1.50 | 2.25 | 3.75 | 2.98 | 0.61 | 48.50 | 0.908 |
| Case 2-2 (Lever, Pull) | 10 | 1.25 | 2.25 | 3.50 | 2.93 | 0.49 |
| Handle Type | N | Range | Min. | Max. | Average Movement Time (s) | SD | Mann–Whitney U | p-Value (N = 20) |
|---|---|---|---|---|---|---|---|---|
| Case 4-2 (Knob, Pull) | 10 | 3.50 | 3.75 | 7.25 | 5.68 | 1.05 | 33.00 | 0.197 |
| Case 5-2 (Lever, Pull) | 10 | 2.00 | 4.25 | 6.25 | 5.15 | 0.78 |
| Category | Handle Type | Opening Direction | Visibility | DOP Delay Time (s) |
|---|---|---|---|---|
| Case 1-1 | Knob | Push | Normal | 2.88 |
| Case 1-2 | Knob | Pull | Normal | 4.43 |
| Case 2-1 | Lever | Push | Normal | 1.96 |
| Case 2-2 | Lever | Pull | Normal | 3.91 |
| Case 3 | Panic bar | Push | Normal | 2.56 |
| Case 4-1 | Knob | Push | Limited | 9.93 |
| Case 4-2 | Knob | Pull | Limited | 16.35 |
| Case 5-1 | Lever | Push | Limited | 7.38 |
| Case 5-2 | Lever | Pull | Limited | 12.88 |
| Case 6 | Panic bar | Push | Limited | 12.56 |
Publisher’s Note: MDPI stays neutral with regard to jurisdictional claims in published maps and institutional affiliations. |
© 2020 by the authors. Licensee MDPI, Basel, Switzerland. This article is an open access article distributed under the terms and conditions of the Creative Commons Attribution (CC BY) license (http://creativecommons.org/licenses/by/4.0/).
Share and Cite
Son, J.-Y.; Bae, Y.-H.; Kim, Y.-C.; Oh, R.-S.; Hong, W.-H.; Choi, J.-H. Consideration of the Door Opening Process in Pedestrian Flow: Experiments on Door Opening Direction, Door Handle Type, and Limited Visibility. Sustainability 2020, 12, 8453. https://doi.org/10.3390/su12208453
Son J-Y, Bae Y-H, Kim Y-C, Oh R-S, Hong W-H, Choi J-H. Consideration of the Door Opening Process in Pedestrian Flow: Experiments on Door Opening Direction, Door Handle Type, and Limited Visibility. Sustainability. 2020; 12(20):8453. https://doi.org/10.3390/su12208453
Chicago/Turabian StyleSon, Jong-Yeong, Young-Hoon Bae, Young-Chan Kim, Ryun-Seok Oh, Won-Hwa Hong, and Jun-Ho Choi. 2020. "Consideration of the Door Opening Process in Pedestrian Flow: Experiments on Door Opening Direction, Door Handle Type, and Limited Visibility" Sustainability 12, no. 20: 8453. https://doi.org/10.3390/su12208453
APA StyleSon, J.-Y., Bae, Y.-H., Kim, Y.-C., Oh, R.-S., Hong, W.-H., & Choi, J.-H. (2020). Consideration of the Door Opening Process in Pedestrian Flow: Experiments on Door Opening Direction, Door Handle Type, and Limited Visibility. Sustainability, 12(20), 8453. https://doi.org/10.3390/su12208453

