Sign in to use this feature.

Years

Between: -

Subjects

remove_circle_outline
remove_circle_outline
remove_circle_outline
remove_circle_outline
remove_circle_outline
remove_circle_outline
remove_circle_outline
remove_circle_outline

Journals

Article Types

Countries / Regions

Search Results (17)

Search Parameters:
Keywords = preliminary seismic risk assessment

Order results
Result details
Results per page
Select all
Export citation of selected articles as:
35 pages, 22348 KB  
Article
Performance Assessment of Portable SLAM-Based Systems for 3D Documentation of Historic Built Heritage
by Valentina Bonora and Martina Colapietro
Sensors 2026, 26(2), 657; https://doi.org/10.3390/s26020657 (registering DOI) - 18 Jan 2026
Abstract
The rapid and reliable geometric documentation of historic built heritage is a key requirement for a wide range of conservation, analysis, and risk assessment activities. In recent years, portable and wearable Simultaneous Localization and Mapping (SLAM)-based systems have emerged as efficient tools for [...] Read more.
The rapid and reliable geometric documentation of historic built heritage is a key requirement for a wide range of conservation, analysis, and risk assessment activities. In recent years, portable and wearable Simultaneous Localization and Mapping (SLAM)-based systems have emerged as efficient tools for fast 3D data acquisition, offering significant advantages in terms of operational speed, accessibility, and flexibility. This paper presents an experimental performance assessment of three portable SLAM-based mobile mapping systems applied to the 3D documentation of historic religious buildings. Two historic parish churches in the Lunigiana region (Italy) are used as case studies to evaluate the systems under real-world conditions. The analysis focuses on key performance indicators relevant to metric documentation, including georeferencing accuracy, 3D model accuracy, point cloud density and resolution, and model completeness. The results highlight the capabilities and limitations of the tested systems, showing that all instruments can efficiently capture the primary geometries of complex historic buildings, while differences emerge in terms of accuracy, data consistency, and readability of architectural details. Although the work is framed within a broader research project addressing seismic vulnerability of historic structures, this contribution specifically focuses on the experimental evaluation of SLAM-based surveying performance. The results demonstrate that portable SLAM systems provide reliable geometric datasets suitable for preliminary documentation tasks and for supporting further multidisciplinary analyses, representing a valuable resource for the rapid 3D documentation of historic built heritage. Full article
Show Figures

Figure 1

12 pages, 2344 KB  
Article
Revealing a Previously Unknown Fault Hidden by Urbanization: A Case Study from Villa d’Agri (Southern Italy)
by Alessandro Giocoli and Nicola Perilli
Geosciences 2025, 15(11), 416; https://doi.org/10.3390/geosciences15110416 - 1 Nov 2025
Viewed by 572
Abstract
Urbanization poses significant challenges for fault investigation, as it can obscure or even hide surface fault expressions and limit access to potential study sites. This paper reports the preliminary results of Electrical Resistivity Tomography combined with geological field surveys in the urbanized area [...] Read more.
Urbanization poses significant challenges for fault investigation, as it can obscure or even hide surface fault expressions and limit access to potential study sites. This paper reports the preliminary results of Electrical Resistivity Tomography combined with geological field surveys in the urbanized area of Villa d’Agri (Marsicovetere, Basilicata Region, Southern Italy), which has undergone significant expansion in recent decades. This area is located at the northeastern border of the High Agri Valley, characterized by the Eastern Agri Fault System, one of the fault systems believed to have caused the M 7.0 earthquake in 1857 in Southern Italy. The combined use of Electrical Resistivity Tomography and geological field investigations in previously inadequately explored areas, along with the reprocessing of data provided by the technical office of Marsicovetere, allowed imaging of a previously unknown fault and reconstruction of sedimentary cover and substratum geometries, particularly in the urban and peri-urban sectors of Villa d’Agri. These preliminary findings provide valuable insights for geological and structural studies and have prompted the attention of the municipal decision makers, supporting further research aimed at enhancing urban management and seismic risk assessment. Full article
(This article belongs to the Section Geophysics)
Show Figures

Figure 1

24 pages, 5303 KB  
Article
Preliminary Documentation and Radon Tracer Studies at a Tourist Mining Heritage Site in Poland’s Old Copper Basin: A Case Study of the “Aurelia” Gold Mine
by Lidia Fijałkowska-Lichwa and Damian Kasza
Appl. Sci. 2025, 15(17), 9743; https://doi.org/10.3390/app15179743 - 4 Sep 2025
Viewed by 920
Abstract
This study presents the results of preliminary documentation and radon tracer investigations conducted at the “Aurelia” Mine in Złotoryja. Measurements of 222Rn activity concentrations were carried out between 17 March and 26 August 2023, while terrestrial laser scanning (TLS) for mapping purposes [...] Read more.
This study presents the results of preliminary documentation and radon tracer investigations conducted at the “Aurelia” Mine in Złotoryja. Measurements of 222Rn activity concentrations were carried out between 17 March and 26 August 2023, while terrestrial laser scanning (TLS) for mapping purposes was performed on 16 November 2024. The radon data exhibited a consistently right-skewed distribution, with skewness coefficients ranging from 0.9 to 8.2 and substantial standard deviations, indicating significant data dispersion. Outliers and extreme outliers were identified as key factors influencing average radon activity concentrations from April through August, whereas data from March displayed homogeneity, with no detected anomalies. The average 222Rn activity concentrations recorded from March to July ranged from 51.4 Bq/m3 to 65.9 Bq/m3. In contrast, July and August showed elevated average values (75.8 Bq/m3 and 5784.8 Bq/m3, respectively) due to the presence of outliers and extreme values. Upon removal of these anomalies, the adjusted means were 73.8 Bq/m3 and 1003.6 Bq/m3, respectively, resulting in reduced skewness and improved representativeness. These findings suggest that the annual average radon concentrations at the “Aurelia” Mine remain compliant with the regulatory threshold of 300 Bq/m3 set by the Atomic Law Act, with exceedances likely related to atypical or rare geophysical phenomena requiring further statistical validation. August exhibited a significant occurrence of outliers and extreme outliers in 222Rn activity concentration data, particularly concentrated between the 13th and 17th days of the month. This anomaly is hypothesized to be associated with geological processes, notably mining-induced seismic events within the LGOM (Legnica–Głogów Copper District) region. It is proposed that periodic transitions between tensional and compressional phases within the rock mass, triggered by mining activity, may lead to abrupt increases in radon exhalation, potentially occurring before or after seismic events with a magnitude exceeding 2.5. Although the presented data provide preliminary evidence supporting the influence of tectonic kinematic changes on subsurface radon dynamics, further systematic observations are required to confirm this relationship. At the current stage, the hypothesis remains speculative but may contribute to the broader understanding of radon behavior in geologically active underground environments. Complementing the geochemical analysis, TLS enabled detailed geological mapping and 3D spatial modeling of the mine’s underground tourist infrastructure. The resulting simplified linked data model—integrating radon activity concentrations, geological structures, and spatial parameters—provides a foundational framework for developing a comprehensive GIS database. This integrative approach highlights the feasibility of combining tracer studies with spatial and cartographic data to improve radon risk assessment models and ensure regulatory compliance in underground occupational settings. Full article
(This article belongs to the Special Issue Advances in Environmental Monitoring and Radiation Protection)
Show Figures

Figure 1

19 pages, 13541 KB  
Article
Vs30 Derived from Geology: An Attempt in the Province of Quebec, Canada
by Philippe Rosset, Abdelrahman Elrawy, Surya Nadarajah and Luc Chouinard
Geotechnics 2025, 5(2), 24; https://doi.org/10.3390/geotechnics5020024 - 1 Apr 2025
Cited by 1 | Viewed by 2007
Abstract
The influence of local site conditions is important when assessing the distribution of building damage and seismic risk. The average shear-wave velocity of the top 30 m of soil, Vs30, is one of the most commonly used parameters to characterize site [...] Read more.
The influence of local site conditions is important when assessing the distribution of building damage and seismic risk. The average shear-wave velocity of the top 30 m of soil, Vs30, is one of the most commonly used parameters to characterize site conditions. Topographic slope is one of the proxies used to estimate Vs30 and is often used as a preliminary estimate of site conditions since a dataset is available worldwide at a resolution of 30 arc-seconds. This paper first proposes to compare the accuracy of Vs30 derived from topographic slope against detailed Vs30 zonation in five regions of the province of Quebec, Canada. A general underestimation of Vs30 is observed and site class agreement varies between 18 and 36% across the regions. Secondly, an approach is proposed to improve regional estimates of Vs30 where detailed site characteristics are not available other than the local topography and surface geology information. The surface deposit types from the geological map of Quebec are compared to Vs30 data previously obtained for zonation maps of Montreal, Saguenay and Gatineau in order to estimate Vs30 as a function of sediment deposit types as an alternative to the slope approach. A site class map for the province of Quebec is then proposed. Full article
(This article belongs to the Special Issue Recent Advances in Geotechnical Engineering (2nd Edition))
Show Figures

Figure 1

16 pages, 4187 KB  
Article
A Proposal for Rapid Assessment of Long-Distance Oil and Gas Pipelines After Earthquakes
by Hongyuan Jing, Liang Huang, Hua Liu, Weijun Jiang, Qinglu Deng and Ruiqing Niu
Appl. Sci. 2025, 15(7), 3595; https://doi.org/10.3390/app15073595 - 25 Mar 2025
Cited by 1 | Viewed by 1385
Abstract
A substantial proportion of long-distance oil and gas pipelines in China traverse active faults and high-risk areas characterised by intricate topographic and geological environments. These pipelines are susceptible to a range of safety concerns, exacerbated by the increasing frequency of strong earthquakes in [...] Read more.
A substantial proportion of long-distance oil and gas pipelines in China traverse active faults and high-risk areas characterised by intricate topographic and geological environments. These pipelines are susceptible to a range of safety concerns, exacerbated by the increasing frequency of strong earthquakes in recent years. To address this issue, a comprehensive risk investigation framework has been proposed for long-distance oil and gas pipelines following seismic events. This initiative aims to ensure the safety of pipeline transportation. In this paper, the elements of pipeline safety evaluation under the influence of coseismic hazards are first organized, followed by a construction of post-earthquake pipeline safety rapid assessment theoretical framework based on the seismic geological disaster risk evaluation system. Each method in the system is then introduced one by one. Unlike existing studies that predominantly focus on localized fault activity or static risk assessment, our framework introduces three key innovations: (1) a hierarchical integration of multi-source monitoring data (SCADA, UAV-AI, and numerous monitoring devices) into a unified GIS platform, overcoming the fragmentation of existing systems; (2) a dynamic four-step evaluation process (susceptibility → hazard → risk → safety) that incorporates both pre-earthquake geological conditions and post-earthquake real-time triggers (e.g., PGA, rainfall); (3) a novel risk matrix mechanism for pipeline safety, which dynamically updates risk levels based on field monitoring data rather than relying solely on probabilistic models. This study provides a novel theoretical framework for assessing the safety of pipelines after earthquakes, which can provide a timely basis for pipeline management decisions and reduce the potential damage to pipelines caused by earthquakes. It is important to note that this framework is still in a preliminary stage and needs to be continuously deepened and optimised. Full article
(This article belongs to the Section Earth Sciences)
Show Figures

Figure 1

48 pages, 5577 KB  
Review
Performance-Based Damage Quantification and Hazard Intensity Measures for Vertical Forest Systems on RC Buildings
by Vachan Vanian, Theodoros Rousakis, Theodora Fanaradelli, Maristella Voutetaki, Makrini Macha, Adamantis Zapris, Ifigeneia Theodoridou, Maria Stefanidou, Katerina Vatitsi, Giorgos Mallinis, Violetta Kytinou and Constantin Chalioris
Buildings 2025, 15(5), 769; https://doi.org/10.3390/buildings15050769 - 26 Feb 2025
Cited by 4 | Viewed by 1383
Abstract
The European building stock is aging and needs renovation. Holistic renovation approaches, including Vertical Forest (VF) systems, are emerging as sustainable alternatives to demolition and reconstruction. This paper reviews and defines missing reliable damage and hazard intensity measures for the holistic renovation of [...] Read more.
The European building stock is aging and needs renovation. Holistic renovation approaches, including Vertical Forest (VF) systems, are emerging as sustainable alternatives to demolition and reconstruction. This paper reviews and defines missing reliable damage and hazard intensity measures for the holistic renovation of existing reinforced concrete (RC) buildings with VF systems. Based on an extensive literature review and preliminary studies, including empirical multiparametric system evaluation assessments, Monte Carlo simulations, and System-Theoretic Process Analysis (STPA), combined structural, non-structural, vegetation, and human comfort components are examined. Key damage indicators are identified, including interstory drift ratio, residual deformation, concrete and reinforcement strains/stresses, and energy dissipation, and their applicability to VF-integrated structures are evaluated. Green modifications are found to have higher risk profiles than traditional RC buildings (mean scores from Monte Carlo method: 9.72/15–11.41/15 vs. 9.47/15), with moisture management and structural integrity as critical concerns. The paper advances the understanding of hazard intensity measures for seismic, wind, and rainfall impacts. The importance of AI-driven vegetation monitoring systems with 80–99% detection accuracy is highlighted. It is concluded that successful VF renovation requires specialized design codes, integrated monitoring systems, standardized maintenance protocols, and enhanced control systems to ensure structural stability, environmental efficiency, and occupant safety. Full article
(This article belongs to the Special Issue Challenges in Seismic Analysis and Assessment of Buildings)
Show Figures

Figure 1

12 pages, 6949 KB  
Article
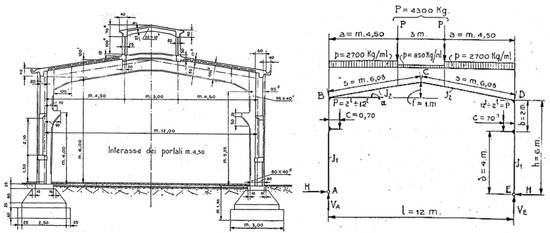
Combined Elastic and Limit Analysis for Seismic Vulnerability Assessment of Pitched Portal Frames
by Marco Postiglione, Fabio De Angelis and Giuseppe Brandonisio
Buildings 2025, 15(1), 96; https://doi.org/10.3390/buildings15010096 - 30 Dec 2024
Viewed by 1266
Abstract
This paper presents a combined approach for the seismic vulnerability assessment of pitched portal frames by coupling elastic and limit analysis. Pitched portal frames are widely adopted both in civil and industrial building structures, as well as in architectural heritage structures, including cathedral [...] Read more.
This paper presents a combined approach for the seismic vulnerability assessment of pitched portal frames by coupling elastic and limit analysis. Pitched portal frames are widely adopted both in civil and industrial building structures, as well as in architectural heritage structures, including cathedral portal frames in ecclesiastical buildings. The seismic vulnerability assessment of such structures is crucial for mitigating territorial seismic risk. In this study, elastic and limit analyses are adopted and combined to evaluate the seismic capacity of pitched portal frames. To this end, a simplified model is proposed to analyze both linear and non-linear responses of these structures under horizontal actions. Although the analysis focuses on two-dimensional (2D) portal frames, it can be extended to three-dimensional (3D) buildings in a straightforward manner due to the specific characteristics of the analyzed structural scheme. The proposed approach provides a preliminary yet efficient evaluation of the seismic vulnerability of buildings with pitched portal frames. Furthermore, the effectiveness of the proposed procedure ensures valuable applicability in large-scale seismic assessments. Full article
(This article belongs to the Section Building Structures)
Show Figures

Figure 1

31 pages, 2939 KB  
Systematic Review
Integrating Building- and Site-Specific and Generic Fragility Curves into Seismic Risk Assessment: A PRISMA-Based Analysis of Methodologies and Applications
by Jhon Philip Camayang, Orlean Dela Cruz and Rhommel Grutas
CivilEng 2024, 5(4), 1011-1041; https://doi.org/10.3390/civileng5040050 - 8 Nov 2024
Cited by 4 | Viewed by 5503
Abstract
Fragility curves are fundamental tools in seismic risk assessments, providing insights into the vulnerability of structures to earthquake-induced damages. These curves, which plot the probability of a structure reaching or exceeding various damage states against earthquake intensity, are critical for developing effective modification [...] Read more.
Fragility curves are fundamental tools in seismic risk assessments, providing insights into the vulnerability of structures to earthquake-induced damages. These curves, which plot the probability of a structure reaching or exceeding various damage states against earthquake intensity, are critical for developing effective modification strategies. This review aims to present the characteristics between building- and site-specific fragility curves, which incorporate detailed local characteristics, and generic fragility curves that apply broader, more generalized parameters. We utilize the PRISMA (Preferred Reporting Items for Systematic Reviews and Meta-Analyses) methodology to systematically review the literature to address key research questions about the methodological differences, applications, and implications of these curve types in assessing seismic risks. The methods involved a comprehensive search and combination of existing studies on the topic, focusing on how these curves are developed and applied in real-world scenarios. The results from this review show that building- and site-specific curves, while more precise, require extensive data and are therefore more complex and costly to develop. In contrast, generic curves, though less accurate, offer a cost-effective solution for preliminary risk assessments over large areas. The conclusions drawn from this review suggest that while each type has its merits, the choice between building- and site-specific and generic fragility curves should be guided by the specific requirements of the seismic risk assessment task, including available resources and the need for precision in the vulnerability estimations. Full article
(This article belongs to the Section Structural and Earthquake Engineering)
Show Figures

Figure 1

8 pages, 1050 KB  
Proceeding Paper
Enhancing Seismic Resilience of Bridge Infrastructure Using Bayesian Belief Network Approach
by Md Saiful Arif Khan, Golam Kabir, Muntasir Billah and Subhrajit Dutta
Eng. Proc. 2024, 76(1), 21; https://doi.org/10.3390/engproc2024076021 - 17 Oct 2024
Cited by 1 | Viewed by 1599
Abstract
The deteriorating state of North America’s bridge infrastructure is a pressing issue, necessitating innovative risk management strategies. This study aims to enhance the seismic resilience of bridge infrastructure using a Bayesian belief network (BBN) model. The research uses literature review, expert opinions, and [...] Read more.
The deteriorating state of North America’s bridge infrastructure is a pressing issue, necessitating innovative risk management strategies. This study aims to enhance the seismic resilience of bridge infrastructure using a Bayesian belief network (BBN) model. The research uses literature review, expert opinions, and a Bayesian analysis framework to quantify bridge resilience, despite the scarcity of detailed historical data. The model, supported by conditional probability tables (CPTs), captures the complex interdependencies among parameters and uncertainties in seismic resilience assessment. Preliminary findings show that integrating expert judgment with BBN provides a robust methodology for assessing and enhancing bridge resilience to seismic hazards. This approach contributes to measuring bridge infrastructure resilience and offers practical guidance for policymakers, engineers, and stakeholders in sustainable transportation network development. Full article
Show Figures

Figure 1

19 pages, 7458 KB  
Article
A Method for Evaluating the Data Integrity of Microseismic Monitoring Systems in Mines Based on a Gradient Boosting Algorithm
by Cong Wang, Kai Zhan, Xigui Zheng, Cancan Liu and Chao Kong
Mathematics 2024, 12(12), 1902; https://doi.org/10.3390/math12121902 - 19 Jun 2024
Cited by 2 | Viewed by 1845
Abstract
Microseismic data are widely employed for assessing rockburst risks; however, significant disparities exist in the monitoring capabilities of seismic networks across different mines, and none can capture a complete dataset of microseismic events. Such differences introduce unfairness when applying the same methodologies to [...] Read more.
Microseismic data are widely employed for assessing rockburst risks; however, significant disparities exist in the monitoring capabilities of seismic networks across different mines, and none can capture a complete dataset of microseismic events. Such differences introduce unfairness when applying the same methodologies to evaluate rockburst risks in various mines. This paper proposes a method for assessing the monitoring capability of seismic networks applicable to heterogeneous media in mines. It achieves this by integrating three gradient boosting algorithms: Extreme Gradient Boosting (XGBoost), Light Gradient Boosting Machine (LightGBM), and Categorical Boosting (CatBoost). Initially, the isolation forest algorithm is utilized for preliminary data cleansing, and feature engineering is constructed based on the relative locations of event occurrences to monitoring stations and the working face. Subsequently, the optimal hyperparameters for three models are searched for using 8508 microseismic events from the a Coal Mine in eastern China as samples, and 18 sub-models are trained. Model weights are then determined based on the performance metrics of different algorithms, and an ensemble model is created to predict the monitoring capability of the network. The model demonstrated excellent performance on the training and test sets, achieving log loss, accuracy, and recall scores of 7.13, 0.81, and 0.76 and 6.99, 0.80, and 0.77, respectively. Finally, the method proposed in this study was compared with traditional approaches. The results indicated that, under the same conditions, the proposed method calculated the monitoring capability of the key areas to be 11% lower than that of the traditional methods. The reasons for the differences between these methods were identified and partially explained. Full article
Show Figures

Figure 1

17 pages, 68902 KB  
Article
Enhancement Seismic Response of a Bored Tunnel Using Isolation for the Challenge of a Faulted Rock Crossing
by Ahmed Elgamal and Nissreen Elfaris
Infrastructures 2024, 9(4), 66; https://doi.org/10.3390/infrastructures9040066 - 27 Mar 2024
Viewed by 2251
Abstract
The tunnel boring method (TBM) is a widely used and effective tunneling technology in various rock mass quality circumstances. A “faulted rock mass” can range from a highly fractured rock mass to a sheared weak rock mass, making the ground conditions challenging for [...] Read more.
The tunnel boring method (TBM) is a widely used and effective tunneling technology in various rock mass quality circumstances. A “faulted rock mass” can range from a highly fractured rock mass to a sheared weak rock mass, making the ground conditions challenging for tunneling, especially for TBMs. “Faulted rock” significantly affects hard rock TBMs, primarily due to the TBM’s high geological risk and poor flexibility. TBMs require careful planning and preparation, starting with preliminary assessments. This study investigates the impact of establishing an isolation material between a circular tunnel and the adjacent faulting rock on seismic response. The two parts of the parametric analysis for the isolation material utilized in the model look at how changes in the mechanical characteristics of the material, such as the shear modulus of the rock and the fault, affect the stresses created in the tunnel. The second section examines how changes in the isolation width concerning the fault width affect the stresses and displacements produced in the tunnel. Additionally, the effectiveness of isolating the tunnel during sudden changes in the characteristics of the rock was investigated under seismic loading perpendicular to the tunnel and parallel to the tunnel. The finite element approach was utilized to model the TBM tunnel and the neighboring rock with a fault or sudden change in the rock using Midas/GTS-NX, simulating the interactions between the rock and the tunnel. Time-history analysis using the El Centro earthquake was conducted to calculate the stresses in the tunnels during seismic events. Peak ground accelerations between 0.10 g and 0.30 g were utilized for excitation. A time step of 0.02 s and a length of 10 s for the seismic event were used in the analysis, with traditional grout pea gravel vs. the isolation layer. Comparisons were made between the absolute stresses (the greatest possible values) in the normal tunnel section (Sxx) and those induced in the tunnel with traditional grout and with isolation. Furthermore, the study of vertical displacement was taken into consideration. The seismic isolation method is highly effective in improving the seismic safety of bored tunnels. The results show that the significant values of the ratio between the shear modulus of isolation and the surrounding soil should be between 0.2% and 0.4%. Where parts of the tunnel run through a fault, the effective length of isolation should be between one and two times the fault width. The dynamic behavior of the tunnel with isolation is better than that with traditional grout. Generally, when isolation is used for any length, it reduces the stresses at the area of sudden change. Consequently, engineering assessments from both structural and geotechnical engineering viewpoints are now required for these unique constructions. An underground structure’s safety should be evaluated by the designer to ensure that it can sustain various applied loads, taking into account seismic loads in addition to construction and permanent static loads. Tunnels may be especially vulnerable in areas where the composition of the soil or rock varies. Full article
(This article belongs to the Section Infrastructures and Structural Engineering)
Show Figures

Figure 1

19 pages, 6407 KB  
Article
Proposal of a Protocol for the Safe Removal of Post-Earthquake Provisional Shorings
by Marianna Rotilio, Giulia D’Alberto, Angelo Di Egidio, Alessandro Contento and Pierluigi De Berardinis
Buildings 2023, 13(9), 2363; https://doi.org/10.3390/buildings13092363 - 16 Sep 2023
Cited by 1 | Viewed by 1494
Abstract
The recent seismic events in Italy, including the earthquakes in L’Aquila in 2009 and central Italy in 2016, have significantly impacted the historical centers of small and medium-sized cities. These events directly affected their ancient masonry building heritage, resulting in severe damage. In [...] Read more.
The recent seismic events in Italy, including the earthquakes in L’Aquila in 2009 and central Italy in 2016, have significantly impacted the historical centers of small and medium-sized cities. These events directly affected their ancient masonry building heritage, resulting in severe damage. In order to minimize the risk of collapses and prevent further harm to people and structures until restoration efforts can be carried out, provisional post-seismic shorings have been extensively employed. These occurrences motivated several studies focused on the selection and assembly of post-seismic shorings, considering the various rigid failure mechanisms that may occur in a wall or section of an ancient masonry building. Yet, thus far, the critical considerations concerning the disassembly of these shorings, which significantly influence the repair process of a compromised structure from safety, organizational, and economic perspectives, have been overlooked. This research endeavors to establish a protocol for the dismantling of provisional shorings. To this end, a preliminary risk assessment tool has been devised, furnishing a safety index that correlates with the level of risk associated with shoring removal, along with corresponding risk categories. The study recommends preliminary interventions, categorized as mandatory or optional, to mitigate the risk prior to shoring removal. Furthermore, specific guidelines are provided based on the assessed risk level indicated by the safety index. To illustrate the application of this risk assessment tool, a case study involving an ancient masonry building in L’Aquila is presented. Full article
(This article belongs to the Special Issue Seismic Design of Building Structures)
Show Figures

Graphical abstract

21 pages, 5436 KB  
Article
Geophysical Constraints to Reconstructing the Geometry of a Shallow Groundwater Body in Caronia (Sicily)
by Alessandro Canzoneri, Patrizia Capizzi, Raffaele Martorana, Ludovico Albano, Alessandro Bonfardeci, Nunzio Costa and Rocco Favara
Water 2023, 15(18), 3206; https://doi.org/10.3390/w15183206 - 8 Sep 2023
Cited by 7 | Viewed by 3160
Abstract
The characterization of a groundwater body involves the construction of a conceptual model that constitutes the base knowledge for monitoring programs, hydrogeological risk assessment, and correct management of water resources. In particular, a detailed geological and geophysical approach was applied to define the [...] Read more.
The characterization of a groundwater body involves the construction of a conceptual model that constitutes the base knowledge for monitoring programs, hydrogeological risk assessment, and correct management of water resources. In particular, a detailed geological and geophysical approach was applied to define the alluvial Caronia Groundwater Body (CGWB) and to reconstruct a hydrogeological flow model. The analysis of the CGWB, located in north-eastern Sicily, was initially approached through a reanalysis of previous stratigraphic (boreholes) and geophysical (vertical electrical soundings and seismic refraction profiles) data, subsequently integrated by new seismic acquisitions, such as Multichannel Analysis of Surface Waves (MASW) and horizontal-to-vertical seismic ratio (HVSR). The analysis and reinterpretation of geoelectrical data allowed the construction of a preliminary 3D resistivity model. This initial modeling was subsequently integrated by a geophysical data campaign in order to define the depth of the bottom of the shallow CGWB and the thickness of alluvial deposits. Finally, a preliminary mathematical model flow was generated in order to reconstruct the dynamics of underground water. The results show that integration of multidisciplinary data represent an indispensable tool for the characterization of complex physical systems. Full article
(This article belongs to the Special Issue Application of Geophysical Methods for Hydrogeology)
Show Figures

Figure 1

18 pages, 5640 KB  
Article
Rocking Analysis of Towers Subjected to Horizontal Forces
by Luciana Di Gennaro, Mariateresa Guadagnuolo and Michela Monaco
Buildings 2023, 13(3), 762; https://doi.org/10.3390/buildings13030762 - 14 Mar 2023
Cited by 20 | Viewed by 2767
Abstract
In seismic-prone areas, ecclesiastical masonry complexes have shown very high vulnerability, as detected after the last Italian earthquakes, such as those that occurred in L’Aquila (2009), Emilia-Romagna (2012), Central Italy (2016), and Ischia (2017). Partial collapses often affect these types of aggregate buildings [...] Read more.
In seismic-prone areas, ecclesiastical masonry complexes have shown very high vulnerability, as detected after the last Italian earthquakes, such as those that occurred in L’Aquila (2009), Emilia-Romagna (2012), Central Italy (2016), and Ischia (2017). Partial collapses often affect these types of aggregate buildings due to the presence of highly vulnerable elements, such as bell towers. Preliminary analyses, including straightforward and quick methods, are necessary to assess their vulnerability. This paper proposes a simplified method to analyse bell tower dynamic behaviour and the results obtained are compared with several different approaches. The first is based on the dynamics of two rigid blocks (bell tower and lower building), and the second concerns a single block (bell tower only). The proposed method can be considered as a quick procedure involving few parameters to provide a preliminary analysis before use of more complex models such as finite element models. It aims to provide a valuable tool for the initial evaluation of the stability and risk index of the structure. The double-block model considers the associations between the rocking of the bell tower and the sliding motion of the underlying building. A parametric evaluation for different friction coefficients is proposed. The results are represented as rotation time histories and compared with analysis of the single vulnerable element, i.e., the bell tower subjected to the floor spectrum. The results show that high excitation frequency and friction coefficient values make the bell tower stable, and that the simplified model provides a clear safety advantage. Full article
(This article belongs to the Section Building Structures)
Show Figures

Figure 1

25 pages, 6895 KB  
Review
Factors Influencing the Intrinsic Seismic Risk of Open Spaces in Existing Built Environments: A Systematic Review
by Martina Russo, Marco Angelosanti, Gabriele Bernardini, Laura Severi, Enrico Quagliarini and Edoardo Currà
Sustainability 2022, 14(1), 42; https://doi.org/10.3390/su14010042 - 21 Dec 2021
Cited by 6 | Viewed by 4606
Abstract
Open spaces (OSs), such as streets, squares, and green areas, in existing built environments (BEs) are key places in disaster risk management. The seismic risk in the OSs is strictly related to BE characteristics. Scientific literature mainly focuses on extrinsic factors affecting risk, [...] Read more.
Open spaces (OSs), such as streets, squares, and green areas, in existing built environments (BEs) are key places in disaster risk management. The seismic risk in the OSs is strictly related to BE characteristics. Scientific literature mainly focuses on extrinsic factors affecting risk, which are related to BE elements on the OSs frontier (e.g., buildings) that could cause indirect effects on the OSs. Conversely, just a few risk assessment studies consider intrinsic factors, which are related to OS elements that could suffer direct effects. Moreover, synoptic studies on such factors are still missing. Through literature-based research, the paper identifies specific factors influencing seismic risk in the OSs, focusing notably on intrinsic vulnerability. The literature review methodology includes both a systematic review from Scopus databases and a traditional bibliographic search using snowball analysis. According to the final selected papers, risk factors are classified into five categories of OS characteristics: morpho-typology; physical; construction; use and users; and context. Statistical analysis of the categories’ recurrence in the final papers firstly allows current literature gaps to be defined. The results also provide a preliminary OSs risk index weighting each category in terms of such recurrences, thus representing a first useful step to support non-expert stakeholders in a preliminary assessment of priorities to define the seismic risk of Oss. Full article
(This article belongs to the Special Issue Disaster Risk Reduction and Resilient Built Environment)
Show Figures

Figure 1

Back to TopTop