Abstract
Near the 11–12 locks of the Canal de Castilla, there once stood a paper mill built in the 18th century and dismantled in 1983. Despite the scarce physical remains, the absence of original plans, and the limited availability of data, this research aims to reconstruct its initial layout, characteristics, and operation. To achieve this, an analytical–synthetic method has been followed: in the analysis phase, multiple sources and materials are thoroughly examined from various perspectives, while in the synthesis phase, drawing is employed as a means of reflection, since any hypothesis about this factory must be validated through sufficiently precise graphical representations. The most relevant result is the complete drafting of the factory’s plans, including its machinery, as well as the clarification of its production system. The main conclusion suggests that, although based on the mechanisms and equipment of traditional paper mills, this manufacturing facility sought to be innovative and exemplary in its time. Its dispersed typology was designed to improve and dignify working conditions for employees, while its internal organization optimized the paper production process and increased manufacturing capacity.
1. Introduction
The location of industrial establishments is closely linked to communication infrastructures, among which canals played a fundamental role during the pre-industrial period [1]. Many manufacturing activities used these waterways as networks for transporting raw materials and finished products, but they also effectively harnessed hydraulic power to operate their machinery [2].
In Spain, the ambitious canal network planned in the 18th century aimed to improve communications and stimulate economic recovery, drawing inspiration from French and English canals [3]. The Canal de Castilla, designed in 1753, was conceived primarily as an inland navigation infrastructure and secondarily for irrigation purposes [4]. Surprisingly, the use of hydraulic power for industrial purposes was not considered in the initial plans [5,6]. It was not until 1759—after construction had already begun on the Northern Canal—that this possibility was first explored, with the idea of building “mills and other machines” [7]. Once the first 14 locks had been built, and following a proposal by Francisco Sabatini in 1775, the military engineer and director of the works, Juan de Homar, designed the necessary modifications for industrial use [8,9]. The lack of financial resources delayed the proposal until after 1785, and Jovellanos confirmed the presence of the first industries—including “the famous paper mill” at Locks 11–12 joined together—in September 1791 [10] (p. 41). Over time, the hydraulic exploitation of the locks experienced remarkable growth, with a large number and variety of establishments recorded by 1855 [11]. Starting in 1860, the opening of a railway line parallel to the Canal drastically reduced navigation traffic [12,13,14]. However, neither this new mode of transport nor technological advances marked the end of the industrial uses associated with the Canal, which successfully adapted to new purposes and production systems. Many of these facilities were transformed into modern flour mills with new plants that incorporated the so-called “English system,” becoming one of the most profitable businesses for the Canal de Castilla Company [15,16,17]. Other installations, such as the paper mill at Locks 11–12, ended their operational life as hydroelectric power stations, in some cases altering the structure of the original waterworks section. Today, very few of the Canal de Castilla’s artefacts survive in their original use, and their state of preservation varies widely. Many show clear signs of abandonment and are at risk of disappearing [18].
Since the 20th century, various committees and organizations have recognized both canals and their associated facilities as part of industrial heritage, attributing to them undeniable historical, social, cultural, and technological value. However, there is some controversy regarding the scope and inclusion of certain elements within the concept of industrial heritage [19].
The Nizhny Tagil Charter of 2003 clearly emphasizes that all structures intended for industrial activities—and even the social activities related to them (including any other tangible or intangible manifestations)—should be subject to study. It is essential to investigate their history, purpose, and significance, and to disseminate this knowledge to the public [20]. Likewise, according to the principles established in Dublin in 2011, industrial heritage encompasses all elements that reflect past industrial processes, such as sites, areas, and even documents [21].
The protection instruments implemented in various countries have significantly boosted interest in the study of industrial heritage [22]. In Spain, the Canal de Castilla was declared a Site of Cultural Interest (Bien de Interés Cultural) with the designation of Historic Ensemble (Conjunto Histórico) in 1991 [23]. In 2011, it was included in the catalogue of the 100 Elements of Industrial Heritage in Spain, compiled by the Spanish section of TICCIH [24]. Moreover, both the Canal and its associated industry are listed in the National Plan for Industrial Heritage as one of the 49 industrial assets that must receive the highest level of protection granted by legislation on Historical Heritage. The updated version of this Plan emphasizes that “the testimonies of industrialization constitute an essential legacy for understanding Spanish history over the past two centuries” and that “the conservation and study of these testimonies are fundamental for understanding and documenting a key period in the history of humanity” [25] (p. 2).
However, the most recent studies highlight the lack of systematic research on industrial buildings associated with canals [26]. The Canal de Castilla is no exception. The analysis of the numerous material testimonies of its industry has been largely overlooked, while attention has shifted to other aspects. Research has mostly focused on its history, geography, landscape, economy, archaeology, flora and fauna, as well as its tourism potential for revitalizing disadvantaged and depopulated areas of the Spanish interior [27,28,29,30,31,32,33,34,35,36,37,38]. However, very few studies address, from a technical perspective focused on engineering and architecture, the industrial constructions that form part of the Canal [39,40,41].
Today, the Canal de Castilla preserves an extensive list of elements that require detailed study. Among them, the paper mill located at Locks 11–12, built in 1791 [42], stands out. Unfortunately, this emblematic industrial facility was demolished in 1983—by which time its original machinery had long since disappeared—leaving only traces of its foundations and a few auxiliary structures. In this way, one of the most unique establishments along the Canal was irreversibly lost, whose hydraulic works and buildings were, ironically, recognized and protected by legislation only a few years after their destruction [23].
The importance of this pilot factory [43] (p. 48), which began operating in 1793 [44], lies in the fact that, along with a few simple fulling mills and flour mills located at the first isolated locks built on the Northern branch, it was one of the earliest establishments along the Canal. However, unlike those, its design was far more ambitious, as it could benefit from a double hydraulic drop (6.65 m), generated by the first group of joined locks built on the Canal [45] (p. 786). At this site, a true industrial complex was planned, consisting of an industrial area for papermaking and a residential area with housing for workers, a chapel, and a draft animal stable, the ruins of which still survive [46] (p. 96). The significance of this manufactory, which was granted the title of Royal Factory (Real Fábrica) [47] (p. 308), is evidenced by the elevation drawn by Homar himself in his 1808 profiles [48] and by the royal coat of arms that once adorned its façade (Figure 1).
Figure 1.
Paper mill: (a) According to Juan de Homar (1806); (b) Royal coat of arms from the façade, preserved in the cultural centre of Osorno (Palencia).
The aim of this research is the study and graphic reconstruction of the original industrial area, with special attention to the so-calledartefact, or paper mill, at Locks 11–12. As stated in the Nizhny Tagil Charter, “the conservation of industrial sites requires a thorough understanding of the purpose or purposes for which they were built, and of the various industrial processes that may have taken place there. These may have changed over time, but all former uses must be investigated and assessed”. Within this framework, the research seeks to characterize this industrial complex and contribute significantly to its analysis, interpretation, dissemination, and management.
Most studies in the field of industrial archaeology examine historical technical heritage based on the presence of well-preserved physical remains or detailed plans of facilities, machines, or mechanisms from various productive sectors. These works typically focus first on real or virtual three-dimensional modelling [49,50,51,52] and subsequently address the analysis of mechanical behaviour [53,54,55] or the evaluation of technical feasibility [56]. Other authors have used two-dimensional source materials, such as fragmented architectural drawings, which are then developed into three-dimensional assets to better understand lost architecture [57,58,59,60,61,62,63].
In our case, we are confronted with an industrial heritage that is largely inaccessible due to its destruction, with scarce material evidence, limited archival records, and the absence of known prior studies. The information provided by documentary sources—such as historical photographs, drawings, and written descriptions—is both insufficient and fragmented, while the few architectural plans that have survived are not always reliable or mutually consistent.
Nevertheless, the preliminary analysis of certain written documents—particularly some official correspondences from the eighteenth century—reveals the existence of a manufacturing facility that inherited a long-standing artisanal tradition in the papermaking process. Within this context, the initial hypothesis of this research posits that it is possible to fully reconstruct this artefact (both the building and its machinery) through the analysis and synthesis of all available sources. These include the descriptions and illustrations found in works that disseminated such knowledge during the eighteenth century, such as those by La Lande, Hemart, and Diderot, among others, as well as the study of contemporary paper mills.
Accordingly, the specific objectives of this research are as follows:
- To understand the comprehensive functioning of the paper mill: This entails analysing its buildings, construction materials, machinery, and operational processes, as well as producing the necessary architectural drawings (plans, elevations, and sections). Such a study will enable a full understanding of the papermaking process, facilitate comparisons with other paper mills, and provide contextualization for the industrial elements that are still preserved within this manufacturing complex.
- To analyse the distinguishing features of this paper mill: Unlike traditional paper mills, which replicated medieval patterns and were typically located alongside river dams, this facility was established next to an artificial watercourse, where hydraulic drops were generated using navigation locks.
- Assessing the contributions of military engineers: These contributions are part of the broader movement of transformation and modernization of industrial activities that, during the eighteenth century, led to the establishment of various manufactories under royal patronage [64,65].
The novelty of this study lies in the fact that, until now, no in-depth documentary analysis of the paper mill had been conducted, nor had a graphic reconstruction of this now-lost mill been presented. The reconstruction proposed here is grounded in the detailed studies outlined in the materials and methods section and puts forward a robust hypothesis—sufficiently detailed to offer a comprehensive understanding of the mill’s operation.
Moreover, the impact of this study will depend on the future uses of this graphic reconstruction, among which the following may be highlighted:
- The creation of a realistic three-dimensional (3D) model of the factory and its virtual reconstruction using CAD techniques, in line with the objectives outlined in the “Seville Principles” [66] on virtual archaeology, which reference the London Charter [67] concerning computer-based visualization of cultural heritage.
- The development of virtual reality applications that promote user interaction with the model, thereby facilitating a better understanding of its operation and allowing each element or system to be identified by name and by the materials from which it was made.
- The creation of an immersive augmented reality experience that enables access to the virtual model of the paper mill located at Locks 11–12.
- The ultimate aim of this project is the interpretation of the existing remains for educational and recreational purposes (cultural tourism). Furthermore, the implementation of these technologies would contribute to the preservation of the Canal de Castilla, as the knowledge and transmission of the memory of labour associated with any industrial site fosters appreciation and emotional connection—key drivers of its conservation.
2. Materials and Methods
This research constitutes an essential step prior to undertaking the interdisciplinary work that characterizes Industrial Archaeology, the methodological foundation of industrial heritage studies. Therefore, before initiating excavations, surveys, or other complementary methods, the analysis focused on a wide range of study materials capable of enhancing the value of the remains of a paper mill—a true historical testimony to a unique production process.
To carry out this study, it was not sufficient to analyse only the physical remains still present at the site. It was necessary to acquire a deep understanding of the history of paper, intrinsically linked to the evolution of culture and science over the centuries. In addition, it was essential to examine the technological processes and their development, which ultimately led to the mechanization of production. Typological and comparative studies across a broad geographical range were also fundamental. Finally, it became imperative to identify and systematically evaluate the most relevant sources in a well-documented manner [25].
2.1. Materials
The materials and data used in this research have been organized into five categories.
2.1.1. Current Condition and Recent Visual Documentation
Both the physical remains and the most recent graphic documentation concerning the paper mill—located near Olmos de Pisuerga (Palencia), adjacent to the joined locks 11–12—have been examined. The existing vestiges (foundations and hydraulic tunnel) are partially buried under vegetation, which makes direct measurement impossible. As a testimony and trace of this industrial site, the name of the nearby land parcel, El Papel, endures, where remnants of the residential area are still preserved (Figure 2).
Figure 2.
Paper mill: (a) Location; (b) Current condition.
Historical orthophotographs (https://cartografia.jcyl.es/web/es/datos-servicios/ortofoto-castilla-leon.html) are available, which allow for an approximate interpretation of the factory’s general layout prior to its demolition (Figure 3).
Figure 3.
Locks 11 and 12 with the paper mill: (a) In 1956–57; (b) In 1977–81.
In addition, photographs have been identified [68,69], taken both before (1920–30) and after (1984) the mill’s disappearance, which reveal partial details of the exterior and the configuration of the inlet and outlet channels in the main building (Figure 4).
Figure 4.
Paper mill: (a) South façade; (b) East façade; (c) Sizing room; (d) West façade; (e) Inlet channels; (f) Outlet channels.
The facility obtained hydraulic power through a diversion channel that drew water from the left bank of the Canal. Both the survey conducted in 1980–81 [70] (p. 224) and the 2001 Regional Plan for the Canal de Castilla [71] offer an approximation of the factory’s hypothetical layout (Figure 5).
Figure 5.
Hypothetical site plan of the paper mill: (a) Plan based on 1980–1981 fieldwork; (b) Regional Plan of the Canal de Castilla (2001).
2.1.2. History of the Papermaking Process
The historical context has been investigated to understand the technical achievements attained since the invention of paper, as well as to assess the context in which this factory was built. The development of the papermaking process is extensively documented in various publications [72,73,74,75,76,77].
The manufacturing method, originally from China, involved beating a mixture of plants with water to separate the fibres, filtering the pulp through a screen, and pressing it to bond the fibres into a cohesive sheet. This process became known to the Arabs in the 8th century, who spread it across North Africa and introduced it to Spain in the 10th century, from where it expanded to the rest of Europe. From the 11th century onward, paper was produced by grinding rags and fabrics made of esparto and hemp—raw materials used until the 19th century. The Arabs are also credited with easing the laborious process of fibre grinding by adapting, between the 10th and 12th centuries, waterwheel-powered flour mills, followed later by fulling mills with camshaft systems, to produce paper pulp [78] (pp. 301–303).
Historical analysis shows that the papermaking process using hydraulic machinery remained essentially unchanged from the 12th to the 18th century—and in some mills, even into the 19th century—without significant improvements to what was fundamentally an artisanal method. It has also been confirmed that the Hollander beater, a device without stampers that facilitated fibre grinding, arrived in Spain in the 18th century. However, royal manufactories continued to use traditional technology, and this innovation was only adopted by some private industries starting in 1764 [79] (p. 23). Other innovations—such as the continuous paper vat (1799) and the Fourdrinier machine (1804), which optimized and accelerated sheet formation—emerged after the construction of the factory at Locks 11–12. Finally, the development in 1850 of the method for producing paper from wood pulp, which definitively replaced rags as raw material, occurred after the Olmos factory ceased operations in 1847. In the following years, these advances led to a significant increase in the speed of paper production, while the automation of all tasks became a reality in most paper mills.
2.1.3. Mechanics and Technology of Papermaking Mills
The equipment and operation of paper mills have been investigated, and the evolution of the associated machinery up to the 18th–19th centuries has been examined, using the most important graphic sources as references [80,81,82,83] (Figure 6).
Figure 6.
Paper manufacturing according to: (a) Amman, 1568; (b) Zonca, 1607; (c) Bockler, 1662; (d) Porcelius, 1689.
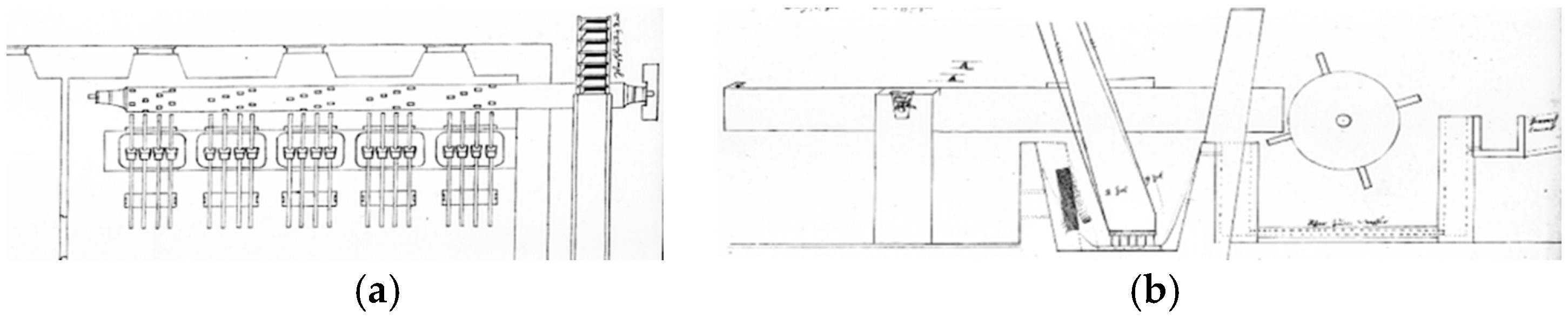
The technology used for papermaking during the eighteenth century has been analysed through a comparison of the descriptions and illustrations provided by three key authors. La Lande, whose translation by Suárez and Núñez in 1778—along with its plates—served for years as a manual for Spanish papermakers [84]. Diderot, in turn, revisited and improved upon La Lande’s engravings [85]. Finally, Hemart documented various industrial processes, contributing illustrations on papermaking in his 1822 work Galerie industrielle [86]. One must also mention the German architect Christoph Sturm, who recorded ingenious technical solutions applied in paper mills [87].
The basic manufacturing system—rag grinding using stampers driven by waterwheels through simple cam mechanisms, and manual sheet-by-sheet papermaking using a mould with a fine mesh—endured for centuries. Only minor improvements were implemented, such as the specialization of stampers within the grinding system [88]. In Central European mills, it was common to use more than three stampers per vat. Some authors have described in detail both the specific shape of the vats and the inclination and pointed finishing of the stampers, highlighting important technical features (Figure 7).
Figure 7.
Paper mill of Montbéliard (France) according to Schickhardt (1610): (a) Plan view; (b) Stampers and vats.
The most relevant documents detailing the papermaking process in eighteenth-century Spain have also been reviewed. Among them, the 1754 treatise on the paper mill of the General Hospital of Pamplona [89] and the Libro de varios planos y máquinas, dated approximately 1760 [90], stand out.
Thanks to various bibliographic sources, the operation and sequence of processes in an eighteenth-century paper mill are clearly defined (Figure 8).
Figure 8.
Departments and sequence of operations for paper manufacturing.
The typical departments in a paper mill are as follows: 1. Rag-sorting area (often equipped with a manual rag-breaking wheel or “devil” for cleaning). 2. Retting room (located in the basement and equipped with a scythe or cutter). 3. Stamping mill (with pits for the refined pulp). 4. Vat workshop (with the vat, moulds, and press). 5. Drying loft for unsized paper (always located on the upper floor). 6. Sizing room (with its boiler, vat, soaking table, and press). 7. Drying loft for sized paper. 8. Manual burnishing room (if mechanical burnishing was not used). 9. Burnishing room with hammer press. 10. Accountant’s office.
2.1.4. Examples of Paper Mills
Paper manufactories of varying scales, built in Spain during the eighteenth century, have been analysed—based on the available graphic information—to identify the type, arrangement, and operation of their machinery.
Smaller-scale facilities, such as the molinillo of Palomera [91] (pp. 213–221) or the Rovira mill [92], made the most of the limited space on the lower floor to accommodate all the machinery required for papermaking (retting chamber, reservoirs, vat, press, and sizing stove). The upper floor, in turn, was used exclusively as a drying loft. Both facilities were equipped with two waterwheels powering two independent stamp battery systems for chopping, refining, and finishing the pulp, with three stampers per vat (Figure 9).
Figure 9.
Paper mills: (a) “Molinillo” of Palomera (Cuenca); (b) Rovira mill in Sant Pere de Riudevitlles (Barcelona).
Larger-scale mills, such as those in the Anoia region (Barcelona), follow the easily recognizable pattern of most Catalan paper mills from the mid-eighteenth century [93]. They replicate features of the region’s traditional masía farmhouses, with three longitudinal bays parallel to the direction of the water flow. In some cases, a rear transverse structural bay was added, as seen in the Molí Blanc. The upper floors—ranging from one to three stories depending on the importance of the mill—were equipped with numerous windows. In addition to the drying loft or mirador, the sizing area was often located there as well [94,95]. The intermediate level housed the accountant’s office and employee quarters. The basement contained all the spaces dedicated to the transformation and production of paper. These mills typically had two or three waterwheels, always located outside, used to power the stamp batteries. Additionally, they featured an extra external waterwheel dedicated to operating the burnishing hammer (Figure 10).
Figure 10.
Catalan paper mills: (a) “Molí de la Vila” (Capellades, 1748); (b) “Molí Blanc” (Igualada, 1753).
Larger establishments, such as those of the General Hospital of Pamplona [96] or San Fernando de Henares [97], were equipped with four waterwheels and four stamp batteries with specialized functions, all located on the lower floor. The upper floor always housed the drying loft and, in specific cases (such as San Fernando de Henares), also the burnishing room. This room was equipped with two ceiling-suspended burnishing hammers, which were operated via lantern gears connected to one of the waterwheels (Figure 11).
Figure 11.
Paper mills: (a) General Hospital of Pamplona (1755); (b,c) San Fernando de Henares (1786).
The analysis of these examples has confirmed that all Spanish paper mills of the eighteenth century continued to use the same machinery employed in previous centuries. Both the organization of labour and the machines followed the model known and described by La Lande, consistently featuring sets of stampers with three mallets each (although Diderot depicted four mallets per pit, Schickhardt four or five, and Sturm up to seven). Similar to the paper mills described in earlier centuries (Zonca, Schickhardt, or Böckler), clean water was channelled through a small canal to the pits, where it was purified and filtered if necessary. This same water was also directed to the wheel pins of the waterwheels to prevent overheating and ensure smooth rotation. Furthermore, it has been observed that the Accountant’s Office and the Burnishing Room were, in many cases, located on the upper floor. In general, in all the paper mills studied, the watercourse ran laterally, and the waterwheels were always positioned outside the building.
2.1.5. Documentary Sources
The main records concerning the Canal are housed in the General Archive of the Confederación Hidrográfica del Duero (AGCHD), within the Canal de Castilla Collection (FCC). This collection is further subdivided into two sections: the Historical Archive of the Canal de Castilla (AHCC) and the Administrative Collection of the Canal de Castilla (FACC).
In the first section (AHCC), the information is highly dispersed and heterogeneous, including lease agreements, official correspondence, inventories, reports, appraisals, valuations, and architectural drawings. The most significant documents pertain to the various departments, general dimensions, composition, equipment, and basic machinery of the mill, as well as its construction features [98,99,100,101,102,103]. Some plans, despite discrepancies [104,105,106], offer an approximation of the original building’s floor plan and elevation (Figure 12).
Figure 12.
Plans and elevations: (a) According to Francisco Javier Saiz (1853); (b) Unknown (s.f.-1863?); (c) According to Luís Alonso (1901).
The 1853 plan shows great symmetry both in the elevation (particularly at the main entrance) and in the basement floor, which is characterized by a single courtyard with four entry channels and three exit channels (Figure 12a). The 1863 plan breaks the overall symmetry of the ground floor by compartmentalizing the southwestern angle and sketching a single staircase that leads to the upper floor, which, in turn, connects with a new block added alongside the main façade (Figure 12b). Surprisingly, the 1901 plan features a completely off-centre diversion channel with three entry channels and two exit channels. In addition, it integrates a second courtyard and an access point located on the upper storey of the elevation, clearly displaced from the centre (Figure 12c).
In the second section (FACC), which includes the Projects for the Canal de Castilla (PCC), the documents specifically related to the paper mill have been thoroughly analysed [107,108]. In 1921, these projects proposed the installation of twin turbines for a new industrial use as a hydroelectric power station. Both the technical report and the plans provide detailed information, including precise data, measurements, and elevations of the building, reflecting its condition before and after the intervention (Figure 13).
Figure 13.
Plans and sections of the paper mill (1921).
Sources published between the 18th and 19th centuries [109,110,111], as well as the most recent bibliography on the Canal de Castilla [112,113,114,115], have also been reviewed. These consultations have confirmed the absence of specific studies or reconstructions related to this paper mill.
2.2. Methods
The analytical–synthetic method was employed, with graphical representation serving as a rigorous technical tool in the intellectual work. In the first phase, materials from the five sections described above were selected, analysed, evaluated, and compared. In the second phase, all the information was synthesized by interrelating and integrating the data, thereby facilitating a graphical presentation of the results. The “exploratory drawing” played a fundamental role in generating the plans of the paper mill, effectively recreating and replacing the original drawings that had not survived [116].
The materials studied provided significant data that were cross-checked, filtered, selected, clarified, combined, verified, and integrated into a graphic document that reconstructs the paper mill. The five puzzle pieces analysed proved crucial in achieving this result, represented at the centre of Figure 14.
Figure 14.
Methodological scheme.
The greatest challenge was to complete the insufficient direct data (1 and 5) with indirect data (2, 3, and 4). The graphic representation integrated all verified data into a precise and well-founded visual proposal, effectively bringing it to life. Drawing emerged as the key tool for synthesizing the collected information and as the essential document for the recovery, transmission, and potential intervention in industrial heritage.
Following Principle 2.1 of the London Charter [67], a two-dimensional digital representation model was considered the most effective and appropriate means to address, visualize, and disseminate the objectives of this research. This approach enabled a highly detailed description of the evidence found. The graphic reconstruction was carried out using AutoCAD 2024 in 2D, accurately depicting all documented elements (floor plans, dimensions, elevations, number of channels, wheels and stamper sets, vats, and other essential components). Additional elements required for papermaking were subsequently incorporated, as described in eighteenth-century literature and confirmed in other manufacturing sites of the period.
Complete plans were drawn up showing the location of the various rooms and original machines of the mill, along with the necessary details for their accurate interpretation, making it possible to fully understand its operation. The representation went beyond a general floor plan layout with machinery and equipment; it also included elevations and sections, ensuring a comprehensive understanding of the relationships among all elements. This model provides a solid foundation for the implementation of advanced computer-based visualization methods.
To produce these plans, the general dimensions of the various departments of the mill—recorded in historical documents using different units of measurement (feet or meters)—were cross-checked. These documents include descriptions, appraisals, valuations, and inventories [100,101,102,103] from the years 1828, 1842, 1851, and 1906. Subsequently, this data was compared with the 1853 plans [104] and supplemented with the measurements included in the 1921 construction project [107,108]. The measurements in this project are presented to two decimal places (including the water level elevations in the headrace and tailrace), and their precision is considered exceptionally high. The project was carried out in the twentieth century under the supervision of civil engineer Eduardo Fungairiño, technical director of the Duero River Basin Authority, ensuring its rigor and accuracy.
3. Results
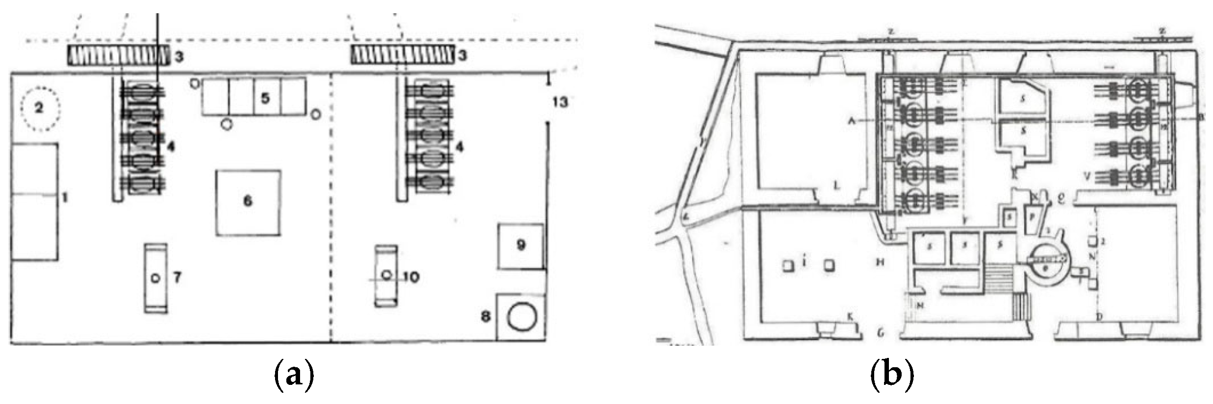
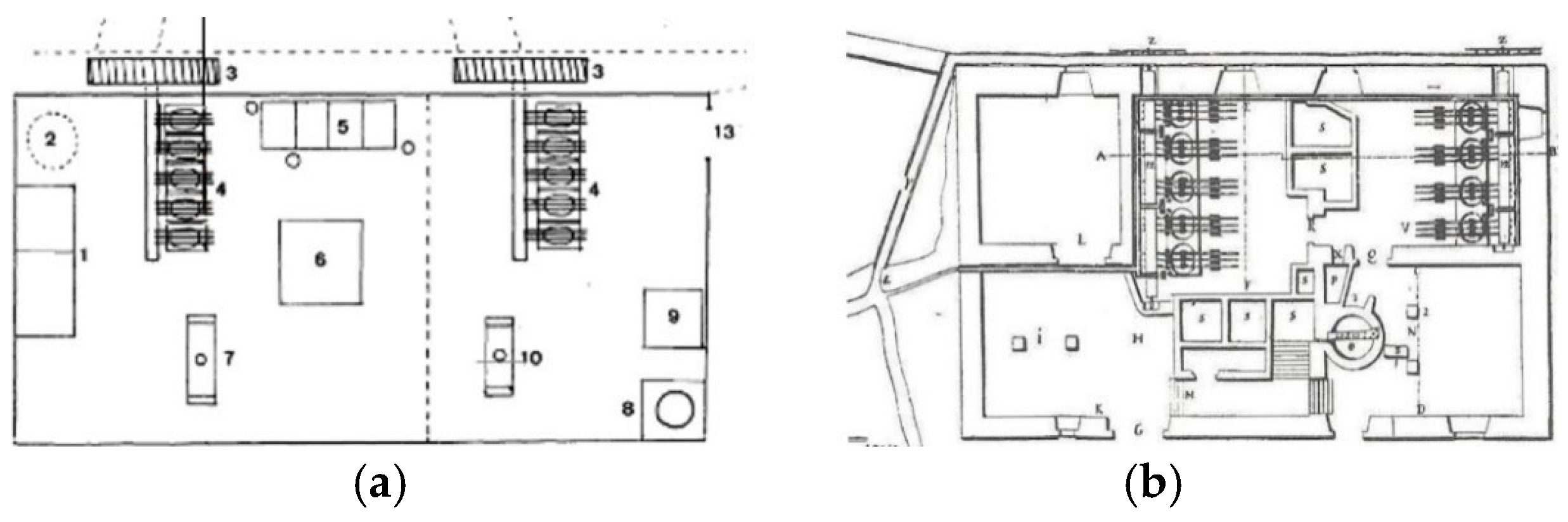
The process of synthesizing all the studied information has enabled the reconstruction of the paper mill at Locks 11–12, along with its machinery, and has provided a comprehensive understanding of its full operation. It has been determined that this facility consisted of several buildings, each with specific functions (Figure 15).
Figure 15.
The paper factory at Locks 11–12 of the Canal de Castilla (graphic reconstruction).
Building A was dedicated to the transformation, production, handling, and distribution of paper, while the adjacent Building B was used for the sizing process. Warehouse C served as both a carpentry workshop and an additional drying loft. Building D was reserved for employee housing, and the hauling stable E was designed to accommodate the draft mules. It has been confirmed that all these structures predate 1800 and were an integral part of the facility from its inception. Additionally, there was a small storehouse for food supplies and a chapel, although no remains of these buildings have survived [44,98,99].
Buildings A, B, and C encompassed all activities directly related to papermaking. Within them, the precise location of all departments essential to the process has been identified (Figure 16).
Figure 16.
Paper factory departments (graphic reconstruction).
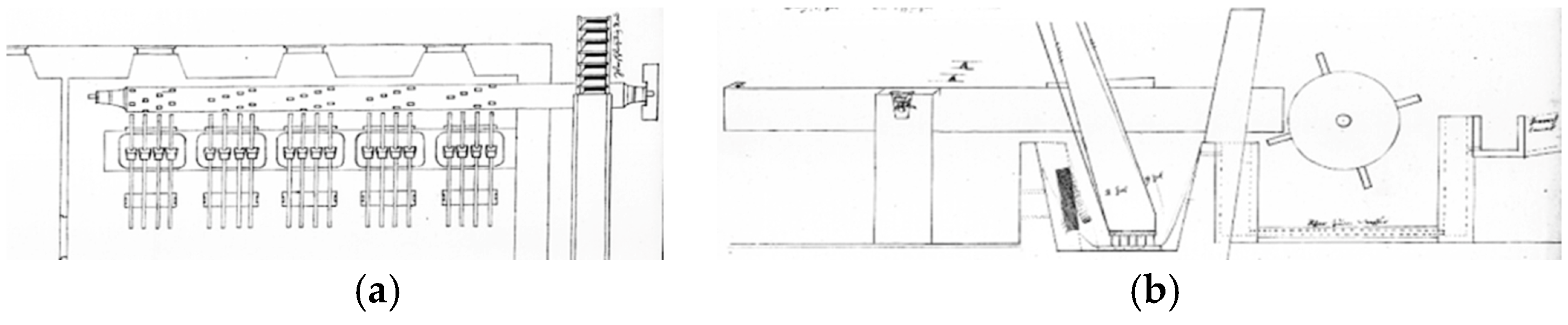
In addition, both the complete equipment of the factory and the machinery required for its operation have been thoroughly documented (Figure 17).
Figure 17.
Paper factory (graphic reconstruction): (a) Basement; (b) Ground floor; (c) First floor.
The main building (A) was situated over a bypass channel of the Canal de Castilla and was designed along a primary north–south axis of symmetry (the direction in which the water flowed through the building). It had two floors (25.5 × 30 m) above a semi-basement, organized around a small interior courtyard (8.5 × 5 m). Attached to the mill was the sizing workshop (B), while the warehouse (C) was located separately from both [99].
Utilizing the natural slope of the terrain, two stamp battery sets were installed in the north wing of the ground floor and two more in the south wing of the semi-basement. These pairs of batteries (each consisting of six stampers) were separated by channels with their corresponding waterwheels [99,112].
The mill’s water system was found to have four inlet channels in the headrace: two external ones, each 0.8 m wide, designated for the waterwheels, and two internal ones, 0.64 m wide, reserved for drainage. The latter two converged into a single drainage channel behind the masonry block that provided access to the lower wheels [104,107,108]. As a result, the south façade of the mill displayed only three outlet arches in the tailrace (Figure 18).
Figure 18.
Paper mill with the gelatine sizing room (graphic reconstruction): (a) North elevation; (b) South elevation.
It has been confirmed that the total drop of the locks (6.65 m) was distributed across two equal hydraulic falls (3.33 + 3.32 m), each designed to power a pair of independent waterwheels [107]. Based on the dimensions of the channels and the elevation levels within the building, it has been determined that the waterwheels were 0.6 m wide, with diameters of 2.7 m for the upper wheels and 3 m for the lower ones.
The small interior courtyard, in addition to providing natural light to several rooms within the mill, also served as a water reservoir prior to the second hydraulic drop (Figure 19).
Figure 19.
Paper mill (graphic reconstruction): (a) Longitudinal section; (b) Cross section.
As for the east and west façades, they exhibited apparent symmetry, with differences in the spacing between openings on each side, as well as additional openings in the south wing of the semi-basement [68,69]. The axis of symmetry for both façades was defined by the two entrance doors to the mill, the main one being on the west side [104,107]. Above this main entrance was the quartered coat of arms bearing the symbols of Castilla y León, a distinctive emblem of this Royal Paper Mill [104]. This was the natural access point from the lock bridge, which connected both to the workers’ housing and to the nearby village of Olmos de Pisuerga (Figure 20).
Figure 20.
Paper mill (graphic reconstruction): (a) West elevation; (b) East elevation.
Next to the main entrance were the administrator’s office and the warehouses for finished paper, intended for distribution or sale, both located in the southwest corner [107]. The opposite entrance was likely used for the supply of rags, which were stored in the southeast corner. From this storage area, the rags were taken to the sorting room, located at the centre of the south side on the ground floor. From this room, the raw material (the rags) could be dropped directly into the fermentation pits in the basement for rotting, followed by washing and shredding in the lower stamp batteries [107]. It is also possible that this room contained a scythe or cutter to facilitate these tasks (Figure 21).
Figure 21.
Lower stampers and retting pit (graphic reconstruction).
On the ground floor, in the upper stamp batteries, the processing of the paper pulp was completed. After resting in the storage tanks, the pulp was transported to the adjacent workshop, where the sheets were formed (Figure 22).
Figure 22.
Upper stampers and workroom (graphic reconstruction).
The remaining operations to complete the paper were carried out on the first floor, following a well-organized process: initial drying in the south drying loft, sizing and pressing in the sizing room, second drying in the north drying loft, final pressing and burnishing in the burnishing room, and the formation of reams in the accountant’s office [99,102].
Once the reams were formed and labelled, they were ready for distribution and were moved to the warehouse located on the ground floor, near the main entrance of the mill and adjacent to the administrator’s office. The plans by Fungairiño (1921) and AGCHD, sign. 076 (possibly 1863), both place a series of offices or rooms in the southwest corner of the ground floor, next to the main entrance, which were likely intended for this purpose [104,107].
Each of the four stamp batteries in this mill had six pits. The machinery of each battery consisted of a waterwheel and a camshaft that operated three hammers per trough. The dimensions and measurements of the entrance channels of the artefact [107] and of the machines employed in Spanish mills [91,97] have been analysed in detail. In addition, the representation of the pits in Luís Alonso’s plan has been considered [106]. Taken together, these findings indicate that the layout of the upper batteries conforms to the standard design commonly used in other paper mills (see Figure 23).
Figure 23.
Upper stampers (graphic reconstruction).
However, in the case of the lower stamp batteries, it was discovered that their orientation was reversed, requiring an intermediate mechanism—such as a rocker arm—for proper operation [107] (Figure 24).
Figure 24.
Lower stampers and retting (graphic reconstruction).
4. Discussion
The main outcome of this research is the complete formal and functional reconstruction of the demolished paper mill. Thanks to this achievement, it is now possible to understand in detail its organization, the distribution of its departments, the equipment it housed, the characteristics of its machinery, and its operational dynamics. Until now, no prior study had been conducted on this mill—let alone from an engineering or architectural perspective. The scarcity and dispersion of direct data had made any attempt at reconstruction particularly challenging.
This achievement has been made possible thanks to the applied methodology, which includes a thorough examination of information from indirect sources, as well as a complex process of data integration using highly precise 2D software. This system has enabled the accurate definition of critical dimensions and elevation levels for the analysis and placement of existing machinery, in addition to reconstructing its operation with a high degree of reliability.
The graphical results obtained demonstrate the effectiveness of the materials and methods used to faithfully reconstruct an element of industrial heritage, even when it has physically disappeared. This methodology, which is adaptable to other cases, faces significant limitations when, in addition to the absence of material remains, the available documentary sources lack even minimal information. It has been shown that in-depth knowledge and thorough analysis of the technology, machinery, and processes associated with a given industrial asset are essential for its recovery. Likewise, it is crucial to examine all existing historical sources related to machine drawings [80,81,82,83].
The layout and operation of the essential departments of this factory, as well as the reconstructed mechanisms and tooling, exhibit complete consistency with the technological level typical of the late eighteenth century [84,85,86]. Furthermore, they correspond with other contemporary paper mills [89,90,92,93,94,95,96,97] and align with the descriptions compiled from the documentary and bibliographical sources analysed [42,44,45,98,99,100,101,102,103,104,105,106,107,108,109,110].
The location of this paper mill at Locks 11–12 was not an arbitrary decision but rather the result of careful industrial planning carried out on the Canal de Castilla during the 18th century. Its placement took advantage of the canal’s first double lock, which had a greater hydraulic head, to power large-scale machinery. At the same time, it maintained a strategic distance from the fulling mill installed in 1791 at lock 7, thus avoiding the dirty water discharged into the canal after the washing, fulling, and dyeing processes of the fabrics. With the transformation of this fulling mill in 1800 for leather processing, the mill gained an additional advantage: it was well connected to it, enabling it to utilize the fleshings discarded in the tannery. These fleshings, transported by boats along the canal, constituted the primary raw material for paper sizing [78].
The layout of this facility reveals a clear separation between the industrial zone and the residential and service areas, as well as a well-defined spatial organization along the Canal. The industrial zone was located on the left bank, arranged around a small open square facing the watercourse, while the residential zone was situated on the right bank (Figure 15). The industrial area was composed of three buildings or pavilions, each adapted to different stages of the papermaking process: the main building (housing the hydraulic machinery) for paper production; the gelatine sizing room, attached to the main building, for sizing the paper; and the carpentry workshop and wood warehouse, used for machinery repairs and featuring an additional drying loft on the upper floor [99,102]. The residential area included a block of twelve houses for workers, a small storehouse for food supplies, a stable, and a chapel [99,110]. No physical remains of the chapel survive, nor is its exact location known, although it is mentioned in some historical sources [46].
The separation between the residential and industrial zones represents a significant innovation and a notable improvement over other papermaking establishments of the time. In many of those, worker housing was not even considered, while in others—such as the Catalan mills—an entire floor within the same building was allocated for employee quarters [93,94,95]. In contrast, this factory chose to construct a separate building, located on the opposite side of the Canal, dedicated exclusively to housing. This decision aimed to mitigate the impact of the constant noise produced by the uninterrupted beating of the paper pulp, which continued 24 h a day. The residences included their own yards and stables and also benefited from their proximity to the small village of Olmos de Pisuerga [46,99,102]. The entire complex can be considered a “modern” factory for its time, as it not only integrated a complete production process but also incorporated all the necessary elements to improve and dignify the working conditions of its employees.
The main building of this factory features a bridge-mill structure built over the diversion channel—an idea previously implemented by Homar in the early fulling mills and flour mills along the Canal of Castile (Figure 18). The bridge-mill concept allowed for the installation of multiple hydraulic wheels inside the structure, arranged in parallel (in pairs), whereas most traditional paper mills had to place their wheels outside and in series (aligned one after another) [11]. It has been documented that in the now-lost Royal Paper Mill of San Fernando de Henares, both configurations coexisted: the original mill had two hydraulic wheels on the exterior, while the 1786 extension was built over the channel to accommodate two parallel wheels, aiming to maximize water power and double the number of vats. However, in San Fernando de Henares, this new wing did not form a true bridge, as it lacked access from the opposite bank (Figure 11b) [97]. In contrast, at the paper mill located at Locks 11–12, the entire building was symmetrically positioned over the channel, with entry and exit points on both sides.
The central and symmetrical position of the hydraulic tunnel, housing two pairs of wheels, represents a notable innovation compared to other studied paper mills (Figure 17a,b). A similar layout is known only in the Royal Anchor Factory of Fagollaga (Guipúzcoa), built around 1750—a different type of industry that may have served as a reference. This configuration divided the mill’s floor plan into two symmetrical halves, which in this case were used to produce different grades of paper. After the selection and sorting of rags, two separate processing lines were initiated for the raw material, with each half of the mill specializing in a distinct type of paper. The purpose of this design was to prevent cross-contamination during subsequent operations between the pulp used for coarse wrapping paper (estraza) and that intended for white paper, thereby avoiding the soiling of the stampers, tanks, and the vat.
It is evident that, although its technology is rooted in the early guild-based manufacturing traditions (with paper made by hand, sheet by sheet, directly from the vat), the configuration of this facility marks the beginning of the transition toward the modern factories of the 19th century, already linked to an industrial production context. The machinery and equipment remained traditional—vats, stampers, beating pits, presses, and so on—and both the workflow sequence and the required workspaces for each phase were unchanged compared to other paper mills. However, the layout of the work areas and the optimization of the raw material’s movement through the facility were carefully planned, to improve the production process and significantly increase manufacturing volumes.
Unlike the large Catalan mills, which were characterized by a vertical development of up to five levels, the main building of the paper mill at Locks 11–12 significantly reduced its height [93,94,95]. The aim was to achieve a more horizontal distribution of the numerous operations involved in papermaking. This layout facilitated the movement of materials throughout the entire building as they were progressively transformed and refined into finished sheets.
It can also be observed that the design of the main building does not follow an abstract or undefined spatial concept, as was common in other papermaking facilities. Its organization had evolved toward a more deliberate appreciation of its components—workshops and auxiliary spaces—through two key elements: the courtyard, which articulated the spaces and improved natural lighting, and the axis of symmetry, which provided structural order (Figure 17). Both concepts had already been tested by military engineers in certain compact or “block-style” manufacturing complexes, such as the Royal Foundry of Sevilla (1767–1775) and the Royal Sword Factory of Toledo (1772–1783) [64,65]. However, unlike those examples, the central courtyard in the paper mill at Locks 11–12—smaller in scale—was not intended as a workspace nor did it facilitate internal circulation. Its primary function was to generate the mill’s second hydraulic drop by impounding water through a large masonry structure that acted as a dam [107].
From a construction standpoint, it is confirmed—as is the case with all royal manufactories—that this was an eminently functional building, devoid of decorative or aesthetic concerns. The only ornamental concession was the quartered coat of arms of Castile and León displayed on the façade (Figure 20a) [104]. On the two upper floors, only the corners and the door and window jambs were made of ashlar stone; the rest of the lower floor walls were built with ordinary masonry and brick backed with adobe, while the upper walls were coated with lime plaster (Figure 18 and Figure 20). All ceilings consisted of wooden beams with plaster infill, and the floors were made of ordinary stone slabs or tiles. The roof structure and all the machinery—wheels, shafts, and stampers—were made of wood [100,101,102]. The mill’s vats, as in other Spanish examples, were made of stone [102,103,110]. This contrasts with the French illustrations and descriptions by La Lande and Diderot, in which the vats are depicted as cavities hollowed out of a thick, long piece of wood [84,85].
The strength and solidity of the lower section of the main building are particularly noteworthy, as it was constructed with robust stone masonry to withstand the pressure of the water (Figure 13). The massive structure on the south side of the water reservoir, over 3.50 m thick, not only contributed to the building’s stability but also housed the floodgate mechanisms, which were accessible from the walkway that extended across its top and connected the two entrance halls on the ground floor (Figure 19a). The south wall of the basement, located on the downstream side, reached a thickness of 1.45 m. The exterior walls of the ground floor measured 1.10 m thick on three sides and 1.40 m on the north side, where the intake channel was located. The side walls of the hydraulic tunnel were 0.90 m thick [107,108].
It is also known that the purifiers—an element La Lande considered important in paper mills—were omitted from the factory at Locks 11–12, based on the assumption that the waters of the Canal were clean enough for soaking and beating the rags [42]. For this reason, no space was allocated for them in the reconstruction, as it has been demonstrated that they were never part of the original facility. Historical records indicate that, after initial trials and the production of defective samples, it became necessary to address this issue by channelling water from nearby springs directly to the mill’s vats for papermaking [109]. A few years later, the new paper mill built at Viñalta (Locks 31–32) corrected this problem by incorporating an annex at the water intake—known as the “purifier house”—specifically designed to filter and purify the water [30].
The presence of wing walls and groins has been identified at both the inlet and outlet of the channels connected to the main building [104]. These elements served a dual purpose: on one hand, they acted as retaining walls to prevent water seepage into the mill, particularly at the intake channel (millrace); on the other, they facilitated the formation of external footbridges connecting both sides of the watercourse (Figure 18). Additionally, on the north side, they provided direct access to the operation of the upper floodgates located outside the building [107].
All the clean stages of the papermaking process were concentrated on the two upper floors of the main building: selection and sorting of rags, refining, dilution and resting of the pulp, sheet formation, pressing, drying, burnishing, and other necessary handling tasks. The semi-basement level housed the more unsanitary operations, due to the humidity and unpleasant odours released during the fermentation, cutting, washing, and shredding of the rags (Figure 17). However, unlike other paper mills, these spaces were equipped with windows for lighting and ventilation, improving the working conditions [107].
Comparison with other manufactories reveals that the equipment of this factory—4 wheels, 4 stamp batteries, 24 vats, and 2 working vats—was on par with the most significant facilities of its time and superior to the Catalan mills [93,94,95,96,97]. Regarding the number of stampers, it has been determined that each vat was equipped with three stampers striking it, as observed in all studied Spanish mills [89,90,91,92,93,94,95,96,97]. All of them followed the model described by La Lande, rather than other graphic sources, such as Diderot, Schickhardt, or Sturm, which depict a greater number of stampers, ranging from four to seven [85,86,87].
The project to convert this factory into a hydroelectric power station, carried out by engineer Fungairiño in 1921, irreversibly altered the main building and contributed to its eventual disappearance [107,108]. However, the architectural plans documenting the state of the facility prior to the intervention provide highly precise data and measurements that now make it possible to accurately identify the location of the channels and faithfully reconstruct both the position and dimensions of the hydraulic wheels (along with their respective camshafts). The findings are consistent with other similar installations and align with the models illustrated by La Lande and Diderot [84,85]. It has been determined that the upper hydraulic wheels had a diameter of 2.70 m, while the lower ones reached 3.00 m. These dimensions were necessary for their operation as Vitruvian wheels powered from below and ensured that the camshaft was positioned at the correct height to lift the stampers (Figure 19a).
It has also been observed that the lower wheels were positioned with great precision within the limited space between the large masonry block of the inner courtyard and the south wall [107]. This made it impossible to place the basement stamper vats on the usual side relative to the rotation of the camshaft. The arrangement shown in the architectural plans is the only viable option, also allowing adequate access for workers to remove the rag pulp (Figure 21 and Figure 24). It is believed that the technical solution adopted to operate the stampers may have been the ingenious, yet simple rocker-arm system described by Sturm in 1718 [87]. With this configuration, in addition to the shredding vats (where the rags were washed and torn apart), the basement also accommodated the retting pits (their natural location) and possibly the scythe or cutter (used to cut the rags), as described by La Lande [84].
A thorough analysis of the data leaves no doubt regarding the number and arrangement of the factory’s main machinery—wheels, vats, and stampers. It also confirms the existence of two vats associated with each of the upper stamper sets, which supports the possibility of simultaneously producing two clearly distinct types of paper: white and coarse (brown paper) [99,102,109,112]. The use of two vats to increase mill output had already been implemented in other manufactories, though always within the same workspace or vat room [93,94,95]. The innovation at the Locks 11–12 paper mill lies in the existence of two completely separate workshops, each equipped with its own vat. However, there remains some uncertainty regarding the number and exact placement of auxiliary elements such as tanks, benches, and presses, whose arrangement has been represented hypothetically in the architectural plans (Figure 22).
It has been discovered that, in this factory, the rag-sorting room occupied a strategic position at the centre of the south side of the ground floor. It was in this space that the production process split into two distinct lines for the two types of paper mentioned earlier (Figure 17b). Following the model described by La Lande and Diderot, the selected rags were dropped directly into the basement of the mill, which—being crossed by the water channel—was divided into two sections [104]. There were thus two separate retting pits, which can be identified with the remains of noques or stone basins mentioned by Fungairiño in the report for his 1921 project [107]. This layout required two openings on the ground floor—one on the east side and the other on the west. Higher-quality rags (such as cloth, linen, or fine hemp) were dropped through one side for the production of white paper, while waste materials (such as espadrilles, baskets, sacks, and rope ends) were thrown through the other side to produce brown paper (Figure 17a). Although precise data is lacking, the plans distinguish between the two processes, attributing the production of white paper to the east side, given its proximity to the main entrance of the mill, the administrator’s office, and the finished paper warehouse (Figure 17b).
This innovative layout of the rag-sorting room allows for the hypothetical placement of two rag-cleaning machines or “devils,” powered by the hydraulic wheels located directly beneath, using lantern gears. This mechanical solution for cleaning rags—unlike the manual rag-cleaning devices used in other Spanish mills—may have been similar to the one employed at the Royal Paper Mill of San Fernando de Henares, where hydraulic wheels drove two burnishing hammers located directly above through a system of gears [97].
On the upper floor was the perimeter drying loft, which surrounded two symmetrical rooms lit by the small central courtyard, as shown in the architectural plans [102,105]. The proximity to the drying loft and, above all, the detailed descriptions of the papermaking process by La Lande and Diderot (among others), suggest that these two rooms were used for burnishing and sheet counting, although there are no data to determine which side housed each function (Figure 17c). There is also no evidence of hydraulic burnishing hammers on this floor, such as those used in some mills [97]. However, it is possible that one or two manual burnishing stampers were present, of the type described by Diderot [85].
The gelatine sizing room was clearly configured as an independent space [102,105]. The separation of this activity represents an innovation compared to other mills where sizing was also carried out [93,94,95]. Its construction—detached but adjacent to the main building—was intended to reduce the risk of fire caused by the hearth used to boil the fleshings (Figure 17b). This room had its own entrance from the outside and a direct connection to the first floor of the mill, where the drying loft or gallery was located [102,105].
As for the third building—the separate warehouse—various descriptions indicate that it included an additional drying loft (Figure 16) [99,102]. This loft was likely used for drying rags when they arrived wet, as mentioned by La Lande in his work [84].
Taken as a whole, this factory model represents an innovative solution, designed with a dual circuit that allowed for the simultaneous production of two types of paper. The process began in the rag-sorting room on the ground floor, from where the rags were dropped into the semi-basement, splitting to either side of the lower wheels. From there, the shredded rag pulp rose on each side to the upper stamper sets, where it was refined into paper pulp, and the sheets were formed in the vat workshops. The freshly formed paper stacks created on both the east and west sides converged in the drying loft on the upper floor. Once dried, the sheets were sized (in the gelatine sizing room), then dried again, burnished, counted, and grouped into reams—operations also carried out on the upper floor. Finally, the reams of paper were brought down to the ground-floor warehouse for distribution and sale (Figure 17).
The symmetrical layout tested in this factory served as the model for the construction, just a few years later (1801–1803), of a larger facility at Locks 31–32 in Viñalta (Palencia). This new factory, which had four floors, six stamper sets, and three pairs of hydraulic wheels, incorporated significant modifications. In addition to the new annex for the purifiers, the internal staircase system was improved by aligning it with the stepped structure of the building to minimize travel distances. However, despite these enhancements, the Viñalta factory never included a residential area for its workers [30].
5. Conclusions
From a methodological standpoint, the most significant contribution of this work lies in the implementation of the analytical–synthetic method, applied through a holistic and integrated approach. This process culminates in the creation of an accurate graphic representation that gives form and meaning to the findings obtained.
The most innovative contributions of the research conducted are as follows:
- The complete recovery of the layout of the vanished paper mill.
Until now, it had been entirely unknown, and no study had ever been conducted on it. Neither its operation nor its configuration was understood. No plans of the original project have been preserved, and the remains of its foundations lie hidden beneath overgrowth. The discovery of new and varied sources—mainly from the AGCHD—now makes it possible to accurately reconstruct both the layout of the main building and the operation of its machinery. On one hand, written sources describe devices and departments (wheels, stampers, vats, retting pits, etc.) that define a traditional paper-making system, consistent with the descriptions by La Lande [84]. On the other hand, graphic sources reveal an innovative and carefully planned construction designed to organize that manufacturing process.
Among the most revealing graphic sources is the 1921 project by Fungairiño, noted primarily for the precision of its details and the accuracy of its measurements [107,108]. The analysis and comparison of all available data have revealed the following significant inaccuracies and errors in other graphic sources that, until now, had been considered reliable:
- The west elevation depicted by Homar in 1808 [48] (Figure 1a) does not accurately reflect reality. The drawing shows a significantly longer building, with dormer windows, lacking a coat of arms, and with the culvert incorrectly positioned. This image appears to have been deliberately exaggerated by the author, possibly to draw the attention of high-ranking officials to a declining Royal Paper Mill to which he had devoted nearly half of his life. The dimensions and appearance of this idealized representation do not match those found in other documents or in later depictions, such as the one included in the 1853 transformation project [107].
- The photograph from 1920 to 1930, published in Helguera’s 1992 work [48] (p. 37), has been incorrectly attributed to this mill. It corresponds to the third mill, built in 1922 over the fulling mill at Locks 22–23–24 in Calahorra de Ribas.
- The plans drawn by Luís Alonso in 1901 [106] (Figure 12c) show a design with a water system positioned off-centre, including two courtyards, and featuring an incorrect number of channels.
- The location plan included in the 2001 Regional Plan for the Canal de Castilla [71] (Figure 5b)—a regulatory document governing any intervention in the Canal—shows an incomplete configuration of the mill. Likely based on the barely visible remains of the foundations, this plan depicts a layout of the main building that does not correspond to the original floor plan of the mill.
- 2.
- The identification of distinctive features in this mill reveals the following key innovations that were incorporated into its design:
- Diversification of buildings: The mill consisted of several specialized structures with different functions, including a residential area for employees.
- Configuration of the main building: Designed as a symmetrical bridge mill over the diversion channel, the main building integrated two pairs of internal waterwheels arranged on two levels.
- Rationalization of spaces and workflows: The organization of labour aimed to improve the production process. This new approach marked the beginning of the transition from early guild workshops to the modern factories of the 19th century, already embedded in an industrial production context.
- Improvements in environmental conditions: Enhancements were made to ventilation, lighting, and fire safety, as fires were commonly caused by the stove located in the sizing office.
- Strategic location of the rag-sorting room: Positioned strategically, it facilitated the division of the paper-making process into two independent circuits.
All these innovations in the factory’s design stand in contrast to another significant finding: the obsolescence of its original machinery. It never incorporated the technological advances that would have accelerated the manufacturing process while optimizing space and labour. The Hollander beater, more efficient than hydraulic stampers and with greater capacity than traditional vats, had already become widespread in Spain by the late 18th century. Likewise, the continuous paper machine, which marked the beginning of the sector’s mechanization, emerged strongly in the early 19th century. However, none of these advancements were ever adopted during the building’s operational life. It could be said that the architectural improvements introduced reduced the building’s flexibility, making it difficult to update or integrate new mechanisms. This technological lag—combined with the Peninsular War (1808–1814) and the lack of resources in the following years—led to the factory’s decline, its failure to modernize, and its relatively brief period of operation. It functioned regularly from 1793 until the 1830s, after which leasing it became increasingly difficult. The factory continued to use the same machinery and artisanal paper-making process with which it had been founded. Around 1847, various possibilities for converting it to another type of industry were explored, but none succeeded, and the building remained unused and abandoned until its adaptation as a hydroelectric power station in 1921. Ultimately, due to its poor state of preservation, it was demolished in 1983.
- 3.
- The establishment of connections between this mill and other Royal manufactories.
The overall organization of this mill fits within the movement initiated in Spain by military engineers in other Royal manufactories during the 18th century. Royal Factories such as San Sebastián de la Muga (Girona) in 1771 and San Juan de Alcaraz (Albacete) in 1773 had already experimented with this dispersed or “pavilion-style” model. There was a strict separation between industrial, residential, and service areas, each developed according to the specific needs of production. It was believed that linking workers to the factory improved their social and economic conditions. The mill at Locks 11–12, like other Royal Factories, represents a small Enlightenment-era experiment in combining habitation and industry. These contributions are attributed to military engineers such as Juan de Homar, director of the works and a key figure in promoting industrial development along the Canal de Castilla. His solid scientific and technical training enabled him to design and implement the innovations required for the ambitious state modernization plan.
5.1. Limitations of the Work
The main limitation of the research conducted is the absence of physical remains and the scarcity and dispersion of data. Rigorous studies on the historical evolution of papermaking and paper technology up to the 18th century partially compensate for this lack of information. Comparison with similar contemporary facilities has been crucial for understanding the state of the art in its time and context.
The inability to take on-site measurements and data, along with the scarcity of images or photographs, prevents the verification of some of the results obtained—such as the exact location of the wood warehouse and the arrangement of certain minor elements inside the mill (vats, presses, tanks, sizing boiler, etc.). However, it is important to emphasize the validity of the overall reconstruction, including its main machinery, which remains consistent with all the gathered and cross-checked data (projects, plans, and descriptions).
The precise identification of the different levels of historical fidelity is regarded as an indispensable requirement for underpinning and enhancing the future development of the immersive experience at this industrial site. In line with the recommendations of the London Charter [67] and proposals from authors such as Kensek [117], a static representation has been developed that employs a colour-coded scheme to illustrate the level of confidence in various elements of the reconstruction (Figure 25).

Figure 25.
Reconstruction confidence level: (a) Basement; (b) Ground floor; (c) First floor.
While 2D reconstructions are valuable tools for obtaining an initial visualization of distribution and functionality, it is crucial to recognize their limitations. Due to their two-dimensional nature, they entail an inevitable loss of depth and volume perception, distortions in the restitution of spatial relationships, and a certain degree of subjectivity in their interpretation.
5.2. Future Work
As new lines of research and further exploration, it is proposed to form a multidisciplinary team comprising historians, archaeologists, engineers, architects, and 3D digitization specialists to collaboratively work on the following tasks:
- Identification of new sources and data: Old photographs, drawings, oral histories, records, private archives, etc.
- Conducting archaeological studies: Excavation of the foundations and other remains hidden by vegetation to verify their locations, elevations, and dimensions. Once the vegetation is removed, techniques such as traditional surveying, laser scanning, and UAV photogrammetry may be employed. Implementation of measures to conserve and enhance the remains of the facility.
- 3D digitization of the site: Three-dimensional reconstruction of the material remains within their context.
- Creation of hyper-realistic 3D models: Visualization and documentation of the paper mill using photorealism and immersive virtual reality (VR) technologies. The virtual reality model of the building and its machinery can be used to demonstrate the manufacturing process and interact with its elements for the purposes of educational and scientific dissemination.
- Enhancement of the Canal de Castilla’s tourism resources: Installation of informational panels near the paper mill, incorporating interactive augmented reality (AR) and mixed reality (MR) features.
- Creation of 3D physical models, both individual machines and the entire system, to improve data interpretation and facilitate its dissemination.
- Further exploration of the papermaking process in terms of Intangible Cultural Heritage.
- Expansion of the study to other industrial sites along the Canal de Castilla: Documentation and dissemination of its rich industrial heritage.
Although it is not possible to physically restore the original conditions of this vanished factory, the graphic reconstruction carried out allows us to recreate its original appearance and operation, while also enhancing the environmental character of an industrial site that should not be lost. The past activities and technologies revealed by this work can be visualized through virtual reconstructions to preserve, communicate, and socially project them. These actions not only safeguard history and culture but also give value to the memory of labour and the traces of industrialization by promoting sustainable tourism and benefiting the local economy.
All the technological data collected, and the graphic reconstruction carried out, also help to interpret the final years of artisanal papermaking in Spain, laying the groundwork for the prelude to the Industrial Revolution of the 19th century.
Author Contributions
Conceptualization, J.M.G.-B.; methodology, J.M.G.-B., A.S.-L., V.J.R. and J.L.F.-B.; software, J.M.G.-B.; validation, J.M.G.-B. and A.S.-L.; formal analysis, J.M.G.-B. and A.S.-L.; investigation, J.M.G.-B., A.S.-L., V.J.R. and J.L.F.-B.; writing—original draft preparation, J.M.G.-B.; writing—review and editing, J.M.G.-B., A.S.-L., V.J.R. and J.L.F.-B.; visualization, J.M.G.-B. All authors have read and agreed to the published version of the manuscript.
Funding
This research was funded by Subvenciones Destinadas al Apoyo a Grupos de Investigación Reconocidos (GIR) de las Universidades Públicas de Castilla y León (2024), grant number 777441, Consejería de Educación de la Junta de Castilla y Léon.
Data Availability Statement
The data are available from the authors of the study upon request.
Acknowledgments
This paper is based on the ongoing research of the Recognized Research Group—Rodrigo Zamorano of History of Science and Technology, Mechanical Engineering, Manufacturing Engineering, and Graphic Expression in Engineering, School of Industrial Engineering and Simancas University Institute of History (University of Valladolid). The authors therefore wish to express their gratitude for the support from that institution.
Conflicts of Interest
The authors declare no conflicts of interest. The funders had no role in the design of the study; in the collection, analyses, or interpretation of data; in the writing of the manuscript; or in the decision to publish the results.
Abbreviations
The following abbreviations are used in this manuscript:
| AGCHD | General Archive of the Confederación Hidrográfica del Duero |
| AHCC | Historical Archive of the Canal de Castilla |
| CAD | Computer-Aided Design |
| CDF | Documentary Collection of Factories |
| FACC | Administrative Collection of the Canal de Castilla |
| TICCIH | The International Committee for the Conservation of the Industrial Heritage |
| PCC | Projects for the Canal de Castilla |
References
- Cipolla, C.M. Before the Industrial Revolution: European Society and Economy 1000–1700, 3rd ed.; Routledge: London, UK, 2004. [Google Scholar] [CrossRef]
- Crompton, G.W. Canals and the Industrial Revolution. J. Transp. Hist. 1993, 14, 93–110. [Google Scholar] [CrossRef]
- Pérez Sarrión, G. La política de construcción de canales. Una aproximación. In Técnica e Ingeniería en España, Vol. II, El Siglo de las Luces. De la ingeniería a la Nueva Navegación; Silva Suárez, M., Ed.; Institución Fernando el Católico: Zaragoza, Spain, 2005; pp. 429–468. [Google Scholar]
- Muller, J.; Sánchez Taramas, M. Tratado de fortificación, ó Arte de construir los edificios militares, y civiles. In Tomo Segundo; Thomas Piferrer: Barcelona, Spain, 1769. [Google Scholar]
- Larruga, E. Memorias políticas y económicas sobre los frutos, comercio, fábricas y minas de España. In Tomo XXXII; Antonio Espinosa: Madrid, Spain, 1794; p. 254. [Google Scholar]
- Benito Arranz, J. El Canal de Castilla (memoria descriptiva). Vol. II.; In Colección Academia Nueva; Publicaciones del Departamento Provincial de Seminarios del FET y de las JONS: Valladolid, Spain, 1957. [Google Scholar]
- Ulloa, F. Detalle del Plano y Proyecto General de el Canal de Navegación y Riego que da Principio en el Estrecho de Nogales…. [Detail of the Plan and General Project of the Navigation and Irrigation Canal Beginning at the Strait of Nogales…] Archivo General Militar de Madrid (AGMM), Cart., Sign. ESP-07/10, 1760. Biblioteca Virtual de Defensa > Plano y Proyecto General de el [sic] Canal de Navegación... (Fragment Reproduced in Helguera Quijada, J.; García Tapia, N.; Molinero Hernando, F. El Canal de Castilla, 1st ed.; Junta de Castilla y León: Valladolid, Spain, 1988; p. 53. [Google Scholar]
- Ulloa, F. Plano y perfil de las dos inclusas unidas construidas en el barranco de Olmos. Detalle del Plano general de los proyectos de los Canales de Castilla la Vieja con las porciones que ya estaban abiertas y las que faltan de abrir para su conclusión [Plan and Profile of the Two Connected Locks Built in the Barranco de Olmos. Detail from the General Plan of the Projects for the Canals of Old Castile, Including the Sections Already Opened and Those Yet to Be Completed]. Archivo General Militar de Madrid (AGMM), Cart., sign. ESP-07/11, 1775.
- Homar, J. (attributed). Detalle del “Plano general del proyecto ejecutado y por ejecutar de los Canales de Castilla que comprende desde Olea a la ciudad de Segovia y así mismo el nuevo que le une desde Quintanilla de las Torres á Golmir, distante un quarto de legua de la villa de Reynosa” [Detail of the “General Plan of the Executed and Planned Project of the Canals of Castile, Covering from Olea to the City of Segovia, Including the New Section Connecting Quintanilla de las Torres to Golmir, a Quarter League from the Town of Reynosa”]. Archivo General del Ministerio de Fomento (AGMF), Map, ref. OH-7, 179.
- Jovellanos, G.M. Expedición al canal de Campos. In Diarios (Memorias Íntimas) 1790–1801; Instituto de Jovellanos, Ed.; Instituto de Jovellanos: Gijón, Spain, 1915; pp. 38–57. [Google Scholar]
- Geijo-Barrientos, J.M.; Zulueta, P. El Canal de Castilla: Molinos, fábricas y otros artefactos. COIIM Rev. inf. Col. Ing. Ind. Madr. 2010, 47, 22–32. [Google Scholar]
- De la Cruz Macho, F.J. De espaldas al río. La incidencia del ferrocarril en la expansión urbana de la ciudad de Palencia. Publ. Inst. Tello Téllez Men. 2010, 81, 231–250. [Google Scholar]
- Domínguez Aparicio, J. Un proyecto ferroviario fallido: El trazado de la línea Alar-Palencia por Carrión. Publ. Inst. Tello Téllez Men. 2023, 93, 179–191. [Google Scholar]
- López Linage, J. El Canal de Castilla: El recuerdo de un sueño ilustrado. Publ. Inst. Tello Téllez Men. 1985, 52, 153–171. [Google Scholar]
- Moreno Lázaro, J. La Industria Harinera en Castilla la Vieja y León, 1778–1913. Ph.D. Thesis, Universidad de Valladolid, Valladolid, Spain, 1997. [Google Scholar]
- Moreno Lázaro, J. La harinería castellana y el capitalismo agrario en el tránsito a la industrialización: 1788–1868. Hist. Agrar. Rev. Agric. Hist. Rural 2002, 27, 165–190. [Google Scholar]
- Moreno Lázaro, J. Protección arancelaria, distorsiones de mercado y beneficios extraordinarios: La producción de harinas en Castilla la Vieja, 1820–1841. Rev. Hist. Econ. 1995, XIII, 227–250. [Google Scholar]
- Guerra Garrido, R. El Canal de Castilla: Un Plan regional; Junta de Castilla y León, Consejería de Fomento, Ministerio de Fomento: Salamanca, Spain, 2004; Volume 2, pp. 60–492.
- Soria Cáceres, C.H.; Andrés López, G. El estudio del patrimonio industrial en España: Cincuenta años de análisis sobre el legado de la industrialización contemporánea (1972–2022). Cuad. Geogr. Univ. Granada 2023, 62, 208–232. [Google Scholar] [CrossRef]
- Tagil, N. Letter from Nizhny Tagil on Industrial Heritage. In Proceedings of the The International Council of Monuments and Sites (ICOMOS)/The International Committee for the Conservation of the Industrial Heritage Conference, Paris, France, 15 May 2003. [Google Scholar]
- ICOMOS; TICCIH. Joint Principles for the Conservation of Industrial Heritage Sites, Structures, Areas and Landscapes. In Proceedings of the 17th ICOMOS General Assembly, Paris, France, 27 November–2 December 2011; Available online: https://whc.unesco.org/uploads/activities/documents/activity-646-1.pdf (accessed on 15 May 2025).
- Benito del Pozo, P. Territorio, paisaje y herencia industrial: Debates y acciones en el contexto europeo. Doc. d’Anàl. Geogr. 2012, 58, 443–457. [Google Scholar] [CrossRef]
- Decreto 154/1991 de 13 de Junio, por el que se Declara Bien de Interés Cultural con Categoría de Conjunto Histórico a Favor del Canal de Castilla [Decree 154/1991 of June 13, Declaring the Canal de Castilla a Site of Cultural Interest in the Category of Historic Ensemble]. Available online: https://www.boe.es/diario_boe/txt.php?id=BOE-A-1991-20732 (accessed on 15 May 2025).
- Biel Ibáñez, M.P.; Cueto Alonso, G.J. 100 Elementos de Patrimonio Industrial en España; TICCIH España, CICEES, IPCE: Gijón, Spain, 2012; Available online: https://dialnet.unirioja.es/servlet/libro?codigo=507149 (accessed on 15 May 2025).
- Instituto del Patrimonio Cultural de España, Ministerio de Educación, Cultura y Deporte. Plan Nacional de Patrimonio Industrial. Actualización. 2016. Available online: https://oibc.oei.es/uploads/attachments/172/patrimonio_industrial.pdf (accessed on 15 May 2025).
- Sun, L.; Fan, X. Research Hotspots and Future Trends in Canal-Related Industrial Buildings. Sustainability 2024, 16, 5208. [Google Scholar] [CrossRef]
- Guerra Garrido, R. El Canal de Castilla: Un Plan regional; Junta de Castilla y León, Consejería de Fomento, Ministerio de Fomento: Salamanca, Spain, 2004; Volume 1, pp. 51–124.
- Bellido Blanco, A. Aproximación al Patrimonio Industrial de la Tierra de Campos palentina. Publ. Inst. Tello Téllez Men. 2006, 77, 263–293. [Google Scholar]
- Alario Trigueros, M. El paisaje patrimonial del Canal de Castilla. In Paisajes Patrimoniales de España. Significado y Valor del Patrimonio Territorial Español, 1st ed.; Molinero, F., Tort, J., Eds.; Ministerio de Agricultura, Pesca y Alimentación-Ministerio para la Transición Ecológica: Madrid, Spain, 2018; Volume 1, pp. 1050–1065. [Google Scholar]
- Ausín Íñigo, M. Desarrollo Artístico del Molino del Canal de Castilla en el Punto de Viñalta: 1800–1995; Diputación Provincial de Palencia: Palencia, Spain, 1995; pp. 705–714. [Google Scholar]
- Represa Fernández, M.F.; Helguera Quijada, J. La evolución del primer espacio industrial en Valladolid: La dársena y el derrame del Canal de Castilla (1836–1975). An. Estud. Econ. Empres. 1992, 7, 321–352. [Google Scholar]
- Represa Fernández, M.F.; López Linage, J. Arqueología Industrial: Un batán del siglo XVIII. Rev. Arqueol. 1987, 69, 17–24. [Google Scholar]
- Represa Fernández, M.F. Estudio arqueológico del molino de corteza de un batán de curtidos del siglo XVIII. In Proceedings of the XVI Simposio Internacional ICOHTEC, Madrid, Spain, 5–9 September 1988. [Google Scholar]
- Represa Fernández, M.F. Propuesta de conservación del batán de antes y cueros del Canal de Castilla (Palencia). In Proceedings of the Congreso sobre Conservación y Desarrollo de los Recursos del Canal de Castilla, Palencia, Spain, 1990; pp. 249–261. [Google Scholar]
- Rodríguez Pérez, Á.M.; Rodríguez, C.A.; Olmo Rodríguez, L.; Caparros Mancera, J.J. Revitalizing the Canal de Castilla: A Community Approach to Sustainable Hydropower Assessed through Fuzzy Logic. Appl. Sci. 2024, 14, 1828. [Google Scholar] [CrossRef]
- Martín Roda, E.M.; Fernández Portela, J. Recovery of Industrial and Natural Heritage as a Resource for Developing Tourism in the Castille Canal Municipalities. Cuad. Tur. 2023, 51, 255–279. [Google Scholar] [CrossRef]
- Hortelano Mínguez, L.A.; Mansvelt Beck, J. Is heritage tourism a panacea for rural decline? A comparative study of the Camino de Santiago and the Canal de Castilla in Spain. J. Herit. Tour. 2023, 18, 224–242. [Google Scholar] [CrossRef]
- Pardo Abad, C.J.; Fernández Portela, J. El Canal de Castilla: Recurso patrimonial del agua y perspectivas de uso e innovación turística. Cuad. Tur. 2022, 50, 229–256. [Google Scholar] [CrossRef]
- Geijo-Barrientos, J.M.; Zulueta Pérez, P.; Sánchez Lite, A. Methodological approach to point out the value of the industrial heritage. A case study:“The mallet from Alar del Rey”. In Proceedings of the 25th International Congress on Project Management and Engineering, Alcoi, Spain, 6 July 2021; pp. 6–9. [Google Scholar]
- Geijo-Barrientos, J.M.; Sanchez-Lite, A.; Zulueta, P.; Sampaio, A.Z. Study of an “Artefact” of the Castilla Canal: Reconstruction of the Missing Machinery. Machines 2022, 10, 239. [Google Scholar] [CrossRef]
- Fernández Martín, J.J.; Revilla Casado, J.; San José Alonso, J.I. El Agua y la Fábrica de Harinas en Torno al Canal de Castilla en Medina de Rioseco; Junta de Castilla y León, Consejería de Cultura y Turismo: Valladolid, Spain, 2011. Available online: https://bibliotecadigital.jcyl.es/jcyl/i18n/catalogo_imagenes/grupo.cmd?path=10111444 (accessed on 15 May 2025).
- Mozo, J. Oficios de Dn Juan Mozo Mozo de la Torre Dirigidos a Dn Diego de Gardoqui Informando Sobre los Artefactos del Canal [Official Letters from Don Juan Mozo Mozo de la Torre to Don Diego de Gardoqui Reporting on the Canal’s Machinery]; Confederación Hidrográfica del Duero, AGCHD, FACC, AHCC (18th Century, Ref. C-0001-09): Valladolid, Spain, 1792–1800. [Google Scholar]
- Nadal, J. Atlas de la Industrialización en España 1750–2000; Editorial Crítica: Barcelona, Spain, 2003. [Google Scholar]
- Obligación Que Otorga Juan Millán en Favor de, S.M. por el Abasto del Molino de Papel [Obligation Granted by Juan Millán in Favor of His Majesty for the Supply of the Paper Mill]; Confederación Hidrográfica del Duero, AGCHD, FACC, AHCC (18th Century, Ref. C-0006-22): Palencia, Spain, 1793.
- Gazeta de Madrid; Imprenta Real: Madrid, Spain, 1791; Nº 85; pp. 785–787.
- Alonso, J.L. Rutas Para Descubrir: El Canal de Castilla; Ámbito Ediciones: Valladolid, Spain, 2000. [Google Scholar]
- Miñano, S. Diccionario Geográfico-Estadístico de España y Portugal, Tomo VI; Imprenta de Pierart-Peralta: Madrid, Spain, 1827. [Google Scholar]
- Homar, J.; Helguera, J. El Canal de Castilla: Cartografía de un Proyecto Ilustrado; CEHOPU, CEDEX, Ministerio de Obras Públicas y Transportes: Madrid, Spain, 1992.
- Ceccarelli, M.; Cocconcelli, M. Italian Historical Developments of Teaching and Museum Valorization of Mechanism Models. Machines 2022, 10, 628. [Google Scholar] [CrossRef]
- Rojas-Sola, J.I.; del Río-Cidoncha, G.; Coronil-García, Á. Industrial Archaeology Applied to the Study of an Ancient Harvesting Machine: Three-Dimensional Modelling and Virtual Reconstruction. Agriculture 2020, 10, 322. [Google Scholar] [CrossRef]
- Hain, V.; Ganobjak, M. Forgotten industrial heritage in virtual reality case study: Old power plant in Piest’any, Slovakia. Presence-Virtual Augment. Real. 2017, 26, 355–365. [Google Scholar] [CrossRef]
- Rojas-Sola, J.I.; Barranco-Molina, J.C. Engineering Drawing Applied to the Study of the Design of a Two-Cylinder Entablature Steam Engine with Parallel Motion Crosshead. Symmetry 2024, 16, 578. [Google Scholar] [CrossRef]
- Rojas-Sola, J.I.; De la Morena-De la Fuente, E. Agustín de Betancourt’s Double-Acting Steam Engine: Analysis through Computer-Aided Engineering. Appl. Sci. 2018, 8, 2309. [Google Scholar] [CrossRef]
- Rojas-Sola, J.I.; Barranco-Molina, J.C. Study of the Mechanical Behavior of a Single-Cylinder Horizontal Steam Engine with a Crosshead Trunk Guide through the Finite-Element Method. Appl. Sci. 2024, 14, 5878. [Google Scholar] [CrossRef]
- Rojas-Sola, J.I.; Gutiérrez-Antúnez, J.F. Analysis of the Design of Henry Muncaster’s Two-Cylinder Compound Vertical Steam Engine with Speed Control. Appl. Sci. 2023, 13, 9150. [Google Scholar] [CrossRef]
- Rojas-Sola, J.I.; Barranco-Molina, J.C. Technical Feasibility of a Two-Cylinder Entablature Steam Engine with a Parallel Motion Crosshead: An Analysis from Mechanical Engineering. Appl. Sci. 2024, 14, 6597. [Google Scholar] [CrossRef]
- Forte, M.; Siliotti, A. Virtual Archaeology: Re-Creating Ancient Worlds; H.N. Abrams: New York, NY, USA, 1997. [Google Scholar]
- Forte, M. About virtual archaeology: Disorders, cognitive interactions and virtuality. Archeol. Calc. 2000, 11, 273–300. [Google Scholar]
- Forte, M. Cyber-archaeology: Notes on the simulation of the past. Virtual Archaeol. Rev. 2011, 2, 7–18. [Google Scholar] [CrossRef]
- Martens, B.; Peter, H. Die Zerstörten Synagogen Wiens; Mandelbaum Verlag: Vienna, Austria, 2009. [Google Scholar]
- Martens, B.; Peter, H. Virtual reconstruction of synagogues: Systematic maintenance of modeling data. In Proceedings of the 20th International Conference on Education and Research in Computer Aided Architectural Design in Europe, Warsaw, Poland, 9 September 2002. [Google Scholar]
- Martens, B.; Peter, H.; Spera, D.; Hanak-Lettner, W. Wiener Synagogen: Ein Memory; Jüdisches Museum Wien: Vienna, Austria, 2016. [Google Scholar]
- Martens, B.; Peter, H. Virtual reconstruction of Viennese synagogues: Sustainable 3D models. In Proceedings of the Computer Aided Architectural Design Conference, Tübingen, Germany, 2003; Available online: https://ub01.uni-tuebingen.de/xmlui/bitstream/handle/10900/60607/CD42_Martens_Peter_CAA_2003.pdf (accessed on 13 June 2025).
- Rabanal Yus, A. Las Reales Fundiciones Españolas del Siglo XVIII, 1st ed.; Servicio de Publicaciones del Estado Mayor del Ejército: Madrid, Spain, 1990. [Google Scholar]
- Rabanal Yus, A. Arquitectura de las Reales Fábricas Españolas en el siglo XVIII. In Jornadas Sobre Las Reales Fábricas (2002. La Granja de San Ildefonso); Fundación Centro Nacional del Vidrio: Segovia, Spain, 2004; pp. 265–298. [Google Scholar]
- Principles of Seville. Available online: http://smartheritage.com/wp-content/uploads/2016/06/PRINCIPIOS-DE-SEVILLA.pdf (accessed on 15 May 2025).
- London Charter. Available online: http://www.londoncharter.org (accessed on 15 May 2025).
- General Archive of the Confederación Hidrográfica del Duero (AGCHD), Documentary Collection of Factories (CDF), refs. CDF, RN-075-1, RN-075-2 and RN-077: Valladolid, Spain.
- Alonso Ortega, J.L. El Canal de Castilla: Actualidad de una obra de la Ilustración; Diputación Provincial de Palencia: Palencia, Spain, 1990. [Google Scholar]
- Fernández Muñoz, Á.L.; Helguera Quijada, J.; García Tapia, N. El Canal de Castilla. Catálogo de la Exposición: Marzo-Abril 1986; Junta de Castilla y León, Consejería de Cultura y Bienestar Social: Valladolid, Spain, 1986; p. 224. [Google Scholar]
- Junta de Castilla y León. Plan Regional del Canal de Castilla. Electronic Planning Archive. 2001. Available online: https://servicios.jcyl.es/PlanPublica/openDocuIndice.do;jsessionid=6892cbd065fa190e9310108f47c3094ce2e8aed2bd4e7681bb45c3d1756c2dbb.e3mTb3qQb3aPe34Kc390?cDocId=285729 (accessed on 15 May 2025).
- Asenjo Martínez, J.L. Desde la prehistoria del papel hasta la fábrica de Játiva. Rev. Investig. Téc. Pap. 1975, 46, 941–951. [Google Scholar]
- Emery, O. Introducción del papel en Europa. Rev. Investig. Téc. Pap. 1966, 8, 283–289. [Google Scholar]
- González Burgos, F.R. Papel a mano, papel continuo: Su elaboración a lo largo de la historia. Rev. Investig. Téc. Pap. 2001, 147, 69–97. [Google Scholar]
- Gutiérrez Poch, M. Trabajo y materias primas en una manufactura preindustrial: El papel. Rev. Hist. Ind. 1993, 4, 147–157. [Google Scholar]
- Hidalgo Brinquis, M.C. La fabricación del papel en España e Hispanoamérica en el siglo XVII. In V Jornadas Científicas Sobre Documentación de Castilla e Indias en el Siglo XVII; Universidad Complutense de Madrid: Madrid, Spain, 2006; pp. 207–223. [Google Scholar]
- León Portillo, R. Tendedoras de mañir y espito. Rev. Investig. Téc. Pap. 1986, 87, 34–47. [Google Scholar]
- González Tascón, I. Fábricas Hidráulicas Españolas; Centro de Estudios y Experimentación de Obras Públicas (CEDEX), Biblioteca CEHOPU: Madrid, Spain, 1987. [Google Scholar]
- Hidalgo Brinquis, M.C. Breve historia de la fabricación del papel en España y sus filigranas. In Cabeza de Buey y Sirena. La Historia del Papel y las Filigranas Desde el Medievo Hasta la Modernidad, 4th ed.; Bernstein Project, Ed.; Bernstein Project: Stuttgart, Germany; Valencia, Spain, 2011; pp. 18–28. [Google Scholar]
- Sachs, H.; Amman, J. Das Ständebuch; Sigmund Feyerabent: Frankfurt am Mayn, Germany, 1568. [Google Scholar]
- Zonca, V. Novo Teatro di Machine e Edificci; P. Bertelli: Padova, Italy, 1607. [Google Scholar]
- Böckler, G.A. Theatrum Machinarum Novum; P. Principis: Cologne, Germany, 1662. [Google Scholar]
- Porcelius, E. Curioser Spiegel, worinnen der ganze Lebenslauf des Menschen von der Kindheit bis zum Alter zu sehen. In Figuren Mit Ganz Neuen Erklärungen; J.A. Endter: Nuremberg, Germany, 1689. [Google Scholar]
- La Lande, J. Art de Faire le Papier; Saillant et Nyon: Paris, France, 1761. [Google Scholar]
- Diderot, D. Recueil de planches sur les sciences, les arts libéraux et les arts méchaniques: Avec leur explication. In Quatrieme Livraison; Briasson: Paris, France, 1767. [Google Scholar]
- Hemart, M. Galerie industrielle, ou application des produits de la nature aux arts et métiers. In Leur Origine, Leurs Progrès et Leur Perfectionnement; Alexis Eymery: Paris, France, 1822. [Google Scholar]
- Sturm, L.C. Vollständige Mühlen-Baukunst; Verlag Jeremias Wolff: Augsburg, Germany, 1718. [Google Scholar]
- Barrett, T.D.; Pickwoad, N. Early European Papers; Institute of Paper Conservation: Worcestershire, UK, 1989. [Google Scholar]
- Explicación de Cada Uno de los Planos, Que Representan un Molino, o Fábrica de Papel, Juntamente Con Las Noticias Que Conducen a Su Manutención [Explanation of Each of the Plans Representing a Mill or Paper Factory, Along with Information Relevant to its Maintenance]; Archivo General de Navarra (A.G.N. Hosp. Gral. tít. 6, fajo 1, caja 1, núm. 4): Navarra, Spain, 1754.
- Relazión, y construcción del Molino Papelero, situado en el termino de Sn Pedro de Riudevitlles, del Corregimito de Villafranca del Panadés, en el Principado de Cathaluña [Account and construction of the paper mill located in the district of San Pedro de Riudevitlles, in the jurisdiction of Villafranca del Panadés, Principality of Catalonia]. In Libro de Varios Planos y Máquinas; Fundació Cultural Manuel Rocamora: Barcelona, Spain, 1760.
- Marcos Bermejo, M.T. El funcionamiento de los molinos papeleros tradicionales: Los molinos de Cuenca. Rev. Investig. Téc. Pap. 1995, 124, 273–291. [Google Scholar]
- León Portillo, R. El molino de las toesas en Sant Pere de Riudebitlles. Rev. Investig. Téc. Pap. 1991, 108, 299–321. [Google Scholar]
- Munné Sellarés, L. Els Molins Paperers. Origen, Arquitectura, Funció i Evolució (Comarca de Capellades, 1700–1950). Doctoral Thesis, Universitat de Barcelona, Barcelona, Spain, 2015. Available online: https://diazdemiranda.com/tesis-doctoral-de-lourdes-munne-los-molinos-papeleros/ (accessed on 4 July 2024).
- Munné Sellarés, L. Els molins paperers a la comarca de l’Anoia. Introducció al seu estudi. Misc. Aqualatensia 1983, 3, 185–214. [Google Scholar]
- Lloret Ortínez, T. Els molins paperers de l’Anoia al segle XVIII: Entre el mas i la fàbrica. Misc. Aqualatensia 2006, 12, 143–184. [Google Scholar]
- García Serrano, R. El molino de papel del hospital general de Pamplona. Cuad. Etnol. Etnogr. Navar. 1974, 6, 7–21. [Google Scholar]
- Hidalgo Brinquis, M.C. La Real Fábrica de papel de San Fernando. Rev. R. Sitios 1995, 125, 9–16. [Google Scholar]
- Homar, J. Official Letters Sent by Juan de Homar, Chief Engineer of the Royal Canals, to the Secretary of the Treasury, Don Diego María de Gardoqui; Confederación Hidrográfica del Duero, AGCHD, FACC, AHCC (18th Century, Ref. C-0001-09): Valladolid, Spain, 1792. [Google Scholar]
- Homar, J. Memoria de Edificios, Máquinas, Tierras y Huertas Que Tiene la Real Hacienda en Los Canales de Castilla la Vieja [Report on Buildings, Machinery, Land, and Orchards Owned by the Royal Treasury Along the Canals of Old Castile]; Confederación Hidrográfica del Duero, AGCHD, FACC, AHCC (18th Century, Ref. C-0077-1): Valladolid, Spain, 1800. [Google Scholar]
- Arriete, A.; Mendizábal, A. Valoración de Los Artefactos de la Línea del Canal Pertenecientes al Estado Por Los Señores Peritos, Númº 3º [Assessment of Canal Line Artifacts Belonging to the State by the Expert Surveyors, No. 3]; Confederación Hidrográfica del Duero, AGCHD, FACC, AHCC (19th–20th Century, Ref. C-0034-08): Valladolid, Spain, 1828. [Google Scholar]
- Arriete, A.; Mendizábal, A. Valoración de Los Artefactos de la Línea del Canal Pertenecientes al Estado Por Los Señores Peritos, Númº 3º [Assessment of Canal Line Artifacts Belonging to the State by the Expert Surveyors, No. 3]; Confederación Hidrográfica del Duero, AGCHD, FACC, AHCC (19th–20th Century, Ref. C-0034-08): Valladolid, Spain, 1842. [Google Scholar]
- Ynventario General Que la Empresa Antigua del Canal de Castilla Presenta a la Compañía Anónima del Mismo Para la Toma de Posesiones de Dicho Canal [General Inventory Presented by the Former Canal de Castilla Company to the Joint-Stock Company for the Transfer of Possession of the Canal]; Confederación Hidrográfica del Duero, AGCHD, FACC, AHCC (19th–20th Century, Ref. L-3): Valladolid, Spain, 1851.
- Ynventario General Descriptivo y Valorado de Los Artefactos Que Existen Construidos Sobre el Canal de Castilla [General Descriptive and Valued Inventory of the Artifacts Built Along the Canal de Castilla]; Confederación Hidrográfica del Duero, AGCHD, FACC, AHCC (19th–20th Century, Ref. C-0079-01): Valladolid, Spain, 1906.
- Saiz, F.J. Proyecto de Transformación de la Fábrica de Papel de la 11ª y 12ª Esclusas Para la Elaboración de Harinas [Project for the Conversion of the Paper Mill at the 11th and 12th Locks for Flour Production]; Confederación Hidrográfica del Duero, AGCHD, FACC, PCC (19th–20th Century, Ref. P-551): Valladolid, Spain, 1853. [Google Scholar]
- Planos Generales de Fábricas [General Factory Plans]; Confederación Hidrográfica del Duero, AGCHD, FACC, AHCC (19th–20th Century Plans and Drawings, Ref. 076): Valladolid, Spain, 1863.
- Alonso, L. Fábrica de Papel en las Esclusas 11 y 12 del Ramal del Norte [Paper Mill at Locks 11 and 12 of the Northern Branch]; Confederación Hidrográfica del Duero, AGCHD, FCC, AHCC (19th–20th Century Plans and Drawings, Ref. 147): Valladolid, Spain, 1901. [Google Scholar]
- Fungairiño, E. Proyecto de Obras Para el Aprovechamiento Industrial de Los Saltos de Las Esclusas 11 y 12 del Canal de Castilla [Project for Industrial Use of the Waterfalls at Locks 11 and 12 of the Canal de Castilla]; Confederación Hidrográfica del Duero, AGCHD, FACC, PCC (Ref. C-2176, Pyto-2598): Valladolid, Spain, 1921. [Google Scholar]
- Fungairiño, E. Aprovechamiento Industrial de Los Saltos de Las Esclusas 11 y 12 del Canal de Castilla; Medición General y Datos Para la Liquidación [Industrial Use of the Waterfalls at Locks 11 and 12 of the Canal de Castilla; General Measurement and Data for Settlement]; Confederación Hidrográfica del Duero, AGCHD, FCC, PCC (Ref. C-2153, Pyto-2506): Valladolid, Spain, 1921. [Google Scholar]
- Gaceta de Madrid; Imprenta Real: Madrid, Spain, 1829; p. 104, Nº 26, 28 de febrero de 1829, BOE.es—Documento de Gazeta.
- Gaceta de Madrid; Imprenta Nacional: Madrid, Spain, 1847; p. 4, Nº 4494, 3 de enero de 1847, BOE.es—Documento de Gazeta.
- Madoz, P. Diccionario Geográfico-Estadístico-Histórico de España y sus posesiones de ultramar. In Imprenta del Diccionario Geográfico-Estadístico-Histórico de D; Pascual Madoz: Madrid, Spain, 1849; Tomo XII; p. 257. [Google Scholar]
- Sánchez García, J.L. El Canal de Castilla y la fabricación de papel. In VI Congreso Nacional de Historia del Papel en España: Actas; Conselleria de Cultura, Educació i Esport: Valencia, Spain, 2005; pp. 503–510. [Google Scholar]
- Sáez Hidalgo, I. El Canal de Castilla. In Una Ruta con Mucha Historia, 2nd ed.; Ediciones Desnivel S.L.: Madrid, Spain, 2018. [Google Scholar]
- Guerra Garrido, R. Castilla en Canal, 1st ed.; Ediciones Cálamo: Palencia, Spain, 2016. [Google Scholar]
- Gutiérrez Pérez, E. El Canal. El sueño ilustrado y sus pueblos ribereños. In Navegando por Palencia, Burgos y Valladolid, 2nd ed.; Aruz Ediciones: Palencia, Spain, 2023. [Google Scholar]
- Gastón Guirao, C.; Rovira Llobera, T. El proyecto moderno. In Pautas de investigación, 1st ed.; Universitat Politècnica de Catalunya Ediciones: Barcelona, Spain, 2007. [Google Scholar]
- Kensek, K.M. Colour-coded confidence in reconstruction plans [Conference paper]. In Proceedings of the Acadia Conference 2002, Halifax, NS, Canada, 14–16 June 2002. [Google Scholar] [CrossRef]
Disclaimer/Publisher’s Note: The statements, opinions and data contained in all publications are solely those of the individual author(s) and contributor(s) and not of MDPI and/or the editor(s). MDPI and/or the editor(s) disclaim responsibility for any injury to people or property resulting from any ideas, methods, instructions or products referred to in the content. |
© 2025 by the authors. Licensee MDPI, Basel, Switzerland. This article is an open access article distributed under the terms and conditions of the Creative Commons Attribution (CC BY) license (https://creativecommons.org/licenses/by/4.0/).

























