Soil–Structure–Equipment Interaction and Influence Factors in an Underground Electrical Substation under Seismic Loads
Abstract
:1. Introduction
2. Dynamic Interaction Mechanism of Soil–Structure–Equipment
3. Numerical Simulations
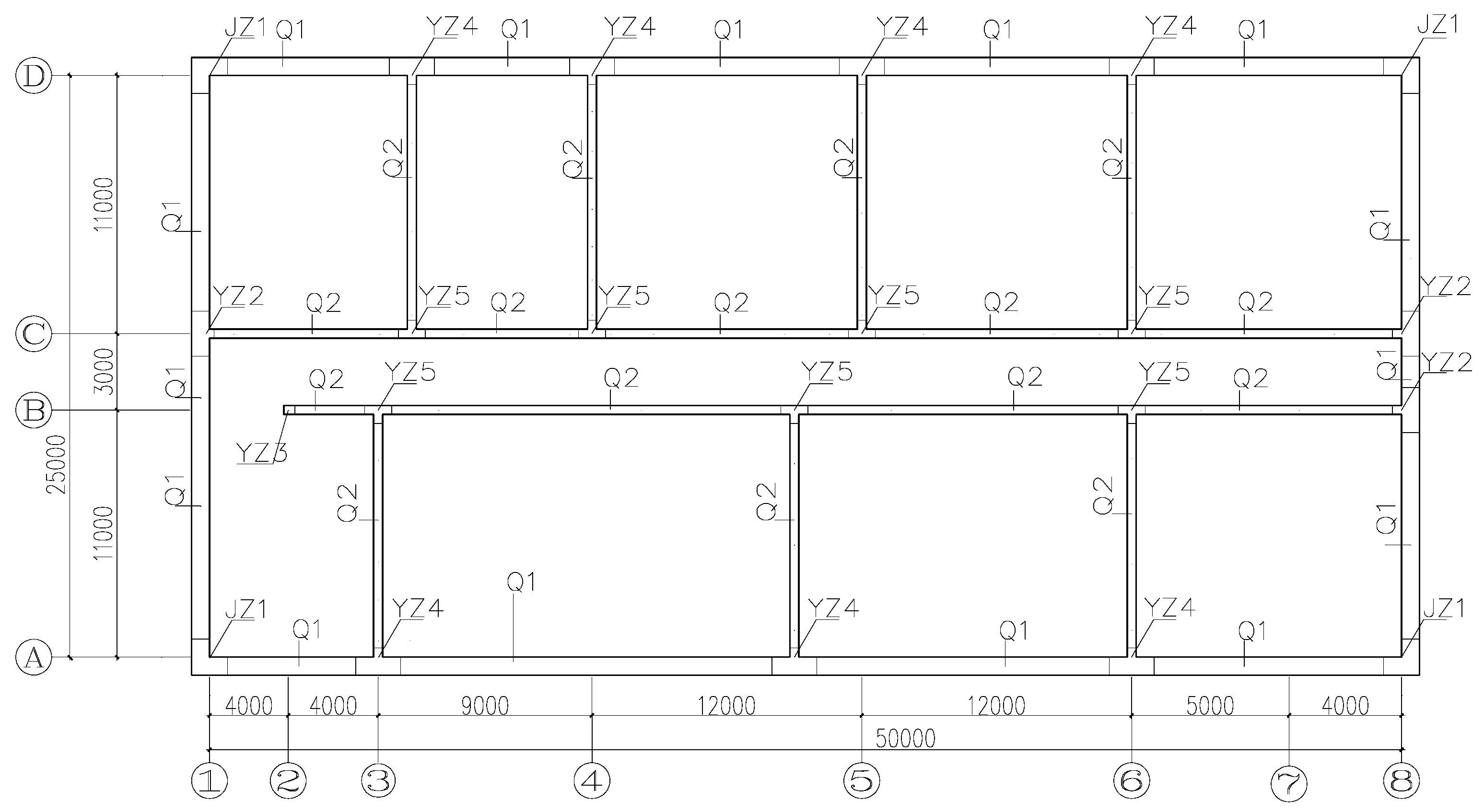
3.1. Finite Element Models
- (1)
- Each layer of soil is homogeneous, and extends infinitely in the horizontal direction;
- (2)
- There is no relative sliding among different layers of soil;
- (3)
- Earthquake excitations are supposed from the bottom of the foundation;
- (4)
- The movement of each point on the bottom of the foundation is consistent without a traveling motion effect.
3.2. Accuracy Verification of the Finite Element Model
- Model 1 (M1): Coupling boundary between finite elements and infinite elements
- Model 2 (M2): Viscoelastic boundary
- Model 3 (M3): Fixed boundary
4. Numerical Simulation Analysis
4.1. The Seismic Response under Different Ground Motions
4.1.1. Acceleration Responses
- (1)
- The acceleration amplification factors in the X-direction are larger than those in the Y-direction in M1 and M3, which means that the seismic response of the underground substation in the X-direction is more severe than that in the Y-direction. The seismic response including acceleration responses, displacement responses and internal force responses of 0.17 g PAG in the X-direction and 0.2 g PAG in the Y-direction would be reduced but the response rule is uniform.
- (2)
- The acceleration amplification factors in the Z-direction of M3 are larger than those in M2. The reason is that the seismic response is magnified under multi-direction earthquake motions compared with that under the one-direction earthquake input motion and the horizontal earthquake motions have a reverse effect on the seismic response in the Z-direction.
- (3)
- The peak vertical and horizontal acceleration amplification factors are 1.526 and 0.760, respectively, which means that the oblique incidence of input motion has a slight influence on the horizontal seismic response, but has a significant impact on the vertical seismic response.
4.1.2. Displacement Responses
4.1.3. Internal Force Responses
- (1)
- Different input motions have different influences on the internal force of side walls. The shear forces of components are similar between horizontal direction motion and coupling input motion. Furthermore, the vertical pressure and bending moments of components under vertical seismic motion are similar to those in coupling input motion. Oblique incidence motion makes the vertical pressure and bending moments increase obviously.
- (2)
- In comparing the peak value of internal force in different sections, it can be seen that the shear force and vertical pressure of the bottom of the side wall on the third floor are, at most, about 1.03 × 106 N/m and 3.67 × 106 N/m respectively, values which are significantly greater than those on the other floors. So, the bottom of the side walls is the seismic weak part of the structure.
- (3)
- The bending moments at joint parts of the side wall on the second floor are larger than the rest of the structure, because the extra inertia force caused by the electrical equipment leads to the second floor being in a complex bend torsion condition. The bending moments of the second floor under coupling seismic action increase by 20% compared to those under horizontal seismic action. So, it can be speculated that the vertical pressure and bending moments increase in vertical seismic motion.
4.2. Soil Properties in the Seismic Response of the Underground Substation
4.2.1. Displacement Responses
4.2.2. Stress Responses
4.2.3. Internal Force Responses
4.3. Seismic Response Influence of Structure–Electrical Equipment Interaction
4.3.1. Acceleration Responses
4.3.2. Displacement Responses
4.3.3. Internal Force Responses
4.4. Influence of Burial Depth
4.4.1. Displacement Responses
4.4.2. Internal Force Responses
5. Conclusions
- (1)
- The coupling boundary is selected as the boundary condition of soil–structure, which is feasible in a seismic response of an underground substation.
- (2)
- The seismic response of an underground substation is more sensitive to vertical earthquake motion than the seismic response of normal structures. Therefore, vertical earthquake motions should be taken into account in the seismic design of such underground structures.
- (3)
- Burial depth and elastic modulus are the main factors for the seismic performance of the underground electrical substation. With the increase in burial depth, layer drifts of an underground substation first increase and then decrease. With the increase in the elastic modulus of soil, the constraint of soil on structure increases and the deformation of structure decreases.
- (4)
- The acceleration amplification factors of electrical equipment are obviously greater than those of the same layer of the structure, and the peak drift of equipment is not synchronous with structure. Therefore, the interaction between structure and equipment should be taken into account in the seismic design of underground substations and some seismic measures should be proposed to control the dynamic response of electrical equipment.
- (5)
- The bottom of the side walls is the weak part of an underground substation. Therefore, it is necessary to increase the stiffness of side walls and strengthen the connection between the bottom floor and side walls.
Acknowledgments
Author Contributions
Conflicts of Interest
References
- Suarez, L.E.; Singh, M.P. Floor Spectra with Equipment Structure Equipment Interaction Effects. J. Eng. Mech. 1989, 115, 247–264. [Google Scholar] [CrossRef]
- Pires, J.A.; Ang, A.H.-S.; Villaverde, R. Seismic reliability of electrical power transmission systems. Nucl. Eng. Des. 1996, 160, 427–439. [Google Scholar] [CrossRef]
- Brzan-Zurita, E.; Bielak, J.; Digioia, A.M. Seismic Design of Substation Structures. In Proceedings of the Electrical Transmission and Substation Structures Conference ASCE, Fort Worth, TX, USA, 8–12 November 2009; pp. 1–12. [Google Scholar]
- Kempner, L.; Reston, V.A., Jr. (Eds.) Substation Design Guide; ASCE: Oakland, CA, USA, 2008. [Google Scholar]
- Knight, B.T.; Kempner, L. Vulnerabilities and Retrofit of High-Voltage Electrical Substation Facilities. In Proceedings of the Technical Council on Lifeline Earthquake Engineering Conference, Oakland, CA, USA, 28 June–1 July 2009; pp. 232–243. [Google Scholar]
- International Atomic Energy Agency (IAEA). Seismic Evaluation of Existing Nuclear Installations; IAEA: Vienna, Austria, 2008. [Google Scholar]
- Wen, B.; Niu, D.T. Seismic vulnerability analysis for the main building of the large substation. China Civ. Eng. J. 2013, 46, 19–23. (In Chinese) [Google Scholar]
- Wen, B.; Taciroglu, E.; Niu, D.T. Shake table testing and numerical analysis of transformer substations including main plant and electrical equipment interaction. Adv. Struct. Eng. 2015, 18, 1959–1980. [Google Scholar] [CrossRef]
- Yuan, H.F.; Walker, R.E. The Investigation of a Simple Soil-Structure Interaction Model. In Dynamic Waves in Civil Engineering; Howells, D.A., Haigh, I.P., Taylor, C., Eds.; Wiley: New York, NY, UAS, 1970; pp. 247–266. [Google Scholar]
- Rodriguez, B. Numerical Analysis of an Experimental Tunnel. Proceeding of the 11th International Conference on Soil Mechanics and Foundation Engineering San Francisco, San Francisco, CA, USA, 12–16 August 1985; pp. 789–792. [Google Scholar]
- Penzien, J. Seismically Induced Racking of Tunnel Linings. Earthq. Eng. Struct. Dyn. 2000, 29, 683–691. [Google Scholar] [CrossRef]
- Huo, H. Seismic Design and Analysis of Rectangular Underground Structures. Tunneling and Underground Space Tecnology United Kingdom. Ph.D. Thesis, Purdue University, West Lafayette, IN, USA, 2000. [Google Scholar]
- Gong, B.N.; Zhao, D.P. Experimental Study on Dynamic Interaction of Underground Structure and Soil. Undergr. Space 2002, 22, 320–324. (In Chinese) [Google Scholar]
- Zhuang, H.Y. Study on Dynamic Contact Properties of Soil-Subway Underground Structure Interaction System; Nanjing University of Technology: Nanjing, China, 2006. (In Chinese) [Google Scholar]
- Chen, G.X.; Zhuang, H.Y.; Du, X.L. Analysis of large-scale shaking table test of dynamic soil-subway station interaction. Earthq. Eng. Eng. Vib. 2007, 27, 171–176. (In Chinese) [Google Scholar]
- Li, L.Y.; Du, X.L.; Li, L. Review on Mechanical Performanical of Soil-Structure Contact. Adv. Mech. 2009, 39, 588–597. (In Chinese) [Google Scholar]
- Tao, L.J.; Wang, W.P.; Zhang, B. Difference law study of seismic design methods for subway structures. China Civ. Eng. J. 2012, 45, 170–176. (In Chinese) [Google Scholar]
- Geng, P.; He, C.; Tang, J.; Yan, Q.; Xu, Y. Appropriate Seismic Analysis Method of Subway Shield Tunnels in Soft Ground. Int. Efforts Lifeline Earthq. Eng. 2013, 283–290. [Google Scholar] [CrossRef]
- Debiasi, E.; Gajo, A.; Zonta, D. On the Seismic Response of Shallow-Buried Rectangular Structures. Tunn. Undergr. Space Technol. 2013, 38, 99–113. [Google Scholar] [CrossRef]
- Liu, J.B.; Wang, W.H.; Dasgupta, G. Pushover analysis of underground structures: Method and Application. Sci. China Technol. Sci. 2014, 57, 423–437. (In Chinese) [Google Scholar] [CrossRef]
- Kang, G.H.; Tobita, T.; Lai, S. Seismic simulation of liquefaction-induced uplift behavior of a hollow cylinder structure buried in shallow ground. Soil Dyn. Earthq. Eng. 2014, 64, 85–94. [Google Scholar] [CrossRef]
- Pitilakis, K.; Tsinidis, G.; Leanza, A.; Maugeri, M. Seismic behavior of circular tunnels accounting for above ground structures interaction effects. Soil Dyn. Earthq. Eng. 2014, 67, 1–15. [Google Scholar] [CrossRef]
- Clough, R.; Penzien, J. Dynamics of Structures; McGraw-Hill: New York, NY, USA, 1993. [Google Scholar]
- Zhang, F.; Cheng, C.S. A modified Newton method for radial distribution system power flow analysis. IEEE Trans. Power Syst. 2002, 12, 389–397. [Google Scholar] [CrossRef]
- 35kV–220kV Urban Underground Substation Design Rules; China Electric Power Press: Beijing, China, 2005. (In Chinese)
- Chinese Loading Code for Design of Building Structures; GB50009-2012; Architecture & Building Press: Beijing, China, 2012. (In Chinese)
- Chinese Code for Seismic Design of Buildings; GB50011-2010; Architecture & Building Press: Beijing, China, 2010. (In Chinese)
- Chinese Code for Seismic Design of Electrical Installations; GB50260-2013; Architecture & Building Press: Beijing, China, 2013. (In Chinese)
- Hibbitt, K.; Sorensen, I. ABAQUS User Subroutines Reference Manual; Elsevier Science Publishers: Philadelphia, PA, USA, 2006. [Google Scholar]
- Liu, J.L.; Luan, M.T.; Xu, C.S. Study on parametric characters of Drucker-prager criterion. Chin. J. Rock Mech. Eng. 2006, 25, 4009–4015. (In Chinese) [Google Scholar]
- Liu, J.B.; Gu, Y.; Du, Y.X. Consistent viscous-spring artificial boundaries and viscous-spring boundary elements. Chin. J. Geotech. Eng. 2006, 28, 1070–1075. (In Chinese) [Google Scholar]
- Huang, S.; Chen, W.Z.; Wu, G.J. Study of method of earthquake input in a seismic analysis for underground engineering. Chin. J. Rock Mech. Eng. 2010, 29, 1254–1262. [Google Scholar]
- Lou, M.L.; Chen, H.J. Research on the Effects of Lateral Boundary of Pile Seismic Response; Tongji University Press: Shanghai, China, 1999. (In Chinese) [Google Scholar]
- Lou, M.L.; Wang, W.J.; Zhu, T. Soil lateral boundary effect in shaking table model test of soil-structure system. Earthq. Eng. Eng. Vib. 2000, 20, 30–36. (In Chinese) [Google Scholar]
- Chen, G.X.; Chen, S.; Zuo, X. Shaking-table tests and numerical simulations on a subway structure in soft soil. Soil Dyn. Earthq. Eng. 2015, 76, 13–28. [Google Scholar]
- Novak, M.; Bereduge, Y.O. Vertical Vibration of Embedded Footings. J. Soil Mech. Found. Div ASCE 1972, 98, 1291–1310. [Google Scholar]
- Idriss, I.M.; Sun, J. User’s Manual for SHAKE91. Center Geotech. Model. 1992, 388, 279–360. [Google Scholar]
- Liang, X.W.; Qian, L.; Tan, L.N. The Concrete Damage Plastic Constitutive Relation Research Based on ABAQUS. In Proceedings of the 8th Session of the National Earthquake Engineering, Chongqing, China, 24–26 December 2010; Volume 32, pp. 646–648. (In Chinese). [Google Scholar]
- Meng, W.Y.; Wang, J.F.; Zhang, R. Comparison Analysis of Constitutive Models of Reinforced Concrete Structures Based on ABAQUS. J. North China Inst. Water Conserv. Hydroelectr. Power 2012, 33, 40–42. (In Chinese) [Google Scholar]
























| Number | Name of Soil | Density (kg/m3) | Elastic Modulus (MPa) | Poisson Ratio | Cohesion(kPa) | Internal Friction Angle (°) | Soil Depth (m) |
|---|---|---|---|---|---|---|---|
| 1 | Plain fill | 1720 | 5.0 | 0.39 | 22 | 15 | 4.30 |
| 2 | New loess | 1600 | 12.0 | 0.30 | 28 | 18 | 6.20 |
| 3 | Silty clay | 1950 | 15.0 | 0.30 | 45 | 15 | 1.70 |
| 4 | Pebble bed | 2250 | 55.0 | 0.15 | 0 | 45 | 2.10 |
| 5 | Silty clay | 1950 | 15.0 | 0.30 | 45 | 15 | 27.0 |
| 6 | Coarse ands | 1920 | 40.0 | 0.26 | 0 | 35 | 4.50 |
| Model | Direction | Acceleration Input Value |
|---|---|---|
| M1 | Horizontal | 0.2 g:0.17 g (X:Y) |
| M2 | Vertical | 0.13 g (Z) |
| M3 | Coupling of horizontal and vertical | 0.2 g:0.17 g:0.13 g (X:Y:Z) |
| Section | EL-Centro Motion | Lanzhou Motion | |||||
|---|---|---|---|---|---|---|---|
| M1 | M2 | M3 | M1 | M2 | M3 | ||
| Roof | X-direction | 0.671 | / | 0.683 | 0.683 | / | 0.714 |
| Y-direction | 0.468 | / | 0.480 | 0.489 | / | 0.502 | |
| Z-direction | / | 1.476 | 1.526 | / | 1.108 | 1.163 | |
| Floor 3 | X-direction | 0.677 | / | 0.695 | 0.699 | / | 0.726 |
| Y-direction | 0.573 | / | 0.582 | 0.503 | / | 0.520 | |
| Z-direction | / | 1.476 | 1.525 | / | 1.108 | 1.162 | |
| Floor 2 | X-direction | 0.679 | / | 0.719 | 0.722 | / | 0.742 |
| Y-direction | 0.595 | / | 0.623 | 0.536 | / | 0.565 | |
| Z-direction | / | 1.475 | 1.523 | / | 1.016 | 1.159 | |
| Floor 1 | X-direction | 0.708 | / | 0.721 | 0.746 | / | 0.760 |
| Y-direction | 0.681 | / | 0.692 | 0.568 | / | 0.590 | |
| Z-direction | / | 1.475 | 1.522 | / | 1.105 | 1.158 | |
| Section | El-Centro Motion | Lanzhou Motion | ||||||
|---|---|---|---|---|---|---|---|---|
| M1 | M3 | M1 | M3 | |||||
| X-Direction | Y-Direction | X-Direction | Y-Direction | X-Direction | Y-Direction | X-Direction | Y-Direction | |
| Floor 3 | 1.65 | 2.47 | 1.76 | 4.03 | 1.62 | 2.18 | 1.77 | 3.14 |
| Floor 2 | 1.56 | 2.30 | 1.65 | 3.81 | 1.53 | 2.00 | 1.65 | 2.98 |
| Floor 1 | 1.70 | 2.50 | 1.79 | 3.83 | 1.68 | 2.10 | 1.77 | 2.99 |
| Section | Vertical Pressure (105 N/m) | Shear Force (105 N/m) | Bending Moment (103 N·m/m) | ||||||||
|---|---|---|---|---|---|---|---|---|---|---|---|
| M1 | M2 | M3 | M1 | M2 | M3 | M1 | M2 | M3 | |||
| Floor 3 | El-Centro | Top | 3.74 | 4.32 | 4.43 | 5.41 | 4.74 | 5.42 | 7.19 | 8.22 | 8.28 |
| Bottom | 4.87 | 5.20 | 5.47 | 6.15 | 4.82 | 6.17 | 6.54 | 6.94 | 7.16 | ||
| Lanzhou | Top | 3.75 | 3.93 | 4.01 | 5.61 | 4.36 | 5.64 | 7.30 | 7.87 | 8.01 | |
| Bottom | 4.51 | 4.68 | 4.86 | 6.14 | 4.57 | 6.23 | 6.90 | 7.21 | 7.47 | ||
| Floor 2 | El-Centro | Top | 6.26 | 6.76 | 7.14 | 7.49 | 5.12 | 7.50 | 6.33 | 7.67 | 7.85 |
| Bottom | 9.39 | 10.13 | 10.31 | 7.83 | 4.86 | 7.92 | 9.41 | 11.50 | 11.62 | ||
| Lanzhou | Top | 5.75 | 6.07 | 6.24 | 7.04 | 4.82 | 7.22 | 6.33 | 6.97 | 6.97 | |
| Bottom | 8.69 | 9.05 | 9.44 | 7.00 | 4.53 | 7.35 | 9.08 | 10.07 | 10.13 | ||
| Floor 1 | El-Centro | Top | 11.39 | 12.52 | 12.77 | 6.62 | 3.14 | 6.64 | 6.32 | 7.95 | 8.19 |
| Bottom | 31.42 | 36.66 | 36.70 | 10.2 | 5.76 | 10.3 | 5.23 | 5.70 | 5.81 | ||
| Lanzhou | Top | 10.03 | 11.16 | 11.55 | 5.65 | 3.00 | 5.86 | 6.51 | 6.90 | 6.91 | |
| Bottom | 30.20 | 32.66 | 33.11 | 8.89 | 5.39 | 9.22 | 5.45 | 5.93 | 6.00 | ||
| Number | Name of Soil | M1 | M2 | M3 |
|---|---|---|---|---|
| 1 | Plain fill | 5.0 | 10.0 | 15.0 |
| 2 | New loess | 12.0 | 24.0 | 36.0 |
| 3 | Silty clay | 15.0 | 30.0 | 45.0 |
| 4 | Pebble bed | 55.0 | 110.0 | 165.0 |
| 5 | Silty clay | 15.0 | 30.0 | 45.0 |
| Section | El-Centro Motion | Lanzhou Motion | |||||
|---|---|---|---|---|---|---|---|
| M1 | M2 | M3 | M1 | M2 | M3 | ||
| Floor 3 | layer drift in the X-direction | 1.76 | 1.26 | 0.8 | 1.77 | 1.15 | 1.04 |
| layer drift angle in the X-direction | 1/2898 | 1/4048 | 1/6375 | 1/2881 | 1/4435 | 1/4904 | |
| layer drift in the Y-direction | 4.03 | 2.37 | 1.91 | 3.14 | 1.83 | 0.76 | |
| layer drift angle in the Y-direction | 1/1266 | 1/2025 | 1/2513 | 1/1529 | 1/2623 | 1/6316 | |
| Floor 2 | layer drift in the X-direction | 1.65 | 1.23 | 0.86 | 1.65 | 1.12 | 0.78 |
| layer drift angle in the X-direction | 1/2909 | 1/3902 | 1/5581 | 1/2909 | 1/4286 | 1/6154 | |
| layer drift in the Y-direction | 3.81 | 2.34 | 1.85 | 2.98 | 1.76 | 0.68 | |
| layer drift angle in the Y-direction | 1/1260 | 1/2051 | 1/2595 | 1/1611 | 1/2727 | 1/7059 | |
| Floor 1 | layer drift in the X-direction | 1.79 | 1.36 | 0.96 | 1.77 | 1.23 | 1.23 |
| layer drift angle in the X-direction | 1/2682 | 1/3529 | 1/5000 | 1/2712 | 1/3902 | 1/3902 | |
| layer drift in the Y-direction | 3.83 | 2.36 | 1.87 | 2.99 | 1.75 | 0.93 | |
| layer drift angle in the Y-direction | 1/1253 | 1/2034 | 1/2567 | 1/1605 | 1/2743 | 1/5161 | |
| Section | M1 | M2 | M3 | ||||
|---|---|---|---|---|---|---|---|
| Static (MPa) | Dynamic (MPa) | Amplification | Dynamic (MPa) | Amplification | Dynamic (MPa) | Amplification | |
| −1 Floor | 3.97 | 4.95 | 24.66 | 4.80 | 20.89 | 5.08 | 27.89 |
| −2 Floor | 3.61 | 4.22 | 16.90 | 4.13 | 14.40 | 5.28 | 46.23 |
| −3 Floor | 3.90 | 4.43 | 13.74 | 4.65 | 19.38 | 5.51 | 41.39 |
| Side wall 1 * | 1.99 | 2.27 | 14.09 | 2.10 | 5.44 | 2.23 | 11.98 |
| Side wall 3 | 2.93 | 3.32 | 13.38 | 3.26 | 11.26 | 3.58 | 22.16 |
| Side wall 4 | 5.43 | 6.56 | 20.80 | 6.11 | 12.59 | 6.51 | 19.97 |
| Side wall 5 | 7.72 | 8.54 | 10.70 | 8.36 | 8.33 | 9.04 | 17.08 |
| Side wall 6 | 4.15 | 4.70 | 13.14 | 4.65 | 12.36 | 5.41 | 30.23 |
| Side wall A | 4.14 | 4.71 | 13.88 | 4.40 | 6.48 | 4.73 | 14.49 |
| Side wall B | 4.09 | 4.14 | 1.09 | 4.10 | 0.25 | 4.22 | 3.07 |
| Side wall C | 3.73 | 5.19 | 39.08 | 4.79 | 28.28 | 5.14 | 37.69 |
| Side wall D | 2.48 | 2.60 | 4.70 | 2.59 | 4.43 | 2.81 | 13.19 |
| Section | Peak Vertical Pressure (105 N/m) | Peak Shear Force (105 N/m) | Peak Bending Moment (103 N·m/m) | ||||||||
|---|---|---|---|---|---|---|---|---|---|---|---|
| M1 | M2 | M3 | M1 | M2 | M3 | M1 | M2 | M3 | |||
| Floor 3 | El-Centro motion | Top | 4.43 | 4.28 | 4.40 | 5.42 | 5.67 | 5.81 | 8.28 | 8.28 | 8.36 |
| Bottom | 5.57 | 5.32 | 5.39 | 6.17 | 6.80 | 6.85 | 7.16 | 7.67 | 7.87 | ||
| Lanzhou motion | Top | 4.61 | 4.14 | 4.50 | 5.44 | 5.47 | 5.61 | 8.01 | 8.28 | 8.61 | |
| Bottom | 5.30 | 4.83 | 5.27 | 6.13 | 6.26 | 6.59 | 7.17 | 7.18 | 7.36 | ||
| Floor 2 | El-Centro motion | Top | 7.14 | 6.69 | 6.81 | 7.50 | 8.72 | 8.94 | 7.45 | 7.77 | 7.96 |
| Bottom | 10.51 | 9.80 | 9.92 | 7.92 | 9.40 | 9.79 | 9.32 | 10.01 | 10.33 | ||
| Lanzhou motion | Top | 6.94 | 6.19 | 6.70 | 7.22 | 7.51 | 8.20 | 6.97 | 7.62 | 8.02 | |
| Bottom | 9.84 | 9.20 | 9.71 | 7.35 | 7.57 | 8.44 | 9.93 | 10.10 | 11.06 | ||
| Floor 1 | El-Centro motion | Top | 12.77 | 11.91 | 12.11 | 6.64 | 8.00 | 8.51 | 5.39 | 6.47 | 6.75 |
| Bottom | 36.70 | 32.79 | 32.48 | 10.33 | 12.27 | 13.22 | 5.21 | 5.46 | 5.67 | ||
| Lanzhou motion | Top | 12.25 | 11.32 | 12.00 | 5.26 | 5.55 | 6.62 | 6.91 | 6.98 | 7.22 | |
| Bottom | 35.11 | 31.27 | 34.19 | 8.22 | 8.47 | 9.91 | 5.26 | 5.52 | 5.69 | ||
| Acceleration Amplification Factor | Soil Surface | Roof | Floor 3 | Floor 2 | Floor 1 | Equipment Top | ||
|---|---|---|---|---|---|---|---|---|
| El-Centro motion | Structure | X-direction | / | 0.817 | 0.82 | 0.823 | 0.824 | 2.600 |
| Y-direction | / | 0.498 | 0.582 | 0.661 | 0.738 | 1.194 | ||
| Soil | X-direction | 0.752 | 0.810 | 0.985 | 1.064 | 1.219 | / | |
| Y-direction | 0.594 | 0.780 | 0.817 | 0.841 | 0.864 | / | ||
| Lanzhou motion | Structure | X-direction | / | 0.805 | 0.828 | 0.845 | 0.865 | 2.554 |
| Y-direction | / | 0.502 | 0.515 | 0.545 | 0.599 | 1.096 | ||
| Soil | X-direction | 0.812 | 1.287 | 1.327 | 1.319 | 1.457 | / | |
| Y-direction | 0.788 | 0.822 | 0.836 | 0.829 | 0.845 | / | ||
| Taft motion | Structure | X-direction | / | 0. 90 | 0.924 | 1.047 | 1.070 | 3.518 |
| Y-direction | / | 0.69 | 0.759 | 0.807 | 0.954 | 1.494 | ||
| Soil | X-direction | 1.267 | 1.342 | 1.551 | 1.583 | 1.772 | / | |
| Y-direction | 1.021 | 1.036 | 1.049 | 1.093 | 1.177 | / | ||
| Section | El-Centro Motion | Lanzhou Motion | |||
|---|---|---|---|---|---|
| M1 | M2 | M1 | M2 | ||
| Floor 3 | layer drift in the X-direction | 3.110 | 2.737 | 2.949 | 2.589 |
| layer drift angle in the X-direction | 1/1640 | 1/1863 | 1/1729 | 1/1970 | |
| layer drift in the Y-direction | 8.074 | 6.803 | 5.373 | 4.611 | |
| layer drift angle in the Y-direction | 1/632 | 1/750 | 1/949 | 1/1106 | |
| Floor 2 | layer drift in the X-direction | 2.984 | 2.623 | 2.808 | 2.463 |
| layer drift angle in the X-direction | 1/1609 | 1/1830 | 1/1709 | 1/1949 | |
| layer drift in the Y-direction | 7.660 | 6.454 | 5.185 | 4.510 | |
| layer drift angle in the Y-direction | 1/627 | 1/744 | 1/926 | 1/1064 | |
| Floor 1 | layer drift in the X-direction | 3.135 | 2.754 | 2.952 | 2.610 |
| layer drift angle in the X-direction | 1/1531 | 1/1743 | 1/1626 | 1/1839 | |
| layer drift in the Y-direction | 8.132 | 6.796 | 5.402 | 4.621 | |
| layer drift angle in the Y-direction | 1/590 | 1/706 | 1/889 | 1/1039 | |
| Section | Shear Force (105 N/m) | Bending Moment (103 N·m/m) | |||||
|---|---|---|---|---|---|---|---|
| M1 | M2 | Increase (%) | M1 | M2 | Increase (%) | ||
| Side wall 1 | El-Centro motion | 6.53 | 5.80 | 12.59 | 135 | 122 | 10.66 |
| Lanzhou motion | 6.01 | 5.49 | 9.47 | 130 | 117 | 11.11 | |
| Side wall 3 | El-Centro motion | 10.98 | 9.79 | 12.16 | 947 | 850 | 11.41 |
| Lanzhou motion | 9.76 | 8.68 | 12.44 | 893 | 812 | 9.98 | |
| Side wall 4 | El-Centro motion | 11.08 | 9.42 | 17.62 | 650 | 542 | 19.93 |
| Lanzhou motion | 9.43 | 8.10 | 16.42 | 818 | 683 | 19.77 | |
| Side wall 5 | El-Centro motion | 11.70 | 10.57 | 10.69 | 1234 | 1132 | 9.01 |
| Lanzhou motion | 10.02 | 8.83 | 13.48 | 566 | 517 | 9.48 | |
| Side wall 6 | El-Centro motion | 3.76 | 3.16 | 18.99 | 126 | 109 | 15.60 |
| Lanzhou motion | 3.89 | 3.31 | 17.52 | 99 | 87 | 13.79 | |
| Section | M1 | M2 | M3 | M4 | M5 | |
|---|---|---|---|---|---|---|
| Floor 3 | layer drift in the X-direction | 1.76 | 2.25 | 2.42 | 3.06 | 2.97 |
| layer drift angle in the X-direction | 1/2898 | 1/2267 | 1/2107 | 1/1667 | 1/1717 | |
| layer drift in the Y-direction | 4.03 | 2.88 | 3.82 | 4.01 | 3.91 | |
| layer drift angle in the Y-direction | 1/1266 | 1/1770 | 1/1335 | 1/1271 | 1/1304 | |
| Floor 2 | layer drift in the X-direction | 1.65 | 2.10 | 2.23 | 2.69 | 1.81 |
| layer drift angle in the X-direction | 1/2909 | 1/2286 | 1/2152 | 1/1784 | 1/2652 | |
| layer drift in the Y-direction | 3.81 | 2.74 | 3.60 | 3.76 | 3.62 | |
| layer drift angle in the Y-direction | 1/1260 | 1/1752 | 1/1333 | 1/1277 | 1/1326 | |
| Floor 1 | layer drift in the X-direction | 1.79 | 2.25 | 2.36 | 5.93 | 2.83 |
| layer drift angle in the X-direction | 1/2682 | 1/2133 | 1/2034 | 1/809 | 1/1696 | |
| layer drift in the Y-direction | 3.83 | 2.74 | 3.59 | 3.76 | 3.73 | |
| layer drift angle in the Y-direction | 1/1253 | 1/1752 | 1/1337 | 1/1277 | 1/1287 | |
| Top of Floor 3 | Bottom of Floor 3 | Top of Floor 2 | Bottom of Floor 2 | Top of Floor 1 | Bottom of Floor 1 | ||
|---|---|---|---|---|---|---|---|
| M1 | Static ((105 N/m) | 3.53 | 4.20 | 5.59 | 8.20 | 11.18 | 16.88 |
| Dynamic (105 N/m) | 4.57 | 5.46 | 7.29 | 10.58 | 14.41 | 21.56 | |
| Amplification (%) | 29.51 | 30.02 | 30.43 | 28.94 | 28.85 | 27.71 | |
| M2 | Static (105 N/m) | 6.19 | 6.42 | 7.72 | 10.42 | 13.61 | 20.15 |
| Dynamic (105 N/m) | 7.74 | 8.12 | 9.77 | 13.18 | 17.16 | 25.41 | |
| Amplification (%) | 24.88 | 26.46 | 26.56 | 26.48 | 26.11 | 26.10 | |
| M3 | Static (105 N/m) | 8.74 | 9.03 | 9.94 | 12.70 | 16.06 | 23.43 |
| Dynamic (105 N/m) | 11.06 | 11.26 | 12.61 | 16.17 | 20.40 | 29.78 | |
| Amplification (%) | 26.62 | 24.68 | 26.86 | 27.36 | 26.98 | 27.09 | |
| M4 | Static (105 N/m) | 11.39 | 12.46 | 12.49 | 15.40 | 18.98 | 28.43 |
| Dynamic (105 N/m) | 14.24 | 15.00 | 15.74 | 19.68 | 24.29 | 35.85 | |
| Amplification (%) | 25.06 | 20.35 | 25.96 | 27.77 | 27.99 | 26.11 | |
| M5 | Static (105 N/m) | 13.54 | 14.96 | 14.53 | 17.41 | 21.09 | 30.13 |
| Dynamic (105 N/m) | 17.22 | 18.50 | 18.56 | 22.37 | 26.91 | 38.52 | |
| Amplification (%) | 27.18 | 23.69 | 27.70 | 28.46 | 27.61 | 27.85 |
© 2017 by the authors. Licensee MDPI, Basel, Switzerland. This article is an open access article distributed under the terms and conditions of the Creative Commons Attribution (CC BY) license (http://creativecommons.org/licenses/by/4.0/).
Share and Cite
Wen, B.; Zhang, L.; Niu, D.; Zhang, M. Soil–Structure–Equipment Interaction and Influence Factors in an Underground Electrical Substation under Seismic Loads. Appl. Sci. 2017, 7, 1044. https://doi.org/10.3390/app7101044
Wen B, Zhang L, Niu D, Zhang M. Soil–Structure–Equipment Interaction and Influence Factors in an Underground Electrical Substation under Seismic Loads. Applied Sciences. 2017; 7(10):1044. https://doi.org/10.3390/app7101044
Chicago/Turabian StyleWen, Bo, Lu Zhang, Ditao Niu, and Muhua Zhang. 2017. "Soil–Structure–Equipment Interaction and Influence Factors in an Underground Electrical Substation under Seismic Loads" Applied Sciences 7, no. 10: 1044. https://doi.org/10.3390/app7101044
APA StyleWen, B., Zhang, L., Niu, D., & Zhang, M. (2017). Soil–Structure–Equipment Interaction and Influence Factors in an Underground Electrical Substation under Seismic Loads. Applied Sciences, 7(10), 1044. https://doi.org/10.3390/app7101044

