Seismic and Energy Performance Evaluation of Large-Scale Curtain Walls Subjected to Displacement Control Fasteners
Abstract
1. Introduction
2. Experimental Assessment of Curtain Wall Seismic Performance
2.1. Seismic Classification
2.2. Experimental Plan
2.3. Static Behavior of Curtain Walls: Description, Experimental Setup, and Results
2.4. Expected Displacement Control Effects of Seismic Fasteners
2.5. Dynamic Behavior of Curtain Walls: Description, Experimental Setup, and Results
- (1)
- The components of the glazing system (e.g., setting blocks, side blocks, gaskets, silicone seals, etc.) are functionally the same;
- (2)
- The width and height of the glass lites do not exceed the tested size;
- (3)
- The nominal edge clearances are greater than or equal to those of the tested unit;
- (4)
- The percentage of inter-story drift is equal to or less than the tested unit;
- (5)
- The SSG bead contact width is equal to or wider than the tested unit;
- (6)
- The SSG bead thickness is equal to or thicker than the tested unit.
3. Finite Element Method (FEM): Seismic Performance of Curtain Wall
3.1. FE Modelling of the Full-Frame Curtain Walls
3.2. FE Modelling of the Single-Frame Curtain Walls
3.3. Static Seismic Analysis of Curtain Wall by AAMA 501.4 Standard
3.4. Dynamic Seismic Analysis of Curtain Wall by AAMA 501.6 Standard
4. Usability Performance Assessment of Seismic Curtain Wall
4.1. Test Overview for Heat Insulation and Airtightness Performance Assessment
4.2. Test Overview for Watertightness and Wind Pressure Performance Assessment
4.3. Heat Transmittance Test Results
4.4. Air Infiltration Test Results
4.5. Water Penetration Test Results
4.6. Wind Resistance Test Results
5. Conclusions
- (1)
- The results of analyzing the vulnerabilities of a large conventional curtain wall through experiments and numerical analysis were similar. In general, the stress was concentrated at the junction edge of the mullion and the transom, indicating vulnerability. In particular, it was confirmed that the gasket, which is a super-elastic material that constrains the glass façade, yielded and caused sliding. As a result, fallout occurred due to the collision of the aluminum-to-glass façade;
- (2)
- The calculated stresses at the maximum drift compared in the finite element analysis according to the static lateral drift application were as follows: the peak stresses of the non-seismic curtain wall were 405, 460.5, and 2486 MPa in the X-, Y-, and Z-axes, respectively, and the peak stresses of the seismic curtain wall were 3.38, 455.5, and 1.2 MPa in the X-, Y-, and Z-axes, respectively. Therefore, it was confirmed that the earthquake-resistant curtain wall, to which the fastener with displacement absorption performance was applied, can significantly reduce the stress transmitted to the exterior material in the main structure. According to the above finite element analysis results, the problems of non-seismic curtain walls were completely solved and the effect of improving the seismic performance of curtain walls was verified;
- (3)
- When examining the stress distributed in each member when dynamic displacement according to the AAMA 501.6 seismic wave was applied, it was found that the overall stress received by the aluminum mullion was the greatest. Because the moving clip absorbed the displacement through the rail, it was confirmed that no damage occurred due to the stress transmitted to the glass exterior material;
- (4)
- Overall, the results according to the change in the length of the linear guide indicated that partial dropout and breakage of each member did not occur. It can be seen that the stress applied to the curtain wall gradually increases as the displacement absorption section decreases from 150 to 100 and 50 mm;
- (5)
- In the case of the non-seismic curtain wall, because it is an integrated structure with a pre-fab member, it cannot resist the stress applied to the exterior material, which is transmitted. Thus, it can be confirmed that the stress is concentrated in weak areas, such as the junction between members;
- (6)
- In the case of a seismic curtain wall, when dynamic displacement is applied, the moving clip of the linear guide generally controls the displacement because it moves in the direction of the force on the rail, thus absorbing and dispersing the stress applied to the exterior material. It can be seen that the stress received is significantly reduced;
- (7)
- If the length of the linear guide was reduced to 50 mm, there was no damage to the glass casing. However, as the displacement increased, the upper fastener was deformed, and it was judged that reinforcement is necessary;
- (8)
- Regarding the usability of the curtain wall, the insulation, airtightness, watertightness, and wind pressure performance were evaluated. No defects occurred after the test, and the results of the test showed the curtain wall is suitable for insulation performance 1st grade (heat transmission rate of 1.0 W/m2 K or less); airtightness performance 1st grade; watertightness performance 35 grade; and wind pressure resistance 280 grade;
- (9)
- As a result of the curtain wall usability evaluation, all of the performance criteria were satisfied. Thus, it was confirmed that the manufacture of the proposed curtain wall prototype did not result in any abnormalities in terms of durability, safety, or usability.
Author Contributions
Funding
Institutional Review Board Statement
Informed Consent Statement
Acknowledgments
Conflicts of Interest
References
- Aiello, C.; Caterino, N.; Maddaloni, G.; Bonati, A.; Franco, A.; Occhiuzzi, A. Experimental and numerical investigation of cyclic response of a glass curtain wall for seismic performance assessment. Adv. Constr. Build. Mater. 2018, 187, 596–609. [Google Scholar] [CrossRef]
- Caterino, N.; Zoppo, M.D.; Maddaloni, G.; Bonati, A.; Cavanna, G.; Occhiuzzi, A. Seismic assessment and finite element modelling of glazed curtain walls. Struct. Eng. Mech. 2017, 61, 77–90. [Google Scholar] [CrossRef]
- Gil, E.M. Computational Modeling of Glass Curtain Wall Systems to Support Fragility Curve Development. Master’s Thesis, Virginia Polytechnic Institute and State University, Blacksburg, VA, USA, 15 August 2019. [Google Scholar]
- Sivanerupan, S. In-Plane Seismic Performance of Glass Façade Systems. Ph.D. Thesis, Swinburne University of Technology, Melbourne, Australia, 2011. [Google Scholar]
- Bedon, C.; Amadio, C. Enhancement of the seismic performance of multi-storey buildings by means of dissipative glazing curtain walls. Eng. Struct. 2017, 152, 320–334. [Google Scholar] [CrossRef]
- Kwok, M.; Lee, A. Engineering of Guangzhou International Finance Centre. Int. J. High Rise Build. 2016, 5, 49–72. [Google Scholar] [CrossRef][Green Version]
- Li, B.; Hutchinson, G.L.; Duffield, C.F. Contribution of typical non-structural components to the performance of high-rise buildings based on field reconnaissance. J. Build. Apprais. 2010, 6, 129–151. [Google Scholar] [CrossRef]
- Bedon, C.; Amadio, C. Numerical assessment of vibration control systems for multi-hazard design and mitigation of glass curtain walls. J. Build. Eng. 2018, 15, 1–13. [Google Scholar] [CrossRef]
- Brueggeman, J.L.; Behr, R.A.; Wulfer, H.; Memari, A.M.; Kremer, P.A. Dynamic racking performance of an earthquake-isolated curtain wall system. Earthq. Spectra 2000, 16, 735–756. [Google Scholar] [CrossRef]
- Casagrande, L.; Bonati, A.; Occhiuzzi, A.; Caterino, N.; Auricchio, F. Numerical investigation on the seismic dissipation of glazed curtain wall equipped on high-rise buildings. Eng. Struct. 2019, 179, 225–245. [Google Scholar] [CrossRef]
- Jung, W.Y.; Cheung, J.H.; Choi, H.S.; Kim, M.U. Shaking Table Test Examples for Seismic Performance Evaluation of Nonstructural Components. Trans. Korean Soc. Noise Vib. Eng. 2018, 28, 20–26. [Google Scholar] [CrossRef]
- Kwak, E.S.; Ki, C.G.; Lee, S.H.; Shon, S.D.; Lee, S.J. A Study on the Structural Performance of the Building Exterior Panel Using the Moving Clips. J. Archit. Inst. Korea 2017, 33, 29–36. [Google Scholar] [CrossRef]
- Memari, A.M.; Behr, R.A.; Kremer, P.A. Seismic behavior of curtain walls containing insulating glass units. J. Archit. Eng. 2003, 9, 70–85. [Google Scholar] [CrossRef]
- Oh, S.H.; Park, H.Y.; Park, J.H. Connection Detail of Cladding Support System for Seismic Performance Improvement. J. Korean Soc. Steel Const. 2020, 32, 285–295. [Google Scholar] [CrossRef]
- Choi, S.G.; Won, J.H.; Park, H.S.; Ha, Y.C. Wind Load Performance Evaluation of Curtain Wall System. Wind Eng. Inst. Korea 2018, 22, 19–23. [Google Scholar]
- Rizzo, Z.; Franco, A.; Maddaloni, F.; Gaterino, N.; Occhiuzzi, A. Predictive analyses for aerodynamic investigation of curtain walls. Structures 2021, 29, 1059–1077. [Google Scholar] [CrossRef]
- Barnaure, M.; Voiculescu, M. The Seismic Behaviour of Curtain Walls: An Analysis Based on Numerical Modelling. Math. Model. Civ. Eng. 2013, 9, 1–8. [Google Scholar] [CrossRef]
- Bedon, C.; Amadio, C. Passive control systems for the blast enhancement of glazing curtain walls under explosive loads. Open Civ. Eng. J. 2017, 11, 396–419. [Google Scholar] [CrossRef]
- Bedon, C.; Zhang, X.; Santos, F.; Honfi, D.; Kozłowski, M.; Arrigoni, M.; Figuli, L.; Lange, D. Performance of structural glass façades under extreme loads - Design methods, existing research, current issues and trends. Constr. Build. Mater. 2017, 163, 921–937. [Google Scholar] [CrossRef]
- Ber, B.; Premrov, M.; Štrukelj, A. Finite Element Analysis of Timber-Glass Walls. Glass Struct. Eng. 2016, 1, 19–37. [Google Scholar] [CrossRef]
- Cwyl, M.; Michalczyk, R.; Grzegorzewska, N.; Garbacz, A. Predicting Performance of Aluminum-Glass Composite Façade Systems Based on Mechanical Properties of the Connection. Period. Polytech. Civ. Eng. 2018, 62, 259–266. [Google Scholar] [CrossRef]
- Lee, S.H.; Cho, T.G.; Lim, H.T.; Choi, B.J. Damage of Gyeongju 9.12 Earthquakes and Seismic Design Criteria for Nonstructural Elements. J. Earthq. Eng. Soc. Korea 2016, 20, 561–567. [Google Scholar] [CrossRef]
- Hong, S.H.; You, N.G.; Seo, E.S.; Kim, H.N.; Kim, B.J.; Jung, U.I. Economic Evaluation of Absorption Curtain Wall Sleeve with Relative Storey Displacement. In Proceedings of the Korean Institute of Building Construction Conference, Yeosu, Korea, 16 May 2019. [Google Scholar]
- Yim, H.C.; Youn, K.J.; Kim, J.H.; Park, J.H. Structural Performance Evaluation of Steel-Aluminum Unit Curtain-Walls for Super Tall Buildings. In Proceedings of the Annual Conference of the Architectural Institute of Korea, Cheongju, Korea, 23 October 2010. [Google Scholar]
- Jeong, Y.S.; Woo, T.R.; Kim, J.B. Behavior Characteristics of Cast-in Anchor Channel Anchor Shape on Non-structural Members. J. Korean Soc. Adv. Comp. Struct. 2020, 11, 46–54. [Google Scholar] [CrossRef]
- Chang, K.K.; Park, N.W. Development and Performance Evaluation of Under Cut Anchor Stone Curtain Wall Construction Method. J. Korea Inst. Struct. Maint. Inspir. 2014, 18, 138–146. [Google Scholar] [CrossRef][Green Version]
- Kwon, M.H.; Kim, J.S.; Kwon, G.B.; Park, W.S. Seismic Fragility Evaluation of Boiler Steel Structure by Dynamic Nonlinear Analysis. J. Korean Soc. Adv. Comp. Struct. 2019, 10, 30–36. [Google Scholar] [CrossRef]
- Nam, J.W.; Ryou, H.S.; Kim, D.J.; Kim, S.W.; Nam, J.S.; Cho, S.W. Experimental and Numerical Studies on the Failure of Curtain Wall Double Glazed for Radiation Effect. Fire Sci. Eng. 2015, 29, 40–44. [Google Scholar] [CrossRef]
- American Architectural Manufacturers Association. AAMA 501.4 Recommended Static Test Method for Evaluating Curtain Wall and Storefront Systems Subjected to Seismic and Wind Induced Interstory Drifts; American Architectural Manufacturers Association: Schaumburg, IL, USA, 2018. [Google Scholar]
- American Architectural Manufacturers Association. AAMA 501.7 Recommended Static Test Method for Evaluating Windows, Window Wall, Curtain Wall and Storefront Systems Subjected to Vertical Inter-Story Movements; American Architectural Manufacturers Association: Schaumburg, IL, USA, 2017. [Google Scholar]
- American Architectural Manufacturers Association. AAMA 501.6 Recommended Dynamic Test Method for Determining the Seismic Drift Causing Glass Fallout from a Wall System; American Architectural Manufacturers Association: Schaumburg, IL, USA, 2018. [Google Scholar]
- Gonçalves, M.D.; Jutras, R. Evaluating the field performance of windows and curtain walls of large buildings. In Proceedings of the Building Enclosure Science & Technology (BEST2) Conference, Portland, OR, USA, 12–14 April 2010. [Google Scholar]
- Ilter, E.; Tavil, A.; Celik, O.C. Full-scale performance testing and evaluation of unitized curtain walls. J. Facade Des. Eng. 2015, 3, 39–47. [Google Scholar] [CrossRef]








































| Classification | Principal |
|---|---|
| Edge Clearance | A method to secure deformation prevention by setting a clearance between the edge of the glass and the frame when fracture stress occurs as the glass undergoes in-plane deformation |
| SSG (Structural Silicone Glazing) | A method of supporting glass by adhering the glass panel to a frame member using a structural silicone sealant |
| Rocking | A method of preventing impact and fallout of the exterior panels by absorbing the in-plane deformation via rotation of the exterior panel against the inter-story drift of the building during earthquakes |
| Swaying | A method to prevent impact and fallout of exterior panels by absorbing deformation via suspending exterior panels against the inter-story drift of buildings during earthquakes and moving them horizontally, with the upper part free to move |
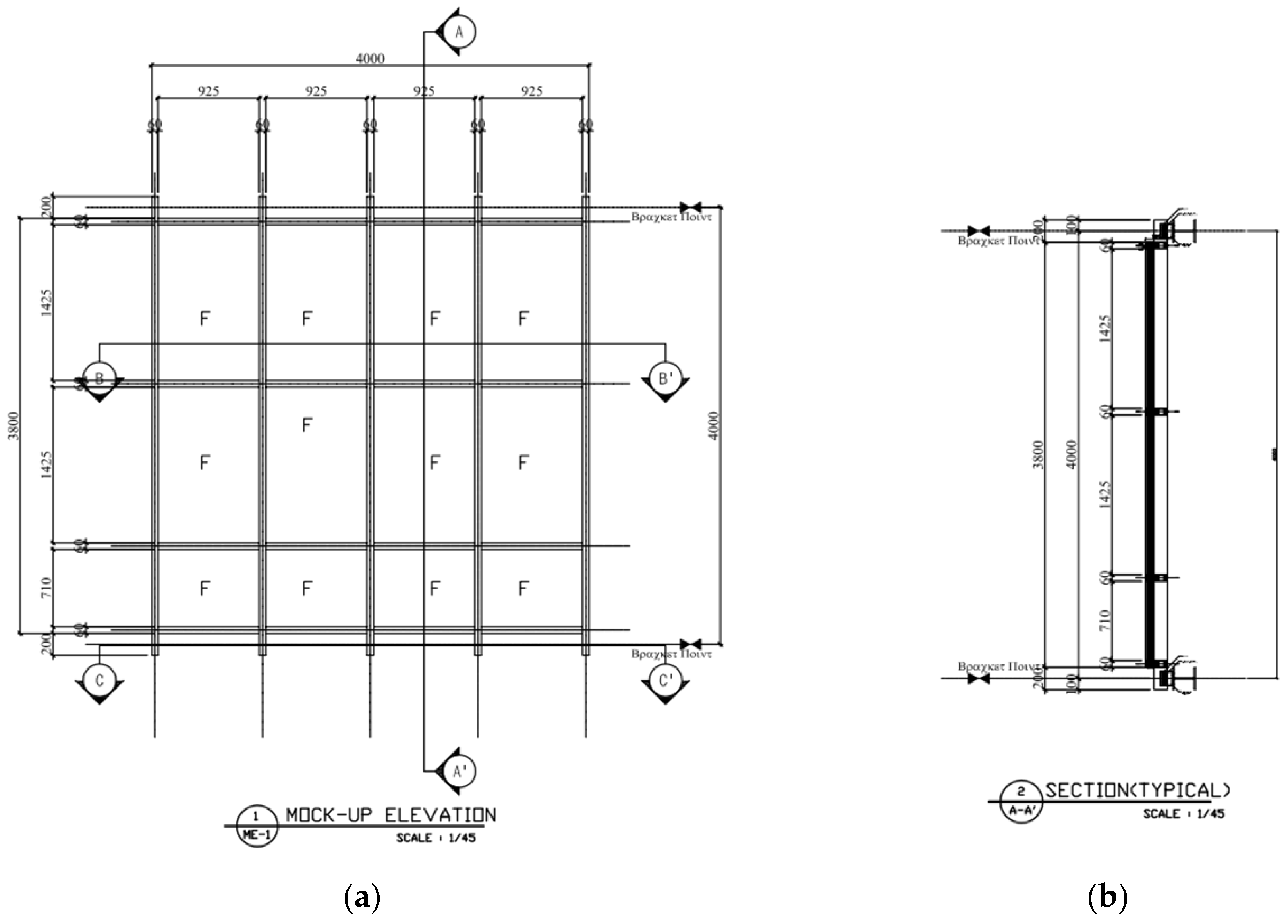
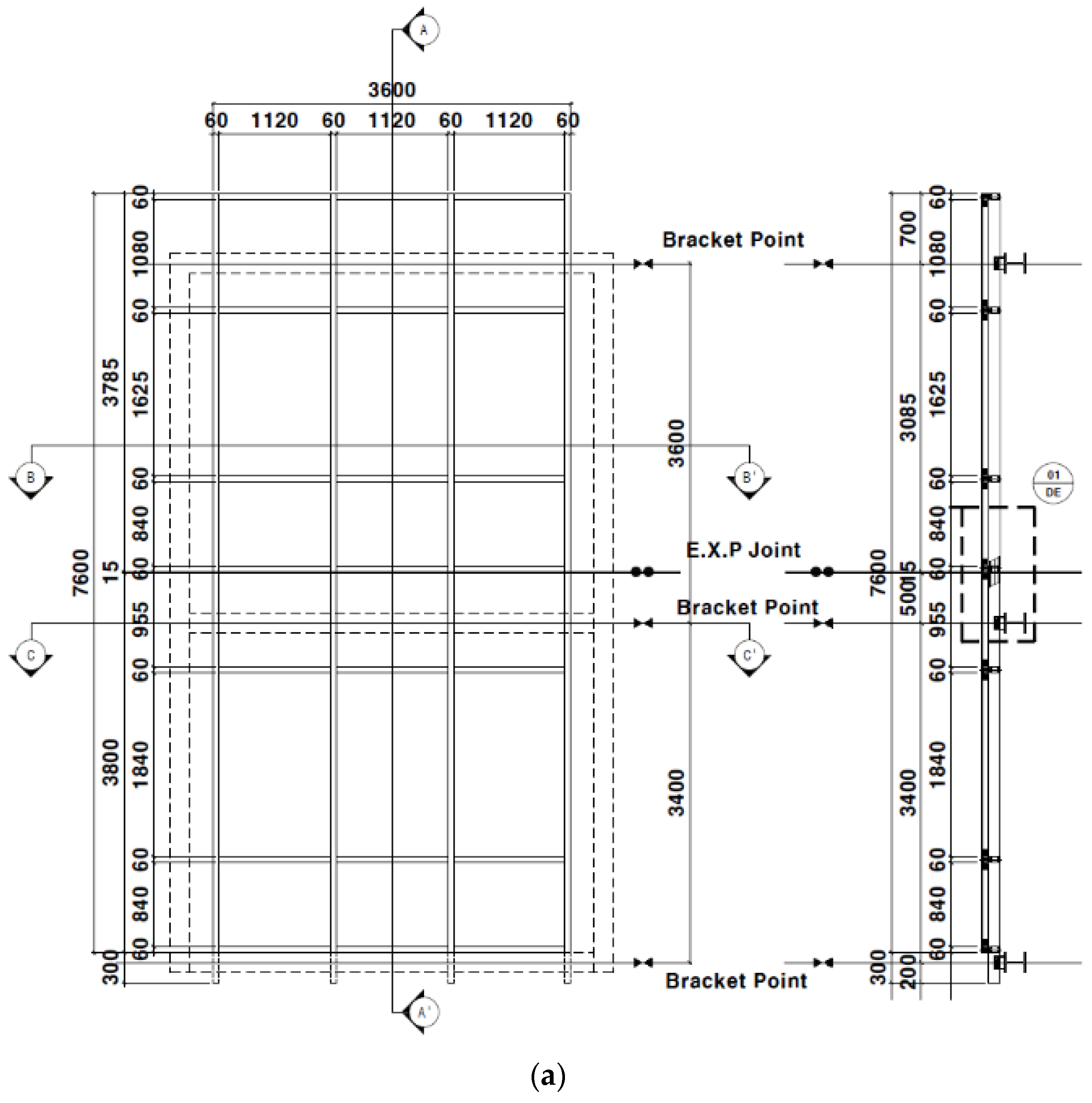
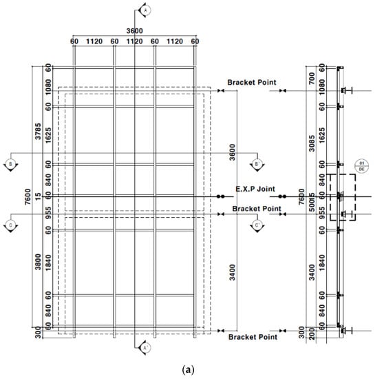
| Profile | Aluminum Curtain Wall/SC-ECW-ST-01 | |
|---|---|---|
| Dimension | 3600 mm (W) × 7600 mm (H) | |
| Aluminum frame | Mullion | (60 mm × 150 mm) Extruded bar |
| Transom | (60 mm × 150 mm) Extruded bar | |
| Thermal break | Polyamide (Mullion and transom) | |
| Glass | 42 mm Low-E triple glass (6 mm Semi-reinforced glass + 12 mm Air + 6 mm Plain glass + 12 mm Air + 6 mm Semi-reinforced glass) | |
| AL. sleeve of expansion joint | 250 mm | |
| Anchor part | Steel anchor | 2L-110 × 100 × 9T × 120LG |
| Spacing | Refer to Figure 2 | |
| Finish | AL. Bar | PVDF Coat |
| Steel anchor | Hot-dip galvanizing | |
| Lateral Displacement | Cycle | Vulnerabilities | Remarks |
|---|---|---|---|
| Seismic classification (Special) (0.010 × ) = ±36.00 mm | 3 | None | Distance between anchor points of curtain wall mullions = 3600 mm ( = xth story height) |
| Seismic classification (I) (0.015 × ) = ±54.00 mm | 3 | Partial breakage of weather sealant installed outside frame | |
| Seismic classification (II) (0.020 × ) = ±72.00 mm | 3 | Expansion of breakage area of weather sealant installed outside the curtain wall | |
| Purpose of displacement in this study ±150 mm | 3 | Glass breakage and fallout | |
| Residual deformation after weather sealant breakage |
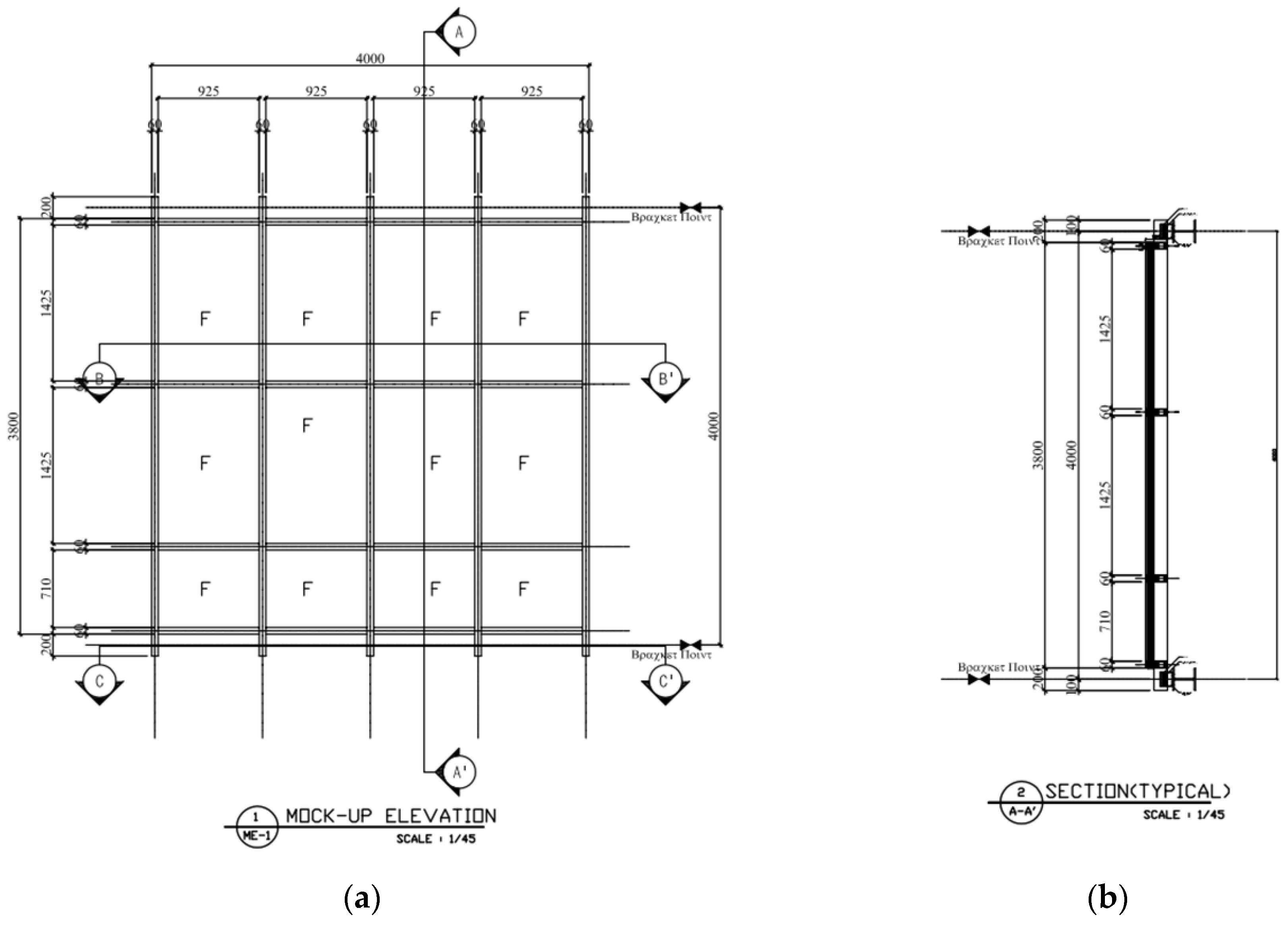
| Dimension | Façade Frame | 4000 mm (W) × 4200 mm (H) | |||||
| Story Height | 4000 mm | ||||||
| Frame | Mullion | 60 mm × 195 mm (Aluminum extruded bar) | |||||
| Transom | 60 mm × 195 mm (Aluminum extruded bar) | ||||||
| Thermal break | PVC (Mullion and Transom) | ||||||
| Glass Spec. | Glass Thickness and General Spec. | 42 mm Triple glass (6Low-e + 12Air + 6Clear + 12Air + *6Low-e) | |||||
| Reinforced Glass Spec. | 6Low-e: SKN154II (Semi-reinforced glass) | ||||||
| Laminated Glass Spec. | None | ||||||
| Glass Dimension | a | 959 mm () × 1453 mm () | |||||
| b | 959 mm () × 738 mm () | ||||||
| Gasket | None | ||||||
| Sealant | External: Weather sealant/Internal: Structural sealant | ||||||
| Glass Bite Depth and Clearance | Glass Bite Depth | Left(L)/Right(R) | 17.0 mm | Cap type | |||
| Up(U)/Down(L) | 14.0 mm | Cap type | |||||
| Classification | Glass size (mm) | Frame inner diameter (mm) | Clearance | ||||
| Glass-Frame Clearance | Fix | (L/R) | 959 | 968 | 4.5 mm | ||
| (U/D) | 1453 | 1467 | 7.0 mm | ||||
| Casement | (L/R) | 959 | 968 | 4.5 mm | |||
| (U/D) | 738 | 752 | 7.0 mm | ||||
| AL. Sleeve of Expansion Joint | None | ||||||
| Finish | AL. Bar | Powder coat | |||||
| Steel Anchor | Hot-dip galvanizing | ||||||
| Dimension | Façade Frame | 4005 mm (W) × 4200 mm (H) | |||||
| Story Height | 4000 mm | ||||||
| Frame | Mullion | 60 mm × 175 mm (Aluminum extruded bar) | |||||
| Transom | 60 mm × 175 mm (Aluminum extruded bar) | ||||||
| Thermal Break | PVC (Mullion and Transom) | ||||||
| Glass Spec. | Glass Thickness and General Spec. | 42 mm Triple glass (6Low-e + 12Air + 6Clear + 12Air + *6Low-e) | |||||
| Reinforced Glass Spec. | 6Low-e: SKN154II (Semi-reinforced glass) | ||||||
| Laminated Glass Spec. | None | ||||||
| Glass Dimension | a | 1279 mm () × 1449 mm () | |||||
| b | 1279 mm () × 734 mm () | ||||||
| Gasket | None | ||||||
| Sealant | External: Weather sealant/Internal: Structural sealant | ||||||
| Glass Bite Depth and Clearance | Glass Bite Depth | Left(L)/Right(R) | 120 mm | Cap type | |||
| Up(U)/Down(L) | 120 mm | Cap type | |||||
| Classification | Glass size (mm) | Frame inner diameter (mm) | Clearance | ||||
| Glass-Frame Clearance | Fix | (L/R) | 1279 | 1298 | 9.5 mm | ||
| (U/D) | 1449 | 1468 | 9.5 mm | ||||
| Casement | (L/R) | 1279 | 1298 | 9.5 mm | |||
| (U/D) | 734 | 753 | 9.5 mm | ||||
| AL. Sleeve of Expansion Joint | None | ||||||
| Finish | AL. Bar | Powder coat | |||||
| Steel Anchor | Hot-dip galvanizing | ||||||
| Classification | Test Item | Test Result | |
|---|---|---|---|
| Displacement Measurement | Percentage of Test Specimen Height | ||
| Non-seismic specimen | ΔSeal cracking | >42 mm | >1.11% |
| ΔCracking | >60 mm | >1.58% | |
| ΔFallout | >90 mm | >2.37% | |
| Note | -A large number of cracks and breakage occurred. -Finally, glass fallout occurred. | ||
| Seismic specimen | Δ Seal cracking | >150 mm | >3.75% |
| ΔCracking | >150 mm | >3.75% | |
| ΔFallout | >150 mm | >3.75% | |
| Note | -No cracks and breakage up to 150 mm displacement. | ||
| Material | Density [kg/m3] | Modulus of Elasticity [GPa] | Poison’s Ratio |
|---|---|---|---|
| Aluminium | 2700 | 72 | 0.34 |
| PVC | 1400 | 0.1655 | 0.4 |
| Steel | 7800 | 210 | 0.3 |
| Concrete | 2300 | 26 | 0.167 |
| Glass | 2700 | 70 | 0.25 |
| Components | Vulnerability Type |
|---|---|
| Aluminum |
|
| Fastener |
|
| Glass |
|
| Gasket |
|
| Expansion joint |
|
| Direction of Drift. | FE Model | Stress at Maximum Drift (MPa) | Stress Concentration Part |
|---|---|---|---|
| X-Axis | Non-seismic curtain wall | 405 | Diagonal edge and fastener connection joint in aluminum |
| Seismic curtain wall | 3.38 | The bolted joint of the fastener closest to the point of drift | |
| Y-Axis | Non-seismic curtain wall | 460.5 | Edge of mullion |
| Seismic curtain wall | 455.5 | Fastener closest to the point of drift | |
| Z-Axis | Non-seismic curtain wall | 2486 | Center part of mullion |
| Seismic curtain wall | 1.2 | Fastener closest to the point of drift |
| Linear Guide Length (mm) | Peak Stress (MPa) | ||||
|---|---|---|---|---|---|
| Aluminum | PVC | Fastener | Linear Guide | Glass | |
| 50 | 409.9 | 10 | 116.1 | 53.4 | 4 |
| 100 | 192.3 | 3.8 | 61.2 | 18.7 | 1.4 |
| 150 | 12.8 | 0.35 | 14.4 | 7.29 | 0.45 |
| Curtain Wall Type | Peak Stress (MPa) | Peak Stress Point |
|---|---|---|
| Non-seismic curtain wall | 1270 | Fastener bonded to diagonal edge aluminum |
| Seismic curtain wall (Linear guide Length: 50 mm) | 409.9 | Upper fastener-to-mullion connection part |
| Seismic curtain wall (Linear guide Length: 100 mm) | 192.3 | |
| Seismic curtain wall (Linear guide Length: 150 mm) | 12.8 |
| Frame Material | Aluminum | ||
| Opening and Closing Method | Fixed window | ||
| Frame Width (mm) | 175 | ||
| Single Window/Double Window | Single window | ||
| Glass Composition | Division | Thickness (mm) | Glass type |
| - | 42 | Triple glass | |
| Roy 6 mm (soft coating, SKN154II, H/S) + Argon gas 12 mm + Typical 6 mm + Argon gas 12 mm + Typical 6 mm | |||
| Spacer Material | Division | Material | |
| - | Synthetic resin | ||
| Division | 1st time | 2nd time | 3rd time | |
| Air Temperature [°C] | Constant Temperature Room | 20.03 | 20.02 | 20.02 |
| Protective Heat Box | 19.86 | 19.85 | 19.85 | |
| Low-Temperature Room | −0.50 | −0.50 | −0.51 | |
| Temperature Difference ※1 | 20.36 | 20.35 | 20.35 | |
| Calorie [W] | Total Supply Calories ※2 | 103.44 | 103.38 | 104.05 |
| Calibration Calories ※3 | 38.16 | 38.16 | 38.18 | |
| Passing Calories Through Specimen | 65.28 | 65.22 | 65.87 | |
| Heat Transfer Resistance on Both Surfaces of the Specimen [(m2·K)/W] | Inner Surface Heat Transfer Resistance | 0.12 | 0.12 | 0.12 |
| External Surface Heat Transfer Resistance | 0.06 | 0.06 | 0.06 | |
| Correction Value | −0.02 | −0.02 | −0.02 | |
| Heat Transmission Rate [W/(m2·K)] | 0.813 | 0.813 | 0.821 | |
| Average: 0.816 | ||||
| Heat Transfer Resistance [(m2·K)/W] | 1.230 | 1.231 | 1.218 | |
| Average: 1.226 | ||||
| Remark |
| |||
| Dimension | Specimen Size | Window Frame Inner Dimensions and Area | |||
|---|---|---|---|---|---|
| Height (mm) | Width (mm) | Height (mm) | Width (mm) | Area (m2) | |
| 2000 | 2000 | 1880 | 1880 | 3.534 4 | |
| Test result | Pressure difference (Pa) | Ventilation (m3/(h·m2)) | |||
| 10 | 0.00 | ||||
| 30 | 0.00 | ||||
| 50 | 0.00 | ||||
| 100 | 0.13 | ||||
| Airtightness grade | 1 grade | ||||
| Airtightness grade line | ![]() | ||||
| ※ Because the ventilation volume at 10, 30, and 50 Pa pressure is 0.00 m3/(h∙m2), it is not displayed on the airtightness rating line. | |||||
| Laboratory environment | Temperature: (26.1 ± 1.0) °C; Humidity: (61.7 ± 5.0)% R.H.; Air pressure: (1013.2 ± 0.1) hPa | ||||
| Dimensions and Water Spray Volume | Specimen Size | Water Spray Volume | |||
|---|---|---|---|---|---|
| Height (mm) | Width (mm) | 4 L/(m2·min) | |||
| 2000 | 2000 | ||||
| Test grade | 35 Grade (Test pressure: 350 Pa (175 Pa ∼ 525 Pa)) | ||||
| Test result | Leak phenomenon | Symbol | |||
| Upper window frame | - | : Penetration of water | |||
| Lower window frame | - | : Bubble | |||
| Sun frame (left) | - | : Outflow | |||
| Sun frame (Right) | - | : Outflow from the frame and significant outflow into the interior | |||
| Upper corner | - | : Injection | |||
| Lower corner | - | : Injection out of the frame | |||
| Etc. | - | : Spray | |||
: Spray out of the frame | |||||
: Overflow out of the frame | |||||
| 35 grade suitable | |||||
| Leak location | ![]() | ||||
| ※ No leakage phenomenon. | |||||
| Laboratory environment | Temperature: (25.3 ± 1.0) °C; Humidity: (57.3 ± 5.0)% R.H. | ||||
| Specimen Size | Height (mm) | Width (mm) | ||||||
|---|---|---|---|---|---|---|---|---|
| 2000 | 2000 | |||||||
| Test Grade | 280 Grade (Maximum test pressure: ±2800 Pa) | |||||||
| Test Result | Pressure (Pa) | Displacement by measurement location (mm) | Displacement (A) ※1 | Displacement rate (A/H) ※2 | Deformation (δ) ※3 | Strain (δ/L) ※4 | ||
| ① | ② | ③ | ||||||
| 700 | −0.84 | −6.54 | −0.82 | −6.54 | −0.0035 | −5.71 | −0.0031 | |
| 1400 | −2.09 | −11.09 | −1.63 | −11.09 | −0.0059 | −9.23 | −0.0050 | |
| 2100 | −3.06 | −14.64 | −2.40 | −14.64 | −0.0078 | −11.91 | −0.0065 | |
| 2800 | −4.03 | −17.63 | −3.09 | −17.63 | −0.0094 | −14.07 | −0.0076 | |
| −700 | 0.36 | 6.55 | 0.64 | 6.55 | 0.0035 | 6.05 | 0.0033 | |
| −1 400 | 1.11 | 11.41 | 1.30 | 11.41 | 0.0061 | 10.21 | 0.0055 | |
| −2 100 | 2.29 | 15.39 | 1.91 | 15.39 | 0.0082 | 13.29 | 0.0072 | |
| −2 800 | 3.41 | 18.54 | 2.42 | 18.54 | 0.0099 | 15.63 | 0.0085 | |
| ※1 Displacement (A): Displacement at measurement position② ※2 Displacement rate (A/H): H = 1880 mm ※3 Deformation (δ): δ = ② − (①+③)/2 ※4 Strain (δ/L): L = 1840 mm | ||||||||
| Deformation test | OK | |||||||
| Cyclic test | OK | |||||||
| Safety test | OK | |||||||
| Grade 280 suitable | ||||||||
| Displacement measurement location | ![]() | |||||||
| Laboratory environment | Temperature: (25.3 ± 1.0) °C; Humidity: (57.3 ± 5.0)% R.H. | |||||||
Publisher’s Note: MDPI stays neutral with regard to jurisdictional claims in published maps and institutional affiliations. |
© 2021 by the authors. Licensee MDPI, Basel, Switzerland. This article is an open access article distributed under the terms and conditions of the Creative Commons Attribution (CC BY) license (https://creativecommons.org/licenses/by/4.0/).
Share and Cite
Lee, H.; Oh, M.; Seo, J.; Kim, W. Seismic and Energy Performance Evaluation of Large-Scale Curtain Walls Subjected to Displacement Control Fasteners. Appl. Sci. 2021, 11, 6725. https://doi.org/10.3390/app11156725
Lee H, Oh M, Seo J, Kim W. Seismic and Energy Performance Evaluation of Large-Scale Curtain Walls Subjected to Displacement Control Fasteners. Applied Sciences. 2021; 11(15):6725. https://doi.org/10.3390/app11156725
Chicago/Turabian StyleLee, Heonseok, Myunghwan Oh, Junwon Seo, and Woosuk Kim. 2021. "Seismic and Energy Performance Evaluation of Large-Scale Curtain Walls Subjected to Displacement Control Fasteners" Applied Sciences 11, no. 15: 6725. https://doi.org/10.3390/app11156725
APA StyleLee, H., Oh, M., Seo, J., & Kim, W. (2021). Seismic and Energy Performance Evaluation of Large-Scale Curtain Walls Subjected to Displacement Control Fasteners. Applied Sciences, 11(15), 6725. https://doi.org/10.3390/app11156725












