Abstract
This article presents an analysis of a collective housing project designed by the architects Emilia Bisquert Santiago, Carmen González Lobo, Jose Miguel de Prada Poole and Ricardo Aroca in the Arturo Soria neighbourhood in Madrid in 1975. This project is noteworthy for its architects’ preference for designing flexible and adaptable spaces, both in the interior distribution of the homes spaces and in the common spaces of the building itself. Their main aim was to eliminate the rigid spatial segregation that was a dominant feature of Spanish housing estates promoted by the OSH (House Building Union) during the Franco Regime (1939–1975). To understand this idea, this research proposes a comparison between a Housing Estate promoted by the OSH in 1956 and the Arturo Soria building designed in 1975. The article explains and analyses the different architectural strategies that the architects proposed to achieve that flexibility and adaptability: a permanent structural ‘infrastructure,’ an intermediate architectural system adaptable over time, and finally, a range of possible configurations for the individual dwelling. Another important issue is the relationship between the construction system and alternative development of both horizontal and vertical living space. Explaining this relationship could help shape the habitability of future homes, the development of a sense of community, the possibility of designing for tenancies of different lengths and needs and the management of constant changes to a collective society.
1. Introduction
Spain, between 1975 and 1980, was in a period of transition after a four-decade dictatorship (1939–1975). This historical situation, which had enormous long-term social and economic impacts, frames this research. The term “collective housing” in the 1970s had, and still has, very different meanings and references, depending on the country of the case study analysed. According to the “three worlds” of the Esping-Andersen Welfare System (1990), Spain was categorized as a “conservative” model at the end of 1990s. “Collective housing” can have a different meaning if compared to cases where the welfare system is “social democratic” (Gøsta Esping 1990), as in the case of “collective housing” in Norway, Denmark, Finland or Sweden (Vestbro 1997; Vestbro 2000; Halrynjo 2009; Vestbro and Horelli 2012).
In Mediterranean countries and in this case, specifically, in Spain, collective housing architecture tends to be a “vertical piling up,” with different spatial strategies, of dwelling on top of dwelling without any additional uses, such as shared services and shops, other than private dwellings. In some cases, they have swimming pools, a garden or a gymnasium. However, none of these shared spaces involve communal areas where household tasks are shared or redistributed, such as laundry rooms, kitchens and dining rooms, workshops, playrooms for children or other services, as in the Scandinavian collective model. It is important to emphasize that the current terminology of “collective housing” in Spain is based on rigid and outdated regulations and as consumer goods rather than a primary social necessity. It is in this decade in Spain (2010–2020) when certain changes are beginning to be seen in the “collective” in housing. Therefore, finding projects that promote proposals for collective housing different from the traditional ones in Spain (vertical piling up) before 2010 is complicated. This research, however, presents an innovative proposal from 1975,1 an early date if we take into account that Franco’s regime just ended that same year. However, in Spain, flexibility from a gender-based perspective (Sánchez de Madariaga and Roberts 2013) has not been so deeply analysed nor applied.
2. Methodology
The methodology used in this research is based on a comparative and feminist critical approach (Harding 1989; Hanna 1996) of two case-studies of collective housing in Spain. In order to provide a clear visualization of the innovations found in the case study of Ángel Muñoz 22 (1975), the floor plans of 1960s “traditional layout housing” or segregated housing models—with recurring features—(Figure 1a) were compared with the selected case study of 1975 (Figure 1b). The comparison was made with “segregated typologies” that were typical for the dwellings built between 1950 and 1976 in Madrid (BOE2 1954, García-Vázquez 2015).
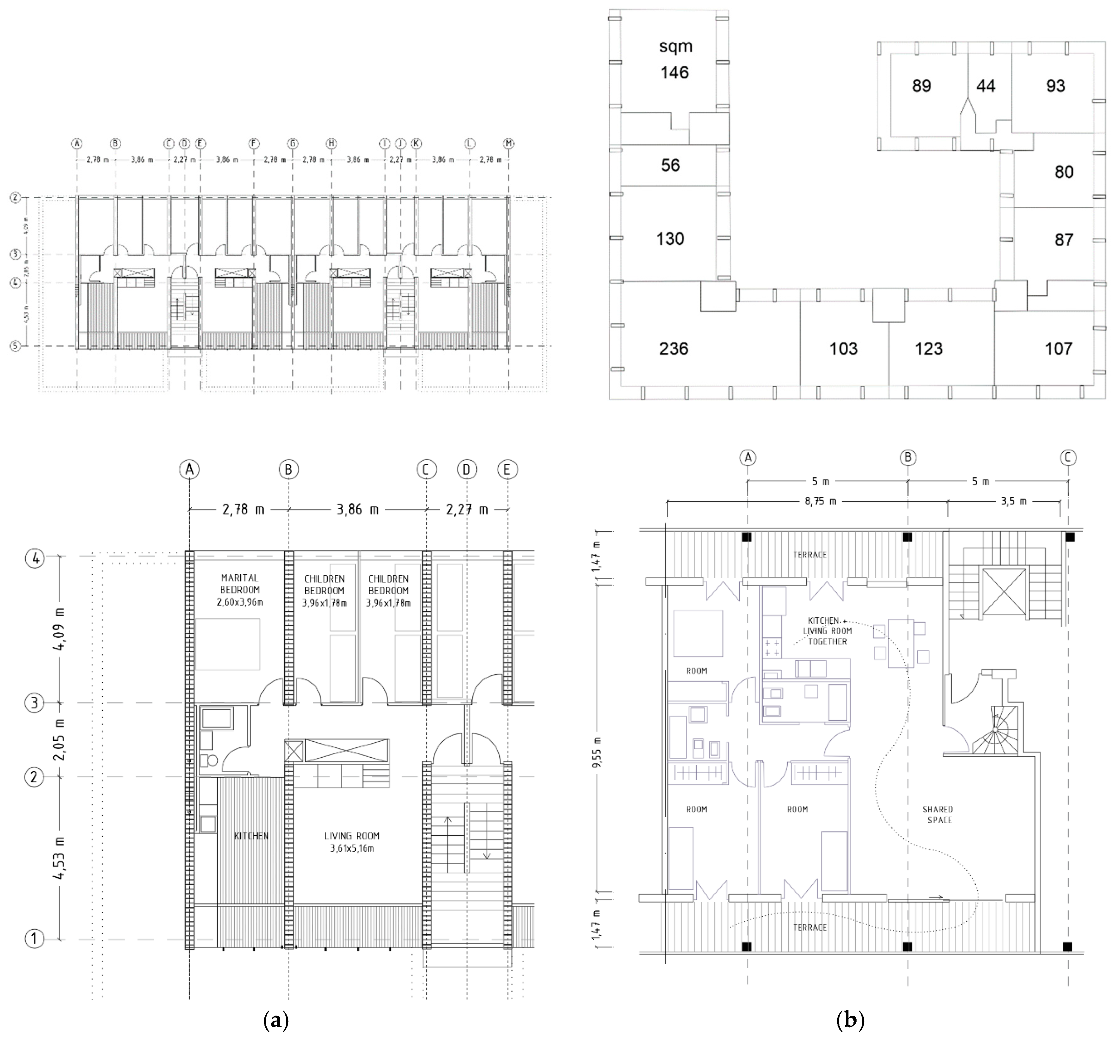
Figure 1.
(a) Example of spatial segregation in collective social housing in the “Poblado Dirigido de Fuencarral,” Madrid, 1956 Block housing scale and “dwelling type.” The kitchen and the living room are in two separate spaces, separated by load-bearing walls. The person working in the kitchen is isolated and the work is invisible. Source: Redrawn by De Jorge-Huertas (2015); (b) Example of spatial flexibility and adaptability in collective housing in the case study of 1975 (12 different dwellings per floor plan) and one of the dwelling variations in detail. The numbers show the different size of the dwellings. In the detail of one dwelling, the kitchen and living room are located together, they are not separated as in the case of Figure 1. Domestic workload in the kitchen can be seen and shared. It is not (so) invisible. Source: Redrawn by De Jorge-Huertas 2020.
The research was carried out using the following sources. The Spanish Film Library “Filmoteca Española de radio televisión española (rtve.es 1959)” was consulted in relation to the period of the “Poblados Dirigidos” of Madrid (for the 1950s), along with open access online. In the next three steps, the methodology used is mainly qualitative, based on comparative case studies (Ostrom 1990; De Jorge-Huertas 2018b). Two in-depth interviews were realized in 2017 with the living project architects (De Jorge-Huertas 2018a; De Jorge-Huertas 2019a) in order to understand the conception of the projects, whose results have enriched the understanding of the role of women architects3 in the design of the work. In addition, according to “a feminist analysis of Women and Design” of Buckley (1986), the oral sources were used to counterbalance the weight of “official” documentation.
To extract lessons learned from these projects and develop possible design strategies, the research was carried out using a comparative methodology with other typology of the same period that perpetuates gender biases in collective housing (Figure 1). In the next step, the projects analysed are compared in Section 3 and Section 4 to identify common key points in relation to housing that allow an understanding of these biases and how they have changed. Finally, the case studies have been redrawn and reinterpreted in line and in black and white (Figures 1–4) in order to develop a more rigorous comparison of both occupancy and distribution patterns.
3. From Spatial Segregation to Three-Dimensional Flexibility
The end of the 1970s coincided with the completion of the last National Housing Plan drawn up by the Franco dictatorship (Sambricio 1999). In order to understand the context, it is necessary to introduce the main problems relating to collective housing at this precise moment. The first problem, concerning the rigidity of the distribution plan in this temporal and geographical context, was related to the lack of industrialization and the persistence of artisan construction techniques such as load-bearing walls (García-Vázquez 2015). This problem stemmed from the Regime’s autarchy policies, preventing the transformation and customization of the interior space if required. The second problem was the generalization of a practically univocal housing model, the “H block” with segregated and zoned spaces associated with an ideal family model according to the Catholic ideas defended by Franco’s regime—heterosexual marriage with three or four kids—(BOE 1954; Díez-Pastor Iribas 2003).
This model was a policy implemented by the OSH (House Building Union),4 where patios were closed off or even not provided: having linear or “U” shaped blocks or a comb’s teeth design. The third problem was the “urbanism of isolation,” that could be understood as an urbanism conceived as only building “polygons” at the periphery, where land was cheapest and often isolating the housing and their working inhabitants from the activity and services of the urban centre. As García-Vázquez (2015) explains, the OSH homes included in the 1954 “Social Housing Scheme”5 met “minimum” requirements that were far below the average in other European countries, ranging from 5 m2 in Spain to 10 m2 in Germany. During Franco’s dictatorship, the reduction in square metres was a constant. For example, proposals were 40 square meters for a family nucleus of 8 people. As for the number of people and the number of rooms, rules were set that gave priority to housing types between two and five bedrooms (as can be seen graphically in the Figure 1a). This meant a totally pre-imposed three-dimensional physical space distribution based on hierarchy and monofunctionality, avoiding the possibility of a dwelling with one room, or any experimental alternative, and the null possibility of spatial flexibility and “the right to participate” in the intimate personal space already established by the regime. Spanish society was then governed by the precepts of National Catholicism. These prohibited divorces and condemned any type of alternative living arrangement to the traditional family. Consequently, architecture, and particularly housing, was thought, theorized and built under these precepts.
The role of women as architects at the OSH was nonexistent. Moreover, in their role as a user, women in the collective housing promoted by the OSH policies were not considered beyond the roles already allocated to them by the Regime according to its patriarchal system. Housing was hierarchical. In some cases, the floor plans even indicated the segregated uses where the kitchen was “represented” for women. It is worth noting that Spanish law used to severely discriminate against women and, until the current Spanish Constitution of 1978 with articles 14 and 35, and the application of the “principle of equality” with Law 11/1981 of 13 May 1981 (Imaz Zubiaur 2008), women needed to have a “marital licence” to be able to work, receive a salary or independently open a business without a male relative’s permission. Therefore, often a woman architect could not have her own architectural studio, nor sign a project as a woman architect until after 1981.
In the housing of the OSH, the segregation of space according to function inside the dwelling (Figure 1a) was to save on plumbing costs, but also for reasons resulting from the particular ideology of the dictatorial regime. The case study of 1975 (Figure 1b) has been proposed as an alternative case within the framework of the “model of collective housing” imposed by the “ideals” of the OSH in Spain (BOE 1954). This case study allows the modification of the “inside dwelling”, although it still does not allow the redistribution of the domestic workload, the creation of feminist alternatives (Hayden 1980; Hayden 1982), or the design for gender equality (Vestbro and Horelli 2012), as those that have emerged in other geographical contexts in the 1970 and 1980s: the cohousing models in Northern Europe (with shared spaces as common laundries, kindergartens or shared kitchens) or the nonprofit housing cooperatives in Zurich (De Jorge-Huertas forthcoming). Moreover, the “existence of women architects” in the project design team does not imply a deconstruction of the pre-established patriarchal models. The problem of just “adding women” is not enough (Harding 1989). However, in the case study of 1975, the project does provide a first step towards an innovative approach in certain aspects of “rethinking collective housing” in Spain: polyvalent constructive systems (Hertzberger 2005), building collaborative infrastructures (De Jorge-Huertas 2019b) and adaptable structures (De Jorge-Huertas 2017), which supports more adaptable and customizable housing concepts through flexible layouts, updated regulations on dimensions and freedom of choice, as can be seen in the figures below.
A Case Study: Adaptable Housing in Ángel Muñoz 22
The selected case study of “spatial flexibility” (Figure 1b) was built in Madrid in the district of Arturo Soria (Cano Lasso et al. 1978; Rodríguez García and Hernando De La Cuerda 2010) and is in Calle Ángel Muñoz 22 and San Nemesio 19A. Construction began in 1974; however, according to our interview with Prada Poole about the building in 2016 (De Jorge-Huertas 2019a), the works were completed between 1978 and 1979. This is because there was a delay due to a lapse in the licences granted by Madrid City Council Ayuntamiento de Madrid (1975) for the start of the work. The architectural team in charge of the project was Emilia Bisquert Santiago, Carmen González Lobo, Ricardo Aroca and José Miguel de Prada Poole.
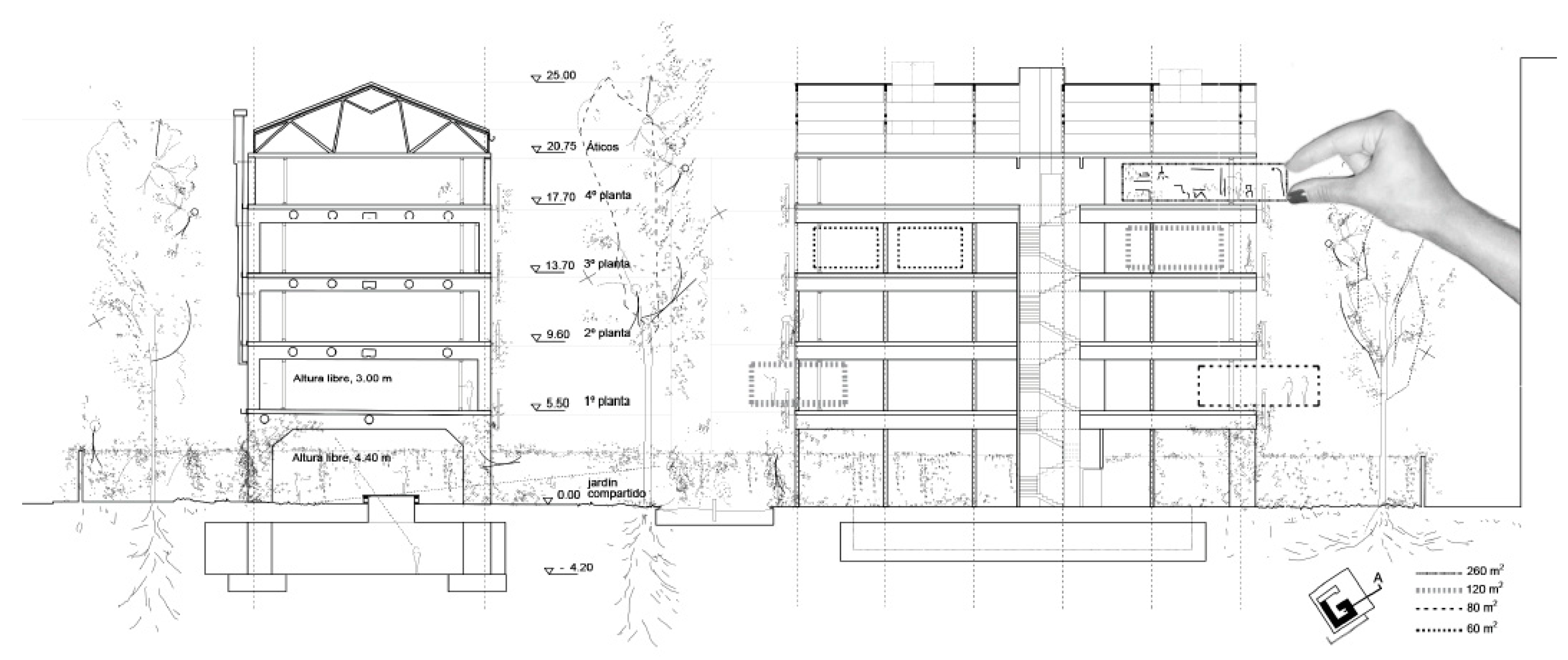
In this project, the concepts of “undifferentiated container” and polyvalence in the interior distribution of the dwellings are maximized. To achieve this, the load-bearing structure lies outside the facades, allowing a high degree of freedom of domestic kinetic strategies. The building has 45 dwellings which are very heterogeneous when compared to each other. This is also due to the versatile distribution of the wet cores on the ground plan and the strategic location of the structure. These aspects will be analysed later. According to one of the architects, in this housing project, a relevant factor to be considered in its development was the existence of a “legal loophole” in an ordinance for the M30 motorway in Madrid, in the district of Arturo Soria, with the only restrictions being on what was buildable. The plot was originally intended for use as offices with a higher than normal height between floors. This factor is important because it impacts the rigidity of certain regulation parameters when it comes to designing alternative residential projects. Therefore, this point allowed the design of some more variable project parameters such as the free height between floor frames, designed for offices with a floor height of 3.5 m. In this way, it was possible to create concrete porticoes with a span of 12 m (Figure 2), allowing the interior to be totally unobstructed.
Figure 2.
Interior of the dwellings totally free in their personalization and distribution. There are more than 30 different “typologies”. Legend: P0 (Level O), P1, P2, P3 and P4 refer to the different levels or Figure 4 shows the different size of the dwellings. Source: Author’s drawing.
This factor also relates to what one of the architects stressed was the greatest obstacle to innovative housing design, the regulations themselves which hinder the ability to develop dwellings with the flexibility (Aroca 2002) to be adapted and changed over time. Ingenuity and freedom based on the use of cross ventilation, orientation to context, in terms of sun, weather, are fundamental project strategies in all the projects of the architecture team at Arturo Soria. In a conversation in his studio, Ricardo Aroca mentioned how the constructive elements that ensure the well-being of the dwellings’ users and the improvement of its interior comfort should not be quantified by the regulations which restrict the dwellings’ constructed surface area.
In relation to the implementation process, the building was constructed in two phases. There were two communities of cooperative owners. Each floor or house was arranged according to their needs and preferences. Therefore, there was a margin in the distribution of space in a range from 80 to 240 square meters per dwelling. In this sense, it is important to consider the role of the architect Emilia Bisquert, who advocated the hybridization and adaptability of domesticity in the dwellings. Her role seems crucial as commented in an interview by one of the architects (De Jorge-Huertas 2019a). According to Prada Poole, her role can be seen from the absence of imposed typology, or in other words, in the provision of a multiplicity of scenarios envisaged at present (Figure 2 and Figure 3).
Figure 3.
Project section at Ángel Muñoz 22 in Arturo Soria, Madrid. The concrete structure on the perimeter of the continuous balcony allows the free distribution of the interior of the dwellings. Source: Author’s drawing (De Jorge-Huertas 2019a).
By analyzing the project at a morphological level, the habitable volume of the building can be used practically in its entirety in an optimal way without wasted spaces so one could buy the contiguous space; for example, immediately above or below and include a means of communication to connect and create a customized dwelling. Furthermore, because of a totally variable distribution system with no fixed points for the waste pipes, a free floor pattern is developed throughout the whole building, allowing variable installation of pipework. Prada Poole explained how the most complicated part of the process was to organize all the ideas of each of the neighbours, since in the 1980s, many of them came from small houses or from houses in the linear city of Arturo Soria. In the 1980s, it was decided to demolish most of them to build high-rise blocks. The management model as previously mentioned was a cooperative—condominium; therefore, the neighbours owned their homes.
The domestic interior in the dwellings of Ángel Muñoz 22 (Figure 3) is distributed on a plan around a continuous “G” form, like a semi-open block, allowing it in some way to dialogue with the city but maintaining intimacy for the dwellers. The ‘inhabited backbone’ is totally variable and customizable, allowing interior variations to be selected by the user. In addition, all homes have cross ventilation and a perimeter terrace on both sides of 147 cm in width. These same terraces are overlooked from the windows that were not defined in the project in order to come to an agreement with each inhabitant, allowing an “active participation.”
This design strategy of simple lines and great combined strength allows the terrace to become an extension of the internal areas. This specific space, half covered, half open to the area of the courtyard, allows the free occupation and redistribution of the house according to the needs of those who inhabit it. The inside-out symbiosis is produced by this ample space, pleasant and permeable to the internal garden. The “meter and a half” is a threshold itself. This intermediate space allows the arrangement of chairs to rest, work, or to set up a temporary workshop depending on the seasons of the year. The blurred boundary between this terrace and the interior is created by means of floor-to-ceiling wood panels. This phenomenological sensation is continuous due to the materiality of this element, giving the space a double scale and a sensation of constant connection with the outside space. The light is permeable and penetrates to the interior along the whole perimeter of the threshold—terrace—panelling from its arrangement as a slender line.
The location of the load-bearing structure on the perimeter line is key. The pillars are positioned in this threshold, in the terrace itself (Figure 3)—granting a high degree of freedom to the inhabitants from the distribution of interior space, which changes over time depending on their needs or personal desires. The centre line of the dwellings is 10 m (9.55 m), with two semi-open terraces on each side of 147 cm. This space allows contraction, expansion and broadly the de-hierarchizing of domestic actions and the symbiosis between exterior and interior, creating a spatial gradient—as a result of the duplication of enclosures, transparent (glass) to translucent (handrails), and opaque (brick). This threshold is the protagonist for organizing the space, creating dynamism, encouraging interaction, and diversity of domestic action-places. The project strategy is based on the duplication of enclosures, creating a continuous natural envelope with the courtyard and garden. This building is a display of architectural commitment in all its requirements: from structural, to constructive or climatic, where an idea sews and weaves a prototype born from a legal loophole in a brilliant way. What makes the project interesting is not its formal or aesthetic character but its strength in the spatial organization and its built idea.
4. “Segregated Housing” versus “Adaptable Housing”
The innovations featured in the Ángel Muñoz case study are illustrated through a comparison in three scales: the block as a collective dwelling, the individual dwelling and “the analysis of graphs” to study its layouts (see the bottom of Figure 4). This comparison refers to the standard dwelling known as “segregated dwelling” versus the “adaptable dwelling” with the possibility of adjusting to changes (change of partner, group of friends, growth of children, divorce, monoparental families, coexistence of work and home, existence of different family nuclei, etc.). In this model, the compartmentalized spaces segregate the activities by functions and hierarchies into a traditional family model. The example is based on OSH cases that existed during the dictatorship. In order to understand the innovation of the case study, we need to reflect on the main problems of “segregated housing”: hierarchization, monofunctionality and zoning with segregated spaces (see Figure 4 on the right). The kitchen, as a political ideological manifestation, is separated from the living room which isolates the person who used to “take care” of it (in the period studied, normally the women). The kitchen is not integrated into it as current gender policies and cultural adaptations in contemporary collective housing favour. There is an outdated functionalist separation of “day zone” and “night zone,” as can be seen in the space-syntax diagrams in Figure 4. This housing provided a spatial segregation based on “social class and the patriarchal position in the family model” linked to the “particular values of the Franco regime” (Pérez-Moreno and Kurtz 2018).
Figure 4.
Critical comparison between Ángel Muñoz 22’s “customizable or adaptable housing” (left side) and the “segregated housing” (right side), both in Madrid in the 1970s. In the last row, “multiplicity of habitat solutions” can be seen through “Graphos analysis” and “space syntax” analyses of eight different dwellings. In the “rigid” case study, on the right, only a single model is provided, while in the case study of 1975, each dwelling is different. Source: Drawing by author.
Another example of segregated housing is how bedrooms are hierarchical, being smaller for children and larger for the parents. This distribution of internal space was a material translation of the Franco regime’s ideology that promulgated a traditional family model linked to national Catholic ideology. However, in the case analysed, these hierarchies and monofunctionality disappear (Figure 4), allowing the collective housing to articulate five key points from a gender-based perspective (Montaner and Muxí 2006): (1) de-hierarchization with an integrated and multipersonal kitchen; (2) accessibility; (3) adaptation to different family groups. (In addition, in the case study selected, the dwellings can be adapted dimensionally, both vertically and horizontally. According to the conversation with one of the architects, if necessary, duplexes could be created thanks to the approach of the concrete structure, through the perforation of slabs and the insertion of lightweight stairs); (4) different storage spaces; (5) workspaces, such as office or architecture studio.
5. Tentative Scenarios for the Future
Generally, collective housing in Spain, apart from a few exceptions, such as those analysed in Arturo Soria, was excessively segregated and hierarchical in tandem with the lives of its inhabitants. The building of Ángel Muñoz 22 and its structure in the project analysed configure the freedom of choice of future dwellers. The case study analysed enables three-dimensional flexibility, by allowing the redistribution of personal spaces with “a room for oneself” and through the insertion of the “housing in the city” near public services, and public transport rejects the sprawl of peripheral housing isolated from collective facilities or hyper-dependent on the private car. The innovation in the distribution of the 1975 case study was made possible, as previously mentioned, by a “legal loophole” in M30 regulations. However, it ended up as housing. Thanks to this, there was a greater possibility of innovation because it was not treated as social housing, where the regulations have more rigid parameters and standards.
In terms of flexibility, the floor plan is adaptable over time according to the needs of its inhabitants due to the location of the load-bearing structure in the perimeter of the facade and a free configuration of the wet cores, both kitchens and bathrooms. This “chess” layout, with porticos instead of load-bearing walls, is a key strategy of the project to achieve flexible spaces according to inhabitants’ needs. This strategy also allows the segregated floor plan distribution to be discarded, thereby providing a possible turning point in the design of collective housing, by merging different spaces and everyday activities.
Rethinking “collective housing” is an area for future debate with an interesting framework for change and growth if viewed from an interdisciplinary point of view, since “the future must no longer be determined by the past. (…) Anticipation is imperative” (Cixous et al. 1976). Possibly, the next step and a parallel two-way future line of research could be to provide a feminist participative project toolbox to design with “three-dimensional flexibility” and to keep adaptability criteria always in mind, and also, to continue to make visible the role of women architects, as individual authors or in mixed teams, their speeches to deconstruct the patriarchal discourse and their projects to design with a gender-based perspective.
Funding
This research was funded by the Ministry of Science, Innovation and Universities, Spanish Government. Research Project Title: Women in Spanish (Post)Modern Architecture Culture, 1965–2000. Grant number: PGC2018-095905-A-I00.
Conflicts of Interest
The author declares no conflict of interest.
References
- Aroca, Ricardo. 2002. Soporte y Flexibilidad. BAU: Revista de Arquitectura, Arte y Diseño 21: 48–59. [Google Scholar]
- Rodríguez García, Ana, and Rafael Hernando De La Cuerda. 2010. Las viviendas en ciudad lineal. Los condominios. In Geometría y Proporción en las Estructuras: Ensayos En Honor de Ricardo Aroca. Edited by María Josefa Cassinello Plaza, Santiago Huerta, José Miguel de Prada and Paula Fuentes González y Ricardo Sánchez Lampreave. Madrid: Ricardo S. Lampreave, pp. 13–18. [Google Scholar]
- De Jorge-Huertas, Virginia. 2015. Estrategias de reactivación urbana en el Poblado Dirigido de Fuencarral: 1960–2015. Master’s thesis, Escuela de Arquitectura, University of Alcala, Madrid, Spain. Available online: http://hdl.handle.net/10017/33899 (accessed on 3 September 2019).
- De Jorge-Huertas, Virginia. 2017. Flexible domesticity. Adaptable structures: Two case studies, Madrid and Berlin. Paper presented at Cities, Communities and Homes: Is the Urban Future Livable? Derby, UK, 22–23 June 2017; pp. 132–47. [Google Scholar]
- De Jorge-Huertas, Virginia. 2018a. Fantastic Four Females. The superheroes hidden behind the cape. In Women’s Creativity Since the Modern Movement (1918–2018): Towards a New Perception and Reception. Paper presented at MoMoWo Symposium, Turin, Italy, 13–16 June 2018; Edited by Helena Serazin, Emilia Garda and Caterina Franchini. Ljubljana: ZRC SAZU, Steele Institute of Art History, pp. 820–28. [Google Scholar]
- De Jorge-Huertas, Virginia. 2018b. Mat-hybrid housing: Two case studies in Terni and London. Frontiers of Architectural Research 7: 276–91. [Google Scholar] [CrossRef]
- De Jorge-Huertas, Virginia. 2019a. Esferas, Umbrales e Infraestructuras. Ph.D. thesis, Escuela de Arquitectura, Universidad de Alcalá, Madrid, Spain. [Google Scholar]
- De Jorge-Huertas, Virginia. 2019b. Baugruppen: Building collaborative infrastructures. TECHNE Journal of Technology for Architecture and Environment 17: 171–82. [Google Scholar] [CrossRef]
- De Jorge-Huertas, Virginia. Forthcoming. Collaborative Designing of Communities. Helsinki and Zurich Pioneers. ACE: Architecture, City and Environment. Accepted.
- BOE. Boletín Oficial del Estado. 1954. Artículo Segundo, June 17, N. 168.
- Buckley, Cheryl. 1986. Made in Patriarchy: Towards a Feminist Analysis of Women and Design. Design Studies III: 2–14. [Google Scholar]
- Cano Lasso, Julio, Bayón Mariano, Aroca Ricardo, Fernández Alba, and Martín Jose Luis. 1978. Conversaciones en torno a viviendas colectivas. Proyecto de viviendas en Arturo Soria. Revista Arquitectura, julio-agosto 213: 10–12. [Google Scholar]
- Cixous, Hélène, Keith Cohen, and Paula Cohen. 1976. The Laugh of the Medusa. Signs: Journal of Women in Culture and Society 1: 875–93. [Google Scholar] [CrossRef]
- Díez-Pastor Iribas, María Concepción. 2003. La vivienda mínima en España: Primer paso del debate sobre la vivienda social. Scripta Nova. Revista electrónica de Geografía y Ciencias sociales 11: 146. [Google Scholar]
- García-Vázquez, Carlos. 2015. La obsolescencia de las tipologías de vivienda de los polígonos residenciales construidos entre 1950 y 1976. Desajustes con la realidad sociocultural contemporánea. Informes de la Construcción 67. [Google Scholar] [CrossRef]
- Gøsta Esping, Andersen. 1990. The Three Worlds of Welfare Capitalism. Cambridge: Polity Press. Oxford: Basil Blackwell. [Google Scholar]
- Halrynjo, Sigtona. 2009. Men’s work-life conflict: career, care and self-realization: Patterns of privileges and dilemmas. Gender, Work and Organizations 1: 98–124. [Google Scholar] [CrossRef]
- Hanna, Bronwyn. 1996. Three Feminist Analysis of the Built Environment. Architectural Theory Review 1: 20–29. [Google Scholar] [CrossRef]
- Harding, Sandra G. 1989. Introduction: Is there a feminist method? In Feminism and Methodology: Social Science Issue. Bloomington: Indiana University Press. [Google Scholar]
- Hayden, Dolores. 1980. What Would a Non-Sexist City Be Like? Speculations on Housing, Urban Design, and Human Work. Signs: Journal of Women in Culture and Society 3: 170–87. [Google Scholar] [CrossRef]
- Hayden, Dolores. 1982. The Grand Domestic Revolution: A History of Feminist Designs for American Homes, Neighborhoods, and Cities. Cambridge: MIT Press. [Google Scholar]
- Hertzberger, Herman. 1991. Lessons for Students in Architecture. Rotterdam: NAi010 Publishers. [Google Scholar]
- Imaz Zubiaru, Leire. 2008. Superación de la incapacidad de la mujer casada para gestionar su propio patrimonio. In Mujeres y Derecho: Pasado y Presente. I Comngreso multidisciplinary de la sección Bizkaia de la Facultad de Derecho. Bilbao: UPV. ISBN 978-84-9860-157-2. [Google Scholar]
- Madrid City Council Ayuntamiento de Madrid. 1975. Boletín Oficial de la Provincia de Madrid. no 85. Madrid: Madrid City Council, pp. 1–16. [Google Scholar]
- Montaner, Jose María, and Zaida Muxí. 2006. Habitar el Presente. Vivienda en España: Sociedad, Ciudad, Tecnología y Recursos. Madrid: Ministerio de Vivienda. [Google Scholar]
- Ostrom, Elinor. 1990. Governing the Commons: The Evolution of Institutions for Collective Action. Cambridge: Cambridge University Press. ISBN 9780521405997. [Google Scholar]
- Pérez-Moreno, Lucía C., and Fernando Kurtz. 2018. La vivienda social en la ciudad de Zaragoza bajo las políticas del régimen franquista. In Nuevos enfoques en la rehabilitación energética de la vivienda hacia la convergencia europea: La vivienda social en Zaragoza, 1939–1979. Zaragoza: Prensas de la Universidad de Zaragoza, pp. 77–95. [Google Scholar]
- rtve.es. 1959. Vídeo documental. Setenta Mil Viviendas. Plan de Urgencia Social de Madrid. 01 011959. Filmoteca Española. RTVE.es. Available online: http://www.rtve.es/alacarta/videos/documentales-b-n/sesenta-mil-viviendas-plan-urgencia-social-madrid/2847741/ (accessed on 15 August 2019).
- Sambricio, Carlos. 1999. La vivienda en Madrid de 1939 al Plan de Vivienda Social, en 1959. In La vivienda en Madrid en la década de los cincuenta: El Plan de Urgencia Social. Madrid: Electa, pp. 13–84. ISBN 84.8156-244-0. [Google Scholar]
- Sánchez de Madariaga, Inés, and Marion Roberts. 2013. Fair Shared Cities. The Impact of Gender Planning in Europe. Abingdon: Routledge, Taylor & Francis Group. [Google Scholar]
- Vestbro, Dick Urban. 1997. Collective housing in Scandinavia how feminism revised a modernist experiment. Journal of Architectural and Planning Research 14: 329–42. [Google Scholar]
- Vestbro, Dick Urban. 2000. From Collective Housing to Cohousing—A summary Research. Journal of Architectural and Planning Research 17: 164–73. [Google Scholar]
- Vestbro, Dick Urban, and Liisa Horelli. 2012. Design for gender equality-the history of cohousing ideas and realities. Built Environment 38: 315–35. [Google Scholar] [CrossRef]
| 1 | It was not until 1976 that parameters related to the “minimum comfort desirable” concept were included in the ‘Ley de Viviendas de Protección Oficial’. See: Mª Concepción Díez-Pastor Iribas (2003). |
| 2 | BOE means “Boletín Oficial del Estado.” It is is the Spanish national official journal dedicated to the publication of certain laws, provisions and acts of mandatory insertion. |
| 3 | “Arquitecta” in Spanish. |
| 4 | OSH means “Obra Sindical del Hogar.” It was an organization existing during the Franco dictatorship. |
| 5 | “Plan de Viviendas de Tipo Social de 1954” and “Plan Nacional de Vivienda de 1955.” BOE 197, 16 Julio 1954 “sobre protección de «viviendas de renta limitada.” |
© 2020 by the author. Licensee MDPI, Basel, Switzerland. This article is an open access article distributed under the terms and conditions of the Creative Commons Attribution (CC BY) license (http://creativecommons.org/licenses/by/4.0/).



