Rethinking Collective Housing: A Case Study of Spatial Flexibility and Adaptability in Arturo Soria (Madrid, 1975)
Abstract
1. Introduction
2. Methodology
3. From Spatial Segregation to Three-Dimensional Flexibility
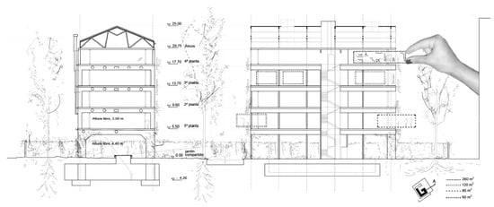
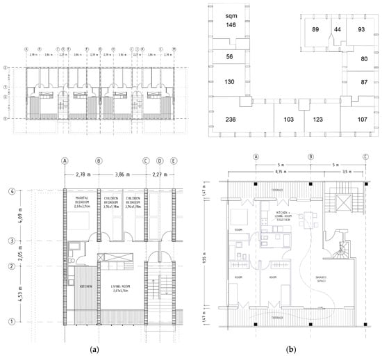
A Case Study: Adaptable Housing in Ángel Muñoz 22
4. “Segregated Housing” versus “Adaptable Housing”
5. Tentative Scenarios for the Future
Funding
Conflicts of Interest
References
- Aroca, Ricardo. 2002. Soporte y Flexibilidad. BAU: Revista de Arquitectura, Arte y Diseño 21: 48–59. [Google Scholar]
- Rodríguez García, Ana, and Rafael Hernando De La Cuerda. 2010. Las viviendas en ciudad lineal. Los condominios. In Geometría y Proporción en las Estructuras: Ensayos En Honor de Ricardo Aroca. Edited by María Josefa Cassinello Plaza, Santiago Huerta, José Miguel de Prada and Paula Fuentes González y Ricardo Sánchez Lampreave. Madrid: Ricardo S. Lampreave, pp. 13–18. [Google Scholar]
- De Jorge-Huertas, Virginia. 2015. Estrategias de reactivación urbana en el Poblado Dirigido de Fuencarral: 1960–2015. Master’s thesis, Escuela de Arquitectura, University of Alcala, Madrid, Spain. Available online: http://hdl.handle.net/10017/33899 (accessed on 3 September 2019).
- De Jorge-Huertas, Virginia. 2017. Flexible domesticity. Adaptable structures: Two case studies, Madrid and Berlin. Paper presented at Cities, Communities and Homes: Is the Urban Future Livable? Derby, UK, 22–23 June 2017; pp. 132–47. [Google Scholar]
- De Jorge-Huertas, Virginia. 2018a. Fantastic Four Females. The superheroes hidden behind the cape. In Women’s Creativity Since the Modern Movement (1918–2018): Towards a New Perception and Reception. Paper presented at MoMoWo Symposium, Turin, Italy, 13–16 June 2018; Edited by Helena Serazin, Emilia Garda and Caterina Franchini. Ljubljana: ZRC SAZU, Steele Institute of Art History, pp. 820–28. [Google Scholar]
- De Jorge-Huertas, Virginia. 2018b. Mat-hybrid housing: Two case studies in Terni and London. Frontiers of Architectural Research 7: 276–91. [Google Scholar] [CrossRef]
- De Jorge-Huertas, Virginia. 2019a. Esferas, Umbrales e Infraestructuras. Ph.D. thesis, Escuela de Arquitectura, Universidad de Alcalá, Madrid, Spain. [Google Scholar]
- De Jorge-Huertas, Virginia. 2019b. Baugruppen: Building collaborative infrastructures. TECHNE Journal of Technology for Architecture and Environment 17: 171–82. [Google Scholar] [CrossRef]
- De Jorge-Huertas, Virginia. Forthcoming. Collaborative Designing of Communities. Helsinki and Zurich Pioneers. ACE: Architecture, City and Environment. Accepted.
- BOE. Boletín Oficial del Estado. 1954. Artículo Segundo, June 17, N. 168.
- Buckley, Cheryl. 1986. Made in Patriarchy: Towards a Feminist Analysis of Women and Design. Design Studies III: 2–14. [Google Scholar]
- Cano Lasso, Julio, Bayón Mariano, Aroca Ricardo, Fernández Alba, and Martín Jose Luis. 1978. Conversaciones en torno a viviendas colectivas. Proyecto de viviendas en Arturo Soria. Revista Arquitectura, julio-agosto 213: 10–12. [Google Scholar]
- Cixous, Hélène, Keith Cohen, and Paula Cohen. 1976. The Laugh of the Medusa. Signs: Journal of Women in Culture and Society 1: 875–93. [Google Scholar] [CrossRef]
- Díez-Pastor Iribas, María Concepción. 2003. La vivienda mínima en España: Primer paso del debate sobre la vivienda social. Scripta Nova. Revista electrónica de Geografía y Ciencias sociales 11: 146. [Google Scholar]
- García-Vázquez, Carlos. 2015. La obsolescencia de las tipologías de vivienda de los polígonos residenciales construidos entre 1950 y 1976. Desajustes con la realidad sociocultural contemporánea. Informes de la Construcción 67. [Google Scholar] [CrossRef]
- Gøsta Esping, Andersen. 1990. The Three Worlds of Welfare Capitalism. Cambridge: Polity Press. Oxford: Basil Blackwell. [Google Scholar]
- Halrynjo, Sigtona. 2009. Men’s work-life conflict: career, care and self-realization: Patterns of privileges and dilemmas. Gender, Work and Organizations 1: 98–124. [Google Scholar] [CrossRef]
- Hanna, Bronwyn. 1996. Three Feminist Analysis of the Built Environment. Architectural Theory Review 1: 20–29. [Google Scholar] [CrossRef]
- Harding, Sandra G. 1989. Introduction: Is there a feminist method? In Feminism and Methodology: Social Science Issue. Bloomington: Indiana University Press. [Google Scholar]
- Hayden, Dolores. 1980. What Would a Non-Sexist City Be Like? Speculations on Housing, Urban Design, and Human Work. Signs: Journal of Women in Culture and Society 3: 170–87. [Google Scholar] [CrossRef]
- Hayden, Dolores. 1982. The Grand Domestic Revolution: A History of Feminist Designs for American Homes, Neighborhoods, and Cities. Cambridge: MIT Press. [Google Scholar]
- Hertzberger, Herman. 1991. Lessons for Students in Architecture. Rotterdam: NAi010 Publishers. [Google Scholar]
- Imaz Zubiaru, Leire. 2008. Superación de la incapacidad de la mujer casada para gestionar su propio patrimonio. In Mujeres y Derecho: Pasado y Presente. I Comngreso multidisciplinary de la sección Bizkaia de la Facultad de Derecho. Bilbao: UPV. ISBN 978-84-9860-157-2. [Google Scholar]
- Madrid City Council Ayuntamiento de Madrid. 1975. Boletín Oficial de la Provincia de Madrid. no 85. Madrid: Madrid City Council, pp. 1–16. [Google Scholar]
- Montaner, Jose María, and Zaida Muxí. 2006. Habitar el Presente. Vivienda en España: Sociedad, Ciudad, Tecnología y Recursos. Madrid: Ministerio de Vivienda. [Google Scholar]
- Ostrom, Elinor. 1990. Governing the Commons: The Evolution of Institutions for Collective Action. Cambridge: Cambridge University Press. ISBN 9780521405997. [Google Scholar]
- Pérez-Moreno, Lucía C., and Fernando Kurtz. 2018. La vivienda social en la ciudad de Zaragoza bajo las políticas del régimen franquista. In Nuevos enfoques en la rehabilitación energética de la vivienda hacia la convergencia europea: La vivienda social en Zaragoza, 1939–1979. Zaragoza: Prensas de la Universidad de Zaragoza, pp. 77–95. [Google Scholar]
- rtve.es. 1959. Vídeo documental. Setenta Mil Viviendas. Plan de Urgencia Social de Madrid. 01 011959. Filmoteca Española. RTVE.es. Available online: http://www.rtve.es/alacarta/videos/documentales-b-n/sesenta-mil-viviendas-plan-urgencia-social-madrid/2847741/ (accessed on 15 August 2019).
- Sambricio, Carlos. 1999. La vivienda en Madrid de 1939 al Plan de Vivienda Social, en 1959. In La vivienda en Madrid en la década de los cincuenta: El Plan de Urgencia Social. Madrid: Electa, pp. 13–84. ISBN 84.8156-244-0. [Google Scholar]
- Sánchez de Madariaga, Inés, and Marion Roberts. 2013. Fair Shared Cities. The Impact of Gender Planning in Europe. Abingdon: Routledge, Taylor & Francis Group. [Google Scholar]
- Vestbro, Dick Urban. 1997. Collective housing in Scandinavia how feminism revised a modernist experiment. Journal of Architectural and Planning Research 14: 329–42. [Google Scholar]
- Vestbro, Dick Urban. 2000. From Collective Housing to Cohousing—A summary Research. Journal of Architectural and Planning Research 17: 164–73. [Google Scholar]
- Vestbro, Dick Urban, and Liisa Horelli. 2012. Design for gender equality-the history of cohousing ideas and realities. Built Environment 38: 315–35. [Google Scholar] [CrossRef]
| 1 | It was not until 1976 that parameters related to the “minimum comfort desirable” concept were included in the ‘Ley de Viviendas de Protección Oficial’. See: Mª Concepción Díez-Pastor Iribas (2003). |
| 2 | BOE means “Boletín Oficial del Estado.” It is is the Spanish national official journal dedicated to the publication of certain laws, provisions and acts of mandatory insertion. |
| 3 | “Arquitecta” in Spanish. |
| 4 | OSH means “Obra Sindical del Hogar.” It was an organization existing during the Franco dictatorship. |
| 5 | “Plan de Viviendas de Tipo Social de 1954” and “Plan Nacional de Vivienda de 1955.” BOE 197, 16 Julio 1954 “sobre protección de «viviendas de renta limitada.” |




© 2020 by the author. Licensee MDPI, Basel, Switzerland. This article is an open access article distributed under the terms and conditions of the Creative Commons Attribution (CC BY) license (http://creativecommons.org/licenses/by/4.0/).
Share and Cite
De Jorge Huertas, V. Rethinking Collective Housing: A Case Study of Spatial Flexibility and Adaptability in Arturo Soria (Madrid, 1975). Arts 2020, 9, 74. https://doi.org/10.3390/arts9030074
De Jorge Huertas V. Rethinking Collective Housing: A Case Study of Spatial Flexibility and Adaptability in Arturo Soria (Madrid, 1975). Arts. 2020; 9(3):74. https://doi.org/10.3390/arts9030074
Chicago/Turabian StyleDe Jorge Huertas, Virginia. 2020. "Rethinking Collective Housing: A Case Study of Spatial Flexibility and Adaptability in Arturo Soria (Madrid, 1975)" Arts 9, no. 3: 74. https://doi.org/10.3390/arts9030074
APA StyleDe Jorge Huertas, V. (2020). Rethinking Collective Housing: A Case Study of Spatial Flexibility and Adaptability in Arturo Soria (Madrid, 1975). Arts, 9(3), 74. https://doi.org/10.3390/arts9030074
