Thermal Comfort Assessment for Simultaneous Operation of Cooling and an Energy Recovery Ventilator in a Residential Building During Summer
Abstract
1. Introduction
2. Methodology
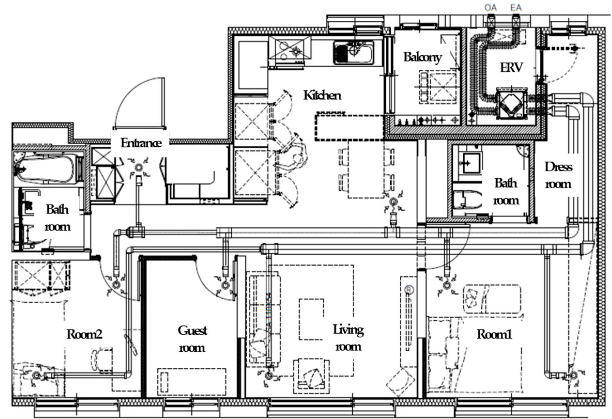
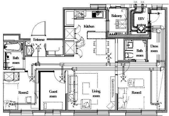
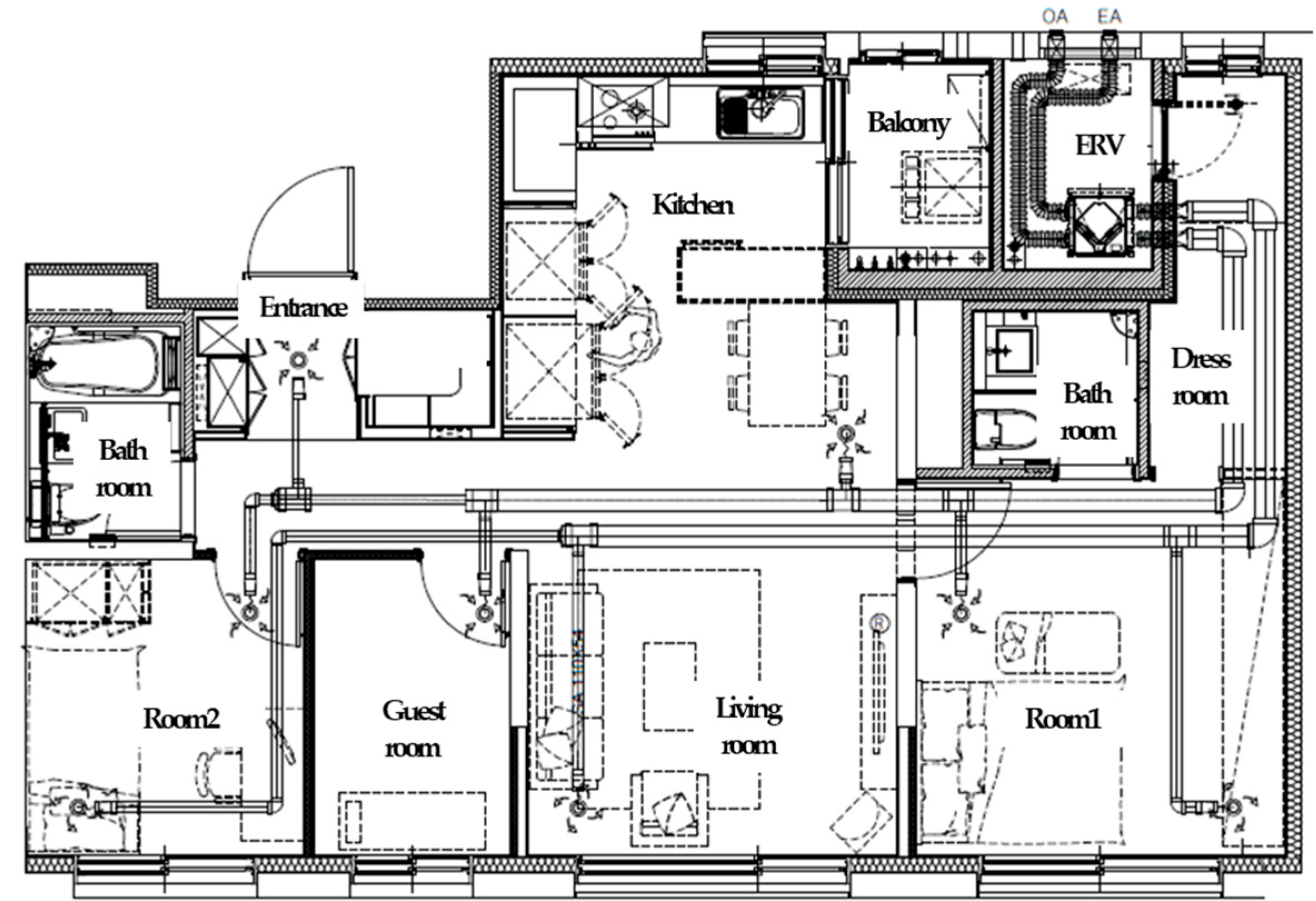
2.1. Reference Building Description
2.2. CFD Simulation for Thermal Comfort Assessment
2.3. Grid Sensitivity and Validation of Numerical Simulation
2.4. Simulation Cases
3. Result
3.1. PMV Analysis of Various Operations of Air Conditioners
3.2. Qualitative Analyses of Air Velocity, Temperature, and PMV
3.3. PMV Analysis
4. Discussion
5. Conclusions
- Depending on the supply air temperatures and ventilation flow rates of the air conditioners, the PMV can be highly affected. In addition, the PMV distributions can be highly changed by the areas, shapes, and neighboring spaces.
- While the airflow can be quite influenced by the inlet and outlet layouts of the ERV, the higher air velocity from the air conditioners can dominate the airflow in residential buildings.
- It showed poor ventilation performance when the number of exhausts of the ERV was reduced. However, in the present study, it showed similar PMV values to the base case.
- When inlet or outlet vents were added, it showed a better ventilation performance. However, it presented a bigger difference from the base case, which implied the PMV index was “slightly cold”.
- When an outlet in the living room was moved to the kitchen, the coolest PMV was observed due to the removal of air stagnation. Low airflow was shown in most cases. When adding or moving an inlet or outlet in the kitchen, the airflow became faster in that the cooling could spread widely throughout the entire unit. Adding or moving an inlet or outlet in the kitchen could improve the ventilation performance as well as the extent of cooling in the entire unit. Moreover, it could reduce the load of the HVAC system compared with the other cases in this study.
- As the ventilation efficiency of the ERV with the operation of the air conditioners was improved, the cooling from the air conditioners was distributed in the building more properly. This can provide an opportunity to save cooling energy consumption by using the intermittent operation mode of the air conditioners rather than the continuous operation mode.
Author Contributions
Funding
Data Availability Statement
Conflicts of Interest
References
- Zhong, W.; Pan, Y.; Xiao, W.; Zhang, T. Identifying bioclimatic techniques for sustainable low-rise high-density residential units: Comparative analysis on the ventilation performance of vernacular dwellings in China. J. Build. Eng. 2023, 80, 108008. [Google Scholar] [CrossRef]
- Dam-Krogh, E.P.; Clausen, G.; Toftum, J. Optimising indoor environmental quality: Development of a benchmarking tool for valuing performance in office buildings. Build. Environ. 2024, 266, 112120. [Google Scholar] [CrossRef]
- Amaripadath, D.; Sailor, D.J. Reassessing energy-efficient passive retrofits in terms of indoor environmental quality in residential buildings in the United States. Energy Build. 2024, 319, 114564. [Google Scholar] [CrossRef]
- Thneibat, M. Assessing the post-COVID interaction between indoor environmental quality and occupants within educational buildings: A structural equation modeling approach. Build. Environ. 2024, 255, 111422. [Google Scholar] [CrossRef]
- Benka-Coker, W.; Young, B.; Oliver, S.; Schaeffer, J.W.; Manning, D.; Suter, J.; Cross, J.; Magzamen, S. Sociodemographic variations in the association between indoor environmental quality in school buildings and student performance. Build. Environ. 2021, 206, 108390. [Google Scholar] [CrossRef]
- Kalender-Smajlović, S.; Kukec, A.; Dovjak, M. The problem of indoor environmental quality at a general Slovenian hospital and its contribution to sick building syndrome. Build. Environ. 2022, 214, 108908. [Google Scholar] [CrossRef]
- Roumi, S.; Stewart, R.A.; Zhang, F.; Santamouris, M. Unravelling the relationship between energy and indoor environmental quality in Australian office buildings. Sol. Energy 2021, 227, 190–202. [Google Scholar] [CrossRef]
- Cho, J.H.; Moon, J.W. Integrated artificial neural network prediction model of indoor environmental quality in a school building. J. Clean. Prod. 2022, 344, 131083. [Google Scholar] [CrossRef]
- Zhang, J.; Poon, K.H.; Kwok, H.H.L.; Hou, F.; Cheng, J.C.P. Predictive control of HVAC by multiple output GRU—CFD integration approach to manage multiple IAQ for commercial heritage building preservation. Build. Environ. 2023, 245, 110802. [Google Scholar] [CrossRef]
- Shukla, P.; Mishra, S.; Goswami, S. A field study of investigation of indoor environmental quality status in Indian offices: Concerns and influencing building factors. J. Build. Eng. 2024, 86, 108648. [Google Scholar] [CrossRef]
- Nehr, S.; Baus, L.; Çınar, H.; Elsen, I.; Frauenrath, T. Indoor environmental quality assessment in passively ventilated classrooms in Germany and estimation of ventilation energy losses. J. Build. Eng. 2024, 97, 110937. [Google Scholar] [CrossRef]
- Huang, X.; Chen, G.; Zhao, C.; Peng, Y.; Guo, W. Post occupancy evaluation of indoor environmental quality of sports buildings at hot and humid climate from the perspective of exercisers. Build. Environ. 2022, 226, 109760. [Google Scholar] [CrossRef]
- Choi, H.; Kim, H.; Hong, T.; An, J. An individual weightage for indoor environmental quality component to enhance work performance in office buildings. Build. Environ. 2023, 236, 110278. [Google Scholar] [CrossRef]
- Wang, Z.; Gadi, M. Optimal HVAC setpoints for energy efficiency and thermal comfort in Chinese residential buildings. J. Build. Eng. 2024, 96, 110286. [Google Scholar] [CrossRef]
- Abass, F.; Ismail, L.; Wahab, I.; Mabrouk, W.; Kabrein, H. Indoor thermal comfort assessment in office buildings in hot-humid climate. IOP Conf. Ser. Mater. Sci. Eng. 2021, 1144, 012029. [Google Scholar] [CrossRef]
- Cheng, F.; Cui, C.; Cai, W.; Zhang, X.; Ge, Y.; Li, B. A novel data-driven air balancing method with energy-saving constraint strategy to minimize the energy consumption of ventilation system. Energy 2022, 239, 122146. [Google Scholar] [CrossRef]
- The Standard for Mechanical Ventioaltion Systems for New Constructed Residential Buildings; Korean Law Information Center: Sejong-si, Republic of Korea, 2020.
- Zhang, L.Z.; Niu, J.L. Energy requirements for conditioning fresh air and the long-term savings with a membrane-based energy recovery ventilator in Hong Kong. Energy 2001, 26, 119–135. [Google Scholar] [CrossRef]
- Liu, S.; Ma, G.; Jia, X.; Xu, S.; Wu, G.; Zhang, Y. The thermal performance and applicability analysis of the composite ventilation system with heat recovery in ultra-low energy buildings. Energy 2023, 263, 125942. [Google Scholar] [CrossRef]
- Kwag, B.C.; Kim, G.T.; Im, D. Evaluation of the impact of installation environment for a condensing unit of a split-type air conditioner in a plant room of Korean apartment dwellings. Int. J. Refrig. 2023, 156, 207–218. [Google Scholar] [CrossRef]
- Paoletti, G.; Pascual Pascuas, R.; Pernetti, R.; Lollini, R. Nearly Zero Energy Buildings: An Overview of the Main Construction Features across Europe. Buildings 2017, 7, 43. [Google Scholar] [CrossRef]
- Wang, H.; Liu, L.; Liu, L.; Cheng, Q. Performance analysis of different air conditioning systems in apartment buildings under different climates in China. Int. J. Refrig. 2022, 139, 192–203. [Google Scholar] [CrossRef]
- Zhou, Y.P.; Wu, J.Y.; Wang, R.Z. Performance of energy recovery ventilator with various weathers and temperature set-points. Energy Build. 2007, 39, 1202–1210. [Google Scholar] [CrossRef]
- Wellford, B.W. Guideline for Selecting, Sizing, & Specifying Packaged Air-To-Air Energy Recovery Ventilation Equipment; AHRI Guideline W (SI); Intertek: Chicksaw, AL, USA, 2014. [Google Scholar]
- Baldini, L.; Kim, M.K.; Leibundgut, H. Decentralized cooling and dehumidification with a 3 stage LowEx heat exchanger for free reheating. Energy Build. 2014, 76, 270–277. [Google Scholar] [CrossRef]
- Cho, W.; Heo, J.; Park, M.H.; Seo, H.J.; Lee, K.; Lee, D.G.; Kim, Y. Energy performance and thermal comfort of integrated energy recovery ventilator system with air-conditioner for passive buildings. Energy Build. 2023, 295, 113302. [Google Scholar] [CrossRef]
- Jahanbin, A. Efficacy of coupling heat recovery ventilation and fan coil systems in improving the indoor air quality and thermal comfort condition. Energy Built Environ. 2022, 3, 478–495. [Google Scholar] [CrossRef]
- Li, J.; Shao, S.; Wang, Z.; Xie, G.; Wang, Q.; Xu, Z.; Han, L.; Gou, X. A review of air-to-air membrane energy recovery technology for building ventilation. Energy Build. 2022, 265, 112097. [Google Scholar] [CrossRef]
- van Hooff, T.; Blocken, B.; Gousseau, P.; van Heijst, G.J.F. Counter-gradient diffusion in a slot-ventilated enclosure assessed by LES and RANS. Comput. Fluids 2014, 96, 63–75. [Google Scholar] [CrossRef]
- Qin, C.; He, Y.; Li, J.; Lu, W.-Z. Mitigation of breathing contaminants: Exhaust location optimization for indoor space with impinging jet ventilation supply. J. Build. Eng. 2023, 69, 106250. [Google Scholar] [CrossRef]
- Ntinas, G.K.; Shen, X.; Wang, Y.; Zhang, G. Evaluation of CFD turbulence models for simulating external airflow around varied building roof with wind tunnel experiment. Build. Simul. 2018, 11, 115–123. [Google Scholar] [CrossRef]
- Meroney, R.N.; Hill, D.W.; Derickson, R.; Stroup, J.; Weber, K.; Garrett, P. CFD Simulation of ventilation and smoke movement in a large military firing range. J. Wind Eng. Ind. Aerodyn. 2015, 136, 12–22. [Google Scholar] [CrossRef]
- Chen, T.; Cao, S.-J. Numerical study on the integrated effects of supplied air velocity and exhaust velocity on particles removal for industrial buildings. Energy Built Environ. 2021, 2, 380–391. [Google Scholar] [CrossRef]
- Liu, Z.; Wang, T.; Wang, Y.; Liu, H.; Cao, G.; Tang, S. The influence of air supply inlet location on the spatial-temporal distribution of bioaerosol in isolation ward under three mixed ventilation modes. Energy Built Environ. 2023, 4, 445–457. [Google Scholar] [CrossRef]
- Qin, C.; Lu, W.-Z. Effects of ceiling exhaust location on thermal comfort and age of air in room under impinging jet supply scheme. J. Build. Eng. 2021, 35, 101966. [Google Scholar] [CrossRef]
- Kim, D.D.; Kim, H.; Yim, W.S.; Lim, T. An Analysis of the Ventilation Efficiency of Various Configurations of Inlet and Outlet Vents in a Residential Building by CFD Simulation. Buildings 2024, 14, 3449. [Google Scholar] [CrossRef]
- STAR-CCM+. 2018. Available online: https://mdx.plm.automation.siemens.com/star-ccm-plus (accessed on 19 December 2024).
- Pasut, W.; De Carli, M. Evaluation of various CFD modelling strategies in predicting airflow and temperature in a naturally ventilated double skin façade. Appl. Therm. Eng. 2012, 37, 267–274. [Google Scholar] [CrossRef]
- Pei, G.; Rim, D. Quality control of computational fluid dynamics (CFD) model of ozone reaction with human surface: Effects of mesh size and turbulence model. Build. Environ. 2021, 189, 107513. [Google Scholar] [CrossRef]
- Charai, M.; Mezrhab, A.; Moga, L. A structural wall incorporating biosourced earth for summer thermal comfort improvement: Hygrothermal characterization and building simulation using calibrated PMV-PPD model. Build. Environ. 2022, 212, 108842. [Google Scholar] [CrossRef]
- Shi, Z.; Zheng, R.; Zhao, J.; Shen, R.; Gu, L.; Liu, Y.; Wu, J.; Wang, G. Towards various occupants with different thermal comfort requirements: A deep reinforcement learning approach combined with a dynamic PMV model for HVAC control in buildings. Energy Convers. Manag. 2024, 320, 118995. [Google Scholar] [CrossRef]
- Du, H.; Lian, Z.; Lai, D.; Duanmu, L.; Zhai, Y.; Cao, B.; Zhang, Y.; Zhou, X.; Wang, Z.; Zhang, X.; et al. Evaluation of the accuracy of PMV and its several revised models using the Chinese thermal comfort Database. Energy Build. 2022, 271, 112334. [Google Scholar] [CrossRef]
- Celik, I.B.; Ghia, U.; Roache, P.J.; Freitas, C.J. Procedure for Estimation and Reporting of Uncertainty Due to Discretization in CFD Applications. J. Fluids Eng. 2008, 130, 078001. [Google Scholar] [CrossRef]
- Zhang, X.; Jiang, M.; Ma, L.; Zhang, S.; Fang, Z.; Sun, Y.; Lin, Z. Mechanisms of energy efficiency of supply momentum-driven stratified thermal environment with exhaust and return vents isolated by supply vent. Build. Environ. 2025, 268, 112332. [Google Scholar] [CrossRef]
- Zhang, H.; Zhang, W.; Zhang, W.; Xuan, Y.; Yue, Y. Multi-vent module-based adaptive ventilation to reduce cross-contamination among indoor occupants. Build. Environ. 2022, 212, 108836. [Google Scholar] [CrossRef]
- Castillo, J.A.; Tovar, R.; Huelsz, G. Natural ventilation in a room with a horizontal cylindrical heat source, a window and bottom or top vents. Build. Environ. 2021, 191, 107583. [Google Scholar] [CrossRef]
- Feng, Y.; Chen, L.; Yang, T.; Sun, Y.; Lei, Y.; Yu, Z. Performance of a self-cooled dedicated outdoor air desiccant cooling system in nearly zero energy buildings. Appl. Therm. Eng. 2025, 263, 125396. [Google Scholar] [CrossRef]
- Yao, J. Building cooling energy uncertainty and life cycle economic performance: A stochastic air conditioning behavior model based comparative analysis. J. Clean. Prod. 2020, 266, 121910. [Google Scholar] [CrossRef]
- Yuan, L.; Wang, R.; Zhu, X.; Lu, Y. Optimum configuration of internal walls in intermittently conditioned rooms with different ventilation-behavior during off-periods and air conditioner operation durations. Energy 2024, 309, 133065. [Google Scholar] [CrossRef]







| Scale | Mean AOA for Entire Residential Unit (Sec) |
|---|---|
| 3 | Hot |
| 2 | Warm |
| 1 | Slightly warm |
| 0 | Neutral |
| −1 | Slightly cool |
| −2 | Cool |
| −3 | Cold |
| Temperature (°C) | Ventilation Flow Rate (CMH) | |
|---|---|---|
| Outdoor | 31.2 | |
| Air conditioner | Supply air: 18, 22, 26 | 1000 (high mode); 800 (mid-mode); 500 (low mode) |
| The ERV system | Supply air: 21.3, 24.3, 27.3 (with 75% efficiency) | 45.17 (living room and kitchen); 25.02 (room 1); 11.18 (room 2) |
| Case | Description |
|---|---|
| Base case | Three inlets and five outlets |
| Case A | Change locations of inlets along the locations of outlets |
| Case B | Change locations of inlets to the left of the place |
| Case C | Change locations of outlets to left of the unit and removal of 2 outlets |
| Case D | Additional inlet in the living room near the air conditioner |
| Case E | Additional inlet in the kitchen and change of location of an inlet in front of the air conditioner in the living room |
| Case F | Change of location of an outlet in the living room to the kitchen |
![]() | ![]() | ||
| The condition of the air conditioner | |||
| Supply air temp. | Operation | ||
| Low mode (500 CMH) | Mid-mode (800 CMH) | High mode (1000 CMH) | |
| 18 °C | ![]() | ![]() | ![]() |
| (a) | (b) | (c) | |
| 22 °C | ![]() | ![]() | ![]() |
| (d) | (e) | (f) | |
| 26 °C | ![]() | ![]() | ![]() |
| (g) | (h) | (i) | |
| Air Conditioner | Average PMV | |||||
|---|---|---|---|---|---|---|
| Supply Air Temp. | Operation | Living Room | Kitchen | Room 1 | Room 2 | The Entire Unit |
| 18 °C | Low mode (500 CMH) | −4.4 | −1.9 | −4.5 | −4.6 | −3.9 |
| Mid-mode (800 CMH) | −4.6 | −1.9 | −4.7 | −4.7 | −4.0 | |
| High mode (1000 CMH) | −4.6 | −1.9 | −4.9 | −4.8 | −4.1 | |
| 22 °C | Low mode (500 CMH) | −2.2 | −0.9 | −2.5 | −2.7 | −2.1 |
| Mid-mode (800 CMH) | −2.4 | −1.2 | −2.7 | −2.8 | −2.3 | |
| High mode (1000 CMH) | −2.5 | −1.3 | −2.7 | −2.9 | −2.4 | |
| 26 °C | Low mode (500 CMH) | −0.4 | −0.3 | −1.0 | −0.3 | −0.5 |
| Mid-mode (800 CMH) | −0.5 | −0.5 | −1.3 | −0.9 | −0.8 | |
| High mode (1000 CMH) | −0.5 | −0.6 | −1.5 | −1.2 | −1.0 | |
| Case | Living Room | Kitchen | Room 1 | Room 2 | The Entire Unit |
|---|---|---|---|---|---|
| Base case | −0.43 | −0.33 | −0.97 | −0.28 | −0.5 |
| Case A | −0.47 | −0.23 | −1.87 | −0.39 | −0.74 |
| Case B | −0.46 | −0.24 | −1.98 | −0.34 | −0.75 |
| Case C | −0.42 | −0.31 | −1.93 | −0.21 | −0.72 |
| Case D | −0.46 | −0.23 | −2.01 | −0.36 | −0.77 |
| Case E | −0.46 | −0.22 | −2.01 | −0.36 | −0.76 |
| Case F | −0.39 | −0.59 | −1.99 | −0.36 | −0.83 |
Disclaimer/Publisher’s Note: The statements, opinions and data contained in all publications are solely those of the individual author(s) and contributor(s) and not of MDPI and/or the editor(s). MDPI and/or the editor(s) disclaim responsibility for any injury to people or property resulting from any ideas, methods, instructions or products referred to in the content. |
© 2025 by the authors. Licensee MDPI, Basel, Switzerland. This article is an open access article distributed under the terms and conditions of the Creative Commons Attribution (CC BY) license (https://creativecommons.org/licenses/by/4.0/).
Share and Cite
Kang, K.; Kim, D.D. Thermal Comfort Assessment for Simultaneous Operation of Cooling and an Energy Recovery Ventilator in a Residential Building During Summer. Buildings 2025, 15, 582. https://doi.org/10.3390/buildings15040582
Kang K, Kim DD. Thermal Comfort Assessment for Simultaneous Operation of Cooling and an Energy Recovery Ventilator in a Residential Building During Summer. Buildings. 2025; 15(4):582. https://doi.org/10.3390/buildings15040582
Chicago/Turabian StyleKang, Kyungmo, and Daeung Danny Kim. 2025. "Thermal Comfort Assessment for Simultaneous Operation of Cooling and an Energy Recovery Ventilator in a Residential Building During Summer" Buildings 15, no. 4: 582. https://doi.org/10.3390/buildings15040582
APA StyleKang, K., & Kim, D. D. (2025). Thermal Comfort Assessment for Simultaneous Operation of Cooling and an Energy Recovery Ventilator in a Residential Building During Summer. Buildings, 15(4), 582. https://doi.org/10.3390/buildings15040582












