Full-Scale Test on Hysteretic Behavior of T-Shaped Steel Beam–Column Joints with Locally Corrugated Web (RBS) Considering Folding Effect
Abstract
1. Introduction
2. Experimental Preparation
2.1. Material Property Tests
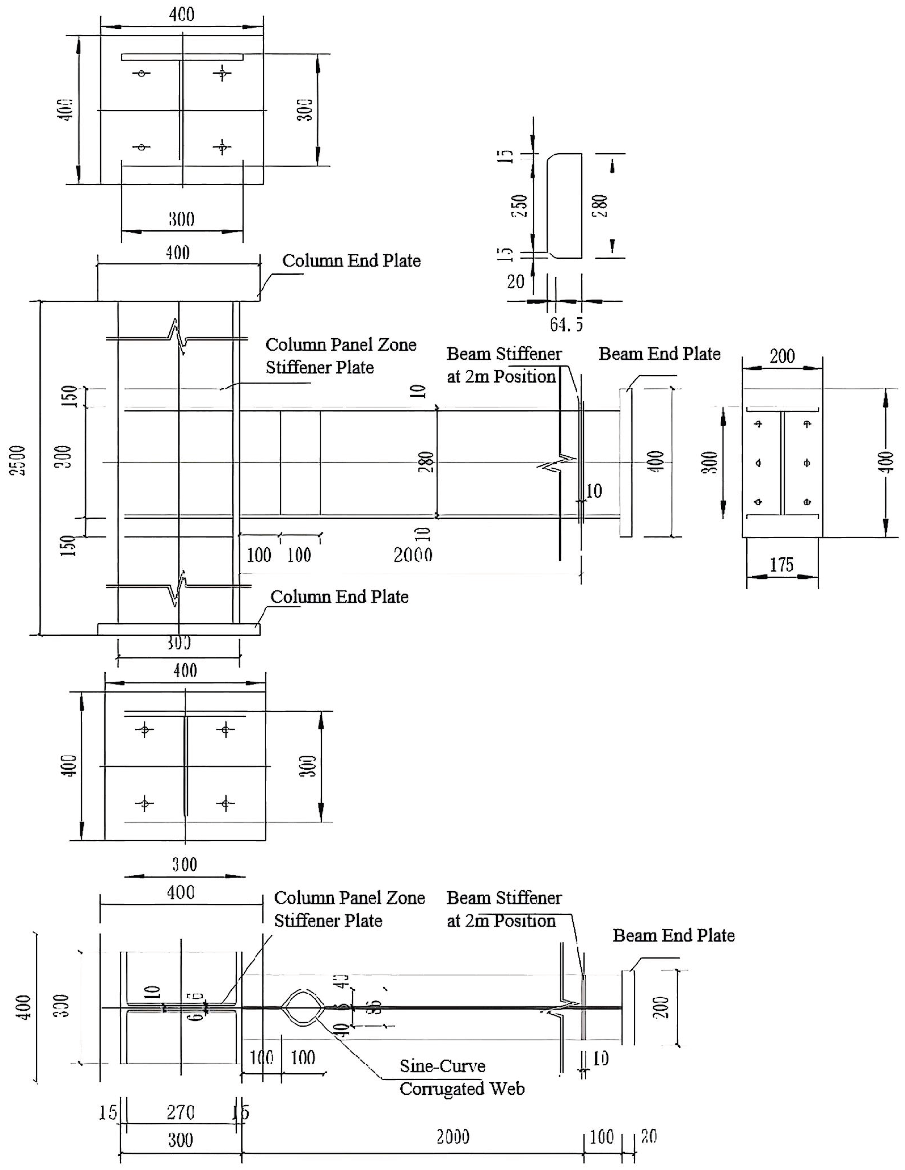
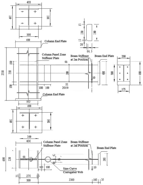
Specimen Design
2.2. Specimen Tests
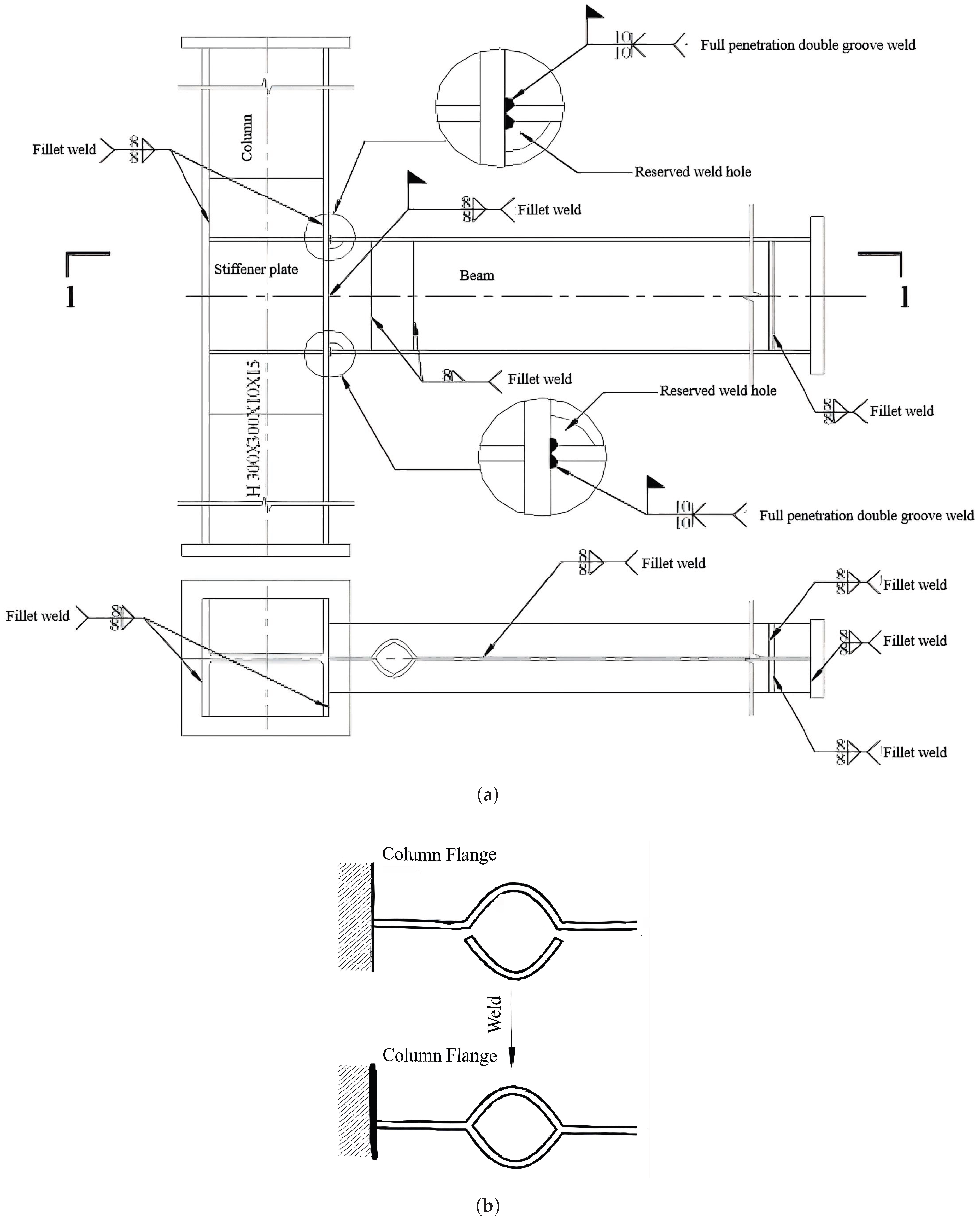
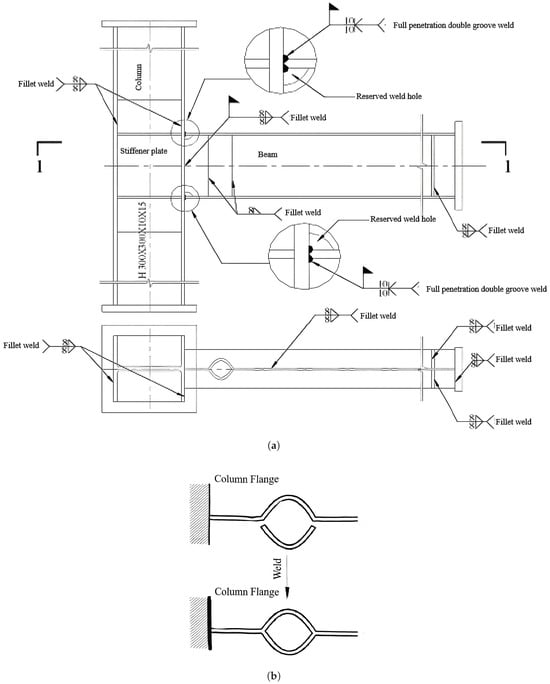
2.2.1. Specimen Design
2.2.2. Loading Equipment and Loading Protocol
3. Test Results
3.1. Low-Cycle Reciprocating Loading
3.1.1. Specimen SPA
3.1.2. Specimen SPF
3.2. P- Hysteretic Curves
3.3. Skeleton Curves
3.4. Stiffness Degradation
3.5. Energy Dissipation and Equivalent Viscous Damping Coefficient
3.6. Stress Transfer Analysis
4. Discussion
- When designing the locally corrugated web weakened joint, three weakening parameters of the corrugated web should be reasonably selected according to the actual bending moment distribution—i.e., the distance a from the starting point of the corrugated web to the column flange, the wavelength b of the corrugated web, and the wave depth c of the corrugated web. Meanwhile, factors such as steel overstrength and strain hardening should be considered. The ratio of the column surface bending moment to the full-section plastic resistance moment of the beam should be within the range of 0.85–1.0.
- The new joint in this study can reduce the plastic strain near the welds and effectively concentrate the plastic strain in the corrugated web weakened region. Therefore, no brittle fracture occurred in areas other than the plastic hinge during the test.
- Analysis of the test results verifies the folding effect of the corrugated web in this new joint. Neglecting the contribution of the web to the beam’s flexural resistance, the flexural capacity of the plastic hinge region is borne solely by the flanges.
- The presence of the corrugated web delays flange buckling and reduces the degree of beam buckling, resulting in relatively stable and reliable energy dissipation performance and seismic performance. The hysteretic curve of the new joint is stable and full without pinching, and it has good ductility. During the plastic development stage, the load decreases slowly with the increase in loading displacement, showing no severe stiffness degradation. In contrast, the hysteretic curve of the traditional flat web joint is flatter and less full; during the plastic development stage, the load decreases significantly with the increase in loading displacement, accompanied by obvious stiffness degradation.
- Both beam and column members in the experiment were made of Q235 steel. According to the Code for Welding of Steel Structures (GB 50661-2011 [29]), the matching electrode model for Q235 steel should be E43. However, considering that welds of traditional joints are prone to premature brittle failure, this study intentionally used E50 electrodes (with a higher strength grade than the base metal matching requirement). The increased weld strength grade was to make up for potential brittle defects of welds, ensuring welds would not fail first when the beam undergoes plastic deformation.
5. Conclusions and Prospects
- (1)
- The test shows that the new joint specimen exhibits buckling failure of the beam flanges on both sides of the corrugated web. The locally corrugated web joint effectively reduces the plastic strain at the beam–column connection welds—test results indicate that the maximum plastic strain at the welds of the new joint is only 38% of that of the traditional joint—and concentrates the plastic strain in the corrugated web weakened region. During the test, the plastic hinge stably formed in the corrugated web region, and no brittle fracture occurred at the beam–column connection welds, thereby effectively protecting the joint connection welds. For the traditional beam–column joint, the beam–column connection welds were strengthened during processing, so no failure occurred during the test. However, its plastic hinge was located within 150 mm of the beam end (close to the joint core), resulting in poor rotational capacity. Moreover, after the flange yielded, it bulged outward by up to 12 mm under compression, leading to a significant decrease in bearing capacity. In addition, the web bent and twisted outward at the plastic hinge, and the beam suffered bending–torsional buckling when the drift ratio reached 3.5%, resulting in test termination.
- (2)
- Test data processing and analysis show that the flexural capacity of the corrugated web region in the composite steel beam is mainly borne by the beam flanges. Due to the folding effect of the corrugated web, the contribution of the web to flexural resistance can be neglected.
- (3)
- The test indicates that the presence of the corrugated web delays flange buckling—the buckling of the new joint’s beam flanges occurs at a drift ratio of 4.2%, which is 37.5% higher than that of the traditional joint (3.0%)—and reduces the degree of beam buckling. This results in a relatively stable and reliable energy dissipation mechanism, ultimately improving the overall seismic performance of the joint.
- (4)
- Test data processing and analysis reveal that a stable and reliable plastic hinge first forms in the corrugated web region of the composite steel beam, 200–250 mm away from the joint core. The plastic rotation of the joint is mainly provided by this plastic hinge, while the plastic rotation of the joint panel zone accounts for less than 10% of the total rotation, achieving the goal of outward movement of the plastic hinge. This design effectively protects the joint panel zone (with poor ductility) and the beam–column connection welds, avoiding brittle failure of key load-bearing components. Due to the load-bearing capacity limitation of the test reaction frame, the test was stopped when the rotation angle of the new joint reached 5% rad—this value meets the rotation angle requirement (less than 4%) for steel frame joints in high-seismic-intensity areas (8 degrees and above) specified in GB 50011-2010 [30]. The stable mechanical performance before the test termination also confirms the new joint’s excellent ductility and deformation capacity.
- (5)
- The test shows that the hysteretic curve of the new joint is full and spindle-shaped, with no obvious pinching phenomenon. In contrast, the hysteretic curve of the traditional flat web joint is flatter and exhibits slight pinching after the drift ratio exceeds 2%. Energy dissipation and equivalent viscous damping coefficient were calculated based on the hysteretic curves. The results show that at a drift ratio of 4%, the cumulative energy dissipation of the new joint reaches 128.6 kN·m, which is 42.3% higher than that of the traditional joint (89.7 kN·m); the equivalent viscous damping coefficient of the new joint is 0.32, while that of the traditional joint is 0.21. The new joint has good energy dissipation capacity, and both its energy dissipation capacity and equivalent viscous damping coefficient are significantly higher than those of the traditional flat web joint (the reference specimen). Plastic deformation of the corrugated web region is the main energy dissipation mechanism of the new joint, which is more stable and reliable than the energy dissipation mechanism of the flat web joint (dominated by flange and web buckling). During the entire test process, the new joint did not experience severe out-of-plane instability in the plastic hinge region (i.e., severe bulging of the beam web) or severe stiffness degradation—its stiffness degradation rate at a drift ratio of 5% was only 28%, much lower than 45% of the traditional joint.
- (1)
- Study the hysteretic performance of different joint types, such as cruciform joints under in-plane or out-of-plane cyclic loading at the beam end or column end.
- (2)
- The beams in this study are all shallow beams, which may not be applicable to deep beams that are increasingly used nowadays. Therefore, future research should focus on the performance of joints with different beam–column cross-sectional shapes and the influence of different corrugated web forms on joint performance.
Author Contributions
Funding
Data Availability Statement
Acknowledgments
Conflicts of Interest
References
- Muguruma, H.; Nishiyama, M.; Watanabe, F. Lessons learned from the kobe earthquake–a japanese perspective. PCI J. 1995, 40, 28–42. [Google Scholar] [CrossRef]
- Mahin, S.A. Lessons from damage to steel buildings during the northridge earthquake. Eng. Struct. 1998, 20, 261–270. [Google Scholar] [CrossRef]
- Al-Ansi, O.Z.Y.; Lu, L.F.; AL-Saeedi, S.M.A.A.; Liu, B.Y. Effects of cover-plate geometry on the mechanical behavior of steel frame joints with middle-flange and wide-flange h-beams. Buildings 2025, 15, 203. [Google Scholar] [CrossRef]
- Imanpour, A.; Torabian, S.; Mirghaderi, S.R. Seismic design of the double-cell accordion-web reduced beam section connection. Eng. Struct. 2019, 191, 23–38. [Google Scholar] [CrossRef]
- Tao, C.F.; Sun, G.H.; He, R.Q.; Tang, D.; Jiang, S. Seismic performance test of steel frame substructures with cover-plate strengthened joints. J. Build. Struct. 2015, 36, 19–28. [Google Scholar] [CrossRef]
- Tong, G.S. Calculation of cover-plate strengthened beam-column joints. Steel Constr. Chin. Engl. 2024, 39, 55–57. [Google Scholar] [CrossRef]
- Ha, M.H.; Vu, Q.V.; Truong, V.H. Optimization of nonlinear inelastic steel frames considering panel zones. Adv. Eng. Softw. 2020, 142, 102771. [Google Scholar] [CrossRef]
- Kulkarni, A.S.; Vesmawala, G. Study of steel moment connection with and without reduced beam section. Case Stud. Struct. Eng. 2014, 1, 26–31. [Google Scholar] [CrossRef]
- Yu, C.Y.; Xu, X.D.; Li, S.; Wu, M.L.; Wang, M.Y. Optimization analysis of shear capacity of embedded corrugated steel web connectors. J. Heilongjiang Univ. Technol. Compr. Ed. 2025, 25, 151–156. [Google Scholar] [CrossRef]
- Nouri, G.; Rayegani, A.; Lavasani, H.H.; Tavakoli, L.; Nasiri, M.; Soureshjani, O.K. Seismic performance of the rbs connection with trapezoidal corrugated web (tcw-rbs). Structures 2023, 56, 105003. [Google Scholar] [CrossRef]
- Mansouri, A.; Shakiba, M.R.; Fereshtehpour, E. Two novel corrugated web reduced beam section connections for steel moment frames. J. Build. Eng. 2021, 43, 103187. [Google Scholar] [CrossRef]
- Yang, T.; Chen, M.Y.; Liu, Y.Q.; Zhang, Y.; Chen, X.B.; Xu, X.Q. Fatigue performance of stud connectors in joints between top slabs and steel girders with corrugated webs subjected to transverse bending moments. Eng. Struct. 2024, 310, 118132. [Google Scholar] [CrossRef]
- Pang, R.; Yuan, R.R.; Liu, S.L.; Dang, L.J.; Lei, H.B.; Lu, Y. Flexural behavior of steel beams with double corrugated webs: Experimental and analytical investigations. Thin-Walled Struct. 2025, 218, 113929. [Google Scholar] [CrossRef]
- Li, Z.; Pasternak, H.; Robra, J.; Wang, J. Shear buckling resistance of sinusoidal corrugated web girders with stiffened openings: Analysis, experiment, simulation and design guidance. Thin-Walled Struct. 2025, 215, 113368. [Google Scholar] [CrossRef]
- Wang, Y.; Yi, Y.X.; Tian, L.M. Numerical simulation of a novel welded steel-frame joint strengthened by outer corrugated plates to prevent progressive collapse. Buildings 2025, 15, 3061. [Google Scholar] [CrossRef]
- Chen, X.S.; Zhang, Y.J.; Ye, Q.X. Finite element analysis and design method of high strength steel cover-plate beam-to-column joints. Structures 2025, 79, 109634. [Google Scholar] [CrossRef]
- Shi, G.; Zhang, N.Z.; Bao, L.J.; Chen, X.M.; Zhou, F.; Jiang, S.; Zhao, H.T. Experimental study on cruciform welded connections with thick steel plates in moment-resisting beam-to-column joints. Eng. Struct. 2025, 331, 119914. [Google Scholar] [CrossRef]
- Chen, X.S.; Shi, G. Cyclic tests on high strength steel flange-plate beam-to-column joints. Eng. Struct. 2019, 186, 564–581. [Google Scholar] [CrossRef]
- Li, Q.L.; Wang, Z.T.; Li, L.; Hao, H.; Chen, W.S.; Shao, Y.D. Machine learning prediction of structural dynamic responses using graph neural networks. Comput. Struct. 2023, 289, 107188. [Google Scholar] [CrossRef]
- Lazaridis, P.C.; Kavvadias, I.E.; Demertzis, K.; Iliadis, L.; Vasiliadis, L.K. Interpretable Machine Learning for Assessing the Cumulative Damage of a Reinforced Concrete Frame Induced by Seismic Sequences. Sustainability 2023, 15, 12768. [Google Scholar] [CrossRef]
- Lee, H.-D.; Lee, S.-H.; Shin, K.-J.; Lee, J.-S. Shear strength evaluation of steel beams with partially corrugated web. J. Constr. Steel Res. 2023, 211, 108179. [Google Scholar] [CrossRef]
- Zirakian, T.; Hajsadeghi, M.; Lim, J.B.P.; Bahrebar, M. Structural performance of corrugated web steel coupling beams. Proc. Inst. Civ. Eng.-Struct. Build. 2016, 169, 756–764. [Google Scholar] [CrossRef]
- Elamary, A.S.; Alharthi, Y.M.; Hassanein, M.F.; Sharaky, I.A. Trapezoidally corrugated web steel beams loaded over horizontal and inclined folds. J. Constr. Steel Res. 2022, 192, 107202. [Google Scholar] [CrossRef]
- Li, S.; Jiang, C.X.; Du, N.J.; Lu, J.L. Experimental study on hysteretic behavior of replaceable shear link with corrugated web. Structures 2025, 71, 108139. [Google Scholar] [CrossRef]
- GB/T 228.1-2010; Metallic Materials—Tensile Testing at Room Temperature. Standardization Administration of the People’s Republic of China: Beijing, China, 2010.
- GB 50017-2003; Code for Design of Steel Structures. Ministry of Construction of the People’s Republic of China: Beijing, China, 2003.
- JGJ 99-98; Technical Specification for Steel Structures of Tall Buildings. China Academy of Building Research: Beijing, China, 1998.
- AISC 341-00; Seismic Provisions for Structural Steel Buildings. American Institute of Steel Construction: Chicago, IL, USA, 2000.
- GB 50661-2011; Code for Welding of Steel Structures. China Architecture and Building Press: Beijing, China, 2011.
- GB 50011-2010; Code for Seismic Design of Buildings. China Architecture and Building Press: Beijing, China, 2010.



























| Component | Thickness (mm) | Yield Strength (MPa) | Ultimate Strength (MPa) | Elastic Modulus E (MPa) | Elongation (%) |
|---|---|---|---|---|---|
| Column web | 10 | 286 | 440 | 32.5 | |
| Column flange | 15 | 292 | 438 | 33.8 | |
| Beam web | 6 | 311 | 431 | 29.7 | |
| Beam flange | 10 | 264 | 362 | 32.5 |
| Load Step | Displacement Amplitude (mm) | Number of Cycles | Corresponding Inter-Story Drift Angle (%rad) |
|---|---|---|---|
| 1 | 8.0625 | 6 | 0.375 |
| 2 | 10.75 | 6 | 0.5 |
| 3 | 16.125 | 6 | 0.75 |
| 4 | 21.5 | 4 | 1.0 |
| 5 | 32.25 | 2 | 1.5 |
| 6 | 43 | 2 | 2.0 |
| 7 | 64.5 | 2 | 3.0 |
| 8 | 86 | 2 | 4.0 |
| 9 | 107.5 | 2 | 5.0 |
| 10 | 129 | 2 | 6.0 |
| Specimen | Yield Displacement (mm) | Ultimate Displacement (mm) | Energy Dissipation (kN·mm) | Ductility Coefficient |
|---|---|---|---|---|
| Flat web joint | 20.5 | 83.6 | 17,908.33 | 4.1 |
| Local corrugated web joint | 19.6 | 107.5 | 25,208.05 | 5.5 |
| Specimen | Traditional Flat Web Joint | Local Corrugated Web Beam–Column Joint |
|---|---|---|
| Equivalent viscous damping coefficient | 0.40 | 0.42 |
Disclaimer/Publisher’s Note: The statements, opinions and data contained in all publications are solely those of the individual author(s) and contributor(s) and not of MDPI and/or the editor(s). MDPI and/or the editor(s) disclaim responsibility for any injury to people or property resulting from any ideas, methods, instructions or products referred to in the content. |
© 2025 by the authors. Licensee MDPI, Basel, Switzerland. This article is an open access article distributed under the terms and conditions of the Creative Commons Attribution (CC BY) license (https://creativecommons.org/licenses/by/4.0/).
Share and Cite
Wang, W.; Sun, A.; Ao, W.; Zhan, S.; Sun, Y. Full-Scale Test on Hysteretic Behavior of T-Shaped Steel Beam–Column Joints with Locally Corrugated Web (RBS) Considering Folding Effect. Buildings 2025, 15, 4532. https://doi.org/10.3390/buildings15244532
Wang W, Sun A, Ao W, Zhan S, Sun Y. Full-Scale Test on Hysteretic Behavior of T-Shaped Steel Beam–Column Joints with Locally Corrugated Web (RBS) Considering Folding Effect. Buildings. 2025; 15(24):4532. https://doi.org/10.3390/buildings15244532
Chicago/Turabian StyleWang, Weizhen, Aifu Sun, Wei Ao, Shuzhen Zhan, and Yanan Sun. 2025. "Full-Scale Test on Hysteretic Behavior of T-Shaped Steel Beam–Column Joints with Locally Corrugated Web (RBS) Considering Folding Effect" Buildings 15, no. 24: 4532. https://doi.org/10.3390/buildings15244532
APA StyleWang, W., Sun, A., Ao, W., Zhan, S., & Sun, Y. (2025). Full-Scale Test on Hysteretic Behavior of T-Shaped Steel Beam–Column Joints with Locally Corrugated Web (RBS) Considering Folding Effect. Buildings, 15(24), 4532. https://doi.org/10.3390/buildings15244532
