Housing for a Changing Society: Rethinking Urban Dwellings in Lisbon †
Abstract
1. Introduction
Housing Studies in Portugal
2. Materials and Methods
3. Portuguese Society: Evolution and Transformation
3.1. Household Models
3.2. Labor Models and Practices
3.3. Consumption Models
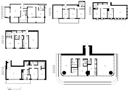
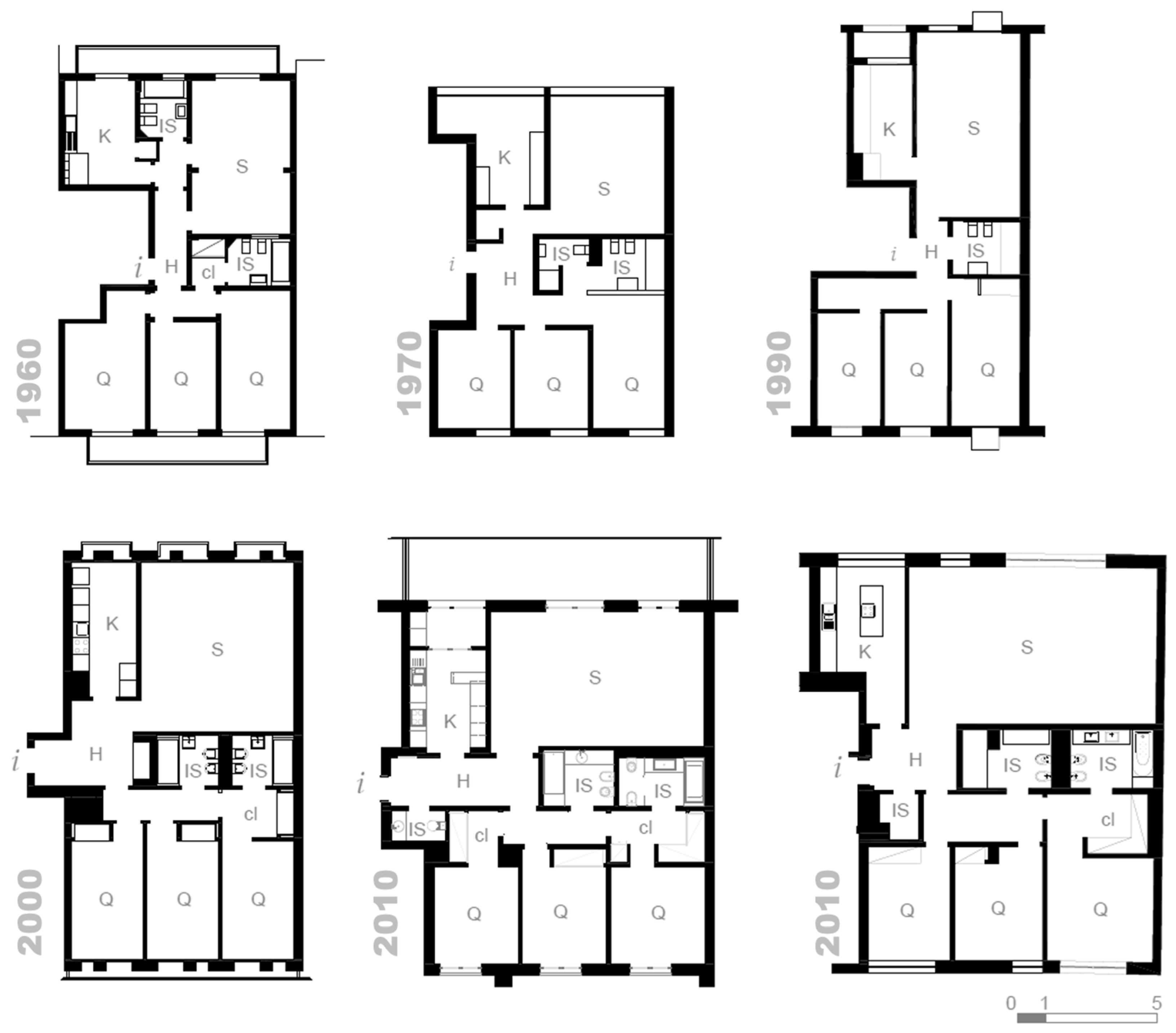
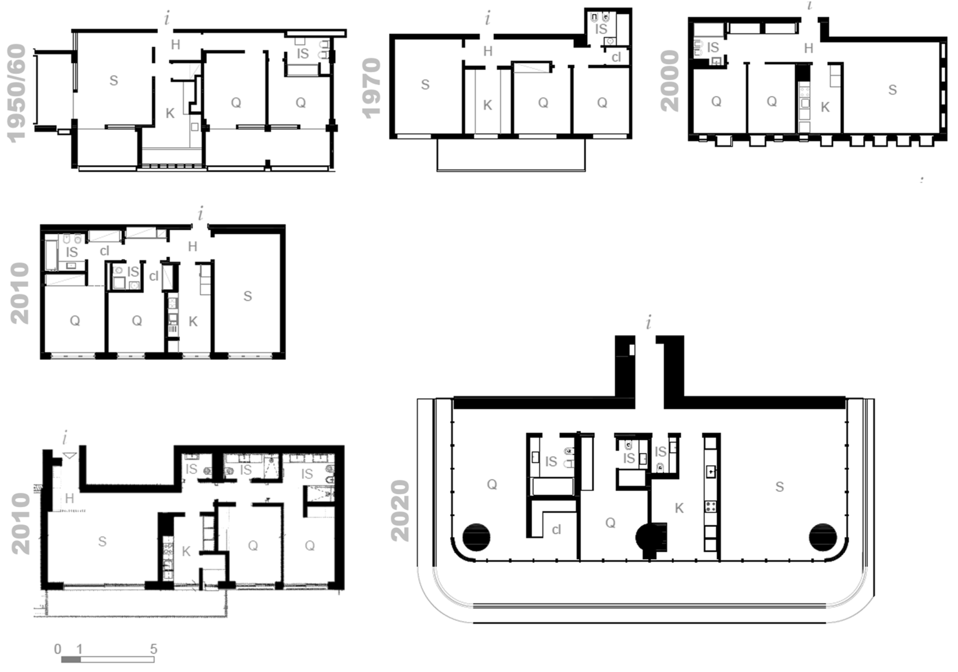
4. Portuguese Contemporary Housing Models
5. Discussion
6. Conclusions
Author Contributions
Funding
Data Availability Statement
Conflicts of Interest
Abbreviations
| AML | Lisbon Metropolitan Area |
| IHRU | Portuguese Housing and Urban Rehabilitation Institute |
| INE | Portuguese National Statistics Institute |
| RGEU | Regulamento Geral das Edificações Urbanas (Urban Buildings General Regulation) |
References
- Leger, J.M. Modos de Habitar e Arquitectura. Cid. –Comunidades E Territ. 2001, 3, 41–52. [Google Scholar]
- Rapoport, A. House Form and Culture; Prentice-Hall, Inc.: Englewood Cliffs, NJ, USA, 1969. [Google Scholar]
- Guerra, I.; Moura, D.; Pereira, S.M. Novas Necessidades de Habitação: Alterações Sócio-Demográficas e Oferta Habitacional. Relatório Final; ISCTE-CET: Lisboa, Portugal, 2004. [Google Scholar]
- Hanson, J. Decoding Homes and Houses; Cambridge University Press: Cambridge, UK, 1998. [Google Scholar]
- Muntañola, J. Compreender la Arquitectura; Editorial Teide: Barcelona, Spain, 1985. [Google Scholar]
- UK Parliament. Available online: https://www.parliament.uk/about/living-heritage/building/palace/architecture/palacestructure/churchill/ (accessed on 25 January 2025).
- Edgu, E.; Unlu, A. ‘Relation of domestic space preferences with Space Syntax parameters. In Proceedings of the Fourth International Space Syntax Symposium, London, UK, 17–19 June 2003. [Google Scholar]
- Thornock, C.; Nelson, L.; Porter, C.; Evans-Stout, C. There’s no place like home: The associations between residential attributes and family functioning. J. Environ. Psychol. 2019, 64, 39–47. [Google Scholar] [CrossRef]
- Jansen, S. The impact of the have-want discrepancy on residential satisfaction. J. Environ. Psychol. 2014, 40, 26–38. [Google Scholar] [CrossRef]
- Sungur, Ç.; Çagdas, G. Effects of Housing morphology on user satisfaction. In Proceedings of the Fourth International Space Syntax Symposium, London, UK, 17–19 June 2003. [Google Scholar]
- Ruivo, C.; Varoudis, T. Organising family life: An analysis of the spatial organization of people and activities in the household. In Proceedings of the 12th International Space Syntax Symposium, Beijing, China, 8–16 July 2019. [Google Scholar]
- Nowzari, Z.; Armitage, R.; Maghsoodi Tilaki, M.J. How does the residential complex regulate resident’s behaviour? An empirical study to identify influential components of human territoriality on social interaction. Sustainability 2003, 15, 11276. [Google Scholar] [CrossRef]
- Cieraad, I. Anthropology at Home. In At Home: An Anthropology of Domestic Space; Cieraad, I., Ed.; Syracuse University Press: Syracuse, NY, USA, 1999; pp. 1–12. [Google Scholar]
- Peponis, J.; Wineman, J. Spatial Structure of Environment and Behaviour. In Handbook of Environmental Psychology; Bechtel, R., Churchman, A., Eds.; John Wiley & Sons, Inc.: New York, NY, USA, 2002; pp. 271–291. [Google Scholar]
- Peponis, J. Architecture and Spatial Culture; Routledge: Oxon, UK, 2024. [Google Scholar]
- Lawrence, R. House Form and Culture: What have we learnt in thrity years? In Culture-Meaning-Architecture; Moore, K.D., Ed.; Routledge: London, UK, 2000; pp. 53–76. [Google Scholar]
- Portas, N. Funções e Exigências de Áreas da Habitação; LNEC: Lisboa, Portugal, 1969. [Google Scholar]
- Pedro, J.B. Programa Habitacional. Espaços e Compartimentos. (Reprodução integral da 1ª edição de 1999); LNEC: Lisboa, Portugal, 2014. [Google Scholar]
- Moreira, A. Habitar em Lisboa no Século XXI. Adequação Funcional da Habitação Colectiva Urbana Contemporânea aos Novos Modos de Habitar e aos Novos Modelos Sociais. PhD Thesis, Faculdade de Arquitetura da Universidade de Lisboa, Lisbon, Portugal, 5 April 2022. [Google Scholar]
- Moreira, A.; Farias, H. Analyzing Housing and Household Evolution and Actuality in Lisbon, 2000–2020. Curr. Urban Stud. 2022, 10, 329–341. [Google Scholar] [CrossRef]
- Garha, N.S.; Azevedo, A.B. ‘Demography and Housing: Challenges and opportunities for Lisbon’s housing prospects from 2022 to 2051’. Cities 2025, 159, 1–13. [Google Scholar] [CrossRef]
- Valente-Pereira, L.; Gago, M.A. O Uso do Espaço na Habitação; LNEC: Lisboa, Portugal, 1974. [Google Scholar]
- Pereira, S.M. Housing Ideals in Metropolitan Portugal: The case of Lisbon. In Proceedings of the The Housing Markets of Southern Europe in Face of the Crisis, Görlitz, Germany, 1–5 December 2013. [Google Scholar]
- Cabrita, A.; Morgado, L. Tipos Emergentes de Habitação; Laboratório Nacional de Engenharia Civil: Lisboa, Portugal, 2006. [Google Scholar]
- Delgado, A.; Wall, K. (Eds.) Famílias nos Censos 2011: Diversidade e Mudança; Instituto Nacional de Estatística e Imprensa de Ciências Sociais: Lisboa, Portugal, 2014. [Google Scholar]
- Aboim, S. Dinâmicas regionais de mudança nas famílias (2001–2011). In Famílias nos Censos 2011: Diversidade e Mudança; Delgado, A., Wall, K., Eds.; Instituto Nacional de Estatística e Imprensa de Ciências Sociais: Lisboa, Portugal, 2014; pp. 65–86. [Google Scholar]
- INE. Inquérito ao Emprego Trabalho a Partir de Casa. Available online: https://www.ine.pt/xportal/xmain?xpid=INE&xpgid=ine_main (accessed on 8 January 2025).
- Jornal Público. Available online: https://www.publico.pt/2023/11/03/p3/noticia/ano-2600-vistos-nomadas-digitais-gostam-viajar-vem-ficar-2068427 (accessed on 25 May 2024).
- Heathcote, E. The Meaning of Home; Frances Lincoln: London, UK, 2012. [Google Scholar]
- Wall, K.; Cunha, V.; Ramos, V. Evolução das estruturas domésticas em Portugal, 1960–2011. In Famílias nos Censos 2011: Diversidade e Mudança; Delgado, A., Wall, K., Eds.; Instituto Nacional de Estatística e Imprensa de Ciências Sociais: Lisboa, Portugal, 2014; pp. 43–64. [Google Scholar]
- INE. Inquérito à Ocupação do Tempo. Principais Resultados; INE: Lisboa, Portugal, 2001. [Google Scholar]
- Perista, H.; Cardoso, A.; Brázia, A.; Abrantes, M.; Perista, P.; Quintal, E. Os Usos do Tempo de Homens e de Mulheres em Portugal; CESIS and CITE: Lisboa, Portugal, 2016. [Google Scholar]
- Moreira, A.; Gameleira, R.; Canova, C.; Farias, H. The Kitchen revisited: Meanings of functional and physical metamorphosis within the western urban home. In Proceedings of the 9th International Multidisciplinary Congress PHI 2023: Creation, Transformation and Metamorphosis, Sevile, Spain, 5–7 October 2023. [Google Scholar]
- Fuertes, P.; Monteys, X. Casa Collage. Um Ensayo sobre la Arquitectura de la Casa; Gustavo Gilli SA: Barcelona, Spain, 2001. [Google Scholar]
- Porotto, A.; Ledent, G. Crisis and Transition: Forms of Collective Housing in Brussels. Buildings 2021, 11, 162. [Google Scholar] [CrossRef]
- Farias, H. A more versatile and adaptable dwelling, for a changing society. In Architectural Research Addressing Societal Challenges: Proceedings of the EAAE ARCC 10th International Conference (EAAE ARCC 2016); Costa, M.C., Roseta, F., Lages, J.P., Costa, S.C., Eds.; CRC Press Taylor & Francis Group: Lisboa, Portugal, 2016. [Google Scholar]
- Paiva, A. Habitação Flexível. Análise de Conceitos e Soluções. Master Thesis, Faculdade de Arquitectura, Lisboa, Portugal, 2002. [Google Scholar]
- Moreira, A.; Farias, H. Admirável Mundo Novo: Novos Modos e Novos Modelos De Habitar a Cidade. In Proceedings of the 5º CIHEL, Lisboa, Portugal, 2-4 October 2024. [Google Scholar]
- Arquitectura Viva. Available online: https://arquitecturaviva.com/works/bloque-6x6-en-gerona (accessed on 25 May 2024).
- Arquitectura Viva. Available online: https://arquitecturaviva.com/works/85-viviendas-sociales-en-cornella-de-llobregat-barcelona (accessed on 25 May 2024).
- Muller Sigrist Architects. Available online: https://www.muellersigrist.ch/arbeiten/bauten/wohn-und-gewerbesiedlung-kalkbreite-zuerich/ (accessed on 25 May 2024).
- Avilla-Royo, R.; Jacoby, S.; Bilbao, I. The Building as a Home: Housing Cooperatives in Barcelona. Buildings 2021, 11, 137. [Google Scholar] [CrossRef]









| Areas/Research Foci | Topics | Authors * |
|---|---|---|
| Spatial Properties | Study of housing morphology and spatial dimensions | Portas [17] Pedro [18] |
| Social Context | Family and household composition Demographic trends | Moreira [19] Moreira and Farias [20] Garha and Azevedo [21] |
| Spatial Perception and Space Use | Appropriation, sense of belonging, perception Aspirations, needs, modes of living Technological change | Valente Pereira and Gago [22] Pereira [23] Moreira [19] Cabrita and Morgado [24] |
| Year | Geographic Zone | Household Average Size |
|---|---|---|
| 2001 | Portugal | 2.81 |
| AML | 2.62 | |
| 2011 | Portugal | 2.61 |
| AML | 2.43 | |
| 2021 | Portugal | 2.46 |
| AML | 2.38 |
| Year | Geographic Zone | Private Domestic Household Size (%) | ||||
|---|---|---|---|---|---|---|
| 1 | 2 | 3 | 4 | 5 or + | ||
| 2001 | Portugal | 17.30 | 28.39 | 25.17 | 19.68 | 9.46 |
| AML | 20.87 | 30.09 | 25.39 | 17.00 | 6.65 | |
| 2011 | Portugal | 21.44 | 31.59 | 23.88 | 16.60 | 6.49 |
| AML | 25.55 | 32.84 | 22.29 | 13.99 | 5.34 | |
| 2021 | Portugal | 25.42 | 34.20 | 22.12 | 15.13 | 5.74 |
| AML | 29.30 | 34.16 | 20.76 | 14.03 | 5.69 | |
| Portugal | AML | |||||||
|---|---|---|---|---|---|---|---|---|
| 1991 | 2001 | 2011 | 2021 | 1991 | 2001 | 2011 | 2021 | |
| Single-person | 13.85 | 17.30 | 21.44 | 24.77 | 15.57 | 20.87 | 25.55 | 28.19 |
| DINK | 22.2 | 23.56 | 25.64 | 27.28 | 23.47 | 23.79 | 25.40 | 24.27 |
| Couple + kids | 49.92 | 45.19 | 37.92 | 34.12 | 47.83 | 40.40 | 32.86 | 30.13 |
| Single-parent | 6.81 | 8.25 | 10.25 | 13.98 | 6.82 | 9.70 | 11.83 | 16.01 |
Disclaimer/Publisher’s Note: The statements, opinions and data contained in all publications are solely those of the individual author(s) and contributor(s) and not of MDPI and/or the editor(s). MDPI and/or the editor(s) disclaim responsibility for any injury to people or property resulting from any ideas, methods, instructions or products referred to in the content. |
© 2025 by the authors. Licensee MDPI, Basel, Switzerland. This article is an open access article distributed under the terms and conditions of the Creative Commons Attribution (CC BY) license (https://creativecommons.org/licenses/by/4.0/).
Share and Cite
Moreira, A.; Farias, H. Housing for a Changing Society: Rethinking Urban Dwellings in Lisbon. Buildings 2025, 15, 1793. https://doi.org/10.3390/buildings15111793
Moreira A, Farias H. Housing for a Changing Society: Rethinking Urban Dwellings in Lisbon. Buildings. 2025; 15(11):1793. https://doi.org/10.3390/buildings15111793
Chicago/Turabian StyleMoreira, Ana, and Hugo Farias. 2025. "Housing for a Changing Society: Rethinking Urban Dwellings in Lisbon" Buildings 15, no. 11: 1793. https://doi.org/10.3390/buildings15111793
APA StyleMoreira, A., & Farias, H. (2025). Housing for a Changing Society: Rethinking Urban Dwellings in Lisbon. Buildings, 15(11), 1793. https://doi.org/10.3390/buildings15111793

