Abstract
Disasters, whether natural or man-made, pose inevitable global challenges. Events such as COVID-19, earthquakes, extreme climatic conditions, and conflicts underscore the urgent demand for effective temporary housing solutions. These temporary housing units (THUs) serve as an aid in assisting displaced people to rebuild their lives as the recovery process unfolds. However, numerous temporary housing units present environmental, economic, and social issues that hinder their sustainability. This paper investigates the underlying causes of these issues, defines the essential requirements that temporary housing units must meet, and proposes an initial design to fulfill these requirements. The methodology comprises three key phases: case study analysis, requirement identification, and the integration of these requirements into the design process. The main findings highlight that the construction of sustainable temporary housing units necessitates a meticulous consideration of various parameters to achieve a balanced equilibrium between economic, social, and environmental impacts. Possible future research directions are emphasized, including the use of digital tools and BIM models to promote the adoption of circular economy practices and the validation of the design solution through value analysis. Possible improvements in the user’s well-being are also taken into consideration.
1. Introduction
A disaster is defined as a relevant breakdown in the operation of a community or society. It is characterized by vast human, material, economic, or environmental damages and effects so severe that the struck community or society cannot recover using its internal resources alone. Consequently, external resources are necessary, which can be sourced at both national and international levels [1,2]. Disasters can be categorized into three main types: natural, man-made, and technological hazards [3]. Natural disasters encompass a wide range of events, including earthquakes, floods, droughts, storms, extreme temperatures, and landslides. For instance, the Moroccan earthquake and the Libyan floods in September 2023 serve as dramatic examples of natural disasters. These calamities resulted in significant damage and the displacement of thousands of people. Man-made disasters encompass wars, conflicts, and even biological disasters originating from human activities. An illustrative instance is the ongoing Russian–Ukrainian conflict, which has produced economic, environmental, and social damages, including a particularly devastating loss of life. In addition, the COVID-19 pandemic serves as a dual example of a biological and man-made disaster, affecting an impressive number of people worldwide, exceeding 6.5 million, according to [4]. Technological disasters can arise from industrial accidents or incidents such as oil and toxic spills [5], causing detrimental environmental effects.
It is important to note that certain natural disasters are caused by human activities. In other words, the effects of climate change, resulting from anthropogenic actions, impact the occurrence of natural disasters such as droughts, floods, storms, and heatwaves [6,7]. In recent years, as the relevance of climate change effects has grown, the number of natural disasters has increased, as reported by [2]. In general, a disaster has severe consequences for an affected community or society [8]. These issues are primarily driven by environmental damage, which predominantly affects the built environment. These problems lead to fatalities, housing, and infrastructure damage. The destruction of housing forces people to seek shelter in temporary accommodations or houses, while infrastructure damage creates challenges related to transportation, energy, water supply, and accessibility, among others. These damages can be assessed in terms of their economic impact, which is generally quite high. Affected societies struggle to cope with it unless external assistance is provided. To address the aftermath of a disaster, communities and societies must prepare an effective recovery plan to handle rehabilitation and reconstruction. Within disaster management plans, the provision of shelters and Temporary Housing Units (THUs) for displaced individuals during various phases of recovery is of significant importance. This includes considerations like the selection of sites for temporary settlements and the employment of construction technologies for shelter and housing [9,10].
Regarding THUs, they are typically designed for rapid and cost-effective construction, prioritizing only the economic aspect of sustainability during their planning and design phases. Environmental and social considerations are largely overlooked. Nowadays, with the growing emphasis on sustainability in the built environment, the sustainability of THUs has become an interesting topic for academics and researchers. However, THUs fail to provide displaced people with safe and comfortable living spaces, which favor restarting their lives after disasters, often necessitating long-term residence. THUs lack reusability in their design, and the resources used in their construction are seldom reused or recycled, mainly due to the absence of circular design strategies like Design for Disassembly. These factors, among others, contribute to the social and environmental unsustainability of THUs. Thus, a shift in the design approach for THUs is imperative to make them more sustainable. Specifically, this new design approach should encompass specific requirements that account for economic, social, and environmental sustainability.
This paper presents preliminary findings from ongoing research at the Department of Energy, Systems, Territory, and Construction Engineering at the University of Pisa, delving into THUs and their correlation with Design for Disassembly and Circular Economy. The research moves from the following Research Questions (RQ):
- “What are the requirements to be considered in designing sustainable THUs?”;
- “What technological solutions can fulfill these requirements?”
Answering these RQs encompasses two main objectives. Firstly, to delineate the prerequisites essential in the design phase of THUs, ensuring their economic, environmental, and social sustainability. Secondly, to ascertain the most suitable construction techniques that align with the identified prerequisites. To address these RQs, a literature review has been conducted, assessing the primary issues impacting THUs. Furthermore, practical case studies have been analyzed and discussed. The outcomes derived from the literature review and case study analysis have been instrumental in formulating a proposal for a sustainable THU.
The subsequent sections of this paper are organized as follows: Section 2 contextualizes THUs within emergency buildings, outlining crucial aspects gathered from the scientific literature. Section 3 encompasses the analysis of case studies, the elucidation of prerequisites, and the proposed design. Section 4 delves into the design proposal, emphasizing its benefits and weaknesses. Finally, Section 5 concludes the paper, showcasing future developments.
2. Literature Review: Temporary Housing Units Features and Criticalities
Focusing on emergency buildings, Quarantelli [11] conducted a comprehensive analysis and categorization of these structures. He defines four primary typologies of emergency buildings, each corresponding to a distinct phase in the recovery and rehabilitation process. In the aftermath of a disaster, emergency shelters serve as the initial places of refuge for displaced people. These shelters can take the form of tents, rental houses, second homes, or public spaces. Temporary shelters, on the other hand, are accommodations established in specific locations, typically safe places like schools and gymnasiums, etc. THUs are where displaced individuals spend the most significant portion of their time before returning to their permanent residences [12]. These buildings play a critical role in the rehabilitation and recovery phase following a disaster, as they enable displaced people to return to their normal lives and overcome the losses incurred by the disaster [13]. THUs also provide privacy, protection, and better health conditions than temporary shelters for victims after a traumatic event [14,15,16]. Once the recovery period ends, displaced people can return to their permanent homes.
Each typology is associated with a specific duration of stay (Figure 1). Emergency shelters are utilized for very brief periods, typically within 12 to 48 h following the disaster. Temporary shelters are occupied for a duration ranging from 2 to 30 days [17]. THUs are used for longer periods, generally lasting from 3 months to 5 years or longer, depending on the severity of the disaster [6,7,15].
Figure 1.
Typologies of emergency buildings and the estimated time of use (author’s drawing).
It is evident that THUs are often an essential category of emergency buildings, ensuring the provision of services and maintaining a decent quality of life for displaced people over an extended period of time. Consequently, they must be meticulously designed to meet these demands [18,19,20].
In terms of sustainability, THUs should meet environmental, social, and economic sustainability requirements. Simultaneously, they should ensure a rapid construction process, allowing displaced people to return to their regular lives. Nowadays, sustainability is a highly discussed topic among researchers and academics. However, the evaluation of different design solutions for THUs often incorporates only certain aspects of the Triple Bottom Line approach to sustainability. This approach relies on the idea that sustainability results from balancing economic, environmental, and social aspects. Analyzing environmental, economic, and social sustainability separately in the case of THUs may lead to a misleading assessment of their advantages and disadvantages. A comprehensive sustainability analysis is essential for these units and should encompass all three pillars of sustainability: environmental, economic, and social. Firstly, THUs should be environmentally sustainable. To achieve this, the use of low embodied energy building materials and components is crucial in reducing their impact. Moreover, when they reach the end of their lives, CE practices should be applied to their materials or components. This way, the resources initially invested in their construction can serve as raw materials for other structures. It is also worthwhile to consider repurposing THUs for new functions. To facilitate CE practices for THUs, an accurate design phase that follows a life cycle approach is necessary. Design for Disassembly can be a valuable strategy in this regard, improving flexibility and adaptability and prolonging the building’s life cycle, thus combating obsolescence [21,22,23,24]. Secondly, THUs should be affordable. Given their involvement in post-disaster and critical situations, THUs should be characterized by low construction costs. These costs should be minimized, not only due to the limited financial resources available in such scenarios but also to ensure that resources necessary for the recovery process are not depleted. Thirdly, THUs should have positive impacts on displaced communities. They must fulfill the needs of their future occupants, providing them with a temporary, secure place. Achieving this requires that the design of THUs respect both the culture of the specific location and its environmental conditions [25]. Another important social aspect is the involvement of local stakeholders and displaced people in the planning and construction process of THUs. It is a powerful solution to allow communities to take part in the reconstruction [12,26].
An analysis of the literature reveals that meeting these requirements can be quite challenging, primarily because each country has its own regulations for addressing post-disaster situations. Countries may choose between two approaches: top-down and bottom-up. In general, the top-down approach is characterized by a centralized decision-making process where communities affected by disasters are not involved in rehabilitation and recovery planning. In contrast, the bottom-up approach actively engages local stakeholders and communities in the decision-making process. The duality between the top-down and bottom-up approaches influences both the establishment of temporary settlements within affected urban areas and the design of THUs. In urban settings facing emergencies, such as post-disaster situations, flexible urban planning tools are needed. As explained by [27], top-down urban planning aims to predict all potential future developments in a city. However, given the ever-changing nature of cities, it is nearly impossible to anticipate and encompass all possible scenarios, especially concerning disasters, during the planning phase. On the contrary, bottom-up urban planning approaches focus more on the relationship between the existing city and the new planned elements. These approaches demonstrate higher flexibility in accommodating natural disasters, enabling communities to self-organize within the urban landscape. Many researchers argue that top-down approaches often fail to yield positive social effects and, instead, widen the gap between people and institutions. In contrast, bottom-up approaches are regarded as place-based and human-centered strategies capable of considering local culture, available resources, and indigenous building knowledge [13]. These approaches produce different results in terms of sustainability.
In the realm of technical and technological aspects, temporary buildings have been linked since the second half of the 1800s to the concept of prefabrication [28]. Nowadays, this concept is still used for these buildings. In particular, top-down strategies heavily rely on closed prefabrication systems. These systems are often characterized as ready-made temporary units with limited flexibility [12,15]. Container houses serve as an example of such systems. While close prefabrication ensures the rapid availability of houses, it simultaneously elevates transportation and overall construction costs. Typically, these THUs are manufactured in other countries and then transported to their intended locations, impacting their environmental and economic sustainability [9,10,15]. In addition, it should be noted that those buildings are standard; they are based on the concept of one-size-fits-all. However, they do not take into consideration important aspects such as culture, climatic conditions, dimensions and forms, etc. Another important issue is related to the application of CE practices or adaptability strategies [15]. In contrast, bottom-up approaches rely on a distinct prefabrication system, specifically the open prefabrication system [12]. This approach, based on the prefabrication of building components, enables the creation of various shapes that can adapt to diverse cultural, thermal, and typological requirements, owing to their high degree of technological flexibility. This kind of prefabrication offers a valuable solution to facilitate assisted self-construction operations, permitting displaced people to participate in the construction of their homes. Additionally, THUs constructed using open prefabrication systems are designed to be disassemblable, flexible, and adaptable to different uses and occupant needs. These attributes extend the life cycle of THUs, allowing them to be repurposed in similar scenarios. The disassemblability also enhances the recycling and reusing potential of materials and components used in THU construction, aligning with CE practices [29]. THUs are designed according to Design for Disassembly principles [22], using lightweight, prefabricated, and modular systems that can be easily constructed, ensuring the speed of intervention required in post-disaster situations [15,30,31]. The ease of assembly and disassembly, according to Johnson [13], plays a crucial role in urban planning and city safety. In this regard, disassembling the THUs and relocating them to other areas helps prevent temporary sites, particularly those in peripheral regions, from becoming focal points of social dysfunction.
Criticalities in Temporary Housing Unit Design
Despite the significant relevance of THUs in post-disaster scenarios, as emphasized in the previous section, those constructed over time often lack the necessary features. Specifically, the majority of THUs are not economically, environmentally, or socially sustainable [6,13,14,15,32,33]. Negative environmental effects are related to the use of high embodied energy materials, such as concrete and steel, among others. Sometimes materials containing VOCs have been used, as highlighted by [7]. Furthermore, there is a lack of reuse and recycling of materials involved in THU’s construction. Once they reach the end of their lives, these materials often end up as waste. This situation arises due to the lack of an accurate design aimed at optimizing resource utilization and reducing consumption. This also makes THUs energy-intensive. On occasion, it becomes necessary to establish custom agreements with energy providers to reduce energy costs. In this regard, the case of MAP in the Emilia–Romagna region of Italy serves as a paradigm, as explained by [17].
THUs predominantly depend on prefabrication. Consequently, the choice of the prefabrication system employed has a relevant impact on transportation and logistics costs, which carry both economic and environmental implications. In general, THUs tend to be unaffordable, primarily because the imperative to speed up construction in the shortest possible time frame for accommodating displaced people often conflicts with affordability. Achieving cost-effectiveness could be facilitated by utilizing local resources, thereby reducing the need for expensive specialized labor and transportation costs. This approach also contributes to revitalizing local economies, particularly during challenging post-disaster periods [13,34,35]. Open prefabrication systems, in this context, can play a central role in cost reduction compared to closed systems. Furthermore, the expenses associated with THU’s production and construction can impact reconstruction operations, potentially prolonging the required time. At a social level, THUs hold importance in the reconstruction process. However, they often fail to meet the needs of displaced people. In many instances, THUs do not provide comfort levels comparable to pre-disaster conditions. This discrepancy arises because THUs are not designed to be culturally appropriate. It can be viewed as a consequence of the “one-size-fits-all” approach, which assumes that a single design can suit various post-disaster situations in different countries. However, this approach lacks site-specificity and neglects the culture and customs of a specific location. This type of thinking is typical of a top-down approach, as indicated by prevailing top-down approaches over bottom-up approaches in the literature [16]. The only advantage of a top-down approach over a bottom-up one appears to be the speed of construction, attributed to the use of ready-to-use systems. From a social perspective, the bottom-up approach emerges as a potentially more sustainable alternative to the top-down approach. The bottom-up approach encourages the exchange of knowledge between designers and the community, facilitating the identification of optimal technological solutions aligned with local culture and the needs of occupants.
All the challenges described above pertain to the micro-level, specifically involving the design and construction of THU. However, to comprehensively outline issues related to THUs in post-disaster scenarios, it is pertinent to address those concerning preparedness and a country’s response to disruptive events, even if they are not the primary focus of this paper. These issues are associated with the macro level, encompassing decision-making and planning processes. Many times, countries have not been prepared to deal with the effects of a disruptive event. According to [36], the lack of preparedness primarily stems from inadequate planning and meta-planning. The former relates to the absence of anticipatory plans that outline actions to be taken immediately after a disaster and during the recovery phase. The latter refers to the outdated methods employed by public authorities in their planning and actions. The management of these planning phases can significantly impact the provision of THUs and future reconstruction efforts [8]. It is interesting to note that planning and meta-planning can be approached from either a top-down or a bottom-up perspective. Nowadays, the prevailing approach to facing these issues is top-down.
3. Materials and Methods
The methodology used to conduct the study (Figure 2) involves the examination of five case studies of THUs built after significant natural disasters. Subsequently, drawing from the insights collected through the case studies, the requirements for THUs are identified, explained, and connected to sustainability pillars. Finally, based on the identified requirements, a preliminary proposal for a THU has been formulated.
Figure 2.
Methodology diagram (author’s drawing).
3.1. Case Studies of Temporary Housing Units in Post-Disaster Scenarios
To give a clearer perspective on temporary housing, this section presents several relevant case studies drawn from the literature. These case studies encompass various examples. Some of them exhibit noteworthy attributes in terms of environmental, economic, and social sustainability, serving as reference models within this housing category. Others highlight design challenges that are commonly encountered in THUs. These are employed to underscore the issues reported in the introduction. The selection of case studies was based on criteria such as the year of construction, the approach utilized (top-down or bottom-up), materials, and the prefabrication system employed. For some of the case studies, construction costs were available, providing a valuable parameter for assessing the economic sustainability of the projects.
3.1.1. Case Study 1: Gümüspinar Temporary Settlement
The first case study presented pertains to the temporary housing program established in response to the 1999 earthquake in Turkey. This earthquake had a devastating impact on the Marmara and Bolu regions of Turkey, severely affecting the local infrastructure. The government responded by providing financial assistance to displaced people to enable them to rent houses. However, given the extensive damage to buildings and the challenging living conditions faced by many people residing in tents, the necessity for temporary housing became evident. In the city of Düzce, four temporary housing programs were initiated [13,14]. Figure 3 illustrates the temporary housing unit utilized in the Gümüspinar temporary settlement.
Figure 3.
Temporary housing units in Gümüspinar. On the left elevation of the units is the main entrance. On the right is the floor plan of the units. A unique space contains a kitchen and bed/living room (author’s drawing).
From a technological perspective, these units relied on prefabrication due to the presence of local prefabrication industries. This choice actively engaged the local industry and workers in the reconstruction efforts, providing a much-needed boost to the local economy during a challenging period. The buildings were placed on concrete slab foundations. The building envelope primarily consisted of prefabricated panels. These panels were made of a blend of cement and wood shaving chipboards, with an external layer of zinc–aluminum cladding. Each house was equipped with plumbing and electricity. The chosen prefabrication system was panel-based, enabling simple assembly and rapid construction. However, this system also constrained the technological and spatial flexibility of the units, making it difficult to extend the limited interior space (approximately 30 m2 per unit). The use of rigid building components like panels compromised adaptability. In terms of disassemblability, these units were designed to be demountable, except for the reinforced concrete foundation. However, concerning the sustainability of these THUs, they cannot be classified as sustainable. This is primarily because, in 1999, the concept of sustainability was not as well-established as it is today. Cost-effectiveness was likely the paramount consideration in designing these units, with the use of locally produced building components significantly reducing construction costs to approximately USD 3300 per unit. On the contrary, prioritizing economic considerations came at the expense of environmental and social aspects. From an environmental perspective, the production of prefabricated panels involves materials with very high embodied energy, such as cement and aluminum. Furthermore, the low flexibility and adaptability of the units limited the extension of their life cycle. Lastly, concrete slab foundations are generally challenging to reuse or recycle and often become waste, contributing to their environmental impact. From a social point of view, the Düzce project presented more disadvantages than advantages. Local communities were not engaged in the construction or design processes, resulting in buildings that did not align with the location in terms of form, health conditions, thermal comfort, cultural considerations, and more.
3.1.2. Case Study 2: Katrina Cottage
The second temporary housing unit presented is the Katrina Cottage, which was designed to address the emergency following Hurricane Katrina in 2005. This hurricane severely impacted the United States, particularly the states of Mississippi and Louisiana. It caused extensive damage to the built environment and the displacement of many people. In the aftermath of the disaster, the Federal Emergency Management Agency (FEMA) decided to provide mobile houses and travel trailers as temporary shelters to accommodate displaced people [34]. However, these temporary shelters, while enabling rapid housing solutions, were not suitable for long-term stays. Subsequently, the U.S. Department of Housing and Urban Development established the Alternative Housing Pilot Program, aiming to develop temporary housing units capable of serving various users and adaptable for conversion into permanent homes. The outcome of this program was the creation of the Katrina Cottage (Figure 4), designed by Marianne Cusato.
Figure 4.
Katrina Cottage. (a) Perspective view of the Katrina Cottage (Source: flickr.com/photos/infrogmation/4115375990 (accessed on 24 June 2023)); (b) floor plan of the three configurations (author’s drawing).
The designer aimed to minimize costs by striking a balance between affordability, durability, and resilience. Indeed, the house relied on lightweight prefabrication systems, primarily made of timber panels and frames. Utilizing these materials and systems provided the house with robust mechanical properties, allowing it to withstand high wind loads without suffering damage or disruption. The roof panels were covered with tin sheets to protect against rain. The cottage was designed to fit the dimensions of travel trailers used as temporary shelters. It was developed in three different variations, catering to different user needs. Consequently, these variations varied in terms of square meters and the number of rooms while sharing a fundamental design scheme. They featured an open-space layout with a combined living and kitchen area, with rooms branching off from a central corridor. The cost of a Katrina cottage was approximately USD 42,000, inclusive of a bathroom, kitchen, and a front porch. A survey conducted to assess the quality of the Katrina Cottages revealed that a majority of the occupants were rather satisfied with these buildings. However, some weaknesses were highlighted. In particular, occupants expressed concerns about the absence of air conditioning systems, limited space, inefficient plumbing systems, and low-quality interior finishing. While the temporary use of these buildings proved to be quite successful, their transition to permanent housing was less so. This was likely due to their limited flexibility and adaptability. Nonetheless, some Katrina cottages found new life through repurposing, such as conversion into tourist accommodations. Considering the American context, the overall costs of the Katrina Cottage were relatively low, rendering it economically sustainable. From a social perspective, it effectively provided housing for a significant number of people with a reasonable level of comfort. From an environmental standpoint, the construction systems based on timber panels offered recycling options, but their limited flexibility made direct reuse in different constructions a challenge.
3.1.3. Case Study 3: MAP
The third example is the MAP, as one of the reference models of the Italian Department of Protezione Civlie for emergency buildings [18]. MAPs were developed to provide shelter for displaced individuals following the earthquake in the Abruzzo area in 2009. In response to the post-earthquake emergency, MAPs were constructed within the affected municipalities. The MAPs project was overseen by the Department of Protezione Civile and offered three configurations based on dimensions and intended occupants: MAP 40, MAP 50, and MAP 70. The first, MAP 40, featured approximately 45 m2 of space and was designed for single-person occupancy. The second, MAP 50, encompassed a surface area of about 55 m2 and was suitable for two or three occupants. The largest variation, MAP 70, offered approximately 75 m2 of space and was designed to accommodate four to six individuals. The Department of Protezione Civile determined that MAPs should be constructed using wood, offering flexibility, modularity, and easy assembly and disassembly. In the aftermath of the 2009 earthquake, various models of MAP were constructed throughout the Abruzzo region, each differing in prefabrication systems, panel compositions, and materials used. This section reports on a variation of MAP constructed in the municipality of Poggio Picenze (Figure 5).
Figure 5.
MAP municipality of Poggio Picenze (AQ). (a) Variations (author’s drawing); (b) technical detail of the envelope-foundation joint (author’s drawing).
This variation is distinguished by its wooden structural frame, with the envelope also comprising a wooden structure. To enhance the thermal performance of the envelope, stone wool insulation was placed between the wooden structures. Both the internal and external sides of the envelope are constructed from oriented strand boards or gypsum boards. The exterior side of the envelope is covered with plaster. MAPs are supported by a concrete slab foundation, with the ground floor slab resting on wood beams bolted to the foundation. MAPs predominantly employed dry construction technologies, although certain building elements were constructed using wet methods. Notably, the foundation relied on concrete technology, making this component non-recyclable and generating the highest environmental impacts. The application of plaster to the envelope also involved a wet technique, affecting the reusability of the OSB panel to which the plaster was applied. Another factor impacting the reusability of building components is the use of bituminous membranes for waterproofing. The cost of MAPs used for the Abruzzo post-earthquake was approximately EUR 760 m2, translating to an average cost of about EUR 45,000 per unit. This cost is comparable to that of the Katrina Cottage, as both relied on similar construction systems. Considering the materials used and the context, MAP can be considered an affordable housing solution. From a social perspective, the MAP project represents a top-down approach. Despite the fact that it provides displaced people with comfortable houses, it represents a standard solution. Moreover, often these MAPs are located in temporary settlements far from the cities or villages. This situation transforms these settlements into dormitories with no services [37]. The construction and design were contracted to specific companies by the Department of Protezione Civile, with these companies being sourced from various regions across Italy. Furthermore, despite the predominant use of prefabricated building components, the assembly method employed diminished the flexibility of the MAP units and limited the potential for self-maintenance and self-construction. Today, the MAPs in the Abruzzo area continue to be in use. It can be observed that they have transitioned into permanent solutions, albeit with associated challenges.
3.1.4. Case Study 4: THU in Miharu Town
The fourth case study is a temporary housing project designed and built after the Great East Japan Earthquake in Fukushima Prefecture (Figure 6). More precisely, these temporary housing units were located in Miharu Town. This town remained unaffected by the tsunami and nuclear accidents, so it was chosen to host the temporary settlement. Approximately 800 people from areas near the Fukushima Daiichi Power Plant were accommodated here [35]. This case study represents the outcome of a bottom-up approach. The project was a collaborative effort between the municipality of Miharu, the Japan Institute of Architects, and five local builders. It is centered on the utilization of traditional wooden construction techniques. Local builders shared their expertise in wood construction to adapt the design to the characteristics of the location and ensure the highest level of comfort for the residents. The structural frame relied on the use of open prefabrication systems, specifically a post-and-beam frame. Only standard-sized timber was used to minimize costs and ensure availability. Wood is the primary material used in these THUs, employed for floors, exterior cladding, interior cladding, and roof slabs. The envelope and the roof were effectively insulated, with the latter being covered by corrugated sheets to protect the insulation and wooden slabs from weathering. Insulated glass units were used to enhance thermal comfort. Finally, the foundations are constructed from concrete. This temporary housing project exhibits a higher level of sustainability compared to those discussed so far. The use of standard-sized timber facilitates the reuse of building components. This choice reduces overall economic and environmental costs by relying on locally sourced materials. The most noteworthy and innovative aspect of this project is the bottom-up approach employed during the design phase, which yielded positive economic and social effects. Notably, by employing local workers and materials, the majority of the construction expenditure contributed to the local economy [35].
Figure 6.
Temporary housing in Miharu Town. View of the exterior. The figure illustrates the essential additions required to make THUs habitable, such as a TV system and air conditioning (source: irides.tohoku.ac.jp/eng/organization/iwata_tsukasa.html (accessed on 12 May 2023)).
3.1.5. Case Study 5: Onagawa Container Temporary Housing
The fifth case study analyzed is a temporary housing project known as Onagawa Container Temporary Housing, led by a design team composed of Shigeru Ban, Arup, Kase Warehouse, and TSP Taiyo. The project was built in Onagawa, a town situated on the coast of Miyagi Prefecture, to provide housing for displaced people following the tsunami that struck the town in 2011 as part of the Great East Japan Earthquake (GEJP). This project marked the construction of Japan’s first multi-story THUs. Typically, in this country, temporary houses are single-story, necessitating a substantial amount of flat land. In the case of Onagawa, available flat lands are limited due to its hilly terrain. There was also a need to safeguard the new THUs from potential future tsunamis following earthquakes. Therefore, the new THUs were optimized to reduce land usage, making multi-story building blocks the ideal solution to address this challenge. The site chosen by the municipality for setting up the temporary settlement was the town’s baseball diamond [38], as it met the requirements for safety. THUs were constructed using ISO shipping containers and Plus Boxes. The latter is a special container designed by Arup for Kase Warehouse. This container shares the same dimensions as an ISO container but has a different structure. It is composed of a steel structural frame and removable walls [39], providing flexibility compared to ISO containers. ISO and Plus Box containers were arranged in three- or two-story blocks, following a checkerboard pattern. This pattern allowed the creation of open living spaces in between the ISO containers, which were used for bathrooms and bedrooms. Plus Boxes were used to create open spaces thanks to the flexibility offered by the steel frame. Additionally, the alternation of Plus Box and ISO containers enhanced the overall stability of the structure [39]. Containers and Plus Boxes were joined using common connectors, such as twist locks and bridge fittings. To ensure the complete disassembly of the building blocks without compromising the baseball field, the foundations rely on a particular technological system consisting of a steel plate connected to a smaller steel plate. On this smaller plate, the twist lock enables connection to the containers.
Three different units have been developed (Figure 7): for one or two people (20 m2), for three or four people (30 m2), and for five or more people (40 m2). The 189 temporary housing units were arranged in nine building blocks and constructed in only 14 weeks. The Onagawa Container Temporary Housing features open and closed prefabrication systems working together. The ISO container is a closed prefabrication system, while the Plus Box is an open one. Given that, different prefabrication systems are used with different functions. Despite this project being considered a result of a top-down approach, Shigeru Ban’s expertise in dealing with post-disaster scenarios produced positive social effects. Occupants maintained an excellent level of comfort in the units [38]. In terms of construction costs, the use of containers may raise costs due to prefabrication and transportation. However, this can be offset by the fact that the building blocks are completely disassemblable. This facilitates the reuse of these units for other post-disaster situations.
Figure 7.
Onagawa Container Temporary Housing. (a) Unit variations based on the users (author’s drawing); (b) view of the building blocks during the assembly. The checkerboard scheme now appears (source: shigerubanarchitects.com (accessed on 18 May 2023)).
3.1.6. Case Study 6: Moroccan Paper Log Model
The final case study analyzed is a prototype designed by Shigeru Ban for the recent Moroccan earthquake in the Marrakech–Safi region, which occurred on 8 September 2023 (Figure 8). This prototype is based on the Paper Log House, known for its paper structural frame designed by a Japanese architect. The use of paper logs for structural purposes facilitates quick assembly and cost-effectiveness, speeding up the construction process. Shigeru Ban has employed the Paper Log House format in various post-disaster scenarios, with variations in building components.
Figure 8.
Moroccan Paper Log Model. (a) View of the entrance; (b) view of the back (authors’ pictures, taken in October 2023).
The choice of building components is determined by local availability and affordability. This model is based on open prefabrication systems, primarily utilizing standard components. The only exceptions are a few non-standard elements, such as the structural components used to connect the paper tubes (Figure 9).
Figure 9.
Connections of the Moroccan Paper Log Model. (a) Detail of the connection of the roof paper beams; (b) detail of the connection between the roof structure and the paper pillars (authors’ pictures, taken in October 2023).
The THU features low-technology solutions. This approach aims to actively involve the displaced community in the construction of the THUs. In the Moroccan prototype, constructed at the National School of Architecture in Marrakech, only a minimal set of construction elements is used, including timber, plywood panels, paper logs, EPS panels, and plastic crates.
Considering the technological units of the THU, the foundations consist of reclaimed beer crates filled with sand (Figure 10). This system allows for elevated foundations without the need for soil excavation. The floor slabs are constructed using a timber frame structure (Figure 10). These frames are filled with EPS panels and covered with plywood panels. The building envelope follows the same stratigraphy as the floor slab. The use of plywood panels in the envelope serves both structural and functional purposes, as they help to secure the paper’s structural frame.
Figure 10.
Foundations of the Moroccan Paper Log Model. (a) Detail of the foundations of the THU; (b) detail of the floor slab wooden frame (authors’ pictures, taken in October 2023).
In contrast, the roof slab features a diverse composition. The inner layer is composed of plywood panels attached to planks that are screwed on top of the paper logs (Figure 9).
Plywood panels are designed with holes (Figure 11) to enable work from the inside without the need to go on the roof, reducing the risk of injuries. This innovative solution enhances the safety of assembly operations, especially in cases of assisted self-construction. Atop the plywood layer, a wooden framework is placed, and EPS panels fill the frame. To shield the EPS from weathering, an external layer of plastic cloth is utilized. It is secured with nails to the plywood layer (Figure 11).
Figure 11.
Roof of the Moroccan Paper Log Model. (a) Detail of the holes in the plywood layer; (b) detail of the plastic cloth (authors’ pictures, taken in October 2023).
A site inspection helps identify issues that might impact the durability and reusability of building components. In particular, the paper log frame, although treated with additives to protect against weathering, could lose its waterproof properties and suffer damage if hit or scratched (Figure 12). Another concern relates to the connection methods for the plywood panels, which are fixed with screws. This connection type may not withstand multiple uses, necessitating additional steps before reusing the panels (Figure 12).
Figure 12.
Weaknesses. (a) Scratches on one of the paper pillars; (b) double holes, probably due to mistakes in the assembly of the panels (authors’ pictures, taken in October 2023).
The THU comprises an open space of approximately 30 m2 and lacks a dedicated bathroom or kitchen. This arrangement suggests an intention for these services to be shared among the displaced individuals in the temporary settlement.
Considering the sustainability of the prototype, it becomes evident that the social aspect has been addressed successfully. The design promotes self-construction and generates positive social effects. However, there is room for improvement in the environmental and economic aspects to enhance overall sustainability. Notably, many of the materials used in the project are not locally sourced, including paper logs, softwood frames, and plywood, resulting in elevated environmental and economic costs.
The case studies reported are summarized in Table 1, which provides a summary of the features of interest for this work. It is interesting to note that the case studies reported permit us to understand the evolution that temporary housing has experienced in terms of building technology, community involvement, adaptation to local climate conditions, and more.
Table 1.
Case studies of built THUs analyzed.
In particular, the Japanese examples can be considered best practices from both social and environmental perspectives. The settlement in Miharu Town exemplifies the benefits of the bottom-up approach. It demonstrates that involving local stakeholders in the design process of temporary houses can enhance their cultural adequacy and adaptation to the environment. The same holds for the Onagawa settlement, where an example of top-down approach effects was mitigated by the designer’s expertise. These two examples also present characteristics that enable CE practices at the end of their lifecycle. The open prefabrication system used in Miharu Town makes reuse and recycling more accessible. In the case of Onagawa, ISO containers and Plus Boxes will mainly be reused for relief purposes. Among the case studies, the Moroccan prototype designed by Shigeru Ban stands out as an example of the engagement of the displaced community in the construction process, which is facilitated by the use of low-technology design solutions. However, it is worth noting that some building components involved in this prototype may pose challenges to its overall sustainability. The Turkish, American, and Italian case studies highlight some of the issues related to the adoption of a purely top-down approach. In particular, the Turkish temporary settlement, despite its low construction cost due to the use of local prefabricated concrete panels, resulted in negative social and environmental effects. The Katrina Cottage shares some similarities with the MAP. They were both attempts to provide people with high-quality temporary houses. However, despite some positive feedback from occupants, the inflexible design, small dimensions, and low-quality building materials made them inadequate for long-term use.
3.2. Temporary Housing Unit Proposal: Requirements
The analysis of the literature regarding THUs and the previously constructed case studies permits the identification of the most common challenges affecting THUs. To overcome these challenges, it is essential to identify and list the requirements to be addressed during the design phase of THUs.
The starting point for this process has been the definition of “adequate housing” provided by UN Habitat [40]. It addresses the housing problem and outlines seven key requirements that a building must meet to be considered adequate. These requirements encompass the security of tenure, the availability of services, materials, facilities, and infrastructure, affordability, habitability, accessibility, location, and cultural adequacy. It is interesting to note that, despite these requirements being developed in times when sustainability was not a primary consideration, they are inherently linked to all three pillars of sustainability. In the case of temporary buildings for post-disaster scenarios, this list of requirements should be enhanced and detailed. Specifically, other fundamental requisites should be included, such as transportation, flexibility, and disassemblability. Bologna and Terpolilli [41] have expanded upon the requisites of temporary houses, adding flexibility, disassemblability, and transportability. These requirements are presented in Table 2, which also highlights sub-requirements for each. Furthermore, Table 2 connects each requirement to three areas of interest: environmental, economic, and social. This approach helps in understanding how these requirements can impact the sustainability of THUs.
Table 2.
Requirements of a temporary house and their relationships with sustainability pillars.
The availability of resources pertains to both the accessibility of resources and their potential for interchangeability. In other words, the project should rely on materials and components that are readily accessible in the area. Furthermore, the design should accommodate the interchange of materials based on their availability. This interchangeability is a crucial aspect that needs investigation during the design phase since it allows for the construction of the same design solution using different materials. This feature primarily affects the environmental and economic aspects of sustainability, as locally available resources reduce costs and emissions associated with transportation. Additionally, interchangeability enables the adaptation of the building to various scenarios.
Transportability is a central requirement for THUs. Given that THUs predominantly rely on prefabrication systems, these systems should be designed with principles such as lightweight construction, modular design, and optimization of the dimensions of building components. These features simplify transportation, enabling the use of standard means of transport without the need for specialized transport methods. Moreover, such building components facilitate the assembly and disassembly processes on-site, particularly in handling and lifting operations. Considering this requirement allows for an assessment of the environmental and economic impact of the temporary housing project.
As emerged from the study of the literature, the installation process holds significant importance in THUs. It is influenced by a combination of factors that must be considered to optimize costs and time and to engage the community in the process. The technology and prefabrication system used significantly impact the installation process. For instance, closed prefabrication systems expedite construction but do not allow for self-construction, resulting in higher costs. On the contrary, open prefabrication systems extend construction time but involve the community in the construction of THUs. The way the installation process is executed primarily affects the social and economic aspects of sustainability.
THU projects must address their potential impact on the environment. To minimize this impact, design strategies should include low embodied energy materials, dry construction techniques, and disassemblability. This approach makes it easier to restore the site used for the temporary settlement once the state of emergency has passed. This consideration not only pertains to environmental impact in terms of emissions and pollution but also encompasses the relationship that temporary housing establishes with its surroundings. This is a crucial aspect to address, as it contributes to the cultural adequacy of temporary houses. For these reasons, this requirement helps address the environmental and social dimensions of sustainability.
Building safety is a crucial aspect that must be considered, encompassing security and mechanical performance against external factors such as seismic events, high wind loads, fire, and more. Furthermore, materials used in temporary housing projects must be non-toxic and pose no harm to humans.
Lastly, quality of life, flexibility, and management are requirements primarily related to the operational phase of THUs. The first requirement involves analyzing the level of comfort that temporary houses can offer their occupants, considering factors such as thermal, hygrometric, acoustic, and lighting performance. As demonstrated in the literature, this requirement has not always been adequately addressed in previous projects. Quality of life is also influenced by the size of the THUs, as their dimensions should be tailored to the users. Furthermore, the temporary units should provide users with the ability to easily reconfigure the space, offering spatial flexibility [42]. This adaptability is crucial since the duration of occupancy in THUs can vary significantly. Another form of flexibility, known as technological flexibility, plays a central role in THUs. It enables the easy modification and replacement of technological components, extending their lifespan and maintaining the overall building’s performance. This aspect of flexibility, combined with disassemblability, is crucial for sustaining the building’s performance standards over its operational life. It also ensures the durability of the units, allowing them to be reused for emergency purposes or other applications once the initial emergency has passed. Quality of life, flexibility, and management are the only requirements that simultaneously impact all three pillars of sustainability.
The provided requirements have been instrumental in verifying the adherence to technological solutions within the analyzed case studies. To assess these case studies, a Boolean evaluation system has been employed, defined as follows:
- “X” is applied when a sub-requirement is met;
- Nothing is applied when a sub-requirement is not met.
Figure 13 reveals a specific trend in the design of THUs. It is mainly focused on a few key requirements. Notably, transportability, installation, and safety are those considered the most important. It is worth highlighting that none of the case studies completely neglect these core requisites. On the other hand, the factors of availability of resources, environmental compatibility, flexibility, and management do not receive frequent attention. This does not allow for addressing environmental and economic sustainability. Quality of life varies in its consideration across the case studies. Japanese examples, in particular, emphasize its importance, whereas in other cases, it is addressed only partially. In the proposal for the temporary housing unit presented in the next section, an effort to meet these requirements has been made. These requisites also served as a checklist used during the design phase to compare and validate design solutions based on the categorization of these requirements.
Figure 13.
Relevance to the requirements and sub-requirements of the selected case studies.
3.3. Temporary Housing Unit Proposal: Design
3.3.1. Module Design
The proposal for a new THU, as presented in this paper, is based on a modular and prefabricated system. The elementary component of this system is a module with dimensions of 2.50 m in width, 4.40 m in length, and a useful height of 3.25 m. Each module features a wooden frame structure (Figure 14) made of Glued Laminated Timber (GLT) elements with a standard section of 14 × 20 cm. Bolts and steel plates are used to connect the wooden elements.
Figure 14.
Module building components. (a) Module wooden structure and material used; (b) panel prefabricated system for the envelope and example of hempcrete block (authors’ drawings).
The system employed for the envelope is based on prefabricated panels. These consist of a wooden frame that encloses a layer of hempcrete blocks designed for non-load-bearing functions.
The panels are assembled off-site and are mounted and covered with both internal and external layers on-site. The internal layer is composed of fiberboards, while the external layer is made of an oriented strand board, specifically Type 4, suitable for wet conditions. These prefabricated panels have a thickness of 15 cm. The utilization of hempcrete blocks contributes to a reduction in the embodied energy of the prefabricated system. These blocks are created by mixing hemp shives with hydraulic lime, which serves as a binding agent. Life cycle assessments conducted on hempcrete blocks [43,44] reveal that the most impactful phase in their life cycle is the production of raw materials, with the production process of hydrated lime significantly affecting the environmental performance of the hempcrete blocks. Notably, hemp is considered a carbon-negative material as it absorbs CO2 during its growth. In terms of the operational phase, hempcrete blocks offer excellent thermal and acoustic insulation, along with hygrometric regulation [45], potentially positively affecting the building’s energy consumption. Regarding the end of life, hempcrete blocks can be recycled, although direct reuse may be challenging due to their arrangement in masonry using lime mortar, which would necessitate selective demolition activities. The floor and roof slabs consist of standard building components readily available in many countries. The floor slabs comprise two layers of oriented strand board, specifically Type 4, with a layer of Expanded Polystyrene (EPS) positioned in between them. To prevent any contact between the OSB and the ground, which could potentially cause damage, a thin corrugated steel sheet serves as protection (Figure 15). The roof slab follows a similar structure, with corrugated steel sheets playing a role in protecting the building from water, as they are sloped to allow water to flow effectively.
Figure 15.
Technical details of the slabs. (a) Floor slab; (b) roof slab (author’s drawings).
Concrete blocks serve as the foundations for each module, and the wooden frames are connected to these concrete blocks through the use of steel plates.
The module’s plan dimensions have been designed with a focus on flexibility, habitability, and transportability. To optimize furnish potential, enhance habitability, and improve comfort, a grid of 60 × 60 cm was employed. Regarding the module’s flexibility, the open prefabricated systems involved offer a high degree of flexibility, particularly in terms of technological flexibility. This means that each building component can be easily disassembled and accessed for maintenance purposes. According to Brand’s model of building layers [46], the prefabricated systems in the module’s design are kept separate, eliminating any interference between them. Therefore, removing the envelope panels to add space with one or more modules is straightforward, showcasing the module’s technological flexibility and its ability to facilitate special flexibility through the addition of modules.
The module has been primarily designed for on-site assembly (Figure 16), as it is based on open prefabrication systems intended to promote assisted self-construction involving the displaced community. To minimize the need for specialized skills during the assembly phases, an off-site preassembled module variation has been created. This variation includes a prefabricated bathroom with a surface area of 3.75 m2 and a prefabricated kitchen. It is ready for connection to the plumbing infrastructure. Transportability is relevant to the module. The module’s dimensions enable easy transportation using common means of transport (Figure 16). This not only makes transportation more affordable but also improves accessibility to areas affected by disasters, which are not always easy to reach.
Figure 16.
Module design. (a) Module variations: on-site assembly and services; (b) transportability (author’s drawings).
3.3.2. Temporary Housing Units Spatial Configurations
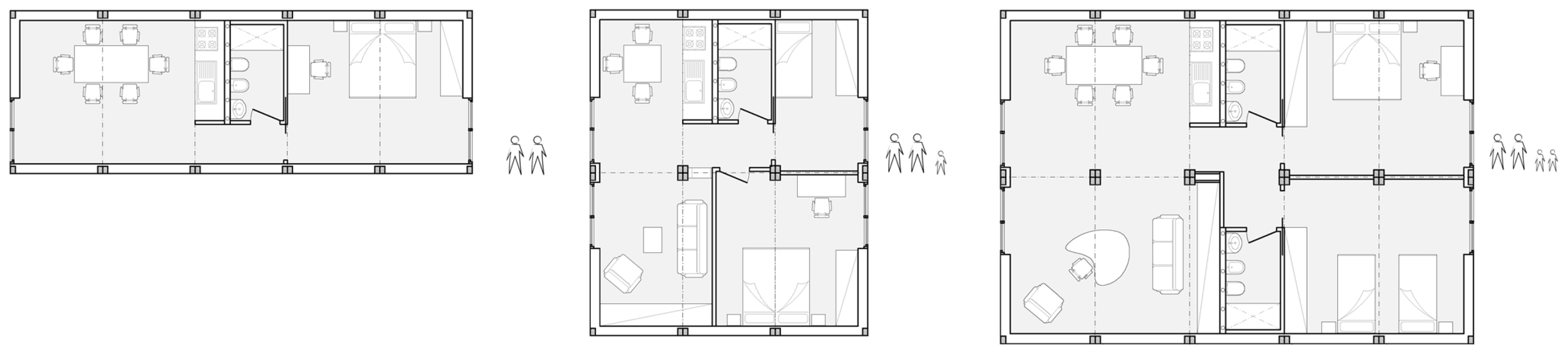
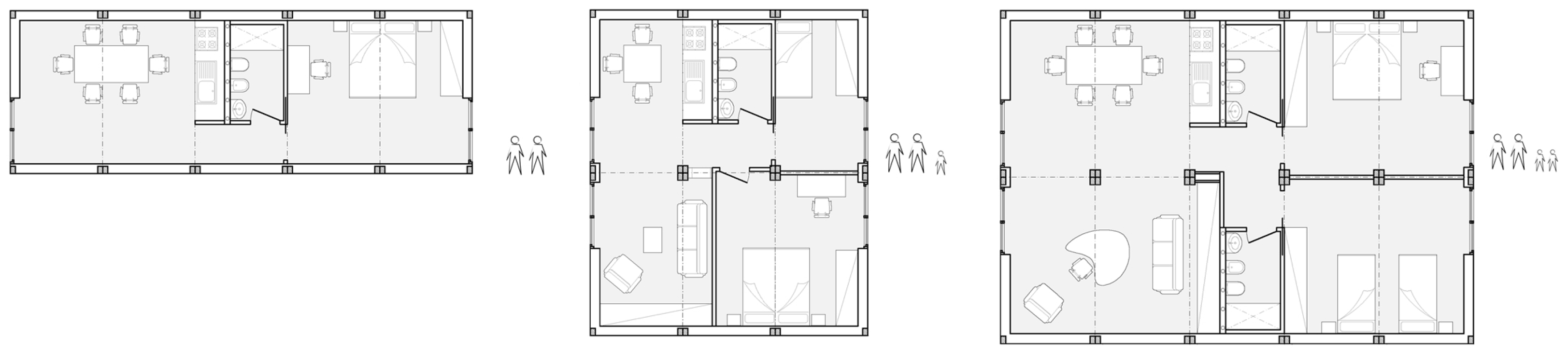
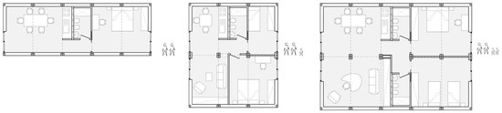
The modules are combined to create THUs. Depending on the number of occupants, various spatial configurations are generated. The smallest unit has a surface area of approximately 33 m2, resulting from the combination of three modules: one with services and two simple modules assembled on-site. This configuration allows for the creation of a single room and a living room with a kitchen (Figure 17). To fulfill diverse user needs, aside from the minimal unit, three additional configurations have been devised. These configurations are designed to accommodate groups of varying sizes (Figure 18).
Figure 17.
Elementary temporary housing unit, which is the result of the aggregation of three modules. (a) Plan; (b) axonometric view (author’s drawings).
Figure 18.
Variation of the temporary housing units (authors’ drawing).
Considering the configurations shown in Figure 18, the first on the left can accommodate a group of two people. The total surface area is approximately 55 m2, shared between a living room, a block with a bathroom and kitchen, and a double room. The second configuration is designed for a group of three people and has a total surface area of 66 m2. It includes two bedrooms, one single and one double, as well as a separate living room. The last variation is intended for groups of four people. This configuration features a surface area of about 110 m2, which is divided between two double bedrooms, two bathrooms, and an open space with a kitchen and living space. The surface area of the THUs has been determined based on Italian dimensional requirements for buildings. A single module covers approximately 9 m2, which aligns with the standard for single rooms in Italy and exceeds other European standards [47]. The height of each room is set at 2.70 m. Adhering to these standards ensures that occupants have an average surface area of about 27.5 m2 each, providing comfortable living space and avoiding overcrowding.
As depicted in Figure 18, the spatial flexibility of the temporary units is achieved through the addition of modules, which can follow two directions: that of the shorter side of the module or that of the longer. The first extension involves joining modules along their shorter sides, while the second extension involves joining modules along their longer sides. The maximum extension for the units is limited to 10 modules. However, the four variations presented represent the most common apartment typologies. In special cases, the units can be easily expanded following the same pattern to accommodate more people. The designed THUs are intended to be single-story houses, offering occupants private outdoor space. A possible urban configuration of these THUs has been developed (Figure 19 and Figure 20). It involves the setting up of urban areas identified according to parameters such as ownership, proximity to services, etc., in which, in a state of emergency, the THUs are arranged. The selected area should feature infrastructure such as hydric and electric grids, parking, and green spaces.
Figure 19.
Masterplan of the area (authors’ drawing).
Figure 20.
Section A-A′ (authors’ drawing).
4. Discussion
The preliminary proposal presented in this paper is designed following a set of requirements identified for THUs. These requirements were selected based on an analysis of existing literature on THUs and insights gained from various case studies.
The primary outcome, which defines the innovation presented in this paper, is the establishment of a requirement-based design for THUs aimed at achieving environmental, economic, and social sustainability. The definition of a set of requirements consents to guide the design phase through the accomplishment of specific targets. Additionally, it is widely acknowledged that the decisions made during the design phase of a building significantly influence the majority of its impacts [48]. Given that a building’s sustainability depends on various factors such as resource availability, local culture, building technologies, and labor, defining requirements serves as the foundational concept for THUs. Consequently, this concept can be adapted in diverse ways, utilizing different materials and components to create the most sustainable design based on the available resources and opportunities within the country where the THUs will be constructed.
The THU design proposal outlined in the paper represents one of the possible variations stemming from the primary concept developed based on specific requirements. Within this proposal, efforts have been directed toward crafting a prototype capable of leveraging biobased materials and incorporating low-technology design solutions. This approach aims to facilitate assisted self-construction methods and enable disassembly to promote reuse and recycling. This section discusses the materials, components, and technology utilized to meet these established requirements.
To meet the availability of resources requirement, easily accessible materials are employed. Specifically, Glued Laminated Timber (GLT) with a standard section of 14 × 20 cm is used for the structure to ensure availability and to avoid the production of specialized components, as suggested by the Miharu Town temporary houses. The other materials involved in the project have standard dimensions, such as OSB panels, fiberboards, EPS slabs, and corrugated steel sheets. These construction components, if available, are sourced from local distributors to stimulate the local market and are transported directly to the construction site. Interchangeability is of paramount importance in this regard, as if the technological systems specified in the proposal are unavailable or their availability is affected by time and distance, they can be replaced with readily available alternatives. For example, if GLT is unavailable, it can be substituted with other profiles, such as those made of steel. This increases the embodied energy of the THUs, but if steel is locally produced, it can be offset by lower costs and emissions resulting from transportation. It is important to note that interchangeability plays a crucial role in balancing the sustainability of the design solution, enabling a choice that ensures a good balance between economic, environmental, and social impacts. In particular, it frees building systems from material constraints. Regarding climate mitigation, the interchangeability requirement can have adverse effects, particularly when a low embodied energy material is substituted with one with higher embodied energy. However, in such cases, the replacement operation must be evaluated based on its overall sustainability.
The requirement of transportability has been addressed by using standard building components and limiting the dimensions of prefabricated assemblies. This allows for easy maneuvering of components in challenging scenarios, such as those following a disaster. Additionally, the module’s dimensions have been designed to ensure it can be transported using common means of transport.
The THUs are designed based on two different types of prefabrication: closed and open systems. The closed system is applied to the service block, a module containing a kitchen and a bathroom that arrives on-site already assembled. The other module follows an open prefabrication system and is fully assembled on-site. The simultaneous use of closed and open prefabrication systems, as suggested by the Onagawa case study, serves to expedite on-site construction, eliminating the need for skilled labor related to the systems. The open prefabrication system relies entirely on dry connection techniques, making assembly and disassembly of the building simpler. These disassembly operations facilitate the adoption of CE practices. In general, the installation process benefits from the use of low-technology solutions, which, in turn, engage disaster-affected communities in the construction of THUs. This not only generates positive social effects but also reduces overall costs.
The use of building components made from low embodied energy materials, such as wood, wood-based materials, and hemp, combined with the application of Design for Disassembly principles ensures that the proposal complies with the environmental compatibility requirement. Most of the materials involved in the process are bio-based. The only exceptions are the corrugated steel sheets used in roof and floor slabs, the EPS slabs, and the concrete foundations. Corrugated sheets are constructed from steel, which has high embodied energy. However, the sheets constitute a very small proportion, and at the end of their life, they can be reused or recycled. EPS slabs are manufactured from styrene, a natural gas and petroleum by-product that is entirely recyclable. Furthermore, EPS possesses advantageous properties, such as compressive strength, being lightweight, and having low thermal conductivity, which make it suitable for emergency buildings.
In terms of safety requirements, the use of GLT for the structure guarantees good mechanical strength and performance in seismic events. Some bio-based materials involved in the proposal, such as fibreboards and oriented strand boards, may contain formaldehyde, which is used in binder production. Formaldehyde is categorized as a Volatile Organic Compound (VOC). However, the amount of formaldehyde present is well below the minimum allowable limit. Consequently, the components used in the proposal ensure safety.
To meet the quality of life requirement, the temporary housing units were meticulously designed to provide the highest possible comfort conditions. This requirement encompasses both the technological and spatial aspects of the design. From a technological perspective, the use of prefabricated hemp panels ensures good acoustic, thermal, and hygrometric comfort. The size of the temporary units was determined based on Italian dimensional standards, which facilitate the creation of spacious and habitable living areas.
The high degree of technological flexibility produced by the Design for Disassembly approach followed in the design phase allows for easy expansion of the surface area of the units. This permits us to meet the needs of various groups of occupants.
Regarding the durability of building components, most materials involved have a good lifespan when properly maintained. The most vulnerable material might be the GLT, which, if left unprotected from the weather, can suffer significant damage.
To sum up, this preliminary proposal represents the output of a hybrid approach that incorporates elements from both top-down and bottom-up methodologies. This hybrid approach leverages the advantages of both approaches. It utilizes closed prefabrication systems, characteristic of top-down approaches, to reduce labor requirements and construction time. Simultaneously, it incorporates open prefabrication to involve the community in the construction process. Another important feature is the interchangeability that allows for material replacement based on local availability. This approach encourages local experts, including engineers, architects, and contractors, to select materials suitable for the specific location, thereby promoting sustainability. Despite the intriguing construction strategies highlighted in the current literature, certain approaches, like 3D printing, have not been considered in this paper. This omission stems from their divergence with the fundamental concepts emphasized here—specifically, the utilization of low embodied energy materials and low-tech solutions.
Lastly, some main weaknesses have been identified. First, it may not be suitable for scenarios where the available space for temporary sites is limited. These units are single-story structures, each with private open space, which requires ample room. To adapt to space-constrained situations, the development of a system capable of accommodating units in two- or three-story configurations could enhance the proposal’s suitability. Second, concerning the envelope of the temporary units, simplification of the hempcrete prefabricated panels is needed to streamline the installation process. Third, while the thermal, hygrometric, and acoustic properties of hemp are well documented in academic research, conducting specific tests to evaluate its effectiveness concerning the panel’s geometry could further enhance the proposal. In this context, some important parameters, including the orientation of the THU, the average temperature and moisture levels of the locations, etc., significantly influence thermal performance. Analyzing these factors allows for the identification of specific design solutions able to address these influences. Fourth, while the current foundation system demonstrates good mechanical strength and durability, it is advisable to explore and refine other foundation typologies, such as the ground screw foundation, to optimize this aspect. These points represent areas for further consideration and potential improvement in the proposal.
5. Conclusions
The preliminary proposal explained in this paper represents the initial findings of our ongoing research. These findings primarily stem from a review of the literature aimed at gathering insights into the sustainability of THUs and the essential requirements that should characterize their design. As a result, the design proposal presented in this paper is still in its initial stages and serves as an illustrative example of how the identified and listed requirements can be applied. Therefore, several aspects require further investigation. Future developments (Figure 21) of this research will focus on conducting in-depth studies to address the limitations that emerged from the literature.
Figure 21.
Future developments. Diagram (authors’ drawing).
To assess the sustainability of the THUs, the proposed design solution can be subjected to validation using the value analysis methodology. This approach will aid in identifying the most suitable building components based on a defined set of parameters and component values. It is important to note that component values may vary from one country to another due to numerous influencing factors. This methodology permits us to choose the design solution that ensures the best economic sustainability based on the available resources.
Using a Building Information Modeling (BIM) model for the THUs holds the potential for significant advantages, particularly in the context of applying CE practices. By quantifying and evaluating the building components within each temporary settlement, it is possible to gain insights into the reuse potential of these components once a temporary settlement is disassembled. In particular, implementing a BIM model with a high level of detail allows for easy forecasting of the condition that each building component will experience after assembly, facilitating the generation of various reuse or recycling scenarios. A comprehensive Life Cycle Assessment (LCA) of the THU design proposal will be conducted to evaluate its environmental impact thoroughly. LCA will also be employed to compare and assess the environmental impact of different material variations in the THU proposal, considering the locally available resources. Moreover, it could provide information about the long-term usage of the THU. The research will also encompass aspects related to user comfort and well-being. It is important to note that all of these future developments will be based on a contextualized case study, which is supposed to place the THU proposal in a precise country.
Author Contributions
Conceptualization, G.M. and G.S.; methodology, G.M. and G.S.; writing—original draft preparation, G.M. and G.S.; writing—review and editing, G.M. and G.S.; visualization, G.M. and G.S.; supervision, G.S. All authors have read and agreed to the published version of the manuscript.
Funding
This research received no external funding.
Data Availability Statement
Data are contained within the article.
Conflicts of Interest
The authors declare no conflict of interest.
References
- UNISDR. Terminology on Disaster Risk Reduction; UNISDR: New York, NY, USA, 2009; Available online: https://www.undrr.org/publication/2009-unisdr-terminology-disaster-risk-reduction (accessed on 15 May 2023).
- CRED. 2022 Disasters in Numbers; CRED: Brussels, Belgium, 2023; Available online: https://cred.be/sites/default/files/2022_EMDAT_report.pdf (accessed on 15 May 2023).
- What Is a Disaster?|IFRC. Available online: https://www.ifrc.org/our-work/disasters-climate-and-crises/what-disaster (accessed on 18 January 2023).
- IFRC. World Disasters Report 2022. Trust, Equity an Local Actions. Lessons from the COVID-19 Pandemic to Avert the Next Global Crisis; IFRC: Geneva, Switzerland, 2023. [Google Scholar]
- European Environment Agency. Mapping the Impacts of Natural Hazards and Technological Accidents in Europe: An Overview of the Last Decade; Publications Office: Luxembourg, 2010. Available online: https://data.europa.eu/doi/10.2800/62638 (accessed on 20 February 2023).
- Atmaca, N. Life-cycle assessment of post-disaster temporary housing. Build. Res. Inf. 2017, 45, 524–538. [Google Scholar] [CrossRef]
- Perrucci, D.; Baroud, H. A Review of Temporary Housing Management Modeling: Trends in Design Strategies, Optimization Models, and Decision-Making Methods. Sustainability 2020, 12, 10388. [Google Scholar] [CrossRef]
- Caramaschi, S.; Coppola, A. Post-disaster ruins: The old, the new and the temporary. In The New Urban Ruins Vacancy, Urban Politics and International Experiments in the Post-Crisis City; O’Callaghan, C., Di Feliciantonio, C., Eds.; Policy Press University of Bristol: Bristol, UK, 2021; pp. 125–143. [Google Scholar]
- UNDRO. Shelter after Disaster: Guidelines for Assistance; United Nations: New York, NY, USA, 1982; Available online: http://digitallibrary.un.org/record/48456 (accessed on 15 May 2023).
- Pezzica, C.; Cutini, V.; Bleil de Souza, C. Mind the gap: State of the art on decision-making related to post-disaster housing assistance. Int. J. Disaster Risk Reduct. 2021, 53, 101975. [Google Scholar] [CrossRef]
- Quarantelli, E.L. Patterns of sheltering and housing in US disasters. Disaster Prev. Manag. Int. J. 1995, 4, 43–53. [Google Scholar] [CrossRef]
- Hany Abulnour, A. The post-disaster temporary dwelling: Fundamentals of provision, design and construction. HBRC J. 2014, 10, 10–24. [Google Scholar] [CrossRef]
- Johnson, C. Impacts of prefabricated temporary housing after disasters: 1999 earthquakes in Turkey. Habitat Int. 2007, 31, 36–52. [Google Scholar] [CrossRef]
- Arslan, H.; Cosgun, N. Reuse and recycle potentials of the temporary houses after occupancy: Example of Duzce, Turkey. Build. Environ. 2008, 43, 702–709. [Google Scholar] [CrossRef]
- Félix, D.; Branco, J.M.; Feio, A. Temporary housing after disasters: A state of the art survey. Habitat Int. 2013, 40, 136–141. [Google Scholar] [CrossRef]
- Sukhwani, V.; Napitupulu, H.; Jingnan, D.; Yamaji, M.; Shaw, R. Enhancing cultural adequacy in post-disaster temporary housing. Prog. Disaster Sci. 2021, 11, 100186. [Google Scholar] [CrossRef]
- Paparella, R.; Caini, M. Sustainable Design of Temporary Buildings in Emergency Situations. Sustainability 2022, 14, 8010. [Google Scholar] [CrossRef]
- Bologna, R. Operational dimension of post-disaster housing temporality and technical control tools. TECHNE J. Technol. Archit. Environ. 2020, 20, 213–221. [Google Scholar]
- Félix, D.; Monteiro, D.; Branco, J.M.; Bologna, R.; Feio, A. The role of temporary accommodation buildings for post-disaster housing reconstruction. J. Hous. Built Environ. 2015, 30, 683–699. [Google Scholar] [CrossRef]
- Bertoldini, M.; Campioli, A.; Ferrari, B.; Grandi, G.; Guastaroba, E.; Lavagna, M.; Zanelli, A. Progettare Oltre L’emergenza. Spazi e Tecniche per L’abitare Temporaneo; Il Sole24 Ore: Milan, Italy, 2009. [Google Scholar]
- Crowther, P. Design for Disassembly: An Architectural Strategy. In Design for Sustainability. Proceedings of the 1998 QUT Winter Colloquium 1998-07-01; Ganis, M., Ed.; QUT Publications: Brisbane, QLD, Australia, 1999; pp. 27–33. [Google Scholar]
- Guy, B.; Ciarimboli, N. DfD. Design for Disassembly in the Built Environment: A Guide to Closed-Loop Design and Building; Pennsylvania State University: Philadelphia, PA, USA, 2007. [Google Scholar]
- Durmisevic, E.; Yeang, K. Designing for Disassembly (DfD). Archit. Des. 2009, 79, 134–137. [Google Scholar] [CrossRef]
- Eberhardt, L.C.M.; Birkved, M.; Birgisdottir, H. Building design and construction strategies for a circular economy. Archit. Eng. Des. Manag. 2022, 18, 93–113. [Google Scholar] [CrossRef]
- UNECE. The Geneva UN Charter on Sustainable Housing. 2015. Available online: https://unece.org/DAM/hlm/charter/Language_versions/ENG_Geneva_UN_Charter.pdf (accessed on 25 May 2023).
- D’Auria, A. Abitare Nell’emergenza: Progettare per il Post-Disastro; Edifir: Firenze, Italy, 2014. [Google Scholar]
- Alfasi, N.; Portugali, J. Planning Just-in-Time versus planning Just-in-Case. Cities 2004, 21, 29–39. [Google Scholar] [CrossRef]
- Cascone, S.M.; Caporlingua, M.; Russo, G.; Tomasello, N. La “prefabbricazione per l’emergenza”: Excursus storico dalla nascita alle moderne applicazioni. In Proceedings of the VII Convegno Internazionale “Storia dell’Ingegneria”, Napoli, Italy, 23–24 April 2018; D’Agostino, S., Fabricatore, G., Eds.; Cuzzolin: Naples, Italy, 2018. [Google Scholar]
- Ottenhaus, L.M.; Yan, Z.; Brandner, R.; Leardini, P.; Fink, G.; Jockwer, R. Design for adaptability, disassembly and reuse—A review of reversible timber connection systems. Constr. Build. Mater. 2023, 400, 132823. [Google Scholar] [CrossRef]
- Maracchini, G.; D’Orazio, M. Improving the livability of lightweight emergency architectures: A numerical investigation on a novel reinforced-EPS based construction system. Build. Environ. 2022, 208, 108601. [Google Scholar] [CrossRef]
- IFRC. International Federation of Red Cross and Red Crescent Societies, Geneva. 2013. Available online: https://primarysources.brillonline.com/browse/human-rights-documents-online/international-federation-of-red-cross-and-red-crescent-societies-geneva;hrdhrd98132015012 (accessed on 18 January 2023).
- Hosseini, S.M.A.; Farahzadi, L.; Pons, O. Assessing the sustainability index of different post-disaster temporary housing unit configuration types. J. Build. Eng. 2021, 42, 102806. [Google Scholar] [CrossRef]
- Ribera, F.; Regno, R.D.; Cucco, P. New frontiers of temporary buildings. Passive housing modules. AGATHÓN Int. J. Archit. Art Des. 2018, 4, 159–168. [Google Scholar]
- Maly, E.; Kondo, T. From Temporary to Permanent: Mississippi Cottages after Hurricane Katrina. J. Disaster Res. 2013, 8, 495–507. [Google Scholar] [CrossRef]
- Maly, E.; Iwata, T. The Evolution of Localized Housing Recovery in Japan. IOP Conf. Ser. Earth Environ. Sci. 2019, 273, 012055. [Google Scholar] [CrossRef]
- Moroni, S.; De Franco, A.; Pacchi, C.; Chiffi, D.; Curci, F. Planning and meta-planning to cope with disruptive events: What can be learnt from the institutional response to the COVID-19 pandemic in Italy. City Territ. Archit. 2023, 10, 29. [Google Scholar] [CrossRef]
- Toti, A.M.P. L’Aquila, frammenti di comunità Ri-costruzione e tras-mutazione sociale: Uno sguardo sociologico. In Diverse City Consiglio Naz Archit Pianificatori Paesaggisti e Conservatori; Marata, A., Galdini, R., Eds.; CNAPPC: Rome, Italy, 2019; pp. 427–438. [Google Scholar]
- Ban, S. Shigeru Ban: Humanitarian Architecture; Aspen Art Museum: Aspen, CO, USA, 2014. [Google Scholar]
- Hikone, S.; Tokubuchi, M. Temporary Multi-storey Container House after Earthquake and Tsunami Disaster on March 11, 2011. IABSE Symp. Rep. 2014, 102, 1699–1706. [Google Scholar]
- UN. The Right to Adequate Housing. 2000. Available online: https://brill.com/view/book/edcoll/9789004502758/B9789004502758_s044.xml (accessed on 10 June 2023).
- Bologna, R.; Terpolilli, C. Emergenza del Progetto: Progetto Dell’emergenza: Architetture Con-Temporaneità; F. Motta Editore: Milan, Italy, 2005. [Google Scholar]
- Montalbano, G.; Santi, G. Lightweight Technologies in Sustainable Architecture: The Importance of Connections in Disassembly. J. Civ. Eng. Archit. 2023, 17, 91–101. [Google Scholar]
- Arrigoni, A.; Pelosato, R.; Melià, P.; Ruggieri, G.; Sabbadini, S.; Dotelli, G. Life cycle assessment of natural building materials: The role of carbonation, mixture components and transport in the environmental impacts of hempcrete blocks. J. Clean. Prod. 2017, 149, 1051–1061. [Google Scholar] [CrossRef]
- Di Capua, S.E.; Paolotti, L.; Moretti, E.; Rocchi, L.; Boggia, A. Evaluation of the Environmental Sustainability of Hemp as a Building Material, through Life Cycle Assessment. Environ. Clim. Technol. 2021, 25, 1215–1228. [Google Scholar] [CrossRef]
- Lawrence, M.; Fodde, E.; Paine, K.; Walker, P. Hygrothermal Performance of an Experimental Hemp-Lime Building. Key Eng. Mater. 2012, 517, 413–421. [Google Scholar] [CrossRef]
- Brand, S. How Buildings Learn: What Happens after They’re Built; Penguin Books: New York, NY, USA, 1995. [Google Scholar]
- Appolloni, L.; D’Alessandro, D. Housing Spaces in Nine European Countries: A Comparison of Dimensional Requirements. Int. J. Environ. Res. Public Health 2021, 18, 4278. [Google Scholar] [CrossRef]
- Cottafava, D.; Ritzen, M. Circularity indicator for residential buildings: Addressing the gap between embodied impacts and design aspects. Resour. Conserv. Recycl. 2021, 164, 105120. [Google Scholar] [CrossRef]
Disclaimer/Publisher’s Note: The statements, opinions and data contained in all publications are solely those of the individual author(s) and contributor(s) and not of MDPI and/or the editor(s). MDPI and/or the editor(s) disclaim responsibility for any injury to people or property resulting from any ideas, methods, instructions or products referred to in the content. |
© 2023 by the authors. Licensee MDPI, Basel, Switzerland. This article is an open access article distributed under the terms and conditions of the Creative Commons Attribution (CC BY) license (https://creativecommons.org/licenses/by/4.0/).




















