Fatigue Life Prediction of High Strength Steel with Pitting Corrosion under Three-Point Bending Load
Abstract
:1. Introduction
2. Materials and Methods
2.1. Equivalent Surface Defect Model
2.2. Fatigue Life Prediction Model
2.2.1. Prediction of Crack Initiation Life
2.2.2. Prediction of Crack Propagation Life
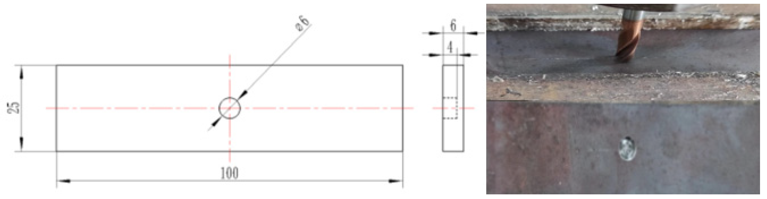
2.3. Materials and Specimens
2.4. Three-Point Bending Static Test
2.5. Three-Point Bending Fatigue Test
3. Results and Discussion
3.1. Validation of Equivalent Surface Defect Model
3.2. Validation of Fatigue Life Prediction Model
3.2.1. Life Crack Initiation Life Ni
3.2.2. Life Crack Initiation Life Np
4. Conclusions
- (1)
- The variation of volume loss rate has a significant effect on fatigue life. A small increment in the volume loss rate can reduce the fatigue life substantially. Under the same stress level, the three-point bending fatigue life of DH36 steel decreases with the increase in volume loss rate. When the volume loss rate reaches 2.68%, the fatigue life decreases by more than 50%.
- (2)
- The influence of the pitting hole notch effect and size effect on fatigue life was quantified by volume loss rate and the pitting depth-to-diameter ratio, and an equivalent surface defect model was proposed. The model was validated using the Bayesian method, and the results were in good agreement that the equivalent surface defect model can be used to measure the influence of the notch effect and size effect on fatigue life.
- (3)
- Based on energy theory and slip band dislocation theory, an equivalent surface defect model is combined to predict crack initiation life. Compared with the experimental results, the average relative error is 10.37%, and the maximum relative errors are 15.91% and 21.84%, respectively. The reliability of the fatigue life prediction model at the crack initiation stage is verified.
- (4)
- Based on the Paris fatigue life prediction model, the crack propagation life is predicted, where the crack angle is adopted as a variable. Compared with the experimental results, the average error is 15.13%, and the maximum relative error is 22.16%. The reliability of the fatigue life prediction model in the crack extension stage is verified.
Author Contributions
Funding
Data Availability Statement
Conflicts of Interest
References
- Hu, Y.; Wu, S.; Withers, P.J.; Cao, H.; Chen, P.; Zhang, Y. Corrosion fatigue lifetime assessment of high-speed railway axle EA4T steel with artificial scratch. Eng. Fract. Mech. 2021, 245, 107588. [Google Scholar] [CrossRef]
- Katona, R.; Karasz, E.; Schaller, R. A Review of the Governing Factors in Pit-to-Crack Transitions of Metallic Structures. Corrosion 2022, 79, 72–96. [Google Scholar] [CrossRef] [PubMed]
- Seiler, M.; Linse, T.; Hantschke, P.; Kästner, M. An efficient phase-field model for fatigue fracture in ductile materials. Eng. Fract. Mech. 2020, 224, 106807. [Google Scholar] [CrossRef]
- Chamos, A.N.; Pantelakis, S.G.; Spiliadis, V. Fatigue behaviour of bare and pre-corroded magnesium alloy AZ31. Mater. Des. 2019, 31, 4130–4137. [Google Scholar] [CrossRef]
- Ma, Y.; Guo, Z.; Wang, L.; Zhang, J. Probabilistic Life Prediction for Reinforced Concrete Structures Subjected to Seasonal Corrosion-Fatigue Damage. J. Struct. Eng. 2020, 146, 04020117. [Google Scholar] [CrossRef]
- Zhixin, Z.; Xun, X.; Weiping, H.; Qingchun, M. Fatigue life prediction of aluminum alloy with pre-corrosion damage based on damage mechanics. J. Beijing Univ. Aeronaut. Astronaut. 2021, 47, 2434–2441. [Google Scholar]
- Huihui, X.; Ni, A.; Shengchuan, W.; Zhao, L.; Zhao, S.; Wei, W.; Zhiyong, L.; Guozheng, K. Research progress on prediction models for corrosion fatigue life of metal structural materials. Acta Mech. Solid Sin. 2023, 44, 1–33. [Google Scholar]
- Hajjioui, E.A.; Bouchaâla, K.; Faqir, M.; Essadiqi, E. A review of manufacturing processes, mechanical properties and precipitations for aluminum lithium alloys used in aeronautic applications. Heliyon 2022, 9, e12565. [Google Scholar] [CrossRef]
- Jiradilok, P.; Wang, Y.; Nagai, K.; Matsumoto, K. Development of discrete meso-scale bond model for corrosion damage at steel-concrete interface based on tests with/without concrete damage. Constr. Build. Mater. 2020, 236, 117615. [Google Scholar] [CrossRef]
- Fernandez, I.; Bairán, J.M.; Marí, A.R. Mechanical model to evaluate steel reinforcement corrosion effects on σ–ε and fatigue curves. Experimental calibration and validation. Eng. Struct. 2016, 118, 320–333. [Google Scholar] [CrossRef]
- Xu, L.; Yu, X.; Li, H.; Zhou, S. Fatigue life prediction of aviation aluminium alloy based on quantitative pre-corrosion damage analysis. Trans. Nonferrous Met. Soc. China 2017, 27, 1353–1362. [Google Scholar] [CrossRef]
- Rocha, M.; Brühwiler, E.; Nussbaumer, A. Microstructural influence on the scatter in the fatigue life of steel reinforcement bars. Int. J. Fatigue 2015, 75, 205–212. [Google Scholar] [CrossRef]
- Cao, W.; Wang, Y.; Zhou, P.; Yang, X.; Wang, K.; Pang, B.; Chi, R.; Su, Z. Microstructural material characterization of hypervelocity-impact-induced pitting damage. Int. J. Mech. Sci. 2019, 163, 105097. [Google Scholar] [CrossRef]
- Wang, R.; Liu, H.; Hu, D.; Li, D.; Mao, J. Evaluation of notch size effect on LCF life of TA19 specimens based on the stress gradient modified critical distance method. Fatigue Fract. Eng. Mater. Struct. 2018, 41, 1794–1809. [Google Scholar] [CrossRef]
- Liao, D.; Zhu, S.; Correia, J.A.F.O.; De Jesus, A.M.P.; Berto, F. Recent advances on notch effects in metal fatigue: A review. Fatigue Fract. Eng. Mater. Struct. 2020, 43, 637–659. [Google Scholar] [CrossRef]
- Ai, Y.; Zhu, S.; Liao, D.; José, A.F.O. Correia; Jesus; Behrooz Keshtegar. Probabilistic modelling of notch fatigue and size effect of components using highly stressed volume approach. Int. J. Fatigue 2019, 127, 110–119. [Google Scholar] [CrossRef]
- Arooran, S.; Jayantha, K. An advanced experimental investigation of size effect on flexural fatigue behaviour of cement-bound granular materials. Int. J. Pavement Eng. 2022, 1–20. [Google Scholar] [CrossRef]
- Pegues, J.; Roach, M.; Scott Williamson, R.; Shamsaei, N. Surface roughness effects on the fatigue strength of additively manufactured Ti-6Al-4V. Int. J. Fatigue 2018, 116, 543–552. [Google Scholar] [CrossRef]
- Wang, J.; Zhang, Y.; Sun, Q.; Liu, S.; Shi, B.; Lu, H. Giga-fatigue life prediction of FV520B-I with surface roughness. Mater. Des. 2016, 89, 1028–1034. [Google Scholar] [CrossRef]
- Alves, A.S.F.; Sampayo, L.M.C.M.V.; Correia, J.A.F.O.; De Jesus, A.M.P.; Moreira, P.M.G.P.; Tavares, P.J.S. Fatigue Life Prediction Based on Crack Growth Analysis Using an Equivalent Initial Flaw Size Model: Application to a Notched Geometry. Procedia Eng. 2015, 114, 730–737. [Google Scholar] [CrossRef]
- Tanaka, K.; Mura, T. A Dislocation Model for Fatigue Crack Initiation. J. Appl. Mech. 1981, 48, 97–103. [Google Scholar] [CrossRef]
- Tanaka, K.; Mura, T. A theory of fatigue crack initiation at inclusions. Metall. Trans. A 1982, 13, 117–123. [Google Scholar] [CrossRef]
- Sobieck, T.; Atadero, R.A.; Mahmoud, H.N. Fatigue Crack Propagation of Notched Steel Rebar in RC Beams Repaired with Externally Bonded CFRP. J. Compos. Constr. 2015, 19, 04014076. [Google Scholar] [CrossRef]
- Li, H.; Zhang, J.; Wu, S.; Zhang, H.; Fu, Y. Corrosion fatigue mechanism and life prediction of railway axle EA4T steel exposed to artificial rainwater. Eng. Fail. Anal. 2022, 138, 106319. [Google Scholar] [CrossRef]
- GB/T 232-2010; Bending Test Methods for Metallic Materials. Wang Ping, Liu Weiping, Dong Li, Ren Dandan, Gao Yifei; Standardization Administration of China: Beijing, China, 2010.
- Zhang, Q.; Yang, H.; Zeng, H.; Liu, K.; Huang, Y. Ultimate strength assessment of hull structural plates with general corrosion based on fractal theory. Ocean Eng. 2022, 245, 110417. [Google Scholar]
- Haghdadi, N.; Laleh, M.; Moyle, M.; Primig, S. Additive manufacturing of steels: A review of achievements and challenges. J. Mater. Sci. 2020, 56, 64–107. [Google Scholar] [CrossRef]
- D7615/D7615M−23; Standard Practice for Open-Hole Fatigue Response of Polymer Matrix Composite Laminates. Subcommittee D30.05 on Structural Test Methods; ASTM: West Conshohocken, PA, USA, 2023.
- Yang, J.; He, J.; Guan, X.; Wang, D.; Chen, H.; Zhang, W.; Liu, Y. A probabilistic crack size quantification method using in-situ Lamb wave test and Bayesian updating. Mech. Syst. Signal Process. 2016, 78, 118–133. [Google Scholar] [CrossRef]
- Liu, S.; Shin, Y.C. Additive manufacturing of Ti6Al4V alloy: A review. Mater. Des. 2019, 164, 107552. [Google Scholar] [CrossRef]












| Element | % | Element | % | Element | % |
|---|---|---|---|---|---|
| C | 0.14 | Als | 0.039 | Ceq | 0.36 |
| Si | 0.21 | Nb | 0.012 | Mo | 0.007 |
| Mn | 1.19 | Cr | 0.05 | V | 0.003 |
| S | 0.003 | Ni | 0.02 | Ti | 0.011 |
| P | 0.014 | Cu | 0.05 |
| Specimen Index | Pitting Hole | ||
|---|---|---|---|
| Diameter d (mm) | Depth h (mm) | (%) | |
| 0 | 0 | 0 | |
| 2 | 4 | 0.168 | |
| 4 | 4 | 0.670 | |
| 6 | 2 | 0.754 | |
| 6 | 3 | 1.131 | |
| 6 | 4 | 1.508 | |
| 6 | 5 | 1.885 | |
| 8 | 4 | 2.681 | |
| Specimen | ||||
|---|---|---|---|---|
| Load (kN) | 17.1 | 15.5 | 14.2 | 15.0 |
| Load (kN) | 14.0 | 13.0 | 12.6 | 11.5 |
| Specimen Index | Maximum Load (kN) | Fatigue Life N (Cycle) | Crack Initiation Life (Cycle) |
|---|---|---|---|
| 10.9 | 91,035 | 68,276 | |
| 12.4 | 41,218 | 34,072 | |
| 14.0 | 25,291 | 20,175 | |
| 9.9 | 77,021 | 58,536 | |
| 11.4 | 35,987 | 29,116 | |
| 12.8 | 19,211 | 15,177 | |
| 10.5 | 79,196 | 62,565 | |
| 12.0 | 38,401 | 31,265 | |
| 13.5 | 21,132 | 16,694 | |
| 9.8 | 68,781 | 53,649 | |
| 11.2 | 31,025 | 24,197 | |
| 12.6 | 16,445 | 12,745 | |
| 9.1 | 68,218 | 52,528 | |
| 10.4 | 25,169 | 19,124 | |
| 11.7 | 13,978 | 10,484 | |
| 8.8 | 59,005 | 43,075 | |
| 10.1 | 19,256 | 14,311 | |
| 11.3 | 12,391 | 8922 | |
| 8.1 | 43,836 | 31,225 | |
| 9.2 | 20,125 | 15,036 | |
| 10.4 | 10,018 | 7013 |
| Specimen No. | Observation Times | Extension Angle (°) | Life Percentage (%) |
|---|---|---|---|
| 1 | 6.77 | 82.9 | |
| 2 | 7.21 | 85.4 | |
| 3 | 7.98 | 87.8 | |
| 4 | 9.15 | 90.2 | |
| 5 | 12.11 | 92.7 | |
| 6 | 17.82 | 95.1 | |
| 7 | 25.41 | 98.6 | |
| 8 | 79.23 | 100 | |
| 1 | 6.96 | 80.7 | |
| 2 | 7.38 | 83.5 | |
| 3 | 8.91 | 86.3 | |
| 4 | 10.77 | 89.0 | |
| 5 | 13.32 | 91.8 | |
| 6 | 18.49 | 94.6 | |
| 7 | 25.93 | 97.9 | |
| 8 | 76.83 | 100 | |
| 1 | 5.59 | 78.2 | |
| 2 | 5.98 | 80.8 | |
| 3 | 6.81 | 84.6 | |
| 4 | 7.93 | 88.5 | |
| 5 | 9.15 | 92.3 | |
| 6 | 13.38 | 96.2 | |
| 7 | 52.12 | 100 | |
| 1 | 6.34 | 76.9 | |
| 2 | 6.65 | 80.1 | |
| 3 | 7.75 | 83.3 | |
| 4 | 8.91 | 86.5 | |
| 5 | 11.01 | 89.7 | |
| 6 | 13.55 | 92.9 | |
| 7 | 18.11 | 96.1 | |
| 8 | 64.10 | 100 | |
| 1 | 8.04 | 75.3 | |
| 2 | 8.61 | 79.2 | |
| 3 | 9.45 | 83.1 | |
| 4 | 11.37 | 87.1 | |
| 5 | 14.29 | 91.1 | |
| 6 | 19.92 | 95.1 | |
| 7 | 27.96 | 97.0 | |
| 8 | 70.25 | 100 | |
| 1 | 8.06 | 73.4 | |
| 2 | 8.64 | 77.0 | |
| 3 | 10.70 | 81.6 | |
| 4 | 13.74 | 85.3 | |
| 5 | 18.27 | 89.9 | |
| 6 | 25.54 | 93.5 | |
| 7 | 36.45 | 97.1 | |
| 8 | 73.78 | 100 | |
| 1 | 8.99 | 72.9 | |
| 2 | 9.98 | 77.5 | |
| 3 | 11.55 | 82.0 | |
| 4 | 14.52 | 86.6 | |
| 5 | 18.74 | 91.1 | |
| 6 | 23.93 | 95.9 | |
| 7 | 62.44 | 100 |
| Specimen | (×10−8) | Predicted Results (Cycles) | Experimental Results (Cycles) | Relative Error (%) |
|---|---|---|---|---|
| 1.724 | 76,398 | 68,276 | 11.90 | |
| 2.842 | 64,160 | 58,536 | 9.61 | |
| 3.448 | 67,388 | 62,565 | 7.71 | |
| 4.099 | 52,443 | 53,649 | 2.25 | |
| 4.878 | 54,195 | 52,528 | 3.17 | |
| 5.816 | 36,192 | 43,075 | 15.91 | |
| 9.754 | 34,403 | 31,225 | 10.18 | |
| 1.724 | 24,347 | 20,175 | 21.84 | |
| 2.842 | 13,693 | 15,177 | 9.76 | |
| 3.448 | 13,968 | 16,694 | 16.33 | |
| 4.099 | 11,512 | 12,745 | 9.67 | |
| 4.878 | 11,162 | 10,484 | 6.47 | |
| 5.816 | 8538 | 8922 | 4.3 | |
| 9.754 | 8144 | 7013 | 16.13 |
| Specimen | Predicted Results (Cycles) | Experimental Results (Cycles) | Relative Error (%) |
|---|---|---|---|
| 4191 | 5029 | 16.67 | |
| 5766 | 6190 | 6.85 | |
| 8443 | 6912 | 22.16 | |
| 6753 | 5957 | 13.36 | |
| 5878 | 4983 | 17.96 | |
| 5433 | 4564 | 19.04 | |
| 4171 | 4629 | 9.89 |
Disclaimer/Publisher’s Note: The statements, opinions and data contained in all publications are solely those of the individual author(s) and contributor(s) and not of MDPI and/or the editor(s). MDPI and/or the editor(s) disclaim responsibility for any injury to people or property resulting from any ideas, methods, instructions or products referred to in the content. |
© 2023 by the authors. Licensee MDPI, Basel, Switzerland. This article is an open access article distributed under the terms and conditions of the Creative Commons Attribution (CC BY) license (https://creativecommons.org/licenses/by/4.0/).
Share and Cite
Liu, X.; Yan, B.; Sun, H. Fatigue Life Prediction of High Strength Steel with Pitting Corrosion under Three-Point Bending Load. Metals 2023, 13, 1839. https://doi.org/10.3390/met13111839
Liu X, Yan B, Sun H. Fatigue Life Prediction of High Strength Steel with Pitting Corrosion under Three-Point Bending Load. Metals. 2023; 13(11):1839. https://doi.org/10.3390/met13111839
Chicago/Turabian StyleLiu, Xueshu, Bingrong Yan, and Hongtu Sun. 2023. "Fatigue Life Prediction of High Strength Steel with Pitting Corrosion under Three-Point Bending Load" Metals 13, no. 11: 1839. https://doi.org/10.3390/met13111839
APA StyleLiu, X., Yan, B., & Sun, H. (2023). Fatigue Life Prediction of High Strength Steel with Pitting Corrosion under Three-Point Bending Load. Metals, 13(11), 1839. https://doi.org/10.3390/met13111839
