Influence of Airfoil Curvature and Blade Angle on Vertical Axis Hydraulic Turbine Performance in Low Flow Conditions
Abstract
1. Introduction
2. The Model and Methods
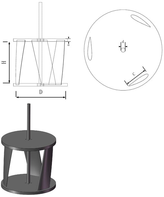
2.1. The Vertical Axis Turbine Model
2.2. Methods
2.3. Mesh Independence Verification
3. Results and Discussions
3.1. The Influence of Airfoil Curvature and Blade Twist on Energy Conversion Efficiency
3.2. Analysis of the Effects of Airfoil Curvature and Blade Twist on the Hydrokinetic Performance of Turbines
3.3. Analysis of Self-Starting Performance of Vertical Axis Turbines
4. Experimental Validation and Analysis
5. Conclusions
Author Contributions
Funding
Data Availability Statement
Conflicts of Interest
Nomenclature
| TSR | Tip speed ratio ( R/V) |
| H | Height of turbine [m] |
| D | Diameter of turbine [m] |
| R | Radius of turbine [m] |
| C | Chord length [m] |
| A | Swept area () [] |
| Power coefficient | |
| Maximum power coefficient in unit period | |
| Minimum power coefficient in unit period | |
| Torque coefficient | |
| Rotational angular velocity [rad/s] | |
| Solidity ratio | |
| V | Free stream water velocity [m/s] |
| Incoming flow velocity [m/s] | |
| Density of water [kg/] | |
| VAHT | Vertical axis hydrokinetic turbine |
| Blade helicity | |
| n | Number of blades |
| Projection angle [] | |
| Pitch angle [] | |
| T | Total torque |
| load torque | |
| Average power coefficient | |
| Instability of power coefficient | |
| GCI | Grid Convergence Index |
| CFD | Computational fluid dynamics |
References
- Laws, N.D.; Epps, B.P. Hydrokinetic energy conversion: Technology, research, and outlook. Renew. Sustain. Energy Rev. 2016, 57, 1245–1259. [Google Scholar] [CrossRef]
- Khan, M.; Bhuyan, G.; Iqbal, M.; Quaicoe, J. Hydrokinetic energy conversion systems and assessment of horizontal and vertical axis turbines for river and tidal applications: A technology status review. Appl. Energy 2009, 86, 1823–1835. [Google Scholar] [CrossRef]
- Kirke, B.; Lazauskas, L. Limitations of fixed pitch Darrieus hydrokinetic turbines and the challenge of variable pitch. Renew. Energy 2011, 36, 893–897. [Google Scholar] [CrossRef]
- Saini, G.; Saini, R.P. A review on technology, configurations, and performance of cross-flow hydrokinetic turbines. Int. J. Energy Res. 2019, 43, 6639–6679. [Google Scholar] [CrossRef]
- Vu, N.A.; Pham, N.S. An Analytical Methodology for Aerodynamic Analysis of Vertical Axis Wind Turbine. Int. J. Renew. Energy Res. 2020, 10, 1145–1153. [Google Scholar]
- Ma, Y.; Hu, C.; Li, Y.; Li, L.; Deng, R.; Jiang, D. Hydrodynamic performance analysis of the vertical axis twin-rotor tidal current turbine. Water 2018, 10, 1694. [Google Scholar] [CrossRef]
- Yosry, A.G.; Fernández-Jiménez, A.; Álvarez-Álvarez, E.; Marigorta, E.B. Design and characterization of a vertical-axis micro tidal turbine for low velocity scenarios. Energy Convers. Manag. 2021, 237, 114144. [Google Scholar] [CrossRef]
- Chen, D.; Ma, Y.; Hu, C.; Zhao, T. Efficiency optimization of twin vertical-axis helical hydrokinetic turbines (VAHHTs) based on Taguchi method. Appl. Ocean Res. 2023, 138, 103618. [Google Scholar] [CrossRef]
- Singh, M.; Biswas, A.; Misra, R. Investigation of self-starting and high rotor solidity on the performance of a three S1210 blade H-type Darrieus rotor. Renew. Energy 2015, 76, 381–387. [Google Scholar] [CrossRef]
- Castelli, M.R.; Englaro, A.; Benini, E. The Darrieus wind turbine: Proposal for a new performance prediction model based on CFD. Energy 2011, 36, 4919–4934. [Google Scholar] [CrossRef]
- Divakaran, U.; Ramesh, A.; Mohammad, A.; Velamati, R.K. Effect of helix angle on the performance of helical vertical axis wind turbine. Energies 2021, 14, 393. [Google Scholar] [CrossRef]
- Bayram, A.; Dhalwala, M.; Oshkai, P.; Korobenko, A. Numerical simulations of a vertical-axis hydrokinetic turbine with different blade-strut configurations under free-surface effects. Eng. Comput. 2023, 39, 1041–1054. [Google Scholar] [CrossRef]
- Satrio, D.; Ramadhan, L.I. The advantage of flow disturbance for vertical-axis turbine in low current velocity. Sustain. Energy Technol. Assess. 2022, 49, 101692. [Google Scholar] [CrossRef]
- Khan, F.; Sheikh, S.R.; Masud, J. Behavior Analysis of Vertical Axis Water Turbine with Individual Blade Pitch Control. In Proceedings of the AIAA SCITECH 2023 Forum, National Harbor, MD, USA, 23–27 January 2023; p. 2174. [Google Scholar]
- Yosry, A.G.; Álvarez, E.Á.; Valdés, R.E.; Pandal, A.; Marigorta, E.B. Experimental and multiphase modeling of small vertical-axis hydrokinetic turbine with free-surface variations. Renew. Energy 2023, 203, 788–801. [Google Scholar] [CrossRef]
- Abdolahifar, A.; Azizi, M.; Zanj, A. Flow structure and performance analysis of Darrieus vertical axis turbines with swept blades: A critical case study on V-shaped blades. Ocean Eng. 2023, 280, 114857. [Google Scholar] [CrossRef]
- Bachant, P.; Wosnik, M. Performance measurements of cylindrical-and spherical-helical cross-flow marine hydrokinetic turbines, with estimates of exergy efficiency. Renew. Energy 2015, 74, 318–325. [Google Scholar] [CrossRef]
- Zhang, G.; Yang, Y.; Chen, J.; Jin, Z.; Dykas, S. Numerical study of heterogeneous condensation in the de Laval nozzle to guide the compressor performance optimization in a compressed air energy storage system. Appl. Energy 2024, 356, 122361. [Google Scholar] [CrossRef]
- Alam, M.J.; Iqbal, M.T. Design and development of hybrid vertical axis turbine. In Proceedings of the Conference on Electrical & Computer Engineering, St. John’s, NL, Canada, 3–6 May 2009. [Google Scholar]
- Basumatary, M.; Biswas, A.; Misra, R.D. CFD study of a combined lift and drag-based novel Savonius vertical axis water turbine. J. Mar. Sci. Technol. 2023, 28, 27–43. [Google Scholar] [CrossRef]
- Khan, Z.U.; Ali, Z.; Uddin, E. Performance enhancement of vertical axis hydrokinetic turbine using novel blade profile. Renew. Energy 2022, 188, 801–818. [Google Scholar] [CrossRef]
- Satrio, D.; Utama, I.K.A.P. Experimental investigation into the improvement of self-starting capability of vertical-axis tidal current turbine. Energy Rep. 2021, 7, 4587–4594. [Google Scholar] [CrossRef]
- Talukdar, P.K.; Kulkarni, V.; Dehingia, D.; Saha, U.K. Evaluation of a model helical bladed hydrokinetic turbine characteristics from in-situ experiments. In Proceedings of the ASME 2017 11th International Conference on Energy Sustainability, Charlotte, NC, USA, 26–30 June 2017; p. V001T007A005. [Google Scholar]
- Pongduang, S.; Kayankannavee, C.; Tiaple, Y. Experimental Investigation of Helical Tidal Turbine Characteristics with Different Twists. Energy Procedia 2015, 79, 409–414. [Google Scholar] [CrossRef]
- Ma, Y.; Zhu, Y.; Zhang, A.; Hu, C.; Liu, S.; Li, Z. Hydrodynamic performance of vertical axis hydrokinetic turbine based on Taguchi method. Renew. Energy 2022, 186, 573–584. [Google Scholar] [CrossRef]
- Shen, C.; Zhang, J.; Ding, C.; Wang, S. Simulation Analysis and Experimental Study on Airfoil Optimization of Low-Velocity Turbine. J. Mar. Sci. Eng. 2024, 12, 303. [Google Scholar] [CrossRef]
- Yang, B.; Shu, X.W. Hydrofoil optimization and experimental validation in helical vertical axis turbine for power generation from marine current. Ocean Eng. 2012, 42, 35–46. [Google Scholar] [CrossRef]
- Khanjanpour, M.H.; Javadi, A. Optimization of the hydrodynamic performance of a vertical Axis tidal (VAT) turbine using CFD-Taguchi approach. Energy Convers. Manag. 2020, 222, 113235. [Google Scholar] [CrossRef]
- Sengupta, A.R.; Biswas, A.; Gupta, R. Studies of some high solidity symmetrical and unsymmetrical blade H-Darrieus rotors with respect to starting characteristics, dynamic performances and flow physics in low wind streams. Renew. Energy Int. J. 2016, 93, 536–547. [Google Scholar] [CrossRef]
- Brusca, S.; Lanzafame, R.; Messina, M. Design of a vertical-axis wind turbine: How the aspect ratio affects the turbine’s performance. Int. J. Energy Environ. Eng. 2014, 5, 333–340. [Google Scholar] [CrossRef]
- Wang, X.; Luo, X.; Zhuang, B.; Yu, W.; Xu, H. 6-DOF Numerical Simulation of the Vertical-Axis Water Turbine. In Proceedings of the ASME-JSME-KSME 2011 Joint Fluids Engineering Conference, Hamamatsu, Japan, 24–29 July 2011. [Google Scholar]
- Talukdar, P.K.; Kulkarni, V.; Saha, U.K. Field-testing of model helical-bladed hydrokinetic turbines for small-scale power generation. Renew. Energy 2018, 127, 158–167. [Google Scholar] [CrossRef]
- Zhang, G.J.; Li, Y.P.; Jin, Z.L.; Dykas, S. Prediction of the non-equilibrium condensation characteristic of CO2 based on a Laval nozzle to improve carbon capture efficiency. Fuel 2025, 381, 133303. [Google Scholar] [CrossRef]
- Rivera, M.; Shook, D.; Foust, E. Experimental and Numerical Investigation into Vertical Axis Water Turbine Self-Starting Phenomenon. In Proceedings of the ASME 2020 International Mechanical Engineering Congress and Exposition, Virtual, 16–19 November 2020. [Google Scholar]


















| Structural Parameters | Values | Structural Parameters | Values |
|---|---|---|---|
| Blade Type (NACA) | 0018/2418/4418 | Helicity () | |
| Inflow velocity | 0.8 m/s | Water flow density | 1000 kg/m3 |
| Diameter (D) | 0.2 m | Blade chord length (C) | 0.07 m |
| Number of blades (n) | 3 | Blade height (H) | 0.2 m |
| pitch angle () | 0° |
| Number | Rotating Domain | Total Number | Torque Coefficient | Error | GCI | Refinement Factor |
|---|---|---|---|---|---|---|
| 1 | 462,803 | 976,450 | 0.204 | - | - | 0.5 |
| 2 | 891,731 | 1,405,378 | 0.159 | 28.3% | 8.44% | 1 |
| 3 | 1,631,242 | 2,624,973 | 0.186 | 14.47% | 3.03% | 2 |
| 4 | 2,840,799 | 3,834,530 | 0.182 | 2.2% | 0.38% | 4 |
| Number | Airfoil | Helical Angle | Power Coefficient |
|---|---|---|---|
| 1 | NACA0018 | 23.01% | |
| 2 | 23.26% | ||
| 3 | 5.67% | ||
| 4 | 1.75% | ||
| 5 | NACA2418 | 23.32% | |
| 6 | 24.42% | ||
| 7 | 12.57% | ||
| 8 | 7.24% | ||
| 9 | NACA4418 | 18.63% | |
| 10 | 15.10% | ||
| 11 | 6.18% | ||
| 12 | 3.59% |
| Structural Parameters | Control Group Values | Experimental Group Values |
|---|---|---|
| Blade Type | NACA0018 | NACA2418 |
| Diameter (D) | 0.2 m | 0.2 m |
| Number of blades (n) | 3 | 3 |
| Helicity () | ||
| Blade chord length (C) | 0.07 m | 0.07 m |
| Blade height (H) | 0.2 m | 0.2 m |
| maximum thickness | 18% | 18% |
| maximum camber | 0 | 2% |
| Structural Parameters | Values | Structural Parameters | Values |
|---|---|---|---|
| Flow Stabilizable box size (mm) | 0800 × 1500 × 1000 | Number of pumps | 2 |
| Tank thickness (mm) | 5 | Adjacent pump spacing (mm) | 0.2 m |
| Water Flume length (mm) | 2000 | Inner diameter of pump outlet (mm) | 150 |
Disclaimer/Publisher’s Note: The statements, opinions and data contained in all publications are solely those of the individual author(s) and contributor(s) and not of MDPI and/or the editor(s). MDPI and/or the editor(s) disclaim responsibility for any injury to people or property resulting from any ideas, methods, instructions or products referred to in the content. |
© 2024 by the authors. Licensee MDPI, Basel, Switzerland. This article is an open access article distributed under the terms and conditions of the Creative Commons Attribution (CC BY) license (https://creativecommons.org/licenses/by/4.0/).
Share and Cite
Shen, C.; Han, Y.; Wang, S.; Wang, Z. Influence of Airfoil Curvature and Blade Angle on Vertical Axis Hydraulic Turbine Performance in Low Flow Conditions. Water 2025, 17, 11. https://doi.org/10.3390/w17010011
Shen C, Han Y, Wang S, Wang Z. Influence of Airfoil Curvature and Blade Angle on Vertical Axis Hydraulic Turbine Performance in Low Flow Conditions. Water. 2025; 17(1):11. https://doi.org/10.3390/w17010011
Chicago/Turabian StyleShen, Chunyun, Yubing Han, Shiming Wang, and Zekun Wang. 2025. "Influence of Airfoil Curvature and Blade Angle on Vertical Axis Hydraulic Turbine Performance in Low Flow Conditions" Water 17, no. 1: 11. https://doi.org/10.3390/w17010011
APA StyleShen, C., Han, Y., Wang, S., & Wang, Z. (2025). Influence of Airfoil Curvature and Blade Angle on Vertical Axis Hydraulic Turbine Performance in Low Flow Conditions. Water, 17(1), 11. https://doi.org/10.3390/w17010011

