Abstract
The carbon neutrality of the built environment plays a key role in fighting the climate crisis and fully realising ecological transition. In this field, the aim of the paper is to promote a new production paradigm that enables an integrated process from the design phase to the production of high-performance building components, to their “tailor-made installation” for the efficiency enhancement of the national residential building stock, reducing resource consumptions, costs, construction time and the associated environmental impact. The methodological approach is based on three key elements: digitalisation, production and performance. Recent technologies make it possible to achieve important goals, through the creation of the digital cataloguing of existing buildings, advanced dynamic simulations, improved energy performance for building stock and industrial production chain optimisation of the construction sector according to off-site construction criteria. This strategy was tested on a demonstrator building. The methodology application has made it possible to validate a catalogue of standardised insulation solutions that can be applied to 90% of the existing national building stock and that can reduce installation times by 60% and costs by around 30% compared to traditional techniques, while complying with the national requirements on thermal building insulation. The study is able to organise production according to advanced standardisation in order to meet the real demand of the market with advantages in term of production costs and economies of scale.
1. Introduction
Climate change mitigation and adaptation are the major challenges of the 21st century. The construction sector has significant potential for climate change mitigation and to contribute significantly to the Paris Agreement goals.
However, the global construction sector needs to quintuple its decarbonisation efforts to get closer to achieving zero carbon emissions by 2050. Indeed, the new Global Alliance for Buildings and Construction (GABC) report notes that emissions from the operation of buildings reached their highest level in 2019 [1]. According to the report, buildings currently account for about 40% of world greenhouse gas emissions, 36% of all energy consumption and are responsible for 50% of raw material extraction and 1/3 of drinking water consumption. In addition to operational emissions, the construction sector accounts for 38% of global CO2 emissions related to energy consumption.
Therefore, it is crucial to make buildings more energy efficient and sustainable, with lower carbon emissions during their life cycle [2]. In response to this situation, the European Commission has proposed in its 2030 Climate Targets Plan to reduce net greenhouse gas emissions in the EU by at least 55% by 2030 compared to 1990. [3] To achieve this, the EU must reduce greenhouse gas emissions from buildings by 60%, final energy consumption by 14% and energy consumption for heating and cooling by 18%.
The building envelope plays a key role in the energy behaviour of buildings [4]; therefore, thermal insulation of existing buildings is one of the simplest and most popular strategies to minimise operational energy consumption [5,6]. Consequently, knowing the characteristics of the building envelope is very important, especially in the European context, where the building stock is heterogeneous, unique and particularly old and inefficient. In fact, more than 220 million buildings, which represent 85% of the EU building stock, were built before 2001 and will still be in use in 2050 [7].
The first regulations on the thermal insulating of buildings were promulgated in the 1970s. This means that a large part of the existing EU building stock was built without any energy performance requirements: one third (35%) of the EU building stock is over 50 years old, and more than 40% was built before 1960. Almost 75% of buildings are energy inefficient according to building standards of today. [8] Particularly in Italy, according to ISTAT data, more than half of the residential buildings, about 60%, were built after World War II until the 1990s, 15% before 1919, 14% after 1990 and 11% between 1919 and 1945. In Italy, it is evident that most of the residential building stock pre-dates the first energy saving law, No 373 of 1976 [9]. Over 25% of buildings constructed before this have a standard record annual consumption ranging from a minimum of 160 kWh/m2 per year to over 220 kWh/m2 per year [10].
Therefore, the renovation, retrofitting and upgrading of existing buildings are important actions to minimise energy waste and global warming [11]. These reductions can be achieved by increasing the average restructuring rate from 1% effectively to 4.4% from 2020 to 2030 [12]. Accordingly, EU countries must promote investment and adopt strategies to renovate their building stock to make it highly energy efficient and decarbonised by 2050 [13]. For example, the European Commission through its renovation wave strategy (“A Renovation Wave for Europe—Greening our buildings, creating jobs, improving lives” (COM(2020)662)) has set the target of doubling renovation rates over the next ten years to reduce energy and resource consumption in buildings.
The European target is to accelerate the rate and depth of energy renovations and to provide higher quality, more sustainable refurbishments with a greater certainty of energy savings and higher supply chain efficiency through industrialised solutions. In this way, a good outcome can be achieved in terms of environmental sustainability, while promoting the economic and employment revival of the entire construction sector. Therefore, a profound rethink of traditional construction models is required, optimising the production chain and promoting the digitisation of building processes to sustainably upgrade the existing building stock. Effective methods are needed to industrialise the renovation process in order to reduce consumption for the heating and cooling of buildings and at the same time, the impact of the construction site [14].
Several studies with various fields and approaches have been conducted for the evaluation of energy efficiency measures in different building types. Some of them assess energy upgrading measures for historic buildings [15,16]. Others have developed approaches based on life cycle assessment methods to reduce environmental impacts as much as possible [17,18]. The assessment of the impact of energy refurbishments on the health and quality of life of inhabitants is another issue that is receiving significant attention in many studies [19,20,21]. The application of an industrialised and prefabricated renovation system has been explored in the literature, focusing on different solutions related to renewable sources [22,23,24], HVAC components [25] and envelope elements [26,27,28].
Recently, various European research has been conducted to share the results of different experiences of the application of prefabricated modular systems for the cladding of existing façades, advanced survey technologies and BIM modelling.
The EASEE (Envelope Approach to improve Sustainability and Energy efficiency in Existing multi-storey, multi-owner residential buildings) research provides two modular, fault-tolerant solutions for retrofitting the envelope of multi-storey, multi-owner buildings: a single layer XPS panel with surface finishing and a composite EPS panel coated on both sides with two textile reinforced mortar (TRM) layers [29]. However, the project targets residential buildings with cavity walls built before the 1970s.
The 4RinEU project, funded by the European Commission under the Horizon 2020 Programme ran for four years from 2016 to 2020 (extended to 2021) and provided technological solutions and strategies to promote the efficiency of existing building stock [30]. More specifically, it developed a timber prefabricated façade system to make the building envelope more efficient. Depending on the existing building wall and the required thermal performance, the insulation of the module can be varied, achieving an overall thermal transmittance of the opaque envelope < 0.2 W/m2K [31].
The Holistic Energy and Architectural Retrofit Toolkit (HEART) is a cloud-based computing platform that includes decision-making and energy management features. HEART includes several retrofit techniques and accessories/parts for also improving the thermal performance of the building envelope. [32] However, the target application is limited to multi-storey residential buildings from the second half of the last century. This project involves the interaction of the cloud platform with commercial BIM standards for the design of buildings and components, also through linked open data.
Another European research project is P2Endure [33]; it promotes evidence-based innovative solutions for deep renovation based on prefabricated plug and play systems in combination with on-site scanning, robotic 3D printing and BIM.
MORE-CONNECT [34,35] is a project to develop and advance prefabrication of innovative, multifunctional building envelope elements; the standard panel has timber frames which are filled with thermal insulation and decked by fire resistant boards.
Despite several studies and research, the European construction sector (the Italian one, in particular) has not yet adopted large-scale standardised retrofitting processes based on off-site construction and the integrated approach to renovation. Traditional renovation techniques, still used today, require extensive labour to be carried out on site and long design and construction times. In addition, they also entail great risks due to human error and damages due to exposure to various factors such as weather conditions, external forces, etc.
The above-mentioned studies and research present promising efficiency solutions, but they often do not include a study of the national building stock and insulating materials to create standardised envelope modules as the basis of an industrial production process for deep renovation interventions. The prefabricated insulation modules identified by the various projects must be tailored to the existing walls and climatic zone conditions in order to comply with the different required thermal transmittance values. The studies in the literature do not even define the percentage of the applicability of the proposed solutions to the existing building stock. This does not facilitate decision-making and the design and industrial process.
Some projects have focused on the characteristics of the existing heterogeneous building stock to identify specific insulation solutions, but they only considered the stationary thermal transmittance values of the building envelope, such as EPIQR [36], IFORE [37], SUSREF [38], TABULA [39] and others [40,41]. Furthermore, the systems proposed in the different projects only provide for external application, which cannot always be applied as in the case of listed historic buildings.
Therefore, the final aim of the paper is to promote a new production paradigm that enables an integrated process from the design phase to the production of high-performance building components, to their “tailor-made installation” for the efficiency enhancement of the national residential building stock, reducing resource consumptions, costs, construction time and the associated environmental impact. In this study, the authors propose and describe a methodological digital approach to off-site construction pointing towards an automated and interconnected “smart” industry, which aims at the efficiency of serial processes within the specificity of the building product.
The paper analyses and selects the best performing modules for the energy upgrading of the façades of existing buildings suitable in all climate zones according to Italian law requirements, characterised by simplified installation methods and timing. This catalogue of standard (pre-defined) construction configurations for façade insulation systems, takes into account the entire supply chain, from the design and production of the components to assembly and installation, up to the assessment of the actual energy performance; it includes all the essential information to directly and automatically choose the most suitable solution, simplifying any further design or planning activities.
The design and research effort resulted in the development of a “short list” of thermal insulation systems for vertical closures, to be applied to 90% of the existing national building stock, for a significant reduction in production, design and installation costs. The methodology was developed by CITERA, the research centre of Sapienza University of Rome, as part of the “Research of the Electricity System” programme with ENEA and the Ministry of Economic Development concerning “Improving the energy efficiency of production processes and management of the built environment”. This paper is based on three key methodological items—digitalisation, production and performance—whose objective is to identify and promote efficiency solutions aimed at directing the building market demand towards the deep renovation of existing residential buildings to achieve the objectives of energy efficiency, sustainability and cost-effectiveness with guaranteed results and quality control. The proposed methodological approach was tested on a representative case study of the Italian building stock.
The paper is structured as follows. First, the “D2P” approach to improve the energy performance of the production and management processes in the built environment is described. Section 3 describes a case study used to test the proposed system for the standardised sustainable deep renovation of buildings. The results are shown in Section 4 and discussed in Section 5. Finally, the paper ends with conclusions and future developments.
2. Materials and Methods
The proposed research on improving the energy performance of the production and management processes in the built environment started with a study of the national residential building stock [42]. This analysis allowed the definition of relevant parameters for the national residential building stock classification, such as: climatic zone, seismic zone, classification of construction period, building type, layers and characteristics of the building envelope. An abacus of the opaque building envelope configuration was developed, according to the period of greatest diffusion, to allow the subsequent identification of standardised interventions for a deep sustainable renovation of closure systems.
The stratigraphies and the thermal transmittance values of vertical opaque closures were associated with specific building and structural types and with classes based on their construction period and on previous experimental measurement campaigns carried out by ENEA in collaboration with various Italian universities on different types of residential buildings. On the basis of this data, a matrix of residential buildings was drawn up where the possible building configurations that can be found within the national heritage have been outlined. The 346 configurations follow the evolution of the construction techniques in chronological order. The national residential building stock matrix was elaborated by the authors, during the programme “Research of the Electricity System” in cooperation with ENEA within the project “Energy efficiency of industrial products and processes”, 2019–2020 [43].
The study started from the identification of useful parameters for comparing the insulating materials available on the market and on the basis of the criteria set forth by the minimum environmental criteria (CAM), such as performance indicators (conductivity, specific heat, density), environmental impact (origin of raw material, PEI, recyclability), use indications (application areas and formats) and cost. This evaluation allowed us to select the following insulating materials as efficiency solutions for opaque vertical closures: rock wool, wood fibre, aerogel, rigid polyurethane foam and extruded polystyrene.
The selected insulating materials were then associated with the upgrading solution of opaque vertical closures (VC): external wall cladding insulating system, ventilated wall system and internal wall cladding insulating system (as in the case of heritage buildings). On the basis of the opaque building envelope-type abacus of the residential building stock, simulations were carried out to identify the insulating material thickness of each proposed technological solution with the greatest applicability to direct the production chain towards more efficient and sustainable standardised solutions (Table 1).
Table 1.
Abacus of the thermal insulating systems.
These simulations allowed the elaboration of performance sheets related to the selected solutions and applied on each opaque vertical closure; the results obtained allowed the matrix to be completed with the best performing thermal insulating solutions identified. The organised and systematised data were then used to optimise the entire building process for improving the efficiency of the residential heritage of Italy and to coordinate the operation of the entire supply chain, from the production process of insulation systems to their construction and use in situ, following off-site building criteria. This process was based on three key elements: digitalisation, production and performance.
Digitalisation is now the key challenge for the evolution and modernisation of the AECO sector [44,45] and is repeatedly referred to in the objectives of the Next Generation EU programme, which inextricably links green and digital transitions. In fact, digitalisation is becoming an indispensable tool in all phases of the building process [46,47], from the planning of efficiency measures to the automated choice of the best technologies to be used, to the construction phase with automatic control of compliance with deadlines and progress, and finally, to the energy management of buildings which can be carried out through a digital twin of the building [48].
Production is the focal point of the system research funded by the Italian Ministry of Economic Development from which this study originates [49]. In fact, the building sector is still strongly affected by diseconomies and inefficiencies, mainly due to the resistance of small- and medium-sized enterprises in the sector to the application of modern and standardised production and construction technologies, which are the basis of off-site building. The creation of an organised and codified system of building technological and energy data on a national basis is, in itself, a facilitator for the widespread penetration of this production process throughout the built environment towards more efficient and sustainable standardised solutions for the national residential building stock.
The comparison between the predicted performance of the thermal behaviour of the hypothesised solutions and the sample verification of real data coming from monitoring “on field” instrumentation is the final phase of the methodological process proposed by this study. This ex post validation phase becomes all the more important in consideration of both the heterogeneity of the Italian building stock—often the result of successive interventions and stratifications over the years—and the variability of the climatic boundary conditions, given that in the Italian peninsula, one goes from the hot and dry climate of the islands to that typical of the high mountain resorts on the Apennines and the Alps, passing through a temperate coastal band. This variability makes the performance control phase of the components extremely important as, through the acquisition of the actual monitored data on the behaviour of the technological components integrated in the pre-existing stratigraphy of buildings, the database in the matrix can be updated and its accuracy improved through a self-learning process typical of machine learning.
An outline of the methodological approach to off-site construction developed to promote the optimisation of the entire construction sector industrial chain is shown in Figure 1.
Figure 1.
Methodology flow chart to promote the optimisation of the entire construction sector industrial chain.
2.1. Digitalisation
2.1.1. Building Digitalisation
The building digitalisation phase includes mapping activities and the creation of the building energy model. The first phase of the building digitalisation process consists of collecting all available documentation (for example, build drawings) and surveying activities. These can be carried out with innovative technologies such as thermal and/or 3D laser scanning. Capturing and analysing the 3D information in an as-built survey improves productivity and workflows, minimises time and improves design processes [50,51].
The subsequent use of data visualisation programmes based on business intelligence also make it possible to assess, from the outset, project similarities and criticalities that have already emerged in the construction of technological solutions in certain contexts and to predict, in advance, the economic and environmental returns of the planned efficiencies. Based on the data collected, it is possible to create a building energy model (BEM) which allows the simulation of the energy consumption and heat flow calculations, taking into consideration the envelope stratigraphy and the energy systems such as heating, cooling and air conditioning (HVAC) [52].
2.1.2. Selecting a Standardised Solution Using a Matrix
The study is intended to promote a new production paradigm that enables an integrated process from the design phase to the production of high-performance building components, to their “tailor-made installation” for the efficiency enhancement of the national residential building stock, reducing resource consumptions, costs, construction time and the associated environmental impact. Since 2019, more than 150 insulation systems on the market were examined to achieve this goal. A comparative analysis of the performance of such systems applied to different building envelope configurations used in the country was then carried out for all Italian climate zones. The results of this analysis were collected in a summary matrix aimed at identifying the best performing building components. It can also provide useful information to construction companies to direct their production chain towards more efficient and sustainable standardised solutions for the national residential building stock.
Therefore, the matrix constitutes a useful tool to identify the most suitable upgrading solution for a specific type of opaque vertical closure. The rows that make up the matrix represent the possible types of opaque vertical closures broken down according to the construction period, the building type and the most common construction type. For each opaque vertical closure type, the verification of the minimum requirements according to the regulations in force and therefore, of the applicability of the efficiency solution in the different climatic zones, is reported. In addition, the characteristics of each efficiency solution, applied on each of the existing opaque vertical closures, can be found in the performance data sheets.
2.2. Production
Implementation
This phase includes the off-site construction of components and their assembly on site. The building industry has been facing a paradigm shift based on three strategic priorities: digital design, smart and sustainable construction, and improved trade performance. Within this framework, off-site construction emerges as a potential catalyst for these technological challenges. In fact, off-site construction makes it possible to transfer construction activities to a controlled environment, achieving more productivity [53], a higher quality standard and reduced waste aimed at optimising the entire construction process.
Various research and reports show that off-site construction can lead to a 90% reduction in site waste compared to conventional construction practices [54]. Pan et al. [55] consider that correspondence with shared costs and timeframes and the achievement of high-quality levels are the most important benefits of adopting off-site technologies.
To make the construction sector more sustainable, productivity levels in the building industry need to be increased through modern methods of construction (MMC). Advanced off-site pre-fabrication systems with building information modelling (BIM) methodology, which allows the digitalisation of the entire construction process, enable control of the entire building product life cycle [56]. They make it possible to plan works and reduce on-site installation time so that the daily lives of any occupants of the building will suffer minimal interference.
According to building construction strategic priorities, the proposed insulation solutions can be “pre-assembled” in the factory, designed and customised to meet specific needs and allow application on existing opaque vertical closures in off-site construction. Dry assembly is another strategy that positively influences the reduction in the overall impact of a building renovation; it is effective both in reducing installation time and in promoting the transition to a circular economy by significantly reducing waste at the end of a life cycle of a building. Therefore, efficiency is the key element of off-site construction, guaranteeing the optimisation of the entire building process in the energy refurbishment sector, in line with current ambitious environmental sustainability goals and with a focus on standardisation, modularity, cost and performance analysis during the entire life cycle of the building.
2.3. Performance
Simulation and Monitoring Campaign
Building modelling using certified calculation codes allowed energy performance simulations to be carried out in order to compare the outcome of the application of the selected insulation solutions. In situ measurements were carried out in accordance with UNI ISO 9869-1:2015 to verify the energy performance of the vertical opaque closure before and after the efficiency intervention. The thermal transmittance (U-value) of the building envelope is a key parameter for both thermal comfort and energy savings. Thermal flowmetry was used as a non-destructive method to measure the thermal transmittance value in situ in a quantitative manner, expressing the degree of thermal insulation of the building opaque component. The comparison of simulated and monitored data makes it possible to validate the proposed innovative methodological approach to off-site construction. The outcome of this activity may act as a driver to promote the development and adoption of off-site construction principles and technologies.
3. Case Study
The methodology approach described has been applied to an existing Roadman’s House building (“Casa Cantoniera”) owned by the Lazio region and located along the Via Nettunense km 26 + 600, in the Campo di Carne district (Figure 2 and Figure 3). It is a two-story building consisting of eight typologies of single glass windows with wooden frames. The building is characterised by tuff load-bearing masonry.
Figure 2.
Demonstrator building territorial framing.
Figure 3.
Demonstrator building data.
The building analysed was chosen because it is a national housing stock representative example of:
- Residential use. According to ISTAT data, this constitutes 84% of the national building stock, amounting to a total of 12,187,698 units out of 14,515,795;
- Load-bearing masonry. This is the most widespread construction typology in Italy with an average of 57 percent, compared to 29 percent for reinforced concrete and 13 percent composed of different materials, according to the 2011 15th census of population and housing.
- Climate zone C. In this climatic zone, 22.1% of national residential buildings are located.
3.1. Roadman’s House Digitalisation
3.1.1. Mapping
The architectural building survey was carried out through both direct and indirect methods.
The latter was carried out through active sensor-based techniques (range-based methods), specifically through LiDAR, light detection and ranging, a laser-scanning technology. Using LiDAR, it was possible to obtain a point cloud that after a digital process faithfully reconstructed the geographic information of all reflective building elements (Figure 4). The generated point cloud can be further post processed to create a building information model (BIM) [57]. The integration between BIM and LiDAR is a very interesting opportunity for the construction industry because it helps to process, in real time, useful information for the collection, processing and management of information related to buildings.
Figure 4.
Architectural survey of the monitored area using LiDAR technology.
3.1.2. Building Energy Model
A demonstrator building energy model (Figure 5) was carried out using a certified software, TerMus BIM. (Software was certified by the Italian Thermotechnician Committee for the calculation of conformity to standards UNI/TS 11300-1:2014, UNI/TS11300-2:2014, UNI/TS 11300-3:2010, UNI/TS 11300-4:2016, 11300-5:2016, 11300-6:2016 e UNI EN 15193:2008). It used the energy balance method for the energy performance calculation, containing the following information:
- model location;
- technical characteristics of the external vertical envelope, partitions and horizontal closures;
- volumes of heated and unheated zones;
- thermal plants.
Figure 5.
Demonstrator building energy model (BEM).
Model Location
The simulations were carried out for the monitoring period in climate zone C ante operam and post operam.
The calculation of post operam performance was carried out, following the application of the CI.01 insulation solution on the north wall and simulated in the real location, in climate zone C, for the period corresponding to in situ monitoring, i.e., from 11 December 2021 to 13 December 2021 and from 18 December 2021 to 20 December 2021.
The climate data were taken from the CTI (Thermotechnician Italian Committee) archives. (CTI archives contain hourly climate data of typical climatic years consisting of 12 characteristic months chosen from an archive of actual collected weather data for a time period greater than 10 years. The climate parameters included are: temperature, relative humidity, global irradiance in the horizontal plane and wind speed).
Technical Characteristics of the External Vertical Envelope, Partitions and Horizontal Closures
The building is characterised by tuff load-bearing masonry. The vertical and horizontal thermophysical characteristics (thermal transmittance, thermal resistance, etc.) of the building envelope were calculated using software.
The following are the stratigraphies and thermal transmittance values of the vertical and horizontal opaque closures in the current state (Table 2).
Table 2.
Ante operam thermal properties of the opaque closures and internal partitioning.
The transparent vertical closures transmittance value is Uw 4.51 W/m2k.
3.2. Selecting a Standardised Solution Using a Matrix
Among insulating systems, those that can be applied from the outside of the building envelope make it possible to completely eliminate thermal bridges that occur due to geometric or material discontinuities. From the quadrant graph (Figure 6) comparing the environmental impact through PEI (on the y-axis) and performance expressed through the thermal conductivity value (on the x axis), among the selected five insulating materials, (excluding aerogel used for insulating the wall from the inside), rock wool is the material with the best performance/environmental impact balance.
Figure 6.
Comparison of environmental impact and performance of insulating materials.
Due to its special structure, rock wool is water-repellent and therefore, maintains its properties over time and does not promote the formation of mould, fungi or bacteria; it is fire retardant and an excellent sound-absorbing material. From the matrix of the national building stock, the energy improvement solution CI.01 was identified for VC.01.2 (Figure 7). This thermal insulating solution was simulated using certified software in a BIM environment and through in situ performance monitoring. Each row of the matrix corresponds to a specific performance sheet of the results achievable from the application of an insulating solution to the existing perimeter wall (Figure 8). The whole matrix is attached in the Supplementary Materials.
Figure 7.
Matrix of efficiency solutions applicable to the national building stock.
Figure 8.
Performance sheet of the thermal insulating solution CI.01 applied to the existing perimeter wall VC.01.2.
3.3. Energy Efficiency Solution Implementation
The process is divided into four main stages: anchor installation, panel installation, joint installation and finishing (Figure 9). Proposed solutions can be “pre-assembled” in a factory, designed and custom-built to meet specific needs and to allow application on existing structures with an off-site construction perspective.
Figure 9.
Implementation of energy efficiency solution: (a) anchor, panel and joint installation; (b) panel section; (c) installation completed.
A galvanised steel metal substructure equipped with special punctures was used for the construction of the insulating system, within which the 12 cm rock wool insulating material was housed. The completed building component presents a calcium silicate panel finishing layer that has been shaved and painted on site to ensure greater integration and respect for the traditional construction techniques that characterise most of the national residential building stock. The dimensions are designed to make the component easily movable by two workers.
The installation time in this case was about 10–15 min. To be able to insulate 100 square meters of opaque vertical closure using the proposed 1.2 square meter prefabricated component would take about two working days. To further reduce the installation time and make the proposed system completely prefabricated, it is possible to replace the calcium silicate panel with a panelling system made of different materials such as wood, stone, plastic or metal, depending on the context in which the opaque envelope efficiency intervention will be carried out.
3.4. Performance Simulation and Monitoring
3.4.1. Simulation: Ante Operam
Simulations were carried out using certified software on the demonstrator building BEM model in climate zone C, during the same period as the real environment monitoring: from 11 December to 13 for ante operam and from 18 December to 20 December 2021 for post operam.
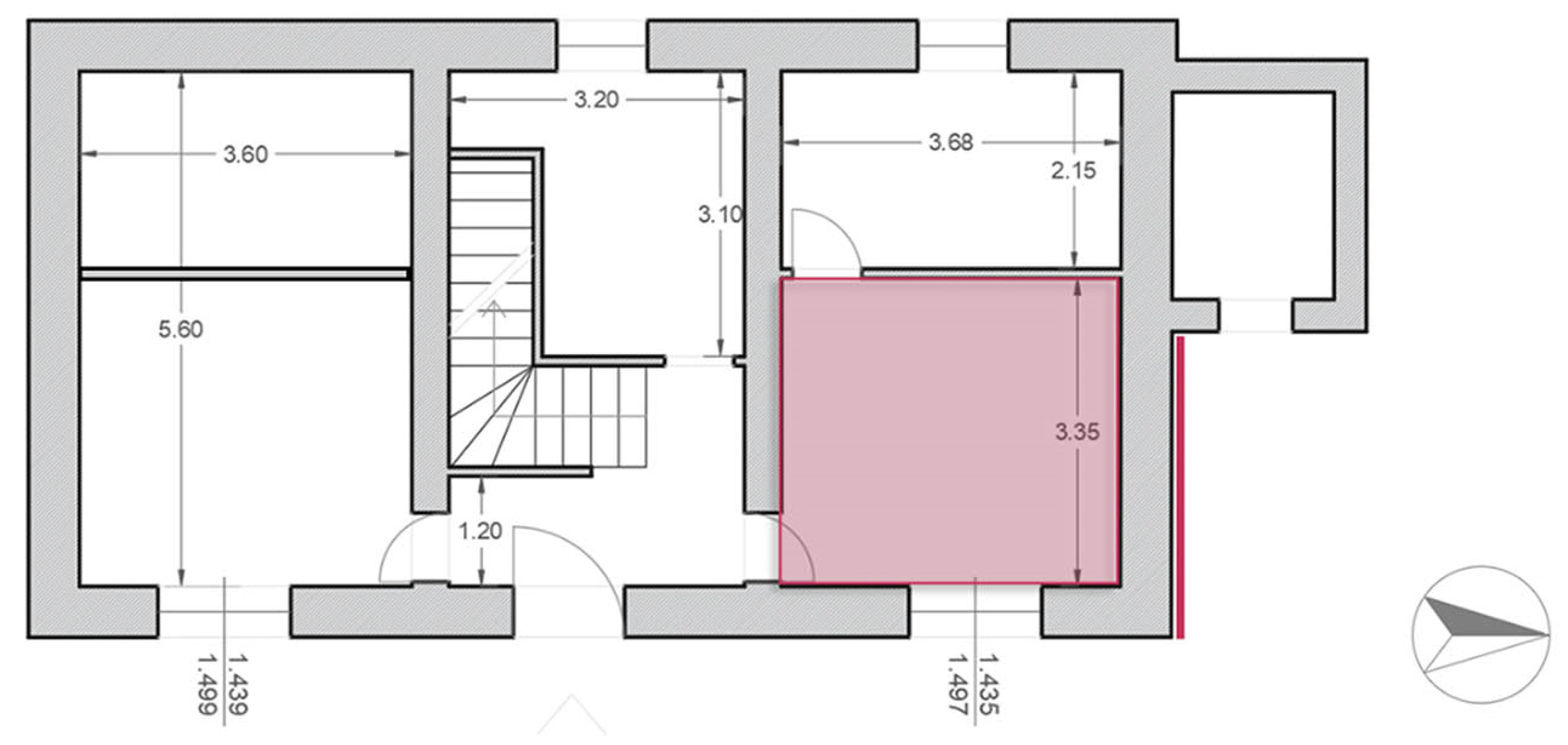
To make comparative evaluations between the performance of the envelope before and after the installation of the insulating building component CI.01, calculations were carried out considering only the monitored room and reproducing in the ante and post operam simulations the conditions as close as possible to those of the actual period of the on-site monitoring. Therefore, a single air-conditioned zone was considered, corresponding to the living room, with only the north-facing wall insulated with component CI.01, with the other partitions being considered as adjacent unheated rooms. A fictitious heating system was considered in order to make sure there was an indoor temperature of 20 °C in the living room, as highlighted in Figure 10.
Figure 10.
Test area in the living room.
Vertical closure: perimeter wall
The opaque vertical closure (henceforth referred to as M100 in the energy model) which was simulated and monitored before and after the efficiency intervention was made of plastered tuff blocks (Table 3).
Table 3.
M100: exterior wall in tuff bricks 55 cm; ante operam; features.
The 55 cm tuff wall under study was not subject to either surface or interstitial condensation. The average outdoor temperature for the simulations carried out during the ante operam monitoring period in climate zone C was 8.1 °C, and the direct solar irradiance in the horizontal plane was 35.2 W/m2.
The transmission power loss Φtr of the living room on the ground floor facing northeast, where real environment monitoring was carried out, was evaluated for the analysis of the 55 cm tuff perimeter wall (M100) with northern orientation, before the installation of the insulating system CI.01 (Table 4 and Table 5).
Table 4.
Living room: simulated dispersions; ante operam monitoring period; climatic zone C.
Table 5.
Dispersions through the M100 component: ante operam monitoring period; climatic zone C.
In Table 5, transmission losses related to winter energy were evaluated. In the last column are the data for energy lost, obtained from the sum of transmission and extra-flow losses, minus solar inputs through the component.
3.4.2. Simulation: Post Operam
In Table 6, there is the stratigraphy of the masonry subject of the simulations, after the application of the identified insulation system.
Table 6.
M100: exterior wall in tuff bricks 55 cm + SC1; post operam; features.
The average outdoor temperature for the simulations carried out during the post operam monitoring period in climate zone C was 4.6 °C. The direct solar irradiance in the horizontal plane was 39.3 W/m2.
The power dissipated by transmission Φtr of the living room was evaluated. The living room was on the ground floor, facing northeast, where on-site monitoring was carried out for the analysis of the 55 cm tuff perimeter wall, on which the CI.01 insulation component was applied with north orientation (Table 7 and Table 8).
Table 7.
Living room: simulated dispersions; post operam monitoring period; climatic zone C.
Table 8.
Dispersions through the M100 component: post operam monitoring period; climatic zone C.
Transmission losses, related to winter energy, of the opaque components were evaluated. The dispersions related to the wall, subject to successive on-site monitoring, and the 55 cm tuff exterior wall with the application of the CI.01 insulation system are shown in Table 8.
The simulations carried out showed a reduction in transmission energy loss QH,tr by 75%, from 8 kWh to 2 kWh, through the implementation of the CI.01 insulation system.
3.4.3. Monitoring: Ante Operam
To verify the energy performance of the vertical closure before and after efficiency upgrading, in situ measurements were carried out in compliance with UNI ISO 9869-1:2015 “Building elements—In situ measurement of thermal resistance and thermal transmittance—Part 1: Heat flowmeter method”.
Monitoring with the thermoflowmeter was carried out during the winter period, ensuring sufficiently low temperatures outside and significantly higher temperatures inside (Tsetpoint = 20 °C) due to the presence of the running heating system. In order to properly define the heat flow through the building envelope, the heat flowmeter was placed on a portion of the wall equidistant from other building elements (such as windows, doors, pillars, beams, corner nodes, projections, etc.) and therefore, it was more representative of the entire wall to be analysed. As required by the ISO standard, the measurement was carried out for 3 consecutive days (72 h).
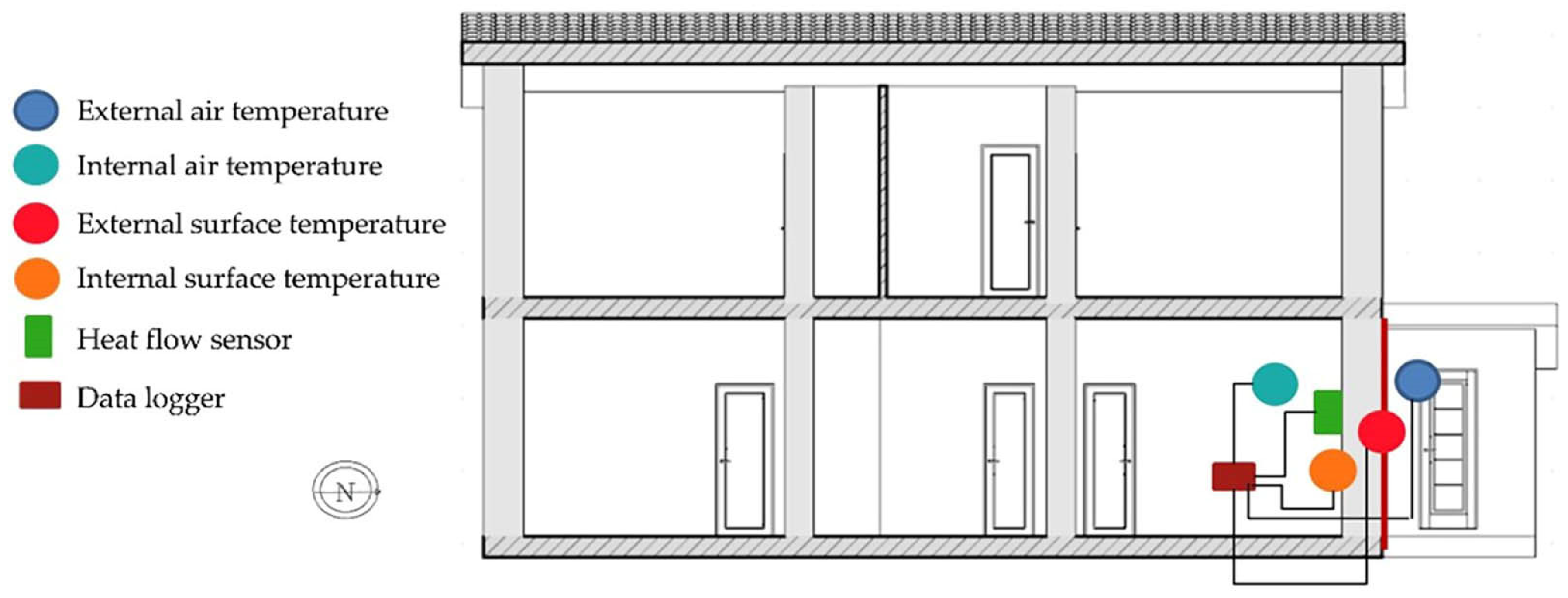
The data have been processed according to the method of progressive averages. In order to quantify the thermal behaviours of the room, the surface temperatures of the north-facing wall, indoor and outdoor air temperatures, and heat fluxes exchanged through the wall were measured, both before and after the thermal insulation intervention of the building. The scheme of the sensor installation is shown in Figure 11. A hot plate heat flowmeter with an internal air temperature sensor, a surface temperature sensor integrated in the hot plate and an external air temperature sensor was used for in situ measurement (AHLBORN model ALMEMO 2590-4S). A BABUC microclimate controller equipped with specific probes such as a globothermometer for measuring mean radiant temperature, psychrometer and probe for measuring air velocity was used to monitor indoor environmental conditions.
Figure 11.
Monitoring instrumentation scheme.
The analysis was carried out from 11 December 2021 to 13 December 2021, starting at 00:00. With regard to environmental conditions, the average daily outdoor temperature was about 7.5 °C, fluctuating between 2 and 13 °C. The average relative humidity was 65%, and the sky was clear with an average wind of 25 km/h. The measurement was carried out for 72 h as required by ISO 9869 with acquisition every 10 min, and the collected data were processed using the method of progressive averages.
Discarding the values of the initial transient (flow settling) and the peaks at outdoor temperature changes, 141 recorded values of U, Te, and Ti were selected, from which the average value of ante operam transmittance U 0.91 W/m2K was obtained. This value differs from that identified through certified software by 4.6 percent. Below are graphs showing thermal fluxes, indoor and outdoor air temperatures and surface temperatures of the vertical opaque closure of the building ante operam. The readings in the graphs are shown for a time interval of 30 min (Figure 12, Figure 13, Figure 14 and Figure 15).
Figure 12.
Internal temperature diagram as a function of time: ante operam.
Figure 13.
External temperature diagram as a function of time: ante operam.
Figure 14.
Tuff perimeter wall thermal transmittance diagram as a function of time: ante operam.
Figure 15.
Tuff perimeter wall heat flow diagram as a function of time: ante operam.
3.4.4. Monitoring: Post Operam
The post operam analysis was carried out from 18 December 2021 to 20 December 2021, starting at 00:00 a.m. and always on the ground floor of the building in the same room and location, on the north-facing wall. Regarding the environmental conditions, it should be noted that the average daily outdoor temperature was about 10 °C, fluctuating between 5 and 14 °C. The average relative humidity was 75%, and the sky was clear with an average wind of 13 km/h. The measurement was carried out for 72 h as required by ISO 9869 with acquisition every 10 min. The collected data were processed using the method of progressive averages.
Thanks to the thermal insulating intervention carried out, the specific heat flux recorded during monitoring decreased from 11.83 to 2.27 W/m2; consequently, the winter heat load due to dispersion through the opaque walls of the entire demonstrator could potentially be reduced by more than 80% from 2084 to 379 W/m2. The energy lost through transmission (QH,tr) through the 55 cm tuff perimeter wall facing north recorded in the real ante operam environment was 0.85 kWh/m2; through the application of the SC.01 insulating system, the energy lost through transmission was reduced by 80% to 0.16 kWh/m2.
Through the simulation carried out with certified software, the QH,tr value obtained ante operam was 0.64 kWh/m2, which differs from the value measured in the real environment by approximately 25%; post operam, the simulated value was 0.16 kWh/m2, while the measured value was 0.159 kWh/m2, obtaining a zero variance. The following are the thermal flux graphs, indoor and outdoor air temperatures and surface temperatures of the building opaque vertical closure post operam. The measurements in the graphs are shown for 30 min time intervals (Figure 16, Figure 17, Figure 18 and Figure 19).
Figure 16.
Internal temperature diagram as a function of time: post operam.
Figure 17.
External temperature diagram as a function of time: post operam.
Figure 18.
Tuff perimeter wall thermal transmittance diagram as a function of time: post operam.
Figure 19.
Tuff perimeter wall heat flow diagram as a function of time: post operam.
4. Results
This research has achieved important goals in terms of performance, standardisation and the reduction in the impact on the environment and people. From a performance point of view, the comparison of results from calculations (building–test model simulations) and in situ monitoring confirmed increased performance in terms of energy efficiency of the system adopted once coupled with the existing structure. Initial transient values (flow settling) and peaks at external temperature changes were discarded, and 141 values of U, Te and Ti recorded were selected, by which the average ante operam transmittance value U 0.91 W/m2K was obtained. This value differs from the value identified by the certified software by 4.6% (Table 9).
Table 9.
Ante operam wall thermal transmittance.
The average post operam transmittance value recorded is U 0.2144 W/m2K. This value differs from the value identified by the certified software by 5.8% (Table 10).
Table 10.
Post operam wall thermal transmittance.
The recorded ante operam energy losses by transmission through the tuff wall was 0.85 kWh/m2. This value differs from the value identified by the certified software by 25% (Table 11).
Table 11.
Ante operam energy losses by transmission through wall (QH,tr).
The recorded post operam energy losses by transmission through the tuff wall was 0.16 kWh/m2. This value overlaps with the value identified by the certified software (Table 12).
Table 12.
Post operam energy losses by transmission through wall (QH,tr).
The selected insulating solution resulted in a reduction of as much as 80% of the thermal losses through the opaque structure subject to the intervention. The selected insulation materials and assembly techniques made it possible to meet the minimum environmental criteria required by current national legislation. In addition, to highlight the achievement of better energy efficiency resulting from the application of the specific external insulating system, the simulations were carried out in the BIM environment, and the values recorded in the monitoring campaign confirmed the applicability of the proposed pre-fabricated thermal insulation solutions on 90% of buildings for the different analysed stratigraphies (the most common in the national building stock), in all climatic zones. Therefore, the results validated a short list of standardised insulation solutions with confirmed broad applicability on the national residential building stock.
The comparison between simulated and monitored data confirms the reliability of the model with regards to the real behaviour of the building. The verification of the reduction in thermal heat losses through the building envelope following the proposed requalification intervention demonstrates the effectiveness of the application of the insulation system selected following the proposed methodology. The use of the matrix for the identification of the optimised solution for the existing structure reflects the standardisation/modularity/pre-fabrication items to realise interventions according to the approach of off-site construction criteria.
This short list of standardised insulation solutions can support the decision-making process reducing the processing time of choices and defects, decreasing the uncertainty of the outcome, and contributing to increase productivity, profitability and predictability. Specifically, the standardised insulation solution application on a real building case study made it possible to verify the real benefits in terms of time, cost and waste production reduction, 60%, 30% and more than 90%, respectively. Standardisation and pre-assembly have also made it possible to considerably reduce storage space on the construction site. This aspect is very important from the site logistics point of view because it makes it possible to work even in locations with reduced storage space availability.
The project activity makes it possible to acquire and disseminate technical and scientific information with the following benefits:
- The production system can become more competitive;
- Designers have a guiding tool for their intervention choices;
- End users will receive a benefit in economic terms and suffer less discomfort during the execution of upgrading works;
- Construction workers will benefit from improved safety on site.
The increased diffusion of upgrading interventions through the implementation of better and easier off-site building techniques would reduce energy bill costs and achieve important savings in terms of the energy requirements of the building, resulting in a reduction in primary energy consumption and installed power.
The contribution of the research aspires to attempt to “revolutionise” the current approach to building design and the entire production and construction process in order to make the whole building stock more sustainable. In fact, the study results are very important for the fulfilment of the European objectives of the decarbonisation of existing building stock and to enable building market demand to be directed towards the deep renovation of existing residential buildings through the enhancement of standardised high quality off-site construction production.
5. Discussion
Sensitivity towards the issues of environmental protection and the production of clean energy has grown in recent years at a global level, creating the premise for projects and practices in favour of energy sustainability. The growing awareness of the limits imposed by the natural environment and available resources requires a new vision of development in which the principles of energy efficiency and sustainability guide every sector policy. In order to minimise the ecological footprint of buildings, resource efficiency and circularity are required, combined with the transformation of the construction industry, for example, through the promotion of the use of eco-compatible materials, dry assembly criteria, pre-fabrication and modularity.
More specifically, the residential building sector will face major challenges in the coming years and decades to meet these demands by promoting energy efficiency as one of the key objectives of the decarbonisation and sustainable development strategy. Therefore, what it builds and how it is designed and constructed are the main areas to consider in order to reduce the construction sector impact in the context of climate change. The building envelope is an element that significantly influences the achievement of internal comfort conditions and consequently, the energy efficiency and sustainability of the building during its operation [58]. Consequently, perimeter walls have great potential for increasing energy efficiency and reducing the environmental footprint of buildings during operation.
In this context, this paper provides standardised energy efficiency solutions aimed at addressing building market demand towards the deep renovation of residential buildings. In fact, the research aims at the paradigm of the automated and interconnected “smart” industry ensuring a standardised approach by automating processes in the production of construction systems. Therefore, this study is focused on the analysis of design and production processes in the systems and components of the construction sector; this is because pursuing the principles of sustainable construction means not only making the existing building stock more efficient but also rethinking more efficient products/components and systems.
Green buildings must be designed to be durable, adaptable and able to cope with a changing global climate.
The verification and monitoring results of the energy performance requirements of the selected prefabricated modules, in BIM and real-world environments, confirmed compliance with current regulatory requirements. The “short list” of thermal insulation systems for vertical closures, validated by the “D2P” approach, is also applicable to 90% of the existing national building stock. The high applicability of the proposed systems allows a significant optimisation of their design, production and implementation process showing the potential to increase efficiency throughout the value chain of the built environment, as well as to reduce resource consumption and CO2 emissions.
It was previously studied that, in addition to energy performance, it is necessary to pay attention to environmental and social aspects. In fact, proposed efficiency solutions are characterised by recycled and recyclable materials and rationalised installation methods through pre-fabrication and dry assembly. This guarantees the highest percentage of recycling or reuse of components at the end of their life, conforming with the building components technical specifications required by the minimum environmental criteria (M.E.C.) in force. Italy made the MEC application mandatory by law through the legislative decree 50/2016 to respond to European procurement directives, strongly based on environmental issues. MEC compliance is not only important for environmental sustainability but also makes it possible to respond to social demands such as safety and to promote the economic sustainability of the intervention [59].
In addition, the installation phase of the proposed insulation system highlighted significantly reduce implementation time and costs, more efficient use of materials and a low-risk workplace through high-tech pre-fabrication. Therefore, the implementation of standardised and pre-fabricated insulation systems makes the entire supply chain more efficient, flexible and compatible with as many interventions as possible. These insulation systems, which allow us to realise the building stock renovation at a controlled cost, are revealed to be particularly advantageous in social housing, in critical conditions and in energetic poverty contexts. In general, this aligns with prior research that asserts that the main way to improve efficiency and reduce design, production and installation time for the deep renovation of existing external envelopes is to increase the level of automation [60,61], standardisation and digitalisation.
Therefore, the research results are very important for achieving the European goal of introducing large-scale industrialised deep renovation solutions. The output of this methodology has in fact a two-fold objective: on the one hand, it can be a guiding tool for the designer to identify, within a sort of “catalogue production” of predefined optimised configurations, the case study that best corresponds to the specific case by providing a reference baseline in operational and performance terms. On the other hand, it will provide indications to the construction industry to be able to reorganise its production process by orienting it towards standardised components and systems that can provide reproducible and adaptable products on a modular basis and with greater quality control of the component and system that will leave the factory ready to be assembled in situ.
This approach could be seen as a model of the automotive sector developing a supply chain with product customisation along a single supply chain. All the steps can be grouped into a single production process within a single company or can be organised into a complex industrial chain but coordinated according to an industrial automation that allows the increase of productivity and quality of production (Industry 4.0). To build on change, the construction industry will be increasingly subject to compliance with environmental, social and governance (ESG) criteria. ESG scores are becoming a more and more important tool for asset managers to design and implement sustainable investment strategies [62]. The following table shows the ESG issues that construction and design companies have to consider in refurbishment and retrofitting (Table 13) [63,64]. They have been taken into account when designing the proposed insulation solutions.
Table 13.
ESG issues in refurbishment and retrofitting buildings.
In according to ESG criteria, our contribution aims to “renovate” the current approach to building design and to the entire production and construction process of companies in order to make the entire building stock more sustainable.
6. Conclusions and Future Developments
The retrofit of buildings is one of the greatest challenges Europe must face in order to achieve its decarbonisation targets. In the framework of the European directives, member states have to develop and take specific actions in order to rapidly improve the efficiency of the existing building stock and of construction production. Investing in the energy efficiency of buildings is not an option but a pressing need to achieve global climate goals. To measure the impact of the building sector on final energy consumption and carbon emissions, it is also necessary to consider both the activity that takes place inside buildings and indirect consumption, including the energy needed to construct the building materials themselves.
In this context, the paper proposes a digital methodological approach that aims at the efficiency of serial processes in the specificity of thermal insulation systems. The study made it possible to define high-performance efficiency solutions that can be applied on most of the national residential building stock, addressing choice by the designer and optimising both the production process of insulating systems and the construction phases. As the national building stock is very heterogeneous, a selection was made of the most common vertical closure types on which to perform energy simulations. However, the proposed solutions make it possible to meet the requirements of the European Commission for decarbonisation and optimisation of the construction sector and for the entire life cycle of the building component.
This approach will ensure a reduction in both production costs and those related to the construction phase without neglecting the important advantages in terms of reducing environmental impacts and inconvenience to occupants during the renovation. Advanced design process, construction and installation methods allow an overall evaluation of the performances obtainable from the individual solutions up to a qualitative and quantitative validation of the significant advantages in terms of the simplification of construction. The production system could take advantage from it in terms of competitiveness; designers could find a tool addressing their choices of intervention, and end users will receive a benefit in economic terms with guaranteed functional performances and less discomfort during the renovation process.
To the industry of products/systems for buildings, we could propose a process providing indications on the type of products (e.g., types of insulating materials with precalculated ranges of thicknesses including performance data related to cases of building structures subject to intervention) and assembly systems. The methodology proposed is able to organise production according to an advanced and flexible standardisation in order to meet the real demand of the market with advantages in term of production costs and economies of scale. In this way, components/modules with controlled quality can directly come out from the factory ready to be directly installed on site.
A possible further development of the present study consists in the digitalisation of the design process, using dynamic digital information models, and the production process in order to obtain a prefabricated “ready to use” system allowing a quick and precise assembly. The proposal consists of an open system to be dynamically implemented over time with information required by the matrix. This could be developed by means of a specific tool in BIM: if-else statements would allow the automatic identification of the most efficient and sustainable standardised solution based on pre-calculated scenarios.
Supplementary Materials
The following supporting information can be downloaded at: https://www.mdpi.com/article/10.3390/en15186689/s1, Efficiency solutions matrix applicable to the national building stock.
Author Contributions
Conceptualisation, F.C. and C.R.; materials and methods, E.P.; case study, F.C., F.G. and E.P.; validation, F.C., E.P. and C.R.; formal analysis, F.G.; investigation, E.P.; results, E.P.; discussion, F.C., E.P. and C.R.; resources, E.P.; data curation, F.G.; writing—original draft preparation, E.P.; writing—review and editing, E.P. and F.G.; visualisation, F.C.; supervision, F.C. and C.R.; and funding acquisition, F.C. All authors have read and agreed to the published version of the manuscript.
Funding
This research was funded by the Ministry of Economic Development, in the program for “Research of the Electricity System” in cooperation with ENEA on the project “Energy efficiency of industrial products and processes”, 2019–2021, Director’s decree of 09/08/2019.
Institutional Review Board Statement
Not applicable.
Informed Consent Statement
Not applicable.
Data Availability Statement
Data are contained within the article or Supplementary Materials. The data presented in this study are available in https://www.mdpi.com/1996-1073/14/1/74, https://www.enea.it/it/Ricerca_sviluppo/documenti/ricerca-di-sistema-elettrico/adp-mise-enea-2019-2021/efficienza-energetica-dei-prodotti-e-dei-processi-industriali/report-rds_ptr2019_073.pdf (accessed on 30 August 2022).
Conflicts of Interest
The authors declare no conflict of interest.
Nomenclature
| Th | Thickness |
| Sp | Structure thickness |
| Ms | Surface mass of the structure without plasters |
| CT | Areic heat capacity |
| ε | Emissivity |
| α | Absorption factor |
| θ | Outdoor temperature or adjacent room temperature |
| Ue | Energy transmittance of the structure |
| T | Structure between air-conditioned room and outside |
| G | Structure between air-conditioned room and ground |
| E | Structure between non-air-conditioned room and the outdoors |
| U | Structure between air-conditioned room and non-air-conditioned room |
| D | Internal partition to the air-conditioned area |
| Uw | Window thermal transmittance |
| R | Thermal resistance |
| M/V | Mass/Volume (kg/m3) |
| c | Specific heat capacity (kJ/kgK) |
| R.V. | Vapor diffusion resistance factor |
| U | Thermal transmittance of the dispersing element |
| Surf. | Surface area of the dispersing element |
| QH,tr | Energy lost by transmission |
| %QH,tr | Percentage ratio of element QH,tr to total QH,tr |
| QH,r | Energy loss by extraflow |
| %QH,r | Percentage ratio of element QH,r to total QH,r |
| Qsol,k | Solar gain through opaque and windowed elements |
| %Qsol,k | Percentage ratio of element Qsol,k to total Qsol,k |
| Φtr | Transmission dispersion (W) |
Abbreviations
| CI | Coat insulating |
| VWS | Ventilated wall system |
| IIS | Internal wall cladding |
| BIM | Building information modelling |
| BEM | Building energy modelling |
| PEI | Primary energy input |
| MMC | Modern methods of construction |
| Cond. | Thermal conductivity |
| MEC | Minimum environmental criteria |
References
- Global Alliance for Buildings and Construction, International Energy Agency and the United Nations Environment Programme. 2020 Global Status Report for Buildings and Construction: Towards a Zero-Emission, Efficient and Resilient Buildings and Construction Sector. Available online: https://globalabc.org/sites/default/files/inline-files/2020%20Buildings%20GSR_FULL%20REPORT.pdf (accessed on 14 July 2022).
- European Commission. A Renovation Wave for Europe-Greening Our Buildings, Creating Jobs, Improving Lives. Available online: https://eur-lex.europa.eu/legal-content/EN/TXT/?qid=1603122220757&uri=CELEX:52020DC0662#footnote5 (accessed on 14 July 2022).
- Delivering the European Green Deal. Available online: https://ec.europa.eu/info/strategy/priorities-2019-2024/european-green-deal/delivering-european-green-deal_en (accessed on 14 July 2022).
- Kheiri, F. A review on optimization methods applied in energy-efficient building geometry and envelope design. Renew. Sustain. Energy Rev. 2018, 92, 897–920. [Google Scholar] [CrossRef]
- Rabbat, C.; Awad, S.; Villot, A.; Rollet, D.; Andrès, Y. Sustainability of biomass-based insulation materials in buildings: Current status in France, end-of-life projections and energy recovery potentials. Renew. Sustain. Energy Rev. 2022, 156, 111962. [Google Scholar] [CrossRef]
- Technology Roadmap. Energy Efficient Building Envelopes. Available online: https://iea.blob.core.windows.net/assets/2be63379-1185-42e7-9608-94e5d3682956/TechnologyRoadmapEnergyEfficientBuildingEnvelopes.pdf (accessed on 31 August 2022).
- European Commission. Available online: https://ec.europa.eu/commission/presscorner/detail/en/qanda_20_1836 (accessed on 14 July 2022).
- Filippidou, F.; Jimenez Navarro, J.P. Achieving the Cost-Effective Energy Transformation of Europe’s Buildings; EUR 29906 EN; Publications Office of the European Union: Luxembourg, 2019; ISBN 978-92-76-12394-1. [Google Scholar] [CrossRef]
- ISTAT. “18 Costruzioni”. Available online: https://www.istat.it/it/files/2015/12/C18.pdf (accessed on 14 July 2022).
- Predisposizione del PAEE2014, ALLEGATO 1 –Riqualificazione Energetica del Parco Edilizio Nazionale. Available online: https://ec.europa.eu/energy/sites/ener/files/documents/it_building_renov_2017_annex_1_neeap_it.pdf (accessed on 30 August 2022).
- Amani, N.; Kiaee, E. Developing a two-criteria framework to rank thermal insulation materials in nearly zero energy buildings using multi-objective optimization approach. J. Clean. Prod. 2020, 276, 122592. [Google Scholar] [CrossRef]
- Zanni, J.; Cademartori, S.; Marini, A.; Belleri, A.; Passoni, C.; Giuriani, E.; Riva, P.; Angi, B.; Brumana, G.; Marchetti, A.L. Integrated Deep Renovation of Existing Buildings with Prefabricated Shell Exoskeleton. Sustainability 2021, 13, 11287. [Google Scholar] [CrossRef]
- European Commission. Long-Term Renovation Strategies. Available online: https://energy.ec.europa.eu/topics/energy-efficiency/energy-efficient-buildings/long-term-renovation-strategies_en (accessed on 21 July 2022).
- Pernetti, R.; Pinotti, R.; Lollini, R. Repository of deep renovation packages based on industrialized solutions: Definition and application. Sustainability 2021, 13, 6412. [Google Scholar] [CrossRef]
- Cumo, F.; Nardecchia, F.; Agostinelli, S.; Rosa, F. Transforming a Historic Public Office Building in the Centre of Rome into nZEB: Limits and Potentials. Energies 2022, 15, 697. [Google Scholar] [CrossRef]
- Elnagar, E.; Munde, S.; Lemort, V. Energy Efficiency Measures Applied to Heritage Retrofit Buildings: A Simulated Student Housing Case Study in Vienna. Heritage 2021, 4, 3919–3937. [Google Scholar] [CrossRef]
- Kamari, A.; Corrao, R.; Kirkegaard, P.H. Sustainability focused decision-making in building renovation. Int. J. Sustain. Built Env. 2017, 6, 330–350. [Google Scholar] [CrossRef]
- Oregi, X.; Hernandez, P.; Hernandez, R. Analysis of life-cycle boundaries for environmental and economic assessment of building energy refurbishment projects. Energy Build. 2017, 136, 12–25. [Google Scholar] [CrossRef]
- Bisello, A. Assessing Multiple Benefits of Housing Regeneration and Smart City Development: The European Project SINFONIA. Sustainability 2020, 12, 8038. [Google Scholar] [CrossRef]
- Nitu, M.A.; Gocer, O.; Wijesooriya, N.; Vijapur, D.; Candido, C. A Biophilic Design Approach for Improved Energy Performance in Retrofitting Residential Projects. Sustainability 2022, 14, 3776. [Google Scholar] [CrossRef]
- Ferreira, M.; Almeida, M.; Rodrigues, A. Impact of co-benefits on the assessment of energy related building renovation with a nearly-zero energy target. Energy Build. 2017, 152, 587–601. [Google Scholar] [CrossRef]
- Biyik, E.; Araz, M.; Hepbasli, A.; Shahrestani, M.; Yao, R.; Shao, L.; Essah, E.; Oliveira, A.C.; Del Cano, T.; Rico, E.; et al. A key review of building integrated photovoltaic (BIPV) systems. Eng. Sci. Technol. 2017, 20, 833–858. [Google Scholar] [CrossRef]
- Saretta, E.; Caputo, P.; Frontini, F. A review study about energy renovation of building facades with BIPV in urban environment. Sustain. Cities Soc. 2019, 44, 343–355. [Google Scholar] [CrossRef]
- Agostinelli, S.; Cumo, F.; Nezhad, M.M.; Orsini, G.; Piras, G. Renewable Energy System Controlled by Open-Source Tools and Digital Twin Model: Zero Energy Port Area in Italy. Energies 2022, 15, 1817. [Google Scholar] [CrossRef]
- Dermentzis, G.; Ochs, F.; Siegele, D.; Feist, W. Renovation with an Innovative Compact Heating and Ventilation System Integrated into the Façade—An in-Situ Monitoring Case Study. Energy Build. 2018, 165, 451–463. [Google Scholar] [CrossRef]
- Fotopoulou, A.; Semprini, G.; Cattani, E.; Schihin, Y.; Weyer, J.; Gulli, R.; Ferrante, A. Deep Renovation in Existing Residential Buildings through Façade Additions: A Case Study in a Typical Residential Building of the 70s. Energy Build. 2018, 166, 258–270. [Google Scholar] [CrossRef]
- Reggio, A.; Restuccia, L.; Menardi, A.; Corrado, V.; Ferro, G.A. Integrated, sustainable, low-impact retrofitting through exoskeleton structures: A case study. In Proceedings of the XVIII CONVEGNO ANIDIS, Ascoli Piceno, Italy, 15–19 September 2019. [Google Scholar]
- Torres, J.; Garay-Martinez, R.; Oregi, X.; Torrens-Galdiz, J.I.; Uriarte-Arrien, A.; Pracucci, A.; Casadei, O.; Magnani, S.; Arroyo, N.; Cea, A.M. Plug and Play Modular Façade Construction System for Renovation for Residential Buildings. Buildings 2021, 11, 419. [Google Scholar] [CrossRef]
- Salvalai, G.; Sesana, M.M.; Iannaccone, G. Deep renovation of multi-storey multi-owner existing residential buildings: A pilot case study in Italy. Energy Build. 2017, 148, 23–36. [Google Scholar] [CrossRef]
- Reliable Models for Deep Renovation. Available online: https://4rineu.eu/ (accessed on 21 July 2022).
- Deep Renovation Packages and Parametric Models in Different Geo-Clusters. Available online: https://4rineu.eu/wp-content/uploads/2021/02/4RinEU_D3.3-4RinEU-Deep-Renovation-Packages_Annex.pdf (accessed on 23 August 2022).
- Heart. Available online: https://heartproject.eu/ (accessed on 21 July 2022).
- Plug & Play Building Renovation. Available online: https://www.p2endure-project.eu/en (accessed on 21 July 2022).
- More-Connect. Available online: https://www.more-connect.eu/ (accessed on 21 July 2022).
- Op ‘t Veld, P. MORE-CONNECT: Development and advanced prefabrication of innovative, multifunctional building envelope elements for modular retrofitting and smart connections. Energy Procedia 2015, 78, 1057–1062. [Google Scholar] [CrossRef]
- Flourentzou, F.; Genre, J.-L.; Roulet, C.-A. Epiqr-tobus: A new generation of refurbishment decision aid methods. In Towards Sustainable Building; Maiellaro, N., Ed.; Springer Science + Business Media: Dordrecht, The Netherlands, 2001; Volume 61, pp. 161–169. [Google Scholar]
- Häkkinen, T. Systematic method for the sustainability analysis of refurbishment concepts of exterior walls. Constr. Build. Mater. 2012, 37, 783–790. [Google Scholar] [CrossRef]
- Sdei, A.; Tittelein, P.; Lassue, S.; McEvoy, M.E. Dynamic Thermal Modeling of Retrofitted Social Housing in England and France. In Proceedings of the CLIMA 2013: 11th REHVA World Congress and the 8th International Conference on Indoor Air Quality, Ventilation and Energy Conservation in Buildings, Prague, Czech Republic, 16–19 June 2013; Society of Environmental Engineering (STP): Prague, Czech Republic, 2013; p. 6882. [Google Scholar]
- Ballarini, I.; Corgnati, S.P.; Corrado, V. Use of reference buildings to assess the energy saving potentials of the residential building stock: The experience of TABULA project. Energy Policy 2014, 68, 273–284. [Google Scholar] [CrossRef]
- Nemry, F.; Uihlein, A.; Colodel, C.M.; Wetzel, C.; Braune, A.; Wittstock, B.; Hasan, I.; Kreiflig, J.; Gallon, N.; Niemeier, S.; et al. Options to reduce the environmental impacts of residential buildings in the european union—Potential and costs. Energy Build. 2010, 42, 976–984. [Google Scholar] [CrossRef]
- Konstantinou, T. A Methodology to Support Decision-Making towards an Energy-Efficiency Conscious Design of Residential Building Envelope Retrofitting. Buildings 2015, 5, 1221–1241. [Google Scholar] [CrossRef]
- Cumo, F.; Giustini, F.; Pennacchia, E.; Romeo, C. Support Decision Tool for Sustainable Energy Requalification the Existing Residential Building Stock. The Case Study of Trevignano Romano. Energies 2021, 14, 74. [Google Scholar] [CrossRef]
- Electrical System Research Report. Available online: https://www.enea.it/it/Ricerca_sviluppo/documenti/ricerca-di-sistema-elettrico/adp-mise-enea-2019-2021/efficienza-energetica-dei-prodotti-e-dei-processi-industriali/report-rds_ptr2019_073.pdf. (accessed on 26 July 2022).
- Digitalisation in the Construction Sector. Available online: https://ec.europa.eu/growth/document/download/3ae8a41e-4b82-4150-968c-1fc73d1e2f61_en (accessed on 29 August 2022).
- Pattini, G.; Seghezzi, E.; Di Giuda, G.M. Digitalization in construction: Blockchain applicability in the industry. Proc. Int. Struct. Eng. Constr. 2021, 8, 1–6. [Google Scholar] [CrossRef]
- Begić, H.; Galić, M.; Dolaček-Alduk, Z. Digitalization and automation in construction project’s life-cycle: A review. J. Inf. Technol. Constr. ITcon 2022, 27, 441–460. [Google Scholar] [CrossRef]
- Ciribini, A. Il Cantiere Digitale; Società Editrice Esculapio: Bologna, Italia, 2019. [Google Scholar]
- Agostinelli, S.; Cumo, F.; Guidi, G.; Tomazzoli, C. Cyber-Physical Systems Improving Building Energy Management: Digital Twin and Artificial Intelligence. Energies 2021, 14, 2338. [Google Scholar] [CrossRef]
- Italy: “Industria 4.0”. Available online: https://ati.ec.europa.eu/sites/default/files/2020-06/DTM_Industria4.0_IT%20v2wm.pdf (accessed on 29 August 2022).
- Lemmon, T.; Biddiscombe, P. Adapting 3D laser scanning for the surveyor: Meeting specific needs to increase productivity. Gim International 2006, 20, 13–15. [Google Scholar]
- Manuranga, K.P.; Dampegama, K.P.; Wickramathilaka, N.V.; Lakmal, A.H.; Prasanna, H.M.I. An approach for real world as-built survey with the 3D terrestrial laser scanner. In Proceedings of the 8th International Symposium on Advances in Civil and Environmental Engineering Practices for Sustainable Development, Galle, Sri Lanka; 2021. [Google Scholar]
- Watfa, M.K.; Hawash, A.E.; Jaafar, K. Using Building Information & Energy Modelling for Energy Efficient Designs. J. Inf. Technol. Constr. 2021, 26, 427–440. [Google Scholar]
- Barbosa, F.; Woetzel, J.; Mischke, J.; Ribeirinho, M.J.; Sridhar, M.; Parsons, M.; Bertram, N.; Brown, S. Reinventing Construction: A Route to Higher Productivity; McKinsey Global Institute: New York, NY, USA, 2017. [Google Scholar]
- VPS Nanyama, N.; Sawhneyb, A.; Guptaa, P.A. Evaluating Offsite Technologies for Affordable Housing. Procedia Eng. 2017, 196, 135–143. [Google Scholar] [CrossRef]
- Pan, W.; Gibb, A.; Dainty, D. Off-Site Modern Methods of Construction in Housebuilding: Perspectives and Practices of Leading UK Housebuilders; Buildoffsite.Loughborough University: Loughborough, UK, 2005. [Google Scholar]
- Mihindu, S.; Arayici, Y. Digital Construction through BIM Systems will Drive the Re-engineering of Construction Business Practices. In Proceedings of the 2008 International Conference Visualisation, London, UK, 9–11 July 2008; pp. 29–34. [Google Scholar]
- Barazzetti, L.; Banfi, F.; Brumana, R.; Gusmeroli, G.; Previtali, M.; Schiantarelli, G. Cloud-to-BIM-to-FEM: Structural simulation with accurate historic BIM from laser scans. Simul. Model. Pract. Theory 2015, 57, 71–87. [Google Scholar] [CrossRef]
- Lopes, G.C.; Vicente, R.; Azenha, M.; Ferreira, T.M. A systematic review of prefabricated enclosure wall panel systems: Focus on technology driven for functional requirements. In Proceedings of the 12th Conference of Advanced Building Skins, Bern, Switzerland, 2–3 October 2017. [Google Scholar]
- Bassi, A.; Ottone, C.; Dell’Ovo, M. Minimum Environmental Criteria in the architectural project. Trade-off between environmental, economic and social sustainability. J. Valori Valutazioni 2019, 22, 35–45. [Google Scholar]
- Pihelo, P.; Kalamees, T. Development of prefabricated insulation elements forbuildings with aerated autoclaved concrete walls. In Proceedings of the 12th Nordic Symposium on Building Physics (NSB 2020), Tallinn, Estonia, 7–9 September 2020. [Google Scholar]
- Pihelo, P.; Kuusk, K.; Kalamees, T. Development and Performance Assessment of Prefabricated Insulation Elements for Deep Energy Renovation of Apartment Buildings. Energies 2020, 13, 1709. [Google Scholar] [CrossRef] [Green Version]
- Ehlers, T.; Elsenhuber, U.; Jegarasasingam, A.; Jondeau, E. Deconstructing ESG Scores: How to Invest with Your own Criteria. Swiss Finance Institute Research Paper Series 22–23, 2022, Swiss Finance Institute. Available online: https://ssrn.com/abstract=4055418 (accessed on 30 August 2022).
- Chambers, D.R.; Kazemi, H.; Black, K.H. Alternative Investments. An Allocator’s Approach, 4th ed.; John Wiley & Sons: Hoboken, NJ, USA, 2021; pp. 60–61. [Google Scholar]
- Building on Change: ESG Considerations for the Construction Industry. Available online: https://www.agcs.allianz.com/news-and-insights/expert-risk-articles/esg-construction-industry.html (accessed on 29 July 2022).
Publisher’s Note: MDPI stays neutral with regard to jurisdictional claims in published maps and institutional affiliations. |
© 2022 by the authors. Licensee MDPI, Basel, Switzerland. This article is an open access article distributed under the terms and conditions of the Creative Commons Attribution (CC BY) license (https://creativecommons.org/licenses/by/4.0/).

