Sign in to use this feature.

Years

Between: -

Subjects

remove_circle_outline
remove_circle_outline
remove_circle_outline
remove_circle_outline
remove_circle_outline
remove_circle_outline
remove_circle_outline
remove_circle_outline
remove_circle_outline

Journals

Article Types

Countries / Regions

Search Results (199)

Search Parameters:
Keywords = anchor bolts

Order results
Result details
Results per page
Select all
Export citation of selected articles as:
20 pages, 4923 KB  
Article
Evolution Law and Stability Control of Energy–Plastic Zone of Surrounding Rock After Secondary Mining in Narrow Pillar Roadway in Thick Seam
by Kun Lv, Zhigang Deng, Jicheng Feng, Mingqi Jia, Xiangye Wu, Aoran Ma and Zhihai Ji
Processes 2025, 13(10), 3152; https://doi.org/10.3390/pr13103152 - 2 Oct 2025
Abstract
To address the stability control challenges of narrow coal pillar roadways along goaf-sides affected by thick coal seam secondary mining, this study investigates the 51507 track gateway in Liuyuanzi Coal Mine through theoretical analysis, numerical simulation, and field testing. The research focuses on [...] Read more.
To address the stability control challenges of narrow coal pillar roadways along goaf-sides affected by thick coal seam secondary mining, this study investigates the 51507 track gateway in Liuyuanzi Coal Mine through theoretical analysis, numerical simulation, and field testing. The research focuses on stress evolution and energy distribution characteristics during secondary mining extraction. Key findings include the following: (1) Under the superimposed influence of goaf-side abutment pressure and secondary mining front abutment pressure, roadway surrounding rock exhibits regional asymmetric characteristics in energy dissipation. (2) Within 10 m ahead of the secondary mining face, the coal pillar experiences intense energy dissipation and plastic zone penetration, leading to bearing structure failure. (3) The energy mechanism reveals that asymmetric dissipative energy distribution drives plastic zone expansion. Accordingly, an integrated control strategy combining differentiated support (bolts/cables + tension-type opposite anchor cables + hydraulic props) with coal pillar grouting modification was developed. Field implementation demonstrated effective control of surrounding rock deformation within 200 mm. This study provides theoretical foundations and technical references for roadway stability control under similar mining conditions. Full article
Show Figures

Figure 1

32 pages, 7351 KB  
Article
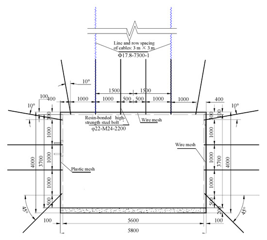
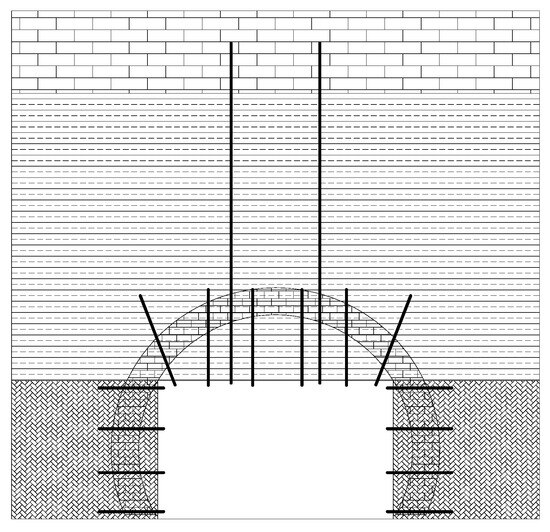
Function of Bolts in Arching Process of Surrounding Rocks of Roadways and Its Application in Support Design for Large Section Gateways
by Tuanjie Guo, Peiju Yang, Jitao Zhao and Zhenglong Cheng
Appl. Sci. 2025, 15(19), 10327; https://doi.org/10.3390/app151910327 - 23 Sep 2025
Viewed by 81
Abstract
In order to determine appropriate anchoring parameters after enlarging the cross-section of the mining roadway, a comprehensive study was conducted to investigate the development of deformation and failure characteristics in the surrounding rock. The mechanical behavior of rock failure under high-stress conditions and [...] Read more.
In order to determine appropriate anchoring parameters after enlarging the cross-section of the mining roadway, a comprehensive study was conducted to investigate the development of deformation and failure characteristics in the surrounding rock. The mechanical behavior of rock failure under high-stress conditions and the progressive evolution of deformation and failure from shallow to deep zones were thoroughly analyzed. It was proposed that the primary function of bolt support in mining roadways is to guide the surrounding rock to form a stable compressive arch or ring structure. The mechanical mechanism underlying the formation of such an arch under bolt guidance, along with the stability characteristics during this process, was investigated. The principles for determining bolt support parameters were established as follows: (a) ensuring the formation of a closed compressive ring within the anchorage zone around the roadway; (b) preventing shear failure at the roadway corners; and (c) controlling the extent of roof subsidence under gravitational loading. Design methodologies for determining rock bolt and anchor cable length and spacing were formulated and implemented in the support design of large-section mining roadways within million-ton fully mechanized mining faces. The cross-sectional dimensions of the supported roadway are 5.8 × 4.0 m. Field monitoring results indicate that, after stabilization of the surrounding rock deformation, the maximum convergence between both sides does not exceed 140 mm, the maximum roof subsidence remains below 40 mm, and the maximum roof separation is limited to within 4 mm. These findings provide strong evidence that the selected design parameters fully meet the engineering requirements for roadway support. Full article
Show Figures

Figure 1

37 pages, 8947 KB  
Article
Experimental and Numerical Analysis on the Static and Dynamic Performance of Adhesive Bolts in Various Ground Conditions
by Tshepiso Mollo, Fhatuwani Sengani and Jeffrey Mahachi
Appl. Sci. 2025, 15(18), 10293; https://doi.org/10.3390/app151810293 - 22 Sep 2025
Viewed by 277
Abstract
This study evaluates adhesive bolts (chemical anchors) bonded with epoxy and vinyl ester resins for surface and tunnel excavations in tropical mining environments under static and dynamic loading. Over 300 pull-out tests in concrete and hard rock examined the effects of bolt length, [...] Read more.
This study evaluates adhesive bolts (chemical anchors) bonded with epoxy and vinyl ester resins for surface and tunnel excavations in tropical mining environments under static and dynamic loading. Over 300 pull-out tests in concrete and hard rock examined the effects of bolt length, curing time, and substrate condition on load capacity, failure mode, and bond–slip response. Epoxy anchors exhibited higher bond strength, including under early-age and thermally active conditions, while vinyl ester showed improved ductility and post-peak behaviour in fractured rock. Numerical modelling with Rocscience RS2 (Phase 2) and Unwedge simulated excavation responses for bolt lengths of 190–250 mm and spacings of 0.5–2.0 m. Tensile failure dominated at wider spacings, whereas closely spaced anchors enhanced confinement and redistributed stresses. The combined experimental–numerical evidence quantifies chemical-anchor performance in complex subsurface settings and supports their use for early-age support and long-term stability. Findings motivate integration of resin-grouted bolts into modern support designs, particularly in seismically sensitive or hydrothermally variable mines. Full article
(This article belongs to the Special Issue Latest Advances in Rock Mechanics and Geotechnical Engineering)
Show Figures

Figure 1

14 pages, 1108 KB  
Article
A Novel Displacement Prediction Model for Inclined Anchor Bolt Based on Mindlin’s Solution
by Zhenhua Zhang, Guojuan Xu and Banglu Xi
J. Mar. Sci. Eng. 2025, 13(9), 1828; https://doi.org/10.3390/jmse13091828 - 21 Sep 2025
Viewed by 131
Abstract
Since anchoring technology is a key measure to enhance the deformation resistance of engineering structures, it is widely applied in bridges, dams, power transmission lines, and offshore platforms. The displacement of anchor bolts directly affects the deformation resistance of structures, and anchor bolts [...] Read more.
Since anchoring technology is a key measure to enhance the deformation resistance of engineering structures, it is widely applied in bridges, dams, power transmission lines, and offshore platforms. The displacement of anchor bolts directly affects the deformation resistance of structures, and anchor bolts are frequently arranged at an inclination angle in engineering practice—this inclination angle significantly affects their displacement. However, existing anchor bolt displacement prediction models do not account for the influence of inclination angles. To address this gap, a novel displacement prediction model for inclined anchor bolts based on Mindlin’s solution is proposed in this paper. The validation with three experimental datasets shows that the model’s relative errors are within 5%. Even if minor measurement uncertainties regarding input parameters exist in practical engineering scenarios, the calculated displacement results will not undergo significant deviations. The anchor bolt displacement prediction model proposed in this paper may help scholars better understand the relationship between anchor bolt inclination angle and displacement. Full article
(This article belongs to the Section Ocean Engineering)
Show Figures

Figure 1

28 pages, 2825 KB  
Review
Review of Non-Destructive Testing for Wind Turbine Bolts
by Hongyu Sun, Jingqi Dong, Hao Liu, Wenze Shi, Qibo Feng, Kai Yao, Songling Huang, Lisha Peng and Zhichao Cai
Sensors 2025, 25(18), 5726; https://doi.org/10.3390/s25185726 - 13 Sep 2025
Viewed by 528
Abstract
As the world increasingly gravitates towards green, environmentally friendly and low-carbon lifestyles, wind power has become one of the most technologically established renewable energy sources. However, with the continuous increase in their output power and height, wind turbine towers are subjected to higher-intensity [...] Read more.
As the world increasingly gravitates towards green, environmentally friendly and low-carbon lifestyles, wind power has become one of the most technologically established renewable energy sources. However, with the continuous increase in their output power and height, wind turbine towers are subjected to higher-intensity alternating wind loads. This makes critical components more prone to fatigue failure, potentially leading to major accidents such as tower buckling or turbine collapse. High-strength bolts play a vital role in supporting towers but are susceptible to fatigue crack initiation under long-term cyclic loading, necessitating regular inspection. Types of wind turbine bolts mainly include high-strength bolts, stainless steel bolts, anchor bolts, titanium alloy bolts, and adjustable bolts. These bolts are distributed across different parts of the turbine and perform distinct functions. Among them, high-strength bolts in the tower are particularly critical for structural support, demanding prioritized periodic inspection. Compared to destructive offline inspection methods requiring bolt disassembly, non-destructive testing (NDT) has emerged as a trend in defect detection technologies. Therefore, this review comprehensively examines various types of NDT techniques for wind turbine towers’ high-strength bolts, including disassembly inspection techniques (magnetic particle inspection, penetration inspection, intelligent torque inspection, etc.) and non-disassembly inspection techniques (ultrasonic inspection, radiographic inspection, infrared thermographic inspection, etc.). For each technique, we analyze the fundamental principles, technical characteristics, and limitations, while emphasizing the interconnections between the methodologies. Finally, we discuss potential future research directions for bolt defect NDT technologies. Full article
(This article belongs to the Section Industrial Sensors)
Show Figures

Figure 1

20 pages, 11441 KB  
Article
Mechanism and Optimized Design Methodology of Steel Plate Reinforcement for Tunnel Lining Void Zones
by Shuai Shao, Yimin Wu, Helin Fu and Jiawei Zhang
Materials 2025, 18(17), 4204; https://doi.org/10.3390/ma18174204 - 8 Sep 2025
Viewed by 491
Abstract
Voids behind tunnel linings are common hidden defects in underground engineering, leading to reduced structural capacity and potential safety hazards. To address the deficiencies in the understanding of the mechanism and the optimization of design of the existing steel plate reinforcement methods, this [...] Read more.
Voids behind tunnel linings are common hidden defects in underground engineering, leading to reduced structural capacity and potential safety hazards. To address the deficiencies in the understanding of the mechanism and the optimization of design of the existing steel plate reinforcement methods, this study systematically investigates the reinforcement mechanisms and proposes refined design strategies through numerical simulations and experimental validation. First, a comparative analysis of the Concrete Damage Plasticity (CDP) model and the Extended Finite Element Method (XFEM) revealed that the CDP model exhibits superior accuracy and computational efficiency in simulating large-scale void linings. Second, the effectiveness of different reinforcement schemes (chemical anchor bolts alone, structural adhesive alone, and combined systems) was evaluated, demonstrating that structural adhesive dominates stress transfer, while chemical anchor bolts primarily prevent plate detachment. Through further optimization simulations of the steel plate spacing, it was found that a spacing of 0.25 m can balance the reinforcement effect and cost. This spacing restricts the maximum principal stress (1.83 MPa) below the tensile strength of concrete while essentially eliminating damage to the lower surface of the lining. An optimized steel plate reinforcement structure was ultimately proposed. By reducing the number of chemical anchor bolts and decreasing their size (with only M12 chemical anchor bolts arranged at the edges), local damage is minimized while maintaining reinforcement efficiency. The research results provide theoretical support and engineering guidance for the safe repair of tunnel void areas. Full article
(This article belongs to the Section Construction and Building Materials)
Show Figures

Figure 1

15 pages, 3289 KB  
Article
Lateral Confinement Reinforcement of Timber Under Perpendicular-to-Grain Compression
by Jose Ramón Aira-Zunzunegui and Laura Gonzalo-Calderón
Heritage 2025, 8(9), 368; https://doi.org/10.3390/heritage8090368 - 5 Sep 2025
Viewed by 297
Abstract
One of the most common issues encountered in the rehabilitation of timber-structured buildings is the crushing of elements subjected to compression perpendicular to the grain. This crushing results in differential settlements that decrease comfort and, in some cases, compromise the habitability of the [...] Read more.
One of the most common issues encountered in the rehabilitation of timber-structured buildings is the crushing of elements subjected to compression perpendicular to the grain. This crushing results in differential settlements that decrease comfort and, in some cases, compromise the habitability of the building. This study analyzed a reinforcement method involving the lateral confinement of timber members using two metallic side plates. Experimental tests were conducted with various configurations of the bolts used to fix the plates. In addition, several finite element models were developed and validated to extend the scope of the analysis virtually. An initial reinforcement proposal was examined, in which the metal plates were allowed to move vertically with the wood’s deformation. This setup achieved only a 26% reduction in deformation. Subsequently, an enhanced reinforcement system was tested, wherein the plates were anchored to the lower vertical stud, preventing their vertical movement. This configuration significantly enhanced performance, achieving maximum deformation reductions of up to 53%. Finally, in the improved reinforcement system, the load distribution among the bolts was analyzed to support their structural design. Full article
(This article belongs to the Section Architectural Heritage)
Show Figures

Figure 1

26 pages, 6981 KB  
Article
Parametric Study of the Effect of Anchor Drive Bolt Geometry on Stress Distribution and Direction of Crack Formation in the Rock Medium
by Józef Jonak, Robert Karpiński and Andrzej Wójcik
Materials 2025, 18(17), 4136; https://doi.org/10.3390/ma18174136 - 3 Sep 2025
Viewed by 806
Abstract
This paper presents an analysis of the influence of the termination geometry of an undercutting anchor drive bolt and the shape of the bottom of the anchor hole on the initiation and progression of failure processes in a rock medium. The study employed [...] Read more.
This paper presents an analysis of the influence of the termination geometry of an undercutting anchor drive bolt and the shape of the bottom of the anchor hole on the initiation and progression of failure processes in a rock medium. The study employed the finite element method (FEM) to model various bolt termination configurations, including cylindrical terminations with a 2 × 2 mm chamfer, a rounded termination with radius R, and a conical termination. The interaction of these bolt geometries with both cylindrical and conical hole bottoms was analyzed. The numerical simulations enabled the identification of stress concentration zones and crack propagation paths, which are critical to understanding the efficiency and mechanism of rock failure. The results indicate that the geometry of the bolt termination significantly influences stress distribution within the contact zone, as well as the extent and morphology of the resulting failure zone. Specifically, employing a cylindrical termination with a 2 × 2 mm chamfer in combination with a conical hole bottom promotes the development of deep fractures, which may lead to the detachment of larger rock fragments. This mechanism may be useful in the development of non-explosive rock fragmentation technologies. The findings provide a foundation for further optimization of anchor designs and the development of targeted excavation methods in mining and geotechnical engineering. Full article
Show Figures

Figure 1

18 pages, 5808 KB  
Article
Numerical Investigation of the Reinforcement Effect of Fully Grouted Bolts on Layered Rock Masses Under Triaxial Loading with One Free Surface
by Shiming Jia, Yiming Zhao, Zhengzheng Xie, Zhe Xiang and Yanpei An
Appl. Sci. 2025, 15(17), 9689; https://doi.org/10.3390/app15179689 - 3 Sep 2025
Viewed by 447
Abstract
The layered composite roof of a coal mine roadway exhibits heterogeneity, with pronounced variations in layer thickness and strength. Fully grouted rock bolts installed in such layered roofs usually penetrate two or more strata and bond with them to form an integrated anchorage [...] Read more.
The layered composite roof of a coal mine roadway exhibits heterogeneity, with pronounced variations in layer thickness and strength. Fully grouted rock bolts installed in such layered roofs usually penetrate two or more strata and bond with them to form an integrated anchorage system. Roof failure typically initiates in the shallow strata and progressively propagates to deeper layers; thus, the mechanical properties of the rock at the free surface critically influence the overall stability of the layered roof and the load-transfer behavior of the bolts. In this study, a layered rock mass model was developed using three-dimensional particle flow code (PFC3D), and a triaxial loading scheme with a single free surface was applied to investigate the effects of free-surface rock properties, support parameters, and confining pressure on the load-bearing performance of the layered rock mass. The main findings are as follows: (1) Without support, the ultimate bearing capacity of a hard-rock-free-surface specimen is about 1.2 times that of a soft-rock-free-surface specimen. Applying support strengths of 0.2 MPa and 0.4 MPa enhanced the bearing capacity by 29–38% and 46–75%, respectively. (2) The evolution of axial stress in the bolts reflects the migration of the load-bearing core of the anchored body. Enhancing support strength improves the stress state of bolts and effectively mitigates the effects of high-stress conditions. (3) Under loading, soft rock layers exhibit greater deformation than hard layers. A hard-rock free surface effectively resists extrusion deformation from deeper soft rocks and provides higher bearing capacity. Shallow free-surface failure is significantly suppressed in anchored bodies, and “compression arch” zones are formed within multiple layers due to bolt support. Full article
(This article belongs to the Special Issue Innovations in Rock Mechanics and Mining Engineering)
Show Figures

Figure 1

13 pages, 1496 KB  
Article
Numerical Assessment of Cast-in-Place Anchor Pullout Strength Regarding CCD Methodology
by Mohammad Mam-Ahmadi, Javad Mokari Rahmdel, Erfan Shafei, Saeed Tariverdilo and Tadeh Zirakian
Buildings 2025, 15(17), 3040; https://doi.org/10.3390/buildings15173040 - 26 Aug 2025
Viewed by 526
Abstract
Reliable anchorage of cast-in-place headed bolts in unreinforced concrete is vital in structural and industrial applications, where inaccurate strength predictions can compromise safety and efficiency. This study develops and validates an elastic–plastic concrete model within LS-DYNA to assess the tensile performance of headed [...] Read more.
Reliable anchorage of cast-in-place headed bolts in unreinforced concrete is vital in structural and industrial applications, where inaccurate strength predictions can compromise safety and efficiency. This study develops and validates an elastic–plastic concrete model within LS-DYNA to assess the tensile performance of headed anchors with varying embedment depth-to-diameter ratios. A parametric analysis is conducted, considering different concrete strengths, anchor sizes, and steel yield strengths. The results show notable deviations from the Concrete Capacity Design (CCD) method, particularly under high-strength concrete and reduced embedment ratios. The CCD method underestimates capacity at 30–40 MPa and overestimates it at 20 MPa. A correction coefficient is proposed to improve embedment depth estimation. The findings offer practical guidance for safer and more accurate anchor design. Full article
(This article belongs to the Special Issue Sustainable Development of Concrete and Composite Structures)
Show Figures

Figure 1

23 pages, 19888 KB  
Article
Research on Loosening Fault Diagnosis Method of Escalator Drive Mainframe Anchor Bolts Based on Improved High-Strength Denoising RCDAE Model
by Dongdong Chen, Minghui Chen, Binxin Lang, Xiaoqing Wang, Qiang Xu, Jiong Shen, Lihua Liang and Qin Luo
Sensors 2025, 25(17), 5219; https://doi.org/10.3390/s25175219 - 22 Aug 2025
Viewed by 629
Abstract
To address the challenges of weak early-stage loosening fault signals and strong environmental noise interference in escalator drive mainframe anchor bolts, which hinder effective fault feature extraction, this paper proposes an improved Residual Convolutional Denoising Autoencoder (RCDAE) for signal denoising in high-intensity noise [...] Read more.
To address the challenges of weak early-stage loosening fault signals and strong environmental noise interference in escalator drive mainframe anchor bolts, which hinder effective fault feature extraction, this paper proposes an improved Residual Convolutional Denoising Autoencoder (RCDAE) for signal denoising in high-intensity noise environments. The model combines DMS (Dynamically Multimodal Synergistic) loss function, the gated residual mechanism, and CNN–Transformer. The experimental results demonstrate that the proposed model achieves an average accuracy of 93.88% under noise intensities ranging from 10 dB to −10 dB, representing a 2.65% improvement over the baseline model without the improved RCDAE (91.23%). At the same time, in order to verify the generalization performance of the model, the CWRU bearing data set is used to conduct experiments under the same conditions. The experimental results show that the accuracy of the proposed model is 1.30% higher than that of the baseline model without improved RCDAE, validating the method’s significant advantages in noise suppression and feature representation. This study provides an effective solution for loosening fault diagnosis of escalator drive mainframe anchor bolts. Full article
(This article belongs to the Section Fault Diagnosis & Sensors)
Show Figures

Figure 1

28 pages, 13096 KB  
Article
Study on Failure Mechanism and Synergistic Support–Unloading Control Approach in Goaf-Side Roadways in Deep Thick Coal Seams
by Chong Zhang, Yue Sun, Yan Zhang, Yubing Huang, Huayu Yang, Zhenqing Zhang, Chen Chen and Hongdi Tian
Energies 2025, 18(16), 4330; https://doi.org/10.3390/en18164330 - 14 Aug 2025
Viewed by 410
Abstract
With coal mines’ mining depth increasing, the stress environment in deep mining (including key factors such as high ground stress, strong disturbance, and complex geological structures, as well as stress redistribution after deformation of surrounding roadway rock) is complex, which leads to increasingly [...] Read more.
With coal mines’ mining depth increasing, the stress environment in deep mining (including key factors such as high ground stress, strong disturbance, and complex geological structures, as well as stress redistribution after deformation of surrounding roadway rock) is complex, which leads to increasingly prominent deformation and failure problems for goaf-side roadways in thick coal seams. Surrounding rock deformation is difficult to control, and mine pressure behavior is violent, making traditional support technologies no longer able to meet the mining safety requirements of roadways in deep thick coal seams. Taking the 6311 working face of Tangkou Coal Mine as the engineering research background, this paper systematically summarizes the deformation and failure characteristics of goaf-side roadways in deep thick coal seams through field monitoring, borehole peeping, and other means, and conducts in-depth analysis of their failure mechanisms and influencing factors. Aiming at these problems, a synergistic support–unloading control method for goaf-side roadways is proposed, which integrates roof blasting pressure relief, coal pillar grouting reinforcement, and constant-resistance energy-absorbing anchor cable support. The effects of the unsupported scheme, original support scheme, and synergistic support–unloading control scheme are compared and analyzed through FLAC3D numerical simulation. Further verification through field application shows that it has remarkable effects in controlling roadway convergence deformation, roof separation, and bolt (cable) stress. Specifically, compared with the original support schemes, the horizontal displacement on the coal pillar side is reduced by 89.5% compared with the original support scheme, and the horizontal displacement on the solid coal side is reduced by 79.3%; the vertical displacement on the coal pillar side is reduced by 45.8% and the vertical displacement on the solid coal side is reduced by 42.4%. Compared with the original support scheme, the maximum deformation of the roadway’s solid coal rib, roof, and coal pillar rib is reduced by 76%, 83%, and 88%, respectively, while the separation between the shallow and deep roof remains at a low level. The coal stress continues fluctuating stably during the monitoring period; the force on the bolts (cables) does not exceed the designed anchoring force, with sufficient bearing reserve space (47% remaining), and no breakage occurs, which fully proves the feasibility and effectiveness of the synergistic support–unloading control technology scheme. This technology realizes the effective control of on-site roadways and provides technical reference for the support engineering of coal mine goaf-side roadways under similar conditions. Full article
Show Figures

Figure 1

15 pages, 2854 KB  
Review
A Review on the Applications of Basalt Fibers and Their Composites in Infrastructures
by Wenlong Yan, Jianzhe Shi, Xuyang Cao, Meng Zhang, Lei Li and Jingyi Jiang
Buildings 2025, 15(14), 2525; https://doi.org/10.3390/buildings15142525 - 18 Jul 2025
Cited by 3 | Viewed by 983
Abstract
This article presents a review on the applications of basalt fibers and their composites in infrastructures. The characteristics and advantages of high-performance basalt fibers and their composites are firstly introduced. Then, the article discusses strengthening using basalt fiber sheets and BFRP bars or [...] Read more.
This article presents a review on the applications of basalt fibers and their composites in infrastructures. The characteristics and advantages of high-performance basalt fibers and their composites are firstly introduced. Then, the article discusses strengthening using basalt fiber sheets and BFRP bars or grids, followed by concrete structures reinforced with BFRP bars, asphalt pavements, and cementitious composites reinforced with chopped basalt fibers in terms of mechanical behaviors and application examples. The load-bearing capacity of the strengthened structures can be increased by up to 60%, compared with those without strengthening. The lifespan of the concrete structures reinforced with BFRP can be extended by up to 50 years at least in harsh environments, which is much longer than that of ordinary reinforced concrete structures. In addition, the fatigue cracking resistance of asphalt can be increased by up to 600% with basalt fiber. The newly developed technologies including anchor bolts using BFRPs, self-sensing BFRPs, and BFRP–concrete composite structures are introduced in detail. Furthermore, suggestions are proposed for the forward-looking technologies, such as long-span bridges with BFRP cables, BFRP truss structures, BFRP with thermoplastic resin matrix, and BFRP composite piles. Full article
Show Figures

Figure 1

30 pages, 9068 KB  
Article
Dynamic Behavior of Lighting GFRP Pole Under Impact Loading
by Mahmoud T. Nawar, Ahmed Elbelbisi, Mostafa E. Kaka, Osama Elhosseiny and Ibrahim T. Arafa
Buildings 2025, 15(13), 2341; https://doi.org/10.3390/buildings15132341 - 3 Jul 2025
Viewed by 352
Abstract
Vehicle collisions with street lighting poles generate extremely high impact forces, often resulting in serious injuries or fatalities. Therefore, enhancing the structural resilience of pole bases is a critical engineering objective. This study investigates a comprehensive dynamic analysis conducted with respect to base [...] Read more.
Vehicle collisions with street lighting poles generate extremely high impact forces, often resulting in serious injuries or fatalities. Therefore, enhancing the structural resilience of pole bases is a critical engineering objective. This study investigates a comprehensive dynamic analysis conducted with respect to base material behavior and energy absorption of GFRP lighting pole structures under impact loads. A finite element (FE) model of a 5 m-tall tapered GFRP pole with a steel base sleeve, base plate, and anchor bolts was developed. A 500 kg drop-weight impact at 400 mm above the base simulated vehicle collision conditions. The model was validated against experimental data, accurately reproducing the observed failure mode and peak force within 6%. Parametric analyses explored variations in pole diameter, wall thickness, base plate size and thickness, sleeve height, and anchor configuration. Results revealed that geometric parameters—particularly wall thickness and base plate dimensions—had the most significant influence on energy absorption. Doubling the wall thickness reduced normalized energy absorption by approximately 76%, while increases in base plate size and thickness reduced it by 35% and 26%, respectively. Material strength and anchor bolt configuration showed minimal impact. These findings underscore the importance of optimizing pole geometry to enhance crashworthiness. Controlled structural deformation improves energy dissipation, making geometry-focused design strategies more effective than simply increasing material strength. This work provides a foundation for designing safer roadside poles and highlights areas for further exploration in base configurations and connection systems. Full article
(This article belongs to the Special Issue Extreme Performance of Composite and Protective Structures)
Show Figures

Figure 1

16 pages, 4197 KB  
Article
Optimization of Reinforcement Schemes for Stabilizing the Working Floor in Coal Mines Based on an Assessment of Its Deformation State
by Denis Akhmatnurov, Nail Zamaliyev, Ravil Mussin, Vladimir Demin, Nikita Ganyukov, Krzysztof Zagórski, Krzysztof Skrzypkowski, Waldemar Korzeniowski and Jerzy Stasica
Materials 2025, 18(13), 3094; https://doi.org/10.3390/ma18133094 - 30 Jun 2025
Cited by 1 | Viewed by 473
Abstract
In the Karaganda coal basin, deteriorating geomechanical conditions have been observed, including seam disturbances, diminished strength of argillite–aleurolite strata, water ingress, and pronounced floor heave, all of which markedly increase the labor intensity of maintaining developmental headings. The maintenance and operation of these [...] Read more.
In the Karaganda coal basin, deteriorating geomechanical conditions have been observed, including seam disturbances, diminished strength of argillite–aleurolite strata, water ingress, and pronounced floor heave, all of which markedly increase the labor intensity of maintaining developmental headings. The maintenance and operation of these entries for a reference coal yield of 1000 t necessitate 72–75 man-shifts, of which 90–95% are expended on mitigating ground pressure effects and restoring support integrity. Conventional heave control measures—such as relief drifts, slotting, drainage, secondary blasting, and the application of concrete or rock–bolt systems—deliver either transient efficacy or incur prohibitive labor and material expenditures while lacking unified methodologies for predictive forecasting and support parameter design. This study therefore advocates for an integrated framework that synergizes geomechanical characterization, deformation prognosis, and the tailored selection of reinforcement schemes (incorporating both sidewall and floor-anchoring systems with directed preloading), calibrated to seam depth, geometry, and lithological properties. Employing deformation state assessments to optimize reinforcement layouts for floor stabilization in coal mine workings is projected to curtail repair volumes by 30–40% whilst significantly enhancing operational safety, efficiency, and the punctuality of face preparation. Full article
(This article belongs to the Section Materials Physics)
Show Figures

Figure 1

Back to TopTop