Next Article in Journal / Special Issue
Numerical and Code-Based Investigation on the Impact of Corrosion on the Ultimate Compressive Strength of Steel Angle Members Using Thickness Reduction Method
Previous Article in Journal
Experimental Evaluation of Post-Earthquake Fire on Reinforced Concrete Structures—A Review
Previous Article in Special Issue
Eco-Friendly Geopolymer Composites Prepared from Agro-Industrial Wastes: A State-of-the-Art Review
 
 
Font Type:
Arial Georgia Verdana
Font Size:
Aa Aa Aa
Line Spacing:
Column Width:
Background:
Article

Numerical Modeling and Analysis of Strengthened Steel–Concrete Composite Beams in Sagging and Hogging Moment Regions

1
Department of Engineering and Technology, Texas A&M University–Commerce, Commerce, TX 75429, USA
2
Department of Structural Engineering, Zagazig University, Zagazig 44519, Egypt
3
Department of Civil and Environmental Engineering, University of Missouri, Columbia, MO 65211-2200, USA
4
Department of Civil Engineering, University of Baghdad, Baghdad 17001, Iraq
*
Author to whom correspondence should be addressed.
CivilEng 2023, 4(2), 483-505; https://doi.org/10.3390/civileng4020028
Submission received: 9 March 2023 / Revised: 5 April 2023 / Accepted: 20 April 2023 / Published: 27 April 2023
(This article belongs to the Special Issue Feature Papers in CivilEng)

Abstract

Strengthening of composite beams is highly needed to upgrade the capacities of existing beams. The strengthening methods can be classified as active or passive techniques. Therefore, the main purpose of this study is to provide detailed FE simulations for strengthened and unstrengthened steel–concrete composite beams at the sagging and hogging moment regions with and without profiled steel sheeting. The developed models were verified against experimental results from the literature. The verified models were used to present comparisons between the effect of using external post-tensioning and CFRP laminates as strengthening techniques. Applying external post-tensioning at the sagging moment regions is more effective because of the exhibited larger eccentricity. In the form of an initial camber and compressive stresses in the bottom flange prior to loading, this reasonable eccentricity induces reverse loading on the reinforced beams, reducing the net tensile stress induced during loading. Using CFRP laminates on the concrete slab for continuous composite beams is more effective in enhancing the beam capacity in comparison with using the external post-tension. However, reductions in the beam ductility were obtained.

1. Introduction

During the last few years, steel beams that act compositely with floor slabs have been extensively used in building and bridge constructions. Earlier versions of composite beam construction can be traced back to bridge building, which generally used wood-formed and shored construction. Several systems of the composite metal deck which are used as a permanent form and also as external reinforcement have been in vogue and have virtually replaced wood-formed systems. The reduced labor costs and faster construction resulting from the elimination of formwork, combined with the facility to weld shear studs onto the beam flanges through the metal deck, have been the basic elements in its universal adaptation. It has been well established that concrete slabs and steel beams act as one unit when joined together to resist horizontal shear. In high-rise buildings, the slab usually takes the form of a fluted metal deck with structural concrete topping, and the beams are usually rolled-steel sections. The required interaction between the two parts is achieved by providing resistance to horizontal shear by welding shear connectors to the beam top flange. Such a combination of two distinctly different materials results in a significant increase in the strength and stiffness of the bending member.
Nowadays, upgrading existing structures (concrete, steel, and composite structures) is becoming highly needed for several reasons such as expired design life, change in functionality, the potential damage caused by mechanical actions and environmental effects, and more stringent design requirements. Steel plate bonding and steel patching, which are regarded as passive strengthening techniques, are just two of the techniques that have been developed for strengthening concrete structures. Due to the numerous drawbacks of these techniques, including the need for large and costly formwork to hold the plates in place while the adhesive cures, the corrosion of the plates, the limited delivery lengths of plates, and the handling and installation of heavy plates, alternative methods of strengthening are employed, such as post-tensioning, which is regarded as an active strengthening method.
Previous studies have experimentally and numerically investigated the flexural behavior of strengthened and unstrengthened steel–concrete composite structures [1,2,3,4,5,6,7,8]. The influence of the effective width of the concrete slab was investigated for composite beams at the hogging moment region [1]. The effective width played an important role in the gain or loss of the beam moment capacity. The partial shear connection is applicable for both negative and positive bending regions of continuous beams [2]. When using lower degrees of shear connection, there was no appreciable difference in the ultimate load capacity of composite beams when they were subjected to the hogging moment. The increase in rotational capacity, however, was found to improve ductility [3]. Nie et al. [4] investigated the stiffness and capacity of steel–concrete composite beams with profiled sheeting by considering shear slip effects. The interface slip effect reduced the stiffness of the profiled sheeting beams, the elastic flexural capacity was reduced due to additional moments caused by the slip effect, and the stud spacing also had an effect on the shear capacity similar to the shape of the profiled sheeting. The shear span has a significant impact on how the embossed profiled composite steel deck slab behaves. Shear bond failure controls the slab’s strength for shorter shear spans; if the shear span is long enough, flexural failure controls the slab’s behavior [5]. To determine the impact of externally prestressed tendons on fatigue behavior and beam capacity, El-Zohairy et al. [6] tested four composite beams. They discovered that the prestressed tendon could lessen the strain on the beam components at all levels of loading, improving the performance of the beam under fatigue. Two composite beams with profiled steel decking were tested under two points of loading by Da Rocha Almeida et al. [7,8] in both prestressed and non-prestressed conditions. Due to excessive model deformations and safety concerns, the test was stopped before it could fail.
On the other hand, it was investigated how carbon-fiber-reinforced polymer (CFRP) laminates-strengthened continuous steel–concrete composite beams at the hogging moment regions could increase their flexural capacity and crack resistance [9]. To simulate the part of continuous steel–concrete composite beams at the hogging moment region, the specimens were tested while inverted under four-point loading. When using one or two layers, the CFRP laminates increased the beam capacity by 18% and 22%, respectively. The CFRP laminates ruptured, the steel rebars in the reinforced beams yielded, and then there was diagonal cracking close to the supports [9]. It was advised to use the CFRP technique for bridges with at least 80% composite action between the steel beam and concrete slab in order to obtain the best performance possible [9].
Reliable FE models were developed for the accurate modeling of composite beams under negative and positive moments [10,11,12,13,14,15,16,17,18,19]. Special focus was placed on the shear connectors connecting the concrete slab and steel I-beam. A three-dimensional FE model was presented to simulate the global behavior of composite beams, where the studs’ uplift and slippage were modeled accurately [10]. An acceptable substitute for specially designed beam finite elements with interlayer slip was the use of interface elements. The use of multiple interface element layers should also be a very interesting modeling option [11] in circumstances where a number of beam layers may exhibit relative slip. A detailed FE model for composite beams with profiled steel sheeting was developed by considering realistic interaction between different components, fracture of the shear studs, and profiled steel sheeting, as well as tensile and compressive damage in concrete [12]. The developed FE model considered the full-range load–deformation curves of the composite beams and the shear force–slip relationship of the embedded shear studs. The interface slip development of composite beams with different connection degrees was analyzed [13]. The interface slip seldom became the control condition when designing composite beams. The effect of the degree of shear connection on the vertical shear strength of deep composite beams loaded in shear was studied [14]. The vertical shear strength increased with increasing the degree of the shear connection. El-Zohairy and Salim [15,16] numerically investigated the sagging moment regions of composite post-tensioned beams. The straight tendon, which exhibited more ductile behavior at the same level of eccentricity, performed worse than the trapezoidal profile shape [15]. The development of fatigue cracks can be minimized by prestressing the beam with a full-length tendon [16]. To achieve the desired prestressing performance, it is advised to use a partial degree of composite action greater than 80% [15]. Numerical research was carried out on the behavior of continuous prestressed composite beams at hogging moment regions. The beam capacity increased only by 8%, and the cracked moment redoubled [17]. The vertical shear strength of continuous composite beams is significantly influenced by the concrete slab, and it rises as the degree of shear connection is increased [18]. The type of loading, the presence of the metal deck, the height of the ribbed metal deck, the ratio of the transverse reinforcement, and the percentage of connection are the main factors influencing the longitudinal cracking behavior of the composite beam with a ribbed metal deck [19].
The previous numerical investigations were limited to one scenario of composite beams, such as sagging moment region, hogging moment region, without profiled sheeting, with profile sheeting, or with external strengthening technique either at the sagging or hogging moment regions. Therefore, the main purpose of this study is to provide detailed FE simulations for strengthened and unstrengthened steel–concrete composite beams at the sagging and hogging moment regions with and without profiled steel sheeting. The developed models were verified against experimental results from the literature. The verified models were used to present comparisons between the effect of using external post-tensioning and CFRP laminates as strengthening techniques, which were introduced at the sagging and hogging moment regions.

2. Modeling of Strengthened Composite Beams

Understanding the geometrical shape and material characteristics of each component is essential to selecting the right elements for modeling the various composite beam parts. Additionally, the connectivity between each element and its neighbors had to be taken into account. There is an element library for ANSYS [20] that satisfies each of these demands. The concrete slab, steel I-beam, steel reinforcement, shear connectors, and the junction of the concrete slab and the steel I-beam were all modeled using seven different elements. The FE mesh for the composite cross-section is shown in Figure 1. The capability, real constants, and material properties of each element are described below to illustrate the modeling of each component.

2.1. Concrete Slab

SOLID65 is used for the 3D modeling of the concrete slab. This element can break under tension and crumble under compression. According to Figure 2, the element is made up of eight nodes with three degrees of freedom each: translations in the nodal x, y, and z directions. The treatment of nonlinear material properties is the most crucial part of this component. In the proposed concrete material model, shear transfer coefficients for open and closed cracks, relaxation coefficients, tensile stresses, and compressive stresses are considered. Material properties for concrete such as modulus of elasticity, Poisson’s ratio, and concrete density are considered for each verification. The used stress–strain curve of concrete is shown in Figure 3.
The constitutive model proposed by Shah et al. [21] is used in this study to represent the compressive stress–strain curve of unconfined concrete. The relationship in uniaxial compression can be represented by two parts, as follows:
For the ascending part:
f ( ε ) = f o [ 1 ( 1 ε ε o ) A ] f o r   ε     ε o
For the descending part:
f ( ε ) = f o   e k ( ε ε o ) 1.15 f o r   ε o > ε ε f
where   f ( ε ) is the stress value at any strain ɛ, f o and ɛo are the maximum stress and the corresponding strain, respectively, ε f is the ultimate strain of concrete (0.003), and A and K are parameters that determine the shape of the curve in the ascending and descending parts [21], respectively.
For the stress–strain curve of concrete under tension, a two-phase constitutive model, precracking and post-cracking (see Figure 3b), proposed by Gopinath et al. [22] is used in this analysis. Concrete is modeled as homogenous and isotropic material in the uncracked state, and linear behavior is assumed for concrete until reaching the tensile strength. This behavior is illustrated in Equations (3) and (4).
f ( ε ) = E c   ε   0 < ε ε i c r : Precracking   phase
ε i c r = f t E c
where ε and εicr are, respectively, tensile strain and corresponding capacity of concrete against cracking. Equations (5) and (6) are used to express the tensile behavior of concrete in the softening stage. The tensile stress was reduced to zero for a critical strain value equal to εicr.
f ( ε ) = f t 2   [ 2 ε i c r ε ε i c r ]           ε i c r < ε ε s c r
f ( ε ) = f t 3   [ ε i c r ε ε i c r ε s c r ]           ε s c r < ε ε i c r
ε s c r = 4 3   ε i c r   and   ε i c r = 2   ε i c r

2.2. Reinforcing Rebars and Post-Tensioned Tendons

LINK8 is a 3D spar element used to model the reinforcing bars, the stirrups embedded in the concrete slab, and the post-tensioned tendons. This element has three degrees of freedom at each node: translations in the nodal x, y, and z directions. It is a uniaxial tension–compression element. There are capabilities for plasticity, creep, swelling, stress stiffening, and large deflection. Two nodes, cross-sectional area, initial strain, and material characteristics all contribute to the element’s definition. For steel reinforcement, the element’s initial strain is set to zero. However, an initial strain equivalent to the initial post-tensioning force was defined to simulate the external post-tensioning [15,16]. The material mechanical properties, such as modulus of elasticity, yielding stress and strain, ultimate stress and strain, and steel density, are considered. For all structural steel materials, the stress–strain curve is represented by a bilinear relationship, as shown in Figure 4. A slip may occur at the steel reinforcement–concrete interface. The relationship between slips and bond stresses is very complex. Therefore, the link element is connected to the concrete nodal points, applying a full bond between them. It is predicted that this bond will not affect the results in a noticeable way since the slab behaves as a whole unit.

2.3. Steel I-Beam and Corrugated Steel Sheet

The steel I-beam and corrugated steel sheet are modeled using the shell element, SHELL43. As seen in Figure 5, the element has six degrees of freedom at each node, including rotations about the nodal x, y, and z axes and translations in the nodal x, y, and z directions. The element is capable of large deflection, large strain, stress stiffening, and plasticity. Four nodes, four thicknesses, and isotropic material characteristics define the element. Figure 4 illustrates a bilinear relationship that represents the stress–strain curve.

2.4. Shear Connection between the Concrete Slab and Steel Beam

The shank of the shear connector is modeled using the beam element, BEAM23, as shown in Figure 6a. The uniaxial beam element has the ability to bend and perform tension compression. At each node, the element has three degrees of freedom: rotation about the nodal z-axis and nodal x- and y-axis translations. The substance has the ability to creep, swell, and be plastic. The cross-section shape of this element is selected to be a round solid bar, which simulates the real shape of the headed stud shear connectors.
The relative slippage between the steel beam and concrete slab is modeled using the spring element, COMBINE39, which is set to carry the shear that may happen between the two parts. In any analysis used to simulate the shear load–slippage of the stud used, COMBIN39 is a unidirectional element with nonlinear generalized force-deflection capability. The longitudinal option is a uniaxial tension–compression element with up to three degrees of freedom at each node and translations in the nodal x, y, and z directions.
The force–deflection curve in the spring real constant table, as shown in Figure 6b, took into consideration the constitutive shear load–slippage relationship created by Ollgaard et al. [23]. Equation (8) provides the analytical relationship between the generic stud’s shear force Fj and slippage Sj.
Fj = Pmax · (1 − e−β·Sj)α
where Sj is the slippage between the concrete slab and steel beam, Fj is the shear force, Pmax is the shear strength of the headed stud shear connector, and β and α are parameters that control the initial slope and the curve’s shape [23].

2.5. Steel Beam and Concrete Slab Interface

The interface between the steel flange and concrete slab is represented by using two-nodded gab elements, CONTACT178 (see Figure 7). With translations in the x, y, and z directions, the element has two nodes with three degrees of freedom each. The element can support coulomb friction in the tangential direction as well as compression in the contact normal direction. In this research, only the normal behavior of the contact element is intended. By setting the value of (KS) close to zero, the sticking stiffness, which symbolizes the stiffness in the tangential direction, is thus removed. The only material characteristic of this element is its zero coefficient of friction (μ). The purpose of using this contact element is to prevent penetration and ensure physical separation between the two surfaces in contact. The normal stiffness (kN) is calculated as the weakest stiffness of the surface in contact, the steel flange and concrete slab, using the following equation:
K = EA L
where E is Young’s modulus of the adjacent element, A is the area of the adjacent element, and L is the element thickness.

2.6. CFRP Composites

The CFRP composites were modeled using a layered solid element called Solid46. The element supports up to 250 distinct material layers, each of which can have a different orientation and orthotropic material properties. Each node of the element has three degrees of freedom, allowing for translations in the x, y, and z directions. The CFRP solid elements were attached to the tensile surface of the concrete slab directly at the hogging moment regions and perfect bonding between the CFRP and concrete was assumed. The number of layers, the thickness of each layer, the fiber direction for each layer, the elastic modulus of the CFRP composite in three directions (Ex, Ey, and Ez), the shear modulus of the CFRP composite in three planes (Gxy, Gyz, and Gxz), and major Poisson’s ratio in three planes (xy, yz, and xz) were the input data required for the CFRP composites in the FE models.

3. Verification of the Proposed Model

To examine the validity and accuracy of the developed FE model, a number of verifications were carried out using previous experimental data. Three examples available in the literature concerning testing simply supported composite beams with and without corrugated steel sheeting and continuous composite beam.

3.1. Composite Beam without Profiled Steel Sheeting

A simply supported composite beam, P14, with a total length of 5400 mm and an effective span length of 5000 mm, was tested by Abdel Aziz [24]. The cross-section of the beam is depicted in Figure 8, and its material properties are listed in Table 1. The steel beam was a built-up section that was fabricated from two different steel types for the web and flanges. The symmetry of the beams was exploited to model half of the full beam.
We undertook a theoretical–experimental comparison with the results of previously analyzed composite beams by Fabbrocino et al. [25]. The load–deflection curve is plotted in Figure 9a, where the proposed model is compared with the experimental and Fabbrocino’s numerical results. The shapes of the numerical and experimental curves show reasonable agreement. The experimental collapse occurs at a load of 490 kN and a deflection equal to 157 mm. The failure load of the proposed FE model is 450 kN, about 91.80% of the experimental load; and a deflection of 56.7 mm, about 36.11% of the experimental deflection. Although the calculated failure load showed good agreement with the experimental load, the deflection is smaller than the experimental deflection which means that the proposed FE model has an increased stiffness compared to the experimental beam. However, good agreement was noticed between the experimental tests and the suggested model in the stud slippage value calculated along the beam, as shown in Figure 9b. The deformation of the shear connectors and slippage between the concrete slab and steel beam are shown in Figure 10. The mode of failure in the FE model is due to crushing in the concrete flange followed by yield in the steel beam, which is similar to the experimental and Fabrocino’s numerical results (see Figure 11).

3.2. Continuous Composite Beam without Profiled Steel Sheeting

The proposed FE model was calibrated against corresponding experimental data from a two-span continuous composite beam tested by Ansourian [26]. The span of the tested beam was 4500 mm and the loads were applied at the mid-span of the beam. By taking advantage of the symmetry of the two spans, only one span was modeled, which reduced the size of the model and in turn reduced the computational time. The beam was characterized by the cross-section shown in Figure 12, and the material properties are listed in Table 2.
Comparisons in terms of the load–deflection curves are presented in Figure 13, where the proposed model is compared with the experimental results and numerical data proposed by Liang et al. [18]. The shapes of the numerical and experimental curves show good agreement. The experimental collapse load is 29.5 tons and the corresponding deflection is 107.8 mm. The failure load of the proposed FE model is 27.9 tons, about 94.50% of the experimental load, and the corresponding deflection is 41.6 mm, about 39% of the experimental deflection. The stress distribution in the steel beam as well as the cracking and crushing of the concrete slab are shown in Figure 14.

3.3. Simply Supported Composite Beam with Profiled Steel Sheeting

A simply supported composite beam with profiled steel sheeting, tested by Nie et al. [4], was used to validate the proposed FE model. The length of the tested beam, SB-1, was 3900 mm and was loaded symmetrically at two points within the span using a spreader beam to obtain a pure bending moment zone. The specimen setup and dimensions are shown in Figure 15. The material properties as well as the value of the coefficients characterizing the constitutive relationships used in the numerical simulation of the beam are listed in Table 3. A comparison of the experimental and FE results through the relation between loads versus deflection is shown in Figure 16.
The proposed FE model shows higher stiffness relative to the tested beam due to the full contact assumption between the concrete slab and profiled steel sheeting. The FE results and typical cracking patterns at failure are shown in Figure 17 and Figure 18. At failure in the experimental work, the profiled sheeting in the shear span separated from the concrete; however, this mode of failure cannot be predicted in the proposed FE model due to the full contact assumption between the concrete slab and the profiled steel sheeting.

3.4. Post-Tensioned Composite Beam

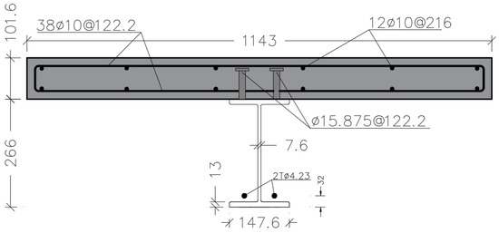
The post-tensioned composite beam tested by El-Zohairy et al. [27] was used to validate the proposed FE model. The beam measured 4752 mm in length. Figure 19 displays the dimensions and reinforcement information of the tested beams. The mechanical characteristics of each piece that makes up the composite beam are listed in Table 4. For external post-tensioning, positioned 32 mm above the bottom flange of the steel beam and post-tensioned to 85 kN (46% of the tendon ultimate strength), seven-wire high-strength steel strands with a yield strength of 1680 MPa were used. Comparisons of deflections and post-tensioning force are presented in Figure 20 between the simulations and the test findings. The experimental results and the FE results were found to be in fair agreement. Figure 21 displays the modes of failure derived from the FE results in comparison with the experimental results. These comparisons make it clear that the proposed FE model is capable of simulating the yielding of steel beams and the crushing of concrete slabs.

3.5. Strengthened Composite Beam with CFRP Sheet

El-Zohairy et al. [9] tested a strengthened composite beam with CFRP, F2, in the hogging moment region, as shown in Figure 22. In contrast with the clear span between a pair of supports, which was 1800 mm, the overall length was 2000 mm. The concrete flange had a thickness of 100 mm and a width of 500 mm. The material properties are listed in Table 5 and Table 6. Comparisons between the numerical results and the test data are shown in Figure 23 in order to demonstrate the validity of the FE model. These comparisons are based on the CFRP laminates’ strain and beam deformation. The FE results, particularly in the nonlinear range, show higher stiffness than the test data. The presented FE model does, however, behave generally in a manner that is in good agreement with the test results. The primary causes of this discrepancy in response are the perfect bonds assumed between the shear studs, the concrete, and the steel rebars as well as between the concrete and the CFRP.

4. Discussion

4.1. Effect of the External Post-Tensioning

An active strengthening technique that can permanently increase internal stresses in the composite beam in opposition to the internal straining caused by the service loads is applying external PT force to the beam. The neutral axis (NA) of the composite section is always near or above the top steel flange at the sagging moment regions, as shown in Figure 24a. The external post-tensioning is applied near the bottom steel flange, which exhibits a larger eccentricity (e). In the form of an initial camber and compressive stresses in the bottom flange prior to loading, this reasonable eccentricity induces reverse loading on the reinforced beams, reducing the net tensile stress induced during loading. Furthermore, the post-tensioning tendons for the strengthened beam’s reverse action caused a reverse moment in the studs. Compared to the control beam, this reversed loading reduced the subsequent moment in the studs after loading. Table 7 lists the FE results of the effect of the external post-tensioning at sagging moment regions at the initial and final stages [28]. The obtained initial camber, steel flange stress, and concrete slab stress were 4.2 mm, −90 MPa, and 1.5 MPa, respectively. Moreover, the initial reversed moment on the shear connectors was −6.0 N.m, which reduced the final exhibited moment by 17.3% in comparison with the composite beam without post-tensioning. The ultimate capacity of the post-tensioned beam was enhanced by 25% due to the initial effect of the external post-tensioning.
The main issue with the continuous composite beams is that the NA of the composite section is very close to the position of the external post-tensioning, and sometimes the NA position locates the external post-tensioning on the compression side of the composite cross-section, as shown in Figure 24b. This makes introducing external post-tensioning, as a strengthening technique, not effective because the prestressing force exhibits a small eccentricity or is below the NA on the compression side, which causes an initial downward deflection. However, initial compressive strains in different parts of the composite section are the main effects of the external post-tensioning application. No initial tensile strains are created due to the secondary moments, caused by the effect of the eccentricity of the external post-tensioning, because the small eccentricity and the initial axial compressive strains overcome these tensile strains. Table 8 presents a summary of FE results to highlight the effect of the external post-tensioning at the hogging moment regions [17]. The composite beam exhibited an initial downward deflection of 1.2 mm due to the effect of the external post-tensioning. However, there were initial compressive strains in the steel rebars and concrete slab. These initial strains relieved parts of the exhibited strains during loading. Therefore, the cracked moment increased by 69.8% and the yielding moment was enhanced by 25.4%. Moreover, the maximum crack width was reduced by 12.5%. However, the ultimate capacity increased only by 8.7%.

4.2. Effect of the CFRP Laminates

Strengthening of steel–concrete composite beams with CFRP laminates is considered a passive strengthening technique, where this technique adds new material to the composite cross-section to relieve and share parts of the applied strains. This technique can be added to the bottom flange of the steel beam at the sagging moment regions. However, the CFRP laminates are bonded to the concrete slab surface at the hogging moment regions, as shown in Figure 25.
Figure 26 demonstrates the influence of using the CFRP plate, attached to the bottom steel flange at the sagging moment region, on the strengthened beam behavior as well as the effect of the CFRP plate thickness on the ultimate behavior. The beam tested by Aly [29] was used to conduct these investigations. This figure shows an improvement in the ultimate capacity of the strengthened beam by 25% in comparison with the beam without the CFRP plate. After the yielding of the steel bottom flange, the unstrengthened beams started to deform excessively at the mid-span as the plastic hinge started to form at that region. On the other hand, the bonded CFRP plate stopped the plastic flow in the bottom flange of the steel beam by applying confining stress and subsequently increased the beam’s ultimate capacity. However, with more reduction in the tensile strain in the bottom flange of the steel beam as the plate thickness increased, the ductility was lower for thicker plates. Furthermore, the peeling stresses at the ends of the bonded CFRP plate increased for thicker plates. Therefore, it was more effective to attain the required capacity by using a combination of a thin plate with high modulus rather than using a thick plate with low modulus [30].
On the other hand, the CFRP laminates were attached to the concrete slab at the hogging moment region for continuous composite beams with flat slabs. The beams tested by El-Zohairy et al. [9] were analyzed numerically and showed 20.4% and 26.7% improvements in the beam capacity for using one and two layers of the CFRP laminates, respectively. Figure 27 shows the load–deflection relationships for the analyzed beams. As listed in Table 9, the ductility dropped from 3.6 to 2.6 and 2.2 for the strengthened beams with one and two layers, respectively. This suggests that increasing the number of CFRP laminate layers causes a greater reduction in the ductility of the beam. This decline in ductility demonstrated that the addition of CFRP laminates as an external reinforcement to the concrete surface reduced the strengthened beam’s ability to redistribute moments at the hogging moment region [31].
For continuous composite beams with composite deck (concrete and corrugated steel sheeting), CFRP strips were applied onto the tension face of the composite deck. Figure 28a illustrates the applied load versus the reinforcement stress curves to explore the effect of using the CFRP. The initial tensile cracks appear transversely along the concrete flange, and an abrupt change in stresses for the reinforcement is observed in the case of the reference beam at a load of 5.0 kN. Adding CFRP strips to the concrete surface helps to relieve part of these tensile stresses and reduces the rapid change in the stress at the cracked load. No yielding occurs in the steel rebars for the strengthened beam, while yielding starts at a load of 24.25 kN for the reference beam. The stress in the steel flange that is attached to the composite deck shows the same behavior as the steel reinforcement, as shown in Figure 28b. Figure 28c presents the applied load on the beam versus the slippage induced between the composite deck and the steel beam. Initially, all the uncracked composite decks have the same stiffness, which leads to the same slippage. With further loading, cracks occur at the mid-spans as the applied load exceeds the cracked load, causing reductions in the composite deck stiffness. For the reference beam, the numerous cracks that appear in the concrete surface reduce the flange stiffness and subsequently cause a reduction in the increasing rate of slippage. However, adding CFRP strips to the concrete surface reduces these cracks and maintains the composite deck stiffness, which leads to a continuous increase in the slippage. This behavior of slippage can reflect the same behavior for the induced moments in the shear connectors, as shown in Figure 28d.

5. Conclusions

The main purpose of this study was to provide detailed FE simulations for strengthened and unstrengthened steel–concrete composite beams at the sagging and hogging moment regions with and without profiled steel sheeting. The developed models were verified against experimental results from the literature. The verified models were used to present comparisons between the effect of using external post-tensioning and CFRP laminates as strengthening techniques, which were introduced at the sagging and hogging moment regions. The following conclusions can be drawn:
  • Applying external post-tensioning at the sagging moment regions is more effective because of the exhibited larger eccentricity. Due to the initial camber and compressive stresses in the bottom flange caused by this reasonable eccentricity, the strengthened beams experience reverse loading that lowers the net tensile stress induced during loading.
  • The main issue with the continuous composite beams at the hogging moment regions is that the NA of the composite section is very close to the position of the external post-tensioning. This makes introducing external post-tensioning, as a strengthening technique, not effective because the prestressing force exhibits a small eccentricity, which causes an initial downward deflection. However, initial compressive strains in different parts of the composite section are the main effects of the external post-tensioning application.
  • An improvement was observed in the ultimate capacity of the strengthened beam at the sagging moment region by 25% in comparison with the beam without the CFRP plate.
  • Using CFRP laminates on the concrete slab at the hogging moment regions is more effective in enhancing the beam capacity in comparison with using the external post-tension at the hogging moment regions. However, reductions in the beam ductility were obtained.
  • For continuous composite beams with composite deck, the CFRP strips on the tension side of the composite deck help to relieve parts of the tensile stresses in the steel rebars and steel flange that is attached to the composite deck. However, the CFRP strips maintain the composite deck stiffness which leads to continuous increases in the slippage and induced moments in the shear connectors.

Author Contributions

Conceptualization, S.M. and H.S. (Hani Salim); data curation, S.M.; formal analysis, A.A.A.; methodology, A.E.-Z.; resources, H.S. (Hani Salim) and A.A.A.; software, A.E.-Z.; supervision, S.M., H.S. (Hesham Shaaban) and H.S. (Hani Salim); validation, A.E.-Z.; visualization, H.S. (Hesham Shaaban) and A.A.A.; writing—original draft, A.E.-Z.; writing—review and editing, S.M., H.S. (Hesham Shaaban), H.S. (Hani Salim) and A.A.A. All authors have read and agreed to the published version of the manuscript.

Funding

This research received no external funding.

Data Availability Statement

Not applicable.

Conflicts of Interest

The authors declare no conflict of interest.

References

  1. Dabaon, M.A. Effective width of composite beam at region of negative moment. J. Sci. Bull. 2002, 37, 85–109. [Google Scholar]
  2. Nie, J.; Fan, J.; Cai, C.S. Experimental study of partially shear-connected composite beams with profiled sheeting. J. Eng. Struct. 2008, 30, 1–12. [Google Scholar] [CrossRef]
  3. Loh, H.; Uy, B.; Bradford, M. The effects of partial shear connection in the hogging moment regions of composite beams. Part I-Experimental study. J. Constr. Steel Res. 2004, 60, 897–919. [Google Scholar] [CrossRef]
  4. Nie, J.; Cai, C.; Wang, T. Stiffness and capacity of steel–concrete composite beams with profiled sheeting. Eng. Struct. 2005, 27, 1074–1085. [Google Scholar] [CrossRef]
  5. Marimuthu, V.; Seetharaman, S.; Arul Jayachandran, S.; Chellappan, A.; Bandyopadhyay, T.K.; Dutta, D. Experimental studies on composite deck slabs to determine the shear-bond characteristic (m-k) values of the embossed profiled sheet. J. Constr. Steel Res. 2007, 63, 791–803. [Google Scholar] [CrossRef]
  6. El-Zohairy, A.; Salim, H.; Saucier, A. Steel–Concrete Composite Beams Strengthened with Externally Post-Tensioned Tendons under Fatigue. J. Bridg. Eng. 2019, 24, 04019027. [Google Scholar] [CrossRef]
  7. Almeida, M.M.D.R.; de Souza, A.S.C.; de Albuquerque, A.T. Experimental study of prestressed steel-concrete composite beams with profiled steel decking. J. Constr. Steel Res. 2022, 194, 107331. [Google Scholar] [CrossRef]
  8. Almeida, M.M.D.R.; de Souza, A.S.C.; de Albuquerque, A.T.; Rossi, A. Parametric analysis of steel-concrete composite beams prestressed with external tendons. J. Constr. Steel Res. 2021, 189, 107087. [Google Scholar] [CrossRef]
  9. El-Zohairy, A.; Salim, H.; Shaaban, H.; Mustafa, S.; El-Shihy, A. Experimental and FE parametric study on continuous steel-concrete composite beams strengthened with CFRP laminates. Constr. Build. Mater. 2017, 157, 885–898. [Google Scholar] [CrossRef]
  10. El-Shihy, A.M.; Shehab, H.A.; Fawzy, H.M.; Mustafa, S.A.A. Finite element modeling of continuous composite beams. In Proceedings of the International Conference: Future Vision and Challenges for Urban Development, Cairo, Egypt, 10 January 2004. [Google Scholar]
  11. Sousa, J.B.M.; Silva, A.R. Nonlinear analysis of partially connected composite beams using interface elements. J. Finite Elem. Anal. Des. 2007, 43, 954–964. [Google Scholar] [CrossRef]
  12. Katwal, U.; Tao, Z.; Hassan, M.K. Finite element modelling of steel-concrete composite beams with profiled steel sheeting. J. Constr. Steel Res. 2018, 146, 1–15. [Google Scholar] [CrossRef]
  13. Zheng, X.; Li, W.; Huang, Q.; Wang, B. Finite Element Modeling of Steel-concrete Composite Beams with Different Shear Connection Degrees. Int. J. Steel Struct. 2021, 21, 381–391. [Google Scholar] [CrossRef]
  14. Liang, Q.Q.; Uy, B.; Bradford, M.A.; Ronagh, H.R. Strength Analysis of Steel–Concrete Composite Beams in Combined Bending and Shear. J. Struct. Eng. 2005, 131, 1593–1600. [Google Scholar] [CrossRef]
  15. El-Zohairy, A.; Salim, H. Parametric study for post-tensioned composite beams with external tendons. Adv. Struct. Eng. 2017, 20, 1433–1450. [Google Scholar] [CrossRef]
  16. El-Zohairy, A.; Salim, H. Parametric study of the external strengthening of composite beams using post-tensioned ten-dons. In Proceedings of the Structures Congress 2017, Denver, CO, USA, 6–8 April 2017. [Google Scholar]
  17. El-Zohairy, A.; Salim, H.; Shaaban, H.; Mustafa, S.; El-Shihy, A. Finite element analysis and parametric study of continuous steel–concrete composite beams stiffened with post-tensioned tendons. Adv. Struct. Eng. 2017, 21, 933–945. [Google Scholar] [CrossRef]
  18. Liang, Q.Q.; Uy, B.; Bradford, M.A.; Ronagh, H.R. Ultimate strength of continuous composite beams in combined bending and shear. J. Constr. Steel Res. 2004, 60, 1109–1128. [Google Scholar] [CrossRef]
  19. Fahmy, E.H.; Abu-Amra, T.F. Longitudinal cracking of concrete slabs in composite beams with ribbed metal deck. J. Constr. Steel Res. 2008, 64, 670–679. [Google Scholar] [CrossRef]
  20. ANSYS. Element Manual, 10th ed; Release 4.1; Swanson Analysis Systems: Canonsburg, PA, USA, 2008. [Google Scholar]
  21. Shah, S.P.; Fafitis, A.; Arnold, R. Cyclic Loading of Spirally Reinforced Concrete. J. Struct. Eng. 1983, 109, 1695–1710. [Google Scholar] [CrossRef]
  22. Gopinath, S.; Rajasankar, J.; Iyer, N.R.; Krishnamoorthy, T.S.; Bharatkumar, B.H.; Lakshmanan1, N. A Strain-Based Constitutive Model for Concrete under Tension in Nonlinear Finite Element Analysis of RC Flexural Members. Struct. Durab. Health Monit. 2009, 5, 311–336. [Google Scholar]
  23. Ollgaard, J.G.; Slutter, R.G.; Fisher, J.W. Shear strength of stud connectors in lightweight and normal weight concrete. AISC Eng. J. 1971, 8, 55–64. [Google Scholar]
  24. Abdel Aziz, K. Modelisation et Etude Experimental de Pouters Mixtes Acier-Beton a Connexion Partielle ou Espacee. Ph.D. Thesis, Institut National des Sciences Appliquees des Rennes, Rennes, France, 1986. [Google Scholar]
  25. Manfredi, G.; Fabbrocino, G.; Cosenza, E. Modeling of Steel-Concrete Composite Beams under Negative Bending. J. Eng. Mech. 1999, 125, 654–662. [Google Scholar] [CrossRef]
  26. Ansourian, P. Experiments on continuous composite beams. Proc. Inst. Civ. Eng. 1982, 73, 26–51. [Google Scholar] [CrossRef]
  27. El-Zohairy, A.; Alsharari, F.; Salim, H.; Arafa, I.T.; Nawar, M.T. Monotonic property of steel–RC composite beams strengthened with externally pre-stressed tendons. Can. J. Civ. Eng. 2022, 49, 1173–1183. [Google Scholar] [CrossRef]
  28. El-Zohairy, A.; Salim, H.; Shaaban, H.; Mustafa, S.; El-Shihy, A. Finite-Element Modeling of Externally Posttensioned Composite Beams. J. Bridg. Eng. 2015, 20, 04015018. [Google Scholar] [CrossRef]
  29. Aly, M.Y. Strengthening Steel-Concrete Composite Girders Using Prestressed Fiber Reinforced Polymer. Master’s Thesis, University of Calgary, Calgary, AB, Canada, 2007. [Google Scholar]
  30. Huh, J.; Haldar, A. Stochastic Finite-Element-Based Seismic Risk of Nonlinear Structures. J. Struct. Eng. 2001, 127, 323–329. [Google Scholar] [CrossRef]
  31. Mahmoud, M.H.; Afefy, H.M.E. Moment redistribution and ductility of RC continuous beams strengthened with CFRP strips. Int. J. Civil Eng. Res. 2012, 3, 241–255. [Google Scholar]
Figure 1. The meshing of the composite cross-section.
Figure 1. The meshing of the composite cross-section.
Civileng 04 00028 g001
Figure 2. ANSYS concrete solid element (SOLID65) [20].
Figure 2. ANSYS concrete solid element (SOLID65) [20].
Civileng 04 00028 g002
Figure 3. Stress–strain curves of concrete. (a) Under compression. (b) Under tension.
Figure 3. Stress–strain curves of concrete. (a) Under compression. (b) Under tension.
Civileng 04 00028 g003
Figure 4. Stress–strain curve of structural steel.
Figure 4. Stress–strain curve of structural steel.
Civileng 04 00028 g004
Figure 5. ANSYS shell element (SHELL43) [20].
Figure 5. ANSYS shell element (SHELL43) [20].
Civileng 04 00028 g005
Figure 6. Modeling of the shear connection between the steel beam and concrete slab. (a) ANSYS plastic beam element (BEAM23) [20]. (b) Load–slippage curves for the headed stud shear connectors.
Figure 6. Modeling of the shear connection between the steel beam and concrete slab. (a) ANSYS plastic beam element (BEAM23) [20]. (b) Load–slippage curves for the headed stud shear connectors.
Civileng 04 00028 g006
Figure 7. ANSYS contact element (CONTACT178) [20].
Figure 7. ANSYS contact element (CONTACT178) [20].
Civileng 04 00028 g007
Figure 8. Cross-section dimension of beam P14 [24].
Figure 8. Cross-section dimension of beam P14 [24].
Civileng 04 00028 g008
Figure 9. Verification in terms of the beam deformation. (a) Load–deflection curves for beam P14. (b) Slippage values along the tested beam P14 [25].
Figure 9. Verification in terms of the beam deformation. (a) Load–deflection curves for beam P14. (b) Slippage values along the tested beam P14 [25].
Civileng 04 00028 g009
Figure 10. The slippage between the concrete slab and steel beam as well as the deformation of the shear connectors.
Figure 10. The slippage between the concrete slab and steel beam as well as the deformation of the shear connectors.
Civileng 04 00028 g010
Figure 11. The FE mode of failure for the analyzed beam P14. (a) Yielding in the steel beam. (b) Concrete crushing and cracking.
Figure 11. The FE mode of failure for the analyzed beam P14. (a) Yielding in the steel beam. (b) Concrete crushing and cracking.
Civileng 04 00028 g011
Figure 12. Cross-section of the continuous composite beam tested by Ansourian [26].
Figure 12. Cross-section of the continuous composite beam tested by Ansourian [26].
Civileng 04 00028 g012
Figure 13. Comparisons in terms of the load–deflection curves [18].
Figure 13. Comparisons in terms of the load–deflection curves [18].
Civileng 04 00028 g013
Figure 14. The FE mode of failure for the analyzed beam tested by Ansourian [26]. (a) Stress distribution in the steel beam. (b) Concrete crushing and cracking.
Figure 14. The FE mode of failure for the analyzed beam tested by Ansourian [26]. (a) Stress distribution in the steel beam. (b) Concrete crushing and cracking.
Civileng 04 00028 g014
Figure 15. Details of the specimen SB-1 tested by Nie et al. [4].
Figure 15. Details of the specimen SB-1 tested by Nie et al. [4].
Civileng 04 00028 g015
Figure 16. Load–deflection curves of beam SB-1.
Figure 16. Load–deflection curves of beam SB-1.
Civileng 04 00028 g016
Figure 17. FE stress distribution. (a) Steel beam. (b) Profiled steel sheeting.
Figure 17. FE stress distribution. (a) Steel beam. (b) Profiled steel sheeting.
Civileng 04 00028 g017
Figure 18. FE results of the concrete slab. (a) Stress distribution. (b) Crushing and cracking.
Figure 18. FE results of the concrete slab. (a) Stress distribution. (b) Crushing and cracking.
Civileng 04 00028 g018
Figure 19. Cross-section of the tested specimens [27].
Figure 19. Cross-section of the tested specimens [27].
Civileng 04 00028 g019
Figure 20. Comparisons between the FE and experimental results. (a) Moment–deflection relationships. (b) Moment–PT force relationships.
Figure 20. Comparisons between the FE and experimental results. (a) Moment–deflection relationships. (b) Moment–PT force relationships.
Civileng 04 00028 g020
Figure 21. The mode of failure as obtained from the FE simulations. (a) Mode of failure in the steel beam. (b) Mode of failure in the concrete slab.
Figure 21. The mode of failure as obtained from the FE simulations. (a) Mode of failure in the steel beam. (b) Mode of failure in the concrete slab.
Civileng 04 00028 g021
Figure 22. Details of the beam (F2) tested by El-Zohairy et al. [9].
Figure 22. Details of the beam (F2) tested by El-Zohairy et al. [9].
Civileng 04 00028 g022
Figure 23. Evaluations between the FE model and strengthened beam (F2). (a) Deflection. (b) Strain in CFRP laminates.
Figure 23. Evaluations between the FE model and strengthened beam (F2). (a) Deflection. (b) Strain in CFRP laminates.
Civileng 04 00028 g023
Figure 24. Tendon eccentricity at the sagging and hogging moment regions. (a) At the sagging moment regions. (b) At the hogging moment regions.
Figure 24. Tendon eccentricity at the sagging and hogging moment regions. (a) At the sagging moment regions. (b) At the hogging moment regions.
Civileng 04 00028 g024
Figure 25. Typical details of the strengthened composite beams with CFRP. (a) At the sagging moment region. (b) At the hogging moment region.
Figure 25. Typical details of the strengthened composite beams with CFRP. (a) At the sagging moment region. (b) At the hogging moment region.
Civileng 04 00028 g025
Figure 26. Effect of CFRP plate rigidity. (a) Deflection. (b) Strains in the bottom steel flange.
Figure 26. Effect of CFRP plate rigidity. (a) Deflection. (b) Strains in the bottom steel flange.
Civileng 04 00028 g026
Figure 27. Effect of using CFRP laminates on the concrete slab at the hogging moment region for composite beams.
Figure 27. Effect of using CFRP laminates on the concrete slab at the hogging moment region for composite beams.
Civileng 04 00028 g027
Figure 28. Effect of CFRP on continuous composite beam with steel corrugated sheeting. (a) Reinforcement stress. (b) Steel flange stress. (c) Slippage. (d) Shear connector moments.
Figure 28. Effect of CFRP on continuous composite beam with steel corrugated sheeting. (a) Reinforcement stress. (b) Steel flange stress. (c) Slippage. (d) Shear connector moments.
Civileng 04 00028 g028
Table 1. Material properties used in the analysis of beam P14 [25].
Table 1. Material properties used in the analysis of beam P14 [25].
MaterialPropertyValue
ConcreteCompressive strength, f o (MPa)35
Corresponding strain, ε o 0.00195
Tensile strength, f t (MPa)3.5
Ec (MPa)2.65 × 104
Poisson’s ratio0.2
A1.477
K0.081
Reinforcing steelUltimate tensile strength, f u (MPa)375
Yield stress, f y (MPa)370
Yield strain, ε y 0.00176
Ultimate strain, ε u 0.04
Es (MPa)2.1 × 105
Poisson’s ratio0.3
Structural steelUltimate tensile strength, f u (MPa)/Ultimate strain, ε u
Web372/0.04
Flange361/0.03
Yield stress, f y (MPa)/Yield strain, ε y
Web260/0.00124
Flange245/0.00117
Es (MPa)2.1 × 105
Poisson’s ratio0.3
Stud shear connectorNumber of studs18
Number of rows2
Spacing between studs (mm)650
Diameter of studs (mm)19
Shear force strength (kN)130
Es (MPa)2.1 × 105
Poisson’s ratio0.3
α0.8
β0.7
Table 2. Material properties used in the analysis of the composite beam [26].
Table 2. Material properties used in the analysis of the composite beam [26].
MaterialPropertyValue
ConcreteCompressive strength, f o (MPa)35
Corresponding strain, ε o 0.00195
Tensile strength, f t (MPa)3.5
Ec (MPa)2.65 × 104
Poisson’s ratio0.2
A1.477
K0.081
Reinforcing steelUltimate tensile strength, f u (MPa)533
Yield stress, f y (MPa)430
Yield strain, ε y 0.002
Ultimate strain, ε u 0.04
Es (MPa)2.10 × 105
Poisson’s ratio0.3
Structural steelUltimate tensile strength, f u (MPa)/Ultimate strain, ε u
Web411/0.04
Flange390/0.03
Yield stress, f y (MPa)/Yield strain, ε y
Web235/0.0011
Flange220/0.0010
Es: (MPa)2.10 × 105
Poisson’s ratio0.3
Stud shear connectorNumber of studs84
Number of rows3
Yield stress, f y (MPa)435
Ultimate strength, f u (MPa)565
Es (MPa)2.10 × 105
Poisson’s ratio0.3
Ultimate strain0.25
Table 3. Material properties used in the analysis of beam SB-1 [4].
Table 3. Material properties used in the analysis of beam SB-1 [4].
MaterialPropertyValue
ConcreteCompressive strength, f o (MPa)34.9
Corresponding strain, ε o 0.00195
Tensile strength, f t (MPa)3.5
Ec (MPa)2.65 × 104
Poisson’s ratio0.2
A1.48
K0.081
Reinforcing steelUltimate tensile strength, f u (MPa)375
Yield stress, f y (MPa)291
Yield strain, ε y 0.00138
Ultimate strain, ε u 0.04
Es (MPa)2.1 × 105
Poisson’s ratio0.3
Structural steelUltimate tensile strength, f u (MPa)/Ultimate strain, ε u
Web372/0.04
Flange361/0.03
Yield stress, f y (MPa)/Yield strain, ε y
Web260/0.00123
Flange245/0.00117
Es: (MPa)2.1 × 105
Poisson’s ratio0.3
Stud shear connectorNumber of studs20
Number of rows1
Spacing between studs (mm)205
Diameter of studs (mm)16
Shear force strength (kN)67
Es: (MPa)2.1 × 105
Poisson’s ratio0.3
Profiled sheetingUltimate tensile strength, f u (MPa)375
Yield stress, f y (MPa)291
Es (MPa)2.1 × 105
Poisson’s ratio0.3
Table 4. Properties of steel and concrete [27].
Table 4. Properties of steel and concrete [27].
Yielding Stress
(MPa)
Yielding StrainUltimate Strength (MPa)Ultimate StrainElastic Modulus
(GPa)
Steel rebars294.20.0014402.50.04207.8
Steel beam *3450.00174500.04204
Headed studs *351.60.0017448.20.04206.5
Tendons *16800.008418600.10200
* Provided by the manufacturer.
Table 5. Summary of the material properties for the tested specimens [9].
Table 5. Summary of the material properties for the tested specimens [9].
Yield Strength (MPa)Ultimate Strength
(MPa)
Modulus of Elasticity
(MPa)
Yield Strain
%
Poisson’s
Ratio
Steel beam358.2518.9210,0000.1710.3
Steel rebars360.5561210,0000.1730.3
Shear studs360515210,0000.170.3
Table 6. Summary of the material properties of CFRP laminates [9].
Table 6. Summary of the material properties of CFRP laminates [9].
Thickness of Sheet (mm)Elastic Modulus (GPa)Major Poisson’s RatioTensile Strength (MPa)Tensile Elongation %Shear Modulus (GPa)
0.381Ex = 74.7νxy = 0.229331.25Gxy = 2.90
Ey = 4.85νxz = 0.22Gxz = 2.90
Ez = 4.85νyz = 0.3Gyz = 1.86 *
* G yz = E y   or   z 2 ( 1 + ν yz ) .
Table 7. Effect of the external post-tensioning at sagging moment regions [28].
Table 7. Effect of the external post-tensioning at sagging moment regions [28].
Post-TensioningInitial Camber (mm)Ultimate Capacity (kN.m)Steel Flange Stress (MPa)Concrete Flange Stress (MPa)Shear stud Moment (N.m)
InitialFinalInitialFinalInitialFinal
Without024004000−20052
With4.2300−904001.5−17.0−6.043
Table 8. Effect of the external post-tensioning at hogging moment regions [17].
Table 8. Effect of the external post-tensioning at hogging moment regions [17].
Post-TensioningInitial Deflection (mm) *Ultimate Capacity (kN.m)Cracked Moment (kN.m)Steel Rebar Stress (MPa)Yielding Moment (MPa)Maximum Crack
Width (mm)
Initial **Final
Without023026.502401750.104
With−1.225045−12.1240219.50.091
* Downward initial deflection. ** Initial compressive stress.
Table 9. Summary of the FE findings.
Table 9. Summary of the FE findings.
BeamMu (kN.m)% ChangeΔy (mm)Δu (mm)µ *Mode of Failure
F1108.1-4.7173.6Concrete flange failure
F2130.220.45.4142.6Rupture in CFRP laminates
F3137.026.75.812.92.2Rupture in CFRP laminates
* µ is the displacement ductility factor (Δu / Δy).
Disclaimer/Publisher’s Note: The statements, opinions and data contained in all publications are solely those of the individual author(s) and contributor(s) and not of MDPI and/or the editor(s). MDPI and/or the editor(s) disclaim responsibility for any injury to people or property resulting from any ideas, methods, instructions or products referred to in the content.

Share and Cite

MDPI and ACS Style

El-Zohairy, A.; Mustafa, S.; Shaaban, H.; Salim, H.; Allawi, A.A. Numerical Modeling and Analysis of Strengthened Steel–Concrete Composite Beams in Sagging and Hogging Moment Regions. CivilEng 2023, 4, 483-505. https://doi.org/10.3390/civileng4020028

AMA Style

El-Zohairy A, Mustafa S, Shaaban H, Salim H, Allawi AA. Numerical Modeling and Analysis of Strengthened Steel–Concrete Composite Beams in Sagging and Hogging Moment Regions. CivilEng. 2023; 4(2):483-505. https://doi.org/10.3390/civileng4020028

Chicago/Turabian Style

El-Zohairy, Ayman, Suzan Mustafa, Hesham Shaaban, Hani Salim, and Abbas A. Allawi. 2023. "Numerical Modeling and Analysis of Strengthened Steel–Concrete Composite Beams in Sagging and Hogging Moment Regions" CivilEng 4, no. 2: 483-505. https://doi.org/10.3390/civileng4020028

APA Style

El-Zohairy, A., Mustafa, S., Shaaban, H., Salim, H., & Allawi, A. A. (2023). Numerical Modeling and Analysis of Strengthened Steel–Concrete Composite Beams in Sagging and Hogging Moment Regions. CivilEng, 4(2), 483-505. https://doi.org/10.3390/civileng4020028

Article Metrics

Back to TopTop