Abstract
Historic school buildings, erected during the end of the 19th–beginning of the 20th century, represent a specific constructional type that should be encountered as part of the common European built heritage. They present various similarities, especially in the regions of S. Europe, even though they were mainly built with local materials following the traditional constructional principles of each area. Due to their constant function as educational units, there is an increased interest on their structural and energy integration, without, however, following the principles of restoration of historic structures. To this extent, the acknowledgement of the tangible and intangible values they encompass is crucial, as well as their enlistment in order to be treated as heritage assets. In this study, an effort has been made to testify the characteristics (historic, architectural, constructional) of the historic school buildings located in the Municipality of Agia, region of Thessaly, central Greece. A case study was selected, concerning the old elementary school of Megalovrysso, where a detailed investigation was implemented, including onsite inspection, architectural overview, determination of constructional materials and types, investigation of the preservation state, as well as structural analysis through the three-dimensional finite element model. All research data were comparatively evaluated in order to determine the principles governing the construction of the studied school buildings and establish the significance of this unrecognized part of European built heritage that should be further assessed.
1. Introduction
Historic school buildings concern a significant part of European built heritage, presenting multiple similarities and depicting both the tangible and intangible diachronic principles of education and evolution. They were erected during the end of the 19th–beginning of the 20th century and were equally distributed in urban and rural areas, including remote and difficult-to-be-approached places [1,2,3,4]. Their evolution was closely related to the wider historic and socio-economic aspects of each region, while their construction followed traditional building materials and techniques [1,2,5,6,7,8]. While they depicted the educational principles of each era, they were usually found as cultural landmarks of the settlements.
Nowadays, there is a great stock of historic school buildings that still function as schools (mostly elementary), are in a secondary use (i.e., cultural centers) or have been abandoned [8,9,10,11,12,13,14,15]. On the other hand, many buildings have been demolished and vanished, due to severe damages, de-characterization and substitution with new schools. In recent years, their significance as educational and cultural landmarks has been gradually acknowledged, leading to their (limited) enlistment as monumental structures. However, there is still a gap of knowledge regarding their treatment and preservation, mainly due to their functional role, individual characteristics, as well as their ownership status. In Greece, they belong to Municipalities, which are responsible for their performance and preservation, while the regional Directorates of education are responsible for their function (as educational units).
Since their structural integrity and energy efficiency are the primary axis of interest due to their use as schools, interventions do not usually follow restoration principles, including compatibility and sustainability issues. Given this, their enlistment and treatment as heritage assets is necessary in order to avoid secondary problems related to the application of improper repair materials and techniques [1,4,6]. The extensive use of cement-based materials in past repair works, especially in the cases where the historic physiognomy of the buildings was not taken into consideration, aggravated their present state of preservation, inducing damages (exfoliation of plasters-renders, humidity accumulation, degradation of stone elements and structural mortars, etc.).
In addition, the acknowledgement and promotion of the tangible and intangible values they encompass, as well as their contribution on the evolution of modern society is crucial and should be emphasized [1,5]. To this end, their study as a part of a specific monumental category should be enhanced, in combination with the identification of their individual characteristics, usually originating from the traditional architectural and constructional principles of each region.
Generally, historic school buildings erected in S Europe present similarities. The principles of simplicity and functionality usually govern their construction, while architectural characteristics follow various architectural styles or traditional aspects [1,2,6,7,10,13,14,15]. Inner spaces were usually successively distributed alongside an elongated corridor (also depicted in the main facades), while natural ventilation and lighting was pursued through the orientation of the building and the openings typology [1,2,13,14,15,16]. A symmetric organization of the ground plans and the facades was usually applied [6,7,8,15,16,17].
School buildings usually concerned stone masonry constructions of 2–3 storeys (usually semi-basement, elevated ground floor, 1st floor), presenting a rectangular ground plan [1,2,3,6,7,8,18,19]. More sophisticated plans were also applied, such as Γ, E and Π [1,8]. These were built with locally available stones and lime-based mortars, while their wall thickness varied from 80 to 40 cm, with a gradual decrease in height [1,2,6,7,11,15]. In many cases, secondary concrete elements (unreinforced and reinforced) were added, in order to enhance their structural stability [6,7,20]. These elements were either authentic, in schools built in the beginning of the 20th century, or posterior, due to repair interventions.
In Greece, although the traditional school building types were abolished from 1929 and on, due to the establishment of the legislative reform in education [21], the construction of school buildings followed the traditional principles up to the 1960s in rural areas [1,6,15]. As a result, there were different school building types in urban and rural regions, especially in the more isolated ones, where the traditional constructional materials and techniques were applied for an extended period of around 30 years.
In this paper, an effort has been made to identify the historic school types in the Municipality unit of Agia, region of Thessaly, located in central Greece. The typology, both concerning the architectural and constructional aspects of the school buildings erected during the end of the 19th–beginning of the 20th century was identified, as well as their historic background and geographic distribution. In continuity, a case study was selected (school building of Megalovrysso), where a thorough survey was made, regarding architectural, constructional and structural analysis, as well as evaluation of the preservation state. The case study was selected due to multiple reasons, concerning the following: (i) Date of construction (1931). According to literature, more than 3000 schools were constructed in Greece in the period 1928–1932 [1,21], corresponding to one of the most productive eras of national school buildings’ erection. (ii) Preservation state. The building undertook limited repair works during its life span. Even the old equipment and furniture have been maintained up to now. (iii) Accessibility. The school has been de-characterized (not functioning as an educational unit), rendering its access feasible for the long-lasting onsite inspection. (iv) Future perspectives. Due to its de-characterization, its multiscale analysis was rendered as necessary, in order to avoid future improper alterations and repair works.
The scope of the study was to identify the characteristics of the historic schools of this specific region, comparatively assess their differences and similarities, and envisage the key elements of their structure and performance. It emerged from the gap shown in the relevant literature [1,4,6,10,11,12,14,15], mainly focusing on the structural and energy integration of this significant part of common European built heritage that still maintains its initial functional role as educational centers. Due to the intense need for structural integrity and energy performance in the running of historic schools nowadays, it is considered a mayor task to highlight the diachronic principles governing their construction in order to avoid improper repair works. This is also important in cases of schools’ de-characterization and abandonment, so as to preserve them for future generations. The innovation of the study is based on its multi-disciplinary approach, assessing valuable data from the historic, geographical, architectural, constructional and structural characteristics of this category of heritage structures.
2. Materials and Methods
As has been stated, the aim of the study was to identify the historic school buildings located in the Municipality unit of Agia, central Greece, comparatively evaluating their architectural and constructional characteristics. A more elaborated survey was realized in a selected case study, the historic school building of Megalovrysso located in the mountainous settlement of Megalovrysso. The selection of the case study was based on the generally good preservation state of the building, as well as on the fact that limited interventions have been made during its life time.
The methodology followed was according to former experience [6,15] and is schematically depicted in Scheme 1. Firstly, historic archives related to the school buildings of the region were assessed, regarding historic files, architectural designs and technical reports. They were provided by the Municipality of Agia and the school directors, while the citizens of the settlements, gave valuable information regarding the historic background of the buildings. The identification and geographical mapping of the historic schools concerned a laborious work, since there was no relevant collective data on the buildings of the area. It is worth to notice that historic school buildings are usually not separately defined in the archives of the Municipalities and the regional Directorates of Education running the school units of Greece.
Scheme 1.
Schematic flowchart of the methodology assessed during the study.
In continuity, a thorough onsite inspection of the buildings was realized, including photographic documentation, identification of their architectural–constructional aspects, as well as of their building materials. In the case study, a more explicit survey was performed, enriched with non-destructive techniques application, to document the building materials type and characteristics. To this end, Schmidt hammer rebound testing was applied to estimate the materials’ strength, as well as profometer measurements to detect the existence of reinforcement in concrete elements [22,23,24]. ACI 228.1R-03 was taken into account for assessing the Schmidt rebound testing values. A detailed update of the existing architectural designs was also realized, leading to a mapping of the building materials of the structure, as well as of the damages found.
Finally, the structural analysis of the building was made, based on the three-dimensional finite element model of the structure using SAP2000v.11 [25]. Some of the modeling and analysis steps are the following: detailed representation of the structural geometry; estimation of the mechanical characteristics of the building materials; definition of the loading combinations; conduction of static, modal and dynamic spectral analyses; and results exploitation [26]. The global seismic response of unreinforced masonry buildings can be evaluated by different modelling strategies [27]. Two broad categories are the following: (i) the Continuous Constitutive Laws Model (CCLM) [26,28,29,30,31,32]; and (ii) the Equivalent Frame Model (EFM) [33,34]. Furthermore, refined and simplified methods for seismic vulnerability assessment of masonry structures can be found in the literature [34,35,36]. Taking into account the available financial and technical means, the main scope of the preliminary structural analysis conducted in the present paper is the detection of the most vulnerable areas of the building.
All research results were comparatively evaluated in order to define the architectural, constructional and structural aspects of the historic school building, with regard to its historical background and the diachronic functional requirements of its use.
3. Results and Discussion
3.1. Geographic Distribution and Characteristics of the Stone Schools of the Municipalit of Agia
The Municipality of Agia is located in central Greece, region of Thessaly, concerning one of the seven Municipalities of the regional unit of Larissa (Thessaly’s capital). It is situated in the coastal area of the region, covering the mountainous part of Ossa and includes 40 settlements occupied by 11,700 inhabitants (Figure 1). It has a unique environmental physiognomy, attractive scenery (both mountainous and coastal), rich fauna and flora and a large history originating from the Mycenaean civilization (2nd millennium BC). The region played an important role during the Byzantine era and became a maritime trade center at the 18th century. During the 19th century, agriculture became the main economic activity, while the education of citizens started to be gradually pursued. In 1876 the first school was already functioning in the settlement of Agia, and by 1882, nine schools had been established [37].
Figure 1.
Geographic location and distribution of the school buildings (google maps). (a,b) Location of the Municipality of Agia in central Greece. (c) Distribution of the stone school buildings in the Municipality of Agia. The colors of the map represent the stone schools found in the four units of the Municipality (green: unit of Lakeria blue: unit of Agia, red: unit of Melivia, yellow: unit of Evrimenes).
According to the survey, 35 school buildings were detected in the Municipality of Agia, 23 of which concern stone masonry constructions (Figure 1c). From the latter, 15 buildings still function as schools, while the rest were abandoned or converted into cultural centers. In Figure 1c, the geographical distribution of the stone school buildings is presented, showing that they are widespread in the four units of the Municipality (Agia, Lakeria, Evrimenes, Melivia). It is worth mentioning that stone masonry school buildings are located in the 21 from the 40 settlements of the Municipality, inhabited by 150 to 3000 citizens.
In the unit of Agia, comprising 9 settlements, 11 stone masonry school buildings were recorded, as presented in Table 1, dated from 1881 to 1958. The historic ones concern 4 buildings dated from 1881 (Metaxochori, Elafos) to 1931; however, there were testimonies from citizens that in most settlements, a historic school (dated at the end of the 19th–beginning of the 20th century) pre-existed. From the five historic schools (Figure 2), two still function as educational units (kindergarten, elementary), while the other three have been transformed into a museum (Elafos) and cultural centers (Metaxochori, Megalovryso).
Table 1.
Characteristics of the stone school buildings recorded in the Municipality unit of Agia.
Figure 2.
The historic school buildings of the Municipality unit of Agia. (a) Old school of Metaxochori (1881), (b) old elementary of Elafos (1881), (c) 1st kindergarten of Agia (1896), (d) 1st elementary of Agia (1929), (e) old elementary of Megalovrysso (1931).
As presented in Table 1, all buildings concern one to three stories (semi-basement, elevated ground floor, 1st floor), while their floor plan is rectangular. They were mostly oriented to the south, while their structure was mixed, comprising stone masonry, wooden floors and concrete elements. In all cases, the ground floor had a concrete slab (unreinforced or reinforced) covered with mosaic or tiles, whilst the floor of the 1st floor was wooden (Figure 3). The staircases were made of reinforced concrete.
Figure 3.
Ground and 1st floor pavement of historic school buildings. (a) ground floor (concrete) of the 1st kindergarten of Agia (1896), (b) 1st floor (wooden) of the 1st kindergarten of Agia (1896), (c) ground floor (concrete) of the 1st elementary of Agia (1929), (d) 1st floor (wooden) of the 1st elementary of Agia (1929).
In the ground plan, the inner spaces were symmetrically allocated alongside an elongated corridor, and the openings were also symmetrically organized. The clarity of the ground plan was depicted in the facades of the buildings, which were limitedly decorated. In the constructions of the end of the 19th century, facades remained unrendered (Metaxochori (1881), Elafos (1881), kindergarten of Agia (1896)), whilst the subsequent ones (elementary of Agia, Megalovrysso) were rendered.
3.2. Analysis Results of the Historic School of Megalovrysso
3.2.1. Historical Background
According to testimonies from the citizens of the settlement, a school was already running in the settlement Megalovrysso from the beginning of the 18th century, in the Monastery of Panagia; in 1881–1882 a new building was erected in the center of the village, hosting 40 students (Figure 4). It consisted of two classrooms, the director’s and teachers’ office, and a store house. In the beginning of the 20th century, it was demolished and was replaced with the studied building in 1931. The motives for the substitution of the school are unknow; however, these could be linked to severe damages to the old building or enlargement of the educational needs (increase of students’ number).
Figure 4.
Historic photographs of the first school building of Megalovrysso (nowadays vanished) in 1920-21 (left) and of the studied building in 1933 (right) (Megalovrysso school archives).
The studied building was constructed in 1931; in 1946–1950, the damages caused by WW II were restored (Figure 5). In 1979–1980, the wooden roof was restored, as well as the wooden opening frames, which were replaced by metallic ones. The building functioned as a school from its erection up to the year 1987 and was afterwards de-characterized and transformed into the cultural center of the settlement. Nowadays, it has remained in its initial state; the SE classroom, however, hosts the folklore museum.

Figure 5.
The main facades of the building (2022). (a) SW. Façade, (b) W façade, (c) NE. façade, (d) E façade.
3.2.2. Architectural and Constructional Aspects
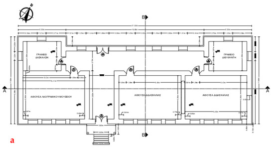
The building (total area of 400 m2) is situated in the NW part of a rectangular plan, in the northern side of the settlement’s central square. It consists of an elevated ground floor and a semi-basement that is accessible only in its northern part (through an external door in the W façade) (Figure 6). The ground plan is rectangular with dimensions 31.8 × 11.9 m and SW orientation. The main entrance is located in the SW façade, leading to a transverse corridor (3.4 × 6.6 m) that is further crossed by an elongate one (18.8 × 2.7 m). Another (symmetrical to the main) entrance is located in the NE wall. Classrooms are successively distributed alongside the elongate corridor, at the end of which the offices of the director and the teachers were located. The eastern two classrooms are divided with a wooden frame that could be opened in order to unify the two rooms.

Figure 6.
The architectural designs of the building. (a) ground floor plan, (b) basement plan, (c) SE façade, (d) NW façade, (e) E façade, (f) W façade, (g) section A-A.
The construction of the building and the allocation of inner spaces, followed the earlier principles of the first National Standard (1881) and the national program of school buildings’ construction legislated in 1894 (edited by D. Kallias) [1,21,38]. As has been stated, these principles were abolished in 1929, by the Organization of School buildings. According to the earlier instructions [1,21,26], schools were located in the center of the settlements (in the back side of a courtyard), had southern orientation and were elevated around 60 cm from the ground. The floor slab was made of wood or concrete and the inner height was at least 4 m. Classrooms were successively allocated in the elongated corridor with dimensions 6.5–7 × 10–12 m (according to the school needs and capacity). The external walls (made of stone masonry) were 60 cm thick, with the inner ones measuring 50 cm thickness. Openings were large and symmetrically put on the external side of the classrooms.
According to the survey and as depicted in the architectural plans (Figure 6), the building was elevated around 0.5–0.9 m from the ground and had an inner height of 4.3 m. The classrooms’ dimensions were 6 × 8.4 m, while the openings (1.2 × 2.2 m) were successively placed every 0.3 m (Figure 7). In the main façade, there was a perimetric frame made from mortar (Figure 7c). The walls, made of stone masonry, had a thickness of 0.65 m and were rendered both in the internal and external. The roof was wooden, covered with ceramic tiles. It is, therefore, concluded that the construction of the building followed in detail the earlier standards of construction (1881, 1894).
Figure 7.
Figures from the external and internal of the school building. (a,b) the main entrance from the external and internal, (c) openings from the external, (d) the elongated corridor leading to the director office, (e,f) the eastern classrooms divided with the wooden frame, (g) the cross section of the transverse and elongate corridors, depicting the students’ route to the main classroom.
The floor concerned an unreinforced concrete slab, as detected with profometer measurements, covered with square black and white tiles (20 × 20 cm) (Figure 8). They were cement based, with fine aggregates of natural origin, preserved in a very good condition. Color exfoliation of the tiles was recorded in the main entrance area of the building (Figure 8a), as well as in an arched part of the corridors, probably depicting the students’ route to the main E classroom (Figure 7g).
Figure 8.
Internal photos of the building. (a) cement tiles’ color exfoliation, (b) profomerter measurement of the concrete slab, (c) floor elevation of the W office, (d) accessible part of the basement, (e) pillar of the basement, (f) unrendered stone masonry of the basement, (g) drainage running externally alongside the eastern part of the building.
The western office (teachers’ office), as well as the western classroom (nowadays hosting the folklore museum), were elevated around 7 cm from the concrete slab, and the floor was made of wooden boards (0.11 × 4 m) (Figure 8c). In this part of the building, the basement was accessible, through the W external door. There, the wooden floor of the W part was recorded, supported in wooden beams and two pillars shown in Figure 6b. Pillars were made of stone masonry, were square with dimensions of 0.6 × 0.6 m and had a height of around 1 m. From the unrendered walls of the basement (Figure 8f), the masonry type of the building was detected, referring to semi-ashlar stone elements of limestone origin and probably lime-based mortars, usually found in structures of this era [1,6,17,22]. From areas of plaster detachments above the openings, wooden lintels were recorded.
The preservation state of the building was generally good, with limited detachments of renders in the internal and external. In the E office (director office) humidity concentration was recorded, mainly in the external wall, attributed to a drainage running externally alongside the eastern part of the building (Figure 8g).
Regarding the Schmidt hammer rebound testing results, presented in Table 2, they were performed in various places of the building, including the concrete slab floor and the stone masonries. The equivalent strength level of materials was envisaged (Table 1), following the equipment’s chart and the provisions given by ACI 228.1R-03 [39]. The values attained in the rendered walls mainly indicated the strength of the renders and plasters, whilst those realized in the basement of the building referred to the strength of the stone elements [6,22]. According to ACI 228.1R-03 [39], the rebound testing values are mostly influenced by the surface concrete layer, without depicting the strength equivalent of the measured element. Generally, this method could provide qualitative data for the comparative assessment of materials, following their type and preservation state [6,22,23].
Table 2.
Schmidt hammer rebound testing measurements and compressive strength equivalent.
According to the results (Table 2), in the rendered inner and external walls, Schmidt hammer values were around 12–14, corresponding to an estimated compressive strength of less than 10 MPa. The unrendered stones of the basement showed values around 44–50, equivalent to a strength level of 38–44 MPa. The concrete floor slab showed similar values in the tiled and untiled areas, corresponding to <8 MPa and <10 MPa respectively.
3.2.3. Structural Assessment in Terms of Detection of Most Vulnerable Zones
The primary steps of any structural assessment studies refer to the investigation and documentation of the existing structure in extent and in depth as well, in order to ensure the reliability of the data on which any further analysis will be based. Therefore, the following tasks must be accomplished: (i) detailed architectural drawings; (ii) description of the building’s history and possible previous interventions; (iii) investigation of interconnections between walls; (iv) detailed description of the structural bearing system; (v) description of the present state including pathology issues; (vi) conduction of in situ and laboratory experiments in order to determine type/strength of materials, etc.; and (vii) investigation of foundation and subsoil type [26,40]. Referring to the present study, taking into account the limited financial and technical means available at the present state, the structural assessment is restricted in the detection of the most vulnerable areas of the masonry building under persistent and seismic loading conditions. In addition to the aforementioned, it is recommended that a preliminary structural analysis be conducted in order to: (i) detect the most vulnerable zones; and (ii) define the possible failure modes [40]. The results will enable the design of a targeted program of investigational surveys.
The structural assessment of the building is achieved through the use of the finite element method, which has been applied in numerous case studies of masonry buildings [6,41,42,43,44,45,46]. The finite element analyses were performed using SAP2000v.11 finite element code [25]. The basic assumptions that govern the static, modal and dynamic analyses of the present case study are the following: (i) material is considered as elastic linear. The present assumption is based on the very good preservation state of the building, since no cracks on the masonry or foundation’s settlements have been detected. Furthermore, material nonlinearity can be considered in SAP2000 in layered shells. Since no information was available regarding possible wall leaves, linearity is a rational assumption; (ii) the wooden and concrete plates, as well as the stone masonry, were simulated using four-node shell elements; (iii) the stone pillars and wooden beams were simulate using two-node frame elements; (iv) the wooden roof was not taken into account due to lack of information. However, its self-weight, wind and snow loading, as well as its inertial characteristics, were transferred to the walls arranged at the building’s perimeter; (v) the geometry of each opening was carefully taken into account, given their importance to stress discontinuities [47,48]; (vi) the elevation difference between the wooden and concrete plates was taken into account by imposing a corresponding joint offset pattern; (vii) soil–structure interaction was taken into account in the form of vertical springs for the plates that rest on soil, since its importance cannot be ignored [45,46]; (viii) in addition to the aforementioned, soil pressure loading was taken into account for all the stone walls under the physical earth level; (ix) edge-constraint was imposed to nodes that did not coincide, without adding extra stiffness at the finite element model; (x) full connection is assumed between the structural elements.
Figure 9 depicts some characteristic captions of the finite element model which consisted of 7617 shell elements; 123 frame elements; and 8548 nodes, in total.

Figure 9.
Characteristic captions of the finite element model. (a) 3D view, (b) front view with openings, (c) vertical springs (green) in rise view of wooden (light blue) and concrete plates (dark blue), (d) masonry pillars at the basement in rise view.
Soil–structure interaction was taken into account in the form of Winkler’s foundations, which corresponds to one parameter model [49]. In particular, the underlying soil is modeled by a system of independent, distinct, linear springs, that are attached at the nodes of the shell elements used for the plate modeling. Therefore, the vertical displacement of the plates due to the corresponding loading, is restricted only at the areas, at which the aforementioned loading is applied [50]. The vertical displacements, and the vertical stresses, are interrelated by: , where is the modulus of subgrade reaction, which was estimated at the value of 161 MN/m2, based on geological data retrieved by studies of the nearby area and bibliography [51]. After the appropriate corrections according to the plate dimensions [51], soil-flexibility was modeled by the form of area springs [25] In this way, soil flexibility is taken into account even in its simplest form.
The estimation of the masonry characteristic strengths was achieved via EN 1996 [52]. In particular, the characteristic compressive strength was estimated by the following equation, , where: is a constant that depends on the masonry unit and the mortar, as well. In the present case, it receives the value of 0.5; is the mean normalized compressive strength of the masonry units. Considering limestone masonry, the value of 30 MPa is adopted; is the compressive strength of masonry mortar. Since no specific onsite or laboratory experiments were performed, the conservative assumption of 2 MPa was adopted. Therefore, the characteristic compressive strength of the masonry receives the value of = 6.66 MPa. The masonry shear strength was estimated by the following equation,, where: is the characteristic initial shear strength of masonry under zero compressive stress, which depends on the masonry unit and mortar type. In the present case, it receives the value of 0.10 MPa, according to EN 1996 corresponding table; is the design compressive strength, which is estimated by the finite element analysis results, for each corresponding loading condition. Finally, the tensile strength was estimated as the 1/20 of the characteristic compressive strength, ft = 0.322 MPa [28,30,31,46]. Furthermore, the short term secant modulus of elasticity is considered equal to = 1000 and receives the value of 6.657 GPa [52]. Considering the weight per unit volume of the masonry, the following formula was used: 0.25 + 0.75, where is the weight per unit volume of mortar, which receives the value of 4.17 kN/m3 and is the weight per unit volume of the stone, which receives the value of 16.19 kN/m3 [53].
Table 3 presents the material characteristics of the main structural that were taken into account and were obtained via the onsite inspection and NDT measurements, as well as through bibliographical references [54].
Table 3.
Material characteristics.
The permanent and variable actions imposed on the structure were based on information gathered regarding the structural materials and on EN 1991 [55]. Table 4 summarizes the values of the aforementioned actions.
Table 4.
Values of permanent and variable actions.
In addition to the aforementioned actions, the lateral earth pressure on the walls was also taken into account, according to the following equation: , where: is the lateral earth pressure coefficient, which receives the value of 0.337; is the friction angle of the soil, which receives the value of 41.5°; is the density of the soil, which receives the value of 21.5 kN/m3; and is the difference in depth [m]. Figure 10 depicts the imposed lateral earth pressure at the external walls.
Figure 10.
Lateral earth pressure depicted at the external walls (front view). (Color explanation is provided in Figure 9a).
The seismic action was based on EN 1998 [56] and the Greek National Annex to EN 1998 [57]. Figure 11 depicts the design spectrums along the horizontal and the vertical directions. The ground type corresponds to B and therefore, S = 1.2 for horizontal action and S = 1 for vertical action, TB = 0.15 s, TC = 0.5 s, TD = 2 s. The horizontal design acceleration of type A ground was equal to = 0.24 g for the horizontal action and = 0.216 g for the vertical action. The lower bound factor for the design spectrum received the value of = 0.2 and the behavior factor received the value of = 1.5.
Figure 11.
Design spectrums along horizontal and vertical direction.
Many researchers have investigated the crucial effects of vertical ground component on different masonry types: (i) towers [58,59,60]; (ii) bridges [61]; (iii) minarets [62]; (iv) chimneys [63,64]; (v) khans [65]; (vi) castles [66]; and (vii) buildings in general [67,68,69,70,71]. Therefore, the vertical design spectrum is also considered in seismic actions.
The structural assessment, in terms of detection of the most vulnerable zones, under static or persistent loading conditions, included four different loading combinations: (i) 1.35 G + 1.5 Q; (ii) 1.35 G + 1.5 Q + 1.5 0.6 Wind; (iii) 1.35 G + 1.5 Q + 1.5 0.5 Snow; (iv) 1.35 G + 1.5 Q + Wind + Snow, where G refers to the permanent loading and Q to variable loading [56]. The main criterion in order to detect possible zones of failure is the exceedance of the developed stresses in comparison to the corresponding strengths. SAP2000 provides the stresses to the top and bottom faces of the shell element. Therefore, an additional calculation procedure was implemented in order to estimate the stresses in the middle area of each masonry wall. For all the aforementioned loading combinations, the developed stresses received lower values than the corresponding strengths. In particular, the maximum compressive stress corresponded to loading combination (iv) and received a value of 345.705 kPa; the maximum shear stress corresponded to loading combination (ii) and received a value of 91.94 kPa; and the maximum tensile stress corresponded to loading combination (i) and received a value of 47.84 kPa. Therefore, the finite element results were in accordance with the present state of the masonry structure and verified its load bearing capacity under persistent design situations.
The natural periods of vibration and the corresponding natural modes of vibration are vital for the understanding of the structural behavior under dynamic loads and are necessary for the implementation of a response spectrum analysis [6,72,73]. The loading combination applied for the determination of inertial characteristics corresponded to G + 0.6 G [56]. The total number of mode shapes that were taken into account rose up to 300 and the corresponding translational mass participation ratios along X, Y and Z axis received the following values: 90.45%; 90.74%; and 62.43%, respectively.
Figure 12 depicts the fundamental translational and torsional mode shapes, as well as the corresponding natural periods of vibration.

Figure 12.
Fundamental translational and torsional natural modes of vibration. (a) translation along Y axis, T1 = 0.0838 s, (b) torsion, T2 = 0.0629 s, (c) translation along X axis, T4 = 0.0554 s, (d) translation along Z axis, T78 = 0.0175 s. (Color explanation is provided in Figure 9a).
The structural assessment, in terms of detection of the most vulnerable zones, under dynamic or seismic loading conditions, refers to response spectrum analyses, which included the following combinations: (i) G + 0.6 Q EX EY; (ii) G + 0.6 Q EX EY EZ, where E is the translational seismic action along X, Y and Z axis [72]. The second loading combination takes into account the action of the vertical ground component and corresponds to the maximum values of developed stresses. In particular, the maximum compressive stress received a value of −515.606 kPa; the maximum shear stress received a value of 224.72 kPa; and the maximum tensile stress received a value of 386.584 kPa. However, all the aforementioned critical stresses were observed at the corners of an internal masonry, where discontinuities were expected. Furthermore, in a future, more advanced model, the aforementioned area, as well as all areas prone to stress concentrations, must receive a mesh refinement. Figure 13 depicts the developed stressed at the masonry structures of the building and at the aforementioned internal masonry.

Figure 13.
Developed stresses in [kPa] at the building and the critical internal masonry. (a) shear, (b) tension, (c) compression.
Figure 14 depicts the deformed shape of the building in terms of resultant displacements according to G + 0.6 Q EX EY EZ loading combination. The maximum resultant displacement received a value of 1.728 mm and corresponded to an elongated masonry wall, which belongs to the perimeter of the building. In particular, it comprised the following maximum values along the X, Y and Z axis, respectively: 0.502 mm; 1.724 mm; 0.203 mm. Therefore, the contribution of translation along the Y axis was considered to be the critical one.
Figure 14.
Resultant displacements in [mm].
3.3. General Remarks
The study of the historic school building of Megalovrysso, built in 1931, followed a multi-disciplinary approach, concerning the assessment of both its wider historic and geographic aspects, as well as the documentation of its architectural, constructional and structural characteristics. The survey was therefore related to multiple aspects, testifying the main principles governing its structure and preservation state. According to the research results, the building followed in detail the earlier national principles of schools’ erection, dated 1881 and 1894, although these were abolished in 1929 (two years before its construction). As documented in former research works [1,6,15], in the rural areas of Greece, the traditional architectural and constructional types of school buildings were applied up until the middle of the 20th century, despite the fact that the legislative reform in education was in force in the urban areas from the year 1929.
The school building concerned a mixed-type construction, with stone masonry walls and an unreinforced concrete slab floor. In the western part, the floor was wooden and elevated in order to create an accessible basement, supported in two centrally located masonry pillars. The ground plan was rectangular, with a simple and symmetric allocation of the inner spaces, and SW orientation. Their distribution, as well as that of the openings, followed a symmetric pattern, providing natural ventilation and lighting, as well as structural stability [1,15].
Although the building materials used for the school construction were simple (stones probably of local origin, traditional mortars, unreinforced concrete slab, wooden elements), its preservation state nowadays is considered to be good, taking into account the limited repair works conducted during its life time. Limited pathology symptoms were detected, mainly affecting the building materials themselves and not the structural system of the building.
To this end, the finite element method was applied for the structural assessment of the building, taking into account onsite geometrical and material data, as well as some clearly stated assumptions. Soil–structure interaction was also taken into account for the plates resting on soil surface. The numerical study targeted the detection of the most vulnerable areas of the structure, since extra non-destructive experimental data are necessary for the complete structural evaluation. However, even under the prism of elastic behavior, the results of the numerical analyses validated the present good state of the masonry structure.
Generally, the multi-level assessment of the building resulted in an analytical survey of its characteristics, highlighting the principles of its functional requirements, construction and preservation state. The methodology followed, also assessed in a previous work [6], could therefore serve as a baseline for future studies in the field of historic school buildings to demonstrate the diachronic principles of their construction.
4. Conclusions
From the survey results of the historic school buildings of the Municipality of Agia (region of Thessaly, central Greece), it was assessed that from the total 35 school buildings, 23 concern stone masonry constructions are equally distributed in the settlements of the Municipality (15 buildings function as schools and the rest are abandoned or converted to cultural centers). In the unit of Agia, 11 stone masonry school buildings were recorded (dated from 1881 to 1958), built according to the traditional constructional techniques. They concerned mixed type structures with stone masonry, wooden and supplementary concrete elements, as well as a symmetric rectangular ground plan.
The case study, concerning the old elementary school of Megalovrysso, followed the traditional principles of school buildings’ construction, having a rectangular ground plan, with SW orientation and symmetrical allocation of the inner spaces and openings. The walls referred to stone masonry, while the floor was made of an unreinforced concrete slab in the most part (in the W part it was wooden and elevated, in order to create an accessible basement). Under the prism of elastic behavior, the results of the numerical analysis validated the present state of the masonry structure, which is generally in a very good condition. Limited damages have been recorded, mainly referring to the building materials themselves.
Concluding, it is worth mentioning that historic school buildings could be encountered as part of a specific constructional type that was and still is closely linked with the educational evolution, history and contemporary life of each region. Their technological characteristics were based on the traditional principles of construction, whilst their architecture highlighted their functional role and requirements of clarity and simplicity. Their study is significant in order to highlight both the tangible and intangible aspects they encompass, as well as to define their running state and urge their need to be treated as heritage assets.
Author Contributions
Conceptualization, V.P.; methodology, V.P. and V.T.; software, V.P., I.M. and V.T.; validation, V.P. and V.T.; formal analysis, V.P., I.M. and V.T.; investigation, V.P., I.M. and V.T.; resources, V.P. and I.M.; data curation, V.P., I.M. and V.T.; writing—original draft preparation, V.P. and V.T.; writing—review and editing, V.P. and V.T.; visualization, V.P., I.M. and V.T.; supervision, V.P. All authors have read and agreed to the published version of the manuscript.
Funding
This research received no external funding.
Data Availability Statement
Not applicable.
Conflicts of Interest
The authors declare no conflict of interest.
References
- Pachta, V. Historic and constructional aspects of stone schools in Greece: The case of the Aristotle municipality in Chalkidiki. J. Archit. Urban. 2021, e45, 143–154. [Google Scholar] [CrossRef]
- Abreu Marques, B.; de Brito, J.; Correia, J.R. Constructive characteristics and degradation condition of Liceu Secondary Schools in Portugal. Int. J. Archit. Herit. 2015, 9, 896–911. [Google Scholar] [CrossRef]
- Guarini, M.R.; Morano, P.; Sica, F. Historical school buildings. A multi-criteria approach for urban sustainable projects. Sustainability 2020, 12, 1076. [Google Scholar] [CrossRef]
- Lassandro, P.; Cosola, T.; Tundo, A. School building heritage: Energy efficiency, thermal and lighting comfort evaluation via virtual tour. Energy Procedia 2015, 78, 3168–3173. [Google Scholar] [CrossRef]
- Watters, D.M. Our Catholic school: Themes and patterns in early Catholic school buildings and architecture before 1872. Innes Rev. 2020, 71, 1–66. [Google Scholar] [CrossRef]
- Pachta, V.; Terzi, V.; Malandri, E. Architectural, Constructional and Structural Aspects of a Historic School in Greece. The Case of the Elementary School in Arnaia, Chalkidiki. Heritage 2021, 4, 1–19. [Google Scholar] [CrossRef]
- Perrone, D.; O’ Reilly, G.J.; Monteiro, R.; Filiatrault, A. Assessing seismic risk in typical Italian school buildings: From in-situ survey to loss estimation. Int. J. Disaster Risk Reduct. 2019, 44, 101448. [Google Scholar] [CrossRef]
- Buvik, K.; Andersen, G.; Tangen, S. Ambitious renovation of a historical school building in cold climate. Energy Procedia 2014, 48, 1442–1448. [Google Scholar] [CrossRef]
- Doukas, D.I.; Bruce, T. Energy Audit and Renewable Integration for Historic Buildings: The case of Craiglockhart Primary School. Procedia Environ. Sci. 2017, 38, 77–85. [Google Scholar] [CrossRef]
- Martinez-Molina, A.; Boarin, P.; Tort-Ausina, I.; Vivancos, J.L. Post-occupancy evaluation of a historic primary school in Spain: Comparing PMV, TSV and PD for teachers’ and pupils’ thermal comfort. Build. Environ. 2017, 117, 248–259. [Google Scholar] [CrossRef]
- Khledj, S.; Bencheikh, H. Impact of a Retrofitting Project on Thermal Comfort and Energy Efficiency of a Historic School in Miliana, Algeria. Int. J. Archit. Herit. 2019, 15, 407–425. [Google Scholar] [CrossRef]
- Dascalaki, E.G.; Sermpetzoglou, V.G. Energy performance and indoor environmental quality in Hellenic schools. Energy Build. 2011, 43, 718–727. [Google Scholar] [CrossRef]
- Lerma, C.; Mas, A.; Blasco, V. Analysis Procedure of a Previous Planning Organization: The Area of the Seminary School of Corpus Christi in Valencia, Spain. Int. J. Archit. Herit. 2013, 7, 135–152. [Google Scholar] [CrossRef][Green Version]
- Varun; Sharma, A.; Shree, V.; Nautiyal, H. Life cycle environmental assessment of an educational building in Northern India: A case study. Sustain. Cities Soc. 2012, 4, 22–28. [Google Scholar] [CrossRef]
- Pachta, V.; Giourou, V. Comparative Life Cycle Assessment of a Historic and a Modern School Building, Located in the City of Naoussa, Greece. Sustainability 2022, 14, 4216. [Google Scholar] [CrossRef]
- Stabile, L.; Dell’Isola, M.; Frattolillo, A.; Massimo, A.; Russi, A. Effect of natural ventilation and manual airing on indoor air quality in naturally ventilated Italian classrooms. Build. Environ. 2016, 98, 180–189. [Google Scholar] [CrossRef]
- Pachta, V.; Papayianni, I. The study of the historic buildings of Eclecticism in Thessaloniki under the prism of sustainability. Procedia Environ. Sci. 2017, 38, 274–282. [Google Scholar] [CrossRef]
- Arya, A.S. Protection of Educational Buildings against Earthquakes, a Manual for Designers and Builders; Educational Building Report; Unesco: Bangkok, Thailand, 1987; Volume 13. [Google Scholar]
- Biglari, M.; Hadzima-Nyarko, M.; Formisano, A. Seismic Damage Index Spectra Considering Site Acceleration Records: The Case Study of a Historical School in Kermanshah. Buildings 2022, 12, 1736. [Google Scholar] [CrossRef]
- Salvado, F.; Marques de Almeida, N.; Vale e Azevedo, A. Historical analysis of the economic life-cycle performance of public school buildings. Build. Res. Innov. 2019, 47, 813–832. [Google Scholar] [CrossRef]
- Kalafati, E. The School Buildings of the Elementary Education 1821–1929. Historic Archives of Greek Youth; General Secretariat for Youth: Athens, Greece, 1988. (In Greek) [Google Scholar]
- Papayianni, I.; Pachta, V.; Milosi, A. The survey of a historical building from the beginning of the previous century. Evaluation of mechanical characteristics of the load bearing system. In Proceedings of the Concrete Solutions, 6th International Conference on Concrete Repair, Thessaloniki, Greece, 20–23 June 2016; pp. 353–360. [Google Scholar]
- Debailleux, L. Schmidt hammer rebound hardness tests for the characterization of ancient fired clay bricks. Int. J. Archit. Herit. 2019, 13, 288–297. [Google Scholar] [CrossRef]
- Hüblová, S.; Cikrle, P.; Karel, O.; Kocáb, D. Experimental measurement of the diameter and cover depth of steel reinforcement using an electromagnetic concrete cover meter. In Proceedings of the XXV International Conference and Meeting of Departments, CONSTRUMAT 2019, Zuberec, Slovakia, 29–31 May 2019; Volume 549. [Google Scholar] [CrossRef]
- SAP2000 v.11; Computers and Structures, Inc.: Berkeley, CA, USA, 2007; Available online: https://sap-2000.software.informer.com/11.0/ (accessed on 30 May 2022).
- Asteris, P.G.; Chronopoulos, M.P.; Chrysostomou, C.Z.; Varum, H.; Plevris, V.; Kyriakides, N.; Silva, V. Seismic vulnerability assessment of historical masonry structural systems. Eng. Struct. 2014, 62–63, 118–134. [Google Scholar] [CrossRef]
- D’Altri, A.M.; Sarhosis, V.; Milani, G.; Rots, J.; Cattari, S.; Lagomarsino, S.; Sacco, E.; Tralli, A.; Castellazzi, G.; de Miranda, S. Modeling Strategies for the Computational Analysis of Unreinforced Masonry Structures: Review and Classification. Arch. Computat. Methods Eng. 2020, 27, 1153–1185. [Google Scholar] [CrossRef]
- Tarque, N.; Camata, G.; Spacone, E.; Varum, H.; Blondet, M. Nonlinear dynamic analysis of a full-scale unreinforce adobe model. Earthq. Spectra 2014, 30, 1643–1661. [Google Scholar] [CrossRef]
- Milani, G.; Shehu, R.; Valente, M. Possibilities and limitations of innovative retrofitting for masonry churches: Advanced computations on three case studies. Constr. Build. Mater. 2017, 147, 239–263. [Google Scholar] [CrossRef]
- Silva, C.L.; Mendes, N.; Lourenço, P.B.; Ingham, J. Seismic Structural Assessment of the Christchurch Catholic Basilica, New Zealand. Structures 2018, 15, 115–130. [Google Scholar] [CrossRef]
- Aşıkoğlu, A.; Avşar, Ö.; Lourenço, P.B.; Silva, C.L. Effectiveness of seismic retrofitting of a historical masonry structure: Kütahya Kurşunlu Mosque, Turkey. Bull. Earthq. Eng. 2019, 17, 3365–3395. [Google Scholar] [CrossRef]
- Shehu, R. Preliminary Assessment of the Seismic Vulnerability of Three Inclined Bell-towers in Ferrara, Italy. Int. J. Archit. Herit. 2022, 16, 485–517. [Google Scholar] [CrossRef]
- Quagliarini, E.; Maracchini, G.; Clementi, F. Uses and limits of the Equivalent Frame Model on existing unreinforced masonry buildings for assessing their seismic risk: A review. J. Build. Eng. 2017, 10, 166–182. [Google Scholar] [CrossRef]
- Formisano, A.; Marzo, A. Simplified and refined methods for seismic vulnerability assessment and retrofitting of an Italian cultural heritage masonry building. Comput. Struct. 2017, 180, 13–26. [Google Scholar] [CrossRef]
- Lourenço, P.B.; Roque, J.A. Simplified indexes for the seismic vulnerability of ancient masonry buildings. Constr. Build. Mater. 2006, 20, 200–208. [Google Scholar] [CrossRef]
- D’Amato, M.; Gigliotti, R.; Laguardia, R. Comparative Seismic Assessment of Ancient Masonry Churches. Front. Built Environ. 2019, 5, 56. [Google Scholar] [CrossRef]
- Historic and Folklore Association of Thessaly. Agia through Centuries; Historic Department of the Historic and Folklore Association of Thessaly: Larisa, Greece, 1937. (In Greek) [Google Scholar]
- Hellenic Polytechnic Society. The Paris Conference on the hygiene of buildings. The Greek measures for the hygiene of school buildings. Archimedes 1906, 2, 13–18. (In Greek) [Google Scholar]
- ACI Committee. ACI 228.1R-03 (2003): In-Place Methods to Estimate Concrete Strength; ACI Committee: West Conshohocken, PA, USA, 2003; Volume 228. [Google Scholar]
- Greek Organization of Earthquake Design and Protection (OASP). KADET 2021, Draft—Regulation for Valuation and Structural Interventions of Ma-Sonry. Available online: https://www.preventionweb.net/organization/earthquake-planning-and-protection-organization-oasp (accessed on 1 December 2022).
- Formisano, A.; Vaiano, G.; Petrucci, N.J. Hemp-FRP for seismic retrofitting of existing masonry buildings. In Proceedings of the International Conference on Protection of Historical Constructions, PROHITECH 2021, Athens, Greece, 25–27 October 2021; LNCE 209. Vayas, I., Mazzolani, F.M., Eds.; Springer: Cham, Switzerland, 2022; pp. 402–417. [Google Scholar] [CrossRef]
- Papadopoulos, A.K. Assessment of archeological theories for monuments on the basis of sophisticated structural analysis numerical simulations. In Proceedings of the International Conference on Protection of Historical Constructions, PROHITECH 2021, Athens, Greece, 25–27 October 2021; LNCE 209. Vayas, I., Mazzolani, F.M., Eds.; Springer: Cham, Switzerland, 2022; pp. 443–457. [Google Scholar] [CrossRef]
- Rupakhety, R.; Gautam, D.; Adhikari, R.; Pratyush, J.; Bhatt, L.; Baruwal, R. System identification and finite element modelling of damaged Bal Mandir monument in Kathmandu after the 2015 Gorkha earthquake. In Proceedings of the International Conference on Protection of Historical Constructions, PROHITECH 2021, Athens, Greece, 25–27 October 2021; LNCE 209. Vayas, I., Mazzolani, F.M., Eds.; Springer: Cham, Switzerland, 2022; pp. 222–231. [Google Scholar] [CrossRef]
- Santini, S.; Baggio, C.; Sabbatini, V.; Sebastiani, C. Seismic assessment of roman concrete groin vaults through UAV, NDT and 3D Analyses. Heritage 2022, 5, 311–331. [Google Scholar] [CrossRef]
- Terzi, V. Investigation of the pathology causes of Xana, Greece by the use of nonlinear finite element analyses. In Proceedings of the International Conference on Protection of Historical Constructions, PROHITECH 2021, Athens, Greece, 25–27 October 2021; LNCE 209. Vayas, I., Mazzolani, F.M., Eds.; Springer: Cham, Switzerland, 2022; pp. 369–388. [Google Scholar] [CrossRef]
- Terzi, G.V.; Ignatakis, E.G. Nonlinear finite element analyses for the restoration study of Xana, Greece. Eng. Struct. 2022, 167, 96–107. [Google Scholar] [CrossRef]
- Mughal, U.A.; Qazi, A.U.; Ahmed, A.; Abbass, W.; Abbas, S.; Salmi, A.; Sayed, M.M. Impact of Openings on the In-Plane Strength of Confined and Unconfined Masonry Walls: A Sustainable Numerical Study. Sustainability 2022, 14, 7467. [Google Scholar] [CrossRef]
- Bartoli, G.; Betti, M.; Marra, A.M.; Monchetti, S. On the role played by the openings on the first frequency of historic masonry towers. Bull. Earthq. Eng. 2020, 18, 427–451. [Google Scholar] [CrossRef]
- Winkler, E. Vorträge über Eisenhanbau; Dominicus: Prague, Czech Republic, 1867. [Google Scholar]
- Jane, H.H. Theory of Elasticity and Plasticity; PHI: New Delhi, India, 2017; ISBN 978-81-203-5263-4. [Google Scholar]
- Terzaghi, K. Evaluation of coefficients of subgrade reaction. Geotechnique 1955, 4, 297–326. [Google Scholar] [CrossRef]
- EN 1996-1; Eurocode 6: Design of Masonry Structures—Part 1-1: General Rules for Reinforced and Unreinforced Masonry Structures. European Committee for Standardization: Brussels, Belgium, 2005.
- Pinho, F.F.S.; Lúcio, V.J.G. Rubble Stone Masonry Walls in Portugal: Material Properties, Carbonation Depth and Mechanical Characterization. Int. J. Archit. Herit. 2017, 11, 685–702. [Google Scholar] [CrossRef]
- Denskovska, L.; Aleksovski, G.; Milkova, K.; Perunkosvski, K. The influence of in-plane stiffness of timber floors on the seismic response of existing masonry buildings. In Proceedings of the 16th European Conference on Earthquake Engineering, Thessaloniki, Greece, 15–21 June 2018. [Google Scholar]
- EN 1991; Eurocode 1-Actions on Structures. The European Union: Maastricht, The Netherlands, 2002.
- EN 1998-1; Eurocode 8: Design of Structures for Earthquake Resistance—Part 1: General Rules, Seismic Actions and Rules for Buildings. European Committee for Standardization: Brussels, Belgium, 2004.
- Hellenic Organization for Standardization. Greek National Annex to EN 1998-1. In Eurocode 8: Design of Structures for Earthquake Resistance—Part 1: General Rules, Seismic Actions and Rules for Buildings; Hellenic Organization for Standardization: Athens, Greece, 2005. [Google Scholar]
- Casolo, S. A three-dimensional model for vulnerability analysis of slender medieval masonry towers. J. Earthq. Eng. 1998, 2, 487–512. [Google Scholar] [CrossRef]
- Casolo, S. Significant ground motion parameters for evaluation of the seismic performance of slender masonry structures. J. Earthq. Eng. 2001, 5, 187–204. [Google Scholar] [CrossRef]
- Casolo, S.; Vito, D.; Uva, G. Influence of soil deformability on the seismic response of a masonry tower. Bull. Earthq. Eng. 2017, 15, 1991–2014. [Google Scholar] [CrossRef]
- Moosavi, M.; Ziyaeifar, M.; Nekooei, M.; Mokari, J. Effects of vertical motions on seismic response of Goltzschtal masonry arch bridge. J. Seism. Earth Eng. 2016, 18, 33–46. [Google Scholar]
- Bayraktar, A.; Hökelekli, E.; Halifeoglu, F.M.; Mosallam, A.; Karadeniz, H. Vertical strong ground motion effects on seismic damage propagations of historical masonry rectangular minarets. Eng. Fail. Anal. 2018, 91, 115–128. [Google Scholar] [CrossRef]
- Angelides, M. The February 2010 earthquake in Chile, actual versus designed response of 2 concrete chimneys. CICIND Rep. 2011, 27, 65–70. [Google Scholar]
- Breccolotti, M.; Materazzi, A.L. The role of the vertical acceleration component in the seismic response of masonry chimneys. Mat. Struct. 2016, 49, 29–44. [Google Scholar] [CrossRef]
- Terzi, V.; Athanatopoulou, A. Seismic Vertical Component Effects on the Pathology of a Historical Structure, Xana, Located in Greece. Front. Built Environ. 2021, 7, 666840. [Google Scholar] [CrossRef]
- Chieffo, N.; Mosoarca, M.; Formisano, A.; Lourenço, P.B.; Milani, G. The effect of ground motion vertical component on the seismic response of historical masonry buildings: The case study of the Banloc Castle in Romania. Eng. Struct. 2021, 249, 113346. [Google Scholar] [CrossRef]
- Rinaldin, G.; Fasan, M.; Noe, S.; Amadio, C. The influence of earthquake vertical component on the seismic response of masonry structures. Eng. Struct. 2019, 185, 184–193. [Google Scholar] [CrossRef]
- Liberatore, D.; Doglioni, C.; AlShawa, O.; Atzori, S.; Sorrentino, L. Effects of coseismic ground vertical motion on masonry constructions damage during the 2016 Amatrice-Norcia (Central Italy) earthquakes. Soil Dyn. Earthq. Eng. 2019, 120, 423–435. [Google Scholar] [CrossRef]
- Mosoarca, M.; Onescu, I.; Onescu, E.; Anastasiadis, A. Seismic vulnerability assessment methodology for historic masonry buildings in the near-field areas. Eng. Fail. Anal. 2020, 115, 104662. [Google Scholar] [CrossRef]
- Di Michele, F.; Cantagallo, C.; Spacone, E. Effects of the vertical seismic component on seismic performance of an unreinforced masonry structures. Bull. Earthq. Eng. 2020, 18, 1635–1656. [Google Scholar] [CrossRef]
- Kallioras, S.; Graziotti, F.; Penna, A.; Magenes, G. Effects of vertical ground motions on the dynamic response of URM structures: Comparative shake-table tests. Earthq. Eng. Struct. Dyn. 2022, 51, 347–368. [Google Scholar] [CrossRef]
- Manolis, G.D.; Makarios, T.K.; Terzi, V.; Karetsou, I. Mode shape identification of an existing three-story flexible steel stairway as a continuous dynamic system. Theor. Appl. Mech. 2015, 42, 151–166. [Google Scholar] [CrossRef]
- Terzi, G.V. Soil-structure-interaction effects on the flexural vibrations of a cantilever beam. Appl. Math. Model. 2021, 97, 138–181. [Google Scholar] [CrossRef]
Disclaimer/Publisher’s Note: The statements, opinions and data contained in all publications are solely those of the individual author(s) and contributor(s) and not of MDPI and/or the editor(s). MDPI and/or the editor(s) disclaim responsibility for any injury to people or property resulting from any ideas, methods, instructions or products referred to in the content. |
© 2022 by the authors. Licensee MDPI, Basel, Switzerland. This article is an open access article distributed under the terms and conditions of the Creative Commons Attribution (CC BY) license (https://creativecommons.org/licenses/by/4.0/).



















