Abstract
In the years since the emergence of the railway, the main objective has been focused on trains arriving and stopping at stations, with stations being considered a secondary or even residual objective for bringing people or goods on or off. The arrival of high-speed trains at stations has allowed for the creation of integrated, environmentally friendly stations which have become mobility hubs, connecting different modes of transportation and cities, as well as being clusters of economic activities that stimulate the inclusive growth of the areas where they are located. These transport infrastructures condition the social and communication relationships of many spaces. The consequences that have been demonstrated in the stations analyzed have been strengthened intermodally with other means of transport, giving value to commercial developments and old stations, as well as the environments where they are located, a development aimed beyond the railway users themselves. From an operational point of view, the main consequence of this transformation is the necessity to absorb the increase in passenger demand. The integration of the railway within an urban space is shaped through the construction of new stations within the already existing urban framework or, in some cases, by relocating them to the periphery of the city. New stations have undergone changes compared to those built a century ago. Their conception has evolved, adapting to the architecture of their time, but the most radical change they have experienced is related to the new uses that have been developed within them and how these spaces are utilized. The introduction of high-speed trains has initiated a series of reflections on new station concepts. The new operation is characterized by journey times, frequency, and comfort. This comfort is not only perceived on board a train but also in stations during a passenger’s stay, which has a direct impact on the design of stations. Provisional railway stations are valuable tools in situations where flexibility, speed, and reduced costs are required. Although they are not designed to be permanent, their ability to adapt to specific needs makes them a strategic option for temporary projects, though not in the case studied of the Valencia station. The planning of projects makes it necessary to implement proxemic standards in the design of spaces that contribute to the diversification of economic activity around and in a station itself, such as commercial, residential, or cultural areas.
1. Introduction
Historically, railway companies were confined to constructing train stations where their trains would halt and conclude their services, with their primary function being limited to serving as sites for the exchange of goods or passengers. These stations were typically located as close as possible to urban centers; however, this was not always feasible due to the fact that railway companies did not differentiate between freight and passenger traffic, necessitating large areas—spaces that were often unavailable within the historic cores of cities [1].
Initially, there was no established model for designing railway stations. The first stations allocated their functional requirements intuitively, without distinguishing between different uses. The types of 19th century stations we encounter can be classified based on their positions relative to the railway lines—whether through stations or terminal stations—by the components that make up complexes, as well as the arrangement of platform halls in relation to buildings’ façades [2] (Figure 1).
Figure 1.
The façade of St. Pancras station (left), with the hotel building covering the central nave, and the façade of the Gare du Nord (right), with the geometry of the inner nave facing the outside. Source: Aróstegui.
However, the façades of European terminal stations follow two different models: one that conceals railway activities behind urban buildings, as seen in England, where a station is integrated into an urban plot, such as St. Pancras, where the hotel masks the railway’s activities, and another, a more common model, where the interior courtyard of a station is visible, as is the case with the Atocha station [2]. This second case translates into better functionality for a building, showcasing its uniqueness and conveying the excitement of a space that evokes the adventure of travel.
Railway architecture has experienced a resurgence from the 1980s, which is directly linked to technological advancements and the increasingly important role of architects in contributing to a new approach to railway architecture [3]. With the advent of high-speed railways, a radical shift has occurred in the entire cycle of passenger service [4], which has focused not only on reinforcing intermodality but also on enhancing the presence of commercial uses within stations and providing specialized attention to priority passengers.
Additionally, in these large stations, there has been a diversification of commercial offerings. This commercial activity plays a role not only for passengers but also for surrounding urban areas and visitors who are not engaged in rail use. This concept of the station as a service center, rather than only a transportation hub, makes it undeniable that the locations of stations and the flow of traffic through them provide significant business potential. The services offered to citizens go beyond purely commercial aspects, providing leisure, entertainment, and cultural resources, transforming the station into a new public space within a city.
With the arrival of high-speed railways in cities, three effects occur: intermodality, commercial development, and the improvement in the surrounding environment.
Stations have undergone modifications to meet the needs arising from the evolution of the railway system. In general, these have been addressed by incorporating additional elements, which have gradually altered the original image of the station.
Researchers proposed supporting the creation of more compact, diverse, and pedestrian-oriented neighborhoods. In combination, this can significantly influence how Americans travel. Over time, this aspect has been revealing and has been used in urban planning surrounding the studied cities [5].
Theoretical frameworks related to the spaces of high-speed railroad stations are scarce; we rely on the regulations and manuals of entities that promote these stations. However, we use the present research as a conceptual environment for the closest relationship of these stations: The research team formed by Cao, et al. [6], studied the requirements required by the elderly or older users, to obtain an optimal quality of the environment in high-speed railway stations. Thus, the health of the elderly has become an urgent problem to be solved when they are users of high-speed railway stations in China. The study identifies the needs of elderly passengers, pointing out major environmental issues. It proposes age-friendly design strategies for various functional areas of Nanjing South Railway Station. The contributions of Zhou et al. [7], propose to compare the differential impact of Taiwan High-Speed Railway (T-HSR) and Hainan East Ring High-Speed Railway (HER-HSR) stations on the expansion of the surrounding construction sites. This contribution presents a comprehensive method for calculating the throughput capacity of high-speed train hub stations, adapting to the complexity of train routes crossing from multiple directions. For the study, it employs a multi-objective framework with the NSGA-III algorithm, which seeks to identify optimal trade-offs in station capacity under different train configurations between lines. The contributions of the Zeng, et al. [8] establishes the design of the entrance space connecting to the subway and other modes of transportation affects passenger orientation behavior and time spent, which in turn affects the efficiency of the station entrance. How to optimize the station entrance space design and signage layout becomes the key to shortening station entry time. The work of team Šperka, et al. [9] studies how to ensure the modal split of goods from road to rail transport. In addition, it is important to modernize the railway infrastructure, especially hubs and other important railroad stations in major settlements and large cities. Therefore, they consider it necessary to constantly invest in railway lines as well as railway stations.
The arrival of high-speed rail has led to the renovation and adaptation of existing stations, particularly those with significant architectural value, as well as the construction of new buildings to accommodate the new services. In the case of renovation and adaptation, it is important to highlight that, in addition to infrastructure improvements and respect for architectural heritage, the objectives of providing excellent service to railway users, ensuring their safety and comfort, must also be met.
The expansions of existing railway stations, as well as the construction of new ones due to the increased service offerings, mean that the solutions adopted to absorb the rise in passengers may require significant interventions that urban planning in the city where the station is located may not be able to address.
2. Objectives
Therefore, it is necessary to define a design protocol for passenger spaces as a starting point for calculating the capacity of the various areas that make up these railway infrastructures. Prior to defining the design protocol, a learning methodology is employed, based on analyzing “how it has been done”, with the goal of using references to make effective strategic decisions in projects, taking into account practical experience in real-world situations.
3. Methodology
The method used in the research is the mixed-methods approach [10]. The method employed in the research is the mixed-methods approach, based on deductive comparative analysis derived from quantitative studies, which are defined to understand numerical information, periodicity, standards, averages, establishing dependencies and cause-and-effect relationships, generalizing, and testing or confirming theories, hypotheses, or assumptions through statistical analysis. In this way, the results are expressed in numbers or graphs, i.e., in quantitative research methods. This approach is primarily used because it allows for the establishment of standardized background selection protocols that can be used by others to validate studies [11].
Qualitative research involves collecting and analyzing non-numeric data to understand concepts, opinions, or experiences, providing a holistic perspective that aligns and studies descriptive backgrounds with deeper contextual insights. Additionally, it allows for confronting the effects achieved from different origins.
Comparative analysis and case study represent the aspect of the methodology based on holistic reasoning through similarity, offering guidelines for conducting systematic studies on project and development phenomena that are not easily quantifiable [12].
The phases followed are as follows:
- Individualized study and analysis of each case,
- Comparative analysis,
- Discussion of opposing cases,
- Conclusions and proposals for action lines.
The advantages gained from the case method are:
- Opening new viewpoints through the comparative analysis of opposing cases,
- Improvement of critical thinking and an increase in diagnostic and reflective capacity,
- Learning decision-making skills that are viable with a long-term perspective,
- Development of a cross-sectional and holistic vision in decision-making [13].
4. The Case Studies: State of the Art
As an example of adaptation to new needs with the advent of high-speed rail, the stations analyzed include Puerta de Atocha in Madrid, St. Pancras Station/King’s Cross in London, and Valencia Joaquín Sorolla in Valencia. These stations serve as case studies for the solutions implemented to adapt them to the new concept of services provided to their users.
4.1. Puerta de Atocha Station (Madrid)
The official opening of the Madrid-Aranjuez line in 1851 took place at the Atocha dock (In the early years, the railway still lacked its own lexicon to name the different elements that made up this new transport system; that is why it borrowed many terms from the world of navigation. This is the case of docks or wharf). The dock, and later the station, took the name of Puerta de Atocha, which was located at the old gate of Madrid and demolished in the same year, 1851, to construct the dock building (Figure 2).
Figure 2.
Floor plan of uses of the first Atocha dock. Source: Aróstegui.
The Atocha station, inaugurated in 1892, is essentially the one that lasted for nearly a hundred years until, at the end of the 20th century, it was radically transformed with the arrival of the high-speed train as “Atocha Operation (The ‘Atocha operation’ is one of the largest urban interventions to be undertaken in the 1980s in Spanish cities. A complex operation that affected almost 200 ha in the heart of Madrid)”.
Thus, the building of the old station, inaugurated 100 years earlier, was now left as the “hall” of the new High-Speed and Long-Distance station. Inside, a 2000 m2 tropical garden was planted, regulated by a complex air-conditioning system (Figure 3).
Figure 3.
Works in the tropical garden. Source: Cortés.
In January 2003, the expansion of the departure hall took place, along with a renovation of levels +6.19 and +6.235 of the station, coinciding with the commissioning of the Madrid-Lleida high-speed line.
By then, the General Directorate of Railways—an agency under the Ministry of Public Works—was working on the so-called New Railway Complex of Atocha Station. In January 2001, the Functional Study for the Renovation of Atocha Station was completed, and the following year, in 2002, the Informative Study for the New Complex was commissioned to IDOM (IDOM is an international professional engineering, architectural and consulting services firm).
This Informative Study consisted of the functional definition of the complex, the development of the Basic Project for the new expansion of the station, and an economic-financial study for the construction and operation of the railway complex as a concession model. To make the operation viable, the development of complementary activities was proposed, such as a shopping center, convention center, hotel, etc. (Figure 4).
Figure 4.
Model of the Basic Project of the New Railway Complex Atocha Station. Source: IDOM.
After the administrative and environmental procedures of this first informative study, a series of mandatory guidelines were established for the subsequent phases of development of the designed actions.
The second informative study was commissioned to Rafael Moneo (Rafael Moneo Vallés, architect. He has been a professor at the Escuela Técnica Superior de Barcelona—from 1972 to 1980—and at the Escuela Técnica Superior de Madrid—from 1980 to 1985. In 1985 he was appointed Chairman of the Department of Architecture at the Graduate School of Design at Harvard University. He has won numerous awards including the Pritzker Prize in 1996 and the Prince of Asturias Award for the Arts in 2012. In 2005 he was admitted to the Royal Academy of Fine Arts of San Fernando. At Atocha Station, he has participated in all the projects from the development of the “Atocha operation” in 1982 to the project of the Informative Study of the New Railway Complex of Atocha Station, whose first phase was completed in 2010, and which establishes the architectural basis to continue with future extensions).
This study establishes the foundations for the definition of a first phase, with the minimum number of actions, aimed at the operation of a double train parking system, separating arrivals from departures.
These actions consisted of:
- Increasing the station’s capacity.
- A provisional terminal until the inauguration of the UIC gauge tunnel connecting with the Chamartín station.
- Implementation of a new railway operation model and passenger management system.
The expansion primarily involved the construction of a new arrival terminal to distribute passenger flows within the station, as well as the implementation of four new international gauge tracks and the expansion of the parking area (Figure 5 and Figure 6).
Figure 5.
Suburban train station. Flow distribution scheme of passengers in the vestibule floor. Elevation +620.3. Source: Original creation based on ARCHITECTURE, 1985.
Figure 6.
Commuter and High-Speed—Long Distance Station. Floor level +619. Source: AV Monografías.
4.2. St. Pancras Station/King’s Cross Station (London)
St. Pancras Station was built by the Midland Railway Company (MRC) to connect London with other major English cities. Similarly to what would later happen with Spanish railway companies, the rivalry between railway companies led each one to want to have the best station, and this is a clear example of that. The station opened to the public in 1868. Immediately, construction began on the Midland Grand Hotel. The east wing, with over 300 rooms, was completed in 1873, and the west wing in 1876 (Figure 7).
Figure 7.
St. Pancras Station. Photograph of the exterior of the Midland Grand Hotel (left) and photograph of the interior of the station in 1870 (right). Source: Aróstegui.
As with other stations, by the mid-20th century, St. Pancras Station faced a long period of decline until 1966, when the Department of Transport had plans to close it and demolish parts of the building. When the project was leaked to the press, it sparked a major public debate. A key figure in opposition to this project was poet John Betjeman, who became famous for his crusade to save Victorian architecture from the onslaught of modernity.
In 1967, the Minister for Housing and Local Government, who was also responsible for listed buildings, granted the station Grade I status on the list of buildings of special historic and architectural interest. The station was saved, but its decline continued. In the late 1980s, the government proposed a new project for the restructuring of the entire King’s Cross area, including St. Pancras Station, but it was not carried out due to local opposition and difficulties related to the 1987 crisis [14].
In 1994, the British government announced a competition to find a private developer for the project. The chosen developer would be responsible for the financing, design, construction, and operation. The project was awarded to London & Continental Railways (LCR), a consortium formed by engineering, transportation, and finance firms.
The branch of the company responsible for the ownership of the station, London & Continental Station and Property (LCSP), tasked Foster & Partners with assisting Rail Link Engineering (RLE) (Rail Link Engineering (RLE) It is a consortium formed by Arup, Bechtel, Halcrow, and Systra in 1994 to manage and design the Channel Tunnel Rail Link (CTRL) project, which included the St. Pancras station in the creation of the station’s masterplan. Once the masterplan was developed, LCSP decided to discontinue the services of Foster & Partners and entrusted the development of the project to Rail Link Engineering (RLE), with architect Alastair Lansley leading the team.
Foster & Partners’ proposal was to allow only high-speed trains with international services to enter beneath the historic canopy. The rest of the trains would be covered by a large horizontal plane located beyond the main terminal hall.
The plan was to simplify passenger movement, provide a viable use for the Chambers building and the vaulted cellars, and enhance other commercial opportunities. In addition to enhancing the user experience, it was important for the traveler to feel sufficiently safe and confident to spend time in the station, rather than just passing through it” [15].
In this way, a large area was created in the western section of the space covered by the grand canopy, conceived as a public space, and it became the lobby for the high-speed Eurostar services (Figure 8).
Figure 8.
St. Pancras Station. Main elements of the station’s reconstruction. Source: ARUP.
This public space, developed from north to south, faces the international departure and arrival halls, from which access is provided via escalator cores to the platforms located on the upper level. These halls, along with the ticket sales office and the passenger assistance offices, occupy the space beneath the three platforms and six tracks for the Eurostar international services.
At its northern end, the north-south lobby is located between the two pedestrian access points to each of the station’s side streets. This area is the heart of the new station and serves as the meeting point between the old and the new. From this lobby, most of the station’s services can be accessed.
These two lobbies, the north-south and east-west, are positioned at street level, as the station platforms have always been at a higher level, accessible via stairs and ramps located on the facade facing Euston Road. A coherent lobby for the entire station is achieved, integrating the two levels and allowing natural light to penetrate to the underground level [16].
The enhancement of the commercial areas outlined by Foster & Partners in the masterplan materialized in the transformation of St. Pancras Station into “the second largest shopping center” in the United Kingdom, with 7600 m2 spread across three levels from the platform level, featuring high-end spaces for dining, fashion, fresh products, and more.
4.3. Joaquín Sorolla Station (Valencia)
Among the requirements for solving the construction of the provisional UIC gauge railway access to the city of Valencia was the construction of a temporary terminal station that would allow the operation of the high-speed line during the works for the Access Canal as well as the Central Station.
In agreement with the Valencia City Council, the aim was to find the best urban integration for the temporary station, maintaining its positioning within the railway area and improving its intermodal connection with the rest of the conventional gauge lines, Valencia Metro, buses, and the road network.
Conceived as a temporary station until the construction of the tunnel running beneath the city of Valencia to accommodate the railway services of the new High-Speed Line, it was inaugurated on 18 December 2010. As of the writing of this academic work, it still retains its “temporary” status, and an expansion is even planned until the tunnel is completed.
In this way, the temporary station is located near Valencia Nord Station, in the area of the former freight station next to San Vicente Mártir Street.
The provisional nature of the station is reflected in the choice of recyclable or low-cost materials and the structure made with metallic elements, allowing for disassembly and subsequent reassembly for other uses.
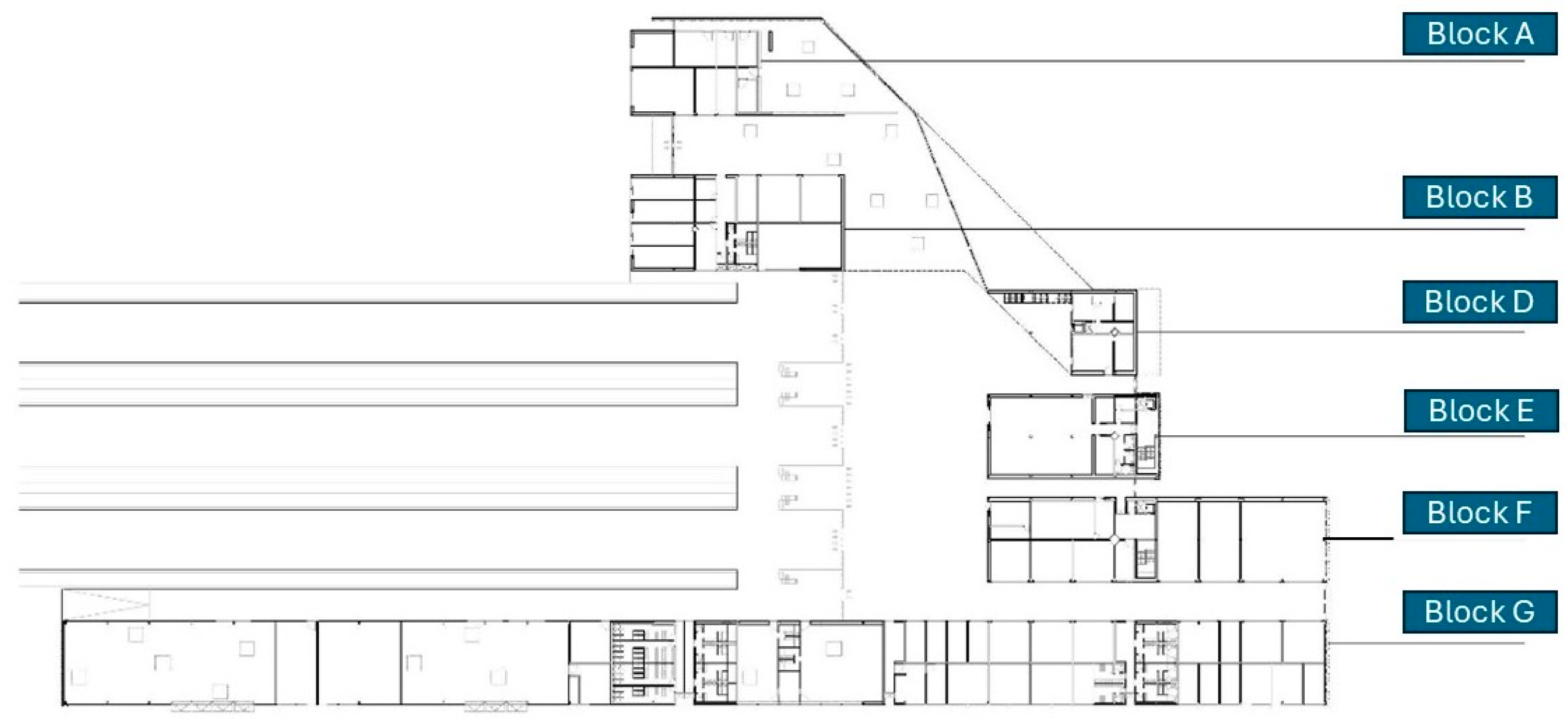
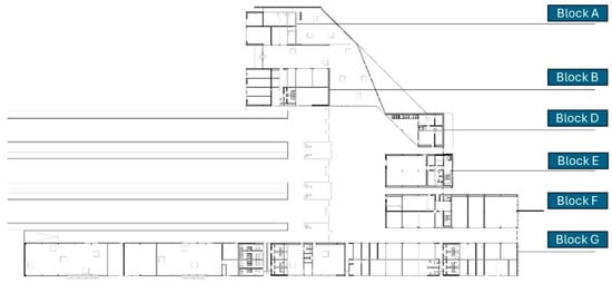
The station is designed as an extension of the canopies defined for the platform coverings. These canopies, formed by structural modules measuring 14.00 × 14.00 m, are supported by a central pillar and cover the platforms. These canopies, with a height of 8 m in the platform area, rise up to 14 m in the lobby area. Under this canopy, independent block-like structures house the various functions of the station. These functions are mainly distributed on the ground floor, with the upper floors reserved for offices and facilities. The different blocks (A, B, C, D, E, F, G, and H) delineate the circulation spaces and form the lobby (Figure 9).
Figure 9.
Valencia’s Joaquín Sorolla Station (Blocks). Source: ADIF.
Blocks A and C (single-story), along with circulation space B, which provides access to the station, form the entrance lobby and commercial gallery. The ground floors of blocks D (2 stories), E and F (3 stories), and part of G house the commercial spaces, ticket offices, and customer service areas of the station. Between blocks F and G is the station access from the taxi area. Block G, which closes the building and separates the tracks into two sections—one for UIC gauge and the other for conventional gauge—also contains the VIP lounge (spread over two floors), as well as catering areas, changing rooms, and restrooms on the ground floor, with offices on the upper floor. Block H, located at the head of the conventional gauge platforms, houses utility rooms and storage areas on a single floor. The upper floors of blocks E and F are designated for office use.
Figure 10 shows the passenger flow at the station. The passenger flow is similar to that of any other station but with the particularity that in Spain it is mandatory to go through a baggage control before entering the train in all high-speed stations similar to the one at airports.
Figure 10.
Traveler flow at Joaquin Sorolla Station. Source: Own.
The comfort of waiting travelers in the lobby is conditioned by the speed at which passengers pass through the baggage check.
5. Results
These transport infrastructures shape the social and communication relationships of many spaces. They present themselves as centrality axes around which the flows of goods and people are distributed, simultaneously influencing the design and functionality of cities. The integration of the railway within an urban space is shaped through the construction of new stations within the already existing urban framework, or, in some cases, by relocating them to the periphery of the city.
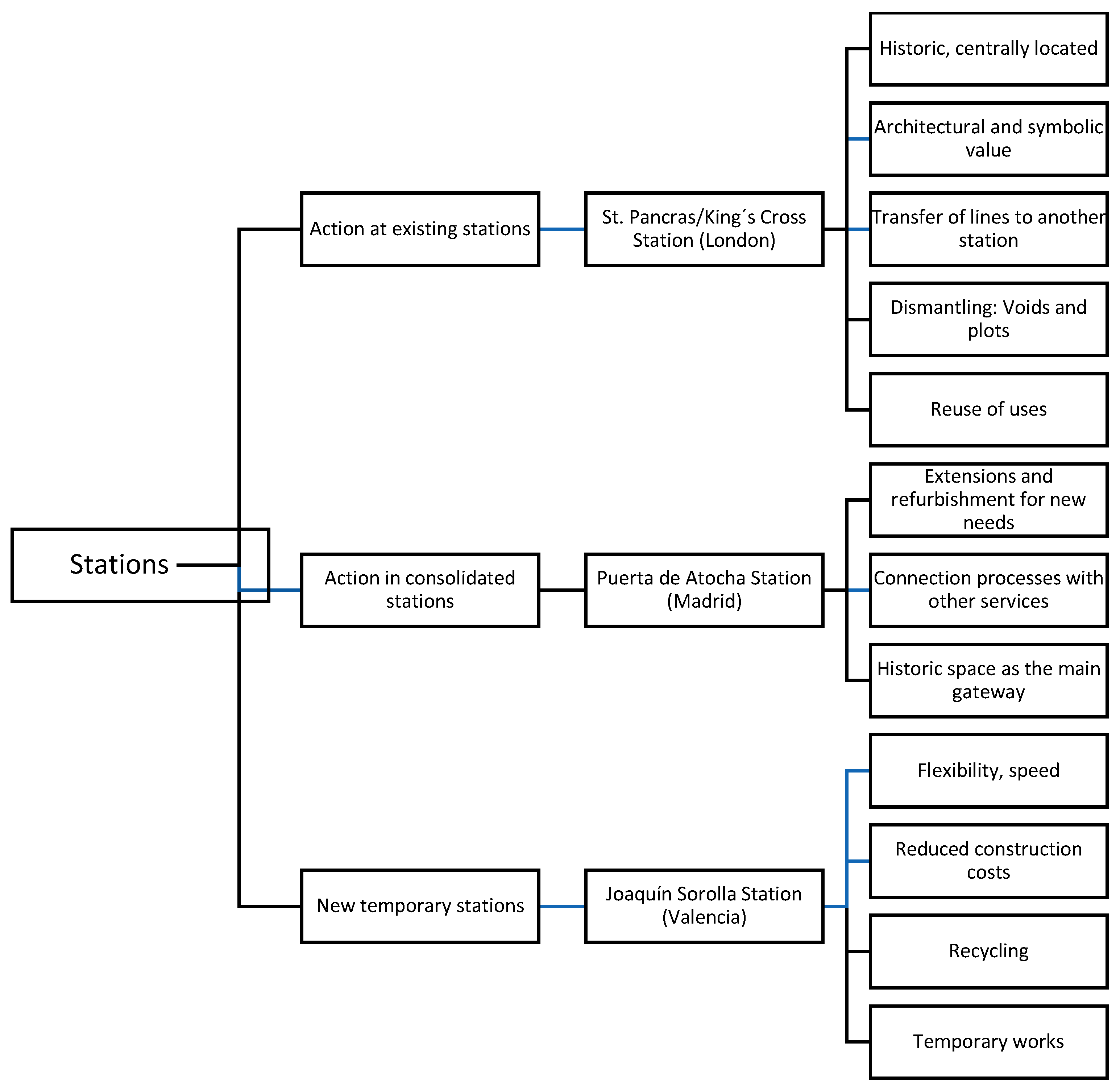
Figure 11 shows schematically the classification of the stations studied with the advantages and disadvantages according to the type of action to be taken to adapt them to the arrival of high-speed services.
Figure 11.
Examples of rail integration in cities. Source: Own.
6. Discussion
The lack of a theoretical framework of the subject matter leads us to studies focusing on user satisfaction with the physical environment in subway stations. These studies examine stations as multipurpose facilities designed as transit hubs and the development of an integrated information system [17].
The arrival of high-speed rail requires a rethinking of the planning for the spaces that are freed up and dedicated to new uses. The technical and operational characteristics necessary initially demand the renewal of the railway arterial network of each urban space, and secondly, the search for integration projects for this new railway through the various solutions proposed [18].
New stations have undergone changes compared to those built a century ago. Their conception has evolved, adapting to the architecture of their time, but the most radical change they have experienced is related to the new uses that are developed within them and how these spaces are utilized.
The behavior of passengers has been modified as a result of a new conception of these buildings and the way of traveling.
Today, with the advances made in sectors such as high-speed rail, stations have transformed their primary function as nodes of interchange, evolving into new commercial and business spaces.
The shift in the railway model and the promotion of a way of traveling where time and speed are prioritized over the journey, the landscape, or observation has led to a change in the appearance and function of stations. While they remain fundamentally transition spaces, fewer stations are considered central hubs—many of them are now located on the periphery—contributing to their disconnection from the city and urban life. An example of this is the Cuenca Fernando Zóbel station. Unlike the case study stations, this station is situated on the outskirts of the city. The following image shows the magnitude of the distance from the urban core. (Figure 12).
Figure 12.
Magnitude of the distance between Cuenca Fernando Zóbel station and the city center. Source: Own.
The placement of the railway station on the outskirts of the city creates several problems, both from a practical and social perspective:
- (a)
- Accessibility: A station located far from the urban center may be difficult for users to reach. If there is no good connection with public transport (buses, metro, trams) or private transport services, travelers may face difficulties in getting to the station, which reduces the convenience of using the train.
- (b)
- Impact on demand: If the station is located far away, there could be less demand from users, as many people might opt for other more accessible or closer modes of transport. This would affect the economic viability of the station and the railway service in general.
- (c)
- Limited urban development: Placing the station far from the city center could slow down urban development in the peripheral area. Stations in more central locations tend to promote the growth of nearby commercial and residential areas, creating a dynamic and accessible environment. On the outskirts, there might be fewer incentives to build housing, shops, or services, which would affect the area’s economic growth.
- (d)
- Additional commuting and travel time: For people already living in the city center or nearby areas, the need to travel to the station on the outskirts could make train travel less attractive. The additional time required to get to the station could make using the train less appealing compared to other, more direct modes of transport.
- (e)
- Infrastructure and connectivity costs: A station located on the outskirts generally requires additional investment in infrastructure to ensure proper connectivity with the city center. This includes the construction of roads, public transport lines, or parking systems, which can lead to significant costs for local authorities.
- (f)
- Inequality in access: If the station is located in a peripheral area and connectivity or accessibility is not improved, it can lead to unequal access to railway infrastructure. People living closer to the station might benefit from better connectivity, while those living in other areas may have to deal with less convenient access.
St. Pancras Station has undergone a significant transformation, becoming a commercial and cultural destination. Its remodeling included the integration of luxury stores, restaurants and cultural spaces. Its neo-Gothic design and history make it a tourist attraction. It also hosts artistic and cultural events, such as exhibitions and sculptures. It is an important transportation hub, especially for international trains. Puerta de Atocha Station is currently undergoing a remodeling process to expand and modernize its facilities. This includes the creation of new commercial areas, limited by the tropical garden as well as the improvement of accesses.
In the case of new station construction, instances of “provisionality” arise, such as the case of the Valencia Joaquín Sorolla station. This station was conceived as a provisional station until the construction of the tunnel running beneath the city of Valencia to accommodate the railway services of the new high-speed line. The provisional nature of the station has been extended temporally due to economic issues and the execution of the aforementioned tunnel, in addition to being affected in terms of capacity due to the liberalization of high-speed transportation with the introduction of new railway companies.
The following graph shows the increase in passenger numbers per quarter since the liberalization of high-speed services, which justifies the expansion of the Valencia station. (Figure 13).
Figure 13.
Travelers per quarter. Source: CNMC (CNMC: Comisión Nacional de los Mercados y la Competencia. The agency promotes and preserves the proper functioning of all markets, in the interest of consumers and businesses. It is a public body with its own legal personality, independent of the Spanish Government and subject to parliamentary control.).
This situation has created the need to expand the aforementioned provisional station to accommodate the increased demand for travelers until the completion of the underground access tunnel that will run from north to south through the city of Valencia. This action will create an underground station, which will replace both the provisional station and the historic Valencia Nord station, housing high-speed trains, suburban commuter trains, and regional trains.
7. Conclusions
As a result of the review of studies and research within the framework of the conceptual environment and after identifying the needs of travelers, age-friendly design strategies, especially for the elderly, are proposed for various functional areas of railroad stations.
It also reveals the underlying institutional logic and provides policy recommendations for coordinating the rational development of land resources and the protection of the ecological environment around high-speed rail stations. Use eye-tracking methods, spatial syntax, and semantic differential techniques to evaluate the passenger orientation process in the underground center of a large high-speed railway station. Spatial syntax is utilized to quantify and analyze the segments of the orientation route, exploring the influence of spatial attributes of different nodes and the spatial arrangement of guidance signs on behavioral data.
Studies are being carried out to ensure the modal split of goods from road to rail transport. Furthermore, demonstrating the importance of modernizing the rail infrastructure, especially hubs and other major railroad stations in large cities. Therefore, they consider it necessary to constantly invest in railway lines as well as railway stations.
The consequences demonstrated in stations analyzed are the strengthening of intermodality with other modes of transport, adding value to the old station as well as the surrounding environment, and the commercial development, which extends beyond the railway users themselves.
From an operational perspective, the main consequence of this transformation is to absorb the increase in passenger demand. The commissioning of high-speed rail has initiated a series of reflections on a new concept of station. These reflections contrast strongly with the traditional conception of a “station”. The increase in passengers due to the advent of high-speed rail leads to a development that becomes an added value to the actual railway operations.
The new operations are characterized by travel times, frequency, and the comfort offered. This comfort is not only perceived aboard the train but also in the stations during the traveler’s stay, which directly impacts the design of the stations.
The design of a station must focus on providing added value, both to existing historical buildings and new construction stations. These are not just buildings with the simple function of passenger arrival/departure, to which railway service buildings are attached, but rather central hubs of mobility and logistics. This transforms them into spaces that facilitate and encourage interaction and leisure, enhancing the quality of life for users while simultaneously creating business opportunities.
The planning of projects necessitates the implementation of proxemic standards in the design of spaces that contribute to the diversification of economic activities around and within the station, such as commercial, residential or cultural zones.
The construction of new underground stations not only eliminates the urban disrupt tion caused by the rail yards approaching the station on the surface, but also breaks the psychological barrier for citizens.
Provisional railway stations are a valuable tool in situations where flexibility, speed, and reduced costs are required. Although they are not designed to be permanent, their ability to adapt to specific needs makes them a strategic option for temporary projects, though not in the case studied of the Valencia station. The design of these stations, even if temporary, must be adapted to offer a level of comfort and safety that is perceived by users. This underscores the need for careful planning and sustained investment to ensure that railway stations can meet the increasing number of passengers.
The arrival of high-speed rail to stations has enabled the creation of integrated, envi ronmentally friendly stations, transformed into mobility hubs that connect different modes of transportation with the city. Furthermore, these stations serve as economic activity clusters, stimulating inclusive growth in the areas where they are located.
To achieve this, an optimal design is established, defining a protocol for the project of passenger areas in railway stations that meets user needs in terms of comfort and perceived safety.
Author Contributions
Conceptualization, J.B.F.T., J.L.G.V. and L.C.M.; methodology J.B.F.T., J.L.G.V. and L.C.M.; software, J.B.F.T.; validation, J.B.F.T., J.L.G.V. and L.C.M.; formal analysis, J.B.F.T., J.L.G.V. and L.C.M.; investigation, J.B.F.T., J.L.G.V. and L.C.M.; resources, J.B.F.T., J.L.G.V. and L.C.M.; data curation, J.B.F.T.; writing—original draft preparation, J.B.F.T., J.L.G.V. and L.C.M.; writing—review and editing, J.B.F.T., J.L.G.V. and L.C.M.; visualization, J.B.F.T., J.L.G.V. and L.C.M.; supervision, J.B.F.T., J.L.G.V. and L.C.M.; project administration, J.B.F.T.; funding acquisition, J.B.F.T., J.L.G.V. and L.C.M. All authors have read and agreed to the published version of the manuscript.
Funding
This research received no external funding.
Data Availability Statement
The original contributions presented in this study are included in the article. Further inquiries can be directed to the corresponding author.
Conflicts of Interest
The authors declare no conflicts of interest.
References
- Pruneda, J.A.; Barrón de Angoiti, I. Estaciones Europeas; Lunwerg: Madrid, Spain, 2005. [Google Scholar]
- Aróstegui, B. La Transformación de las Grandes Estaciones Europeas con la Llegada de la alta Velocidad. El Caso de Atocha. Ph.D. Thesis, Fundación de los Ferrocarriles Españoles, Madrid, Spain, 2015. [Google Scholar]
- Thorne, M. Modern Trains and Splendid Stations Architecture, Design, and Rail Travel for the Twenty-First Century; London Rizzol International Publications: London, UK, 2001. [Google Scholar]
- Chust, B.D. Alta Velocidad y Desarrollo Urbano. 30 Años de Experiencias. Revista Vía Libre Técnica N° 3. 2012, pp. 125–135. Available online: https://tecnica-vialibre.es/ficharticulo.asp?item=78 (accessed on 1 January 2024).
- Cervero, R.; Kockelman, K. Travel demand and the 3Ds: Density, diversity, and design. Transp. Res. Part D 1997, 2, 199–219. [Google Scholar] [CrossRef]
- Cao, Y.; Li, D.; Gao, X.; Bi, S.; Yu, K.; Zhou, D. Age-Friendly Environment Design of High-Speed Railway Stations from a Healthy Ageing Perspective: A Case Im-plementation in Nanjing, China. Buildings 2024, 14, 3280. [Google Scholar] [CrossRef]
- Zhou, H.; Zhou, L.; Xu, B.; Zou, D. Evaluating Passing Capacity in High-Speed Rail Hub Stations: Multi-Objective Optimization for Multi-Directional Train Routes. Sustainability 2024, 16, 10298. [Google Scholar] [CrossRef]
- Zeng, Z.; Zhang, K.; Zhang, B. Study on the Influence of Spatial Attributes on Passengers’ Path Selection at Fengtai High-Speed Railway Station Based on Eye Tracking. Buildings 2024, 14, 3012. [Google Scholar] [CrossRef]
- Šperka, A.; Camaj, J.; Dedik, M.; Bulková, Z. Evaluation Methodology of the Railway Stations Using the AHP Method in the Transport Hubs from the Freight Transport Point of View. Infrastructures 2023, 8, 177. [Google Scholar] [CrossRef]
- Pole, K. Diseño de metodologías mixtas. una revisión de lqas estartegias para combinar metodologías cuantitativas y cualitativas. In Revista Arbitrada en Ciencias Sociales y Humanidades; ITESO: Tlaquepaque, Mexico, 2009; 60 Renglones. [Google Scholar]
- Paul, P.; Hans, K.; Jan, K. An Introduction to Comparative Methods and Statistics. In Doing Research in Political Science; SAGE Publications Ltd.: London, UK, 2005; pp. 41–75. [Google Scholar]
- Collier, D. El método comparativo: Dos décadas de cambios. In La Comparación en Las Ciencias Sociales; Giovani Sartori, L.M., Ed.; Madrid Alianza: Madrid, Spain, 1994; pp. 51–80. [Google Scholar]
- Sartori, G. Comparación y método comparativo. In La Comparación en Las Ciencias Sociales; Giovani Sartori, L.M., Ed.; Madrid Alianza: Madrid, Spain, 1994; pp. 29–50. [Google Scholar]
- Riot, E. European perspective on the planning of major railway stations: Considering the cases of St. Pancras Station and Paris Gare du Nord. Town Plan. Rev. 2014, 85, 191–202. [Google Scholar] [CrossRef]
- Bennett, R.; Gardner, I.; Gates-Sumner, M.; Lansley, A. St. Pancras Station and Kings Cross Railway Lands. ARUP J. 2004, 39, 46–54. [Google Scholar]
- Lansley, A. The Transformation of St. Pancras Station; Londres Laurence King Publishing Ltd.: London, UK, 2008. [Google Scholar]
- Kim, J.Y.; Kim, Y.O. Analysis of Pedestrian Behaviors in Subway Station Using Agent-Based Model: Case of Gangnam Station Seoul, Korea. Buildings 2023, 13, 537. [Google Scholar] [CrossRef]
- de Parga, J.A.C.V. Colegio Oficial de Arquitectos de Madrid; COAM: Madrid, Spain, 1991. [Google Scholar]
Disclaimer/Publisher’s Note: The statements, opinions and data contained in all publications are solely those of the individual author(s) and contributor(s) and not of MDPI and/or the editor(s). MDPI and/or the editor(s) disclaim responsibility for any injury to people or property resulting from any ideas, methods, instructions or products referred to in the content. |
© 2025 by the authors. Licensee MDPI, Basel, Switzerland. This article is an open access article distributed under the terms and conditions of the Creative Commons Attribution (CC BY) license (https://creativecommons.org/licenses/by/4.0/).












