A Review of Fibre Reinforced Polymer Structures
Abstract
1. Introduction
2. FRP Applications
2.1. All-FRP New-Build Structurs
2.2. FRP as Reinforcement
2.3. FRP in Strengthening Applications

3. Materials and Manufacturing
3.1. Constituent Materials
3.1.1. Fibres
- E-glass (electrical glass);
- A-glass (window glass);
- C-glass (corrosion resistant, also known as AR-glass or alkali- resistant glass);
- S-glass (Structural or high-strength glass).
| Material | Grade | Density (g/cm3) | Tensile Modulus (GPa) | Tensile Strength (MPa) | Max Elongation (%) | Fibre Architecture | Glass Transition Temperature (°C) | |
|---|---|---|---|---|---|---|---|---|
| Fibre | Glass | E | 2.57 | 72.5 | 3400 | 2.5 | Isotropic | - |
| A | 2.46 | 73.0 | 2760 | 2.5 | ||||
| C | 2.46 | 74.0 | 2350 | 2.5 | ||||
| S | 2.47 | 88.0 | 4600 | 3.0 | ||||
| Carbon | Standard | 1.70 | 250.0 | 3700 | 1.2 | Anisotropic | - | |
| High strength | 1.80 | 250.0 | 4800 | 1.4 | ||||
| High modulus | 1.90 | 500.0 | 3000 | 0.5 | ||||
| Ultrahigh modulus | 2.10 | 800.0 | 2400 | 0.2 | ||||
| Aramid | - | 1.40 | 70.0–190.0 | 2800–4100 | 2.0–2.4 | Anisotropic | ||
| Polymer Resin | Polyester | - | 1.20 | 4.0 | 65 | 2.5 | - | 70–120 |
| Epoxy | - | 1.20 | 3.0 | 90 | 8.0 | - | 100–270 | |
| Vinylester | - | 1.12 | 3.5 | 82 | 6.0 | - | 102–150 | |
| Phenolic | - | 1.24 | 2.5 | 40 | 1.8 | - | 260 | |
| Polyurethane | - | varies | 2.9 | 71 | 5.9 | - | 135–140 [75] | |
- Standard modulus (SM);
- Intermediate modulus (IM);
- High strength (HS);
- Ultrahigh modulus (UHM).
- Rovings—parallel bundles of continuous untwisted filaments;
- Yarn—bundles of twisted filaments;
- Fibre mats with chopped or continuous fibres;
- Woven and non-woven fabrics;
- Stitched fabrics, grid, mesh and fleece;
- Carbon fibre tows.
3.1.2. Polymer Resins
3.1.3. Other Materials—Additives and Fillers
3.2. Manufacturing Process
3.2.1. Pultrusion
3.2.2. Hand or Wet Layup
3.2.3. Other Manufacturing Processes
3.3. Sustainabilty of FRP Materials
4. FRP Plate-to-Plate Bolted Connections
4.1. Failure Modes
4.1.1. Bearing Failure
4.1.2. Net-Tension Failure
4.1.3. Shear-Out Failure
4.1.4. Cleavage Failure
4.2. Effect of Geometry
- Bearing failure is a pseudo-ductile failure giving us warning before failure;
- Connections should be designed for bearing failure, if practically possible;
- Bearing failure is enforced if e1/d0 > 3 and w/d0 ≥ 4;
- Shear-out failure happened when e1/d0 ≤ 4;
- Net-tension failure happened when w/d0 ≤ 3;
- Net-tension and cleavage are brittle failures and should be avoided;
- Increase in plate thickness and width increases connection resistance;
- For values beyond e1/d0 > 2.5 and w/d0 > 4, there is no change in connection resistance;
- Bolt-diameter-to-plate-thickness ratio should be in the range of 1.0 ≤ (d/t) ≤ 1.5 for ensuring the ductile bearing failure mode.
4.3. Effect of Fibre Orientation
- Strength and stiffness decrease when pultrusion angle changes from 0° to 90°;
- Bearing failure happens for off-axis pultrusion angle lower than 45°;
- Net-tension failure occurs for off-axis pultrusion angle greater than 45°.
4.4. Effect of Fastener Parameters and Lateral Restraint
- Connection strength with FRP bolt is about half the strength using steel bolt;
- Bolt thread reduces bearing strength; threaded pin-bearing strength is 0.6 of the plain pin-bearing strength;
- Pin-bearing strength is reduced by 20–30% by hot-wet aging
- Clearance hole of 1.6 and 6.4 mm leads to 2% and 9% reduction, respectively, in connection resistance compared with no-clearance condition;
- Bolt clearance hole of 1.6 to 2 mm is acceptable for ease in fabrication;
- Lightly clamped (3 Nm) and fully clamped (30 Nm) connections showed a 45% and 80% increase in load compared to pin-bearing state (0 bolt torque with no lateral restraint);
- Bolt torque increases connection resistance;
- Bolt tightening cannot be relied on due to viscoelastic nature of FRP;
- Connection strength increases with confinement area.
4.5. Multi-Bolted Connections
- The strongest connection that can fail in bearing has only single row of bolts;
- The failure in multi-bolted connections is either net-tension or cleavage;
- Connection resistance may not be sum of load per bolt;
- First row transfers more load than the other rows;
- Connection strength depends on bolts numbers but may not be directly proportional;
- Only 25% increase in strength is achieved by adding a second row with two bolts;
- Resin injected bolted connections are suitable for FRP bridges;
- Basalt FRP bolts can replace steel bolts.
| Parameter | Researcher | Set Up | e1/d0 | w/d0 | Main Findings |
|---|---|---|---|---|---|
| Geometry | Rosner, Rizkalla [93,102,103] | Double-lap | 0.9–10 | 1.2–12.2 |
|
| Abd-El-Naby and Hollaway [108] | Double-lap: high fibre volume |
| |||
| Turvey and Cooper [104] | Double-lap | 2–8 | 2–8 |
| |
| Wang [90] | Bearing load via steel pin and no lateral restraints | 1–5 | 2–8 |
| |
| Turvey [105,106] | Single-lap | 1.5–4 |
| ||
| Lee [109] | Double-lap | 2–7 | 5–7 |
| |
| Fibre orientation | Rosner [102,103] | Double-lap |
| ||
| Turvey, Cooper [101,110] | Double-lap Fibre: 0°, 30°, 45°, 90° | 2–6 | 4–10 |
| |
| Yuan and Liu [111] | Double-lap, Fibre: 0°, 15°, 30°, 45°, 60°, 75°, 90° | 3 | 7 |
| |
| Fastener parameters | Erki [112] | Double-lap |
| ||
| Yuan et al. [113] | Double-lap |
| |||
| Mottram [87,89,94,114] | Semi-notched FRP samples with pin |
| |||
| Lateral restraint | Abd-El-Naby [108] | Double-lap |
| ||
| Cooper Turvey [101] | Double-lap |
| |||
| Khashaba [115] |
| ||||
| Yuan and Liu [111] | Double-lap |
| |||
| Multi-bolted connections | Hart-Smith [97] | Theoretical model |
| ||
| Abd-El-Naby [107] | Double-lap |
| |||
| Prabhakaran [116,117] | Double-lap (Row × bolts): (2 × 1), (1 × 2) and (2 × 2) |
| |||
| Hassan [118,119] | Double-lap (2 × 1), (1 × 2) (3 × 1), (1 × 3) and (2 × 2) Fibre: 0, 45, 90 | 2–5 | 9.9–14.8 |
| |
| Ascione [120] | Double-lap 9 bolts |
| |||
| Mottram [98] | Theoretical |
| |||
| Abdelkerim [121,122] | Double-lap BFRP |
| |||
| Qureshi [123,124,125,126] | Double-lap |
| |||
| Mottram, Turvey [88,127] | Review papers |
|
5. FRP Bolted Frame Joints
5.1. Joints Subjected to Monotonic Loading
- Steel-like joint detailing is not suitable for FRP joints;
- Use of FRP cleats leads to delamination cracking at the heel of the angle;
- Use of steel cleats results in tensile tearing of column flange from web;
- Adhesive bonding on its own is not suitable for FRP joints;
- Hybrid joints combining bolting and bonding are suggested for fail-safe mechanism;
- Semi-rigid analysis is suggested due to limited commercially available FRP profiles;
- Top cleat is the main weakness in FRP joints for I-shaped sections;
- Connectors using different fibre architecture are proposed to replace top cleat;
- First failure defined as start of hairline cracking or audible acoustic emissions;
- First failure or damage onset is related to prying due to hogging moments;
- Cuff/sleeve connectors with steel tube and plate are useful for joining box sections;
- Serviceability deflection limit for FRP beams is span/340;
- FRP web cleats possess sufficient tying resistance for robustness;
- The flexural strength of beam–column joints using pultruded FRP plate sandwiched between built-up channel sections is about 20 times higher than the conventional beam–column joints with web/flange cleats;
- In a three bolted web cleated joint, the middle bolt is unnecessary.
5.2. Joints Subjected to Cyclic Loading
- Steel-like joints are inefficient in resisting cyclic loading;
- Web-flange junction of I-shaped profiles is the weakest spot;
- Alternative manufacturing suggested for producing cleat pieces;
- Most joint details produced low dissipated energy and almost no ductility.
- FRP frames with infill walls showed better cyclic performance;
- Hybrid joints produced higher dissipated energy than bolted only joints;
- Bonded sleeve joints and joints between tubular profile and built-up channel sections showed promising cyclic behaviour;
- Flange cleated or web and flanged cleated combined showed same cyclic response and therefore, flange cleats are redundant as they make no difference to cyclic joint behaviour;
- Only steel connecting components are used to join tubular sections; no effort made to try FRP connecting elements;
- A guide for cyclic testing of FRP joints should be developed; presently FRP testing relies heavily on testing procedures from steel structures;
- Several cyclic loading protocols are dependent on yielding of steel, which is absent in FRP
6. Setbacks and Future
7. Conclusions and Research Growth Areas
- Joint detailing from steel structures is not suitable for FRP structures;
- There is no design code for FRP beam-to-column joints;
- Available formulae for beam–column joints are taken from plate-plate connections;
- Design of FRP members is controlled by serviceability deflections;
- Tubular members are better suited for FRP structures due to high buckling resistance;
- Use of FRP cleats leads to delamination cracking;
- Use of steel cleats results in outward flexural deformation in I-shaped FRP columns;
- Choice of FRP section sizes is limited; semi-rigid analysis may help in better economy
- Bearing is the most desirable and ductile failure in plate-plate connections;
- Connection strength depends on geometry, lateral restraint, fastener parameters, fibre orientation and number of bolt rows.
- FE modelling with progressive failure can be useful to estimate joints’ behaviour;
- Environmental considerations, fire performance and durability should be studied;
- A comparison between single-lap and double-lap plate-to-plate connections;
- Extreme loading conditions, such as blast, earthquake, dynamic and impact loads.
- Robustness and disproportionate collapse of all-FRP structures;
- Plate thickness, pitch and gauge distance, staggered bolts should be investigated;
- More research is needed on serviceability deflection limits for different joint detailing.
Funding
Institutional Review Board Statement
Informed Consent Statement
Data Availability Statement
Conflicts of Interest
References
- Correia, J.R. Fibre-Reinforced Polymer (FRP) Composites. In Materials for Construction and Civil Engineering, Science, Processing, and Design; Goncalves, M.C., Margarido, F., Eds.; Springer International Publishing: Cham, Switzerland, 2015; pp. 501–556. ISBN 978-3-319-08235-6. [Google Scholar]
- Bank, L.C. Composites for Construction—Structural Design with FRP Materials; John Wiley & Sons: Hoboken, NJ, USA, 2006. [Google Scholar]
- Ali, H.T.; Akrami, R.; Fotouhi, S.; Bodaghi, M.; Saeedifar, M.; Yusuf, M.; Fotouhi, M. Fiber reinforced polymer composites in bridge industry. Structures 2021, 30, 774–785. [Google Scholar] [CrossRef]
- Anandjiwala, R.D.; Blouw, S. Composites from Bast Fibres-Prospects and Potential in the Changing Market Environment. J. Nat. Fibers 2007, 4, 91–109. [Google Scholar] [CrossRef]
- Duflou, J.R.; Deng, Y.; Van Acker, K.; Dewulf, W. Do fiber-reinforced polymer composites provide environmentally benign alternatives? A life-cycle-assessment-based study. MRS Bull. 2012, 37, 374–382. [Google Scholar] [CrossRef]
- Correia, J.R.; Bai, Y.; Keller, T. A review of the fire behaviour of pultruded GFRP structural profiles for civil engineering applications. Compos. Struct. 2015, 127, 267–287. [Google Scholar] [CrossRef]
- Qureshi, J.; Nadir, Y.; John, S.K. Bolted and bonded FRP beam-column joints with semi-rigid end conditions. Compos. Struct. 2020, 247, 112500. [Google Scholar] [CrossRef]
- Qureshi, J.; Nadir, Y.; John, S.K. Cyclic Response of Bolted and Hybrid Pultruded FRP Beam-Column Joints between I-Shaped Sections. Fibers 2021, 9, 66. [Google Scholar] [CrossRef]
- Fiberline Composites. Fiberline Design Manual; Fiberline Composites A/S: Kolding, Denmark, 2002. [Google Scholar]
- Vallée, T.; Tannert, T.; Meena, R.; Hehl, S. Dimensioning method for bolted, adhesively bonded, and hybrid joints involving Fibre-Reinforced-Polymers. Compos. Part B Eng. 2013, 46, 179–187. [Google Scholar] [CrossRef]
- Masuelli, M.A. Introduction of Fibre-Reinforced Polymers—Polymers and Composites: Concepts, Properties and Processes. In Fiber Reinforced Polymers The Technology Applied for Concrete Repair; Masuelli, M.A., Ed.; IntechOpen: London, UK, 2013; ISBN 978-953-51-0938-9. [Google Scholar]
- Strongwell. Strongwell Design Manual; Strongwell Corporation: Bristol, VA, USA, 2010. [Google Scholar]
- Creative Pultrusions. The new and Improved Pultex Pultrusion Design Manual; Creative Pultrusions Inc.: Alum Bank, PA, USA, 2004. [Google Scholar]
- Pre-Standard for Load and Resistance Factor Design (LRFD) of Pultruded Fiber Reinforced Polymer (FRP) Structures (Final). Available online: http://dev1.kreysler.com/information/specifications/specs-resources/LRFD%20PreStandard%20-%20Revised%20FINAL%20-%20Nov%209%202010.pdf (accessed on 11 November 2021).
- Mottram, J.T.; Henderson, J. (Eds.) Fibre-Reinforced Polymer Bridges—Guidance for Designers; Construction Sector Group: London, UK, 2018; ISBN 9780860177944. [Google Scholar]
- CNR-DT 205/2007. Guide for the Design and Construction of Structures Made of FRP Pultruded Elements, CNR—Advisory Committee on Technical Recommendations for Construction; National Research Council of Italy: Rome, Italy, 2008.
- Clarke, J.L. Structural Design of Polymer Composites- EUROCOMP Design Code and Handbook; E and FN Spon: London, UK, 1996. [Google Scholar]
- Ascione, F.; Lamberti, M.; Razaqpur, A.G.; Spadea, S. Strength and stiffness of adhesively bonded GFRP beam-column moment resisting connections. Compos. Struct. 2017, 160, 1248–1257. [Google Scholar] [CrossRef]
- Kelly, G. Load transfer in hybrid (bonded/bolted) composite single-lap joints. Compos. Struct. 2005, 69, 35–43. [Google Scholar] [CrossRef]
- Kelly, G. Quasi-static strength and fatigue life of hybrid (bonded/bolted) composite single-lap joints. Compos. Struct. 2006, 72, 119–129. [Google Scholar] [CrossRef]
- Weitzenböck, J.R.; McGeorge, D. Science and technology of bolt-adhesive joints. Adv. Struct. Mater. 2011, 6, 177–199. [Google Scholar] [CrossRef]
- Anonymous. Guide to the Structural Use of Adhesives; The Institution of Structural Engineers: London, UK, 1999; ISBN 1874266433. [Google Scholar]
- Girão Coelho, A.M.; Mottram, J.T. A review of the behaviour and analysis of bolted connections and joints in pultruded fibre reinforced polymers. Mater. Des. 2015, 74, 86–107. [Google Scholar] [CrossRef]
- Mottram, J.T.; Zheng, Y. State-of-the-art review on the design of beam-to-column connections for pultruded frames. Compos. Struct. 1996, 35, 387–401. [Google Scholar] [CrossRef]
- Turvey, G.J.; Cooper, C. Review of tests on bolted joints between pultruded GRP profiles. Proc. Inst. Civ. Eng. Struct. Build. 2004, 157, 211–233. [Google Scholar] [CrossRef]
- Keller, T. Towards Structural Forms for Composite Fibre Materials. Struct. Eng. Int. 1999, 9, 297–300. [Google Scholar] [CrossRef]
- Qureshi, J.; Mottram, J.T. Behaviour of pultruded beam-to-column joints using steel web cleats. Thin-Walled Struct. 2013, 73, 48–56. [Google Scholar] [CrossRef]
- Qureshi, J.; Mottram, J.T. Response of beam-to-column web cleated joints for FRP pultruded members. J. Compos. Constr. 2014, 18, 04013039. [Google Scholar] [CrossRef]
- Qureshi, J.; Mottram, J.T. Moment-rotation response of nominally pinned beam-to-column joints for frames of pultruded fibre reinforced polymer. Constr. Build. Mater. 2015, 77, 396–403. [Google Scholar] [CrossRef]
- Vedernikov, A.; Safonov, A.; Tucci, F.; Carlone, P.; Akhatov, I. Pultruded materials and structures: A review. J. Compos. Mater. 2020, 54, 4081–4117. [Google Scholar] [CrossRef]
- Keller, T.; Nikolaos, A.T.; Anastasios, P.V.; de Castro, J. Effect of Natural Weathering on Durability of Pultruded Glass Fiber–Reinforced Bridge and Building Structures. J. Compos. Constr. 2016, 20, 4015025. [Google Scholar] [CrossRef]
- Singleton, M.; Hutchinson, J. Development of Fibre-Reinforced Polymer Composites in Building Construction. In Proceedings of the Second International Conference on Sustainable Construction Materials and Technologies, Ancona, Italy, 28–30 June 2010; Zachar, J., Claisse, P., Naik, T.R., Ganjian, E., Eds.; Università Politecnica delle Marche: Ancona, Italy, 2010. [Google Scholar]
- Zafari, B. STARTLINK Building System and Connections for Fibre Reinforced Polymer Structures. Ph.D. Thesis, University of Warwick, Coventry, UK, 2012. [Google Scholar]
- DuraComposites GFRP Station Platform. Available online: https://www.duracomposites.com/rail/grp-composite-station-platforms/ (accessed on 11 November 2021).
- Skinner, J.M. A critical analysis of the Aberfeldy footbridge Scotland. In Proceedings of the Bridge Engineering 2 Conference; University of Bath: Bath, UK, 2009; Available online: https://citeseerx.ist.psu.edu/viewdoc/download?doi=10.1.1.580.4202&rep=rep1&type=pdf (accessed on 20 December 2021).
- Burgoyne, C.J. Advanced Composites in Civil Engineering in Europe. Struct. Eng. Int. 1999, 9, 267–273. [Google Scholar] [CrossRef]
- Braestrup, M.W. Footbridge Constructed from Glass-Fibre-Reinforced Profiles, Denmark. Struct. Eng. Int. 1999, 9, 256–258. [Google Scholar] [CrossRef]
- Hobbs, M. Design and fabrication of two 30 m long moulded FRP decks for the Pont y Ddraig lifting footbridge. In Proceedings of the Second International Conference on the use of Fibre-Reinforced Polymer Composites in Bridge Design, London, UK, 11–12 September 2014. [Google Scholar]
- Smits, J. Fiber-Reinforced Polymer Bridge Design in the Netherlands: Architectural Challenges toward Innovative, Sustainable, and Durable Bridges. Engineering 2016, 2, 518–527. [Google Scholar] [CrossRef]
- Nepomuceno, D.D.T.; Bennetts, J.; Webb, G.T.; Langhorne, M.; Johnson, M.; Macdonald, J.H.G.; Tryfonas, T.; Vardanega, P.J. Assessing the Potential Value of a SHM Deployment on a Proposed Footbridge. In Proceedings of the Advances and Challenges in Structural Engineering, 2nd GeoMEast International Congress and Exhibition on Sustainable Civil Infrastructures, Cairo, Egypt, 24–28 November 2018; Rodrigues, H., Elnashai, A., Eds.; Springer International Publishing: Cham, Switzerland, 2019; pp. 151–166. [Google Scholar]
- Keller, T. Overview of fibre-reinforced polymers in bridge construction. Struct. Eng. Int. J. Int. Assoc. Bridg. Struct. Eng. 2002, 12, 66–70. [Google Scholar] [CrossRef]
- Canning, L.; Luke, S. Development of FRP Bridges in the UK—An Overview. Adv. Struct. Eng. 2010, 13, 823–835. [Google Scholar] [CrossRef]
- Alampalli, S.; Kunin, J. Load Testing of an FRP Bridge Deck on a Truss Bridge. Appl. Compos. Mater. 2003, 10, 85–102. [Google Scholar] [CrossRef]
- Bank, L.C. Application of FRP Composites to Bridges in the USA. In Proceedings of the International Colloquium on Application of FRP to Bridges, Japan Society of Civil Engineers (JSCE), Tokyo, Japan, 20 January 2006; pp. 9–16. [Google Scholar]
- The International Handbook of FRP Composites in Civil Engineering, 1st ed.; Zoghi, M., Ed.; CRC Press: Abingdon, Oxon, UK, 2013. [Google Scholar]
- Smale, K. Delivering Differently|Fibre Reinforced Polymers. Available online: https://www.newcivilengineer.com/archive/delivering-differently-fibre-reinforced-polymers-18-01-2016/ (accessed on 11 November 2021).
- Kendall, D.; Smith, I.; Young, C.; Gough, W.; Cross, A. Dawlish FRP footbridge—The first FRP bridge at a UK railway station. In Proceedings of the FRP Bridge Conference, London, UK, 13–14 September 2012; NetComposites: London, UK, 2012; pp. 101–117. [Google Scholar]
- CEB-FIP Fib Bulletin 40. FRP Reinforcement in RC Structures; International Federation for Structural Concrete (fib): Lausanne, Switzerland, 2007; ISBN 978-2-88394-080-2. [Google Scholar]
- Design Guidance for Strengthening Concrete Structures Using Fibre Composite Materials, Concrete Society Technical Report 55, 3rd ed.; The Concrete Society: Crowthorne, UK, 2012.
- Arya, C.; Clarke, J.L.; Kay, E.A.; O’Regan, P.D. TR 55: Design guidance for stengthening concrete structures using fibre composite materials: A review. Eng. Struct. 2002, 24, 889–900. [Google Scholar] [CrossRef]
- ACI 440.1R-15. Guide for the Design and Construction of Structural Concrete Reinforced with Fiber-Reinforced Polymer (FRP) Bars; American Concrete Institute: Farmington Hills, MI, USA, 2015; ISBN 978-1-942727-10-1. [Google Scholar]
- Design of Concrete Bridge Beams Prestressed with CFRP Systems; NCHRP Research Report. 907; Belarbi, A., Dawood, M., Poudel, P., Reda, M., Tahsiri, H., Gencturk, B., Rizkalla, S.H., Russell, H.G., Eds.; The National Academies Press: Washington, DC, USA, 2019; ISBN 978-0-309-48069-7. [Google Scholar]
- Mugahed Amran, Y.H.; Alyousef, R.; Rashid, R.S.M.; Alabduljabbar, H.; Hung, C.-C. Properties and applications of FRP in strengthening RC structures: A review. Structures 2018, 16, 208–238. [Google Scholar] [CrossRef]
- CEB-FIP Fib Bulletin 14. Externally Bonded FRP Reinforcement for RC Structures; International Federation for Structural Concrete (fib): Lausanne, Switzerland, 2001; ISBN 2-88394-054-1. [Google Scholar]
- ACI 440. 2R-17. Guide for the Design and Construction of Externally Bonded FRP Systems for Strengthening Concrete Structures; American Concrete Institute: Farmington Hills, MI, USA, 2017; ISBN 978-1-945487-59-0. [Google Scholar]
- Machida, A.; Uomoto, T. Recommendation for Design and Construction of Concrete Structures Using Continuous Fiber Reinforcing Materials; Japan Soc. of Civil Engineers: Tokyo, Japan, 1997. [Google Scholar]
- FRP Rehabilitation of Reinforced Concrete Structures; ISIS Design Manual, No. 4; ISIS Canada Corporation: Winnipeg, MB, Canada, 2008.
- CNR-DT 200 R1/2013. Guide for the Design and Construction of Externally Bonded FRP Systems for Strengthening Existing Structures; National Research Council, Advisory Committee on Technical Recommendations for Construction: Rome, Italy, 2013.
- AASHTO-2013. Guide Specifications for Design of Bonded FRP Systems for Repair and Strengthening of Concrete Bridge Elements; American Association of State Highway and Transportation Officials: Washington, DC, USA, 2013. [Google Scholar]
- Bonded Repair and Retrofit of Concrete Structures Using FRP Composites—Recommended Construction Specifications and Process Control Manual; NCHRP REPORT 514; The National Academies Press: Washington, DC, USA, 2003; ISBN 978-0-309-43205-4.
- Use of Fiber-Reinforced Polymers in Highway Infrastructure; NCHRP SYNTHESIS 512; Kim, Y.J., Ed.; The National Academies Press: Washington, DC, USA, 2017; ISBN 978-0-309-39004-0. [Google Scholar]
- Field Inspection of In-Service FRP Bridge Decks; NCHRP REPORT 564; The National Academies Press: Washington, DC, USA, 2006; ISBN 978-0-309-42533-9.
- Recommended Guide Specification for the Design of Externally Bonded FRP Systems for Repair and Strengthening of Concrete Bridge Elements; NCHRP REPORT 655; The National Academies Press: Washington, DC, USA, 2010; ISBN 978-0-309-15485-7.
- Design of FRP Systems for Strengthening Concrete Girders in Shear; NCHRP REPORT 678; The National Academies Press: Washington, DC, USA, 2011; ISBN 978-0-309-15531-1.
- Wu, H.C.; Eamon, C.D. Strengthening of Concrete Structures Using Fiber Reinforced Polymers (FRP): Design, Construction and Practical Applications; Woodhead Publishing/Elsevier: Duxford, UK, 2017; ISBN 978-0-08-100641-2. [Google Scholar]
- Guadagnini, M. Use of composite materials in structural applications:a European perspective. In Proceedings of the Second International Conference on the use of Fibre-Reinforced Polymer Composites in Bridge Design, London, UK, 11–12 September 2014. [Google Scholar]
- Teng, J.G.; Chen, J.F.; Smith, S.T.; Lam, L. Behaviour and strength of FRP-strengthened RC structures: A state-of-the-art review. Proc. Inst. Civ. Eng.-Struct. Build. 2003, 156, 51–62. [Google Scholar] [CrossRef]
- Alkhrdaji, T. Strengthening of Concrete Structures using FRP Composites. STRUCTURE Magazine National Council of Structural Engineers Associations, 16 June 2015; pp. 18–20. [Google Scholar]
- Ghafoori, E.; Motavalli, M.; Nussbaumer, A.; Herwig, A.; Prinz, G.S.; Fontana, M. Design criterion for fatigue strengthening of riveted beams in a 120-year-old railway metallic bridge using pre-stressed CFRP plates. Compos. Part B Eng. 2015, 68, 1–13. [Google Scholar] [CrossRef]
- Hu, W.; Li, Y.; Yuan, H. Review of Experimental Studies on Application of FRP for Strengthening of Bridge Structures. Adv. Mater. Sci. Eng. 2020, 2020, 8682163. [Google Scholar] [CrossRef]
- Golias, E.; Zapris, A.G.; Kytinou, V.K.; Osman, M.; Koumtzis, M.; Siapera, D.; Chalioris, C.E.; Karayannis, C.G. Application of X-Shaped CFRP Ropes for Structural Upgrading of Reinforced Concrete Beam–Column Joints under Cyclic Loading–Experimental Study. Fibers 2021, 9, 42. [Google Scholar] [CrossRef]
- Chalioris, C.E.; Zapris, A.G.; Karayannis, C.G. U-Jacketing Applications of Fiber-Reinforced Polymers in Reinforced Concrete T-Beams against Shear—Tests and Design. Fibers 2020, 8, 13. [Google Scholar] [CrossRef]
- Keller, T. Use of Fibre Reinforced Polymers in Bridge Construction. In Structural Engineering Documents; International Association for Bridge and Structural Engineering (IABSE): Zurich, Switzerland, 2003; Volume 7, ISBN 3857481080. [Google Scholar]
- Gand, A.K.; Chan, T.M.; Mottram, J.T. Civil and structural engineering applications, recent trends, research and developments on pultruded fiber reinforced polymer closed sections: A review. Front. Struct. Civ. Eng. 2013, 7, 227–244. [Google Scholar] [CrossRef]
- Connolly, M.; King, J.; Shidaker, T.; Duncan, A. Pultruding polyurethane composite profiles: Practical guidelines for injection box design, component metering equipment and processing. In Proceedings of the COMPOSITES 2005 Convention and Trade Show American Composites Manufacturers Association, Columbus, OH, USA, 18–30 September 2005. [Google Scholar]
- Tavakoli, S.M. An Assessment of Skin Sensitisation by the Use of Epoxy Resin in the Construction Industry, Report No. 079; The Health and Safety Executive (HSE): Cambridge, UK, 2003; ISBN 0 7176 2675 X.
- Spee, T.; Van Duivenbooden, C.; Terwoert, J. Epoxy resins in the construction industry. Ann. N. Y. Acad. Sci. 2006, 1076, 429–438. [Google Scholar] [CrossRef] [PubMed]
- Health Effects and Recommended Control Measures for Epoxy Resins by Health and Safety Authority (HSA) Ireland. Available online: https://www.hsa.ie/eng/Publications_and_Forms/Publications/Chemical_and_Hazardous_Substances/Epoxy_Resins_Information_Sheet.pdf (accessed on 27 January 2022).
- Meyer, R.W. Handbook of Pultrusion Technology, 1st ed.; Springer: Boston, MA, USA, 1985; ISBN 978-1-4684-7766-5. [Google Scholar]
- Qureshi, J.; Mottram, J.T.; Zafari, B. Robustness of simple joints in pultruded FRP frames. Structures 2015, 3, 120–129. [Google Scholar] [CrossRef]
- Zhou, A.; Keller, T. Joining techniques for fiber reinforced polymer composite bridge deck systems. Compos. Struct. 2005, 69, 336–345. [Google Scholar] [CrossRef]
- Bakis, C.E.; Bank, L.C.; Brown, V.L.; Cosenza, E.; Davalos, J.F.; Lesko, J.J.; Machida, A.; Rizkalla, S.H.; Triantafillou, T.C. Fiber-Reinforced Polymer Composites for Construction—State-of-the-Art Review. J. Compos. Constr. 2002, 6, 73–87. [Google Scholar] [CrossRef]
- Gibson, R.F. Principles of Composite Material Mechanics, 4th ed.; CRC Press: Boca Raton, FL, USA, 2016; ISBN 978-1-4987-2072-4. [Google Scholar]
- Daniel, I.M.; Ishai, O. Engineering Mechanics of Composite Materials, 2nd ed.; Oxford University Press: Oxford, UK, 2006; ISBN 978-0-19-515097-1. [Google Scholar]
- Lee, L.S.; Jain, R. The role of FRP composites in a sustainable world. Clean Technol. Environ. Policy 2009, 11, 247–249. [Google Scholar] [CrossRef]
- Belarbi, A.; Dawood, M. Sustainability of fiber reinforced polymers (FRPs) as a construction material. In Sustainability of Construction Materials; Khatib, J.M., Ed.; Woodhead Publishing: Duxford, UK; Elsevier: Duxford, UK, 2016; pp. 521–538. ISBN 978-0-08-100391-6. [Google Scholar]
- Matharu, N.S.; Mottram, J.T. Plain and threaded bearing strengths for the design of bolted connections with pultruded FRP material. Eng. Struct. 2017, 152, 878–887. [Google Scholar] [CrossRef]
- Mottram, J.T.; Turvey, G.J. Physical test data for the appraisal of design procedures for bolted joints in pultruded FRP structural shapes and systems. Prog. Struct. Eng. Mater. 2003, 5, 195–222. [Google Scholar] [CrossRef]
- Mottram, J.T.; Zafari, B. Pin-bearing strengths for bolted connections in fibre-reinforced polymer structures. Proc. Inst. Civ. Eng. Struct. Build. 2011, 164, 291–305. [Google Scholar] [CrossRef]
- Wang, Y. Bearing Behavior of Joints in Pultruded Composites. J. Compos. Mater. 2002, 36, 2199–2216. [Google Scholar] [CrossRef]
- Bank, L.C. Progressive failure and ductility of FRP composites for construction: Review. J. Compos. Constr. 2013, 17, 406–419. [Google Scholar] [CrossRef]
- Mosallam, A. Design Guide for FRP Composite Connections; American Society of Civil Engineers: Reston, VA, USA, 2011; ISBN 978-0-7844-0612-0. [Google Scholar]
- Rosner, C.N.; Rizkalla, S.H. Bolted Connections for Fiber-Reinforced Composite Structural Members: Analytical Model and Design Recommendations. J. Mater. Civ. Eng. 1995, 7, 232–238. [Google Scholar] [CrossRef]
- Zafari, B.; Mottram, J.T. Effect of Hot-Wet Aging on the Pin-Bearing Strength of a Pultruded Material with Polyester Matrix. J. Compos. Constr. 2012, 16, 340–352. [Google Scholar] [CrossRef][Green Version]
- Matharu, N.S. Aspects of Bolted Connections in Pultruded Fibre Reinforced Polymer Structures. Ph.D. Thesis, University of Warwick, Coventry, UK, 2014. [Google Scholar]
- Coelho, A.M.G.; Mottram, J.T. Numerical Evaluation of Pin-Bearing Strength for the Design of Bolted Connections of Pultruded FRP Material. J. Compos. Constr. 2017, 21, 04017027. [Google Scholar] [CrossRef]
- Hart-Smith, L.J. Mechanically-fastened joints for advanced composites—Phenomenological considerations and simple analyses. In Proceedings of the Fourth Conference on Fibrous Composites in Structural Design held, San Diego, CA, USA, 14–17 November 1978; Lenoe, E.M., Oplinger, D.W., Burke, J.J., Eds.; Springer: Boston, MA, USA, 1980; pp. 543–574. [Google Scholar]
- Mottram, J.T. Prediction of Net-Tension Strength for Multirow Bolted Connections of Pultruded Material Using the Hart-Smith Semiempirical Modeling Approach. J. Compos. Constr. 2010, 14, 105–114. [Google Scholar] [CrossRef]
- State-of-the-Art Review on Design, Testing, Analysis and Applications of Polymeric Composite Connections; Mottram, J.T., Turvey, G.J., Eds.; Office for Official Publications of the European Communities: Luxembourg, 1998; ISBN 9282829332. [Google Scholar]
- Hollmann, K. Failure Analysis of Bolted Composite Joints Exhibiting In-Plane Failure Modes. J. Compos. Mater. 1996, 30, 358–383. [Google Scholar] [CrossRef]
- Cooper, C.; Turvey, G.J. Effects of joint geometry and bolt torque on the structural performance of single bolt tension joints in pultruded GRP sheet material. Compos. Struct. 1995, 32, 217–226. [Google Scholar] [CrossRef]
- Rosner, C.N. Single-Bolted Connections for Orthotropic Fibre-Reinforced Composite Structural Members. Master’s Thesis, University of Manitoba, Winnipeg, MB, Canada, 1992. [Google Scholar]
- Rosner, C.N.; Rizkalla, S.H. Bolted Connections for Fiber-Reinforced Composite Structural Members: Experimental Program. J. Mater. Civ. Eng. 1995, 7, 223–231. [Google Scholar] [CrossRef]
- Turvey, G.J.; Cooper, C. Single bolt tension joint tests on pultruded GRP WFsection web and flange material. In Proceedings of the 10th International Conference on Composite Materials ICCM-10, Whistler, BC, Canada, 14–18 August 1995; Woodhead Publishing Ltd.: Sawston, UK, 1995. [Google Scholar]
- Turvey, G.; Gode, J. An experimental investigation of the tensile behaviour of single-lap bolted joints in pultruded GFRP plate. In Proceedings of the FRP Bridges Conference, London, UK, 13–14 September 2012; pp. 74–88. [Google Scholar]
- Turvey, G. Failure of single-lap single-bolt tension joints in pultruded glass fibre reinforced plate. In Proceedings of the the 6th International Conference on Composites in Construction Engineering (CICE), Rome, Italy, 13–15 June 2012; pp. 13–15. [Google Scholar]
- Abd-El-Naby, S.F.M.; Hollaway, L. The experimental behaviour of bolted joints in pultruded glass/polyester material. Part 2: Two-bolt joints. Composites 1993, 24, 539–546. [Google Scholar] [CrossRef]
- Abd-El-Naby, S.F.M.; Hollaway, L. The experimental behaviour of bolted joints in pultruded glass/polyester material. Part 1: Single-bolt joints. Composites 1993, 24, 531–538. [Google Scholar] [CrossRef]
- Lee, Y.G.; Choi, E.; Yoon, S.J. Effect of geometric parameters on the mechanical behavior of PFRP single bolted connection. Compos. Part B Eng. 2015, 75, 1–10. [Google Scholar] [CrossRef]
- Turvey, G.J. Single-bolt tension joint tests on pultruded GRP plate—Effects of tension direction relative to pultrusion direction. Compos. Struct. 1998, 42, 341–351. [Google Scholar] [CrossRef]
- Yuan, R.L.; Liu, C.J. Experimental characterization of FRP mechanical connections. In Proceedings of the ACMBS-3, the 3rd International Conference on Advanced Composite Materials in Bridges and Structures, The Canadian Society for Civil Engineers, Montreal, QC, Canada, 15–18 August 2000; pp. 103–110. [Google Scholar]
- Erki, M.A. Bolted glass-fibre-reinforced plastic joints. Can. J. Civ. Eng. 1995, 22, 736–744. [Google Scholar] [CrossRef]
- Yuan, R.L.; Liu, C.J.; Daley, T. Study of mechanical connection for GFRP laminated structures. In Proceedings of the ACMBS-2, the 2nd International Conference on Advanced Composite Materials in Bridges and Structures, The Canadian Society for Civil Engineers, Montreal, QC, Canada, 11–14 August 1996; pp. 951–958. [Google Scholar]
- Zafari, B.; Mottram, J.T. Effect of orientation on pin-bearing strength for bolted connections in pultruded joints. In Proceedings of the Proceedings of the 6th International Conference on FRP Composites in Civil Engineering, CICE 2012, Rome, Italy, 13–15 June 2012. [Google Scholar]
- Khashaba, U.A.; Sallam, H.E.M.; Al-Shorbagy, A.E.; Seif, M.A. Effect of washer size and tightening torque on the performance of bolted joints in composite structures. Compos. Struct. 2006, 73, 310–317. [Google Scholar] [CrossRef]
- Prabhakaran, R.; Razzaq, Z.; Devara, S. Load and resistance factor design (LRFD) approach for bolted joints in pultruded composites. Compos. Part B Eng. 1996, 27, 351–360. [Google Scholar] [CrossRef]
- Prabhakaran, R.; Robertson, J. An experimental investigation of load-sharing in a multi-bolt pultruded composite joint. In Proceedings of the Second International Conference on Composites in Infrastructure, ICCI’98, Tucson, AZ, USA, 5–7 January 1998; pp. 355–368. [Google Scholar]
- Hassan, N.K.; Mohamedien, M.A.; Rizkalla, S.H. Rational Model for Multibolted Connections for GFRP Members. J. Compos. Constr. 1997, 1, 71–78. [Google Scholar] [CrossRef]
- Hassan, N.K.; Mohamedien, M.A.; Rizkalla, S.H. Multibolted Joints for GFRP Structural Members. J. Compos. Constr. 1997, 1, 3–9. [Google Scholar] [CrossRef]
- Ascione, F. A preliminary numerical and experimental investigation on the shear stress distribution on multi-row bolted FRP joints. Mech. Res. Commun. 2010, 37, 164–168. [Google Scholar] [CrossRef]
- Abdelkerim, D.S.E.; Wang, X.; Ibrahim, H.A.; Wu, Z. Effect of Connection Techniques on the Static and Fatigue Performance of Pultruded Basalt FRP Multibolted Joints. J. Compos. Constr. 2020, 24. [Google Scholar] [CrossRef]
- Abdelkerim, D.S.E.; Wang, X.; Ibrahim, H.A.; Wu, Z. Static and fatigue behavior of pultruded FRP multi-bolted joints with basalt FRP and hybrid steel-FRP bolts. Compos. Struct. 2019, 220, 324. [Google Scholar] [CrossRef]
- Zafari, B.; Qureshi, J.; Mottram, J.T.; Rusev, R. Static and fatigue performance of resin injected bolts for a slip and fatigue resistant connection in FRP bridge engineering. Structures 2016, 7, 71–84. [Google Scholar] [CrossRef]
- Qureshi, J. Bolted joints in fibre reinforced polymer bridges. Res. Dev. Mater. Sci. 2018, 6, 1–5. [Google Scholar] [CrossRef]
- Zafari, B.; Qureshi, J.; Mottram, J.T. Resin injected bolted connections: Fatigue testing towards achieving slip-resistant joints in FRP bridge engineering. In Proceedings of the Proc. of FRP Bridges Conference, NetComposites, The Building Centre, London, UK, 11–12 September 2014. [Google Scholar]
- Qureshi, J.; Mottram, J.T. Resin injected bolted connections: A step towards achieving slip-resistant joints in FRP bridge engineering. In Proceedings of the Proc. of FRP Bridges Conference, London, UK, 13–14 September 2012. [Google Scholar]
- Turvey, G.J. Bolted connections in PFRP structures. Prog. Struct. Eng. Mater. 2000, 2, 146–156. [Google Scholar] [CrossRef]
- Qureshi, J.; Nadir, Y.; John, S.K. FRP beam-to-column hybrid joints subjected to monotonic and cyclic loading. In Proceedings of the ICCS23—23rd International Conference on Composite Structures, Porto, Portugal, 1–4 September 2020; Ferreira, A.J.M., Ed.; University of Porto: Porto, Portugal, 2020. [Google Scholar]
- Bank, L.C.; Yin, J.; Moore, L.; Evans, D.J.; Allison, R.W. Experimental and numerical evaluation of beam-to-column connections for pultruded structures. J. Reinf. Plast. Compos. 1996, 15, 1052–1067. [Google Scholar] [CrossRef]
- Bank, L.C.; Mosallam, A.S.; Gonsior, H.E. Beam-to-column connections for pultruded FRP structures. In Proceedings of the Proc. 1st Materials Engineering Congress, Denver, CO, USA, 13–15 August 1990; ASCE: Denver, CO, USA, 1990; pp. 804–813. [Google Scholar]
- Bank, L.C.; Mosallam, A.S.; McCoy, G.T. Design and Performance of Connections for Pultruded Frame Structures. J. Reinf. Plast. Compos. 1994, 13, 199–212. [Google Scholar] [CrossRef]
- Bass, A.J.; Mottram, J.T. Behaviour of connections in frames of fibre- reinforced-polmer section. Struct. Eng. 1994, 72, 280–285. [Google Scholar]
- Mottram, J.T.; Zheng, Y. Further Tests of Beam-to-Column Connections for Pultruded Frames: Flange-Cleated. J. Compos. Constr. 1999, 3, 108–116. [Google Scholar] [CrossRef]
- Mottram, J.T.; Zheng, Y. Further Tests on Beam-to-Column Connections for Pultruded Frames: Web-Cleated. J. Compos. Constr. 1999, 3, 3–11. [Google Scholar] [CrossRef]
- Mosallam, A.S. Design considerations for pultruded composite beam-to-column connections subjected to cyclic and sustained loading conditions. In Proceedings of the SPI/CI 52rd Annual Conference and Exposition, Nashville, TN, USA, 27–29 January 1997; pp. 1–18. [Google Scholar]
- Mosallam, A.S.; Abdelhamid, M.K.; Conway, J.H. Performance of Pultruded FRP Connections under Static and Dynamic Loads. J. Reinf. Plast. Compos. 1994, 13, 386–407. [Google Scholar] [CrossRef]
- Qureshi, J.; Mottram, J.T. Moment-rotation behaviour of beam-to-column joints for simple frames of pultruded shapes. In Proceedings of the The 6th International Conference on FRP Composites in Civil Engineering—CICE 2012, Rome, Italy, 13–15 June 2012. [Google Scholar]
- Turvey, G.J. Moment-rotation tests on bolted end connections in pultruded GRP beams-tests with stainless steel cleats and an assessment of their performance relative to GRP cleats. In Proceedings of the ECCM9, Composites—From Fundamentals to Exploitation, Brighton, UK, 4–7 June 2000. [Google Scholar]
- Turvey, G.J.; Cooper, C. Characterisation of the short-term static moment– rotation of bolted connections between pultruded GRP beam and column WF connections. In Proceedings of the 2nd International Conference on Advanced Composite Materials in Bridges and Structures (ACMBS II), Canadian Society for Civil Engineering, Montreal, QC, Canada, 11–14 August 1996; El-Badry, M., Ed.; pp. 927–934. [Google Scholar]
- Turvey, G.J.; Cooper, C. Semi-rigid pultruded GRP frame connections: Tests to determine static moment–rotation characteristics. In Proceedings of the 7th European Conference on Composite Materials ECCM-7, London, UK, 31 May 1996; Woodhead Publishing Ltd.: Cambridge, UK, 1996; pp. 295–300. [Google Scholar]
- Turvey, G.J.; Wang, P. Failure of pultruded GRP angle–leg junctions in tension. In Proceedings of the 17th international conference on composite materials (ICCM17), Edinburgh, UK, 27–31 July 2009; p. 11. [Google Scholar]
- Turvey, G.; Zhang, Y. Opening mode failure of pultruded GRP angle leg junctions. In Proceedings of the 3rd International Conference on Advanced Composites in Construction (ACIC 07), Bath, UK, 2–4 April 2007; pp. 389–393. [Google Scholar]
- Smith, S.J. An Investigation of Beam-to-Column Connections for Composite Structural Systems. Ph.D. Thesis, University of Illinois at Urbana-Champaign, Urbana, IL, USA, 1997. [Google Scholar]
- Smith, S.J.; Parsons, I.D.; Hjelmstad, K.D.; Hjelmstadh, K.D. An experimental study of the behavior of connections for pultruded GFRP I-beams and rectangular tubes. Compos. Struct. 1998, 42, 281–290. [Google Scholar] [CrossRef]
- Smith, S.J.; Parsons, I.D.; Hjelmstad, K.D. Experimental Comparisons of Connections for GFRP Pultruded Frames. J. Compos. Constr. 1999, 3, 20–26. [Google Scholar] [CrossRef]
- Zafari, B.; Mottram, J.T. Characterization by Full-Size Testing of Pultruded Frame Joints for the Startlink House. J. Compos. Constr. 2015, 19, 4014033. [Google Scholar] [CrossRef]
- Russo, S. On failure modes and design of multi-bolted FRP plate in structural joints. Compos. Struct. 2019, 218, 27–38. [Google Scholar] [CrossRef]
- Feroldi, F.; Russo, S. Structural behavior of all-FRP beam-column plate-bolted joints. J. Compos. Constr. 2016, 20, 04016004. [Google Scholar] [CrossRef]
- Feroldi, F.; Russo, S. Mechanical Performance of Pultruded FRP Plates in Beam-to-Beam Connections. J. Compos. Constr. 2017, 21, 4017004. [Google Scholar] [CrossRef]
- Zhang, J.Z.; Bai, Y.; Xiao, X. Bonded Sleeve Connections for Joining Tubular Glass Fiber–Reinforced Polymer Beams and Columns: Experimental and Numerical Studies. J. Compos. Constr. 2018, 22, 4018019. [Google Scholar] [CrossRef]
- Martins, D.; Gonilha, J.; Correia, J.R.; Silvestre, N. Exterior beam-to-column bolted connections between GFRP I-shaped pultruded profiles using stainless steel cleats, Part 2: Prediction of initial stiffness and strength. Thin-Walled Struct. 2021, 164, 107762. [Google Scholar] [CrossRef]
- Martins, D.; Gonilha, J.; Correia, J.R.; Silvestre, N. Exterior beam-to-column bolted connections between GFRP I-shaped pultruded profiles using stainless steel cleats. Part 1: Experimental study. Thin-Walled Struct. 2021, 163, 107719. [Google Scholar] [CrossRef]
- Martins, D.; Proença, M.; Correia, J.R.; Gonilha, J.; Arruda, M.; Silvestre, N. Development of a novel beam-to-column connection system for pultruded GFRP tubular profiles. Compos. Struct. 2017, 171, 263–276. [Google Scholar] [CrossRef]
- Ascione, F.; Lamberti, M.; Razaqpur, A.G.; Spadea, S.; Malagic, M. Pseudo-ductile failure of adhesively joined GFRP beam-column connections: An experimental and numerical investigation. Compos. Struct. 2018, 200, 864–873. [Google Scholar] [CrossRef]
- Feo, L.; Mosallam, A.S.; Penna, R. Mechanical behavior of web-flange junctions of thin-walled pultruded I-profiles: An experimental and numerical evaluation. Compos. Part B Eng. 2013, 48, 18–39. [Google Scholar] [CrossRef]
- Bruneau, M.; Walker, D. Cyclic testing of pultruded fiber-reinforced plastic beam-column rigid connection. J. Struct. Eng. 1994, 120, 2637–2652. [Google Scholar] [CrossRef]
- Singamsethi, S.K.; LaFave, J.M.; Hjelmstad, K.D. Fabrication and Testing of Cuff Connections for GFRP Box Sections. J. Compos. Constr. 2005, 9, 536–544. [Google Scholar] [CrossRef]
- Carrion, J.E.; LaFave, J.M.; Hjelmstad, K.D. Experimental behavior of monolithic composite cuff connections for fiber reinforced plastic box sections. Compos. Struct. 2005, 67, 333–345. [Google Scholar] [CrossRef]
- Zhang, Z.; Bai, Y.; He, X.; Jin, L.; Zhu, L. Cyclic performance of bonded sleeve beam-column connections for FRP tubular sections. Compos. Part B Eng. 2018, 142, 171–182. [Google Scholar] [CrossRef]
- Qiu, C.; Bai, Y.; Cai, Z.; Zhang, Z. Cyclic performance of splice connections for hollow section fibre reinforced polymer members. Compos. Struct. 2020, 243, 112222. [Google Scholar] [CrossRef]
- Martins, D.; Proença, M.; Almeida Gonilha, J.; Figueiredo Sá, M.; Ramôa Correia, J.; Silvestre, N. Experimental and numerical analysis of GFRP frame structures. Part 1: Cyclic behaviour at the connection level. Compos. Struct. 2019, 220, 304–317. [Google Scholar] [CrossRef]
- Martins, D.; Figueiredo Sá, M.; Almeida Gonilha, J.; Ramôa Correia, J.; Silvestre, N.; Gomes Ferreira, J. Experimental and numerical analysis of GFRP frame structures. Part 2: Monotonic and cyclic sway behaviour of plane frames. Compos. Struct. 2019, 220, 194–208. [Google Scholar] [CrossRef]
- Razaqpur, A.G.; Ascione, F.; Lamberti, M.; Spadea, S.; Malagic, M. GFRP hollow column to built-up beam adhesive connection: Mechanical behaviour under quasi-static, cyclic and fatigue loading. Compos. Struct. 2019, 224, 111069. [Google Scholar] [CrossRef]
- Burgoyne, C.; Balafas, I. Why is FRP not a financial success? In Proceedings of the 8th International Symposium on Fiber-Reinforced Polymer Reinforcement for Concrete Structures (FRPRCS-8), Patras, Greece, 16–18 July 2007; Triantafillou, T., Ed.; University of Patras: Patras, Greece, 2007. [Google Scholar]
- Kendall, D. Developments in FRP bridge design. Reinf. Plast. 2010, 54, 38–42. [Google Scholar] [CrossRef]
- Industry Experts Glass Fiber Reinforcements—A Global Market Overview. Available online: https://industry-experts.com/verticals/chemicals-and-materials/glass-fiber-reinforcements-a-global-market-overview (accessed on 8 December 2021).







| Estimated Fibre Volume | 25–40% | ||
| Fibre architecture | Roving and mat | ||
| Strength (MPa) | Tensile | Longitudinal | 207–317 |
| Transverse | 48–83 | ||
| Compressive | Longitudinal | 207–359 | |
| Transverse | 110–138 | ||
| Shear | In-plane | 31–48 | |
| Out-of-plane | 27–31 | ||
| Flexural | Longitudinal | 207–338 | |
| Transverse | 69–131 | ||
| Bearing | Longitudinal | 207–269 | |
| Transverse | 179–234 | ||
| Modulus (GPa) | Tensile | Longitudinal | 18–28 |
| Transverse | 6–10 | ||
| Compressive | Longitudinal | 18–26 | |
| Transverse | 7–13 | ||
| Shear | In-plane | 3.0–3.4 | |
| Flexural | Longitudinal | 11–14 | |
| Transverse | 6–12 | ||
| Poisson’s ratio | Longitudinal | 0.33–0.35 | |
| Property | Material | |||
|---|---|---|---|---|
| Steel | GFRP | CFRP | AFRP | |
| Longitudinal modulus (GPa) | 200 | 35 to 60 | 100 to 580 | 40 to 125 |
| Longitudinal tensile strength (MPa) | 450 to 700 | 450 to 1600 | 600 to 3500 | 1000 to 2500 |
| Ultimate tensile strain (%) | 5 to 20 | 1.2 to 3.7 | 0.5 to 1.7 | 1.9 to 4.4 |
| Property | GFRP | CFRP | AFRP |
|---|---|---|---|
| E-Glass/Epoxy | Carbon/Epoxy | Kevlar 49/Epoxy | |
| Fibre volume fraction | 0.55 | 0.65 | 0.60 |
| Density (kg/m3) | 2100 | 1600 | 1380 |
| Longitudinal modulus (GPa) | 39 | 177 | 87 |
| Transverse modulus (GPa) | 8.6 | 10.8 | 5.5 |
| In-plane shear modulus (GPa) | 3.8 | 7.6 | 2.2 |
| Major Poisson’s ratio | 0.28 | 0.27 | 0.34 |
| Minor Poisson’s ratio | 0.06 | 0.02 | 0.02 |
| Longitudinal tensile strength (MPa) | 1080 | 2860 | 1280 |
| Transverse tensile strength (MPa) | 39 | 49 | 30 |
| In-plane shear strength (MPa) | 89 | 83 | 49 |
| Ultimate longitudinal tensile strain (%) | 2.8 | 1.6 | 1.5 |
| Ultimate transverse tensile strain (%) | 0.5 | 0.5 | 0.5 |
| Longitudinal compressive strength (MPa) | 620 | 1875 | 335 |
| Transverse compressive strength (MPa) | 128 | 246 | 158 |
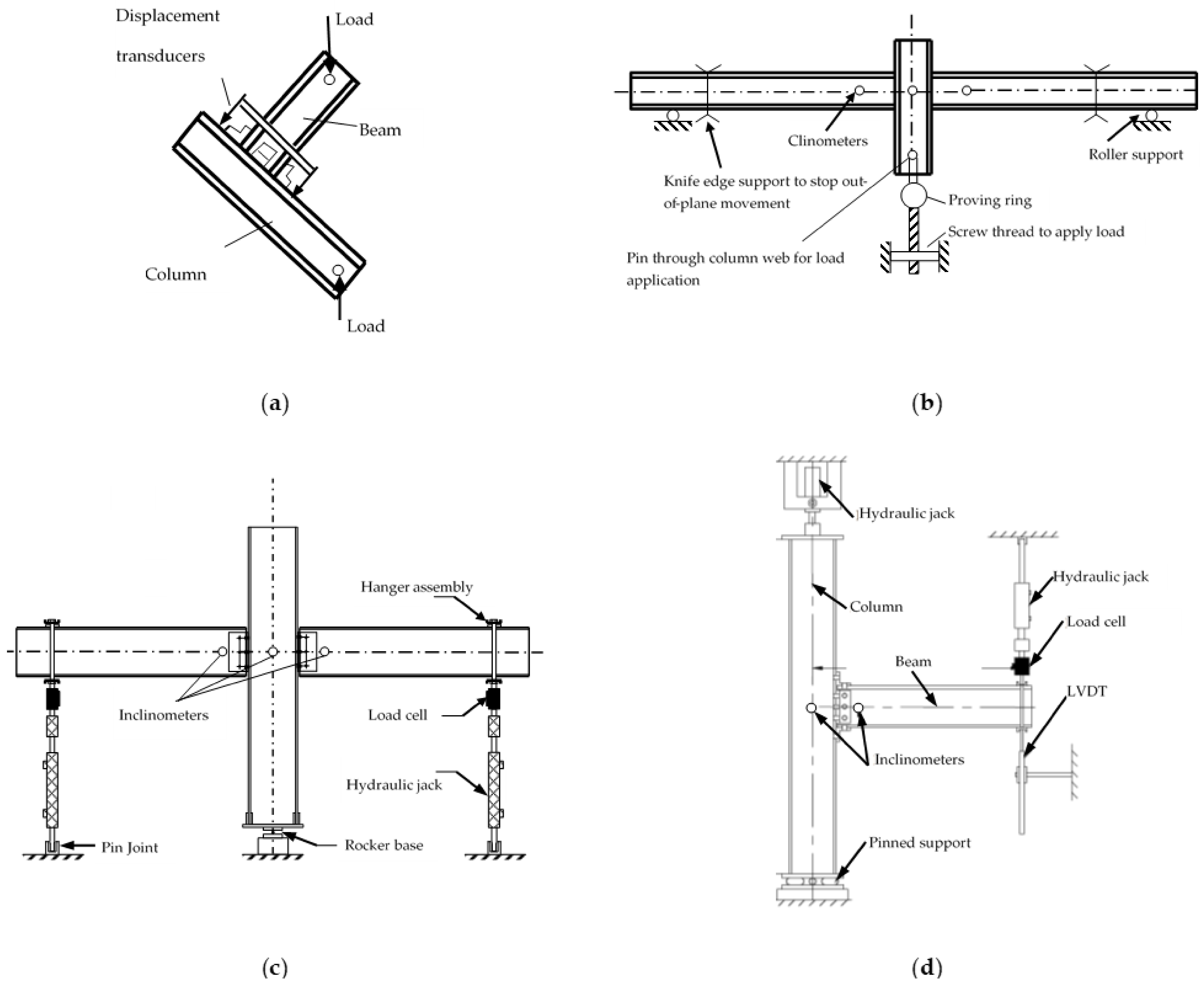
| Researcher | Set Up | Sizes | Joint Configuration | Main Findings |
|---|---|---|---|---|
| Bank [129,130,131] | Direct Compression |
|
|
|
| Mottram [24,132,133,134] | Double cantilever |
|
|
|
| Mosallam [135,136] | Direct compression |
|
|
|
| Qureshi [27,28,29,137] | Double cantilever |
|
|
|
| Turvey [138,139,140,141,142] | Double cantilever |
|
|
|
| Qureshi [80] | Tension pull test |
|
|
|
| Smith [143,144,145] | Direct Compression |
|
|
|
| Zafari [33,146] | Single cantilever |
|
|
|
| Russo [147,148,149] | Simply supported beam |
|
|
|
| Zhang [150] | Single cantilever |
|
|
|
| Martins [151,152,153] | Single cantilever and full frame |
|
|
|
| Ascione [18,154] | Single cantilever |
|
|
|
| Mosallam [155] | Web-flange junction tests |
|
|
|
| Researcher | Set Up | Sizes | Joint Configuration | Main Findings |
|---|---|---|---|---|
| Bruneau and Walker [156] | Simply support beam |
|
|
|
| Mosallam [135] | Direct compression |
|
|
|
| Smith [144,145], Singamsethi [157], Carrion [158] | Direct compression |
|
|
|
| Zhang, Qiu [150,159,160] | Single cantilever or beam splice connection |
|
|
|
| Martins [161,162] | Single cantilever |
|
|
|
| Razaqpur [163] | Single cantilever |
|
|
|
| Qureshi [8,128] | Single cantilever |
|
|
|
| Test Set Up | Joint Configuration | Advantages and Findings | Limitations |
|---|---|---|---|
| Direct compression | - |
|
|
| Simply supported beam | - |
|
|
| Double cantilever beam | - |
|
|
| Single cantilever beam | - |
|
|
| Full scale frame | - |
|
|
| - | Cleated joints |
|
|
| - | Sleeve/cuff joints |
|
|
Publisher’s Note: MDPI stays neutral with regard to jurisdictional claims in published maps and institutional affiliations. |
© 2022 by the author. Licensee MDPI, Basel, Switzerland. This article is an open access article distributed under the terms and conditions of the Creative Commons Attribution (CC BY) license (https://creativecommons.org/licenses/by/4.0/).
Share and Cite
Qureshi, J. A Review of Fibre Reinforced Polymer Structures. Fibers 2022, 10, 27. https://doi.org/10.3390/fib10030027
Qureshi J. A Review of Fibre Reinforced Polymer Structures. Fibers. 2022; 10(3):27. https://doi.org/10.3390/fib10030027
Chicago/Turabian StyleQureshi, Jawed. 2022. "A Review of Fibre Reinforced Polymer Structures" Fibers 10, no. 3: 27. https://doi.org/10.3390/fib10030027
APA StyleQureshi, J. (2022). A Review of Fibre Reinforced Polymer Structures. Fibers, 10(3), 27. https://doi.org/10.3390/fib10030027
