Stress-Constrained Topology Optimization for Commercial Software: A Python Implementation for ABAQUS®
Abstract
:1. Introduction
- The optimization algorithm used;
- If the publication provides the code implementation;
- If the method considers more constraints than just a mass or volume limit;
- If the method is suitable for complex geometries, allowing an easy application to case studies with intricate design spaces or the interaction with CAD models;
- If the method is based on commercial solvers.
2. Continuous Formulation of Topology Optimization Problem Statements and Sensitivities
2.1. Topology Optimization Problem
2.2. Regularization and Penalization
2.3. Sensitivity Analysis
- Find , the solution of: ;
- Find , the solution of: ;
- Compute the derivative as ;
- Update the design variables using the gradient information.
2.4. Compliance Functional
- Find , the solution of: ;
- Take , since is exactly the same problem as the first step;
- Compute: .
2.5. Stress Functional
- Find u, the solution of ;
- Using Equation (27), find such that . Note that this functional is not self-adjoint, leading to a different procedure than the one shown in the previous section;
- Compute: .
3. Discrete Formulation of Topology Optimization Problem Statements and Sensitivities
3.1. Topology Optimization Problem
3.2. Sensitivity Analysis
- Find u such that: ;
- Find such that: ;
- Compute: .
3.3. Compliance Functional
- Find u such that: . This procedure can be performed using an ABAQUS® FEA;
- Take , since the problem is self-adjoint;
- Compute: . Note that can be obtained from the ABAQUS® FEA executed in the first step.
3.4. Stress Functional
- Find u such that: . This procedure can be performed through an ABAQUS® FEA;
- Find such that: ;
- Compute: .
3.5. Volume Constraint
4. Mesh Dependency and Data Filtering
5. Optimization Algorithms
5.1. Optimality Criteria
5.2. Method of Moving Asymptotes
5.3. Sequential Least-Squares Programming
5.4. Trust-Constr
6. Python Implementation and Usage
6.1. Code Usage
- Within the same part, the user can define specific elements to be optimized, dividing the part into two regions: one with editable elements and another with elements that should not be included in the optimization process (i.e., passive elements, from this point onward referred to as “frozen region” or “frozen elements”). To do so, the user should create a set named “editable_elements”, containing the elements to be edited. If this set does not exist, the whole part will be optimized. Note that the name “editable_elements” is case sensitive. This is performed in order to promote the optimization only of the targeted area and also to reduce the computational cost.
- The region to be optimized should not have a material section assigned to it, as the code will automatically assign the material properties and sections directly to the elements. Therefore, if the user defined a set with the editable elements, only the elements not included (frozen elements) should have a material section assigned to them.
- It is possible to allow the frozen elements to be considered during the filtering operations. To do so, the user should create a second element set with the case-sensitive name “neighbouring_region”.
- If multiple copies of the part to be optimized are included in the model assembly, only the first copy will be optimized.
6.2. Model Formatting, Job Submission, and Sensitivities (Lines 28–3452)
- “elmt_stress_sensitivity_continuous” stores the values of in a mesh-independent and mesh-independent form, making the comparison of the value of this derivative more suitable for the results obtained through finite differences.
- “elmt_stress_sensitivity_discrete” stores the values of in a mesh-dependent form, which is more suitable to be used as an input to the optimization algorithms, since they generally do not have access to the information of the mesh used in the FEA model. The difference between discrete and continuous element stress sensitivity is the multiplication by the determinant of the Jacobian matrix.
- “d_pnorm_spf” stores the values of .
- “d_pnorm_displacement” stores the values of .
- “stress_vector” and “stress_vector_int” store the stress vectors determined at the element nodes and integration points.
- “deformation_vector” and “deformation_vector_int” store the strain vectors determined at the element nodes and integration points.
6.3. Material and Stress Constraints (Lines 3453–3607)
6.4. Data Filtering (Lines 3608–3846)
6.5. Optimization Algorithms: Optimality Criteria, Method of Moving Asymptotes, Sequential Least-Squares Quadratic Programming, and Trust-Constr (Lines 3847–5622)
- Calling the SLSQP and Trust-constr methods from the SciPy module [108].
- Re-defining the problem statement with the correct data structure required by the algorithm selected.
- Providing the freedom for these algorithms to call the objective, sensitivity, and constraint functions as many times and in any given order necessary.
- Trying to record the data of each iteration as accurately as possible. However, it is to be expected that the data recorded may include information from intermediate evaluation points.
6.6. Display Definition (Lines 5623–6207)
6.7. Data Recording (Lines 6208–6349)
6.8. Element Formulation and Stiffness Matrix (Lines 6350–7283)
6.9. Parameter Input Request, Domain Definition, and Variable Generation (Lines 7284–8854)
6.10. Auxiliary Functions (Lines 8855–9013)
- average_ae outputs the average of the compliance sensitivity of each element over the last three iterations. This leads to an easier convergence of the OC algorithms, especially when considering discrete variables.
- The update_past_info function updates the variables that record the design variables and compliance sensitivity used in the previous two iterations.
- The evaluate_change function creates a ratio that describes how the objective function has changed over the last 10 iterations, which is used as convergence criteria in the implementation provided.
- The remove_files function will allow an automatic removal of the temporary files created by ABAQUS® after each FEA.
6.11. Main Program (Lines 9014–9307)
7. Benchmark Problems and Case Study
7.1. Cantilever Beam
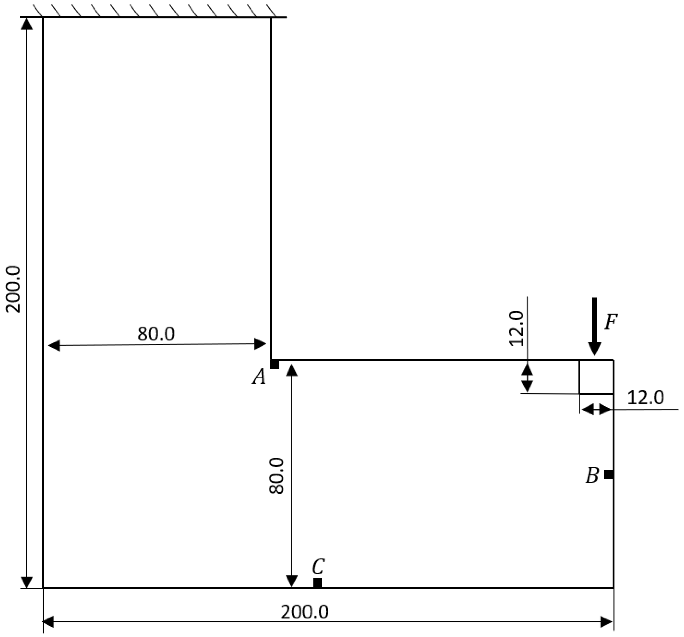
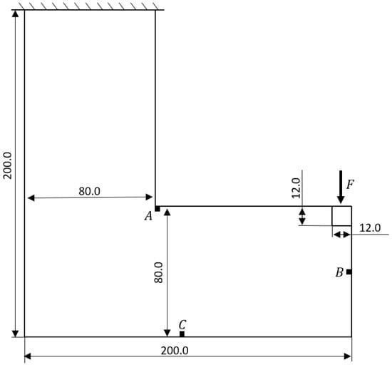
7.2. L-Bracket
7.3. Bonded Support
8. Code Validation
8.1. Validation of the Element Formulation
8.2. Validation of the Maximum Stress Derivative
9. Topology Optimization Results
9.1. Cantilever Beam: Compliance Minimization Results
9.2. L-Bracket: Compliance Minimization Results
9.3. L-Bracket: Stress-Constrained Compliance Minimization Results
9.4. L-Bracket: Stress Minimization Results
9.5. Bonded Support: Compliance Minimization Results
10. Conclusions
Supplementary Materials
Author Contributions
Funding
Data Availability Statement
Conflicts of Interest
Abbreviations
| 2DQ4 | A 2D element with four nodes |
| 3D | Three-Dimensional |
| BESO | Bi-directional Evolutionary Structural Optimization |
| C3D8 | A 3D Cube element with eight nodes |
| C3D10 | A 3D Cube element with 10 nodes |
| CPE4 | Plane–strain Element with four nodes |
| CPS4 | Plane–stress element with four nodes |
| FEA | Finite-Element Analysis |
| MDPI | Multidisciplinary Digital Publishing Institute |
| MMA | Method of Moving Asymptotes |
| OC | Optimality Criterion |
| PEP8 | Style Guide for Python Code |
| S4 | Shell element with four nodes |
| SIMP | Solid Isotropic Material with Penalization |
| SLSQP | Sequential Least-Squares Programming |
| Stress penalization factor | |
| Symmetric gradient | |
| Numerical damping coefficient | |
| Generic vector | |
| Element stiffness | |
| Lagrange multiplier | |
| Filtered design density | |
| Stress | |
| Amplified von Mises stress | |
| Amplified stress | |
| Strain–displacement matrix | |
| Optimality condition parameter | |
| E | Young’s modulus |
| Elastic strain energy | |
| Plastic strain energy | |
| Pondered error | |
| Material constraint evolution ratio | |
| F | Force |
| f | Generic load function |
| g | Gradient |
| Space of functions with square integrable derivatives and homogeneous boundary values | |
| J | Cost function |
| K | Stiffness |
| l | External load forces |
| Space of bounded functions | |
| m | Mass |
| M | von Mises matrix |
| N | Linear shape function |
| n | Normal direction pointing outwards of the boundary of v |
| Domain of the topology optimization problem | |
| P | SIMP penalty factor |
| Final p-norm approximation factor | |
| Initial p-norm approximation factor | |
| Maximum filter search radius | |
| t | Applied boundary forces |
| u | Displacement |
| v | Poisson’s coefficient |
| V | Volume |
| Maximum allowable volume | |
| x | Design density variable |
References
- Bendsøe, M.P.; Kikuchi, N. Generating optimal topologies in structural design using a homogenization method. Comput. Methods Appl. Mech. Eng. 1988, 71, 197–224. [Google Scholar] [CrossRef]
- Alderliesten, R.C. Designing for damage tolerance in aerospace: A hybrid material technology. Mater. Des. 2015, 66, 421–428. [Google Scholar] [CrossRef]
- Meng, L.; Zhang, W.; Quan, D.; Shi, G.; Tang, L.; Hou, Y.; Breitkopf, P.; Zhu, J.; Gao, T. From Topology Optimization Design to Additive Manufacturing: Today’s Success and Tomorrow’s Roadmap. Arch. Comput. Methods Eng. 2020, 27, 805–830. [Google Scholar] [CrossRef]
- Zhang, W.; Yang, J.; Xu, Y.; Gao, T. Topology optimization of thermoelastic structures: Mean compliance minimization or elastic strain energy minimization. Struct. Multidiscip. Optim. 2014, 49, 417–429. [Google Scholar] [CrossRef]
- Wang, C.; Zhao, Z.; Zhou, M.; Sigmund, O.; Zhang, X.S. A comprehensive review of educational articles on structural and multidisciplinary optimization. Struct. Multidiscip. Optim. 2021, 64, 2827–2880. [Google Scholar] [CrossRef]
- Sigmund, O. A 99 line topology optimization code written in matlab. Struct. Multidiscip. Optim. 2001, 21, 120–127. [Google Scholar] [CrossRef]
- Andreassen, E.; Clausen, A.; Schevenels, M.; Lazarov, B.S.; Sigmund, O. Efficient topology optimization in MATLAB using 88 lines of code. Struct. Multidiscip. Optim. 2011, 43, 1–16. [Google Scholar] [CrossRef]
- Liu, K.; Tovar, A. An efficient 3D topology optimization code written in Matlab. Struct. Multidiscip. Optim. 2014, 50, 1175–1196. [Google Scholar] [CrossRef]
- Bendsøe, M.P. Optimal shape design as a material distribution problem. Struct. Optim. 1989, 1, 193–202. [Google Scholar] [CrossRef]
- Zhou, M.; Rozvany, G.I. The COC algorithm, Part II: Topological, geometrical and generalized shape optimization. Comput. Methods Appl. Mech. Eng. 1991, 89, 309–336. [Google Scholar] [CrossRef]
- Rozvany, G.I.N.; Sobieszczanski-Sobieski, J. New optimality criteria methods: Forcing uniqueness of the adjoint strains by corner-rounding at constraint intersections. Struct. Optim. 1992, 4, 244–246. [Google Scholar] [CrossRef]
- Osher, S.; Sethian, J.A. Fronts propagating with curvature-dependent speed: Algorithms based on Hamilton-Jacobi formulations. J. Comput. Phys. 1988, 79, 12–49. [Google Scholar] [CrossRef]
- Wang, M.Y.; Wang, X.; Guo, D. A level set method for structural topology optimization. Comput. Methods Appl. Mech. Eng. 2003, 192, 227–246. [Google Scholar] [CrossRef]
- Challis, V.J. A discrete level-set topology optimization code written in Matlab. Struct. Multidiscip. Optim. 2010, 41, 453–464. [Google Scholar] [CrossRef]
- Young, V.; Querin, O.M.; Steven, G.P.; Xie, Y.M. 3D and multiple load case bi-directional evolutionary structural optimization (BESO). Struct. Optim. 1999, 18, 183–192. [Google Scholar] [CrossRef]
- Huang, X.; Xie, Y.M. A further review of ESO type methods for topology optimization. Struct. Multidiscip. Optim. 2010, 41, 671–683. [Google Scholar] [CrossRef]
- Zuo, Z.H.; Xie, Y.M. A simple and compact Python code for complex 3D topology optimization. Adv. Eng. Softw. 2015, 85, 1–11. [Google Scholar] [CrossRef]
- Sigmund, O. On the usefulness of non-gradient approaches in topology optimization. Struct. Multidiscip. Optim. 2011, 43, 589–596. [Google Scholar] [CrossRef]
- Zhu, B.; Zhang, X.; Zhang, H.; Liang, J.; Zang, H.; Li, H.; Wang, R. Design of compliant mechanisms using continuum topology optimization: A review. Mech. Mach. Theory 2020, 143, 103622. [Google Scholar] [CrossRef]
- Sigmund, O.; Maute, K. Topology optimization approaches: A comparative review. Struct. Multidiscip. Optim. 2013, 48, 1031–1055. [Google Scholar] [CrossRef]
- Harzheim, L.; Graf, G. A review of optimization of cast parts using topology optimization: II-Topology optimization with manufacturing constraints. Struct. Multidiscip. Optim. 2006, 31, 388–399. [Google Scholar] [CrossRef]
- Suresh, K. A 199-line Matlab code for Pareto-optimal tracing in topology optimization. Struct. Multidiscip. Optim. 2010, 42, 665–679. [Google Scholar] [CrossRef]
- Talischi, C.; Paulino, G.H.; Pereira, A.; Menezes, I.F.M. PolyTop: A Matlab implementation of a general topology optimization framework using unstructured polygonal finite element meshes. Struct. Multidiscip. Optim. 2012, 45, 329–357. [Google Scholar] [CrossRef]
- Smith, H.; Norato, J.A. A MATLAB code for topology optimization using the geometry projection method. Struct. Multidiscip. Optim. 2020, 62, 1579–1594. [Google Scholar] [CrossRef]
- Sanders, E.D.; Pereira, A.; Aguiló, M.A.; Paulino, G.H. PolyMat: An efficient Matlab code for multi-material topology optimization. Struct. Multidiscip. Optim. 2018, 58, 2727–2759. [Google Scholar] [CrossRef]
- Otomori, M.; Yamada, T.; Izui, K.; Nishiwaki, S. Matlab code for a level set-based topology optimization method using a reaction diffusion equation. Struct. Multidiscip. Optim. 2015, 51, 1159–1172. [Google Scholar] [CrossRef]
- Gao, J.; Luo, Z.; Xia, L.; Gao, L. Concurrent topology optimization of multiscale composite structures in Matlab. Struct. Multidiscip. Optim. 2019, 60, 2621–2651. [Google Scholar] [CrossRef]
- Xia, L.; Breitkopf, P. Design of materials using topology optimization and energy-based homogenization approach in Matlab. Struct. Multidiscip. Optim. 2015, 52, 1229–1241. [Google Scholar] [CrossRef]
- Aage, N.; Andreassen, E.; Lazarov, B.S. Topology optimization using PETSc: An easy-to-use, fully parallel, open source topology optimization framework. Struct. Multidiscip. Optim. 2015, 51, 565–572. [Google Scholar] [CrossRef]
- Liang, Y.; Cheng, G. Further elaborations on topology optimization via sequential integer programming and Canonical relaxation algorithm and 128-line MATLAB code. Struct. Multidiscip. Optim. 2020, 61, 411–431. [Google Scholar] [CrossRef]
- Picelli, R.; Sivapuram, R.; Xie, Y.M. A 101-line MATLAB code for topology optimization using binary variables and integer programming. Struct. Multidiscip. Optim. 2021, 63, 935–954. [Google Scholar] [CrossRef]
- Ferrari, F.; Sigmund, O. A new generation 99 line Matlab code for compliance topology optimization and its extension to 3D. Struct. Multidiscip. Optim. 2020, 62, 2211–2228. [Google Scholar] [CrossRef]
- Du, Z.; Cui, T.; Liu, C.; Zhang, W.; Guo, Y.; Guo, X. An efficient and easy-to-extend Matlab code of the Moving Morphable Component (MMC) method for three-dimensional topology optimization. Struct. Multidiscip. Optim. 2022, 65, 158. [Google Scholar] [CrossRef]
- Chen, Q.; Zhang, X.; Zhu, B. A 213-line topology optimization code for geometrically nonlinear structures. Struct. Multidiscip. Optim. 2019, 59, 1863–1879. [Google Scholar] [CrossRef]
- Sotiropoulos, S.; Kazakis, G.; Lagaros, N.D. Conceptual design of structural systems based on topology optimization and prefabricated components. Comput. Struct. 2020, 226, 106136. [Google Scholar] [CrossRef]
- Giraldo-Londoño, O.; Paulino, G.H. PolyStress: A Matlab implementation for local stress-constrained topology optimization using the augmented Lagrangian method. Struct. Multidiscip. Optim. 2021, 63, 2065–2097. [Google Scholar] [CrossRef]
- Yang, D.; Liu, H.; Zhang, W.; Li, S. Stress-constrained topology optimization based on maximum stress measures. Comput. Struct. 2018, 198, 23–39. [Google Scholar] [CrossRef]
- Bruggi, M.; Venini, P. A mixed FEM approach to stress-constrained topology optimization. Int. J. Numer. Methods Eng. 2008, 73, 1693–1714. [Google Scholar] [CrossRef]
- Lee, E.; James, K.A.; Martins, J.R.R.A. Stress-constrained topology optimization with design-dependent loading. Struct. Multidiscip. Optim. 2012, 46, 647–661. [Google Scholar] [CrossRef]
- Cai, S.; Zhang, W. Stress-constrained topology optimization with free-form design domains. Comput. Methods Appl. Mech. Eng. 2015, 289, 267–290. [Google Scholar] [CrossRef]
- Salazar de Troya, M.A.; Tortorelli, D.A. Adaptive mesh refinement in stress-constrained topology optimization. Struct. Multidiscip. Optim. 2018, 58, 2369–2386. [Google Scholar] [CrossRef]
- Suresh, K.; Takalloozadeh, M. Stress-constrained topology optimization: A topological level-set approach. Struct. Multidiscip. Optim. 2013, 48, 295–309. [Google Scholar] [CrossRef]
- Chu, S.; Gao, L.; Xiao, M.; Luo, Z.; Li, H.; Gui, X. A new method based on adaptive volume constraint and stress penalty for stress-constrained topology optimization. Struct. Multidiscip. Optim. 2018, 57, 1163–1185. [Google Scholar] [CrossRef]
- Oh, M.K.; Lee, D.S.; Yoo, J. Stress-constrained topology optimization simultaneously considering the uncertainty of load positions. Int. J. Numer. Methods Eng. 2022, 123, 339–365. [Google Scholar] [CrossRef]
- Luo, Y.; Wang, M.Y.; Kang, Z. An enhanced aggregation method for topology optimization with local stress constraints. Comput. Methods Appl. Mech. Eng. 2013, 254, 31–41. [Google Scholar] [CrossRef]
- Biyikli, E.; To, A.C. Proportional topology optimization: A new non-sensitivity method for solving stress-constrained and minimum compliance problems and its implementation in MATLAB. PLoS ONE 2015, 10, e0145041. [Google Scholar] [CrossRef] [PubMed]
- Amir, O. Efficient stress-constrained topology optimization using inexact design sensitivities. Int. J. Numer. Methods Eng. 2021, 122, 3241–3272. [Google Scholar] [CrossRef]
- Paris, J.; Navarrina, F.; Colominas, I.; Casteleiro, M. Stress constraints sensitivity analysis in structural topology optimization. Comput. Methods Appl. Mech. Eng. 2010, 199, 2110–2122. [Google Scholar] [CrossRef]
- Holmberg, E.; Torstenfelt, B.; Klarbring, A. Global and clustered approaches for stress-constrained topology optimization and deactivation of design variables. In Proceedings of the 10th World Congress on Structural and Multidisciplinary Optimization, Orlando, FL, USA, 19–24 May 2013; pp. 1–10. [Google Scholar]
- Norato, J.A.; Smith, H.A.; Deaton, J.D.; Kolonay, R.M. A maximum-rectifier-function approach to stress-constrained topology optimization. Struct. Multidiscip. Optim. 2022, 65, 286. [Google Scholar] [CrossRef]
- Burger, M.; Stainko, R. Phase-field relaxation of topology optimization with local stress constraints. SIAM J. Control Optim. 2006, 45, 1447–1466. [Google Scholar] [CrossRef]
- De Leon, D.M.; Alexandersen, J.; O. Fonseca, J.S.; Sigmund, O. Stress-constrained topology optimization for compliant mechanism design. Struct. Multidiscip. Optim. 2015, 52, 929–943. [Google Scholar] [CrossRef]
- Holmberg, E.; Torstenfelt, B.; Klarbring, A. Stress-constrained topology optimization. Struct. Multidiscip. Optim. 2013, 48, 33–47. [Google Scholar] [CrossRef]
- Pastore, T.; Mercuri, V.; Menna, C.; Asprone, D.; Festa, P.; Auricchio, F. Topology optimization of stress-constrained structural elements using risk-factor approach. Comput. Struct. 2019, 224, 106104. [Google Scholar] [CrossRef]
- Paris, J.; Colominas, I.; Navarrina, F.; Casteleiro, M. Parallel computing in topology optimization of structures with stress constraints. Comput. Struct. 2013, 125, 62–73. [Google Scholar] [CrossRef]
- Deng, S.; Suresh, K. Multi-constrained topology optimization via the topological sensitivity. Struct. Multidiscip. Optim. 2015, 51, 987–1001. [Google Scholar] [CrossRef]
- Senhora, F.V.; Giraldo-Londoño, O.; Menezes, I.F.M.; Paulino, G.H. Topology optimization with local stress constraints: A stress aggregation-free approach. Struct. Multidiscip. Optim. 2020, 62, 1639–1668. [Google Scholar] [CrossRef]
- Saadlaoui, Y.; Milan, J.L.; Rossi, J.M.; Chabrand, P. Topology optimization and additive manufacturing: Comparison of conception methods using industrial codes. J. Manuf. Syst. 2017, 43, 178–186. [Google Scholar] [CrossRef]
- Holmberg, E.; Torstenfelt, B.; Klarbring, A. Fatigue constrained topology optimization. Struct. Multidiscip. Optim. 2014, 50, 207–219. [Google Scholar] [CrossRef]
- Amir, O.; Lazarov, B.S. Achieving stress-constrained topological design via length scale control. Struct. Multidiscip. Optim. 2018, 58, 2053–2071. [Google Scholar] [CrossRef]
- Granlund, G.; Wallin, M.; Tortorelli, D.; Watts, S. Stress-constrained topology optimization of structures subjected to nonproportional loading. Int. J. Numer. Methods Eng. 2023, 124, 2818–2836. [Google Scholar] [CrossRef]
- Amstutz, S.; Novotny, A.A.; de Souza Neto, E.A. Topological derivative-based topology optimization of structures subject to Drucker–Prager stress constraints. Comput. Methods Appl. Mech. Eng. 2012, 233, 123–136. [Google Scholar] [CrossRef]
- Cheng, L.; Bai, J.; To, A.C. Functionally graded lattice structure topology optimization for the design of additive manufactured components with stress constraints. Comput. Methods Appl. Mech. Eng. 2019, 344, 334–359. [Google Scholar] [CrossRef]
- Deng, H.; Vulimiri, P.S.; To, A.C. An efficient 146-line 3D sensitivity analysis code of stress-based topology optimization written in MATLAB. Optim. Eng. 2021, 23, 1733–1757. [Google Scholar] [CrossRef]
- Mirzendehdel, A.M.; Suresh, K. Support structure constrained topology optimization for additive manufacturing. Comput.-Aided Des. 2016, 81, 1–13. [Google Scholar] [CrossRef]
- Collet, M.; Bruggi, M.; Duysinx, P. Topology optimization for minimum weight with compliance and simplified nominal stress constraints for fatigue resistance. Struct. Multidiscip. Optim. 2017, 55, 839–855. [Google Scholar] [CrossRef]
- Bruggi, M.; Duysinx, P. Topology optimization for minimum weight with compliance and stress constraints. Struct. Multidiscip. Optim. 2012, 46, 369–384. [Google Scholar] [CrossRef]
- Giraldo-Londoño, O.; Aguiló, M.A.; Paulino, G.H. Local stress constraints in topology optimization of structures subjected to arbitrary dynamic loads: A stress aggregation-free approach. Struct. Multidiscip. Optim. 2021, 64, 3287–3309. [Google Scholar] [CrossRef]
- París, J.; Navarrina, F.; Colominas, I.; Casteleiro, M. Topology optimization of continuum structures with local and global stress constraints. Struct. Multidiscip. Optim. 2009, 39, 419–437. [Google Scholar] [CrossRef]
- Long, K.; Wang, X.; Liu, H. Stress-constrained topology optimization of continuum structures subjected to harmonic force excitation using sequential quadratic programming. Struct. Multidiscip. Optim. 2019, 59, 1747–1759. [Google Scholar] [CrossRef]
- Duysinx, P. Topology optimization with different stress limit in tension and compression. In Proceedings of the Third World Congress of Structural and Multidisciplinary Optimization (WCSMO3), Buffalo, NY, USA, 17–21 May 1999. [Google Scholar]
- da Silva, A.L.F.; Salas, R.A.; Nelli Silva, E.C.; Reddy, J.N. Topology optimization of fibers orientation in hyperelastic composite material. Compos. Struct. 2020, 231, 111488. [Google Scholar] [CrossRef]
- Miyajima, K.; Noguchi, Y.; Yamada, T. Optimal design of compliant displacement magnification mechanisms using stress-constrained topology optimization based on effective energy. Finite Elem. Anal. Des. 2023, 216, 103892. [Google Scholar] [CrossRef]
- Emmendoerfer Jr, H.; Fancello, E.A.; Silva, E.C.N. Stress-constrained level set topology optimization for compliant mechanisms. Comput. Methods Appl. Mech. Eng. 2020, 362, 112777. [Google Scholar] [CrossRef]
- Bendsoe, M.P.; Sigmund, O. Topology Optimization: Theory, Methods, and Applications; Springer Science & Business Media: Berlin/Heidelberg, Germany, 2003. [Google Scholar]
- Bakhtiary, N.; Allinger, P.; Friedrich, M.; Mulfinger, F.; Sauter, J.; Müller, O.; Puchinger, M. A new approach for sizing, shape and topology optimization. SAE Trans. 1996, 105, 745–761. [Google Scholar]
- Mlejnek, H.P. Some aspects of the genesis of structures. Struct. Optim. 1992, 5, 64–69. [Google Scholar] [CrossRef]
- Stolpe, M.; Svanberg, K. An alternative interpolation scheme for minimum compliance topology optimization. Struct. Multidiscip. Optim. 2001, 22, 116–124. [Google Scholar] [CrossRef]
- Pedersen, C.B.W.; Allinger, P. Industrial implementation and applications of topology optimization and future needs. In IUTAM Symposium on Topological Design Optimization of Structures, Machines and Materials: Status and Perspectives; Springer: Berlin/Heidelberg, Germany, 2006; pp. 229–238. [Google Scholar]
- Bendsøe, M.P.; Sigmund, O. Material interpolation schemes in topology optimization. Arch. Appl. Mech. 1999, 69, 635–654. [Google Scholar] [CrossRef]
- Clausen, P.M.; Pedersen, C.B.W. Non-parametric large scale structural optimization for industrial applications. In III European Conference on Computational Mechanics: Solids, Structures and Coupled Problems in Engineering: Book of Abstracts; Springer: Berlin/Heidelberg, Germany, 2006; p. 482. [Google Scholar]
- Svanberg, K. The method of moving asymptotes—a new method for structural optimization. Int. J. Numer. Methods Eng. 1987, 24, 359–373. [Google Scholar] [CrossRef]
- Kabus, S.; Pedersen, C.B.W. Optimal bearing housing designing using topology optimization. J. Tribol. 2012, 134, 021102. [Google Scholar] [CrossRef]
- Søndergaard, M.B.; Pedersen, C.B.W. Applied topology optimization of vibro-acoustic hearing instrument models. J. Sound Vib. 2014, 333, 683–692. [Google Scholar] [CrossRef]
- Hansen, L.V. Topology optimization of free vibrations of fiber laser packages. Struct. Multidiscip. Optim. 2005, 29, 341–348. [Google Scholar] [CrossRef]
- Olhoff, N.; Du, J. Topology optimization of vibrating bi-material structures with respect to sound radiation. In IUTAM Symposium on Topological Design Optimization of Structures, Machines and Materials: Status and Perspectives; Springer: Berlin/Heidelberg, Germany, 2006; pp. 43–52. [Google Scholar]
- JOG, C.S. Topology design of structures subjected to periodic loading. J. Sound Vib. 2002, 253, 687–709. [Google Scholar] [CrossRef]
- Sigmund, O.; Søndergaard Jensen, J. Systematic design of phononic band–gap materials and structures by topology optimization. Philos. Trans. R. Soc. London. Ser. A Math. Phys. Eng. Sci. 2003, 361, 1001–1019. [Google Scholar] [CrossRef]
- Tcherniak, D. Topology optimization of resonating structures using SIMP method. Int. J. Numer. Methods Eng. 2002, 54, 1605–1622. [Google Scholar] [CrossRef]
- Guo, L.; Wang, X.; Meng, Z.; Yu, B. Reliability-based topology optimization of continuum structure under buckling and compliance constraints. Int. J. Numer. Methods Eng. 2022, 123, 4032–4053. [Google Scholar] [CrossRef]
- Meng, Z.; Pang, Y.; Pu, Y.; Wang, X. New hybrid reliability-based topology optimization method combining fuzzy and probabilistic models for handling epistemic and aleatory uncertainties. Comput. Methods Appl. Mech. Eng. 2020, 363, 112886. [Google Scholar] [CrossRef]
- Meng, Z.; Keshtegar, B. Adaptive conjugate single-loop method for efficient reliability-based design and topology optimization. Comput. Methods Appl. Mech. Eng. 2019, 344, 95–119. [Google Scholar] [CrossRef]
- Meng, Z.; Wu, Y.; Wang, X.; Ren, S.; Yu, B. Robust topology optimization methodology for continuum structures under probabilistic and fuzzy uncertainties. Int. J. Numer. Methods Eng. 2021, 122, 2095–2111. [Google Scholar] [CrossRef]
- Fernandes, P.; Ferrer, A.; Teixeira, P.; Parente, M.; Pinto, R.; Correia, N. Python Code for Stress Constrained Topology Optimization in ABAQUS. 2023. [Google Scholar] [CrossRef]
- Bruggi, M. On an alternative approach to stress constraints relaxation in topology optimization. Struct. Multidiscip. Optim. 2008, 36, 125–141. [Google Scholar] [CrossRef]
- Le, C.; Norato, J.; Bruns, T.; Ha, C.; Tortorelli, D. Stress-based topology optimization for continua. Struct. Multidiscip. Optim. 2010, 41, 605–620. [Google Scholar] [CrossRef]
- Yang, L.; Lavrinenko, A.V.; Hvam, J.M.; Sigmund, O. Design of one-dimensional optical pulse-shaping filters by time-domain topology optimization. Appl. Phys. Lett. 2009, 95, 261101. [Google Scholar] [CrossRef]
- Huang, X.; Xie, Y.M. Bi-directional evolutionary topology optimization of continuum structures with one or multiple materials. Comput. Mech. 2009, 43, 393–401. [Google Scholar] [CrossRef]
- Bendsøe, M.P. Optimization of Structural Topology, Shape, and Material; Springer: Berlin/Heidelberg, Germany, 1995. [Google Scholar] [CrossRef]
- Ferraro, S. Topology Optimization and Failure Analysis of Deployable Thin Shells with Cutouts; California Institute of Technology: Pasadena, CA, USA, 2020. [Google Scholar]
- Sigmund, O.; Petersson, J. Numerical instabilities in topology optimization: A survey on procedures dealing with checkerboards, mesh-dependencies and local minima. Struct. Optim. 1998, 16, 68–75. [Google Scholar] [CrossRef]
- Huang, X.; Xie, Y.M. Convergent and mesh-independent solutions for the bi-directional evolutionary structural optimization method. Finite Elem. Anal. Des. 2007, 43, 1039–1049. [Google Scholar] [CrossRef]
- Wang, F.; Lazarov, B.S.; Sigmund, O. On projection methods, convergence and robust formulations in topology optimization. Struct. Multidiscip. Optim. 2011, 43, 767–784. [Google Scholar] [CrossRef]
- Svanberg, K. Algorithm for Optimum Structural Design Using Duality. In Mathematical Programming Study; Number 20; Springer: Berlin/Heidelberg, Germany, 1982; pp. 161–177. [Google Scholar] [CrossRef]
- Fleury, C. Structural weight optimization by dual methods of convex programming. Int. J. Numer. Methods Eng. 1979, 14, 1761–1783. [Google Scholar] [CrossRef]
- Deetman, A. GCMMA-MMA-Python Home Page. Available online: https://github.com/arjendeetman/GCMMA-MMA-Python (accessed on 26 October 2023).
- Svanberg, K. MMA and GCMMA Matlab Code Home Page. Available online: https://www.smoptit.se/ (accessed on 26 October 2023).
- Virtanen, P.; Gommers, R.; Oliphant, T.; Haberland, M.; Reddy, T.; Cournapeau, D. SciPy 1.2.1: Fundamental Algorithms for Scientific Computing in Python. Nat. Methods 2020, 17, 261–272. [Google Scholar] [CrossRef] [PubMed]
- Nocedal, J.; Wright, S.J. Numerical Optimization; Springer Science & Business Media: Berlin/Heidelberg, Germany, 2006; pp. 1–664. [Google Scholar] [CrossRef]
- Byrd, R.H.; Hribar, M.E.; Nocedal, J. An interior point algorithm for large-scale nonlinear programming. SIAM J. Optim. 1999, 9, 877–900. [Google Scholar] [CrossRef]
- development team; van Rossum, P. The Python Language Reference Release 3.6.0; Network Theory Ltd.: Godalming, UK, 2017. [Google Scholar]
- Buhl, T.; Pedersen, C.B.; Sigmund, O. Stiffness design of geometrically nonlinear structures using topology optimization. Struct. Multidiscip. Optim. 2000, 19, 93–104. [Google Scholar] [CrossRef]
- Duysinx, P.; Sigmund, O. New developments in handling stress constraints in optimal material distribution. In Proceedings of the 7th AIAA/USAF/NASA/ISSMO Symposium on Multidisciplinary Analysis and Optimization, St. Louis, MO, USA, 2–4 September 1998; pp. 1501–1509. [Google Scholar] [CrossRef]
- Bendsøe, M.P.; Díaz, A.R. A method for treating damage related criteria in optimal topology design of continuum structures. Struct. Optim. 1998, 16, 108–115. [Google Scholar] [CrossRef]







| Reference Source | Scope of the Reference | Author | Algorithm | Provides Code? | Consider Non-Material Constraint? | Suitable for Complex Geometries? | Based on Commercial Solver? |
|---|---|---|---|---|---|---|---|
| Literature | Review article or complementary method | Sigmund [18] | - | ||||
| Zhu et al. [19] | - | ||||||
| Sigmund and Maute [20] | OC | • | |||||
| Wang et al. [5] | - | ||||||
| Harzheim and Graf [21] | - | ||||||
| Compliance minimization | Sigmund [6] | OC | • | ||||
| Andreassen et al. [7] | OC | • | |||||
| Challis [14] | Level-set method | • | |||||
| Zuo and Xie [17] | OC | • | • | ||||
| Suresh [22] | Pareto-optimal tracing | • | |||||
| Talischi et al. [23] | OC | • | |||||
| Smith and Norato [24] | MMA and fmincon | • | |||||
| Sanders et al. [25] | Modified OC | • | |||||
| Otomori et al. [26] | Level-set method | • | |||||
| Gao et al. [27] | OC | • | |||||
| Xia and Breitkopf [28] | OC | • | |||||
| Liu and Tovar [8] | OC, SLSQP, and MMA | • | |||||
| Aage et al. [29] | MMA | • | • | ||||
| Liang and Cheng [30] | OC | • | |||||
| Picelli et al. [31] | OC | • | |||||
| Ferrari and Sigmund [32] | OC | • | |||||
| Du et al. [33] | Level-set method | • | |||||
| Chen et al. [34] | MMA | • | • | ||||
| Sotiropoulos et al. [35] | OC, MMA | ||||||
| Stress-constrained compliance minimization | Londoño and Paulino [36] | MMA | • | • | |||
| Yang et al. [37] | MMA | • | |||||
| Bruggi and Venini [38] | MMA | • | |||||
| Lee et al. [39] | SQP | • | |||||
| Cai and Zhang [40] | Level-set method | • | |||||
| Troya and Tortorelli [41] | MMA | • | |||||
| Suresh and Takalloozadeh [42] | Level-set method | • | • | ||||
| Chu et al. [43] | OC | • | • | ||||
| Oh et al. [44] | Gradient-based phase field | • | |||||
| Luo et al. [45] | MMA | • | |||||
| Biyikli and To [46] | PTO | • | • | ||||
| Amir [47] | MMA | • | • | ||||
| París et al. [48] | SLP and steepest descent | • | |||||
| Holmberg et al. [49] | MMA | • | |||||
| Norato et al. [50] | MMA | • | |||||
| Burger and Stainko [51] | Interior point method | • | |||||
| De Leon et al. [52] | MMA | • | |||||
| Holmberg et al. [53] | MMA | • | |||||
| Pastore et al. [54] | SLP, MMA, and OC | • | |||||
| París et al. [55] | SLP and steepest descent | • | |||||
| Deng and Suresh [56] | Level-set method | • | |||||
| Senhora et al. [57] | MMA | • | |||||
| Saadlaoui et al. [58] | Commercial software (black box) | • | • | • | |||
| Holmberg et al. [59] | MMA | • | |||||
| Amir and Lazarov [60] | MMA | • | |||||
| Granlund et al. [61] | MMA | • | |||||
| Amstutz et al. [62] | Level-set method | • | |||||
| Cheng et al. [63] | MMA | • | |||||
| Deng et al. [64] | MMA | • | • | ||||
| Mirzendehdel and Suresh [65] | Level-set method | • | • | ||||
| Stress- and compliance-constrained mass minimization | Collet et al. [66] | MMA | • | ||||
| Bruggi and Duysinx [67] | MMA | • | |||||
| Stress-constrained mass minimization | Londoño et al. [68] | MMA | • | ||||
| París et al. [69] | SLP | • | |||||
| Long et al. [70] | SQP and MMA | • | |||||
| Duysinx [71] | MMA | • | |||||
| Silva et al. [72] | Level-set method | • | • | • | |||
| Stress-constrained compliance maximization | Miyajima et al. [73] | Level-set method | • | ||||
| Emmendoerfer et al. [74] | Level-set method | • | |||||
| ABAQUS® documentation | Review article or complementary method | BendsØe and Sigmund [75] | OC, MMA, SLP, and level-set method | • | • | ||
| Compliance minimization | Bakhtiary et al. [76] | OC | • | • | |||
| ANSYS® documentation | Review article or complementary method | Mlejnek [77] | - | ||||
| Stolpe and Svanberg [78] | - | ||||||
| Pedersen and Allinger [79] | - | ||||||
| BendsØe and Sigmund [80] | - | ||||||
| Clausen and Pedersen [81] | - | ||||||
| Svanberg [82] | - | ||||||
| Compliance minimization | Kabus and Pedersen [83] | Commercial software (black box) | • | • | • | ||
| Minimization of maximum pressure | Søndergaard and Pedersen [84] | Commercial software (black box) | • | • | • | ||
| Eigenvector minimization | Hansen [85] | MMA | |||||
| Olhoff and Du [86] | MMA | • | • | ||||
| Compliance and eigenfrequency minimization | Jog [87] | OC | |||||
| Sigmund and Jensen [88] | MMA | • | |||||
| Maximization of the magnitude of steady-state vibrations | Tcherniak [89] | MMA | • |
| CPS4 | CPE4 | S4 | C3D8 | |||||
|---|---|---|---|---|---|---|---|---|
| (%) | Int. Points < 1% (%) | (%) | Int. Points < 1% (%) | (%) | Int. Points < 1% (%) | (%) | Int. Points < 1% (%) | |
| 0.05 | 99.65 | 0.90 | 63.39 | 0.49 | 97.29 | 0.44 | 96.37 | |
| 0.15 | 99.55 | 0.97 | 63.31 | 0.44 | 97.60 | 0.44 | 96.37 | |
| - | - | - | - | - | - | 0.44 | 96.37 | |
| 0.04 | 99.51 | 0.04 | 99.51 | 1.95 | 32.45 | <0.01 | 100.0 | |
| - | - | - | - | - | - | <0.01 | 100.0 | |
| - | - | - | - | - | - | <0.01 | 100.0 | |
| 0.00 | 99.88 | 1.85 | 31.74 | 0.61 | 95.89 | 1.45 | 44.81 | |
| 0.15 | 99.65 | 2.00 | 63.41 | 0.61 | 97.29 | 1.45 | 96.36 | |
| - | - | - | - | - | - | 1.45 | 44.82 | |
| 0.01 | 99.55 | 0.01 | 99.55 | 0.77 | 77.44 | <0.01 | 100.0 | |
| - | - | - | - | - | - | <0.01 | 100.0 | |
| - | - | - | - | - | - | <0.01 | 100.0 | |
| Mesh Size | Number of Elements | p-Norm (MPa) @ = 1.0 | Element Location | Element Label | p-Norm (MPa) @ | Finite Differences | Continuous Derivative | |
|---|---|---|---|---|---|---|---|---|
| 0.5 | 102,400 | 314.27741 | A | 69,184 | 0.1 | 335.12679 | −208.4939 | −129.6819 |
| 0.01 | 315.23590 | −95.8493 | ||||||
| B | 102,332 | 0.1 | 314.27740 | 0.0000 | 0.0001 | |||
| 0.01 | 314.27741 | 0.0000 | ||||||
| C | 63,841 | 0.1 | 314.28104 | −0.0363 | −0.0301 | |||
| 0.01 | 314.27784 | −0.0438 | ||||||
| 1 | 25,600 | 272.96255 | A | 17,269 | 0.1 | 272.87736 | 0.8519 | 0.4426 |
| 0.01 | 272.95502 | 0.7534 | ||||||
| B | 25,560 | 0.1 | 272.96249 | 0.0006 | 0.0004 | |||
| 0.01 | 272.96255 | 0.0000 | ||||||
| C | 23,901 | 0.1 | 272.97007 | −0.0752 | −0.0685 | |||
| 0.01 | 272.96326 | −0.0713 | ||||||
| 3 | 2889 | 221.08948 | A | 1953 | 0.1 | 232.36352 | −112.7404 | −65.2413 |
| 0.01 | 221.48312 | −39.3637 | ||||||
| B | 2875 | 0.1 | 221.08923 | 0.0025 | 0.0029 | |||
| 0.01 | 221.08941 | 0.0066 | ||||||
| C | 2683 | 0.1 | 221.13180 | −0.4232 | −0.4054 | |||
| 0.01 | 221.09332 | −0.3842 |
| Mesh Size | |||||
|---|---|---|---|---|---|
| 0.5 | 1 | −0.0088 | 0.0004 | −0.0092 | 24.037 |
| 0.5 | −2304.3703 | 0.5426 | −2304.9129 | 4248.295 | |
| 0.1 | −90.9833 | 1.2132 | −92.1965 | 75.996 | |
| 1 | 1 | −0.0305 | 0.0013 | −0.0318 | 23.864 |
| 0.5 | −7949.4335 | 1.8849 | −7951.3184 | 4218.445 | |
| 0.1 | −313.8380 | 4.2147 | −318.0527 | 75.462 | |
| 3 | 1 | −0.2140 | 0.0096 | −0.2236 | 23.289 |
| 0.5 | −3.4697 | 0.1086 | −3.5784 | 32.936 | |
| 0.1 | −2206.1706 | 30.3676 | −2236.5382 | 73.649 |
Disclaimer/Publisher’s Note: The statements, opinions and data contained in all publications are solely those of the individual author(s) and contributor(s) and not of MDPI and/or the editor(s). MDPI and/or the editor(s) disclaim responsibility for any injury to people or property resulting from any ideas, methods, instructions or products referred to in the content. |
© 2023 by the authors. Licensee MDPI, Basel, Switzerland. This article is an open access article distributed under the terms and conditions of the Creative Commons Attribution (CC BY) license (https://creativecommons.org/licenses/by/4.0/).
Share and Cite
Fernandes, P.; Ferrer, À.; Gonçalves, P.; Parente, M.; Pinto, R.; Correia, N. Stress-Constrained Topology Optimization for Commercial Software: A Python Implementation for ABAQUS®. Appl. Sci. 2023, 13, 12916. https://doi.org/10.3390/app132312916
Fernandes P, Ferrer À, Gonçalves P, Parente M, Pinto R, Correia N. Stress-Constrained Topology Optimization for Commercial Software: A Python Implementation for ABAQUS®. Applied Sciences. 2023; 13(23):12916. https://doi.org/10.3390/app132312916
Chicago/Turabian StyleFernandes, Pedro, Àlex Ferrer, Paulo Gonçalves, Marco Parente, Ricardo Pinto, and Nuno Correia. 2023. "Stress-Constrained Topology Optimization for Commercial Software: A Python Implementation for ABAQUS®" Applied Sciences 13, no. 23: 12916. https://doi.org/10.3390/app132312916
APA StyleFernandes, P., Ferrer, À., Gonçalves, P., Parente, M., Pinto, R., & Correia, N. (2023). Stress-Constrained Topology Optimization for Commercial Software: A Python Implementation for ABAQUS®. Applied Sciences, 13(23), 12916. https://doi.org/10.3390/app132312916

