Abstract
The prediction of additional stresses in ballasted track due to subgrade deformation is the main objective of the present paper. In this context, a 2D finite element model of ballasted railway track was built using the ANSYS Workbench program. Based on this model, an investigation of stresses and deformation values of track elements was conducted in three cases with different contact types. It was found that the case introducing the status of a new track, which has frictional contacts between sleepers and ballast with bonded contacts between other elements, has lower stresses in most of the track elements. Moreover, this case was applied for studying the effect of the settlement on track elements. It was found that stresses increased with increasing the settlement value. The average percentages of increased stresses are 4.18%, 5.85%, and 7.21% in railhead, tie plate, and sleeper, respectively, due to a 1 mm increase in the settlement. Finally, a second-degree polynomial equation was derived to predict the additional stresses in each element due to track settlement. It is expected that this study would help to decrease the maintenance costs and extend the service life of the track elements by predicting the additional stresses in them.
1. Introduction
The railway is a vital sector for transferring passengers and freights, as it has two different systems: ballasted and ballastless tracks. Ballasted tracks are the conventional ones that have widespread use in the world with a percentage of more than 95% due to the low cost of construction and other benefits [1]. Ballasted tracks consist of two main parts: superstructure and substructure, as shown in Figure 1a. The superstructure contains rails, rail pads, a fastening system, and sleepers, while the substructure contains ballast, subballast, and subgrade layers [2,3]. There are optional elements used recently as vibration isolators, such as Under Sleeper Pads (USP) and Under Ballast Mats (UBM), to ensure the quality of track geometry for a long time [4,5,6,7]. Development in ballasted tracks can help to improve the track quality with low maintenance costs and long life of track elements to meet the needs of large traffic density and high speeds [8,9]. To make this research useful for different railway authorities that have the ballasted track system, it is significant to focus on one of the troubles that face railway tracks, such as the effect of track settlement issue. In Egypt, a settlement of sewer pipeline was done beneath the ballasted track of the Cairo/Alexandria line in 2017 near Quesna station, as simplified in Figure 1b. This caused a slowdown of the running speed and urgent maintenance work in the affected area. Egypt is one of the oldest countries in the world that has a railway transportation system. Thus, many civil works could be found, such as sewer pipelines or tunnels beneath railway tracks without enough depth. That could lead to settlement of the track by the time. The Cairo/Alexandria line is the first line of railway track in Egypt, which was constructed in 1856, when the lifetime of some pipelines was expired. Moreover, increasing the demand for rail transportation, leading to an increase in the number and loads of trains “passengers or freights” per day, negatively affected the pipelines under the track.
Figure 1.
Two-dimensional (2D) longitudinal section of ballasted track: (a) track structure; (b) effect of pipe settlement.
Settlement is one of the permanent obstacles which faces railway tracks. It is considered the most consuming item of maintenance cost. It could lead to many other problems in rolling stocks and track, such as rail and wheel surface irregularity, degradation of track geometry, vehicle derailments, deterioration of track elements over time due to increasing stresses, etc. [10,11,12,13]. There are many reasons causing track settlement, depending on what and where the defect type is. The following are some of these reasons: fouling of the ballast layer with breaking of ballast stones corners when the fouling proportion is higher than 20% [14], lower suction of subgrade soil [15], raising of groundwater level with water seepage [16,17], organic and inorganic contamination [18,19,20,21], settlement of civil works under or near railway tracks, etc. Settlement of the subgrade soil can produce rail irregularities and increase the deterioration of the ballast layer, which can affect directly the smoothness and stability of running trains. Figure 2 shows the consequences of settlement with length and depth about 300 cm and 10 cm, respectively, which caused a freight train derailment accident in England. The report explained that this accident had dreadful effects on the track elements and the rolling stocks [22]. Moreover, in the service of high-speed railways, subgrade settlement has been observed. A differential subgrade settlement of 1.5 cm was found in Germany in the Berlin–Hannover high-speed railway sector [23]. Moreover, the settlement of one pier of longitudinal connected tracks (LCT) could increase the tensile stresses for slabs and bases at the settled pier and place of the two adjacent piers [24]. That would decrease the LTC stability and safety of running trains. Therefore, it is suggested that the allowable settlement value must be less than 1.05 cm.
Figure 2.
Track settlement at the place of accident [22].
Analyzing track settlement depending on field tests and large-scale tests needs substantial financial and technological assistance to plan and set up large-scale instruments. Moreover, it is risky, difficult, and it may lead to traffic disruption. Alternatively, using the finite element method (FEM), such as the ANSYS Workbench program, is supportive to understand the behavior of the actual track in different conditions. Modeling, as is done in this paper, can provide the ability to predict the additional stresses and save a large amount money compared with any sort of test [25]. There are some published works that used theoretical, experimental, and modeling methods as follows. Depending on the experiments, the low value of track stiffness could lead to low compactness of ballast and track settlement [26]. The relationship between the applied force and rail displacement reaction is known as track stiffness. However, the compactness is related to soil disinfection by decreasing the volume of air voids. Thus, by increasing the compactness, the soil properties will be improved, including track stiffness. Additionally, it concluded that settlement values increased by raising the water level in ballastless tracks. It could reach 30 times the settlement values before the water level starts rising [17]. On the other side, the results of applying insufficient stiffness to subgrade soil were investigated based on FEM. It was found that unequal settlement in ballast could exist in different gaps beneath sleepers. That would lead to increasing the dynamic stresses by 75.3%, 50.7%, and 61.1% for the roadbed surface, the subgrade surface, and the subsoil surface, respectively [27]. Although there are many published works of railway track settlement, there is a lack of publications in studying the effect of soil settlement on additional stresses in ballasted track elements. In Egypt, settlement is an essential problem that faces the ballasted tracks. There are two periodical activities of maintenance through the summer and winter to cover the problems of settlement and misalignment. Thus, studying the impact of settlement is the main focus of this paper by introducing settlement of a sewer pipeline beneath ballasted track.
Therefore, the FE model is proposed to analyze and help to predict the additional stresses in track elements due to settlement in the subgrade layer. By predicting the effect of the settlement, planning of the maintenance process will be more accurate. It could be managed well in different aspects, such as defining the schedule of the maintenance process of railway tracks and the predicted cost of that process. It would help to control the maintenance process and then decrease the paid costs depending on the rate of interest of the maintenance budget. Additionally, it will be helpful to determine the service lifetime of track elements according to the condition of settlement. That would decrease the possibility of failure of any element driving to decrease the possibility of accidents. The 2D analysis can add enough details or several types of materials within a short time of solving models. It has a lower computational cost compared to 3D analysis, especially for dynamic analysis. Thus, 2D analysis is applied to the longitudinal section of ballasted track. Firstly, a dynamic wheel load on the track structure without settlement of subgrade layer is applied after building the model. Then, the model is verified with the Zimmermann method and the Mohr’s circle theory to know the percentage of agreement with them. Secondly, we studied the effect of changing the contact types between track elements. This study investigates three different cases with regards to stresses and deformation results without settlement in the subgrade layer. The first case is a theoretical case that has bonded contacts between all track elements. The second case introduces the status of new tracks, where the fasteners are tied tightly with rail, rail pad, tie plate, and sleeper. Thus, the contacts between the last-mentioned elements are bonded. The second case has bonded contacts between all track elements, with a 0.7 friction coefficient between sleepers and ballast stones. The third case introduces the status of operated tracks where the fasteners are not tied tightly to the rail. Thus, the contacts between the rail bottom and rail pads are frictional. The third case is similar to the second case, with a 0.3 friction coefficient between the rail bottom and rail pads [28]. Then, it was found that the second case has lower stresses in most of the track elements compared with other cases. Moreover, its contact conditions could be applicable compared with the first case. Thus, the second case is selected to study the effect of the settlement on track elements. Thirdly, we assumed a part of subgrade layer is exposed to a settlement ranging from 5 mm to 10 mm, with a length of 3.5 m. That part is settled due to the settlement of a sewer pipeline crossing beneath the track and exists in the middle of the track model. Figure 3 describes the whole track geometry considered in the FE model, including the settled part, shown by the dashed line, in the subgrade layer. Figure 4 shows the essential steps of the methodology for this study.
Figure 3.
Track geometry in the FE model.
Figure 4.
Structure of the research work.
2. Track Modeling
By using 2D plan stresses in ANSYS Workbench, the model was analyzed. We considered that the longitudinal section cut all track items by dividing one rail equally.
2.1. Model Preparation
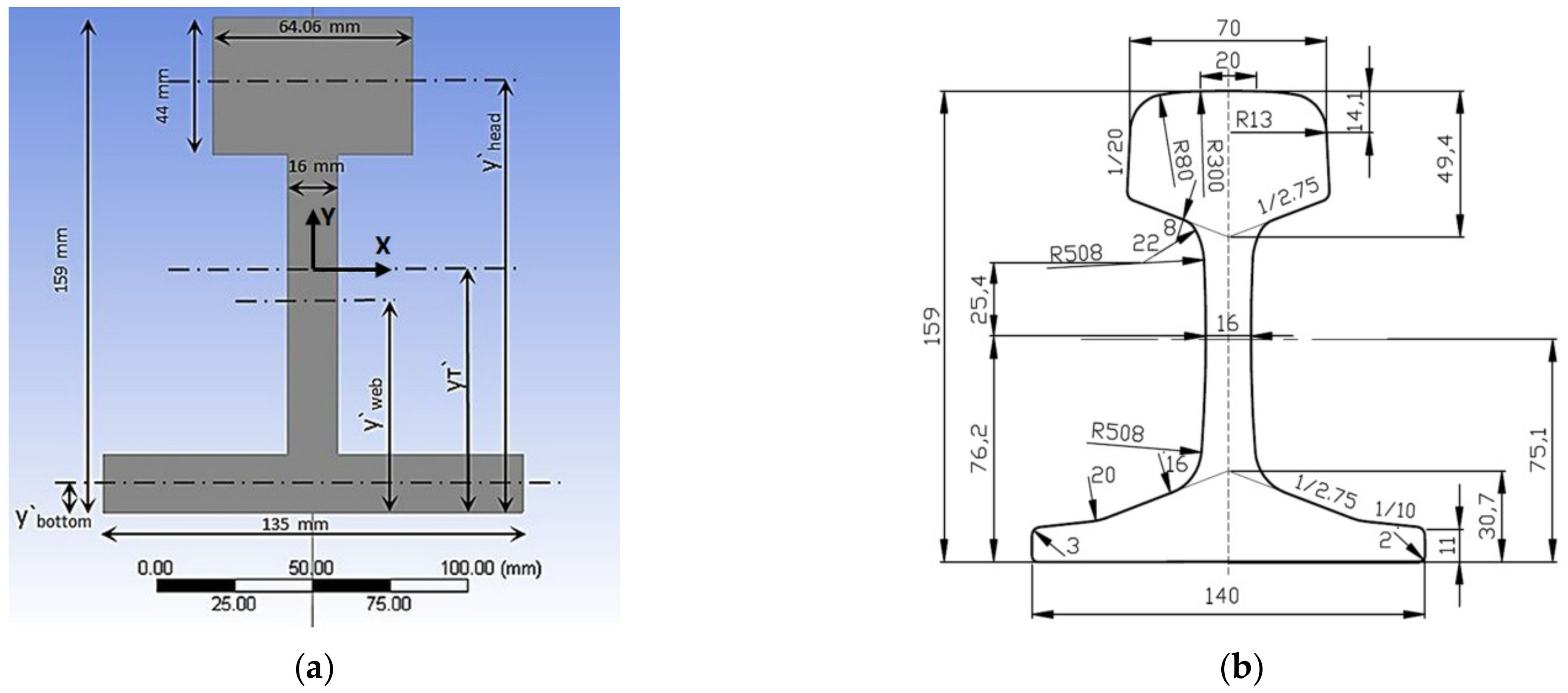
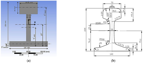
Dimensions of the modified rail in 2D are selected, which we tried to ensure were similar with regards of inertia, mass, and cross-sectional area of rail 54E1 (UIC54). Simultaneously, head, web, and foot of the rail dimensions are considered to be close to the real dimensions. The selected dimensions are the most applicable to rail 54E1 (UIC54); these dimensions are shown in Figure 5. The moment of inertia of rail 54E1 (UIC54) equals 2338 cm4, while the modeled rail equals 2346 cm4.
Figure 5.
Dimensions of: (a) modeled rail; (b) standard 54E1 (UIC54) rail.
The moment of inertia of the X-axis of the modeled rail, the horizontal axis, is shown in Table 1, where y′ is the distance between the centroid axis of the part of the body to the bottom edge of the body, yT′ is the distance between the centroid axis of the body and the bottom edge of the body, is the moment of inertia of the modeled rail, and d is the distance between y′ and yT′.
Table 1.
Calculated parameters of the modified rail.
2.2. Material Features
The materials of track elements described here have mechanical properties that exist in some tracks in Egypt, as shown in Table 2. These properties depend on Egyptian soil classifications [29] and the engineering properties of materials [30]. The damping factor of the substructure is adopted depending on the general values of a concrete structure [31]. The ballast is a discrete material that is best modeled using the discrete element method (DEM). However, to simplify the results and study the whole track elements, the ballast layer was modeled using the FEM. Thus, ballast stones are considered as a continuous elastic material in the FEM to save calculation time. That consideration is achieved by defining the elastic parameters of the ballast layer in Table 2, such as the Poisson’s ratio, Young modulus, Damping factor, and Mass density. There are many published works that have modeled the ballast layer using FEM, such as Prakoso [32], Indraratna and Nimbalkar [33], Wang and Markine [34], and Xu et al. [35].
Table 2.
Mechanical parameters of the track model.
2.3. Model Components and Mesh
The track model consists of:
- Wheel with a diameter equaling 920 mm.
- Modified Rail 54E1 (UIC54).
- A total of 21 timber sleepers, where the width equals 250 mm and the thickness equals 150 mm, with 600 mm spacing between each other.
- A total of 21 rail pads and tie plates.
- The thickness of the ballast, subballast, and subgrade layers are 300 mm, 300 mm, and 500 mm, respectively.
The mesh of the wheel grades from the minimum element size at the outer edge, which equals 6 mm, to the maximum element size, as depicted in Figure 6a. There are 14,521 and 4691 wheel nodes and elements, respectively. The element size of the rail mesh, as depicted in Figure 6b, is 5 mm and 8 mm in the horizontal and vertical directions, respectively. There are 134,814 and 43,231 rail nodes and elements, respectively. Figure 6c shows the mesh of the rail pad, tie plate, and sleeper as the minimum element sizes equal 5 mm, 6 mm, and 27 mm for these components, respectively. Moreover, Figure 6d shows a part of the ballast layer mesh, as the minimum element size equals 27 mm. There are 11,501 and 3560 ballast layer nodes and elements, respectively.
Figure 6.
Mesh of: (a) wheel; (b) modeled rail 54E1 (UIC54); (c) rail pad, tie plate, and sleeper; (d) ballast layer.
By decreasing the mesh size of the wheel from 6 mm to 4 mm and the rail from 5 mm to 4 mm, it was found that the results do not show a great difference, as shown in the results of the railhead stresses and wheel/rail contact pressure.
2.4. Boundary Conditions
A total of 12.7 m of ballasted track was modeled using 21 sleepers placed at 0.6 m from their centers. The track is symmetrical in its two sides, so only one rail and all track components beneath it were modeled in 2D. The wheel speed is 100 km/h and runs for a distance of 2.0178 m. The rail is fixed from its two ends to express the actual case of the track, which is continuous from two sides. The part of the track that was modeled here is connected from both sides with the whole track line. Thus, it is considered that there is no transition, displacement, or rotation of the rail ends. The bottom edge of the subgrade layer is considered fixed, as the ground is solid. By applying the settlement of the sewer pipeline, the edge at the place of sewer pipeline, the settled part with a length of 3.5 m, is only exposed to a vertical movement ranging from 5 mm to 10 mm. The vertical load, which expresses the wheel load, equals 98 kN.
3. Verification of the Implemented Model
The model is verified with the Zimmermann method to ensure that ANSYS Workbench can consider the concept of elastic deflection of the track. Additionally, the model is verified with the Mohr circle theory to know how it considers the granular nature of the subgrade soil.
3.1. Zimmermann Method Verification
The Zimmermann method is a one-dimensional analytical method of a railway structure that simplifies a beam supported by continuous support (soil’s subgrade or foundation) to analyze the track deflection. This method is still extremely effective for assessing a simple design and analysis of railway track systems. Unfortunately, this method cannot do a complex analysis as it is only considered a one-dimensional system and ignores the actual discrete support supplied by sleepers and the substructure elements. Nowadays, researchers and engineers depend on numerical analysis and have, thus far, used the Zimmerman method as a reference.
Figure 7 shows the deformation of the modeled rail due to the effect of the wheel load. The deformation results were verified and compared with the Zimmermann method. The Zimmermann method was developed for situations when the wheel was directly loaded between two adjacent sleepers. However, it was developed in a static state, without wheel motion, where the symmetry of the deformed rail can be seen before and after the wheel load, as shown in Figure 8. Hence, Equation (1) was used to get the deflection values () of the rail under the effect of the loaded wheel [32,36]. Table 3 introduces the calculations of the rail deflection depending on Equation (1), starting from the wheel/rail contact point (x = 0) until the last point (x = 6000 mm):
where is the wheel load, is the length of transverse sleeper, is the influence factor of deflection, Er is the elastic modulus of rail, Ix is the moment of inertia of the rail, and x is the distance from the point of wheel/rail contact.
Figure 7.
Vertical deflection values of rail.
Figure 8.
Comparison of the deflection between the Zimmermann method and FEM.
Table 3.
Calculation values of rail deflection according to the Zimmermann method.
The FE model results of rail deflection, describing the dynamic effect of the wheel, were compared with the calculated values from the Zimmermann method in Figure 8. In the FE model, the maximum value of deflection was registered to be 2.3 mm; however, the maximum value of deflection owing to the Zimmermann method was registered to be 2.241 mm. Consequently, there is a high degree of agreement between the Zimmermann method and the FE model—97.3%. Note that the element size of the mesh has a basic role in the deference of the deflection values between the Zimmermann method and FE model. Ma et al. [37], El-sayed et al. [38], and Boussalia and Bellaouar [39] concluded that by decreasing the element size, the accuracy increased, but the computational time also increased. El-sayed et al. [38] and Prakoso [32] verified their numerical models, by using ABAQUS and ANSYS software programs, with the Zimmermann method. It was found that the difference between El-sayed et al. [38] and the Zimmermann method was 0.82%, and the difference between Prakoso [32] and the Zimmermann method was about 0.3%. The maximum deflection was registered at the wheel/rail contact point. Then, it decreased gradually by moving away from that point until reaching positive deflection values, after which it finally reached zero deflection. Depending on the transient system to analyze the model, an unsymmetrical deflection shape can result in the FE model results. The transient system presents the dynamic motion of the running wheel as it simulates the realistic wheel movement.
3.2. Mohr’s Circle Verification
Stresses in the subgrade layer of the modeled track were verified with the representation of Mohr’s circle. Four elements were selected in different places in the subgrade layer, which is sandy soil, as probes to get the values of the normal and shear stresses for these elements. The maximum normal stresses, the minimum normal stresses, and the maximum shear stresses are shown in Figure 9a–c, respectively. The normal and shear stresses of these four elements are introduced in Table 4. These elements were selected to cover different places that have maximum and minimum values of normal stresses and shear stresses. In the middle of the modeled track, as in Figure 9, the selected element is located in the contour plot of the minimum shear stresses () and the contour plot of the maximum values of the maximum normal stresses (). On the right side of the model, the selected elements are located in the contour plot of the maximum shear stresses () and the contour plots of different lower values of the minimum normal stresses (). That would help to ensure the numerical analysis, using ANSYS Workbench, can consider the granular nature of the subgrade soil.

Figure 9.
Stresses in the subgrade layer: (a) minimum normal stresses; (b) maximum normal stresses; (c) maximum shear stress.
Table 4.
Maximum normal and shear stresses of the selected four elements in the subgrade layer.
By using Equation (2), derived from Mohr’s circle theory, results could be obtained as follows, and Figure 10 illustrates results of the last three elements:
where is the maximum normal stress, is the minimum normal stress, is the maximum shear stress applied to the element, and is the radius of Mohr’s circle.
Figure 10.
Mohr’s circles for the subgrade layer of the track model.
For the first element, and . equal 0 MPa and −5.539 × 10−2 MPa, respectively, so is calculated to be 2.76 × 10−2 MPa. For the second element, and equal 4.026 × 10−3 MPa and −5.377 × 10−4 MPa, respectively, so is calculated to be 2.2818 × 10−3 MPa. For the third element, and equal 6.264 × 10−3 MPa and 0 MPa, respectively, so is calculated to be 3.132 × 10−3 MPa. For the fourth element, and equal 3.153 × 10−3 MPa and 0 MPa, respectively, so is calculated to be 1.576 × 10−3 MPa. Consequently, the FE model, depending on the ANSYS Workbench V14.0 program, implements the theory of Mohr’s circle exactly.
4. Modeling and Results with Discussion
We selected the middle of the track model, at 0.056074 s from the start of wheel running, to study the effect of wheel dynamic loading. Sleeper no. 11, located in the middle of the track, is the study place that was placed away enough from the two fixed supports of rail ends. A comparison between the three cases, which include different contact types between the track elements, was applied in the state without settlement. That would help to study the stresses’ distribution and deformation values. After that, a settlement was applied for one of these cases to get the percentages of increasing stresses in each track element. The settlement was placed in the middle of the track model to ensure that there is no significant effect of the fixed supports on the results.
4.1. States without Settlement of the Three Cases
Ramadan et al. [40] analyzed the FE models with bonded contacts between track elements, as it expressed the first case. Thus, a comparison between different cases would show the characteristics and benefits of each of these cases. The three cases have different results of stresses and deformation values, and the results were compared in the figures as follows.
Figure 11 depicts the values of the wheel/rail pressure for the three cases. It can be seen that the results of the contact pressure are identical, with no difference after the starting zone. The values of contact pressure are converged even after changing the mesh size at the contact of wheel and rail. Figure 12a shows the railhead equivalent stresses. It shows that the third case has the highest stresses compared with the other cases, which show nearly the same results. The highest average value of stresses in the railhead belongs to the third case, which equals 159.1 MPa. However, the highest average values of stresses for the first and second cases are 154.2 MPa and 154.8 MPa, respectively. Away from the starting zone, the maximum vertical deflection of the railhead for the three cases ranged from 2.2 mm to 2.4 mm, as shown in Figure 12b. By comparing these results with Sadeghi and Hasheminezhad [41], who analyzed 1.9 mm of vertical rail deflection, it can be concluded that the results of the 2D model are reasonable. Sadeghi and Hasheminezhad [41] used an axle load of 20 tons, 600 mm of sleeper spacing, and a running speed of 100 km/h on rail 60E1 (UIC60). It can be seen in Figure 12b that there is a slight difference between the results of the three cases, with a 0.1 mm difference of deflection values.
Figure 11.
Wheel/rail contact pressure.
Figure 12.
Railhead: (a) stresses; (b) deformation.
Figure 13a illustrates the stress values of the 11th tie plate, and describes the maximum values of the stresses. The maximum stresses belong to the first case because of the effect of bonded contact. The average stresses for the first, second, and third cases are 39.5 Mpa, 27.2 Mpa, and 33.2 Mpa, respectively. Thus, the second case has the lowest stresses in the 11th tie plate. The maximum deformation value of the 11th tie plate, as illustrated in Figure 13b, appears in the third case.
Figure 13.
The 11th tie plate: (a) stresses; (b) deformation.
Stresses increase gradually in the first case of the 11th sleeper, reaching the highest value of all cases, i.e., 0.66 MPa, as observed in Figure 14a.
Figure 14.
The 11th sleeper: (a) stresses; (b) deformation.
The average stresses for the first, second, and third cases are 0.52 MPa, 0.37 MPa, and 0.4 MPa, respectively. Thus, the second case has the lowest stresses for the 11th sleeper. However, the minimum deformation values of the 11th sleeper are registered in the first case, as shown in Figure 14b. The maximum deformation value of the third case equals 2.31 mm. It increased by about 10% of the maximum deformation value of the first case. In Figure 14b, it can be seen that the maximum deformation of the 11th sleeper occurred when the load affects it directly. Deformation values around the distance of 1100 mm decreased due to the effect of track elasticity, which is presented in the Zimmermann method, while the rail tends to rise and pulls sleepers up with it. On the other hand, deformation values increase at a distance of 600 mm because of track elasticity and the impact of superstructure weight.
The stress values of the subballast layer in the three cases show a slight difference, and the subgrade layer has the same status, as shown in Figure 15. The average stresses in the subballast layer are 0.095 MPa, 0.096 MPa, and 0.1 MPa for the first, second, and third cases, respectively. The average stresses in the subgrade layer are 0.047 MPa, 0.049 MPa, and 0.055 MPa for the first, second, and third cases, respectively. However, for the ballast layer, the stresses of the second and third cases are higher than the first case due to the effect of friction between sleepers and ballast stones.
Figure 15.
Substructure stresses.
Figure 16 shows the deformation values for the track substructure. It can be seen that the difference of the deformation values in the substructure layers of the three cases could be diminished for each case separately. Indraratna et al. [42] stated that the vertical deformation values of the fresh ballast layer after applying the wheel load were between 2 mm and 3 mm, while the maximum deformation values in the three cases ranged from 2 mm to 2.25 mm. This shows that, despite the difference in track conditions, the ballast deformation values of the three cases are in the same range and reasonable.
Figure 16.
Substructure deformation values.
In most of the track elements, the first and second cases have the lowest stress values compared with the third case. In reality, it is hard to apply bonded contacts between all elements in the ballasted tracks as in the first case. Hence, the second case has lower stresses compared with the third case, and the contact types in that case could also be applicable compared with the first case. Therefore, the second case has been selected as a case study according to its characteristics for studying the effect of subgrade settlement on the track elements.
At the beginning of wheel running, it can be seen that there is a large difference, which is gradually minimized, in the sequence of stresses and deformation values for about the first 700 mm. That is because this is the beginning of the calculation by ANSYS Workbench for the dynamic motion. That distance is called the starting zone, and its results are neglected. Furthermore, it must be noted that the values of the stresses are lower than the exact values because we selected a large mesh size for all elements and analyzed the track models in 2D, with the aim of decreasing the needed time to solve each model.
4.2. Comparison between States with and without Settlement of the Second Case (Frictional Contact between Sleepers and Ballast)
We assumed that there was a settlement that increased gradually from 5 mm to 10 mm to present the settlement of the sewer pipeline beneath the track. The shape of the stress distributions of the track elements would be changed as follows.
Figure 17 shows that the wheel/rail pressure values in the settlement states are not as regular as those in states without settlement. That would negatively affect both the wheels and rails and reduce their lifetime by creating surface irregularities. Boussalia and Bellaouar [39] concluded that the maximum wheel/rail contact pressure equals 1000 MPa, where the applied dynamic wheel load is 8 tons with a 4 mm mesh size at the wheel/rail contact area. Moreover, the maximum wheel/rail contact pressure equals 1200 MPa by applying 10 tons of dynamic wheel load with a 1 mm mesh size. After comparing the maximum contact pressure of this 2D model, which was about 790 MPa, with that of Boussalia and Bellaouar [39], it can be concluded that the wheel/rail contact pressure values are logical.
Figure 17.
Wheel/rail pressure in states with and without settlement.
In Figure 18a, it can be seen that stresses of the railhead grow gradually by increasing the settlement value of the subgrade layer. The highest stress values belong to the settlement, with 10 mm. Figure 18b introduces the stresses in the 11th sleeper, as the stress rates have irregular values during the wheel running in states with settlement.

Figure 18.
Stresses of the track elements in states with and without settlement: (a) railhead; (b) the 11th sleeper; (c) ballast layer; (d) subballast layer; (e) subgrade layer.
The maximum stress in the ballast layer without settlement equals 0.34 MPa, as shown in Figure 18c. The maximum stresses in ballast layers, with different track properties and loading conditions, were registered to be 0.2 MPa by Indraratna et al. [42], 0.45 MPa by Indraratna and Nimbalkar [33], and 0.28 MPa by Wang and Markine [34]. Thus, the results of the modeled ballast layer stresses are reasonable. Figure 18d,e show the stress distributions in the subballast and subgrade layers, respectively. In the state without settlement, the maximum stress in the subballast layer is around 1.2 MPa, and the maximum stress in the subgrade layer is less than 0.07 MPa. Xu et al. [35] concluded that the maximum stresses reached 0.08 MPa and 0.04 MPa at the surfaces of the first and second parts of the subgrade layer, respectively. By comparing the results of the maximum stress in the subgrade layer of the 2D model with the results obtained by Xu et al. [35], we can conclude that the subgrade layer stresses are logical. Xu et al. [35] introduced the 3D track model conditions as follows: 80 km/h of wheel speed, 25 tons of axle load, 70 kg/m of rail, 50 cm of ballast thickness, a subgrade first layer of 0.6 cm, and a subgrade second layer of 1.9 m. It could be concluded that the stress values of the substructure layers are considerable; however, the recorded maximum stresses are located around the beginning and the end of the settled part.
Table 5 introduces the average values of the maximum stresses in the states with and without settlement. Stresses of the track elements were analyzed to conclude the rates of the additional stresses in each part. For substructure layers, these rates express the increase of stresses in each layer as the maximum stresses that exist at the beginning and the end of the settled zone. Figure 19 explains the rate of additional stresses for superstructure elements with polynomial equations and the coefficient of determination values (R2). However, Fang [24] studied the effect of increasing pier settlement, from 1 mm to 5 mm, on the tensile stresses in the concrete slab and the base of a ballastless track. He concluded that the rate of increasing stresses has a semi-regular increase, expressed in linear relationships.
Table 5.
Stress values of railway track elements in states with and without settlement.
Figure 19.
Rate of additional stresses in different elements of the track model: (a) railhead; (b) the 11th rail pad; (c) the 11th tie plate; (d) the 11th sleeper.
Equation (3) is a second-degree equation that could be used to predict the percentages of additional stresses in track elements, depending on the settlement amount in the subgrade soil:
where is the increasing percentage of stresses in the track element (%), is the settlement amount (mm), and , , and are the constant parameters. Values of the constant parameters (, , and ) are introduced in Table 6 to predict the percentage of additional stresses of the second case for all railway track elements.
Table 6.
Constant parameters for all railway track elements.
5. Conclusions
The present paper aimed to predict the additional stresses in ballasted track elements caused by subgrade deformation. By predicting the effect of the settlement, planning of the maintenance process will be more accurate according to the settlement condition. This paper studied ballasted railway tracks using the FEM with the ANSYS Workbench 14.0 program. A comparison of the stresses and deformation values in the track elements conducted in three cases was carried out for stable subgrade soil without settlement. The three cases introduce the different status of ballasted track depending on the contact types between track elements. The first case is a theoretical case that has bonded contacts between all track elements. The second case introduces the status of the new tracks, for which the contacts between the superstructure elements are bonded with a 0.7 friction coefficient between sleepers and ballast stones. The third case introduces the status of the operated tracks. The third case is similar to the second case, with a 0.3 friction coefficient between the rail bottom and rail pads. Then, a case study was selected to analyze the effect of settlement, ranging from 5 mm to 10 mm, on the additional stresses in all track elements. The main findings can be summarized as follows:
- The model has about 97.3% of agreement with the Zimmermann method.
- The second case has lower stresses in most of the track elements as compared with other cases, and the contact types in the second case could also be applicable to the first case. Consequently, the second case was selected as a case study according to these characteristics for studying the effect of subgrade settlement on track elements. Moreover, it could help to decrease the maintenance costs and increase the service lifetime of the ballasted track.
- The average percentages of the increased stresses due to a 1 mm increase of the settlement in the railhead, tie plate, and sleeper are 4.18%, 5.85%, and 7.21%, respectively. Moreover, the average percentages of the increased stresses at the beginning and end of the settled area due to a 1 mm increase of the settlement in ballast, subballast, and subgrade layers are 35.5%, 32.6%, and 419%, respectively.
- A second-degree polynomial equation was derived to predict the possible percentage of increased stresses in each element because of subgrade deformation. This study aims to extract a simple equation that can be easily used for predicting the additional stresses (Equation (3)).
Author Contributions
Conceptualization, A.N.R. and H.N.E.-D.Z.; methodology, A.N.R. and P.J.; software, A.N.R. and P.J.; validation, A.N.R., J.Z. and H.N.E.-D.Z.; formal analysis, J.Z. and H.N.E.-D.Z.; investigation, P.J. and A.N.R.; writing—original draft preparation, A.N.R. and H.N.E.-D.Z.; writing—review and editing, P.J., J.Z. and A.N.R.; supervision, J.Z. and H.N.E.-D.Z. All authors have read and agreed to the published version of the manuscript.
Funding
This research was funded by the National Key Research and Development Program of China (grant No. 2018YFB1600302).
Institutional Review Board Statement
Not applicable.
Informed Consent Statement
Not applicable.
Data Availability Statement
The data presented in this study are available on request from the corresponding author.
Conflicts of Interest
The authors declare no conflict of interest.
Abbreviations
| y′ | Distance between the centroid axis of the part of the body to the bottom edge of the body |
| yT′ | Distance between the centroid axis of the body and the bottom edge of the body |
| Ix | Moment of inertia of the modeled rail |
| d | Distance between y′ and yT′ |
| v | Poisson’s ratio |
| E | Young modulus |
| ρ | Mass density |
| β | Damping factor |
| φ | Friction angle |
| ψ | Dilation angle |
| c | Cohesion |
| w | Deflection of the rail |
| Wheel load | |
| L | Length of the transverse sleeper |
| Elastic modulus of the rail | |
| x | Distance from the point of wheel/rail contact |
| Influence factor of deflection | |
| Maximum normal stress | |
| Minimum normal stress | |
| Maximum shear stress applied to the element | |
| Radius of Mohr’s circle | |
| R2 | Coefficient of determination |
| Increasing percentage of stresses in the specified element | |
| Settlement amount | |
| , and | Constant parameters |
References
- Jing, G.; Qie, L.; Markine, V.; Jia, W. Polyurethane reinforced ballasted track: Review, innovation and challenge. Constr. Build. Mater. 2019, 208, 734–748. [Google Scholar] [CrossRef]
- Shi, C.; Zhao, C.; Zhang, X.; Guo, Y. Coupled discrete-continuum approach for railway ballast track and subgrade macro-meso analysis. Int. J. Pavement Eng. 2020, 7, 1–16. [Google Scholar] [CrossRef]
- Kaewunruen, S.; Remennikov, A.M. Effect of a large asymmetrical wheel burden on flexural response and failure of railway concrete sleepers in track systems. Eng. Fail. Anal. 2008, 15, 1065–1075. [Google Scholar] [CrossRef]
- Krishnamoorthy, R.R.; Saleheen, Z.; Effendy, A.; Alisibramulisi, A.; Awaludin, A. The Effect of Rubber Pads on the Stress Distribution for Concrete Railway Sleepers. In Proceedings of the Conference: 14th International Conference on Concrete Engineering and Technology, Kuala Lumpur, Malaysia, 8–9 August 2018; p. 112007. [Google Scholar] [CrossRef]
- Zbiciak, A.; Kraśkiewicz, C.; Sabouni-Zawadzka, A.A.; Pełczyński, J.; Dudziak, S. A novel approach to the analysis of under sleeper pads (USP) applied in the ballasted track structures. Materials 2020, 13, 2438. [Google Scholar] [CrossRef] [PubMed]
- Navaratnarajah, S.K.; Indraratna, B. Use of rubber mats to improve the deformation and degradation behavior of rail ballast under cyclic loading. J. Geotech Geoenviron. Eng. 2017, 143, 4017015. [Google Scholar] [CrossRef] [Green Version]
- Kraśkiewicz, C.; Zbiciak, A.; Wasilewski, K.; Sabouni-Zawadzka, A. Laboratory Tests and Analyses of the Level of Vibration Suppression of Prototype under Ballast Mats (UBM) in the Ballasted Track Systems. Materials 2021, 14, 313. [Google Scholar] [CrossRef]
- Blanco-Lorenzo, J.; Santamaria, J.; Vadillo, E.G.; Oyarzabal, O. Dynamic comparison of different types of slab track and ballasted track using a flexible track model. Proc. Inst. Mech. Eng. Part F J. Rail Rapid Transit. 2011, 225, 574–592. [Google Scholar] [CrossRef]
- Burrow, M.P.N.; Bowness, D.; Ghataora, G.S. A comparison of railway track foundation design methods. Proc. Inst. Mech. Eng. Part F J. Rail Rapid Transit. 2007, 221, 1–12. [Google Scholar] [CrossRef]
- Dahlberg, T. Railway Track Settlements—A Literature Review. Report for the EU Project SUPERTRACK. Available online: http://www-classes.usc.edu/engr/ce/599/Thesis/RTRSETTL.pdf (accessed on 13 January 2004).
- Stark, T.D.; Wilk, S.T. Root cause of differential movement at bridge transition zones. Proc. Inst. Mech. Eng. Part F J. Rail Rapid Transit. 2016, 230, 1257–1269. [Google Scholar] [CrossRef]
- Zhang, X.; Zhao, C.; Zhai, W.; Shi, C.; Feng, Y. Investigation of track settlement and ballast degradation in the high-speed railway using a full-scale laboratory test. Proc. Inst. Mech. Eng. Part F J. Rail Rapid Transit. 2019, 233, 869–881. [Google Scholar] [CrossRef]
- Wang, H.; Markine, V.L.; Shevtsov, I.Y.; Dollevoet, R. Analysis of the dynamic behaviour of a railway track in transition zones with differential settlement. In Proceedings of the Conference of ASME/IEEE Joint Rail Conference, San Jose, CA, USA, 23–26 March 2015. [Google Scholar] [CrossRef]
- Han, X.; Selig, E.T. Effects of fouling on ballast settlement. In Proceedings of the 6th International Heavy Haul Railway Conference, Cape Town, South Africa, 6–10 April 1997; pp. 6–10. [Google Scholar]
- Hasnayn, M.M.; McCarter, W.J.; Woodward, P.K.; Connolly, D.P.; Starrs, G. Railway subgrade performance during flooding and the post-flooding (recovery) period. Transp. Geotech. 2017, 11, 57–68. [Google Scholar] [CrossRef]
- Bian, X.; Jiang, H.; Chen, Y. Preliminary testing on high-speed railway substructure due to water level changes. Procedia Eng. 2016, 143, 769–781. [Google Scholar] [CrossRef] [Green Version]
- Jiang, H.; Bian, X.; Jiang, J.; Chen, Y. Dynamic performance of high-speed railway formation with the rise of water table. Eng. Geol. 2016, 206, 18–32. [Google Scholar] [CrossRef]
- Malawska, M.; Wilkomirski, B. Accumulation rate of polychlorinated biphenyls(PCBs) in dandelion(Taraxacum officinale) in the conditions of soil contamination with oil derivatives. Rocz. Panstw. Zakl. Hig. 2001, 52, 295–311. [Google Scholar]
- Malawska, M.; Wiłkomirski, B. Soil and plant contamination with heavy metals in the area of the old railway junction Tarnowskie Góry and near two main railway routes. Rocz. Panstw. Zakl. Hig. 2000, 51, 259–267. [Google Scholar] [PubMed]
- Malawska, M.; Wilkomirski, B. An analysis of polychlorinated biphenyls (PCBs) content in soil and plant leaves (Taraxacum officinale) in the area of the railway junction Iława Główna. Toxicol. Environ. Chem. 1999, 70, 509–515. [Google Scholar] [CrossRef]
- Malawska, M.; Wiołkomirski, B. An analysis of soil and plant (Taraxacum officinale) contamination with heavy metals and polycyclic aromatic hydrocarbons (PAHs) in the area of the railway junction Iława Główna, Poland. Water. Air. Soil Pollut. 2001, 127, 339–349. [Google Scholar] [CrossRef]
- Rail Accident Investigation Branch. Derailment of a Freight Train at Stoke Lane Level Crossing, near Nottingham 27 August 2013. Available online: https://assets.publishing.service.gov.uk/media/551cf3e940f0b614040004da/R022015_150402_Stoke_Lane.pdf (accessed on 2 April 2015).
- Jiang, H.; Li, X.; Xin, G.; Yao, Z.; Zhang, J.; Liang, M. Geometry mapping and additional stresses of ballastless track structure caused by subgrade differential settlement under self-weight loads in high-speed railways. Transp. Geotech. 2019, 18, 103–110. [Google Scholar] [CrossRef]
- Fang, H. Influence of pier settlement on structural stress of longitudinal connected track in high-speed railways. Adv. Civ. Eng. 2020, 2020, 8102637. [Google Scholar] [CrossRef]
- Alabbasi, Y.; Hussein, M. Geomechanical modelling of railroad ballast: A review. Arch. Comput. Methods Eng. 2019, 19, 1–25. [Google Scholar] [CrossRef] [Green Version]
- Puzavac, L.; Popović, Z.; Lazarević, L. Influence of track stiffness on track behaviour under vertical load. Promet Zagreb 2012, 24, 405–412. [Google Scholar] [CrossRef]
- Prakoso, P.B. Analysis and Evaluation of Railway Track Systems on Soft Soil: Trackbed Thickness Design and Dynamic Track-Soil Interaction. Ph.D Thesis, Technische Universität München, München, Germany, 23 February 2017. [Google Scholar]
- González, I.J. Numerical modeling of railway ballast using the discrete element method. Master’s Thesis, Universitat Politècnica de Catalunya, Barcelona, Spain, 2015. [Google Scholar]
- Ismaiel, H.A.H. Geotechnical Investigations and Assessment of Earthquakes Factors at Hurghada City, Red Sea, Egypt. World Environ. 2018, 8, 63–70. [Google Scholar] [CrossRef]
- Zhu, T.Y. Some Useful Numbers on the Engineering Properties of Materials (Geologic and Otherwise); GEOL 615; Department of Geophysics, Stanford University: Stanford, CA, USA, 2012. [Google Scholar]
- Aikawa, A. Vertical Natural Vibration Modes of Ballasted Railway Track. In New Trends in Structural Engineering; Yalciner, H., Farsangi, E.N., Eds.; IntechOpen: London, UK, 2018. [Google Scholar] [CrossRef] [Green Version]
- Prakoso, P.B. The basic concepts of modelling railway track systems using conventional and finite element methods. Info Tek. 2012, 13, 57–65. [Google Scholar]
- Indraratna, B.; Nimbalkar, S. Stress-strain degradation response of railway ballast stabilized with geosynthetics. J. Geotech. Geoenviron. Eng. 2013, 139, 684–700. [Google Scholar] [CrossRef] [Green Version]
- Wang, H.; Markine, V. Corrective countermeasure for track transition zones in railways: Adjustable fastener. Eng. Struct. 2018, 169, 1–14. [Google Scholar] [CrossRef]
- Xu, F.; Yang, Q.; Liu, W.; Leng, W.; Nie, R.; Mei, H. Dynamic stress of subgrade bed layers subjected to train vehicles with large axle loads. Shock Vib. 2018, 2018, 8102637. [Google Scholar] [CrossRef]
- Esveld, C. Modern railway track, 2nd ed.; MRT-Productions: Zaltbommel, The Netherlands, 2001; pp. 71–76. [Google Scholar]
- Ma, Y.; Markine, V.L.; Mashal, A.A.; Ren, M. Effect of wheel–rail interface parameters on contact stability in explicit finite element analysis. Proc. Inst. Mech. Eng. Part F J. Rail Rapid Transit 2018, 232, 1879–1894. [Google Scholar] [CrossRef]
- El-sayed, H.M.; Lotfy, M.; Zohny, H.E.D.; Riad, H.S. Prediction of fatigue crack initiation life in railheads using finite element analysis. Ain Shams Eng. J. 2018, 9, 2329–2342. [Google Scholar] [CrossRef]
- Boussalia, L.; Bellaouar, A. Modélisation par la Méthode des Eléments Finis du Comportement Dynamique du Couple Roue-Rail. Ph.D Thesis, Université Frères Mentouri-Constantine 1, Constantine, Algeria, 12 November 2018. (In French). [Google Scholar]
- Ramadan, A.N.; Zohny, H.N.; Riad, H.S. Prediction of Excessive Stresses in Railway Track Elements Due to Soil Defects. Int. J. Sci. Eng. Res. 2018, 9, 1710–1716. [Google Scholar]
- Sadeghi, J.; Hasheminezhad, A. Sensitivity analysis of ballasted railway track design criteria. In Proceedings of the 3rd International Conference on Recent Advances in Railway Engineering (ICRARE-2013), Iran University of Science and Technology, Tehran, Iran, 30 April–1 May 2013. [Google Scholar]
- Indraratna, B.; Nimbalkar, S.; Christie, D.; Rujikiatkamjorn, C.; Vinod, J. Field assessment of the performance of a ballasted rail track with and without geosynthetics. J. Geotech. Geoenviron. Eng. 2010, 136, 907–917. [Google Scholar] [CrossRef]
Publisher’s Note: MDPI stays neutral with regard to jurisdictional claims in published maps and institutional affiliations. |
© 2021 by the authors. Licensee MDPI, Basel, Switzerland. This article is an open access article distributed under the terms and conditions of the Creative Commons Attribution (CC BY) license (https://creativecommons.org/licenses/by/4.0/).




















