Cyclic and Permanent Shear Strains of a Soft Cohesive Soil Subjected to Combined Static and Cyclic Loading
Abstract
1. Introduction
2. Description of the Soil Tested
- Stratum 1. Silt and clays of variable color between brown and gray, with dark tones when the content of organic matter is in higher levels. At the top of the stratum are intercalations of sands and sandy silt. The thickness of this stratum is close to 50 m.
- Stratum 2. Gravel and sands with some presence of silt. The thickness of this stratum is about 7 m.
- Stratum 3. Clays with properties similar to those of stratum 1 but with higher density. The maximum thickness of this stratum is 14 m.
- Stratum 4. Gravel and sands with clay inter-stratifications. Its thickness exceeds 40 m.
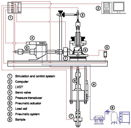
3. Description of the Equipment Used
- The equipment functions with pneumatic action and requires an air supply system that guarantees at least a working pressure equal to 800 kPa.
- The application of axial and tangential loads is carried out by two actuators and two digitally controlled servo-valves. The capacity of the actuators is 5 kN and the maximum working frequency of the servo-valves is equal to 70 Hz.
- To measure axial and tangential loads, device is equipped with two load cells of 5 kN capacity and 1.2 N precision. For the control and registration of axial and tangential deformations, the equipment has three linear variable differential transformers (LVDTs); two interiors, installed inside the actuators and one outside, located above the axial load frame.
- The simulation, control, and capture of data are done by a panel connected to a computer via USB. The data capture module has 13 input 10 V channels with an acquisition resolution equal to 20 bits and a speed of 5 kHz. The control module has two channels: one for the vertical load actuator and the other for the tangential load actuator.
- The control panel computer assembly controls the servo valves that apply the load with the preset speed, magnitude, and wave type and simultaneously captures the information supplied by the load cells and LVDTs.
- The equipment can test under undrained conditions (constant volume) and drained conditions (constant axial load).
- The dimensions of the samples are 70 mm in diameter and 19 mm in height. To keep the diameter of the specimen constant during testing, it is confined by a series of sliding rings.
4. Experimental Program
4.1. Sample Handling
4.2. Identification and Classification Tests
4.3. Monotonic Simple Shear
4.4. Cyclic Simple Shear
4.5. General Conditions of the Tests
- Undisturbed samples.
- Specimens with 7 cm diameter and 1.91 cm height.
- Consolidation stress equal to the effective consolidation stress “in situ” (σ′ov). Since the samples tested were extracted by drilling on the port caissons of the Prat dock, the effective consolidation stress, applied on the samples, was estimated by the following expression:where σ′ovz is the effective consolidation stress “in situ” by own soil weight, Δσ′z is the increase in effective stress for port caisson action, and z the depth at which the sample was taken.
- Undrained conditions and evaluation of the generated pore water pressure. According to the criteria of Bjerrum and Landva [36], simple shear tests at constant volume are equivalent to undrained tests, and the change in vertical stress applied to the sample is equivalent to the change in pore water pressure, which would be generated within a sample subjected to simple shear test with restricted drainage and constant axial stress. This was verified by Bjerrum and Landva [35] by a really undrained test in which they measured the pore water pressure generated at the base of the specimen.
- End of the test for permanent shear strain (γp) equal to 15%, or cyclic shear strain (γc) equal to 15%, or number of cycles (N) equal to 1300, or evaluated pore pressure equal to 95% of the effective consolidation stress.
- Sinusoidal wave with amplitude equal to the cyclic stress (+/− τc) and period equal to 10 s. A period equal to 10 s was chosen so that the results of this investigation could eventually be used in design previous stages related to port structures in areas near the site where the samples were extracted, that is, near the Prat pier.
- Controlled deformation during the monotonic stage. The tangential deformation rate was equal to 0.015 mm per minute, or equal to 4% per hour.
5. Interpretation of Results
5.1. Deposit Identification and Classification
5.2. Monotonic Simple Shear
5.3. Cyclic Simple Shear
5.4. Cyclic and Permanent Strain
5.4.1. Definition of Terms
- Shear strain (γ) is the unit angular deformation.
- Permanent shear strain (γp) is the accumulated unit angular deformation at the end of each cycle.
- Monotonic shear strain (γ0) is the unit angular deformation at the end of the phase of monotonic simple shear, before the phase of dynamic simple shear.
- Monotonic shear stress (τo) is the shear stress at the end of a monotonic simple shear test.
- Cyclic strain (γc) is the “amplitude” of the unit angular deformation in a cycle: (γc,max–γc,min)/2; with γc,max as the maximum cyclic strain and γc,min as the minimum cyclic strain of the cycle.
- (τc) is the cyclic shear, so that τc,max = τo + τc, which is the maximum shear stress, and τc,min = τo − τc is the minimum shear stress.
5.4.2. Qualitative Evaluation
- Same normalized initial monotonic shear stress (τo/σ′ov) and different normalized cyclic stress (τc/τ′ov).
- Same normalized cyclic stress (τc/σ′ov) and different initial normalized monotonic shear stress (τo/σ′ov).
- Same sum of the normalized initial monotonic shear stress (τo/σ′ov) plus the normalized cyclic shear stress (τc/σ′ov). In particular, for cases where the sum is equal to 25% and 30%. The sum equal to 30% corresponds approximately to the monotonic tests in which τo/σ′ov = τmax/σ′ov ≈ 30%.
- For a constant value of τo/σ′ov and of the number of cycles and a different τc/σ′ov, the cyclic (γc) and permanent (γp) strains increase as τc/σ′ov is higher.
- For a constant value of τo/σ′ov and γc, and with a different τc/σ′ov, the number of cycles decreases as τc/σ′ov increases.
- For a constant value of τc/σ′ov and a different τo/σ′ov, the loops of the cycles gradually change their geometry formed by “s” and “s inverted”, for values of τo/σ′ov lower than 10%, to a geometry formed by a concave and a convex curve, for values of τo/σ′ov greater than 10%.
- For a constant value of τc/σ′ov and a different τo/σ′ov, the symmetry of the loops with respect to the origin of the vertical axis is broken; this occurs to the extent that τo/σ′ov increases.
- For a constant value of τc/σ′ov and τo/σ′ov + τc/σ′ov, and a different τc/σ′ov, the relationship between permanent and cyclic strains increased significantly as τo/σ′ov increased. For example, for τo/σ′ov = 5% and τc/σ′ov = 25%, γp/γc = 0.57; while, for τo/σ′ov = 25% and τc/σ′ov = 5%, γp/γc = 64.
- In all cases, when τo/σ′ov = 0 and τo/σ′ov = 5%, at the same number of cycles, cyclic strains are greater than permanent strains.
- According to experimental evidence, there is a threshold value of τo/σ′ov between 5% and 10% for which cyclic strains begin to be less than permanent ones.
- When τc/σ′ov > 5%, at the same sum of τc/σ′ov + τo/σ′ov and with different values of τc/σ′ov and τo/σ′ov, both the cyclic and permanent strains tend to decrease as τo/σ′ov increases.
- Experimental evidence, at least with this particular soil, show that with the sum of τc/σ′ov + τo/σ′ov and with different combinations of τc/σ′ov and τo/σ′ov, the stress-strain behavior changes radically. If the combination (((τo/σ′ov = 5%) + τc/σ′ov = 25%) = 30%) is compared with the combination ((τo/σ′ov = 25%) + (τc/σ′ov = 5%) = 30%). In the first case, 15 cycles are required for the soil to develop large cyclic strains γc = 13% and permanent strains γp = 7% and therefore “sudden failure” occurs, Martínez et al. [2]. In the second case, after 1300 cycles, the cyclic strains γc were barely equal to 0.15% and the permanent strains γp = 9.6%.
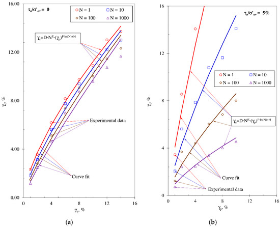
5.4.3. Quantitative Evaluation
6. Conclusions
- Given the placing of the consistency limits of all the samples on the plasticity chart, the deposit was classified as silty clays of low plasticity and low compressibility. From the results of the sedimentation tests (content of fines), it would be equally valid to classify the deposit as clayey silt.
- Both static and cyclic shear stress independently affect the behavior of soils, but even more so the combination of both factors.
- The monotonic shear stresses (τo) applied before cyclic stresses (τc), control the generation of cyclic strains (γc) and permanent strains (γp).
- When τo/σ′ov ≤ 5%, at the same number of cycles, cyclic strains are greater than permanent strains.
- There is a threshold value of τo/σ′ov between 5% and 10% for which the cyclic strains begin to be smaller than the permanent ones.
- Reports in the literature suggest that if the sum of τo plus τc is close to the static strength τmax., the strains will increase cycle by cycle until there is a sudden failure due to cyclic loading, which is characterized by large strains. In the particular case of the present investigation, there was the case when although τo/σ′ov + τc/σ′ov ≈ τmax/σ′ov, sudden failure did not occur and the deformations after 1300 cycles were γp = 3.9% and γc = 0.1%.
- It can, therefore, be claimed that regardless of the magnitude of τo/σ′ov, it is the magnitude of τc/σ′ov that is responsible for “sudden failure”, Martínez et al. [2]; with a small number of cycles (N < 5), large cyclic and permanent strains are thus developed (γc and/or γp > 15%).
- For modeling purposes and for the soil studied in the present research, it is possible to obtain simple empirical relations that approximately enable cyclic strains γc to be correlated with the permanent strains γp and the number of cycles N. In general, for other types of soil, the proposed methodology is applicable, although new adjustment constants are necessary.
Author Contributions
Funding
Acknowledgments
Conflicts of Interest
References
- Patiño, H.; Soriano, A.; González, J. Failure of a soft cohesive soil subjected to combined static and cyclic loading. Soils Found. 2013, 53, 910–922. [Google Scholar] [CrossRef]
- Martínez, E.; Patiño, H.; Galindo, R. Evaluation of the risk of sudden failure of a cohesive soil subjected to cyclic loading. Soil Dyn. Earthq. Eng. 2017, 92, 419–432. [Google Scholar] [CrossRef]
- Seed, H.B.; Chan, C.K. Clay strength under earthquake loading conditions. J. Soil Mech. Found. 1966, 92, 53–78. [Google Scholar]
- Hardin, B.O.; Black, W.L. Vibration modulus of normally consolidated clay. J. Soil Mech. Found. Div. ASCE. 1968, 94, 353–369. [Google Scholar]
- Andersen, K.H. Repeated loading on clay. Summary and interpretation of test results. Res. Proj. NGI. 1975. Internal Report 74037-9. [Google Scholar]
- Idriss, I.M.; Dobry, R.; Singh, R.D. Nonlinear behaviour of soft clays during cyclic loading. J. Geotech. Eng. ASCE 1978, 104, 1427–1447. [Google Scholar]
- Koutsoftas, D.C. Effect of cyclic loads on undrained strength of two marine Clays. J. Geotech. Eng. ASCE 1978, 104, 609–620. [Google Scholar]
- Koutsoftas, D.C.; Fisher, J.A. Dynamic properties of two marine clays. J. Geotech. Eng. ASCE 1980, 106, 645–657. [Google Scholar] [CrossRef]
- Matsui, T.; Ohara, H.; Ito, T. Cyclic Stress-Strain History and Shear Characteristics of Clay. J. Geotech. Eng. Div. ASCE. 1980, 104, 1101–1120. [Google Scholar]
- Kokusho, T.; Yoshida, Y.; Esashi, Y. Dynamic Properties of Soft Clay for Wide Strain range. Soil Found. 1982, 22, 1–18. [Google Scholar] [CrossRef]
- Ansal, A.; Erken, A. Undrained behavior of clay under cyclic shear stresses. J. Geotech. Eng. 1989, 115, 968–983. [Google Scholar] [CrossRef]
- Atkinson, J.H.; Richardson, D.; Stallebrass, S.E. Effect of recent stress history on the stiffness of overconsolidated soil. Geotechnique 1990, 40, 531–540. [Google Scholar] [CrossRef]
- Andersen, K.H.; Hoeg, K. Deformation of Soils and Displacements of Structures subjected to combined static and cyclic loads. In Proceedings of the X ECSMFE, Firenze, Italy, 26–30 May 1991; pp. 1147–1158. [Google Scholar]
- Finno, R.J.; Chung, C.K. Stress-strain strength responses of compressible Chicago glacial clays. J. Geotech. Eng. 1992, 118, 1607–1625. [Google Scholar] [CrossRef]
- Hyodo, M.; Yamamoto, Y.; Sugiyama, M. Undrained cyclic shear behavior of normally consolidated clay subjected to initial static shear stress. Soils Found. 1994, 34, 1–11. [Google Scholar] [CrossRef]
- Jovicic, V.; Coop, M.R. The measurement of stiffness anisotropy in clays with bender element tests in the triaxial apparatus. Geotech. Test. J. 1998, 21, 3–10. [Google Scholar]
- Lings, M.L.; Pennington, D.S.; Nash, D.F.T. Anisotropic stiffness parameters and their measurement in a stiff natural clay. Geotechnique 2000, 50, 109–125. [Google Scholar] [CrossRef]
- Moses, G.G.; Rao, S.N. Degradation in cemented marine clay subjected to cyclic compressive loading. Mar. Georesour. Geotechnol. 2003, 21, 37–62. [Google Scholar] [CrossRef]
- Boulanger, R.W.; Idriss, I.M. Evaluating the Potential for Liquefaction or Cyclic Failure of Silt Sand Clays; University of California: Davis, CA, USA, 2004; p. 131. [Google Scholar]
- Boulanger, R.W.; Idriss, I.M. Liquefaction susceptibility criteria for silts and clay. J. Geotech. Geoenviron. Eng. 2006, 132, 1413–1425. [Google Scholar] [CrossRef]
- Boulanger, R.W.; Idriss, I.M. Evaluation of cyclic softening in silts and clays. J. Geotech. Geoenviron. Eng. 2007, 133, 641–652. [Google Scholar] [CrossRef]
- Soroush, A.; Soltani-Jigheh, H. Pre- and post-cyclic behavior of mixed clayey soils. Can. Geotech. J. 2009, 46, 115–128. [Google Scholar] [CrossRef]
- Patiño, H. Influencia de la Combinación de Tensiones Tangenciales Estáticas y Cíclicas en la Evaluación de Parámetros Dinámicos de un Suelo Cohesivo. Ph.D. Thesis, Universidad Politécnica de Madrid, Madrid, Spain, 2009. [Google Scholar]
- Subramaniam, P.; Banerjee, S. Shear modulus degradation model for cohesive soils. Soil Dyn. Earthq. Eng. 2013, 53, 210–216. [Google Scholar] [CrossRef]
- Tsai, C.; Mejia, L.H.; Meymand, P. A strain-based procedure to estimate strength softening in saturated clays during earthquakes. Soil Dyn. Earthq. Eng. 2014, 66, 191–198. [Google Scholar] [CrossRef]
- El Takch, A.; Sadrekarimi, A.; El Naggar, H. Cyclic resistance and liquefaction behavior of silt and sandy silt soils. Soil Dyn. Earthq. Eng. 2016, 83, 98–109. [Google Scholar] [CrossRef]
- Ukgie, K.; Dongwook, K.; Zhuang, L. Influence of fines content on the undrained cyclic shear strength of sand–clay mixtures. Soil Dyn. Earthq. Eng. 2016, 83, 124–134. [Google Scholar]
- Gu, C.; Wang, J.; Cai, Y.; Sun, L.; Wang, P.; Dong, Q.Y. Deformation characteristics of overconsolidated clay sheared under constant and variable confining pressure. Soils Found. 2016, 56, 427–439. [Google Scholar] [CrossRef]
- Hu, X.; Zhang, Y.; Guo, L.; Wang, J.; Cai, Y.; Fu, H. Cyclic behavior of saturated soft clay under stress path with bidirectional shear stresses. Soil Dyn. Earthq. Eng. 2018, 104, 319–328. [Google Scholar] [CrossRef]
- Cheng, C.; Zhou, Z.; Kong, L.; Zhang, X.; Yin, S. Undrained dynamic behaviour of peaty organic soil under long-term cyclic loading, Part I: Experimental investigation. Soil Dyn. Earthq. Eng. 2018, 107, 279–291. [Google Scholar] [CrossRef]
- Wang, Y.; Lei, J.; Wang, Y.; Lia, S. Post-cyclic shear behavior of reconstituted marine silty clay with different degrees of reconsolidation. Soil Dyn. Earthq. Eng. 2019, 116, 530–540. [Google Scholar] [CrossRef]
- Qian, J.; Li, S.; Zhang, J.; Jiang, J.; Wang, Q. Effects of OCR on monotonic and cyclic behavior of reconstituted Shanghai silty clay. Soil Dyn. Earthq. Eng. 2019, 118, 111–119. [Google Scholar] [CrossRef]
- Likitlersuang, S.; Houlsby, G.T. Predictions of a continuous hyperplasticity model for Bangkok Clay. Geomech. Geoeng. 2007, 2, 147–157. [Google Scholar] [CrossRef]
- Alonso, E.; Gens, A.; Madrid, R. The soft foundation soils of new breakwaters at the Port of Barcelona. In Proceedings of the 14th European Conference on Soil Mechanics and Geotechnical Engineering, Madrid, Spain, 24–27 September 2007. [Google Scholar]
- Controls-group.com. 2020. Available online: http://www.controls-group.com/eng/soil-mechanics-testing-equipment/cyclic-simple-shear.php (accessed on 20 November 2020).
- Bjerrum, L.; Landva, A. Direct Simple-Shear Test on a Norwegian Quick Clay. Géotechnique 1966, 16, 1–20. [Google Scholar] [CrossRef]














| τo/σ′ov (%) | |||||||
|---|---|---|---|---|---|---|---|
| 0 | 5 | 10 | 15 | 20 | 25 | ||
| τc/σ′ov (%) | 25 | 14 | 12 | ||||
| 20 | 15 | 8 | 12 | ||||
| 15 | 16 | 1 | 9 | 12 | |||
| 10 | 1 | 1 | 9 | 12 | |||
| 5 | 8 | 9 | |||||
| Parameter | Unit | No. of Data | Range |
|---|---|---|---|
| Natural unit weight | kN/m3 | 154 | 17.8–21.3 |
| Natural moisture | % | 154 | 15–44 |
| Content of fines | % | 154 | 86–100 |
| D < 2 μ | % | 14 | 14–41 |
| Liquid limit | % | 39 | 24–45 |
| Plastic limit | % | 39 | 16–25 |
| Plasticity index | % | 39 | 6–24 |
| Specific gravity | - | 36 | 2.71–2.80 |
| Mineral | % |
|---|---|
| Calcite | 42 |
| Quartz | 26–36 |
| Chlorite | 11–16 |
| Albite (feldspar) | 7–11 |
| Muscovite (mica) | 4–6 |
| Sample | σ′ov | τc/σ′ov | γo | γp | γc | N |
|---|---|---|---|---|---|---|
| Ident. | kPa | % | % | % | % | Cycles |
| S1A-1 | 277 | 10 | 0.0 | 0.4 | 0.7 | 1310 |
| S1A-1 | 277 | 15 | 0.0 | 5.4 | 15.2 | 258 |
| S1A-2 | 283 | 0.0 | 2.9 | 1.9 | 1300 | |
| S1A-4 | 311 | 0.0 | 20.5 | 18.1 | 339 | |
| S1A-6 | 349 | 0.0 | 12.4 | 15.5 | 1018 | |
| S1A-7 | 366 | 0.0 | 0.9 | 1.7 | 1300 | |
| S1A-8 | 389 | 0.0 | 8.4 | 37.8 | 169 | |
| S1A-10 | 413 | 0.0 | 11.4 | 15.4 | 500 | |
| S2A-1 | 294 | 0.0 | 0.6 | 1.2 | 1300 | |
| S2A-2 | 315 | 0.0 | 7.8 | 14.1 | 166 | |
| S2A-3 | 328 | 0.0 | 17.3 | 54.5 | 674 | |
| S2A-4 | 343 | 0.0 | 6.4 | 14.8 | 227 | |
| S2A-5 | 347 | 0.0 | 2.0 | 13.7 | 197 | |
| S2A-6 | 364 | 0.0 | 2.1 | 13.6 | 1285 | |
| S2A-7 | 373 | 0.0 | 7.9 | 14.2 | 384 | |
| S2A-8 | 384 | 0.0 | 16.7 | 14.5 | 678 | |
| S2A-9 | 401 | 0.0 | 17.8 | 15.2 | 464 | |
| S1A-1 | 277 | 20 | 0.0 | 7.8 | 16.8 | 21 |
| S1A-2 | 283 | 0.0 | 8.5 | 17.6 | 23 | |
| S1A-4 | 311 | 0.0 | 16.5 | 16.3 | 26 | |
| S1A-6 | 349 | 0.0 | 7.8 | 15.2 | 146 | |
| S1A-7 | 366 | 0.0 | 17.4 | 15.3 | 79 | |
| S1A-10 | 413 | 0.0 | 10.8 | 15.1 | 72 | |
| S2A-1 | 294 | 0.0 | 14.4 | 55.0 | 42 | |
| S2A-2 | 315 | 0.0 | 13.0 | 15.0 | 20 | |
| S2A-3 | 328 | 0.0 | 2.2 | 13.2 | 27 | |
| S2A-4 | 343 | 0.0 | 11.6 | 15.3 | 16 | |
| S2A-5 | 347 | 0.0 | 13.3 | 15.6 | 24 | |
| S2A-6 | 364 | 0.0 | 1.7 | 15.3 | 43 | |
| S2A-7 | 373 | 0.0 | 8.0 | 16.1 | 30 | |
| S2A-8 | 384 | 0.0 | 9.0 | 14.1 | 83 | |
| S2A-9 | 401 | 0.0 | 14.5 | 16.5 | 34 | |
| S1A-2 | 283 | 25 | 0.0 | 6.3 | 15.8 | 4 |
| S1A-4 | 311 | 0.0 | 12.7 | 18.7 | 7 | |
| S1A-6 | 349 | 0.0 | 4.3 | 16.3 | 14 | |
| S1A-7 | 366 | 0.0 | 17.3 | 55.9 | 12 | |
| S1A-10 | 413 | 0.0 | 8.9 | 17.8 | 15 | |
| S2A-1 | 294 | 0.0 | 10.8 | 15.0 | 12 | |
| S2A-2 | 315 | 0.0 | 2.2 | 16.3 | 5 | |
| S2A-3 | 328 | 0.0 | 9.6 | 14.5 | 6 | |
| S2A-4 | 343 | 0.0 | 13.4 | 16.4 | 8 | |
| S2A-5 | 347 | 0.0 | 7.1 | 18.3 | 9 | |
| S2A-6 | 364 | 0.0 | 5.5 | 12.0 | 28 | |
| S2A-7 | 373 | 0.0 | 4.2 | 14.6 | 18 | |
| S2A-8 | 384 | 0.0 | 10.5 | 14.2 | 18 | |
| S2A-9 | 401 | 0.0 | 8.7 | 17.8 | 13 |
| Sample | σ′ov | τc/σ′ov | γo | γp | γc | N |
|---|---|---|---|---|---|---|
| Ident. | kPa | % | % | % | % | Cycles |
| S1A-10 | 413 | 15 | 0.2 | 0.1 | 5.4 | 337 |
| S1A-10 | 413 | 20 | 0.7 | 9.0 | 11.6 | 55 |
| S2A-1 | 294 | 0.6 | 9.9 | 28.7 | 32 | |
| S2A-4 | 343 | 0.6 | 2.7 | 15.1 | 42 | |
| S2A-5 | 347 | 0.3 | 2.2 | 10.8 | 28 | |
| S2A-6 | 364 | 0.7 | 10.8 | 7.4 | 172 | |
| S2A-7 | 373 | 0.6 | 11.7 | 7.4 | 167 | |
| S2A-8 | 384 | 0.6 | 7.2 | 13.0 | 63 | |
| S2A-9 | 401 | 1.0 | 8.8 | 12.0 | 16 | |
| S1A-4 | 311 | 25 | 0.8 | 8.1 | 29.8 | 5 |
| S1A-6 | 349 | 0.4 | 13.2 | 14.5 | 14 | |
| S1A-10 | 413 | 0.6 | 7.3 | 12.9 | 15 | |
| S2A-1 | 294 | 0.2 | 1.3 | 84.8 | 8 | |
| S2A-2 | 315 | 0.6 | 3.0 | 16.9 | 5 | |
| S2A-3 | 328 | 0.2 | 8.5 | 17.1 | 11 | |
| S2A-4 | 343 | 0.6 | 0.7 | 15.1 | 7 | |
| S2A-5 | 347 | 0.7 | 4.8 | 10.1 | 8 | |
| S2A-6 | 364 | 0.7 | 4.6 | 6.2 | 58 | |
| S2A-7 | 373 | 0.7 | 3.4 | 14.6 | 15 | |
| S2A-8 | 384 | 0.7 | 3.2 | 14.7 | 26 | |
| S2A-9 | 401 | 0.8 | 9.3 | 17.3 | 13 |
| Sample | σ′ov | τc/σ′ov | γo | γp | γc | N |
|---|---|---|---|---|---|---|
| Ident. | kPa | % | % | % | % | Cycles |
| S1A-1 | 277 | 10 | 1.1 | 2.6 | 2.4 | 1300 |
| S1A-1 | 277 | 15 | 1.3 | 18.0 | 3.5 | 18 |
| S1A-6 | 349 | 0.4 | 6.3 | 1.8 | 1300 | |
| S1A-10 | 413 | 1.1 | 17.8 | 6.5 | 87 | |
| S2A-1 | 294 | 1.2 | 15.3 | 5.0 | 96 | |
| S2A-4 | 343 | 1.7 | 17.2 | 7.0 | 139 | |
| S2A-5 | 347 | 0.9 | 14.9 | 5.5 | 686 | |
| S2A-6 | 364 | 0.9 | 11.2 | 2.4 | 120 | |
| S2A-7 | 373 | 0.9 | 16.6 | 5.7 | 251 | |
| S2A-8 | 384 | 1.2 | 16.3 | 4.8 | 367 | |
| S1A-4 | 311 | 20 | 1.0 | 15.5 | 8.3 | 11 |
| S1A-6 | 349 | 0.8 | 16.8 | 8.9 | 31 | |
| S1A-7 | 366 | 1.2 | 20.4 | 10.9 | 11 | |
| S1A-10 | 413 | 1.4 | 15.5 | 7.7 | 28 | |
| S2A-1 | 294 | 1.0 | 14.6 | 6.1 | 39 | |
| S2A-2 | 315 | 1.3 | 11.9 | 6.4 | 6 | |
| S2A-3 | 328 | 1.1 | 11.5 | 6.6 | 20 | |
| S2A-4 | 343 | 1.5 | 15.8 | 7.9 | 5 | |
| S2A-6 | 364 | 0.9 | 8.9 | 4.6 | 12 | |
| S2A-7 | 373 | 1.2 | 12.7 | 10.8 | 31 | |
| S2A-8 | 384 | 0.7 | 15.6 | 7.6 | 42 | |
| S2A-9 | 401 | 1.4 | 18.2 | 7.9 | 10 |
| Sample | σ′ov | τc/σ′ov | γo | γp | γc | N |
|---|---|---|---|---|---|---|
| Ident. | kPa | % | % | % | % | Cycles |
| S1A-1 | 277 | 10 | 1.5 | 17.4 | 1.1 | 1000 |
| S1A-6 | 349 | 1.3 | 8.0 | 0.5 | 1300 | |
| S1A-10 | 413 | 1.7 | 10.5 | 0.6 | 1300 | |
| S2A-1 | 294 | 1.3 | 7.4 | 0.5 | 1300 | |
| S2A-4 | 343 | 2.6 | 6.8 | 0.4 | 1200 | |
| S2A-5 | 347 | 1.8 | 7.6 | 0.5 | 1300 | |
| S2A-6 | 364 | 1.7 | 9.8 | 0.5 | 1300 | |
| S2A-7 | 373 | 1.5 | 9.4 | 0.5 | 1300 | |
| S2A-8 | 384 | 1.4 | 7.0 | 0.5 | 1300 | |
| S1A-4 | 311 | 15 | 1.4 | 6.6 | 3.2 | 1300 |
| S1A-6 | 349 | 1.7 | 17.2 | 1.9 | 1300 | |
| S1A-7 | 366 | 1.4 | 13.3 | 8.7 | 25 | |
| S1A-10 | 413 | 1.5 | 15.5 | 2.2 | 1300 | |
| S2A-1 | 294 | 1.5 | 15.4 | 2.0 | 98 | |
| S2A-2 | 315 | 1.7 | 21.0 | 1.9 | 17 | |
| S2A-4 | 343 | 1.2 | 18.4 | 1.6 | 60 | |
| S2A-5 | 347 | 1.5 | 17.7 | 1.3 | 48 | |
| S2A-6 | 364 | 1.5 | 16.2 | 2.3 | 78 | |
| S2A-7 | 373 | 1.5 | 16.5 | 1.9 | 99 | |
| S2A-8 | 384 | 1.1 | 16.0 | 1.3 | 86 | |
| S2A-9 | 401 | 1.6 | 20.7 | 1.6 | 30 |
| Sample | σ′ov | τc/σ′ov | γo | γp | γc | N |
|---|---|---|---|---|---|---|
| Ident. | kPa | % | % | % | % | Cycles |
| S1A-1 | 277 | 5 | 1.9 | 4.4 | 0.1 | 1300 |
| S1A-10 | 413 | 2.0 | 4.1 | 0.1 | 1300 | |
| S2A-3 | 328 | 1.7 | 3.3 | 0.1 | 1300 | |
| S2A-4 | 343 | 2.1 | 4.0 | 0.1 | 1300 | |
| S2A-5 | 347 | 2.4 | 6.0 | 0.1 | 1300 | |
| S2A-6 | 364 | 1.8 | 3.6 | 0.1 | 1300 | |
| S2A-7 | 373 | 1.7 | 6.1 | 0.2 | 1301 | |
| S2A-8 | 384 | 2.2 | 4.8 | 0.1 | 1300 | |
| S1A-2 | 283 | 10 | 2.2 | 19.4 | 0.6 | 119 |
| S1A-4 | 311 | 1.9 | 18.8 | 0.6 | 236 | |
| S1A-6 | 349 | 2.4 | 15.0 | 0.5 | 1300 | |
| S1A-10 | 413 | 2.3 | 13.0 | 0.5 | 1300 | |
| S2A-2 | 315 | 2.5 | 20.1 | 0.5 | 99 | |
| S2A-3 | 328 | 1.9 | 12.5 | 0.5 | 1300 | |
| S2A-4 | 343 | 2.3 | 14.3 | 0.5 | 1300 | |
| S2A-5 | 347 | 3.6 | 19.7 | 0.4 | 96 | |
| S2A-6 | 364 | 2.1 | 10.7 | 0.4 | 1300 | |
| S2A-7 | 373 | 2.8 | 20.4 | 0.5 | 98 | |
| S2A-8 | 384 | 1.8 | 15.2 | 0.4 | 1300 | |
| S2A-9 | 401 | 2.0 | 20.9 | 0.6 | 24 |
| Sample | σ′ov | τc/σ′ov | γo | γp | γc | N |
|---|---|---|---|---|---|---|
| Ident. | kPa | % | % | % | % | Cycles |
| S1A-4 | 311 | 5 | 3.6 | 11.0 | 0.1 | 1117 |
| S1A-6 | 349 | 5.1 | 11.6 | 0.2 | 387 | |
| S1A-10 | 413 | 4.0 | 9.6 | 0.2 | 1300 | |
| S2A-3 | 328 | 2.6 | 6.5 | 0.1 | 1300 | |
| S2A-4 | 343 | 3.3 | 9.0 | 0.1 | 1300 | |
| S2A-5 | 347 | 4.4 | 13.5 | 0.1 | 1300 | |
| S2A-6 | 364 | 3.0 | 7.1 | 0.1 | 1300 | |
| S2A-7 | 373 | 4.1 | 15.1 | 0.2 | 1300 | |
| S2A-8 | 384 | 3.9 | 10.9 | 0.2 | 1300 |
| γp, % | N | τo/σ′ov = 0% | τo/σ′ov = 5% | τo/σ′ov = 10% | τo/σ′ov = 15% | τo/σ′ov = 20% |
|---|---|---|---|---|---|---|
| γC, % | γC, % | γC, % | γC, % | γC, % | ||
| 1 | 1 | 2.32 | 3.44 | 1.01 | ||
| 2 | 1 | 3.56 | 8.56 | 1.52 | 0.63 | 0.22 |
| 4 | 1 | 6.19 | 14.08 | 2.54 | 1.47 | 0.43 |
| 6 | 1 | 8.17 | 19.31 | 3.55 | 1.56 | 0.44 |
| 8 | 1 | 9.74 | 19.79 | 4.92 | 1.89 | 0.51 |
| 10 | 1 | 10.90 | 24.83 | 5.73 | 1.72 | 0.51 |
| 12 | 1 | 13.02 | 6.44 | 1.76 | 0.55 | |
| 14 | 1 | 13.73 | 8.50 | 1.75 | 0.58 | |
| 1 | 10 | 1.86 | 2.05 | 0.58 | ||
| 2 | 10 | 3.16 | 5.61 | 1.01 | 0.12 | 0.03 |
| 4 | 10 | 5.63 | 7.87 | 1.80 | 0.57 | 0.27 |
| 6 | 10 | 7.75 | 10.80 | 2.69 | 0.90 | 0.41 |
| 8 | 10 | 9.40 | 11.63 | 3.55 | 1.19 | 0.47 |
| 10 | 10 | 10.45 | 14.10 | 4.37 | 1.51 | 0.49 |
| 12 | 10 | 12.22 | 5.20 | 1.54 | 0.52 | |
| 14 | 10 | 13.00 | 6.84 | 1.55 | 0.55 | |
| 1 | 100 | 1.49 | 1.22 | 0.33 | ||
| 2 | 100 | 2.80 | 3.68 | 0.67 | 0.02 | 0.00 |
| 4 | 100 | 5.12 | 4.41 | 1.27 | 0.22 | 0.17 |
| 6 | 100 | 7.36 | 6.04 | 2.04 | 0.52 | 0.38 |
| 8 | 100 | 9.07 | 6.84 | 2.56 | 0.75 | 0.43 |
| 10 | 100 | 10.02 | 8.01 | 3.34 | 1.33 | 0.47 |
| 12 | 100 | 11.46 | 4.20 | 1.35 | 0.50 | |
| 14 | 100 | 12.32 | 5.51 | 1.38 | 0.52 | |
| 1 | 1000 | 1.19 | 0.73 | 0.19 | ||
| 2 | 1000 | 2.48 | 2.42 | 0.45 | 0.00 | 0.00 |
| 4 | 1000 | 4.66 | 2.47 | 0.90 | 0.09 | 0.11 |
| 6 | 1000 | 6.99 | 3.38 | 1.54 | 0.30 | 0.36 |
| 8 | 1000 | 8.75 | 4.02 | 1.85 | 0.48 | 0.40 |
| 10 | 1000 | 9.62 | 4.55 | 2.54 | 1.17 | 0.45 |
| 12 | 1000 | 10.75 | 3.40 | 1.18 | 0.48 | |
| 14 | 1000 | 11.67 | 4.43 | 1.22 | 0.49 |
| τo/σ′ov | D | E | F | H |
|---|---|---|---|---|
| 0 | 2.310 | −0.082 | 0.027 | 0.687 |
| 5 | 4.082 | −0.209 | −0.017 | 0.819 |
| 10 | 0.917 | −0.229 | 0.052 | 0.797 |
| 15 | 0.580 | −0.938 | 0.362 | 0.481 |
| 20 | 0.190 | −0.930 | 0.394 | 0.452 |
Publisher’s Note: MDPI stays neutral with regard to jurisdictional claims in published maps and institutional affiliations. |
© 2020 by the authors. Licensee MDPI, Basel, Switzerland. This article is an open access article distributed under the terms and conditions of the Creative Commons Attribution (CC BY) license (http://creativecommons.org/licenses/by/4.0/).
Share and Cite
Patiño, H.; Galindo, R.; Olalla Marañón, C. Cyclic and Permanent Shear Strains of a Soft Cohesive Soil Subjected to Combined Static and Cyclic Loading. Appl. Sci. 2020, 10, 8433. https://doi.org/10.3390/app10238433
Patiño H, Galindo R, Olalla Marañón C. Cyclic and Permanent Shear Strains of a Soft Cohesive Soil Subjected to Combined Static and Cyclic Loading. Applied Sciences. 2020; 10(23):8433. https://doi.org/10.3390/app10238433
Chicago/Turabian StylePatiño, Hernán, Rubén Galindo, and Claudio Olalla Marañón. 2020. "Cyclic and Permanent Shear Strains of a Soft Cohesive Soil Subjected to Combined Static and Cyclic Loading" Applied Sciences 10, no. 23: 8433. https://doi.org/10.3390/app10238433
APA StylePatiño, H., Galindo, R., & Olalla Marañón, C. (2020). Cyclic and Permanent Shear Strains of a Soft Cohesive Soil Subjected to Combined Static and Cyclic Loading. Applied Sciences, 10(23), 8433. https://doi.org/10.3390/app10238433

