Deformation Characteristics of an Ultra-Deep Foundation Pit Supported by Servo Steel Struts in Reclaimed Areas
Abstract
1. Introduction
2. Project Overview
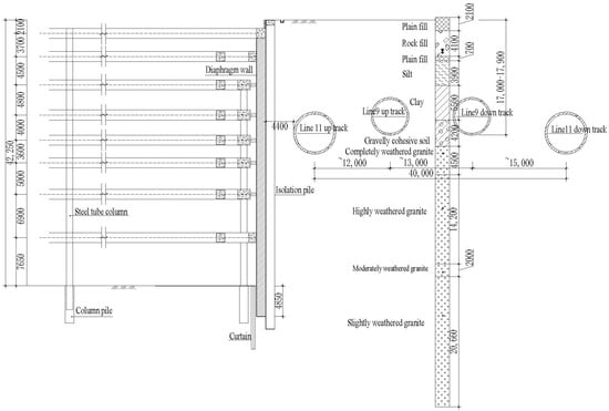
2.1. Site Description
2.2. Engineering Geology Conditions and Supporting System
2.3. Construction Procedure
2.4. Instrumentation and Monitoring
3. Result and Analysis
3.1. Horizontal Displacement of the Diaphragm Walls
3.2. Ground Surface Settlement
3.3. Vertical Displacement for Columns and Diaphragm Walls
3.4. Pipeline Settlement
3.5. Horizontal and Vertical Displacement for the Metro Tunnels
4. Discussion
4.1. Phased Analysis of Metro Tunnel Deformation
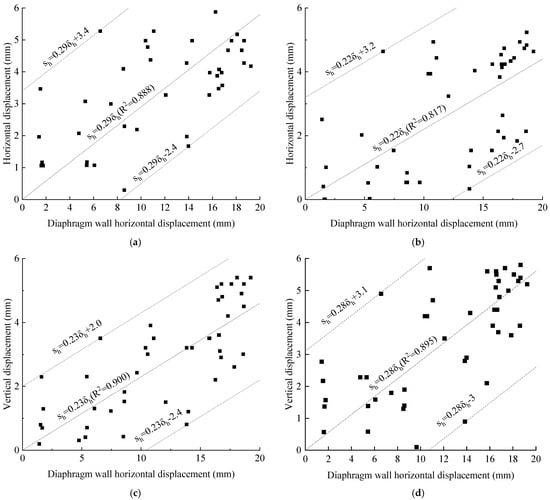
4.2. Displacement Relationship Between the Metro Tunnel and Diaphragm Wall
5. Conclusions
- The protective trenching effect of the isolation piles and jet-grouted piles significantly reduced soil disturbance during diaphragm wall trenching. This resulted in low levels of surrounding ground settlement and metro tunnel settlement induced during the retaining structure construction phase, with minimal impact on tunnel horizontal displacement. The deformation increment of adjacent metro tunnels caused by Stages 7–8 (excavation depth approximately 10–20 m) was the most significant in adjacent metro tunnels. Excavation caused tunnel heave when the depth was less than the tunnel’s buried depth. The incremental deformation peaked when the excavation depth approached the tunnel’s buried depth, and its rate of increase significantly diminished beyond 20 m.
- Field measurements from this project demonstrate the superior performance of servo steel struts over conventional struts in controlling ultra-deep foundation pit deformation. Due to their active axial force compensation mechanism, the maximum horizontal displacement of the diaphragm wall in the servo steel strut section was 24% less than in the conventional section. Ground surface settlement was reduced by 29%, pipeline settlement by 46%, and the maximum metro tunnel deformation was limited to 5.4 mm, well within the stringent 10 mm safety threshold. The distinct “inflection” characteristic of the servo-side diaphragm wall, contrasting with the “smooth” curve on the conventional side, reflects the local displacement-restoring effect of active support. A slight rebound in metro tunnel deformation occurred during Stages 9–10 due to the servo steel struts compensation mechanism.
- The significant rheological properties of artificial fill and soft soil in reclaimed areas result in notable time-dependent effects on foundation pit deformation. During the construction suspension period, metro tunnel deformation accounted for up to 29% of the total displacement, with tunnels closer to the foundation pit exhibiting more pronounced time-dependent effects. Therefore, timely support after excavation is crucial to reduce unsupported exposure time. Following excavation completion, the base slab should be poured and the substructure constructed in a timely manner to mitigate the amplification of time-dependent effects caused by prolonged construction activities. The corner effect of the foundation pit is significant, with surface settlement, pipeline settlement, and metro tunnel deformation near the corner being substantially smaller than those near the mid-span section. Beyond 10 m from the corner, tunnel deformation characteristics gradually approach a plane strain state.
- This paper proposes a deformation envelope prediction model for metro tunnels in ultra-deep foundation pits in reclaimed areas. The fitting analysis results indicate strong linear relationships between both the horizontal and vertical displacements of the metro tunnel and the horizontal displacement of the diaphragm wall, with monitoring data generally distributed within a specific range. Based on this pattern, the upper and lower bounds of the linear relationship envelope are further defined, establishing clear boundaries for tunnel deformation prediction. For similar ultra-deep foundation pit projects in reclaimed areas, the proposed envelope prediction formula can be used to preliminarily quantify the impact of excavation on adjacent metro tunnel deformation. This provides a practical pre-assessment basis and technical support for optimizing support schemes during the early project stages and early warning of tunnel deformation during construction.
- This research validated the applicability of servo steel struts in ultra-deep foundation pits within reclaimed areas. By optimizing the original design through the application of servo steel struts, the project effectively shortened the construction schedule and reduced costs while demonstrating superior deformation control capabilities for the retaining structure, surrounding pipelines, and metro tunnels. In addition to the application of servo steel struts, comprehensive measures such as bottom-sealed diaphragm walls, isolation piles, grouting curtains, and timely support after excavation can be used to reduce the adverse impact on the surrounding environment during foundation pit construction and ensure the smooth implementation of ultra-deep foundation pit projects in reclaimed areas.
Author Contributions
Funding
Data Availability Statement
Acknowledgments
Conflicts of Interest
References
- Xu, B.; Feng, G.; Li, Z.; Wang, Q.; Wang, C.; Xie, R. Coastal subsidence monitoring associated with land reclamation using the point target based SBAS-InSAR method: A case study of Shenzhen, China. Remote Sens. 2016, 8, 652. [Google Scholar] [CrossRef]
- He, Y.; Xu, G.; Kaufmann, H.; Wang, J.; Ma, H.; Liu, T. Integration of InSAR and LiDAR Technologies for a Detailed Urban Subsidence and Hazard Assessment in Shenzhen, China. Remote Sens. 2021, 13, 2366. [Google Scholar] [CrossRef]
- Sharma, J.; Hefny, A.; Zhao, J.; Chan, C. Effect of large excavation on deformation of adjacent MRT tunnels. Tunn. Undergr. Space Technol. 2001, 16, 109–117. [Google Scholar] [CrossRef]
- Tan, Y.; Lu, Y. Responses of shallowly buried pipelines to adjacent deep excavations in Shanghai soft ground. J. Pipeline Syst. Eng. Pract. 2018, 9, 05018002. [Google Scholar] [CrossRef]
- Bovolenta, R.; Brencich, A. Effect of deep excavations and deformable retaining structures on neighboring buildings: A case study. Eng. Fail. Anal. 2021, 128, 105269. [Google Scholar] [CrossRef]
- Song, D.; Chen, Z.; Dong, L.; Tang, G.; Zhang, K.; Wang, H. Monitoring analysis of influence of extra-large complex deep foundation pit on adjacent environment: A case study of Zhengzhou City, China. Geomat. Nat. Hazards Risk 2020, 11, 2036–2057. [Google Scholar] [CrossRef]
- Chen, Y.; Jia, P.J.; Ji, X.B. Investigation into the performance of a covered top-down pit-in-pit deep excavation in Shenzhen soil-rock mixed strata. Arab. J. Sci. Eng. 2021, 46, 10419–10437. [Google Scholar] [CrossRef]
- Liang, R.; Wu, J.; Sun, L.; Shen, W.; Wu, W. Performances of adjacent metro structures due to zoned excavation of a large-scale basement in soft ground. Tunn. Undergr. Space Technol. 2021, 117, 104123. [Google Scholar] [CrossRef]
- Peng, T.; Ren, D.; Kang, C.; Liu, H.; Xue, P.; Huang, H. Deformation characteristics of soft soil induced by deep excavation and its impact on adjacent tunnels: A case study in Shanghai. KSCE J. Civ. Eng. 2024, 28, 1715–1728. [Google Scholar] [CrossRef]
- Wang, C.; Liang, R.; Wu, J.; Li, Z.; Ding, Z.; Wu, W. Performances of shield-driven tunnels subjected to excavation of a large-scale basement in soft soils. Int. J. Geomech. 2024, 24, 05023014. [Google Scholar] [CrossRef]
- Ni, X.; Lu, J.; Wang, Y.; Shi, J.; Chen, W.; Tang, L. Field investigation of the influence of dewatering and basement excavation on ground and structure responses. Tunn. Undergr. Space Technol. 2021, 117, 104121. [Google Scholar] [CrossRef]
- Nicotera, M.V.; Russo, G. Monitoring a deep excavation in pyroclastic soil and soft rock. Tunn. Undergr. Space Technol. 2021, 117, 104130. [Google Scholar] [CrossRef]
- Li, M.G.; Demeijer, O.; Chen, J.J. Effectiveness of servo struts in controlling excavation-induced wall deflection and ground settlement. Acta Geotech. 2020, 15, 2575–2590. [Google Scholar] [CrossRef]
- Nangulama, H.K.; Zhou, J. Deformation control monitoring of basement excavation at field construction site: A case of hydraulic servo steel enhancement geotechnology. Adv. Civ. Eng. 2022, 2022, 6234581. [Google Scholar] [CrossRef]
- Zhao, P.; Qiu, Y.; Liu, F.; Wang, Z.; Guo, P. Investigation on performance of steel strut servo system braced deep excavation adjacent to existing buildings: A case study. Sci. Rep. 2025, 15, 37550. [Google Scholar] [CrossRef]
- Di, H.; Jin, Y.; Zhou, S.; Wu, D. A hybrid method to determine optimal design axial forces of servo steel struts in excavations with high deformation requirements. Eng. Comput. 2023, 40, 997–1015. [Google Scholar] [CrossRef]
- Li, M.-G.; Xiao, Q.-Z.; Liu, N.-W.; Chen, J.-J. Predicting wall deflections for deep excavations with servo struts in soft clay. J. Geotech. Geoenviron. Eng. 2024, 150, 04024001. [Google Scholar] [CrossRef]
- Hu, H.; Hu, X.; Gong, X. Predicting the strut forces of the steel supporting structure of deep excavation considering various factors by machine learning methods. Undergr. Space 2024, 18, 114–129. [Google Scholar] [CrossRef]
- Chen, B.; Yan, T.; Song, D.; Luo, R.; Zhang, G. Experimental investigations on a deep excavation support system with adjustable strut length. Tunn. Undergr. Space Technol. 2021, 115, 104046. [Google Scholar] [CrossRef]
- Di, H.; Jin, Y.; Zhou, S.; Zhang, X.; Wu, D.; Guo, H. Experimental study on the adjustments of servo steel struts in deep excavations. Acta Geotech. 2023, 18, 6615–6629. [Google Scholar] [CrossRef]
- Di, H.; Guo, H.; Zhou, S.; Chen, J.; Wen, L. Investigation of the axial force compensation and deformation control effect of servo steel struts in a deep foundation pit excavation in soft clay. Adv. Civ. Eng. 2019, 2019, 5476354. [Google Scholar] [CrossRef]
- Li, H.; Tang, Y.; Liao, S.; Shen, M. Structural response and preservation of historic buildings adjacent to oversized deep excavation. J. Perform. Constr. Facil. 2021, 35, 04021095. [Google Scholar] [CrossRef]
- Nangulama, H.K.; Jian, Z.; Xiao, Z.; Zhu, J.-C.; Yuan, F.-F. Stage-by-stage control effect field analysis of steel material servo enhanced support system on lateral displacement and bending moment during deep basement excavation. Case Stud. Constr. Mater. 2022, 16, e01068. [Google Scholar] [CrossRef]
- Plant, G.W.; Covil, C.S.; Hughes, R.A. Site Preparation for the New Hong Kong International Airport—The Design, Construction and Performance of the Airport Platform; Thomas Telford: London, UK, 1998. [Google Scholar]
- Jiang, L.; Lin, H. Integrated analysis of SAR interferometric and geological data for investigating long-term reclamation settlement of Chek Lap Kok Airport, Hong Kong. Eng. Geol. 2010, 110, 77–92. [Google Scholar] [CrossRef]
- Yu, Q.; Wang, Q.; Yan, X.; Yang, T.; Song, S.; Yao, M.; Zhou, K.; Huang, X. Ground deformation of the Chongming East Shoal Reclamation Area in Shanghai based on SBAS-InSAR and laboratory tests. Remote Sens. 2020, 12, 1016. [Google Scholar] [CrossRef]
- Li, D.; Li, B.; Zhang, Y.; Fan, C.; Xu, H.; Hou, X. Spatial and temporal characteristics analysis for land subsidence in Shanghai coastal reclamation area using PS-InSAR method. Front. Mar. Sci. 2022, 9, 1000523. [Google Scholar] [CrossRef]
- Park, K.; Kim, Y.J.; Chen, J.; Nam, B.H. InSAR-based investigation of ground subsidence due to excavation: A case study of Incheon City, South Korea. Int. J. Geo-Eng. 2024, 15, 26. [Google Scholar] [CrossRef]
- Ma, F.; Li, S.; Wang, Q. Study on the impact of deep foundation excavation of reclaimed land on the deformation of adjacent subway tunnels. Buildings 2024, 14, 1771. [Google Scholar] [CrossRef]
- Shenzhen Municipal Government. Shenzhen Sustainable Development Plan (2017–2030); Shenzhen Municipal Government: Shenzhen, China, 2017.
- Wang, S.; Xu, L.; Zhang, X.; Long, L.; Zhuang, X. Development and Field Analysis of a Novel Servo Concrete Bracing System for Deep Foundation Pit Excavation. Buildings 2024, 14, 1674. [Google Scholar] [CrossRef]
- Zuo, R.Y.; Huang, T.H. Practice and Discussion on Deformation Control Design of Deep Foundation Pits for Buildings in Shenzhen. In Proceedings of the 2018 West Lake Forum on Geotechnical Engineering, Hangzhou, China, 27 October 2018; pp. 220–239. [Google Scholar]
- Roboski, J.; Finno, R.J. Distributions of ground movements parallel to deep excavations in clay. Can. Geotech. J. 2006, 43, 43–58. [Google Scholar] [CrossRef]
- Moormann, C. Analysis of Wall and Ground Movements Due to Deep Excavations in Soft Soil Based on a New Worldwide Database. Soils Found. 2004, 44, 87–98. [Google Scholar] [CrossRef]
- Finno, R.J.; Blackburn, J.T.; Roboski, J.F. Three-dimensional effects for supported excavations in clay. J. Geotech. Geoenviron. Eng. 2007, 133, 30–36. [Google Scholar] [CrossRef]
- Hsieh, P.G.; Ou, C.Y. Shape of ground surface settlement profiles caused by excavation. Can. Geotech. J. 1998, 35, 1004–1017. [Google Scholar] [CrossRef]
- Shenzhen Metro Group Co., Ltd. Measures for the Management of Works in Metro Operation Safety Protection Zones and Construction Planning Control Zones (2018 Edition); Shenzhen Metro Group Co., Ltd.: Shenzhen, China, 2018. [Google Scholar]
- Liu, K.; Xu, X.B.; Hu, Q.; Bin Zeng, L.; Wang, J.C. 1 g Model Test on the Use of Isolation Piles for Tunnel Protection Adjacent to Soft Soil Excavation. Transp. Geotech. 2022, 35, 100790. [Google Scholar] [CrossRef]
- Harahap, S.E.; Ou, C.Y. Finite element analysis of time-dependent behavior in deep excavations. Comput. Geotech. 2020, 119, 103300. [Google Scholar] [CrossRef]
- Zhou, L.; Liu, S.; Li, J.; Pan, Y.; Wang, C.; Huang, L.; Huang, L. Investigating surface deformation and its intrinsic mechanism in Shenzhen, China using Sentinel-1A SAR imagery. Earth Space Sci. 2023, 10, e2023EA002905. [Google Scholar] [CrossRef]
- Chen, G.; Zhang, X.H.; Zhang, S.J.; Huang, F.; Xiao, H.; Ma, H.Z.; Luo, L.N.; Bao, H. Response Monitoring and Analysis in Deep Foundation Pit Excavation: A Case Study in Soft Soil at Subway Tunnel Intersections. Buildings 2023, 13, 1286. [Google Scholar] [CrossRef]


















| Soil Layer | ρ/g·cm−3 | E/MPa | μ | C/kPa | φ/° |
|---|---|---|---|---|---|
| Plain fill | 1.94 | 4 | 0.36 | 26 | 15 |
| Rock fill | 1.98 | 13 | 0.33 | 0 | 30 |
| Silt | 1.67 | 2.5 | 0.44 | 14 | 12 |
| Clay | 1.97 | 11 | 0.30 | 31 | 22 |
| Gravelly cohesive soil | 1.83 | 25 | 0.29 | 25 | 16 |
| Completely weathered granite | 1.85 | 61 | 0.28 | 15 | 26 |
| Highly weathered granite | 2.06 | 140 | 0.26 | 34 | 30 |
| Moderately weathered granite | 2.54 | 3000 | 0.24 | 3000 | 49 |
| Slightly weathered granite | 2.64 | 25,000 | 0.22 | 4500 | 58 |
| Stages | Construction Activities | Completion Date |
|---|---|---|
| Stage1 | retaining system installation | 23 January 2019 |
| Stage2 | Construction of grouting curtain | 22 September 2019 |
| Stage3 | Construction of foundation piles | 13 June 2020 |
| Stage4 | Excavate to level −2.2 m and install the 1st level of strut | 21 August 2020 |
| Stage5 | Excavate to level −5.9 m and install the 2nd level of strut | 24 September 2020 |
| Stage6 | Excavate to level −10.4 m and install the 3rd level of strut | 28 October 2020 |
| Stage7 | Excavate to level −15.2 m and install the 4th level of strut | 28 November 2020 |
| Stage8 | Excavate to level −19.2 m and install the 5th level of strut | 24 December 2020 |
| Stage9 | Excavate to level −22.2 m and install the 6th level of strut | 24 January 2021 |
| Stage10 | Excavate to level −27.8 m and install the 7th level of strut | 14 February 2021 |
| Stage11 | Excavate to level −34.9 m and install the 8th level of strut | 17 May 2021 |
| Stage12 | Excavate to level −42.35 m | 15 August 2021 |
| Horizontal Displacement of Line 11 Up Track | Horizontal Displacement of Line 9 Up Track | Vertical Displacement of Line 11 Up Track | Vertical Displacement of Line 9 Up Track | |
|---|---|---|---|---|
| Upper bound | ||||
| Lower bound |
Disclaimer/Publisher’s Note: The statements, opinions and data contained in all publications are solely those of the individual author(s) and contributor(s) and not of MDPI and/or the editor(s). MDPI and/or the editor(s) disclaim responsibility for any injury to people or property resulting from any ideas, methods, instructions or products referred to in the content. |
© 2025 by the authors. Licensee MDPI, Basel, Switzerland. This article is an open access article distributed under the terms and conditions of the Creative Commons Attribution (CC BY) license (https://creativecommons.org/licenses/by/4.0/).
Share and Cite
Cai, J.; Li, Y.; Wu, Z.; Peng, B.; Hu, Y. Deformation Characteristics of an Ultra-Deep Foundation Pit Supported by Servo Steel Struts in Reclaimed Areas. Buildings 2025, 15, 4044. https://doi.org/10.3390/buildings15224044
Cai J, Li Y, Wu Z, Peng B, Hu Y. Deformation Characteristics of an Ultra-Deep Foundation Pit Supported by Servo Steel Struts in Reclaimed Areas. Buildings. 2025; 15(22):4044. https://doi.org/10.3390/buildings15224044
Chicago/Turabian StyleCai, Junming, Yunan Li, Ze Wu, Bin Peng, and Yong Hu. 2025. "Deformation Characteristics of an Ultra-Deep Foundation Pit Supported by Servo Steel Struts in Reclaimed Areas" Buildings 15, no. 22: 4044. https://doi.org/10.3390/buildings15224044
APA StyleCai, J., Li, Y., Wu, Z., Peng, B., & Hu, Y. (2025). Deformation Characteristics of an Ultra-Deep Foundation Pit Supported by Servo Steel Struts in Reclaimed Areas. Buildings, 15(22), 4044. https://doi.org/10.3390/buildings15224044

