You are currently viewing a new version of our website. To view the old version click .
Buildings
  • Article
  • Open Access

2 October 2025

Research and Application of Assembled SC Coal Gangue External Wallboard

,
,
,
,
and
1
Shanxi University of Electronic Science and Technology, Linfen 041000, China
2
College of Civil Engineering, Taiyuan University of Technology, Taiyuan 030024, China
3
Shanxi Static Traffic Construction and Operation Co., Ltd., Taiyuan 030032, China
4
Shanxi Steel Science & Industry Co., Ltd., Taiyuan 030401, China
This article belongs to the Section Building Structures

Abstract

Given that the stock of coal gangue is increasing annually, and especially considering the problem of resource utilization after the spontaneous combustion of coal gangue accumulations with large thickness, the post-spontaneous combustion of coal gangue (SC coal gangue) from Yangquan, Shanxi, was selected as a research object. After crushing and screening, SC coal gangue was used as a coarse and fine aggregate, and through concrete mix design and a trial mix of concrete and mix ratio adjustment, concrete of strength grade C20 was obtained. Through experiments, the strength, elastic modulus, frost resistance, carbonation depth and other performance indicators of the concrete were measured. Using the SC coal gangue concrete, a 20 mm thick SC coal gangue panel was designed and manufactured. Through experimental tests, the bearing capacity, hanging force, impact resistance, impermeability and other properties of the board met the requirements of the relevant standards for building wallboard. For the SC coal gangue panel composite rock wool, its heat transfer coefficient decreased by 34.0%, air sound insulation was 45   d B , and the self-weight of the external wallboard was reduced by 37.5%, so the related performance was better than the requirements of the current standard. The research results have been successfully applied to an office building project in Shanxi, China. Using SC coal gangue to make the external wallboard of the building, the reduction and recycling of solid waste are realized. In addition, the production of wall panels has been industrialized, thereby improving the construction efficiency.

1. Introduction

For provinces with large coal production in China, the production of coal gangue as solid waste has increased over the years, and its reduction and resource utilization are imminent. According to the 2023 Annual Report of China’s Ecological Environment Statistics issued by the Ministry of Ecology and Environment, the production of general solid waste in the country in 2023 was 4.27 billion tons, the comprehensive utilization was only 2.58 billion tons, the disposal was 8.3 billion tons, and the annual increment was 8.6 billion tons. The production from the coal mining and washing industry accounts for 13.5% of such solid waste, with approximately 116 million tons of coal gangue produced in 2023. Moreover, a huge amount of coal gangue has been produced through coal mining and washing over many years. Shanxi, Inner Mongolia, Hebei, Shandong, and Liaoning—the top five regions in the country in terms of the production of general solid waste—are the main coal-producing areas in China. The annual production of general solid waste in these regions totals 1.83 billion tons, accounting for 42.8% of the national production. In the coal mining and washing industry, the disposal of coal gangue is mainly realized via landfilling.
Domestic and foreign scholars have researched the resource utilization of coal gangue. According to the different components or origins of coal gangue, including power generation [], chemical fertilizer production [], cement firing [], soil improvement [,], brick making [], sand making [], concrete making [], the production of energy storage materials [], the extraction of chemical raw materials and metals [,,], and ceramsite firing [], various resource utilization methods for coal gangue have been developed; however, reductions in its disposal remain limited. In particular, the use of coal gangue to make SC coal gangue wallboards for buildings is mainly concentrated in the theoretical research state. There is no report on the application of assembled SC coal gangue wallboards to actual projects in the existing literature.
On the other hand, there is a huge demand for wallboards with excellent performance, factory production potential and on-site assembly installation in the construction field. The requirements for comfortable and durable buildings are gradually increasing with people’s yearning for a better life; however, few types of assembled exterior wall panels—such as glass curtain walls, metal curtain walls, and ALC panels—are suitable for use in modern buildings []. According to information released by the National Bureau of Statistics, the construction area of residential houses in China was 733,247 square meters in 2024, indicating the huge demand for exterior wall panels in the construction market. Using coal gangue appropriately in the production of prefabricated exterior wall panels can realize its resource utilization. Additionally, the performance of such panels could be improved by adjusting the mix ratio of coal gangue concrete, coal gangue panels, and composite rock wool, facilitating the assembly of exterior wall panels which meet the housing requirements of heat preservation and insulation, sound insulation, durability, and efficient construction.
With the support of the Natural Science Fund project, this paper will take SC coal gangue in Yangquan City, Shanxi Province, China, as the research object, prepare SC coal gangue concrete, design and manufacture the SC coal gangue panel, and design and manufacture the SC coal gangue composite wallboard. The research results will turn waste coal gangue into treasure, reduce the storage capacity of coal gangue, and provide a high-performing assembled external wallboard for the construction field. Finally, the wallboard will be trialled and applied in the actual project.

2. SC Gangue

Spontaneous combustion often occurs when the combustion value of coal gangue is high and it is stacked in the open air in thick layers. After spontaneous combustion, the aluminum, calcium, iron, and magnesium oxide contents in coal gangue increase, improving its activity as a cementitious material. Furthermore, it changes from a combustible material to a non-combustible one. Therefore, a wallboard made of SC coal gangue can meet the Class A fire protection grade requirements. The SC coal gangue utilized by our research group was obtained from the gangue yard in Yangquan, Shanxi.

2.1. Selection and Use Principles

The first principle is that the radioactivity of spontaneous combustion coal gangue should meet the limits of relevant standards or specifications []. Shanxi Boao Scientific Research and Testing Co., Ltd.Taiyuan, China, was entrusted to use a PGS-6000 low-background multi-channel γ-energy spectrum BAOKY-302 to measure the selected SC coal gangue samples. Their radioactivity satisfied the relevant requirements, as detailed in Table 1.
Table 1. Measured radioactivity values of SC coal gangue.
Additionally, the fire resistance requirements of building wallboards differ according to building types, heights, and use scenarios. Hence, the combustion performance of the SC coal gangue used for the processing and development of exterior wallboards should not be lower than grade B1 [].
Furthermore, as a coarse and fine aggregate, it should meet the relevant requirements of “pebbles and gravels for construction” []. Before crushing, the mud content of the SC coal gangue should be no more than 1.5%, the sulfide and sulfate contents should be less than or equal to 1.0%, and the organic matter content should be qualitatively determined. The chemical composition of the selected SC coal gangue was measured and analyzed using scanning electron microscopy (SEM). The silicon, aluminum, calcium, iron, magnesium, potassium, sodium, oxygen, and sulfur contents were 16.01%, 8.79%, 4.20%, 7.40%, 0.71%, 1.19%, 0.60%, 61.70%, and 0.09%, respectively. The main components are listed in Table 2.
Table 2. Main components of SC coal gangue.

2.2. Crushing and Screening

A massive SC coal gangue was selected from the gangue yard. After crushing, screening, and particle gradation adjustment, a coarse aggregate with a particle size of 5–10 mm and a fine aggregate with a particle size of ≤3 mm were obtained (as shown in Figure 1 and Figure 2), which were used to develop a 20 mmthick panel. The particle gradations of the aggregates are detailed in Table 3 and Table 4.
Figure 1. Coarse aggregate.
Figure 2. Fine aggregate.
Table 3. Particle gradation of coarse aggregate.
Table 4. Particle gradation of fine aggregate.
According to the mass percentages of spontaneous combustion coal gangue aggregate with different particle sizes, the average particle sizes of coarse aggregate and fine aggregate are calculated to be 7.44 mm and 1.08 mm, respectively.
Coarse aggregate with a particle size of ≤10 mm was selected to develop the composite exterior wall panel, and no coarse aggregate with a particle size of ≥16.0 mm remained after standard sieve screening.
The relevant data in Table 4 were calculated and analyzed. The fine aggregate derived from SC coal gangue was categorized as medium-grade sand (area 2).

2.3. Basic Performance

The basic physical properties of the coarse aggregate derived from the SC coal gangue after crushing and screening, which met the specification requirements, are provided in Table 5.
Table 5. Physical properties of coarse aggregate.
The basic physical properties of the fine aggregate derived from the SC coal gangue after crushing and screening, which also met the specification requirements, are shown in Table 6.
Table 6. Physical performance indices of fine aggregate of spontaneous combustion coal gangue.

3. SC Coal Gangue Fine-Stone Concrete

The mix ratio of the fine-stone concrete required for the development of an outer wall panel was determined using the coarse and fine aggregates derived from the SC coal gangue, mixed with cement, fly ash, additives, and water.

3.1. Basic Requirements of Fine-Stone Concrete

Wallboards used in public or residential buildings should have good fire resistance [], durability, crashworthiness, impermeability, sound insulation, thermal conductivity, mechanical properties, and so on. We planned to use C20 SC coal gangue fine-stone concrete in the assembled exterior wall panel. The fluidity of the concrete should meet the production requirements for the exterior wall panel, with appropriate initial and final setting times.

3.2. Raw Materials of Fine-Stone Concrete

Aggregates: After crushing and screening, the coarse and fine aggregates derived from the SC coal gangue that met the particle gradation requirements stated in Table 3 and Table 4 were selected.
Cement: Ordinary Portland cement P.O. 42.5 from Taiyuan was used. The bulk density was 1037 kg/m3, the specific surface area was 320 m2/kg, the initial setting time was 70 min, the final setting time was 242 min, the loss on ignition was 1.65%, and the volume stability was qualified. The relevant parameters are from the manufacturer.
Fly ash: Taiyuan grade II fly ash was selected, with bulk density of 632 kg/m3. The fly ash dosage was 10%. The relevant parameters are from the manufacturer.
Additives: Naphthalene superplasticizer was selected as the water reducer, which was dissolved in the mixing water in advance and then added to the mixer. Furthermore, 1–2 kg of polypropylene short fibers was added to each cubic meter of concrete to improve its crack and impact resistance. The polypropylene fiber length and diameter were 12 mm and 48 μm, respectively. The relevant parameters are from the manufacturer.
Mixing water: Tap water was used to mix the fine-stone concrete. The water absorption rate of the spontaneous combustion coal gangue aggregate should be considered when calculating the water consumption.

3.3. Mix Proportion of Fine-Stone Concrete

3.3.1. Preparation Strength

f cu , 0 =   f cu , k + 1.645 σ
where f cu , 0 is the strength of the concrete preparation (MPa); f cu , k is the standard value of the concrete’s compressive strength (MPa); and σ is the standard deviation of the concrete’s strength (MPa).
According to the procedure in [], σ = 4.0; hence, f cu , 0 = 26.58 MPa.

3.3.2. Water–Binder Ratio

W / B = α b f b f cu , 0 + α a α b f b
where W / B is the water–binder ratio of concrete; α a   a n d   α b are the regression coefficients (according to the procedure in [], α a   =   0.53   a n d   α b   =   0.20 ); and f b is the compressive strength (MPa) of the 28 d mortar of the cementitious material.
f b = γ f γ s f ce
where γ f and γ s   are the influence coefficients of fly ash and granulated blast furnace slag powder, which were set as γ f   =   0.90   and   γ s   =   1.0 according to [], and f ce is the 28 d compressive strength of the cement mortar (MPa).
f ce =   γ c f ce , g
where γ c is the surplus coefficient of the cement strength grade value ( γ c   =   1.16 , according to the table), and f ce , g is the strength grade of the cement (MPa).
According to Formula (4), f ce   =   49.3   MPa . f ce was inserted into Formula (3) to calculate f b   =   44.37   MPa , and f b was inserted into Formula (2) to calculate the water–binder ratio of fine-stone concrete, yielding W / B   =   0.75 . According to the limit of the maximum water–binder ratio in the “Code for Design of Concrete Structures,” W / B   = 0.60 was selected.

3.3.3. Water Consumption

According to the production requirements for exterior wallboards, the slump of the SC coal gangue fine-stone concrete was selected as 35~50 mm. Combined with the water absorption rate of the used aggregate, according to the regulation regarding the water consumption of plastic concrete [], m wo   =   398 kg / m 3 . The naphthalene superplasticizer was added during the preparation of the fine-stone concrete, producing a water reduction effect of 15%. Finally, the water consumption was determined to be m wo   =   338 kg / m 3 .

3.3.4. Ement Amount

The amount of cementitious material in the fine-stone concrete was calculated as follows:
m bo   =   m wo W / B
Inserting m wo and   W / B into Formula (5), we obtained m bo   =   311.67 kg / m 3 , which satisfies the requirement of the minimum cementitious material dosage. As the content of fly ash was 10%, the cement content in the fine-stone concrete was   m co   =   280.50 kg / m 3 .

3.3.5. Sand Rate

The slump of the fine-stone concrete was 35~50 mm. According to the water–binder ratio W / B and the maximum nominal particle size of the coarse aggregate, the fine aggregate was categorized as artificial sand. The sand rate was β s   =   42 % .

3.3.6. Aggregate Dosage

The mass method was used to determine the amount of aggregate, calculated using the following formula:
m f 0   +   m c 0   +   m g 0   +   m s 0   +   m w 0   =   m cp
β s = m s 0 m g 0 + m s 0   ×   100 %
where m f 0   a n d m c 0 are the amounts of mineral admixtures and cement per cubic meter of the fine aggregate concrete ( kg / m 3 ); m g 0   a n d m s 0 are the amounts of coarse and fine aggregates per cubic meter of the fine aggregate concrete ( kg / m 3 ); m w 0 is the water consumption per cubic meter of the fine-stone concrete ( kg / m 3 ); β s is the sand ratio (%); and m cp is the assumed mass ( kg / m 3 ) of the fine aggregate concrete mixture per cubic meter.
Taking m cp   =   2350 kg / m 3 and inserting the values of m f 0 , m c 0 , and m w 0 into Formula (6), the total amount of the aggregate in the fine-stone concrete per cubic meter was obtained as 1851.33 kg / m 3 . According to Formula (7), m s 0   =   326.57 kg / m 3   and m g 0   =   1524.75 kg / m 3 .
The mixing test of the spontaneous combustion coal gangue fine-stone concrete was carried out according to the mix ratio calculated using the above formulas. The mix ratio used to develop the outer wall panel was determined according to the mixture’s workability and slump (see Table 7).
Table 7. Mix proportion of SC coal gangue fine-stone concrete (kg).

3.4. Performance of Fine-Stone Concrete

According to the mix ratio in Table 7, an STWJ-60 concrete horizontal mixer was used in the laboratory to mix the SC coal gangue fine-stone concrete in batches. After the test, a plate vibration table was used to vibrate and compact the concrete. After 24 h of indoor standing, the test block was disassembled, and standard maintenance was randomly carried out on a number of blocks. In total, 48 test blocks with dimensions of 150 × 150 × 150 mm, 24 test blocks of 150 × 150 × 300 mm, 27 test blocks of 100 × 100 × 400 mm, and 21 test blocks of 100 × 100 × 100 mm were formed and used for the testing of compressive strength and splitting tensile strength, axial compressive strength and elastic modulus, flexural strength and freeze–thaw cycle, and carbonation. Temperature-measuring rods were embedded in three of the 100 × 100 × 400 mm test blocks in preparation for the temperature measurements in the subsequent freeze–thaw test. All mechanical property tests were carried out according to the requirements [] of GB/T 50081, “Concrete physical and mechanical properties test method standard”.

3.4.1. Mechanical Properties

The mechanical properties of the SC coal gangue fine-stone concrete were tested using a WAW-1000kN testing machine (Changchun, China)with a loading rate of 7 kN/s.
  • Compressive strength
Three 150 × 150 × 150 mm test blocks were taken after the test blocks had cured for 3 d, 7 d, 14 d, and 28 d, respectively, and the measured compressive strengths are shown in Table 8.
Table 8. Strength of SC coal gangue fine-stone concrete at different ages.
  • Axial compressive strength and elastic modulus
Six 150 × 150 × 300 mm test blocks were taken at a curing age of 28 days. Three of them were used to test the axial compressive strength, and the other three were used to test the elastic modulus of static compression. The test processes are shown in Figure 3 and Figure 4. In the test, the lower part adopted the ball hinge + steel plate to support the test block. Before loading, the upper loading steel plate of the test machine was adjusted to 5–10 mm on the top surface of the test block to ensure that the test block was centered, and the test was started.
Figure 3. Axial compressive strength test.
Figure 4. Elastic modulus measurement.
The measured values of the axial compressive strength of the test blocks were 17.2 MPa, 18.5 MPa, and 18.3 MPa, and the average value was 18.0 MPa.
The midline was marked on the side of the elastic modulus test block, and the deformation-measuring device was installed symmetrically. The elastic modulus was tested according to the results of the axial compressive strength test. According to the strength of the test block, F 0   =   11.25   kN , and F a was taken as the corresponding pressure value when the test block reached 1/3 of its axial compressive strength. The deformation values of each measuring point were completed within 30 s after loading F 0 and F a at a constant speed for 60 s. When the pressure was increased, if the deformation increment difference at each measurement point was less than or equal to 20%, the test was considered effective; otherwise, a retest was performed. When the test was effective, the pressure was uniformly unloaded to F a , F 0 , and then completely unloaded, and each held for 60 s. After two cycles, it was officially loaded to F 0 and F a . After holding the load, the deformation values at each measurement point were recorded, the deformation-measuring device was removed, the specimen was pressurized at a constant speed until it was destroyed, and the maximum pressure was recorded.
E 0 = F a F 0 A   ×   L n
where E 0 is the elastic modulus of the concrete (MPa); A is the cross-sectional area (mm) of the concrete test block; F 0 is the initial pressure (N) of the concrete test block; F a is the corresponding pressure (N) when the compressive strength of the concrete reaches 1/3 of the axial compressive strength; L is the distance between the deformation measuring points of the test block (mm); and n is the average value (mm) of the deformation increment of the three test blocks when the pressure reaches F 0   and   F a .
According to the measurement results for the three test blocks and Formula (8), E 0   =   1.72   ×   10 4   MPa .
  • Splitting tensile strength
After the curing age of the test blocks reached 28 days, three 150 × 150 × 150 mm test blocks were taken to carry out the splitting tensile strength test, as shown in Figure 5. According to the measured data, the splitting tensile strengths of the three test blocks were calculated to be 1.84 MPa, 1.66 MPa, and 1.78 MPa, respectively, with an average of 1.76 MPa.
Figure 5. Splitting tensile strength test.
  • Flexural strength
After the curing age of the test blocks reached 28 days, three 100 × 100 × 400 mm test blocks were taken for the flexural strength test, as shown in Figure 6. According to the measured data, the flexural strengths of the three test blocks were calculated to be 3.7 MPa, 4.1 MPa, and 3.7 MPa, respectively, with an average of 3.8 MPa.
Figure 6. Flexural strength test.
The compressive strength, elastic modulus, splitting tensile strength, and flexural strength of the SC coal gangue concrete were lower than those of ordinary concrete. The main reason for this was that the compressive strength of the SC coal gangue aggregate is lower than that of gravel or pebbles. The failure of the test block mainly occurred in the coarse aggregate, rather than a combination of the aggregate and cementitious material. Although the concrete’s elastic modulus is also low, it can meet the mechanical performance requirements for use as a material for exterior wall panels.

3.4.2. Freeze–Thaw Test

After the curing age of the test blocks reached 28 days, three 100 × 100 × 400 mm test blocks were taken from the curing pool as a group, comprising a total of three groups. The surface moisture of the test block was wiped, the weight was recorded as W 0 , and the dynamic elastic modulus of the test block was measured using the dynamic elastic modulus DT-20 tester as E 0 . After the freeze–thaw cycle, the surface moisture of the test block was wiped, the weight of the test block was weighed and recorded as W n , and the dynamic elastic modulus of the test block was recorded as E n . For the freeze–thaw cycle test, we adopted the fast freeze–thaw test method in the “long-term performance and durability of ordinary concrete” and used the SRTDR-16 concrete fast freeze–thaw test machine from Beijing Shourui Company. The maximum temperature was set to +5 °C, the minimum temperature was −18 °C, and the cycle time was 3 h. The test was terminated when the mass loss of the test block was more than 5% or the loss of its dynamic elastic modulus was more than 40%. The test process is shown in Figure 7a,b, and the test results are given in Table 9. The freeze–thaw cycle tests were carried out according to the requirements [] of GB/T50082-2024, “Standard for test methods of long-term performance and durability of concrete.”
Figure 7. Freeze–thaw test. (a) Temperature control equipment for freeze–thaw test; (b) Environ- mental chamber of freeze–thaw test.
Table 9. Freeze–thaw cycle test results.
After 25 freeze–thaw cycles, the average dynamic elastic modulus loss rate of the test block did not reach or exceed 40%, but the average mass loss rate was 7% > 5% and the freeze–thaw test was terminated. The effects of increasing by three and four cycles were investigated, as shown in Table 9, to explore the influence of freeze–thaw cycles on the dynamic elastic modulus of the SC coal gangue concrete. For a building in the northern regions, an outer wall with a frost resistance grade of F25 will not have the same life as the main body of the structure. The existence of many voids in the SC coal gangue aggregate will reduce the concrete’s frost resistance. In practical applications, a hydrophobic agent can be sprayed on the surface of the SC coal gangue panel to improve its frost resistance.

3.4.3. Carbonization Test

After the test blocks were cured for 28 days, twelve 100 × 100 × 100 mm test blocks were taken and dried in an oven at 60 °C for 48 h. According to the requirements of standard [], after drying, only one surface of the test block was exposed, and the remaining surface was sealed with melted paraffin. Carbonation tests lasting 3 d, 7 d, 14 d, and 28 d were carried out with a carbonization box. The average measured carbonation depths were 20.0 mm, 23.0 mm, 28.5 mm, and 32.5 mm, respectively. The carbonation depth of the spontaneous combustion coal gangue concrete was greater compared with that of ordinary concrete, which will affect the durability of the SC coal gangue wallboard throughout the building life cycle. Spraying a hydrophobic agent on the surface of the board can prevent the carbonization of the SC coal gangue concrete from expanding internally, in addition to improving its frost resistance.

4. SC Coal Gangue Board

SC coal gangue fine-stone concrete, considering its workability, fluidity, strength, frost resistance, and carbonation resistance properties, was used to design and manufacture a composite exterior wall panel with a thickness of 20 mm, a short-side length of ≤1200 mm, and a long-side length of ≤1500 mm. When the long-side length of the SC coal gangue board is greater than 1500 mm, it can be disconnected near the midpoint of the long side and a keel can be set there in order to reduce the concrete’s shrinkage stress and cracks. With the aim of validating their potential for mass production and use in practical applications, SC coal gangue board specimens were manufactured in the factory. Concrete mixing was carried out using a JS500 forced mixer (see Figure 8), with strict measurement and control of the raw materials used in the development of the SC coal gangue concrete. All tests of the board specimens were carried out according to the requirements [] of GB/T 30100-2013, “Test Methods for Building Wallboard”.
Figure 8. Factory JS500 mixer.

4.1. Design and Maintenance

4.1.1. Reinforcement

A cold-drawn steel wire φ b 2.4 mesh with a grade of CDW550 was configured at a distance of 10 mm from the panel’s surface, in order to improve the integrity and bending resistance of the 20 mm thick SC coal gangue panel. The two-way spacing was 65 mm, and the steel wire intersection was resistance-welded. The thickness of the protective layer was controlled with a special pad, as shown in Figure 9. The panel was embedded with a two-way steel wire mesh. When the load on the outer wall was 1.0   kN / m 2 , the bearing capacity of the SC coal gangue panel met the relevant requirements, with deformation less than 1/250 of its short-side length.
Figure 9. Mold for pouring.

4.1.2. Anti-Cracking Measures

A 75 g/m2, 5 m × 5 m crack-resistant glass fiber mesh cloth was laid on the panel surface, which was wrapped in the cementitious material after being compacted and polished, in order to prevent dry shrinkage cracks during non-standard maintenance.

4.1.3. Panel Fixation

As the SC coal gangue board is a concrete product, 1.0 mm thick galvanized steel plates extending 100 mm from the board’s surface were welded onto the steel wire mesh before pouring, allowing the plate to be fixed on the keel-galvanized rectangular steel pipe of the composite exterior wall board. This enabled the fixation of the spontaneous combustion coal gangue board to the keel-core-pulling rivet or welding.

4.1.4. Maintenance

The SC coal gangue board specimens were made in the summer. Combined with the age strength measured in the laboratory, a plastic film was used to cover the SC coal gangue concrete immediately after it was poured, compacted, and polished. After 12 h, water was sprinkled onto the specimens once a day, and the mold was removed after 3 days.

4.2. Performance Test

4.2.1. Surcharge Test

The size of the panels for stacking was 900 mm × 900 mm × 20 mm, and the opposite side was fixed. Three 4 × 6 core-pulling rivets were fixed to the test bracket using the 100 mm × 32 mm × 1 mm galvanized steel plate connector embedded in the panel, as shown in Figure 10 and Figure 11. Weighing sandbags and weights were then used for step-by-step loading, as shown in Figure 12 and Figure 13.
Figure 10. Fixation of panel.
Figure 11. Blind-riveted connection.
Figure 12. Surcharge test of panel (out-of-plane).
Figure 13. Surcharge test of panel (in-plane).
Surcharge was carried out to 300 kg (out-of-plane) and 150 kg (in-plane). After the load had been held for 5 min, the panel remained uncracked and the deflection was less than 1/250 of the panel’s short-side length. After removing the heaped load, the galvanized steel plate fixed on the panel had a relative displacement of 1 mm and the core-pulling rivet had not changed. The stacking test demonstrated that the panel’s bearing capacity and deformation met the relevant requirements, and the anchorage of the galvanized steel plate connector and the connection between the panel and the keel can be considered reliable and effective.

4.2.2. Impact Test

According to the requirements of the “building wallboard test method” [], a 500 mm × 400 mm × 20 mm panel specimen was cut. Standard sand with a thickness of 100 mm was paved in an area of 700 mm × 700 mm on the test bench, and the panel specimens were placed on the sand cushion and fully contacted. A steel ball with a mass of 500 g was dropped freely from a height of 1.4 m onto the center of the specimen’s upper surface, and each test was repeated three times. At the end of the test, there were visible dents at the impact position, but there were no cracks at the impact point and its corresponding point on the reverse. The mass of the steel ball was increased to 1000 g to further explore the panel’s impact resistance. After impacting three times from the same height, the dent at the impact point was aggravated, but still no crack was found. The test results demonstrate that the panel has good impact resistance, and it is not necessary to increase its anti-collision strength when using it for the outer wall panels of general buildings.

4.2.3. Impermeability Test

Three square specimens of size 250 mm × 250 mm were cut from the post-spontaneous combustion coal gangue boards [], and a PVC pipe with a length of 300 mm and φ 30   mm was bonded with an AB structural adhesive in the center, as shown in Figure 14. After injecting 250 mm of water into the PVC pipe, the liquid level did not drop after standing for 2 h. There were no water marks or water droplets on the opposite side of the specimen after standing horizontally for 24 h, 48 h, and 72 h, as shown in Figure 15.
Figure 14. Impermeability test of panel.
Figure 15. Reverse side of specimen.
The test results indicate that the impermeability of the spontaneous combustion coal gangue board meets the relevant requirements.

4.2.4. Hanging Test

There are often installations such as fixed air-conditioning units, electronic display screens, solar panels, and other outdoor use requirements on the outer wall panel of a building. Furthermore, fixed air-conditioning units, hanging machines, TVs or displays, water heaters, range hoods, and other use requirements are common in indoor rooms. Therefore, an outer wall panel should be able to provide sufficient hanging force. The hanging force at a fixed point is usually tested in terms of shear force or tension. Therefore, shear and tensile tests at a hanging point were carried out.
For the 20 mm thick panel, an M6 plastic expansion plug and an M4 self-tapping screw were used to fix shear or tensile connectors. Experiments using 1, 2, or 3 fastener-fixed connectors were carried out, with three test points for each connection.
In the shear test (see Figure 16), the connector was considered to reach the normal use limit state of the connection when its relative displacement was 2 mm. The average shear-bearing capacities of the three test points were 366.7 kN, 583.3 kN, and 1016.7 kN, respectively, when one, two, and three fasteners were fixed. Although the connectors showed relative displacement, they were all loose. The removal of the self-tapping screw did not show plastic deformation, and the plastic expansion plug hole was complete.
Figure 16. Shear test of hanging point.
In the tensile test (see Figure 17), the connector was considered to reach the bearing-capacity limit state of the connection when it pulled out the plastic expansion plug. The average tensile ultimate bearing capacities of the three test points were 466.7 kN, 1000.0 kN, and 1866.7 kN, respectively, when one, two, and three fasteners were fixed. The connector was separated from the panel, and the panel corresponded to a complete hole.
Figure 17. Tensile test of hanging point.
Different hanging bearing-capacity schemes can be developed to meet actual needs according to the shear and tensile tests at a hanging point. The test results demonstrated that the layout of the grid cloth on the two surfaces of the panel has a significant effect on the improvement of local pressure and local shear performance at the hanging point.

5. Application of SC Coal Gangue Composite Exterior Wallboard

The external wall area of a building is usually several times the building area. A large-area wall needs to be divided into small units to facilitate the production and installation of wall panels. In addition, the external wall of the building should have good thermal insulation, heat insulation, and sound insulation performance. Therefore, 20 mm thick SC coal gangue–rock wool composite wallboards were used to improve performance as an exterior wall building material.

5.1. Segmentation of Exterior Wall

The exterior wall of the considered building had doors and windows due to the requirements for lighting, ventilation, and traffic organization. Holes were reserved for this purpose during the construction of the exterior wall, as shown in Figure 18 and Figure 19. The wall segmentation is shown in the figure, taking the gable of a demonstration project office building in Datong City, Shanxi Province, as an example.
Figure 18. Wall of an office building.
Figure 19. Wall partition of an office building.
The wall surface segmentation divided the larger wall surface into units which are suitable for construction, considering factors such as structural deformation, force transmission paths, processing, and installation. The wall segmentation shown in Figure 19 was based on the building elevation map, bounded by the upper and lower sides of the window holes, adjacent wall frame columns or frame columns, and wall panel units (e.g., WSQ-1, -2, -7, -8). Each unit is usually a regular rectangle, which can directly transmit force to the wall frame column or frame column in a direct and reliable manner. After the split, the walls between windows would naturally become independent units, supported by the first split unit. These units are located near the high point of the layer, and a reasonable fixation method allows for better adaptation to the structural properties and the characteristics of large flat deformation. According to the above method, there were 41 wallboard units of 12 types after the gable wall had been divided.

5.2. SC Coal Gangue Composite Wallboard

All of the exterior walls were divided into wallboard units using the above segmentation method, and SC coal gangue–rock wool composite wallboards with a thickness of 20 mm were used to form prefabricated external wallboards that meet the requirements of building energy conservation and sound insulation.
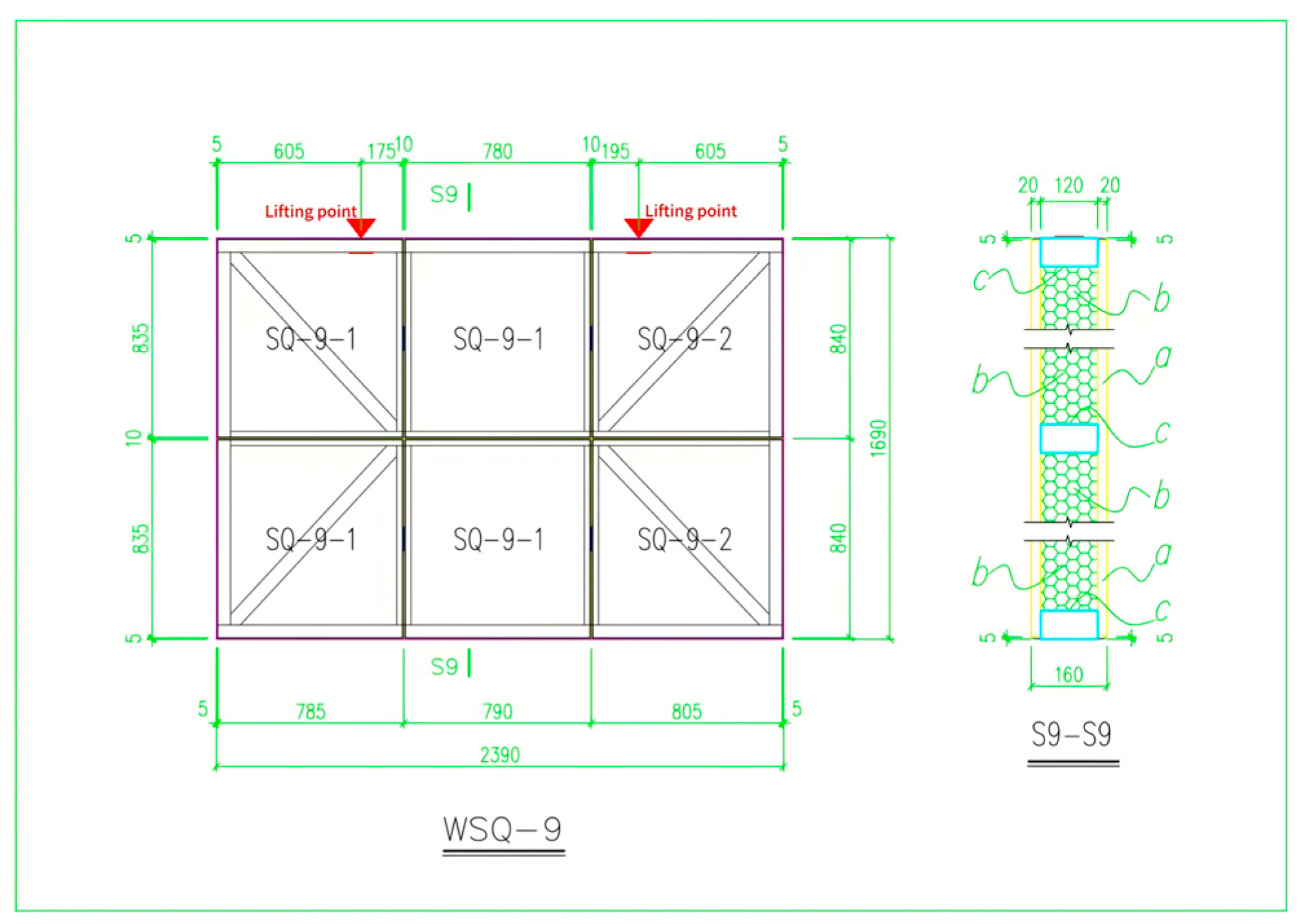
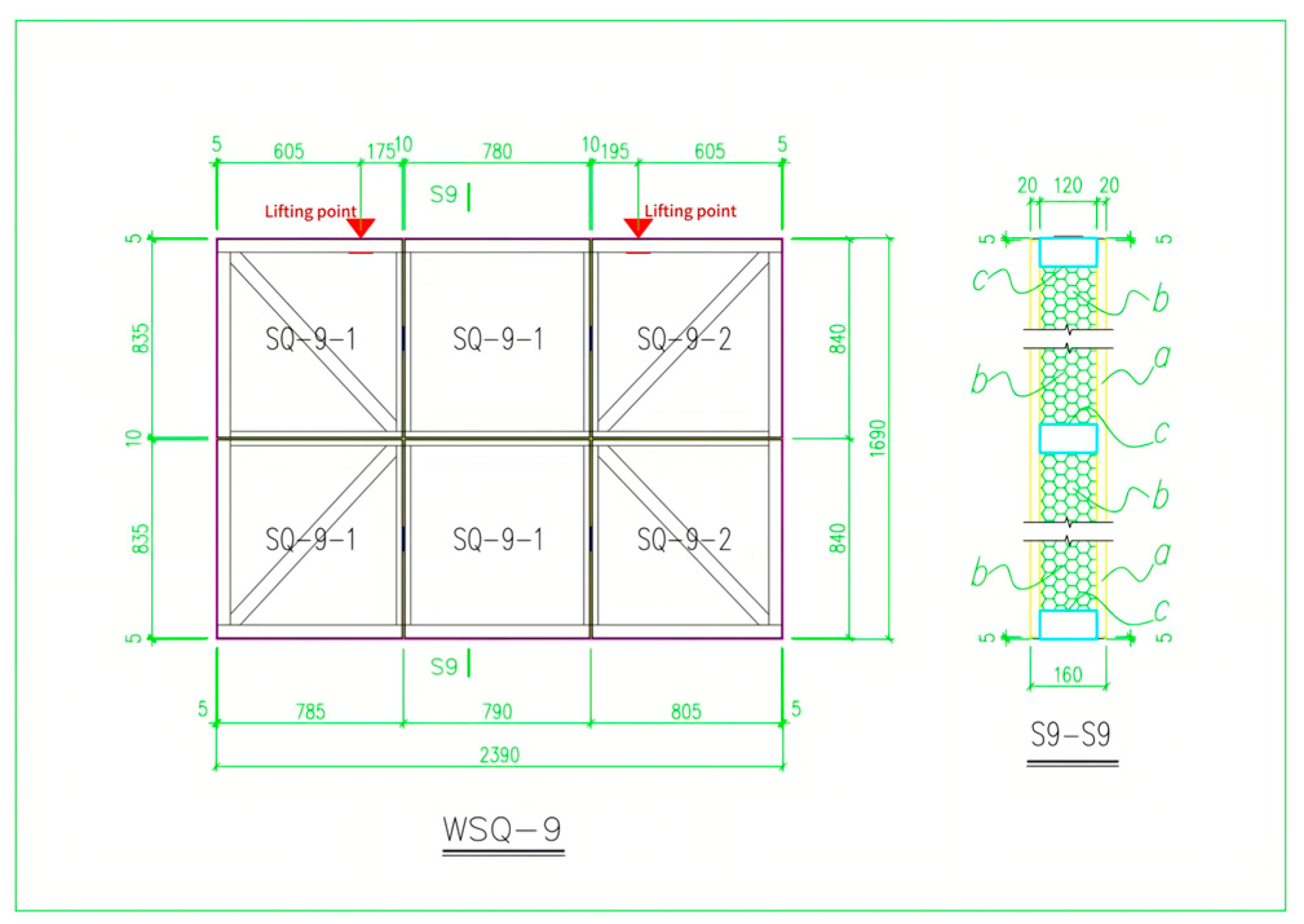
A demonstration project in Datong City, Shanxi Province, located in the northern cold region, was considered. This building was intended to function as a community office and activity center. According to the standard [], an external wall can meet the energy-saving requirements of public buildings in a cold C area when 30 mm thick B1 flame-retardant extruded polystyrene board and 120 mm thick rock wool are used. Therefore, between two 20 mm thick SC coal gangue panels, a 120 mm thick layer of rock wool was inserted. The SC coal gangue composite wallboard is composed of a keel, SC coal gangue panel and rock wool. The arrangement of the keel is shown in Figure 20, and the keels are welded together to form a whole. The connection between the panel and the keel is shown in Figure 11. Rock wool is embedded in the cavity formed by the SC coal gangue panel and keel. The SC coal gangue composite wallboards were prefabricated in the factory. After installation of the composite wallboard was completed, a 30 mm thick polystyrene board and real stone paint wall surface were added on site. The heat transfer coefficient of the coal gangue board composite rock wool was reduced from 0.47 W / m 2 K to 0.31 W / m 2 K , a decrease of 34.0%, air sound insulation was 45 d B , and the self-weight of the external wallboard was reduced by 37.5%, so the related performance was better than the requirements of the current standard. The schematic of the wallboard composite method is shown in Figure 20, taking WSQ-9 as an example.
Figure 20. SC coal gangue board composite wallboard schematic. In the figure, a—SC coal gangue panel; b—rock wool; c—keel.
As shown in the diagram, lifting points were included in each wall panel unit to ensure a safe and orderly construction process.

5.3. On-Site Installation

Before installing the general wall panel units on site, fixed connectors of T 120 × 120 × 6 × 6 made of Q235-B steel were welded to the wall frame column or the frame column at a position corresponding to the lower part of the wall panel units. After lifting a wall panel unit into place and adjusting the position correctly, it was welded to the fixed connector at the appropriate location. The installation of the window wall panel units was carried out after completing the installation of the general wall panel units. The keel of the window wall panel units was welded and fixed to the keel of the general wall panel units using 100 mm long < 100   ×   5 connectors. Only the tip of the angle steel was welded, in order to adapt to the horizontal deformation of the structure. The on-site installation process of the external wall of the demonstration project office building is shown in Figure 21, and a photo taken after the completion of the office building is shown in Figure 22.
Figure 21. Installation of outer wall panels.
Figure 22. The office building after completion.

6. Conclusions

The main conclusions from our experimental research on SC coal gangue, including the developed concrete, boards, composite wallboard and application, are as follows:
(1)
SC coal gangue was selected as an aggregate, and SC coal gangue concrete of strength grade C20 was obtained.
(2)
Using the SC coal gangue concrete, 20 mm thick SC coal gangue panels were designed and manufactured. Through the experimental tests, the properties of the board were found to meet the requirements of the relevant standards of building wallboard.
(3)
Through experiments, the anchorage, shear, and tensile bearing capacity of the SC coal gangue panel were obtained, which provided a basis for the fixation and application of the wallboard.
(4)
The SC coal gangue composite wallboard was obtained by using the SC coal gangue panel, keel and rock wool. Its heat transfer coefficient was reduced from 0.47 to 0.31, a decrease of 34.0%, air sound insulation was provided, and the self-weight of the external wallboard was reduced by 37.5%, meaning that the related performance was better than the requirements of the current standard.
The research results have been successfully applied to an office building project in Datong, Shanxi, China. Its ecological and social benefits are remarkable. Using SC coal gangue to make the external wallboard of the building, the reduction and recycling of solid waste are realized and assembled on site. In addition, the production of wall panels has been industrialized, thereby improving the construction efficiency of the building.

Author Contributions

Conceptualization, Y.Y.; methodology, Y.Y. and P.W.; validation, J.Y. and P.W.; formal analysis, L.Y. and Q.Z.; investigation, J.Y. and Q.Z.; resources, J.W.; data curation, L.Y. and Q.Z.; writing—original draft preparation, J.Y. and J.W.; writing—review and editing, Y.Y., P.W. and J.Y.; visualization, Y.Y. and L.Y.; supervision, Y.Y. and P.W.; funding acquisition, J.W. All authors have read and agreed to the published version of the manuscript.

Funding

This work was supported by the National Natural Science Foundation of China (No. 51208332) and Scientific research project of Ministry of Construction (No. 01-2-079).

Data Availability Statement

Data is contained within the article.

Conflicts of Interest

Author Jinhui Wu was employed by Shanxi Static Traffic Construction and Operation Co. Author Le Yang was employed by Shanxi Steel Science & Industry Co., Ltd. Author Qiang Zhao was employed by Daqin Railway Co., Ltd. The remaining authors declare that the research was conducted in the absence of any commercial or financial relationships that could be construed as a potential conflict.

References

  1. Zhu, L.; Gu, W.Z.; He, Z.W.; Liu, C.Y.; Zhao, M.Y. Current situation of comprehensive utilization of coal gangue and exploration of ways of high-value utilization:A case study of china national coal group corporation. Coal Sci. Technol. 2025, 53, 104–124. [Google Scholar]
  2. Liu, X.P.; Wu, S.W.; Zhang, C. Activation of Se-enriched coal gangue and the efficient use of coal gangue Se fertilizer. J. Plant Nutr. Fertil. 2020, 26, 1526–1535. [Google Scholar]
  3. Wang, A.G.; Liu, P.; Sun, D.S.; Liu, K.W.; Fang, L.A. Research progress in activity evaluation methods of calcined coal gangue powder materials. Mater. Rep. 2018, 32, 1903–1909. [Google Scholar]
  4. Zhang, J.J.; Song, H.P.; Feng, Z.J.; Munkhbat, B.; Jin, D.P.; Wei, J.J. Study on the effect of coal gangue particle size and ratio on desertified soil improvement. J. Environ. Eng. Technol. 2025, 15, 780–787. [Google Scholar]
  5. Yang, Y.; Hu, A.P.; Zhang, X.Y.; Gao, T.; Wang, S.J. Experimental study on compressive properties of modified raw soil mixed with coal gangue powder and mineral powder. Build. Struct. 2022, 52, 2202–2206. [Google Scholar] [CrossRef]
  6. Liu, H. Study on aerated concrete block preparation used with fly ash and coal gangue of fuxin. Bull. Chin. Ceram. Soc. 2013, 32, 1932–1935. [Google Scholar] [CrossRef]
  7. Yi, Q.; Gu, J.; Chen, W.J.; Xiang, H.; Guo, Z.H. Effect of coal gangue fine aggregate modification treatment on mortar performance. Bull. Chin. Ceram. Soc. 2025, 44, 2193–2200. [Google Scholar] [CrossRef]
  8. Mao, M.J.; Huang, B.; Chen, H.X.; Zhang, D.S. Research on damage of unburned coal gangue coarse aggregate concrete after high temperature. Build. Struct. 2022, 52, 1566–1570. [Google Scholar] [CrossRef]
  9. Sun, Z.H.; WANG, Y.B.; Ma, S.X.; Li, M. Energy storage modification of coal gangue and its application inhigh-specific-energy batteries. Coal Sci. Technol. 2025, 53, 318–326. [Google Scholar]
  10. Zhao, Z.; Wu, W.F.; Han, Y.Q.; Hou, X.J.; Li, S.P.; Zhang, J.B.; Li, H.Q.; Feng, L.L. Preparation of gallium oxide by hydrolyzing dilute gallium sulfate from galli-um enriched mother liquor of coal gangue. Clean Coal Technol. 2024, 30, 99–108. [Google Scholar] [CrossRef]
  11. Zhao, L.Y.; Zhai, H.B.; Zhang, J.W.; Yan, K.Z.; Yang, F.L. Mineral occurrence and acid leaching characteristic of aluminum forcoal gangue in shanxi province. Coal Sci. Technol. 2025, 53, 434–444. [Google Scholar]
  12. Li, G.M.; Su, N.J.; Zhu, B.S.; Liang, L.P.; Tian, Y.M. Fe3O4 and Fe loaded composites as microwave absorbents by recycling of gangue. Bull. Chin. Ceram. Soc. 2021, 40, 2998–3004. [Google Scholar] [CrossRef]
  13. Wu, X.G.; Tao, X.K.; Yu, S.Y.; Li, S.S.; Zhang, R.H. Research progress on the application of high-performance composite sandwich exterior wall panels. Build. Struct. 2020, 50, 611–616. [Google Scholar] [CrossRef]
  14. Zhang, J.H.; Meng, F.H.; Wang, L.N.; Dai, L.F.; Yao, L.F. Preparation and properties of coal gangue-based foamed ceramics. Bull. Chin. Ceram. Soc. 2023, 42, 960–969. [Google Scholar] [CrossRef]
  15. GB 6566-2010; Limits of Radionuclides in Building Materials. China Standards Press: Beijing, China, 2010.
  16. GB 8624-2012; Classification for Burning Behavior of Building Materials and Products. China Standards Press: Beijing, China, 2012.
  17. GB/T 14685-2022; Pebble and Crushed Stone for Construction. China Standards Press: Beijing, China, 2022.
  18. GB 55037-2022; General Code for Fire Protection of Buildings and Congstructions. China Planning Press: Beijing, China, 2022.
  19. JGJ 55-2011; Specification for Mix Proportion Design of Ordinary Concrete. China Architecture & Building Press: Beijing, China, 2011.
  20. GB/T 50010-2010 (Year 2024 Edition); Standard for Design of Concrete Structures. China Architecture & Building Press: Beijing, China, 2024.
  21. GB/T 50081-2019; Standard for Test Methods of Concrete Physical and Mechanical Properties. China Building Industry Press: Beijing, China, 2019.
  22. GB/T50082-2024; Standard for Test Methods of Long-Term Performanceand Durability of Concrete. China Building Industry Press: Beijing, China, 2024.
  23. GB/T 30100-2013; Test Methods for Building Wallboard. China Standards Press: Beijing, China, 2013.
  24. GB 50189-2015; Design Standard for Energy Efficiency of Public Buildings. China Building Industry Press: Beijing, China, 2015.
Disclaimer/Publisher’s Note: The statements, opinions and data contained in all publications are solely those of the individual author(s) and contributor(s) and not of MDPI and/or the editor(s). MDPI and/or the editor(s) disclaim responsibility for any injury to people or property resulting from any ideas, methods, instructions or products referred to in the content.

Article Metrics

Citations

Article Access Statistics

Multiple requests from the same IP address are counted as one view.