Abstract
China’s urban residential building stock is extensive and spans a wide range of construction periods. With the continuous enhancement of building energy efficiency standards, the chronological characteristics and variability of residential building envelopes are evident. Through field research and typological analysis of residential buildings in Jinan, a cold region of China, three construction eras were classified: Period I (1980–1985), Period II (1986–1995), and Period III (1996–2005). Building performance and economic benefits across these periods are modeled using Rhino 7.3 and Grasshopper. The NSGA-II algorithm, as the core of Wallacei2.7, is employed for multi-objective optimization. Through K-means clustering, TOPSIS comprehensive ranking, and Pearson correlation analysis, the optimized processes and solutions are provided for urban residential renovation decisions in different periods and target preferences. The results show that the optimal comprehensive performance solutions for Period I, Period II, and Period III achieve energy savings of 40.92%, 29.62%, and 15.81%, respectively, and increase annual indoor comfort hours by 872.64 h/year, 633.57 h/year, and 564.11 h/year. For Period I and II residential buildings, the most effective energy efficiency retrofit measures include increasing exterior wall and roof insulation, replacing exterior window types, and reducing exterior window k-value. The overall trend in energy savings rates and economic benefits across the three periods shows a decline. For Period III residential buildings, systematic strategies, such as solar thermal collector systems and photovoltaic technology, are required to enhance energy efficiency.
1. Introduction
In 2018, the IEA stated that total building energy consumption represented 40% of global energy consumption [1]. By 2022, building energy use made up 44.8% of China’s total energy consumption, with operational energy use in buildings contributing 21.7% [2]. China’s urban residential stock is substantial, and its operational energy consumption represents 38% of the nation’s total building operational energy use, making it a significant source of both operational energy demand and associated carbon emissions. In northern China’s severe cold and cold zones, residential buildings occupy nearly 50% of the national urban floor area, with winter heating demanding 40% of total building operational energy [3]. Urban residential buildings are generally characterized by low levels of architectural design, poor construction quality, and the absence and inadequacy of relevant energy-saving regulations. These deficiencies, coupled with aging and deterioration caused by a lack of maintenance, result in low energy efficiency and poor indoor comfort. Consequently, these buildings fall short of contemporary energy efficiency requirements, simultaneously increasing the economic costs of heating [2]. In addition, urban residential buildings primarily rely on coal-fired heating systems during winter, contributing to significant environmental pollution [4]. China’s urban residential building stock is huge, spanning multiple construction periods. As building energy efficiency standards continue to improve, period-specific characteristics and variations in the exterior envelopes of residential buildings have become increasingly evident. As shown in Figure 1, since the 1980s, China has prioritized residential building energy conservation nationwide, progressively elevating the related energy efficiency standards. Based on the baseline building energy consumption level in the early 1980s, the energy-saving design standards for residential buildings in severe cold and cold regions have gradually increased from 30% energy efficiency in 1986 to 50% energy efficiency in 1996, and to 65% in 2005 [5,6,7]. Energy efficiency design standards for public buildings have gradually increased from 30% energy saving in 1980 to 50% energy saving in 2005 [8,9]. Renovations aimed at enhancing energy efficiency in urban residential buildings constructed between the 1980s and the 2000s, including upgrades to the insulation properties of the residential envelope, can significantly lower heating energy usage, improve indoor comfort, lower heating costs, improve energy utilization efficiency, achieve better economic and environmental benefits.
Figure 1.
Advancement of energy efficiency standards in China.
2. Research Review
The heat transfer loss of the external envelope accounts for about 60~75% of the total heat transfer loss of the building [10], making it the most direct factor affecting the building’s energy consumption. Consequently, its retrofit program significantly impacts both the financial costs and returns through energy-saving improvements. Yuming Liu [11] proposes that building energy efficiency retrofits (EERs) is crucial for enhancing building energy efficiency in northern China. Through case studies, it is observed that, from an economic perspective, building EERs in China is typically unattractive to investors. The case study finds that, from an economic point of view, building energy efficiency retrofits in China are usually unattractive to investors. Sensitivity modeling identifies energy pricing as the dominant driver for retrofits, with initial investment and conservation rate as secondary factors. Luisa [12] argues that optimizing envelope insulation requires balancing its cost with the energy savings achieved. G. Verbeeck [13] highlights that for the late-constructed Belgian buildings, replacing windows with lower K-values can significantly reduce energy use and decrease the net present value (NPV). Dileep Kumar [14] conducts a comparative analysis of insulation materials across various climatic zones, demonstrating that the thermal resistance R-value exhibits direct proportionality to cost-effectiveness in heating-dominated regions while showing inverse proportionality in cooling-dominated areas. In summary, the influence of thermal performance on heating energy use, indoor comfort, heating costs, and life cycle costs has been extensively studied. Some scholars have extended the scope of residential retrofitting from individual buildings to urban building stocks. Dušan Ignjatović [15] constructs a typology matrix for typical residential buildings, organized by key characteristics influencing energy consumption, including building age, urban morphology, architectural typology, and material technologies. Ballarini [16] categorizes Turin’s building stock by construction period and building type, applying the European Energy Rating (EER) to quantify energy-saving potential. Their analysis demonstrates that replacing the window system and enhancing envelope insulation, particularly of facades, roofs, and basement slabs, constitute the cost-optimal renovation measures. Given the similarity in characteristics such as construction period and climate adaptation between the building stock of Turin and that of other cities in the same region, these findings can be generalized to similar urban buildings across Europe. Theodoridou et al. [17] observe that the heating energy consumption of new urban dwellings in Greece, built after 1980, is significantly higher than that of old dwellings before 1980. This suggests that newer buildings tend to have higher energy consumption, which is attributed to factors such as income levels and the living habits of occupants. Caputo et al. [18] combine GIS and EnergyPlus to assess the energy use and energy-saving potential in residences at the urban scale, using 56 typical residential and commercial buildings in Milan as examples. EnergyPlus quantifies the impact of energy-saving measures on the enclosure structure. Claudio et al. [19] establish a 3D model of residential buildings in Zaragoza, Spain. The study confirms construction era and envelope properties significantly correlate with building energy-conservation capacity. Energy savings of 30–58% can be achieved by retrofitting older residential buildings to near-zero energy standards (nZEB) through envelope retrofitting. In summary, energy efficiency retrofits based on varying construction periods and implemented energy efficiency standards for urban dwellings, significantly enhance the practicality and economic feasibility of energy-saving measures.
Pareto optimization elevates envelope retrofit performance and economic returns. Maria Panagiotidou [20] employs the Grasshopper platform to perform multi-objective optimization on multi-story residential buildings in Greece, targeting carbon dioxide emissions and lifecycle cost (LCC) to assess of net-zero retrofit feasibility. Jin Zhan [21] adopts the Grasshopper platform to optimize residential buildings in northern China, considering three objective functions: LCC, LCCE, and thermal comfort. The heat transfer coefficient of the residential envelope and the angle of photovoltaic panel orientation are selected as key design parameters. Penna [22] integrates NSGA-II with TRNSYS for dynamic energy modeling to study the feasibility of renovating Italian buildings into nZEBs across climates. The optimization process targets improvements in energy-saving rate, indoor thermal comfort, and economic cost. A multi-objective performance-based methodology for energy-efficient building design is established by coupling evolutionary algorithms with dynamic simulation within a unified platform [23,24,25]. The recent research probes the integration of multi-objective optimization and statistical methodologies to advance decision-making frameworks. Zhao N [26] optimizes envelope parameters and determines optimal retrofit solutions for residences in a severe cold region by combining the NSGA-II algorithm with TOPSIS. Wang [27] integrates the boosting algorithm with NSGA-II to optimize energy consumption and thermal comfort in residences. Employing the Grasshopper platform, Wensheng Mo [28] integrates the NSGA-II algorithm with standardized regression analysis to enhance both energy efficiency and thermal comfort in cold climate zones. Facundo Bre [29] systematically prioritizes critical parameters affecting building performance, with verification achieved via an Argentine urban dwelling prototype. In summary, building performance simulation, multi-criteria decision-making, and statistical analysis combined with envelope optimization are more commonly applied to energy-efficient retrofits of individual buildings than to large-scale retrofits of urban residential stocks.
Energy-efficient renovations of residential buildings must consider energy efficiency and economic benefits. Renovation strategies adapted to the construction periods and energy standards can significantly enhance the practicality and cost-effectiveness of retrofit efforts. This study investigates the optimization of urban residential building envelopes across different construction periods. The optimization targets include building performance and economic benefits. The findings aim to inform differentiated retrofit strategies for energy efficiency enhancement in extensive urban residences.
3. Research Methods
3.1. Research Framework
As shown in Figure 2, a typological approach is adopted to classify buildings according to their construction periods, resulting in three representative models. The Rhino 7.3 and Grasshopper platforms are employed to simulate the performance and economic efficiency of these buildings. Design variables affecting thermal performance are selected, including the thermal conductivity λwall, λroof, the thickness of exterior walls and roof insulation materials δwall, δroof, the heat transfer coefficients of external windows (), and the unit price of materials. The optimization objectives are building energy consumption (E), percentage of indoor thermal comfort time , economic cost , and incremental cost-effectiveness ratio (CE). The Pareto solution set offers a diverse range of alternative design configurations, including combinations of design variable parameters. The Pareto-optimal design solutions are determined through a decision-making process.
Figure 2.
Multi-objective optimization and analysis framework.
3.2. Research Area
Jinan, Shandong’s capital, covers a total area of 10,244 km2. The resident population is 9.44 million, and the urbanization rate has reached 75.3% [30]. The study focuses on the city center of Jinan, which includes five administrative districts: Huaiyin, Tianqiao, Lixia, Shizhong, and Licheng. The research targets urban residential buildings constructed between the 1980s and 2000s. The study area and its typical meteorological parameters are presented in Figure 3. Jinan is classified within the Cold Climate region II B, characterized by four distinct seasons. Jinan experiences a mean annual temperature of 13.6 °C, with January averaging −1.9 °C. The number of heating degree days (HDD18) is 2211 °C⋅d, corresponding to an estimated heating period of 92 days [31]. Jinan receives abundant solar radiation, with average annual sunshine ranging from 2290 to 2890 h and total annual solar radiation on a horizontal surface ranging from 1400 to 1550 kwh/m2. According to the meteorological industry-standard Solar Energy Evaluation Methods (QX/T89-2008), Jinan is classified as a Solar Resource Class II region, indicating an area with abundant solar energy resources and providing favorable conditions for solar energy utilization [32].
Figure 3.
Location of the study area and typical city meteorological parameters.
3.3. Field Research
The urban residential buildings under investigation were constructed between the 1980s and 2000s. The typological method classifies residences across distinct construction eras into three phases: Period I, Period II, and Period III, yielding prototypical models per category [33]. The constructional characteristics and thermal performance of residential envelope structures from different construction periods are systematically investigated.
A stratified sampling method is employed to select residential samples from 15 residential communities within each of the five administrative districts in central Jinan. The residential samples are classified into three categories: Low-rise (1–3), Mid-rise (4–6), and High-rise (≥7), as shown in Table 1. The predominant structural systems are brick-concrete and reinforced concrete frame structures, with most residential units having floor areas concentrated between 80 and 120 m2. Critical building envelope parameters are recorded on-site using measurement approaches with a manual tape measure and a Leica DISTO D1 laser distance meter. The research found that the age characteristics and differences of the exterior envelope structure of the residential samples are obvious. From the 1980s to the 2000s and beyond, China’s national residential energy-saving standards have been continuously improved. Based on the baseline building energy consumption level in the early 1980s, the energy-saving design standards for residential buildings in severe cold and cold regions have been increased from a 30% energy-saving rate in 1986 to 50% in 1996 and 65% in 2005 [5,6,7]. In addition, field research and analysis of residential samples in central Jinan indicate that approximately 80% of the residential samples experience aging and deterioration of their exterior envelope structures, leading to a significant reduction in building performance and residential living quality. These thermal performance deficiencies are primarily caused by damaged insulation and moisture, which is a common problem in the envelope of residential building stock [34], as shown in Table 2.
Table 1.
Statistical distribution of residential buildings by number of stories across three construction periods.
Table 2.
Investigation on the current conditions of residential building envelope.
3.4. Parametric Modeling
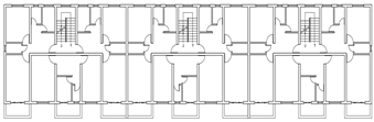
Due to significant differences in the implementation of building energy codes across construction periods, this study establishes a set of typical energy retrofit models for urban residential buildings constructed from the 1980s to the early 21st century. The models are classified across representative periods: Period I, Period II, and Period III, using 1980 non-energy-efficient buildings as the baseline reference. As shown in Table 3, typical floor plans and three-dimensional (3D) models for each construction period are developed using Rhino. In Period I, residential buildings do not implement energy-saving designs for the external envelope, glazed aluminum alloy windows are commonly used, resulting in high energy consumption. Period II residential buildings implement certain energy-saving standards for the roofs and external walls, adopting simplified conservation measures. Period III residential buildings implement stringent energy-saving standards and demonstrate thermal performance with potential for further optimization. Table 4 presents the core properties of typical residential models.
Table 3.
Floor plans and 3D models of typical urban residential model.
Table 4.
Core properties of the typical urban residential models.
Drawing on field-collected data from representative residential areas of three construction periods and relative standard [35,36]. To enhance computational efficiency, the thickness of insulation materials is incremented in steps of 20 mm. Table 5 presents the key parameters related to the insulation materials of the residential envelope, and Table 6 shows the range of design variables.
Table 5.
Insulation material parameters for residential building envelope.
Table 6.
Design variables.
3.5. Optimization Indicators
In this study, two performance indicators, E and , are chosen to evaluate the impact of energy-saving renovation solutions. E is the total of residential annual energy use for heating (), cooling (), and lighting () [26], measured in units of . The energy conversion efficiency of thermal systems is quantified by COP.
The key operational parameters related to building performance are shown in Table 7. The EnergyPlus weather file repository provided the Jinan City meteorological dataset [37]. The EnergyPlus simulation engine is accessed through Grasshopper, while the open-source plugin Ladybug Tools is employed to model urban residential energy consumption and indoor thermal comfort [38]. Ladybug Tools is an integrated environmental analysis platform for architecture, combining Ladybug for climate data processing and Honeybee for energy modeling modules to enable data-driven decision-making for sustainable building design at the conceptual phase.
Table 7.
Building operation parameters.
The PMV-PPD (Predicted Mean Vote and Predicted Percentage Dissatisfied) thermal comfort evaluation method, originally developed by Danish scholar Professor Fanger, is adopted in this study. Among these indicators, PPD and are inverse indicators in assessing thermal comfort [39].
For urban residential energy-saving retrofit projects, the economic benefits of proposed solutions must be fully considered. By quantifying the economic benefits associated with retrofitting the building envelope, the effectiveness of various energy-saving renovation solutions can be systematically evaluated. In this study, two economic indicators ( and ) are employed to assess the economic feasibility of retrofit programs.
and are the prices of insulation materials per unit volume (), respectively; is the price of the exterior window per unit area, (); The operating cost refers to the cost incurred during the operation of the envelope structure (). It is generally 6% of the total cost of the renovation [40].
, , and represent the surface areas of exterior walls, roofs, and windows, respectively ; and are the thicknesses of insulation materials for exterior walls and roofs, respectively . The incremental benefits of renovation for one year, based on the building’s life cycle stages, can be divided into two components: direct economic benefits (operational energy cost savings) and indirect economic benefits (environmental impact reduction).
represents the total energy saved (). The price of electricity per kilowatt-hour is assumed to be . represents the environmental value generated per ton of standard coal, representing the reduction in environmental costs from decreased emissions of pollutants, with a standard valuation of [41]. In this study, the boiler and heating network are assumed to have efficiency values of 0.7 and 0.9, corresponding to and . represents the calorific value of standard coal, taken as . A represents the floor area of typical urban residential models from each of the three construction periods [42].
SE represents the composite benefit. S represents the annual incremental revenue generated from the building renovation. is the annuity present value coefficient, based on an 8% interest rate over a 20-year period. If , the project is feasible; If , the project is considered unfeasible.
If , the incremental benefit per unit cost is considered substantial, indicating that the green renovation project is economically feasible. indicates that the economic benefit is not ideal [43].
3.6. Multi-Objective Optimal Solution
The design of energy-efficient building renovations requires resolving conflicts among competing objectives to identify a satisfactory set of solutions.
Consider an optimization problem with n objectives, where represents the objective function, is the decision variable, is the decision space. and stand for the numbers of inequality and equality conditions, respectively. A solution is considered feasible if all constraints are satisfied; otherwise, it is deemed unfeasible [44].
This paper selects the Wallacei plugin, with the NSGA-II genetic optimization algorithm as its core, to optimize and solve the design variables and optimization objectives.
The is the number of urban residential energy-saving renovation resolutions. The five design variables are . Table 6 is the range of design variables. Additionally, four optimization objectives, including .
To improve operational efficiency, this study sets the population size (Generation Size) to 100, the Generation Count to 10, and the crossover probability to 0.9 using Wallacei. Additionally, the evolutionary algorithm employs a 20% mutation frequency, as recommended by the NSGA-II algorithm.
This study employed IBM SPSS statistics 25 to conduct cluster analysis, comprehensive ranking, and correlation assessment on the NSGA-II-derived Pareto solution set. The cluster analysis groups the solutions into different clusters to identify the optimal renovation solution for urban residences under various goal orientations [45]. The TOPSIS framework requires computation of Euclidean distances measuring how far each alternative lies from both the positive and negative ideal solutions (PIS and NIS) [46]. This method ranks the residential renovation solutions to select the optimal one. This study employs a multiple regression model to quantify the impact and effect size of urban residential envelope design parameters on building energy efficiency and economic performance [47].
4. Results and Discussion
4.1. Analysis of the Change Trend of Optimization Objectives
During the multi-objective optimization iteration process, Period I, II, and III residential models generate 1000 solution sets, respectively. This study utilizes the Wallacei Analytics module to visualize and analyze the trend of objective performance changes throughout the optimization process. Figure 4 plots the evolving standard deviations (SD) of objective functions across Periods I-III. Individual curves map the SD of objective results over successive iterations. A flatter curve indicates a larger SD, meaning the data are more scattered and the degree of change is greater; conversely, a steeper curve suggests a smaller SD, indicating data converge and a small degree of change. Additionally, the curve color reflects the iteration number, transitioning from warm to cool hues as the optimization processes.
Figure 4.
SD change trend; ①⑤⑨ E; ②⑥⑩ ③⑦⑪ ; ④⑧⑫ CE.
In Period I, ① and ③ indicate that E and decrease at lower levels. ② and ④ show that and CE increase at higher levels. Therefore, E, , and CE of the residence tend toward better performance and ultimately reach a stable state. In Period II, ⑤ and ⑦ indicate a reduction in E and , but ⑦ indicates that the change in over the entire optimization process is not significant. ⑥ and ⑧ indicate that and CE gradually increase and eventually stabilize at a larger value. Therefore, with the progression of optimization, E, , and CE of the residence tend towards better performance and eventually stabilize. In Period III, ⑨ shows that as the optimization proceeds, E gradually decreases and eventually stabilizes at a smaller value. ⑩ indicates that gradually increases and eventually stabilizes at a larger value. ⑪ indicates that the change effect of during the entire optimization process is not significant, while ⑫ indicates that although CE gradually increases, it remains below zero, indicating a small energy-saving potential and poor economic benefits for the residence. From the standard deviation trend graphs of Period I, II, and III, the four objectives demonstrate progressively diminishing optimization potential.
4.2. Distribution of Feasible Solution Sets and Pareto Solution Sets
In this study, the Wallacei Analytics module is used to export 1000 solutions, and OriginPRO 2021 is employed to generate two-dimensional and three-dimensional scatter plots. Figure 5 indicates that each green sphere in the spatial solution set represents a feasible solution generated during the iteration process, while each red sphere represents a Pareto solution generated during the optimization process. The position of both the feasible solutions and the Pareto solutions in the three-dimensional coordinate system presents the performance of the corresponding objectives. As E decreases, increases, while decreases, and CE increases. Uniform distribution of the Pareto solution set along the feasible frontier, with solutions concentrated near the coordinate origin, evidences their performance advantage.
Figure 5.
Scatter plot of multi-objective optimization algorithm solution set ① 3D visualization scatter plot ②~④ 2D projection plot.
4.3. Pareto Frontier Characterization
Figure 6 shows boxplots of the four optimization objectives. This study evaluates both feasible and Pareto-optimal solutions by analyzing their average and median values of the four optimization objectives. The median is simpler to calculate and is not influenced by outliers or extreme values. The combination of both metrics allows for comparison of the distribution characteristics. In Period I, ① and ③ demonstrate that Pareto solutions for E and are less than feasible counterparts, while ② and ④ reveal Pareto solutions for and CE surpass feasible solutions in mean and median values. Decline in E and correspond to rises in and CE, the better the effect of the renovation solutions, indicating that the Pareto solutions outperform the feasible solutions in E, , and CE, thus demonstrating better overall renovation performance. For objective E, Pareto solutions are outperformed by feasible solutions during Period II. ⑦ indicates that the change in over the entire optimization process is not significant. ⑥ and ⑧ indicate that Pareto solutions for and CE are greater than those of the feasible solutions. This shows that the Pareto solution outperforms the feasible solution in E, , and CE. In Period III, ⑨~⑫ shows that the Pareto solution set outperforms the feasible solution in E, , and CE. In particular, ⑪ indicates that the feasible solution for is close to the Pareto solution, and the optimization effect is not significant, indicating that the Pareto solution outperforms the feasible solution in E, , and CE; ⑫ signifies that all CE values are negative, suggesting that the incremental benefits are outweighed by the incremental costs, resulting in poor economic outcomes. Period III analysis reveals statistically comparable central tendencies (mean, median) between feasible and Pareto solutions, indicating marginal optimization efficacy. This is because the thermal performance of residences in Period III is relatively good, leading to poor energy-saving potential and economic benefits for the energy-saving renovation solutions.
Figure 6.
Comparison of solutions in Period I, II, III; ①⑤⑨ E; ②⑥⑩ ; ③⑦⑪ ; ④⑧⑫ CE.
4.4. Pareto Solution Optimization Decision Analysis
Compared to other feasible solutions, the Pareto front contains solutions that represent optimal balances between renovation objectives, each reflecting a distinct prioritization of performance criteria. The K-means in the Wallacei Selection module is applied to perform cluster analysis on 100 groups of Pareto solutions. After repeated comparisons, it is found that when the number of clusters K is set to 3, there are significant differences between the clusters. The objective setting includes four indicators: E, , , and CE. More solution sets are observed in Cluster 3 (Period I), Cluster 1 (Period II), and Cluster 2 (Period III), indicating well-balanced compromises among the multiple objectives.
Figure 7 illustrates the spatial distribution and performance differences of each cluster group. In Period I, ① and ② indicate that cluster 2 performs best for E and targets, while ③ and ④ indicate that cluster 1 performs best for and CE targets. In Period II, ⑤ and ⑥ indicate that cluster 2 performs best for E and targets, and ⑦ and ⑧ indicate that cluster 3 performs best for and CE targets. From ①~④ and ⑤~⑧, it can be observed that as E decreases, and increases and CE decreases. Therefore, the changes in E and CE are positively correlated, while E is negatively correlated with the changes in and . In Period III, ⑨ and ⑩ indicate that the changes in E and are inconsistent. This is because the renovation of the exterior wall and roof reduces E but increases . However, when the insulation material becomes too thick, the improvement rate of will no longer change significantly. Finally, ⑪ and ⑫ indicate that the changes in E and are negatively correlated, and the changes in E and CE are positively correlated. Designers can use these patterns to balance different goals according to project priorities and objectives, thus reducing the difficulty of decision-making.
Figure 7.
Spatial distribution and performance differences of cluster groups in Period I, II, and III; ①⑤⑨ E; ②⑥⑩ ; ③⑦⑪ ; ④⑧⑫ CE.
Table 8 presents the urban residential renovation solutions of Period I, II, and III corresponding to each target cluster center solution. In Period I, the core solution of cluster 3 is . In Period II, the core solution of cluster 1 is . In Period III, the core solution of cluster 2 is . Before renovation, the insulation performance of building envelopes in Period I dwellings was the weakest. The retrofitting approach emphasized cost-effective, high-efficiency insulation materials for opaque building enclosures, concurrently decreasing energy consumption while improving cost-benefit performance. In Period II, the exterior walls and roofs exhibited certain thermal insulation performance. However, beyond the cost-optimal thermal resistance threshold, determined by the trade-off between insulation thickness and material thermal conductivity, further improvements in thermal performance leading to diminishing energy-saving returns. Although the cost of replacing high-performance exterior windows was high, the windows were identified as the weakest part of the envelope’s thermal performance, with substantial heat loss increasing winter heating energy consumption. Therefore, the optimal Pareto solution was to replace the exterior windows with high-performance alternatives. In Period III, the envelope structure of residential buildings already demonstrated relatively good thermal performance, resulting in a smaller energy-saving potential from the renovation plan. The negative CE values indicated that the economic benefits were outweighed by the incremental cost, leading to poor economic outcomes. In conclusion, the three clustering groups show clear distribution patterns for the design variables. Designers can use these patterns to balance different goals according to project priorities and objectives, thus reducing the difficulty of decision-making.
Table 8.
The results of Pareto solution clustering.
To further screen the energy-saving renovation solutions for Period I, II, and III residential buildings, this study applies the TOPSIS method for comprehensive benefit analysis. Figure 8 shows the ranking from the TOPSIS comprehensive evaluation. The parallel coordinate diagram represents the numerical distribution of the Pareto solution set, with each vertical axis representing the comprehensive evaluation ranking, intervals, and ranges of the design variables and objective functions. Each broken line represents an energy-saving renovation solution. ① indicates that the energy-saving renovation solution of achieves the best overall ranking; ② indicates that the energy-saving scheme of achieves the best overall ranking. ③ indicates that the energy-saving renovation solution of has the best overall ranking.
Figure 8.
Period I, II, and III Pareto program comprehensive ranking.
The TOPSIS comprehensive evaluation and K-means cluster analysis mutually verified each other, with the optimal solutions obtained by both methods being consistent. This consistency demonstrates the effectiveness and stability of the energy-saving renovation solutions. As shown in Table 9, residential retrofits show declining energy-saving rates and cost-returns over three construction phases. The earlier the residential construction, the lower the building energy efficiency standards that were implemented, the higher the energy-saving and economic potential.
Table 9.
Comparison of optimal renovation scheme combination and baseline building performance.
4.5. Correlation Analysis
In multi-objective optimization, there are complex interrelationships between dependent and independent variables. To illustrate the correlation coefficients and the strength of relationships between these variables, the Pearson correlation coefficient was used in IBM SPSS statistics 25 analysis software. The correlation analysis results for building envelope design variables and the four objective functions (E, , and CE) was obtained. Regression analysis reveals that the values for the Period I, II, and III models approach 1, indicating a strong model fit. Figure 9 presents the matrix heat map of correlation intensity. The color scheme uses red for positive correlations and blue for negative correlations between variables, and darker colors indicate a larger correlation coefficient.
Figure 9.
Thermal diagram of correlation coefficient matrix in Period I, II, and III.
In Period I, the correlations of (−0.82) and (−0.6) with E are strongly negative, while (0.48) and (0.36) show strong positive correlations with E. Additionally, (−0.62) and (−0.41) are strongly negatively correlated with , and (−0.51) significantly impacts . In Period II, (0.83) is strongly positively correlated with E, (−0.65) is strongly negatively correlated with , and (0.71) is strongly positively correlated with CE. In Period III, compared to Period I and II, the correlation between the envelope structure design variables and E and is generally weaker. High thermal performance in existing building envelopes diminishes retrofit impacts, reducing energy-saving potential and economic benefits.
Based on the correlation intensity observed in Period I, II, and III, exterior wall and roof insulation are the optimal and most effective energy-saving renovations for Period I residential buildings, renovations that offer low cost and high cost-effectiveness. In Period II, the exterior wall and roof already provide some insulation performance. Despite their relatively high cost, windows, when well selected, can contribute substantially to building energy savings and economic benefits. For Period II residential retrofits, optimal energy savings measures prioritize window replacement and K-value reduction. In Period III, the energy efficiency potential and economic benefits of the renovation solutions are limited. To further enhance energy efficiency, a systematic approach should be adopted, incorporating technologies such as solar photovoltaic systems, solar thermal collection, and energy-efficient lighting.
Other scholars’ studies also support the conclusion that an earlier construction date correlates with greater energy-saving potential. Hongwei Yang et al. [48] analyzed the residential stock in Tianjin, selecting three typical residential models and conducting energy consumption simulation using DesignBuilder 6.1.0 software. Their findings revealed that the model built in 1981 had the lowest retrofit cost and the highest energy-saving rate. Xinxin Zhang noted that buildings constructed between 1978 and 1985 achieved the highest energy savings after retrofit due to poor insulation and design standards well below current codes [49]. However, with the improvement of insulation materials and design standards, the potential for energy savings, as indicated by the difference in energy consumption before and after the retrofit, gradually decreases.
5. Conclusions
This paper classifies urban residences in Jinan, a cold region of China, from the 1980s to the 2000s using field surveys and a typological approach, and conducts energy-saving renovations based on the different construction periods. The studies examine the building performance and economic benefits of energy-saving renovations in Periods I, II, and III, covering four key aspects: E, , , and CE. This study develops an energy-saving optimization model and cost analysis framework to support municipal governments in advancing building retrofit initiatives. It offers tailored solutions for renovating urban residences of different periods and examines decision-making processes for optimizing building envelope retrofits.
- (1)
- By optimizing a selection of typical residential buildings, 1000 renovation solutions were developed. As the optimization process progressed, in Period I, E, , and CE gradually converged toward their respective optimal performance directions during the iteration. In Period II, E, , and CE converged toward their optimal performance directions. In Period III, only E and were fully optimized. The energy-saving renovation potential of the four optimization objectives, E, , , and CE, diminished progressively. Cluster analysis of the Pareto solutions revealed that the changes in E and CE are positively correlated, while the changes in E and are negatively correlated. The mutual validation between the TOPSIS comprehensive evaluation and K-means cluster analysis confirmed the effectiveness of the residential energy-saving renovation solutions.
- (2)
- The energy savings rate and economic benefits of the residential renovation schemes across the three stages exhibit an overall downward trend. Period I, II, and III achieved energy savings rates of 40.92%, 29.62%, and 15.81%, respectively, with corresponding increases in annual indoor comfort hours of 872.64 h/year, 633.57 h/year, and 564.11 h/year.
- (3)
- The energy-saving renovation measures presented have certain limitations. Future research could integrate GIS technology to obtain and analyze a broader range of urban residential building stock samples. Building performance models should integrate systematic energy-saving strategies, such as equipment optimization, solar PV systems, and solar thermal technologies, to boost energy efficiency. Economic benefit evaluations should also account for market fluctuations in material prices and labor costs. This study could leverage machine learning (ML), particularly artificial neural networks (ANN), to develop predictive models, thereby improving the accuracy, intelligence, and efficiency of optimization methods.
Author Contributions
Conceptualization, Y.C. and Q.D.; Methodology, Q.D.; software, K.D. and R.L.; validation, Q.D.; formal analysis, Y.C.; investigation, Z.C.; resources, S.W.; data curation, R.L.; writing—original draft preparation, K.D.; writing—review and editing, K.D.; visualization, Z.C. and S.W.; supervision, Y.C.; project administration, Y.C.; funding acquisition, Y.C. and Q.D. All authors have read and agreed to the published version of the manuscript.
Funding
This research was funded by the Key Research and Development Projects of Ministry of Housing and Urban–Rural Development of the People’s Republic of China (2022K148).
Data Availability Statement
Data are contained within the article.
Conflicts of Interest
The authors declare no conflicts of interest.
References
- International Energy Agency. World Energy Balances: Overview 2023; International Energy Agency: Paris, France, 2023. [Google Scholar]
- China Association of Building Energy Efficiency. Research Report on Carbon Emissions from Urban and Rural Construction in China; China Architecture & Building Press: Beijing, China, 2024. [Google Scholar]
- Building Energy Efficiency Research Center, Tsinghua University. Annual Development Research Report on Building Energy Efficiency in China 2024: Topics on Rural Housing; Tsinghua University Press: Beijing, China, 2024. [Google Scholar]
- Building Energy Efficiency Research Center, Tsinghua University. Annual Development Research Report on Building Energy Efficiency in China 2023: Topics on Urban Energy System; Tsinghua University Press: Beijing, China, 2023. [Google Scholar]
- JGJ 26-1986; Design Standard for Energy Efficiency of Residential Buildings (Heating Residential Buildings Part). Ministry of Urban-Rural Development and Environmental Protection: Beijing, China, 1986.
- JGJ26-1996; Design Standard for Energy Efficiency of Residential Buildings. Ministry of Urban-Rural Development and Environmental Protection: Beijing, China, 1996.
- JGJ26-2005; Energy Efficiency Design Standard for Residential Buildings in Severe-Cold and Cold Regions. Ministry of Construction of the People’s Republic of China: Beijing, China, 2005.
- GB50189-1980; Design Standard for Energy Efficiency of Public Buildings. State Capital Construction Commission of the People’s Republic of China: Beijing, China, 1980.
- GB50189-2005; Design Standard for Energy Efficiency of Public Buildings. Ministry of Construction of the People’s Republic of China: Beijing, China, 2005.
- Gupta, V.; Deb, C. Envelope design for low-energy buildings in the tropics: A review. Renew. Sustain. Energy Rev. 2023, 186, 113650. [Google Scholar] [CrossRef]
- Liu, Y.; Liu, T.; Ye, S.; Liu, Y. Cost-benefit analysis for Energy Efficiency Retrofit of existing buildings: A case study in China. J. Clean. Prod. 2018, 177, 493–506. [Google Scholar] [CrossRef]
- Cabeza, L.F.; Rincón, L.; Vilariño, V.; Pérez, G.; Castell, A. Life cycle assessment (LCA) and life cycle energy analysis (LCEA) of buildings and the building sector: A review. Renew. Sustain. Energy Rev. 2014, 29, 394–416. [Google Scholar] [CrossRef]
- Verbeeck, G.; Hens, H. Energy savings in retrofitted dwellings: Economically viable? Energy Build. 2005, 37, 747–754. [Google Scholar] [CrossRef]
- Kumar, D.; Alam, M.; Zou, P.X.W.; Sanjayan, J.G.; Memon, R.A. Comparative analysis of building insulation material properties and performance. Renew. Sustain. Energy Rev. 2020, 131, 110038. [Google Scholar] [CrossRef]
- Ignjatović, D.; Bojana, Z.; Ćuković Ignjatović, N.; Đukanović, L.; Radivojević, A.; Rajčić, A. Methodology for Residential Building Stock Refurbishment Planning—Development of Local Building Typologies. Sustainability 2021, 13, 4262. [Google Scholar] [CrossRef]
- Ballarini, I.; Corrado, V. Application of energy rating methods to the existing building stock: Analysis of some residential buildings in Turin. Energy Build. 2009, 41, 790–800. [Google Scholar] [CrossRef]
- Theodoridou, I.; Papadopoulos, A.M.; Hegger, M. Statistical analysis of the Greek residential building stock. Energy Build. 2011, 43, 2422–2428. [Google Scholar] [CrossRef]
- Caputo, P.; Costa, G.; Ferrari, S. A supporting method for defining energy strategies in the building sector at urban scale. Energy Policy 2013, 55, 261–270. [Google Scholar] [CrossRef]
- García-Ballano, C.J.; Ruiz-Varona, A.; Casas-Villarreal, L. Parametric-based and automatized GIS application to calculate energy savings of the building envelope in rehabilitated nearly zero energy buildings (nZEB). Case study of Zaragoza, Spain. Energy Build. 2020, 215, 109922. [Google Scholar] [CrossRef]
- Panagiotidou, M.; Aye, L.; Rismanchi, B. Optimisation of multi-residential building retrofit, cost-optimal and net-zero emission targets. Energy Build. 2021, 252, 111385. [Google Scholar] [CrossRef]
- Zhan, J.; He, W.; Huang, J. Comfort, carbon emissions, and cost of building envelope and photovoltaic arrangement optimization through a two-stage model. Appl. Energy 2024, 356, 122423. [Google Scholar] [CrossRef]
- Penna, P.; Prada, A.; Cappelletti, F.; Gasparella, A. Multi-objectives optimization of Energy Efficiency Measures in existing buildings. Energy Build. 2015, 95, 57–69. [Google Scholar] [CrossRef]
- Abdeen, A.; Mushtaha, E.; Hussien, A.; Ghenai, C.; Maksoud, A.; Belpoliti, V. Simulation-based multi-objective genetic optimization for promoting energy efficiency and thermal comfort in existing buildings of hot climate. Results Eng. 2024, 21, 101815. [Google Scholar] [CrossRef]
- Nguyen, A.-T.; Reiter, S.; Rigo, P. A review on simulation-based optimization methods applied to building performance analysis. Appl. Energy 2014, 113, 1043–1058. [Google Scholar] [CrossRef]
- Evins, R. A review of computational optimisation methods applied to sustainable building design. Renew. Sustain. Energy Rev. 2013, 22, 230–245. [Google Scholar] [CrossRef]
- Zhao, N.; Zhang, J.; Dong, Y.; Ding, C. Multi-Objective Optimization and Sensitivity Analysis of Building Envelopes and Solar Panels Using Intelligent Algorithms. Buildings 2024, 14, 3134. [Google Scholar] [CrossRef]
- Wang, R.; Lu, S.; Feng, W. A three-stage optimization methodology for envelope design of passive house considering energy demand, thermal comfort and cost. Energy 2020, 192, 116723. [Google Scholar] [CrossRef]
- Mo, W.; Yao, X.; Liu, Z.-A.; Chen, S.; Li, Q.; Jiang, J.; Zhang, G.; Dewancker, B.J. Towards sustainable living in high radiation cold climates: A two-phase genetic algorithm approach for residential building optimization. Build. Environ. 2024, 266, 112133. [Google Scholar] [CrossRef]
- Bre, F.; Silva, A.S.; Ghisi, E.; Fachinotti, V.D. Residential building design optimisation using sensitivity analysis and genetic algorithm. Energy Build. 2016, 133, 853–866. [Google Scholar] [CrossRef]
- Jinan Statistical Yearbook 2024; China Statistical Publishing House: Beijing, China, 2024.
- GB 50176-2016; The Standard for Thermal Design of Civil Buildings. Ministry of Housing and Urban-Rural Development of the People’s Republic of China: Beijing, China, 2016.
- QX/T89-2008; Solar Energy Evaluation Methods. China Meteorological Administration: Beijing, China, 2008.
- Beneito, L.; Torres-Ramo, J.; Sánchez-Ostiz, A. Renovating Post-First-Energy-Regulation Housing: Achieving Nearly Zero-Energy buildings under typical and extreme warm conditions in a temperate European city. Energy Build. 2024, 325, 114936. [Google Scholar] [CrossRef]
- Wang, L. Building Energy Conservation; China Architecture & Building Press: Beijing, China, 2015. [Google Scholar]
- JGJ26-2018; The Design Standards for Energy Efficiency of Residential Buildings in Severe Cold and Cold Regions. Ministry of Housing and Urban-Rural Development of the People’s Republic of China: Beijing, China, 2016.
- China Construction Engineering Cost Information Network. 2024. Available online: https://www.cecn.org.cn (accessed on 20 June 2024).
- Weather Data by Location. Available online: https://energyplus.net/weather (accessed on 14 August 2024).
- Turley, C.; Jacoby, M.; Pavlak, G.; Henze, G. Development and Evaluation of Occupancy-Aware HVAC Control for Residential Building Energy Efficiency and Occupant Comfort. Energies 2020, 13, 5396. [Google Scholar] [CrossRef]
- Zhou, L.; Mao, L.; Wang, K.; Wang, S. Study on the Impact of Climate Change on the Livability of Typical Regions and Adaptation Strategies. Plateau Meteorol. 2024, 43, 1344–1354. [Google Scholar]
- Measures for the Administration of Special Housing Maintenance Funds. 2022. Available online: https://www.gov.cn/zhengce/2022-01/25/content_5711976.htm (accessed on 5 September 2024).
- Xu, M. A Study on Cost-Effectiveness Evaluation of Energy Saving Retrofit in Residential Buildings Based on Multiple Case Comparison; Harbin Institute of Technology: Harbin, China, 2019. [Google Scholar]
- Liu, B.; Chen, Y.; Shi, P.; Liu, J.; Xu, M. Energy Saving Retrofit Measures for Rural Winter Residential Buildings in Jinan. In Proceedings of the 6th National Building Environment and Equipment Technology Exchange Conference, Jinan, China, 15–17 October 2015. [Google Scholar]
- Li, X.; Lin, M.; Xie, W.; Jim, C.Y.; Lai, J.; Cheng, L. Holistic life-cycle cost-benefit analysis of green buildings: A China case study. KSCE J. Civ. Eng. 2023, 27, 4602–4621. [Google Scholar] [CrossRef]
- Summanwar, V.; Jayaraman, V.; Kulkarni, B.; Kusumakar, H.; Gupta, K.; Rajesh, J. Solution of constrained optimization problems by multi-objective genetic algorithm. Comput. Chem. Eng. 2002, 26, 1481–1492. [Google Scholar] [CrossRef]
- Rodado, D.N.; Jiménez, G. Strategic hybrid approach for selecting suppliers of high-density polyethylene. J. Multi-Criteria Decis. Anal. 2017, 24, 296–316. [Google Scholar]
- Li, X.; Wu, J.; Lin, C. Decarbonizing provincial construction industry under the ‘‘dual carbon’’ goals: Assessing reduction capacities and charting optimal pathways. Build. Environ. 2025, 272, 112639. [Google Scholar] [CrossRef]
- Hauke, J.; Kossowski, T. Comparison of values of Pearson’s and Spearman’s correlation coefficients on the same sets of data. Quaest. Geogr. 2011, 30, 87–93. [Google Scholar] [CrossRef]
- Yang, H.; Liu, L.; Li, X.; Liu, C.; Jones, P. Tailored domestic retrofit decision making towards integrated performance targets in Tianjin, China. Energy Build. 2017, 140, 480–500. [Google Scholar] [CrossRef]
- Zhang, X.; Nie, S.; He, M.; Wang, J. Energy-saving renovation of old urban buildings: A case study of Beijing. Case Stud. Therm. Eng. 2021, 28, 101632. [Google Scholar] [CrossRef]
Disclaimer/Publisher’s Note: The statements, opinions and data contained in all publications are solely those of the individual author(s) and contributor(s) and not of MDPI and/or the editor(s). MDPI and/or the editor(s) disclaim responsibility for any injury to people or property resulting from any ideas, methods, instructions or products referred to in the content. |
© 2025 by the authors. Licensee MDPI, Basel, Switzerland. This article is an open access article distributed under the terms and conditions of the Creative Commons Attribution (CC BY) license (https://creativecommons.org/licenses/by/4.0/).

















