Construction of a Value Evaluation System for Fujian Tubao Architectural Heritage Based on Grounded Theory and the Analytic Hierarchy Process
Abstract
1. Introduction
2. Literature Review
2.1. Research on the Value of Architectural Heritage
2.1.1. Research on the Composition of Architectural Heritage Value
2.1.2. Research on Evaluation Methods for Architectural Heritage Value
2.2. Research on the Value of Fujian Tubao
2.3. Review Summary
3. Research Object and Methodology
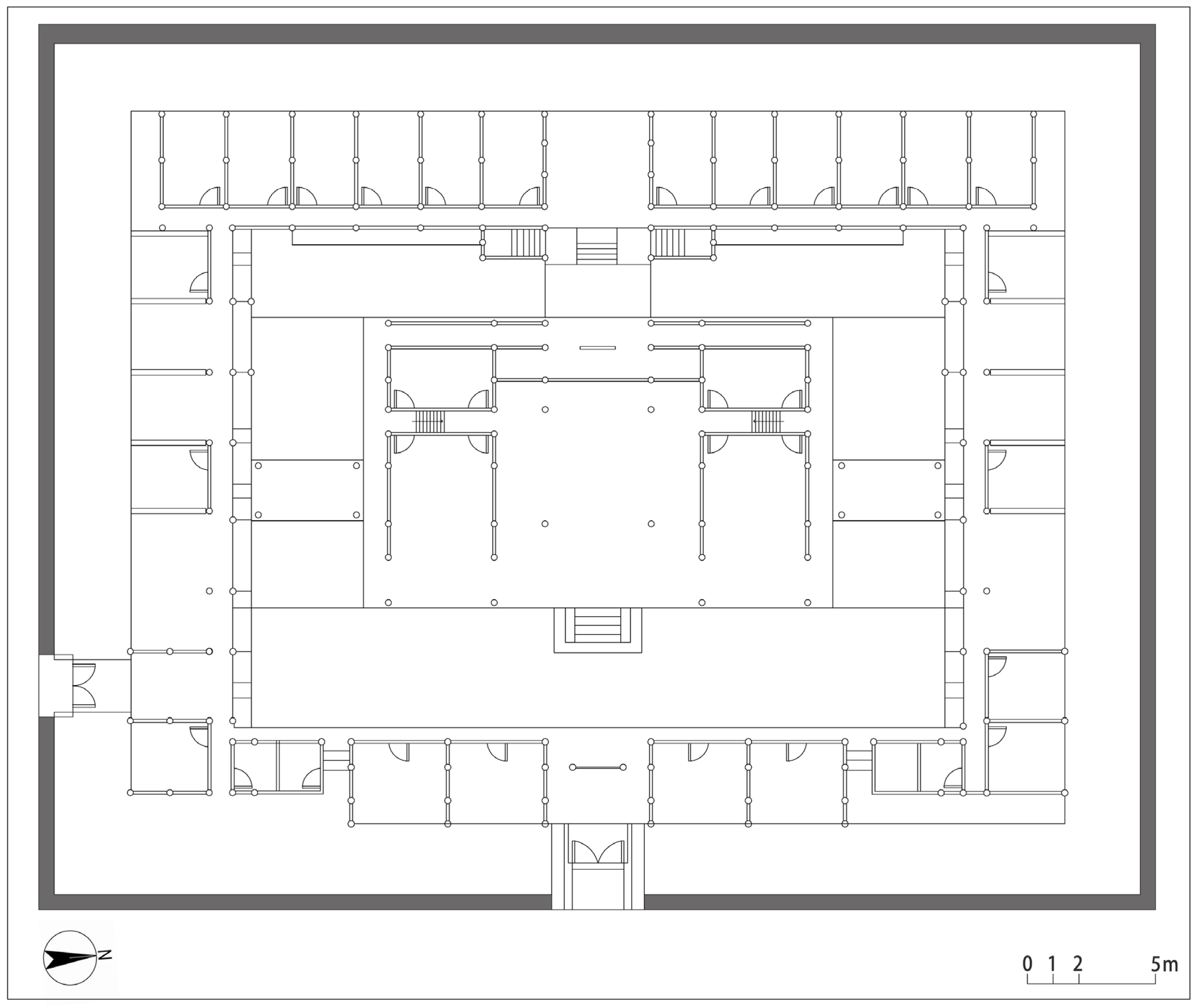
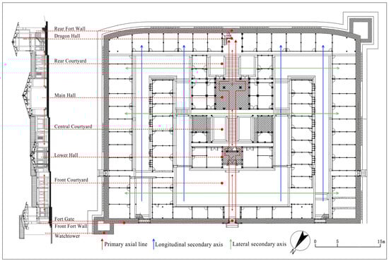
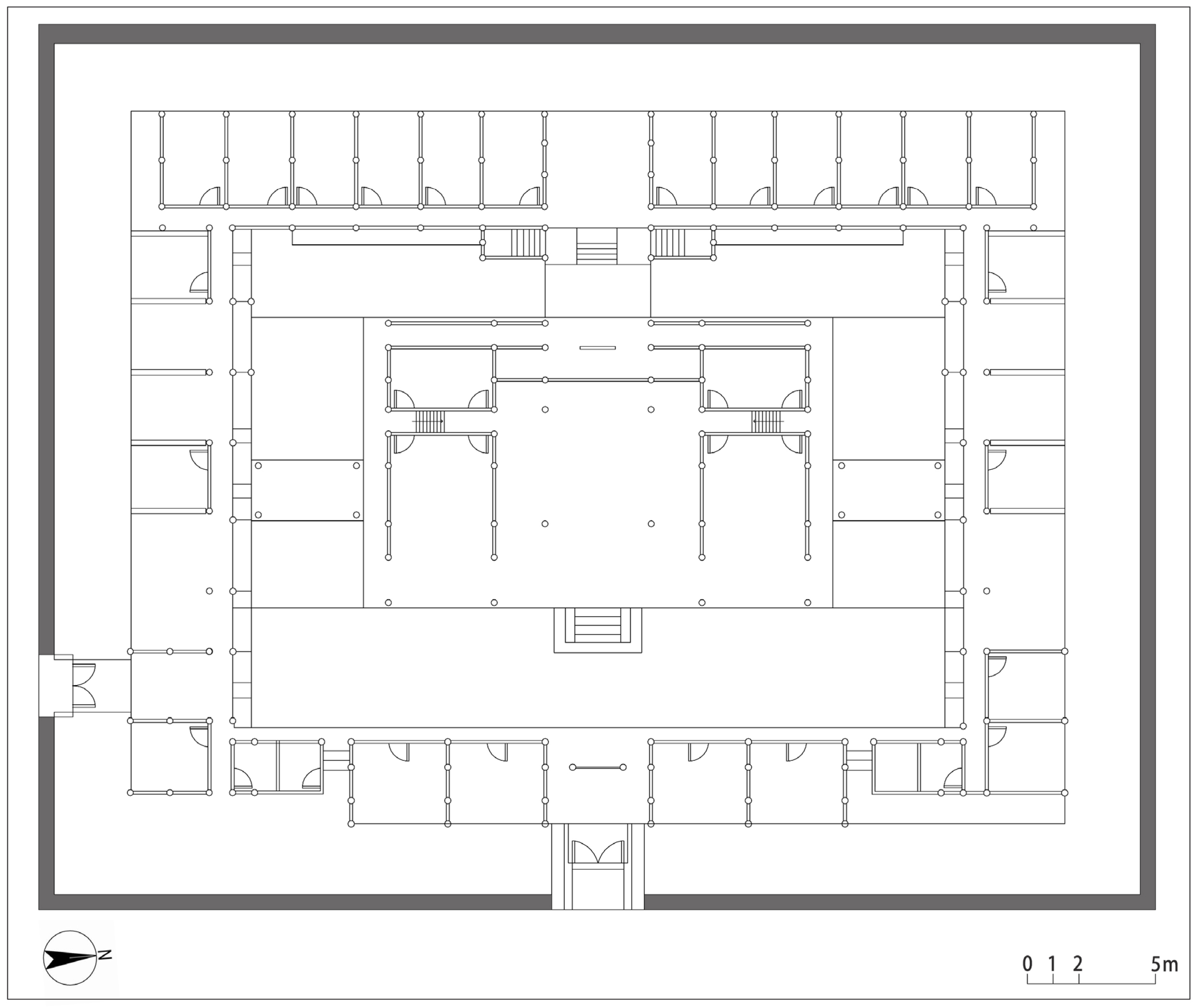
3.1. Research Object
3.2. Research Methodology
4. Constructing a Value Cognition Model Based on Grounded Theory
4.1. Data Collection
4.2. Data Coding
4.3. Theoretical Saturation Test
5. Construction of a Value Evaluation System and Weight Analysis Based on AHP
5.1. Hierarchical Structure of the Value Evaluation System
5.2. Expert Group Decision-Making Hierarchical Analysis Weight
- Multiply elements of each row in the judgment matrix “” to obtain a new vector;
- Take the “n-th” root of each component in the resulting vector (where n is the order of the matrix);
- Normalize the resulting vector to obtain the final weight vector.
5.3. Determination of Indicator Weights in the Value Evaluation System
5.3.1. Weight Calculations for Primary-Level Indicators
5.3.2. Weight Calculation for Secondary-Level Indicators
5.3.3. Sensitivity Analysis
6. Discussion
6.1. Interpretation of Value Cognition
6.1.1. Historical Value
6.1.2. Artistic Value
6.1.3. Scientific Value
6.1.4. Social Value
6.1.5. Cultural Value
6.2. Analysis of Value Indicator Weights
6.2.1. Weight Analysis of Historical Value (B1)
6.2.2. Weight Analysis of Artistic Value (B2)
6.2.3. Weight Analysis of Scientific Value (B3)
6.2.4. Weight Analysis of Social Value (B4) and Cultural Value (B5)
6.3. Case Study Analysis of the Value Assessment Framework
7. Conclusions
7.1. Clarifying Conservation Targets: From Macro-Level Value Dimensions to Specific Elements
7.2. Establishing Value Prioritization: Implications for Heritage Conservation Resource Allocation
7.3. Limitations and Future Research Directions
Author Contributions
Funding
Data Availability Statement
Conflicts of Interest
References
- Qin, Q.; Xiao, D.; Ma, J.; Tao, J. Using graphic comparison to explore the dynamic relationship between social conflicts and Fujian Defense-Dwellings in China. J. Asian Archit. Build. Eng. 2021, 21, 2285–2305. [Google Scholar] [CrossRef]
- Dai, Z. The Fujian Earthen Fort and the Fujian Earth Building Construction Shape Debates Differently. China Anc. City 2012, 4, 50–55. [Google Scholar]
- Pan, K.H. Study on the Earth Fortress in Fujian. Master’s Thesis, Tsinghua University, Beijing, China, 2010. [Google Scholar]
- Zhao, Y.; Luo, Z.; Huang, K. Characterization of public space forms in traditional Chinese villages based on spatial syntax: Zhangli village as an example. J. Asian Archit. Build. Eng. 2024, 23, 1–22. [Google Scholar] [CrossRef]
- Xu, S. A Study on the Value of Architectural Heritage in the Zhongshan Road Historical and Cultural District, Shilong, Dongguan. Master’s Thesis, South China University of Technology, Guangzhou, China, 2023. [Google Scholar]
- Zhang, Y.; Chen, S. A methodological study on the value analysis of celebrity former residence heritage buildings: A case study of several former residences in Qingdao. China Cult. Herit. 2020, 3, 83–93. [Google Scholar]
- Chen, H.; Zhou, Y.; Zhang, P. Value Perception and Willingness to Pay for Architectural Heritage Conservation: Evidence from Kumbum Monastery in China. Buildings 2025, 15, 1295. [Google Scholar] [CrossRef]
- Kee, S. A Study on the Trends of Acceptance Criteria of the Relocation of Architectural Heritages and Priority Values of Monuments in Seoul. Sustainability 2022, 14, 8404. [Google Scholar] [CrossRef]
- Xu, Y.; Rollo, J.; Esteban, Y.; Tong, H.; Yin, X. Developing a Comprehensive Assessment Model of Social Value with Respect to Heritage Value for Sustainable Heritage Management. Sustainability 2021, 13, 13373. [Google Scholar] [CrossRef]
- Fredheim, L.H.; Khalaf, M. The significance of values: Heritage value typologies re-examined. Int. J. Herit. Stud. 2016, 22, 466–481. [Google Scholar] [CrossRef]
- Hung, H.; Yau, Y. On the assessment of social value of heritage places in Hong Kong. J. Asian Public Policy 2022, 17, 469–483. [Google Scholar] [CrossRef]
- Augustiniok, N.; Houbart, C.; Plevoets, B.; Van Cleempoel, K. Adaptive reuse of built heritage: Conserving and designing with values. J. Cult. Herit. Manag. Sustain. Dev. 2025, 15, 24–41. [Google Scholar] [CrossRef]
- Burgos Vargas, C.; Mora Alonso-Muñoyerro, S. About the validity of Alois Riegl’s the Modern Cult of Monuments. J. Archit. Conserv. 2022, 28, 183–196. [Google Scholar] [CrossRef]
- Wu, L. Studies in the History of Industry and Technology; Science Press: Beijing, China, 2018. (In Chinese) [Google Scholar]
- Hua, Y.; Chun, Q.; Jin, H. Research on Collapse Modes and Bearing Capacities of Ancient Chinese Stone Arch Bridges Built with Different Stone Arrangements. Int. J. Archit. Herit. 2020, 16, 553–576. [Google Scholar] [CrossRef]
- de la Torre, M. Values and Heritage Conservation. Herit. Soc. 2013, 6, 155–166. [Google Scholar] [CrossRef]
- Della Spina, L. Adaptive Sustainable Reuse for Cultural Heritage: A Multiple Criteria Decision Aiding Approach Supporting Urban Development Processes. Sustainability 2020, 12, 1363. [Google Scholar] [CrossRef]
- Arrighi, C.; Masi, M.; De Lucia, C.; Castelli, F. Prioritizing risk for cultural heritage through social value: A participatory framework. Int. J. Disaster Risk Reduct. 2025, 93, 105627. [Google Scholar] [CrossRef]
- Salehipour, M.; Kazemi, N.; Jokar Arsanjani, J.; Karimi Firozjaei, M. Developing a Multi-Criteria Decision Model to Unlock Sustainable Heritage Tourism Potential. Sustainability 2025, 17, 3703. [Google Scholar] [CrossRef]
- Davies, O.O.A.; Brisibe, W.G.; Imaah, N.O.; Daminabo, F.F.O. A multi-criteria approach to assessing the revival of heritage through adaptive reuse: The case study of Fagbewesa’s House in Osogbo, Osun State, Nigeria. Int. J. Archit. Herit. 2025, 8, 1–17. [Google Scholar]
- Lin, Y. Fundamental Theoretical Research on the Conservation of Chinese Architectural Heritage. Doctoral Dissertation, Xi’an University of Architecture and Technology, Xi’an, China, 2007. [Google Scholar]
- Yu, J. A discussion on the value of cultural heritage. Sci. Technol. Assoc. Forum 2011, 3, 185–186. [Google Scholar]
- Qin, H. On the value components of architectural cultural heritage. China Anc. City 2013, 7, 18–22+26. [Google Scholar]
- Xu, J. A renewed understanding of the architectural heritage value system. China Anc. City 2018, 4, 71–76. [Google Scholar]
- Gao, F. Value Assessment of the Industrial Heritage of the Chinese Eastern Railway from the Perspective of Heritage Corridors. Ph.D. Thesis, Harbin Institute of Technology, Harbin, China, 2018. [Google Scholar]
- Han, B.; Luo, Z. Evaluation of Subsoil Modulus for the Value of Architectural Heritage. Huazhong Archit. 2010, 6, 116–118. [Google Scholar]
- Song, G.; Yang, C. Re-Examining on the Value Assessment System of Modern Architectural Heritage. Archit. J. 2013, S2, 198–201. [Google Scholar]
- Qiu, G.; Yu, D. Cultural and artistic characteristics of Sanming Tubao architecture and its digital preservation. Theory Res. 2009, 28, 156–158. [Google Scholar]
- Dai, Z. The present and future of Fujian Tubao: Summary of the National Academic Symposium on Fujian Tubao, China. New Archit. 2011, 5, 130–137. [Google Scholar]
- Wang, H.; Yan, W. A study on the conservation strategies for Shuimei Tubao Cluster in Shaxian, Fujian from a multidimensional value perspective. Fujian Wen Bo 2024, 1, 44–50. [Google Scholar]
- Fayez, H. From ‘Objects’ to ‘Sustainable Development’: The Evolution of Architectural Heritage Conservation in Theory and Practice. Buildings 2024, 14, 2566. [Google Scholar] [CrossRef]
- Pastor Pérez, A.; Barreiro Martínez, D.; Parga-Dans, E.; Alonso González, P. Democratising Heritage Values: A Methodological Review. Sustainability 2021, 13, 12492. [Google Scholar] [CrossRef]
- Susemihl, G. Ideas, Concepts and Uses of Heritage. In Claiming Back Their Heritage. Heritage Studies; Springer: Cham, Switzerland, 2023. [Google Scholar]
- Klamer, A. The values of cultural heritage. In Handbook on the Economics of Cultural Heritage; Ginsburgh, V.A., Throsby, D., Eds.; Edward Elgar Publishing: Cheltenham, UK, 2013; pp. 421–437. [Google Scholar]
- Porretta, P.; Pallottino, E.; Colafranceschi, E. Minnan and Hakka Tulou. Functional, Typological and Construction Features of the Rammed Earth Dwellings of Fujian (China). Int. J. Archit. Herit. 2022, 16, 899–922. [Google Scholar] [CrossRef]
- Qiao, X. Inheritance and Evolution: Research on the Activation Design of Fuxing Bao in Yong’an City. Master’s Thesis, Jiangxi University of Finance and Economics, Nanchang, China, 2023. [Google Scholar]
- Xu, Y.; Zhang, F. A study on the evaluation system of urban brand image based on grounded theory and the analytic hierarchy process (AHP). Ind. Innov. Res. 2024, 15, 88–90. [Google Scholar]
- Fan, J.; Zheng, B.; Liu, J.; Tian, F.; Sun, Z. Research on Child-Friendly Evaluation and Optimization Strategies for Rural Public Spaces. Buildings 2024, 14, 2948. [Google Scholar] [CrossRef]
- Liu, Z.; Zhao, X.; Long, W. Mechanism of consumers’ purchase intention under livestream e-commerce: A grounded theory analysis. China Bus. Mark. 2020, 34, 48–57. [Google Scholar]
- Wang, T.; Zhou, L.; Zhou, N.; Mou, Y.; Xie, Z. How is the image of a country of origin formed? A grounded study based on American and Indian consumer evaluations and the theory of reasoned action. Manag. World 2012, 3, 113–126. [Google Scholar]
- Che, J.; Su, W.; Bai, L.; Guo, H. A Grounded Theory Approach to the Influence Mechanism of Residential Behavior among Mongolian Yurt Dwellers in China. Buildings 2023, 13, 1268. [Google Scholar] [CrossRef]
- Zhang, M.; Zhang, J.; Liu, Q.; Li, T.; Wang, J. Research on the Strategies of Living Conservation and Cultural Inheritance of Vernacular Dwellings—Taking Five Vernacular Dwellings in China’s Northern Jiangsu as an Example. Sustainability 2022, 14, 12503. [Google Scholar] [CrossRef]
- Alvarenga, A.D.; Salgado, E.G.; de Sousa Mendes, G.H. Ranking criteria for selection of certification bodies for ISO 9001 through the Analytic Hierarchy Process (AHP). Int. J. Qual. Reliab. Manag. 2018, 35, 1321–1342. [Google Scholar] [CrossRef]
- Liu, W.; Liu, S. Construction of group decision judgment matrix in AHP. Syst. Eng. Electron. 2005, 11, 93–94+99. [Google Scholar]
- Liu, Y.; Zhang, B.; Qin, J.; Zhu, Q.; Lyu, S. Integrated Performance Assessment of Prefabricated Component Suppliers Based on a Hybrid Method Using Analytic Hierarchy Process–Entropy Weight and Cloud Model. Buildings 2024, 14, 3872. [Google Scholar] [CrossRef]
- Huang, J.; Song, Y.; Sheng, Y.; Zhang, Y.; Hu, D. Restorative Potential Assessment of Public Open Space in Old Urban Communities in the Context of Aging—A Case Study of Dabeizhuang Community in Maanshan, China. Buildings 2024, 14, 2671. [Google Scholar] [CrossRef]
- Duan, X.; Lin, B.; Meng, L.; Zhao, F. A Method for Selecting and Optimizing Pocket Park Design Proposals Based on Multi-Attribute Decision Making. Buildings 2025, 15, 1026. [Google Scholar] [CrossRef]
- Zhang, Y.; Li, W.; Cai, X. A cultural geography study of the spatial art and cultural features of the interior of Lingnan ancestral halls in the Ming and Qing dynasties. J. Asian Archit. Build. Eng. 2023, 22, 3128–3140. [Google Scholar] [CrossRef]
- Tang, X.; Zhang, J.; Xu, S. Scale Level Characterization of Waterside Landscape in Dongjiang River Delta. South Archit. 2023, 4, 89–95. [Google Scholar]
- Zhao, H. A Study on the Value of Ancestral Hall Architectural Heritage in Dongguan. Master’s Thesis, South China University of Technology, Guangzhou, China, 2022. [Google Scholar]
- Ke, K. A Comparative Study on the Regional Characteristics of Rammed-Earth Dwellings in Northern Shaanxi and Southern Fujian. Master’s Thesis, Xi’an University of Architecture and Technology, Xi’an, China, 2011. [Google Scholar]
- Lin, X.; Lin, S.; Li, C.; Li, C. A study on the spatial characteristics of Fujian Tubao from the perspective of architectural ethics. Chin. Overseas Archit. 2021, 8, 125–128. [Google Scholar]
- Zhang, M.; Li, H.; Liu, Q. Research on the Characteristics of Timber Frames in Traditional Residences in North Jiangsu Province of China. Int. J. Archit. Herit. 2025, 19, 1–17. [Google Scholar] [CrossRef]
- Lou, J. A comprehensive overview of Fujian Tubao architecture. Fujian Wen Bo 2009, 35–44, 96–97. [Google Scholar]
- Liu, W.; Li, T.; Chen, X. Research on the evolution of urban defense in song dynasty based on shouchenglu 守城录(Record of urban defense). J. Asian Archit. Build. Eng. 2024, 24, 1094–1111. [Google Scholar] [CrossRef]
- Chen, W. A Study on the Spatial Form and Typological Design of Minzhong Tubao. Master’s Thesis, Huaqiao University, Quanzhou, China, 2010. [Google Scholar]
- Zhang, S. The heritage practices in a Chinese historic neighbourhood: The manifestation of traditional Feng Shui in Langzhong, China. Int. J. Herit. Stud. 2017, 24, 531–546. [Google Scholar] [CrossRef]
- Dai, Z. Fujian Vernacular Dwellings; China Architecture & Building Press: Beijing, China, 2009; p. 45. [Google Scholar]
- Wang, X.; Fang, K.; Chen, L.; Furuya, N. The influence of atrium types on the consciousness of shared space in amalgamated traditional dwellings—A case study on traditional dwellings in Quanzhou City, Fujian Province, China. J. Asian Archit. Build. Eng. 2019, 18, 335–350. [Google Scholar] [CrossRef]
- Lin, X.; Wu, Y. Architectural Spatial Characteristics of Fujian Tubao from the Perspective of Chinese Traditional Ethical Culture. Buildings 2023, 13, 2360. [Google Scholar] [CrossRef]
- Gui, W.; Zhang, T.; Cui, D. A comparative study on walking accessibility of high-speed railway station areas in China and Japan based on analytic hierarchy process—Beijing station and Osaka station as examples. J. Asian Archit. Build. Eng. 2024, 24, 540–553. [Google Scholar] [CrossRef]
- Li, N. A Study on the Architectural Heritage Value of Dazhao Temple in Inner Mongolia. Master’s Thesis, Inner Mongolia University of Technology, Hohhot, China, 2019. [Google Scholar]











| Number | Interview Excerpt | Conceptualization (ax) |
|---|---|---|
| Villager 1 | The Fujian Tubao in our village was built by our clan ancestors during the Qing Dynasty, so it has a long history. Although parts of the structure are damaged, it is still relatively well preserved. We lived in the Tubao as children, and every time I pass by it now, it brings back memories of my childhood—this is what I find most emotionally compelling about it. One of the unique features of the Tubao is its defensive function; the thick rammed-earth walls are rarely seen in other buildings. We also heard many stories from our elders about how it protected the village from bandits. Most of us in the village believe that it is because of the Tubao that our clan was able to live in peace and safety… | a3 Historical continuity (aa3, aa51, aa377⋯) a7 Defensive dwelling (aa8, aa55, aa57, aa58⋯) a8 Architectural form and appearance (aa9, aa56, aa311, aa382⋯) a11 Structural and stylistic integrity (aa12, aa52, aa398⋯) a15 Clan-based settlement pattern (aa16, aa50, aa89⋯) a17 Emotional and symbolic attachment (aa22, aa53, aa59⋯) … |
| Village Official 1 | The recorded history of our village predates the construction of the Tubao by a long time. However, after the Tubao was built, there was noticeably more emphasis on documenting important village events. This is likely because most of the villagers share the same surname and belong to one extended clan—the same clan that built the Tubao. Since then, our sense of unity has grown stronger, and people have become more actively involved in collective activities… | a15 Clan-based settlement pattern (aa16, aa50, aa89⋯) a19 Community cohesion (aa28, aa264, aa265⋯) a20 Promotion of social interaction (aa33, aa265, ⋯) a37 Representation of village history (aa262, aa281, aa389⋯) … |
| Manager 1 | We are quite familiar with the Fujian Tubao under our management, and every year we receive many expert visits for inspections and research. Personally, I find the historical narratives and architectural design of the Tubao most compelling. As a descendant of the clan that originally built it, my family also contributed to its construction in earlier times, so we know some of the stories about the battles and the building process. Looking at it now, the Tubao has a very distinctive structure—tall and massive—which was primarily designed to defend against bandit attacks. The central courtyard with its antique charm carries a strong sense of historical depth… | a7 Defensive dwelling (aa8, aa55, aa57, aa58⋯) a28 Attraction (aa54, aa308, aa309⋯) a46 Transmission of regional cultural (aa310, aa383⋯) a47 Aesthetic ideal of harmony with nature (aa313, aa385⋯) … |
| Serial Number | Concept | Initial Category |
|---|---|---|
| A1 | Long historical legacy, Defensive vernacular dwelling, Ming Dynasty architecture, Qing Dynasty architecture, Stories of historical figures | Tracing the Historical Evolution |
| A2 | Resistance against banditry, Revolutionary movements of the Red Army, Transmission of Red culture | Corroboration and Enrichment of Historical Sources |
| A3 | Intact architectural appearance, Reflection of village history, Documentation of clan development, Textual inscriptions, Calligraphy by notable figures, Historical sources | Embodiment of Historical Facts |
| A4 | Architectural appearance, Color composition, Stylistic form, Massive rammed-earth walls | The Rhythmic Aesthetics of Architectural Morphology |
| A5 | Enclosed by rammed-earth walls, Central residential area, Clear spatial hierarchy, Central-axis symmetry, North–south orientation, Multiple courtyards, Hierarchical building arrangement, Functional zoning | Aesthetic Order of Spatial Organization |
| A6 | Complex patterns, Polychrome painting, Carving, Character decoration composition, Gate decoration, Cultural relics, Inscribed plaques | Symbolic Aesthetics of Architectural Ornamentation |
| A7 | Feng shui-based site selection, Backing mountains and facing water, Built against the mountain, Natural defensive barrier, Aesthetic ideal of harmony with mountains and water | Scientific Suitability of Site Selection |
| A8 | Natural principles, Living facilities, Building materials, Locally sourced materials, Environmental pattern, Rammed earth and timber | Ecological Rationality in Building Materials |
| A9 | Physical properties of natural materials, Craftsmen, Building techniques, Traditional craftsmanship | Ingenuity in Construction Techniques |
| A10 | Memory carrier, Emotional sustenance, Landmark building, Childhood memory, Ancestral home, Collective activity, Ancestral hall, Sense of attraction, Everyday living scene | Rural Collective Memory |
| A11 | Observance of ritual propriety, Highly respected status, Regulation of clan members’ behavior, Encouragement for clan members to pursue knowledge and self-improvement | Educational and Moral Function |
| A12 | Recreational and entertainment activities, Socio-cultural activities, Clan cohesion, Facilitation of social interaction | Clan Cohesion |
| A13 | Forest culture, Cradle of Zhu Xi culture, Regional culture, Central Plains architectural culture | Cultural Transmission |
| A14 | Folk activities, Traditional craftsmanship, Inheritors of intangible cultural heritage | Carrier of Intangible Cultural Heritage |
| Core Category | Subcategory |
|---|---|
| Historical Value | Tracing the Historical Evolution |
| Corroboration and Enrichment of Historical Sources | |
| Embodiment of Historical Facts | |
| Artistic Value | The Rhythmic Aesthetics of Architectural Morphology |
| Aesthetic Order of Spatial Organization | |
| Symbolic Aesthetics of Architectural Ornamentation | |
| Scientific Value | Scientific Suitability of Site Selection |
| Ecological Rationality in Building Materials | |
| Ingenuity in Construction Techniques | |
| Social Value | Rural Collective Memory |
| Educational and Moral Function | |
| Clan Cohesion | |
| Cultural Value | Cultural Transmission |
| Carrier of Intangible Cultural Heritage |
| Goal Level (A) | Criterion Level (B) | Indicator Level (C) | Definition |
|---|---|---|---|
| A Value Evaluation of Fujian Tubao Architectural Heritage | B1 Historical Value | C1 Tracing Historical Evolution | Reflects the socio-political context of central Fujian during the Ming and Qing dynasties and traces the development of defensive architecture in the region |
| C2 Corroboration of Historical Sources | Supplements historical records related to political and military events, as well as grassroots resistance to banditry | ||
| C3 Embodiment of Historical Facts | Embodies the historical development of settlements and clans | ||
| B2 Artistic Value | C4 Architectural Morphology | Artistic expression in planar layouts and façade stratification | |
| C5 Spatial Organization | Sense of spatial order along architectural axes | ||
| C6 Architectural Ornamentation | Symbolic aesthetics of architectural ornamentation | ||
| B3 Scientific Value | C7 Site Environment | Ecological appropriateness of scientifically selected site environments | |
| C8 Construction Techniques | Technical ingenuity reflected in construction methods | ||
| C9 Building Materials | Rationality in the selection and use of building materials | ||
| B4 Social Value | C10 Rural Collective Memory | The source of villagers’ sense of identity and belonging to their rural homeland | |
| C11 Educational and Moral Function | A normative and motivational force that regulates clan behavior and promotes personal advancement | ||
| C12 Clan Cohesion | A cohesive bond that reinforces clan unity | ||
| B5 Cultural Value | C13 Regional Culture | A concentrated expression of the diverse cultures of central Fujian | |
| C14 Carrier of Intangible Cultural Heritage | The physical and spatial carrier of intangible cultural heritage |
| Expert Scoring Criteria | |||
|---|---|---|---|
| Academic qualifications | Bachelor’s degree and below | Master’s degree | Doctoral Degree |
| Score | 1 | 3 | 6 |
| Title | Researcher and below | Associate Professor | Professor |
| Score | 1 | 3 | 6 |
| Length of service | Less than 5 years | 5–10 years | Over 10 Years |
| Score | 1 | 3 | 6 |
| Familiarity | Unfamiliar | General | Very Familiar |
| Score | 1 | 3 | 6 |
| Number | Academic Qualifications | Title | Length of Service | Familiarity | Score | Weights |
|---|---|---|---|---|---|---|
| Expert 1 | 6 | 3 | 1 | 3 | 13 | 0.16456 |
| Expert 2 | 3 | 1 | 1 | 3 | 8 | 0.10127 |
| Expert 3 | 6 | 1 | 1 | 3 | 11 | 0.13924 |
| Expert 4 | 6 | 3 | 3 | 3 | 15 | 0.18987 |
| Expert 5 | 3 | 1 | 1 | 6 | 11 | 0.13924 |
| Expert 6 | 3 | 1 | 1 | 3 | 8 | 0.10127 |
| Expert 7 | 6 | 3 | 1 | 3 | 13 | 0.16456 |
| Number | Scale Meaning | Specific Value |
|---|---|---|
| 1 | Comparing the former element i with the latter element j, i is as important as j. | aij = 1 |
| 2 | Comparing the former element i with the latter element j, i and j are slightly important. | aij = 3 |
| 3 | Comparing the former element i with the latter element j, i and j are clearly important. | aij = 5 |
| 4 | Comparing the former element i with the latter element j, i and j are strongly important. | aij = 7 |
| 5 | Comparing the former element i with the latter element j, i and j are absolutely important. | aij = 9 |
| 6 | Indicates that the importance of element i compared to element j falls between the above judgments. | aij = 2, 4, 6, 8 |
| 7 | If the relative importance scale of element i to element j is aij, then the relative importance scale of element j to i is aji = 1/aij | reciprocal |
| Matrix Order | 1 | 2 | 3 | 4 | 5 | 6 | 7 | 8 | 9 | 10 | 11 | 12 |
|---|---|---|---|---|---|---|---|---|---|---|---|---|
| RI | 0 | 0 | 0.52 | 0.89 | 1.12 | 1.26 | 1.36 | 1.41 | 1.46 | 1.49 | 1.52 | 1.54 |
| Criteria | B1 Historical Value | B2 Artistic Value | B3 Scientific Value | B4 Social Value | B5 Cultural Value |
|---|---|---|---|---|---|
| B1 Historical Value | 1 | 2 | 3 | 5 | 6 |
| B2 Artistic Value | 1/2 | 1 | 3 | 4 | 7 |
| B3 Scientific Value | 1/3 | 1/3 | 1 | 2 | 3 |
| B4 Social Value | 1/5 | 1/4 | 1/2 | 1 | 3 |
| B5 Cultural Value | 1/6 | 1/7 | 1/3 | 1/3 | 1 |
| Evaluation Indicators | Relative Weight | λmax | CI | CR |
|---|---|---|---|---|
| B1 | 0.4179 | 5.14 | 0.035 | 0.0312 < 0.1 Consistency check passed |
| B2 | 0.3124 | |||
| B3 | 0.1364 | |||
| B4 | 0.0881 | |||
| B5 | 0.0451 |
| Number | Indicator Name | Weight | λmax | CI | CR |
|---|---|---|---|---|---|
| Expert 2 | B1 | 0.4628 | 5.3739 | 0.09347 | 0.0835 |
| B2 | 0.2693 | ||||
| B3 | 0.1661 | ||||
| B4 | 0.0632 | ||||
| B5 | 0.0386 | ||||
| Expert 3 | B1 | 0.4865 | 5.2879 | 0.07197 | 0.0643 |
| B2 | 0.2831 | ||||
| B3 | 0.1236 | ||||
| B4 | 0.071 | ||||
| B5 | 0.0358 | ||||
| Expert 4 | B1 | 0.3862 | 5.3534 | 0.08835 | 0.0789 |
| B2 | 0.3362 | ||||
| B3 | 0.1429 | ||||
| B4 | 0.0935 | ||||
| B5 | 0.0412 | ||||
| Expert 5 | B1 | 0.4418 | 5.2684 | 0.0671 | 0.0599 |
| B2 | 0.2703 | ||||
| B3 | 0.1601 | ||||
| B4 | 0.0945 | ||||
| B5 | 0.0333 | ||||
| Expert 6 | B1 | 0.4298 | 5.1433 | 0.03582 | 0.032 |
| B2 | 0.3226 | ||||
| B3 | 0.0444 | ||||
| B4 | 0.072 | ||||
| B5 | 0.1312 | ||||
| Expert 7 | B4 | 0.4068 | 5.1256 | 0.0314 | 0.028 |
| B5 | 0.2973 | ||||
| B4 | 0.0464 | ||||
| B5 | 0.0827 | ||||
| B4 | 0.1668 |
| B1 | B2 | B3 | B4 | B5 | |
|---|---|---|---|---|---|
| B1 | 1 | 2.2456 | 4.366 | 4.942 | 5.123 |
| B2 | 0.4453 | 1 | 3.596 | 4.6639 | 5.1704 |
| B3 | 0.229 | 0.2781 | 1 | 1.5341 | 2.0601 |
| B4 | 0.2023 | 0.2144 | 0.6518 | 1 | 1.9019 |
| B5 | 0.1952 | 0.1934 | 0.4854 | 0.5258 | 1 |
| Evaluation Indicators | Weight | λmax | CI | CR |
|---|---|---|---|---|
| B1 | 0.4452 | 5.1195 | 0.0299 | 0.0267 |
| B2 | 0.3068 | |||
| B3 | 0.1072 | |||
| B4 | 0.0824 | |||
| B5 | 0.0584 |
| Evaluation Indicators | C1 | C2 | C3 |
|---|---|---|---|
| C1 | 1 | 0.7543 | 0.2194 |
| C2 | 1.3258 | 1 | 0.3113 |
| C3 | 4.5572 | 3.2121 | 1 |
| Evaluation Indicators | Weight | λmax | CI | CR |
|---|---|---|---|---|
| C1 | 0.1468 | 3.0005 | 0.0003 | 0.0006 < 0.1 Consistency check passed |
| C2 | 0.1991 | |||
| C3 | 0.6541 |
| Evaluation Indicators | Weight | λmax | CI | CR |
|---|---|---|---|---|
| C4 | 0.6453 | 3.0032 | 0.0016 | 0.0031 < 0.1 Consistency check passed |
| C5 | 0.2072 | |||
| C6 | 0.1475 | |||
| C7 | 0.1699 | 3.0049 | 0.0025 | 0.0048 < 0.1 Consistency check passed |
| C8 | 0.7075 | |||
| C9 | 0.1225 | |||
| C10 | 0.6591 | 3.0089 | 0.0045 | 0.0087 < 0.1 Consistency check passed |
| C11 | 0.1387 | |||
| C12 | 0.2022 | |||
| C13 | 0.5558 | 2.0001 | 0.0001 | 0.0001 < 0.1 Consistency check passed |
| C14 | 0.4442 |
| Goal Level (A) | Criterion Level (B) | Indicator Level (C) | Relative Weight | Composite Weight (B × C) |
|---|---|---|---|---|
| A Value Evaluation of Fujian Tubao Architectural Heritage 1 | B1 Historical Value 0.4452 | C1 Tracing Historical Evolution | 0.1468 | 0.06536 |
| C2 Corroboration of Historical Sources | 0.1991 | 0.08864 | ||
| C3 Embodiment of Historical Facts | 0.6541 | 0.29121 | ||
| B2 Artistic Value 0.3068 | C4 Architectural Morphology | 0.6453 | 0.19798 | |
| C5 Spatial Organization | 0.2072 | 0.06357 | ||
| C6 Architectural Ornamentation | 0.1475 | 0.04525 | ||
| B3 Scientific Value 0.1072 | C7 Site Environment | 0.1699 | 0.01821 | |
| C8 Construction Techniques | 0.7075 | 0.07584 | ||
| C9 Building Materials | 0.1225 | 0.01313 | ||
| B4 Social Value 0.0824 | C10 Rural Collective Memory | 0.6591 | 0.05431 | |
| C11 Educational and Moral Function | 0.1387 | 0.01143 | ||
| C12 Clan Cohesion | 0.2022 | 0.01666 | ||
| B5 Cultural Value 0.0584 | C13 Regional Culture | 0.5558 | 0.03246 | |
| C14 Carrier of Intangible Cultural Heritage | 0.4442 | 0.02594 |
| The Yu Clan Genealogy of Wenlong Village records Fuxing Bao in Yong’an City | The Zhu Clan Genealogy of Xinzhai Village records Yongzhi Lou in Yong’an City |
![]() | ![]() |
| The Zhang Clan Genealogy of Dataokou Village records Shenxiu Bao in Yong’an City | The Zhu Clan Genealogy of Xinzai Village records Yongsheng Lou in Yong’an City |
![]() | ![]() |
| Material | Illustration | Facilities | Material | Illustration | Facilities |
|---|---|---|---|---|---|
| Rammed Earth | ![]() | External Walls | China Fir | ![]() | Timber Frame |
| Terracotta Tiles | ![]() | Roof | Stone Slabs | ![]() | Railway Platform |
| Bluestone Bricks | ![]() | Floor Paving | Pebbles | ![]() | Pathways |
| River Sand | ![]() | Wall Base | Bamboo | ![]() | Doors and Windows |
Disclaimer/Publisher’s Note: The statements, opinions and data contained in all publications are solely those of the individual author(s) and contributor(s) and not of MDPI and/or the editor(s). MDPI and/or the editor(s) disclaim responsibility for any injury to people or property resulting from any ideas, methods, instructions or products referred to in the content. |
© 2025 by the authors. Licensee MDPI, Basel, Switzerland. This article is an open access article distributed under the terms and conditions of the Creative Commons Attribution (CC BY) license (https://creativecommons.org/licenses/by/4.0/).
Share and Cite
Qiao, X.; Liu, X.; Ye, W.; Chen, M. Construction of a Value Evaluation System for Fujian Tubao Architectural Heritage Based on Grounded Theory and the Analytic Hierarchy Process. Buildings 2025, 15, 2265. https://doi.org/10.3390/buildings15132265
Qiao X, Liu X, Ye W, Chen M. Construction of a Value Evaluation System for Fujian Tubao Architectural Heritage Based on Grounded Theory and the Analytic Hierarchy Process. Buildings. 2025; 15(13):2265. https://doi.org/10.3390/buildings15132265
Chicago/Turabian StyleQiao, Xiaoyang, Xinwei Liu, Wenliang Ye, and Maowei Chen. 2025. "Construction of a Value Evaluation System for Fujian Tubao Architectural Heritage Based on Grounded Theory and the Analytic Hierarchy Process" Buildings 15, no. 13: 2265. https://doi.org/10.3390/buildings15132265
APA StyleQiao, X., Liu, X., Ye, W., & Chen, M. (2025). Construction of a Value Evaluation System for Fujian Tubao Architectural Heritage Based on Grounded Theory and the Analytic Hierarchy Process. Buildings, 15(13), 2265. https://doi.org/10.3390/buildings15132265













