Abstract
In China, conventional island shield buildings (CISBs), which are situated close to the nuclear islands of nuclear power plants, are class III seismic items. This is the most important level in the seismic fortification standard. Calculations to check resistance overturning under extremely safe seismic action should be carried out. Although strict seismic design has been carried out, many beyond-design-basis events, such as the 3/11 earthquake in Japan, have occurred in recent years. Under the action of such accidental loads, there is still the possibility that the important vertical bearing components of a CISB will be damaged or destroyed, which will lead to the progressive vertical collapse of the CISB structure, and ultimately threaten the safe operation of the nuclear power plant. Therefore, it is necessary to study the progressive collapse resistance mechanism of the CISB in order to further optimize and improve its design. In this paper, we take the CISB as a research object and consider the failure mechanism of its vertical progressive collapse synthetically, using SAP2000 finite element software to study the causation and strength of resistance force and internal force redistribution characteristics due to progressive collapse under different column removal conditions (long-side middle, short-side middle, internal, and corner columns) using the instantaneous unloading method. The results show that the residual structure is at risk of collapse under the corner and long-edge middle column removal conditions, and there is no risk of collapse under the short-edge middle and internal column conditions. The failure and collapse resistance of the corner column only has a beam mechanism, and the long-side middle column forms a catenary mechanism in the Y direction. The short-side middle column can resist collapse by the beam mechanism, while the internal column forms a bidirectional catenary mechanism in the X and Y directions. The axial force of the column in the residual structure is mainly redistributed to column members with adjacent spans to the failure column, and column members with separated spans are less affected.
1. Introduction
The CISB of a nuclear power plant is an important building close to the nuclear island area. As an important hub for converting steam into electric energy, it plays an important role in the operation and power generation system of the nuclear power plant. Due to its complex and irregular structural form, various loads on equipment and pipelines, and uneven distribution of stiffness and mass [1], some important vertical components of the CISB structure could be damaged and destroyed under the action of load exceeding the design basis, which will lead to progressive vertical collapse. As important sources of accidental load, beyond-design-basis events are mainly divided into natural and human-made events [2]. As an important representative of natural events, a beyond-design-basis earthquake is a rare high-intensity earthquake that has the characteristics of short duration and large energy [3]. The direct damage and secondary natural disasters caused by an earthquake will threaten and test the safety of nuclear power structures and facilities. For example, the magnitude of the 3/11 earthquake (9 on the Richter scale) on the east coast of Honshu, Japan, was far beyond the design basis of the Fukushima nuclear power plant at that time. This natural event led to explosion and nuclear leakage at the Fukushima Nuclear Power Station, and ultimately brought immeasurable destruction to the world’s marine ecology. On the other side, human-made events mainly include terrorist explosion attacks, aircraft strikes, etc. As human-made accidents damage loads, the consequences are often more serious compared to natural events due to their suddenness and accuracy. For example, the 9/11 terrorist attack in the United States led to the progressive collapse of the Twin Towers of the World Trade Center within a few hours. Whether a natural or human-made event occurs, the accidental damage load it brings is also an important driver of the progressive collapse of building structures. From the accidental collapse of Ronan Point Apartment Tower in London, England, in 1968, to the progressive collapse of the Twin Towers in New York City on September 11, 2001, due to the impact of aircraft, and the progressive collapse of an apartment building in Miami, Florida, in June 2021 due to initial structural defects and structural aging, progressive collapse accidents occur continually.
In this regard, some scholars have studied the resistance collapse performance of reinforced concrete structures. First, there have been collapse test studies on important building structures, such as by intercepting a beam column joint from the frame structure to study its progressive collapse resistance performance [4,5,6,7]. The research results show that the beam column joint has a certain capacity to resist progressive collapse. The resistance comes from the beam and catenary mechanisms. The beam mechanism exhibits certain resistance before large deformation; with increased deformation, the beam mechanism gradually transforms into the catenary mechanism to carry out resistance. On this basis, some scholars believe that only the beam mechanism in reinforced concrete structures has obvious resistance. In steel structures, there is no beam mechanism, and the resistance is carried out by the catenary mechanism. Therefore, some scholars have conducted research on the progressive collapse resistance of steel structure joints [8,9,10,11]. The research results show that the resistance in steel structures is mainly carried out by the catenary mechanism, and the beam mechanism contributes much less. Compared with reinforced concrete structures, steel structures have weak resistance to and are prone to progressive collapse. Scholars have also conducted collapse test research on beam slab structures [12,13,14]. The test results show that the existence of a slab can improve the progressive collapse resistance of the whole structure to a certain extent, because the slab can give full play to the catenary effect, which improves the structural resistance. On this basis, scholars studied the infilled wall frame structure [15,16,17], believing that an infilled wall, similar to a slab, could also improve the progressive collapse resistance performance of the structure. The research results show that an infilled wall can improve the peak load and stiffness of the structure, as well as its resistance collapse performance. The infilled wall can significantly improve the progressive collapse resistance performance of the structure after the middle column fails, while it has little effect after the corner column fails.
Since the collapse of the Ronan Point Apartment Tower in 1968, the progressive collapse of structures has drawn wide concern. In order to prevent the progressive collapse and improve the resistance collapse performance of structures, many scholars have carried out research on the resistance mechanism of progressive structural collapse [18,19,20,21,22]. Research shows that the progressive collapse mechanism includes beam and catenary mechanisms; the beam mechanism plays a role in the whole process of progressive collapse and the performance of structural progressive collapse resistance, and the catenary mechanism generally only works when the middle column fails. There is no catenary mechanism for corner column failure, only the beam mechanism.
The above research was mainly aimed at studying a single structural component, which cannot faithfully reflect the progressive collapse resistance of the whole frame structure. Thus, some scholars have studied the progressive collapse resistance of the whole frame structure. The progressive collapse resistance of the remaining structure was studied based on the method of demolishing components, in which different columns are demolished in the frame structure, so as to find out the key components in certain locations [23]. In the frame structure, the middle column of the bottom floor is the core position of stress. If the middle column is damaged by an accidental load, it is likely to increase the possibility of progressive collapse of the structure. Therefore, researchers have studied the progressive collapse resistance of the remaining structure when the middle column of the frame structure is removed. The research results show that the frame structure will not collapse progressively when only the middle column is removed, and it has good capacity to resist collapse [24,25,26,27,28,29,30,31]. This is because there are beams at the left and right ends of the middle column, and the beam mechanism is fully utilized, which improves the resistance of the structure. With increased deformation, after the structure has undergone large deformation, the beam mechanism gradually transforms into the catenary mechanism, which significantly improves the structural resistance throughout the stress process. Regarding the corner column of the demolished frame structure, because the corner column has only one side connected by a beam, there is no beam mechanism, only a catenary mechanism, which significantly reduces the structural resistance; thus, the frame structure has poor resistance and is prone to progressive collapse [32,33,34,35,36,37]. Therefore, the corner column is the weak position of the frame structure. When the progressive collapse resistance is set, the corner column can be strengthened.
In addition, some scholars have studied the progressive collapse resistance of the frame structure after the side columns are removed [38,39,40]. The research shows that after the failure of the side columns, the remaining structures have good progressive collapse resistance. The resistance sources are mainly divided into two stages: small deformation and large deformation. In the small deformation stage, the resistance is mainly provided by the bending resistance of the beam slab and the arch compression effect; the bending contribution mainly comes from the frame beam and slab in the edge and vertical directions, while the arch compression effect only occurs in the edge beam and the slab close to the edge beam. In the large deformation stage, due to the plastic hinge formed on the beam sections on both sides of the failed column and the serious damage in the compression zone, the resistance is provided by the catenary tension of the steel bars in the beam slab [41]. The collapse of a structure will cause serious economic losses. In order to prevent the progressive collapse of structures and reduce the associated loss, structures can be properly strengthened using retrofitting techniques [42]. Some scholars have studied irregular structures based on the study of regular structures. The results show that, unlike regular structures, irregular structures do not have a risk of progressive collapse [43,44].
To sum up, scholars worldwide have made many achievements in the field of progressive collapse resistance. However, at present, there is no design code for progressive collapse resistance of special structures such as CISBs at nuclear power plants. The internal structure of a CISB is complex, with many staggered floors forming many irregular joints. These factors lead to differences in the manner of force transmission and the failure mode between this structure and an ordinary structure. At this stage, strengthening the seismic design of the main plant cannot effectively improve the vertical progressive collapse resistance of the structure, and there is even a certain degree of reaction (for example, seismic design emphasizes strong columns and weak beams, while progressive collapse resistance has higher requirements for the mechanical properties, such as the bearing capacity of the beams). Research on the progressive collapse resistance mechanism of a CISB structure could help us understand the type of mechanism, the source and strength of resistance, and the redistribution characteristics of internal forces in the process of collapse resistance, so as to provide a theoretical basis for more accurate and efficient design CISBs with progressive collapse resistance capability. Most of the existing research objects of frame structures with progressive collapse resistance are relatively regular and ideal, while CISBs at nuclear power plants have the characteristics of irregular structural form, many special-shaped nodes, and uneven mass distribution. There is little research on the progressive collapse resistance of this special kind of complex reinforced concrete frame bent structure. The results of this paper can expand the research scope of progressive collapse resistance of reinforced concrete frame structures to a certain extent.
2. Model Structure Information
2.1. Design Overview of Composite Structure
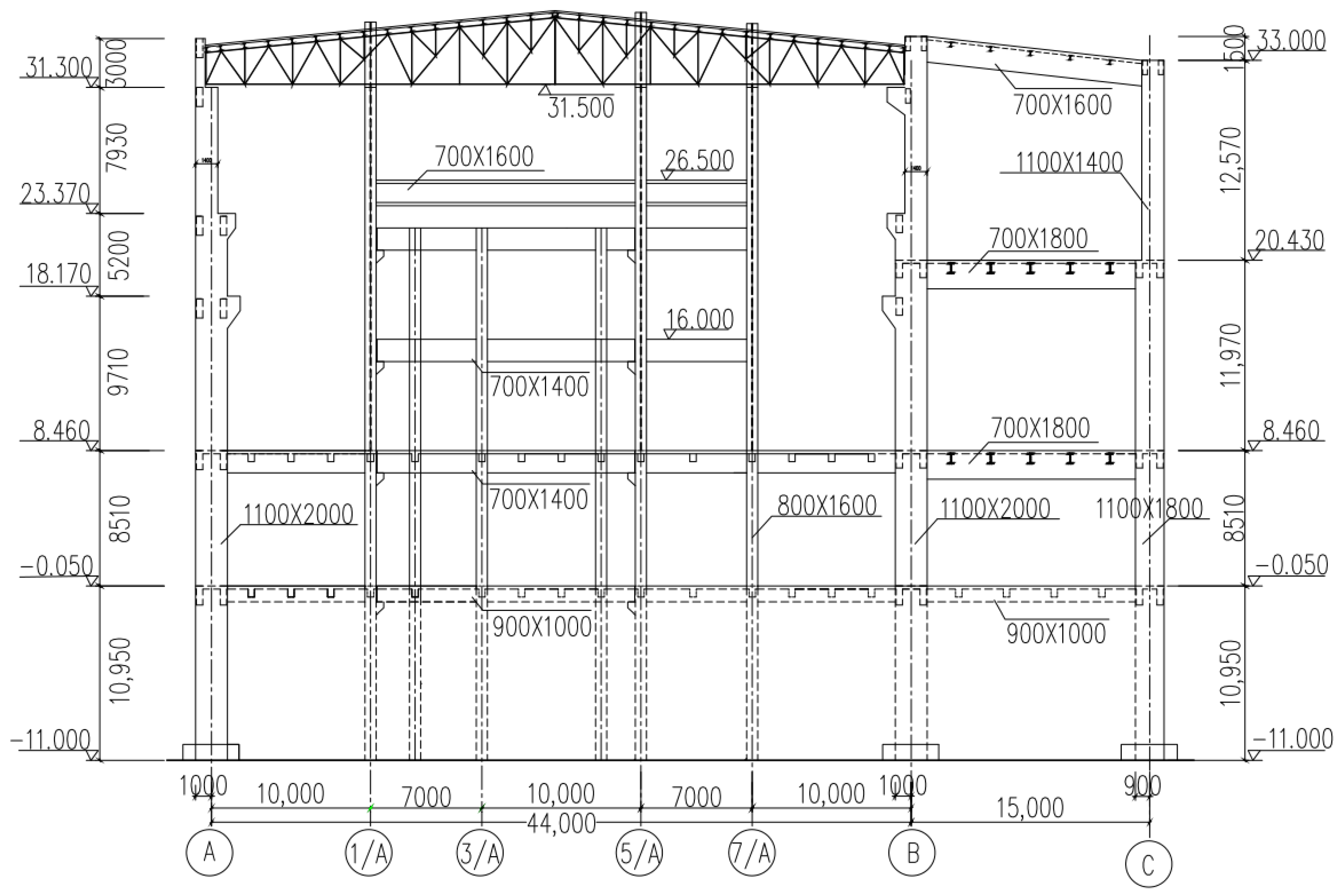
The total length of the conventional island plant of a certain type of nuclear power plant is 108 m, and the total span is 59 m (axis size). The elevation and section layout are shown in Figure 1 and Figure 2.
Figure 1.
Elevation of composite structure.
Figure 2.
Structural layout of composite structure.
The CISB (including steam turbine and auxiliary rooms) has a semi-basement structure. The condensate polishing workshop, lubricating oil transfer station, and hydraulic equipment room are set outside the columns of rows A and C of the main power house of the conventional island. The steam turbine room is divided into three floors: bottom, middle, and operation floor. The auxiliary room is divided into five floors: ground, zero-meter, operation, electrical equipment, and deaerator floor.
2.2. Design Loads
The load conditions of the CISB of the nuclear power plant mainly include dead load, roof and floor live load, seismic action, wind load, and process load, including crane, equipment, and pipe weight. According to the Load Code for the Design of Building Structures [45] and the Technical Code for Load Design of Main Buildings of Conventional Island of Thermal Power Plants and Nuclear Power Plants [46], the specific information related to each load case is as follows:
- (1)
- Dead load
The dead load mainly includes beam and column components, all kinds of floors, steel roof trusses, and dead weight of supports. Among them, a building surface load of 0.5 kN/m2 is considered for the floor slab, and the dead load of the roof slab is 0.3 kN/m2.
- (2)
- Live load
The live load is classified according to the functional position of the structure, and the specific values are given in Table 1.
Table 1.
Standard value of live load.
- (3)
- Earthquake load
An earthquake mainly involves horizontal and vertical seismic action. The basic ground motion peak acceleration of the site is 0.10 g, the basic seismic intensity is 7°, and the site category, seismic design grade, and safety grade of the structure are all Class I.
- (4)
- Wind load
The wind load mainly involves positive and negative wind along the longitudinal and transverse directions of the plant. The shape coefficient of each wind direction is taken according to the corresponding technical specification for load design [46]. The values of the longitudinal shape and shape coefficient of the plant are shown in Figure 3. The basic wind pressure in this case is 0.45 kN/mm2, and the ground roughness is Class A. The wind load is mainly determined by building a virtual surface on the model.
Figure 3.
Longitudinal shape and shape coefficient of main building.
- (5)
- Process load of cranes, pipelines, and equipment
According to the relevant design codes and data, the loads of cranes, pipelines, and other equipment are mostly single-point forces and are widely distributed on different floors of the structure. In order to improve the calculation efficiency, under the premise of ensuring the same quality source and the same stress on the main components, uniformly distributed force equivalent simplification was carried out for the single-point force form load, as shown in Figure 4.
Figure 4.
Equivalent simplification of single point force.
3. Establishment of Finite Element Model
3.1. Introduction to SAP2000 Finite Element Software
The SAP2000 finite element software used in this paper, with a unique integrated working environment, efficient and stable solver, and convenient and fast interactive design, has been widely used in many areas, including transportation facilities and industrial and civil buildings. The software contains the latest version of China’s concrete design code and can automatically convert the reinforcement parameters into finite metadata (parameters), so structures can be designed and checked directly according to the domestic specifications. For the analysis of continuous collapse resistance of structures, the nonlinear analysis method was adopted in this paper, and the nonlinear factors must be reflected in the process of software modelling and simulation. For material nonlinearity, various nonlinear material constitutive models can be directly selected; for geometric nonlinearity, SAP2000 software can be considered by selecting P- and large displacement options.
3.2. Model Information
In this paper, beam column members are modelled by the frame element in SAP2000, which considers biaxial bending, axial deformation, torsion, and biaxial shear deformation. Each node of the frame element has 6 degrees of freedom [47], as shown in Figure 5.
Figure 5.
Sketch of frame element.
In modelling, the reinforced concrete frame node is set as a rigid connection, the floor is set as a thin shell element, and the steel truss beam is set as a hinge joint. The top of column B is hinged with the roof truss. Considering the up and down eccentricity of the column (using the insertion point function in SAP2000), a constraint is established on the hinged part, so that the eccentric load of the roof truss can be transmitted to the column. Eccentricity is considered for all beam members, roof panels, and floor panels, and is set according to the actual position of the structure (bending stiffness outside the plane is considered for the roof panel). The first floor of the main power house is below the ground, and the bottom of the model structure adopts fixed bearings. The overall model is shown in Figure 6.
Figure 6.
Overall space model of shield building.
3.3. Constitutive Law of Materials
The concrete is C45 strength grade, the reinforcement material is HRB400 (longitudinal reinforcement) and HPB300 (stirrup), and the steel truss uses Q345 low-alloy steel. The constitutive relationship of materials is as follows:
- (1)
- Constitutive law of concrete
The parameters of concrete in SAP2000 finite element software are defined in accordance with the Chinese Code for Design of Concrete Structures, and the concrete uniaxial compression strain curve is determined in accordance with Formulas (1)–(7):
In the formula, is the compressive strain of concrete; is the tensile strain of concrete; is the damage evolution parameter of concrete under uniaxial compression; is the elastic modulus of concrete; is the maximum compressive strain of concrete; is the ratio of compressive strain to maximum compressive strain at a point in the compressive stress–strain curve, which is taken as 0.1, 0.2, etc.; and is the decline parameter in the stress–strain curve of concrete under uniaxial compression.
The stress–strain curve of concrete under uniaxial tension is determined according to Formulas (8)–(13):
where each symbolic meaning corresponds to compression in tension.
The model used in this paper uses C45 concrete, and its constitutive curve parameters are shown in Figure 7.
Figure 7.
C45 concrete material parameters.
- (2)
- Constitutive model of reinforcement and steel
An elastoplastic model considering yield platform and linear strengthening was adopted for the constitutive model of steel bars and steels. The stress–strain curve of reinforcement and steel is shown in Figure 8.
Figure 8.
Constitutive curve of reinforced steel: (a) HRB400 material parameters; (b) Q345 material parameters.
3.4. Modeling Method and Boundary Conditions
Due to the requirements of the production process layout, the CISB is a double irregular composite structure with planar and vertical rigidity, and there are many irregular joints in the structural system. Considering the complexity of calculation and the structural form, the structural finite element model is appropriately simplified. The top beam and column of the turbine house are hinged, while the other parts of the beam and column are connected. The connection mode of both ends of the sustain and the connection between the column bottom and the foundation are simplified as a rigid connection. The beam, column, sustain, and other components in the actual structure are simplified into line elements in SAP2000; that is, frame elements are used for simulation.
3.5. Column Removal Position
Considering the large volume of the main plant structure of the conventional island, in order to make the expression simple and clear, the four analysis conditions described in this section mainly capture and display the remaining local structures of all adjacent spans in the vertical direction of the failed column. At the same time, under the same vertical displacement, the short-span beam has a larger plastic rotation angle of the beam end than the long-span beam, so it will be destroyed before the long-span beam. The short-span beam will also reach the ultimate tensile strain before it is subjected to axial tension. Therefore, we selected the short-span beam connected to the upper part of the failed column to study.
3.5.1. Condition of Long-Side Middle Column
For the long-side middle column condition, the Y-direction left beam (short-span beam, shown by the arrow in Figure 9) connected to the upper part of the failed column (shown by the dotted green line in Figure 9) was selected as the research object.
Figure 9.
Remaining local structure of adjacent span after removal of long-side middle column.
3.5.2. Condition of Short-Side Middle Column
For the short-side middle column condition, the X-direction left beam (short-span beam, shown by the arrow in Figure 10) connected to the upper part of the failed column (shown by the dotted green line in Figure 10) was selected as the research object.
Figure 10.
Remaining local structure of adjacent span after removal of short-side middle column.
3.5.3. Condition of Internal Column
For the internal column condition, the X-direction left beam (short-span beam, shown by the arrow in Figure 11) connected to the upper part of the failed column (shown by the dotted green line in Figure 11) was selected as the research object.
Figure 11.
Remaining local structure of adjacent span after removal of internal column.
3.5.4. Condition of Corner Column
The Y-direction beam member (short-span beam, shown by the arrow in Figure 12) connected to the upper part of the failed column (shown by the dotted green line in Figure 12) was selected as the research object for the angle column condition.
Figure 12.
Remaining local structure of adjacent span after removal of corner column.
4. Nonlinear Dynamic Analysis of Progressive Collapse Resistance Mechanism for CISB
4.1. Theory of Nonlinear Dynamic Analysis Method
The dynamic load of nonlinear dynamic progressive collapse resistance mainly comes from the inertial force brought by the withdrawal of the failed column. Therefore, the state after the normal operating load is applied must be taken as the initial state for analysis. The nonlinear dynamic analysis normal service load combination should be applied to the whole structure according to GSA2016 specification, and the details are shown in the following formula:
In this section, the instantaneous unloading method is used to analyze the collapse of the main power house of the conventional nuclear power island by dynamic column removal. The specific steps are as follows:
- (1)
- Calculate the internal force of the upper end of the column to be demolished under the normal service load, including axial force, shear force, and bending moment. Then, obtain the required unbalanced force , which is recorded as . Its value is equal to the internal force at the column end, and its direction is opposite.
- (2)
- Dismantle the column member at the failure position, and apply to the failure node in the reverse direction to make the analysis model equivalent to the stress state of the original structure, as shown in Figure 13.
Figure 13. Equivalent residual structure. - (3)
- In a very short period of time , remove the load applied reversely to the node to equivalently simulate instantaneous failure of the column component, run the analysis, and check the relevant results.
When implementing the above analysis steps in SAP2000, material nonlinearity and geometric nonlinearity are considered by setting up a material nonlinear constitutive model and effect, respectively. The revised GSA2016 requires that when conducting vertical progressive collapse analysis, the failure duration of members should not be greater than 1/10 of the natural vibration period of the remaining structure; however, related research [48] shows that the period of the remaining structure can be approximated by the period of the complete structure. Considering the particularity of the main plant in the conventional island, in order to make the dynamic analysis results safer, this paper adopts a relatively conservative loading method, that is, failure duration s, and the corresponding load time curve is shown in Figure 14.
Figure 14.
Load time curve.
The locations of column dismantling for nonlinear dynamic analysis are the short-side middle column, long-side middle column, internal column, and corner column, and the time history analysis step is 0.005 s. The failure of components other than the initial local failure specified in CECS392: 2021 is regarded as the acceptable failure degree. The failure angle limit (0.105 rad) of concrete members in the GSA2016 specification is taken as the criterion to judge the failure of members.
It should be noted that because the collapse range limit selected in this paper is safe, and the numerical model simplifies the floor and does not consider the contribution of the tensile membrane effect of the floor to the collapse, when the beam member reaches the failure angle limit, it is only considered that there is a certain risk of progressive collapse of the structure.
4.2. Time History Curve Analysis of Vertical Displacement and Internal Force
4.2.1. Case I: Removal of Short-Side Middle Column
- (1)
- Vertical displacement time history curve
The vertical displacement time history curve of the upper node (No. 128) after the failure of the short-side middle column (No. 3) was extracted, as shown in Figure 15.
Figure 15.
Time history curve of node (no. 128) vertical displacement.
It can be seen in Figure 11 that about 0.125 s after the removal of the short-side middle column, the vertical displacement of the remaining structural nodes starts to decline rapidly from the transient equilibrium; when the vertical displacement drops to about 114 mm, the vibration amplitude of the vertical displacement of the remaining structural nodes decreases significantly, and then the displacement time history curve remains horizontal. This indicates that the maximum dynamic vertical displacement under the condition of short-side middle column failure is 114 mm, which is obviously smaller than the maximum vertical displacement under the cornering limit of (0.105 rad). Thus, there is no risk of progressive collapse of the remaining structure under the condition of short-side middle column failure.
- (2)
- Time history curve of axial force and bending moment of connected beam
Figure 16 and Figure 17 show the curves of the axial force in the beam and the bending moment at the beam end, respectively, with time. X-direction L and R indicate the long-span beam on the left (No. 2392) and right (No. 2296), respectively, of the upper node of the failed column in the X direction, and Y direction indicates the single-span beam (No. 2475) of the node in the Y direction.
Figure 16.
Time history curve of axial force in beam for case I: short-side middle column.
Figure 17.
Time history curve of beam end bending moment for case I: short-side middle column.
From the above analysis, it can be seen in Figure 16 that although the axial force of the two X-direction beams connected to the upper part of the failed column during the whole dynamic failure process has a certain fluctuation, it is always in the axial compression state. It can be seen in Figure 17 that from the removal of the failed column to the end, the remaining structure remains stable. The three beams connected to the failed column during the whole collapse resistance process provide relatively stable bending moment bearing capacity, which generally conforms to the mechanical characteristics of the beam mechanism. Therefore, the remaining structure does not have the risk of progressive collapse under the condition of short-side middle column failure and can resist collapsing through the beam mechanism effect.
- (3)
- Analysis of the influence area of axial force on the removal of the short-side middle column
By further studying the influence area of axial force under the working condition of nonlinear dynamic removal of the short-side middle column, we can deepen our understanding of the redistribution characteristics of axial force of the column after failure. The ratio of maximum value of axial force before and after the failure of adjacent spans and spacer columns of the short-side middle column is given in Table 2.
Table 2.
Ratio of maximum axial force before and after failure of adjacent and separated span columns of short-side middle column.
It can be seen in Table 2 that the dynamic oscillation effect caused by the failure of the short-side middle column has the greatest impact on the columns directly adjacent to it. The ratio of maximum axial force before and after failure reached 1.382, 1.318, and 1.254 times, respectively, and the adjacent span column closest to the short-side middle column has the largest lift (about 38.2%). At the same time, the axial force of the spacer column under the working condition of the short-side middle column did not change significantly before and after the failure, but the 5/A axis side column, which is relatively close to the short-side middle column, increased by about 18.3%. This result again shows that the purpose of column axial force redistribution is to transfer the force to a position closer to the failed column.
4.2.2. Case II: Removal of Long-Side Middle Column
- (1)
- Vertical displacement time history curve
The vertical displacement time history curve of the upper node (No. 13) after the failure of the long-side middle column (No. 35) was extracted, as shown in Figure 18.
Figure 18.
Time history curve of node (no. 13) vertical displacement.
It can be seen in Figure 14 that about 0.125 s after the removal of the long-side middle column, the vertical displacement of the remaining structural nodes decreases rapidly from the transient equilibrium. When the vertical displacement reaches about 300 mm, the vibration amplitude of the vertical displacement of the remaining structural nodes decreases significantly, and then a transient equilibrium occurs that lasts about 0.5 s. At about 1.3 s, the displacement drops sharply. At about 1.98 s, the beam end angle reaches the specified limit of (0.105 rad). At this time, there is a certain risk of collapse of the remaining structure.
- (2)
- Time history curve of axial force and bending moment of connected beam
Figure 16 and Figure 19 show the curves of axial force in the beam and bending moment at the beam end, respectively, with time. Y-direction L and R indicate the long-span beam on the left (No. 2556) and right (No. 2557), respectively, of the upper node of the failed column in the Y direction, and the X direction indicates the single-span beam (No. 2803) of the upper node in the X direction.
Figure 19.
Time history curve of axial force in beam for case II: long-side middle column.
It can be seen in Figure 19 and Figure 20 that the internal axial force of the three beams connected to the upper part of the failed column is slightly less than 0 between 0 and 1.1 s at the initial failure stage of the long-side middle column. In this period, the three frame beams connected to the failed column provide relatively stable bending moment bearing capacity. This stage conforms to the basic characteristics of the beam mechanism. It can be seen in Figure 20 that the short-span beam in the X direction provides the largest bending moment bearing capacity, because the rotation angle of the short-span beam is larger under the same node vertical displacement. After 1.1 s, the short-span beam in the X direction begins to compress axially until the member fails, indicating that after the beam mechanism, the short-span beam in the X direction does not form a catenary mechanism. This is mainly because the axial tension required to generate the catenary requires the supports at both ends to form an effective tie support, while the short-span beam in the X direction only has internal frame columns to provide constraint at one end after the failure of the long-side middle column, so the X direction cannot form the catenary mechanism.
Figure 20.
Time history curve of beam end bending moment for case II: long-side middle column.
Further referring to Figure 19 and Figure 20, it can be seen that from about 1.3 s to the time before the failure of the component, the tension in the left and right span beams in the Y direction starts to increase rapidly, while the bending moment decreases by varying degrees. Especially for the short-span beam in the X direction, as the main resistance in the beam mechanism stage, the value of the bending moment bearing capacity fluctuates to about one-fifth of its peak value. In conclusion, it can be determined that this is the catenary mechanism stage in the process of collapse resistance, and the main resistance in this stage comes from the axial tension of the left and right span beams in the Y direction. The catenary mechanism lasts for a short time under this working condition due to the rapid failure rate of structural members.
- (3)
- Analysis of the influence area of axial force on the removal of the long-side middle column
Further study of the influence area of axial force under the condition of nonlinear dynamic demolition of the long-side middle column can deepen our understanding of the redistribution characteristics of axial force after column failure. The ratio of maximum axial force before and after the failure of adjacent spans and spacer span columns of the long-side middle column is listed in Table 3.
Table 3.
Ratio of maximum axial force before and after failure of adjacent span and separated span columns of long-side middle column.
It can be seen in Table 3 that the dynamic oscillation effect caused by the failure of the long-side middle column has the greatest impact on the columns directly adjacent to it. The ratio of maximum axial force before and after the failure reaches 1.539, 1.516, and 1.273 times, respectively, and the nearest Y direction adjacent span column to the long-side middle column has the largest lift (about 53.9%). At the same time, there is no significant change in the axial force of the spacer column under the working condition of the long-side center column before and after the failure, and the maximum increase is only about 7.7%. The axial force of 8 axis and 8′ axis columns did not change before and after the failure, which should be related to the existence of expansion joints between them.
4.2.3. Case III: Removal of Internal Column
- (1)
- Vertical displacement time history curve
The vertical displacement time history curve of the upper node (No. 156) after the failure of the internal column (No. 38) was extracted, as shown in Figure 21.
Figure 21.
Time history curve of node (no. 156) vertical displacement.
It can be seen in Figure 21 that about 0.12 s after the removal of the internal column, the vertical displacement of the remaining structural nodes decreases rapidly from the transient equilibrium. When the vertical displacement drops to about 320 mm, the vibration amplitude of the vertical displacement of the remaining structural nodes decreases significantly, and then the displacement time history curve fluctuates in a small range and finally tends to be horizontal. This shows that the maximum dynamic vertical displacement under the failure condition of the internal column is 320 mm, which is far less than that under the limit of (0.105 rad) corners. In conclusion, there is no risk of progressive collapse of the remaining structures under the condition of internal column failure.
- (2)
- Time history curve of axial force and bending moment of connected beam
Figure 22 and Figure 23 show the curves of axial force in the beam and the bending moment at the beam end with time, respectively. X-direction L and R indicate the frame beams on the left (No. 2306) and right (No. 2802) of the upper node of the failed column in the X direction, and Y-direction L and R indicate the frame beams on the left (No. 2641) and right (No. 2473) of the node in the Y direction.
Figure 22.
Time history curve of axial force in beam for case III: internal column.
Figure 23.
Time history curve of beam end bending moment for case III: internal column.
It can be seen in Figure 22 and Figure 23 that the axial force of the two beams in the X direction connected to the upper part of the failed column is tension, while the two beams in the Y direction are in compression during the initial period of failure of the internal column at about 0–0.8 s. This would be caused by the greater axial deformation of the two-span beams in the X direction with relatively short span under the same node vertical displacement. At the later stage of this period, the bending moment at the end of the two-span beams in the X direction connected to the upper node of the failed column decreases significantly, while the axial tension remains relatively large, indicating that the two-span beams in the X direction entered the catenary mechanism stage. The axial force in the two-span frame beams in the Y direction is still compressed, and the beam ends can provide relatively stable moment bearing capacity.
The results show that the collapse resistance in the Y direction at this stage mainly comes from the bending moment at the beam end, so the two-span beams in the Y direction are still in the beam mechanism stage, and it can be seen in Figure 23 that the short-span beam on the right side in the X direction provides the largest bending moment bearing capacity. After 0.8 s, the internal axial forces of the frame beams on the left and right sides in the X and Y directions are positive and increasing; especially for the right beam in the X direction, the axial tension of the beam has increased significantly. At the same time, it can be seen in Figure 23 that the bending moments at the left and right beams in the Y direction and the left beam end in the X direction are basically stable, while the bending moments at the right beam end in the X direction decrease first and then rise to a certain extent. It can be seen that after 0.8 s, the axial tension in the Y-direction two-span beam connected to the upper part of the failed column gradually becomes the main collapse resistance of the remaining structure. Therefore, it can be considered that the remaining structure enters the catenary mechanism after 0.8 s, and there is no risk of progressive collapse under the effect of this mechanism.
- (3)
- Analysis of the influence area of axial force of the demolished internal column
Further study of the influence area of axial force under the working condition of nonlinear dynamic removal of internal columns can deepen our understanding of the redistribution characteristics of axial force of columns after failure. The ratios of maximum axial force of adjacent spans and spacer span columns before and after failure are given in Table 4.
Table 4.
Ratio of maximum axial force before and after failure of adjacent span and separated span columns of internal columns.
It can be seen in Table 4 that the dynamic oscillation effect caused by the failure of the internal column has the greatest impact on the columns directly adjacent to it. The ratio of maximum axial force before and after the failure reaches 1.773, 1.397, 1.371, and 1.219 times, respectively, and the nearest adjacent span column to the internal column in the X direction has the largest lift (about 77.3%). At the same time, there is no significant change in the axial force of the spacer column under the internal column condition before and after the failure, and the maximum increase is only about 11.2%. The axial force of 8 axis and 8′ axis columns does not change before and after failure, which is related to the existence of expansion joints between them.
4.2.4. Case IV: Removal of Corner Column
- (1)
- Vertical displacement time history curve
The vertical displacement time history curve of the upper node (No. 88) of a corner column (No. 93) after failure was extracted, as shown in Figure 24.
Figure 24.
Time history curve of node (no. 88) vertical displacement.
It can be seen in Figure 24 that when t = 2.8 s, the vibration amplitude of the vertical displacement of the node reaches about 810 mm. According to the collapse criteria, it can be considered that there is a risk of collapse of the remaining structure under the failure condition of the corner column. It can be seen in Figure 24 that when the corner column is removed for about 0.126 s, the vertical displacement of the remaining structural nodes decreases rapidly from the transient equilibrium. When the vertical displacement reaches about 225 mm, the vibration amplitude of the vertical displacement of the remaining structural nodes decreases significantly, and then there is a transient equilibrium that lasts about 1.6 s. Then, the displacement begins to change dramatically. At about 2.8 s, the plastic rotation angle at the beam end reaches the specified limit of (0.105 rad), and the short-span beam fails. At this time, the remaining structure is at risk of collapse.
- (2)
- Time history curve of axial force and bending moment of connected beam
The curve of axial force and bending moment of the short-span beam in the Y direction (No. 2451) connected with the upper part of the failed column as a function of time was extracted, as shown in Figure 22 and Figure 25.
Figure 25.
Time history curve of axial force in beam for case IV: corner column.
It can be seen in Figure 25 and Figure 26 that from the initial failure of the corner column to the failure and damage of the remaining structural members, the axial force in the beam has small fluctuation in the early and middle periods, and then decreases sharply to failure after a very short sharp increase in the late period. The bending moment curve of the beam end generally increases first and then decreases, which is the main collapse resistance of the remaining structures. It can be seen that there is no catenary mechanism stage in the collapse resistance process of corner columns without necessary end restraints; that is, there is only a beam mechanism stage, which is consistent with the results of nonlinear static analysis. The main reason is that the X- and Y-direction beams connected to the upper part of the failed column only have one end of the internal frame column to provide constraint when the external corner column support fails, so they do not have the conditions to form a catenary mechanism.
Figure 26.
Time history curve of beam end bending moment for case IV: corner column.
- (3)
- Analysis of the influence area of axial force of demolished corner column
Further research on the influence area of axial force under the condition of nonlinear dynamic removal of corner columns can deepen our understanding of the redistribution characteristics of axial force after column failure. The ratio of maximum axial force before and after failure of adjacent spans and spacer columns of corner columns are given in Table 5.
Table 5.
Ratio of maximum axial force of adjacent span and separated span columns before and after failure.
It can be seen in Table 5 that the dynamic oscillation effect caused by the failure of the corner column has the greatest impact on the columns directly adjacent to it. The ratio of maximum axial force before and after the failure reaches 1.726, 1.573 and 1.242 times, respectively, and the adjacent span column closest to the corner column has the largest lift (about 72.6%). At the same time, there is no significant change in the axial force of the spacer column under the working condition of the corner column before and after the failure, and the maximum increase is only about 6.7%.
5. Conclusions and Discussion
This paper analyzed the importance of the components of the first-floor columns of the conventional island main power house, and determined the specific locations of columns to be removed under the four working conditions of corner columns, internal columns, and long- and short-side columns. On this basis, referring to the relevant codes and standards and using nonlinear dynamic analysis, the progressive collapse resistance mechanism of the reinforced concrete frame bent structure, with the characteristics of irregular layout, large load, and uneven distribution, under the four working conditions was studied. The source and size of mechanical resistance, the ability to resist progressive collapse, and the characteristics of internal force redistribution are studied and discussed. The main conclusions are as follows:
- (1)
- Under the condition of long-side middle column failure, the remaining structure has the risk of collapse, and the collapse resistance process has two stages: beam mechanism and catenary mechanism. The collapse resistance in the beam mechanism stage mainly comes from the frame beams above the failed column. The catenary mechanism is formed only in the Y direction of the node, and the required axial force is mainly borne by the frame beams on the two to three floors of the failed column. Attention should be paid to the corresponding positions in the design. At the same time, the redistribution of axial column force is mainly concentrated on the column components of adjacent spans, and the influence on the separated span columns is small. In the case of long-side middle column failure, it is not easy for the common structure to progressive collapse. The progressive collapse of the CISB is due to many internal staggered floors and uneven mass distribution. Therefore, when the long-side middle column fails, the load redistribution is not sufficient, resulting in large bearing capacity of the remaining structure, which leads to the risk of progressive collapse.
- (2)
- Under the condition of short-side middle column failure, there is no risk of progressive collapse of the remaining structure, and the mechanism of collapse resistance of the remaining structure is the same as that under long-side middle column failure. The development direction of the plastic hinge position of the beam mechanism conforms to the spatial deformation coordination criterion, and the beam mechanism under this working condition develops most fully, accounting for 13.3% of the total collapse resistance process. Due to different structural arrangements, the catenary mechanism under this working condition is formed only in the X direction, and its resistance mainly comes from the axial tension in the long- and short-span beams in the X direction connected to the upper part of the failed column. The redistribution characteristics of the axial force of the column are similar to those of the long-side column.
- (3)
- Under the condition of internal column failure, there is no risk of progressive collapse of the remaining structure, and there are also beam and catenary mechanism stages in the collapse resistance process, during which X and Y two-way catenary effects are formed. The catenary mechanism under this working condition is the most fully developed, accounting for 78.7% of the total collapse resistance process. The redistribution characteristics of column axial force are similar to those in the first two analysis cases.
- (4)
- Under the condition corner column failure, there is a risk of progressive collapse of the remaining structures, and there is only a beam mechanism stage in the process of progressive collapse resistance of corner columns.
- (5)
- The research on the progressive resistance collapse mechanism in this paper is based on a relatively ideal residual structure; that is, the causes of failure of members and the influence of some material, structural, and other parameter changes during the actual failure process are not considered. Therefore, how to reasonably consider these practical factors needs further research.
- (6)
- The tensile membrane effect of the floor slab will also have a certain degree of influence on the ability of the structure to resist progressive collapse and the underlying mechanism. In this paper this is simplified, and its role in the process of progressive collapse resistance of the special structure of the nuclear power conventional island main building needs further exploration and quantification.
Author Contributions
Conceptualization, Q.P. and B.C.; methodology, Q.P. and Z.X.; software, B.C. and Z.X.; validation, Q.P., B.C., P.Q. and L.Z.; formal analysis, Q.P. and D.C.; investigation, Q.P. and X.W.; data curation, P.Q. and Q.P.; writing—original draft preparation, B.C. and L.Z.; writing—review and editing, Q.P. and D.C.; supervision, Q.P. and Z.X.; project administration, Q.P. and Z.X.; funding acquisition, Q.P. and Z.X. All authors have read and agreed to the published version of the manuscript.
Funding
This research was supported by the National Natural Science Foundation of China (grant nos. 51878108 and 52032011), the Department of Science and Technology Guidance Plan Foundation of Liaoning Province (grant no. 2019JH8/10100091), and the Scientific Research Project of Liaoning Provincial Department of Education (grant no. LJKZ1177).
Institutional Review Board Statement
Not applicable.
Informed Consent Statement
Not applicable.
Data Availability Statement
The data used to support the findings of this study are available from the corresponding author upon request.
Conflicts of Interest
The authors declare no conflict of interest.
References
- Wu, T.; Liu, B.Q.; Bai, G.L.; Zhu, J.N.; Li, H.X.; Wang, L. Study on seismic behavior and design method of large-scale thermal power plant RC frame with abnormal exterior joints. J. Build. Struct. 2005, 26, 17–22. (In Chinese) [Google Scholar]
- Li, L.; Pan, R.; Luo, P.; Lu, Y. Review and suggestiongs on natural disaster prevention for nuclear power plants in china. Technol. Earthq. Disaster Prev. 2021, 16, 398–403. (In Chinese) [Google Scholar]
- Miao, L. Design and analysis on beam-to-column connectiongs of main powerhouse steel structure of nuclear power station conventional island. Guangdong Electr. Power 2010, 23, 114–116. (In Chinese) [Google Scholar]
- Zhou, Y.; Hu, X.; Pei, Y.L.; Hwang, H.J.; Chen, T.P.; Yi, W.J.; Deng, L. Dynamic load test on progressive collapse resistance of fully assembled precast concrete frame structures. Eng. Struct. 2020, 214, 110675. [Google Scholar] [CrossRef]
- Deng, X.F.; Liang, S.L.; Fu, F.; Qian, K. Effects of High-Strength Concrete on Progressive Collapse Resistance of Reinforced Concrete Frame. Am. Soc. Civ. Eng. 2020, 146, 04020078. [Google Scholar] [CrossRef]
- Yang, T.; Chen, W.Q.; Han, Z.Q. Experimental Investigationof Progressive Collapseof Prestressed Concrete Frames after the Loss of Middle Column. Adv. Civ. Eng. 2020, 2020, 8219712. [Google Scholar] [CrossRef]
- Qian, K.; Liang, S.L.; Fu, F.; Fang, Q. Progressive collapse resistance of precast concrete beam-column sub-assemblages with high-performance dry connections. Eng. Struct. 2019, 198, 109552. [Google Scholar] [CrossRef]
- Qiao, H.Y.; Chen, Y.; Wang, J.P.; Chen, C.W. Experimental study on beam-to-column connections with reduced beam section against progressive collapse. J. Constr. Steel Res. 2020, 175, 106358. [Google Scholar] [CrossRef]
- Jose, M.A.; Fulvio, P.; Juan, S.; Lu, X.Z. Research and practice on progressive collapse and robustness of building structures in the 21st century. Eng. Struct. 2018, 173, 122–149. [Google Scholar] [CrossRef]
- Tang, H.Y.; Deng, X.Z.; Jia, Y.G.; Xiong, Y.G.; Peng, C.M. Study on the progressive collapse behavior of fully bolted RCS beam-to-column connections. Eng. Struct. 2019, 199, 109618. [Google Scholar] [CrossRef]
- Guan, C.Y. Response of Blind-Bolted Angle Connections with Steel Tubular Column Against Progressive Collapse; Hunan University: Changsha, China, 2016. (In Chinese) [Google Scholar]
- Zhang, J.J.; Li, G.Q.; Jiang, J. Collapse of steel-concrete composite frame under edge-column loss—Experiment and its analysis. Eng. Struct. 2019, 209, 109951. [Google Scholar] [CrossRef]
- Yu, J.; Tang, J.H.; Luo, L.Z.; Fang, Q. Effect of boundary conditions on progressive collapse resistance of RC beam-slab assemblies under edge column removal scenario. Eng. Struct. 2020, 225, 111272. [Google Scholar] [CrossRef]
- Liang, Y.; Lu, X.Z.; Li, Y.; Yie, L.P.; Jiang, J.Q. Influence of slabs on the progressive collapse behavior of structures. Sichuan Build. Sci. 2010, 36, 5–10. (In Chinese) [Google Scholar]
- Qian, K.; Huang, Z.Q.; Li, H.H.; Yu, X.H. Numerical study on progressive collapse performance of infilled RC frame. J. Build. Struct. 2020, 41, 221–229. (In Chinese) [Google Scholar]
- Yu, J.; Gan, Y.P.; Wu, J.; Wu, H. Effect of concrete masonry infill walls on progressive collapse performance of reinforced concrete infilled frames. Eng. Struct. 2019, 191, 179–193. [Google Scholar] [CrossRef]
- Yu, J.; Gan, Y.P.; Liu, J. Numerical study of dynamic responses of reinforced concrete infilled frames subjected to progressive collapse. Adv. Struct. Eng. 2020, 24, 635–652. [Google Scholar] [CrossRef]
- Li, Y.; Lu, X.Z.; Ye, L.P.; Lu, S.C. Study on the progressive collapse mechanism of RC frame structures. Build. Sci. 2011, 27, 12–22. (In Chinese) [Google Scholar]
- Hu, K.; Jiang, L.; Qu, G.; Lv, X.L.; Wang, P.; Yang, Z. Study on progressive collaps mechanism of RC structures. Eng. Mech. 2015, 32, 83–90. (In Chinese) [Google Scholar]
- Xiong, J.G.; Wu, Z.Q.; Zhou, Y.; He, Y.N.; Nie, X.X. Research on progressive collapse mechanism of RC spatial frame structures. Build. Struct. 2013, 43, 105–108. (In Chinese) [Google Scholar]
- Qian, K.; Huang, Z.Q.; Weng, Y.H.; Yu, X.H. Study on load resisting mechanism of corroded RC frame structures against progressive collapse. J. Build. Struct. 2022, 43, 181–190. (In Chinese) [Google Scholar]
- Paripour, M.B.; Budak, A.; Duzgun, O.A. Investigation of Progressive Collapse Resistance Mechanism in Reinforced Concrete Beam-Column Assembly. Iran. J. Sci. Technol. Trans. Civ. Eng. 2021, 45, 505–512. [Google Scholar] [CrossRef]
- Zhou, Y.; Zhang, Q.; Hu, X.; Chen, T.P.; Yi, J.W. Progressive collapse analysis of fully assembled precast concrete frame structures based on column removal method. J. Hunan Univ. Nat. Sci. 2020, 47, 1–13. (In Chinese) [Google Scholar]
- Ren, P.Q.; Li, Y.; Lu, X.Z.; Guan, H.; Zhou, Y.L. Experimental investigation of progressive collapse resistance of one-way reinforced concrete beam-slab substructures under a middle-column-removal scenario. Eng. Struct. 2016, 118, 28–40. [Google Scholar] [CrossRef]
- Li, Y.; Lu, X.Z.; Guan, H.; Ren, P.Q. Numerical investigation of progressive collapse resistance of reinforced concrete frames subject to column removals from different stories. Adv. Struct. Eng. 2016, 19, 314–326. [Google Scholar] [CrossRef]
- Qiang, H.L.; Yang, J.X.; Feng, P.; Qin, W.H. Kinked rebar configurations for improving the progressive collapse behaviours of RC frames under middle column removal scenarios. Eng. Struct. 2020, 211, 110425. [Google Scholar] [CrossRef]
- Zhao, Z.D.; Liu, Y.L.; Li, Y.; Guan, H.; Yang, Z.; Ren, P.Q.; Xiao, Y.Z. Experimental and numerical investigation of dynamic progressive collapse of reinforced concrete beam-column assemblies under a middle-column removal scenario. Structures 2022, 38, 979–992. [Google Scholar] [CrossRef]
- Foad, M.N.; Nima, U.; Reza, A. Analytical investigation of reinforced concrete frames under middle column removal scenario. Adv. Struct. Eng. 2018, 21, 1388–1401. [Google Scholar] [CrossRef]
- Zhang, Q.; Li, Y.Z. Experimental and modeling study on the progressive collapse resistance of a reinforced concrete frame structure under a middle column removal scenario. Struct. Des. Tall Spec. Build. 2020, 29, e1693. [Google Scholar] [CrossRef]
- Husain, M.; Yu, J.; Osman, B.H.; Ji, J. Progressive collapse resistance of post-tensioned concrete beam2 column assemblies under a middle column removal scenario. J. Build. Eng. 2021, 34, 101945. [Google Scholar] [CrossRef]
- Zhao, X. Experimental Study on the Progressive Collapse Resisitance of Assembled Monolithic Concrete Frame Structures under a Middle Column Removal Scenario; Southeast University: Nanjing, China, 2018. (In Chinese) [Google Scholar]
- Tang, Z.N. Experimental Study on the Progressive Collapse Resistance of Assembled Monolithic Concrete Frame Structures under a Corner Column Removal Scenario; Southeast University: Nanjing, China, 2018. (In Chinese) [Google Scholar]
- Qian, K.; Chen, J.F.; Weng, Y.H.; Fu, F. Effect of loading methods on progressive collapse behavior of RC beam-slab substructures under corner column removal scenario. J. Build. Eng. 2021, 44, 103258. [Google Scholar] [CrossRef]
- Feng, P.; Qiang, H.L.; Ou, X.; Qin, W.H.; Yang, J.X. Progressive Collapse Resistance of GFRP-Strengthened RC Beam-Slab Subassemblages in a Corner Column-Removal Scenario. J. Compos. Constr. 2019, 23, 04018076. [Google Scholar] [CrossRef]
- Xu, J.; Wang, S.L.; Liu, K.N.; Quan, X.Y.; Dong, F.F. Study on Collapse Resistance of RC Frame under the Corner Column Removal Scenario. Materials 2021, 14, 7157. [Google Scholar] [CrossRef]
- Fu, Q.N.; Tan, K.H. Numerical study on steel-concrete composite floor systems under corner column removal scenario. Structures 2019, 21, 33–44. [Google Scholar] [CrossRef]
- Lim, N.S.; Tan, K.H.; Lee, C.K. Experimental studies of 3D RC substructures under exterior and corner column removal scenarios. Eng. Struct. 2017, 150, 409–427. [Google Scholar] [CrossRef]
- Lu, X.Z.; Lin, K.Q.; Guan, H.; Ren, P.Q.; Zhou, Y.L. Experimental investigation of RC beam-slab substructures against progressive collapse subject to an edge-column-removal scenario. Eng. Struct. 2017, 149, 91–103. [Google Scholar] [CrossRef]
- Hou, J.; Song, L.; Liu, H.H. Testing and Analysis on Progressive Collapse-Resistance Behavior of RC Frame Substructures under a Side Column Removal Scenario. J. Perform. Constr. Facil. 2016, 30. [Google Scholar] [CrossRef]
- Ma, F.; Gilbert, B.P.; Guan, H.; Lu, X.Z.; Li, Y. Experimental study on the progressive collapse behaviour of RC flat plate substructures subjected to edge-column and edge-interior-column removal scenarios. Eng. Struct. 2020, 209, 728–741. [Google Scholar] [CrossRef]
- Ren, P.Q. Experimental Study on the Progressive Collapse Resisitance of Reinforced Concrete Beam-Slab Substructures under an Edge-Column-Removal Scenario; Tsinghua University: Beijing, China, 2015. (In Chinese) [Google Scholar]
- Kiakojouri, F.; De Biagi, V.; Chiaia, B.; Sheidaii, M.R. Strengthening and retrofitting techniques to mitigate progressive collapse: A critical review and future research agenda. Eng. Struct. 2022, 262, 114274. [Google Scholar] [CrossRef]
- Yavari, H.; Ghobadi, M.S.; Yakhchalian, M. Progressive collapse potential of different types of irrgular buildings located in diverse seismic sites. Heliyon 2019, 5, e01137. [Google Scholar] [CrossRef]
- Esteghamati, M.Z.; Alimohammadi, S. Reliability-based assessment of progressive collapse in horizontally irregular multi-story concrete buildings. Structures 2022, 44, 1597–1606. [Google Scholar] [CrossRef]
- GB50009-2019; Load Code the Design of Building Structures. China Construction Industry Press: Beijing, China, 2019. (In Chinese)
- Technical Code for Design Load of Main Building in Fossil-Fired Power Plant and the Conventional Island of Nuclear Power Plant; China Construction Industry Press: Beijing, China, 2019. (In Chinese)
- He, C. Study on the Progressive Collapse Resistance Performance of Steel Frame-Bent Structures of Large Thermal Power Plant; Guangxi University: Nanning, China, 2013. (In Chinese) [Google Scholar]
- Lv, D.G.; Li, Y.J.; Chen, Z.H. Progressive collapse analysis of RC frame using vertical nonlinear dynamic analysis. J. Civ. Archit. Environ. Eng. 2012, 34, 49–53. [Google Scholar]
Disclaimer/Publisher’s Note: The statements, opinions and data contained in all publications are solely those of the individual author(s) and contributor(s) and not of MDPI and/or the editor(s). MDPI and/or the editor(s) disclaim responsibility for any injury to people or property resulting from any ideas, methods, instructions or products referred to in the content. |
© 2023 by the authors. Licensee MDPI, Basel, Switzerland. This article is an open access article distributed under the terms and conditions of the Creative Commons Attribution (CC BY) license (https://creativecommons.org/licenses/by/4.0/).

























