An Empirical Study of Carbon Emission Calculation in the Production and Construction Phase of A Prefabricated Office Building from Zhejiang, China
Abstract
1. Introduction
1.1. Carbon Reduction Path in the Building Sector
1.2. Research Purpose and Advantages
2. Materials and Methods
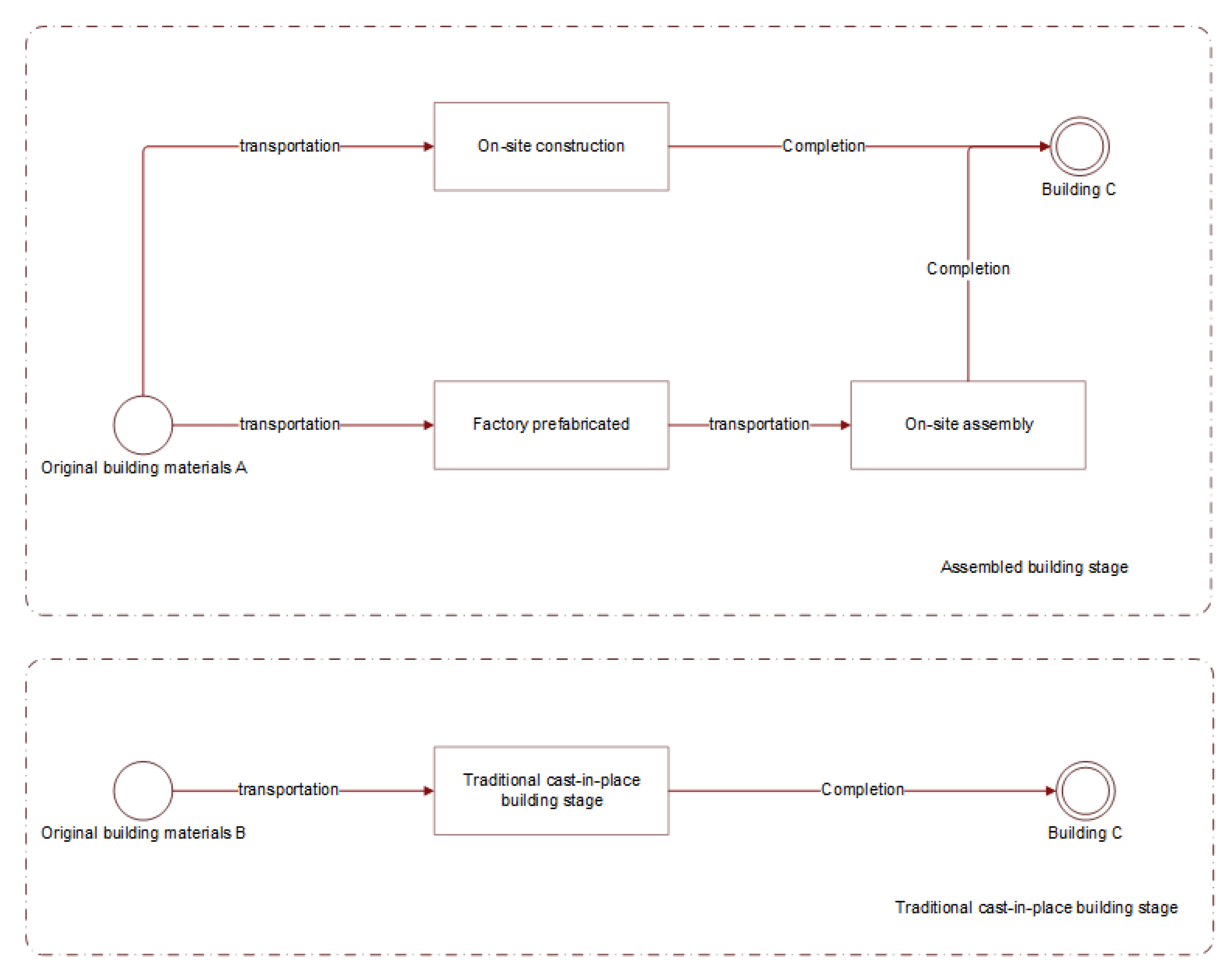
2.1. Comparison Path
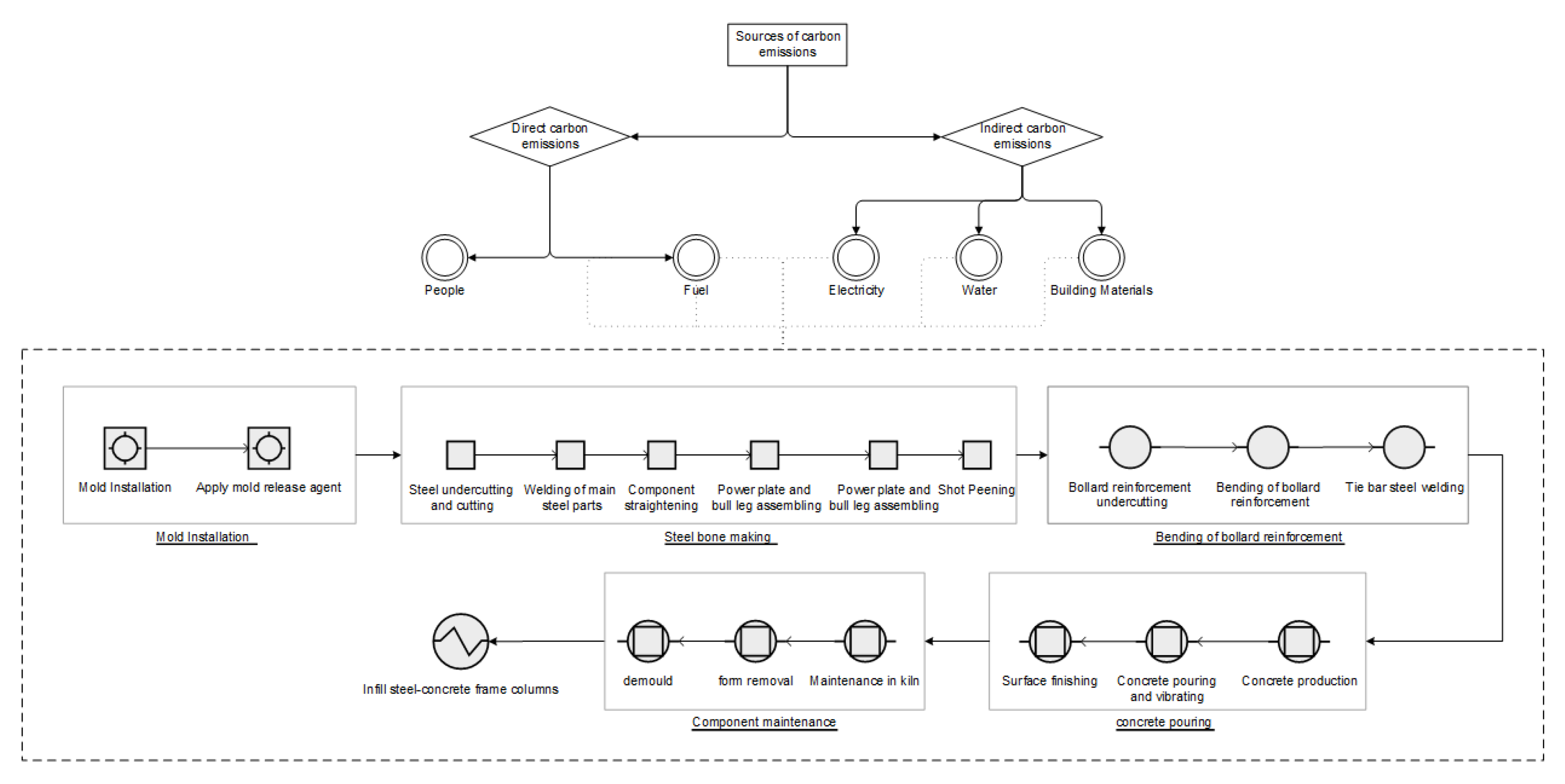
2.2. Scope of the Study
2.3. Calculation Model
2.3.1. Construction Materials
| Material Name | Waste Factor | CO Emissions Factor (kgCOe/kg) |
|---|---|---|
| Steel components | 5% | 0.352 |
| Precast concrete | 0% | 0.113 |
| Non-prefabricated concrete | 2.5% | 1.021 |
| Gypsum board | 2.5% | 0.218 |
| Cement | 2.5% | 0.653 |
| Aerated concrete block | 5% | 0.106 |
| Architectural glass | 5% | 1.735 |
| Cement fiberboard | 2.5% | 0.629 |
| Wood | 5% | −1.655 |
| Aluminum | 5% | 0.622 |
2.3.2. Prefabrication Stage
2.3.3. Transportation Phase
2.3.4. Construction Site
3. Embodied Carbon Calculations
3.1. Calculation of Carbon Emissions during the Production and Construction Phase of the B1 Building
3.1.1. Off-Site Carbon Emissions (E1) Calculation
3.1.2. Off-Site Carbon Emissions (E2) Calculation
3.1.3. Calculation of Transportation Carbon Emissions (E3 and E4)
3.1.4. On-Site Carbon Emissions Calculation
3.2. Calculation of Carbon Emissions in the Production and Construction Phase of the Non-Prefabricated Simulation of Building B1
3.2.1. Calculation of Carbon Emissions for Materials of B1 Building in the Non-Prefabricated Simulation
3.2.2. Carbon Emissions Calculation for the Transport Phase of Building B1 in the Non-Prefabricated Simulation
3.2.3. Carbon Emissions Calculation for the Construction Stage of the B1 Building in the Non-Prefabricated Simulation
4. Results And Discussion
4.1. Comparison of Off-Site Carbon Emissions for B1 Building
4.2. Comparison of Carbon Emissions in the Transportation Phase of Building B1
4.3. Comparison of Carbon Emissions in the B1 Building Site
4.4. Analysis of the Technical Contribution of the B1 Building
5. Conclusions
Author Contributions
Funding
Data Availability Statement
Acknowledgments
Conflicts of Interest
References
- IPCC. Climate Change 2013: The Physical Science Basis. Contribution of Working Group I to the fifth Assessment Report of the Intergovernmental Panel on Climate Change; Cambridge University Press: Cambridge, UK; New York, NY, USA, 2013; p. 1535. [Google Scholar]
- United Nations; World Water Assessment Programme UNESCO; UN-Water. Facing the Challenges: Case Studies and Indicators: UNESCO’s Contribution to the United Nations World Water Development Report 2015; UNESCO Publishing: Paris, France, 2015. [Google Scholar]
- Rubio-Bellido, C.; Pulido-Arcas, J.A.; Cabeza-Lainez, J.M. Adaptation strategies and resilience to climate change of historic dwellings. Sustainability 2015, 7, 3695–3713. [Google Scholar] [CrossRef]
- Hu, S.; Jiang, Y.; Yan, D. China Building Energy Use and Carbon Emission Yearbook 2021: A Roadmap to Carbon Neutrality by 2060; Springer Nature: Berlin/Heidelberg, Germany, 2022. [Google Scholar]
- Mao, C.; Shen, Q.; Shen, L.; Tang, L. Comparative study of greenhouse gas emissions between off-site prefabrication and conventional construction methods: Two case studies of residential projects. Energy Build. 2013, 66, 165–176. [Google Scholar] [CrossRef]
- RICS (Royal Institution of Chartered Surveyors). Whole Life Carbon Assessment for the Built Environment; RICS: London, UK, 2017. [Google Scholar]
- Robati, M.; Oldfield, P.; Nezhad, A.A.; Carmichael, D.G.; Kuru, A. Carbon value engineering: A framework for integrating embodied carbon and cost reduction strategies in building design. Build. Environ. 2021, 192, 107620. [Google Scholar] [CrossRef]
- Wu, H.J.; Yuan, Z.W.; Zhang, L.; Bi, J. Life cycle energy consumption and CO2 emission of an office building in China. Int. J. Life Cycle Assess. 2012, 17, 105–118. [Google Scholar] [CrossRef]
- Schmidt, M.; Crawford, R.H.; Warren-Myers, G. Quantifying Australia’s life cycle greenhouse gas emissions for new homes. Energy Build. 2020, 224, 110287. [Google Scholar] [CrossRef]
- Guo, R. China Ethnic Statistical Yearbook 2020; Springer Nature: Berlin/Heidelberg, Germany, 2020. [Google Scholar]
- Yu, S.; Liu, Y.; Wang, D.; Bahaj, A.S.; Wu, Y.; Liu, J. Review of thermal and environmental performance of prefabricated buildings: Implications to emission reductions in China. Renew. Sustain. Energy Rev. 2021, 137, 110472. [Google Scholar] [CrossRef]
- Shahzad, W.; Mbachu, J.; Domingo, N. Prefab content versus cost and time savings in construction projects: A regression analysis. In Proceedings of the 4th New Zealand Built Environment Research Symposium (NZBERS), Auckland, New Zealand, 14 November 2014. [Google Scholar]
- Shahzad, W.; Mbachu, J.; Domingo, N. Marginal productivity gained through prefabrication: Case studies of building projects in Auckland. Buildings 2015, 5, 196–208. [Google Scholar] [CrossRef]
- Quale, J.; Eckelman, M.J.; Williams, K.W.; Sloditskie, G.; Zimmerman, J.B. Construction matters: Comparing environmental impacts of building modular and conventional homes in the United States. J. Ind. Ecol. 2012, 16, 243–253. [Google Scholar] [CrossRef]
- Aye, L.; Ngo, T.; Crawford, R.H.; Gammampila, R.; Mendis, P. Life cycle greenhouse gas emissions and energy analysis of prefabricated reusable building modules. Energy Build. 2012, 47, 159–168. [Google Scholar] [CrossRef]
- Dong, Y.H.; Jaillon, L.; Chu, P.; Poon, C.S. Comparing carbon emissions of precast and cast-in-situ construction methods—A case study of high-rise private building. Constr. Build. Mater. 2015, 99, 39–53. [Google Scholar] [CrossRef]
- Teng, Y.; Pan, W. Systematic embodied carbon assessment and reduction of prefabricated high-rise public residential buildings in Hong Kong. J. Clean. Prod. 2019, 238, 117791. [Google Scholar] [CrossRef]
- Kumanayake, R.; Luo, H.; Paulusz, N. Assessment of material related embodied carbon of an office building in Sri Lanka. Energy Build. 2018, 166, 250–257. [Google Scholar] [CrossRef]
- Li, X.J.; Zheng, Y.D. Using LCA to research carbon footprint for precast concrete piles during the building construction stage: A China study. J. Clean. Prod. 2020, 245, 118754. [Google Scholar] [CrossRef]
- Xu, K.; Kang, H.; Wang, W.; Jiang, P.; Li, N. Carbon Emission Estimation of Assembled Composite Concrete Beams during Construction. Energies 2021, 14, 1810. [Google Scholar] [CrossRef]
- Fang, Y.; Ng, S.T.; Ma, Z.; Li, H. Quota-based carbon tracing model for construction processes in China. J. Clean. Prod. 2018, 200, 657–666. [Google Scholar] [CrossRef]
- Li, X.J.; Lai, J.Y.; Ma, C.y.; Wang, C. Using BIM to research carbon footprint during the materialization phase of prefabricated concrete buildings: A China study. J. Clean. Prod. 2021, 279, 123454. [Google Scholar] [CrossRef]
- Bonamente, E.; Cotana, F. Carbon and energy footprints of prefabricated industrial buildings: A systematic life cycle assessment analysis. Energies 2015, 8, 12685–12701. [Google Scholar] [CrossRef]
- Dabaieh, M.; Heinonen, J.; El-Mahdy, D.; Hassan, D.M. A comparative study of life cycle carbon emissions and embodied energy between sun-dried bricks and fired clay bricks. J. Clean. Prod. 2020, 275, 122998. [Google Scholar] [CrossRef]
- Saad, S.; Alaloul, W.S.; Ammad, S.; Qureshi, A.H.; Altaf, M.; Rasheed, K. Design phase carbon emission prediction using a visual programming technique. In Proceedings of the 2020 Second International Sustainability and Resilience Conference: Technology and Innovation in Building Designs (51154), Sakheer, Bahrain, 11–12 November 2020; pp. 1–4. [Google Scholar]
- Ding, Z.; Liu, S.; Luo, L.; Liao, L. A building information modeling-based carbon emission measurement system for prefabricated residential buildings during the materialization phase. J. Clean. Prod. 2020, 264, 121728. [Google Scholar] [CrossRef]
- Meneghelli, A. Whole-building embodied carbon of a North American LEED-certified library: Sensitivity analysis of the environmental impact of buildings materials. Build. Environ. 2018, 134, 230–241. [Google Scholar] [CrossRef]
- Teng, Y.; Pan, W. Estimating and minimizing embodied carbon of prefabricated high-rise residential buildings considering parameter, scenario and model uncertainties. Build. Environ. 2020, 180, 106951. [Google Scholar] [CrossRef]
- Mastrucci, A.; Marvuglia, A.; Benetto, E.; Leopold, U. A spatio-temporal life cycle assessment framework for building renovation scenarios at the urban scale. Renew. Sustain. Energy Rev. 2020, 126, 109834. [Google Scholar] [CrossRef]
- Luo, L.; Chen, Y. Carbon emission energy management analysis of LCA-Based fabricated building construction. Sustain. Comput. Informatics Syst. 2020, 27, 100405. [Google Scholar] [CrossRef]
- Fremouw, M.; Bagaini, A.; De Pascali, P. Energy Potential Mapping: Open Data in Support of Urban Transition Planning. Energies 2020, 13, 1264. [Google Scholar] [CrossRef]
- Nastasi, B.; Manfren, M.; Noussan, M. Open data and energy analytics. Energies 2020, 13, 2334. [Google Scholar] [CrossRef]
- Nastasi, B.; Manfren, M.; Noussan, M. Open data and models for energy and environment. Energies 2021, 14, 4413. [Google Scholar] [CrossRef]
- Klöpffer, W. Life cycle assessment. Environ. Sci. Pollut. Res. 1997, 4, 223–228. [Google Scholar] [CrossRef]
- Lenzen, M. Errors in conventional and Input-Output—based Life—Cycle inventories. J. Ind. Ecol. 2000, 4, 127–148. [Google Scholar] [CrossRef]
- Treloar, G.J. Extracting embodied energy paths from input–output tables: Towards an input–output-based hybrid energy analysis method. Econ. Syst. Res. 1997, 9, 375–391. [Google Scholar] [CrossRef]
- Treloar, G.J.; Love, P.E.; Holt, G.D. Using national input/output data for embodied energy analysis of individual residential buildings. Constr. Manag. Econ. 2001, 19, 49–61. [Google Scholar] [CrossRef]
- Crawford, R.H. Validation of a hybrid life-cycle inventory analysis method. J. Environ. Manag. 2008, 88, 496–506. [Google Scholar] [CrossRef] [PubMed]
- Chen, Y.; Zhou, Y.; Feng, W.; Fang, Y.; Feng, A. Factors That Influence the Quantification of the Embodied Carbon Emission of Prefabricated Buildings: A Systematic Review, Meta-Analysis and the Way Forward. Buildings 2022, 12, 1265. [Google Scholar] [CrossRef]
- Wang, J.; Guo, F.; Song, Y.; Liu, Y.; Hu, X.; Yuan, C. Safety risk assessment of prefabricated buildings hoisting construction: Based on IHFACS-ISAM-BN. Buildings 2022, 12, 811. [Google Scholar] [CrossRef]
- Yan, H.; Shen, Q.; Fan, L.C.; Wang, Y.; Zhang, L. Greenhouse gas emissions in building construction: A case study of One Peking in Hong Kong. Build. Environ. 2010, 45, 949–955. [Google Scholar] [CrossRef]
- ISO 14064-1:2018; Greenhouse Gases—Part 1: Specification with Guidance at the Organization Level for Quantification and Reporting of Greenhouse Gas Emissions and Removals. International Organization for Standardization: Geneva, Switzerland, 2006.
- IPCC (Intergovernmental Panel on Climate Change). Guidelines for National Greenhouse Gas Inventories; IPCC: Geneva, Switzerland, 2006; Available online: www.ipcc.ch (accessed on 15 October 2022).
- Kumar, P. Building Economics and Construction Management. J. Inst. Eng. Archit. Engg. Div. Kolkata 1999, 78. [Google Scholar]
- Andrew, A. Embodied Energy and CO2 Coefficients for NZ Building Materials; Centre for Building Performance Research Report; Centre for Building Performance Research: Wellington, New Zealand, 2003. [Google Scholar]
- Chen, T.; Burnett, J.; Chau, C.K. Analysis of embodied energy use in the residential building of Hong Kong. Energy 2001, 26, 323–340. [Google Scholar] [CrossRef]
- Adalberth, K. Energy use during the life cycle of buildings: A method. Build. Environ. 1997, 32, 317–320. [Google Scholar] [CrossRef]
- Shan, Y.; Liu, J.; Liu, Z.; Xu, X.; Shao, S.; Wang, P.; Guan, D. New provincial CO2 emission inventories in China based on apparent energy consumption data and updated emission factors. Appl. Energy 2016, 184, 742–750. [Google Scholar] [CrossRef]
- Liu, Z.; Guan, D.; Wei, W.; Davis, S.J.; Ciais, P.; Bai, J.; Peng, S.; Zhang, Q.; Hubacek, K.; Marland, G.; et al. Reduced carbon emission estimates from fossil fuel combustion and cement production in China. Nature 2015, 524, 335–338. [Google Scholar] [CrossRef]
- Shan, Y.; Guan, D.; Zheng, H.; Ou, J.; Li, Y.; Meng, J.; Mi, Z.; Liu, Z.; Zhang, Q. Data descriptor: China CO2 emission accounts 1997–2015. Sci. Data 2018, 5, 170201. [Google Scholar] [CrossRef]
- Liu, G.; Gu, T.; Xu, P.; Hong, J.; Shrestha, A.; Martek, I. A production line-based carbon emission assessment model for prefabricated components in China. J. Clean. Prod. 2019, 209, 30–39. [Google Scholar] [CrossRef]
- Compiled by National Bureau of Statistics of China. China Energy Statistical Yearbook; Compiled by National Bureau of Statistics of China: Beijing, China, 2016. [Google Scholar]
- Khahro, S.H.; Kumar, D.; Siddiqui, F.H.; Ali, T.H.; Raza, M.S.; Khoso, A.R. Optimizing energy use, cost and carbon emission through building information modelling and a sustainability approach: A case-study of a hospital building. Sustainability 2021, 13, 3675. [Google Scholar] [CrossRef]
- Liu, Z.; Li, P.; Wang, F.; Osmani, M.; Demian, P. Building Information Modeling (BIM) Driven Carbon Emission Reduction Research: A 14-Year Bibliometric Analysis. Int. J. Environ. Res. Public Health 2022, 19, 12820. [Google Scholar] [CrossRef] [PubMed]
- Xu, J.; Teng, Y.; Pan, W.; Zhang, Y. BIM-integrated LCA to automate embodied carbon assessment of prefabricated buildings. J. Clean. Prod. 2022, 374, 133894. [Google Scholar] [CrossRef]
- Alwan, Z.; Jones, B.I. IFC-based embodied carbon benchmarking for early design analysis. Autom. Constr. 2022, 142, 104505. [Google Scholar] [CrossRef]
- Yang, H.; Chen, J. Carbon emission measurement and analysis of prefabricated components of assembled buildings based on quotas. J. Eng. Manag. 2020, 34, 45–50. [Google Scholar]
- Blengini, G.A. Life cycle of buildings, demolition and recycling potential: A case study in Turin, Italy. Build. Environ. 2009, 44, 319–330. [Google Scholar] [CrossRef]












| Project Description | B1 Building Prefabricated Demonstration | B1 Building Non-Prefabricated Simulation |
|---|---|---|
| Type | Office building | Office building |
| Location | Hangzhou, Zhejiang Province | Hangzhou, Zhejiang Province |
| Area | 8888 m | 8888 m |
| Building height | 16.3 m | 16.3 m |
| Structure system | PEC structure system | Frame shear wall structure |
| Floor height | 4.78 m | 4.78 m |
| Seismic Intensity | 7.0 | 7.0 |
| Construction Method | Prefabricated construction | Non-prefabricated construction |
| Prefabricated level | 86.5% | 0 |
| Structural frame: column, beam, slab, structural wall, slab | Steel structure, prefabricated | Reinforced concrete, non-prefabricated |
| Structural frame: staircase, floor slab | Steel structure, assembly | Reinforced concrete, non-prefabricated |
| External works: Exterior walls | UHPC + LOW-E glass + perforated aluminum panels, prefabricated | Reinforced concrete + perforated aluminum panels, non-prefabricated |
| External works: Roof | Steel structure, prefabricated | Reinforced concrete, non-prefabricated |
| Internal works: Partition wall | ALC slat wall, prefabricated | Shale bricks, masonry |
| Region/Time (Year) | 2015 | 2016 | 2017 | Three-Year Weighted Average |
|---|---|---|---|---|
| tCOe/MWh | tCOe/MWh | tCOe/MWh | tCOe/MWh | |
| North China Regional Grid | 0.9590 | 0.9242 | 0.9437 | 0.9419 |
| Northeast regional grid | 1.0959 | 1.0634 | 1.0886 | 1.0826 |
| East China Regional Grid | 0.7987 | 0.7894 | 0.7888 | 0.7921 |
| Central China Regional Grid | 0.8767 | 0.8564 | 0.8444 | 0.8587 |
| Northwest regional grid | 0.9178 | 0.8614 | 0.8990 | 0.8922 |
| Southern regional grid | 0.8080 | 0.7900 | 0.8139 | 0.8042 |
| Energy Type | Carbon Emissions Factor (gCOe/MJ) | Source | Carbon Emissions Factor (gCOe/MJ) | Source |
|---|---|---|---|---|
| Coal | 90.4 | Baines, 1993 [45,52] | 89 | Carbon emissions calculation standard for buildings |
| Oil | 68 | Baines, 1993 | 72.23 | Carbon emissions calculation standard for buildings |
| Gasoline | 66.6 | Baines, 1993 | 67.91 | Carbon emissions calculation standard for buildings |
| Diesel | 68.7 | Baines, 1993 | 72.59 | Carbon emissions calculation standard for buildings |
| Work Method Classification | Project Part | Component Type |
|---|---|---|
| Prefabricated partially laminated floor slab | ||
| Precast laminated floor slab | ||
| Prefabricated steel stairs | ||
| Prefabricated honeycomb beams | ||
| Prefabricated partially filled steel-concrete composite beams | ||
| Envelope walls and internal partition walls | ||
| Unit curtain wall for non-load-bearing exterior parapet walls | ||
| PC integrated external wall panels | ||
| Perforated aluminum panels Decoration integrated ALC slats | ||
| Non-prefabricated part | Concrete works | PC laminated beam |
| Reinforced concrete works | Non-prefabricated component reinforcement |
| Building Materials | Mass/Volume | Waste Factor | Carbon Emissions Factor | Total Carbon Emissions (kgCOe) |
|---|---|---|---|---|
| ALC slatwall | 769.76 m | 2.50% | 336 kgCOe/m | 265,105.34 |
| C35 Concrete | 267.71 m | 2.50% | 295 kgCOe/m | 80,948.81 |
| C30 Concrete | 932.35 m | 2.50% | 295 kgCOe/m | 281,919.33 |
| H section steel | 1512.69 t | 5% | 352 kgCOe/t | 559,090.22 |
| SBS modified asphalt waterproofing membrane | 16.45 t | 2.50% | 4620 kgCO2e/t | 77,898.98 |
| C25 fine stone concrete precast block | 2493.83 m | 5% | 295 kgCO2e/m | 77,245.46 |
| Metal drainage ditch | 44.760 t | 5.00% [28] | 112 kgCOe/t | 5263.776 |
| 588.2 m | 5% | 254 kgCOe/m | 156,872.94 | |
| 112.5 thick XPS extruded plastic benzene board | 6.2 t | 2.50% | 5020 kgCOe/t | 31,902.1 |
| C15 fine stone concrete bedding layer | 248.76 m | 2.50% | 295 kgCOe/m | 75,218.81 |
| 25mm UHPC Ultra High Performance Concrete Slab | 72.27 m | 0% | 295 kgCOe/m | 21,320.39 |
| Steel keel | 161.45 t | 5% | 352 kgCOe/t | 59,671.92 |
| Insulation rock wool board | 12.92 t | 2.50% | 1980 kgCOe/t | 26,221.14 |
| Curtain wall liner (aluminum veneer) | 884.11 m | 5% | 8.06 kgCOe/m | 7482.22 |
| Curtain wall glass | 135.32 t | 5% | 1130 kgCOe/t | 160,557.18 |
| Perforated aluminum panel | 3282 m | 5% | 8.06 kgCOe/m | 27,775.57 |
| Aluminum keel | 36.403 t | 5% | 622 kgCOe/t [45] | 23,774.8 |
| Insulation liner (galvanized thin steel) | 14.16 t | 5% | 2050 kgCOe/t | 30,479.4 |
| E1 | 1968.75 tCOe |
| Plant Survey Data | Electricity Consumption (Million kWh) | Water Consumption (Million Tons) | Natural Gas (Million Cubic Meters) | ||
|---|---|---|---|---|---|
| Area | Domestic and production | Domestic | Production | Domestic | Production |
| Consumption | 1013 | 0.5 | 2.5 | 1 | 20 |
| Factory Production Line | Quantity | Installed Power (kW) | Total Installed Power (kW) | Share Based on Total Power | Electricity (Million kWh) |
|---|---|---|---|---|---|
| Steel joist floor joist Production line | 2 | 260 | 520 | 7.40% | 75 |
| PC secondary processing line | 1 | 200 | 200 | 2.90% | 29.38 |
| Door and window processing line | 2 | 120 | 240 | 3.40% | 34.44 |
| Concrete mixing plant | 1 | 75 | 75 | 1.00% | 10.13 |
| PC component production line | 2 | 1300 | 2600 | 37.20% | 376.84 |
| Steel structure parts components | Multiple | Multiple | 3350 | 47.90% | 485.23 |
| Main Part Amount (t) | Name of Components (Total) | Total Factory Consumption of Electricity (Million kWh) | Percentage of | Electricity Consumed by Prefabricated Components (Million kWh) | Carbon Emissions (tCOe) |
|---|---|---|---|---|---|
| Main structure | Prefabricated partially filled steel-concrete frame columns | 514.61 | 0.54% | 2.778894 | 22.01 |
| Prefabricated partially laminated floor slabs | 376.84 | 0.47% | 1.771148 | 14.03 | |
| Prefabricated laminated floor slabs | 376.84 | 0.16% | 0.602944 | 4.78 | |
| Prefabricated steel stairs | 485.23 | 0.07% | 0.3542179 | 2.81 | |
| Prefabricated honeycomb beams | 485.23 | 0.93% | 4.512639 | 35.74 | |
| Prefabricated partially filled steel-concrete composite beams | 514.61 | 0.15% | 0.771915 | 6.11 | |
| pc exterior wall panel | 376.84 | 0.04% | 0.1431992 | 1.13 | |
| Prefabricated pc board | 376.84 | 0.14% | 0.527576 | 4.18 | |
| Enclosing walls and internal partitions | Non-load-bearing perimeter parapet wall using unit curtain wall | 34.44 | 0.94% | 2.383248 | 2.56 |
| PC integrated external wall panels, perforated aluminum panels | 376.84 | 1.63% | 3.01472 | 48.65 | |
| Decoration integrated ALC slats | 769.76 m * 637.0028 kgCO/m [45] | 0.49 | |||
| Total Carbon Emissions | 142.49 tCOe |
| Main Part | Component Name | Percentage of Qi | Production Line Labor | Prefabricated Components Labor | Personnel Domestic Water Consumption | Water Carbon Emissions Factor | Total Carbon Emissions Amount (kgCOe) |
|---|---|---|---|---|---|---|---|
| Main structure | Steel-filled concrete frame column | 0.54% | 560 | 94.5 | 175 L/person.d | 0.4137 | 886.6667 |
| Prefabricated partially laminated floor slabs | 0.47% | 120 | 17.625 | 175 L/person.d | 0.4137 | 143.9335 | |
| Prefabricated laminated floor slabs | 0.16% | 120 | 6 | 175 L/person.d | 0.4137 | 16.68038 | |
| Prefabricated steel stairs | 0.07% | 440 | 10.0375 | 175 L/person.d | 0.4137 | 12.73161 | |
| Prefabricated honeycomb beams | 0.93% | 440 | 127.875 | 175 L/person.d | 0.4137 | 2066.348 | |
| Prefabricated partially filled steel-concrete composite beams | 0.15% | 560 | 26.25 | 175 L/person.d | 0.4137 | 68.41564 | |
| PC exterior wall panel | 0.04% | 120 | 1.425 | 175 L/person.d | 0.4137 | 0.940878 | |
| Prefabricated PC board | 0.14% | 120 | 5.25 | 175 L/person.d | 0.4137 | 12.77092 | |
| Enclosing walls and internal partitions | Non-load-bearing perimeter parapet wall using unit curtain wall | 0.94% | 70 | 20.5625 | 175 L/person.d | 0.4137 | 335.8448 |
| PC integrated external wall panels perforated aluminum panels | 1.63% | 70 | 35.65625 | 175 L/person.d | 0.4137 | 1009.853 | |
| 4.55 tCOe |
| Main Part | Component Name | Percentage of Qi | Production Line Labor | Labor Hours (Unit) | Human Carbon Emission Factor (kg/unit) | Carbon Dioxide Emissions (kgCOe) |
|---|---|---|---|---|---|---|
| Main structure | Steel-filled concrete frame column | 0.54% | 560 | 750 | 0.73 | 1655.64 |
| Prefabricated partially laminated floor slabs | 0.47% | 120 | 750 | 0.73 | 308.79 | |
| Prefabricated laminated | ||||||
| Floor slabs | 0.16% | 120 | 750 | 0.73 | 105.12 | |
| Prefabricated steel stairs | 0.07% | 440 | 750 | 0.73 | 175.857 | |
| Prefabricated honeycomb beams | 0.93% | 440 | 750 | 0.73 | 2240.37 | |
| Prefabricated partially filled steel-concrete composite beams | 0.15% | 560 | 750 | 0.73 | 459.9 | |
| PC exterior wall panel | 0.04% | 120 | 750 | 0.73 | 24.966 | |
| Prefabricated PC board | 0.14% | 120 | 750 | 0.73 | 91.98 | |
| Enclosing walls and internal partitions | Non-load-bearing perimeter parapet wall using unit curtain wall | 0.94% | 70 | 750 | 0.73 | 360.255 |
| PC integrated external wall panels perforated aluminum panels | 1.63% | 70 | 750 | 0.73 | 624.6975 | |
| 6.05 tCOe |
| Factory Production Line | Area (m) | Total Factory Floor Area (m) | Percentage of Production Line Workshop Area | Total Annual Natural Gas Consumption of the Plant (Million m) | Natural Gas Carbon Emissions Factors | Carbon Emissions (tCOe) |
|---|---|---|---|---|---|---|
| Steel truss floor joist production line | 6300 | 103,000 | 6.10 | 20 | 55.54 tCOe/TJ | 0.71 |
| PC secondary processing line | 7236 | 7.00% | 0.82 | |||
| Door and window processing line | 12,492 | 12.10% | 1.41 | |||
| Concrete mixing plant | 4000 | 3.90% | 0.45 | |||
| PC component production line | 17,708 | 17.00% | 1.99 | |||
| Steel structure parts | 33,216 | 32.20% | 3.77 | |||
| 9.18 tCOe |
| Name of Auxiliary Material | Total | Carbon Emissions Factor | Carbon Emissions (t) |
|---|---|---|---|
| Knot 422 welding material | 59.01 t | 2350 kgCO/t | 7.06 |
| Polyurethane glass sealant | 94 kg | 5.22 kgCOeq/kg | 0.49 |
| Mold release agent | 24.08 | 3.6 kgCOeq/kg | 0.08 |
| 7.63 |
| Transport Material | Mass | Carbon Emissions Factor | Transportation Distance | Total Carbon Emissions (kgCOe) |
|---|---|---|---|---|
| Concrete | 1200.06 t | 0.104 kgCOe/(t·km) | 20 km | 24,960.1248 |
| Steel | 3608.98 t | 0.104 kgCOe/(t·km) | 65 km | 24,396.7048 |
| Aluminum (Al) | 4705.6 kg | 0.104 kgCOe/(t·km) | 85 km | 41.597504 |
| Rock wool board | 12.92 t | 0.104 kgCOe/(t·km) | 75 km | 100.776 |
| E2 | 49.50 tCOe |
| Transport Material | Mass | Carbon Emissions Factor | Transportation Distance | Total Carbon Emissions (kgCOe) |
|---|---|---|---|---|
| Unit type curtain wall | 291.29 t | 0.104 kgCOe/(t·km) | 63 km | 1908.532 |
| Prefabricated steel components | 1197.41 t | 0.104 kgCOe/(t·km) | 63 km | 7845.43 |
| Prefabricated concrete components | 2411.57 t | 0.104 kgCOe/(t·km) | 63 km | 15,800.61 |
| Concrete | 2880.14 t | 0.104 kgCOe/(t·km) | 63 km | 18,870.68 |
| Metal | 44.760 t | 0.104 kgCOe/(t·km) | 65 km | 302.5776 |
| Insulation liner (steel plate) | 14.16 t | 0.104 kgCOe/(t·km) | 65 km | 95.7216 |
| 25mm UHPC plate | 169.54 t | 0.104 kgCOe/(t·km) | 20 km | 352.6432 |
| E4 | 45.17 tCOe |
| Construction Activities | Project | Quality | Energy Type | Natural Gas Carbon Emissions Factors | Total Carbon Emissions (kgCOe) |
|---|---|---|---|---|---|
| On-site transportation | Steam crane | 2639 kg | Diesel fuel | 2298 gCO/L | 6064.422 |
| Lifting arm truck | 2343.2 kg | Diesel fuel | 2618 gCO/L | 6134.498 | |
| Forklift | 131.25 kg | Diesel fuel | 2618 gCO/L | 343.6125 | |
| Lorry | 81.25 kg | Gasoline | 2298 gCO/L | 186.7125 | |
| Welding process | Handlebar welding | 463.89 kW/h | Power | 0.7898 kgCOe/kWh | 366.3803 |
| Carbon dioxide gas shielded welding | 49 kW/h | Power | 0.7898 kgCOe/kWh | 38.7002 | |
| Purchased electricity for construction | On-site electricity | 23,980 kW/h | Power | 0.7898 kgCOe/kWh | 18,939.4 |
| On-site worker activities | Resident Activities | No solid waste | - | 3.17 | |
| kgCOe/kg | |||||
| Water Production | 250 m | Water | 0.42 kgCOe/m | 105 | |
| Unorganized emissions | None | - | |||
| Unorganized emissions | 311.77 /Workday | 0.73 kgCO/Workday | 227.5921 | ||
| E5 + E6 + E7 | 32.41 tCOe |
| Material | Total Amount | Carbon Emissions Factor | Carbon Emissions (kgCOe) | |
|---|---|---|---|---|
| Structural component | Concrete | 3588 m | 295 kgCOe/m | 1085.22 |
| Steel | 65.12 t | 352 kgCOe/t | 24.07 | |
| Steel reinforcement | 676.03 t | 352 kgCO/t | 249.86 | |
| SBS modified asphalt | 16.45 t | 4620 kgCO/t | 77,898.98 | |
| C25 fine stone concrete | 2493.83 m | 295 kgCO/m | 77,245.46 | |
| Internal wall part | Shale bricks | 382.06 | 292 kgCO/m | 111.56 |
| 350.8 | 102.43 | |||
| 386.18 | 112.76 | |||
| Cement mortar | 67.14 m | 496 kgCO/m | 33,301.44 | |
| Putty powder | 11.19 m | 501 kgCO/m | 5606.19 | |
| External envelope part | 25 mm UHPC ultra high performance concrete slab | 72.27 m | 295 kgCOe/m | 21,320.39 |
| Steel keel | 161.45 t | 352 kgCOe/t | 59,671.92 | |
| Insulation rock wool board | 12.92 t | 1980 kgCOe/t | 26,221.14 | |
| Curtain wall liner (aluminum veneer) | 884.11 m | 8.06 kgCOe/m | 7482.22 | |
| Curtain wall glass | 135.32 t | 1130 kgCOe/t | 160,557.18 | |
| Perforated aluminum panel | 3282 m | 8.06 kgCOe/m | 27,775.57 | |
| Aluminum alloy keel | 36.403 t | 622 kgCO/t | 23,774.8 | |
| Insulation liner (galvanized thin steel plate) | 14.16 t | 2050 kgCOe/t | 30,479.4 | |
| Metal Drains | 44.760 t | 112 kgCOe/t | 5263.776 | |
| 2242.50 tCOe |
| Material Transported | Mass | Vehicle Emissions Factor (kgCO/t·km) | Transportation Distance | Total Carbon Emission (kgCOe) |
|---|---|---|---|---|
| Concrete | 8417.45 t | 0.104 kgCOe/(t·km) | 20 km | 24,960.1248 |
| Steel | 714.15 t | 0.104 kgCOe/(t·km) | 65 km | 24,396.7048 |
| Aluminum | 4705.6 kg | 0.104 kgCOe/(t·km) | 85 km | 41.597504 |
| Rock wool board | 12.92 t | 0.104 kgCOe/(t·km) | 75 km | 100.776 |
| Metal | 44.760 t | 0.104 kgCOe/(t·km) | 65 km | 302.5776 |
| Insulation liner (galvanized thin steel) | 14.16 t | 0.104 kgCOe/(t·km) | 65 km | 95.7216 |
| Concrete slab | 169.54 t | 0.104 kgCOe/(t·km) | 20 km | 352.6432 |
| Steel keel | 161.45 t | 0.104 kgCOe/(t·km) | 65 km | 1091.402 |
| 136.59 tCOe |
| Accounting Standards | Construction Materials | Transportation Phase | Construction Phase Carbon Emissions (tCOe) |
|---|---|---|---|
| B1 building reference building accounting | 2242.50 | 136.59 | - |
| Chinese building energy consumption research standard | 2242.50 | 136.59 | 82.11 |
| ZJU Construction Statistics Standard | 2242.50 | 124.46 | 83.06 |
| 136.59 tCOe |
Disclaimer/Publisher’s Note: The statements, opinions and data contained in all publications are solely those of the individual author(s) and contributor(s) and not of MDPI and/or the editor(s). MDPI and/or the editor(s) disclaim responsibility for any injury to people or property resulting from any ideas, methods, instructions or products referred to in the content. |
© 2022 by the authors. Licensee MDPI, Basel, Switzerland. This article is an open access article distributed under the terms and conditions of the Creative Commons Attribution (CC BY) license (https://creativecommons.org/licenses/by/4.0/).
Share and Cite
Mo, Z.; Gao, T.; Qu, J.; Cai, G.; Cao, Z.; Jiang, W. An Empirical Study of Carbon Emission Calculation in the Production and Construction Phase of A Prefabricated Office Building from Zhejiang, China. Buildings 2023, 13, 53. https://doi.org/10.3390/buildings13010053
Mo Z, Gao T, Qu J, Cai G, Cao Z, Jiang W. An Empirical Study of Carbon Emission Calculation in the Production and Construction Phase of A Prefabricated Office Building from Zhejiang, China. Buildings. 2023; 13(1):53. https://doi.org/10.3390/buildings13010053
Chicago/Turabian StyleMo, Zhoujin, Tianyu Gao, Jie Qu, Gangwei Cai, Zhenyu Cao, and Wen Jiang. 2023. "An Empirical Study of Carbon Emission Calculation in the Production and Construction Phase of A Prefabricated Office Building from Zhejiang, China" Buildings 13, no. 1: 53. https://doi.org/10.3390/buildings13010053
APA StyleMo, Z., Gao, T., Qu, J., Cai, G., Cao, Z., & Jiang, W. (2023). An Empirical Study of Carbon Emission Calculation in the Production and Construction Phase of A Prefabricated Office Building from Zhejiang, China. Buildings, 13(1), 53. https://doi.org/10.3390/buildings13010053

