Abstract
Post-installed elevator projects have grown significantly in recent years in response to the problem of insufficient vertical traffic capacity in existing buildings, but research on the seismic performance of post-installed elevator structures has been relatively limited. This study takes a 26-story-frame shear wall structure as an example. The seismic response characteristics of this structure before and after the installation of elevators were analyzed. In order to optimize the design scheme of the post-installed elevator structure, this study further analyzed how factors such as the standard height of the elevator shaft frame, the elevator location, and the way the post-installed elevator is connected to the structure affect the seismic response of the elevator structure. The results show that the post-installed elevators have a small impact on the seismic performance of the existing building and can slightly reduce the seismic response of the structure. In addition, the stiffness of the elevator shaft will be reduced, and its seismic response will be slightly increased as the standard shaft height is increased, but the construction cost can be reduced. The installation location has a greater impact on the seismic response of the post-installed elevator. The seismic response of the post-installed elevator is minimal when it is arranged near the elevator shaft of the existing building.
1. Introduction
In medium- and high-rise buildings, elevators are frequently utilized as vertical transportation equipment. To reduce the cost of construction and the use cost, elevators are commonly not included in residences built in China in the last century that have fewer than seven stories. In addition, there are many buildings with elevators, but they do not have enough capacity to meet the demands of daily use. According to statistics from 2016, more than one million residential buildings in China require additional elevators [1]. In 1958, the UK government proposed that additional elevators be installed in older buildings that have more than four stories and no elevator, and that two additional elevators be installed in structures that have more than six stories [2]. In 1997, the United States government mandated that buildings with more than four stories must have additional elevators with an ability to accommodate ambulance beds [3]. In the same year, Japan also introduced a code of practice for post-installed elevators in public residential buildings [4]. The Singaporean government introduced the “Home Ownership Scheme” in 2004. Under this program, homeowners were only required to pay 5–12% of the cost of installed elevators in their homes, and the government covered the remaining cost [5]. With the development of urbanization, China and other countries have experienced a huge demand for installing elevators in existing buildings, which has become one of the important development directions of housing transformation.
Typically, post-installed elevators are new elevators installed to the outside of existing buildings. Post-installed elevators have two schemes. The first scheme consists of post-installed elevators in an independent state, where the connection with the existing structure is relatively weak, and there are seismic joints and settlement joints between the two [6]. In this scheme, the post-installed elevator is an independent structure with clear force transmission paths and has no impact on the existing building. However, the elevator shaft span is small, and the elevator shaft frame height is high, resulting in a large height to width ratio of the post-added elevator structure that makes it prone to overall instability. The second scheme involves the existence of a reliable connection between the post-installed elevator and the existing building, where the post-installed elevator becomes an accessory part of the existing building. The existing building can act as a restraint for the post-installed elevator, and the bearing capacity, deformation, overturning resistance, and seismic performance of the shaft can easily meet the code requirements. Compared with the initial elevator structure, the interaction between the post-installed elevator and the existing building is not considered in the early design stage. The post-installed elevator is connected to the existing building through the connecting beam, which has a low stiffness and is in a more complex state of stress under earthquake action. Therefore, there are certain safety risks regarding the post-installed elevator structure, and further research on it is necessary.
Some studies have been conducted by scholars in various countries on the influence of nonstructural components, such as elevators, on structural performance. Marko [7] et al. discovered in their post-earthquake survey of high-rise concrete buildings that the usage of masonry infill walls in elevator shafts produced a good seismic performance. The findings revealed that the structural stiffness and seismic performance were significantly enhanced. Jankowski [8] used finite element software to model the collision between the main Olive View Hospital building and the nearby stair tower caused by seismic activity. The results showed that collisions may lead to a significant increase in the response of the lighter stairway tower. The influence of nonstructural components on the performance of the main structure is not negligible. This is mainly related to the details and transmission paths within the structure, and thus, it is difficult to generalize the effect of nonstructural components [9,10,11,12].
Therefore, many scholars have studied the effect of elevators on the performance of the main structure. Zhou et al. [13] found that the connection between a light wood structure and a masonry elevator shaft can significantly reduce the lateral drift and interstory displacement at the top of the building, which makes the building stronger and improves the seismic performance when studying the seismic performance of light wood structures and masonry structures. Jiang Lu et al. [14] conducted a 1:4 scaled-down shaking table test of the addition of an elevator to a multistory masonry structure with additional reinforced concrete shear walls, and the results showed that the structural stiffness and seismic performance were significantly improved. Mazza et al. [15,16,17] studied the collision between the elevator shaft and the main structure during seismic activity. They proposed a magnetically damped link between the elevator shaft and the building. In comparison with other connection methods, the magnetically damped connection was found to significantly reduce the structural pounding effects between the elevator shaft and the building, which reduced seismic damage. To ensure reliable connections between existing buildings and new elevators, Tan [18] and Xiong [19] proposed multiple connections and weak connections by welding, anchoring, and gluing, which can meet the requirements of various design codes and reduce engineering costs. There are also many studies on the reinforcement of existing buildings through externally attached substructures [20,21], since the external substructure is connected to the existing building and cooperates together to resist the seismic impact [22]. Wu [23] developed a novel external tube substructure, which simultaneously functioned as a newly added residential elevator shaft and as a lateral-force resistance system. It showed both a usage function and structural function, achieving the maximization of economic benefits.
Scholars have also provided some solutions to the problems that may emerge in the actual engineering of the installation of post-installed elevators in existing buildings. Combining their findings with previous cases, Liu [24] pointed out that the foundation’s form in the structural design should be determined according to the elevator installation location, foundation depth, and the specific situation of the original building. Moreover, high-rise steel-structure buildings’ column footings should not use exposed column bases in high-intensity areas. Zhang [25] summarized the typical problems that occur in the structural design of elevator installation projects in existing buildings by examining actual cases of elevator installation and listing the code methods, precautions, and techniques of program selection that are used in the design of similar structures. Zheng [26], based on the practical experience of adding elevators, pointed out that pile-raft foundations can be set to avoid foundation overturning, and additional diagonal bracing can be installed to reduce the torsional effect of elevator shafts when the lateral stiffness of the steel structure is weak.
In summary, the impact of nonstructural components such as elevators on structural performance cannot be ignored, and the existing research has mainly focused on the impact of the original elevator on structural performance, whereas most of the research on the installation of elevators in existing buildings has been on frame structures or masonry structures. Studies on the seismic performance of installation elevators in existing buildings are very finite and there are major shortcomings. Therefore, in this study, a frame shear wall structure is used as an example according to an actual project and its original structural model, where the structural model of the post-installed elevator and a variety of working condition models are established. Midas Gen and SATWE, which are finite element dynamic analysis software, are used to compare the seismic response of the structure under different cases and to explore the safety and feasibility of this kind of structure with elevators. The analysis of seismic performance of post-installed elevators in this study can effectively fill the shortages of the seismic design method of the post-installed elevator and understand the seismic response characteristics of the post-installed elevator buildings. The seismic optimization design method proposed in this study can also be used for reference in elevator installation engineering.
2. Engineering Background and Numerical Model
2.1. Engineering Background
- (1)
- Existing building
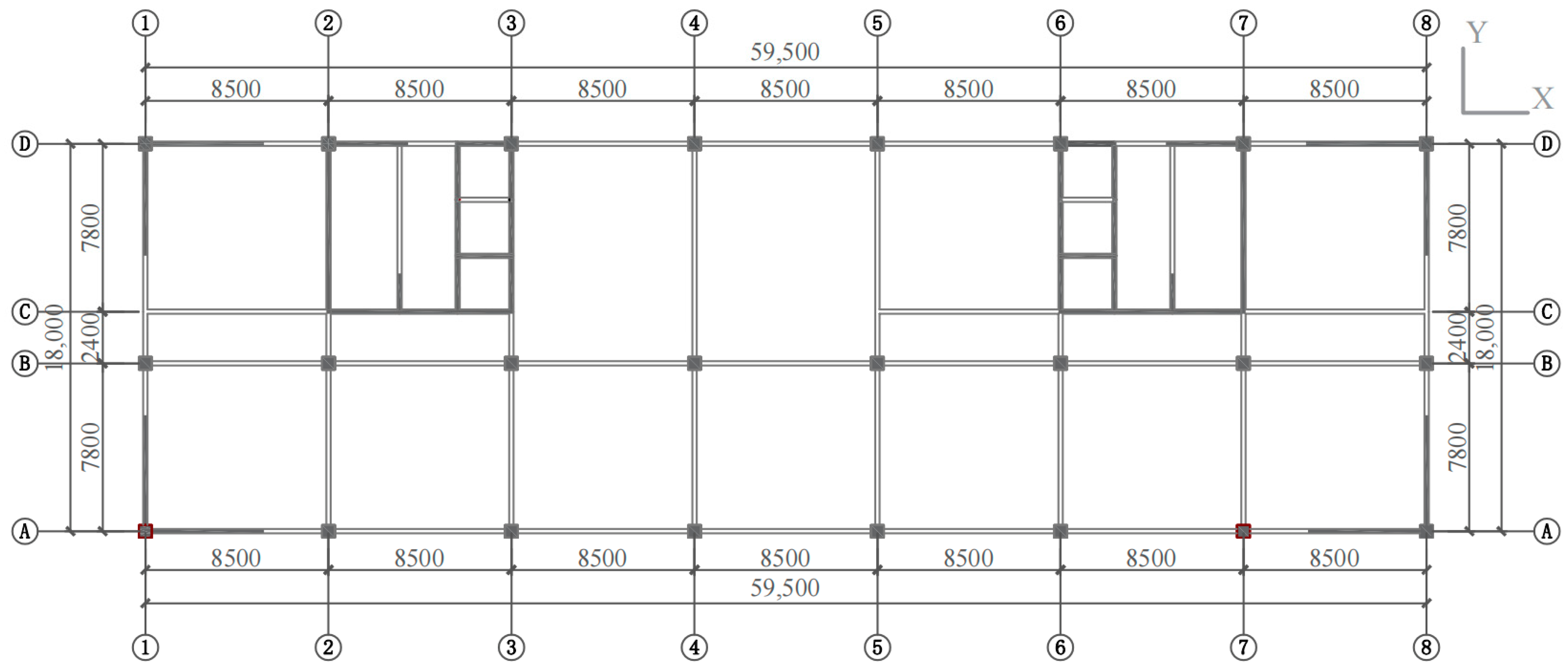
The project, a frame shear wall structure, is an office building in China. There are four vertical transport elevators installed inside. Due to the gradual increase in the number of companies and workers in the office building, the original four elevators can no longer meet the daily requirements of the staff. The construction area of the office building is 32,685 m2, with 26 upper floors. The height of the first layer of the structure is calculated from the top of the foundation beam. There is a negative underground layer, the height of which is 5 m. Additionally, the height of the 1st layer is 5 m, the heights of the 2nd and 3rd layer are both 3.9 m, the 4th to 24th layers are 3.6 m tall, the 25th layer is 4.2 m tall, and the 26th and 27th floors are 3.6 m tall. The shear wall thickness is 250 mm, the column section size is 900 mm × 800 mm, the beam section size is 900 mm × 300 mm, and the height of the main building is 103.3 m. The earthquake fortification intensity of the structure is 7 degrees according to the Chinese earthquake-resistant code, and the corresponding design’s basic acceleration of ground motion is 0.1 g. The site is a class II site with a site characteristic period of 0.45 s and a ground roughness of class B. The constant load of the floor is 3.5 kN/m2, the live load is 2 kN/m2, and the basic wind pressure is 0.45 kN/m2. The structural layout of the standard floor is shown in Figure 1.
Figure 1.
Existing building plan (mm).
- (2)
- Post-installed elevator
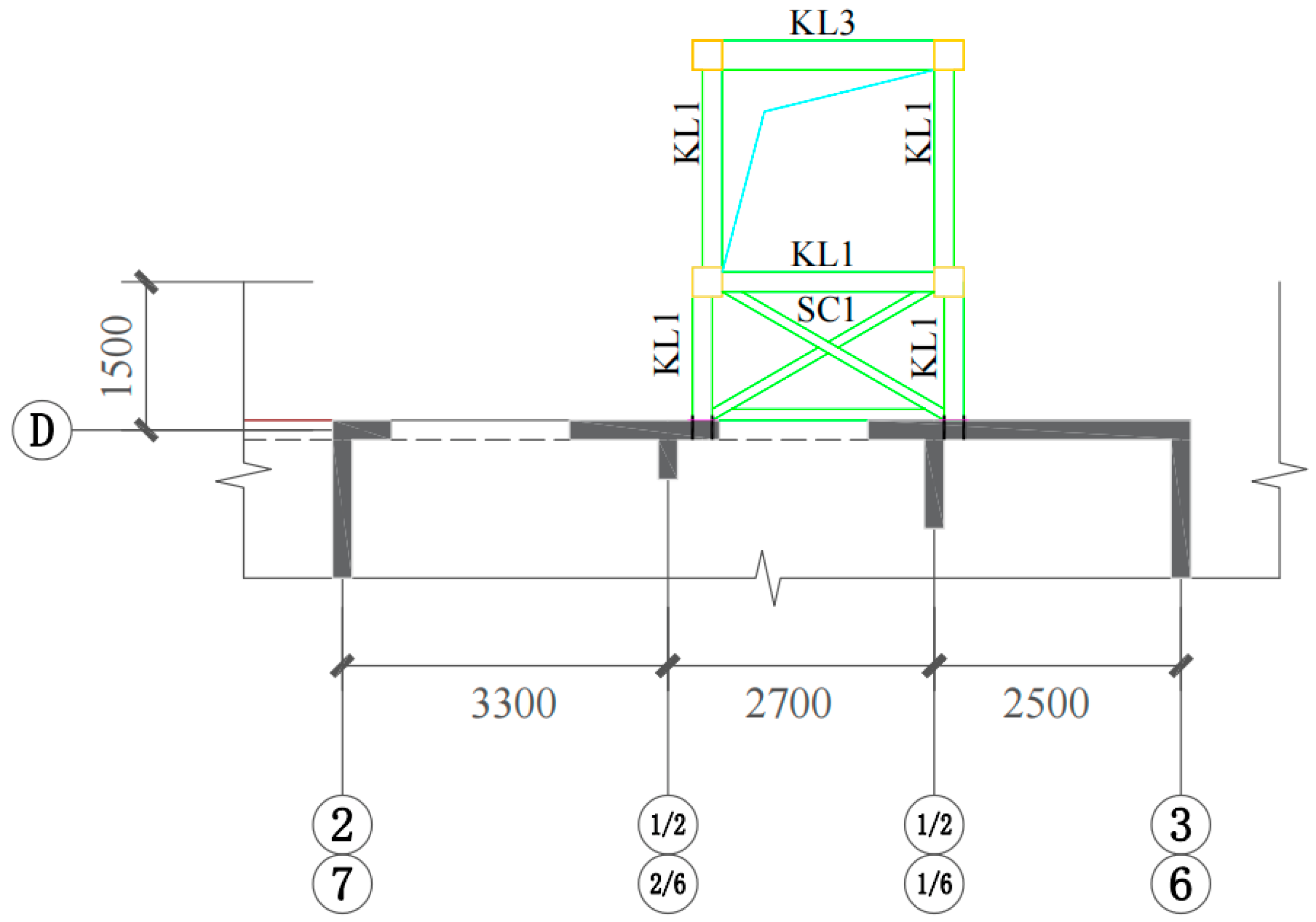
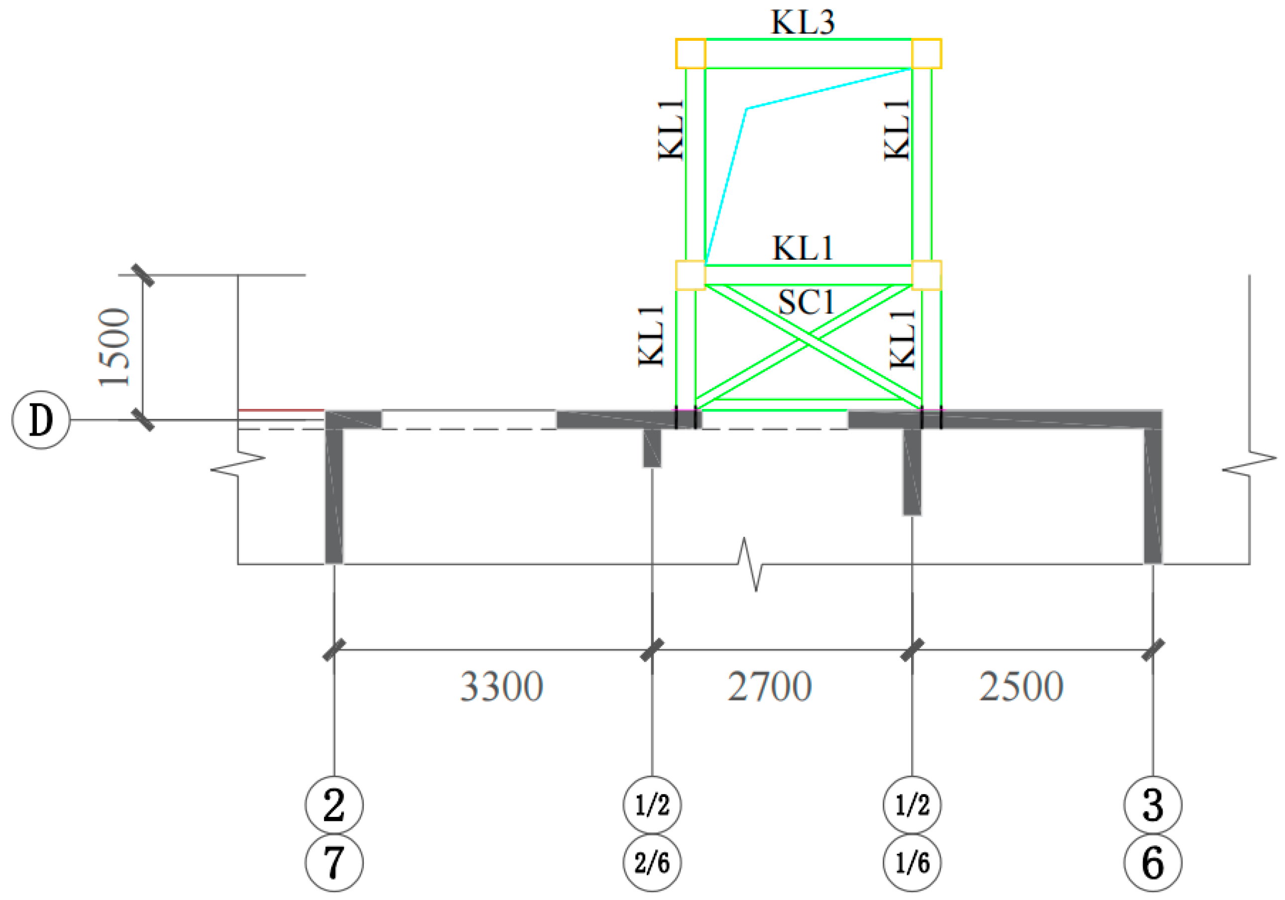
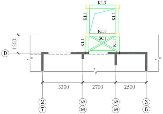
According to the actual situation of the existing building, the elevators were selected to be installed between axis 2 and axis 3, and between axis 6 and axis 7 of the existing building. The design of the post-installed elevators is based on DB62/T 3184-2020, “Technical Guidelines for New Elevators in Existing Residential Buildings” [27], and DBJT 25-175-2020, “Construction of New Elevators in Existing Residential Buildings” [28]. The material of the elevator shafts is Q235 steel (the standard value of the ultimate strength is 235 N/mm2). There is a hinged connection between the post-installed elevator structures and the existing building. As shown in Figure 2, the landing beam of the steel aisle is connected to the existing structural beam on axis D. The post-installed elevator shafts are made of pure steel and have a class II safety rating. The cross-sectional dimensions of the post-installed elevator shafts are 2300 mm × 2350 mm, the standard floor height of the shafts is 1800 mm, the length of the connecting beam is 1500 mm, and the cross-sectional dimensions and type are shown in Table 1.
Figure 2.
Details of elevator installation(mm).
Table 1.
Material parameters of post-installed elevator.
2.2. Numerical Model
In this project, Midas was used for the overall seismic analysis of the existing building with post-installed elevators, and SATWE was used to verify the Midas modeling results. The material properties of the existing building’s model include C30 for concrete, and HPB300 (the yield strength is 300 N/mm2) and HRB335 (the yield strength is 335 N/mm2) for steel. The reinforcement design of the frame columns and shear walls was completed through modeling based on the reinforcement design of the structure. The model of the existing building is shown in Figure 3a. According to the design papers, the post-installed elevator structure was modeled in square steel with a strength grade of Q235. The post-installed elevator model had a total height of 100.2 m. The steel connecting beams were positioned to be the same height as each floor of the existing building. The upper end carriage was at a height of 2.35 m from the bottom of the floor to create the elevator door head, and a vertical beam was arranged at the opening to create the elevator door cover. The overall model of the existing building with the post-installed elevator structures is shown in Figure 3b.
Figure 3.
Finite element models.
2.3. Analysis of Seismic Response
The response spectrum was generated according to the Chinese standard GB50011-2010 for frequent earthquakes with a seismic fortification intensity of 7 degrees, a site class II, a maximum seismic influence coefficient of 0.08, a characteristic period of 0.35 s, a damping ratio of 0.05, and a seismic grouping of 1. According to the Chinese “Seismic Design Code of Buildings” [29], the internal force and deformation analysis under the action of frequent earthquakes should be analyzed in the seismic design of regular buildings. In this case, it can be assumed that the structure and members are in an elastic state, and the internal force and deformation analysis can be performed by using a linear static method or linear dynamic method.
According to the requirements of the “Seismic Design Code of Buildings”, the peaks of the input seismic acceleration time histories for different design intensity areas under the effects of frequent and rare earthquakes are shown in Table 2.
Table 2.
Maximum value of input seismic acceleration for time-history analysis (cm/s2).
In order to ensure the reliability of analysis [30], the CHI-CHI wave, the Taft wave, and an artificial wave were selected for the dynamic time-history analysis, and their corresponding acceleration time courses are shown in Figure 4. The seismic waves were taken as horizontal bidirectional inputs, and the peak acceleration curves of the inputs were adjusted according to the ratio of X:Y = 1:0.85.

Figure 4.
Time-history curve of the seismic waves.
3. Impact of Post-Installed Elevators on the Seismic Performance of the Existing Building
The results from the modal analysis and response spectrum analysis are shown in Table 3 and Table 4. The results of the two software programs are within 5% of each other, which indicates that the model is accurate and the finite element software results are accurate. Taken as a whole, all indicators meet the requirements of the “Technical Regulations for Concrete Structures in TALL Buildings” [31]. The horizontal vibration period of the structure decreased, indicating that the stiffness of the existing building increased after the addition of the elevators and that the increase is greater than the mass. In addition, the period ratio (T3/T1) is less than 0.85, indicating that the plan layout of the existing building after the addition of the elevator is reasonable and the structure will not experience excessive torsional effects. The two-way interstory displacements of the overall structure are reduced as compared to the existing building structure, indicating that the post-installed elevator structure will improve the seismic performance of the overall structure, both under standard values of wind loads and under two-way frequent earthquakes. Due to space limitations, only the results of the Midas calculations are presented in the following analysis.
Table 3.
Modal analysis data of structure.
Table 4.
Result of reaction spectrum analysis.
According to the requirements of the “Seismic Design Code of Buildings”, the elastic dynamic time history of the structure should also be analyzed. Considering the seismic action of 7-degree frequent earthquakes, the model’s input seismic acceleration peaks is 35 cm/s2 in the x-direction and 29.75 cm/s2 in the y-direction. The peak interstory displacement angle and peak base shear of the structure obtained from the dynamic time-history analysis are shown in Figure 5. The peak interstory displacement angles are all less than 1/800, all of which can meet the requirements of the “Seismic Design Code of Buildings” for the elastic interstory limits of this frame shear wall structure. Additionally, the interstory displacement angle of the overall structural is smaller in both the X and Y directions than that of the existing building. The peak base shear increased with the installation of the elevators, but the increased base shear is within acceptable limits.
Figure 5.
Result of frequent earthquakes time history analysis.
4. Optimization Design for Post-Installed Elevators
Based on the response spectrum analysis and dynamic time-history analysis, it was found that the post-installed elevators have some impact on the seismic performance of the existing building. However, this impact is small and beneficial, indicating the feasibility of adding the elevator to the existing building. In order to further enhance the seismic performance of the post-installation elevator, the main design factors of the post-installation elevator were targeted for further design optimization in this study [32,33,34].
Parameters affecting the comprehensive performance of the post-installed elevator include materials, standard shaft height, overall height, connection method, placement location, number of arrangements, cross-sectional dimensions of beams and columns, etc. [35]. From the perspective of the structural analysis, three key indicators were selected: floor height, install position, and connection method.
The stiffness and strength of the post-installed elevator are weak relative to the main structure. In order to ensure the seismic safety of the post-installed elevator structure, this study calculated the seismic response of the post-installed elevator structure in the overall model under the action of frequent and rare earthquakes with a 7-degree seismic protection. The seismic load is still input into the seismic acceleration time curve in Figure 3, and the PGA of the model input for frequent seismic loads is still the same as above. The peak value of the input seismic acceleration for the rare seismic time analysis is 220 cm/s2 in the x-direction and 187 cm/s2 in the y-direction, and the damping ratio of the structure is 0.05.
4.1. Structural Optimization of Post-Installed Elevator Shafts
4.1.1. Design Case
The standard shaft height (the distance between adjacent cross beams in the elevator shaft) of a steel-frame elevator shaft determines the safety of the elevator structure. A low standard shaft height of an elevator shaft leads to the high consumption of steel and increased costs, but a high standard shaft height of an elevator shaft leads to insufficient stiffness and a reduced load-bearing capacity of the elevator shaft. In practical engineering, not only does the safety of the structure need to be considered, but the construction cost also needs to be reduced as much as possible. Therefore, in this section, the working conditions of different standard shaft heights are studied. The standard shaft heights were selected based on the existing building’s floor height (3.6 m), where 0.5 times the floor height (initial scheme height), 0.7 times the floor height, and 0.85 times the floor height were selected. The standard shaft height of 1.8 m is called Case A, the standard shaft height of 2.5 m is called Case B, and the standard shaft height of 3 m is called Case C. The three cases were analyzed with a frequent- and rare-earthquake time-history analysis.
4.1.2. Results and Analysis
The results of the time-history analysis for frequent and rare earthquakes are shown in Figure 6 and Figure 7. The seismic response rules for the elevator structure are similar to the rules of action of frequent and rare earthquakes. As shown in Figure 6a and Figure 7a, the peak displacement of the post-installed elevator structure increases with the increase in the standard shaft height; in other words, the peak displacement shows a gradual increase from Case A to Case C. Moreover, the peak displacement in the y-direction is significantly greater than in the x-direction, and the new design solution is not effective in reducing the lateral displacement. As shown in Figure 6b and Figure 7b, the peak base shear tends to decrease from Case A to Case C. This indicates that the optimized design of the post-installed elevator structure reduces the seismic forces to some extent and improves the seismic performance of the elevator structure. Figure 6c and Figure 7c show the peak acceleration of the post-installed elevator structure for the three cases. It can be seen that the peak acceleration of the elevator structure shows a small increase along with the increase in the height of the elevator’s standard floor. Figure 6d and Figure 7d show the peak interstory displacement angle of the post-installed elevator structure for the three cases, and it can be seen that the interstory displacement angle increases along with an increase in the height of the post-installed elevator shaft. The maximum peak interstory displacement angle of the post-installed elevator structure for the three cases is 1/311, which is far less than the requirement of 1/50 in the “Technical Regulations for Concrete Structures in High-Rise Buildings”. Therefore, the structure meets the design requirements of the code, and the interstory displacement angle of Case C is closest to the limit value of the code compared with Cases A and B. The structural performance of Case C is fully utilized, indicating that the direction of structural optimization is reasonable.
Figure 6.
Results of frequent-earthquake time-history analysis.
Figure 7.
Results of rare-earthquake time-history analysis.
The stress cloud charts of the three cases of post-installed elevator structures were also obtained during the rare earthquake time-history analysis, as shown in Figure 8. The maximum stresses in the post-installed elevator structure are 178.06 MPa for Case A, 188.53 MPa for Case B, and 193.3 for Case C, which are all less than the design strength of the steel (235 MPa). Additionally, all three structural design cases can meet the requirements of strength and stability. In this study, the material utilization rate is defined as the ratio of the maximum stress in the member to the design strength of the material. Case A has a material utilization rate of 75.77%, Case B has a rate of 80.22%, and Case C has a rate of 82.25%, which demonstrates that Case C has the highest material utilization rate and can fully utilize its performance.
Figure 8.
Structural stress cloud charts under the action of rare earthquakes.
4.1.3. Cost Analysis
The main cost of the project is the cost of steel. Therefore, the three structural design cases were compared in terms of the cost of steel. In this calculation, the unit price of steel is based on CNY5200 per ton of the current market price. Table 5 shows the cost of steel for the post-installed elevator in the three structural design cases. The post-installed elevator shaft uses less steel as the standard shaft height increases, lowering the cost of structural Case C by CNY 57,408, making it 8.2% less than the original design’s structural cost. The optimized design of structural Case C can not only take into account the seismic performance to achieve the safe use performance of the building, but also significantly reduce the cost of construction, improving the economy of the construction projects.
Table 5.
Cost of steel for the post-installed elevators.
4.2. The Installation Location of the Elevators
4.2.1. Design Case
Existing buildings have a very important role in the safety of elevator structures. The existing building can act as a restraint for elevators and influence the load-bearing capacity, deformation capacity, overturning resistance, and seismic performance of post-installed elevators. In order to further optimize the design case, the location of the post-installed elevator installation was analyzed. The post-installed elevators should be placed in such a way that is appropriate and does not damage the existing building’s structural form. Therefore, in this study, the elevators were installed in a location that has a non-shear wall and is convenient for employees to use. This study proposes a total of four types of design solutions for elevator installation, as shown in Figure 9.

Figure 9.
Elevator installation location plans(mm).
4.2.2. Results and Analysis
Figure 10 and Figure 11 show the results from the time-history analysis of the seismic response of the post-installed elevator structure under the action of frequent and rare earthquakes, respectively. By comparing the seismic response of the elevator structure under different cases, it can be found that the peak displacement, peak base shear, peak acceleration, and peak interstory displacement angle of the elevator structure in Case 1 are better than the other conditions for both frequent and rare earthquakes. The post-installed elevator in Case 1 has the smallest seismic response, whereas the elevator structure in Case 2 has the largest seismic response. It is worth noting that the response of the y-directional displacements of the post-installed elevator structure is greater than the response of the x-directional displacements under horizontal, bidirectional seismic action. Taking the Chi-Chi wave of rare earthquakes as an example, the displacement in the y-direction is more than 50% larger than the displacement in the x-direction. Moreover, the interstory displacement angles of the post-installed elevator structure are at a low level, which is far less than the value specified to meet the requirements of seismic design in the “Seismic Design Code of High-rise Building Structures”.

Figure 10.
Results of frequent-earthquake time-history analysis.
Figure 11.
Results of rare-earthquake time-history analysis.
The results of this study show that the seismic response of the elevator is smaller when the elevator is installed at the location where the structural shear wall is more concentrated (the original structural elevator room). Additionally, installing the additional elevator at the location of the structural elevator room results in a smaller amount of work needed for the renovation project. In summary, this study selects the working conditions of Case 1 as the optimal design case.
4.3. Formation of Node Connections between Post-Installed Elevator and Existing Building
4.3.1. Design Case
The connection between the post-installed elevator and the existing building is usually made by means of a hinged or rigid connection. The above-mentioned Case 1 model is utilized as the research object to compare the seismic response of elevator structures that have various connection methods.
4.3.2. Results of Time-History Analysis
Table 6, Table 7, Table 8, Table 9, Table 10, Table 11, Table 12 and Table 13 show the post-installed elevator’s seismic responses under frequent and rare earthquakes with different connection modes, respectively. It can be seen that the results for frequent and rare earthquakes are similar. The peak displacement, peak interstory displacement angle, and peak base shear of the post-installed elevator structure in the model with rigid connections are smaller under frequent-earthquake effects. However, the base shear in the y-direction and the peak acceleration in the x-direction are lower for the elevator structure of the hinged model with partial seismic events under the action of rare earthquakes. The use of rigid connections significantly reduces the peak base shear in the y-direction during frequent earthquakes, but the peak base shear in the y-direction increases significantly during rare earthquakes. This is because the structure may enter a plastic state during rare earthquakes, and the deformation of the nodes of the main structure increases; thus, the hinge connection between the post-installed elevator and the existing building conforms more to the seismic requirements at this time.
Table 6.
Peak displacement under the action of frequent earthquakes (mm).
Table 7.
Peak interstory displacement angle under the action of frequent earthquakes.
Table 8.
Peak acceleration under the action of frequent earthquakes (cm/s2).
Table 9.
Peak base shear under the action of frequent earthquakes (kN).
Table 10.
Peak displacement under the action of rare earthquakes (mm).
Table 11.
Peak interstory displacement angle under the action of rare earthquakes.
Table 12.
Peak acceleration under the action of rare earthquakes (cm/s2).
Table 13.
Peak base shear under the action of rare earthquakes (kN).
5. Conclusions
In order to understand the effects of post-installed elevators on the seismic performance of an existing structure and the seismic response characteristics of the post-installed elevators, this study examined a 26-story-frame structure with a shear wall as the research object, analyzed the seismic response of different design options, and integrated the seismic response of the structure under different working conditions based on cost and other factors. The following conclusions were obtained:
- (1)
- Post-installed elevators do not affect the seismic performance of high-rise buildings. In the mode-superposition response-spectrum method, the natural vibration period, interstory displacement angle, and stiffness ratio are reduced, whereas the maximum displacement ratio, stiffness-to-weight ratio, and shear-to-weight ratio are increased in the post-installed elevator structure. In the time-history analysis, there was a slight reduction in the interstory displacement angle of the structure. In conclusion, the seismic design requirements of the code are met after the addition of elevators to existing building structures, and the seismic response of the building is slightly reduced. The overall stiffness and seismic performance of the structure as a whole is improved as a result of the post-installed elevator structure.
- (2)
- Although increasing the height of the standard elevator shaft frame will reduce the stiffness and stability of the elevator shaft, the maximum displacement, maximum interstory displacement angle, maximum acceleration, and combined stress of the elevator structure are increased, and the seismic response of the structure will still meet the requirements of the code for the design of the structure. Additionally, the amount of steel used in the post-installed elevator structure can be reduced by 8.2%. Therefore, the height of the standard shaft can be appropriately increased while still meeting the requirements for the seismic performance of the post-installed elevator in order to improve the utilization of materials.
- (3)
- The location of the elevator’s installation has a large impact on the seismic performance of the post-installed elevator structure. The existing building provides horizontal constraints on the post-installed elevator, and the different installation locations affect the strength of the constraints. Additionally, the elevator installation’s location has an important influence on the overall structural stiffness distribution, thus affecting its response under seismic action. The elevator in this study was installed near the elevator shaft where the shear wall arrangement is dense, which helps to reduce the seismic response of the post-installed elevator structure.
- (4)
- Under static and lower seismic loads, the elevator structure with a rigid form has a smaller seismic response, but under larger seismic loads, the seismic response of the elevator with a hinge form is smaller in response to some seismic events. Therefore, in future research, variable stiffness connection forms can be developed so that the connection of the elevator and the main structure is rigid under daily use. This can ensure the stability of the elevator while having the ability to release the restraint of the connection position under the effect of large earthquakes, thus reducing the seismic response of the elevator.
- (5)
- In order to more accurately analyze the seismic performance of post-installed elevators, more design parameters that affect the seismic performance of elevators will be analyzed in future research and more accurate design optimization will be performed using algorithms such as machine learning.
Author Contributions
Conceptualization, Y.C. and M.W.; methodology, M.W. and B.C.; software, J.J. and L.S.; validation, Y.C., J.J. and B.C.; formal analysis, Y.C.; investigation, Y.C.; resources, J.J.; data curation, L.S.; writing—original draft preparation, L.S.; writing—review and editing, L.S. and B.C.; visualization, J.J.; supervision, M.W. All authors have read and agreed to the published version of the manuscript.
Funding
This work was supported by the National Natural Science Foundation of China (grant number 51868048, 52268076).
Data Availability Statement
The data presented in this study are available on request from the corresponding author.
Conflicts of Interest
The authors declare no conflict of interest.
References
- Zhang, Q.; Liu, L.X.; Zhang, R.J. Design Theory and Method of Quick-Assembly Steel Elevator; Chemical Industry Press: Beijing, China, 2020. [Google Scholar]
- Hong, Y.; Cui, W.; Ruan, Y.H. Discussion of 2016 British Lifts Regulations. Essent. Health Saf. Requir. 2018, 34, 5–7. [Google Scholar]
- Liu, M.X. Improve residential quality to encourage multi-story residential configuration elevators. Hous. Ind. 2004, 11, 51–53. [Google Scholar]
- Corvette, B.A.B. Book Review: Interpersonal Conflict, 6th ed.; Wilmot, W.W., Hocker, J.L., Eds.; Sociological Practice; McGraw-Hill: New York, NY, USA, 2001; Volume 344. [Google Scholar]
- Sportsman, S.; Hamilton, P. Conflict management styles in the health professions. J. Prof. Nurs. 2007, 23, 157–166. [Google Scholar] [CrossRef] [PubMed]
- Zhejiang Architectural Design and Research Institute. Design Guidelines for Elevator Adding of Existing Multi-Storied Residential Buildings in Zhejiang Province; Zhejiang Architectural Design and Research Institute: Hangzhou, China, 2015. [Google Scholar]
- Marinković, M.; Baballëku, M.; Isufi, B.; Blagojević, N.; Milićević, I.; Brzev, S. Performance of RC cast-in-place buildings during the November 26, 2019 Albania earthquake. Bull. Earthq. Eng. 2022, 20, 5481–5482. [Google Scholar] [CrossRef]
- Jankowski, R. Non-linear FEM analysis of earthquake-induced pounding between the main building and the stairway tower of the Olive View Hospital. Eng. Struct. 2009, 31, 1851–1864. [Google Scholar] [CrossRef]
- Su, R.K.; Chandler, A.M.; Sheikh, M.N.; Lam, N.T. Influence of non–structural components on lateral stiffness of tall buildings. Struct. Des. Tall Spec. Build. 2005, 14, 143–164. [Google Scholar] [CrossRef]
- Astroza, R.; Ebrahimian, H.; Conte, J.P.; Restrepo, J.I.; Hutchinson, T.C. Influence of the construction process and nonstructural components on the modal properties of a five-story building. Earthq. Eng. Struct. Dyn. 2016, 45, 1063–1084. [Google Scholar] [CrossRef]
- Li, B.; Hutchinson, G.L.; Duffield, C.F. The influence of non-structural components on tall building stiffness. Struct. Des. Tall Spec. Build. 2011, 20, 853–870. [Google Scholar] [CrossRef]
- Repapis, C.; Zeris, C.; Vintzileou, E. Evaluation of the seismic performance of existing RC buildings II: A case study for regular and irregular buildings. J. Earthq. Eng. 2006, 10, 429–452. [Google Scholar] [CrossRef]
- Zhou, L.; Ni, C.; Chui, Y.H.; Chen, Z. Seismic performance of a hybrid building system consisting of a light wood frame structure and a reinforced masonry core. J. Perform. Constr. Facil. 2014, 28, A4014013. [Google Scholar] [CrossRef]
- Lu, J.; Xiangmin, L.; Lixue, J.; Fuwen, Z.; Shiju, Z. Shaking table tests on existing multi-story masonry residence with integrated technology of elevator retrofitting and seismic strengthening. J. Build. Struct. 2021, 42, 20–29+46. [Google Scholar]
- Mazza, F.; Labernarda, R. Magnetic damped links to reduce internal seismic pounding in base-isolated buildings. Bull. Earthq. Eng. 2020, 18, 6795–6824. [Google Scholar] [CrossRef]
- Mazza, F.; Labernarda, R. Effects of nonlinear modelling of the base-isolation system on the seismic analysis of rc buildings. Procedia Struct. Integr. 2018, 11, 226–233. [Google Scholar] [CrossRef]
- Mazza, F.; Vulcano, A. Effects of horizontal and vertical nearfault ground motions on the nonlinear dynamic response of rc buildings with different base-isolation systems. In Proceedings of the 14th World Conference on Earthquake Engineering, Beijing, China, 12–17 October 2008; pp. 11–30. [Google Scholar]
- Tan, F.L. Jointing design for additional elevators to existing building. Build. Struct. 2007, 37, 169–172. [Google Scholar]
- Xiong, H.F.; Chen, R.S. Analysis on problems about structural design of elevator adding of existing multi-storied residential buildings. Build. Struct. 2020, 50, 848–851. [Google Scholar]
- Cao, X.-Y.; Wu, G.; Ju, J.-W. Seismic performance improvement of existing RCFs using external PT-PBSPC frame sub-structures: Experimental verification and numerical investigation. J. Build. Eng. 2021, 46, 103649. [Google Scholar] [CrossRef]
- Hiwatashi, T.; Nonaka, Y.; Hagiwara, N.; Fujimoto, T. Development of seismic retrofit by outframe with pin-detail : Part. 2: Test of structural characteristics. In Summaries of Technical Papers of Annual Meeting Architectural Institute of Japan. C-2, Structures IV, Reinforced Concrete Structures Prestressed Concrete Structures Masonry Wall Structures; Architectural Institute of Japan: Tokyo, Japan, 2008; pp. 81–84. [Google Scholar]
- Cao, X.Y.; Shen, D.; Feng, D.C.; Wang, C.L.; Qu, Z.; Wu, G. Seismic retrofitting of existing frame buildings through externally attached sub-structures: State of the art review and future perspectives. J. Build. Eng. 2022, 57, 104904. [Google Scholar] [CrossRef]
- Wu, G. The External Prefabricated Tube Substructure Functioned as Elevator Shaft to Retrofit the Original Frames. Patent CN201711174415.0, 24 August 2021. [Google Scholar]
- Liu, W. Analysis of typical problems in construction drawings of elevator engineering structures for existing buildings. Build. Struct. 2020, 50, 852–856. [Google Scholar]
- Zhang, Y.M. Thoughts on common problems of adding elevators in existing residences. Build. Struct. 2022, 52, 46–48. [Google Scholar] [CrossRef]
- Zheng, C. Research on the structural design of installing elevator in Fujian’s existing residential buildings. Build. Struct. 2021, 51, 1344–1347. [Google Scholar]
- DB62/T 3184-2020; Technical Guidelines for New Elevators in Existing Residential Buildings. China Building Materials Press: Beijing, China, 2020.
- DBJT 25-175-2020; Construction of New Elevators in Existing Residential Buildings. China Building Materials Press: Beijing, China, 2020.
- GB 50011-2010; Code for Seismic Design of Buildings. China Architecture & Building Press: Beijing, China, 2010.
- Yang, P.; Li, Y.M.; Lai, M. A new method for selecting inputting waves for time-history analysis. China Civ. Eng. J. 2000, 33, 33–37. [Google Scholar]
- JGJ 3-2010; Technical specification for concrete structures of tall building. China Architecture & Building Press: Beijing, China, 2010.
- Wang, C.N.; Yang, F.C.; Nguyen, V.T.; Vo, N.T. CFD analysis and optimum design for a centrifugal pump using an effectively artificial intelligent algorithm. Micromachines 2022, 13, 1208. [Google Scholar] [CrossRef] [PubMed]
- Tsay, Y.S.; Wu, M.S.; Lin, C.H. An Integrated User Interface of Assessment and Optimization for Architectural Façade Shading Designs in Taiwan. Buildings 2022, 12, 2116. [Google Scholar] [CrossRef]
- Van, T.H.; Tangaramvong, S.; Muong, S.; Van, P.T. Combined Gaussian Local Search and Enhanced Comprehensive Learning PSO Algorithm for Size and Shape Optimization of Truss Structures. Buildings 2022, 12, 1976. [Google Scholar] [CrossRef]
- Liu, Y. Analysis of Seismic Performance of Existing Building Plus Elevator; Shenyang Jianzhu University: Shenyang, China, 2019. [Google Scholar]
Disclaimer/Publisher’s Note: The statements, opinions and data contained in all publications are solely those of the individual author(s) and contributor(s) and not of MDPI and/or the editor(s). MDPI and/or the editor(s) disclaim responsibility for any injury to people or property resulting from any ideas, methods, instructions or products referred to in the content. |
© 2023 by the authors. Licensee MDPI, Basel, Switzerland. This article is an open access article distributed under the terms and conditions of the Creative Commons Attribution (CC BY) license (https://creativecommons.org/licenses/by/4.0/).













