Modeling Approaches for the Assessment of Seismic Vulnerability of Masonry Structures: The E-PUSH Program
Abstract
:1. Introduction
2. Macro-Elements Methods for Structural Analysis of Masonry Buildings
2.1. E-PUSH Software Package
- in case of rigid and resistant floors, leading to a box behavior of the building, a global 3D non-linear static analysis can be performed;
- in case of flexible floors, and aligned wall panels connected by resistant masonry spandrels, or lintels, or by r.c. curbs, only a 2D non-linear static analysis can be performed, focused on the masonry panels part of the considered alignment;
- in case of no adequate connections between adjacent walls, a simple linear static analysis can be carried out.
- only wall panels extending from a given floor to the foundations are taken into account;
- each shear wall is assumed to be effective only in its longitudinal direction; therefore, only the lateral stiffness of the wall is considered, disregarding the transverse (out-of-plane) stiffness;
- the capacity curve of each wall is approximated by a bi-linear elastic-plastic curve, where the plastic plateau, defined by the ultimate shear resistance given by the diagonal or sliding shear failure, is bounded by the elastic drift and the ultimate drift , for which different formulations can be set (e.g., in terms of a ductility factor or considering and inter-story drift limitation);
- the equivalent SDOF (single degree-of-freedom) system bi-linear force-displacement capacity curve of the whole structure is considered, to perform verification according to the N2 method [58] on the Acceleration Displacement Response Spectra (ADRS) plane.
- the wall is still in elastic phase, as its drift, , satisfies : the stiffness of the wall is the elastic one, , and the shear force is ;
- the wall is in the plastic phase, : the shear force is equal to the wall resistance and an apparent stiffness can be assumed, given by:
- the wall is collapsed, : its shear resistance and its stiffness are set to zero and the wall is assumed to sustain only vertical loads.
2.2. Assessment of Seismic Performance of a Benchmark Structure
- Case (A) double-leaf cut stone walls, bonded with lime mortar, connected by transverse stones; the wall external walls at ground and first floor were 0.55 m thick, while all the remaining walls were 0.45 m thick. The floors were flexible wooden diaphragms (dead load 1 kN/m2 and live load 2 kN/m2).
- Case (B) English bond solid clay brick walls, bonded with lime mortar: the wall external walls at ground and first floor were 0.38 m thick, while all the remaining walls were 0.265 m thick. The floors were rigid r.c. diaphragms (dead load 3.5 kN/m2 and live load 2 kN/m2).
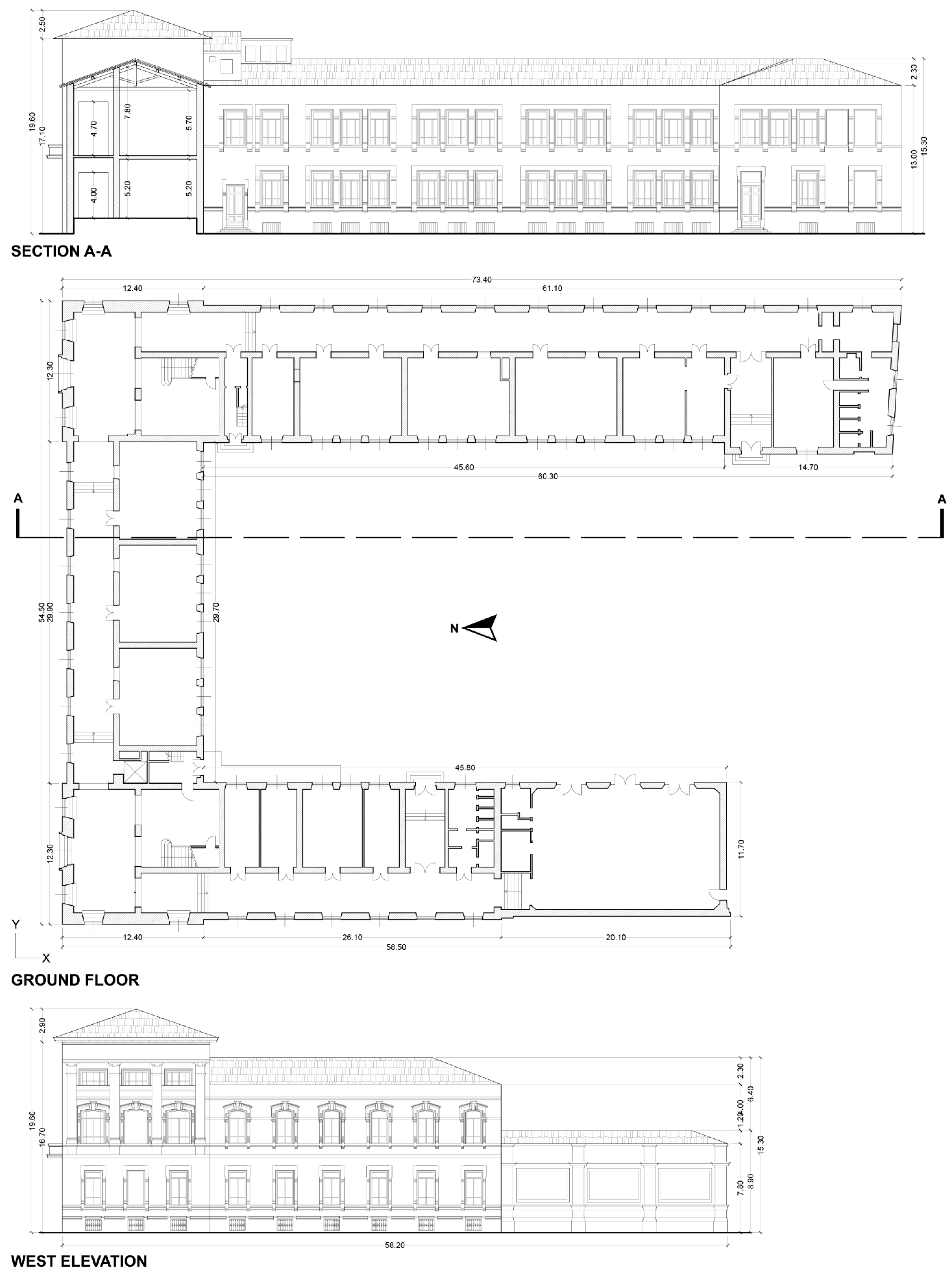
3. Case Study: The Secondary School “Machiavelli”
3.1. Description of the Building
3.2. Evaluation of Masonry Properties
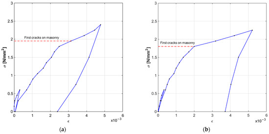
3.3. Definition of the Structural Model and Results of the Assessment
- for seismic excitation in the x-direction, for seismic excitation in the y-direction, so that the seismic risk index of the building is , according to the ductility failure criterion;
- for seismic excitation in the x-direction, for seismic excitation in the y-direction, so that the seismic risk index of the building is , according to the drift failure criterion.
4. Discussion and Conclusions
Author Contributions
Funding
Institutional Review Board Statement
Informed Consent Statement
Data Availability Statement
Conflicts of Interest
References
- Masi, A.; Lagomarsino, S.; Dolce, M.; Manfredi, V.; Ottonelli, D. Towards the updated Italian seismic risk assessment: Exposure and vulnerability modelling. Bull. Earthq. Eng. 2021, 19, 3253–3286. [Google Scholar] [CrossRef]
- Vlachakisa, G.; Vlachakib, E.; Lourenço, P.B. Learning from failure: Damage and failure of masonry structures, after the 2017 Lesvos earthquake (Greece). Eng. Fail. Anal. 2020, 117, 104803. [Google Scholar] [CrossRef]
- Stepinac, M.; Lourenço, P.B.; Atalić, J.; Kišiček, T.; Uroš, M.; Baniček, M.; Novak, M.Š. Damage classification of residential buildings in historical downtown after the ML5.5 earthquake in Zagreb, Croatia in 2020. Int. J. Disaster Risk Reduct. 2021, 56, 102140. [Google Scholar] [CrossRef]
- Mustafaraj, E.; Luga, E.; Corradi, M.; Borri, A.; Muceku, Y.; Zharkalli, A. Physical-Mechanical Properties of Stone Masonry of Gjirokastër, Albania. Materials 2021, 14, 1127. [Google Scholar] [CrossRef]
- Tran, T.; Trang Le, T.; Nguyen, P.; Kim, D.; Pham, T.M.; Salman, K.; Chang, S. Probabilistic Seismic Demand Model and Seismic Fragility Analysis of NPP Equipment Subjected to High- and Low-Frequency Earthquakes. Nucl. Sci. Eng. 2021, 195, 1327–1346. [Google Scholar] [CrossRef]
- Croce, P.; Landi, F.; Formichi, P. Probabilistic seismic assessment of masonry buildings. Buildings 2019, 9, 237. [Google Scholar] [CrossRef] [Green Version]
- Cattari, S.; Magenes, G. Benchmarking the Software Packages to Model and Assess the Seismic Response of Unreinforced Masonry Existing Buildings through Nonlinear Static Analyses. Available online: https://link.springer.com/article/10.1007/s10518-021-01078-0 (accessed on 24 February 2022).
- Croce, P.; Beconcini, M.L.; Formichi, P.; Landi, F.; Puccini, B.; Zotti, V. Bayesian Methodology for Probabilistic Description of Mechanical Parameters of Masonry Walls. ASCE-ASME J. Risk Uncertain. Eng. Syst. Part A Civ. Eng. 2021, 7, 04021008. [Google Scholar] [CrossRef]
- Beconcini, M.L.; Croce, P.; Formichi, P.; Landi, F.; Puccini, B. Experimental Evaluation of Shear Behavior of Stone Masonry Wall. Materials 2021, 14, 2313. [Google Scholar] [CrossRef]
- Roca, P.; Cervera, M.; Gariup, G.; Luca, P. Structural analysis of masonry historical constructions. Classical and advanced approaches. Arch. Comput. Methods Eng. 2010, 17, 299–325. [Google Scholar] [CrossRef] [Green Version]
- Lourenço, P.B. Computations on historic masonry structures. Prog. Struct. Eng. Mater. 2002, 4, 301–319. [Google Scholar] [CrossRef]
- Solarino, F.; Giresini, L. Fragility curves and seismic demand hazard analysis of rocking walls restrained with elasto-plastic ties. Earthq. Eng. Struct. Dyn. 2021, 50, 3602–3622. [Google Scholar] [CrossRef]
- Giresini, L.; Solarino, F.; Taddei, F.; Mueller, G. Experimental estimation of energy dissipation in rocking masonry walls restrained by an innovative seismic dissipator (LICORD). Bull. Earthq. Eng. 2021, 19, 2265–2289. [Google Scholar] [CrossRef]
- Solarino, F.; Giresini, L.; Croce, P. Influence of the Elasto-Plastic Behavior of Tie-Rods in the Response of Rocking Masonry Walls through Seismic Demand Hazard Curves. In Proceedings of the 8th International Conference on Computational Methods in Structural Dynamics and Earthquake Eng, COMPDYN 2021, Athens, Greece, 28–30 June 2021; National Technical University: Athens, Greece, 2021; Volume 1, pp. 664–681. Available online: https://generalconferencefiles.s3.eu-west-1.amazonaws.com/compdyn_2021_pro-ceedings_v1.pdf (accessed on 15 January 2022).
- Giresini, L.; Taddei, F.; Solarino, F.; Mueller, G.; Croce, P. Influence of Stiffness and Damping Parameters of Passive Seismic Control Devices in One-Sided Rocking of Masonry Walls. J. Struct. Eng. 2022, 148, 04021257. [Google Scholar] [CrossRef]
- Tomazevic, M.; Turnsek, V.; Tertelj, S. Computation of the Shear Resistance of Masonry Buildings; Report ZRMK-ZK; Institute for Testing and Research in Materials and Structures: Ljubljana, Slovenia, 1978. (In Slovenian) [Google Scholar]
- Tomazevic, M. Improvement of Computer Program POR. Report ZRMK-IK; Institute for Testing and Research in Materials and Structures: Ljubljana, Slovenia, 1978. (In Slovenian) [Google Scholar]
- Magenes, G.; Della Fontana, A. Simplified non-linear seismic analysis of Masonry Building. Proc. Br. Mason. Soc. 1998, 8, 190–195. [Google Scholar]
- Marques, R.; Lourenço, P.B. Possibilities and comparison of structural component models for the seismic assessment of modern unreinforced masonry buildings. Comput. Struct. 2011, 89, 2079–2091. [Google Scholar] [CrossRef] [Green Version]
- D’Ayala, D. Assessing the seismic vulnerability of masonry buildings. In Handbook of Seismic Risk Analysis and Management of Civil Infrastructure Systems; Tesfamariam, S., Goda, K., Eds.; Woodhead Publishing: Sawston, UK, 2013; pp. 334–365. [Google Scholar] [CrossRef]
- Caliò, I.; Marletta, M.; Pantò, B. A new discrete element model for the evaluation of the seismic behavior of unreinforced masonry buildings. Eng. Struct. 2012, 40, 327–338. [Google Scholar] [CrossRef]
- Lagomarsino, S.; Penna, A.; Galasco, A.; Cattari, S. TREMURI program: An equivalent frame model for the nonlinear seismic analysis of masonry buildings. Eng. Struct. 2013, 56, 1787–1799. [Google Scholar] [CrossRef]
- Beconcini, M.L.; Cioni, P.; Croce, P.; Formichi, P.; Landi, F.; Mochi, C. Non-linear static analysis of masonry buildings under seismic actions. In Proceedings of the 12th International Multi-Conference on Society, Cybernetics and Informatics: IMSCI, Orlando, FL, USA, 8–11 July 2018; Volume 1, pp. 126–131, ISBN 978-194176385-8. Available online: http://www.iiisci.org/Journal/CV$/sci/pdfs/EA239AY18.pdf (accessed on 14 October 2021).
- Croce, P.; Landi, F.; Formichi, P.; Beconcini, M.L.; Puccini, B.; Zotti, V. Non-linear methods for the assessment of seismic vulnerability of masonry historical buildings. In Proceedings of the 4th International Conference on Protection of Historical Constructions, Athens, Greece, 25–27 October 2021; Vaias, I., Mazzolani, F.M., Eds.; Springer Nature Switzerland: Cham, Switzerland, 2022; pp. 651–670. [Google Scholar] [CrossRef]
- Parisse, F.; Cattari, S.; Marques, R.; Lourenço, P.B.; Magenes, G.; Beyer, K.; Calderoni, B.; Camata, G.; Cordasco, E.A.; Erberik, M.A.; et al. Benchmarking the seismic assessment of unreinforced masonry buildings from a blind prediction test. Structures 2021, 31, 982–1005. [Google Scholar] [CrossRef]
- Aedes. PCM Design of Masonry Buildings (Progettazione di Costruzioni in Muratura) Release 2016; AEDES Software for Civil Engineering: San Miniato, Italy, 2016. (In Italian) [Google Scholar]
- Lourenço, P.B.; Rots, J.G.; Blaauwendraad, J. Continuum model for masonry: Parameter estimation and validation. J. Struct. Eng. 1998, 124, 642–652. [Google Scholar] [CrossRef]
- Lucchesi, M.; Pintucchi, B.; Zani, N. Masonry-like material with bounded shear stress. Eur. J. Mech.—A/Solids 2018, 72, 329–340. [Google Scholar] [CrossRef]
- Addessi, D.; Marfia, S.; Sacco, E.; Toti, J. Modeling Approaches for Masonry Structures. Open Civ. Eng. J. 2014, 8, 288–300. Available online: https://opencivilengineeringjournal.com/contents/volumes/V8/TOCIEJ-8-288/TOCIEJ-8-288.pdf (accessed on 14 October 2021). [CrossRef] [Green Version]
- D’Altri, A.M.; Sarhosis, V.; Milani, G.; Rots, J.; Cattari, S.; Lagomarsino, S.; Sacco, E.; Tralli, A.; Castellazzi, G.; de Miranda, S. Modeling Strategies for the Computational Analysis of Unreinforced Masonry Structures: Review and Classification. Arch. Comput. Methods Eng. 2020, 27, 1153–1185. [Google Scholar] [CrossRef]
- Magenes, G.; Remino, M.; Manzini, C.F.; Morandi, P.; Bolognini, D. SAM II Software for the Simplified Seismic Analysis of Masonry Buildings; University of Pavia and EUCENTRE: Pavia, Italy, 2006. [Google Scholar]
- Manzini, C.F.; Morandi, P.; Magenes, G.; Calliari, R. ANDILWall Software for Assessment and Design of Unreinforced, Reinforced and Mixed Masonry Buildings—User Manual (Software di Calcolo e Verifica di Edifici in Muratura Ordinaria, Armata o Mista—Manuale d’uso) Release 2018; Università di Pavia, EUCENTRE e CRSoft S.r.l.: Pavia, Italy, 2006. (In Italian) [Google Scholar]
- S.T.A. DATA. Manuale d’uso 3Muri; S.T.A. DATA S.r.l.: Turin, Italy, 2018; Available online: https://www.adriabim.com/3muri/ (accessed on 24 February 2022).
- Tecnisoft (2018)—Manuale d’uso ModeSt 8.18. (In Italian). Available online: https://www.tecnisoft.it/ziplist/Manuale.pdf (accessed on 24 February 2022).
- Concrete, s.r.l. (2018) Manuale d’uso Sismicad 12.12. (In Italian). Available online: https://www.concrete.it/downloads/ (accessed on 24 February 2022).
- 3DMacro. 3D Computer Program for the Seismic Assessment of Masonry Buildings (Il Software per le Murature) Release 1.1103101; Gruppo Sismica S.r.l.: Catania, Italy, 2014. (In Italian) [Google Scholar]
- Dolce, M. Schematization and modeling of masonry buildings subjected to seismic actions. Ing. Delle Costr. 1991, 25, 44–57. [Google Scholar]
- Croce, P.; Beconcini, M.L.; Formichi, P.; Cioni, P.; Landi, F.; Mochi, C.; Giuri, R. Influence of mechanical parameters on nonlinear static analysis of masonry walls: A relevant case study. Procedia Struct. Integr. 2018, 11, 331–338. [Google Scholar] [CrossRef]
- Beconcini, M.L.; Cioni, P.; Croce, P.; Formichi, P.; Landi, F.; Mochi, C. Influence of shear modulus and drift capacity on non-linear static analysis of masonry buildings. In IABSE Symposium, Guimaraes 2019: Towards a Resilient Built Environment Risk and Asset Management, Report; International Association for Bridge and Structural Engineering (IABSE): Zurich, Switzerland, 2019; pp. 876–883. ISBN 978-385748163-5. [Google Scholar]
- Croce, P.; Beconcini, M.L.; Formichi, P.; Cioni, P.; Landi, F.; Mochi, C.; De Lellis, F.; Mariotti, E.; Serra, I. Shear modulus of masonry walls: A critical review. Procedia Struct. Integr. 2018, 11, 339–346. [Google Scholar] [CrossRef]
- Wilding, B.V.; Beyer, K. The effective stiffness of modern unreinforced masonry walls. Earthq. Eng. Struct. Dyn. 2018, 47, 1683–1705. [Google Scholar] [CrossRef]
- Bosiljkov, V.Z.; Totoev, Y.Z.; Nichols, J.M. Shear modulus and stiffness of brickwork masonry: An experimental perspective. Struct. Eng. Mech. 2005, 20, 21–43. [Google Scholar] [CrossRef] [Green Version]
- Corradi, M.; Borri, A.; Vignoli, A. Experimental study on the determination of strength of masonry walls. Constr. Build. Mater. 2003, 17, 325–337. [Google Scholar] [CrossRef]
- Brignola, A.; Frumento, S.; Lagomarsino, S.; Podestà, S. Identification of shear parameters of masonry panels through the in-situ diagonal compression test. Int. J. Archit. Herit. 2009, 3, 52–73. [Google Scholar] [CrossRef]
- Vasconcelos, G.; Lourenço, P.B. In-Plane Experimental Behavior of Stone Masonry Walls under Cyclic Loading. J. Struct. Eng. 2009, 135, 1269–1277. [Google Scholar] [CrossRef]
- Vanin, F.; Zaganelli, D.; Penna, A.; Beyer, K. Estimates for the stiffness, strength and drift capacity of stone masonry walls based on 123 quasi-static cyclic tests reported in the literature. Bull. Earthq. Eng. 2017, 15, 5435–5479. [Google Scholar] [CrossRef]
- Turnšek, V.; Ĉaĉoviĉ, F. Some experimental results on the strength of brick masonry walls. In Proceedings of the 2nd International Brick Masonry Conference, Stoke-on-Trent, UK, 12–15 April 1970; British Ceramic Research Association: Stoke-on-Trent, UK, 1971; pp. 149–156. [Google Scholar]
- Borri, A.; Corradi, M.; De Maria, A.; Sisti, R. Calibration of a visual method for the analysis of the mechanical properties of historic masonry. Procedia Struct. Integr. 2018, 11, 418–427. [Google Scholar] [CrossRef]
- Petry, S.; Beyer, K. Influence of boundary conditions and size effect on the drift capacity of URM walls. Eng. Struct. 2014, 65, 76–88. [Google Scholar] [CrossRef] [Green Version]
- Wilding, B.V.; Beyer, K. Analytical and empirical models for predicting the drift capacity of modern unreinforced masonry walls. Earthq. Eng. Struct. Dyn. 2018, 47, 2012–2031. [Google Scholar] [CrossRef]
- Beconcini, M.L.; Croce, P.; Formichi, P.; Landi, F.; Immorali, A. The definition of drift capacity of walls in the seismic assessment of masonry buildings. In IABSE Symposium, Wroclaw 2020: Synergy of Culture and Civil Engineering—History and Challenges, Report; International Association for Bridge and Structural Engineering (IABSE): Zurich, Switzerland, 2020; pp. 642–649. ISBN 978-385748169-7. [Google Scholar]
- Italian Ministry of Infrastructure and Transport. NTC 2018-Italian Building Code; D.M. 17 January 2018; Italian Official Journal, Istituto Poligrafico e Zecca dello Stato: Rome, Italy, 2019. (In Italian) [Google Scholar]
- Italian Public Works Council. Memorandum for Application of Italian Building Code, N. 7; Italian Official Journal, Istituto Poligrafico e Zecca dello Stato: Rome, Italy, 2019. (In Italian) [Google Scholar]
- EN1998-3. Eurocode 8: Design of Structures for Earthquake Resistance—Part 3: Assessment and Retrofitting of Buildings; CEN: Brussels, Belgium, 2005. [Google Scholar]
- NZSEE. Assessment and Improvement of the Structural Performance of Buildings in Earthquakes; New Zealand Society for Earthquake Engineering Inc: Auckland, New Zealand, 2006. [Google Scholar]
- FEMA-273: NEHRP Guidelines for the Seismic Rehabilitation of Buildings; Basic Procedures Manual: Washington, DC, USA, 1997.
- EN1990. Eurocode—Basis of Structural Design; CEN: Brussels, Belgium, 2005. [Google Scholar]
- Fajfar, P.; Eeri, M. A Nonlinear Analysis Method for Performance Based Seismic Design. Earthq. Spectra 2000, 16, 573–592. [Google Scholar] [CrossRef]
- Croce, P.; Landi, F.; Puccini, B.; Martino, M.; Maneo, A. Parametric HBIM Procedure for the Structural Evaluation of Heritage Masonry Buildings. Buildings 2022, 12, 194. [Google Scholar] [CrossRef]
- Magenes, G.; Lourenço, P.B.; Cattari, S. Special Session 18: Seismic modeling of masonry buildings: Present knowledge and open challenges for research and practice. In Proceedings of the 16th European Conference on Earthquake Engineering, Thessaloniki, Greece, 18–21 June 2018; Available online: http://www.16ecee.org/programme/special-sessions (accessed on 14 January 2022).
- LUSAS. Infrastructure Analysis and Design Software Release 15.0; Finite Element Analysis Ltd.: Surrey, UK, 2019. [Google Scholar]
- MIDAS Gen Release 11. MIDAS Information Technology Corporation; MIDASoft, Inc.: New York, NY, USA, 2016. [Google Scholar]
- Ang, H.S.; Tang, W.H. Probability Concepts in Engineering: Emphasis on Applications to Civil and Environmental Engineering, 2nd ed.; John Wiley and Sons: Hoboken, NJ, USA, 2002; Volume 1. [Google Scholar]
- Giresini, L.; Casapulla, C.; Croce, P. Environmental and economic impact of retrofitting techniques to prevent out-of-plane failure modes of unreinforced masonry buildings. Sustainability 2021, 13, 11383. [Google Scholar] [CrossRef]















| Program | Failure Mode | Strength Domain | Description |
|---|---|---|---|
| Aedes PCM | Sliding shear | ) | The limit domain is obtained by assuming an elastic perfectly plastic constitutive law (bi-linear curve) where the strength is determined by the minimum value predicted by flexural and shear responses. The deformation capacity of each wall can be determined by means of a ductility check multiplying the elastic displacement by a ductility factor , or setting the limit value of the inter-story drift equal to and , in case of shear or rocking failure, respectively. |
| Diagonal shear | |||
| Rocking/Crushing | |||
| 3Muri | Sliding shear | The limit domain is obtained by assuming an elastic perfectly plastic constitutive law (bi-linear curve) where the strength is determined by the minimum value predicted by the flexural and shear responses. The deformation capacity is determined by the inter-story drift limit. | |
| Diagonal shear | |||
| Rocking/Crushing | |||
| 3D Macro | Sliding shear | The flexural mode is controlled by the orthogonal nonlinear links. Two elastic-plastic springs in series are defined for adjacent panels with stiffness and , respectively, where is the thickness of the panel and is the di stance between two nonlinear links.The sliding-shear failure mode is governed by the longitudinal nonlinear springs of the interfaces, which are modelled by means of a rigid-plastic constitutive behavior governed by a Mohr–Coulomb yielding surface. The diagonal-shear failure mode is defined by two diagonal non-linear springs with initial stiffness given by The deformation capacity is given by a specific value of the ultimate angular deformation: . | |
| Diagonal shear | |||
| Rocking/Crushing |
(MPa) | (MPa) | (kN/m3) | (MPa) | (MPa) | (MPa) | (MPa) | |
|---|---|---|---|---|---|---|---|
| 1500 | 500 | 18 | 7.5 | 14 | 0.6 | 0.12 | 0.2 |
| Case | (MPa) | (MPa) | (MPa) | (MPa) | (kN/m3) |
|---|---|---|---|---|---|
| DFJ 1 | 758 | 1.95 | - | - | - |
| DFJ 2 | 1065 | 1.8 | - | - | - |
| Guidelines of application Italian Building Code [44] 1 | 510–720 | 2–2.4 | 170–240 | 0.035–0.061 | 20 |
| Adopted | 784 | 2.32 | 118 2 | 0.059 3 | 20 |
Publisher’s Note: MDPI stays neutral with regard to jurisdictional claims in published maps and institutional affiliations. |
© 2022 by the authors. Licensee MDPI, Basel, Switzerland. This article is an open access article distributed under the terms and conditions of the Creative Commons Attribution (CC BY) license (https://creativecommons.org/licenses/by/4.0/).
Share and Cite
Beconcini, M.L.; Formichi, P.; Giresini, L.; Landi, F.; Puccini, B.; Croce, P. Modeling Approaches for the Assessment of Seismic Vulnerability of Masonry Structures: The E-PUSH Program. Buildings 2022, 12, 346. https://doi.org/10.3390/buildings12030346
Beconcini ML, Formichi P, Giresini L, Landi F, Puccini B, Croce P. Modeling Approaches for the Assessment of Seismic Vulnerability of Masonry Structures: The E-PUSH Program. Buildings. 2022; 12(3):346. https://doi.org/10.3390/buildings12030346
Chicago/Turabian StyleBeconcini, Maria Luisa, Paolo Formichi, Linda Giresini, Filippo Landi, Benedetta Puccini, and Pietro Croce. 2022. "Modeling Approaches for the Assessment of Seismic Vulnerability of Masonry Structures: The E-PUSH Program" Buildings 12, no. 3: 346. https://doi.org/10.3390/buildings12030346
APA StyleBeconcini, M. L., Formichi, P., Giresini, L., Landi, F., Puccini, B., & Croce, P. (2022). Modeling Approaches for the Assessment of Seismic Vulnerability of Masonry Structures: The E-PUSH Program. Buildings, 12(3), 346. https://doi.org/10.3390/buildings12030346

