Abstract
Energy efficiency, sustainability, and renewable energy sources are becoming increasingly relevant topics in today’s world. Buildings are one of the largest consumers of energy in society, and as such, improving their energy efficiency by reducing unnecessary energy loss and utilizing solar power is crucial. This paper comprehensively analyzes a neighborhood with buildings characteristic of the researched area by applying empirical and theoretical methods and calculations that have been proven in numerous individual cases. The main contribution of this paper is its demonstration that implementing methods to increase the energy efficiency of buildings and utilizing the potential of solar power can result in significant savings in energy consumption, increase the energy sustainability of the analyzed buildings, and substantially reduce the negative environmental impact. The novelty of this study lies in the location and multiple software applications for data analysis. The data and conclusions obtained in this paper serve as a foundation and path towards sustainable development in the field of energy efficiency for buildings in this and similar areas. Heat loss was calculated by analyzing households in the urban neighborhood of Nova Kolonija. All analyzed houses exceeded the maximum allowed annual required energy for household heating (75 kWh/m2). After the reconstruction and implementation of the proposed measures to increase energy efficiency, all houses met the requirements and entered a higher energy class, C. Energy for heating was reduced from 9294.68 kWh/a to 4641.84 kWh/a, representing a reduction of 50.03%. Simulations were conducted regarding solar rooftop power plant installation of 5655 Wp capacity. Software that was used included: a Photovoltaic Geographical Information System (PVGIS), Photovoltaic System software (PVsyst 7.3.), and Photovoltaic Design and Simulation software (PV*SOL). The results of the analysis indicated that the average amount of electricity produced is 6186.98 kWh, which meets 98.12% of households’ annual electricity consumption of 6278.41 kWh. The paper contributes to the existing body of literature and provides significant insight for both practical implications and future studies.
1. Introduction
The world’s demand for energy, especially electricity, is increasing due to population growth, modern lifestyles, and technological innovation [1,2]. Energy efficient and sustainable buildings and structures have become increasingly important in recent years.
More than 50% of the world’s population currently reside in urban areas and this number is expected to rise to 70% by 2050 due to increased migration to urban areas [3]. Urban energy consumption is predicted to account for 75% of global energy demand by 2030 [4,5]. Without implementing appropriate energy-saving measures, electricity demand could increase by up to 100% in the coming years [6]. To advance economically and technologically, every country’s energy industry must expand continuously [7,8]. Additionally, each individual must take responsibility for reducing their own energy consumption.
The COVID-19 pandemic and the situation in Ukraine have highlighted the importance of energy independence for every nation due to the crisis in the provision of sufficient quantities of conventional fuel [9,10]. Developing countries in particular should strive to reduce their consumption of fossil fuels and coal to reduce dependence on imports, decrease greenhouse gas (GHG) emissions, and protect the environment. The European Union has established a long-term mission of becoming climate neutral by 2050, which requires carrying out several measures that will decrease GHG emissions by at least 55% from 1990 levels by 2030 [11,12,13]. The Republic of Serbia, as a developing country and a candidate for membership in the European Union, is legally obligated to increase energy efficiency, increase the share of renewable energy sources (RES) in electricity production, and reduce greenhouse gas emissions in accordance with Directive 2009/28/EC [14,15]. Implementing renewable energy sources and energy efficiency measures provides an opportunity to diversify the nation’s energy supply, create a sustainable energy source mix, and have a positive impact on employment and local development [16,17].
The Public Enterprise Electric Power Industry of Serbia had a total electricity generation capacity of 7391 MW in 2020. Thermal power plants and combined heat and power plants accounted for 4376 MW and 59.20%, respectively, while hydro power plants accounted for 3015 MW and 40.80%, respectively. Thermal power plants and combined heat and power plants produced 24,524 GWh, or 72.11% of the total energy produced, while hydro power plants produced 9485 GWh, or 27.89%. Although renewable sources have a capacity of 40.80%, the generated energy is only 27.89% [18]. Households in Serbia consume nearly 50% of the produced electricity, with Elektrodistribucija Srbije [18] delivering 44.76%, or 13,876,635 MWh, to its distribution system users from the “Household” category. Meanwhile, users from the “Other” category and the grid losses accounted for 55.24%, or 17,128,180 MWh.
In 2022, the Serbian energy system was in crisis due to unexpected breakdowns in the electricity production systems and coal supply for the same production. In order to compensate for the demand of households and industry for electricity, Serbia was forced to import certain amounts of electricity from the surrounding countries. Comparing the price of electricity production and the price of purchase on the stock exchange, the price of imported electricity is drastically higher due to the current situation in the world. Considering that electricity production in Serbia is mostly based on coal, according to the energy balance for 2023, Serbia is planning to import 4.8 million tons of coal, which is 70% more than the estimated import in 2022, to avoid problems in the continuous production of electricity [19,20,21]. To avoid dependence on imported fossil fuels and coal, Serbia urgently needs to reduce electricity consumption by increasing energy efficiency and using its energy sources, particularly renewable energy, to a greater extent in order to become more sustainable.
Most of the residential buildings in Serbia are energy inefficient, leading to high energy consumption for heating and cooling [22]. Depending on the building’s type and location, common energy-efficiency improvements can decrease energy consumption by up to 50% [23,24]. Previous research has shown that improving building energy efficiency significantly reduces consumption of both electricity and other energy sources. In the paper [25], the author analyzed an office building in Belgrade and demonstrated that implementing more energy-efficient methods reduces the building’s energy requirements for heating and cooling. Ref. [26] focuses on examining how building energy efficiency affects the temperature inside a naturally ventilated classroom in a primary school building located in the eastern region of Serbia during the heating season. The authors used a 3D CFD simulation to conduct their research.
Petrović Bećirović et al. [27] conducted an analysis of buildings in Serbia that implemented energy-efficiency measures and found that the annual gross final energy consumption was reduced by 29,144 MWh/a, or 47% in total, with a reduction of 5038 t CO2/a in carbon footprint. Based on the simulations performed on the building in another paper [27], it was found that refurbishments would save 52% of the energy required for heating during winter months. A study [28] conducted in elementary schools in Serbia found that the allowed annual required final energy for heating was 108.82% higher than the limit allowed by the energy-efficiency regulations in Serbia. Further research [29] noted that 55% of the total energy consumed by households in Serbia is used for water heating, and using solar potential could reduce heating costs by 60–70% annually.
Sudimac et al. [30] analyzed and concluded that applying photovoltaic systems in sacred heritage buildings in Serbia would reduce commercial energy consumption and CO2 emissions into the environment and thereby improve ecological and economic sustainability. Žikić et al. [31] surveyed 400+ respondents on the topic of energy production and renewable energy sources. Most respondents were familiar with the concept of energy production and various forms of renewable energy sources. However, a significant number of respondents still needed to learn what the terms meant.
Research on energy savings through the implementation of energy-efficiency measures in buildings and urban neighborhoods, as well as the utilization of renewable energy sources, has produced significant results globally and in Serbia. However, there is a research gap in the region of Serbia and the Balkans regarding the comprehensive impact of common measures, such as improving energy efficiency in urban neighborhoods and implementing solar panels, and their potential to bring about energy and electricity consumption savings and increased sustainability.
Previous studies on the energy efficiency of buildings in the Republic of Serbia primarily focused on testing the thermal characteristics of individual buildings in the Autonomous Province of Vojvodina, with limited broader implications. In the majority of cases, these studies were conducted on one object, and such obtained results could not give a broader picture of the situation and how the obtained results could be relevant to other cases.
This paper distinguishes itself from previous studies by providing a broader view on the situation and its relevance to other cases. This study applied proven calculation methods provided by laws, regulations, and standards and used them in accordance with the research topic.
In the Republic of Serbia, most research on renewable energy sources has focused on the potential of RES in various locations, legal regulations, simulations of potential utilization, and review papers. In this paper, the authors obtained relevant data on the possibility of utilizing solar potential in the research area using solar software solutions, based on previously confirmed methods for obtaining valid results in this field.
In contrast to previous papers, the novelty of this paper is more comprehensive research to obtain results that will be relevant for future studies and for the practical implications that involve increasing energy efficiency in accordance with solar potential. This paper represents a combination of empirical and theoretical research, supported by previously confirmed methods and results, with factual data obtained and possibilities of their application on a broader scale.
The paper’s results demonstrate that the proposed measures to increase energy efficiency can effectively reduce energy consumption, while the installation of a solar rooftop power plant can meet a significant portion of households’ annual electricity consumption, ultimately leading to increased sustainability in the researched area. This research provides valuable insights into the possibility of reducing energy consumption and increasing sustainability in the studied area, with potential to extend to similar areas with comparable characteristics. Overall, this paper offers significant contributions to the field and presents a pathway for sustainable development in the area of energy efficiency and renewable energy sources.
The main scientific contribution of this paper lies in the results and comparative analysis obtained through valid calculations and simulations in the studied areas. This can serve as a representative example and foundation for planning to increase energy efficiency and implement solar potential. The findings demonstrate significant potential for increasing sustainability, reducing costs, and reducing the negative impact on the environment. The key contributions of this analysis are:
- Evaluation of the impact of energy efficiency measures implemented in the neighborhood on the amount of energy required for heating households and its economic implications;
- Assessment of the energy performance of rooftop solar power plants in urban neighborhoods and their potential for reducing carbon dioxide emissions;
- Analysis of the impact of energy efficiency measures on the city’s energy system and their potential for reducing reliance on conventional energy sources.
Furthermore, this research strengthens the existing knowledge on the applications of increasing energy efficiency and the use of solar potential in reducing energy consumption in urban areas.
This paper is organized into five sections. The introduction, previous research, research gap, objective of the study, and contributions are discussed in Section 1. The materials and methods used in this research are explained in Section 2. Section 3 presents the research conducted on the urban neighborhood and the data obtained from the research, calculations, and simulations. In addition, a comparative analysis of the obtained data was performed. In Section 4, a discussion of the obtained results is carried out. Finally, conclusions are drawn in Section 5.
2. Materials and Methods
2.1. Site Location and Objects of Research
The research conducted in this paper focuses on the neighborhood of Nova Kolonija, which is situated in the city of Zrenjanin, the Republic of Serbia (as shown in Figure 1). Zrenjanin is, by area (1326 km2), the second largest city in the Republic of Serbia and the largest city in the Autonomous Province of Vojvodina, and according to the 2022 census [28], 108,296 inhabitants live in 41,132 households. The city is located at 20°23′ east longitude and 45°23′ north latitude, in the center of the Serbian part of the Banat region. The altitude is 80 m, with the terrain ranging from 77 to 97 m across the city’s territory.
Figure 1.
Site location of the urban neighborhood, 20°23′ E and 45°23′ N.
From 1981–2010, it had an average of 2101.4 h of sunshine per year. The least number of hours were noted in December—58.3 h—and the most in July—291.5 h [29]. The climate is steppe continental, and the average annual temperature is 11.2 °C. The neighborhood is located 3 km southwest of the center of Zrenjanin. It was built in the period from 1961 to 1970. The neighborhood has 3099 inhabitants (2.86% of the city’s total population) living in 521 households (1.27% of the total number of households in the city).
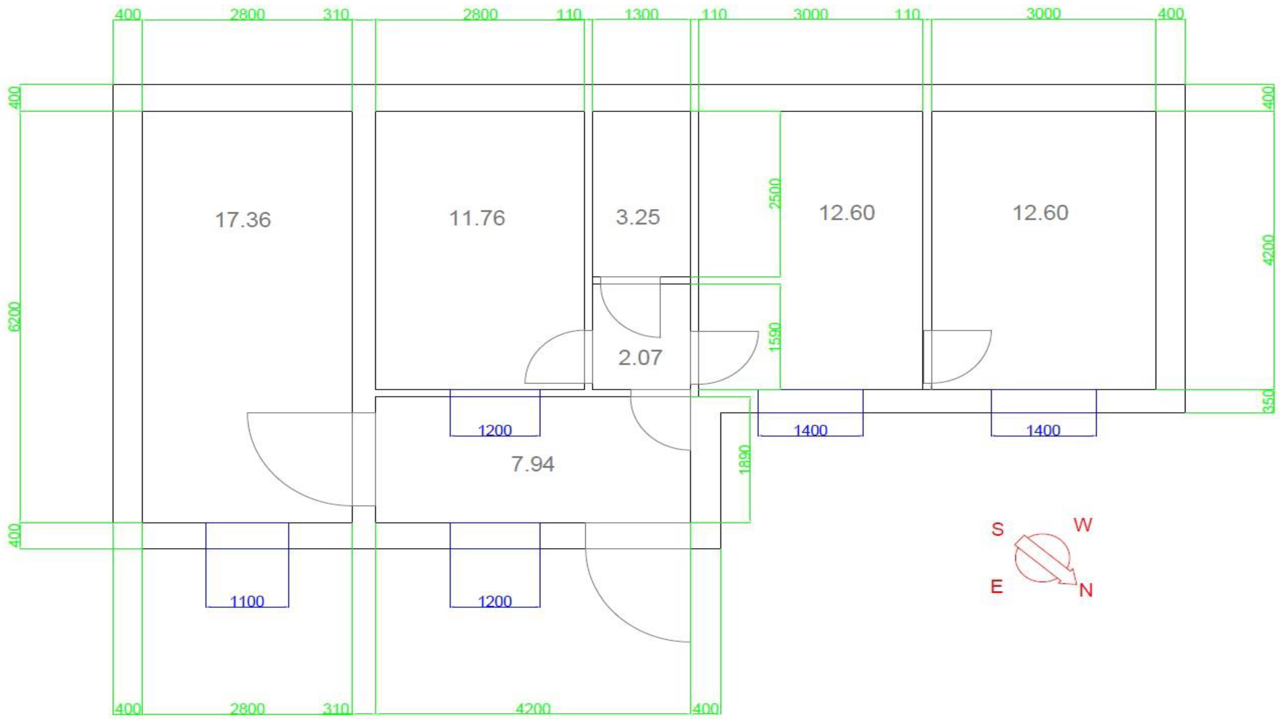
The research focused on eight typical houses located in the Nova Kolonija neighborhood. These houses were originally built with one living room, one bedroom, one kitchen, one bathroom, and one hallway, with an average size of 50 m2. Over time, most houses were extended by adding an extra room. The average square meter of the analyzed houses is 68.12 m2 (the largest deviation from the average square meter value is 9.34%). Figure 2 shows the blueprint of the house with the smallest deviation from the average value of the square meter of the analyzed houses—67.58 m2.
Figure 2.
Blueprint of the house with the smallest deviation from the average value of the square meter.
In the neighborhood, houses are generally classified into three types based on the number of outer walls they share with neighboring houses: houses with one outer wall, two outer walls, and three outer walls. The research examined three houses with one outer wall, two houses with two outer walls, and three houses with three outer walls. All examined houses were in their original condition without any modifications made to their composition or building elements, windows, or roofs since construction. An overview of the square meter of the analyzed houses is given in Table 1.
Table 1.
An overview of the square meter of the analyzed houses.
In the majority of cases, the houses in the neighborhood are oriented in two directions—fronts pointing to the northwest direction and the other are pointing to the southeast direction. The houses are built in a typical style for this part of Serbia [32], with walls made of adobe bricks, floors laid on filled soil, and the roof structure consisting of tiles over laths. The ceiling is made of reeds and plastered on the underside. The thickness of the internal walls of all studied houses is 110 mm, while the thickness of the outer walls has two dimensions—350 mm and 400 mm. Considering that all houses have one more room that was built later, the thickness of those walls varies between 250 mm and 400 mm from case to case.
2.2. Energy Efficiency and Heat Losses
In this analysis of energy efficiency, the Energy Efficiency Building Codes in the Republic of Serbia was used as a basis for calculating losses [33], which is based on the International Standard for Energy Performance of Buildings ISO 13790:2008, which is the Rulebook on the conditions, content, and method of issuing certificates on the energy properties of buildings, and the SRPS EN 12831:2012 standard. According to the Rulebook, all existing buildings with more than 25% reconstruction, as well as newly built buildings, must have an energy passport [34]. The energy class for residential buildings is determined by the maximum annual required final energy for heating [kWh/(m2a)], which corresponds to energy class “C”. Table 2 shows the energy classes for residential buildings with one apartment.
Table 2.
Energy classes for residential buildings.
The heat transfer coefficient is calculated according to the equation [33]:
The design heat losses of the rooms are calculated according to the equation [35]:
The design transmission losses are calculated according to the equation:
The ventilation heat losses are calculated according to the equation:
The spaces with interruption of heating are calculated according to the equation:
The average monthly energy required for heating is calculated by the equation:
The monthly energy consumption is determined according to the equation:
An analysis of electricity consumption was performed on a sample of 29 households. The analysis compared household consumption (data for 2022) and the consumption of the city of Zrenjanin (data for 2021). Through research, it was confirmed that due to the poor energy characteristics of houses and low energy efficiency, it is necessary to use more electricity for additional heating and this increases consumption. Additionally, the study simulated the installation of solar rooftop power plants to determine the extent to which they can meet the households’ electricity needs from solar potential. The data obtained from these simulations was compared to the current electricity consumption of the households to determine the potential for energy savings and increased sustainability.
2.3. Solar Potential and Simulations of PV Solar Plants
Solar energy is becoming an increasingly important RES as more people turn to this clean and sustainable power source [36,37]. Serbia has favorable conditions for using solar energy and converting it into electrical and thermal energy [34]. With more than 2000 sunny hours per year, Serbia receives above average amounts of sunlight compared to most European countries. The annual total solar radiation in Serbia ranges from 1200 kWh/m2 in the northwestern parts to 1550 kWh/m2 in the southeastern parts of the country [38,39,40]. Figure 3a,b show Serbia’s global horizontal irradiation and PV power potential from 1994–2018 [41].
Figure 3.
Solar radiation in Serbia (long term average, period of 1994–2018): (a) global horizontal irradiation [kWh/m2]; (b) photovoltaic power potential [kWh/kWp], © 2020 The World Bank, Source: Global Solar Atlas 2.0, Solar resource data: Solargis, (accessed on 12 October 2022).
Unfortunately, solar potential in Serbia is being exploited to a very small extent [38,42]. Solar power plants can be utilized to generate electricity from RES. This can assist in reducing emissions of harmful gases and the dependence on fossil fuels. Additionally, it can increase the country’s energy independence [30,43]. Furthermore, solar systems in households are frequently flexible and can be adapted to meet users’ requirements, making them a well-liked choice for renewable energy.
To optimize the performance of solar systems, software solutions have been developed that help users evaluate the efficiency and productivity of their systems [44,45,46]. In this paper, three popular solar energy software solutions were used to simulate the performance of a solar power plant:
- Photovoltaic Geographical Information System (PVGIS);
- Photovoltaic System software (PVsyst 7.3.);
- Photovoltaic Design and Simulation software (PV*SOL).
All three software solutions provide users with valuable tools for planning and analyzing solar energy systems. They allow users to evaluate the performance of solar systems, including calculating productivity, balancing energy, and predicting annual system performance. Each software has its individual features and advantages.
Photovoltaic Geographical Information System (PVGIS) is a GIS-based software solution for the analysis of solar energy potential. This software allows users to assess the solar energy potential of their sites, including the amount of solar energy available, the ideal orientation and tilt angle of solar panels, and the expected energy production. PVGIS also provides users with information on the performance of their systems, including annual energy yield and the financial viability of their systems. PVGIS is often used in research and has been widely used in papers such as [38,44,45,47,48].
Photovoltaic System software (PVsyst 7.3.) is a comprehensive software solution that helps users to design, simulate, and analyze the performance of photovoltaic (PV) systems. It enables users to evaluate the performance of their systems under various conditions, including shading, temperature, and weather patterns. In addition, PV syst provides users with detailed information on system performance, including energy production and system efficiency. Some of the papers in which PV syst was used are [30,44,46,47,49].
Photovoltaic Design and Simulation software (PV*SOL) is a software solution that allows users to design, simulate, and analyze photovoltaic systems. It provides users with comprehensive tools to optimize system performance, including selecting and configuring components, analyzing system performance, and predicting annual energy yields. PV*SOL also enables users to visualize the design of their systems, making it easier to make changes and improve performance. Like PVGIS and PV syst, PV*SOL is also very often used in papers in the field of solar energy [45,46,49,50].
3. Results
In accordance with the Energy Efficiency Building Codes, the heat transfer coefficient was calculated for all the walls of the analyzed houses. Table 3 provides an overview of the obtained values on the example of the analyzed house number 4.
Table 3.
An overview of walls, heat transfer coefficient values, and allowed values.
The calculated heat transfer coefficient values exceed the maximum value except for the inner wall 1.
The calculations were conducted in accordance with regulations, and the obtained results are shown in Table 4. The average heat losses amount to 7825.42 W, while the specific heat consumption per square meter is 115.08 W/m2. It can be noticed that certain houses with a larger area have a lower specific consumption. These results were mostly influenced by door and window sizes, which varied in certain cases. None of the eight analyzed houses meet the criterion of specific heat consumption per square meter, as in all cases the value exceeds the maximum allowed limit for existing buildings with one apartment of 75 kWh/m2a, as stated by the Rulebook on the conditions, content, and method of issuing certificates on the energy properties of buildings. Based on the energy class division, all houses belong to the E energy class.
Table 4.
Calculation according to regulations and determination of the energy class of the analyzed houses.
The analysis of the houses showed that their heat losses were insufficiently energy-efficient, with most losses coming from poor characteristics of outer walls, roofs, doors, and windows. To improve energy efficiency, the outer walls were fitted with 100 mm thick styrofoam (thermal conductivity coefficient of 0.035 W/mK). After the calculation, new heat transfer coefficient values were obtained for the outer walls: outer wall 1–0.221 W/m2K and outer wall 2–0.231 W/m2K. Additionally, 50 mm thick styrofoam was installed on the ceilings, and new heat transfer coefficient 0.253 W/m2K was obtained. No changes were made to the internal walls and floors. Windows and doors were replaced with a 5-chamber PVC joinery, which significantly reduced ventilation heat losses and total heat losses in the houses. An overview and comparative analysis of the previous state and the state after reconstruction are given in Table 5.
Table 5.
An overview of the previous state and the state after reconstruction.
By applying measures to increase energy efficiency, average heat losses were reduced from 7825.42 W to 4049.38 W. Energy required for heating per square meter was reduced from 136.69 kWh/m2a (energy class E) to 68.26 kWh/m2a (energy class C). The average reduction in energy required for heating per square meter is 50.03%, with the smallest reduction value and the maximum reduction value of 44.14% and maximum reduction value of 55.65%. After the reconstruction, all analyzed houses met the energy class C criteria specified by the Rulebook on the conditions, content, and method of issuing certificates on the energy properties of buildings.
This indicates that with the implementation of the abovementioned measures to increase energy efficiency, it is possible to achieve considerable savings in heat consumption. A visual illustration of the obtained results is shown in Figure 4a,b.
Figure 4.
Graphic presentation of annual energy required for heating and energy required for heating per square meter (before and after reconstruction): (a) annual energy required for heating; (b) energy required for heating per square meter.
Once the heat loss values were obtained, the average monthly energy required for heating the houses was calculated based on the data of house number 4. The obtained data is shown in Table 6. All analyzed houses use solid fuel furnaces for heating, with a furnace efficiency of 75%. The table also shows the data obtained from calculating the energy required for the heat loss values after the reconstruction in the case of replacing furnaces with an efficiency of 75% with high-efficiency furnaces at 93%. For calculation, the values of e (number of days) and y (number of working hours) were adopted as 0.95 and 0.66, respectively. Hd (calorific value of fuel) amounts to 18,000 kJ/kg. A graphic illustration of the obtained data is given in Figure 5.
Table 6.
An overview of the average monthly energy required for heating and monthly energy consumption.
Figure 5.
Graphic illustration of the obtained data.
The total energy required for heating the house for the heating season before the reconstruction amounts to 9235.9 kWh, and the required fuel for the furnace amounts to 2462.91 kg. After the reconstruction of the house, the total energy required for heating the house amounts to 4664.7 kWh. Fuel for the furnace with a 75% efficiency amounts to 1243.9 kg, while in the case of a furnace with 93% efficiency, the fuel amounts to 1003.2 kg. This indicated that by increasing furnace energy efficiency, there is a drastic reduction in the required fuel needed to compensate for heat losses. Furthermore, by replacing a furnace with an efficiency of 75% with a highly efficient furnace of 93%, the savings are even higher (as much as 59.26%). In addition, by reducing fuel consumption, on average 2900 kg/a of CO2 is prevented from being released into the atmosphere.
In the case of the analyzed house 4, the dimensions of the doors, windows, and the required area for the installation of styrofoam, three offers were obtained, and ten price lists were downloaded from the websites of companies that sell PVC joinery. Taking the average prices from the 13 mentioned sources, it takes EUR 2516 to carry out the necessary works to improve the energy efficiency of the said house. It is important to note that the Government of Serbia and the Ministry of Mining and Energy provide subsidies for energy efficiency in households by replacing joinery and installing solar panels [51,52]. These subsidies can save up to 50% of the implementation costs per household. Taking into consideration the energy savings and subsidies, this type of investment is worthwhile for almost all households.
The survey of electricity consumption in households was conducted on a sample of 29 houses in the neighborhood, which is 5.57% of the total number of households in the neighborhood (including eight houses that were surveyed for improving energy efficiency). Data on household electricity consumption by month are for 2022, while data on electricity consumption for the city of Zrenjanin are for 2021 [53].
Almost 3/4 of the houses use solid fuel furnaces to compensate for heat losses. Due to inadequate room layout, heat distribution from the furnace is not satisfactory. Therefore, all surveyed households used additional electricity heaters in some rooms.
Tabulation and graphic presentation of the analyzed data are given in Table 7 and Figure 6. Out of 29 houses, 21 use solid fuel (wood) furnaces for heating, seven use gas, and one uses electricity, at 72.41%, 24.14%, and 3.45%, respectively.
Table 7.
Comparative overview of electricity consumption in the city of Zrenjanin and analyzed households.
Figure 6.
Percentage consumption of the City of Zrenjanin and analyzed households by month.
In both cases (consumption of the city and analyzed households), it is noticeable that electricity consumption is higher during heating season (October–April). Of the city’s total consumption of 1,045,082 MWh, 573,833 MWh were consumed during the heating season, while 471,249 MWh were consumed during the summer season, i.e., 54.91% and 45.09%, respectively.
In 2022, the analyzed households consumed a total of 182,074 kWh, of which 105,230 kWh were consumed during the heating season, while 76,744 kWh were consumed during the summer season, i.e., 57.80% and 42.20%, respectively. There is a noticeable similarity in the amount of consumption, which is best seen in the consumption graph shown in Figure 6. The percentage of higher electricity consumption during the heating season in the analyzed households is caused by the fact that this settlement is not connected to the city’s central heating system and that due to the heating method described above, electricity is often used for additional household heating. By implementing the proposed measures to increase energy efficiency, household electricity consumption would inevitably be lower than the current one.
As mentioned in the text above, the Republic of Serbia has a solar potential above the average of most European countries. Unfortunately, this potential is exploited to a very small extent. In order to increase the energy efficiency of households even more, we simulated the installation of a 5655 Wp solar rooftop power plant on one of the analyzed houses. The location of the simulation of the installation of a fixed solar power plant is the southeast part of the roof of house 4. The data of the used panels, inverter, tilt, and azimuth are given in Table 8. The simulation was performed in three software systems—PVGIS, PV syst, and PV*SOL. Data obtained by simulations, data on the consumption of analyzed houses, and comparative data are shown in Table 9, while the graphic illustration is shown in Figure 7a,b.
Table 8.
An overview of the simulated rooftop power plant’s panel, inverter, tilt, and azimuth.
Table 9.
The results obtained from simulations of installing rooftop solar power plants.

Figure 7.
Comparative analysis of the obtained data: (a) power consumption and data obtained by software simulations; (b) percentage satisfaction of the household’s electricity needs.
The total annual electricity consumption for the analyzed households is 6278.41 kWh. Simulation results from PVGIS, PV syst, and PVSOL indicate that the solar rooftop power plant would produce 6359.64 kWh, 5889 kWh, and 6312.3 kWh of electricity during the year, respectively. The total electricity usage and simulated production indicate that the households’ needs can be met with 101.29%, 93.80%, and 99.26% efficiency, according to PVGIS, PV syst, and PVSOL simulations, respectively.
The lowest electricity production from the solar power plant was achieved in December, with 216.28 kWh, 156 kWh, and 151.9 kWh, and these values satisfy 34.78%, 25.09%, and 24.43% of the total electricity consumption for the month, respectively. Conversely, the highest electricity production from the solar power plant was achieved in July, with 798.13 kWh, 777 kWh, and 845.2 kWh, and these values exceed 100% of the total electricity consumption for the month, with the percentage of production meeting consumption with 204.88%, 199.46%, and 216.97%, respectively.
The average electricity production simulated by the three software programs is 6186.98 kWh, which represents 98.12% of the total average electricity consumption of the analyzed households. Since the amount of electricity generated by the solar power plant from April to September exceeds the consumption needs of households, the excess electricity can be sent to the grid if the power plant is grid connected. Thus, if all of the electricity produced by the solar rooftop power plant was utilized for household needs, the household would be satisfied with 78.34% of the total electrical energy needed annually.
The installation of solar rooftop power plants can significantly enhance household energy efficiency and sustainability. Based on calculations, the estimated cost of installing such a solar power plant is EUR 8587.85. However, subsidies can reduce these costs by up to 50%. Moreover, the installation of a solar power plant with the given characteristics can prevent the emission of 10,242.78 kg of carbon dioxide into the atmosphere annually.
As noted earlier in the paper, three software solutions were used to simulate the operation of solar rooftop power plants. The mentioned software were often used in many types of research in which simulations of the operation of solar power plants were performed, and the data obtained from the simulations were compared with the data of solar power plants in use.
PVGIS, PVsyst, and PV*SOL have shown high reliability in predicting the operation of solar power plants. This paper additionally stands out from other similar research as it applies three programs for data analysis.
Overall, the data was presented in multiple tables (see above) and comparative analyses were conducted. The results indicate the positive effects of adjusting households to be energy efficient through solar power plants, styrofoam insulation of walls and ceilings, and upgrading furnaces to efficient ones. The results and the study are further discussed in the next section.
4. Discussion
The study was conducted in the urban neighborhood of Zrenjanin, the second-largest city in Serbia by area. The buildings under research were constructed in a specific style typical to this region. Through a comprehensive analysis of household characteristics and using valid calculations, it was discovered that all of the examined households failed to meet the maximum allowed annual required final energy for heating of 75 kWh/(m2a), placing them in the “E” energy class. The heat losses of the analyzed houses show an insufficient level of energy efficiency. The average obtained value of the maximum allowed annual required final energy for heating is 136.69 kWh/(m2a), far exceeding the allowed values. The average annual energy required for heating amounts is 9294.68 kWh/a.
However, after implementing low-cost measures to increase energy efficiency, installing styrofoam and PVC joinery, and conducting repeated calculations, significant reductions in heat losses and energy consumption were observed, as detailed in Table 5 and Table 6 and Figure 4 and Figure 5. The findings indicated that such measures reduced energy consumption from 44.14% to 55.65% per square meter, with an average reduction of 50.03%. As a result, all of the examined houses met the criteria for energy class C, as specified by the Rulebook on the conditions, content, and method of issuing certificates on the energy properties of buildings in Serbia. These results emphasize the importance of prioritizing the implementation of low-cost measures to increase energy efficiency in such buildings for both the individuals residing or working in them and for the competent institutions in Serbia.
In this region of Serbia, solid-fuel furnaces are the primary heating source for most households. Table 6 and Figure 5 illustrate the results obtained before and after implementing energy efficiency measures. The findings indicate that the proposed measures significantly reduced fuel consumption, particularly when replacing low-efficiency furnaces with high-efficiency furnaces that offer 93% efficiency. Annual fuel consumption for the furnace, with an efficiency of 75%, amounts to 1243.9 kg, while in the case of 93% efficiency, it amounts to 1003.2 kg. Reducing fuel consumption prevents about 2900 kg/year of CO2 from being released into the atmosphere. Given that over 70% of households in the analyzed urban neighborhood use solid-fuel furnaces, which amounts to approximately 365 households, implementing these measures would prevent the emission of 1058 t/a of CO2.
A sample of 29 households was analyzed to study their electricity consumption for 2022. The average consumption of these households was compared with the electricity consumption of the city of Zrenjanin for the year 2021. As shown in Table 7 and Figure 6, the results indicate an increase in electricity consumption during the heating season. The average consumption of analyzed households during the heating season was found to be 604.77 kWh per month, while in the summer season, it was 441.63 kWh. Comparing the percentage consumption values of the analyzed households with those of the city of Zrenjanin, it is apparent that energy consumption is significantly higher throughout the entire city during the heating season. These findings demonstrate that many households within the city have low energy efficiency, indicating a need to implement measures to increase energy efficiency throughout the city and other settlements with similar characteristics. Such measures would result in significant savings while reducing energy consumption, CO2 emissions, and the amount of coal required for thermal power plants. This would, in turn, reduce the dependence of the Republic of Serbia on imported energy from the market.
Three software solutions were used to simulate the operation of solar rooftop power plants. The mentioned software solutions were often used in many types of research in which simulations of the operation of solar power plants were performed, and the data obtained from the simulations were compared with the data of solar power plants in use. PVGIS, PV syst, and PV*SOL have shown high reliability in predicting the operation of solar power plants. By specifying data based on the possible technical characteristics of the majority of households in the analyzed neighborhood and other necessary input data, Table 9 shows the results of the simulations, which were compared with the average consumption of the analyzed households by month. A comparative analysis of these data is illustrated in Figure 7. The average electricity value obtained by simulating the three software is 6186.98 kWh, i.e., 98.12% of the total average consumption of the analyzed households. Based on the average software results, if all of the electricity generated by the solar rooftop power plant were used to fulfill the household’s energy requirements, the household would be satisfied with 78.34% of its annual electrical needs. Additionally, implementing a solar power plant with these specifications would prevent the release of 1024 t of CO2 into the atmosphere annually. Therefore, if such solar rooftop power plants were installed on every household in the analyzed neighborhood, it would be possible to prevent up to 533.65 t of CO2 emissions annually. Combined with the potential reduction in CO2 emissions from reduced fuel consumption, the total prevented amount of CO2 emissions would be 1592 t/a.
Based on the research findings, the cost of enhancing energy efficiency and installing a rooftop solar power plant is EUR 11,103.85 per household. The study has shown that these investments can be economically profitable in a short time due to the resulting energy savings, as well as subsidies from the Republic of Serbia (up to 50%) for such energy efficiency improvements. However, the general public has a very low awareness of the benefits of energy-saving measures, making it imperative for the government to take action to educate people about these possibilities. Such policies could help develop the domestic economy and create employment opportunities. By increasing awareness and promoting the benefits of such measures, the Republic of Serbia can move closer to meeting European norms.
5. Conclusions
Serbia heavily relies on coal-based power plants, which release a large amount of greenhouse gases into the atmosphere. For every 1 kWh of electricity generated, 0.123 kg of coal must be burned. In this paper, the authors demonstrate that by implementing measures to increase energy efficiency and harness solar power, individuals and the Serbian government can significantly decrease energy consumption, increase sustainability, and greatly reduce harmful gas emissions. Based on the research findings, the following results were obtained:
- The implementation of measures to increase energy efficiency in eight researched houses led to a reduction of annual average heat losses from 7825.42 W to 4049.38 W and a reduction of energy required for heating per square meter from 136.69 kWh/m2a and energy class E to 68.26 kWh/m2a and class C;
- The total annual energy required for heating the houses in the heating season was reduced from 9294.68 kWh to 4641.84 kWh, representing a 50.03% reduction in the required energy;
- The amount of fuel required for heating was reduced from 2462.91 kg to 1243.91 kg (for a furnace with 75% efficiency) or 1003.2 kg (for a furnace with 93% efficiency), resulting in 49.50% or 59.26% savings in heating fuel, respectively;
- According to simulations of PVGIS, PVsyst, and PV*SOL software, a solar rooftop power plant would produce 6359.64 kWh, 5889 kWh, and 6312.3 kWh, respectively, meeting households’ electricity needs with 101.29%, 93.80%, and 99.26%;
- Reducing the consumption of fuel for heating prevented the release of about 2900 kg of carbon dioxide into the atmosphere per household per year, while the average energy produced through the solar power plant prevented the burning of 761 kg of coal and the emission of 10,251.78 kg of CO2.
The total investment for increasing energy efficiency and installing a rooftop solar power plant in the researched households was EUR 11,103.85 per household (EUR 2516 for increasing energy efficiency and EUR 8587.85 for installing a rooftop solar power plant), with the possibility of subsidizing up to 50% of the costs.
Studying the impact of energy efficiency and solar energy measures is a complex and multifaceted field, and like any research endeavor, it has limitations and boundaries that affect its scope. This research is limited to the results obtained from the conducted calculations and simulations. To explore the increase in energy efficiency further, the authors will conduct research on the actual results after implementing the measures mentioned in this paper and compare them with the results obtained in this study. The areas of energy efficiency, sustainability, and solar energy potential are crucial research areas, and advances in technology, increased public awareness, and investment can significantly increase their implementation. Research in this field must continue to advance our understanding of energy efficiency and help pave the way for a more sustainable future.
Suggestions and guidelines for future research are as follows: multiple insulating materials can be addressed (stone-wool, glass-wool), different thickness of insulation can be examined, durability of materials can be analyzed, multi-home solar power plants could be investigated for reducing costs per household, other urban and sub-urban areas can be addressed, and meta-analyses can be conducted.
Author Contributions
Conceptualization, M.B. and M.D.; Methodology, D.Ć.; Software, L.D. and B.N.; Validation, M.B.; Investigation, L.D.; Resources, L.D.; Writing—original draft, L.D.; Writing—review & editing, J.P.; Visualization, B.N.; Supervision, J.P., M.D., D.Ć. and S.J.; Project administration, M.B. and D.Ć.; Funding acquisition, B.N., M.B., M.D., D.Ć. and S.J. All authors have read and agreed to the published version of the manuscript.
Funding
This research was funded by the Provincial Secretariat for Higher Education and Scientific Research of the Autonomous Province of Vojvodina, Project number: 142-451-3118/2022-01.
Institutional Review Board Statement
Not applicable.
Informed Consent Statement
Not applicable.
Data Availability Statement
The data presented in this study are available on request from the corresponding author.
Acknowledgments
This research was conducted through the project “Creating laboratory conditions for research, development, and education in the field of the use of solar resources in the Internet of Things” at the Technical Faculty, Mihajlo Pupin, Zrenjanin, financed by the Provincial Secretariat for Higher Education and Scientific Research, Republic of Serbia, Autonomous Province of Vojvodina, Project number 142-451-3118/2022-01.
Conflicts of Interest
The authors declare no conflict of interest.
Nomenclature
| GHG | Greenhouse gas emissions |
| RES | Renewable energy sources |
| E | East longitude |
| N | North latitude |
| QH,nd,max | The maximum allowed annual required final energy for heating |
| U | The heat transfer coefficient |
| Ri and Re | Thermal resistances |
| δ/λ | The thermal resistance of the construction element |
| ΦT,i | Design transmission heat losses of the room |
| ΦV,i | Design ventilation heat losses of the room |
| ΦRH,i | Heat addition due to interruption of heating |
| HT,ie | Coefficient of transmission loss from the heated space to the outside environment |
| HT,iue | Coefficient of transmission loss from the heated space through the unheated space to the outside environment |
| HT,ig | Stationary coefficient of transmission loss from the heated space to the ground |
| HT,ij | Coefficient of transmission loss from the heated space to the adjacent heated space of different temperature |
| tu | Indoor design temperature |
| ts | Outdoor design temperature |
| HV,i | Ventilation heat loss coefficient |
| Ai | Floor area of the heated space |
| fRH | Correction factor |
| The average monthly energy required for heating | |
| e and y | Number of days |
| Qi | Installed power of heating elements |
| SDmo | Degree days |
| Monthly energy consumption | |
| Hd | The minimum inferior calorific value of fuel |
| ηk | Efficiency of the heating body |
| PV | Photovoltaic |
| PVGIS | Photovoltaic Geographic Information System |
| PVC | Polyvinyl chloride |
| STC | Standard test conditions |
References
- Iheanetu, K.J. Solar Photovoltaic Power Forecasting: A Review. Sustainability 2022, 14, 17005. [Google Scholar] [CrossRef]
- Mughal, N.; Arif, A.; Jain, V.; Chupradit, S.; Shabbir, M.S.; Ramos-Meza, C.S.; Zhanbayev, R. The role of technological innovation in environmental pollution, energy consumption and sustainable economic growth: Evidence from South Asian economies. Energy Strat. Rev. 2022, 39, 100745. [Google Scholar] [CrossRef]
- Pulselli, R.M.; Broersma, S.; Martin, C.L.; Keeffe, G.; Bastianoni, S.; van den Dobbelsteen, A. Future city visions. The energy transition towards carbon-neutrality: Lessons learned from the case of Roeselare, Belgium. Renew. Sustain. Energy Rev. 2021, 137, 110612. [Google Scholar] [CrossRef]
- Fakhraian, E.; Alier, M.; Dalmau, F.V.; Nameni, A.; Guerrero, M.C. The Urban Rooftop Photovoltaic Potential Determination. Sustainability 2021, 13, 7447. [Google Scholar] [CrossRef]
- Huang, Z.; Mendis, T.; Xu, S. Urban solar utilization potential mapping via deep learning technology: A case study of Wuhan, China. Appl. Energy 2019, 250, 283–291. [Google Scholar] [CrossRef]
- Bogdanović, V.B.; Randjelovic, D.; Vasov, M.S.; Ignjatović, M.G.; Stevanović, J.N. Improving thermal stability and reduction of energy consumption by implementing Trombe wall construction in the process of building design: The Serbia region. Therm. Sci. 2018, 22, 2355–2365. [Google Scholar] [CrossRef]
- Saka, K.; Adebanji, B.; Olulope, P.; Fasina, T.; Abe, A.; Ajeba, W. Modeling and Simulation of Small Hydro-Solar PV Hybrid Generating System for Complementary Power Supply in a Metropolitan City. Appl. Eng. Lett. J. Eng. Appl. Sci. 2022, 7, 172–180. [Google Scholar] [CrossRef]
- Kumar, J.C.R.; Majid, M.A. Renewable energy for sustainable development in India: Current status, future prospects, challenges, employment, and investment opportunities. Energy Sustain. Soc. 2020, 10, 2. [Google Scholar] [CrossRef]
- Zwane, N.; Tazvinga, H.; Botai, C.; Murambadoro, M.; Botai, J.; de Wit, J.; Mabasa, B.; Daniel, S.; Mabhaudhi, T. A Bibliometric Analysis of Solar Energy Forecasting Studies in Africa. Energies 2022, 15, 5520. [Google Scholar] [CrossRef]
- Mbah, R.E.; Wasum, D. Russian-Ukraine 2022 War: A Review of the Economic Impact of Russian-Ukraine Crisis on the USA, UK, Canada, and Europe. Adv. Soc. Sci. Res. J. 2022, 9, 144–153. [Google Scholar] [CrossRef]
- Dragićević, S.; Vujičić, V.; Marjanović, M. Analiza rada solarne elektrane u NTP Čačak—System Advisor Model (SAM) modelovanje i poređenje sa stvarnim rezultatima. Energy Èkon. Ekologija 2022, XXIV, 52–56. [Google Scholar] [CrossRef]
- Wolf, S.; Teitge, J.; Mielke, J.; Schütze, F.; Jaeger, C. The European Green Deal—More Than Climate Neutrality. Intereconomics 2021, 56, 99–107. [Google Scholar] [CrossRef] [PubMed]
- Tiwari, A. Transforming Energy Technologies for Climate Neutrality Goals. Adv. Mater. Lett. 2021, 12, 1–5. [Google Scholar] [CrossRef]
- Mitković, M.P.; Djekic, J.; Igić, M.Z.; Mitković, P.B.; Dinić-Branković, M.M. Analysis of electric power production results in South Serbia: Recommendations for improvement of operation of first mini photovoltaic power plants. Therm. Sci. 2018, 22, 1205–1216. [Google Scholar] [CrossRef]
- Ministry of Energy National Renewable Energy Action Plan of the Republic of Serbia. Available online: https://www.mre.gov.rs/sites/default/files/2021/03/national_renewable_energy_action_plan_of_the_republic_of_serbia_28_june_2013.pdf (accessed on 17 December 2022).
- Commission of the European Communities EC—European Communities, Communication from the Commission to the European Parliament, The Council, The European Economic and Social Committee and the Committee of the Regions, 20 20 by 2020, Europe’s Climate Change Opportunity. Available online: https://eur-lex.europa.eu/LexUriServ/LexUriServ.do?uri=COM:2008:0030:FIN:en:PDF (accessed on 15 January 2023).
- Gielen, D.; Boshell, F.; Saygin, D.; Bazilian, M.D.; Wagner, N.; Gorini, R. The role of renewable energy in the global energy transformation. Energy Strategy Rev. 2019, 24, 38–50. [Google Scholar] [CrossRef]
- Electric Power Industry of Serbia Technical Report 2021. Available online: https://www.eps.rs/eng/Documents/technicalreports/TEH_Godisnjak2021_web_en_Fin.pdf (accessed on 12 January 2023).
- Government of Republic of Serbia Energy Balance of the Republic of Serbia for 2022. Available online: https://www.mre.gov.rs/sites/default/files/2022/03/energetski_bilans_rs_za_2022__0.pdf (accessed on 17 December 2022).
- Beta Serbia Forced to Drastically Increase Coal Imports This Year: What Is Written in the Government Document on Energy Plans for 2023. Available online: https://www.danas.rs/vesti/ekonomija/srbija-primorana-na-drasticno-veci-uvoz-uglja-ove-godine-sta-pise-u-vladinom-dokumentu-o-energetskim-planovima-za-2023/ (accessed on 4 January 2023).
- Tanjug A Plan Was Adopted for Serbia to Produce Four Percent More Primary Energy in 2023 than This Year. Available online: https://www.tanjug.rs/ekonomija/srbija/6087/usvojen-plan-da-srbija-u-2023-godini-proizvede-cetiri-odsto-primarne-energije-vise-nego-ove-godine/vest (accessed on 4 January 2023).
- Nikolic, D.; Djordjevic, S.; Skerlic, J.; Radulovic, J. Energy Analyses of Serbian Buildings with Horizontal Overhangs: A Case Study. Energies 2020, 13, 4577. [Google Scholar] [CrossRef]
- Pan, Y.; Zhang, L. Data-driven estimation of building energy consumption with multi-source heterogeneous data. Appl. Energy 2020, 268, 114965. [Google Scholar] [CrossRef]
- Li, X.; Zhou, Y.; Yu, S.; Jia, G.; Li, H.; Li, W. Urban heat island impacts on building energy consumption: A review of approaches and findings. Energy 2019, 174, 407–419. [Google Scholar] [CrossRef]
- Stevanović, S. Parametric study of a cost-optimal, energy efficient office building in Serbia. Energy 2016, 117, 492–505. [Google Scholar] [CrossRef]
- Lazović, I.M.; Turanjanin, V.M.; Vučićević, B.S.; Jovanović, M.P.; Jovanović, R.D. Influence of the building energy efficiency on indoor air temperature: The case of a typical school classroom in Serbia. Therm. Sci. 2022, 26, 3605–3618. [Google Scholar] [CrossRef]
- Stefanović, S.; Lazović, I.; Jovanović, M.; Turanjanin, V. Thermal Performances Modeling of Existing Single Family House Related to Different Scenarios of Improvement of the Building Energy Efficiency. Zb. Međunarodnog Kongr. O KGH 2019, 43, 317–324. [Google Scholar]
- Statistical Office of the Republic of Serbia First Results of the 2022 Census of Population, Households and Dwellings. Available online: https://publikacije.stat.gov.rs/G2022/Html/G20221350.html (accessed on 18 January 2023).
- RHMZ Srbije Average Monthly, Yearly and Extreme Values 1981–2010, City of Zrenjanin. Available online: https://www.hidmet.gov.rs/latin/meteorologija/stanica_sr.php?moss_id=13173 (accessed on 15 December 2022).
- Sudimac, B.; Ugrinović, A.; Jurčević, M. The Application of Photovoltaic Systems in Sacred Buildings for the Purpose of Electric Power Production: The Case Study of the Cathedral of St. Michael the Archangel in Belgrade. Sustainability 2020, 12, 1408. [Google Scholar] [CrossRef]
- Žikić, S.; Trifunović, D.; Lalić, G.; Jovanović, M. Awareness of the population in rural regions of Serbia about renewable energy sources. Èkon. Poljopr. 2022, 69, 43–56. [Google Scholar] [CrossRef]
- Šumarac, D.; Todorović, M.; Ćorić, S.; Perović, Z. Energy Efficiency of Typical Serbian Rural Houses. Termotehnika 2012, 38, 191–203. [Google Scholar]
- Energy Efficiency Building Codes. Available online: https://www.mgsi.gov.rs/sites/default/files/PRAVILNIK%20O%20ENERGETSKOJ%20EFIKASNOSTI%20ZGRADA.pdf (accessed on 12 December 2022).
- Pavlović, B.; Ivezić, D.; Živković, M. A multi-criteria approach for assessing the potential of renewable energy sources for electricity generation: Case Serbia. Energy Rep. 2021, 7, 8624–8632. [Google Scholar] [CrossRef]
- Ministry of Construction, Transport and Infrastructure of Republic of Serbia Rulebook on the Conditions, Content, and Method of Issuing Certificates on the Energy Properties of Buildings. Available online: https://www.mgsi.gov.rs/sites/default/files/Pravilnik%20o%20uslovima%20sadrzini%20i%20nacinu%20izdavanja%20sertifikata%20o%20energetskim%20svojstvima%20zgrada_2.pdf (accessed on 12 December 2022).
- Dahooie, J.H.; Kashan, A.H.; Naeini, Z.S.; Vanaki, A.S.; Zavadskas, E.K.; Turskis, Z. A Hybrid Multi-Criteria-Decision-Making Aggregation Method and Geographic Information System for Selecting Optimal Solar Power Plants in Iran. Energies 2022, 15, 2801. [Google Scholar] [CrossRef]
- Milosavljević, D.D.; Pavlović, T.M.; Piršl, D.S. Performance analysis of A grid-connected solar PV plant in Niš, republic of Serbia. Renew. Sustain. Energy Rev. 2015, 44, 423–435. [Google Scholar] [CrossRef]
- Doljak, D.L.; Stanojević, G.B.; Radovanović, M.M.; Malinović-Milićević, S.B. Estimation of photovoltaic power generation potential in Serbia based on irradiance, air temperature, and wind speed data. Therm. Sci. 2018, 22, 2297–2307. [Google Scholar] [CrossRef]
- Prvulovic, S.; Lambic, M.; Matic, M.; Tolmac, D.; Radovanovic, L.; Josimovic, L. Solar energy in Vojvodina (Serbia): Potential, scope of use, and development perspective. Energy Sources Part B Econ. Plan. Policy 2016, 11, 1111–1117. [Google Scholar] [CrossRef]
- Doljak, D.; Stanojević, G. Evaluation of natural conditions for site selection of ground-mounted photovoltaic power plants in Serbia. Energy 2017, 127, 291–300. [Google Scholar] [CrossRef]
- Solargis Solar Resource Maps of Serbia. Available online: https://solargis.com/maps-and-gis-data/download/serbia (accessed on 12 October 2022).
- Prvulović, S.; Tolmač, D.; Matic, M.; Radovanovic, L.; Lambic, M. Some aspects of the use of solar energy in Serbia. Energy Sources Part B Econ. Plan. Policy 2018, 13, 237–245. [Google Scholar] [CrossRef]
- Orđević, L.; Desnica, E.; Novaković, B.; Djurdjev, M.; Bakator, M. Technical Performance Prediction of the 1mw Solar Power Plant in the City of Zrenjanin; University of Belgrade Faculty of Mechanical Engineering: Belgrade, Serbia, 2022; pp. 241–245. [Google Scholar]
- Kumar, B.S.; Sudhakar, K. Performance evaluation of 10 MW grid connected solar photovoltaic power plant in India. Energy Rep. 2015, 1, 184–192. [Google Scholar] [CrossRef]
- Dondariya, C.; Porwal, D.; Awasthi, A.; Shukla, A.K.; Sudhakar, K.; S.R., M.M.; Bhimte, A. Performance simulation of grid-connected rooftop solar PV system for small households: A case study of Ujjain, India. Energy Rep. 2018, 4, 546–553. [Google Scholar] [CrossRef]
- Al Mehadi, A.; Alam Chowdhury, M.; Nishat, M.M.; Faisal, F.; Islam, M. A software-based approach in designing a rooftop bifacial PV system for the North Hall of Residence, IUT. Clean Energy 2021, 5, 403–422. [Google Scholar] [CrossRef]
- Al-Zoubi, H.; Al-Khasawneh, Y.; Omar, W. Design and feasibility study of an on-grid photovoltaic system for green electrification of hotels: A case study of Cedars hotel in Jordan. Int. J. Energy Environ. Eng. 2021, 12, 611–626. [Google Scholar] [CrossRef]
- Davybida, L.; Wyczałek, I.; Plichta, A. Using GIS and SDSS Tools in the Design of a Photovoltaic System for a Built-up Roof. Geomatics Environ. Eng. 2022, 16, 31–58. [Google Scholar] [CrossRef]
- González-Peña, D.; García-Ruiz, I.; Díez-Mediavilla, M.; Dieste-Velasco, M.; Alonso-Tristán, C. Photovoltaic Prediction Software: Evaluation with Real Data from Northern Spain. Appl. Sci. 2021, 11, 5025. [Google Scholar] [CrossRef]
- Sharma, R.; Gidwani, L. Grid connected solar PV system design and calculation by using PV*SOL premium simulation tool for campus hostels of RTU Kota. In Proceedings of the 2017 International Conference on Circuit, Power and Computing Technologies (ICCPCT) IEEE, Kollam, India, 20–21 April 2017; pp. 1–5. [Google Scholar] [CrossRef]
- Todorović, I. Subsidies for Energy Efficiency in Households Awarded to Almost Every Municipality in Serbia, Balkan Green Energy News. Available online: https://balkangreenenergynews.com/rs/subvencije-za-energetsku-efikasnost-domacinstvima-dodeljene-skoro-svakoj-opstini-u-srbiji/ (accessed on 17 January 2023).
- Ministry of Mining and Energy Public Call for Energy Rehabilitation of Residential Buildings, Family Houses and Apartments (for Citizens). Available online: https://www.mre.gov.rs/en/node/1076 (accessed on 15 January 2023).
- Electric Distribution of Serbia Energy Data 2021. Available online: http://epsdistribucija.rs/pdf/GI_ODS_2021.pdf (accessed on 16 November 2022).
Disclaimer/Publisher’s Note: The statements, opinions and data contained in all publications are solely those of the individual author(s) and contributor(s) and not of MDPI and/or the editor(s). MDPI and/or the editor(s) disclaim responsibility for any injury to people or property resulting from any ideas, methods, instructions or products referred to in the content. |
© 2023 by the authors. Licensee MDPI, Basel, Switzerland. This article is an open access article distributed under the terms and conditions of the Creative Commons Attribution (CC BY) license (https://creativecommons.org/licenses/by/4.0/).







