Smart IoT-Based Temperature-Sensing Device for Energy-Efficient Glass Window Monitoring
Abstract
1. Introduction
Multi-Layer Glazing
2. Related Work
3. Materials and Methods
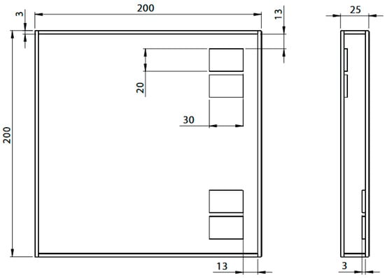
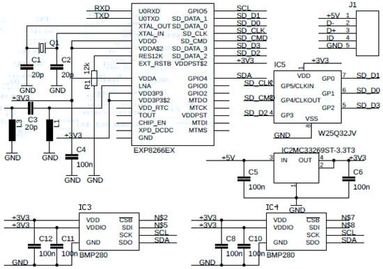
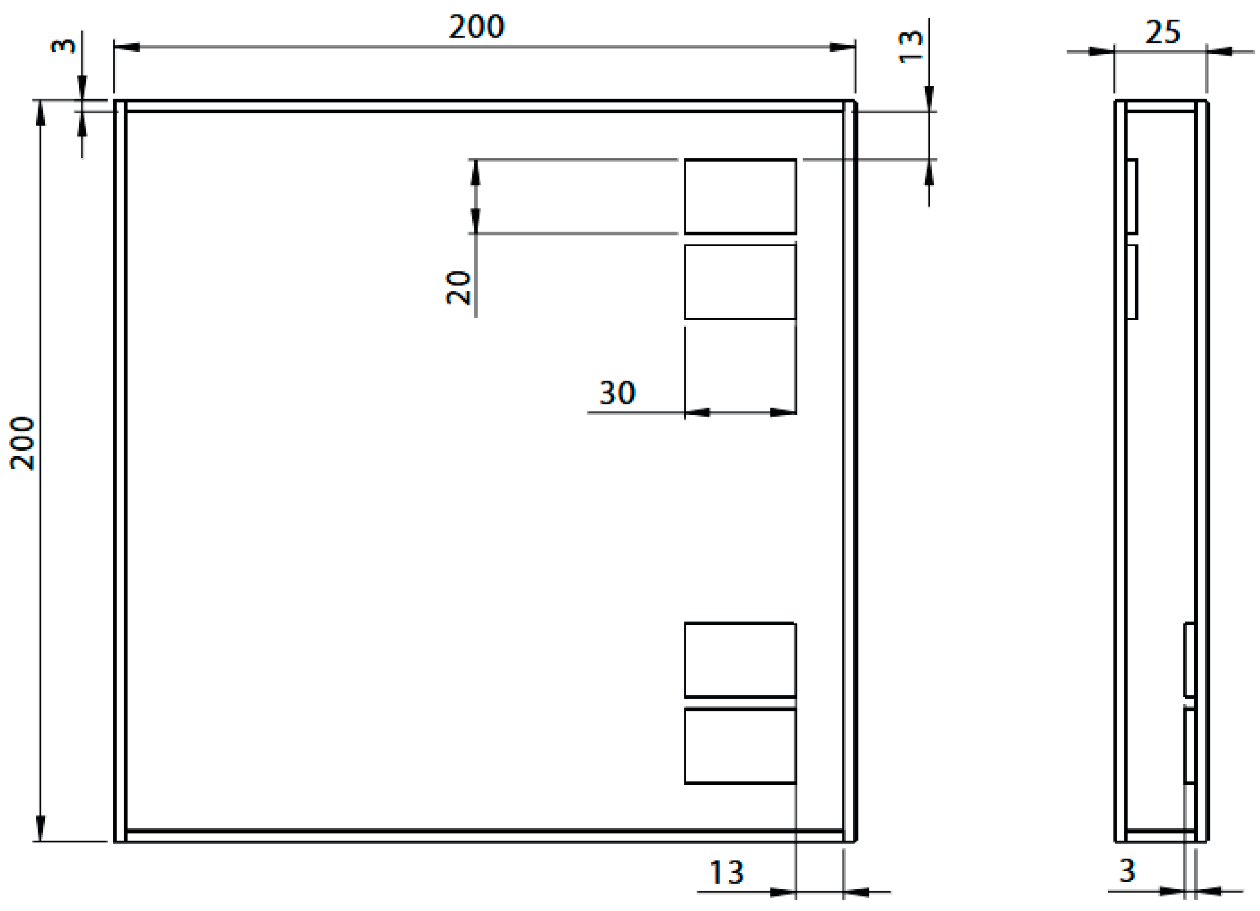
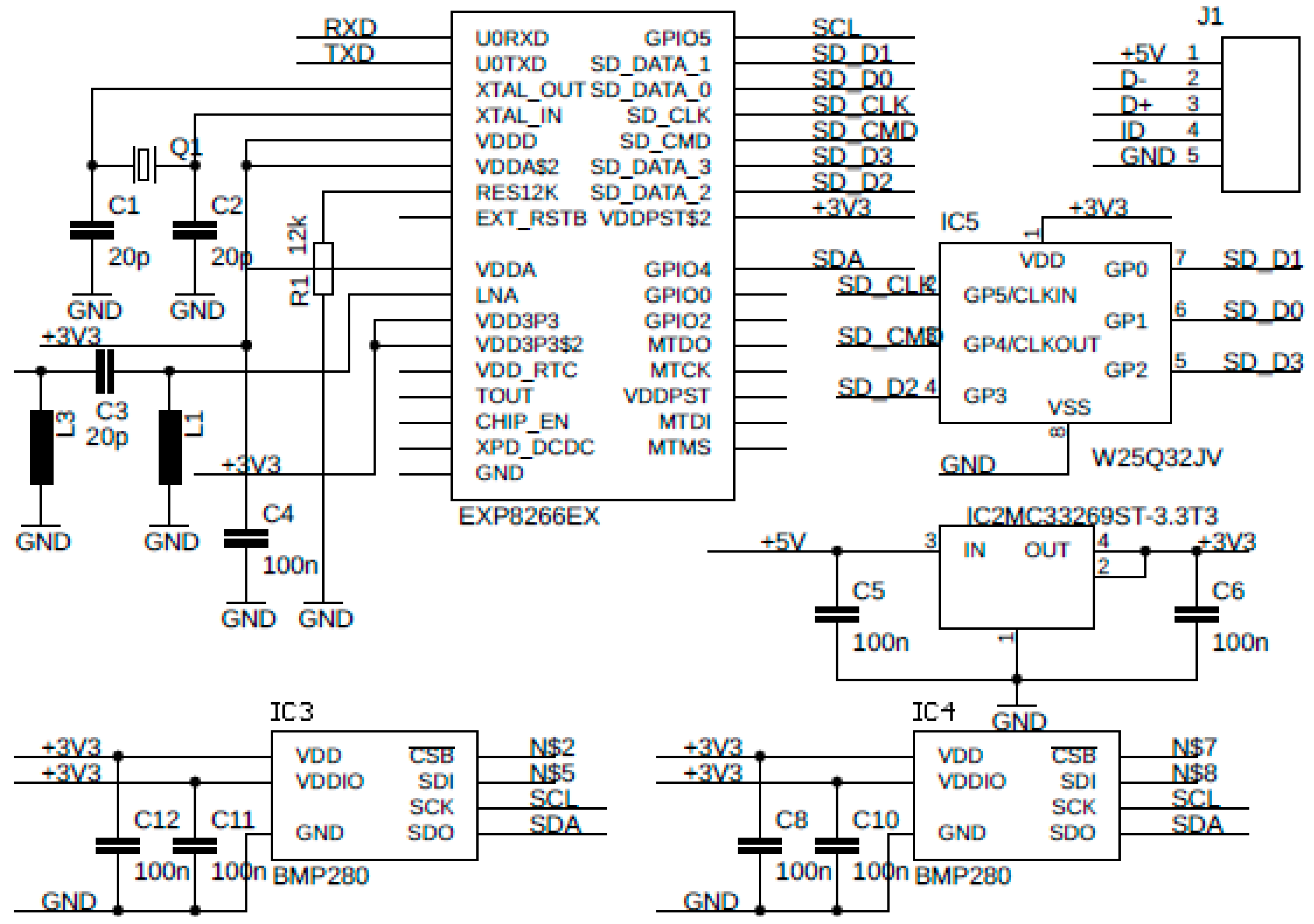
3.1. Setup for the Real Experiment
3.2. Temperature Sensors for Glazing Applications
3.3. Manufacturing Process of the Single-Layer Glazing
3.4. Experimental and Simulation Approaches
3.4.1. Solution Approach Using CFD Simulation
3.4.2. Solution Approach Using Real Experiment
3.5. Temperature Sensor Calibration
3.6. Impact of Miniaturization on Measurement Accuracy
3.7. Influence of Embedded Electronics on the Thermal Field
4. Results and Discussion
4.1. Results Using CFD Simulation
4.2. Results Using Real Experiment
4.3. Comparison Between CFD Simulation and Real Experiment
4.4. Quantitative Validation Metrics
4.5. Heat Circulation and Thermal Bridges in the Chamber
5. Conclusions
Author Contributions
Funding
Data Availability Statement
Acknowledgments
Conflicts of Interest
References
- Wang, Z.; Wang, Y.; Gao, C.; Wang, F.; Lin, T.; Chen, Y. An adaptive sliding window for anomaly detection of time series in wireless sensor networks. Wirel. Netw. 2022, 28, 393–411. [Google Scholar] [CrossRef]
- Xiang, X.; Li, K.; Huang, B.; Cao, Y. A multi-sensor data-fusion method based on cloud model and improved evidence theory. Sensors 2022, 22, 5902. [Google Scholar] [CrossRef]
- Mansour, A.; Chen, W. SUNS: A user-friendly scheme for seamless and ubiquitous navigation based on an enhanced indoor-outdoor environmental awareness approach. Remote Sens. 2022, 14, 5263. [Google Scholar] [CrossRef]
- Hamad, R.A.; Hidalgo, A.S.; Bouguelia, M.-R.; Estevez, M.E.; Quero, J.M. Efficient activity recognition in smart homes using delayed fuzzy temporal windows on binary sensors. IEEE J. Biomed. Health Inform. 2020, 24, 387–395. [Google Scholar] [CrossRef]
- Zheng, Y.; Si, P.; Zhang, Y.; Shi, L.; Huang, C.; Huang, D.; Jin, Z. Study on the effect of radiant insulation panel in cavity on the thermal performance of broken-bridge aluminum window frame. Buildings 2023, 13, 58. [Google Scholar] [CrossRef]
- Sun, Z.; Cao, Y.; Wang, X.; Yu, J. Multi-objective optimization design for windows and shading configuration: Considering energy consumption, thermal environment, visual performance and sound insulation effect. Int. J. Energy Environ. Eng. 2021, 12, 805–836. [Google Scholar] [CrossRef]
- Kayastha, S.; Upadhyaya, P. Design and implementation of a cost-efficient smart home system with Raspberry Pi and cloud services. In Proceedings of the 2019 Artificial Intelligence for Transforming Business and Society (AITB), Kathmandu, Nepal, 21–23 November 2019; pp. 1–7. [Google Scholar] [CrossRef]
- Pham, Q.-Q.; Ta, Q.-B.; Park, J.-H.; Kim, J.-T. Raspberry Pi platform wireless sensor node for low-frequency impedance responses of PZT interface. Sensors 2022, 22, 9592. [Google Scholar] [CrossRef] [PubMed]
- Andreas, C.R.A.; Putra, H.W.; Hanafiah, N.; Surjarwo, S.; Wibisurya, A. Door security system for home monitoring based on ESP32. Procedia Comput. Sci. 2019, 157, 673–682. [Google Scholar] [CrossRef]
- Lyu, Y.; Liu, W.; Su, H.; Wu, X. Numerical analysis on the advantages of evacuated gap insulation of vacuum-water flow window in building energy saving under various climates. Energy 2019, 174, 353–364. [Google Scholar] [CrossRef]
- Baek, K.; Kim, L. Optimum design and energy performance of hybrid triple glazing system with vacuum and carbon dioxide filled gap. Sustainability 2019, 11, 5543. [Google Scholar] [CrossRef]
- Fantucci, S.; Garbaccio, S.; Lorenzati, A.; Perino, M. Thermo-economic analysis of building energy retrofits using VIP—Vacuum insulation panels. Energy Build. 2019, 199, 269–279. [Google Scholar] [CrossRef]
- Thie, C.; Quallen, S.; Ibrahim, A.; Xing, T.; Johnson, B. Study of energy saving using silica aerogel insulation in a residential building. Gels 2023, 9, 86. [Google Scholar] [CrossRef] [PubMed]
- Mehdizadeh-Rad, H.; Choudhry, T.A.; Ng, A.W.M.; Rajabi, Z.; Rais, M.F.; Zia, A.; Tariq, M.A.U.R. An energy performance evaluation of commercially available window glazing in Darwin’s tropical climate. Sustainability 2022, 14, 2394. [Google Scholar] [CrossRef]
- Cho, S.; Kim, S.-H. Analysis of the performance of vacuum glazing in office buildings in Korea: Simulation and experimental studies. Sustainability 2017, 9, 936. [Google Scholar] [CrossRef]
- Ali, H.; Hayat, N.; Farukh, F.; Imran, S.; Kamran, M.; Ali, H. Key design features of multi-vacuum glazing for windows: A review. Therm. Sci. 2017, 21, 2673–2687. [Google Scholar] [CrossRef]
- Shi, Y.; Chen, X.; Sun, C.; Xia, X.-L. Temperature-dependent thermal conductivity and absorption coefficient identification of quartz window up to 1100 K. J. Therm. Sci. 2023, 32, 44–58. [Google Scholar] [CrossRef]
- Hodgson, M.; Roy, S.; Roskilly, A.P.; Smallbone, A. The performance and efficiency of novel oxy-hydrogen-argon gas power cycles for zero emission power generation. Energy Convers. Manag. 2021, 244, 114510. [Google Scholar] [CrossRef]
- Nsaif, M.A.; Jali, J.M.; Baccar, M. Experimental investigation of the thermal performance of triple glazed windows integrated with PCM and low-e glass. Int. J. Heat Technol. 2024, 42, 1735–1743. [Google Scholar] [CrossRef]
- Xu, X.; Xie, J.; Zhang, X.; Chen, G.; Liu, J. A new validated TRNSYS module for phase change material-filled multi-glazed windows. Appl. Therm. Eng. 2025, 258, 124706. [Google Scholar] [CrossRef]
- Zhang, C.; Yang, R.; Lu, Y.; Arici, M.; Ma, Y.; Yang, X.; Qi, Z.; Li, D. Parametric research on thermal and optical properties of solid-solid phase change material packaged in glazing windows. J. Energy Storage 2024, 83, 110562. [Google Scholar] [CrossRef]
- Ranđelović, D.; Vorotović, G.; Bengin, A.; Petrović, P. Quadcopter altitude estimation using low-cost barometric, infrared, ultrasonic, and LIDAR sensors. FME Trans. 2021, 49, 21–28. [Google Scholar] [CrossRef]
- Shevchenko, G.V.; Glubokov, N.A.; Yupashevsky, A.V.; Kazmina, A.S. Air flow sensor based on environmental sensor BME280. In Proceedings of the 21st International Conference of Young Specialists on Micro/Nanotechnologies and Electron Devices (EDM), Erlagol, Russia, 29 June–3 July 2020; pp. 1–5. [Google Scholar] [CrossRef]
- Bianchi, C.; Loureiro, J.; Duarte, P.; Marques, J.; Figueira, J.; Ropio, I.; Ferreira, I. V2O5 thin films for flexible and high sensitivity transparent temperature sensor. Adv. Mater. Technol. 2016, 1, 1600077. [Google Scholar] [CrossRef]
- Bornemann, S.; Lang, W. Considerations and limits of embedding sensor nodes for structural health monitoring into fiber metal laminates. Sensors 2022, 22, 4511. [Google Scholar] [CrossRef]
- Zhou, Y. Artificial neural network-based smart aerogel glazing in low-energy buildings: A state-of-the-art review. iScience 2021, 24, 103420. [Google Scholar] [CrossRef] [PubMed]
- Osorio-de-la-Rosa, E.; Valdez-Hernández, M.; Vázquez-Castillo, J.; Franco-de-la-Cruz, A.; Woo-García, R.; Castillo-Atoche, A.; La-Rosa, R. Plant microbial fuel cells as a bioenergy source used in precision beekeeping. Sustain. Energy Technol. Assess. 2023, 60, 103499. [Google Scholar] [CrossRef]
- ISO/IEC 17025; General Requirements for the Competence of Testing and Calibration Laboratories. ISO/IEC: Geneva, Switzerland, 2017.
- Zhang, Y.; Zhang, M.; Xiong, J.; Mao, G.; Qi, Y. Computational fluid dynamics for cavity natural heat convection: Numerical analysis and optimization in greenhouse application. Adv. Math. Phys. 2023, 2023, 1–11. [Google Scholar] [CrossRef]
- Samuel, Y.; Confrey, T.; Callaghan, D.; Kent, N.; Nolan, C. CFD analysis of thermal and flow physics in buildings utilizing smart glazing for mitigation of solar gain. In Proceedings of the 5th Thermal and Fluids Engineering Conference (TFEC), New Orleans, LA, USA, 5–8 April 2020; Begell House: Danbury, CT, USA, 2020; pp. 151–161. [Google Scholar] [CrossRef]
- Basok, B.; Novikov, V.; Pavlenko, A.; Davydenko, B.; Koshlak, H.; Goncharuk, S.; Lysenko, O. CFD simulation of heat transfer through a window frame. Rep. Struct. Eng. 2024, 26, 56–64. [Google Scholar] [CrossRef]
- Cho, K.; Cho, D.; Koo, B.; Yun, Y. Thermal performance analysis of windows, based on argon gas percentages between window glasses. Buildings 2023, 13, 2935. [Google Scholar] [CrossRef]
- Rimshin, V.; Khamrakulov, R.; Alikabulov, S.; Radjabov, Y.; Abdurakhmonov, A.; Mirazimova, G.; Jamolova, M. Study on the possibilities of increasing the effectiveness of thermal insulation of enclosing structures in window openings using low-emission coatings and films. E3S Web Conf. 2024, 563, 02024. [Google Scholar] [CrossRef]
- Taler, D.; Sobota, T.; Jaremkiewicz, M.; Taler, J. Influence of the thermometer inertia on the quality of temperature control in a hot liquid tank heated with electric energy. Energies 2020, 13, 4039. [Google Scholar] [CrossRef]
- Małek, M.T.; Koczyk, H. Influence of temperature sensor (Pt100) accuracy on the interpretation of experimental results of measuring temperature on the surface. Civ. Environ. Eng. Rep. 2024, 34, 1–21. [Google Scholar] [CrossRef]









| Material | Density [kg/m] | Specific Heat Capacity [J/(kg·K)] | Thermal Conductivity [W/(m·K)] |
|---|---|---|---|
| Air | 1.2 | 1005.0 | 0.1 |
| Glass-low-e | 2464.9 | 898.6 | 0.9 |
| Semiconductor | 3098.4 | 658.0 | 117.4 |
| Copper | 8978.0 | 381.0 | 387.6 |
| Industrial carbon | 1529.7 | 959.8 | 12.2 |
| Aluminum | 2719.0 | 871.0 | 202.4 |
Disclaimer/Publisher’s Note: The statements, opinions and data contained in all publications are solely those of the individual author(s) and contributor(s) and not of MDPI and/or the editor(s). MDPI and/or the editor(s) disclaim responsibility for any injury to people or property resulting from any ideas, methods, instructions or products referred to in the content. |
© 2025 by the authors. Licensee MDPI, Basel, Switzerland. This article is an open access article distributed under the terms and conditions of the Creative Commons Attribution (CC BY) license (https://creativecommons.org/licenses/by/4.0/).
Share and Cite
Mach, V.; Vojtesek, J.; Adamek, M.; Drabek, P.; Stoklasek, P.; Dlabaja, S.; Kopecek, L.; Mizera, A. Smart IoT-Based Temperature-Sensing Device for Energy-Efficient Glass Window Monitoring. Future Internet 2025, 17, 576. https://doi.org/10.3390/fi17120576
Mach V, Vojtesek J, Adamek M, Drabek P, Stoklasek P, Dlabaja S, Kopecek L, Mizera A. Smart IoT-Based Temperature-Sensing Device for Energy-Efficient Glass Window Monitoring. Future Internet. 2025; 17(12):576. https://doi.org/10.3390/fi17120576
Chicago/Turabian StyleMach, Vaclav, Jiri Vojtesek, Milan Adamek, Pavel Drabek, Pavel Stoklasek, Stepan Dlabaja, Lukas Kopecek, and Ales Mizera. 2025. "Smart IoT-Based Temperature-Sensing Device for Energy-Efficient Glass Window Monitoring" Future Internet 17, no. 12: 576. https://doi.org/10.3390/fi17120576
APA StyleMach, V., Vojtesek, J., Adamek, M., Drabek, P., Stoklasek, P., Dlabaja, S., Kopecek, L., & Mizera, A. (2025). Smart IoT-Based Temperature-Sensing Device for Energy-Efficient Glass Window Monitoring. Future Internet, 17(12), 576. https://doi.org/10.3390/fi17120576

