Comparative Study on Surface Heating Systems with and Without External Shading: Effects on Indoor Thermal Environment
Abstract
1. Introduction
2. Materials and Methods
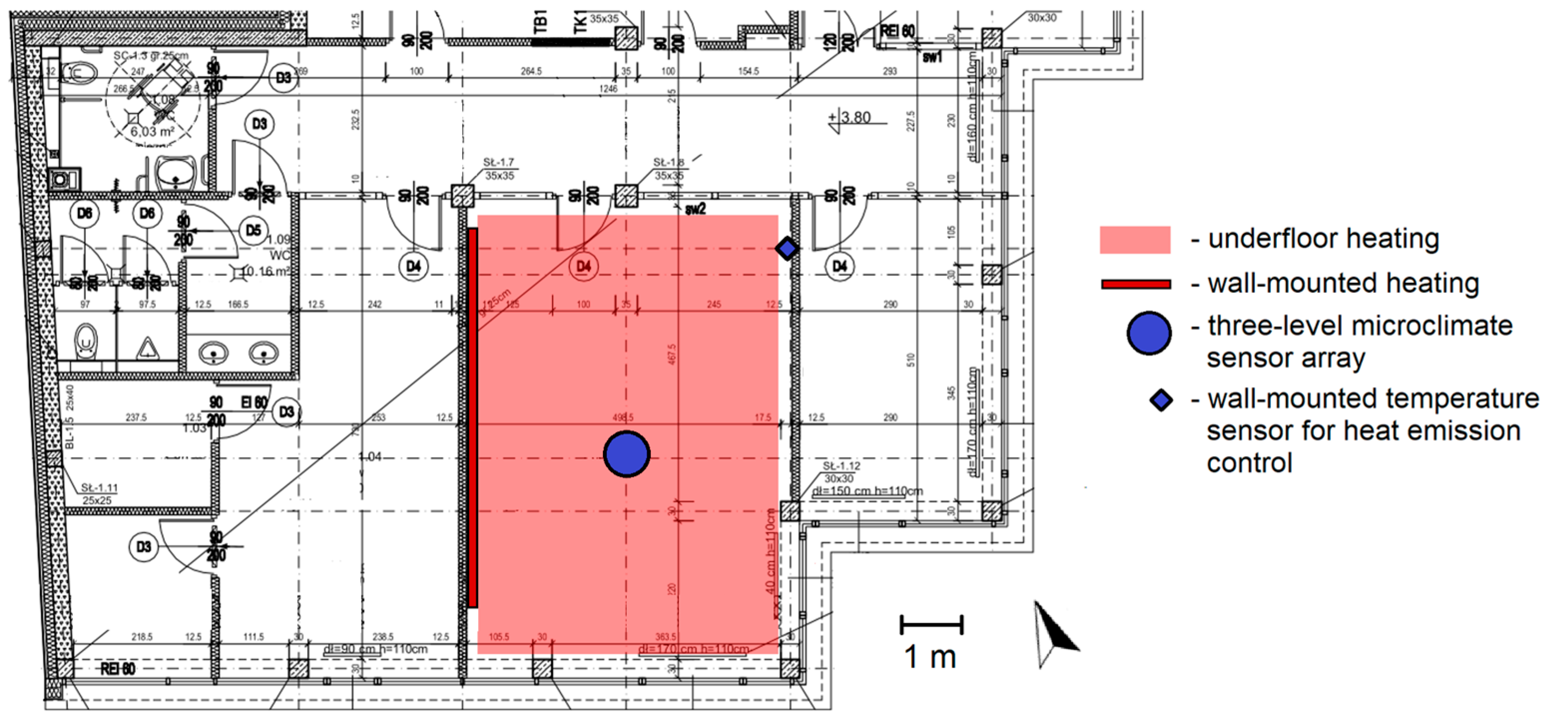
2.1. Characteristics of the Test Rooms
2.2. Experimental Procedure
2.3. Data Acquisition
3. Results
3.1. Indoor Thermal Comfort at Seated Body Gravity Height
3.2. Vertical Gradient of Indoor Thermal Comfort
3.3. Comparative Summary
4. Discussion
4.1. Impact of Solar Exposure and Shading on Thermal Comfort
4.2. Vertical Distribution of Thermal Comfort
4.3. Implications for Automated Control Strategies
- adjustment of hysteresis parameters in two-point control to minimize overheating and temperature fluctuations,
- integration of solar irradiance detection—temporary heating shutdown during high solar exposure to allow passive heating;
- demand-responsive control that incorporates the thermal inertia of surface heating systems, e.g., switching off heating a certain time before the scheduled end of occupancy, with the option of an occupancy-based override,
- implementation of nighttime setback strategies.
4.4. Summary, Insights and Directions for Future Work
5. Conclusions
Author Contributions
Funding
Data Availability Statement
Conflicts of Interest
Abbreviations
| nZEB | nearly zero-energy building; standard applicable in the European Union |
| HVAC | heating, ventilation and air-conditioning system |
| PMV | predicted mean vote [-] |
| PPD | predicted percentage dissatisfied [%] |
| IEQ | indoor environmental quality |
| PECS | personalized environmental control systems |
| ASHP | air-source heat pump |
| COP | coefficient of performance [-] |
| MCBE | Małopolska Center of Energy Efficient Building |
| BMS | building management system |
| BIPV | building-integrated photovoltaic |
| BIST | building-integrated solar thermal system |
| L1 | experimental room without a solar shading system |
| L2 | experimental room equipped with an external Venetian blind system |
| Ta | air temperature [°C] |
| RH | relative humidity [%] |
| Va | air velocity [m/s] |
| min | minimum |
| max | maximum |
| RBC | rule-based control |
| MPC | model predictive control |
References
- European Climate Foundation. Available online: https://europeanclimate.org/ (accessed on 25 November 2025).
- Directive 2002/91–EN–EUR-Lex. Available online: https://eur-lex.europa.eu/legal-content/en/ALL/?uri=CELEX%3A32002L0091 (accessed on 22 August 2025).
- Directive-2010/31-EN-EUR-Lex. Available online: https://eur-lex.europa.eu/eli/dir/2010/31/oj (accessed on 22 August 2025).
- Directive 2018/844–EN–EUR-Lex. Available online: https://eur-lex.europa.eu/eli/dir/2018/844/oj (accessed on 22 August 2025).
- Directive 2023/1791-EN-EUR-Lex. Available online: https://eur-lex.europa.eu/legal-content/PL/ALL/?uri=CELEX%3A32023L1791 (accessed on 25 August 2025).
- Regulation 2018/1999-EN-EUR-Lex. Available online: https://eur-lex.europa.eu/legal-content/PL/TXT/?uri=CELEX:32018R1999 (accessed on 20 November 2025).
- Act of 17 September 2021 Amending the Construction Law and the Act on Spatial Planning and Development, in Polish. 2021; Issued by: Chancellery of the Sejm of the Republic of Poland. Available online: https://isap.sejm.gov.pl/isap.nsf/DocDetails.xsp?id=WDU20210001986 (accessed on 22 August 2025).
- Regulation of the Minister of Development and Technology of 31 January 2022 Amending the Regulation on Technical Conditions to be Met by Buildings and Their Location, in Polish. 2022. Available online: https://isap.sejm.gov.pl/isap.nsf/DocDetails.xsp?id=WDU20220000248 (accessed on 22 August 2025).
- Barnaś, K.; Jeleński, T.; Nowak-Ocłoń, M.; Racoń-Leja, K.; Radziszewska-Zielina, E.; Szewczyk, B.; Śladowski, G.; Toś, C.; Varbanov, P.S. Algorithm for the Comprehensive Thermal Retrofit of Housing Stock Aided by Renewable Energy Supply: A Sustainable Case for Krakow. Energy 2023, 263, 125774. [Google Scholar] [CrossRef]
- BUILD UP-The European Portal for Energy Efficiency and Renewable Energy in Buildings. Available online: https://build-up.ec.europa.eu/en/home (accessed on 20 November 2025).
- EHPA-European Heat Pump Association. Available online: https://Ehpa.Org/ (accessed on 20 November 2025).
- Akmal, M.; Fox, B. Modelling and Simulation of Underfloor Heating System Supplied from Heat Pump. Int. J. Simul. Syst. Sci. Technol. 2016, 17, 28.1–28.9. [Google Scholar] [CrossRef]
- Hwang, Y.J.; Jeong, J.W. Energy Saving Potential of Radiant Floor Heating Assisted by an Air Source Heat Pump in Residential Buildings. Energies 2021, 14, 1321. [Google Scholar] [CrossRef]
- He, W.; Huang, H. Research on Optimization of the Heating System in Buildings in Cold Regions by Energy-Saving Control. Arch. Thermodyn. 2024, 45, 129–135. [Google Scholar] [CrossRef]
- Romańska-Zapała, A. Experiment Results of Building Integrated Control System—Case Study. In Proceedings of the 2016 Second International Conference on Event-Based Control, Communication, and Signal Processing (EBCCSP), Krakow, Poland, 13–15 June 2016; pp. 1–5. [Google Scholar]
- Heng, W.; Wang, Z.; Wu, Y. Experimental Study on Phase Change Heat Storage Floor Coupled with Air Source Heat Pump Heating System in a Classroom. Energy Build. 2021, 251, 111352. [Google Scholar] [CrossRef]
- Ju, H.; Li, X.; Chang, C.; Zhou, W.; Wang, G.; Tong, C. Heating Performance of PCM Radiant Floor Coupled with Horizontal Ground Source Heat Pump for Single-Family House in Cold Zones. Renew. Energy 2024, 235, 121306. [Google Scholar] [CrossRef]
- Dorca, A.; Sarbu, I. Thermal Protection Impact Assessment of a Residential House on the Energy Efficiency of the Air-Source Heat Pump Radiant Floor Heating System. Therm. Sci. Eng. Prog. 2025, 67, 104059. [Google Scholar] [CrossRef]
- Djongyang, N.; Tchinda, R.; Njomo, D. Thermal Comfort: A Review Paper. Renew. Sustain. Energy Rev. 2010, 14, 2626–2640. [Google Scholar] [CrossRef]
- Rupp, R.F.; Vásquez, N.G.; Lamberts, R. A Review of Human Thermal Comfort in the Built Environment. Energy Build. 2015, 105, 178–205. [Google Scholar] [CrossRef]
- Höppe, P. Different Aspects of Assessing Indoor and Outdoor Thermal Comfort. Energy Build. 2002, 34, 661–665. [Google Scholar] [CrossRef]
- Fanger, P.O. Thermal Comfort: Analysis and Applications in Environmental Engineering; McGraw-Hill: Columbus, OH, USA, 1972; ISBN 9780070199156. [Google Scholar]
- EN 16798-1:2019; Energy Performance of Buildings-Ventilation for Buildings-Part 1: Indoor Environmental Input Parameters for Design and Assessment of Energy Performance of Buildings Addressing Indoor Air Quality, Thermal Environment, Lighting and Acoustics-Module M1-6. European Committee for Standardization: Brussels, Belgium, 2019.
- Piasecki, M.; Fedorczak-Cisak, M.; Furtak, M.; Biskupski, J. Experimental Confirmation of the Reliability of Fanger’s Thermal Comfort Model—Case Study of a Near-Zero Energy Building (NZEB) Office Building. Sustainability 2019, 11, 2461. [Google Scholar] [CrossRef]
- EN ISO 7730:2025; Ergonomics of the Thermal Environment—Analytical Determination and Interpretation of Thermal Comfort Using Calculation of the PMV and PPD Indices and Local Thermal Comfort Criteria. International Organization for Standardization: Geneva, Switzerland, 2025.
- Mahdavinejad, M.; Bazazzadeh, H.; Mehrvarz, F.; Berardi, U.; Nasr, T.; Pourbagher, S.; Hoseinzadeh, S. The Impact of Facade Geometry on Visual Comfort and Energy Consumption in an Office Building in Different Climates. Energy Rep. 2024, 11, 1–17. [Google Scholar] [CrossRef]
- Alders, E.E. Adaptive Heating, Ventilation and Solar Shading for Dwellings. Archit. Sci. Rev. 2017, 60, 150–166. [Google Scholar] [CrossRef]
- Fang, Z.; Guo, Z.; Chen, W.; Wu, H.; Zheng, Z. Experimental Investigation of Indoor Thermal Comfort under Different Heating Conditions in Winter. Buildings 2022, 12, 2232. [Google Scholar] [CrossRef]
- Dakkama, H.J.; Khaleel, A.J.; Ahmed, A.Q.; Al-Shohani, W.A.M.; Obaida, H.M.B. Effect of Local Floor Heating System on Occupants’ Thermal Comfort and Energy Consumption Using Computational Fluid Dynamics (CFD). Fluids 2023, 8, 299. [Google Scholar] [CrossRef]
- Wang, H.; Li, W.; Wang, J.; Xu, M.; Ge, B. Experimental Study on Local Floor Heating Mats to Improve Thermal Comfort of Workers in Cold Environments. Build. Environ. 2021, 205, 108227. [Google Scholar] [CrossRef]
- Kawakubo, S.; Arata, S.; Suganuma, C.; Takuwa, Y.; Ikaga, T. Effects of Residential Floor-Level Thermal Environment on Task Performance via Psychophysiological Responses Using Multilevel Structural Equation Modeling. Build. Environ. 2025, 283, 113416. [Google Scholar] [CrossRef]
- Shukla, S.; Daneshazarian, R.; Mwesigye, A.; Leong, W.H.; Dworkin, S.B. A Novel Radiant Floor System: Detailed Characterization and Comparison with Traditional Radiant Systems. Int. J. Green. Energy 2020, 17, 137–148. [Google Scholar] [CrossRef]
- ANSI/ASHRAE 55-2017; Thermal Environmental Conditions for Human Occupancy. American Society of Heating, Refrigerating and Air-Conditioning Engineers, Inc. [ASHRAE]: Peachtree Corners, GA, USA, 2017.
- Zheng, J.; Yu, T.; Lei, B.; Luo, X. Evaluation of the Thermal Performance of Radiant Floor Heating System with the Influence of Unevenly Distributed Solar Radiation Based on the Theory of Discretization. Build. Simul. 2022, 16, 105–120. [Google Scholar] [CrossRef]
- Gamero-Salinas, J.; López-Hernández, D.; González-Martínez, P.; Arriazu-Ramos, A.; Monge-Barrio, A.; Sánchez-Ostiz, A. Exploring Indoor Thermal Comfort and Its Causes and Consequences amid Heatwaves in a Southern European City—An Unsupervised Learning Approach. Build. Environ. 2024, 265, 111986. [Google Scholar] [CrossRef]
- Alrasheed, M.; Mourshed, M. Domestic Overheating Risks and Mitigation Strategies: The State-of-the-Art and Directions for Future Research. Indoor Built Environ. 2023, 32, 1057–1077. [Google Scholar] [CrossRef]
- Kenny, G.P.; Tetzlaff, E.J.; Journeay, W.S.; Henderson, S.B.; O’Connor, F.K. Indoor Overheating: A Review of Vulnerabilities, Causes, and Strategies to Prevent Adverse Human Health Outcomes during Extreme Heat Events. Temperature 2024, 11, 203–246. [Google Scholar] [CrossRef] [PubMed]
- Kiil, M.; Simson, R.; Thalfeldt, M.; Kurnitski, J. Overheating and Air Velocities in Modern Office Buildings During Heating Season. Indoor Air 2024, 2024, 9992937. [Google Scholar] [CrossRef]
- Kosori, V.; Tablada, A.; Trivic, Z.; Horvat, M.; Vukmirovi, M.; Domingo-Irigoyen, S.; Todorovi, M.; Kaempf, J.H.; Goli, K.; Peric, A.; et al. Comparative Analysis of Overheating Risk for Typical Dwellings and Passivhaus in the UK. Energies 2022, 15, 3829. [Google Scholar] [CrossRef]
- Lomas, K.J.; Porritt, S.M. Overheating in Buildings: Lessons from Research. Build. Res. Inf. 2017, 45, 1–18. [Google Scholar] [CrossRef]
- Fedorczak-Cisak, M.; Radoń, M. New Generation Window Glazing and Other Solution in Low Energy Buildings. In Proceedings of the CESB 2013 PRAGUE-Central Europe Towards Sustainable Building 2013: Sustainable Building and Refurbishment for Next Generations, Prague, Czech Republic, 26–28 June 2013. [Google Scholar]
- Fedorczak-Cisak, M.; Nowak, K.; Furtak, M. Analysis of the Effect of Using External Venetian Blinds on the Thermal Comfort of Users of Highly Glazed Office Rooms in a Transition Season of Temperate Climate—Case Study. Energies 2019, 13, 81. [Google Scholar] [CrossRef]
- Lu, W. Dynamic Shading and Glazing Technologies: Improve Energy, Visual, and Thermal Performance. Energy Built Environ. 2024, 5, 211–229. [Google Scholar] [CrossRef]
- Kuhn, T.E. State of the Art of Advanced Solar Control Devices for Buildings. Sol. Energy 2017, 154, 112–133. [Google Scholar] [CrossRef]
- Wijewardane, S.; Vasilakopoulou, K.; Santamouris, M. Dynamic Solar Shadings: Redefining the Building Envelope. Sol. Compass 2025, 16, 100139. [Google Scholar] [CrossRef]
- Mazzetto, S. Dynamic Integration of Shading and Ventilation: Novel Quantitative Insights into Building Performance Optimization. Buildings 2025, 15, 1123. [Google Scholar] [CrossRef]
- Kaymaz, E.; Manav, B. Integrated Lighting and Solar Shading Strategies for Energy Efficiency, Daylighting and User Comfort in a Library Design Proposal. Buildings 2025, 15, 2669. [Google Scholar] [CrossRef]
- Perino, M.; Bilardo, M.; Fabrizio, E. A Framework for Assessing the Energy Performance of Personalized Environmental Control Systems (PECS) for Heating, Cooling and Ventilation. Build. Environ. 2024, 265, 111925. [Google Scholar] [CrossRef]
- Furtak, M.; Szydłowski, R.; Wójcik, K.; Spaczyński, M. As-Built Documentation, Construction of the Małopolska Laboratory of Energy Efficient Building at Warszawska 24 in Cracow, Poland; Internal technical documentation, Cracow University of Technology: Cracow, Poland, 2014. [Google Scholar]
- EN ISO 7726:2002; Ergonomics of the Thermal Environment—Instruments for Measuring Physical Quantities (ISO 7726:1998). International Organization for Standardization: Geneva, Switzerland, 2002.
- Ekohigiena Aparatura Ryszard Putyra. Operating Instructions Microclimate Meter EHA MM101; Ekohigiena Aparatura Ryszard Putyra: Środa Śląska, Poland, 2015. [Google Scholar]
- Norouziasas, A.; Attia, S.; Hamdy, M. Impact of Space Utilization and Work Time Flexibility on Energy Performance of Office Buildings. J. Build. Eng. 2024, 98, 111032. [Google Scholar] [CrossRef]
- Attia, S.; Bertrand, S.; Cuchet, M.; Yang, S.; Tabadkani, A. Comparison of Thermal Energy Saving Potential and Overheating Risk of Four Adaptive Façade Technologies in Office Buildings. Sustainability 2022, 14, 6106. [Google Scholar] [CrossRef]
- Kim, K.; Lee, K. Indoor Light Environment Factors That Affect the Psychological Satisfaction of Occupants in Office Facilities. Buildings 2024, 14, 1248. [Google Scholar] [CrossRef]
- Helbin, J. Środowiskowe Czynniki Fizyczne Wpływające Na Organizm Człowieka [Environmental Physical Factors Affecting the Human Body, in Polish]. In Wybrane Problemy Higieny i Ekologii Człowieka [Selected Issues in Human Hygiene and Ecology, in Polish]; Kolarczyk, E., Ed.; Jagiellonian University Publishing: Kraków, Poland, 2008; pp. 29–100. ISBN 978-83-233-2467-6. [Google Scholar]
- Ekici, C. A Review of Thermal Comfort and Method of Using Fanger’s PMV Equation. In Proceedings of the 5TH International Symposium on Measurement, Analysis and Modeling of Human Functions 2013, Vancouver, BC, Canada, 27–29 June 2013. [Google Scholar]
- Fanger, P.O.; Christensen, N.K. Perception of Draught in Ventilated Spaces. Ergonomics 1986, 29, 215–235. [Google Scholar] [CrossRef]
- Shum, C.; Zhong, L. Optimizing Automated Shading Systems for Enhanced Energy Performance in Cold Climate Zones: Strategies, Savings, and Comfort. Energy Build. 2023, 300, 113638. [Google Scholar] [CrossRef]
- Michailidis, P.; Michailidis, I.; Vamvakas, D.; Kosmatopoulos, E. Model-Free HVAC Control in Buildings: A Review. Energies 2023, 16, 7124. [Google Scholar] [CrossRef]
- Dudzik, M. Towards Characterization of Indoor Environment in Smart Buildings: Modelling PMV Index Using Neural Network with One Hidden Layer. Sustainability 2020, 12, 6749. [Google Scholar] [CrossRef]
- de Dear, R.J.; Brager, G.S. Towards an Adaptive Model of Thermal Comfort and Preference. ASHRAE Trans. 1998, 104, 145–167. [Google Scholar]
- Nicol, J.F.; Humphreys, M.A. Adaptive Thermal Comfort and Sustainable Thermal Standards for Buildings. Energy Build. 2002, 34, 563–572. [Google Scholar] [CrossRef]
- Hellwig, R.T.; Teli, D.; Schweiker, M.; Choi, J.-H.; Lee, M.C.J.; Mora, R.; Rawal, R.; Wang, Z.; Al-Atrash, F. A Framework for Adopting Adaptive Thermal Comfort Principles in Design and Operation of Buildings. Energy Build. 2019, 205, 109476. [Google Scholar] [CrossRef]
- Dudzik, M.; Romanska-Zapala, A.; Bomberg, M. A Neural Network for Monitoring and Characterization of Buildings with Environmental Quality Management, Part 1: Verification under Steady State Conditions. Energies 2020, 13, 3469. [Google Scholar] [CrossRef]












| Category | Thermal Comfort Indices | |
|---|---|---|
| PPD [%] | PMV [-] | |
| I | <6 | −0.2 < PMV < +0.2 |
| II | <10 | −0.5 < PMV < +0.5 |
| III | <15 | −0.7 < PMV < +0.7 |
| IV | <25 | −1.0 < PMV < +1.0 |
| Date | Experiment Phase | Temperature Setpoint [°C] | HVAC Heating System |
|---|---|---|---|
| 7–20 February 2024 | stabilization of indoor conditions | 24 (fixed) | fan coil unit |
| 21 February–1 March 2024 | measurement cycle (I) | floor system | |
| 2 March 2024 | stabilization of indoor conditions | fan coil unit | |
| 3–12 March 2024 | measurement cycle (II) | wall-mounted system |
| Measured Parameter | Measurement Range | Resolution | Accuracy |
|---|---|---|---|
| Temperature | −20 °C ÷ +50 °C (wet thermometer 0 °C ÷ +50 °C) | 0.01 °C | ±0.4 °C |
| Temperature of the blackened sphere | −20 ÷ +50 °C | 0.01 °C | ±0.4 °C |
| Relative humidity (RH) | 0 ÷ 100% RH | 0.1% RH | ±2% RH |
| Air velocity (Va) (thermoanemometer) | 0 ÷ 5 m/s | 0.01 m/s | for 0 ÷ 1 m/s ±0.05 + 0.05 Va m/s, for 1 ÷ 5 m/s ±5% |
| Room | Measurement Height [m] | PMV Min [-] | PMV Mean (SD) [-] | PMV Max [-] | Ta Min [°C] | Ta Mean (SD) [°C] | Ta Max [°C] | Va Mean (SD) [m/s] |
|---|---|---|---|---|---|---|---|---|
| underfloor heating | ||||||||
| L1 | 1.1 | 0.35 | 0.65 (0.22) | 1.95 | 23.63 | 24.83 (0.93) | 30.00 | 0.02 (0.02) |
| 0.6 | 0.35 | 0.67 (0.26) | 2.64 | 23.69 | 24.93 (1.08) | 32.31 | 0.01 (0.02) | |
| 0.1 | 0.11 | 0.53 (0.32) | 2.72 | 23.19 | 24.67 (1.22) | 31.81 | 0.14 (0.05) | |
| L2 | 1.1 | 0.19 | 0.46 (0.12) | 1.12 | 23.06 | 24.05 (0.51) | 26.56 | 0.09 (0.03) |
| 0.6 | 0.34 | 0.51 (0.10) | 1.23 | 23.63 | 24.24 (0.44) | 27.06 | 0.04 (0.03) | |
| 0.1 | 0.32 | 0.49 (0.09) | 1.11 | 23.38 | 23.99 (0.39) | 26.69 | 0.01 (0.02) | |
| wall heating | ||||||||
| L1 | 1.1 | 0.29 | 0.53 (0.24) | 2.16 | 23.56 | 24.38 (0.91) | 29.94 | 0.01 (0.01) |
| 0.6 | 0.25 | 0.53 (0.29) | 2.84 | 23.44 | 24.44 (1.12) | 33.06 | 0.01 (0.02) | |
| 0.1 | −0.01 | 0.38 (0.34) | 2.88 | 22.63 | 23.99 (1.29) | 32.56 | 0.12 (0.03) | |
| L2 | 1.1 | −0.06 | 0.22 (0.15) | 0.91 | 22.00 | 22.92 (0.60) | 26.06 | 0.08 (0.02) |
| 0.6 | 0.15 | 0.34 (0.11) | 1.02 | 22.94 | 23.58 (0.44) | 26.88 | 0.01 (0.02) | |
| 0.1 | 0.15 | 0.33 (0.10) | 0.94 | 22.81 | 23.40 (0.35) | 26.56 | 0.01 (0.01) | |
| Parameter | L1 (Underfloor Heating) | L1 (Wall-Mounted Heating) | L2 (Underfloor Heating) | L2 (Wall-Mounted Heating) |
|---|---|---|---|---|
| PMV max [-] | 2.75 (head) | 2.88 (feet) | 1.23 (center of gravity) | 1.02 (center of gravity) |
| mean PMV 0.6 m [-] (reference) | 0.67 | 0.53 | 0.51 | 0.34 |
| mean whole-body PMV | 0.62 | 0.49 | 0.49 | 0.31 |
| PMV min [-] | 0.11 (feet) | −0.06 (feet) | 0.19 (head) | −0.06 (head) |
| relative PMV variability | high | highest | lowest | low |
| mean Ta 0.6 m [°C] | 24.93 | 24.44 | 24.24 | 23.58 |
| vertical PMV difference (on average lower by [-]) | center of gravity ≈ head > feet (0.13) | center of gravity ≈ head > feet (0.15) | center of gravity ≈ feet > head (0.04) | center of gravity ≈ feet > head (0.09) |
| number of discomfort hours (PMV ≥ 1.0, during occupied hours) [h] | 22.7 | 13.3 | 1.67 | 0.2 |
| thermal comfort assessment | severe overheating and thermal stress during periods of intense solar exposure and the following cooling phase; otherwise comfortable | stable conditions; generally comfortable to slightly warm during periods of intense solar exposure; reduced peak PMV values by an average of 50.2%; reduced the number of discomfort hours by 94.9% | ||
Disclaimer/Publisher’s Note: The statements, opinions and data contained in all publications are solely those of the individual author(s) and contributor(s) and not of MDPI and/or the editor(s). MDPI and/or the editor(s) disclaim responsibility for any injury to people or property resulting from any ideas, methods, instructions or products referred to in the content. |
© 2025 by the authors. Licensee MDPI, Basel, Switzerland. This article is an open access article distributed under the terms and conditions of the Creative Commons Attribution (CC BY) license.
Share and Cite
Fedorczak-Cisak, M.; Radziszewska-Zielina, E.; Dechnik, M.; Buda-Chowaniec, A.; Romańska, A.; Dudzińska, A. Comparative Study on Surface Heating Systems with and Without External Shading: Effects on Indoor Thermal Environment. Energies 2026, 19, 223. https://doi.org/10.3390/en19010223
Fedorczak-Cisak M, Radziszewska-Zielina E, Dechnik M, Buda-Chowaniec A, Romańska A, Dudzińska A. Comparative Study on Surface Heating Systems with and Without External Shading: Effects on Indoor Thermal Environment. Energies. 2026; 19(1):223. https://doi.org/10.3390/en19010223
Chicago/Turabian StyleFedorczak-Cisak, Małgorzata, Elżbieta Radziszewska-Zielina, Mirosław Dechnik, Aleksandra Buda-Chowaniec, Anna Romańska, and Anna Dudzińska. 2026. "Comparative Study on Surface Heating Systems with and Without External Shading: Effects on Indoor Thermal Environment" Energies 19, no. 1: 223. https://doi.org/10.3390/en19010223
APA StyleFedorczak-Cisak, M., Radziszewska-Zielina, E., Dechnik, M., Buda-Chowaniec, A., Romańska, A., & Dudzińska, A. (2026). Comparative Study on Surface Heating Systems with and Without External Shading: Effects on Indoor Thermal Environment. Energies, 19(1), 223. https://doi.org/10.3390/en19010223

